7.00pm, 09 August, 2005
Civic Centre,
Dundebar Road, Wanneroo
Public Question & Statement Time
Council allows a minimum of 15 minutes for public questions and statements at each Council meeting. If there are not sufficient questions to fill the allocated time, the person presiding will move on to the next item. If there are more questions than can be dealt with in the 15 minutes allotted, the person presiding will determine whether to extend question time.
Protocols
During the meeting, no member of the public may interrupt the meeting’s proceedings or enter into conversation. Each person seeking to ask questions during public question time may address the council for a maximum of 3 minutes each.
Members of the public wishing to submit written questions are requested to lodge them with the Chief Executive Officer at least 30 hours prior to the start of the meeting.
The person presiding will control public question time and ensure that each person wishing to ask a question is given a fair and equal opportunity to do so. A person wishing to ask a question should state his or her name and address before asking the question. If the question relates to an item on the agenda, the item number should also be stated.
The following general rules apply to question and statement time:
· Questions should only relate to the business of the council and should not be a statement or personal opinion.
· Only questions relating to matters affecting Council will be considered at an ordinary meeting, and at a special meeting only questions that relate to the purpose of the meeting will be considered. Questions may be taken on notice and responded to after the meeting.
· Questions may not be directed at specific members of council or employees.
· Questions & statements are not to be framed in such a way as to reflect adversely on a particular Elected Member or Officer.
· The second priority will be given to public statements. Only statements regarding items on the agenda under consideration will be heard.
Deputations
The Mayor and Councillors will conduct an informal session on the same day as the meeting of the Council at the Civic Centre, Wanneroo, commencing at 6.00pm where members of the public may, by appointment, present deputations. If you wish to present a deputation please submit your request for a deputation in writing addressed to the Chief Executive Officer or fax through to Executive Services on 9405 5097.
· A time period of 10 minutes is set aside for each deputation.
· Deputations shall not exceed five (5) persons in number and only three (3) of those persons shall be at liberty to address the Council and to respond to questions the Mayor and Councillors may have.
Please ensure that mobile phones are switched off before entering the Council Chamber. Any queries on this agenda, please contact Executive Services on 9405 5027 or 9405 5018.
Recording of Council Meetings Policy
Objective
· To ensure that there is a process in place to outline access to the recorded proceedings of Council.
· To emphasise that the reason for tape recording of Council Meetings is to ensure the accuracy of Council Meetings.
Statement
Recording of Proceedings
(1) Proceedings for meetings of the Council, of electors and of the Audit Committee shall be recorded, by the City, on sound recording equipment except, in the case of meetings of the Council or the Audit Committee, where the Council or the Committee, as the case may be, closes the meeting to the public.
(2) Notwithstanding sub clause (1), proceedings of a meeting of the Council or of the Audit Committee which is closed to the public shall be recorded where the Council or the Audit Committee, as the case requires, resolves to do so.
(3) No member of the public is to use any electronic, visual or vocal recording device or instrument to record the proceedings of the Council or a committee without the written permission of the Council.
Access to Recorded Tapes
(4) Members of the public may purchase a copy of the taped proceedings or alternatively listen to recorded proceedings with the supervision of a City Officer.
(5) Elected Members may listen to a recording of the Council proceedings upon request, free of charge. However, no transcript will be produced without the approval of the Chief Executive Officer.
(6) Costs of providing taped proceedings to members of the public will be the cost of the tape plus staff time to make the copy of the proceedings. The cost of supervised listening to recordings will be the cost of the staff time. The cost of staff time will be set in the City’s schedule of fees and charges each year.
Retention of Tapes
(7) Recordings pertaining to the proceedings of Council Meetings shall be retained in accordance with the Library Board of Western Australia Act (1951-83), General Disposal Authority for Local Government Records. The current requirement for the retention of recorded proceedings is thirty (30) years.
Disclosure of Policy
(8) This policy shall be printed within the agenda of all Council, Special Council, Electors and Special Electors and the Audit Committee meetings to advise the public that the proceedings of the meeting are recorded.

Notice is given that the next Ordinary Council Meeting will be held at the Civic Centre,
Dundebar Road, Wanneroo on Tuesday 09 August, 2005 commencing at 7.00pm.
C JOHNSON
Chief Executive Officer
04 August 2005
CONTENTS
Item 2 Apologies and Leave of Absence
Item 4 Confirmation of Minutes
OC01-08/05 Minutes of Ordinary Council Meeting held on 19 July 2005
OC02-08/05 Minutes of Special Council Meeting held on 29 July 2005
Item 5 Announcements by the Mayor without Discussion
Item 6 Questions from Elected Members
Town Planning Schemes and Structure Plans
PD03-08/05 Proposed Rural Subdivision - Lot 15 (102) Franklin Road, Jandabup
PD04-08/05 Bed and Breakfast on Lot 985 (8) Gateshead Loop, Mindarie
PD05-08/05 Subdivision Applications Determined under Delegated Authority during June 2005
PD06-08/05 Wanneroo Tourism Initiative - Icards
IN03-08/05 Road Safety Audit Policy
IN05-08/05 Closure of Coastal Rise, Quinns Rocks
IN06-08/05 Resource Recovery Rebate Scheme
CS01-08/05 Warrant of Payments - For the Period to 30 June 2005
CS02-08/05 Proposed Sale of Lot 232 (36) Dellamarta Road, Wangara
CS03-08/05 Licence to Occupy - Pt Lot 15 Motivation Drive, Wangara
CS04-08/05 Proposed Subdivision of Lot 4 Flynn Drive, Neerabup
CS05-08/05 Insurance Services 2005/2006
CD01-08/05 Hainsworth Skate-Able Space
CD02-08/05 Acceptance of Funding Agreement for In-Home Care
CD03-08/05 Application to Keep More than Two Dogs Various Addresses
Governance & Customer Relations
GS01-08/05 Donation Requests to be Considered by Council
GS02-08/05 Tender 05511 - Internal Audit Services - 1 July 2005 to 30 June 2008
GS03-08/05 Award of Title ‘Wanneroo Pioneer’ Policy
CE01-08/05 Appointment of Acting Chief Executive Officer
CE02-08/05 Donation Requests Determined under the Delegated Authority of the Chief Executive Officer
CE03-08/05 Council Administration’s Participation in the Asia Pacific Cities Summit 2005
AGENDA
That Cr Pearson be granted a leave of absence from 15 August to 31 August 2005 inclusively.
That the minutes of the Ordinary Council Meeting held on 19 July 2005 be confirmed.
That the minutes of the Special Council Meeting held on 29 July 2005 be confirmed.
Cr Cvitan to declare a financial interest in Item PD01-08/05 due to having property for sale within the item boundary area.
Cr Salpietro to declare an impartial financial interest in Item GS02-08/05 due to having business dealings with the recommended tenderer.
Cr Loftus to declare an impartial interest in Item CE03-08/05 due to being a financial member of the Wanneroo Business Association.
Cr Gray to declare an impartial interest in Item CE03-08/05 due to being a financial member of the Wanneroo Business Association.
Town Planning Schemes and Structure Plans
File Ref: SP/0005/06V01
File Name: BAProposed Amendment No 6 to East Wanneroo Cell No 4 Agreed Structure Plan Recoding of land bounded by Kemp
Level 5 Approval by shb Date 03 August 2005
Level 4 Approval by shb Date 28 July 2005
Level 3 Approval by shb Date 25 July 2005
Level 2 Approval by shb Date 25 July 2005
Level 1 Approval by shb Date 25 July 2005Street.doc This line will not be printed Please do NOT delete
Responsible Officer: Director, Planning and Development
Disclosure of Interest: Nil
Author: Mike Hudson
Meeting Date: 9 August 2005
Attachments: 3
StartStrip This line will not be printed Please do NOT delete
Issue
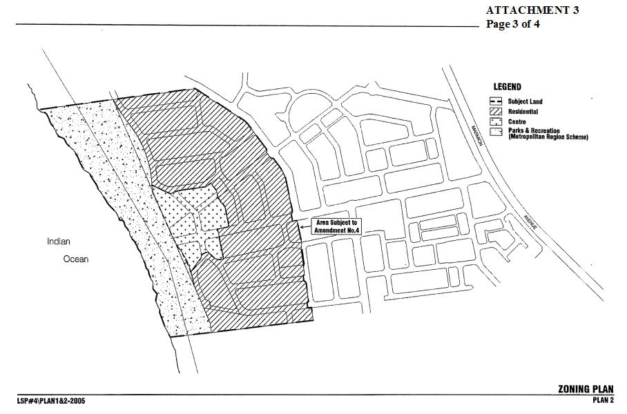
To consider an amendment to the East Wanneroo Cell 4 Agreed Structure Plan (ASP) No. 6 in respect to land bounded by Kemp Street, Archer Street and Shiraz Boulevard, Pearsall.
|
Applicant |
Drescher & Associates |
|
Owner |
Justin Sonia Pty Ltd and Others |
|
Location |
Land bounded by Kemp Street, Archer Street and Shiraz Boulevard, Pearsall |
|
Site Area |
Approx. 24 Hectares |
|
DPS 2 Zoning |
Background
The East Wanneroo Cell 4 ASP is shown as Attachment 1. Council resolved to adopted the ASP at its meeting of 28 September 1999, subsequent to considering the modification requested by the Western Australian Planning Commission (WAPC). The WAPC finally adopted and certified the ASP on 24 June 2002.
At its meeting on 16 December 2003, Council resolved to delegate authority to deal with all decisions relating to amendments to existing structure plans to the Director, Planning and Development, except where a public submission has been received following advertising of the amendment, or where an elected member has provided a written request to the Director requesting the structure plan be referred to Council.
In this instance, the applicant has requested that the proposed amendment be directed to Council and bypass the delegated authority process based on previous discussions held with the respective Ward Councillors.
Detail
Drescher and Associates on behalf of Justin Sonia Pty Ltd have requested that the Cell 4 ASP be amended to introduce a blanket Residential R30 density coding over their landholding and the adjacent landholdings within the area generally bounded by Archer Street, Kemp Street, Shiraz Boulevard and eastern boundary of Lot 32 Kemp Street and Lot 43 Shiraz Boulevard, Pearsall (refer Attachment 3). Attachment 2 depicts the existing ASP as it relates to the land included in the proposed Amendment.
Justin Sonia Pty Ltd have control over the majority of land within the amendment area and it has been indicated that other affected landowners have been informed of the proposal and have no significant objection to the proposal proceeding. However, because the applicant has not provided formal letters of consent from the other affected landowners the proposal should be subject to public consultation.
The salient points of the proposal can be summarised as per the following:
· Recoding of the existing R20 coding under the Cell 4 ASP to R30 to facilitate the opportunity for additional group dwellings and greater flexibility in lot size and house design.
· Minor variations to the proposed road design to accommodate improved lot module depth and land efficiency. The amended road design generally reflects subdivision approvals issued by the Western Australian Planning Commission for all of the undeveloped landholdings with the exception of Lots 10 and 34 Kemp Street and Lot 40 Shiraz Boulevard, which currently do not have a valid subdivision approval.
· No variation to the existing (Agreed) R40 density coding around the future POS area.
· No variation to the location, size or nature of the area of future public open space in this locality as depicted in the Cell 4 ASP.
Consultation
Clause 9.7 of District Planning Scheme No.2 (DPS2) enables public notification of an amendment to an ASP to be waived where the amendment is considered to be of a minor nature which does not materially alter the intent of the structure plan or cause any significant detriment to land within or abutting the structure plan area.
In this case, it is considered that the proposal should be subject to consultation. The recommended period of consultation is 28 days and should include an advertisement in the local newspaper, letters to adjoining/affected landowners and on-site signs.
Comment
The proposed increase in the density coding in this locality will provide greater flexibility and opportunity for a variety of residential lot sizes and housing types to cater for differing household needs.
The proposal promotes a legible boundary to Shiraz Boulevard, Kemp Street and Archer Street. These roads are designated local connector roads and will assist in the promotion of a ‘hard edge’ to the density code and promote the areas character and identity.
The subject land is in close proximity to a future local centre and community purpose site located on Kemp Street and the existing Ocean Reef Road, thereby providing good proximity to areas of employment, services and public transport.
The creation of a variety of lot sizes and housing types is in keeping with the City’s strategic direction. The Healthy Communities goal of the City’s Strategic Plan seeks to “…foster an identity that that promotes lifestyle choices…”. The City’s draft Smart Growth Strategy also includes “Lifestyle and Housing Choice” as one of its six principles. This principle seeks to encourage the provision of a variety of housing types and the enhancement of lifestyle options.
The City’s draft Local Housing Strategy, which is currently being advertised for public comment, includes as a main objective “… to ensure that a wide range and choice of housing is provided to meet the changing social and economic needs of the community…”.
The range of densities is also considered to be consistent with the Western Australian Planning Commission (WAPC) policies such as those contained within the Development Control Policy Manual and Liveable Neighbourhoods. Part 2 of the Residential section of the ‘Development Control Policy Manual (including subdivision)’, identifies as an objective the need “to facilitate the supply of residential lots of a wide range of sizes and shapes….”.
The WAPC’s Guidelines for Preparation of Local Structure Plans (1992) Part 3.4.1 – The Location and Density of Housing Areas, promotes a mix in housing densities and specifically suggests that structure plans should “include medium and high density housing sites particular near significant employment locations, public transport routes, commercial centres, education facilities and recreation areas.”
The amended road design generally reflects subdivision approvals issued by the WAPC for all of the undeveloped landholdings with the exception of Lots 10 and 34 Kemp Street, which are yet to receive subdivision approval from the WAPC. Lot 40 Shiraz Boulevard has received approval for a church use and it is unlikely that the land will be developed for residential purposes in the short term (Lot locations shown on Attachment 2). Whilst the ASP does not promote a road concept over the church landholding, there is enough flexibility in the surrounding road design to accommodate the redevelopment of the lot for residential purposes if pursued in the future.
Statutory Compliance
The proposed Amendment to the ASP will follow the statutory process outlined in Part 9 of DPS2 and the provisions of the City’s delegated authority in relation to the processing of structure plans, should no submissions be received during the public consultation period.
Strategic Implications
Consideration of this proposal is consistent with the goal of providing Healthy Communities under the City’s Strategic Plan and in particular, Strategy 2.2 of the Planning and Development Directorate Strategic Plan, which seeks to provide a cohesive system of integrated land use planning.
Policy Implications
Nil
Financial Implications
Nil
Voting Requirements
Simple Majority.
EndStrip This line will not be printed Please do NOT delete
Recommendation
That Council pursuant to Clauses 9.4.1 and 9.7 of District Planning Scheme No. 2 ADVERTISES proposed Amendment No. 6 to the East Wanneroo Cell 4 Agreed Structure Plan to recode portion of the structure plan from Residential R20 to R30 and accommodate minor road variations as submitted by Drescher and Associates and as depicted in Attachment 3 to this report, for a period of 28 days.
EndOfRecommendation - This line will not be printed Please do NOT delete
StartOfAttachment - Do not delete this line will not be printed

EndOfAttachment - Do not delete this line will not be printed
StartOfAttachment - Do not delete this line will not be printed

EndOfAttachment - Do not delete this line will not be printed
StartOfAttachment - Do not delete this line will not be printed

EndOfAttachment - Do not delete this line will not be printed
File Ref: SP/0032/04V01, P15/0073V01
File Name: BAAmendment No 4 to Lot 12 Jindalee Agreed Structure Plan.doc This line will not be printed Please do NOT delete
Level 3 Approval by shb Date 29 July 2005
Level 2 Approval by shb Date 29 July 2005
Level 1 Approval by shb Date 29 July 2005
Responsible Officer: Director, Planning and Development
Disclosure of Interest: Nil
Author: Timothy Dawson
Meeting Date: 9 August 2005
Attachments: 8
StartStrip This line will not be printed Please do NOT delete
Issue
To consider the following matters in regard to Lot 12 Marmion Avenue, Jindalee:
1. Amendment No.4 to the Lot 12 Jindalee Agreed Structure Plan;
2. A draft Foreshore Management Plan for the foreshore area abutting Lot 12; and
3. An application for bulk earthworks and landscaping of a proposed area of public open space in south western portion of the structure plan area.
Background
In 2003, the City and the Western Australian Planning Commission (WAPC) adopted the Lot 12 Jindalee Structure Plan. The structure plan provided for the land to be subdivided for residential purposes and proposed a mixed-use beachside node and a business centre adjacent to Marmion Avenue. A location plan is include as Attachment 1. A copy of the current Agreed Structure Plan map, incorporating all adopted amendments, is included as Attachment 2.
The WAPC granted subdivision approval for the entire structure plan area on 6 August 2003 (WAPC Ref 117988) and the land is being progressively subdivided and developed, generally from the south-eastern corner of the land adjacent to Marmion Avenue, westwards toward the coast.
In considering the structure plan, the City required that a management plan be prepared and implemented by the proponent for the foreshore area adjacent to Lot 12. The WAPC also suggested that the drainage disposal method proposed in the structure plan which sought to locate two drainage sumps adjacent to the coastal road, be reviewed. In granting subdivision approval, the WAPC also excluded the proposed beachside node pending a redesign.
In response to these requirements, an amendment to the western portion of the structure plan and a Foreshore Management Plan have been prepared by the proponent, that provide for a high level of integration between a revised beachside activity node and the adjacent foreshore.
As part of the more detailed planning for the residential area in the south western portion of the structure plan area, the proponent has also identified a desire to undertake bulk earthworks over a proposed area of public open space.
A development application for this, as well as associated revegetation and landscaping has been lodged for Council’s consideration in association with the Foreshore Management Plan and structure plan amendment.
Detail
In order for the three proposals to be considered in context, a single consolidated report has been prepared.
Description of Proposals
A description of each of the proposals is set out below:
Amendment No.4 to Lot 12 Jindalee Agreed Structure Plan
The amendment seeks to modify the western portion of the structure plan area. Key features of the structure plan amendment include:
a) Extending the structure plan boundary to include the abutting Foreshore Reserve;
b) Provision for a larger coastal node (described in the structure plan as the Seaside Village Precinct), which integrates with Foreshore Management plan proposals;
c) Redistribution of an area of public open space to provide for a public space component within the coastal node and open space spine to provide a strong pedestrian link and view corridor for the residential area to the east;
d) Deletion of two proposed drainage sumps from the eastern side of the coastal road to the foreshore reserve;
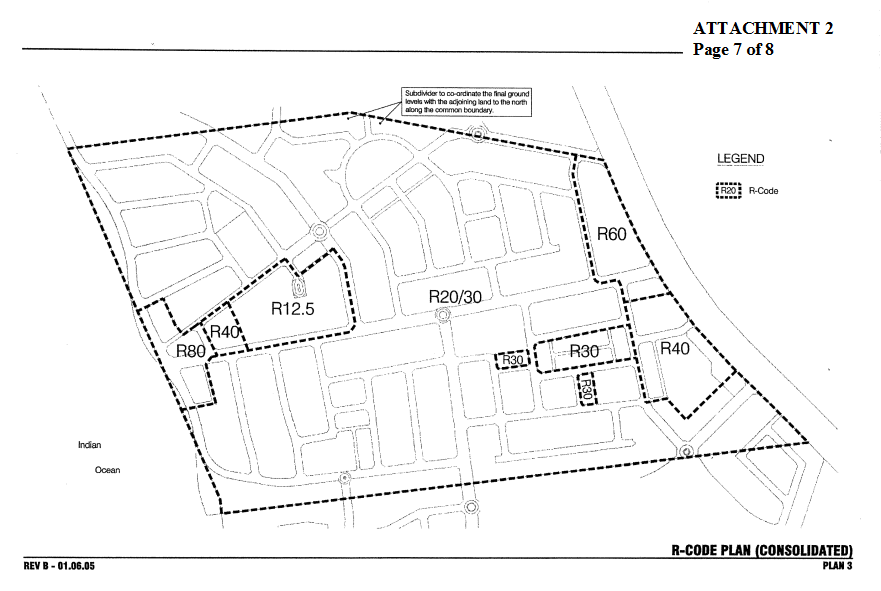
e) Replacement of the existing low density R12.5 Special Housing Precinct with an R20/30 Residential area and provision for a new Special Design Precinct in the north western corner of the structure plan area;
f) Modifications to the road network.
A copy of the revised structure plan map is included as Attachment 3.
Foreshore Management Plan
The key features of the draft Foreshore Management Plan include:
a) Two grassed passive recreation/picnic areas and a paved plaza that provide a high level of integration with the adjacent coastal node;
b) Two drainage swales integrated into the grassed recreation areas;
c) A 60 bay car park;
d) A dual use path and beach access way system, incorporating wooden beach access steps and several look out points;
e) A café/kiosk, with public toilet and shower facilities;
f) Revegetation and rehabilitation proposals for the foreshore reserve including fencing of vegetated areas;
g) A range of incidental facilities such as signage and bins etc.
A copy of a landscape concept plan which outlines the foreshore proposals is included as Attachment 4.
Earthworks and Revegetation of Proposed Public Open Space
This application relates to the proposed area of public open space in the south western portion of the structure plan area. This proposed area of open space will form a northern extension of an existing area of open space that was ceded as part of the subdivision of the estate to the south. The key features of the development application include:
a) Removal of the native vegetation over the majority of the proposed open space;
b) Removal of approximately four metres of sand from the western end of the open space and approximately two metres of sand from the eastern end;
c) Revegetation of the earth worked land with local native species;
d) A feature lookout/shelter on the new highpoint at the western end of the open space;
e) A 2.4 metre wide concrete dual use path along the northern perimeter of the open space and to the lookout/shelter.
f) A five year maintenance period for the revegetation areas.
A site plan outlining the proposal is included as Attachment 5.
Consultation
It is intended that all three proposals be subjected to consultation with both the community and relevant government agencies. Given the integrated nature of the proposals they should be advertised concurrently. Depending on the site and nature of the proposal, foreshore management plans are normally advertised for between six and eight weeks, structure plans between three and six weeks and development applications between two and four weeks. Given the nature of the proposals in this case, it is recommended that an advertising period of six weeks be undertaken.
It is intended that advertising be carried out by way of onsite advertising signs, letters to adjacent landowners and key stakeholders including government agencies and local community groups and advertisements in the local newspaper and on the City’s website.
Comment
The following comments are made in regard to each proposal:
Amendment No.4 to Lot 12 Jindalee Agreed Structure Plan
Coastal Node
The Butler-Jindalee District Structure Plan identifies a centrally located coastal centre for this site. The draft centres strategy that supports the District Structure Plan, identifies the centre as having a retail nett lettable area limit of around 350m2.
Once the concept of a coastal centre is accepted, the proponent intends to further explore the potential of this centre to accommodate additional retail floor space for tourism and leisure based retail.
The current Agreed Structure Plan makes provision for three sites zoned Mixed Use, with an R80 density code. The amendment seeks to increase the area covered by the node.
The node is now intended to include a central public space designed to integrate into a foreshore plaza, a car park with a capacity of approximately 36 bays, five development sites oriented around the public space, the coastal road relocated behind the two western development sites to provide a high level of integration with the foreshore area and a promenade along the interface with the foreshore area to provide an appropriate interface. It is intended that the commercial/business uses would operate from the ground floor of the western development sites, with the upper floors of these sites as well as the eastern development sites being used for medium density residential. The western development sites are intended to orientate toward the foreshore. Two to three storey buildings are proposed on the two western development sites with the three eastern development sites being up to two storeys. These building heights will provide a transition to the adjoining residential area and the node has been designed to provide view corridors from the residential area to the ocean. Development within the node is intended with minimal setbacks, within a main street environment. Indicative concepts showing how the proponent envisages the centre to look are shown in Attachment 6.
The amendment will provide for the development of a high quality coastal node that will integrate well with the foreshore management proposals. The structure plan does not however include the detailed zonings or development standards and requirements (parking, setbacks, height etc) that would facilitate the development of the node. The proponent has indicated a preference for the structure plan to contain principles for development with detailed design guidelines/Detailed Area Plans to be prepared prior to development of individual sites. In order to provide for the coordinated development of the node and to provide certainty for both the proponent and new residents establishing within the area, it is preferable for these guidelines to be prepared at this stage. Given that the design principles have been established it would be acceptable for these to be prepared during the consultation phase for Council to consider at the time of considering adoption of the amendment.
Road Network
The current Agreed Structure Plan depicted a coastal road as an interface between the foreshore reserve and the urban area. The applicant has proposed to align the coastal road through the node to improve commercial exposure and integration with the adjoining foreshore. As this would result in the two development sites abutting the foreshore, the proponent has provided a four metre wide pedestrian promenade to form the interface. Adjoining development sites are intended to orientate toward the foreshore to provide a high quality outlook and for surveillance of the foreshore area.
A cul-de-sac is proposed to provide access to the residential lots located at the south-western corner of the amendment area, adjoining an area of public open space. The location of this cul de sac is not considered appropriate directly adjacent to the coastal node, given the non residential traffic that would be likely to use it. The road design also results in two residential lots directly abutting the open space. This will be likely to result in surveillance and privacy issues.
It is therefore recommended that the cul de sac be extended through to link with the coastal road. Whilst the topography in this area is quite steep, it is still considered that the road could be designed to meet the City’s road design standards.
General Issues
A portion of the land to the east of the coastal node was identified in the current Agreed Structure Plan as a Special Housing Precinct with a low density residential coding of 12.5. The original intent of this precinct was to create larger lots wherein areas of bushland could be preserved to assist in the preservation of what was identified as a Threatened Ecological Community (TEC).
At the time of considering the original structure plan, the former Department of Environmental Protection (DEP) advised that the plan should be modified to accommodate the TEC. However, it was noted that its retention would be highly problematic given the steep topography, which would result in significant earthworks. A conservation offset contribution was therefore negotiated between the proponent and the Department of Conservation and Land Management.
The TEC has now been cleared and the hill removed through bulk earthworks associated with the subdivision of the land. Hence the applicant advised that there is, therefore, now no context or reason for creating larger lots in this location. Considering these matters the proponent has proposed to recode the area R20/30 consistent with the majority of the surrounding area.
The structure plan has been designed to integrate with an earlier structure plan design for Lot 10 to the immediate north. Whilst a formal structure plan for Lot 10, consistent with the landowners current development intentions has not been formally submitted, it is understood that the design may have changed to accommodate the requirements of environmental agencies. This may have implications for road connections and interface with areas of open space. Discussions should be undertaken between the proponent and the developer of the land to the north to ensure that an appropriate level of design integration is achieved.
The existing Agreed Structure Plan was prepared several years ago and is not consistent with the current format of the City’s structure plans. It is therefore recommended that the structure plan be reformatted in line with the City’s current standard.
Foreshore Management Plan
In preparing the Foreshore Management Plan, the proponent has taken into consideration the recommendations of the City’s 1992 Coastal Planning Study for the Burns Beach to Jindalee. The objective of this study was to determine the recreational potential of the coast having regard to its environmental sustainability and the significant demands that will be placed on the coast by the future population.
The foreshore reserve is part of Bush Forever Site 397. The condition of the vegetation is generally identified to be in very good condition, although there are some pockets of vegetation in good to degraded condition. The topography of the site is undulating and drops from 27 metres AHD at the development front to 0 metres at sea level. The foreshore reserve/beach interface is steep along the entire study area with frequent limestone present forming low cliffs.
A Coastal Stability Study undertaken by MP Rogers and Associates Pty Ltd for the proponent concluded that the rocky coast along the study area has remained quite stable over the 56 years between 1941 and 1997, with some areas experiencing accretion. The study therefore recommends a minimum development setback of at least 30 metres behind the limestone cliffs.
The following comments are made on the specific proposals of the draft FMP.
Subdivisional Drainage
Two drainage swales are proposed to be integrated with the grassed recreation/picnic areas. These areas serve the adjoining street network and are to be located within land that is generally of poorer quality vegetation. Geotechnical testing of the soil within the proposed swales indicate that the drainage areas have suitable filtration rates for stormwater. The drainage basins are proposed to contain gross pollutant traps as well as oil and grease traps.
These drainage swales will replace two sumps that were previously proposed on the eastern side of the coastal road as part of the existing subdivisional approval 117988 (refer Attachment 8). Subject to the detailed design demonstrating that the adequacy of the area indicated for this purpose on the landscape plans, minimal impact on ‘very good’ condition vegetation and that the recreational function of land containing the swales will not be adversely affected, this means of drainage disposal is considered appropriate.
It should however be noted that the proponent is normally obliged to provide the land for its subdivisional drainage disposal free of cost. Subdivisional approval 117988 included two drainage reserves (total area 3154m2) immediately east of the coastal road within the landowner’s land, which can now be subdivided for at least 5-6 residential lots. As the proponent is now seeking to use Crown land managed by the City for drainage purposes, an appropriate offset recognising this benefit should be provided by the proponent. The proponent would normally be required to undertake the majority of works proposed under their foreshore management plan as listed below.
The following Table 1 lists the foreshore works proposed by the developer and divides those works into two categories, ie: those works that would normally be undertaken by a developer and those works that could be considered over and above.
|
No. |
Works normally undertaken by the developer |
Works normally not undertaken by the developer |
|
1 |
Landscaped grassed areas |
|
|
2 |
Shade trees, seats, beach showers, signs, bins and barbeques |
District level park facilities such as substantial playgrounds |
|
3 |
Dual use paths |
|
|
4 |
Beach accessways |
|
|
5 |
Fencing |
|
|
6 |
Carpark (local) |
District car parking |
|
7 |
Revegetation/Rehabilitation |
|
|
8 |
Lookouts |
Substantial Lookout Structures |
|
9 |
|
Kiosk/cafe |
|
|
|
Toilets |
As can be seen from the above table, the majority of works proposed by the developer in lieu of relocating subdivisional drainage from private land into the foreshore reserve are similar works that would have ordinarily been expected and indeed have been provided by many coastal developers in the corridor.
The question therefore for the Council is whether the additional proposed works represent a sufficient public benefit, particularly when considered against the value of the additional subdivisional lots that the developer will gain by relocating the drainage.
It is clear that moving the drainage as proposed will give a more appropriate urban design and amenity outcome and accordingly the principle must be supported. Notwithstanding, the loss of public land for drainage purposes must be acknowledged with sufficient offset works to the benefit of the community. Therefore in view of administrations support for this proposal in principle, it is recommended advertising proceeds. However, further negotiations will be required with the developer in respect to further public benefits this project can bring and satisfactory arrangements to secure such works.
Car Parking and Crime Prevention through Environmental Design
The foreshore management plan makes provision for a 60 bay car park to the immediate west of the southern grassed recreation area, in addition to the 36 bays to be provided in the road reserve adjacent to the open space within the coastal node. A further 18 bays are proposed within the coastal road adjacent to the northern grassed recreation area.
There is some concern over the extent and location of the car parking proposed within the foreshore area and the adjoining coastal node, given the reduced potential for passive surveillance and the visual and safety impacts associated with car parking areas in foreshore areas. The potential for reciprocal use of car parking areas should also be further explored given the diverse range of uses that will be occurring within the area. Further discussion is therefore required between the City and the proponent in regard to an overall car parking strategy for the area and issues relating to designing out crime and antisocial behaviour. This can adequately be undertaken during the consultation period.
Pathways, Beach Access Ways and Lookouts
The majority of the dual use paths are proposed along the existing tracks to minimise impact on the foreshore vegetation and dunes. The dual use path will be connected to the existing path located within the Quinns Beach Estate foreshore to the south. Four lookouts are proposed at strategic locations to provide stopping points with panoramic views of the ocean.
Considering the vegetation condition, the foreshore management plan does not make provision for beach access ways directly connecting the beach and the coastal road. They are provided off the proposed dual use path along the alignment where the foreshore is degraded. Given the steep grades adjacent to the beach, wooden access paths and stairs are proposed to access the beach. Given the steep beach interface neither emergency vehicle access nor disabled access is proposed. Council Administration intends to pursue this matter further with the developer.
Kiosk/Cafe
A kiosk/café is proposed within a prominent location adjacent to the coastal node. The building will be setback some 30 metres from the beach behind the limestone cliffs. The location provides for extensive views of the ocean. The proponent has indicated that they are considering providing public showers and toilets within the facility in consideration of works proposed for the open space in the south western portion of the estate. As indicated above, such works should be considered as an offset for permitting drainage disposal within the foreshore reserve. The proponent will consider seeking use of the facility as a temporary sales office during the construction and sales stages of the adjacent subdivision.
As the kiosk/café facility will be owned by the City of Wanneroo, the issue of its long term management and any leasing arrangements also need to be addressed.
Implementation
The proponent has indicated that it would be responsible for the construction of all the facilities including the kiosk/café proposed within the foreshore and that the maintenance of the facilities will be the City’s responsibility after 12 months of construction. The City’s normal maintenance period is two years although significant areas of open space are often maintained by developers for a much longer period.
Earthworks and Revegetation of Proposed Public Open Space
The following points are noted in regard to this development application:
a) This area of open space straddles two structure plan areas, being those relating to Lot 12 Jindalee and the Lot 5 Quinns, (located to the immediate south).
b) The overall area of open space was specifically located in this position under both structure plans in order to protect a significant dune that is capable of providing the community with magnificent panoramic views. This dune feature was considered significant enough to result in the deviation of the City’s coastal road around the eastern end of the open space.
c) The southern portion of the open space has already been ceded (Royal James Park - Reserve 47698, 1.22 hectares) and remains in its natural state with local coastal vegetation in very good to excellent condition. The Reserve has been placed under the care, control and management of the City of Wanneroo for the purpose of recreation by a management order issued by the Minister for Lands.
d) The land within the Lot 5 Quinns has now been fully subdivided and developed for predominantly residential purposes. The new landowners are progressively establishing houses in the streets surrounding the open space.
e) The December 2002 draft version of the Local Structure Plan for Lot 12 specified that this open space area ‘has been set aside to protect a dunal feature and extending that POS set aside by the landowner to the south.’ If this dunal system were not proposed to be retained in its natural state, then the continuous foreshore road would normally be required.
f) In August 2003, the WAPC granted subdivision approval to the land within Lot 12 Jindalee largely consistent with the Agreed Structure Plan. Condition 41 of this subdivision approval states the following:
‘Prior to any earthworks being undertaken within 100 metres of the proposed public open space area in the south west corner of the application area, the subdivider is required to submit a plan prepared by a licensed surveyor identifying the existing and proposed construction and earthworks of the road reserve abutting the proposed public open space area in the south west corner of the application area to the satisfaction of the Commission.’
Footnotes on the approval also require that landform, vegetation and drainage patterns of proposed areas of open space are not to be disturbed or modified without the prior approval of the local authority, road batters are not to intrude into proposed areas of open space without prior approval and that plans for any development are to be submitted for approval prior to the commencement of any works.
The condition and footnotes were imposed in order to ensure the coordination of ground levels between the open space and the adjoining residential area and in order to limit disturbance of the open space. Notwithstanding this condition, part of the dune system included in this open space has been cleared to an extent of about 1,850 m2. Attachment 7 depicts the 2005 aerial photograph indicating the open space area within Lots 12 and 5 and the extent of earthworks that has occurred with the 100 metre buffer. The Administration has reviewed the City’s records, and been unable to locate any record of approval for these works.
g) A number of vehicle access tracks have severely degraded the western portion of the proposed open space, the vegetation that remains on the site however is considered to be in very good condition, similar to that existing within the adjoining foreshore reserve.
h) The earth working proposal would result in the loss of the majority of the vegetation remaining on the site and whilst the proposal incorporates revegetation and rehabilitation works, with a commitment for a five year maintenance period, this is unlikely to restore the land to its current condition and would be likely to expose the City to expensive management works in the future.
i) The subdivider has cleared or intends to clear the majority of Lot 12, including all other areas of public open space. The subject open space area remains the only opportunity to retain natural landform and vegetation in the estate and one of the few opportunities for a significant coastal public viewing area with extensive views in close proximity to the foreshore area.
j) Earth working to increase ocean views for future residential lots or to improve privacy for a limited number of housing lots does not constitute grounds for interference with this significant natural feature, which would otherwise be retained for the enjoyment of the overall community.
k) The Agreed Structure Plan was considered under the provisions of the Edition 2 of draft Liveable Neighbourhood policy, which granted concession from the normal 10% POS required to 8%, subject to the developer undertaking development works in the open space in accordance with a management plan to the satisfaction of the City. Under this policy requirement, the proponent would be required to undertake fencing and rehabilitation works within the open space.
Notwithstanding the above matters and that administration currently does not consider this proposal appropriate, it is recommended that this development application be advertised with the Local Structure Plan and Foreshore Management Plan to also gauge public opinion of this proposal.
Statutory Compliance
The proposed Amendment to the Agreed Structure Plan and development application will follow the statutory processes outlined in Part 9 of District Planning Scheme No. 2.
Strategic Implications
The structure plan amendment proposal is consistent with the goal of providing Healthy Communities under the City’s Strategic Plan and in particular, Strategy 2.2 of the Planning and Development Directorate Strategic Plan, which seeks to provide a cohesive system of integrated land use planning.
The Foreshore Management Plan is consistent with the following Strategic Plan goals and strategies:
“Environmental Sustainability
1.1 Conserve and enhance environmental assets
Healthy Communities
2.6 Provide and manage infrastructure to meet the needs of our community”
Policy Implications
Nil
Financial Implications
Nil
Voting Requirements
Simple Majority.
EndStrip This line will not be printed Please do NOT delete
Recommendation
1. DETERMINES that Amendment 4 to the Lot 12 Jindalee Agreed Structure Plan and the draft Lot 12 Jindalee Foreshore Management Plan are satisfactory for the purpose of advertising.
2. ADVERTISES both Amendment 4 to the Lot 12 Jindalee Agreed Structure Plan, the draft Lot 12 Jindalee Foreshore Management Plan and the Development Application for bulk earthworks and landscaping of the proposed public open space for a period of 42 days.
3. REQUESTS the proponent address the following matters prior to the Council further considering the amendment, Foreshore Management Plan and Development Application:
a) The incorporation of a road interface between the residential area located at the south-western corner of the subject land and the abutting area of public open space, together with a satisfactory arrangement to ensure development orientation toward the open space.
b) The incorporation of detailed development standards and requirements into the structure plan for the coastal node.
c) Further discussion with the Administration regarding the kiosk/café, an overall car parking strategy for the area and the introduction of measures designed to limit opportunities for crime and antisocial behaviour.
d) Discussions with the developer of Lot 10 Marmion Avenue, Jindalee to ensure that the structure plan provides for an appropriate level of design integration.
e) The reformatting of the statutory section of the structure plan in line with the City’s current standards.
f) The maintenance period under the Foreshore Management Plan being increased to reflect the significant nature of the works being undertaken in the Foreshore Reserve.
g) Further discussions taking place with the administration in respect to the value of foreshore works proposed to benefit the community as compared to the net benefit to the developer those works will bring through marketing advantage and the additional land made available through relocating the drainage sites. Such discussions shall also provide a satisfactory arrangement to be put in place to secure the proposed works.
EndOfRecommendation - This line will not be printed Please do NOT delete
StartOfAttachment - Do not delete this line will not be printed

EndOfAttachment - Do not delete this line will not be printed
StartOfAttachment - Do not delete this line will not be printed







EndOfAttachment - Do not delete this line will not be printed
StartOfAttachment - Do not delete this line will not be printed



EndOfAttachment - Do not delete this line will not be printed
StartOfAttachment - Do not delete this line will not be printed

EndOfAttachment - Do not delete this line will not be printed
StartOfAttachment - Do not delete this line will not be printed

EndOfAttachment - Do not delete this line will not be printed
StartOfAttachment - Do not delete this line will not be printed

EndOfAttachment - Do not delete this line will not be printed
StartOfAttachment - Do not delete this line will not be printed

EndOfAttachment - Do not delete this line will not be printed
StartOfAttachment - Do not delete this line will not be printed

EndOfAttachment - Do not delete this line will not be printed
File Ref: SD128841
File Name: CALot 15 102 Franklin Road Jandabup.doc This line will not be printed Please do NOT delete
Level 5 Approval by shb Date 03 August 2005
Level 4 Approval by shb Date 28 July 2005
Level 3 Approval by shb Date 25 July 2005
Level 2 Approval by GraceB Date 21 July 2005
Level 1 Approval by GraceB Date 21 July 2005
Responsible Officer: Director, Planning and Development
Disclosure of Interest: Nil
Meeting Date: 9 August 2005
Attachments: 3
StartStrip This line will not be printed Please do NOT delete
Issue
To consider a proposed rural subdivision of Lot 15 (102) Franklin Road, Jandabup into three lots ranging in size from 4168m2 to 5335m2.
|
Applicant |
Crossland & Hardy Pty Ltd |
|
Owner |
Helen and Vincent Maher |
|
Location |
Lot 15 (102) Franklin Road, Jandabup |
|
Site Area |
1.6256ha |
|
DPS 2 Zoning |
General Rural |
Background
The Western Australian Planning Commission (WAPC) has referred the subject application to the City for its comments. The subject land is situated on the eastern side of Franklin Road and is surrounded by General Rural lots to the west, north and south. The land to the rear of these lots, which borders Lake Jandabup, has been acquired by the WAPC and reserved for Parks and Recreation under the Metropolitan Region Scheme (refer Attachment 1).
This lot was previously subdivided in 1979 to create a green titled battle-axe lot to the rear (Lot 1). Lots within the immediate vicinity generally range is size from 1.6ha to 4.1ha (refer Attachment 2).
The proposal is to subdivide the property into three lots ranging in size from 4168m2 to 5335m2 (refer Attachment 3).
Subdivision applications are generally assessed under the City’s delegated authority to ensure a timely and efficient response. However, this application has been referred to Council for determination, as it requires special consideration of the City’s Rural Subdivision Policy.
Detail
The subject lot contains a single house and shed. The applicant has indicated that the land is being used by Greenfield Turf Farm for turf cultivation. No remnant vegetation has been retained on the site.
Under the provisions of the Town Planning and Development Act 1928, as a referral agency, the City is required to make comments to the WAPC within a 42-day period. The Act does not make provision for public consultation on subdivision applications.
Comment
The applicant has provided justification for the proposed subdivision including:
· The continual use of sprays on the property has serious consequences on their health and as a result their son and daughter wish to build a home each to provide close care, without being obtrusive;
· There are no provisions in the City’s District Planning Scheme 2 to build another home and the banks will not lend money to children as the property is in their name. They will only lend money if the land is a green title under their name.
· The Government has been working on new zonings for the current rural sector of Wanneroo. On these plans in draft form, urbanisation has been proposed on the west side of Lake Jandabup. Lot 15 is located in this urban proposed area.
· Crown Mushrooms is located on the corner of Belgrade and Franklin Road and until it is relocated urbanisation is unlikely to occur due to the 500-1000m buffer zoned required.
· Franklin Road is to be upgraded and a road widening is required from Lot 15.
· Request either Special Rural or Residential Rural lots be allowed in the interim.
· Will work with the Local and State Government in setting out a management plan to encompass the allocation of trees and POS to incorporate a sustainable and environmental 500m buffer zone.
· Services are available.
The following matters are noted in regard to this application:
Previous Proposals
In May 1998, the WAPC received an application to subdivide Lot 15 into four or five lots. This application was refused by the WAPC in June 1998. A Ministerial Appeal was subsequently lodged and resulted in the proposal being amended to excise sufficient land to encompass the existing house. The Minister decided not to uphold the appeal, and offered the following comments:
“Subdivision of this land in any form would be contrary to established and proposed planning policies for the area. Your lot is already significantly smaller than the prevailing lot size and subdivision pattern and would undoubtedly lead to pressure from surrounding landowners to pursue similar subdivisions which are contrary to the planning for this particular area. Given your circumstances and motive for seeking subdivision, you may wish to consider, as an alternative, pursuing the option of a second house on the lot on the basis that it was only the act of giving up land for the Lake Jandabup Parks and Recreation Reserve which prevents you from meeting the City’s policy in this regard but, in any case, the operative Scheme sets the minimum size for two dwellings on one lot at 1 ha. If and when a second house is built, it may be possible to separate the two houses by means of a footprint strata if so desired”.
In April 2000, the City received an application for a second dwelling on this lot. The application was refused in September 2000 as the proposal was considered to represent an intensification of residential use on a General Rural lot and was contrary to the minimum lot size requirements of the City’s Local Interim Rural Strategy and Draft District Planning Scheme No.2.
A Ministerial Appeal was lodged against the City’s refusal to commence development. This appeal was upheld by the Minister on 7 February 2001, in effect granting approval to the development of a second dwelling on the lot. The appeal decision was valid for two years from the date of the Ministers letter.
It appears from the City’s records that the applicant did not act on their approval. This approval has now expired.
Lot Sizes
Under the City’s current Rural Subdivision Policy, the subject lot falls within an area where subdivision below 4 hectares should not be supported because it would tend to undermine the General Rural zone objectives of DPS2.
The objectives of the General Rural zone are to accommodate agricultural, horticultural and equestrian activities as well as to maintain and enhance the rural character and amenity of the area designated for rural use and to protect their ground water and environmental values.
The lot sizes proposed are significantly below the minimum lot size of 4ha required under the Policy. The largest lot is proposed at 0.5335ha. The lot size proposed is out of character with the existing area in terms of average lot sizes (refer Attachment 2) and will lead to the fragmentation of the existing General Rural Zone.
The lot sizes proposed are also below that generally required for a Special Rural development, which generally range between one to four hectares in size. The applicant has indicated that they wish to apply for Special Rural or Rural Residential size lots in the interim. Such a request should only be considered in the form of a rezoning proposal and not through an application for subdivision. In any case, the lot sizes proposed are considered too small for Special Rural subdivision.
Water Allocation
Water availability on Rural zoned properties is important for the viability of the rural land uses and ultimately to meet the objectives of the DPS2 for the General Rural zone.
Water allocation is dependant on the activity on the land. While a turf farm is present on the lot, the Department of Environment (DOE) verbally advised that from the information contained on their database Lot 15 appears not to have a licence and may be drawing water from an adjacent site to support the turf farm.
The DOE further advised that no new applications for a water licence would be considered and trading of water allocations between properties that are in close proximity to a sensitive environmental area would not be supported. Any new lots created are unlikely to receive a water allocation.
East Wanneroo Land Use and Water Management Strategy (EWLUWMS)
In 2002, the Hon Minister for Planning requested the preparation of the East Wanneroo Land Use and Water Management Strategy (EWLUWMS). The Strategy is to provide guidelines of existing and future development, subdivision, land use and zoning, private and public water allocation and groundwater source protection, the protection of significant rural agricultural lands for continuing agricultural production and the protection of significant environmental values in the East Wanneroo area.
To date a discussion paper on the EWLUWMS has undergone a preliminary consultation period, wherein three land use scenario options were considered for the study area. The Department for Planning and Infrastructure is currently considering the submissions received and is finalising the land use option that will form the basis of a draft Strategy for community consultation. It is currently expected that community consultation on the draft Strategy will commence in the near future. Until such time as the EWLUWMS has been finalised, the recommendations of the City’s Rural Subdivision Policy should be used when assessing subdivision applications in this locality.
Justification, based on the possible scenario of urbanisation of this area is not warranted at this point in time. In addition, even if this land was to be identified as future urban under the EWLUWMS, the proposal is premature, as a significant amount of preplanning would be required in the context of rezonings, District and Local Structure Planning, environmental assessments, infrastructure planning, staging strategies etc prior to subdivision or development taking place. Approval of this proposal would undermine the orderly and proper planning of the area.
Buffers
Table 2.2 of the Guidelines and Criteria for Environmental Impact Assessment No3 Industrial – Residential Buffer Areas (EPA, 1997) identifies a 1000m buffer distance for Mushroom Farms and a 200m buffer for Turf Farms. The State Industrial Buffer Statement of Planning Policy 4.1 gives statutory effect to the EPA guidelines. Applications that comply with the EPA guidelines are deemed to meet the objectives of the SPP, where a technical analysis of buffer distances has not been undertaken.
Lot 15 is located within both of these buffer distances with the closest boundary approximately 200m from Crown Mushrooms and the Turf Farm located adjacent to Lot 15. The buffer area is the area within which sensitive land uses are prohibited or special measures are necessary to ameliorate the impacts of industry or essential infrastructure. The subject application proposes subdivision to intensify residential use of the land, which is considered a sensitive land use.
Crown Mushrooms and the Turf Farm are likely to significantly impact on the amenity of the occupants of the proposed lots. Details contained with the applicant’s submission indicate that there is an odour issue and raises concerns for health. Intensification of residential use within the buffer area is not supported.
Conclusion
The subdivision is considered to be inconsistent with the objectives of the General Rural zone, which seeks to accommodate agricultural, horticultural and equestrian activities as well as to maintain and enhance the rural character and amenity of the area designated for rural use and to protect their ground water and environmental values, as prescribed in the City’s DPS2. The lot sizes proposed are significantly below that required for General Rural Zone, as prescribed in the City’s Subdivision of Rural Zoned Land Local Planning Policy and also fall well below the prevailing lot size in the area and lot sizes generally required for Special Rural developments. In addition, the lots are proposed within prescribed EPA buffer areas, which is likely to significantly compromise the amenity of those occupying the proposed lots. Intensification of sensitive land uses or intensification of residential use in this area is not encouraged whilst the adjacent incompatible uses remain in operation. It is therefore proposed that the WAPC be advised that the City does not support this application for the aforementioned reasons.
Statutory Compliance
Under Section 24(2) of the Town Planning and Development Act 1928, the City is required to forward its comments to the WAPC within 42-days of receiving the referral. To comply with the WAPC’s 42-day referral period, the City has advised the WAPC that this proposal will be considered by the Council at this meeting.
Strategic Implications
Support for this proposal would be inconsistent with the Healthy Communities Goal of the City’s Strategic Plan, which seeks to provide a cohesive system of integrated land use planning.
Policy Implications
Under the City’s current Rural Subdivision Policy, this lot falls within an area where subdivision below 4 hectares should not be supported because it would tend to undermine the General Rural zone objectives of DPS2. The proposal is also contrary to Statement of Planning Policy 4.1 as the proposed subdivision is likely to result in additional sensitive landuses occurring in prescribed EPA buffer distances.
Financial Implications
Nil
Voting Requirements
Simple Majority.
EndStrip This line will not be printed Please do NOT delete
Recommendation
That Council DOES NOT SUPPORT the application submitted by Crossland & Hardy Pty Ltd for the Subdivision of Lot 15 (102) Franklin Road, Jandabup as depicted on the plan dated 30 June 2005 (WAPC 128841) for the following reasons:
1. The proposal is inconsistent with the objectives of the General Rural zone of District Planning Scheme No.2, which seeks to accommodate agricultural, horticultural and equestrian activities as well as to maintain and enhance the rural character and amenity of the area designated for rural use and to protect their ground water and environmental values.
2. The proposal does not meet the minimum lot size of 4 hectares required for the General Rural Zone, as prescribed in the City’s Subdivision of Rural Zoned Land Local Planning Policy.
3. The proposed lots are contained with the EPA buffer areas of Crown Mushrooms (1000 metres) and Greenfields Turf Farm (200 metres), as outlined in the Guidelines and Criteria for Environmental Impact Assessment No3 Industrial – Residential Buffer Areas (EPA, 1997) and Statement of Planning Policy 4.1. Intensification of sensitive landuses or intensification of residential use in this area is likely to significantly compromise the amenity of those occupying the proposed lots.
EndOfRecommendation - This line will not be printed Please do NOT delete
StartOfAttachment - Do not delete this line will not be printed

EndOfAttachment - Do not delete this line will not be printed
StartOfAttachment - Do not delete this line will not be printed

EndOfAttachment - Do not delete this line will not be printed
StartOfAttachment - Do not delete this line will not be printed
ATTACHMENT 3

EndOfAttachment - Do not delete this line will not be printed
File Ref: P22/0046V01
File Name: EABed and Breakfast on Lot 985 8 Gateshead Loop Mindarie.doc This line will not be printed Please do NOT delete
Level 4 Approval by shb Date 28 July 2005
Level 3 Approval by shb Date 25 July 2005
Level 2 Approval by shb Date 25 July 2005
Level 1 Approval by Janine Wilkie Date 19 July 2005
Responsible Officer: Director, Planning and Development
Disclosure of Interest: Nil
Author: Janine Wilkie
Meeting Date: 9 August 2005
Attachments 3
StartStrip This line will not be printed Please do NOT delete
Issue
To consider an application for a Bed and Breakfast on Lot 985 (8) Gateshead Loop, Mindarie (refer Attachment 1) where objections have been received.
|
Applicant |
May Jean Oinn |
|
Owner |
Sydney Cecil & May Jean Oinn |
|
Location |
Lot 985 (8) Gateshead Loop, Mindarie |
|
Site Area |
644m2 |
|
DPS 2 Zoning |
Residential |
|
MRS Zoning |
Urban |
|
Permissibility |
D |
|
Attachments |
3 |
Background
On 14 June 2002, the City approved a two storey house on the subject lot.
Detail
Proposal
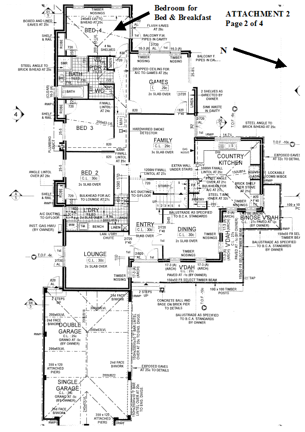
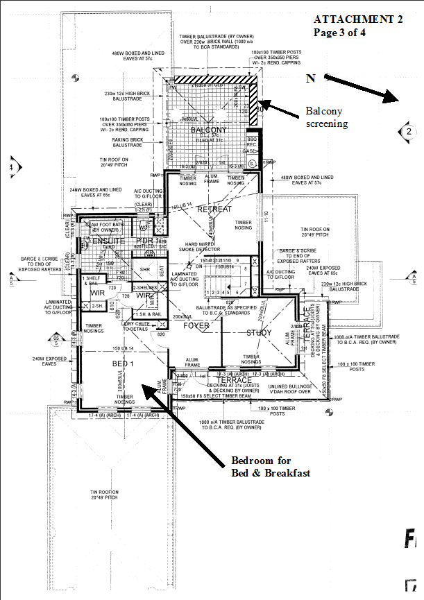
The application is for the operation of a Bed & Breakfast within an existing two storey single house. The application proposes the use of two bedrooms within the dwelling for the Bed and Breakfast, accommodating a maximum of four people (two couples only). The proposed Bed & Breakfast will accommodate guests within bedrooms 1 (upper floor) and 4 (ground floor) of the dwelling (refer Attachment 2). The proposed bed and breakfast will offer breakfast meals to patrons.
Consultation
The application was advertised to adjoining owners in accordance with clause 6.6.2 of the City’s District Planning Scheme No. 2 for a period of 14 days. At the conclusion of the consultation process, two (2) submissions had been received objecting to the proposed development. One (1) late submission was received after closure of advertising, also objecting to the proposal. The issues raised are summarised as follows:
|
Comment
|
Administration’s Comment |
|
The rear balcony is only 2 metres off the side boundary, therefore there is no privacy in rear yard or entertaining area. Should tourists use the rear balcony they may see into neighbouring back yards and may capture images of neighbouring residents on video/digital cameras. |
The corner of the rear balcony is 2.5 metres off the side boundary (refer Attachment 3). The subject dwelling was assessed under the 1991 Residential Planning Codes which had different privacy regulations to the current R-Codes. The balcony was constructed in accordance with approved plans dated 14 June 2002. However, as the bed and breakfast may affect the amenity of the privacy of neighbouring properties some screening will be required to the rear balcony. |
|
There are not sufficient parking facilities at the property. Covenants stipulate that business parking is not allowed in the driveway. |
Four parking bays are required. A three car garage exists on the property, and the additional parking space is provided within the driveway of the property (refer Attachment 3). The City’s Scheme does not require car bays to be covered. The City has no record of any covenants on this property. |
|
Vehicular traffic in the street is a concern and may be hazardous to residents.
|
It is not envisaged that the proposed bed and breakfast would significantly contribute to traffic within the street as the bed and breakfast is proposed to only comprise two bedrooms within the dwelling with a maximum of two couples allowed. There is only a requirement for two extra vehicles, which is not necessarily uncommon for a large residence. |
|
The business may devalue the area. |
It is not understood how this would occur and is not a determining planning consideration. |
|
The business may generate more noise than a normal house. |
A maximum of six people (four guests and two staff residing on the premises) may occupy the dwelling at any one time under current legislation and therefore it is considered that the bed and breakfast as proposed will not generate more noise than a single family dwelling. Compliance with the Environmental Protection Act on residential noise levels will still need to be complied with. |
|
Fears for safety due to unknown types of people utilising the bed and breakfast. |
Noted. Not a determining planning consideration. |
|
Owner’s caravan and van are parked in the driveway and therefore extra vehicles would have to park on the road. |
All bed and breakfast parking must be contained on site. There is adequate space on site for the parking of four vehicles and a caravan and van. |
|
Oppose the bed and breakfast as we wish to live in a residential street not a seaside resort. |
A maximum of six people (four guests and two staff residing on the premises) may occupy the house at any one time under current statutory provisions. |
Compliance
The application was assessed against the provisions of the City of Wanneroo District Planning Scheme No. 2 (DPS2).
The lot is zoned “Residential R20” under the District Planning Scheme No. 2. The proposed development is a discretionary “D” use within this zone. The lot is within Structure Plan No. 12 Mindarie Keys.
A ‘bed and breakfast’ is defined under the Scheme as:
“any dwelling in which the resident of the dwelling provides accommodation on an overnight or short-term basis, usually to the travelling public, and may include the provision of meals for guests.”
A dwelling is defined under the Residential Design Codes as:
“a building or potions of a building being used, adapted, or designed or intended to be used for the purpose of human habitation on a permanent basis by a single person, a single family, or no more than six persons who do not comprise a single family.”
The two owners of the property will reside at the property and run the bed and breakfast, therefore a maximum of four guests are allowed to stay at the bed and breakfast at any one time.
The development’s compliance with the Scheme is summarised as follows:
|
Use |
Number of Persons |
Car Parking Required |
Car Parking Proposed |
|
Bed & Breakfast |
6 (4 Guests and 2 Residents) |
2 plus 1 per 2 guests |
3 in garage Driveway can accommodate up to three (3) vehicles |
Comment
The application complies with the Scheme and Structure Plan requirements. The issues raised by the submitters in relation to the type of people using the bed and breakfast and the reduction in value of the area are not matters in determining planning applications. Notwithstanding, it is unlikely that such concerns would arise particularly as the owners will also reside in the residence.
The proposed bed and breakfast is located between two residential lots: No.6 Gateshead Loop which is currently vacant and No. 10 Gateshead Loop which contains an existing two storey dwelling.
A maximum of six people (four guests and two staff residing on the premises) may occupy the proposed bed and breakfast at any one time and therefore it is considered that the bed and breakfast will have no additional impact on the surrounding locality than a house used only for normal residential purposes. It is noted that the Residential Design Codes permit up to six (6) unrelated people to live within the same dwelling as of right.
Privacy
The issues raised in relation to overlooking and privacy have been considered by the City. The house was approved in June 2002 under the 1991 Residential Planning Codes, which had different privacy regulations to the current Residential Design Codes. However, the use of the dwelling for a two bedroom bed and breakfast may affect the privacy of neighbouring properties and therefore the City will require the north and west sides of the rear balcony to be screened to avoid overlooking of adjacent properties. This screening is to reach a minimum height of 1.60 metres above first floor FFL with perforations to constitute no more than 20% of the total surface area. However, an alternative may be considered which could constitute screening on the boundary fence to prevent overlooking within the cone of vision. This alternative would need to be negotiated between the owners to the satisfaction of the City.
Traffic and Parking
It is not envisaged that the proposed bed and breakfast will significantly contribute to increased traffic in the locality. Only two bedrooms within the dwelling will be used for bed and breakfast accommodation, with a maximum of four people allowed. Therefore only two additional vehicles will be utilising the street, which will not generate a significant amount of traffic.
Four parking bays are required for the bed and breakfast and the existing residence. A three car garage exists on the property, and there is adequate space within the driveway to park up to three additional vehicles (refer Attachment 3).
Four cars in total will be accessing the property and utilising the street and roads within the surrounding locality. Therefore the proposed bed and breakfast will not significantly increase traffic within the locality.
Health
The Environmental Protection Act relating to residential noise abatement will still apply with this proposal. This is a compliance matter should the issue arise.
The application complies with the statutory requirements of DPS2. It is recommended that the application be supported with appropriate conditions.
Statutory Compliance
The application complies with the statutory requirements of the Scheme and Structure Plan.
Strategic Implications
The proposal is consistent with the Economic Development goal (Goal 3) of the City’s Strategic Plan, which seeks to maximise opportunities for balanced economic growth and development within the City.
The proposal is consistent with Actions 5.4 and 5.5 of the City’s Economic Development Strategy which relate to the expansion of home based businesses and tourism development.
The proposal is consistent with Objective One of the City’s Tourism Strategy, which recommends the development of new and existing tourism products, of which accommodation is one of these.
“Emphasis on accommodation of all types: Camping and caravan parks, guesthouse and bed and breakfasts, Hotels 3, 4, 5 star are all important for the growth of tourism in Wanneroo.”
Policy Implications
Nil
Financial Implications
Nil
Voting Requirements
Simple Majority.
EndStrip This line will not be printed Please do NOT delete
Recommendation
That Council:-
1. APPROVES a Bed & Breakfast to an existing dwelling on Lot 985 (8) Gateshead Loop, Mindarie in accordance with the plan attached to and forming part of this report and subject to the following conditions:
b) The use of the approved premises shall conform to the District Planning Scheme No.2 definition of a "Bed and Breakfast", which states:
“Bed and Breakfast means any dwelling in which the resident of the dwelling provides accommodation on an overnight or short-term basis, usually to the travelling public, and may include the provision of meals for guests.”
c) Bedroom 1 and Bedroom 4 as depicted on the approved plans shall only be used for Bed and Breakfast Accommodation purposes.
d) A maximum of 4 guests and 2 staff residing on the premises may occupy the house at any one time.
e) The applicant/owner to screen the north and west sides of the rear balcony as indicated on the approved plans, to a minimum height of 1.60 metres above first floor FFL with perforations to constitute no more than 20% of the total surface area, to avoid overlooking of the property at No. 6 Gateshead Loop or, an alternative to the balcony screening may be considered to the satisfaction of the Manager Development & Health Services, for the duration of the operation of the Bed and Breakfast.
f) A minimum of four (4) on-site carbays shall be provided for the bed and breakfast and dwelling on site to the satisfaction of the Manager Development & Health Services.
g) Carparking bays are to be 5.4 metres long and a minimum of 2.5 metres wide.
h) Signs must be licensed by the City prior to being erected (enclosed is a copy of an 'Application for a Licence To Erect A Sign').
FOOTNOTE:
a) You are reminded that this is a Planning Approval only and does not obviate the responsibility of the developer to comply with all relevant building, health and engineering requirements.
b) Development shall comply with the Sewerage (Lighting, Ventilation and Construction) Regulations 1971.
c) Notwithstanding condition ‘(1) d’ above the Bed and Breakfast use may serve a maximum of 5 persons otherwise will be deemed a Lodging House as described by the Health Act 1911 and would therefore require assessment under the same legislation as well as the City of Wanneroo Health Local Laws 1999.
d) Kitchen (food preparation area) to comply with the requirements of the Health (Food Hygiene) Regulations 1993 and considered to be a Class 1 Food Premises. Kitchen area to be a minimum of 16 square metres.
e) In regards to conditions ‘(1) e’ above an alternative may be screening on the boundary fence to prevent overlooking within the cone of vision to the satisfaction of the Manager Development & Health Services.
2. ADVISES those who made submissions of Council’s decision.
EndOfRecommendation - This line will not be printed Please do NOT delete
StartOfAttachment - Do not delete this line will not be printed

EndOfAttachment - Do not delete this line will not be printed
StartOfAttachment - Do not delete this line will not be printed




EndOfAttachment - Do not delete this line will not be printed
StartOfAttachment - Do not delete this line will not be printed



EndOfAttachment - Do not delete this line will not be printed
File Ref: S09/0008V03
File Name: FCSubdivision Applications Determined under Delegated Authority during June 2005.doc This line will not be printed
Level 4 Approval by shb Date 28 July 2005
Level 3 Approval by shb Date 25 July 2005
Level 2 Approval by GraceB Date 21 July 2005
Level 1 Approval by GraceB Date 21 July 2005Please do NOT delete
Responsible Officer: Director, Planning and Development
Disclosure of Interest: Nil
Author: Grace Babudri
Meeting Date: 9 August 2005
Attachments: 9
StartStrip This line will not be printed Please do NOT delete
Issue
Determination of subdivision applications processed in the period for the month of June under delegated authority.
Detail
The West Australian Planning Commission (WAPC) is responsible for determining all subdivision applications within the State. Applications for approval are lodged with the WAPC and are referred to local governments and affected public bodies for comment. Comments are made within 42 days of receiving the application after which the Commission determines the applications. There is a right of appeal by the applicant if aggrieved with the Commission’s decision.
Council has delegated to the Chief Executive Officer its functions relating to the provision of comments to the Commission on subdivision applications. The Chief Executive Officer has in turn delegated to the Planning and Development Directorate this responsibility. A Land Development Unit has been established to assist with the assessment of all applications.
Those applications considered to be either controversial in nature or contrary to Council policy, are referred to Council for consideration. All other applications are dealt with in respect to the following categories.
SCU 1 Subdivision applications received which are generally consistent with an approved or Agreed Structure Plan (including Outline Development Plan and Development Guide Plan).
SCU 2 Subdivision applications previously supported, or not supported by Council and subsequently determined by the Western Australian Planning Commission (WAPC) consistent with the Council’s recommendation.
SCU 3 Applications for extension of subdivisional approval issued by the WAPC which were previously supported by Council.
SCU 4 Applications for subdivision or amalgamation which result from conditions of development approval given by or on behalf of Council.
SCU 5 Applications for subdivision or amalgamation of lots which would allow the development of the land for uses permitted in the zone within which that land is situated including applications involving the excision of land for road widening, sump sites, school sites, etc.
SCU 6 Applications for subdivision or amalgamation of lots contrary to Council or WAPC Policy or are not generally consistent with an approved or Agreed Structure Plan.
The following table provides the details of the subdivision applications dealt with under delegated authority in the period for the month of June.
EndStrip This line will not be printed Please do NOT delete
Recommendation
That Council NOTES the actions taken in relation to providing comments to the Western Australian Planning Commission on subdivision applications processed under delegated authority in the period for the month of June as listed below:
Subdivision Application Delegations
|
Att |
WAPC No/ Received Date |
Location / Owner |
DPS2 Zoning LDU Category |
Advice |
WAPC Advised |
|
1 |
128365 19/05/2005 |
Lot 4 (186) Kingsway, Darch Angelo Zito & Conchetta Zito |
Urban Development SCU1 |
Supported |
15/06/2005 |
|
2 |
128424 30/05/2005 |
Lot 23 (350) Kingsway, Landsdale Lemon Grove Landsdale Pty Ltd |
Urban Development SCU1 |
Supported |
27/06/2005 |
|
3 |
128594 15/06/2005 |
Lot 70 (38) Cooper Street, Madeley Anka Cvitan & Roko Cvitan |
Urban Development SCU1 |
Supported |
27/06/2005 |
|
4 |
128634 17/06/2005 |
Lot 70 (38) Cooper Street, Madeley Anka Cvitan & Roko Cvitan |
Urban Development SCU1 |
Supported |
27/06/2005 |
|
5 |
128702 28/06/2005 |
Lot 236 (5) Innovation Circuit, Wangara Roselakes Pty Ltd |
Service Industrial SCU4 |
Supported |
29/06/2005 |
|
6 |
701-05 09/06/2005 |
Lot 332 (5) Regency Avenue, Madeley Online Building/Reporting/Consulting Pty Ltd |
Urban Development SCU1 |
Supported |
21/06/2005 |
|
7 |
741-05 20/06/2005 |
Lot 472 (28) Verona Street, Hocking Hocking Land Co Pty Ltd |
Urban Development SCU1 |
Supported |
27/06/2005 |
|
8 |
742-05 15/06/2005 |
Lot 470 (7) St Louis Avenue, Hocking Hocking Land Co Pty Ltd |
Urban Development SCU1 |
Supported |
27/06/2005 |
|
9 |
781-05 21/06/2005 |
Lot 156 (15) Hazel Avenue, Quinns Rocks Ronald Parylak & Annette M Savage |
Residential SCU5 |
Supported |
22/06/2005 |
EndOfRecommendation - This line will not be printed Please do NOT delete
StartOfAttachment - Do not delete this line will not be printed

EndOfAttachment - Do not delete this line will not be printed
StartOfAttachment - Do not delete this line will not be printed

EndOfAttachment - Do not delete this line will not be printed
StartOfAttachment - Do not delete this line will not be printed

EndOfAttachment - Do not delete this line will not be printed
StartOfAttachment - Do not delete this line will not be printed

EndOfAttachment - Do not delete this line will not be printed
StartOfAttachment - Do not delete this line will not be printed

EndOfAttachment - Do not delete this line will not be printed
StartOfAttachment - Do not delete this line will not be printed

EndOfAttachment - Do not delete this line will not be printed
StartOfAttachment - Do not delete this line will not be printed

EndOfAttachment - Do not delete this line will not be printed
StartOfAttachment - Do not delete this line will not be printed

EndOfAttachment - Do not delete this line will not be printed
StartOfAttachment - Do not delete this line will not be printed

EndOfAttachment - Do not delete this line will not be printed
File Ref: S32/0001V01
Responsible Officer: Director, Planning and Development
Disclosure of Interest: Nil
Author: Dr Ian Martinus
Meeting Date: 9 August 2005
Attachments: 1
File Name: GAWanneroo Tourism Initiative iCards.doc This line will not be printed dont delete
Level 4 Approval by shb Date 28 July 2005
Level 3 Approval by shb Date 25 July 2005
Level 2 Approval by shb Date 25 July 2005
Level 1 Approval by shb Date 25 July 2005
StartStrip - This line will not be printed so do not delete
Issue
To consider the development of unique Wanneroo tourism iCards to assist in the promotion of Wanneroo tourism to local and regional residents as well as to external visitors.
Background
It is widely held that despite an abundance of natural and man-made attractions, there is a low level of awareness and knowledge of tourism assets across Wanneroo. This is one issue holding back the growth of tourism and reducing the prosperity of the operators.
As part of the 2004/05 budget, Council approved $20,000 toward an elected members new initiative to prepare a Wanneroo Tourism Booklet to showcase the diverse range of tourist options within Wanneroo as well as the distinct Heritage advantages the City has to offer.
The essence of the tourism booklet was:
1. To uncover the geographical features of the City which are key to the heritage and culture of Wanneroo; and
2. To provide a document, that lists these features and tourism businesses. The document must be functional and convenient to visitors, encouraging them to explore the City, to stay longer in the City and ultimately to spend more money in the City.
A large section of Wanneroo is undeveloped. This area predominantly consists of natural bush, farmland, state forests and sand & limestone quarrying/mining. This rural backdrop to Wanneroo is its most defining asset. It identifies the true history and traditions of the area.
However, features which are special to Wanneroo from a tourists perspective are already listed and detailed in numerous documents and organisations, for example: Bushland Assessment Study (2003), East Wanneroo Landscape Character Assessment Study (2004), City of Wanneroo Municipal Heritage Inventory. Additionally organisations such as CALM, Department of Indigenous Affairs, Swan Catchment Council, Friends of Koondoola and Yellagonga can furnish details of the area.
Knowledge of the profile of the typical visitor to Wanneroo was pre-requisite when considering how to penetrate the market. Through stakeholder focus groups carried out for the development of the Tourism Strategy a clear picture evolved of the different visitors to Wanneroo.
The tourism businesses across the city generate the majority of their revenue from Day Trippers. These are characteristically spontaneous in decision making, self-driver, and accompanied by friends and relatives. To reach this market segment notoriously requires extensive distribution channels. (Research Department, Tourism WA. 2004 in Wanneroo Tourism Strategy, Pg 15,16)
When evaluating this criteria and visitor profile, an alternative marketing method was considered to raise the profile and recognition of operators in the area, whilst also providing a valuable source of information to tourists. Miniature Information Cards (icards) were examined and considered a better option to meet the market demands very efficiently. An award-winning example is from the Mornington Peninsula near Melbourne where these mini-information cards were examined at an Urban Development Conference in Melbourne in 2004.
Detail
The iCard system is the creation of small cards of each tourism business. The cards have a small photograph and brief details of the business and highlight its unique appeal. Furthermore, the cards have a colour coding and icon linking them to a certain element of a visitors interest i.e.: Accommodation, Attraction, Activity, Tours, and Food. These categories are broad and have been designed to capture additional business and regions that may wish to participate in the project at a future date. Additionally by restricting the number of categories to five, we limit the risk of having too few businesses in each category, making it appear to the visitor that there is little tourism product in Wanneroo.
Regional Map
The cards are held on a specially designed stand and are accompanied with a map of the region. The map is designed to be easily understood, and the cards are linked to the map by a numbering system to make them easily found. Not only does the map play an important role in orientating the visitor it also helps to strengthen the City’s image as a tourism destination by visually displaying the City from a tourist’s perspective. Additionally it plays an equally important role in adding to the visual appeal of the stands.
In order to keep the map up to date with current information the display map needs to be easily changeable. The map would be printed onto high quality poster paper and enclosed in a clear Perspex envelope, specifically designed so that it can be opened to replace the map. A take away version of the display map would also be produced. These maps will assist visitors in driving from one tourist attraction to the next and would be prominently placed on the display stands with the iCards. Additional funds will be needed to fund this extra feature.
Display Stands
The display stands would be located in each tourism business participating in the project. Budget requirements limit the participating businesses to between 30 and 35 stands. The additional stands will be placed at City of Wanneroo properties, and potentially at City events. Verbal agreement has been reached to locate some in neighbouring Visitor Centres as well.
The design of the stands could incorporate ‘replaceable’ parts. The purpose of this is to incorporate the tourism branding which is currently being considered.
It is important that the display stands do not have distinctive features that could easily be mistaken as the City’s to-be-developed tourism brand. Accordingly, the stands will be made out of high quality natural materials, whilst reflecting our unique surroundings, they will not be confused for a tourism brand.
To facilitate the diverse businesses participating two sizes will be produced: one large freestanding floor stand and a smaller desktop stand. The larger stands will suit those operators with adequate space, for example Yanchep National Park. The smaller stands will suit smaller operators such as B&Bs.
Please refer to Attachment 1 for an example of each display type.
Business Commitment
A simple contract has been drawn up to clearly set out operator and council commitments to this project. This includes:
· Each participating business will provide $195.00. This fee will pay for printing 10,000 cards and contribute to the photographers’ fee and design fee.
· Each business will keep a generous stock of all cards and have an obligation to keep them in good condition.
· The additional cards would be delivered/picked up at regular intervals as required.
· Businesses must commit to producing more cards after the initial stock is exhausted
· Ownership of the photograph will pass to the business immediately, but design of the cards and the name iCards will remain with the City
· Businesses can opt out at any time. Under current budgetary constraints and because this is fully subscribed a new business wishing to join the project will be accommodated only if a business opts out. The printing costs for new businesses joining will be higher. They will still benefit from advantageous pricing, as minimal design work will be needed. Estimation of prices is $350.00 for 5,000 cards
· Council commitment at the beginning of year two will become an administrative cost, with the financial commitment completed once the stands and first run of cards are in the marketplace. No further financial contribution will be required from council
· The business community (eg through a local tourism board) will take over project coordination from the beginning of year two, and will need to decide if their individual business will benefit by staying involved. They will have to make decisions concerning how to grow the project numbers if demand warrants.
Benefits of the Initiative
The benefits of this iCard Strategy are considered strong:
1. Long term sustainability: Individual businesses opting out would not affect the whole system but just it’s own card would become redundant. (One business opting out of a tourism book would compromise the entire book).
2. Distribution:
a) Economic: Distribution would be provided by each operator.
b) Versatility: The style of display will fit with modern and traditional venues.
c) Flexibility: Display stands can be large and small to suit size of establishment.
d) The display becomes an attraction in itself. The design of the display stand and interesting map will appeal to visitors.
e) The display becomes a “Gallery” of Wanneroo. The standard of the photographs in close display together will show a contemporary pictorial view of Wanneroo.
f) The display creates a ‘virtual’ industry cluster. (term related to generating a strong business community).
g) Tried and tested. This system has been successfully trialed in Mornington Peninsula, Victoria. It strongly assisted in the Economic Development of the local area.
Consultation
A brief has been drawn up and design businesses presented their interpretations of the concept. Concept designs have been developed, and if the project is to proceed, the City will engage the services of a photographer, printer and manufacturer for the display stands. Expressions of interest from the business community were sought, and to date, approximately 30 businesses and attractions have indicated a desire to be a part of the project. The Wanneroo Business Association has also assisted in gaining small business support for the concept.
In May 2005, the City of Wanneroo Economic Development Portfolio received a presentation on the concept, and was invited to make comment on it. An overwhelming majority of members agreed with the approach and offered a number of constructive operational comments. Executive Management Team endorsed the concept at a meeting in early July 2005, and saw the potential of the project over the longer term. Internal meetings with Marketing Services have also allowed the concept to be developed further within design and logistic frameworks. All comments and suggestions will be taken into consideration.
Comment
In essence, this initiative establishes a network marketing system. Through the creation of a strong network a visitor to any singular business will learn about the attractions across the whole region. The project will also assist smaller, newer and less well-known tourist businesses to benefit from exposure at the more popular businesses. It is expected that visitor numbers to all businesses will increase due to this cross promotion.
One major objective of the initiative is to develop the tourism industry of Wanneroo by promoting the full range of attractions in Wanneroo through each of its businesses. The complete documentation of environmental and heritage assets of the City will be utilised to support a variety of tourism activities. For example:
1. Establishment of sites for visitors to see and learn about Wanneroo in the pioneering days
2. Create tours: walking, cycling or driving either guided or self guided.
3. Significant sites/ attractions will support cafes and like businesses
4. Affiliated businesses will benefit, e.g. Nurseries can link with Natural Assets
5. These assets will increase the overall visitation rate and benefits will flow through to operators across the region generally.
Statutory Compliance
Nil
Strategic Implications
The City of Wanneroo 2004 Tourism Strategy identifies a number of actions assisted in the development of ‘iCards’.
Action 1: Audit tourism assets
Action 3: Develop day trip market through coach and operator tours
Action 10: Investigate the establishment of a local tourist association
Action 19: Cooperative marketing and private sector contribution
Action 31: Community development events and promotions
Action 36: Coordinate the marketing strategies with industry
Action 43: Establish natural heritage trail
The Economic Development Strategy ‘Open For Business 2020’ has a number of actions assisted in the development of ‘iCards’.
Action 5.3.27: Promote the agricultural-tourism opportunities of the region
Action 5.5.35: Develop a Wanneroo Brand & Identity
Action 5.5.37: Develop a Tourism Strategy for the City of Wanneroo, incorporating eco-tourism, cottage industries and ‘experience attractions’ within the day-trip framework
Action 5.5.40: Facilitate tourism development by investigating issues such as facility management, signage and road networks
Policy Implications
Nil
Financial Implications
The iCards project is funded through an allocation of $20,000 in the 2004/05 budget (carried forward to 2005/06 budget). The business contribution of $5,850 will be allocated to printing.
Council Contributions:
Heritage Consultants Report $3,000
Design and Concept Development $5,000
Manufacture of Display Stands $12,000
$20,000
Small Business Operators Contributions:
Printing $5,850
Total Project Cost $25,850
The Display stands will remain the property of the City. This will allow return and re-use of the stands if a business chooses to discontinue being a part of the promotional opportunity afforded it through iCards.
Voting Requirements
Simple Majority.
EndStrip - This will not be printed so do not delete
Recommendation
That Council APPROVES the development of iCards to assist in the promotion of Wanneroo tourism to local and regional residents.
EndOfRecommendation - This line will not be printed Please do NOT delete
StartOfAttachment - Do not delete this line will not be printed

Floor standing display

Desktop display stand
EndOfAttachment - Do not delete this line will not be printed
File Ref: P22/0418V01
File Name: AATender No 05518 Foreshore Landscape Development Works Fronting lot 211 Quinns Road Mindarie.doc This line will not
Level 4 Approval by jan Date 04 August 2005
Level 3 Approval by JAN Date 28 July 2005
Level 2 Approval by JAN Date 28 July 2005
Level 1 Approval by JAN Date 28 July 2005be printed dont delete
Responsible Officer: Director, Infrastructure
Disclosure of Interest: Nil
Author: Janek Sobon
Attachments: 2
StartStrip - This line will not be printed so do not delete
Issue
To consider Tender No 05518 for the Construction of the Foreshore Landscape Development Works Fronting Lot 211 Quinns Road, Mindarie.
Background
The City of Wanneroo has adopted a staged development plan for the area outside of the BushForever portion of Lot 211 Quinns Road, at the Mindarie Foreshore area. The first stage included the Quinns Mindarie Surf Life Saving Club, a 215 bay public carpark and new access driveway to the Quinns Caravan Park.
The works under this contract incorporate the following:
· The demolition of the existing beachfront carpark and toilet block.
· The construction of grassed meeting/picnic areas, pathways, extension of existing coastal dual use path and promenade.
· The construction of pedestrian and vehicular (Surf Life Saving Club) access to the beach and adjustments to the limestone walls.
· The provision of security/amenity lighting to the foreshore area.
· Facilitation of public art installation which requires involvement by the contractor related to access, coordination, lighting provision and footings.
· General landscape and irrigation.
Attachment 1, “Demolition Plan” and Attachment 2, “Surface Treatment and Planting Plan” provide an over view of the scope of the contract works. A full set of tender drawings has been placed in the Elected Members Reading Room to allow Councillors to review the proposed works.
Detail
Tender No. 05518 for Lot 211, Mindarie Foreshore Landscape Development was advertised on 2 July 2005 and closed at the City’s Offices at 3.00pm on 22 July 2005 with the receipt of the following submissions:
Tenderers |
Tender Price |
|
$756,953.50 |
|
|
Aarde Construction Pty Ltd |
$862,302.43 |
|
Works Infrastructures Pty Ltd |
$966,828.99 |
All tenders are above the consultants pre-tender cost estimate of $720,000.
Tenderers priced a cost option for the construction of three link paths between the café/restaurant and the coastal dual use path as tabled below.
|
Tenderers |
Tender Price |
Link Paths A, B & C Cost Option |
Considered Tender Sum |
|
DME Contractors |
$756,953.50 |
$5,360.00 |
$762,313.50 |
|
Aarde Construction Pty Ltd |
$862,302.43 |
$6,600.00 |
$868,902.43 |
|
Works Infrastructures Pty Ltd |
$966,828.99 |
$8,169.00 |
$974,997.99 |
There is no change in ranking of tenderers should this option be exercised.
Tender Assessment
The Tender Evaluation Team comprising the Coordinator Building Projects and the project landscape architects Tract WA Pty Ltd, undertook the tender evaluation in accordance with the following selection criteria:
1. Price for the Works offered;
2. Tenderer’s resources;
3. Tenderer’s previous experience in carrying out work similar to the Works;
4. Methodology and safety management; and
5. Program of works.
Price
Three conforming tenders were received with DME Contractors submitting the lowest conforming tender.
All tenderers completed the extensive 182-item price break down schedule. DME Contractors submitted the lowest price for 10 of the 18 main trade items; Aarde Construction submitted the lowest price for 6 of the 18 and Works Infrastructures submitted the lowest price for 2 of the 18 main trade items.
Resources
Each tenderer was equally ranked. DME Contractors has current project commitments that suggest its work related resources are not compromised with the addition of this project. The firm is able to secure personnel and plant to execute the works.
Previous Experience
Each tenderer was equally ranked. DME Contractors submitted several examples of projects that it had constructed that were of a similar nature.
Methodology and Safety Management
Based on the details supplied in the tender schedules and additional information on safety management plans, the tenderers were ranked as follows:.
|
|
Ranking |
|
Aarde Construction Pty Ltd |
1 |
|
DME Contractors |
2 |
|
Works Infrastructures Pty Ltd |
3 |
Works Program
The tender called for a program of works declaring that “time is of the essence in the completion of the works” and to minimise with due allowance for the two aspects of the Works that:
· Restrict publics access from the existing car park on Lot 211 to that portion of the beach fronting the Works;
· Adjoin the construction of the proposed Principal’s café/restaurant project;
The following milestones were outlined in the tender documents:
· Works commencement on site (18 week contract) Monday 29 August 2005
· Commencement of beach access earthworks Monday 29 August 2005
· Completion of beach access earthworks Friday 9 September 2005
· Commencement of beach concrete works Monday 12 September 2005
· Beach access available to the public Friday 14 October 2005
· Footpath constructed at Quinns Rd to provide public beach access
Friday 4 November 2005
· Practical Completion Friday 30 December 2005
As no comment was received from the tenderers concerning the compliance with construction time frame, all tenderers were given equal standing.
|
Company |
Ranking |
|
Aarde Construction Pty Ltd |
1 |
|
Works Infrastructures Pty Ltd |
1 |
|
DME Contractors |
1 |
Overall Ranking Assessment
The overall scoring of tenders is based on a weighted score shown below:
|
Company |
Ranking |
|
DME Contractors |
1 |
|
Aarde Construction Pty Ltd |
2 |
|
Works Infrastructures Pty Ltd |
3 |
DME Contractors is recommended as the preferred tenderer for Tender No 05518 having offered the best value for money and achieving the highest ranking in the tender evaluation process.
Key Characteristics of the lowest recommended tenderer, DME Contractors:
· As there are no habitable facilities to be constructed as part of the contract works, there is no requirement for DME Contractors to be registered with the Builders Registration Board.
· It has been in operation for ten years and presently employs fifteen permanent staff.
· It is geared up for contracting with estimator and administrative support to its regular and casual field staff. A Project Manager has yet to be assigned to the works.
· It has committed subcontractors and nominated four firms of which the City has successfully used three in the past.
· Reference checking disclosed that the firm has successfully constructed projects to the satisfaction of the nominated referees and this firm is a competent and capable prime contractor.
· DME is currently undertaking six projects that will be completed in the next two months.
Tract WA Pty Ltd has been involved with projects to which DME Contractors has provided services and found them to be a competent contractor, with an ability to undertake landscape projects which included civil engineering components.
Consultation
The Project Working and the Administration Technical Groups have met on a regular basis during the development and preparation of the tender documentation phase of the project to ensure that what has been presented for tender is in keeping with the initial scope of work and the requirements of the proposed user groups, the café/restaurant lease holder and the City.
Comment
Works Program
The works programme for this project is outlined as follows:
|
Council Tender Award |
Tuesday 9 August 2005 |
|
Execute Contract |
Friday 26 August 2005 |
|
On Site Commencement (18 week contract) |
Monday 29 August 2005 |
|
Practical Completion |
Friday 30 December 2005 |
|
Facility Commissioning |
Friday 6 January 2006 |
An 18-week construction period is considered adequate with consideration given to the sites coastal and autumn storms exposure. The objective is to have the beach available for public use as early as possible for the summer of 2005/2006.
The tender of $762,313.50, including Link Paths A, B and C, submitted by DME Contractors has been assessed and is recommended for the works at Lot 211, Mindarie Foreshore Landscape Development. The price for the Link Paths A, B and C is competitive and there are construction benefits in completing works as part of the overall project. Construction at a later date will be disruptive to the public use of the foreshore development.
The contractor will be required to supply and install two transportable self-contained toilets in the main car park area prior to erection of the site security fence.
The toilets are to be retained on site until either the practical completion of the works or the commissioning of the proposed Portfinos public toilet building on the lease area north of the Surf Life Saving Club building.
Statutory Compliance
Tenders have been invited and evaluated against the selection criteria in accordance with Section 3.57 of the Local Government Act and associated regulations.
The Manager Contracts and Property has reviewed the tender evaluation for compliance and fairness and is satisfied with the process.
Development Approval processing by the WATC was finalised for applications 30-62-8 and 30-62-9 on the 18 November 2004 and issued to the City on 30 November 2004. Tender documentation is in compliance with the approval conditions.
Tender documentation has been submitted to Development and Health Services for its statutory processing. The successful tenderer will be issued with a Building Licence based upon the Local Authority’s assessment.
An application for a bore licence was submitted to the Water and Rivers Commission on 29 June 2005 and verbal advice is that the licence is likely to be issued by 5 August 2005. The bore and irrigation components of the project cannot proceed until the bore licence is issued and the recommendation has been conditioned accordingly.
Strategic Implications
“Healthy Communities
2.6 To provide and manage infrastructure to meet the needs of the community
2.7 Provide community focused services and lifestyle opportunities.”
Policy Implications
Nil
Financial Implications
The following table identifies all costs associated with the project:
|
Tender No 05518 – Lot 211, Mindarie Foreshore Landscape Development |
||
|
Description |
Cost to Complete the Works |
Funding |
|
Project funding – Account No 815034 |
|
$300,000 |
|
Draft Budget 2005/2006 |
|
$650,000 |
|
Tract WA P/L – Contract 03335 Contract Documentation |
$53,072 |
|
|
Site Survey |
$1,000 |
|
|
Geotechnical Survey |
$17,591 |
|
|
Desktop Survey |
$3,960 |
|
|
Tract WA P/L - Fee Adjustment |
$12,000 |
|
|
Simon Gilby – Art Work |
$30,000 |
|
|
Building Capital Works Project Management |
$9,000 |
|
|
Tender Advertisement & Administration Costs |
$5,500 |
|
|
Conforming Tender – DME Contractors |
$762,313 |
|
|
Project Contingent Sum |
$55,514 |
|
|
Total Project Cost |
$950,000 |
$950,000 |
It should be noted that there is no contingency allowance included within Tender No 05518 and an allowance of approximately 7.3% of the tender sum is listed in the above table outside of the proposed contract.
Administration recommends that the tender for the construction of the Foreshore Landscape Development Works fronting Lot 211 Quinns Road, Mindarie be awarded to DME Contractors for its tender sum of $762,313.50, inclusive of Link Paths A, B and C.
Voting Requirements
Simple Majority
EndStrip - This will not be printed so do not delete
Recommendation
That Council ACCEPTS for Tender No 05518 the tender sum of $762,313.50, inclusive of Link Paths A, B and C, from DME Contractors for the construction of the Foreshore Landscape Development Works Fronting Lot 211 Quinns Road, Mindarie with the commencement of the irrigation component of the project subject to issue of a bore licence by the Water and Rivers Commission.
EndOfRecommendation - This line will not be printed Please do NOT delete
StartOfAttachment - Do not delete this line will not be printed

EndOfAttachment - Do not delete this line will not be printed
StartOfAttachment - Do not delete this line will not be printed

EndOfAttachment - Do not delete this line will not be printed
File Ref: C05519V01
File Name: AATender Number 05519 The Construction of a Timber Stairway to beach at Mary Street Quinns Rocks.doc This line will not
Level 5 Approval by jan Date 04 August 2005
Level 4 Approval by JAN Date 28 July 2005
Level 3 Approval by jan Date 25 July 2005
Level 2 Approval by jan Date 25 July 2005
Level 1 Approval by jan Date 25 July 2005
Responsible Officer: Director, Infrastructure
Disclosure of Interest: Nil
Author: Harminder Singh
Meeting Date: 9 August 2005be printed dont delete
Attachment(s): 1
StartStrip - This line will not be printed so do not delete
Issue
To consider Tender No 05519 – The Construction of a Timber Stairway for Beach Access at Mary Street, Quinns Rocks.
Background
Currently a brick and limestone stairway from Ocean Drive, near Mary Street, Quinns Rocks terminates in the sand dunes and the beach users have to walk over sloping sand to access beach.
The existing stairway has been damaged over the years due to erosion at Quinns Rocks and a new stairway is needed for safe beach access. The need for this beach access was also identified in the Quinn Mindarie Foreshore Management Plan adopted by Council in June 2004.
Funds were approved in the 2004/05 Capital Works Budget for the construction of a new timber beach access way from Ocean Drive near Mary Street. Specifications and tender drawings were finalised by M P Rogers and Associates (MPRA), the Consultant for this project. Attachment 1 shows the proposed beach access structure. In view of the history of coastal erosion at Quinns Beach, the proposed stairway design incorporates the construction of timber pile footings to support the stairway.
Detail
Tender No 05519 - The Construction of a Timber Stairway for Beach Access at Mary Street, Quinns Rocks was advertised on 2 July 2005 and closed on 19 July 2005.
A tender was prepared which outlined the scope and extent of service, and included the City’s specifications. Essential details of the new contract are shown in the following table:
|
Contract Type |
Fixed Lump Sum |
|
Maintenance Period |
26 Weeks |
Tenders were received from the following companies listed as follows:-
· Roadswest Engineering Group Pty Ltd
· Jomar Contracting
· Landscape Infrastructure
· Aarde Constructions
· DME Contractors
Tenders have been evaluated by a Tender Evaluation Team comprising the Coordinator Projects Construction and MPRA who was appointed to design, prepare documentation and administer the contract works. The evaluation was undertaken in accordance with the following assessment criteria:
(a) price for the Works offered;
(b) tenderer’s resources;
(c) tenderer’s previous experience in carrying out work similar to the Works; and
(d) safety management.
The tender evaluation involved scoring each tender against the established criteria to determine the overall weighted score and reported as follows:-
Prices for works offered
An overall ranking was determined by comparing the tender prices provided by each tenderer and are tabled below in order of ranking:
|
Tenderer |
Lump Sum Price |
Rank |
|
Landscape Infrastructure |
$66,700.00 |
1 |
|
Jomar Contracting |
$97,685.00 |
2 |
|
Roadswest Engineering |
$117,244.00 |
3 |
|
Aarde Constructions |
$139,006.83 |
4 |
|
DME Contracting |
$167,170.00 |
5 |
This criteria represents 80% of the total score.
Tenderer’s Resources
Based on the information provided, tenderers have been ranked as following:
|
Tenderer |
Rank |
|
Jomar Contracting |
1 |
|
Landscape Infrastructure |
2 |
|
DME Contracting |
2 |
|
Aarde Constructions |
3 |
|
Roadswest Engineering |
3 |
This criteria represents 5% of the total score.
Tenderer’s previous experience in carrying out work similar to the works.
Tenders were assessed on the tenderer’s experience with previous contracts completed of a similar size and nature. Tenderers have been ranked as following:
|
Tenderer |
Rank |
|
Jomar Contracting |
1 |
|
Landscape Infrastructure |
2 |
|
Aarde Constructions |
2 |
|
Roadswest Engineering |
3 |
|
DME Contracting |
4 |
This criteria represents 10% of the total score.
Safety management.
All tenderers other than Landscape Infrastructure have provided sufficient information on the safety management procedures of their respective organisations. Tenderers have been ranked as following:
|
Tenderer |
Rank |
|
Jomar Contracting |
1 |
|
Roadswest Engineering |
1 |
|
Aarde Constructions |
1 |
|
DME Contracting |
2 |
|
Landscape Infrastructure |
3 |
This criteria represents 5% of the total score.
An evaluation matrix has been prepared, which clearly rates Landscape Infrastructure above the other two tenders received as detailed in the following Overall Weighted Score table:
|
Rank |
Tenderer |
|
1 |
Landscape Infrastructure |
|
2 |
Jomar Contracting |
|
3 |
Roadswest Engineering |
|
4 |
Aarde Constructions |
|
5 |
DME Contracting |
The tender evaluation has indicated that the tender from Landscape Infrastructure provides the best value for money for the City. The Tender Evaluation Team considers that the issue relating to lower ranking achieved by Landscape Infrastructure under Resources and Safety Management can be addressed by having a pre-construction commencement meeting with Landscape Infrastructure and seeking a safety management plan from Landscape Infrastructure prior to formally signing the contract agreement.
Consultation
Lions Club of Quinns Rocks & Districts, Quinns Rocks Community & Recreation Association (Inc), Quinns Rocks Environmental Group, Quinns Rocks Fishing Club Inc, Quinns Rocks Sports Club, Quinns/Mindarie Surf Lifesaving Club and the residents in the vicinity were advised of the proposed stairway in December 2004 at the time when the preliminary design was finalised. Only one resident had some reservations regarding the construction of roof over the lookout at the start of the stairways. However, it is considered that roof over the lookout will provide protection from the sun to the users of this facility who may use the seating to be provided at this lookout.
Comment
The construction of this timber stairway in a foreshore reserve is considered to be a unique project and Landscape Infrastructure is considered to have the necessary skills and resources to undertake this construction. The Tender Evaluation Team has conducted a thorough evaluation process to support its recommendation that the tender submitted by Landscape Infrastructure provides the best value for money. It is noted that Landscape Infrastructure undertook the construction of the timber stairs off Sovereign Drive opposite Sceptre Court, Two Rocks in compliance with the tender specifications and timeframes
It is therefore recommended that Council accept the tender from Landscape Infrastructure for undertaking the works in accordance with Tender No 05519 at a lump sum price of $66,700.
Statutory Compliance
Tenders were invited in accordance with the requirements of Section 3.57 of the Local Government Act 1995. The tendering procedures and evaluation complied with the requirements of Part 4 of the Local Government (Functions and General) Regulations 1996.
The Manager Contracts and Property has reviewed the tender compliance and assessment process and endorses the recommendations.
Strategic Implications
The construction of proposed stairway is consistent with the following City of Wanneroo Strategic Plan (2002-2005) goals and objectives:-
“Healthy Communities
2.4 Support safe and secure communities
2.6 Provide and manage infrastructure to meet the needs of the community”.
Policy Implications
Nil
Financial Implications
By accepting the tender from Landscape Infrastructure, the total estimated cost of the works including the outstanding consulting fees and concrete access pathway is summarised below:
|
ITEM DESCRIPTION |
AMOUNT |
|
Construction of stairway access – Tender Price |
$66,700 |
|
Post Construction works inclusive of cleanup / remedial works / rehabilitation of dunes |
$5,000 |
|
Sub Total |
$71,700 |
|
Consultancy Fee – Design, documentation, Contract administration |
$23,865 |
|
Infrastructure Projects Unit Charges |
$6,000 |
|
Contingencies – including development application fees, etc. |
$5,000 |
|
Sub Total |
$34,865 |
|
Estimated Total Project Cost inclusive of provisional sum of $10,000 |
$106,565 |
$150,000 for this project (Project Number 845192) was allocated in the City’s 2004/2005 Capital Works Budget. The expenditure to date is $15,088 and unexpended funds $134,912 has been carried forward to 2005/06 Capital Works Budget.
Voting Requirements
Simple Majority
EndStrip - This will not be printed so do not delete
Recommendation
That Council ACCEPTS the tender from Landscape Infrastructure (Tender No. 05519) for the Construction of a Timber Stairway to Beach at Mary Street, Quinns Rocks at a lump sum price of $66,700, subject to Landscape Development providing a safety management plan for the project prior to signing the contract agreement.
EndOfRecommendation - This line will not be printed Please do NOT delete
ATTACHMENT 1 PAGE 1 OF 2
StartOfAttachment - Do not delete this line will not be printed

ATTACHMENT 1 PAGE 2 OF 2

EndOfAttachment - Do not delete this line will not be printed
File Ref: R/0008V01
File Name: BARoad Safety Audit Policy.doc This line will not be printed dont delete
Level 4 Approval by JAN Date 28 July 2005
Level 3 Approval by jan Date 25 July 2005
Level 2 Approval by jan Date 25 July 2005
Level 1 Approval by jan Date 25 July 2005
Responsible Officer: Director, Infrastructure
Disclosure of Interest: Nil
Attachments: Nil
Author: Geof Miles
Meeting Date: 9 August 2005
StartStrip - This line will not be printed so do not delete
Issue
To consider a review of the “Road Safety Audit Policy” (Policy No 7.3.12).
Background
The current Road Safety Audits Policy was implemented on 16 December 2003 (Report No TS18-12/03 refers) and was due for review in January 2005. This is the first review of the policy since its implementation.
Detail
Road Safety Audits are conducted in accordance with the AustRoads publication No AP-G30/02, as endorsed by Standards Australia.
The policy was based on a generic document, “Local Government Road Safety Audit Strategy & Policy Statement” prepared in 2001 by the Institution of Public Works Engineers (IPWEA) WA Division. The generic policy was amended to reflect the requirements of the City.
In reviewing the 2003 policy it is considered necessary to add two paragraphs and modify three paragraphs to more clearly describe when a road safety audit must be done and when an audit may not be necessary. The revised policy renumbers the existing numbered paragraphs between 3 and 10 and includes some minor grammatical alterations for improved clarity.
The major changes are:
· Insert a new dot point 3.
‘All annual Capital Road Construction and Traffic Management projects should be audited in-house using the road safety audit checklists. If major issues cannot be resolved in-house then an external road safety audit is to be undertaken’
A trained staff member using the AustRoads checklists can assess the projects in-house. The time required for a medium sized project is about one hour and the review can identify design and construction issues that may require reconsideration before the project is constructed.
· Insert a new dot point 10.
‘The requirement for a Detailed Design Road Safety Audit and a Pre-Opening Road Safety Audit are to be requested as a Development Condition for new subdivisions.’
The holistic effect of road geometry and configuration of the interconnecting subdivisional roads can be overlooked by development consultants and the designs presented can still comply with the City’s road construction details and the Department of Planning and Infrastructure’s Liveable Neighbourhood guidelines. The placement of a requirement on the developer relating to the road safety of the finished product will provide a better result for the City.
· Revise dot point 4 (old 3)
Sections of existing City road network where there is a recognised level of conflict between vehicular traffic and vulnerable road users or traffic management/safety concerns will be subject to audit within a defined timeframe.
Three issues arise from the wording of that paragraph:
1. What is the recognised level? The level is not defined. The intent is still clear if the words ’level of’ are deleted.
2. The use of the term ‘will be’ allows no recognition that many issues can be resolved without the expense of a full road safety audit. An analysis using the road safety audit principles often suffices and provides written records of action taken to ensure safety of road users has been considered.
3. Delete the words ‘audit within a defined timeframe’ as there is no accompanying definition of what the timeframe is.
Inserting the words ‘a road review using road safety audit principles’ finishes the paragraph.
Sections of the existing City road network where there is a recognised conflict between vehicular traffic and vulnerable road users or traffic management/safety concerns will be subject to a review using road safety audit principles.
· Revise dot point 7 (old 6)
Add the works ‘The requirement for a Design Audit and a Pre-Opening Audit are to be requested as a condition of planning approval’ at the end of the paragraph.
Road safety auditing around all new schools is very important and linking safety with planning approval should be actively pursued.
· Revise dot point 9 (old 8)
Amend the wording so that the decision is not ‘to do or not do’ an audit, however start from the position that all projects do need a formal audit and then specifically identify why exclusions should occur. For instance, on grounds of economics on small projects, or projects that clearly do not change the existing safety position and no necessity for change exists.
No further major amendments are proposed.
The titles of the managers responsible for implementation of the policy have also been amended to reflect changes arising from the Technical Services Directorate Review that came into effect on 1 July 2005. The managers responsible are:
· Manager Infrastructure Planning (Land Development and Traffic Projects)
· Manager Infrastructure Projects (Design and Construction Projects).
Consultation
Consultation undertaken with Infrastructure Directorate staff has determined the need to formalise the road safety audit process for the City’s road and traffic projects
Comment
The proposed amendment to the ‘Road Safety Audit Policy’ clarifies requirements that emphasises the need to consider the road safety principles on the City’s projects and new development projects.
Administration recommends that this revised policy be endorsed for a period of three years.
Statutory Compliance
Nil
Strategic Implications
The review of the ‘Road Safety Audit Policy’ is consistent with the following City of Wanneroo Strategic Plan (2002-2005) goals and strategies:
“Healthy Communities
2.3 Support and encourage the delivery of a safe and effective transport network.
2.6 Provide and manage infrastructure to meet the needs of our community.”
Policy Implications
The purpose of this report is to recommend changes to the ‘Road Safety Audit Policy’.
Reviewing this policy supports Council’s objective of developing and modifying policies covering signage within the City.
Financial Implications
Nil
Voting Requirements
Simple Majority
EndStrip - This will not be printed so do not delete
Recommendation
That Council AMENDS the Road Safety Audit Policy (Policy No 7.3.12) and adopts as detailed below:
Road Safety Audits
Policy Owner: Infrastructure
Distribution: All employees
Implementation: 16 December 2003 (Council Item TS18-12/03)
Scheduled Review: 31 July 2008
Objective
To promote the development and implementation of a safe road environment through the adoption of road safety auditing principles and practices.
Statement
The following actions be the strategic framework for the implementation of road safety audit principles and practices in the planning, design and construction of road network related projects within the City of Wanneroo.
1. Formal Road Safety Audit procedures shall be in accordance with Austroads Road Safety Audit Manual and Checklists, as well as Main Roads Western Australia and IPWEA (WA Division) complimentary checklists and procedures.
2. Council acknowledges the requirements to subject all Metropolitan Regional Road Funded Improvement Projects to a road safety audit.
3. All annual Capital Road Construction and Traffic Management projects should be audited in-house using the road safety audit checklists. If major issues cannot be resolved in-house then an external road safety audit is to be undertaken.
4. Sections of the
existing City road network where there is a recognised conflict between
vehicular traffic and vulnerable road users or traffic management/safety
concerns will be subject to a review using road safety audit principles.
5. Ensure that appropriately trained, experienced and independent road safety auditors are used in undertaking road safety audits.
6. Ensure that appropriate staff members are afforded the opportunity to fulfil the training and experience requirements to achieve and maintain road safety auditor accreditation.
7. Any new schools will be subject to a process of road safety audit from the structure planning stage through to ultimate construction. The requirement for a Detailed Design Audit and a Pre-Opening Audit are to be requested as a condition of planning approval.
8. Council will negotiate with other local governments to undertake a reciprocal partnership agreement, whereby qualified independent members from partnering Local Governments undertake road safety audits.
9. The Director Infrastructure, shall exercise professional judgement in determining whether a project in the City’s Capital Works Program can be excluded from the need to have a formal road safety audit.
10. The requirement for a Design Road Safety Audit and a Pre-Opening Road Safety Audit are to be requested as a Development Condition for new subdivisions.
Responsible for Implementation
Manager, Infrastructure Planning (Land Development and Traffic Projects)
Manager, Infrastructure Projects (Design and Construction Projects)
EndOfRecommendation - This line will not be printed Please do NOT delete
File Ref: R34/0010V01
File Name: BABelgrade Road Wanneroo Parking Safety Concerns and Access to General Store.doc This line will not be printed dont
Level 5 Approval by jan Date 04 August 2005
Level 4 Approval by JAN Date 28 July 2005
Level 3 Approval by jan Date 25 July 2005
Level 2 Approval by jan Date 25 July 2005
Level 1 Approval by jan Date 25 July 2005delete
Responsible Officer: Director, Infrastructure
Disclosure of Interest: Nil
Author: Geoff Miles
Meeting Date: 9 August 2005
Attachments: 2
StartStrip - This line will not be printed so do not delete
Issue
To consider revisions to improve safety and access at the street parking bays near the Belgrade General Store in Belgrade Road, Wanneroo.
Background
In 2004, the intersection of Belgrade Road and Scott Road was reconstructed with a roundabout to improve the safety at a T-intersection which had an access to the Belgrade Park Retirement Village forming a fourth traffic movement. The Belgrade General Store is 40m from the intersection and the road realignment with the widening of the approach to the roundabout, has impacted on the parking in front of the store. The area of interest is shown in Photo 1 in Attachment 1
As part of the City’s standard procedure, the road design was forwarded to the owners and residents of properties in the vicinity of the project. The operator of the Belgrade General Store responded to the Design Team and actively participated in a redesign of the parking in front of the store, including the removal and non-replacement of a crossover giving access to the side of the store.
Detail
In December 2004, after the road reconstruction work was nearly completed, the store operator approached the City complaining about the loss of access to the store and several instances of poor driver behaviour due to the new road configuration.
Investigation of the apparent contradiction in the store operator’s stance revealed that the store operator was a new person who had only recently taken over the store. In January 2005, the property owner formally contacted the City expressing the following concerns about the changes to access to the property:
1. Access to the property was previously possible via a crossover that has been replaced with a parking bay and semi-barrier kerb.
2. The parking bays are on the inside of a curve and through traffic often travel on a straight line cutting through the car parking bays sometimes when vehicles are in the bays.
3. Some drivers are performing U-turns now that there are on-street parking bays on both sides of the street.
4. Some drivers are travelling across the centre of the road to park in the bays outside the store and facing the oncoming traffic. They then leave by driving on the wrong side of the road past the median island.
5. The parking bays are being used for long term parking prohibiting their use for quick parking access to the store.
Comment
Concern 1.
The crossover giving access to the property was removed by the City as part of the Scott Road/Belgrade Road intersection upgrade work only after extensive consultation with the store operator at that time. At present trucks collecting the waste bin must drive over the kerb, refer Photo 2 in Attachment 1. Remedial action to re-establish access should be considered in conjunction with actions addressing Concern 2.
Concern 2.
The parking bays have been designed to the dimensions recommended in the Austroads national guide to Traffic Engineering Practice that is recognised as the standard across Australia. The outer edge of the parking bays is in parallel with the central painted median in the road. The bays have been constructed with a distinct outwards kink in the middle, refer Photo 3 in Attachment 1, and that needs to be removed to improve the safety of persons using the bays. The bays do appear to protrude into the road, refer Photo 4 in Attachment 1. Remedial action would be to reconstruct the kerb-line of the parking bays to a straight edge. That will result in the shifting of the bays so that they do not extend so far into what appears to be the through traffic line. An additional benefit will be extra space away from the through traffic for people to exit/access their cars, refer Photo 5 in Attachment 1.
Concerns 3 and 4
U-turns cannot be stopped without a physical barrier along the central median. Such a barrier would also stop vehicles driving onto the wrong side of the road and will also prohibit trucks such as the waste removal truck from accessing the store property. Unfortunately a gap in a median barrier sufficiently long enough to service the store will also be at a location and of a size large enough to allow U-turns to be performed. The construction of a median barrier would therefore have a greater negative effect than a benefit.
Concern 5.
The parking bays were constructed to replace bays that previously existed in a location to service the store. The adoption of a 20 minute parking time on the bays will give clear indication that they are for short term parking only. Proposed signage requirements are presented in City of Wanneroo Drawing No T1952-4-0, refer Attachment 2.
Statutory Compliance
The installation of timed parking signage will allow enforcement of Part 7 Clause 66 of the City’s Parking and Facilities Local Law 2003.
The installation of timed parking signage is in compliance with the Road Traffic Code 2000 Section 172 and can be enforced in accordance with Section 173.
Strategic Implications
The proposal to install parking prohibition signs in Belgrade Road is consistent with the following City of Wanneroo Strategic Plan (2002-2005) goals and strategies:
“Healthy Communities,
2.3 Support and encourage the delivery of a safe and effective transport network.
2.4 To provide safe and secure communities.
2.6 To provide appropriate infrastructure to improve safety and security within the Community”
Policy Implications
Nil
Financial Implications
The estimated cost of the proposed remedial works is $10,000 and funding is available from Project No 846270 – Various Traffic Management Works. The project funding of $50,000 has been approved in the 2005/2006 Traffic Management Program to allow minor works to proceed during the year.
Voting Requirements
Simple Majority
EndStrip - This will not be printed so do not delete
Recommendation
That Council:-
1. PROCEEDS with the modification of the parking bays and Belgrade General Store vehicular access on the south side of Belgrade Road at an estimated cost of $10,000 with funding to be allocated from Project No 846270, Various Traffic Management Works.
2. APPROVES the installation of “Parking 20 minute” signs covering the on-street parking bays on both sides of Belgrade Road, Wanneroo near the Belgrade General Store as shown on the City of Wanneroo Drawing No T1952-4-0.
EndOfRecommendation - This line will not be printed Please do NOT delete
StartOfAttachment - Do not delete this line will not be printed
ATTACHMENT 1
Page 1 of 2
Photo 1 – OVERALL SITE VIEW

Photo 2 – ACCESS REQUIRED TO SIDE OF STORE

ATTACHMENT 1
Page 2 of 2
Photo 3 – KERBSIDE OF PARKING BAYS

|
Photo 4 –BAYS APPEAR TO PROTRUDE |
Photo 5 – PEOPLE MUST USE THE ROAD |
|
|
|
EndOfAttachment - Do not delete this line will not be printed
StartOfAttachment - Do not delete this line will not be printed

EndOfAttachment - Do not delete this line will not be printed
File Ref: R27/0013V01
File Name: BAClosure of Coastal Rise Quinns Rocks.doc This line will not be printed dont delete
Level 4 Approval by JAN Date 28 July 2005
Level 3 Approval by jan Date 25 July 2005
Level 2 Approval by jan Date 25 July 2005
Level 1 Approval by jan Date 25 July 2005
Responsible Officer: Director, Infrastructure
Disclosure of Interest: Nil
Author: Geoff Miles
Meeting Date: 9 August 2005
Attachments 1
StartStrip - This line will not be printed so do not delete
Issue
To consider the submissions received following advertising of the proposed road closure of the eastern access between Camira Way and Coastal Rise, Quinns Rocks.
Background
Coastal Rise has two access locations, the eastern access is a short link to Camira Way and the western access was an intersection on a sharp bend in Ocean Drive prior to upgrading works recently undertaken by the City. During 2004 the western access was relocated away from the bend and made part of the roundabout at the intersection of Ocean Drive and Camira Way.
Residents have raised concerns regarding traffic safety at the eastern access and some have suggested a closure of the link in conjunction with the construction of the final section of Coastal Rise.
Council resolved at its meeting held on 15 March 2005 to progress the legal procedure and advertise for submissions regarding the proposed closure (Report No TS02-03/05 refers).
Consultation
In February 2005, the owners and residents of the nine properties adjacent to Coastal Rise were contacted asking for comment prior to the formal process on a possible closure as shown on the City of Wanneroo Drawing No. T2040-1-0 presented as Attachment 1.
In June 2005 a submission period was advertised. At the close of submissions on 19 July 2005 submissions were only received from four public service authorities; Alinta Gas, Telstra, Western Power and the Water Corporation. All noted that they had no comments against the proposal.
Comment
The closure of the eastern access will result in a positive hazard reduction and permit the finalisation of the reconstruction of Coastal Rise.
As no objections have been raised, Administration considers the closure should proceed.
Statutory Compliance
Council may close a section of road reserve to the through movement of vehicles in accordance with the Local Government Act 1995 Section 3.50 (as amended).
Strategic Implications
The decision to consider the closure of the eastern access between Camira Way and Coastal Rise is consistent with the following City of Wanneroo Strategic Plan 2002 – 2005 goals and objectives:
“Healthy Communities
2.3 Support and encourage the delivery of a safe and effective transport network.
2.6 Provide and manage infrastructure to meet the needs of the community.”
Policy Implications
Nil
Financial Implications
The estimated cost of the works is $50,000, with this project approved in the 2005/2006 Capital Works Budget.
Voting Requirements
Simple Majority
EndStrip - This will not be printed so do not delete
Recommendation
That Council:-
1. CLOSES the eastern access between Coastal Rise and Camira Way, Quinns Rocks to vehicular traffic as shown on City of Wanneroo Drawing No T2040-1-0 in accordance with the Local Government Act 1995 Section 3.50 as amended.
2. CONSTRUCTS the cul-de-sac turn area in Coastal Rise and the connecting pathway to Camira Way as shown on City of Wanneroo Drawing No T2040-1-0.
EndOfRecommendation - This line will not be printed Please do NOT delete
StartOfAttachment - Do not delete this line will not be printed

EndOfAttachment - Do not delete this line will not be printed
File Ref: S34/0004V01
File Name: DAResource Recovery Rebate Scheme.doc This line will not be printed dont delete
Level 5 Approval by jan Date 04 August 2005
Level 4 Approval by JAN Date 28 July 2005
Level 3 Approval by jan Date 25 July 2005
Level 2 Approval by jan Date 25 July 2005
Level 1 Approval by jan Date 25 July 2005
Responsible Officer: Director, Infrastructure
Disclosure of Interest: Nil
Author: Robert Elliott
Meeting Date: 9 August 2005
Attachments: 1
StartStrip - This line will not be printed so do not delete
Issue
To consider proposed changes to the Resource Recovery Rebate Scheme (RRRS).
Background
The RRRS replaced the Municipal Recycling Services Scheme on 1 January 2001 and was initiated to increase local government participation in resource recovery.
The Waste Management and Recycling Fund (WMRF) is the sole source of funding for the RRRS. The WMRF is resourced through funds raised by a levy on waste disposed to landfill within the Perth metropolitan area (landfill levy). Funds held in the WMRF may be applied by the Minister for the Environment to fund programmes relating to the management, reduction, reuse, recycling, monitoring or measurement of waste and on the costs of administering the WMRF. At present the RRRS receives about half the landfill levy revenue. This reflects the political reality that local government contribute about half of the landfill levy revenue.
The state structure was changed in 2002 with the creation of the Waste Management Board (the Board). Since then the Board has been involved in a major review of the WMRF including the RRRS. This review process highlighted a number of issues questioning the effectiveness of the RRRS. The review also found that the other projects funded by the WMRF were difficult to evaluate and did not appear to have made a measurable contribution to recycling and waste reduction.
The Local Government Association has highlighted the fact that most recycling has been undertaken by local government at a significant cost and while the RRRS money represents only a small portion of the actual cost it is recognition of the success being achieved.
Detail
In April 2005 the Board issued a RRRS discussion paper and proposed that the RRRS be halved from 1 July 2005 and replaced from 1 July 2006. The time available to respond to the discussion paper was not sufficient to allow full consideration by Council and an Administration response was sent which highlighted that the budget process was well advanced and the proposed changes would be disruptive. It also raised the issue of exemption from the landfill levy for residue from the Wangara Materials Recovery Facility.
The Board has now issued a response and agreed to delay changes to the RRRS for six months and to start consultation on the replacement scheme, refer Attachment 1. This will result in a normal payment for the period July – December 2005 and a half payment for the period Jan – June 2006. An amount of $20,000 has been provided for in the 2005/06 budget. Income from the RRRS in the following year is likely to be in the order of $10,000.
The Board will also prepare for discussion its ‘proposed three year strategic business plan with a view to refining the main areas and extent of expenditure in co-operation with stakeholders so that the landfill levy can be set at a level to fund these programmes and act as a true disincentive to landfill.’
The Board has raised the issue of using a larger landfill levy to produce cost pressure to support recycling. This has been a popular theme for a number of government agencies as reflected in the higher charges in some eastern states. However, research has not been able to point to this being effective in promoting recycling at the levels that governments are likely to be willing to introduce.
Consultation
Nil
Comment
Local government has a concern with the landfill levy that it will be left with the role of a tax collector when it has limited ability to influence the quantity of waste produced by residents. Local governments are already collecting a significant ‘levy’ to fund their recycling programmes and are concerned to see that ratepayers’ money is handled in an effective manner.
The ‘Strategic Direction for Waste Management in Western Australia (2003)’ issued by the Board indicated that the main environmental issues are associated with industrial waste and this will be the Board’s main area of focus. This is supported by the move to have Extended Producer Responsibility (EPR) provisions in the amendments to the Environmental Protection Act. Council considered this at item TS06-05/05 and a letter sent to the Minister for the Environment supporting EPR. This support from local government has been successful and on 29 June 2005 the Minister has released a Policy paper on Extended Producer Responsibility.
It would be appropriate to write to the Chairman of the Waste Board expressing concern at the concept of trying to raise the landfill levy to encourage recycling until there is well documented information supporting the effectiveness of such an approach. As this matter has a significant impact on local government, it is appropriate to raise the matter through the WALGA North Metropolitan Zone.
The Waste Management Advisory Committee considered this matter at its meeting on 6 July 2005 and resolved to recommend to Council that it expresses concern at the Waste Management Board promoting an excessively high Landfill Levy and supporting the need for credible research to support any increase in the Landfill Levy.
Statutory Compliance
Nil
Strategic Implications
The Landfill Levy and the RRRS programme are significant factors affecting recycling and Waste Disposal and are consistent with the City of Wanneroo Strategic Plan goals and strategies:
“Environmental Sustainability
1.2 Develop sustainable waste management options”
Policy Implications
Nil
Financial Implications
Nil
Voting Requirements
Simple Majority
EndStrip - This will not be printed so do not delete
Recommendation
That Council:-
1. ADVISES the Waste Management Board of concern regarding the Board promoting an excessively high Landfill Levy and supporting the need for credible research to support any increase in the Landfill Levy.
2. RAISES the issue with the Western Australian Local Government Association (WALGA) through the WALGA North Metropolitan Zone.
EndOfRecommendation - This line will not be printed Please do NOT delete
ATTACHMENT 1 Page 1 of 13
StartOfAttachment - Do not delete this line will not be printed
ATTACHMENT 1 Page 2 of 13 ATTACHMENT 1 Page 3 of 13 ATTACHMENT 1 Page 4 of 13 ATTACHMENT 1 Page 5 of 13 ATTACHMENT 1 Page 6 of 13 ATTACHMENT 1 Page 7 of 13 ATTACHMENT 1 Page 8 of 13 ATTACHMENT 1 Page 9 of 13 ATTACHMENT 1 Page 10 of 13 ATTACHMENT 1 Page 11 of 13 ATTACHMENT 1 Page 12 of 13


ATTACHMENT 1 Page 13 of 13
EndOfAttachment - Do not delete this line will not be printed
File Ref: S13/0002V01
File Name: BAWarrant of Payments For the Period to 30 June 2005.doc This line will not be printed Please
Level 4 Approval by Wayne Wright Date 27 July 2005
Level 3 Approval by Wayne Wright Date 25 July 2005
Level 2 Approval by Mike Cole Date 21 July 2005
Level 1 Approval by Juanita Lee Date 15 July 2005do NOT delete
Responsible Officer: Director, Corporate Services
Disclosure of Interest: Nil
Author: Juanita Lee
Meeting Date: 9 August 2005
Attachments: Nil
StartStrip - This line will not be printed so do not delete
Issue
Presentation to the Council of a list of accounts paid for the month of June 2005, including a statement as to the total amounts outstanding at the end of the month.
Background
Local Governments are required each month to prepare a list of accounts paid for that month and submit the list to the next Ordinary Meeting of the Council.
In addition, it must record all other outstanding accounts and include that amount with the list to be presented. The list of accounts paid and the total of outstanding accounts must be recorded in the minutes of the Council meeting.
Detail
The following is the Summary of Accounts paid in June 2005 -
|
Funds |
Vouchers |
Amount |
|
Director Corporate Services Advance A/C Accounts Paid – June 2005 Cheque Numbers EFT Document Numbers TOTAL ACCOUNTS PAID
Less Cancelled Cheques Less Recoups Town Planning Schemes RECOUP FROM MUNICIPAL FUND |
52664-53316 256-282
|
$ 3,948,047.15 $3,262,164.77 $7,210,211.92
($2,325.09) ($73.18) $7,207,813.65 |
|
Municipal Fund – Bank A/C Accounts Paid – June 2005 Direct Payments Payroll – Direct Debits TOTAL ACCOUNTS PAID |
EFT 292
|
$8,228,213.43 $1,337,081.89 $9,565,295.32 |
|
Town Planning Scheme Accounts Paid – June 2005 Cell 8 TOTAL ACCOUNTS PAID |
000010 52669
|
$73.18 $73.18 |
At the close of June 2005 outstanding creditors amounted to $1,210,936.72.
Consultation
Nil.
Comment
The list of cheques and the end of month total of outstanding creditors for the month of June 2005 is presented to the Council for information and recording in the minutes of the meeting, as required by the Local Government (Financial Management) Regulations 1996.
Statutory Compliance
Regulation 13(1) of the Local Government (Financial Management) Regulations 1996 requires a local government to list the accounts paid each month and present such information to the Council at its next Ordinary Meeting after each preparation. A further requirement of this Section is that the prepared list must be recorded in the minutes of the Council meeting.
Strategic Implications
Nil.
Policy Implications
Nil.
Financial Implications
Nil.
Voting Requirements
Simple Majority
EndStrip - This will not be printed so do not delete
Recommendation
That Council RECEIVES the list of cheques drawn for the month of June 2005, as summarised below:-.
|
Funds |
Vouchers |
Amount |
|
Director Corporate Services Advance A/C Accounts Paid – June 2005 Cheque Numbers EFT Document Numbers TOTAL ACCOUNTS PAID
Less Cancelled Cheques Less Recoups Town Planning Schemes RECOUP FROM MUNICIPAL FUND |
52664-53316 256-282
|
$ 3,948,047.15 $3,262,164.77 $7,210,211.92
($2,325.09) ($73.18) $7,207,813.65 |
|
Municipal Fund – Bank A/C Accounts Paid – June 2005 Direct Payments Payroll – Direct Debits TOTAL ACCOUNTS PAID |
EFT 292
|
$8,228,213.43 $1,337,081.89 $9,565,295.32 |
|
Town Planning Scheme Accounts Paid – June 2005 Cell 8 TOTAL ACCOUNTS PAID |
000010 52669
|
$73.18 $73.18 |
|
WARRANT OF PAYMENTS - JUNE 2005 |
|
CHEQUE |
DATE |
DESCRIPTION |
AMOUNT |
|
|
00052664 |
01/06/2005 |
City of Wanneroo |
$862.88 |
|
|
|
|
Cr Steffens Travel Claim To Rates ($227.88) |
|
|
|
|
|
Bond Refund Receipt Posted To Incorrect Account ($635.00) |
|
|
|
00052665 |
01/06/2005 |
Aboriginal Seniors Group Petty Cash |
$50.00 |
|
|
|
|
Petty Cash |
|
|
|
00052666 |
01/06/2005 |
Alexander Heights Adult Day Care |
$39.55 |
|
|
|
|
Petty Cash |
|
|
|
00052667 |
01/06/2005 |
Alinta Gas |
$150.00 |
|
|
|
|
2 X Ratepayer Financial Assistance |
|
|
|
00052668 |
01/06/2005 |
Corporate Services Petty Cash |
$891.45 |
|
|
|
|
Petty Cash |
|
|
|
00052669 |
01/06/2005 |
Department Of Land Information |
$391.40 |
|
|
|
|
Title Search For April 2005 - Planning Services & Rating Services |
|
|
|
00052670 |
01/06/2005 |
Girrawheen Senior High School |
$187.00 |
|
|
|
|
Catering For Careers Expo 14 June 05 - Economic Development |
|
|
|
00052671 |
01/06/2005 |
Hainsworth Community Centre Petty |
$100.00 |
|
|
|
|
Petty Cash |
|
|
|
00052672 |
01/06/2005 |
IInet Technologies |
$74.85 |
|
|
|
|
Internet Charge For HYC3 – I.T. Services |
|
|
|
00052673 |
01/06/2005 |
Mobile Library Petty Cash |
$125.00 |
|
|
|
|
Petty Cash |
|
|
|
00052674 |
01/06/2005 |
Quinns Rocks Adult Day Care Petty |
$74.55 |
|
|
|
|
Petty Cash |
|
|
|
00052675 |
01/06/2005 |
Shire of Mundaring |
$135.00 |
|
|
|
|
Workshop For Business Plan Strategy For In Home Care 2005 – 2007 – Community Services |
|
|
|
00052676 |
01/06/2005 |
Alexander Heights Community House |
$30.10 |
|
|
|
|
Petty Cash |
|
|
|
00052677 |
01/06/2005 |
WA Local Govt Superannuation |
$299,120.98 |
|
|
|
|
Superannuation Deductions For May 2005 |
|
|
|
00052678 |
01/06/2005 |
Wanneroo Youth Centre Petty Cash |
$108.35 |
|
|
|
|
Petty Cash |
|
|
|
00052679 |
01/06/2005 |
Western Power |
$23,620.45 |
|
|
|
|
Power Supplies To Various Sites |
|
|
|
|
|
1 x Ratepayer Financial Assistance ($150.00) |
|
|
|
00052680 |
01/06/2005 |
Justin Sonia Pty Ltd |
$110,000.00 |
|
|
|
|
Balance Compensation For POS In East Wanneroo Cell 6 |
|
|
|
00052681 |
01/06/2005 |
Zurich Aust Insurance Ltd |
$500.00 |
|
|
|
|
Insurance Excess Payment for WN32287 – Contracts & Property |
|
|
|
00052682 |
01/06/2005 |
Mr H P Singh |
$100.00 |
|
|
|
|
Reimbursement Of Gift Voucher For Operations Employee – A Deegan |
|
|
|
00052683 |
01/06/2005 |
Yanchep Two Rocks Recreation Assoc |
$300.00 |
|
|
|
|
Bond Refund |
|
|
|
00052684 |
01/06/2005 |
MB Beauglehole |
$315.51 |
|
|
|
|
Rates Refund P/N 170782 – 4 Javon Loop – Pension Rebate |
|
|
|
00052685 |
01/06/2005 |
Ferruccio Berghich |
$720.00 |
|
|
|
|
Artwork Payments – Spirit Of Porongurup |
|
|
|
00052686 |
01/06/2005 |
Suzanne Logue |
$320.00 |
|
|
|
|
Artwork Payments – The Poetics Of The Spaces Between |
|
|
|
00052687 |
01/06/2005 |
Maria Nordhoff |
$360.00 |
|
|
|
|
Artwork Payments – Rhapsody |
|
|
|
00052688 |
01/06/2005 |
Andrea Pattison |
$200.00 |
|
|
|
|
Artwork Payments – Fly On The Wall |
|
|
|
00052689 |
01/06/2005 |
Irene Irving |
$160.00 |
|
|
|
|
Artwork Payments – Jodie’s Haven |
|
|
|
00052690 |
01/06/2005 |
Suzanne Ives |
$44.00 |
|
|
|
|
Artwork Payments – The Kiss |
|
|
|
00052691 |
01/06/2005 |
W Goodwin |
$236.00 |
|
|
|
|
Artwork Payments – Hot Rocks but Cool Waters |
|
|
|
00052692 |
01/06/2005 |
Karen Francis |
$150.00 |
|
|
|
|
Artwork Payments - Untitled |
|
|
|
00052693 |
01/06/2005 |
Stephen Dale |
$120.00 |
|
|
|
|
Artwork Payments - Perth Bell Tower |
|
|
|
00052694 |
01/06/2005 |
Kathleen Corner |
$48.00 |
|
|
|
|
Artwork Payments - Pindan Dawn |
|
|
|
00052695 |
01/06/2005 |
Dawn Briggs |
$144.00 |
|
|
|
|
Artwork Payments - Valley Retreat |
|
|
|
00052696 |
01/06/2005 |
Marion Balloch |
$280.00 |
|
|
|
|
Artwork Payments - Morning Light |
|
|
|
00052697 |
01/06/2005 |
Yoon Ahn |
$480.00 |
|
|
|
|
Artwork Payments - Book And Lamp |
|
|
|
00052698 |
01/06/2005 |
Linda Schofield |
$128.00 |
|
|
|
|
Artwork Payments - Laughing Kookaburra |
|
|
|
00052699 |
01/06/2005 |
C & DJ Weston |
$300.00 |
|
|
|
|
Vehicle Crossing Subsidy |
|
|
|
00052700 |
01/06/2005 |
DM & JM Jacinto |
$300.00 |
|
|
|
|
Vehicle Crossing Subsidy |
|
|
|
00052701 |
01/06/2005 |
PR & WA Warby |
$300.00 |
|
|
|
|
Vehicle Crossing Subsidy |
|
|
|
00052702 |
01/06/2005 |
Keystart Loans |
$224.39 |
|
|
|
|
Rates Refund P/N 182844 - 74
Viridian Drive - Overpayment Of |
|
|
|
00052703 |
01/06/2005 |
G & B Collins |
$300.00 |
|
|
|
|
Vehicle Crossing Subsidy |
|
|
|
00052704 |
01/06/2005 |
Z & N Stojcic |
$300.00 |
|
|
|
|
Vehicle Crossing Subsidy |
|
|
|
00052705 |
01/06/2005 |
PC & MG Isaac |
$300.00 |
|
|
|
|
Vehicle Crossing Subsidy |
|
|
|
00052706 |
01/06/2005 |
KR & JJ FOSTER |
$300.00 |
|
|
|
|
Vehicle Crossing Subsidy |
|
|
|
00052707 |
01/06/2005 |
Satterly Wanneroo Pty Ltd |
$24,556.80 |
|
|
|
|
Bond Sub Division The Grove 2D - Ashby |
|
|
|
00052708 |
01/06/2005 |
Wanneroo North Pty Ltd |
$348,817.15 |
|
|
|
|
Sub Division Bond The Grove 6A - Ashby |
|
|
|
00052709 |
01/06/2005 |
Cancelled |
|
|
|
00052710 |
01/06/2005 |
Cancelled |
|
|
|
00052711 |
01/06/2005 |
Wanneroo Senior High School |
$1,125.00 |
|
|
|
|
Scholarship Funds For Laura Chisholm, Jessica Shatford, Natasha Bederson And Tammy Smith |
|
|
|
00052712 |
01/06/2005 |
Mindarie Senior College |
$1,250.00 |
|
|
|
|
Scholarship Funds - 2 Academic And 2 Citizenship Scholarships |
|
|
|
00052713 |
01/06/2005 |
Girrawheen Senior High School |
$1,250.00 |
|
|
|
|
Scholarship Funds - School Scholarship Programme |
|
|
|
00052714 |
01/06/2005 |
Yanchep District High School |
$1,250.00 |
|
|
|
|
2005 Scholarships For Secondary Students |
|
|
|
00052715 |
01/06/2005 |
Clarkson Community High School |
$1,250.00 |
|
|
|
|
Scholarship Funds Encouragement Awards For Year 9 & 10, Academic Awards For Year 11 & 12 |
|
|
|
00052716 |
01/06/2005 |
KartWorld |
$772.50 |
|
|
|
|
Gold Activity 9/06/2005 - Leisure & Library Services |
|
|
|
00052717 |
01/06/2005 |
Jeremy G Thomas |
$48.61 |
|
|
|
|
Rates Refund P/N 155670 - 9B Oldfield Road - Overpayment |
|
|
|
00052718 |
01/06/2005 |
MS & SE Kuljis |
$166.44 |
|
|
|
|
Rates Refund P/N 189955 - 69 Fernchurch Street - Pension Rebate |
|
|
|
00052719 |
01/06/2005 |
GA & MD D'Alesio |
$300.00 |
|
|
|
|
Vehicle Crossing Subsidy |
|
|
|
00052720 |
01/06/2005 |
DM Killen |
$300.00 |
|
|
|
|
Vehicle Crossing Subsidy |
|
|
|
00052721 |
01/06/2005 |
MR Falconer & HZ Liu |
$300.00 |
|
|
|
|
Vehicle Crossing Subsidy |
|
|
|
00052722 |
01/06/2005 |
Edna Scarlett |
$36.00 |
|
|
|
|
Rates Refund P/N 161386 - 1/43 Golders Way - Overpayment |
|
|
|
00052723 |
01/06/2005 |
Our Community Pty Ltd |
$349.00 |
|
|
|
|
Funding Tools Nos. 1 & 2 Raising Funds Newsletter & Easy Grants Newsletter |
|
|
|
00052724 |
01/06/2005 |
Australian Library & Information |
$258.00 |
|
|
|
|
ALIA Membership For Geoff Whyte – Leisure & Library Services |
|
|
|
00052725 |
01/06/2005 |
Champion Compressed Air & Cooling |
$583.55 |
|
|
|
|
Parts & Labour Repairs For Fleet Maintenance |
|
|
|
00052726 |
01/06/2005 |
Cockburn Wetlands Education Centre |
$150.00 |
|
|
|
|
Management Conference Registrations – Attendees B Carter, D O'Neill, N Roach & J Holder - Operations |
|
|
|
00052727 |
01/06/2005 |
Coles Supermarkets Aust Pty Ltd |
$240.97 |
|
|
|
|
Groceries For Community Services |
|
|
|
00052728 |
01/06/2005 |
Collins Craft & School Supplies |
$196.22 |
|
|
|
|
Craft Items For Community Services |
|
|
|
00052729 |
01/06/2005 |
Integrated Group Ltd |
$993.34 |
|
|
|
|
James Doulas - Fleet Maintenance |
|
|
|
00052730 |
01/06/2005 |
Promark Promotions |
$3,104.20 |
|
|
|
|
Mugs 'A' Flare Two Colour Wrap Printing – Marketing Services |
|
|
|
00052731 |
01/06/2005 |
Rowe Scientific Pty Ltd |
$258.39 |
|
|
|
|
Ph Electrode Double Junction Gel - Health Services |
|
|
|
00052732 |
01/06/2005 |
WA Assoc For The Development Of Role Models & Leaders Inc |
$8,800.00 |
|
|
|
|
WA Role Models Program - Community Services |
|
|
|
00052733 |
01/06/2005 |
WA Limestone Company |
$46,386.72 |
|
|
|
|
Limestone Delivered To Various Project Sites – Operational Services |
|
|
|
00052734 |
01/06/2005 |
Integrated Group Ltd |
$8,128.28 |
|
|
|
|
Casual Labour For Various Departments |
|
|
|
00052735 |
01/06/2005 |
Ace Podiatry |
$4,613.40 |
|
|
|
|
Podiatry Services For Various Locations – Community Services |
|
|
|
00052736 |
08/06/2005 |
Office of Multicultural Interests |
$550.00 |
|
|
|
|
Payment Back To The Office Of Multicultural Interests For The Omi Harmony Week - Small Grant Received For The Harmonise Family Concert (Cancelled Due To Inclement Weather) |
|
|
|
00052737 |
08/06/2005 |
Sandra Burr |
$82.54 |
|
|
|
|
Refund Of GST Paid For Aquatic Survival Courses |
|
|
|
00052738 |
08/06/2005 |
Wanneroo Giants Baseball Club |
$100.00 |
|
|
|
|
Bond Refund |
|
|
|
00052739 |
08/06/2005 |
Homeswest |
$200.00 |
|
|
|
|
1 x Ratepayer Financial Assistance |
|
|
|
00052740 |
08/06/2005 |
David Evans Real Estate |
$200.00 |
|
|
|
|
1 x Ratepayer Financial Assistance |
|
|
|
00052741 |
08/06/2005 |
Kylie Robins |
$20.00 |
|
|
|
|
Dog Registration Refund - Sterilised |
|
|
|
00052742 |
08/06/2005 |
Wanneroo North Pty Ltd |
$850,463.35 |
|
|
|
|
Bond Refund - The Grove Stage 4 - Ashby ($309,793.74) & The Grove Stage 5 - Ashby $540,669.61 |
|
|
|
00052743 |
08/06/2005 |
City of Wanneroo |
$6,989.45 |
|
|
|
|
Bond Refund - The Grove Stage 4 - Ashby ($1,742.47) & The Grove Stage 5 - Ashby ($5,246.98) |
|
|
|
00052744 |
08/06/2005 |
DC Bovell |
$300.00 |
|
|
|
|
Vehicle Crossing Subsidy |
|
|
|
00052745 |
08/06/2005 |
BE & P Regan |
$111.75 |
|
|
|
|
Rates Refund P/N 141809 - 7 Newquay Close - Overpayment |
|
|
|
00052746 |
08/06/2005 |
Key Start |
$867.75 |
|
|
|
|
Rates Refund P/N 198934 - 23 Clarafield Meander - Overpayment |
|
|
|
00052747 |
08/06/2005 |
PE, JB, JE & MB Tilbrook |
$2,091.24 |
|
|
|
|
Rates Refund P/N 152876 - 37 Landsdale Road - Overpayment |
|
|
|
00052748 |
08/06/2005 |
PE & JB Tilbrook |
$2,030.86 |
|
|
|
|
Rates Refund P/N 147349 - 42 Landsdale Road - Overpayment |
|
|
|
00052749 |
08/06/2005 |
WC & D Grubb |
$679.65 |
|
|
|
|
Rates Refund P/N 203619 - 33 Belhaven Terrace - Overpayment |
|
|
|
00052750 |
08/06/2005 |
FE & RL Richards |
$364.86 |
|
|
|
|
Rates Refund P/N190163 - 132 Rothesay Heights - Pension Rebate |
|
|
|
00052751 |
08/06/2005 |
Freeway Settlements |
$10.08 |
|
|
|
|
Rates Refund P/N 127513 - 26 Bredgar Way - Rate Refund |
|
|
|
00052752 |
08/06/2005 |
N & JN Flamenco & S Salazar |
$159.32 |
|
|
|
|
Rates Refund P/N 181900 - 26 Burbridge Avenue - Pension Rebate |
|
|
|
00052753 |
08/06/2005 |
IR Ward & DE Booth |
$345.45 |
|
|
|
|
Rates Refund P/N180680 - 26 Decourcey Way - Pension Rebate |
|
|
|
00052754 |
08/06/2005 |
FC Reed |
$291.96 |
|
|
|
|
Rates Refund P/N 173617 - 6 Burnett Drive - Pension Rebate |
|
|
|
00052755 |
08/06/2005 |
GJ Farrell & HSD Huria |
$135.05 |
|
|
|
|
Rates Refund P/N 143439 - 48 Cassilda Way - Pension Rebate |
|
|
|
00052756 |
08/06/2005 |
JE Jones |
$423.76 |
|
|
|
|
Rates Refund P/N 100283 - 6 Wellington Court - Pension Rebate |
|
|
|
00052757 |
08/06/2005 |
Anthony Cary |
$314.00 |
|
|
|
|
Reimbursement Vehicle Repairs Due To Incident With Mower Claim No. 511397, Under Excess Amount Mower Reg. WN32326 |
|
|
|
00052758 |
08/06/2005 |
YG Zinella |
$345.45 |
|
|
|
|
Rates Refund P/N 184039 - 3 Kidston Court - Pension Rebate |
|
|
|
00052759 |
08/06/2005 |
Australian Anglo Burmese Society |
$150.00 |
|
|
|
|
Bond Refund |
|
|
|
00052760 |
08/06/2005 |
The Salvation Army Red |
$159.00 |
|
|
|
|
Donations For The CoW Red Shield Appeal |
|
|
|
00052761 |
08/06/2005 |
Roberta Broomfield |
$20.00 |
|
|
|
|
Dog Registration Refund - Sterilised |
|
|
|
00052762 |
08/06/2005 |
Francine Gloux |
$25.00 |
|
|
|
|
Dog Registration Refund - Deceased |
|
|
|
00052763 |
08/06/2005 |
Craig Saxon |
$57.00 |
|
|
|
|
Dog Registration Refund - Sterilised |
|
|
|
00052764 |
09/06/2005 |
City of Wanneroo |
$869.44 |
|
|
|
|
Payroll Ded: F/Ending 03/06/2005 |
|
|
|
00052765 |
09/06/2005 |
Aboriginal Seniors Group Petty Cash |
$50.00 |
|
|
|
|
Petty Cash |
|
|
|
00052766 |
09/06/2005 |
Alexander Heights Adult Day Care |
$53.20 |
|
|
|
|
Petty Cash |
|
|
|
00052767 |
09/06/2005 |
Alinta Gas |
$2,130.85 |
|
|
|
|
2 X Ratepayer Financial Assistance ($428.55) |
|
|
|
|
|
Relocate Hp Warning Signs & Test – Engineering ($1702.30) |
|
|
|
00052768 |
09/06/2005 |
Amp Flexible Lifetime Super Fund |
$942.31 |
|
|
|
|
Payroll Ded: F/Ending 03/06/2005 |
|
|
|
00052769 |
09/06/2005 |
Australia Post |
$2,031.35 |
|
|
|
|
Merchant Fees For May 2005 - Rating Services |
|
|
|
00052770 |
09/06/2005 |
Building & Construction Industry |
$94,494.05 |
|
|
|
|
Levy Payment Reconciliation For May 2005 |
|
|
|
00052771 |
09/06/2005 |
Muriel Burnaby |
$36.00 |
|
|
|
|
Volunteer Payment |
|
|
|
00052772 |
09/06/2005 |
Digiplus Pty Ltd |
$195.42 |
|
|
|
|
1 x Ratepayer Financial Assistance |
|
|
|
00052773 |
09/06/2005 |
Alan Green |
$20.00 |
|
|
|
|
Volunteer Payment |
|
|
|
00052774 |
09/06/2005 |
Cancelled |
|
|
|
00052775 |
09/06/2005 |
Optus |
$21.49 |
|
|
|
|
Phone Data Contract 21/04/05-20/05/04 - Waste Services |
|
|
|
00052776 |
09/06/2005 |
Patricia Pearman |
$30.00 |
|
|
|
|
Volunteer Payment |
|
|
|
00052777 |
09/06/2005 |
Quinns Rocks Adult Day Care Petty |
$43.25 |
|
|
|
|
Petty Cash |
|
|
|
00052778 |
09/06/2005 |
Trailer Parts Pty Ltd |
$204.41 |
|
|
|
|
Spare Parts - Fleet Maintenance |
|
|
|
00052779 |
09/06/2005 |
Valuer Generals Office |
$5,949.67 |
|
|
|
|
Land Valuations - Rating Services |
|
|
|
00052780 |
09/06/2005 |
Wanneroo Library Petty Cash |
$56.35 |
|
|
|
|
Petty Cash |
|
|
|
00052781 |
09/06/2005 |
Zurich Client Service |
$235.38 |
|
|
|
|
Payroll Ded: F/Ending 03/06/2005 |
|
|
|
00052782 |
09/06/2005 |
City of Wanneroo - Aquamotion |
$301.00 |
|
|
|
|
Payroll Ded: F/Ending 03/06/2005 |
|
|
|
00052783 |
09/06/2005 |
City of Wanneroo - Rates |
$2,188.00 |
|
|
|
|
Payroll Ded: F/Ending 03/06/2005 |
|
|
|
00052784 |
09/06/2005 |
City of Wanneroo - Limited Use |
$400.00 |
|
|
|
|
Payroll Ded: F/Ending 03/06/2005 |
|
|
|
00052785 |
09/06/2005 |
Western Power |
$236.00 |
|
|
|
|
2 X Ratepayer Financial Assistance |
|
|
|
00052786 |
09/06/2005 |
Telstra |
$279.84 |
|
|
|
|
2 X Ratepayer Financial Assistance |
|
|
|
00052787 |
09/06/2005 |
Farley Campbell |
$25.00 |
|
|
|
|
Volunteer Payment |
|
|
|
00052788 |
09/06/2005 |
Van Thai Nguyen |
$24.00 |
|
|
|
|
Volunteer Payment |
|
|
|
00052789 |
09/06/2005 |
Alexander Heights Community House |
$97.15 |
|
|
|
|
Petty Cash |
|
|
|
00052790 |
09/06/2005 |
Mr D Smith |
$105.00 |
|
|
|
|
Volunteer Payment |
|
|
|
00052791 |
09/06/2005 |
Gordon Sadler |
$54.00 |
|
|
|
|
Volunteer Payment |
|
|
|
00052792 |
09/06/2005 |
Telstra |
$1,230.48 |
|
|
|
|
New Line To Mobile Library - Shopping Centre Carpark, Landsdale – Operations |
|
|
|
00052793 |
09/06/2005 |
Mrs D A Nolan |
$80.00 |
|
|
|
|
Reimbursement For Luncheon With Belmont Library For ‘Finding My Place’ Funding At Leap Frogs Cafe – Library Services |
|
|
|
00052794 |
09/06/2005 |
Dale Sutherland |
$15.00 |
|
|
|
|
Volunteer Payment |
|
|
|
00052795 |
08/06/2005 |
J Blackwood & Son Ltd |
$603.79 |
|
|
|
|
Trolley Lift Scissor Hydraulic - Wanneroo Library |
|
|
|
00052796 |
08/06/2005 |
Mindarie Betta Electrical & Gas |
$1,645.00 |
|
|
|
|
Fridge/Oven - Clarkson Library |
|
|
|
00052797 |
08/06/2005 |
State Library of Western Australia |
$243.10 |
|
|
|
|
Bookstock - Clarkson Library |
|
|
|
00052798 |
08/06/2005 |
Teletronics |
$174.90 |
|
|
|
|
Head Set - Waste Services |
|
|
|
00052799 |
08/06/2005 |
WA Limestone Company |
$33.42 |
|
|
|
|
75Mm Limestone Delivered To Joondalup Dve |
|
|
|
00052800 |
08/06/2005 |
Integrated Group Ltd |
$11,037.74 |
|
|
|
|
Casual Labour For Various Departments |
|
|
|
00052801 |
08/06/2005 |
Councillor F Cvitan |
$1,033.06 |
|
|
|
|
Travel Allowance Dec04 - May05 |
|
|
|
00052802 |
01/06/2005 |
Dept For Planning & Infrastructure |
$497.00 |
|
|
|
|
Annual Bus Licensing Inspections - Fleet Services |
|
|
|
00052803 |
08/06/2005 |
Dept For Planning & Infrastructure |
$10.00 |
|
|
|
|
Annual Bus Licensing Inspections – Fleet Services |
|
|
|
00052804 |
08/06/2005 |
Main Roads |
$295.81 |
|
|
|
|
Vehicle Permit 97690 – Fleet Services |
|
|
|
00052805 |
09/06/2005 |
Fred Neal |
$1,375.00 |
|
|
|
|
Eco Detour Program 27/04/05 - Economic Development |
|
|
|
00052806 |
15/06/2005 |
A Mannino |
$315.01 |
|
|
|
|
Rates Refund P/N 199001 - 5 Kingsway Madeley - Pension Rebate |
|
|
|
00052807 |
15/06/2005 |
Helen Bishop |
$101.42 |
|
|
|
|
Rates Refund P/N 136421 - 29 Frederick Street - Property Sale |
|
|
|
00052808 |
15/06/2005 |
Freeway Settlements |
$30.00 |
|
|
|
|
Rates Refund P/N 157918 - Unit 23, 15 Mereworth Way – Property Sale |
|
|
|
00052809 |
15/06/2005 |
LA & AJ Eversden |
$260.00 |
|
|
|
|
Vehicle Crossing Subsidy |
|
|
|
00052810 |
15/06/2005 |
D & G Scriva |
$300.00 |
|
|
|
|
Vehicle Crossing Subsidy |
|
|
|
00052811 |
15/06/2005 |
Gerald F Cooper |
$300.00 |
|
|
|
|
Vehicle Crossing Subsidy |
|
|
|
00052812 |
15/06/2005 |
J Middlebrook & TJ Farnell |
$300.00 |
|
|
|
|
Vehicle Crossing Subsidy |
|
|
|
00052813 |
15/06/2005 |
Gregory N Halton |
$300.00 |
|
|
|
|
Vehicle Crossing Subsidy |
|
|
|
00052814 |
15/06/2005 |
AG & CM Crook |
$300.00 |
|
|
|
|
Vehicle Crossing Subsidy |
|
|
|
00052815 |
15/06/2005 |
KG & EM OLDING |
$300.00 |
|
|
|
|
Vehicle Crossing Subsidy |
|
|
|
00052816 |
15/06/2005 |
Ilo & Ilinka Sukoski |
$300.00 |
|
|
|
|
Vehicle Crossing Subsidy |
|
|
|
00052817 |
15/06/2005 |
DR & J Wheeler |
$300.00 |
|
|
|
|
Vehicle Crossing Subsidy |
|
|
|
00052818 |
15/06/2005 |
Carmen M Dance |
$300.00 |
|
|
|
|
Vehicle Crossing Subsidy |
|
|
|
00052819 |
15/06/2005 |
VL Young |
$300.00 |
|
|
|
|
Vehicle Crossing Subsidy |
|
|
|
00052820 |
15/06/2005 |
DA & SJ Booker |
$300.00 |
|
|
|
|
Vehicle Crossing Subsidy |
|
|
|
00052821 |
15/06/2005 |
A Whitehead |
$300.00 |
|
|
|
|
Vehicle Crossing Subsidy |
|
|
|
00052822 |
15/06/2005 |
J & JC Walker |
$300.00 |
|
|
|
|
Vehicle Crossing Subsidy |
|
|
|
00052823 |
15/06/2005 |
Kingsway Residents Association |
$500.00 |
|
|
|
|
Donation To Assist With Parking Of Patrons At City’s Live Concert - Cultural Development |
|
|
|
00052824 |
15/06/2005 |
Simone Pocisdio |
$500.00 |
|
|
|
|
Bond Refund |
|
|
|
00052825 |
15/06/2005 |
Cancelled |
$0.00 |
|
|
00052826 |
15/06/2005 |
Rosalyn Emery |
$500.00 |
|
|
|
|
Bond Refund |
|
|
|
00052827 |
15/06/2005 |
Ballajura Junior Football Club |
$500.00 |
|
|
|
|
Bond Refund |
|
|
|
00052828 |
15/06/2005 |
Leanne Germain |
$300.00 |
|
|
|
|
Bond Refund |
|
|
|
00052829 |
15/06/2005 |
Montavista Pty Ltd |
$33,500.00 |
|
|
|
|
Sub Division - Lot 33 Landsdale Road, Darch |
|
|
|
00052830 |
15/06/2005 |
BA Martinvich |
$300.00 |
|
|
|
|
Vehicle Crossing Subsidy |
|
|
|
00052831 |
15/06/2005 |
K Raffa & JVL Di Giulio |
$62.43 |
|
|
|
|
Rates Refund P/N 166603 - 2 Perrin Crest - Pension Rebate |
|
|
|
00052832 |
15/06/2005 |
K Dickson & BJ Gordon |
$138.19 |
|
|
|
|
Rates Refund P/N 136049 - 14 Elizabeth Road - Pension Rebate |
|
|
|
00052833 |
15/06/2005 |
S Rizk |
$48.92 |
|
|
|
|
Rates Refund P/N 186830 - 9 Wedgetail Ramble - Pension Rebate |
|
|
|
00052834 |
15/06/2005 |
EG Bostwick |
$286.41 |
|
|
|
|
Rates Refund P/N 154108 - 15 Rickmann Place - Pension Rebate |
|
|
|
00052835 |
15/06/2005 |
LM Evans & ME & AE Armstrong |
$235.32 |
|
|
|
|
Rates Refund P/N 175787 - 19 Allum Green - Pension Rebate |
|
|
|
00052836 |
15/06/2005 |
DM Perks |
$286.40 |
|
|
|
|
Rates Refund P/N 112261 - 74 Danbury Crescent - Pension Rebate |
|
|
|
00052837 |
15/06/2005 |
DM & JM Jacinto & JM O'Connor |
$108.90 |
|
|
|
|
Rates Refund P/N 161190 - 10 Ballina Close - Pension Rebate |
|
|
|
00052838 |
15/06/2005 |
DP & JP Marris |
$285.63 |
|
|
|
|
Rates Refund P/N 147204 - 2 Tenet Court - Pension Rebate |
|
|
|
00052839 |
15/06/2005 |
NF & PD Chapman |
$239.01 |
|
|
|
|
Rates Refund P/N 141646 - 26 Sunningdale Road - Pension Rebate |
|
|
|
00052840 |
15/06/2005 |
EA Rutherford |
$279.52 |
|
|
|
|
Rates Refund P/N 159485 - 1/81 Azelia Street - Pension Rebate |
|
|
|
00052841 |
15/06/2005 |
F Arrigo |
$481.90 |
|
|
|
|
Rates Refund P/N 194182 - 57 Gnangara Road - Pension Rebate |
|
|
|
00052842 |
15/06/2005 |
DOMINIC LENZO |
$300.00 |
|
|
|
|
Bond Refund |
|
|
|
00052843 |
15/06/2005 |
T Fazari & SC Steffens |
$300.00 |
|
|
|
|
Vehicle Crossing Subsidy |
|
|
|
00052844 |
15/06/2005 |
IT Kaszaniczky |
$300.00 |
|
|
|
|
Vehicle Crossing Subsidy |
|
|
|
00052845 |
15/06/2005 |
A & LDM Daniels |
$300.00 |
|
|
|
|
Vehicle Crossing Subsidy |
|
|
|
00052846 |
15/06/2005 |
CL Nicholson-Green & SD Nicholson |
$300.00 |
|
|
|
|
Vehicle Crossing Subsidy |
|
|
|
00052847 |
15/06/2005 |
Nancy Bannister |
$300.00 |
|
|
|
|
Bond Refund |
|
|
|
00052848 |
15/06/2005 |
City of Wanneroo |
$2,339.15 |
|
|
|
|
Transfer To Category 4 City Of Wanneroo |
|
|
|
00052849 |
15/06/2005 |
Illinois Pty Ltd |
$424.65 |
|
|
|
|
Rates Refund P/N 205851 - 19 Backshall Place - Over Payment |
|
|
|
00052850 |
15/06/2005 |
JOHN CLARK |
$300.00 |
|
|
|
|
Bond Refund |
|
|
|
00052851 |
15/06/2005 |
Environmental Defender's Office (WA) |
$120.00 |
|
|
|
|
EDO Conference Registration Water Law Conference |
|
|
|
|
|
Sustainability Workshop I Bignell 8/7/05 |
|
|
|
00052852 |
15/06/2005 |
Duncan Stewart |
$500.00 |
|
|
|
|
Bond Refund |
|
|
|
00052853 |
15/06/2005 |
Cusma Property Group |
$200.00 |
|
|
|
|
1 x Ratepayer Financial Assistance |
|
|
|
00052854 |
15/06/2005 |
Johnson Property Group |
$280.00 |
|
|
|
|
1 x Ratepayer Financial Assistance |
|
|
|
00052855 |
15/06/2005 |
Jeanette Toomey |
$15.00 |
|
|
|
|
Dog Registration Refund - Overpayment |
|
|
|
00052856 |
15/06/2005 |
SR Brown |
$15.00 |
|
|
|
|
Dog Registration Refund - Overpayment |
|
|
|
00052857 |
15/06/2005 |
Charles Rawlins Tae Kwon Do |
$50.00 |
|
|
|
|
Bond Refund |
|
|
|
00052858 |
15/06/2005 |
Sean Greenacre |
$20.00 |
|
|
|
|
Dog Registration Refund - Sterilised |
|
|
|
00052859 |
15/06/2005 |
George Lilly |
$6.00 |
|
|
|
|
Dog Registration Refund - Deceased |
|
|
|
00052860 |
15/06/2005 |
Petrina Tewes |
$7.50 |
|
|
|
|
Dog Registration Refund - Overpayment |
|
|
|
00052861 |
15/06/2005 |
Cancelled |
|
|
|
00052862 |
15/06/2005 |
Patanal Pty Ltd |
$11,550.00 |
|
|
|
|
Subdivision Bond For Parkmore Ridge Stage 4 |
|
|
|
00052863 |
15/06/2005 |
Cancelled |
$0.00 |
|
|
00052864 |
15/06/2005 |
Canon Australia Pty Ltd |
$18,332.60 |
|
|
|
|
Canon High Speed Document Scanner – I.T. Services |
|
|
|
00052865 |
15/06/2005 |
FCT Surface Cleaning |
$825.00 |
|
|
|
|
Clean Brickpaving - Dundebar Road & Rocca Way - Operations |
|
|
|
00052866 |
15/06/2005 |
Iain Summerlin Audiologist |
$192.50 |
|
|
|
|
Audiological Assessment - R Henke |
|
|
|
00052867 |
15/06/2005 |
Jaguars Softball Club Inc |
$75.00 |
|
|
|
|
Fund Raising Sausage Sizzle - Leisure & Library Services |
|
|
|
00052868 |
15/06/2005 |
JB Precise Engineering |
$2,530.00 |
|
|
|
|
Spare Parts - Fleet Maintenance |
|
|
|
00052869 |
15/06/2005 |
Lawn Doctor |
$18,584.12 |
|
|
|
|
Supply And Apply SOA Fertiliser To 249 Ha For Parks |
|
|
|
00052870 |
15/06/2005 |
NSC Corporate Property Consultants |
$2,394.93 |
|
|
|
|
Base Rent 1/06/05 - 30/06/05 - Wanneroo Library |
|
|
|
00052871 |
15/06/2005 |
Officeworks |
$1,364.95 |
|
|
|
|
Office Furniture For Wanneroo Youth Centre - Youth Services |
|
|
|
00052872 |
15/06/2005 |
Shenton Enterprises Pty Ltd |
$11.06 |
|
|
|
|
Impellor Tube - Aquamotion |
|
|
|
00052873 |
15/06/2005 |
Swan Tafe |
$197.52 |
|
|
|
|
Certificate II In Horticulture Enrolment Fees For C Turnball – Operational Services |
|
|
|
00052874 |
15/06/2005 |
Integrated Group Ltd |
$10,181.39 |
|
|
|
|
Casual Labour For Various Departments |
|
|
|
00052875 |
15/06/2005 |
City of Wanneroo |
$293.54 |
|
|
|
|
Payroll Ded: F/Ending 10-13/06/2005 |
|
|
|
00052876 |
15/06/2005 |
Aboriginal Playgroup Cash Float |
$99.75 |
|
|
|
|
Petty Cash |
|
|
|
00052877 |
15/06/2005 |
Aboriginal Seniors Group Petty Cash |
$50.00 |
|
|
|
|
Petty Cash |
|
|
|
00052878 |
15/06/2005 |
Alexander Heights Adult Day Care |
$47.35 |
|
|
|
|
Petty Cash |
|
|
|
00052879 |
15/06/2005 |
Alinta Gas |
$7,897.00 |
|
|
|
|
Gas Supplies For Various Sites |
|
|
|
|
|
1 x Rate Payer Financial Assistance ($155.70) |
|
|
|
00052880 |
15/06/2005 |
Australia Post |
$1,435.32 |
|
|
|
|
Postage Charges |
|
|
|
00052881 |
15/06/2005 |
Australian Institute of Project |
$275.00 |
|
|
|
|
AIPM Membership Renewal For 2005/06 For G Whyte – Leisure & Library Services |
|
|
|
00052882 |
15/06/2005 |
Buckingham House Petty Cash |
$86.90 |
|
|
|
|
Petty Cash |
|
|
|
00052883 |
15/06/2005 |
Clarkson Youth Centre Petty Cash |
$197.90 |
|
|
|
|
Petty Cash |
|
|
|
00052884 |
15/06/2005 |
Community Development Support |
$199.20 |
|
|
|
|
Petty Cash |
|
|
|
00052885 |
15/06/2005 |
Corporate Services Petty Cash |
$844.15 |
|
|
|
|
Petty Cash |
|
|
|
00052886 |
15/06/2005 |
Customer Service Council Inc |
$165.00 |
|
|
|
|
Bench Marking Tour 12/7/2005 For H Smallwood - Marketing Services |
|
|
|
00052887 |
15/06/2005 |
Department Of Land Information |
$472.20 |
|
|
|
|
Additions To GRV Area - Rating Services |
|
|
|
|
|
Land Searches – Rating Services & Planning Services |
|
|
|
00052888 |
15/06/2005 |
EA Books |
$39.35 |
|
|
|
|
Book Purchase (Shut Up And Listen) - Infrastructure Services |
|
|
|
00052889 |
15/06/2005 |
Girrawheen Library Petty Cash |
$202.90 |
|
|
|
|
Petty Cash |
|
|
|
00052890 |
15/06/2005 |
Gloucester Lodge Museum Petty Cash |
$61.85 |
|
|
|
|
Petty Cash |
|
|
|
00052891 |
15/06/2005 |
KW Inns & KF Penno |
$6,230.98 |
|
|
|
|
Contract Fees For May 2005 & Reimbursement of Expenditure For Quinns Caravan Park - Contracts & Property |
|
|
|
00052892 |
15/06/2005 |
LGMA National Congress |
$150.00 |
|
|
|
|
Congress & Business Expo 2005 Canberra May 05 - B Carter |
|
|
|
00052893 |
15/06/2005 |
Michael Hayes |
$40.00 |
|
|
|
|
Key Holder For Cockman House |
|
|
|
00052894 |
15/06/2005 |
Quinns Rocks Adult Day Care Petty |
$57.60 |
|
|
|
|
Petty Cash |
|
|
|
00052895 |
15/06/2005 |
Rangers & Safety Services Petty |
$114.70 |
|
|
|
|
Petty Cash |
|
|
|
00052896 |
15/06/2005 |
State Housing Commission & UPL WA |
$437.40 |
|
|
|
|
Rates Refund P/N207380 - 17 Boranup Avenue - Due To Overpayment |
|
|
|
00052897 |
15/06/2005 |
Valuer Generals Office |
$4,636.52 |
|
|
|
|
Valuations - Rating Services |
|
|
|
00052898 |
15/06/2005 |
Wanneroo Youth Centre Petty Cash |
$88.85 |
|
|
|
|
Petty Cash |
|
|
|
00052899 |
15/06/2005 |
Water Corporation |
$5,403.55 |
|
|
|
|
Water Supplies To Various Locations |
|
|
|
|
|
3 x Ratepayer Financial Assistance ($561.80) |
|
|
|
00052900 |
15/06/2005 |
Yanchep Community House Petty Cash |
$85.50 |
|
|
|
|
Petty Cash |
|
|
|
00052901 |
15/06/2005 |
City of Wanneroo - Rates |
$60.00 |
|
|
|
|
Payroll Ded: F/Ending 10/06/2005 |
|
|
|
00052902 |
15/06/2005 |
Western Power |
$135,295.25 |
|
|
|
|
Power Supplies To Various Locations ($17,739.20) |
|
|
|
|
|
Streetlighting 24/4 - 24/5/05 ($117,106.70) |
|
|
|
|
|
5 x Ratepayer Financial Assistance ($449.35) |
|
|
|
00052903 |
15/06/2005 |
Telstra |
$123.51 |
|
|
|
|
2 x Ratepayer Financial Assistance |
|
|
|
00052904 |
15/06/2005 |
Alexander Heights Community House |
$68.10 |
|
|
|
|
Petty Cash |
|
|
|
00052905 |
15/06/2005 |
Australia Post |
$1,716.00 |
|
|
|
|
Mail Preparation For May 2005 |
|
|
|
00052906 |
15/06/2005 |
Dept Housing & works |
$174.95 |
|
|
|
|
1 x Ratepayer Financial Assistance |
|
|
|
00052907 |
15/06/2005 |
Zurich Aust Insurance Ltd |
$500.00 |
|
|
|
|
Insurance Excess Payment For Vehicle WN32011 |
|
|
|
00052908 |
15/06/2005 |
Sustainable Transport Coalition WA |
$150.00 |
|
|
|
|
Forum On Transport In A Network City 23/06/05 – Attendee R Korenhof & G Miles |
|
|
|
00052909 |
15/06/2005 |
Ms M Barker |
$99.00 |
|
|
|
|
Reimbursement For CD Purchases For Corporate Library |
|
|
|
00052910 |
16/06/2005 |
Cancelled |
|
|
|
00052911 |
16/06/2005 |
TF Davies |
$300.00 |
|
|
|
|
Vehicle Crossing Subsidy |
|
|
|
00052912 |
10/06/2005 |
Troy Parson |
$259.00 |
|
|
|
|
Bond Refund |
|
|
|
00052913 |
20/06/2005 |
Councillor A Blencowe |
$500.00 |
|
|
|
|
Councillors Allowance |
|
|
|
00052914 |
20/06/2005 |
Councillor F Cvitan |
$500.00 |
|
|
|
|
Councillors Allowance |
|
|
|
00052915 |
20/06/2005 |
Cr Dorothy Newton |
$500.00 |
|
|
|
|
Councillors Allowance |
|
|
|
00052916 |
20/06/2005 |
Councillor S Salpietro |
$1,125.00 |
|
|
|
|
Monthly Allowance |
|
|
|
00052917 |
20/06/2005 |
Councillor J Stewart |
$500.00 |
|
|
|
|
Monthly Allowance |
|
|
|
00052918 |
20/06/2005 |
City of Wanneroo - Rates |
$200.00 |
|
|
|
|
Mayoral Allowance ($200.00) – Mayor J Kelly’s Rates |
|
|
|
00052919 |
20/06/2005 |
Councillor Colin Hughes |
$500.00 |
|
|
|
|
Councillors Allowance |
|
|
|
00052920 |
26/06/2005 |
A & J Salamone |
$35.20 |
|
|
|
|
Plaster Sand For Rawlinson Drive - Engineering Services |
|
|
|
00052921 |
26/06/2005 |
A & L Carpentry |
$90.20 |
|
|
|
|
Supply Tylo Thermometer For Sauna At Aquamotion |
|
|
|
00052922 |
26/06/2005 |
Abandoned Art |
$165.00 |
|
|
|
|
Temporary Tattoo Show At Anthony Warring Reserve Event – Community Services |
|
|
|
00052923 |
26/06/2005 |
Acoolah Hats |
$544.50 |
|
|
|
|
Safety Hats For Stores Stock |
|
|
|
00052924 |
26/06/2005 |
Add Value Promotions |
$8,225.00 |
|
|
|
|
Drink Bottles - Leisure & Library Services |
|
|
|
00052925 |
26/06/2005 |
Adelphi Tailoring Company |
$1,683.00 |
|
|
|
|
15 Pairs Trousers – Ranger Services |
|
|
|
00052926 |
26/06/2005 |
Adshel Street Furniture Pty Ltd |
$2,750.00 |
|
|
|
|
Advertising On Bus Shelter - Art Awards |
|
|
|
00052927 |
26/06/2005 |
Alchemy Technology |
$8,053.00 |
|
|
|
|
Software Maintenance & Package -Community Services |
|
|
|
00052928 |
26/06/2005 |
Allwest Turfing |
$33,704.00 |
|
|
|
|
Reconstruction Of Bunkers At Carramar Golf Course – Operations ($32,824.00) |
|
|
|
|
|
Supply & Lay Roll-On Turf At Carramar Golf Course - Parks ($880.00) |
|
|
|
00052929 |
26/06/2005 |
Amerex Fire |
$165.00 |
|
|
|
|
Fire Extinguish - Library Services |
|
|
|
00052930 |
26/06/2005 |
Ann O'Brien Consulting |
$825.00 |
|
|
|
|
Disability Access Audit - Carramar Community Centre |
|
|
|
00052931 |
26/06/2005 |
APMM Group |
$525.00 |
|
|
|
|
CP01 Principles Contract Management Course For D Elliott – Contracts & Property |
|
|
|
00052932 |
26/06/2005 |
Atkins Carlyle Ltd |
$119.94 |
|
|
|
|
Reflective Tape – Fleet Services |
|
|
|
|
|
Poly Strapping For Engineering Construction |
|
|
|
00052933 |
26/06/2005 |
Aust Drug Foundation |
$360.95 |
|
|
|
|
Various Items Purchased For Preventing Drug Problems - Youth Services |
|
|
|
00052934 |
26/06/2005 |
Aust Inst of Environmental Health |
$2,770.00 |
|
|
|
|
Conference Registration – Attendees B Kelly, G Spicer, D Shimmin, J Chuah, E French, T Doncon, P Wesley -Development & Health Services |
|
|
|
|
|
Advertising AIEH Website For EHO Vacant Position - Health Services |
|
|
|
00052935 |
26/06/2005 |
Australian Marketing Institute |
$236.50 |
|
|
|
|
Membership To Australian Marketing 1/09/05 - 31/08/06 |
|
|
|
00052936 |
26/06/2005 |
Auto Door Systems |
$379.50 |
|
|
|
|
Rubek Door Not Locking - Clarkson Library |
|
|
|
00052937 |
26/06/2005 |
Beaumaris Family Practice |
$165.00 |
|
|
|
|
Medical For Volunteer Fire Fighters - C Yexley & D Yexley - Ranger Services |
|
|
|
00052938 |
26/06/2005 |
Benara Nurseries |
$15,841.10 |
|
|
|
|
Various Plants - Parks |
|
|
|
00052939 |
26/06/2005 |
Bev Manning |
$270.00 |
|
|
|
|
9 Exercise Classes - Community Services |
|
|
|
00052940 |
26/06/2005 |
Big W |
$1,112.27 |
|
|
|
|
Assorted Supplies For Various Community Services Programs |
|
|
|
|
|
Sony Portable CD Tape Radio For Aquamotion |
|
|
|
00052941 |
26/06/2005 |
Bob Tomlins Consulting |
$10,365.00 |
|
|
|
|
Review Of Aged & Disability Services At Yanchep/Two Rocks |
|
|
|
00052942 |
26/06/2005 |
Book City Ocean Keys |
$991.43 |
|
|
|
|
Book Purchases - Library Services |
|
|
|
00052943 |
26/06/2005 |
Bosch Rexroth Pty Ltd |
$579.59 |
|
|
|
|
Joystick Repairs - Fleet Maintenance |
|
|
|
00052944 |
26/06/2005 |
Braille Tactile Paving |
$3,379.20 |
|
|
|
|
Supply & Install Tactile Surface - Engineering Construction |
|
|
|
00052945 |
26/06/2005 |
Burswood Honda |
$1,541.60 |
|
|
|
|
Licence & Stamp Duty Incorrect Taken Off Invoice For 05 Honda Civic Hybrid 1BXO553 |
|
|
|
00052946 |
26/06/2005 |
C & EM Harmer |
$175.72 |
|
|
|
|
Newspaper Deliveries For Various Departments |
|
|
|
00052947 |
26/06/2005 |
CCI Training Service |
$297.00 |
|
|
|
|
Support Staff Survival Kit 10/05/05 – Attendee A Binnie - Corporate Services |
|
|
|
00052948 |
26/06/2005 |
CE Nicholls & Son Pty Ltd |
$7,792.40 |
|
|
|
|
Swimming Pool Inspections 27/05/05 - Health Services |
|
|
|
00052949 |
26/06/2005 |
Chamber of Commerce & Industry |
$22,856.87 |
|
|
|
|
CCI Annual Membership Subscription – Corporate Resources |
|
|
|
00052950 |
26/06/2005 |
City Farmers |
$77.00 |
|
|
|
|
Straw Bale For CoW Staff Conference - Marketing Services |
|
|
|
00052951 |
26/06/2005 |
City of Joondalup |
$18,875.66 |
|
|
|
|
Refund For Returned Book - Library Services ($6.60) |
|
|
|
|
|
Lost Damaged Book Charges - Library Services ($45.10) |
|
|
|
|
|
Two-Way Radio Communication Line – I.T. Services ($110.10) |
|
|
|
|
|
Hire Of Cherry Picker - Parks ($1,976.08) |
|
|
|
|
|
SLA Courier For May 2005 ($8,368.89) |
|
|
|
|
|
Service Level Agreement - April & May 2005 ($8,368.89) |
|
|
|
00052952 |
26/06/2005 |
City of Stirling |
$4,068.60 |
|
|
|
|
Valuation Service For Lot 118 Mindarie |
|
|
|
|
|
Advertising Service For Lot 118 Mindarie Business Plan - |
|
|
|
|
|
Legal Fees For Lot 118 Mindarie |
|
|
|
|
|
Town Planning Services For Lot 118 Mindarie |
|
|
|
00052953 |
26/06/2005 |
Coates Hire Operations Pty Ltd |
$2,161.11 |
|
|
|
|
Solar Powered Arrow Board - Parks |
|
|
|
|
|
Crash Barriers - Engineering Construction |
|
|
|
00052954 |
26/06/2005 |
Coles Supermarkets Aust Pty Ltd |
$618.36 |
|
|
|
|
Groceries For Aboriginal Seniors Group |
|
|
|
|
|
Groceries For Function At Alexander Heights Community Centre |
|
|
|
|
|
Groceries For Community Services |
|
|
|
00052955 |
26/06/2005 |
Collins Craft & School Supplies |
$1,000.00 |
|
|
|
|
Craft Items For Clarkson Library |
|
|
|
00052956 |
26/06/2005 |
Collins Whitford City |
$1,605.20 |
|
|
|
|
Book Purchases - Library Services |
|
|
|
00052957 |
26/06/2005 |
Concert & Corporate Productions |
$377.98 |
|
|
|
|
Hire Plasma Screen & Stand 2 - 3/05/05 – Cultural Services |
|
|
|
00052958 |
26/06/2005 |
Contis Restaurant |
$1,600.00 |
|
|
|
|
Beveridges For Civic Functions & Staff Conference |
|
|
|
00052959 |
26/06/2005 |
Cottman Australia |
$28.05 |
|
|
|
|
Aquim Gel - Community Services |
|
|
|
00052960 |
26/06/2005 |
Co-Working Solutions - Business |
$4,070.00 |
|
|
|
|
WALGA North Zone Workshop Facilitation & Report 2-3/06/05 - Strategic Planning |
|
|
|
00052961 |
26/06/2005 |
Cranetech |
$324.50 |
|
|
|
|
Hose Reel Repair - Fleet Maintenance |
|
|
|
00052962 |
26/06/2005 |
CSBP Limited |
$482.79 |
|
|
|
|
Liquid Chlorine - Aquamotion |
|
|
|
00052963 |
26/06/2005 |
CSL Limited |
$2,371.60 |
|
|
|
|
Flu Vaccine - Health Services |
|
|
|
00052964 |
26/06/2005 |
David Golf & Engineering Pty Ltd |
$602.25 |
|
|
|
|
Lattic Bin - Parks |
|
|
|
00052965 |
26/06/2005 |
Dewsons - Merriwa |
$311.37 |
|
|
|
|
Groceries - Community Services |
|
|
|
00052966 |
26/06/2005 |
Dewsons Wanneroo |
$250.75 |
|
|
|
|
Groceries - Community Services - Waste Services |
|
|
|
00052967 |
26/06/2005 |
Direct Door Service |
$407.00 |
|
|
|
|
Repair Roller Door Wangara Recycling Facility - Waste Services |
|
|
|
00052968 |
26/06/2005 |
Dymocks - Hay St |
$1,252.92 |
|
|
|
|
Book Purchases - Library Services |
|
|
|
00052969 |
26/06/2005 |
Echelon Australia Pty Ltd |
$1,155.00 |
|
|
|
|
Internal Training Courses ‘Time Management’ 2/05/05 ‘Motivate & Maximise Performance’ & ‘Bullying’ 11/05/05 & 18/05/05 |
|
|
|
00052970 |
26/06/2005 |
Edgewater Veterinary Hospital |
$1,173.00 |
|
|
|
|
Euthanasia Of 50 Dogs - Ranger Services |
|
|
|
|
|
Pharmaceuticals & Vet Consultations For Dogs - Ranger Services |
|
|
|
00052971 |
26/06/2005 |
Eldar Care Services |
$424.00 |
|
|
|
|
Exercise Videos - Aged Day Care |
|
|
|
|
|
Set Of Exercise Videos - Over 55'S - Library Services |
|
|
|
00052972 |
26/06/2005 |
Elite Badges |
$135.85 |
|
|
|
|
FESA Name Badges - Ranger Services |
|
|
|
00052973 |
26/06/2005 |
Express Towing Services |
$660.00 |
|
|
|
|
Vehicle Towing To Depot - Fleet Maintenance |
|
|
|
00052974 |
26/06/2005 |
FOO HUA Chinese Restaurant |
$256.90 |
|
|
|
|
Meals For Brigade EMT Meeting - Ranger Services |
|
|
|
00052975 |
26/06/2005 |
Friction Control |
$137.50 |
|
|
|
|
Spare Parts - Fleet Maintenance |
|
|
|
00052976 |
26/06/2005 |
G C Sales |
$127,116.00 |
|
|
|
|
Mobile Garbage Bins - Waste Services |
|
|
|
00052977 |
26/06/2005 |
Gibsons & Paterson WA Pty Ltd |
$705.38 |
|
|
|
|
Crockery For Alexander Heights Community Centre |
|
|
|
|
|
Dinnerware For Community Services |
|
|
|
00052978 |
26/06/2005 |
GKS Fibreglass Pty Ltd |
$2,084.50 |
|
|
|
|
Repair Water Tank - Fleet Maintenance |
|
|
|
00052979 |
26/06/2005 |
Glenfords Tool Centre |
$328.90 |
|
|
|
|
Impulse Cordless Drill – Fleet Maintenance |
|
|
|
00052980 |
26/06/2005 |
Gloria R Cnapich |
$90.00 |
|
|
|
|
Entertainment At Alexander Heights Community Centre 26/05/05 |
|
|
|
00052981 |
26/06/2005 |
Greenes Tyre & Brake Service |
$481.00 |
|
|
|
|
Supply & Fit 4 New Tyres/Wheel Alignment - Fleet Maintenance |
|
|
|
00052982 |
26/06/2005 |
Harvey Norman |
$447.80 |
|
|
|
|
2 X Brother Fax Machines – I.T. Services |
|
|
|
00052983 |
26/06/2005 |
Hewlett Packard |
$322.30 |
|
|
|
|
HP Laserjet 4100TN Printer – I.T. Services |
|
|
|
00052984 |
26/06/2005 |
Imagine That Entertainment |
$150.00 |
|
|
|
|
Balloon Modelling Clown Easter Eggscapade - Safer Citizens Program Event |
|
|
|
00052985 |
26/06/2005 |
J & K Hopkins |
$586.00 |
|
|
|
|
Shelving For Books On Wheels |
|
|
|
00052986 |
26/06/2005 |
J Shed Ceramic Art Studio |
$6,600.00 |
|
|
|
|
Ferrara Reserve Community Artworks - Cultural Services |
|
|
|
00052987 |
26/06/2005 |
Jacksons Drawing Supplies Pty Ltd |
$174.48 |
|
|
|
|
Art Supplies For Italian Group - Community Services |
|
|
|
00052988 |
26/06/2005 |
Japanese Truck & Bus Spares |
$267.50 |
|
|
|
|
Engine Oil - Fleet Maintenance |
|
|
|
00052989 |
26/06/2005 |
JB Hi Fi Group Pty Ltd |
$2,805.23 |
|
|
|
|
CD And DVD Purchases - Library Services |
|
|
|
00052990 |
26/06/2005 |
JB Precise Engineering |
$3,603.60 |
|
|
|
|
Spare Parts - Fleet Maintenance |
|
|
|
00052991 |
26/06/2005 |
Joanne James |
$1,700.00 |
|
|
|
|
MC Duties At Various Events - Ranger Services |
|
|
|
00052992 |
26/06/2005 |
Joondalup Cycle City |
$66.00 |
|
|
|
|
Gift Vouchers - Community Service |
|
|
|
00052993 |
26/06/2005 |
Joseph Dahdah & Company |
$1,136.30 |
|
|
|
|
Pilot Shirts – Ranger Services |
|
|
|
00052994 |
26/06/2005 |
Cancelled |
|
|
|
00052995 |
26/06/2005 |
Jurgen Lunsmann Photography |
$4,566.90 |
|
|
|
|
Reprints Of Photos For Quinns Adult Day Care Seniors Week |
|
|
|
|
|
Photography For Art Awards 2/05/05 |
|
|
|
|
|
Photography Of New Houses & Vacant Land – Marketing Services |
|
|
|
|
|
Photography Of New Hybrid Vehicle - Marketing Services |
|
|
|
|
|
Photography Of Australia Day - Marketing Services |
|
|
|
|
|
Photography Of Emergency Services - Marketing Services |
|
|
|
|
|
Photography Of Community Volunteer Dinner Bridgeleigh |
|
|
|
|
|
Photography Of Olympian Reception 27/09/04 |
|
|
|
|
|
Photography Of Mirrabooka Community Centre |
|
|
|
|
|
Photography Of CoW Employee Of The Year |
|
|
|
|
|
Photography Of 2004 Innovation Award |
|
|
|
|
|
Photography Of Lime Kilns 16/05/05 |
|
|
|
|
|
Photography For Get Active Wanneroo Healthy Breakfast 20/05/05 |
|
|
|
|
|
Photography For Get Active Wanneroo Health Forum 24/05/05 |
|
|
|
|
|
Photography Of Wanneroo Sports Awards 19/08/05 |
|
|
|
|
|
Photography Of Sportsmania Event 18/01/05 |
|
|
|
|
|
Photography For Get Active Walking Brochure 17/01/05 |
|
|
|
|
|
A3 Prints From Images Supplied By Marketing Services |
|
|
|
|
|
Photography For Swearing In Of New Councillor 9/05/05 |
|
|
|
|
|
Photography At Clarkson Railway Station |
|
|
|
|
|
Photography Of Clarkson Library 12/01/05 |
|
|
|
00052996 |
26/06/2005 |
K & F Concrete |
$9,427.00 |
|
|
|
|
Limestone Blocks For Banksia Grove - Operations |
|
|
|
|
|
Limestone Blocks For Gumblossom & Bardsley Park |
|
|
|
00052997 |
26/06/2005 |
Kings Metal Fabrications |
$13,974.40 |
|
|
|
|
24 x Stage Bases - Leisure Services |
|
|
|
00052998 |
26/06/2005 |
Kone Elevators Pty Ltd |
$181.50 |
|
|
|
|
Hand Drive Chain - Building Maintenance |
|
|
|
00052999 |
26/06/2005 |
Landfill Gas & Power |
$963.60 |
|
|
|
|
Repairs To Badgerup Flare 12/04/05 - Waste Services |
|
|
|
00053000 |
26/06/2005 |
Lawn Doctor |
$18,700.00 |
|
|
|
|
Quarterly Broad Leaf Control To Turf Areas Within Reserves For February, March & April 2005 - Parks |
|
|
|
00053001 |
26/06/2005 |
Lawrence & Hanson |
$919.65 |
|
|
|
|
Various Purchases - Stores |
|
|
|
00053002 |
26/06/2005 |
Logiudice Property Group |
$363.00 |
|
|
|
|
Strat Levies 01/07/05 - 30/09/05 For Lot 7-10 Mindarie Drive, Quinns Rocks |
|
|
|
00053003 |
26/06/2005 |
Lyons & Peirce |
$3,360.50 |
|
|
|
|
Hire Camel Truck - Engineering Construction |
|
|
|
00053004 |
26/06/2005 |
Makjap Pty Ltd |
$1,300.00 |
|
|
|
|
Survey & Design For The Construction Of A Beach Access Concrete Staircase Off Foreshore Vista Yanchep - Operations |
|
|
|
00053005 |
26/06/2005 |
Malavoca Pty Ltd |
$13,034.24 |
|
|
|
|
Hepburn Avenue Extension Progress 3 - Release Of Retention Money (Contract No. 04376) |
|
|
|
00053006 |
26/06/2005 |
McDonalds Wanneroo |
$148.40 |
|
|
|
|
Catering For Fire Services At Barbagallo Raceway |
|
|
|
00053007 |
26/06/2005 |
MicroPay Pty Ltd |
$262.00 |
|
|
|
|
Self Seal Laser Payslips – Payroll Services |
|
|
|
00053008 |
26/06/2005 |
Midland Brick Company Pty Ltd |
$1,133.35 |
|
|
|
|
Grecian & Heavy Duty Pavers – Engineering Construction |
|
|
|
|
|
Pavers For Ridgewood Drive - Engineering Construction |
|
|
|
00053009 |
26/06/2005 |
Mindarie Music Centre |
$365.00 |
|
|
|
|
Cymbal Set - Clarkson Youth Centre |
|
|
|
00053010 |
26/06/2005 |
Mindarie Regional Council |
$90,834.91 |
|
|
|
|
Refuse Disposal - Waste Services & Ranger Services |
|
|
|
00053011 |
26/06/2005 |
MTD - Making The Difference |
$264.00 |
|
|
|
|
Registration For Ultimate Ideas Workshop 21/09/05 – Attendees D Langoulant & S Mallon |
|
|
|
00053012 |
26/06/2005 |
Nation Wise Products Pty Ltd |
$340.00 |
|
|
|
|
Prepare Statutory Declaration Forms - Ranger Services |
|
|
|
00053013 |
26/06/2005 |
Navada Computer Systems Greenwood |
$131.40 |
|
|
|
|
CD-RW & DVD Drive – I.T. Services |
|
|
|
00053014 |
26/06/2005 |
NGALA Family Resource Centre |
$165.00 |
|
|
|
|
3 Sleep Videos For Family Day Care |
|
|
|
00053015 |
26/06/2005 |
Non Organic Disposals |
$3,777.40 |
|
|
|
|
Disposal Of Rubble – Operation Services |
|
|
|
00053016 |
26/06/2005 |
Northern Corridor Contracting |
$6,635.75 |
|
|
|
|
Rotary Hoe Winston Park - Parks |
|
|
|
|
|
Firebreaks For Various Locations - Parks t |
|
|
|
00053017 |
26/06/2005 |
Northern Suburbs Bailiff |
$298.14 |
|
|
|
|
Legal Fees - Rating Services |
|
|
|
00053018 |
26/06/2005 |
Ocean Keys Newsagency |
$190.31 |
|
|
|
|
Newspapers For Clarkson Library |
|
|
|
00053019 |
26/06/2005 |
Owenbridge |
$286.00 |
|
|
|
|
Transport 2 x Glass Bins MRF To Railroad |
|
|
|
00053020 |
26/06/2005 |
Oxford Surplus & Trading |
$1,875.50 |
|
|
|
|
Bushman Jackets - Ranger Service |
|
|
|
00053021 |
26/06/2005 |
Pedersens Hire |
$595.50 |
|
|
|
|
Equipment Hire For Art Awards Opening Night |
|
|
|
00053022 |
26/06/2005 |
Perth Patterned Concrete Pty Ltd |
$4,224.00 |
|
|
|
|
Brick Roundabout Cnr Redcliffe & Rawlinson - Engineering |
|
|
|
00053023 |
26/06/2005 |
Perth Scientific Equipment |
$723.80 |
|
|
|
|
Data Logger & Software For Heritage & Museums |
|
|
|
00053024 |
26/06/2005 |
Perth Stripes & Signs |
$935.00 |
|
|
|
|
Supply & Install Signs/Decals To Extra Utes - Ranger Services |
|
|
|
00053025 |
26/06/2005 |
Pharmacy Plus Joondalup |
$114.45 |
|
|
|
|
Photo Development & Frames - Ranger Services |
|
|
|
00053026 |
26/06/2005 |
Reliance Consulting Pty Ltd |
$1,375.00 |
|
|
|
|
Consultancy For Business Grow Feasibility - Economic Development |
|
|
|
00053027 |
26/06/2005 |
Repco - Bayswater |
$641.52 |
|
|
|
|
Clutch Kit Overhaul - Fleet Maintenance |
|
|
|
00053028 |
26/06/2005 |
Repco Auto Parts |
$51.15 |
|
|
|
|
Reline Brake Shoes - Fleet Maintenance |
|
|
|
00053029 |
26/06/2005 |
Repeat Plastics (WA) |
$995.28 |
|
|
|
|
2 X Kakadu Seats - Engineering |
|
|
|
00053030 |
26/06/2005 |
Scribbly Faces |
$198.00 |
|
|
|
|
Face Artist For Girrawheen Festival 14/05/05 |
|
|
|
00053031 |
26/06/2005 |
Sensis Pty Ltd |
$147.40 |
|
|
|
|
On Line Advertising - Aquamotion |
|
|
|
00053032 |
26/06/2005 |
Shenton Enterprises Pty Ltd |
$326.22 |
|
|
|
|
Repairs To Dolphin - Aquamotion |
|
|
|
00053033 |
26/06/2005 |
Southern Outdoor |
$575.80 |
|
|
|
|
Supply & Install Hardifence At Elliott Park |
|
|
|
00053034 |
26/06/2005 |
Sports Power Joondalup |
$523.75 |
|
|
|
|
Soccer Shorts & T Shirts - Community Services |
|
|
|
|
|
Armbands - Prizes For Hainsworth Open Day |
|
|
|
|
|
Prizes For Live Basketball Competition - Youth Services |
|
|
|
00053035 |
26/06/2005 |
Storite Systems |
$1,419.00 |
|
|
|
|
Drumsafe Econopallet - Building Maintenance |
|
|
|
00053036 |
26/06/2005 |
Stott & Hoare |
$7,700.00 |
|
|
|
|
IBM Rack Server – I.T. Services |
|
|
|
00053037 |
26/06/2005 |
Suncity Newsagency |
$32.53 |
|
|
|
|
Newspaper Delivery For Yanchep/Two Rocks Library |
|
|
|
00053038 |
26/06/2005 |
Swan Tafe |
$530.80 |
|
|
|
|
Fees Tuition, Resource, Student Enrolment - A Barker |
|
|
|
00053039 |
26/06/2005 |
Swim Australia |
$426.60 |
|
|
|
|
Swimwest Conference June 05 - Aquamotion |
|
|
|
00053040 |
26/06/2005 |
Taskers |
$1,452.00 |
|
|
|
|
Relocate 3 Flag Poles At Clarkson Library |
|
|
|
00053041 |
26/06/2005 |
Tech Fab |
$3,685.00 |
|
|
|
|
200 No. Sign Brackets - Engineering Construction |
|
|
|
00053042 |
26/06/2005 |
The Windjammers |
$800.00 |
|
|
|
|
Performance At Jenolan Way Centre & Banksia Grove Centre – Community Services |
|
|
|
00053043 |
26/06/2005 |
Turf Growers Aust |
$1,584.00 |
|
|
|
|
Turf For Gumblossom & Ridgewood Parks |
|
|
|
00053044 |
26/06/2005 |
Veritas Software Australia |
$466.40 |
|
|
|
|
Back Up Exec A110238/218 Licence – I.T. Services |
|
|
|
00053045 |
26/06/2005 |
WA Cutting Services |
$1,485.66 |
|
|
|
|
Truck Floor Plate For Side Loader - Fleet Maintenance |
|
|
|
00053046 |
26/06/2005 |
WA Fork Trucks |
$749.30 |
|
|
|
|
PMP Service Replace Battery – Fleet Maintenance |
|
|
|
00053047 |
26/06/2005 |
WA Limestone Company |
$6,721.48 |
|
|
|
|
Limestone Delivery To Various Sites -Technical Services |
|
|
|
00053048 |
26/06/2005 |
WA Paint City |
$44.20 |
|
|
|
|
Paint ForGraffiti Program |
|
|
|
00053049 |
26/06/2005 |
Wanneroo Glass |
$385.00 |
|
|
|
|
Repair Door To Staff Amenities Area - Health Services |
|
|
|
00053050 |
26/06/2005 |
Wanneroo Trophy Shop |
$100.00 |
|
|
|
|
Name Badges For Various Staff Members |
|
|
|
00053051 |
26/06/2005 |
Wanneroo Volunteer Fire Brigade |
$482.75 |
|
|
|
|
Catering For Barbagallo Raceway - Ranger Services |
|
|
|
00053052 |
26/06/2005 |
WB Electrics |
$566.50 |
|
|
|
|
Toilet Exhaust Fan - Clarkson Library |
|
|
|
00053053 |
26/06/2005 |
Westcare Industries |
$60.28 |
|
|
|
|
Uniforms Stock For Depot Stores |
|
|
|
00053054 |
26/06/2005 |
Weston Remarking Services |
$5,546.75 |
|
|
|
|
Install Signage At Quinns Caravan Park - Infrastructure Services |
|
|
|
|
|
Linemarking Services At Various Locations - Engineering |
|
|
|
00053055 |
26/06/2005 |
Whelans |
$3,342.90 |
|
|
|
|
Professional Services - Survey Of Land Requirement Mirrabooka Avenue - Planning Services |
|
|
|
00053056 |
26/06/2005 |
Wolfe Civil Pty Ltd |
$25,910.50 |
|
|
|
|
Reconstruction Of Outfall Structure At Saint Quentine Parkway - Operations |
|
|
|
00053057 |
26/06/2005 |
World Class Entertainment |
$165.00 |
|
|
|
|
Entertainment For Children On 23/05/05 At Grace Tree Bend Banksia Grove - Mr Jim And The Drippy Dragon Show |
|
|
|
00053058 |
26/06/2005 |
Wurths Australia Pty Ltd |
$915.99 |
|
|
|
|
Various Parts - Fleet Maintenance |
|
|
|
00053059 |
21/06/2005 |
Hainsworth Community Centre Petty |
$200.00 |
|
|
|
|
Recoup Of Petty Cash Due To Stolen Cash Box |
|
|
|
00053060 |
22/06/2005 |
Dept For Planning & Infrastructure |
$58,574.10 |
|
|
|
|
Vehicle/Plant Licences 05/06 - Fleet Services |
|
|
|
00053061 |
22/06/2005 |
Watson Property Group |
$19,991.61 |
|
|
|
|
Subdivision Bond Refund |
|
|
|
00053062 |
22/06/2005 |
Crystal Nullmeyers |
$500.00 |
|
|
|
|
Bond Refund |
|
|
|
00053063 |
22/06/2005 |
Fashion Essentials |
$300.00 |
|
|
|
|
Bond Refund |
|
|
|
00053064 |
22/06/2005 |
CA & NA Bitmead |
$300.00 |
|
|
|
|
Vehicle Crossing Subsidy |
|
|
|
00053065 |
22/06/2005 |
CF & RP Green |
$300.00 |
|
|
|
|
Vehicle Crossing Subsidy |
|
|
|
00053066 |
22/06/2005 |
SN Rutter & TA Bermann |
$300.00 |
|
|
|
|
Vehicle Crossing Subsidy |
|
|
|
00053067 |
22/06/2005 |
Jackie Brown |
$300.00 |
|
|
|
|
Vehicle Crossing Subsidy |
|
|
|
00053068 |
22/06/2005 |
SA & PG Torretti |
$300.00 |
|
|
|
|
Vehicle Crossing Subsidy |
|
|
|
00053069 |
22/06/2005 |
M & SM Tyler |
$300.00 |
|
|
|
|
Vehicle Crossing Subsidy |
|
|
|
00053070 |
22/06/2005 |
PM Miskelly |
$300.00 |
|
|
|
|
Vehicle Crossing Subsidy |
|
|
|
00053071 |
22/06/2005 |
GC & IA Oldfield |
$210.39 |
|
|
|
|
Vehicle Crossing Subsidy |
|
|
|
00053072 |
22/06/2005 |
WB & TM Van Haght |
$300.00 |
|
|
|
|
Vehicle Crossing Subsidy |
|
|
|
00053073 |
22/06/2005 |
Trevor Schofield |
$10.00 |
|
|
|
|
Refund For Gold Programme |
|
|
|
00053074 |
22/06/2005 |
John Jones |
$5.00 |
|
|
|
|
Refund For Gold Programme |
|
|
|
00053075 |
22/06/2005 |
Dragon Divjakioski |
$500.00 |
|
|
|
|
Bond Refund |
|
|
|
00053076 |
22/06/2005 |
BL & JT Cooper |
$300.00 |
|
|
|
|
1 x Ratepayer Financial Assistance |
|
|
|
00053077 |
22/06/2005 |
Paul M Mcauley |
$300.00 |
|
|
|
|
Vehicle Crossing Subsidy |
|
|
|
00053078 |
22/06/2005 |
Harber Real Estate |
$130.00 |
|
|
|
|
1 x Ratepayer Financial Assistance |
|
|
|
00053079 |
22/06/2005 |
K & PW Entwistle |
$300.00 |
|
|
|
|
Vehicle Crossing Subsidy |
|
|
|
00053080 |
22/06/2005 |
GR & KN Butler |
$300.00 |
|
|
|
|
Vehicle Crossing Subsidy |
|
|
|
00053081 |
22/06/2005 |
TH & J Bixby |
$300.00 |
|
|
|
|
Vehicle Crossing Subsidy |
|
|
|
00053082 |
22/06/2005 |
Ryan Marinus Potter |
$300.00 |
|
|
|
|
Vehicle Crossing Subsidy |
|
|
|
00053083 |
22/06/2005 |
T & C Mears |
$300.00 |
|
|
|
|
Vehicle Crossing Subsidy |
|
|
|
00053084 |
22/06/2005 |
Rawlinson Primary School P & C |
$250.00 |
|
|
|
|
Reimbursement Of Renewal Fee For Food Premise |
|
|
|
00053085 |
22/06/2005 |
St Stephen's School |
$250.00 |
|
|
|
|
Reimbursement Of Renewal Fee For Food Premise |
|
|
|
00053086 |
22/06/2005 |
Ertech Pty Ltd |
$148.79 |
|
|
|
|
Reimbursement Of Building Application Fee |
|
|
|
00053087 |
22/06/2005 |
JWH Group (In-Vogue) |
$30.00 |
|
|
|
|
Reimbursement Of Building Application Fee |
|
|
|
00053088 |
22/06/2005 |
Delstrat Pty Ltd |
$17.96 |
|
|
|
|
Reimbursement Of Building Application Fee |
|
|
|
00053089 |
22/06/2005 |
Signfont |
$25.00 |
|
|
|
|
Reimbursement Of Building Application Fee |
|
|
|
00053090 |
22/06/2005 |
Tung Thanh Dang |
$60.00 |
|
|
|
|
Reimbursement Of Renewal Fee For Food Premise |
|
|
|
00053091 |
22/06/2005 |
Tangent Nominees Pty Ltd |
$36.65 |
|
|
|
|
Reimbursement Of Building Application Fee |
|
|
|
00053092 |
22/06/2005 |
Scott Park Homes Pty Ltd |
$50.71 |
|
|
|
|
Reimbursement Of Building Application Fee |
|
|
|
00053093 |
22/06/2005 |
RYAN LETCH |
$500.00 |
|
|
|
|
Bond Refund |
|
|
|
00053094 |
22/06/2005 |
DL Martin & VE Ransfield |
$300.00 |
|
|
|
|
Vehicle Crossing Subsidy |
|
|
|
00053095 |
22/06/2005 |
A & M Stobbie |
$300.00 |
|
|
|
|
Vehicle Crossing Subsidy |
|
|
|
00053096 |
22/06/2005 |
JL & JEM Sayell |
$12.63 |
|
|
|
|
Rates Refund P/N 189539 - Lot 27 P 22387 8 Malbay Court – Overpayment of Rates |
|
|
|
|
|
Overpayment Of Rates |
|
|
|
00053097 |
22/06/2005 |
Cedar Woods Properties Ltd |
$148.69 |
|
|
|
|
Reimbursement Of Electricity Costs 2-28 April 2005 At Wishart Loop Bore |
|
|
|
00053098 |
22/06/2005 |
Helen Leicester |
$36.00 |
|
|
|
|
Swim School Refund |
|
|
|
00053099 |
22/06/2005 |
Ray White Joondalup |
$430.00 |
|
|
|
|
1 x Ratepayer Financial Assistance |
|
|
|
00053100 |
22/06/2005 |
Girrawheen Senior High School |
$250.00 |
|
|
|
|
Refund Of Renewal For Food Premises Licence |
|
|
|
00053101 |
22/06/2005 |
Wanneroo Senior High School |
$250.00 |
|
|
|
|
Refund Of Renewal For Food Premises Licence |
|
|
|
00053102 |
22/06/2005 |
Quinns Beach Primary School P & C |
$250.00 |
|
|
|
|
Refund Of Renewal For Food Premises Licence |
|
|
|
00053103 |
22/06/2005 |
Irene McCormack Catholic College |
$941.39 |
|
|
|
|
Community Funding Allocation For October 2004 Round |
|
|
|
00053104 |
22/06/2005 |
Amy Miranda |
$500.00 |
|
|
|
|
Bond Refund |
|
|
|
00053105 |
22/06/2005 |
Warwick Senior High School |
$200.00 |
|
|
|
|
Sponsorship To Support Roseanne Bonney For Participation In The Canterbury Gold Coast Netball Carnival 2-10 July 2005 |
|
|
|
00053106 |
22/06/2005 |
Homeswest |
$825.63 |
|
|
|
|
Rates Refund P/N 206515 - 7 Burwell Way – Due to Overpayment ($115.86 31) |
|
|
|
|
|
Rates Refund P/N 206564 – 37 Fairbourne Approach - Due To Overpayment ($709.77) |
|
|
|
00053107 |
22/06/2005 |
Japan Karate Do Shobukan |
$200.00 |
|
|
|
|
Sponsorship To Support Jusinda Dyson In The Australian Karate Championships In Brisbane 5-7 June 2005 |
|
|
|
00053108 |
22/06/2005 |
Homeswest |
$8,778.94 |
|
|
|
|
Rates Refund P/N 211033 - 650 Connolly Drive - Due To Subdivision |
|
|
|
00053109 |
22/06/2005 |
CR & JD MacLeod |
$188.98 |
|
|
|
|
Rates Refund P/N 181194 - 38 Amos Road - Pension Rebate |
|
|
|
00053110 |
22/06/2005 |
Estate of Late V Cornish |
$279.52 |
|
|
|
|
Rates Refund P/N 112699 - 134 Marangaroo Drive - Pension Rebate |
|
|
|
00053111 |
22/06/2005 |
West Australian Women's Rugby |
$200.00 |
|
|
|
|
Sponsorship To Support Arnika Nepia In The West Australian Inaugural State League Tag Women's Team Competing In The National Championships 9-13 June 2005 |
|
|
|
00053112 |
22/06/2005 |
SA Rybicki |
$338.12 |
|
|
|
|
Rates Refund P/N 199566 - 19 Wiltshire Entrance - Pension Rebate |
|
|
|
00053113 |
22/06/2005 |
All Perfect Pty Ltd |
$25.00 |
|
|
|
|
Overpayment Of Clearance Application Fee |
|
|
|
00053114 |
22/06/2005 |
AI Ives |
$299.40 |
|
|
|
|
Rates Refund P/N 186899 - 31 Sellar Elbow - Pension Rebate |
|
|
|
00053115 |
22/06/2005 |
EPW |
$500.00 |
|
|
|
|
Bond Refund |
|
|
|
00053116 |
22/06/2005 |
PBC & ES Taulelei |
$102.67 |
|
|
|
|
Rates Refund P/N 197415 - 12 Mulga Court - Pension Rebate |
|
|
|
00053117 |
22/06/2005 |
MJ & RW Keyte |
$20.97 |
|
|
|
|
Rates Refund P/N 141698 - 14 Moorpark Avenue - Pension Rebate |
|
|
|
00053118 |
22/06/2005 |
ZL & BJ Holdaway |
$133.61 |
|
|
|
|
Rates Refund P/N 193800 - 6 Urquhart Way - Pension Rebate |
|
|
|
00053119 |
22/06/2005 |
DJ & MR Jones |
$196.88 |
|
|
|
|
Rates Refund P/N 189045 - 8 Pattani Court - Pension Rebate |
|
|
|
00053120 |
22/06/2005 |
PA & DM Ashe |
$284.28 |
|
|
|
|
Rates Refund P/N 152853 - 11 Priest Road - Pension Rebate |
|
|
|
00053121 |
22/06/2005 |
GB Boyd & JE Luckhurst |
$119.50 |
|
|
|
|
Rates Refund P/N 186782 - 45 Buffett Ramble - Pension Rebate |
|
|
|
00053122 |
22/06/2005 |
DB & LA Cole |
$882.58 |
|
|
|
|
Rates Refund P/N 184019 - 28 Holwell Gardens -Overpayment |
|
|
|
00053123 |
22/06/2005 |
Patanal Pty Ltd |
$53.43 |
|
|
|
|
Rates Refund P/N 200262 - 280 Wanneroo Road – Due to Subdivision |
|
|
|
00053124 |
22/06/2005 |
Five Star Asset Pty Ltd |
$239.89 |
|
|
|
|
Rates Refund P/N 204788 - 4 Boboli Way - Due To Subdivision |
|
|
|
00053125 |
22/06/2005 |
Cockburn Cement Ltd |
$25,913.81 |
|
|
|
|
Rates Refund – P/N 146095 – 450 Flynn Drive - Due To Successful Objection To Valuation |
|
|
|
00053126 |
22/06/2005 |
Settlers Ridgewood Village Ltd |
$14,791.51 |
|
|
|
|
Rates Refund P/N 196986 - 76 Ridgewood Boulevard - Overpayment |
|
|
|
00053127 |
22/06/2005 |
Yanchep Sun City Pty Ltd |
$5,147.98 |
|
|
|
|
Rates Refund P/N 152549 - 14L Pope Street - Reduced Valuation |
|
|
|
00053128 |
22/06/2005 |
Stockland WA Development Pty Ltd |
$1,764.32 |
|
|
|
|
Rates Refund P/N 207617 - 7 Furniss Road – Due to Subdivision ($401.26) |
|
|
|
|
|
Rates Refund P/N 208227 - 37 Caaipan Road – Due to Subdivision ($1363.06) |
|
|
|
00053129 |
22/06/2005 |
Peet & Co Ltd Atf Yatala Unit Trust |
$111.12 |
|
|
|
|
Rates Refund P/N 203286 - 110 Golf Links Drive - Subdivision |
|
|
|
00053130 |
22/06/2005 |
Weston Living Pty Ltd |
$117.40 |
|
|
|
|
Rates Refund P/N 152373 - 21 Tony Martin Way – Due to Subdivision ($18.63) |
|
|
|
|
|
Rates Refund P/N 201174 - 34 Denman Gardens - Due To Subdivision ($98.77) |
|
|
|
00053131 |
22/06/2005 |
City Of Wanneroo |
$50.00 |
|
|
|
|
Facility Refund - Incorrectly Receipted |
|
|
|
00053132 |
22/06/2005 |
Indoor Sports WA |
$400.00 |
|
|
|
|
Donation For Sponsorship To Support Zeke & Luke Price For Their Participation In The Australian Indoor Cricket National Championships Queensland May 2005 |
|
|
|
00053133 |
22/06/2005 |
ARRB Group Ltd |
$880.00 |
|
|
|
|
Training Road Safety Risk Manager 29/06/05 – Attendee G Miles |
|
|
|
00053134 |
22/06/2005 |
Engineers Australia |
$25.00 |
|
|
|
|
Training Transport Panel And AITPM (Symposium) 28/07/05 – Attendee M Best |
|
|
|
00053135 |
22/06/2005 |
Noel Tame |
$50.00 |
|
|
|
|
Dog Registration Refund - Moved Interstate |
|
|
|
00053136 |
22/06/2005 |
Lorraine Frendin |
$15.00 |
|
|
|
|
Dog Registration Refund - Overpayment |
|
|
|
00053137 |
22/06/2005 |
Julie Riches |
$500.00 |
|
|
|
|
Bond Refund |
|
|
|
00053138 |
22/06/2005 |
GM & TG Jackson |
$300.00 |
|
|
|
|
Vehicle Crossing Subsidy |
|
|
|
00053139 |
22/06/2005 |
B Doran |
$20.00 |
|
|
|
|
Dog Registration Refund - Sterilised |
|
|
|
00053140 |
22/06/2005 |
J Moriarty |
$20.00 |
|
|
|
|
Dog Registration Refund - Sterilised |
|
|
|
00053141 |
22/06/2005 |
J Tilley |
$20.00 |
|
|
|
|
Dog Registration Refund - Sterilised |
|
|
|
00053142 |
22/06/2005 |
S Daniel |
$15.00 |
|
|
|
|
Dog Registration Refund - Overpayment |
|
|
|
00053143 |
22/06/2005 |
D Hoff |
$20.00 |
|
|
|
|
Dog Registration Refund - Sterilised |
|
|
|
00053144 |
22/06/2005 |
A Parker |
$38.00 |
|
|
|
|
Dog Registration Refund - Sterilised |
|
|
|
00053145 |
22/06/2005 |
S Fletcher |
$57.00 |
|
|
|
|
Dog Registration Refund - Sterilised |
|
|
|
00053146 |
22/06/2005 |
JWH Group (IN-VOGUE) |
$30.00 |
|
|
|
|
Refund Of Building Application Fee |
|
|
|
00053147 |
22/06/2005 |
Main Roads |
$11,733.70 |
|
|
|
|
Refund Of State Black Spot Program 04/05 |
|
|
|
00053148 |
22/06/2005 |
City of Wanneroo |
$540.04 |
|
|
|
|
Payroll Ded: F/Ending 22/06/2005 |
|
|
|
00053149 |
22/06/2005 |
AAPT Ltd |
$150.00 |
|
|
|
|
1 x Ratpayer Financial Assistance |
|
|
|
00053150 |
22/06/2005 |
Aboriginal Seniors Group Petty Cash |
$50.00 |
|
|
|
|
Petty Cash |
|
|
|
00053151 |
22/06/2005 |
Alexander Heights Adult Day Care |
$53.85 |
|
|
|
|
Petty Cash |
|
|
|
00053152 |
22/06/2005 |
Alinta Gas |
$998.05 |
|
|
|
|
8 x Ratepayer Financial Assistance |
|
|
|
00053153 |
22/06/2005 |
Amp Flexible Lifetime Super Fund |
$942.31 |
|
|
|
|
Payroll Ded: F/Ending 17/06/2005 |
|
|
|
00053154 |
22/06/2005 |
Cabcharge |
$172.37 |
|
|
|
|
Cabcharge - Welfare Department |
|
|
|
00053155 |
22/06/2005 |
Corporate Services Petty Cash |
$419.40 |
|
|
|
|
Petty Cash |
|
|
|
00053156 |
22/06/2005 |
Department Of Land Information |
$243,228.38 |
|
|
|
|
Land Valuations - Rating Services |
|
|
|
00053157 |
22/06/2005 |
Optus |
$72.04 |
|
|
|
|
1 x Ratepayer Financial Assistance |
|
|
|
00053158 |
22/06/2005 |
Alexander Heights Community House |
$94.20 |
|
|
|
|
Petty Cash |
|
|
|
00053159 |
22/06/2005 |
WA Local Govt Superannuation |
$281,846.61 |
|
|
|
|
Superannuation Contributions - 21/05/05 - 17/06/05 |
|
|
|
00053160 |
22/06/2005 |
Wanneroo Youth Centre Petty Cash |
$109.00 |
|
|
|
|
Petty Cash |
|
|
|
00053161 |
22/06/2005 |
Water Corporation |
$6,347.15 |
|
|
|
|
Water Supplies For Various Locations ($6,007.10) |
|
|
|
|
|
Small Hydrant - Wanneroo RD – Operations ($140.95) |
|
|
|
|
|
1 x Ratepayer Financial Assistance($199.10) |
|
|
|
00053162 |
22/06/2005 |
Yanchep Community House Petty Cash |
$100.70 |
|
|
|
|
Petty Cash |
|
|
|
00053163 |
22/06/2005 |
Zurich Client Service |
$235.38 |
|
|
|
|
Payroll Ded: F/Ending 17/06/05 |
|
|
|
00053164 |
22/06/2005 |
City of Wanneroo - Aquamotion |
$301.00 |
|
|
|
|
Payroll Ded: F/Ending 17/06/05 |
|
|
|
00053165 |
22/06/2005 |
City of Wanneroo - Rates |
$2,058.00 |
|
|
|
|
Payroll Ded: F/Ending 17/06/05 |
|
|
|
00053166 |
22/06/2005 |
City of Wanneroo - Limited Use |
$500.00 |
|
|
|
|
Payroll Ded: F/Ending 17/06/05 |
|
|
|
00053167 |
22/06/2005 |
Cancelled |
|
|
|
00053168 |
22/06/2005 |
Western Power |
$40,783.45 |
|
|
|
|
10 x Ratepayer Financial Assistance ($1,124.35) |
|
|
|
|
|
Power Supplies For Various Locations ($39,659.10) |
|
|
|
00053169 |
22/06/2005 |
Telstra |
$23,118.85 |
|
|
|
|
5 x Ratepayer Financial Assistance ($426.41) |
|
|
|
|
|
Phone Charges To 01 June 2005 ($22,692.44) |
|
|
|
00053170 |
22/06/2005 |
Target Joondalup |
$165.00 |
|
|
|
|
Bean Bag Covers & Beans - Yanchep/Two Rocks Library |
|
|
|
00053171 |
22/06/2005 |
Australia Post |
$10,977.31 |
|
|
|
|
Mail Preparation Fees For May 2005 |
|
|
|
00053172 |
22/06/2005 |
FESA House |
$397.91 |
|
|
|
|
Brigade Meeting - Ranger Services |
|
|
|
00053173 |
22/06/2005 |
AITC 2005 |
$595.00 |
|
|
|
|
Australian Indigenous Tourism Conference 2005 – Attendee W Barry |
|
|
|
00053174 |
22/06/2005 |
Integrated Group Ltd |
$10,021.38 |
|
|
|
|
Casual Labour For Various Departments |
|
|
|
00053175 |
23/06/2005 |
Cancelled |
|
|
|
00053176 |
23/06/2005 |
Cancelled |
|
|
|
00053177 |
23/06/2005 |
SR Stoker |
$300.00 |
|
|
|
|
Vehicle Crossing Subsidy |
|
|
|
00053178 |
23/06/2005 |
Cancelled |
|
|
|
00053179 |
23/06/2005 |
Cancelled |
|
|
|
00053180 |
23/06/2005 |
Cancelled |
|
|
|
00053181 |
22/06/2005 |
City of Wanneroo |
$320.00 |
|
|
|
|
Draw Funds For Unclaimed Rates Refund And Put To Trust Account - Finance |
|
|
|
00053182 |
23/06/2005 |
Cancelled |
|
|
|
00053183 |
23/06/2005 |
City of Wanneroo |
$216.60 |
|
|
|
|
Correction Of Receipting Error |
|
|
|
00053184 |
24/06/2005 |
Cancelled |
|
|
|
00053185 |
24/06/2005 |
City of Wanneroo |
$430.30 |
|
|
|
|
Transfer Of Funds To Trust - Finance |
|
|
|
00053186 |
24/06/2005 |
RAC Travel |
$900.00 |
|
|
|
|
Gift Voucher For Employee, V Hall – (18 Years Services/Retiring) |
|
|
|
00053187 |
28/06/2005 |
City of Wanneroo |
$450.00 |
|
|
|
|
Cash Advance Staff BBQ After Technical Services Functional Review Staff Information Sessions On 29/06/05 |
|
|
|
00053188 |
28/06/2005 |
Friction Control |
$722.50 |
|
|
|
|
Various Parts - Fleet Maintenance |
|
|
|
00053189 |
29/06/2005 |
City of Wanneroo |
$450.00 |
|
|
|
|
Cash Advance For Function After Technical Services Staff Information Sessions 29/06/05 (Banksia Room) |
|
|
|
00053190 |
29/06/2005 |
Cancelled |
|
|
|
00053191 |
29/06/2005 |
Cancelled |
|
|
|
00053192 |
29/06/2005 |
Julie-Ann Young |
$500.00 |
|
|
|
|
Bond Refund |
|
|
|
00053193 |
29/06/2005 |
Wingback Holdings Pty Ltd T/A |
$100.00 |
|
|
|
|
Subdivision Clearance Cancelled |
|
|
|
00053194 |
29/06/2005 |
JR & CL Saunders |
$300.00 |
|
|
|
|
Vehicle Crossing Subsidy |
|
|
|
00053195 |
29/06/2005 |
I Nastov |
$300.00 |
|
|
|
|
Vehicle Crossing Subsidy |
|
|
|
00053196 |
29/06/2005 |
Homeswest |
$115.56 |
|
|
|
|
Rates Refund P/N 206516 - 9 Burwell Way - Overpayment |
|
|
|
00053197 |
29/06/2005 |
Butler Land Company Pty Ltd & |
$357.52 |
|
|
|
|
Rates Refund P/N 208514 - 16 Hapuna Street - Overpayment |
|
|
|
00053198 |
29/06/2005 |
Butler Land Company Pty Ltd & |
$357.52 |
|
|
|
|
Rates Refund P/N208494 8 Redington Drive - Overpayment |
|
|
|
00053199 |
29/06/2005 |
Watson Property Group Regent Glades |
$512.58 |
|
|
|
|
Rates Refund P/N 210063 - 10 Tyne Crescent - Subdivision |
|
|
|
00053200 |
29/06/2005 |
SR & RE Marshall |
$300.00 |
|
|
|
|
Vehicle Crossing Subsidy |
|
|
|
00053201 |
29/06/2005 |
Australian Anglo Burmese Society |
$500.00 |
|
|
|
|
Bond Refund |
|
|
|
00053202 |
29/06/2005 |
Dee Miles |
$300.00 |
|
|
|
|
Bond Refund |
|
|
|
00053203 |
29/06/2005 |
Homeswest |
$277.63 |
|
|
|
|
Rates Refund P/N 209490 - 30 Barmouth Loop - Overpayment |
|
|
|
00053204 |
29/06/2005 |
RM & JA Alexandre |
$300.00 |
|
|
|
|
Vehicle Crossing Subsidy |
|
|
|
00053205 |
29/06/2005 |
SIMplus Mobile Pty Ltd |
$311.00 |
|
|
|
|
1 X Ratepayer Financial Assistance |
|
|
|
00053206 |
29/06/2005 |
Fat Boy Industries |
$200.00 |
|
|
|
|
Reimbursement Of The Small Business Smart Business Voucher 21643 - Economic Development |
|
|
|
00053207 |
29/06/2005 |
Level Holdings Pty Ltd |
$1,182.50 |
|
|
|
|
Refund Of Portion Of Fees For Proposed Amendment No. 4 To East Wanneroo Cell 4 Agreed Structure Plan - 46 Kemp Street Pearsall |
|
|
|
00053208 |
29/06/2005 |
J Satchell |
$200.00 |
|
|
|
|
Reimbursement Of Expenses From Vehicle Damaged By Floods (Claim No 513130) – Contracts & Property |
|
|
|
00053209 |
29/06/2005 |
MT & B Sivic |
$300.00 |
|
|
|
|
Vehicle Crossing Subsidy |
|
|
|
00053210 |
29/06/2005 |
Lakewest Corporation Pty Ltd |
$300.00 |
|
|
|
|
Vehicle Crossing Subsidy |
|
|
|
00053211 |
29/06/2005 |
Pandrehan Pty Ltd |
$100.00 |
|
|
|
|
Deposit For Gold Activity 21/07/06 For Supa Golf And Lunch For 49 Participants |
|
|
|
00053212 |
29/06/2005 |
Leon Smith |
$80.00 |
|
|
|
|
Candidate Deposits |
|
|
|
00053213 |
29/06/2005 |
Trisha Cox |
$80.00 |
|
|
|
|
Candidate Deposits |
|
|
|
00053214 |
29/06/2005 |
Martina Thomas |
$80.00 |
|
|
|
|
Candidate Deposits |
|
|
|
00053215 |
29/06/2005 |
Jerome Buck |
$80.00 |
|
|
|
|
Candidate Deposits |
|
|
|
00053216 |
29/06/2005 |
Alexander R Miloseski |
$80.00 |
|
|
|
|
Candidate Deposits |
|
|
|
00053217 |
29/06/2005 |
Gordon Cole |
$80.00 |
|
|
|
|
Candidate Deposits |
|
|
|
00053218 |
29/06/2005 |
C Hughes |
$80.00 |
|
|
|
|
Candidate Deposits |
|
|
|
00053219 |
29/06/2005 |
Michelle Nelson |
$80.00 |
|
|
|
|
Candidate Deposits |
|
|
|
00053220 |
29/06/2005 |
B & CR Gillespie |
$30.00 |
|
|
|
|
Rates Refund P/N 171444 - 25 Frawley Ramble - Overpayment |
|
|
|
00053221 |
29/06/2005 |
R & GL Davis |
$300.00 |
|
|
|
|
Vehicle Crossing Subsidy |
|
|
|
00053222 |
29/06/2005 |
EJ Renton |
$300.00 |
|
|
|
|
Vehicle Crossing Subsidy |
|
|
|
00053223 |
29/06/2005 |
CF & TL Clarke |
$300.00 |
|
|
|
|
Vehicle Crossing Subsidy |
|
|
|
00053224 |
29/06/2005 |
Goju-Kai Karate Academy |
$500.00 |
|
|
|
|
Donation For Sponsorship Of Aaron Rowley In The Goju-Kai World Karate Championships Held In The Netherlands In November 2005 |
|
|
|
00053225 |
29/06/2005 |
Callisthenics Assoc Of WA |
$200.00 |
|
|
|
|
Donation For Sponsorship Of Stephanie Dragun In The National Championships In Callisthenics Held In Melbourne In July 2005 |
|
|
|
00053226 |
29/06/2005 |
WA Fencing Assoc Inc |
$200.00 |
|
|
|
|
Donation For Sponsorship Of Max Doyle In The Aust Schools & Under 15/17 Fencing Championships Held In Sydney In July 2005 |
|
|
|
00053227 |
29/06/2005 |
Basketball WA |
$220.00 |
|
|
|
|
Donation For Sponsorship Of Meghan D'Arcy In The 05 Under 16 National Basketball Championships Held In Canberra In July 2005 |
|
|
|
00053228 |
29/06/2005 |
Landsdale Primary School P & C: |
$110.00 |
|
|
|
|
Donation To Support The Costs Of A Play By The Safety House Troupe To Be Held During Safety House Week In August 2005 |
|
|
|
00053229 |
29/06/2005 |
Janeil D'Annunzio |
$200.00 |
|
|
|
|
Donation For Sponsorship Of Janeil In The National Talent Identification Championships For Soccer Held In Sydney In July 2005 |
|
|
|
00053230 |
29/06/2005 |
Anita Siddle |
$300.00 |
|
|
|
|
Vehicle Crossing Subsidy |
|
|
|
00053231 |
29/06/2005 |
U & PA Rumjantsev |
$73.30 |
|
|
|
|
Rates Refund P/N 100124 - 3 Fenchurch Street - Sale Of Pensioner Property |
|
|
|
00053232 |
29/06/2005 |
C Kinneen |
$20.00 |
|
|
|
|
Dog Registration Refund - Overpayment |
|
|
|
00053233 |
29/06/2005 |
Phil Daniel |
$15.00 |
|
|
|
|
Dog Registration Refund - Overpayment |
|
|
|
00053234 |
29/06/2005 |
Kay Moffat |
$57.00 |
|
|
|
|
Dog Registration Refund - Sterilised |
|
|
|
00053235 |
29/06/2005 |
City of Wanneroo |
$322.00 |
|
|
|
|
Development Approval Wanneroo Showgrounds Floodlighting Upgrade |
|
|
|
00053236 |
29/06/2005 |
Aboriginal Seniors Group Petty Cash |
$50.00 |
|
|
|
|
Petty Cash |
|
|
|
00053237 |
29/06/2005 |
Alexander Heights Adult Day Care |
$52.10 |
|
|
|
|
Petty Cash |
|
|
|
00053238 |
29/06/2005 |
Aquamotion Office Petty Cash |
$123.10 |
|
|
|
|
Petty Cash |
|
|
|
00053239 |
29/06/2005 |
Australian Federal Police |
$15.00 |
|
|
|
|
ABDC Phone Threat Checklists Safety & Health Advisor – Corporate Resources |
|
|
|
00053240 |
29/06/2005 |
Beatrix Rausch |
$41.66 |
|
|
|
|
Key Holder Phil Renkin Recreation Centre & Oldham Park Kiosk |
|
|
|
00053241 |
29/06/2005 |
Councillor A Blencowe |
$80.00 |
|
|
|
|
Candidate Deposits |
|
|
|
00053242 |
29/06/2005 |
Blue Collar People |
$3,356.66 |
|
|
|
|
Casual Labour - Fleet Maintenance |
|
|
|
00053243 |
29/06/2005 |
Buckingham House Petty Cash |
$92.00 |
|
|
|
|
Petty Cash |
|
|
|
00053244 |
29/06/2005 |
Cabcharge |
$663.89 |
|
|
|
|
Courier Charges For Various Departments |
|
|
|
00053245 |
29/06/2005 |
Corporate Services Petty Cash |
$656.85 |
|
|
|
|
Petty Cash |
|
|
|
00053246 |
29/06/2005 |
Councillor F Cvitan |
$80.00 |
|
|
|
|
Candidate Deposits |
|
|
|
00053247 |
29/06/2005 |
Department Of Land Information |
$3,021.65 |
|
|
|
|
Service Fee - Extraction And Distribution Including Postage – Planning Services |
|
|
|
|
|
Land Searches - Rating Services |
|
|
|
00053248 |
29/06/2005 |
Gloucester Lodge Museum Petty Cash |
$57.15 |
|
|
|
|
Petty Cash |
|
|
|
00053249 |
29/06/2005 |
Hainsworth Community Centre Petty |
$281.50 |
|
|
|
|
Petty Cash |
|
|
|
00053250 |
29/06/2005 |
Heritage Officer Petty Cash |
$83.60 |
|
|
|
|
Petty Cash |
|
|
|
00053251 |
29/06/2005 |
LGMA National Congress |
$3,175.00 |
|
|
|
|
Registration For LGMA Conference – Attendees C Johnson, D Simms & B Carter |
|
|
|
00053252 |
29/06/2005 |
Mr E Martin |
$97.22 |
|
|
|
|
Keyholder - Hainsworth Leisure Centre, John Moloney Clubrooms & Koondoola Community Hall |
|
|
|
00053253 |
29/06/2005 |
Cr Dorothy Newton |
$80.00 |
|
|
|
|
Candidate Deposits |
|
|
|
00053254 |
29/06/2005 |
Orange |
$552.20 |
|
|
|
|
Fire Services Pager Account |
|
|
|
00053255 |
29/06/2005 |
Quinns Rocks Adult Day Care Petty |
$99.40 |
|
|
|
|
Petty Cash |
|
|
|
00053256 |
29/06/2005 |
Alexander Heights Community House |
$67.15 |
|
|
|
|
Petty Cash |
|
|
|
00053257 |
29/06/2005 |
Wanneroo Libraries Central |
$41.95 |
|
|
|
|
Petty Cash |
|
|
|
00053258 |
29/06/2005 |
Wanneroo Youth Centre Petty Cash |
$103.40 |
|
|
|
|
Petty Cash |
|
|
|
00053259 |
29/06/2005 |
Water Corporation |
$9,658.25 |
|
|
|
|
Water Supplies To Various Locations ($3,216.70) |
|
|
|
|
|
Kingsway Sporting Complex - Sewerage A/C 01/07/04-01/07/05 ($5,871.60) |
|
|
|
|
|
Road Footpath Reinstatement Costs – Operations ($569.95) |
|
|
|
00053260 |
29/06/2005 |
Yanchep Community House Petty Cash |
$83.00 |
|
|
|
|
Petty Cash |
|
|
|
00053261 |
29/06/2005 |
Western Power |
$3,650.55 |
|
|
|
|
Power Supplies To Various Locations |
|
|
|
|
|
1 x Ratepayer Financial Services ($179.55) |
|
|
|
00053262 |
29/06/2005 |
Telstra |
$100.00 |
|
|
|
|
1 x Ratepayer Financial Services |
|
|
|
00053263 |
29/06/2005 |
Mr L Tan |
$41.66 |
|
|
|
|
Keyholder - Peridot Park & Banksia Grove Zone |
|
|
|
00053264 |
29/06/2005 |
Ms J Gilbert |
$100.00 |
|
|
|
|
Tennis Booking Officer - Koondoola Park Tennis Court & Montrose Park Tennis Court |
|
|
|
00053265 |
29/06/2005 |
Mr R Taylor |
$91.66 |
|
|
|
|
Keyholder - Wanneroo Recreation Centre & Tennis Booking Officer - Wanneroo Showgrounds Courts |
|
|
|
00053266 |
29/06/2005 |
Mrs L Johnstone |
$41.66 |
|
|
|
|
Key Holder - Clarkson Youth Centre & Anthony Waring Clubrooms & Parks |
|
|
|
00053267 |
29/06/2005 |
FESA House |
$310.69 |
|
|
|
|
Battery Charger & Consumables - Fire Services |
|
|
|
00053268 |
29/06/2005 |
Ms D Hetherington |
$133.32 |
|
|
|
|
Key Holder - Hudson Clubrooms & Parks, Cabrini & Lidell Parks |
|
|
|
|
|
Tennis Booking Officer - Clubrooms & Parks Hudson Parks Courts |
|
|
|
00053269 |
29/06/2005 |
Dept of Treasury & Finance |
$606.43 |
|
|
|
|
Transaction Fees For Wafastpay - April & May 2005 – Rating Services |
|
|
|
00053270 |
29/06/2005 |
Peggy Brown |
$41.66 |
|
|
|
|
Key Holder - Jenolan Way Community Hall & Addison Park Clubrooms |
|
|
|
00053271 |
29/06/2005 |
Clarkson Library Petty Cash |
$223.50 |
|
|
|
|
Petty Cash |
|
|
|
00053272 |
29/06/2005 |
Miss J M McAuliffe |
$69.65 |
|
|
|
|
Reimbursement Toys & Puppets For Store Time – Clarkson Library |
|
|
|
00053273 |
29/06/2005 |
Aust Competency Standards |
$3,300.00 |
|
|
|
|
Implementation Of National Competency Standards - Fleet Services |
|
|
|
00053274 |
29/06/2005 |
Aust Local Government Training Ltd |
$470.00 |
|
|
|
|
Learning Resources For Trainees - E Skinner, A Barker & S Healy |
|
|
|
00053275 |
29/06/2005 |
Australian Institute of Family |
$39.00 |
|
|
|
|
Subscription Renewal Family Matters For Yanchep Community Centre |
|
|
|
00053276 |
29/06/2005 |
Blue Collar People |
$335.67 |
|
|
|
|
Heavy Duty Fitter (M Roach) - Fleet Maintenance |
|
|
|
00053277 |
29/06/2005 |
Botanic Golf Leapfrogs Cafe |
$100.00 |
|
|
|
|
2 X $50.00 Gift Vouchers For Family Day Care Services |
|
|
|
00053278 |
29/06/2005 |
CCH Australia Ltd |
$1,358.50 |
|
|
|
|
Matrimonial Property Guide - Community Services |
|
|
|
|
|
Subscription - Consumer Credit Law 31/05/05 - 31/05/06 |
|
|
|
00053279 |
29/06/2005 |
Coventry Fasteners |
$45.30 |
|
|
|
|
Various Parts - Fleet Maintenance |
|
|
|
00053280 |
29/06/2005 |
Dy-Mark (WA) Pty Ltd |
$1,093.62 |
|
|
|
|
Spray & Mark Paint - Operations |
|
|
|
00053281 |
29/06/2005 |
Ecosystem Management Services |
$7,337.00 |
|
|
|
|
Supply & Delivery Of Brush Materials - Operational Services |
|
|
|
00053282 |
29/06/2005 |
Fines Enforcement Registry |
$100.00 |
|
|
|
|
1 x Ratepayer Financial Services |
|
|
|
00053283 |
29/06/2005 |
Five Star Fencing |
$3,070.00 |
|
|
|
|
Repairs To Damaged Fence On Wanneroo Road Median Strip |
|
|
|
|
|
Supply & Fit Panels Of Fencing To Median Strip Wanneroo Road |
|
|
|
00053284 |
29/06/2005 |
Form Contemporary Craft & Design |
$55.00 |
|
|
|
|
Form Magazine Membership Group Application For K Costello |
|
|
|
00053285 |
29/06/2005 |
Grass Growers |
$53,792.20 |
|
|
|
|
Supply Plant & Operators To Mulch Greenwaste - May 2005 |
|
|
|
00053286 |
29/06/2005 |
JB Precise Engineering |
$2,943.60 |
|
|
|
|
Various Parts - Fleet Maintenance |
|
|
|
00053287 |
29/06/2005 |
Joondalup Carpet Court Flooring |
$247.50 |
|
|
|
|
Floor Covering To Water Drink Unit - Clarkson Library |
|
|
|
00053288 |
29/06/2005 |
Jurgen Lunsmann Photography |
$270.00 |
|
|
|
|
Professional Photography At Dolphin Olympics - Aquamotion |
|
|
|
00053289 |
29/06/2005 |
K Line Australia Pty Ltd |
$3,586.46 |
|
|
|
|
Fire Damaged Container Joint MRF Maintenance |
|
|
|
00053290 |
29/06/2005 |
Malavoca Pty Ltd |
$207,375.95 |
|
|
|
|
Clearing & Earthworks For Hepburn Aveenue Extension |
|
|
|
00053291 |
29/06/2005 |
Mindarie Regional Council |
$36,031.95 |
|
|
|
|
Refuse Disposal For Waste, Operations & Ranger Services |
|
|
|
00053292 |
29/06/2005 |
National Family Day Care Council |
$237.18 |
|
|
|
|
Annual Membership Based On 246 EFT'S - Includes Subscription To Quarterly Magazines |
|
|
|
00053293 |
29/06/2005 |
National Hire Trading Pty Limited |
$320.54 |
|
|
|
|
Hire Of Flashing Arrow - Operational Services |
|
|
|
00053294 |
29/06/2005 |
Non Organic Disposals |
$1,415.70 |
|
|
|
|
Glass Disposal – Waste Services |
|
|
|
00053295 |
29/06/2005 |
Owenbridge |
$1,144.00 |
|
|
|
|
Transport Glass Bin To Railroad From MRF - Waste Services |
|
|
|
00053296 |
29/06/2005 |
Perth Stripes & Signs |
$1,100.00 |
|
|
|
|
Supply & Install Signs With Logos - Ranger Services |
|
|
|
00053297 |
29/06/2005 |
Shenton Enterprises Pty Ltd |
$104.28 |
|
|
|
|
Repairs To Dolphin - Aquamotion |
|
|
|
00053298 |
29/06/2005 |
Swan Tafe |
$561.20 |
|
|
|
|
Enrolment Fees Cert II in Local Government, Semester 1 For B Sciaresca |
|
|
|
00053299 |
29/06/2005 |
Swan Taxis Company Operative Ltd |
$242.55 |
|
|
|
|
Cab Charges For March & April 2005 - Community Services |
|
|
|
00053300 |
29/06/2005 |
Transport & Storage ITC |
$4,356.00 |
|
|
|
|
ITC Traineeship - Waste Employees |
|
|
|
00053301 |
29/06/2005 |
Wheatbelt Area Consult Committee |
$33.00 |
|
|
|
|
Expo Grant Smart 20/5/05 Gingin - Economic Development |
|
|
|
00053302 |
29/06/2005 |
Integrated Group Ltd |
$10,270.12 |
|
|
|
|
Casual Labour For Various Departments |
|
|
|
00053303 |
22/06/2005 |
Satterley Property Group |
$21,184.05 |
|
|
|
|
Sub Division Bond Refund - Regent Waters Stage 6 |
|
|
|
00053304 |
30/06/2005 |
Aboriginal Seniors Group Petty Cash |
$50.00 |
|
|
|
|
Petty Cash |
|
|
|
00053305 |
30/06/2005 |
Alexander Heights Adult Day Care |
$75.80 |
|
|
|
|
Petty Cash |
|
|
|
00053306 |
30/06/2005 |
Clarkson Youth Centre Petty Cash |
$197.60 |
|
|
|
|
Petty Cash |
|
|
|
00053307 |
30/06/2005 |
Community Development Support |
$194.45 |
|
|
|
|
Petty Cash |
|
|
|
00053308 |
30/06/2005 |
Corporate Services Petty Cash |
$557.00 |
|
|
|
|
Petty Cash |
|
|
|
00053309 |
30/06/2005 |
Girrawheen Library Petty Cash |
$208.65 |
|
|
|
|
Petty Cash |
|
|
|
00053310 |
30/06/2005 |
Mobile Library Petty Cash |
$25.40 |
|
|
|
|
Petty Cash |
|
|
|
00053311 |
30/06/2005 |
Quinns Rocks Adult Day Care Petty |
$92.35 |
|
|
|
|
Petty Cash |
|
|
|
00053312 |
30/06/2005 |
Rangers & Safety Services Petty |
$130.55 |
|
|
|
|
Petty Cash |
|
|
|
00053313 |
30/06/2005 |
Alexander Heights Community House |
$108.75 |
|
|
|
|
Petty Cash |
|
|
|
00053314 |
30/06/2005 |
Wanneroo Library Petty Cash |
$124.60 |
|
|
|
|
Petty Cash |
|
|
|
00053315 |
30/06/2005 |
Yanchep Two Rocks Library Petty |
$7.70 |
|
|
|
|
Petty Cash |
|
|
|
00053316 |
30/06/2005 |
Clarkson Library Petty Cash |
$5.30 |
|
|
|
|
Petty Cash |
|
|
|
|
|
|
|
|
|
|
|
TOTAL Director of Corporate Services Advance - cheques |
$3,948,047.15 |
|
|
|
|
|
|
|
|
ELECTRONIC TRANSFER LISTING |
||||
|
|
|
|
|
|
|
00000256 |
01/06/2005 |
|
|
|
|
|
|
Australian Services Union |
$7.95 |
|
|
|
|
Payroll Ded: F/Ending: 30/05/05 |
|
|
|
|
|
AUSTRALIAN TAXATION OFFICE PAYG PAYMENTS |
$1,808.00 |
|
|
|
|
Payroll Ded: F/Ending: 30/05/05 |
|
|
|
|
|
Councillor Terry Loftus |
$620.97 |
|
|
|
|
Travel Allowance - May 2005 |
|
|
|
|
|
LGRCEU |
$14.30 |
|
|
|
|
Payroll Ded: F/Ending: 30/05/05 |
|
|
|
|
|
Mr Geoffrey Whyte |
$81.35 |
|
|
|
|
Reimbursement Of Funds For Sausage Sizzle - Leisure & Library Services |
|
|
|
|
|
Mr Michael Cole |
$1,187.10 |
|
|
|
|
Reimbursement Of Conference Expenses |
|
|
|
|
|
Wanneroo Dairy Supplies |
$344.20 |
|
|
|
|
Milk Deliveries For City |
|
|
|
|
|
|
|
|
|
00000257 |
02/06/2005 |
Cancelled |
$0.00 |
|
|
|
|
|
|
|
|
00000258 |
02/06/2005 |
Cancelled |
$0.00 |
|
|
|
|
|
|
|
|
00000259 |
02/06/2005 |
|
|
|
|
|
|
Anitech |
$610.24 |
|
|
|
|
Ink Tube Assembly & Labour Charges - Planning Services |
|
|
|
|
|
Austral Waste Recycling (WA) Pty Ltd |
$92,165.17 |
|
|
|
|
Recyclable Products - Waste Services |
|
|
|
|
|
Australian Turf Industries |
$41,017.07 |
|
|
|
|
Maintenance Work At Carramar & Marangaroo Golf Courses |
|
|
|
|
|
Brownbuilt Metalux Industries |
$78.98 |
|
|
|
|
Cupboard For Manager Leisure & Library Services |
|
|
|
|
|
Carramar Resources Industries |
$1,235.60 |
|
|
|
|
Sand For Various Locations - Engineering & Construction |
|
|
|
|
|
Carringtons Traffic Services |
$277.20 |
|
|
|
|
Traffic Control At Templeton Street - Operational Services |
|
|
|
|
|
Coventrys |
$130.67 |
|
|
|
|
Spare Parts - Fleet Maintenance |
|
|
|
|
|
De Neefe Signs Pty Ltd |
$3,782.68 |
|
|
|
|
Detour Left & Right Signs - Engineering Construction |
|
|
|
|
|
Various Signs - Parks Department |
|
|
|
|
|
Ice Technologies Australia Pty Ltd |
$1,369.34 |
|
|
|
|
Preventative Maintenance On 2 Ice Machines - Building Maintenance |
|
|
|
|
|
Mercury Fire Safety |
$194.00 |
|
|
|
|
Spare Part - Fire & Emergency Services |
|
|
|
|
|
Natural Area Management & Services |
$7,233.43 |
|
|
|
|
Weed Control At Yellagonga Park |
|
|
|
|
|
Parks & Leisure Australia |
$21,887.25 |
|
|
|
|
Renewal Of Membership For G Whyte - Leisure & Library Services |
|
|
|
|
|
Perth Expo Hire |
$3,491.40 |
|
|
|
|
Exhibition Equipment For Art Awards |
|
|
|
|
|
Peter Wood Pty Ltd |
|
|
|
|
|
Repair Fencing At Quinns Rocks Park |
$70.00 |
|
|
|
|
Roads 2000 Pty Ltd |
|
|
|
|
|
Services For View Street Quinns 18/04/05 & Rawlinson Road 13/04/05 - Operational Services |
|
|
|
|
|
WA Community Foundation Ltd |
|
|
|
|
|
Registrations Community Summit, Smarter, Stronger, Sustainable Communities 10/06/05 - Attendees T Forbes & J Tovey |
$7,532.09 |
|
|
|
|
Wanneroo Auto One |
$5,561.60 |
|
|
|
|
Equipment - Ranger Services |
|
|
|
|
|
Western Irrigation |
|
|
|
|
|
Pull Pump & Service At Covent Park |
|
|
|
|
|
Westside Concrete Contractors |
$11,869.87 |
|
|
|
|
Reticulation Charges For Various Locations - Operational Services |
|
|
|
|
|
|
$996.22 |
|
|
00000260 |
02/06/2005 |
|
|
|
|
|
|
Wanneroo Electric |
|
|
|
|
|
Electrical Maintenance At Various Locations |
|
|
|
|
|
Wanneroo Plumbing |
$152.60 |
|
|
|
|
Plumbing Services At Badgerup Recycling |
|
|
|
|
|
|
$1,349.80 |
|
|
00000262 |
08/06/2005 |
|
|
|
|
|
|
Australian Manufacturing Workers Union |
$212,257.70 |
|
|
|
|
Payroll Ded: F/Ending 3/06/2005 |
|
|
|
|
|
Australian Services Union |
$15,190.00 |
|
|
|
|
Payroll Ded: F/Ending 03/06/2005 |
|
|
|
|
|
AUSTRALIAN TAXATION OFFICE PAYG PAYMENTS |
$1,187.45 |
|
|
|
|
Payroll Ded: F/Ending 03/06/2005 |
|
|
|
|
|
Builders Registration Board |
$412.00 |
|
|
|
|
Collection Agency Fee For May 05 |
|
|
|
|
|
Child Support Agency |
$401.59 |
|
|
|
|
Payroll Ded: F/Ending 03/06/2005 |
|
|
|
|
|
City of Wanneroo - Social Club |
$2,597.80 |
|
|
|
|
Payroll Ded: F/Ending 03/06/2005 |
|
|
|
|
|
Councillor Laura Gray |
$1,287.00 |
|
|
|
|
Travel Allowance For May 2005 |
|
|
|
|
|
HBF Insurance |
$447.00 |
|
|
|
|
Payroll Ded: F/Ending 03/06/2005 |
|
|
|
|
|
LGRCEU |
|
|
|
|
|
Payroll Ded: F/Ending 03/06/2005 |
$320.20 |
|
|
|
|
Mr John Love |
|
|
|
|
|
Reimbursement Of Conference Expenses - LGMA National Congress |
|
|
|
|
|
Wanneroo Dairy Supplies |
$434.50 |
|
|
|
|
Milk Deliveries For City |
|
|
|
|
|
|
$8,051.69 |
|
|
00000263 |
08/06/2005 |
|
|
|
|
|
|
Absolute Blast Pty Ltd |
$6,525.57 |
|
|
|
|
Sandblast Trailer - Fleet Maintenance |
|
|
|
|
|
Beaurepaires For Tyres |
$969.51 |
|
|
|
|
Tyre Fitting Services - Fleet Maintenance |
|
|
|
|
|
BT Equipment Pty Ltd |
$3,594.13 |
|
|
|
|
Repairs To Mustang - Fleet Maintenance |
|
|
|
|
|
Bunnings Pty Ltd |
$14,164.92 |
|
|
|
|
Hardware Purchases - Building Maintenance |
|
|
|
|
|
Clean Sweep |
$211.20 |
|
|
|
|
Road Sweeping At Various Locations - Operational Services |
|
|
|
|
|
Corporate Express |
$1,529.00 |
|
|
|
|
Stationery Purchases For April 2005 |
|
|
|
|
|
De Neefe Signs Pty Ltd |
|
|
|
|
|
Exit Signs - Building Maintenance |
|
|
|
|
|
Geoffs Tree Service |
$7,931.00 |
|
|
|
|
Stump Removal From Various Locations |
|
|
|
|
|
Install Root Barrier At Whitsunday Avenue Ridgewood - Parks |
$623.34 |
|
|
|
|
Graffiti Systems Australia |
$1,408.05 |
|
|
|
|
Graffiti Removal From Various Locations - Building Maintenance |
|
|
|
|
|
Gronbek Security |
|
|
|
|
|
Service Call At Alexander Community Centre - Building Maintenance |
|
|
|
|
|
Major Motors |
|
|
|
|
|
Services & Spare Parts - Fleet Maintenance |
|
|
|
|
|
Metrocount |
$516.00 |
|
|
|
|
Road Flaps - Operational Services |
|
|
|
|
|
Mustang Print & Copy |
$132.00 |
|
|
|
|
Business Cards - Emergency Services |
|
|
|
|
|
Perth Home Care |
$15,069.50 |
|
|
|
|
Support Services For HACC Clients |
|
|
|
|
|
Service National Pty Ltd |
$682.00 |
|
|
|
|
Sump Service At Alexander Community Centre – Building Maintenance |
|
|
|
|
|
Truckline |
$749.44 |
|
|
|
|
Spare Parts - Fleet Maintenance |
|
|
|
|
|
Wanneroo Caravan Centre & Steel Fabricators |
$2,394.15 |
|
|
|
|
Steel Fabrication Works - Building Maintenance |
|
|
|
|
|
Wanneroo Hardware |
$41.24 |
|
|
|
|
Hardware Items - Building Maintenance |
|
|
|
|
|
WestCoast Jet |
$400.00 |
|
|
|
|
Ocean Encounters X 20 Gold Program - Community Services |
|
|
|
|
|
|
|
|
|
00000264 |
08/06/2005 |
|
|
|
|
|
|
Wanneroo Electric |
$1,794.51 |
|
|
|
|
Electrical Maintenance At Various Locations - Building Maintenance |
|
|
|
|
|
|
|
|
|
00000265 |
09/06/2005 |
|
|
|
|
|
|
Mr Michael Parker |
$1,287.27 |
|
|
|
|
Reimbursement Of Costs Associated With The Program "Finding My Way" - Leisure Services |
|
|
|
|
|
|
|
|
|
00000266 |
15/06/2005 |
|
|
|
|
|
|
Crosbie & Duncan Golf |
$23,992.31 |
|
|
|
|
Commission Fees For Carramar Golf Course For May 2005 |
|
|
|
|
|
|
|
|
|
00000267 |
15/06/2005 |
|
|
|
|
|
|
Amcap Distribution Centre |
$1,684.24 |
|
|
|
|
Parts - Fleet Maintenance |
|
|
|
|
|
Arbor Vitae Landscape Architecture |
$8,250.00 |
|
|
|
|
Wanneroo Inclusive Play - Strategic Projects |
|
|
|
|
|
Australian Institute of Management |
$180.00 |
|
|
|
|
2005 Subscription Membership Renewal For C Williams |
|
|
|
|
|
Convic International Pty Ltd |
$297.00 |
|
|
|
|
Professional Fees For Preparation Of Schematic Design Cost Plan - Infrastructure Services |
|
|
|
|
|
Courier Australia |
$162.89 |
|
|
|
|
Courier Charges |
|
|
|
|
|
Events Industry Assoc |
$180.00 |
|
|
|
|
Seminar Occupational Health & Safety 20/8/05 - Corporate Resources |
|
|
|
|
|
FESA |
$60,597.44 |
|
|
|
|
ESL Return For May 2005 |
|
|
|
|
|
Lasso E & P Pty Ltd |
$269.50 |
|
|
|
|
Juggling Workshop On 13/04/05 At Clarkson Library |
|
|
|
|
|
McIntosh & Son |
$1,143.86 |
|
|
|
|
Gear Motor - Fleet Maintenance |
|
|
|
|
|
Courier Charge - Fleet Maintenance |
|
|
|
|
|
National Hire Trading Pty Limited |
$143.00 |
|
|
|
|
Generator Hire For Safer Citizen Event -Teddys Tea Party |
|
|
|
|
|
Onesteel Distribution |
$87.12 |
|
|
|
|
Flat Bar - Fleet Maintenance |
|
|
|
|
|
SAI Global Ltd |
$1,193.50 |
|
|
|
|
Licence Fee For Building & Fleet Services |
|
|
|
|
|
Salmat |
$382.09 |
|
|
|
|
Mailout For Promotion - Clarkson Library |
|
|
|
|
|
The Printing Factory |
$197.52 |
|
|
|
|
Agenda Certificate Sheets - Executive Services |
|
|
|
|
|
|
|
|
|
00000268 |
15/06/2005 |
|
|
|
|
|
|
Wanneroo Electric |
$2,675.14 |
|
|
|
|
Electrical Maintenance At Various Locations |
|
|
|
|
|
Wanneroo Plumbing |
$15,683.16 |
|
|
|
|
Plumbing Services At Various Locations |
|
|
|
|
|
|
|
|
|
00000269 |
16/06/2005 |
|
|
|
|
|
|
AUSTRALIAN TAXATION OFFICE PAYG PAYMENTS |
$8,042.78 |
|
|
|
|
Payroll Ded: F/Ending: 13/06/05 |
|
|
|
|
|
Councillor Laura Gray |
$618.95 |
|
|
|
|
Reimbursement For Desk, Desk End &Chair |
|
|
|
|
|
Duncan & Crosbie Pro Golf WA Pty Ltd |
$21,317.40 |
|
|
|
|
Commission Fees For Marangaroo Golf Course For May 2005 |
|
|
|
|
|
Eclipse Resources Pty Ltd |
$17,107.75 |
|
|
|
|
Waste Disposal - Parks & Engineering Construction |
|
|
|
|
|
LGRCEU |
$50.62 |
|
|
|
|
Payroll Ded: F/Ending: 10-13/06/05 |
|
|
|
|
|
Medical Hand |
$3,726.80 |
|
|
|
|
Immunisation – Staff, Schools & Clinics |
|
|
|
|
|
Ms Fiona Bentley |
$230.00 |
|
|
|
|
Reimbursement – 20 X Grand Cinema Tickets For Staff Incentive/ Staff Training/Staff Thank You |
|
|
|
|
|
Wanneroo Dairy Supplies |
$394.60 |
|
|
|
|
Milk Deliveries For City |
|
|
|
|
|
|
|
|
|
00000270 |
17/06/2005 |
|
|
|
|
|
|
Transplan Pty Ltd |
$9,682.20 |
|
|
|
|
Trails Master Plan Stage 2 - Leisure Services |
|
|
|
|
|
|
|
|
|
00000271 |
20/06/2005 |
|
|
|
|
|
|
Councillor Brett Treby |
$500.00 |
|
|
|
|
Councillors Allowance |
|
|
|
|
|
Councillor Glynis Monks |
$500.00 |
|
|
|
|
Councillors Allowance |
|
|
|
|
|
Councillor Ian Goodenough |
$500.00 |
|
|
|
|
Councillors Allowance |
|
|
|
|
|
Councillor Laura Gray |
$500.00 |
|
|
|
|
Councillors Allowance |
|
|
|
|
|
Councillor Mark Pearson |
$500.00 |
|
|
|
|
Councillors Allowance |
|
|
|
|
|
Councillor Rudi Steffens |
$500.00 |
|
|
|
|
Councillors Allowance |
|
|
|
|
|
Councillor Terry Loftus |
$500.00 |
|
|
|
|
Councillors Allowance |
|
|
|
|
|
Councillor Tracey Roberts |
$500.00 |
|
|
|
|
Councillors Allowance |
|
|
|
|
|
Mayor J Kelly |
$5,800.00 |
|
|
|
|
Mayoral Allowance |
|
|
|
|
|
|
|
|
|
00000272 |
25/06/2005 |
|
|
|
|
|
|
Accessible Transit Specialists |
$1,410.00 |
|
|
|
|
Maintenance & Repairs To WN31760 – Fleet Maintenance |
|
|
|
|
|
Adasound |
$818.40 |
|
|
|
|
Sound System Repairs - Aquamotion |
|
|
|
|
|
Aerobics Music System Repairs - Aquamotion |
|
|
|
|
|
Adform |
$851.40 |
|
|
|
|
Reflective Helmet Stickers, Honour Board Upgrades & Door Sign - Fire Services |
|
|
|
|
|
Agent Sales & Services Pty Ltd |
$697.95 |
|
|
|
|
Pool Chemicals - Aquamotion |
|
|
|
|
|
AHG Paper & Magazine Delivery |
$33.90 |
|
|
|
|
Newspaper Delivery - Girrawheen Library |
|
|
|
|
|
Air Liquide WA Pty Ltd |
$278.75 |
|
|
|
|
Gas Cylinder Hire - Stores & Parks |
|
|
|
|
|
A-Line Brick Paving |
$4,080.78 |
|
|
|
|
Paving At Queensway Pass -rOperations |
|
|
|
|
|
Paving Reinstatement At Various Locations - Engineering |
|
|
|
|
|
Allmark & Associates Pty Ltd |
$3,435.19 |
|
|
|
|
Stationery Supplies - Library Services |
|
|
|
|
|
Navy Cotton Caps With Logo Get Active - Leisure Services |
|
|
|
|
|
Amcap Distribution Centre |
$18,417.86 |
|
|
|
|
Vehicle Spare Parts - Fleet Maintenance |
|
|
|
|
|
Anitech |
$12.94 |
|
|
|
|
Meter Reading Charge Kip 2900 - Planning Services |
|
|
|
|
|
Arbor Vitae Landscape Architecture |
$13,475.00 |
|
|
|
|
Scenic Drive Playground (Special Needs) - Strategic Projects |
|
|
|
|
|
Armaguard |
$958.88 |
|
|
|
|
Safe/Cash Collections - Clarkson Library, Aquamotion, Works Depot |
|
|
|
|
|
Armstrong Energy |
$437.75 |
|
|
|
|
Mower Spare Parts – Depot Stores |
|
|
|
|
|
Bushes – Depot Stores |
|
|
|
|
|
Arteil WA Pty Ltd |
$1,529.00 |
|
|
|
|
Chairs (Ergonomic With Arms) - Health & Development Services |
|
|
|
|
|
Atlas Steels Pty Ltd |
$196.91 |
|
|
|
|
Spare Parts - Fleet Maintenance |
|
|
|
|
|
Austral Waste Recycling (WA) Pty Ltd |
$44,426.78 |
|
|
|
|
Badgerup Recycling - Waste Services |
|
|
|
|
|
Australian Airconditioning Services Pty Ltd |
$16,068.28 |
|
|
|
|
Airconditioning Services At Various Locations – Building Maintenance |
|
|
|
|
|
Australian Institute of Management |
$3,868.00 |
|
|
|
|
2005 Corporate Membership Renewal |
|
|
|
|
|
Training ‘Taking Minutes & Preparing Meetings’ 1/06/05 – Attendee K Dickson |
|
|
|
|
|
Training ‘Experienced Supervisor’ 22 - 24/06/05 – Attendee D Greer |
|
|
|
|
|
Australian Plant Wholesalers |
$168.30 |
|
|
|
|
Plants - Marketing Services |
|
|
|
|
|
Australian Property Consultants |
$1,320.00 |
|
|
|
|
Valuation Of Lot 232 Dellamarta Road -Contracts & Properties |
|
|
|
|
|
Australian Turf Industries |
$41,017.07 |
|
|
|
|
Maintenance Works At Carramar & Marangaroo Golf Courses For May 2005 - Operational Services |
|
|
|
|
|
Autosmart International |
$495.00 |
|
|
|
|
Reinol Hand Cleaner - Fleet Maintenance |
|
|
|
|
|
Active 8 - Fleet Maintenance |
|
|
|
|
|
Barloworld Coatings (Aust) Pty Ltd |
$84.40 |
|
|
|
|
Paint , Stain Stop Sealer - Building Maintenance |
|
|
|
|
|
Beaurepaires For Tyres |
$32,872.78 |
|
|
|
|
Tyre Fitting Services - Fleet Maintenance |
|
|
|
|
|
Belair Smash Repairs Pty Ltd |
$1,107.70 |
|
|
|
|
Insurance Excess For WN31976 - Contracts & Property |
|
|
|
|
|
Insurance Excess For WN410 - Contracts & Property |
|
|
|
|
|
Beryl Weston |
$60.00 |
|
|
|
|
Cleaning Of Hall - Aboriginal Day Centre |
|
|
|
|
|
BGC Blokpave |
$7,303.32 |
|
|
|
|
Pavers Delivered To Various Project Sites - Operations |
|
|
|
|
|
Blade Skate Pty Ltd |
$66.00 |
|
|
|
|
Gift Vouchers - Community Youth Services |
|
|
|
|
|
BOC Gases Account Processing |
$59.71 |
|
|
|
|
Oxygen Cylinder Refill - Aquamotion |
|
|
|
|
|
Bolinda Publishing Pty Ltd |
$1,334.15 |
|
|
|
|
Books Purchases - Library Services |
|
|
|
|
|
Boral Construction Materials Group Ltd |
$6,482.08 |
|
|
|
|
Concrete Products Delivered To Various Project Sites – Operational Services |
|
|
|
|
|
Boya Equipment |
$826.83 |
|
|
|
|
Spare Parts - Fleet Maintenance |
|
|
|
|
|
BP Australia Ltd |
$142,270.26 |
|
|
|
|
Fuel Issues For May 2005 |
|
|
|
|
|
Engine Oil - Depot Store Stock |
|
|
|
|
|
Bravo Hire |
$184.00 |
|
|
|
|
Equipment Hire - Parks Department |
|
|
|
|
|
Brownbuilt Metalux Industries |
$1,267.93 |
|
|
|
|
Cupboard Shelf - Building & Fleet Maintenance |
|
|
|
|
|
Filing Cabinet - Community Services |
|
|
|
|
|
Cupboard - Leisure & Library Services |
|
|
|
|
|
Budget Portables |
$1,152.76 |
|
|
|
|
Equipment Hire - Engineering & Construction |
|
|
|
|
|
Bullivants Pty Ltd |
$528.00 |
|
|
|
|
Various Items - Engineering |
|
|
|
|
|
Chain With Grab Hook Both Ends For Engineering Department |
|
|
|
|
|
Bunnings Pty Ltd |
$1,049.74 |
|
|
|
|
Hardware Purchases For Various Departments |
|
|
|
|
|
Bywest Pty Ltd |
$1,821.05 |
|
|
|
|
Mower Spare Parts - Depot Store Stock |
|
|
|
|
|
Cadbury Schweppes Pty Ltd |
$198.63 |
|
|
|
|
Drinks For Kiosk - Aquamotion |
|
|
|
|
|
Cardno BSD Pty Ltd |
$5,940.00 |
|
|
|
|
Consultancy Services - Infrastructure Design & Documentation Of The Alexander Drive Dual Carriageway Project |
|
|
|
|
|
Carramar Resources Industries |
$2,195.16 |
|
|
|
|
Sand For Various Locations - Engineering |
|
|
|
|
|
Carringtons Traffic Services |
$15,644.21 |
|
|
|
|
Traffic Controller For Various Locations - Operations |
|
|
|
|
|
CBC Bearings WA Pty Ltd |
$2,507.49 |
|
|
|
|
Vehicle Bearings - Depot Stores & Fleet Maintenance |
|
|
|
|
|
CCI Legal Service Pty Ltd |
$2,494.80 |
|
|
|
|
Legal Advice 3-20/5/2005 - Corporate Resources |
|
|
|
|
|
Centreline Markings |
$10,896.60 |
|
|
|
|
Lay Tactile Paving To Various Roads - Operations |
|
|
|
|
|
Chadson Engineering Pty Ltd |
$176.00 |
|
|
|
|
Test Tubes - Aquamotion |
|
|
|
|
|
Challenge Batteries WA |
$915.20 |
|
|
|
|
Vehicle Batteries - Depot Store Stock |
|
|
|
|
|
Charter Plumbing & Gas |
$85.25 |
|
|
|
|
Repair Billi Unit At Main Administration Centre |
|
|
|
|
|
Chef Excel Pty Ltd |
$11,471.00 |
|
|
|
|
Catering Services For Council Functions |
|
|
|
|
|
City Business Machines |
$2,990.10 |
|
|
|
|
Computer Equipment – I.T. Services |
|
|
|
|
|
CJD Equipment Pty Ltd |
$1,145.37 |
|
|
|
|
Various Parts - Fleet Maintenance |
|
|
|
|
|
Clean Sweep |
$7,361.32 |
|
|
|
|
Road Sweeping At Various Locations - Operations |
|
|
|
|
|
Coca Cola Amatil Pty Ltd |
$426.23 |
|
|
|
|
Beverages For Elected Members |
|
|
|
|
|
Coffee Advisory Service |
$112.00 |
|
|
|
|
Refreshments For Elected Members |
|
|
|
|
|
Communique Wangara |
$510.00 |
|
|
|
|
Install Nokia Car Kit & Repair Nokia – I.T. Services |
|
|
|
|
|
Complete Turf Supplies |
$726.00 |
|
|
|
|
Supply & Lay Turf Lighthouse Road Mindarie - Parks |
|
|
|
|
|
Computercorp |
$1,047.05 |
|
|
|
|
Toner Stock - I.T. Services |
|
|
|
|
|
Conan Group |
$1,578.50 |
|
|
|
|
Book Purchases – I.T. Services |
|
|
|
|
|
Training Itil Change, Release & Configuration Management 27-28/07/05 – Attendee H Gill |
|
|
|
|
|
Cookies & More |
$45.11 |
|
|
|
|
Various Supplies For Elected Members |
|
|
|
|
|
Cottman Australia |
$67.79 |
|
|
|
|
Viraclean - Community Services |
|
|
|
|
|
Couplers Malaga |
$64.00 |
|
|
|
|
Small Garden Hose - Parks |
|
|
|
|
|
Courier Australia |
$449.90 |
|
|
|
|
Courier Services For Various Departments |
|
|
|
|
|
Coventrys |
$3,337.62 |
|
|
|
|
Tools & Vehicle Spare Parts For Various Departments |
|
|
|
|
|
Crommelins Handyman Hire & Sales |
$1,648.42 |
|
|
|
|
Equipment Hire - Parks Department |
|
|
|
|
|
Cummins Engine Company Pty Ltd |
$4,874.02 |
|
|
|
|
20,000ltrs Coolant - Depot Store Stock |
|
|
|
|
|
Various Parts For Fleet Maintenance |
|
|
|
|
|
Cutting Edges Pty Ltd |
$319.44 |
|
|
|
|
Various Parts - Fleet Maintenance |
|
|
|
|
|
Daniels Sharpsmart Australia Pty Ltd |
$95.26 |
|
|
|
|
Needles - Development & Health Services |
|
|
|
|
|
DBS Fencing |
$4,160.20 |
|
|
|
|
Repair Colourbond Security Fence - Waste Services |
|
|
|
|
|
Gate Brackets - Parks Department |
|
|
|
|
|
Supply & Install Rail & Fencing - Building Maintenance |
|
|
|
|
|
Supply & Install Security Fencing - Building Maintenance |
|
|
|
|
|
De Neefe Signs Pty Ltd |
$18,852.96 |
|
|
|
|
No Parking Signs For V8 Supercars Event - Ranger Services |
|
|
|
|
|
Magnetic Numbers, Street Name Plates, Directional Plates & Installation Of Pillar Faces - Operational Services |
|
|
|
|
|
Signs For No Diving, Fishing, Detour Signs, No Through Road Signs, Wanneroo Golf Club - Operational Services |
|
|
|
|
|
Signs For Mobile Library, Bulk Refuse & -Parks |
|
|
|
|
|
Yellow Handrails - Depot Store Stock |
|
|
|
|
|
Delaware North Australia WACA |
$3,997.00 |
|
|
|
|
Catering For Various Council Functions |
|
|
|
|
|
Deltaline Security |
$536.25 |
|
|
|
|
Guard Service - Wanneroo Community Hall |
|
|
|
|
|
Dexion Osborne Park |
$1,237.80 |
|
|
|
|
Stationery – Corporate Resources |
|
|
|
|
|
Diamond Lock & Key |
$965.35 |
|
|
|
|
Vinco Padlock &Postage - Fleet Maintenance |
|
|
|
|
|
Padlocks - Depot Store Stock |
|
|
|
|
|
Didasko Solutions Pty Ltd |
$989.65 |
|
|
|
|
2M Data Connection Monthly Fee – I.T. Services ($671.00) |
|
|
|
|
|
Microwave For April 2005 Excess Data Charge ($318.65) |
|
|
|
|
|
Diesel Motors |
$109.15 |
|
|
|
|
Vehicle Spare Parts - Fleet Maintenance |
|
|
|
|
|
Diesels Plus |
$534.84 |
|
|
|
|
Vehicle Spare Parts - Fleet Maintenance |
|
|
|
|
|
Drive In Electrics |
$405.95 |
|
|
|
|
Vehicle Spare Parts - Fleet Maintenance |
|
|
|
|
|
Driveshaft Balancing Services |
$459.80 |
|
|
|
|
Repair Driveshaft - Fleet Maintenance |
|
|
|
|
|
E & MJ Rosher |
$686.15 |
|
|
|
|
Vehicle Spare Parts - Fleet Maintenance |
|
|
|
|
|
Early Childhood Australia Inc |
$425.80 |
|
|
|
|
Resource Books – Children’s Services |
|
|
|
|
|
Earthwest |
$102.85 |
|
|
|
|
Service 98073 - Fleet Maintenance |
|
|
|
|
|
Elliotts Irrigation Pty Ltd |
$583.13 |
|
|
|
|
Reticulation Items & Trenching Shovel - Parks Department |
|
|
|
|
|
Entire IT |
$269.50 |
|
|
|
|
Consulting Fees - Install System Updates On Workstations – Marketing Services |
|
|
|
|
|
ERS Australia Pty Ltd |
$514.80 |
|
|
|
|
Service Parts Washers - Fleet Maintenance |
|
|
|
|
|
FESA |
$3,363.93 |
|
|
|
|
Contract Service Period 1-28/04/05 Cost Sharing For The Community Fire Manager Between FESA & City |
|
|
|
|
|
Flextool |
$335.50 |
|
|
|
|
Measuring Wheel - Parks |
|
|
|
|
|
Forcorp Pty Ltd |
$1,254.00 |
|
|
|
|
Strobe Lights - Fleet Maintenance |
|
|
|
|
|
Forpark Australia |
$1,487.42 |
|
|
|
|
Playground Equipment - Parks |
|
|
|
|
|
Fortron Automotive Treatments Pty Ltd |
$396.00 |
|
|
|
|
Aerosol Fortron Parts –Depot Stores Stock |
|
|
|
|
|
Fuji Xerox Australia Pty Ltd |
$1,482.99 |
|
|
|
|
Equipment Lease 20/6/05 - 20/4/05 – Reprographics ($1,358.50) |
|
|
|
|
|
Copy Charges 1/1 - 31/3/05 – Reprographics ($124.49) |
|
|
|
|
|
Geoffs Tree Service |
$22,261.80 |
|
|
|
|
Tree Services - Parks Department |
|
|
|
|
|
Globe Australia Pty Ltd |
$441.41 |
|
|
|
|
David Golf Tournament Ballwasher - Engineering |
|
|
|
|
|
GM & J Lombardi Pty Ltd |
$249.37 |
|
|
|
|
Spare Parts - Fleet Maintenance |
|
|
|
|
|
GPR Truck Sales & Service |
$616.50 |
|
|
|
|
Wheel Alignment & Axle Correction - Fleet Maintenance |
|
|
|
|
|
Graffiti Systems Australia |
$7,705.50 |
|
|
|
|
Graffiti Removal From Various Sites - Building Maintenance |
|
|
|
|
|
Greens Hiab Service |
$382.80 |
|
|
|
|
Move Goal Posts - Parks |
|
|
|
|
|
Hire Of Hiab At Ridgewood Park |
|
|
|
|
|
Gronbek Security |
$221.10 |
|
|
|
|
Keying Services At Various Locations - Building Maintenance |
|
|
|
|
|
Hamilton Sawmills Pty Ltd |
$99.00 |
|
|
|
|
Firewood - Buckingham House |
|
|
|
|
|
Harbottle On Premise |
$461.48 |
|
|
|
|
Beverages For Elected Members |
|
|
|
|
|
Heavy Automatics |
$24,030.73 |
|
|
|
|
Repairs For Fleet Maintenance |
|
|
|
|
|
Hitachi Construction Machinery Pty Ltd |
$2,919.47 |
|
|
|
|
Various Vehicle Filters - Depot Store Stock |
|
|
|
|
|
Home Chef |
$7,390.41 |
|
|
|
|
Meals For HACC/CACP Clients - Community Services |
|
|
|
|
|
Hosemasters |
$767.82 |
|
|
|
|
Hose Fittings - Fleet Maintenance |
|
|
|
|
|
Host Direct |
$316.80 |
|
|
|
|
Glasses For Civic Functions |
|
|
|
|
|
Hydro Plan |
$973.50 |
|
|
|
|
Consultancy Fees Associated With Design Work For Charnwood Reserve April Parks Department |
|
|
|
|
|
ID Consulting Pty Ltd |
$825.00 |
|
|
|
|
Quarterly Subscription Fee May To July 2005 - Governance |
|
|
|
|
|
Intercity Office Partitioning |
$3,465.00 |
|
|
|
|
Supply & Install Metal Clad Wall For The Muster Shed - Depot |
|
|
|
|
|
J & L Communications |
$158.40 |
|
|
|
|
Headset – I.T. Services |
|
|
|
|
|
Jaycar Electronics |
$67.90 |
|
|
|
|
Horn Speakers For Weighbridge - Waste Services |
|
|
|
|
|
Jmac Industries |
$1,248.50 |
|
|
|
|
Cleaning Rag Mix Cotton - Depot Stores Stock |
|
|
|
|
|
Red Devil Degreaser – Fleet Maintenance |
|
|
|
|
|
John Perkins Metal Products |
$10,725.00 |
|
|
|
|
Supply 5 Retic Cabinets - Parks |
|
|
|
|
|
Joondalup Drive Medical Centre |
$72.60 |
|
|
|
|
Pre-Employment Medical For G Feint - Ranger Services |
|
|
|
|
|
Kerbing West |
$23,762.27 |
|
|
|
|
Kerbing Works At Various Locations - Engineering |
|
|
|
|
|
Knight & Sons |
$139.60 |
|
|
|
|
Animal Food - Ranger Services |
|
|
|
|
|
Koorong |
$476.54 |
|
|
|
|
Books Purchases - Library Services |
|
|
|
|
|
Kyocera Mita Aust P/L |
$838.01 |
|
|
|
|
Copy Charges For Various Departments |
|
|
|
|
|
L & T Venables |
$722.54 |
|
|
|
|
Various Parts - Waste Services |
|
|
|
|
|
Various Items - Parks Department |
|
|
|
|
|
Spare Parts - Fleet Maintenance |
|
|
|
|
|
Ladybirds Plant Hire |
$157.30 |
|
|
|
|
Hire Indoor Plants For May 2005 |
|
|
|
|
|
Latitude Creative Services |
$1,802.90 |
|
|
|
|
Wanneroo Living History Milestone Phrase 3 & 4 - Leisure & Library Services |
|
|
|
|
|
Liftrite Toyota |
$91.85 |
|
|
|
|
10 Keys - Environmental Waste Services |
|
|
|
|
|
MacDonald Johnston Engineering Company Pty Ltd |
$23,315.26 |
|
|
|
|
Vehicle Spare Parts - Fleet Maintenance & Depot Stores Stock |
|
|
|
|
|
Major Motors |
$93,111.01 |
|
|
|
|
New Vehicle Purchase Isuzu Crew Cab WN035 ($39,383.40) |
|
|
|
|
|
New Vehicle Purchase Isuzu Crew Cab WN32309 ($53,020.35) |
|
|
|
|
|
Various Parts - Fleet Maintenance |
|
|
|
|
|
Matrix Wholesalers |
$172.20 |
|
|
|
|
Beverages For Elected Members |
|
|
|
|
|
Mayday Earthmoving |
$31,323.71 |
|
|
|
|
Heavy Equipment Hire - Operations & Waste Services |
|
|
|
|
|
McLeods Barristers & Solicitors |
$2,003.10 |
|
|
|
|
Professional Fees: Prosecution: Mr LC Mason |
|
|
|
|
|
Legal Fees: Eco Tourism Beach Access - Ranger Services |
|
|
|
|
|
Legal Fees: Club At Lot 2 Berriman Drive Stop Direction – Development & Health Services |
|
|
|
|
|
Memo Communications |
$776.16 |
|
|
|
|
Nicad Battery - Parks Maintenance |
|
|
|
|
|
Radio Repairs To Fire Vehicle – Fire Services |
|
|
|
|
|
Remove & Reinstall Two-Way Radio - Fleet Maintenance |
|
|
|
|
|
Mercury Fire Safety |
$5,579.83 |
|
|
|
|
10 x Fire Helmets & Accessories, Couplings & Fire Boots – Fire Services |
|
|
|
|
|
Fire Walker Gloves - Fire Services |
|
|
|
|
|
Overhaul Nozzle - Fire Services |
|
|
|
|
|
Extinguisher Services At Various Locations - Building |
|
|
|
|
|
Mey Equipment |
$29.15 |
|
|
|
|
Accelerator Cable - Fleet Maintenance |
|
|
|
|
|
Mike Geary Signs |
$1,844.70 |
|
|
|
|
Advertising Sign For Art Gallery |
|
|
|
|
|
Video Surveillance Stickers |
|
|
|
|
|
Metal Signs For Workshop Depot |
|
|
|
|
|
Supply Child Care Centre Sign At St Barnabus Drive, Quinns Rocks - Development & Health Services - |
|
|
|
|
|
Mindarie Auto Parts |
$4,362.85 |
|
|
|
|
Auto Parts Eco Youth Program - Economic Development |
|
|
|
|
|
Mindarie Bus Charter Pty Ltd |
$775.99 |
|
|
|
|
Bus Charter For Gold Program - Community Services |
|
|
|
|
|
Miracle Recreation Equipment Pty Ltd |
$4,125.00 |
|
|
|
|
Cyclone Slide & Deck For Amery Park |
|
|
|
|
|
Mirco Bros Pty Ltd |
$366.13 |
|
|
|
|
Measuring Jugs - Parks |
|
|
|
|
|
Safety Supplies - Waste Services |
|
|
|
|
|
Mobile Glass |
$1,104.36 |
|
|
|
|
Glass Repairs At Various Locations - Building Maintenance |
|
|
|
|
|
Mobile Shred Onsite |
$44.00 |
|
|
|
|
Takeaway Bin Shredding - Contracts & Properties |
|
|
|
|
|
Modern Teaching Aids Pty Ltd |
$354.53 |
|
|
|
|
Toys For Playgroup & Libraries |
|
|
|
|
|
Moore Business Systems |
$2,464.00 |
|
|
|
|
Swiftmail Forms - Library Service |
|
|
|
|
|
Morley Mower Centre |
$1,536.15 |
|
|
|
|
Various Parts - Fleet Maintenance & Depot Store |
|
|
|
|
|
MP Rogers & Associates Pty Ltd |
$759.08 |
|
|
|
|
Professional Services For Evaluation Of Coastal Erosion At Two Rocks – Operational Services |
|
|
|
|
|
MTU Detroit Diesel Australia |
$116.05 |
|
|
|
|
Repairs To Transmission - Fleet Maintenance |
|
|
|
|
|
Mustang Print & Copy |
$132.00 |
|
|
|
|
Business Cards For Various Staff |
|
|
|
|
|
Mystery Shopping International |
$713.20 |
|
|
|
|
Mystery Shopping - Strategic & Executive Services |
|
|
|
|
|
Mytec |
$217.80 |
|
|
|
|
Banner On Scrim Vinyl With Rope - Marketing Services |
|
|
|
|
|
National Hire Trading Pty Limited |
$427.40 |
|
|
|
|
Hire Of Arrow Board - Operations |
|
|
|
|
|
Nationwide Training |
$17,220.00 |
|
|
|
|
Traineeships - Waste Services |
|
|
|
|
|
Provisional Improvement Notice Training 30/05/05 – Attendees K Hunter, K O'Donnald, V Hall, M Seth & V Bridge |
|
|
|
|
|
Nec Business Solutions Pty Ltd |
$2,101.29 |
|
|
|
|
Renewal Of Necare Service Agreement 1/07/05-30/09/05 – I.T. Services |
|
|
|
|
|
Place Extensions Into Hunt Group – I.T. Services |
|
|
|
|
|
Network Foods Australia Pty Ltd |
$111.31 |
|
|
|
|
Supplies For Elected Members |
|
|
|
|
|
Nick Del Borrello |
$8,959.50 |
|
|
|
|
Contract Labour - Fleet Maintenance |
|
|
|
|
|
North Metro Catchment Group Inc |
$736.45 |
|
|
|
|
Weed Control At Various Locations - Parks |
|
|
|
|
|
Northern Districts Pest Control |
$253.00 |
|
|
|
|
Pest Control At Various Sites |
|
|
|
|
|
Nuford |
$2,818.80 |
|
|
|
|
Services For Various Vehicles - Fleet Maintenance |
|
|
|
|
|
Onesteel Distribution |
$1,095.38 |
|
|
|
|
Various Steel Products - Fleet Maintenance |
|
|
|
|
|
Optima Press |
$3,795.00 |
|
|
|
|
Environmental Excellence Awards – Planning Services |
|
|
|
|
|
Junk Services Brochure - Waste Services |
|
|
|
|
|
P & M Automotive Equipment |
$78.65 |
|
|
|
|
Hoist Inspection - Fleet Maintenance |
|
|
|
|
|
Pacific Brands Apparel |
$639.80 |
|
|
|
|
Staff Uniforms – Depot Stores Stock |
|
|
|
|
|
Paper Pak WA |
$79.20 |
|
|
|
|
Brown Paper Bags – Marketing Services |
|
|
|
|
|
Parins |
$500.00 |
|
|
|
|
Insurance Excess On WN31595 – Contracts & Property |
|
|
|
|
|
Pax Books |
$541.65 |
|
|
|
|
Book Purchases - Library Services |
|
|
|
|
|
Perth Home Care |
$5,971.25 |
|
|
|
|
Support Services For HACC/CACP Clients |
|
|
|
|
|
Peter Wood Pty Ltd |
$18,266.82 |
|
|
|
|
Replace Fencing To Walkway Foreshore Vista - Engineering |
|
|
|
|
|
Supply & Install Bollards To Wanneroo Town Site Pathways |
|
|
|
|
|
Kinsale Park Conservation Project - Engineering |
|
|
|
|
|
PJ & CA Contracting |
$1,138.50 |
|
|
|
|
Relocate Spring Critter At Gumblossom Park |
|
|
|
|
|
Relocation Of Picnic Shelter At Ridgewood Park |
|
|
|
|
|
PK Print Pty Ltd |
$4,420.90 |
|
|
|
|
Presentation Folders For Heritage Places |
|
|
|
|
|
Mobile Library Information Folder |
|
|
|
|
|
Youth Career Expo - Economic Development |
|
|
|
|
|
Planning Institute Australia WA Division |
$70.00 |
|
|
|
|
Policy Platform Forum CPD Program - Major Event Development & Planning |
|
|
|
|
|
2005 Awards Launch 31/05/05 - Attendee C Williams |
|
|
|
|
|
PLE Computers |
$36.60 |
|
|
|
|
Computer Accessories – I.T. Services |
|
|
|
|
|
Poolegrave Engravers |
$929.50 |
|
|
|
|
Supply & Install Sign Plate & Plaque For Quinns Mindarie Surf Life Saving Club - Infrastructure |
|
|
|
|
|
Precision Fluid Power |
$2,998.61 |
|
|
|
|
Repairs To Rubbish Baler - Waste Services |
|
|
|
|
|
Prestige Alarms |
$1,477.50 |
|
|
|
|
Alarm Call Out To Various Locations - Building Maintenance |
|
|
|
|
|
Pro Tramp Australia Pty Ltd |
$460.79 |
|
|
|
|
Pool Equipment - Aquamotion |
|
|
|
|
|
Productive Plastics |
$462.00 |
|
|
|
|
Poly Screens - Fleet Maintenance |
|
|
|
|
|
Protech International Group Pty Ltd |
$601.70 |
|
|
|
|
Various Services – I.T. Services |
|
|
|
|
|
Protector Alsafe |
$1,743.26 |
|
|
|
|
Safety Items - Depot Stores Stock |
|
|
|
|
|
Qualcon Laboratories |
$359.70 |
|
|
|
|
Pavement Investigation For Dundebar Road - Engineering |
|
|
|
|
|
Core Analysis At Joondalup Drive - Engineering |
|
|
|
|
|
Quantum Multimedia Communications |
$97.47 |
|
|
|
|
Fire Services SMS Account |
|
|
|
|
|
Quickcopy Audio Services |
$212.85 |
|
|
|
|
CD Cases For Girrawheen Library |
|
|
|
|
|
RCG Pty Ltd |
$6,611.40 |
|
|
|
|
Land Fill & Rubble Mix -Engineering |
|
|
|
|
|
Readymix Holdings Pty Ltd |
$16,451.79 |
|
|
|
|
Concrete Delivered To Various Sites - Operational Services |
|
|
|
|
|
Reclaim Industries Ltd |
$5,742.00 |
|
|
|
|
Install Rubberised Softfall At Wanneroo Playgroup - Operations |
|
|
|
|
|
Reekie Property Services |
$44,551.63 |
|
|
|
|
Cleaning Services For April & May 2005 |
|
|
|
|
|
Cleaning Of Kitchen For May 2005 - Marketing Services |
|
|
|
|
|
Roads 2000 Pty Ltd |
$52,334.70 |
|
|
|
|
Laying Of Road Material At Various Locations - Operations |
|
|
|
|
|
Roc Candy |
$640.00 |
|
|
|
|
Personalised Roc Candy - MarketingServices |
|
|
|
|
|
Rocla Quarry Products |
$312.59 |
|
|
|
|
Sand Yellow (Filling) - Depot Stores Stock |
|
|
|
|
|
Romark Consulting Pty Ltd |
$3,927.00 |
|
|
|
|
Annual Maintenance Fees 1/07/05 - 30/06/06 - Governance & Strategic Services |
|
|
|
|
|
Royal Life Saving Society Australia |
$1,205.00 |
|
|
|
|
Enrolment Pool Lifeguard Requalification For L Gordon |
|
|
|
|
|
Enrolment Senior First Aid Requalification For L Gordon |
|
|
|
|
|
Enrolments (10 no.) Senior First Aid Requalifications |
|
|
|
|
|
Enrolment Heart Beat Club For L Phillips - Community Services |
|
|
|
|
|
Enrolments For Haz-Chem Training – Corporate Resources |
|
|
|
|
|
RPG Auto Electrics |
$165.00 |
|
|
|
|
Auto Repairs - Fleet Maintenance |
|
|
|
|
|
Russell Landscaping WA Pty Ltd |
$23,817.20 |
|
|
|
|
Additional Watering Of Blackboys At Hepburn Avenue |
|
|
|
|
|
Additional Watering At Tapping Way |
|
|
|
|
|
Yanchep Misc Works For February/March/April 2005 - Operations |
|
|
|
|
|
Landscape Maintenance For April 2005 - Operations |
|
|
|
|
|
SAI Global Ltd |
$74.25 |
|
|
|
|
Design For Access & Mobility Hardcopy Of Standard - Planning |
|
|
|
|
|
Sanax St Andrews Pharmacy |
$448.94 |
|
|
|
|
First Aid Boxes - Parks & Aquamotion |
|
|
|
|
|
Scott Print |
$2,284.70 |
|
|
|
|
10,000 Fire Magnets |
|
|
|
|
|
Scotts Trimming Service |
$297.00 |
|
|
|
|
Repair Whipper Harnesses - Parks |
|
|
|
|
|
Supply New Engine Cover 96071 - Fleet Maintenance |
|
|
|
|
|
Repair Armrests - Waste Services |
|
|
|
|
|
Sealanes |
$914.99 |
|
|
|
|
Supplies for Elected Members & Staff |
|
|
|
|
|
Sign Supplies |
$8,731.80 |
|
|
|
|
Install Plaque For Fire Services Block Plan - Infrastructure |
|
|
|
|
|
Install Various Balustrades Quinns Mindarie Development - Infrastructure |
|
|
|
|
|
Supply & Install Access Gate Hinges - Infrastructure Services |
|
|
|
|
|
Soiland Garden Suppliers |
$899.25 |
|
|
|
|
Supply & Deliver Woodchip To Ashby Depot |
|
|
|
|
|
Specialised Force Pty Ltd |
$96.03 |
|
|
|
|
Various Items - Fleet Maintenance |
|
|
|
|
|
Sports Surfaces |
$14,410.00 |
|
|
|
|
Winders For Tennis Net Posts - Parks |
|
|
|
|
|
Supply Synthetic Turf Wickets - Parks |
|
|
|
|
|
Sports Turf Technology Pty Ltd |
$2,211.00 |
|
|
|
|
Gumblossom Park, Site Investigation & Report Preparation - Parks |
|
|
|
|
|
Fertiliser Application Audit - Parks |
|
|
|
|
|
Spotlight Stores Pty Ltd |
$553.45 |
|
|
|
|
Craft Supplies For Aboriginal Playgroup |
|
|
|
|
|
Art Supplies For Community Services |
|
|
|
|
|
Crafts For Chick's Biz Program - Community Services |
|
|
|
|
|
Stamfords Advisors & Consultants Pty Ltd |
$2,750.00 |
|
|
|
|
Development Of Debt Finance Paper - Governance |
|
|
|
|
|
Stampalia Contractors |
$12,188.00 |
|
|
|
|
Heavy Equipment Hire For Various Departments |
|
|
|
|
|
State Law Publisher |
$35.27 |
|
|
|
|
Government Gazette Advertising - Planning Services |
|
|
|
|
|
State Library of Western Australia |
$1,526.00 |
|
|
|
|
Lost/Damaged Book Charges - Library Services |
|
|
|
|
|
Statewide Cleaning Supplies Pty Ltd |
$8,569.70 |
|
|
|
|
Cleaning Supplies - Depot Stores Stock |
|
|
|
|
|
Statewide Pump Services |
$1,505.00 |
|
|
|
|
Inspection & Reports Sewage Pumps - Building Maintenance |
|
|
|
|
|
Wanneroo Recreation Centre - Building Maintenance |
|
|
|
|
|
Stewart & Heaton Clothing Company Pty Ltd |
$3,644.62 |
|
|
|
|
Uniforms - Ranger Services |
|
|
|
|
|
Stopmaster Brakes |
$1,618.65 |
|
|
|
|
Reline Brakes - Fleet Maintenance |
|
|
|
|
|
Sun City News |
$363.00 |
|
|
|
|
Advertising For May 2005 Edition For Yanchep Community Centre |
|
|
|
|
|
Sunny Brushware Supplies |
$1,224.85 |
|
|
|
|
Vinyl Bannister Brushes - Depot Stores Stock |
|
|
|
|
|
Gutter Brooms - Fleet Maintenance |
|
|
|
|
|
Supercrane 2000 |
$247.50 |
|
|
|
|
Certification To 1 Safety Lanyard System - Fleet Maintenance |
|
|
|
|
|
Syntec Diamond Tools |
$594.00 |
|
|
|
|
Diamond Concrete Blades - Engineering |
|
|
|
|
|
Table Eight |
$1,849.10 |
|
|
|
|
Corporate Uniforms For Various Departments |
|
|
|
|
|
Taldara Industries Pty Ltd |
$300.08 |
|
|
|
|
Foam Cup Supplies For City |
|
|
|
|
|
Technical Irrigation Imports |
$2,106.76 |
|
|
|
|
Repairs To Controllers At Various Parks |
|
|
|
|
|
Parts For Hydrometer - Parks |
|
|
|
|
|
Technifire 2000 |
$33.80 |
|
|
|
|
Rubber Suction Hose Wire Braided - Fleet Maintenance |
|
|
|
|
|
The Australian Local Government Job Directory |
$825.00 |
|
|
|
|
Advertising For Environmental Health Officers |
|
|
|
|
|
The Carers |
$794.73 |
|
|
|
|
Support Services For HACC/CACP Clients |
|
|
|
|
|
The Pool Table Man |
$89.99 |
|
|
|
|
Pool Balls For Community Youth Services |
|
|
|
|
|
The Printing Factory |
$449.28 |
|
|
|
|
Certificates For Aquamotion |
|
|
|
|
|
The Pursuits Group |
$2,250.20 |
|
|
|
|
Support Services For HACC/CACP Clients |
|
|
|
|
|
Tiger Tek Pty Ltd |
$1,177.44 |
|
|
|
|
Paint & Survey Pegs - Stores |
|
|
|
|
|
Toll Transport Pty Ltd |
$969.96 |
|
|
|
|
Courier Services For Various Departments |
|
|
|
|
|
Tomcat Hardchrome Engineering |
$946.00 |
|
|
|
|
Overhaul Hyd Cylinder - Fleet Maintenance |
|
|
|
|
|
Total Eden Watering Systems |
$5,050.74 |
|
|
|
|
Reticulation Items - Parks & Depot Stores Stock |
|
|
|
|
|
Total Toro |
$1,949.05 |
|
|
|
|
Vehicle Spare Parts - Depot Stores Stock & Fleet Maintenance |
|
|
|
|
|
Town Property Maintenance |
$4,356.00 |
|
|
|
|
Street Sweeping - Operations |
|
|
|
|
|
Truckline |
$146.88 |
|
|
|
|
Vehicle Spare Parts - Fleet Maintenance |
|
|
|
|
|
Turfmaster Pty Ltd |
$79,804.01 |
|
|
|
|
Weed Control From Anchorage North To Lukin - Parks |
|
|
|
|
|
Spraying of Kerbs, Paths, PAW's & Traffic Islands - Parks |
|
|
|
|
|
UES (Int'L) Pty Ltd |
$158.82 |
|
|
|
|
Vehicle Spare Parts - Fleet Maintenance |
|
|
|
|
|
Universal Medical Supplies |
$2,420.00 |
|
|
|
|
Podiatry Drill Model Vacuum - Community Services |
|
|
|
|
|
Vibra Industrial Filtration Australia |
$76.23 |
|
|
|
|
Cleaning Of Vehicle Filters – Depot Stores Stock |
|
|
|
|
|
Viking Books Holdings |
$111.09 |
|
|
|
|
Book Purchases - Libraries |
|
|
|
|
|
Volante Systems |
$742.17 |
|
|
|
|
Software – I.T. Services |
|
|
|
|
|
WA Access Pty Ltd |
$506.88 |
|
|
|
|
Carry Out Repairs On Basket - Fleet Maintenance |
|
|
|
|
|
WA Hino Sales & Service |
$176.51 |
|
|
|
|
Various Parts - Fleet Maintenance |
|
|
|
|
|
WA Library Supplies |
$54.61 |
|
|
|
|
CD Storage Pouches - Libraries |
|
|
|
|
|
WA Local Government Assoc |
$11,170.24 |
|
|
|
|
May 2005 Marketforce Advertising |
|
|
|
|
|
Wacker Australia Pty Ltd |
$55.11 |
|
|
|
|
Various Parts - Fleet Maintenance |
|
|
|
|
|
Wanneroo Agricultural Machinery |
$675.59 |
|
|
|
|
Various Parts - Fleet Maintenance |
|
|
|
|
|
Wanneroo Business Assoc |
$600.00 |
|
|
|
|
Sponsorship 2005 Auction Quiz Dinner - Economic Development |
|
|
|
|
|
Wanneroo Caravan Centre & Steel Fabricators |
$2,359.50 |
|
|
|
|
Steel Fabrication Works For Various Departments |
|
|
|
|
|
Wanneroo Central Newsagency |
$136.00 |
|
|
|
|
Magazine Purchases - Libraries |
|
|
|
|
|
Wanneroo Hardware |
$7,268.71 |
|
|
|
|
Hardware Purchases For Various Departments |
|
|
|
|
|
Wanneroo Retravision |
$380.99 |
|
|
|
|
DVD & CD Player - Library Services |
|
|
|
|
|
CD Player / Radio Cassette - Community Services |
|
|
|
|
|
Wanneroo Towing Service |
$616.00 |
|
|
|
|
Towing Abandoned Vehicles - Ranger Services |
|
|
|
|
|
Waste Master |
$850.89 |
|
|
|
|
Vehicle Spare Parts - Fleet Maintenance |
|
|
|
|
|
Watts & Woodhouse |
$1,474.55 |
|
|
|
|
Legal Fees: 24A Compass Cl – Contracts & Property |
|
|
|
|
|
Professional Fees: Written Advice With Respect To Lot 232 Dellamarta Road – Contracts & Property |
|
|
|
|
|
Weed Safe Pty Ltd |
$2,310.00 |
|
|
|
|
Non Chemical Weed Control At Quinns Rocks - Parks |
|
|
|
|
|
Westcare Industries |
$30.14 |
|
|
|
|
Staff Uniforms Stock – Depot Stores Stock |
|
|
|
|
|
Western Irrigation |
$5,746.40 |
|
|
|
|
Install Pump At Templeton Park |
|
|
|
|
|
Westfuel |
$435.60 |
|
|
|
|
Kerosene For Works Depot Tank |
|
|
|
|
|
Westrac |
$20.00 |
|
|
|
|
Spare Parts - Fleet Maintenance |
|
|
|
|
|
Westside Concrete Contractors |
$36,129.34 |
|
|
|
|
Concrete For Various Locations - Operational Services |
|
|
|
|
|
WH Locations |
$654.23 |
|
|
|
|
Location Of Services Dundebar Road - Operational Services |
|
|
|
|
|
White Oak Home Care Services Pty Ltd |
$36,191.24 |
|
|
|
|
Support Services HACC/CACP Clients |
|
|
|
|
|
Woodhead International |
$6,528.50 |
|
|
|
|
Civic Centre Refurbishment Memorial Gardens Projects For Infrastructure Services |
|
|
|
|
|
Work Clobber |
$934.50 |
|
|
|
|
Various Staff Uniforms |
|
|
|
|
|
Worldwide Online Printing |
$4,209.20 |
|
|
|
|
Art Award Certificates, Catalogue Cover & Inserts - Cultural Development |
|
|
|
|
|
Business Cards For Various Employees & Elected Members |
|
|
|
|
|
Staff Conference Brochures – Marketing Services |
|
|
|
|
|
Basestock - Mobile Library |
|
|
|
|
|
Opening Times - Mobile Library |
|
|
|
|
|
Youth Careers Expo Posters - Economic Development |
|
|
|
|
|
Mayoral Letterheads/Envelopes - Office Of The Mayor |
|
|
|
|
|
Puzzle Piece Digital – Governance & Strategy |
|
|
|
|
|
WT Partnership Australia Pty Ltd |
$7,617.50 |
|
|
|
|
Kingsway Sports Complex Redevelopment |
|
|
|
|
|
Zipform |
$271.04 |
|
|
|
|
Printing Of Interim Rate Notices – Finance Services |
|
|
|
|
|
|
|
|
|
00000273 |
21/06/2005 |
|
|
|
|
|
|
Vermont Grove Pty Ltd |
$30,092.55 |
|
|
|
|
Bond Refund - Lot 9 Kingsway Madeley (Replaces Cheque 52863) |
|
|
|
|
|
|
|
|
|
00000274 |
22/06/2005 |
|
|
|
|
|
|
Australian Manufacturing Workers Union |
$152.60 |
|
|
|
|
Payroll Ded: F/Ending 20/06/05 |
|
|
|
|
|
Australian Services Union |
$1,256.00 |
|
|
|
|
Payroll Ded: F/Ending 20/06/05 |
|
|
|
|
|
AUSTRALIAN TAXATION OFFICE PAYG PAYMENTS |
$217,961.00 |
|
|
|
|
Payroll Ded: F/Ending 20/06/05 |
|
|
|
|
|
Child Support Agency |
$1,157.83 |
|
|
|
|
Payroll Ded: F/Ending 20/06/05 |
|
|
|
|
|
City of Wanneroo - Social Club |
$408.00 |
|
|
|
|
Payroll Ded: F/Ending 20/06/05 |
|
|
|
|
|
Civica Pty Ltd |
$6,469.28 |
|
|
|
|
Final Progress Payment Authority Implementation - Finance |
|
|
|
|
|
Councillor Glynis Monks |
$199.00 |
|
|
|
|
Recoup For Purchase Of Office Chair |
|
|
|
|
|
HBF Insurance |
$2,309.00 |
|
|
|
|
Payroll Ded: F/Ending 20/06/05 |
|
|
|
|
|
LGRCEU |
$1,244.10 |
|
|
|
|
Payroll Ded: F/Ending 20/06/05 |
|
|
|
|
|
Mr Brett Carter |
$778.00 |
|
|
|
|
Reimbursement Of Expenses For LGMA National Congress |
|
|
|
|
|
Wanneroo Central Bushfire Brigade |
$825.00 |
|
|
|
|
Storage Thornicroft Parts - Ranger Services |
|
|
|
|
|
Wanneroo Dairy Supplies |
$315.15 |
|
|
|
|
Milk Deliveries For City |
|
|
|
|
|
|
|
|
|
00000275 |
22/06/2005 |
|
|
|
|
|
|
Geoffs Tree Service |
$3,637.15 |
|
|
|
|
Various Services Performed - Parks |
|
|
|
|
|
Wanneroo Electric |
$9,597.64 |
|
|
|
|
Electrical Maintenance Performed For Various Departments |
|
|
|
|
|
|
|
|
|
00000276 |
27/06/2005 |
|
|
|
|
|
|
Civica Pty Ltd |
$80,410.00 |
|
|
|
|
Annual Licence Renewal Fee 01/07/05-30/06/06 – I.T. Services |
|
|
|
|
|
PS Structures |
$628,386.06 |
|
|
|
|
Progress Payment 5 - Construction Of Memorial Gardens |
|
|
|
|
|
Refurbishment Of The Old Civic Centre Library |
|
|
|
|
|
|
|
|
|
00000277 |
29/06/2005 |
|
|
|
|
|
|
Rudi Steffens |
$80.00 |
|
|
|
|
Candidate Deposits |
|
|
|
|
|
|
|
|
|
00000278 |
29/06/2005 |
|
|
|
|
|
|
Foodlink Food Service |
$845.18 |
|
|
|
|
Tea Coffee Sugar And Sundries Stock - Depot Stores Stock |
|
|
|
|
|
Recycling Company of WA Pty Ltd |
$52,888.92 |
|
|
|
|
Sorting Costs For The MRF |
|
|
|
|
|
Sealanes |
$266.51 |
|
|
|
|
Tea, Coffee, Napkins & Sugar - Marketing Services |
|
|
|
|
|
Wanneroo Hardware |
$54.61 |
|
|
|
|
Wire Cup Brush - Waste Services |
|
|
|
|
|
|
|
|
|
00000279 |
29/06/2005 |
|
|
|
|
|
|
Councillor Brett Treby |
$80.00 |
|
|
|
|
Candidate Deposits |
|
|
|
|
|
Councillor Ian Goodenough |
$80.00 |
|
|
|
|
Candidate Deposits |
|
|
|
|
|
Councillor Laura Gray |
$80.00 |
|
|
|
|
Candidate Deposits |
|
|
|
|
|
Eclipse Resources Pty Ltd |
$3,741.10 |
|
|
|
|
Disposal Of Rubble - Operational Services |
|
|
|
|
|
Joe Arrigo |
$91.66 |
|
|
|
|
Tennis Booking Officer - Elliott Road Courts & Keyholder – Wanneroo Senior Citizens |
|
|
|
|
|
Judith Sims |
$259.44 |
|
|
|
|
Key Holder - Gumblossom Community Centre & Tennis Booking Officer - Gumblossom Courts And Bellport Tennis Courts |
|
|
|
|
|
Reimbursement For Printer Cartridges & Paper Used As A Volunteer |
|
|
|
|
|
Mr Ian Martinus |
$10.19 |
|
|
|
|
Reimbursement Of Expenses For Mainstream Conference In Melbourne 23-29/09/04 |
|
|
|
|
|
Ms Hazel Owen |
$41.66 |
|
|
|
|
Keyholder - Warradale Community Hall |
|
|
|
|
|
Transplan Pty Ltd |
$9,682.20 |
|
|
|
|
Milestone Payment #3 - Completion Of Focus Group |
|
|
|
|
|
Wanneroo Bush Fire Brigade Social Club |
$200.00 |
|
|
|
|
Donation For Support At The Senior Citizens Dance – 28/05/05 |
|
|
|
|
|
Parking - Cultural Development |
|
|
|
|
|
Wanneroo Dairy Supplies |
$330.53 |
|
|
|
|
Milk Deliveries For City |
|
|
|
|
|
|
|
|
|
00000280 |
29/06/2005 |
|
|
|
|
|
|
Action Lock Service |
$67.10 |
|
|
|
|
Locksmith Services For Various Locations – Building Maintenance |
|
|
|
|
|
Alphawest Services Pty Ltd |
$8,184.00 |
|
|
|
|
Internet - Implementation & Project Management |
|
|
|
|
|
Australian Airconditioning Services Pty Ltd |
$59.40 |
|
|
|
|
Maintenance At New Civic Centre – Building Maintenance |
|
|
|
|
|
Australian Consumers Association |
$196.00 |
|
|
|
|
Subscriptions - Money And Rights & How To Clean Practically - Community Services |
|
|
|
|
|
Australian Plant Wholesalers |
$18,887.00 |
|
|
|
|
Plants - Parks Maintenance |
|
|
|
|
|
Bring Couriers |
$49.79 |
|
|
|
|
Courier Services - Development & Health Services |
|
|
|
|
|
BT Equipment Pty Ltd |
$18.28 |
|
|
|
|
Spare Parts - Fleet Maintenance |
|
|
|
|
|
Bullivants Pty Ltd |
$701.80 |
|
|
|
|
Shackle And Roundsling - Ranger Services |
|
|
|
|
|
Repair/Test Alloy Chain For Drainage Crew - Operations |
|
|
|
|
|
Carabooda Roll On Instant Lawn |
$4,359.30 |
|
|
|
|
Turfing At Lake Joondalup Park |
|
|
|
|
|
Civica Pty Ltd |
$1,116.50 |
|
|
|
|
WA Special Interest Group Payroll - Finance Services |
|
|
|
|
|
Corporate Express |
$15,289.79 |
|
|
|
|
Stationery Purchases For May 2005 |
|
|
|
|
|
Cummins Engine Company Pty Ltd |
$4,380.81 |
|
|
|
|
Various Parts - Fleet Maintenance |
|
|
|
|
|
Custom Engineering |
$616.00 |
|
|
|
|
Crane Repairs - Fleet Maintenance |
|
|
|
|
|
DA Information Services Pty Ltd |
$8,979.80 |
|
|
|
|
Subscriptions - Clarkson Library |
|
|
|
|
|
Didasko Solutions Pty Ltd |
$363.00 |
|
|
|
|
Install Proxy Configuration Exchange – I.T. Services |
|
|
|
|
|
Drive In Electrics |
$208.50 |
|
|
|
|
Repairs - Fleet Maintenance |
|
|
|
|
|
E & MJ Rosher |
$684.70 |
|
|
|
|
Vehicle Filter - Fleet Maintenance |
|
|
|
|
|
Fuji Xerox Australia Pty Ltd |
$1,453.03 |
|
|
|
|
Copy Charges - Reprographics |
|
|
|
|
|
Geldens Pty Ltd |
$1,953.13 |
|
|
|
|
Epaulettes For Fire Services |
|
|
|
|
|
Hays Personnel Services |
$1,700.72 |
|
|
|
|
Casual Labour (A Creagh) - Planning |
|
|
|
|
|
Hosemasters |
$3,035.81 |
|
|
|
|
Replace Hoses - Fleet Maintenance |
|
|
|
|
|
Icon Office Technology |
$260.18 |
|
|
|
|
Photocopier Meter Reading - Various Departments |
|
|
|
|
|
Judius Pty Ltd |
$288.45 |
|
|
|
|
Craft Items For Playgroups |
|
|
|
|
|
Kleenheat Gas Pty Ltd |
$943.65 |
|
|
|
|
Gas Cylinders For Quinns Rocks Caravan Park |
|
|
|
|
|
Kyocera Mita Aust P/L |
$440.98 |
|
|
|
|
Photocopier Costs - Building & Fleet Maintenance |
|
|
|
|
|
Copycost - Ranger Services |
|
|
|
|
|
LEARN (Learning Expertise And Resources Network) |
$704.85 |
|
|
|
|
Books For Wanneroo Library |
|
|
|
|
|
Lincolne Scott |
$7,851.23 |
|
|
|
|
Consultancy - Cities For Climate Protection |
|
|
|
|
|
Consultancy For Maintenance Contract – Building Maintenance |
|
|
|
|
|
MacDougall Reprographics |
$270.60 |
|
|
|
|
Bond Paper Print A1 Size - Infrastructure Services |
|
|
|
|
|
Management & Executive Software Pty Ltd |
$12,540.00 |
|
|
|
|
Bis Enhancement - Finance |
|
|
|
|
|
Bis Software & Licence - Finance |
|
|
|
|
|
Mayday Earthmoving |
$13,891.90 |
|
|
|
|
Heavy Equipment Hire For Various Project Sites |
|
|
|
|
|
McLeods Barristers & Solicitors |
$361.82 |
|
|
|
|
Professional Fees: Proposed Amendment No.9 To DPS 2 Joondalup Drive Extension |
|
|
|
|
|
Mercury Fire Safety |
$1,676.57 |
|
|
|
|
Inspection & Testing Of Essential Fire Services May 2005 |
|
|
|
|
|
Mobile Glass |
$187.92 |
|
|
|
|
Glass Repairs At Wanneroo Community Hall |
|
|
|
|
|
Parks & Leisure Australia |
$280.00 |
|
|
|
|
PLA Annual Mid Year Seminar 6/07/05 – Attendees M Quirk, I Ireland, K Strange & G Whyte |
|
|
|
|
|
Perth Home Care |
$250.00 |
|
|
|
|
Support Services For HACC/CACP Clients |
|
|
|
|
|
Prestige Alarms |
$961.96 |
|
|
|
|
Monitoring Of Security Alarm At Various Locations |
|
|
|
|
|
Raeco International Pty Ltd |
$1,669.13 |
|
|
|
|
Display Stands - Girrawheen Library |
|
|
|
|
|
Readymix Holdings Pty Ltd |
$1,943.68 |
|
|
|
|
Concrete Products Delivered To Various Project Sites |
|
|
|
|
|
Recycling Company of WA Pty Ltd |
$22,000.00 |
|
|
|
|
Repairs To MRF - Waste Services |
|
|
|
|
|
Refresh Pure Water |
$22.50 |
|
|
|
|
Water Cooler In Interview Room At Hainsworth Community Centre |
|
|
|
|
|
Reid Corporation Pty Ltd |
$2,200.00 |
|
|
|
|
Entertainment At Mindarie Quays Hotel 23/07/05 – CEO’s Office |
|
|
|
|
|
RPG Auto Electrics |
$198.00 |
|
|
|
|
Repairs To Hopper – Fleet Maintenance |
|
|
|
|
|
Skipper Trucks Belmont |
$107.25 |
|
|
|
|
Mobile Services For Plant Nos. 95750 & 95775 - Fleet Maintenance |
|
|
|
|
|
Stamfords Advisors & Consultants Pty Ltd |
$6,036.80 |
|
|
|
|
Professional Costs For April &May 2005 - Finance |
|
|
|
|
|
WA Library Supplies |
$303.60 |
|
|
|
|
Wire Basket Trolley & Hand Baskets - Girrawheen Library |
|
|
|
|
|
WA Local Government Assoc |
$17,709.95 |
|
|
|
|
Advertising For May 2005- Various Departments |
|
|
|
|
|
Call Centre Usage For February, March & April 2005 ( |
|
|
|
|
|
Wanneroo Agricultural Machinery |
$87.38 |
|
|
|
|
Filter Element – Depot Stores Stock |
|
|
|
|
|
Wanneroo Hardware |
$268.36 |
|
|
|
|
Various Items – Waste Services |
|
|
|
|
|
Watts & Woodhouse |
$1,872.75 |
|
|
|
|
Legal Advice: Recycling Co. - Appointment Of Administrators |
|
|
|
|
|
Work Clobber |
$144.00 |
|
|
|
|
Safety Boots For L Swain |
|
|
|
|
|
Worldwide Online Printing |
$595.00 |
|
|
|
|
Brochures For Staff Conference (2nd Print) - Marketing Services |
|
|
|
|
|
|
|
|
|
00000281 |
29/06/2005 |
|
|
|
|
|
|
Geoffs Tree Service |
$27,769.81 |
|
|
|
|
Install Barrier For Roots To Prevent Further Damage At Casserley Avenue - Parks |
|
|
|
|
|
Tree Services Underprune - Parks |
|
|
|
|
|
Wanneroo Electric |
$4,835.93 |
|
|
|
|
Electrical Maintenance At Various Sites |
|
|
|
|
|
Wanneroo Plumbing |
$11,808.41 |
|
|
|
|
Plumbing Services At Various Sites |
|
|
|
|
|
|
|
|
|
00000282 |
30/06/2005 |
|
|
|
|
|
|
Councillor Ian Goodenough |
$1,005.58 |
|
|
|
|
Travel Allowance 1/07/04 - 30/06/05 |
|
|
|
|
|
Councillor Terry Loftus |
$355.11 |
|
|
|
|
Travel Allowance June 2005 |
|
|
|
|
|
Mr Harminder Singh |
$194.90 |
|
|
|
|
Reimbursement - Expenditure Over & Above Cash Advance - 450 For Staff BBQ After Tech Services Functional Review Staff Information Sessions |
|
|
|
|
|
|
|
|
|
|
|
Total Director Corporate Services Advance – EFT's |
$3,262,164.77 |
|
|
|
|
|
|
|
|
|
|
|
|
|
|
General Fund Bank Account |
||||
|
|
|
|
|
|
|
00000292 |
30/06/2005 |
City of Wanneroo - Municipal |
$8,228,213.43 |
|
|
|
|
Bank Fees For June 2005 |
|
|
|
|
|
Credit Card Payments: |
|
|
|
|
|
Publication For IT ($134.07); Credit Check For Contracts & Property ($44.00) - DCS |
|
|
|
|
|
Credit Check For Tender No 05508 ($275.00); Airfare ($412.27); UDIA ($90.00) - DTS |
|
|
|
|
|
US Study Tour ($6,277.44); Annual Charge ($23.33) – R Peake |
|
|
|
|
|
Hospitality ($34.79); Business Lunch ($155.90); Harvard Business Review ($212.16) ; US Study Tour Flights/Accommodation (R Peake) ($4,952.44) – DPD |
|
|
|
|
|
Cab Charge ($55.68); Conferences (LGMA)/Accommodation ($1,071.55) – UDIA & Pia Workshop ($280.00) - DG&S |
|
|
|
|
|
Hospitality ($611.00); Conference (LGMA) & Accommodation For CEO & Cr Cvitan ($2,415.20); Conference (Marketing Manager) ($95.00); Qantas Club Membership ($485.00); Golf Trophy ($139.00) - CEO |
|
|
|
|
|
Bank Fees: Transfer To Investment ($1,000,000.00) |
|
|
|
|
|
Rates Dishonour ($309.99) |
|
|
|
|
|
Advance Recoup June ($7,207,813.65) |
|
|
|
|
|
CBA Merchant Fee ($563.28) |
|
|
|
|
|
CBA Pos Fee - Waste ($59.00) |
|
|
|
|
|
CBA Pos Fee ($115.50) |
|
|
|
|
|
Returned Item Fee ($2.50) |
|
|
|
|
|
Bpay Fee (991.83) |
|
|
|
|
|
Direct Entry Service Fee ($100.00) |
|
|
|
|
|
Diamond BFM Pay Fee ($268.73) |
|
|
|
|
|
Diamond Cash Maint Fee ($33.00) |
|
|
|
|
|
Trans Negotiation Auth Limit Fee ($58.33) |
|
|
|
|
|
Account Service Fee ($82.74) |
|
|
|
|
|
Diamond Cash Trans Fee ($57.25) |
|
|
|
|
|
Group Limit Facility Fee ($343.80) |
|
|
|
|
|
Stop Payment Fee ($10.00) |
|
|
|
|
|
|
|
|
|
00000000 |
03/06/2005 |
|
$1,337,081.89 |
|
|
|
|
Payment of Wages NCP 03/06/05 |
$2,269.46 |
|
|
|
|
Payment of Wages 3/06/05 |
$660,506.77 |
|
|
|
|
Payment of Wages NCP 10/06/05 |
$4,169.77 |
|
|
|
|
Payment of Wages NCP 14/06/05 |
$956.78 |
|
|
|
|
Payment of Wages 17/06/05 |
$669,179.11 |
|
|
|
|
|
|
|
|
|
|
TOTAL GENERAL FUND BANK ACCOUNT |
$9,565,295.32 |
|
|
|
|
|
|
|
|
CANCELLED CHEQUES |
||||
|
52608 |
26/05/2005 |
MG & BR McEwan |
-$295.81 |
|
|
52315 |
18/05/2005 |
TF & BA Davis |
-$300.00 |
|
|
50904 |
25/02/2005 |
Shenton Enterprises |
-$104.28 |
|
|
49506 |
15/12/2004 |
EPW |
-$500.00 |
|
|
52420 |
25/05/2005 |
FCT Surface Cleaning |
-$825.00 |
|
|
52334 |
18/05/2005 |
JA & SR Stoker |
-$300.00 |
|
|
|
|
|
|
|
|
|
|
TOTAL CANCELLED CHEQUES |
-$2,325.09 |
|
|
|
|
|
|
|
|
TOWN PLANNING SCHEME |
||||
|
000010 |
30/06/2005 |
Cell 8 - Department of Land Information - Land & Title Searches 52669 |
$73.18 |
|
|
|
|
|
|
|
|
|
|
TOTAL TOWN PLANNING SCHEME |
$73.18 |
|
|
|
|
|
|
|
|
|
|
TOTAL MUNICIPAL RECOUP |
$7,207,813.65 |
|
EndOfRecommendation - This line will not be printed Please do NOT delete
File Ref: C04369V01
Responsible Officer: Director, Corporate Services
Disclosure of Interest: Nil
Author: Property Officer
Meeting Date: 9 August 2005
Attachments: 1
File Name: CAPROPOSED SALE LOT 232 36 DELLAMARTA ROAD WANGARA.doc This line will not be printed dont delete
Level 4 Approval by Wayne Wright Date 27 July 2005
Level 3 Approval by Wayne Wright Date 25 July 2005
Level 2 Approval by John Paton Date 25 July 2005
Level 1 Approval by M Sparks Date 22 July 2005
StartStrip - This line will not be printed so do not delete
Issue
To consider the advertising of the proposed sale of Lot 232 (36) Dellamarta Road, Wangara.
Background
Council at its Ordinary Meeting on 14 December 2004 considered the proposed sale of Lot 232 Dellamarta Road, Wangara (Lot 232) under a confidential report CR03-12/04 (Attachment 1 refers) and resolved as follows:-
“That Council
1. ADVISES the applicant detailed in confidential report number CR03-12/04 that the City is prepared to consider a formal offer for the purchase of Lot 232 Dellamarta Road, Wangara consistent with the proposal to purchase, provided that the formal offer is received by the City no later than 4 February 2005; and
2. Subject to receipt of the formal offer from the applicant in 1. above, ADVERTISES by Statewide public notice of the proposed disposition in accordance with Section 3.58(3) of the Local Government Act 1995.”
The applicant in this case was a Mr Gino Vespoli of Vespoli Constructions Pty Ltd in Malaga (Mr Vespoli) and the proposed purchase price was $1,300,000 plus GST.
Originally Mr Vespoli had planned a subdivision development of Lot 232, but due to some problems in obtaining sufficiently accurate costings through the due diligence period, which included the Christmas and New Year holidays, he was unable to confidently meet the timeframe for an unconditional offer to be made by 4 February 2005 as set by Council.
Detail
Discussions continued with Mr Vespoli however, and ultimately an offer for $1,300,000 (plus GST) was made on 22 April 2005 by Vespoli Enterprises Pty Ltd, which was consistent with the proposal to purchase outlined in the resolution.
Section 3.58(3)&(4) of the Local Government Act 1995 provide that a local government can dispose of property other than by tender or public auction if before agreeing to dispose of the property it advertises the proposed sale and considers any submissions received. A requirement of the advertising process is that a valuation be carried out not more than 6 months prior to the proposed disposition.
Accordingly the services of Australian Property Consultants (APC) were employed and a valuation received of $1,450,000 (plus GST) being $95 per square metre within a range of $1,365,000 to $1,520,000. Although this valuation was considered ‘on the high side’ Administration continued to negotiate with Mr Vespoli.
During those negotiations it became apparent that the valuation prepared by APC may have been influenced by the values of land sales of ‘serviced’ lots in nearby Enterprise Park and Mr Vespoli requested that a second valuation of Lot 232 be obtained. It was agreed that a second valuation be undertaken, at Mr Vespoli’s expense, and the City duly appointed Ferguson Fforde. Their valuation resulted in a market value of $1,213,636 (plus GST) being $81 per square metre with a range of $1,168,000 to $1,213,636.
Valuer Market Value Market Range
Australian Property Consultants (APC) $1,450,000 $1,365,000 to $1,520,000
Ferguson & Fforde $1,213,636 $1,168,000 to $1,213,636
GST was included in the valuations, however it has been removed for comparative purposes.
Given the period of time that had elapsed since the Council resolution further negotiation was undertaken with a view to seeking an increase in the price offered to allow for growth in land values and holding costs etc. As a result, a formal offer of $1,325,000 (plus GST) has been made by GGM Developments Pty Ltd, a company specifically formed by Mr Vespoli and his partners with the intention to purchase and develop Lot 232.
Comment
The variation between the valuations demonstrates the difficulty in reliably determining land values on limited sales evidence, particularly in an area like Wangara that has distinct development stages. It is considered that the high end value provided by APC is perhaps influenced by the values of land sales for ‘serviced’ lots in nearby Enterprise Park, however Dellamarta Road, being in the older section of Wangara is unlikely to attract the same levels.
The following table shows a comparison between the current offer and the valuations received (an average of the two valuations reveals a market price of $1,331,818):-
|
|
Valuation 1 - APC |
Valuation 2 - FF |
Current Offer |
|
Market Value / Offer |
$1,450,000 |
$1,213,636 |
$1,325,000 |
|
Plus GST |
Yes |
Yes |
Yes |
|
$ /square metre (approx) |
$95 |
$81 |
$88 |
In May 2004, when this property was tendered for sale, the only tender received was for $900,000 (plus GST). Since then, there have been several parties expressing some interest, but not to the value offered by GGM Developments Pty Ltd. Given the extent and cost of site works required to service this property, it is considered that this offer is reasonable and a fair market price.
GGM Developments Pty Ltd submitted a concept plan for the type of development it proposes for the site. The concept plans depict 24 units of varying sizes incorporating a mix of warehouse and showroom use.
Preliminary discussions with the City’s Development & Health Services have in general, resulted in a favourable outlook on the proposal. However the applicant is of the understanding that he is still required to submit a formal development application for consideration by the City.
In addition to the direct financial benefit from the sale of this property, the following benefits will also accrue:-
· the property will become ‘rateable’; and
· the applicant has indicated an intention to promptly develop the site, which will enhance the area and provide additional commercial activity.
Administration therefore supports the advertising of the proposed sale in accordance with the requirements of section 3.58 of the Local Government Act 1995.
Statutory Compliance
Section 3.58(2) provides that a local government can only dispose of property either by public auction or tender.
Section 3.58(3) states as follows:-
“A local government can dispose of property other than under subsection (2) if, before agreeing to dispose of the property –
(a) it gives Statewide public notice of the proposed disposition –
(i) describing the property concerned;
(ii) giving details of the proposed disposition;
(iii) inviting submissions to be made to the local government before a date to be specified in the notice, being a date not less than 2 weeks after the notice is first given;
and
(b) it considers any submissions made to it before the date specified in the notice and, if its decision is made by the council or a committee, the decision and the reasons for it are recorded in the minutes of the meeting at which the decision was made.”
It should be noted that due to recent changes to the Local Government Act there is no longer a requirement to advertise Statewide and accordingly it is proposed to advertise locally in this instance.
Strategic Implications
The sale of Lot 232 Dellamarta Road, Wangara is consistent with the City’s Strategic Goal –
“2.6 Provide and manage infrastructure to meet the needs of our community”
Policy Implications
Nil
Financial Implications
The sale of Lot 232 Dellamarta Road, Wangara for $1,325,000 would result in a surplus of $25,000 as provided for in the 2005/06 Budget. Further to this, the resultant rate income generated from the property would be in the order of $14,000 per annum.
Voting Requirements
Simple Majority
EndStrip - This will not be printed so do not delete
Recommendation
That Council APPROVES the advertising of the proposed disposition of Lot 232 (36) Dellamarta Road, Wangara to GGM Developments Pty Ltd for the amount of $1,325,000 (plus GST) in accordance with Section 3.58(3) of the Local Government Act 1995.
EndOfRecommendation - This line will not be printed Please do NOT delete
StartOfAttachment - Do not delete this line will not be printed
ATTACHMENT 1 Page 1 of 5

ATTACHMENT 1 Page 2 of 5

ATTACHMENT 1 Page 3 of 5

ATTACHMENT 1 Page 4 of 5

ATTACHMENT 1 Page 5 of 5

EndOfAttachment - Do not delete this line will not be printed
File Ref: P33/0097V01
File Name: CALicence to Occupy Pt Lot 15 Motivation Drive Wangara.doc This line will not be printed dont delete
Level 4 Approval by Wayne Wright Date 27 July 2005
Level 3 Approval by Wayne Wright Date 25 July 2005
Level 2 Approval by John Paton Date 22 July 2005
Level 1 Approval by John Paton Date 22 July 2005
Responsible Officer: Director, Corporate Services
Disclosure of Interest: Nil
Author: Manager Contracts & Property
Meeting Date: 9 August 2005
Attachments: 1
StartStrip - This line will not be printed so do not delete
Issue
To consider entering into a Licence to Occupy agreement with JoJo Plastics Pty Ltd to utilise an area of Lot 15 Motivation Drive, Wangara for the purpose of storage of plastic products.
Background
Lot 15 Motivation Drive (the Site), Wangara is owned in freehold by the City of Wanneroo and was previously used as a landfill site (Badgerup Road Tip). The following land details are relevant:-
Title Details: Folio 1164 Volume 564
Area: 11.9054 ha
Zoning: General Industrial
Street Frontage: Motivation Drive and proposed Callaway Street at rear
Prior to the City acquiring this Site in 1985, approximately 90% of the property was quarried for sand. The City then established the Badgerup Road Landfill in the excavated quarry pit. The Site was used as a putrescible waste tip for six (6) years, receiving domestic and general waste. The eastern section of the landfill received inert sand and rubble whilst in operation. The landfill site ceased receiving putrescible waste in 1991, when the pit was covered with a layer of sand.
A gas extraction system is installed throughout the central portion of the property, above the area that was utilised for the dumping of general household waste. Other low impact activities are undertaken on the perimeter of the property, including:-
· greens mulching service from an area in the south-west corner;
· access roads and weighbridge facility at the western end to service the Material Recycling Facility located on the adjoining City land (Lot 257); and
· Parks greens mulching area towards the rear of the property.
Detail
JoJo Plastics Pty Ltd (JoJo’s) are manufacturers of fence and vineyard posts, bollards and pallets from recycled plastic materials. The company has been developing a technology that allows them to utilise contaminated and mixed plastics and through a process of heat and extrusion, produce a range of timber replacement products. JoJo’s is developing markets for its products that are seen as a practical substitute for CCA treated pine products are in the process of increasing their production levels.
JoJo’s currently operates from leased premises in Achievement Way, Wangara, however, this site has insufficient capacity to cater for its expanding requirements. JoJo’s have identified a need to acquire a site of approximately 4,500m2, preferably in Wangara to construct a manufacturing plant, which will provide employment opportunities for 15-20 people and recycle an estimated 15,000 tons of plastic waste per annum.
Given the nature of the recycling operation and perceived environmental values, City’s administration, with LandCorp have been working with JoJo’s to identify opportunities to relocate its operation to a suitable location within the Enterprise Park area. Due to subdivision staging, these discussions are ongoing. In the interim, JoJo’s have an immediate requirement to increase its storage capacity, particularly the storage of pre-processed bags of shredded plastic and manufactured posts.
Accordingly, JoJo’s has requested to utilise a portion of the City’s Lot 15 Motivation Drive, Wangara for the temporary storage of its products, whilst an alternative long-term location is being sourced. An area of approximately 1000m2 would be required on top of the inert landfill area, which is located to the rear of the property and is relatively flat and compact (Attachment 1 refers).
The use of the site would be relatively low impact. JoJo’s proposes to provide a fence around the licenced area and truck movements through the site are likely to be limited to occasional deliveries and pick ups, perhaps three (3) times a week.
Comment
Given that this property was previously utilised for a municipal land fill site, there are numerous environmental issues that have constrained the ongoing utilisation of the property. Accordingly, apart from some limited use on its periphery, the property has substantially been left under-utilised.
Whilst the Council, at its meeting held on 28 June 2005 (CS09-06/05), approved entering into a Licence to Occupy Agreement with JJ Hawkins Pty Ltd over an area of 4000m2 at the rear of this site, that use will not impact on the JoJo’s proposal.
The request from JoJo’s is for a relatively short term and, as the products proposed for storage pose no environmental risks, assistance in this form is considered an appropriate support for a developing company.
As it would not be proposed to grant any exclusive use of the property, the arrangement would only require a Licence to Occupy Agreement, rather than a Lease. Accordingly, it is considered that this request can be supported, subject to the negotiation of a suitable Licence that addresses the following conditions:-
· the Licensee obtaining and complying with all relevant approvals;
· the site is only to be utilised for the permitted purpose;
· compliance with the access controls established by the City for the Site;
· any site works required, including fencing to be at the cost of the Licensee;
· all costs associated with the granting of the Licence and provision of access to the Site to be the responsibility of the Licensee;
· the Licensee implementing appropriate measures to manage the stockpile, including where necessary dust suppression;
· the Licensee agreeing to move the stockpile within the Site, in the event that the relevant area is required by the City;
· the Licensee providing the City with an indemnity against any claims associated with their occupation of the Site; and
· payment of the Annual Rent quarterly in advance.
The Licence is proposed to be effective for a Term of twelve (12) months, with an option for a further twelve (12) months on the same terms and conditions, except a three (3) month termination clause would be operative during the optional Term.
Statutory Compliance
Section 3.58(1) of the Local Government Act defines how a local government can dispose of property and provides the following definitions:-
“dispose” includes to sell, lease, or otherwise dispose of, whether absolutely or not;
“property” includes the whole or any part of the interest of a local government in property, but does not include money.
A key issue is whether the licence agreement disposes of a local government’s interest in land.
A licence is a permission given by the owner or occupier of land, which allows the licensee to do something that would otherwise be unlawful. Where a licence is granted for valuable consideration it is known as a contractual licence, but it does not confer any estate or interest in the land in favour of the licensee.
As such, the grant of a licence does not constitute the disposal of property under Section 3.58 and is not subject to the processes of that section. Accordingly, the City is in a position to enter into a Licence to Occupy Agreement with JoJo Plastics Pty Ltd.
Any use of the site will need to be subject to normal approval processes, including the submission of a Development Application and compliance with relevant conditions.
Strategic Implications
Nil
Policy Implications
Nil
Financial Implications
Providing access to JoJo Plastics Pty Ltd for the temporary use of portion of Lot 15 Motivation Drive, Wangara will be at no cost to the City. A fee will be levied for the use of the land consistent with the charge levied on the previous agreement with JJ Hawkins Pty Ltd, being $4/m2, therefore resulting in income of $4,000 (plus GST) per annum.
Voting Requirements
Simple Majority
EndStrip - This will not be printed so do not delete
Recommendation
That Council:-
1. AGREES to enter into a twelve (12) month Licence to Occupy Agreement with JoJo Plastics Pty Ltd for the temporary use of a portion of Lot 15 Motivation Drive, Wangara for the purpose of storage of recycled plastic products, subject to the applicant obtaining all necessary planning and environmental approvals; and
2. AUTHORISES the Chief Executive Officer to negotiate a suitable Licence to Occupy Agreement between the City and JoJo Plastics Pty Ltd to facilitate the use in 1. above.
EndOfRecommendation - This line will not be printed Please do NOT delete
StartOfAttachment - Do not delete this line will not be printed

EndOfAttachment - Do not delete this line will not be printed
File Ref: P23/0010V01
File Name: CAProposed Subdivision of Lot 4 Flynn Drive Neerabup.doc This line will not be printed dont delete
Level 4 Approval by Wayne Wright Date 27 July 2005
Level 3 Approval by Wayne Wright Date 26 July 2005
Level 2 Approval by John Paton Date 25 July 2005
Level 1 Approval by John Paton Date 25 July 2005
Responsible Officer: Director, Corporate Services
Disclosure of Interest: Nil
Author: Manager Contracts & Property
Meeting Date: 9 August 2005
Attachments: 4
StartStrip - This line will not be printed so do not delete
Issue
To consider commencing a subdivision development of Lot 4 Flynn Drive, Neerabup.
Background
Lot 4 Flynn Drive, Neerabup (the Site) was purchased by the City of Wanneroo in 1976 for $313,000 with a view to its long-term development potential. The then City of Wanneroo subsequently undertook a subdivision of approximately 27.5 hectares on the corner of Flynn and Mather Drive, with the subdivided lots then sold off. This was a relatively basic subdivision, with minimal servicing given that water and sewerage were not available. The subdivision was designed to promote economic development in the area.
The following land details are relevant for the remaining area:-
Address: 240 Flynn Drive, Neerabup
Area: 203.91 hectares
Title: Vol. 1963 Folio 202
Zoning (DPS2): Industrial Development
The property is unimproved, with a portion fronting Flynn Drive of approximately 17 hectares being affected by Bush Forever (Attachment 1 refers). The Site is covered by the Neerabup Industrial Area (NIA) Structure Plan, which was adopted by the Western Australian Planning Commission on 11 January 2005.
With the adoption of the Structure Plan, it is now practical to consider the subdivision process, to ensure that appropriate land areas can be made available to meet emerging demand. It is likely that the City and LandCorp will jointly lead the subdivision process in this area.
A detailed report (CS03-05/05) outlining a proposed first stage subdivision and incorporating a Business Plan was presented to the Council meeting held on 17 May 2005. As a result, the following resolution was adopted:-
“That Council:-
1. ENDORSES the Business Plan “Proposed Subdivision of Lot 4 Flynn Drive, Neerabup” as detailed in Attachment 3 to the Officers Report;
2. AUTHORISES the Chief Executive Officer to advertise a public notice in the Western Australian Newspaper, promoting the availability of the Business Plan in 1) above in accordance with Section 3.59 of the Local Government Act; and
3. NOTES that a further report will be presented to the Council at the conclusion of the Statutory Advertising period seeking further consideration of the proposed subdivision and outlining the various project management options available.”
Detail
In accordance with the requirements of Section 3.59 of the Local Government Act 1995 (the Act), a notice promoting the Business Plan and inviting public submissions was placed in the Western Australian Newspaper on Saturday 21 May 2005. The public submission period closed at 4.30pm on Monday, 4 July 2005 and resulted in two (2) submissions being received (including one late submission).
When dealing with the advertising of Business Plans, section 3.59(5) of the Act states:-
“After the last day for submissions, the local government is to consider any submissions made and may decide to proceed with the undertaking or transaction as proposed or so that it is not significantly different from what was proposed.”
Public Submissions
The two public submissions are summarised below:-
1. Submitted by Koltasz Smith and received on 4 July 2005 (Attachment 2 refers) -
· Support the Business Plan objectives to develop the Council owned land.
· Do not support the involvement of LandCorp due to their resource extraction and land development interests in the NIA, thereby opening up a potential conflict of interest in the development and sale of Council land.
· Do not support the role of Council as a land developer as it is not Council's core business and it will require it to allocate significant, scarce, staff and financial resources to land development to the detriment of other core municipal undertakings.
· As the statutory approval authority for development within the NIA, the Council could also be open to claims of conflict of interest if development objectives for Lot 4 conflict with those of other private landowners/developers in the NIA.
· The introduction of another private developer within the NIA will ensure greater competition for the extraction of raw materials and the supply of industrial land. Domination of the development of the NIA by LandCorp is not considered to be appropriate given their extensive landholdings. More competition and choice of lot sizes will ensure a more rapid rate of development of the NIA.
· Council should call for an EOI from private developers to purchase and develop Lot 4 under a development agreement and statutory control mechanisms, in order to maximise the social, economic and environmental objectives of the Council.
“Our clients trust this submission is accepted as a constructive input to the Business Plan. They stress that they do not criticise the role of LandCorp or the role they undertake in developing land. Rather, our clients see that for the sake of competition, product choice and to accelerate the development of the NIA, the introduction of another larger private development component is essential.”
2. Submitted by Renata Zelinova and received on 4 July 2005 (Attachment 3 refers) -
· Disappointed with the level of consideration bushland values are getting when planning for the City’s future development.
· There is an opportunity for the City to demonstrate its commitment to Environmental Sustainability by conserving “a bushland of high conservation values”.
· There should be no negotiation of the Bush Forever Site 295 and “as a minimum the City should keep part of Lot 4 identified in Bush Forever (2000) as Part C Bush Forever Site 295 and consider opportunities for addition to this conservation estate to maximise the environmental outcomes for Karrakatta Central & South vegetation community”.
Consultation
The NIA Structure Plan has already been subject to an extensive consultation process in accordance with the requirements for the approval of a structure plan. In addition, the Business Plan has also been advertised under the public notice requirements.
Comment
The Business Plan - Proposed Subdivision of Lot 4 Flynn Drive, Neerabup outlined the following proposal:-
“The City of Wanneroo proposes to develop Lot 4 Flynn Drive, Neerabup for the establishment of an industrial development estate. Development will occur in stages over several years, dependant on demand. Some stages may be undertaken as a joint venture with LandCorp, essentially on a Project Management arrangement.”
This was a broad statement, providing the opportunity for the City to express its intention to commence a Major Land Transaction as required by legislation. The Business Plan did not commit to how the City would undertake the subdivision, or indeed the extent of the subdivision area, as this would be determined only through the implementation of appropriate planning processes.
Neither of the submissions received, suggest that the land should not be developed, albeit that the submission from Renata Zelinova appears to indicate that emphasis should be placed on conserving areas of natural bushland, in addition to that identified as Bush Forever.
Effectively, four issues have been raised across the two (2) submissions:-
1. conservation of the native bushland;
2. an assertion that there is potential for a conflict of interest if LandCorp are actively involved in the subdivision of the City’s land;
3. the potential for a conflict of interest with the City being the land developer and planning authority; and
4. a suggestion that the City would be better served by seeking private interest in the purchase and subsequent development of the land.
Conservation Management
The Business Plan included the following statements:-
“It is envisaged that some of the key objectives of any subsequent development will include the following:
· Design and development of a quality mixed-use industrial estate that offers a variety of lot sizes suitable for a range of industries;
· To provide opportunity for industry to develop and allow for population and economic growth;
· To meet community and social needs in relation to commercial & industrial centres and services;
· To maximise employment opportunities for the region; and
· To incorporate the principles of sustainability into the design and construction of the estate.
The City, as developer will be required to meet all normal statutory requirements, therefore, prior to subdivision and subsequent development commencing, a list of prescribed criteria have to be satisfied, and cognisance taken of other pertinent issues, including:
· Extent and cost of Cell Works
· Final surface levels
· Land clearing
· Dieback Hygiene Plan
· Design guidelines and landscape master plan
· Service concept plans
· Drainage, nutrient and water management
· Bush Forever negotiated outcomes
· Flora and fauna”
It is therefore recognised that any subdivision plan will need to address the Bush Forever reservation, along with flora and fauna management in an appropriate manner. However, this needs to be balanced against the demand for strategically located land in the northern corridor for the establishment of a new industrial estate. This site has already been subject to considerable land use planning and will be required to comply with all requirements imposed by relevant agencies.
Potential Conflict of Interest with LandCorp
As LandCorp is a major landowner in the NIA, with properties adjoining the City’s Lot 4 Flynn Drive, a cooperative approach is desirable and could provide for significant efficiencies, particularly during the preliminary elements of the subdivision planning. Whilst it is accepted that an arrangement with LandCorp may lead to instances where a conflict of interest could exist, it is considered that this can be addressed in an appropriate contractual arrangement.
Not withstanding that, whilst the Business Plan referred to the potential for some stages of the subdivision to be undertaken as a joint venture with LandCorp, that type of arrangement would require considerable negotiation and is not considered to be a principal part of the ‘proposal’ outlined in the business plan.
Private Vs Public Development
It is recognised that additional industrial land is required in the northern corridor and Neerabup has been identified as a suitable site and zoned accordingly. Within the NIA, portions of the City’s Lot 4 Flynn Drive are seen as the most likely first stage for further industrial development.
The identification and acquisition of regionally significant land for future industrial use is prudent planning and can in fact be a mechanism for the accumulation of real assets. In this instance, there is no doubt that the acquisition of Lot 4 had significant merit and on today’s value represents a sound investment, given the likely current market value of the property. As the market matures however, and the timeframe for the development approaches, there is merit in assessing the City’s ongoing role and level of involvement in the actual subdivision process.
The majority of land development in WA is currently undertaken by the private sector, with a major part of the public sector development implemented by LandCorp, which is the Western Australian Government's land and property development agency.
In terms of the objectives of LandCorp, the following information is provided on its website:-
“As the State's specialist land development agency, LandCorp implements major Government land and infrastructure projects to meet the economic and social needs of Western Australia. LandCorp's services include:
· Providing sufficient industrial land to meet the State's economic needs
· Providing major regional infrastructure developments
· Disposing of surplus government land assets
· Urban infill and renewal projects
· Townsite development throughout the state”
A local government may consider actively undertaking the development of its own land for a range of reasons, including:-
1. to attract growth to the area
2. to promote economic development
3. to provide a development type that is not normally provided by the private sector
4. to influence the pattern of land development in an area
5. to generate income
There are however, potential problems associated with a local government undertaking it’s own subdivision, including:-
· in-house skill level, expertise and resourcing, that could impact on the quality and timeliness of the development;
· perceived conflict of interest with the City being the planning authority, regulator and also the land developer;
· capital funding requirements and cash flow issues; and
· risk from holding costs.
The City’s original aim in acquiring Lot 4 was to set it aside for future industrial development. That aim has been achieved, and strategically, development of the land is required to provide first stage release within the next three years. To facilitate this, the City has three (3) options:-
1. enter into a joint venture arrangement with a suitable developer;
2. enter into a contract with an appropriately experienced company to undertake or project manage the subdivision works; or
3. sell the land (or a portion) and leave it to the buyer to develop.
In respect to the third option, this decision will be influenced by the following factors:-
· whether it is considered that the City needs to influence the type, quality or timing of the subdivision. To a degree, the City can influence the type and quality of the subdivision through its normal planning role. In terms of the timing, it is likely that any subsequent buyer could develop in a shorter timeframe than the City due to local government tendering requirements. However, subdivision is likely to be based on market demand.
· the price that the land could be sold for (current market value) compared to the potential net income from the sale of serviced lots.
The first stage of the subdivision is likely to have to bear significant infrastructure and servicing costs. Even with a cost sharing arrangement with LandCorp, as the City will be providing a larger proportion of the land for the first stages, then proportionately these costs will be borne by the City. These costs therefore increase the capital outlay required by the City and consequently the risks associated with holding costs.
As the first stages of the subdivision of this property are likely to occur in the area adjoining Mather Drive, if a sale was to be considered, the area south of Pederick Street and comprising approximately 91 hectares (Attachment 4 refers) would be the most practicable. This would then leave the City with a land holding of 112 hectares north of Pederick Road for future development.
The current Business Plan does not address the potential for the City to sell the property outright, therefore if this were a consideration, another Business Plan would need to be prepared. Whilst, the sale of at least part of the property could be supported, that decision can only be made once a better understanding has been achieved of the financial arrangements involved in the land development and market values assessed. This level of information will be obtained through the preliminary planning process, including identifying all options available to the City.
Given the lead time involved in subdivision of land, particularly when resource extraction is involved, it is important for the preliminary works to commence if this area is to be available to meet the short-term industrial land supply needs within two-three (2-3) years. Therefore, it is proposed that the City take a leading role and that the Council:-
· note receipt of the two public submissions, and
· endorse the proposal for a Major Land Transaction (land development) as outlined in the Business Plan - Proposed Subdivision of Lot 4 Flynn Drive, Neerabup
This will permit the preliminary planning activities to be commenced as outlined in the ‘Financial Implications’ section of this report.
Statutory Compliance
Business Plan
The subdivision of Lot 4 Flynn Drive, Neerabup, being a ‘land development’ would be deemed a Major Land Transaction in accordance with Section 3.59 of the Act. Accordingly, prior to agreeing to proceed with the development, the City is required to prepare a business plan and give state wide public notice, detailing its intention to commence the proposal and inviting public submissions.
At the conclusion of the public submission period, Council is then in a position to decide whether to proceed with the proposal (land development) as outlined in the Business Plan.
Strategic Implications
This project has the potential to address a number of the goals and strategies as defined in the City’s Strategic Plan (2002-2005), including:-
“Healthy Communities
2.6 Provide and manage infrastructure to meet the needs of the community
Economic Development
3.2 Identify, support and respond to the needs of existing and new industries
3.3 Encourage employment growth within the community”
Policy Implications
Nil
Financial Implications
The following strategic initiative has been listed on the 2005/06 Budget:-
Project No Project Budget
1602 Subdivision of Lot 4 Flynn Drive Neerabup $386,000
The likely expenditure to be incurred by the City in 2005/06 in the preliminary development of its landholding is detailed below:-
|
Activity |
Description |
Costs |
|
Scheme Amendment |
Includes cell works, service concept plan, drainage and nutrient management plan |
$66,000 |
|
Preliminary Planning and Engineering |
Indicative concept planning and engineering |
$24,000 |
|
Detailed Design |
Identify detailed engineering costs and Lot yield/mix for subdivision application |
$200,000 |
|
Planning Approvals |
Approval of subdivision plan |
$16,000 |
|
Clearing Permits |
Spring survey and clearing permits |
*$20,000 |
|
Drilling Programme |
To determine resource extraction level |
$30,000 |
|
Survey Costs |
Including Mather Drive realignment and detailed design |
$30,000 |
|
TOTAL |
|
$386,000 |
* The spring survey work has partially commenced but will need to be progressed to address the clearing requirements.
Voting Requirements
Absolute Majority
EndStrip - This will not be printed so do not delete
Recommendation
That Council:-
1. NOTES the two public submissions received in response to the public notice advertised in the Western Australian on Saturday 21 May 2005, dealing with the Business Plan - “Proposed Subdivision of Lot 4 Flynn Drive, Neerabup”;
2. APPROVES BY ABSOLUTE MAJORITY the staged subdivision of Lot 4 Flynn Drive, Neerabup for the purpose of establishing an industrial development estate in accordance with the approved Business Plan; and
3. NOTES that outcomes from the preliminary planning process will be reported to a subsequent Council meeting for consideration.
EndOfRecommendation - This line will not be printed Please do NOT delete
ATTACHMENT 1
StartOfAttachment - Do not delete this line will not be printed
EndOfAttachment - Do not delete this line will not be printed
StartOfAttachment - Do not delete this line will not be printed
ATTACHMENT 2 Page 1 of 6

ATTACHMENT 2 Page 2 of 6

ATTACHMENT 2 Page 3 of 6

ATTACHMENT 2 Page 4 of 6

ATTACHMENT 2 Page 5 of 6
ATTACHMENT 2 Page 6 of 6

EndOfAttachment - Do not delete this line will not be printed
StartOfAttachment - Do not delete this line will not be printed
ATTACHMENT 3 Page 1 of 2
4 July 2005
Renata Zelinova
19 Manta Pass
Mindarie WA 6030
Charles Johnson
Chief Executive Officer
City of Wanneroo
Locked Bag 1
WANNEROO WA
Dear Mr Johnson
1 Proposed Subdivision of Lot 4 Flynn Drive Neerabup
First of all as the City’s ratepayer and as a member of the City of Wanneroo’s Environmental Advisory Committee and the Local Biodiversity Strategy development committee, I would like to express my disappointment with the level of consideration bushland values are getting when planning for the City’s future development.
While considering the City’s intention to provide employment opportunities in the local area through development of an industrial area, in this proposal the City failed to aknowledge the sites potential to address one of the City’s priority goals as defined in the City of Wanneroo’s Strategic Plan 2002-2005:
1. Environmental Sustainability
1.1 Conserve and enhance environmental assets
There is a great opportunity to demonstrate the City’s commitment to this strategy here, as large part of Lot 4 Flynn Drive Neerabup provides a great opportunity to conserve a bushland of high conservation values.
Most of the bushland within Lot 4 Flynn Drive, Neerabup is in Excellent to Pristine condition (2003 Bushland Assessment, City of Wanneroo) and representative of a vegetation community, Karrakatta Central & South, which is under-reserved by Bush Forever, with only 8% of the original extent of this vegetation community to be retained when Bush Forever is fully implemented. This site also provides an opportunity to conserve an example of transition from Cottesloe Central & South to Karrakatta Central & South vegetation community. Conservation of large chunks of vegetation complexes in excellent condition provides better and even economically more viable conservation outcomes then keeping small portions of remaining vegetation that is discarded by developers as least suitable for development.
ATTACHMENT
3 Page
2 of 2
The proposed business plan mentions briefly that “an area in the southern corner (is) being affected by Bush Forever Site 295” and that the final subdivision proposal is subject to the Bush Forever negotiated outcomes. I believe that there should be no negotiation and as a minimum the City should keep part of the Lot 4 identified in Bush Forever (2000) as Part C Bush Forever Site 295 and consider opportunities for addition to this conservation estate to maximize the environmental outcomes for Karrakatta Central & South vegetation community.
Hope you will be able to consider the above comments and if you would like to discuss any of the above further please contact me on 9305 9382 or via email on r_zelina@yahoo.com.
Your sincerely
Renata Zelinova
EndOfAttachment - Do not delete this line will not be printed
StartOfAttachment - Do not delete this line will not be printed
ATTACHMENT
4

EndOfAttachment - Do not delete this line will not be printed
File Ref: S20/0001
File Name: CAInsurance Services 2005 2006.doc This line will not be printed dont delete
Level 4 Approval by Wayne Wright Date 27 July 2005
Level 3 Approval by Wayne Wright Date 26 July 2005
Level 2 Approval by John Paton Date 25 July 2005
Level 1 Approval by M Sparks Date 25 July 2005
Responsible Officer: Director, Corporate Services
Disclosure of Interest: Nil
Author: Property Officer
Meeting Date: 9 August 2005
Attachments: Nil
StartStrip - This line will not be printed so do not delete
Issue
To consider the tender submitted by Zurich Australian Insurance Limited for the City’s Motor Vehicle and Plant Insurance cover for the one (1) year period from 1 July 2005 to 30 June 2006 and the 2005/2006 fee proposal for all other General Insurances submitted by Local Government Insurance Services.
Background
At its meeting held on 20 July 2004 (CS04-07/04), Council considered tenders for the provision of Motor Vehicle Insurance Services and a proposal from Local Government Insurance Services (LGIS) for “pool schemes” relating to Property, Liability and WorkCare Insurances for the 2004/05 renewal period. As a result, the following resolution was adopted:
“That Council:-
1. ACCEPTS the tender submitted by Zurich Australian Insurance Limited in the amount of $157,453 plus GST, for Insurance Underwriting Services for Motor Vehicle Insurance for the City of Wanneroo, for a period of one (1) year from 1 July 2004 to 30 June 2005; and
2. ACCEPTS the proposal of the Local Government Insurance Services for their “pool schemes” (Municipal Workcare, Municipal Property and Municipal Liability) for a total premium of $1,393,435 and confirms membership of those schemes for the 2004/05 financial year.”
Detail
Motor Vehicle
As in previous years, tenders for Motor Vehicle & Plant Insurance cover for the 2005/06 financial year were advertised by LGIS on Saturday, 21 May 2005, closing Tuesday, 7 June 2005 at 4.00pm. Tender documents were requested by three (3) insurers, being Zurich Australian Insurance Limited, Allianz Insurance Ltd and Suncorp Insurance. The process resulted in one tender being received for the City of Wanneroo from Zurich Australian Insurance Limited as follows:-
· Option 1: Premium $156,685.00 plus GST* Policy Excess $500
· Option 2: Premium $136,596.00 plus GST Policy Excess $1,000
Option 1 is considered the most economic based on previous claims history.
* Note: Actual Premium charged for Option 1 at $154,824.79 (plus GST) due to a slight variation in the rate calculation.
The tender amount from Zurich Australian Insurance Limited is virtually identical to the premium for 2004/05. It should be noted that the proposed premium is based on a significantly higher plant value than for the same period last year and, therefore, represents an actual rate reduction (Total value of vehicles and plant for 2005/06 of $16,740,300 compared to $14,223.050 in 2004/05). Also an improved claims experience is likely to result in a “Claims Experience Discount” in the order of $16,000, which is paid in the form of a rebate cheque at the end of the financial year.
Industrial Special Risk
LGIS have confirmed that under the Municipal Property Scheme, cover can be provided for the 2005/06 financial year at a cost of $143,746 (plus GST) with retention of a $2,000 excess for most claims and $5,000 for vandalism claims. The basic premium is a decrease of $18,931 over the corresponding premium for 2004/05 although the insured value increased from $79,694,426 to $84,570,207. The reduction seems to be as a result of a softening of the Property Insurance Market.
Public Liability/Professional Indemnity
Large increases of previous years have peaked as reinsurers increase their ability to underwrite worldwide risks. As a result Municipal Liability Scheme (MLS) has advised that the overall pool has decreased slightly for the 2005/06 year.
The formula MLS uses for calculating premiums is based on the total operating revenue of the City as a percentage of the total contribution pool, multiplied by a factor for the incurred loss ratio and risk profile. The risk profile is based on MLS assessment of individual Councils, taking into account the past four years’ claims experience and the implementation of risk management strategies.
As a result of this process, the premium for the City of Wanneroo for 2005/06 has been set at $320,200 representing a slight decrease on last year.
Other Classes of Insurance
The City holds a number of smaller, specific insurances, including cover for Voluntary Bush Fire Fighters (a statutory requirement), Casual Hirer’s Liability, Construction Risks, Councillors and Officers Liability, Fidelity Guarantee and Personal Accident/Travel. These risks have been placed by LGIS with various external Insurers and premiums have been held steady. Cover has again been secured, together with an additional policy for Councillors & Officers – Employment Practices extension.
|
CLASS |
04/05 PREMIUM |
05/06 PREMIUM |
|
Bushfire |
$2,500 |
$3,000 |
|
Casual Hirers |
$6,000 |
$6,000 |
|
Construction Risk |
$750 |
$750 |
|
Councillors & Officers Liability |
$4,184 |
$4,184 |
|
C & O – Employment Practices |
|
$3,500 |
|
Fidelity Guarantee |
$1,377 |
$1,377 |
|
Personal Acc |
$1,142 |
$1,142 |
|
TOTAL (ex GST) |
$15,953 |
$19,953 |
Worker’s Compensation
The Municipal WorkCare Scheme (MWS) has provided details of the rates to apply for the 2005/06 insurance period. Contributions are based on estimated wages and are influenced by claims experience. There is a ‘minimum’, ‘deposit’, and ‘maximum’ contribution rate with the deposit contribution based on Scheme Rules, taking into account the number, extent and value of claims, and subject to adjustment at the end of the policy period.
Based on the City’s estimated wages the deposit premium for 2005/06 will be $513,417, which is virtually unchanged from last year.
|
|
2004/05 |
% of Gross Salaries |
2005/06 |
% of Gross Salaries |
|
Minimum Rate |
*$411,421 |
1.60% |
*$414,349 |
1.90% |
|
Deposit |
*$512,382 |
2.00% |
*$513,417 |
2.20% |
|
Maximum Rate |
*$890,992 |
3.50% |
*$893,303 |
3.85% |
*Note: Includes HIH Levy of $6,907
Comment
The trend of significant increases in premiums now appears to have been arrested and the rates proposed under the LGIS are consistent across local government and considered reasonable against the wider community. In view of this it is recommended that the City of Wanneroo renew their insurances to 30 June 2006 via LGIS, with the exception of Motor Vehicle cover, which is to be serviced by Zurich Australian Insurance Limited.
Statutory Compliance
The tender for the provision of Motor Vehicle Insurance was undertaken in accordance with the provisions of Section 3.57 of the Local Government Act 1995 and Part 4 of the Local Government (Functions and General) Regulations 1996.
The Council is not required to tender for the services provided by the Local Government Insurance Service as Part 4 of the Local Government (Functions and General) Regulations 1996, Section 11 (2) states that:-
“Tenders do not have to be publicly invited according to the requirements of this section if-
(b) the supply of the goods or services is to be obtained through the Council Purchasing Service of WAMA.”
Strategic Implications
The renewal of Insurance Services for the 2005/06 financial year is consistent with the City’s Strategic Goal:–
“4. Corporate Management and Development – To create a culture that is committed to corporate learning, evolution and proper management of our natural, financial and human resources”.
Policy Implications
Nil
Financial Implications
|
Insurance Policy Type |
2002/03 |
2003/04 |
2004/05 |
2005/06 |
|
Motor Vehicle |
113,155 |
193,846 |
157,453 |
154,825 |
|
Industrial Special Risks |
237,634 |
243,837 |
162,677 |
143,746 |
|
Public Liability |
235,570 |
315,510 |
323,810 |
320,200 |
|
Other |
12,849 |
16,223 |
15,953 |
19,953 |
|
Worker’s Comp. (Max) |
787,500 |
860,592 |
890,992 |
893,303 |
|
Total |
$1,386,708 |
$1,630,008 |
$1,550,885 |
$1,532,027 |
Voting Requirements
Simple Majority
EndStrip - This will not be printed so do not delete
Recommendation
That Council:-
1. ACCEPTS the tender submitted by Zurich Australian Insurance Limited in the amount of $154,824.79 plus GST, for underwriting services for motor vehicle insurance for the City of Wanneroo, for a period of one (1) year from 1 July 2005 to 30 June 2006; and
2. NOTES the proposals from the Local Government Insurance Services for its “pool schemes” (Municipal WorkCare, Municipal Property and Municipal Liability) and other general insurances for a total premium of $1,377,202 (plus GST) including membership of those schemes for the 2005/06 financial year.
EndOfRecommendation - This line will not be printed Please do NOT delete
File Ref: S07/0114V01
Responsible Officer: Director, Community Development
Disclosure of Interest: Nil
Author: Michael Parker
Meeting Date: 9 August 2005
Attachments: 2
File Name: AAHAINSWORTH SKATEABLE SPACE.doc This line will not be printed dont delete
Level 4 Approval by Brigitte Creighton Date 28 July 2005
Level 3 Approval by Brigitte Creighton Date 25 July 2005
Level 2 Approval by Brigitte Creighton Date 25 July 2005
Level 1 Approval by Brigitte Creighton Date 25 July 2005
StartStrip - This line will not be printed so do not delete
Issue
To consider the outcomes of Community Consultation for a skate-able space at the Hainsworth Centre.
Background
The potential for a skate park facility has been the subject of consultation since the redevelopment of the Hainsworth Centre in 2003. Some concerns voiced by the community over the type and style of youth skate facility as well as strategies to manage youth behaviour at Hainsworth, has required an extensive consultation process since the redevelopment of the centre.
At all stages of the consultation process, young people, local residents, interested community members, staff at the school adjacent to the Hainsworth Centre and Youth Services staff have been involved.
In 2003, the City endorsed the formation of a Community Reference Group including elected members, young people and residents. Discussion centred on the size and type of a skate facility that would suit the physical layout of the area to the rear of the centre, while still considering the active use of the adjacent sporting grounds. This group undertook formal consultation, however, it was not successful in getting input and involvement of young people.
In 2004, the City instructed Administration to disband the Hainsworth Skate Park Community Reference Group and to undertake informal consultation with the community because of the lack of engagement by young people in the Reference Group. Results of this consultation in early 2005 formed the basis of a project brief for a concept design, which has since undergone comment from the community. Feedback from the community was completed in June 2005 and a full copy of the consultation outcomes has been provided in the Elected Members Reading Room. (Also see Attachment 2)
Detail
In the 2004/05 budget, $150,000 was set aside for a skate facility ($20,000 for design $130,000 for construction) and this has been carried forward into 2005/06.
Production of a concept design, consultation sessions and a final technical design including an acoustic report, completes the contract requirements of the contractor, Convic. (details of expended and carried forward figures are in the Financial Implications section of this report).
Consultation with young people by the Youth Development Officer showed interest in a multi-purpose youth space with “skate-able” areas that also included basketball and performance areas. However, while the concept design met the project brief considerations for an innovative and interactive youth area, it exceeded the stated budget and required a staged implementation as follows :
· Stage 1 Skate Bowl
· Stage 2 Community Plaza.
Further discussions among community groups and young people indicated that a Stage 1 skate bowl facility is the preferred option. This can be constructed within the existing budget of $130,000. Attachment 1 shows the design of the preferred option. An acoustic report is required to be completed as part of the approval process for the facility.
Due to anti-social behaviour by young people at the centre, considerable concern has been voiced by the residents in Tonkin Place and Salcott Way. During consultation they questioned how youth behaviour would be managed if the facility is built to the rear of the Hainsworth Centre. In order to meet the concerns of local aged people, nearby residents and users of the Hainsworth facility, Administration proposed that the skate area be fenced and directly accessible only through the existing youth area of the centre. This has advantages in that it:
· Takes into account community concerns re anti social behaviour and noise
· Controls times that the facility will be used and resulting impact on other residents
· Provides safety measures (mentioned by youth as a positive) including a concern over the risk of bullying among young people that sometimes occurs at open space facilities.
· Facilitates easier supervision by youth workers
· Complements the existing City’s programs with minimal financial impact
· Creates effective regular contact points for youth workers with this youth sub-culture
· Complements existing skate facilities in area
· Expands the versatility of youth programs at Hainsworth Centre
· Enhances the Hainsworth Centre and its adjoining park
Currently access to the youth area in Hainsworth Centre occurs during approximately 18 hours/week, with extra hours in summer as the Grind It Skate series is run by City staff. Young people could access the skate facility not only during the City’s program, but when a community group books the youth area within Hainsworth. Fencing of the facility meets the concerns raised by residents. The proposed design allows for the adjacent oval to remain a full senior-size sports park and continues to allow easy access for the nearby school to the whole reserve. Funding sources for fencing costs of approximately $15,000 can be explored by administration and may include Urban Design funding.
However, two issues present problems with this recommendation:
1. Hainsworth Park is a category 20A Public Recreation Reserve, which by definition is required to be made available to the general public. Limited access to areas of the reserve through the installation of fencing will require approval of the Minister for Lands through the Dept. for Planning and Infrastructure (DPI)
2. The liability implications for the City if a person was hurt while climbing the fence.
With regard to the fencing issue, given that reasonable public access to the skate park is being provided through the youth area in the Hainsworth Centre, a strong case can be put to DPI.
The proposed fencing is of “Loop Top” pool fencing style that minimises opportunities for injury and presents an adequate height to make it clear the area is restricted, other than through the Hainsworth Centre. The City’s Contracts and Property Management team advise that the viewpoint of the City’s insurers is that provided fencing is safely designed and durable, signage is obvious and it is clear to any reasonable person, that climbing the fence may present danger and risk of injury, then the City’s Duty of Care is fulfilled.
Comment
Through positive consultation strategies, there is existing good will towards the youth project among residents and community agencies. This proposed facility promotes the public perception of the Hainsworth Centre as an excellent flexible community centre for use by all ages in the community. The fencing proposal takes into account the safety, security, recreational and social needs of local aged residents, nearby residents, young people and centre users.
The fenced facility connected to the existing youth room provides the City with an opportunity to pilot a different approach to skate facilities given some of the issues of youth anti-social behaviour at other skate facilities. Diverse strategies and creative thinking are essential in providing challenging youth facilities which also do not impact adversely on the whole community, creating a negative perception of young people.
Construction of the facility without fencing will no doubt create opportunities for anti-social behaviour by young people, whether local or non-local, as the visual capacity for supervision of the area behind Hainsworth is problematic at best. Nearby residents have strongly indicated their wish for a fenced facility, which offers usage under supervision of responsible adults and the Youth Services staff. Recent incidents of perceived harassment by a minority of young people hanging out at the centre, has unfortunately encouraged a somewhat negative perception among aged residents adjacent to the centre in Tonkin Way.
The statutory requirements for approval of the fenced area creates a problem for the project and it will depend upon the DPI’s perception as to whether the general public has adequate access to the facility through:
· The City’s existing level of provision of youth programs and
· The availability for the public ie community groups to book and utilise the youth area of the Hainsworth Centre.
The legal implications of injury for someone climbing the fence can be minimised through usage of suitable fencing of sufficient height to clearly indicate inaccessibility and provision of clearly visible signage stating that the facility is available for usage through use of the youth area of the centre.
Administration has serious concerns about the advisability of building the skate facility without some controlled usage due to:
· The poor supervisory capacity of the designated areas
· Concerns of residents adjacent to the centre.
· Demonstrated problems at other open space skate facilities.
Consequently, if DPI does not support fencing of the skate facility, Administration will recommend the project does not proceed.
Statutory Compliance
The reserve is a 20A Public Recreation Reserve, which generally precludes restrictive access through the use of perimeter fencing, without permission of the Minister for Lands.
Strategic Implications
This project complies with the City’s Strategic Plan 2002-05 :
“Goal 2 Healthy Communities
2.4 Support safe and secure communities
2.5 Foster a community that finds strength in its community
2.6 Provide and manage infrastructure that meets the needs of our community.
2.7 Provide community-focussed services and lifestyle opportunities”
Policy Implications
Nil
Financial Implications
The estimated cost of the facility is summarised below:
|
|
Estimated Costs (with GST) |
Actual expenditure to date |
|
Design and Documentation including: |
||
|
· 1 public consultation visit |
$1,800 |
$1,800 |
|
· Schematic design |
$5,200 |
$5,200 |
|
· Develop cost plan for schematic design |
$770 |
$770 |
|
· Contract documentation |
$6,700 |
|
|
· Preparation of cost plan for contract documentation phase |
$500 |
|
|
· Independent structural certification of drawings |
$800 |
|
|
· Acoustic report |
$700 |
|
|
· Drawing, printing etc |
$1,000 |
|
|
· Second site visit/consultation |
$1,800 |
|
|
Construction costs, including: |
$130,000 |
|
|
Contract (internal) Administration @ 4.25% |
$5,525 |
|
|
Tender Advertisements |
$1,200 |
|
|
Fencing |
$15,000 |
|
|
TOTAL |
$170,995 |
$7,770 |
EXISTING BUDGET
Approximately $143,000 has been carried forward from the 2004/05 budget into the 2005/06 budget for the proposed facility.
Contract administration, tender advertisements and project on costs 4% have been carried forward into the 2005/06 budget for the proposed facility.
EXTRA FUNDING IF RECOMMENDATION FOR FENCING PROCEEDS
Funding of approximately $15,000 will be sought for fencing costs, which have not as yet been allocated in the 2005/06 funding, and may involve re-direction of funds towards this project as an urban design priority, outside grant funding or sponsorship or a combination of some or all of these sources.
Voting Requirements
Simple Majority
EndStrip - This will not be printed so do not delete
Recommendation
That Council:-
1. ENDORSES the preferred option of a fenced concrete Skate Bowl facility at the Hainsworth Centre
2. NOTES Administration will prepare tender specifications, seek alternative sources of funding for fencing and provide a further report to Council once tenders are received.
3. WRITES to the Minister for Lands seeking approval to fence the proposed skate facility at the Hainsworth Centre.
EndOfRecommendation - This line will not be printed Please do NOT delete
StartOfAttachment - Do not delete this line will not be printed

EndOfAttachment - Do not delete this line will not be printed
ATTACHMENT 2 Page 1 of 3 ATTACHMENT 2 Page 2 of 3 ATTACHMENT 2 Page 3 of 3

File Ref: S07/0012V02
File Name: AAAcceptance of Funding Agreement For In Home Care .doc This line will not be printed dont delete
Level 4 Approval by Brigitte Creighton Date 28 July 2005
Level 3 Approval by Brigitte Creighton Date 25 July 2005
Level 2 Approval by Brigitte Creighton Date 25 July 2005
Level 1 Approval by Brigitte Creighton Date 25 July 2005
Responsible Officer: Director, Community Development
Disclosure of Interest: Nil
Author: Delyse Sterpini- Team Leader Children's Services
Meeting Date: 9 August 2005
Attachments: Nil
StartStrip - This line will not be printed so do not delete
Issue
To consider a Funding Agreement between the City and the Commonwealth of Australia for the continued provision of a 15 place In-home Care service.
Background
The In-home Care service is an initiative of the Commonwealth Government’s Stronger Families and Communities Strategy. It is a flexible form of childcare that provides care in the child’s home by an approved carer as opposed to care provided in the Carer’s home. The In- home Care initiative responds to the demand for more flexible childcare arrangements and supports greater participation in paid work, education and community activities.
The City of Wanneroo initially entered into a three year Agreement with the Commonwealth Government to provide this service in December 2001. This agreement was subsequently extended with the City’s acceptance to 30 June 2005. This report seeks endorsement to enter into the required agreements to continue the service till 30 June 2006.
Detail
The In-home Care initiative is a targeted measure aimed at families who either don’t have access to a standard childcare service or for families whose childcare needs cannot be met by an existing service. These include:
· Families working non standard hours
· Families with more than two children under school age
· Families where either parent or child has a chronic or terminal illness
· Breast feeding mothers working from home
· Any other circumstances that are agree by the Secretary of the Department.
The service will be delivered within the Wanneroo area or as agreed with the Department. The City of Wanneroo In-home Care service has been allocated 15 approved Equivalent Full Time (EFT) places.
Comment
The resources and programs required to deliver and monitor the In-home Care service are congruent with those currently in operation for the City’s Family Day Care Scheme.
The details and content of the terms and conditions for funding In-home Care are consistent with those associated with the Agreement with the Commonwealth for this service that expired on 30 June 2005. There are no perceived unreasonable or restrictive guidelines or conditions that cannot be accommodated within existing resources.
Should Council change its focus in this area of service provision, this agreement may be terminated at any time with reasonable written notice to the Department.
Statutory Compliance
A resolution of Council is required to authorise the Mayor and CEO to execute and affix the common seal of the City of Wanneroo to the Agreement
Strategic Implications
Acceptance to the proposed variation for the City’s In–home Care Agreement with the Commonwealth is consistent with the City’s strategic plan in the following areas:
“2.4 Support safe and secure communities
2.5 Foster a community that finds strength in its diversity
2.7 Provide a community focused services and lifestyle opportunities
3.3 Encourage employment growth with the community”
Policy Implications
Nil
Financial Implications
The City has been advised by the Commonwealth Government through the Department of Family and Community Services that it will receive Network Support funding under the Child Care Support Program of $18,081.80 ( inclusive of GST ) for the 2005/06 financial year. Additional funds are generated by the payment of a weekly administration levy by parents and annual membership fees paid by the carers. The signing of the Agreement will be reflected in anticipated income and expenditure in the proposed 2005/06 budget.
Voting Requirements
Simple Majority
EndStrip - This will not be printed so do not delete
Recommendation
That Council:-
1. AGREES to enter into a new agreement with the Commonwealth of Australia in relation to the continued provision of funding for the City of Wanneroo In-home Care service.
2. AUTHORISES the Mayor and CEO to execute and affix the common seal of the City of Wanneroo to the Funding Agreement.
EndOf Recommendation - This line will not be printed Please do NOT delete
File Ref: P34/2330V01, P07/0419V01
File Name: CAApplication To Keep More Than Two Dogs Various.doc This line will not be printed dont delete
Level 4 Approval by Brigitte Creighton Date 28 July 2005
Level 3 Approval by Brigitte Creighton Date 25 July 2005
Level 2 Approval by Brigitte Creighton Date 25 July 2005
Level 1 Approval by Brigitte Creighton Date 25 July 2005
Responsible Officer: Director, Community Development
Disclosure of Interest: Nil
Author: Kristy Sticken
Meeting Date: 9 August 2005
Attachments Nil
StartStrip - This line will not be printed so do not delete
Issue
To consider applications for an exemption to Council’s Local Laws made under Section 26(3) of the Dog Act 1976 to keep more than two dogs.
Background
Clause 14 of the City of Wanneroo Animal Local Laws 1999 stipulates:
“A person shall not keep or permit to be kept on any premises more than:
a) 2 dogs over the age of 3 months and the young of those dogs under that age; or
b) 6 dogs over the age of 3 months and the young of those dogs under that age if the premises are situated within a rural area or comprise a lot in a special rural area having an area of 4 hectares or more;
unless the premises is licensed as an approved kennel establishment or has been granted an exemption pursuant to section 26(3) of the Dog Act 1976 and have planning approval under the Town Planning Scheme.”
Detail
The following applications have been made under the Dog Act 1976 and are submitted for consideration:
|
Address of Applicant |
Description of Dogs |
|
41 Casuarina Way, Wanneroo |
Female Sterilised White and Yellow Pomeranian Male Sterilised Black and White Border Collie Female Sterilised Beige and White Pomeranian
|
|
29 Bushland Retreat, Carramar |
Female Cream Golden Retriever Female Cream Golden Retriever Male Black and Tan Kelpie Cross
|
Rangers have inspected the properties to ensure that means exist on the premises at which dogs will ordinarily be kept for effectively confining the dogs within the premises.
|
Address of Applicant |
Property Zoning |
Size of Property |
|
41 Casuarina Way, Wanneroo
|
Special Rural 03 |
1.5009 ha |
|
29 Bushland Retreat, Carramar
|
Special Rural 01 |
1.0050 ha |
Consultation
It has been the practice where an application is received by the City to keep more than two dogs, that residents immediately adjoining the applicant’s property in question have been consulted by letter to ascertain if they have any objections.
On this occasion the following objections have been received:
41 Casuarina Way, Wanneroo
Number of residents consulted: 5
Number of objections received: Nil
29 Bushland Retreat, Carramar
Number of residents consulted: 4
Number of objections received: 1 (Please note this particular complaint was received prior to the application being received and has since been resolved)
Comment
In considering these applications for exemption, the following two options are available:
a) Council may grant an exemption pursuant to Section 26(3) of the Dog Act 1976 subject to conditions;
b) Council may refuse permission to keep more than two dogs.
41 Casuarina Way, Wanneroo
The applicant is seeking permission to keep a third dog on their property as the zoning has changed from Rural to Special Rural. All three dogs sleep inside the house and have a large backyard. There is a kennel located outside under the veranda for the dogs to access whenever outside. All fences around the perimeter of the property are made of linked wire and gates are 1500mm in height made of wrought iron.
The third dog is a miniature Pomeranian named “Lilly” who the applicant currently owns at the moment. To date no complaints have been received concerning these dogs.
The inspecting Ranger advises that the property is adequate for the confinement and exercise of the dogs. Fences and gates are all in compliance with regulations. There is adequate shelter and space for all three dogs. The Ranger has recommended that an exemption to the City of Wanneroo Local Laws 1999 made under Section 26(3) of the Dog Act 1976 be granted.
29 Bushland Retreat, Carramar
The applicant’s mother is currently in the process of building a house and in the meantime the applicant has been looking after her mother’s dog, which is a kelpie cross named “Max”. While the house is being built the applicant’s mother will be renting for 12 months and unfortunately a condition applies that does not allow pets to be kept at this particular property, hence the need for “Max” to remain with the applicant temporarily. “Max” has also become attached to the applicant and her children.
The Ranger mentioned the property has an adequate exercise area for all three dogs. The applicant has also incurred considerable costs with fencing the entire property so that the dogs can be contained. All fences are of cyclone wire and are 1.8metres in height. The gates are 1500mm to 1800mm in height and are also made of cyclone, mesh and steel. There are two gates located on the left and the right sides of the property. All three dogs sleep inside the house at night.
Complaints were received prior to the applicant seeking approval to keep more than two dogs. A nearby resident complained about the dogs barking and not being registered. It should be noted that since this application has been received, the barking dog situation has been resolved and the third dog will be registered if the City grants an exemption to the City of Wanneroo Animal Local Laws 1999 to keep three dogs at this property.
The inspecting Ranger advises that the property is adequate for the confinement and exercise of the dogs. Fences and gates are all in compliance with regulations. There is adequate shelter and space for all three dogs. The Ranger has recommended that an exemption to the City of Wanneroo Local Laws 1999 made under Section 26(3) of the Dog Act 1976 be granted.
Statutory Compliance
These applications for exemption to Council’s Local Laws made under Section 26(3) of the Dog Act 1976 has been detailed in this report.
Strategic Implications
2. Healthy Communities
“to foster an identity that promotes lifestyle choice and provision of quality services and infrastructure
Goal 2.5 Foster a community that finds strength in its diversity;
Goal 2.7 Provide community focussed services and lifestyle opportunities.”
Policy Implications
Nil
Financial Implications
Nil
Voting Requirements
Simple Majority
EndStrip - This will not be printed so do not delete
Recommendation
That Council:-
1. GRANTS an exemption to the City of Wanneroo Animal Local Laws 1999 made under Section 26(3) of the Dog Act 1976 to keep three dogs at the following listed properties subject to the specified conditions:
§ 41 Casuarina Way, Wanneroo
§ 29 Bushland Retreat, Carramar
a) i) If any one of the dogs die or is no longer kept on the property, no replacement is to be obtained;
ii) Any barking by the subject dogs is to be kept to a minimum;
iii) This exemption may be varied or revoked if any complaints are received which are considered reasonable.
2. RESERVES THE RIGHT to vary or revoke, at any future date, the exemption given to the applicant should any relevant conditions be contravened.
3. ADVISES the adjoining neighbours of this decision.
EndOfRecommendation - This line will not be printed Please do NOT delete
Governance & Customer Relations
File Ref: S07/0057V02
File Name: AADonation Requests to be Considered by Council.doc This line will not be printed dont delete
Level 4 Approval by Daniel Simms Date 28 July 2005
Level 3 Approval by Daniel Simms Date 26 July 2005
Level 2 Approval by Rhonda Phillips Date 25 July 2005
Level 1 Approval by Rhonda Phillips Date 22 July 2005
Responsible Officer: Director, Governance & Strategy
Disclosure of Interest: Nil
Author: Rhonda Phillips
Meeting Date: 9 August 2005
Attachments: 1
StartStrip - This line will not be printed so do not delete
Issue
To consider requests for donation in accordance with the City’s Donations, Sponsorships and Waiver of Fees and Charges Policy.
Background
Council endorsed the reviewed Donations, Sponsorship and Waiver of Fees and Charges Policy at its ordinary meeting held on 20 July 2004.
This policy requires applications for over $500.00 from individuals and organisations to be determined by Council. Consequently a report is prepared for Council meetings, coinciding with a period where applications of this nature have been received.
Detail
During this period the City has received one request for sponsorship, two requests for a waiver of fees and three requests for a donation to be considered by Council. These requests are summarised on the following pages. The applications are included as an attachment to this report (Attachment 1).
Comment
|
Applicant 1 – Football West |
|
|
Name of Individual/s
Reside in City of Wanneroo
18 years of age or under |
Katy Coghlan, Chloe Coghlan and Lillie Billson
Yes – Quinns Rocks
Yes – 15,13 and 14 |
|
Event details |
Under 16’s National Talent Identification Championships in Soccer held in Sydney from 2 – 9 July 2005 |
|
Commitment to providing a written report regarding the event |
Not specified |
|
Commitment to acknowledgement of the City of Wanneroo |
Not specified |
|
Eligibility level |
Up to $200.00 per person |
|
Recommendation |
APPROVE a donation of $600.00 to Football West for sponsorship of Katy Coghlan, Chloe Coghlan and Lillie Billson to support their participation in the Under 16’s National Talent Identification Championships in Soccer held in Sydney from 2 – 9 July 2005. |
Applicant 2 – Beachway Compassion Ministries/Celebrate Recovery |
|
|
Request Amount |
$1,780.00 |
|
Description of Request |
Waiver of fees for the hire of the Banksia Grove Community Centre to serve meals on a Monday and Wednesday to those in need |
|
Criteria |
Evaluation |
|
Potential for income generation |
Nil |
|
Status of the applicant organisation |
Not for profit |
|
Exclusivity of the event or project |
The provision of meals is available to the local community of Banksia Grove |
|
Alignment with Council’s existing philosophies, values and strategic direction. |
This request supports the Healthy Communities initiative in the City’s Strategic Plan |
|
Potential benefits to the Wanneroo community |
This organisation are providing a charitable service in the community by providing meals to families within the Banksia Grove area two nights per week |
|
Alternative funding sources available or accessed by the organisation |
None specified |
|
Contribution to the event or activity made by the applicant or organisation |
The time and provision of the meals |
|
Previous funding assistance provided to the organisation by the City |
$1,293.60 Waiver November 2004 $1,200.00 Waiver December 2003 $1,240.80 Waiver May 2003 |
|
Commitment to acknowledgement of the City of Wanneroo |
Not specified |
|
Comments |
The policy states that continuous requests for waivers of fees and charges will not be supported. This group have consistently received a waiver of fees over the last three years for their hire of the Banksia Grove community Centre; therefore this request does not support the criteria of the policy. This group have been requested to complete a Community Development evaluation form each time they have asked for a waiver of fees. Community Services at the City do not feel that this group are meeting relevant Community Development outcomes or are demonstrating that they are working towards the ongoing sustainability of their program with the provision of meals to the community and therefore do not support this request for a waiver. The Beachway Compassion Ministries had the booking for the first six months of the year and Celebrate Recovery have the booking for the same service provision for the latter six months of the year. Administration will advise this group of the City’s Community Funding Program as a possible source of funding. |
|
Recommendation |
NOT APPROVE a donation request for a waiver of fees of $1,780.00 to Celebrate Recovery for the hire of the Banksia Grove Community to serve meals on a Monday and Wednesday. |
|
Applicant 3 – St John Ambulance Yanchep/Two Rocks Sub Centre |
|
|
Request Amount |
$564.00 |
|
Description of Request |
Request for the delivery of two truckloads of mulch for the grounds of the sub centre |
|
Criteria |
Evaluation |
|
Potential for income generation |
Nil |
|
Status of the applicant organisation |
Not for profit |
|
Exclusivity of the event or project |
This project will benefit the members of the sub centre |
|
Alignment with Council’s existing philosophies, values and strategic direction. |
This request supports the Healthy Communities and Environmental Sustainability initiatives in the City’s Strategic Plan |
|
Potential benefits to the Wanneroo community |
This request will ensure that the new garden at the sub centre is water wise and aesthetically pleasing to the eye |
|
Alternative funding sources available or accessed by the organisation |
Bunnings Mindarie have supported this project with the supply of ground covers, shrubs, grass and reticulation as well as horticultural support |
|
Contribution to the event or activity made by the applicant or organisation |
Volunteer time to undertake the project |
|
Previous funding assistance provided to the organisation by the City |
Nil |
|
Commitment to acknowledgement of the City of Wanneroo |
None specified |
|
Comments |
This group are entitled to one free trailer load of mulch per financial year, available for them to collect themselves. This request is for a significantly larger quantity to be delivered to Yanchep. |
|
Recommendation |
APPROVE a donation of $564.00 for the delivery of two truckloads of mulch to the St John Ambulance Yanchep/Two Rocks Sub Centre with the costs being transferred to Account 74302 0001 2611 (Waste Services – Mulch). |
|
Applicant 4 – Alcoholics Anonymous |
|
|
Request Amount |
$676.00 |
|
Description of Request |
Request for a waiver of fees for twelve months for the hire of the Gumblossom Community Centre in Quinns Rocks each Wednesday for the group meeting |
|
Criteria |
Evaluation |
|
Potential for income generation |
Nil |
|
Status of the applicant organisation |
Not for profit |
|
Exclusivity of the event or project |
This group is open to any member of the community |
|
Alignment with Council’s existing philosophies, values and strategic direction. |
This request supports the Healthy Communities initiative in the City’s Strategic Plan |
|
Potential benefits to the Wanneroo community |
This group provides a support service for alcoholics promoting sobriety within the community and have medical practitioners and police officers referring community members to the group |
|
Alternative funding sources available or accessed by the organisation |
Attendees of the meeting pay a small fee each week |
|
Contribution to the event or activity made by the applicant or organisation |
This group is run by volunteers |
|
Previous funding assistance provided to the organisation by the City |
$816.40 for a reduced rate of hire for 2004 This group received a reduced rate of $8.00 per hour for 2003 |
|
Commitment to acknowledgement of the City of Wanneroo |
Not specified |
|
Comments |
This group provides a worthwhile service to the community and are required to be a self sufficient group. They wish to remain available to as many people as possible. The group do not want to increase the fees to participants each week and only have $130.00 in their bank account. Although this request is for a period of 12 months, the booking the group have is only until the end of December in line with the bookings for Leisure Services. The policy states that continuous requests for a waiver of fees will not be supported. This group have received reduced rates on their hire of the Gumblossom Community Centre for the past two years therefore this request cannot be supported as it is a continuous request for support. |
|
Recommendation |
NOT APPROVE a donation of $676.00 to Alcoholics Anonymous in Quinns Rocks for a waiver of fees for the hire of the Gumblossom Community Centre . |
|
Applicant 5 – Quinns Baptist College P & F Committee |
|
|
Request Amount |
$576.00 |
|
Description of Request |
Request for a donation towards the Quinns Baptist College Open Day Community Fete to be held on Saturday 27 August 2005 |
|
Criteria |
Evaluation |
|
Potential for income generation |
Any income generated will be used to assist in upgrading the school |
|
Status of the applicant organisation |
Not for profit |
|
Exclusivity of the event or project |
This event is open to the public |
|
Alignment with Council’s existing philosophies, values and strategic direction. |
This request supports the Healthy Communities initiative in the City’s Strategic Plan |
|
Potential benefits to the Wanneroo community |
This event will provide an opportunity for funds to be raised to update the outdoor sports area, to help the library and to help the music department |
|
Alternative funding sources available or accessed by the organisation |
None specified |
|
Contribution to the event or activity made by the applicant or organisation |
Volunteer time to organise and run the event |
|
Previous funding assistance provided to the organisation by the City |
Nil |
|
Commitment to acknowledgement of the City of Wanneroo |
Yes with signage, in the media and in advertising |
|
Comments |
The policy states that if a request is eligible for Community Funding that it will not be supported with a donation. This organisation could have applied for Community Funding in the March 2005 round. |
|
Recommendation |
NOT APPROVE a donation of $576.00 to the Quinns Baptist College P & F Committee towards the costs of the Quinns Baptist College Open Day Community Fete to be held on Saturday 27 August 2005. |
|
Applicant 6 – Perceptions The Home Builder |
|
|
Request Amount |
$2,339.29 |
|
Description of Request |
Donation to the 2005 Metropolitan Telethon Home, built at Lot 1421 Spindrift Street, Brighton Beachside Estate, Jindalee by way of a refund of the building application fees and charges that have been paid. |
|
Criteria |
Evaluation |
|
Potential for income generation |
This Telethon Home is built to be auctioned to raise funds for the benefit for a range of charitable organisations as determined by the Board of Trustees |
|
Status of the applicant organisation |
Telethon is a registered charitable trust, Perceptions are a building company who have donated services to build this home |
|
Exclusivity of the event or project |
The sale of this home will assist numerous children and young people who will receive support from funds raised from the Telethon effort |
|
Alignment with Council’s existing philosophies, values and strategic direction. |
This request supports the Healthy Communities initiative in the City’s Strategic Plan |
|
Potential benefits to the Wanneroo community |
It is difficult to determine how much benefit would be received by the residents of the City of Wanneroo in supporting this request |
|
Alternative funding sources available or accessed by the organisation |
Other organisations and businesses have been approached with requests for support for different aspects of building the Telethon Home |
|
Contribution to the event or activity made by the applicant or organisation |
Perceptions The Home Builder have built the 2004 Metropolitan Telethon Home |
|
Previous funding assistance provided to the organisation by the City |
The City has supported the construction of the Telethon house in the past |
|
Commitment to acknowledgement of the City of Wanneroo |
· The City will feature in the Telethon Home brochure and website with a link to the City’s website; · Featured in the Community Service Announcement for a period of two weeks following the auction; · Featured in the “Home Reports” promoting the suppliers who have donated to the building of the home on Channel 7. |
|
Comments |
The City has supported the construction of the Telethon house in the past and although it does not strictly meet the policy it is being recommended for approval. The amount recommended for approval is the sum of fees that are paid directly to the City of Wanneroo. The difference between the amount recommended and the amount requested is the sum of levies collected by the City on behalf of other agencies. These levies are the Building Construction Industry Training Levy Fund, Building Disputes Commission and the Building Disputes Levy. |
|
Recommendation |
APPROVE a donation to Perceptions The Home Builder to refund the costs of the building application and fees for the 2004 Metropolitan Telethon Home being $1,726.87 |
Statutory Compliance
Nil
Strategic Implications
The provision of donations is aligned with the City’s strategic goals of developing and supporting Healthy Communities as follows:
“2. Healthy Communities
Foster an identity that promotes lifestyle choices and the provision of quality services and infrastructure
Goal 2.5: Foster a community that finds strength in its diversity
Goal 2.6: Provide community focused services and lifestyle opportunities.”
Policy Implications
This report complies with the provisions and delegations of the Donations, Sponsorships and Waiver of Fees and Charges Policy.
Financial Implications
|
Budget 2005/2006 Elected Members Donations |
$30,000.00 |
|
|
Amount expended to date:- · Under delegated authority: · By Council Determination: |
$2,366.50 $5,950.00 |
$8,316.50 |
|
Impact of approval of recommended application Sponsorships: Donations Waiver of Fees and Charges |
$600.00 $564.00 $1,726.87 |
$2,890.87 |
|
Remaining Funds: |
$18,792.63 |
|
Voting Requirements
Simple Majority
EndStrip - This will not be printed so do not delete
Recommendation
That Council:-
1. APPROVE a donation of $600.00 to Football West for sponsorship of Katy Coghlan, Chloe Coghlan and Lillie Billson to support their participation in the Under 16’s National Talent Identification Championships in Soccer held in Sydney from 2 – 9 July 2005.
2. NOT APPROVE a donation request for a waiver of fees of $1,780.00 to Celebrate Recovery for the hire of the Banksia Grove Community to serve meals on a Monday and Wednesday.
3. APPROVE a donation of $564.00 for the delivery of two truckloads of mulch to the St John Ambulance Yanchep/Two Rocks Sub Centre with the costs being transferred to Account 74302 0001 2611 (Waste Services – Mulch).
4. NOT APPROVE a donation of $676.00 to Alcoholics Anonymous in Quinns Rocks for a waiver of fees for the hire of the Gumblossom Community Centre.
5. NOT APPROVE a donation of $576.00 to the Quinns Baptist College P & F Committee towards the costs of the Quinns Baptist College Open Day Community Fete to be held on Saturday 27 August 2005.
6. APPROVE a donation to Perceptions The Home Builder to refund the costs of the building application and fees for the 2004 Metropolitan Telethon Home being $1,726.87.
EndOfRecommendation - This line will not be printed Please do NOT delete
StartOfAttachment - Do not delete this line will not be printed







EndOfAttachment - Do not delete this line will not be printed
File Ref: S13/0024V01
Responsible Officer: Director, Governance & Strategy
Disclosure of Interest: Nil
Author: Daniel Simms
Meeting Date: 9 August 2005
Attachment(s): 1
File Name: AATender 05511 Internal Audit Services 1 July 2005 to 30 June 2008.doc This line will not be printed dont delete
Level 5 Approval by Y. Heath Date 28 July 2005
Level 4 Approval by Daniel Simms Date 26 July 2005
Level 3 Approval by nb Date 04 July 2005
Level 2 Approval by nb Date 04 July 2005
Level 1 Approval by nb Date 04 July 2005
StartStrip - This line will not be printed so do not delete
Issue
To consider the Audit Committee’s recommendation for the provision of internal audit services to the City for the period from 01 July 2005 to 30 June 2008.
Background
In accordance with the tender assessment methodology, the
Audit Committee at its meeting of
28 June 2005 considered three tenders received from Stantons International,
2020 Global Business Consultants, and Stamfords for the provision of internal
audit services to the City for the period from 01 July 2005 to 30 June 2008.
It has been identified subsequent to the Audit Committee Meeting held on 28 June 2005, that an error was made in the tender assessment matrix. This error has now been corrected within the body of this report. It should be noted that this error does not change the outcome of the tender assessment which still places Stamfords Advisors & Consultants Pty Ltd as the preferred tenderer.
Detail
Tenders closed on Tuesday, 10 May 2005 and details of the three tenders received are listed hereunder:-
Stantons International
Considerable State Government internal audit experience. Exposure to local government involves a post implementation review of the Finance One/ Proclaim software to determine if it achieved its original objectives for the City of Stirling, appointed as External Auditors for the City of South Perth and probity audit of the City of Joondalup Security and Patrol Services and some work with the City of Perth prior to the division.
2020 Global Business Consultants
Multi-disciplinary practice offering a full range of business advisory, consultancy, accounting, auditing and taxation services in addition to internal audit services. Major government clients include Department of Indigenous Affairs (Governance/ Internal Control Audits/ Compliance Audits), Department of Training and TAFE Colleges (Governance/ Internal Control Audits/ Compliance Audits) and the Department of Health (Governance/ Internal Control Audits/ Compliance Audits). The partners of the firm have limited local government audit experience.
Stamfords
Have extensive external audit experience in country
councils and with the Department. Also have extensive internal audit
experience with State Government Agencies. Stamfords have been providing
Internal Audit services to the City of Wanneroo since
1 December 2002 and have consistently delivered a quality service in accordance
with their current contract provision.
All firms that lodged Tenders demonstrated their abilities sufficiently to indicate that each is capable of providing a professional and adequate internal audit service to the City.
The following table outlines details of the lump sum prices submitted by each:-
|
TENDERER |
Year 1 To 30 June 06 $ |
Year 2 To 30 June 07 $ |
Year 3 To 30 June 08 $ |
TOTAL $ |
|
Stantons International Pty Ltd |
$55,055 |
$45,956 |
$61,832 |
$162,843 |
|
Stamfords Advisors and Consultants Pty Ltd |
$30,800 |
$25,200 |
$30,800 |
$86,800 |
|
2020 Global Pty Ltd |
$41,450 |
$34,490 |
$43,130 |
$119,070 |
The General Conditions of Tendering outlined the following assessment methodology:-
“ Tenders will be evaluated in two stages. Initially, to develop a short-list, the Principal will take into consideration the following criteria along with the risk criteria and reference checking:
(a) lump sum price tendered;
(b) the level, experience and quantum of resources to be deployed in undertaking the various aspects of the Internal Audit Services Contract; and
(c) tenderers previous experience in carrying out work similar to the services.”
Comment
Phase 1 Assessment
The Tender Evaluation Team undertook the initial evaluation in accordance with the pre-established assessment methodology. The overall result is shown hereunder.
|
Rank |
Company |
|
1 |
Stamfords Advisors & Consultants Pty Ltd |
|
2 |
2020 Global Pty Ltd |
|
3 |
Stantons International Pty Ltd |
Whilst the tender specification provided for each tenderer to present to the Audit Committee meeting, it was decided that due to the price difference offered by Stamfords Advisors & Consultants Pty Ltd and their past performance, presentations were not required.
Phase 2 Assessment
Copies of the tender submissions from both Stantons International Pty Ltd and Stamfords Advisors & Consultants Pty Ltd were provided to the Audit Committee for assessment and the submission from 2020 Global Pty Ltd will be circulated to elected members under separate cover.
Conclusion
In accordance with the established Phase 2 assessment criteria, the Audit Committee has evaluated each tender submission on the basis of the tenderer’s demonstrated understanding of the City’s requirements in relation to internal audit services and the tenderer’s demonstrated ability to provide ‘value for money’ internal audit services.
The Audit Committee at its meeting of 28 June 2005 recommended:-
“That the Audit Committee RECOMMEND to Council the ACCEPTANCE of Tender No. 05511 submitted by Stamfords Advisors and Consultants Pty Ltd for the provision of Internal Audit Services for the period from 20 July 2005 to 30 June 2008 for an indicative lump sum price of $86,800.00.”
A copy of the tender submission lodged by the recommended tenderer, Stamfords Advisors and Consultants (Pty) Ltd is shown at Attachment 1.
Statutory Compliance
Tenders have been invited and evaluated for the purposes of short-listing in accordance with Section 3.57 of the Local Government Act and associated Regulations.
The Manager Contracts and Property has reviewed the tender selection process for fairness and compliance and is satisfied with the evaluation process and result.
Strategic Implications
The appointment of an Internal Audit contractor aligns with
the City’s Mission Statement relating to “Responsible resource management”.
It more specifically pursues the City’s Goal
“Corporate Management and Development” targeting the City’s commitment
to “Establishing an organisation that is open and accountable”.
Policy Implications
Nil.
Financial Implications
The draft 2005/2006 Budget provides sufficient funds ($50,000) to meet expenditures envisaged by the Tender Brief. Years 2 and 3 will require a budget allocation for Internal Audit Services in line with the price submitted for those years by the successful tenderer.
Voting Requirements
Simple Majority
EndStrip - This will not be printed so do not delete
Audit Committee Recommendation – 28 June 2005
That COUNCIL ACCEPT Tender No 05511 submitted by Stamfords Advisors and Consultants Pty Ltd for the provision of Internal Audit Services for the period from 10 August 2005 to 30 June 2008 for an indicative lump sum price of $86,800.
EndOfRecommendation - This line will not be printed Please do NOT delete
ATTACHMENT 1 Page 1 of 58


























































File Ref: S26/0075V01
Responsible Officer: Director, Governance & Strategy
Disclosure of Interest: Nil
Attachments: Nil
Author: Hazel Smallwood
Meeting Date: 9 August 2005
File Name: DAPioneer Policy.doc This line will not be printed dont delete
Level 3 Approval by Y. Heath Date 28 July 2005
Level 2 Approval by Y. Heath Date 28 July 2005
Level 1 Approval by Y. Heath Date 28 July 2005
StartStrip - This line will not be printed so do not delete
Issue
To present for consideration, a policy for awarding ‘Wanneroo Pioneer’ recognition to long term City of Wanneroo residents.
Background
The award of ‘Wanneroo Pioneer’ was established by the former City of Wanneroo to recognise long-term residents (50 years of adult life). In forming the new City of Wanneroo, this tradition has continued however due to boundary changes, many long term residents now find themselves located outside the City of Wanneroo.
Detail
To provide for recognition of people who have close ties with the Wanneroo Community and have lived in the area close to 50 years, provision has been made in the attached draft policy for consideration. This would enable the City to recognise people who have contributed strongly to the City of Wanneroo’s community over an extended period, but not quite attained the 50 years of adult residency.
Comment
It is considered appropriate to recognise both ‘Wanneroo Pioneers’ and ‘Honorary Pioneers’, being people who have had a long association with the Wanneroo community.
Statutory Compliance
Nil
Strategic Implications
Nil
Policy Implications
The purpose of this report is to formalise procedures for the awarding of the title ‘Wanneroo Pioneer’ by adopting the included policy.
Financial Implications
The budgetary impact of this policy would be minimal. The Pioneer’s Lunch is an annual event and honorary pioneers inducted as a result of this policy would be expected to be few in numbers.
Voting Requirements
Simple Majority
EndStrip - This will not be printed so do not delete
Recommendation
That Council ADOPTS the policy entitled “Award of Title ‘Wanneroo Pioneer’” as detailed below.
Award of Title ‘Wanneroo Pioneer’
Policy Owner: Marketing Services
Distribution: All elected members
Implementation: 10 August 2005
Scheduled Review: 10 August 2007
Objective
To provide for the recognition of long-term residents of the City of Wanneroo, by bestowing the title ‘Wanneroo Pioneer’.
Statement
The City annually recognises residents who have lived in the City of Wanneroo for 50 years or more of adult life (ie: 50 years after the age of 18) by awarding the title ‘Wanneroo Pioneer’.
Residency Eligibility
Nominees should have lived within the City of Wanneroo for 50 years or more of adult life (ie: 50 years after the age of 18). The Mayor may also choose to recognise nominees who have lived within the City of Wanneroo for close to 50 years, and have since moved outside the City of Wanneroo while still maintaining strong ties to the Wanneroo community (Honorary Pioneers).
Nomination Procedure
Nominations are invited via advertising and promotions preceding the annual ‘Pioneer Lunch’ but can be made at any time during the year. Nominations are made in writing by completing the ‘Pioneer Questionnaire’ available by contacting Marketing Services. ‘Honorary Pioneer’ nominations are assessed by the Mayor and CEO.
Entitlements
‘Wanneroo Pioneers’ are recognised annually by the awarding of new pioneers, and celebration of existing pioneers, at a ‘Pioneer Lunch’ hosted by the Mayor and Council of the City of Wanneroo. New pioneers are presented with a Pioneer Badge and Plaque commemorating their award.
Responsibility for Implementation
Director Governance & Strategy
EndOfRecommendation - This line will not be printed Please do NOT delete
File Ref: S24/0023V01
Responsible Officer: Chief Executive Officer
Disclosure of Interest: Nil
Author: Yvette Heath
Meeting Date: 9 August 2005
Attachments: Nil
File Name: AAppointment of Acting Chief Executive Officer.doc This line will not be printed dont delete
Level 3 Approval by Y. Heath Date 28 July 2005
Level 2 Approval by Y. Heath Date 28 July 2005
Level 1 Approval by Y. Heath Date 28 July 2005
StartStrip - This line will not be printed so do not delete
Issue
To consider the appointment of an Acting Chief Executive
Officer from 12 August 2005 to
19 August 2005 and from 1 September 2005 to 14 September 2005.
Background
The Chief Executive Officer is intending to take sick leave between 12 August 2005 to 19 August 2005 and to take annual leave between 1 September 2005 to 14 September 2005 and the Council is required to endorse the proposal by the Chief Executive Officer to appoint an Acting Chief Executive Officer during his absence.
Detail
Under the Local Government Act (1995), Council is required to appoint the Chief Executive Officer and any person acting in this position. The Chief Executive Officer requests approval to appoint the Director, Governance and Strategy, Daniel Simms as Acting Chief Executive Officer from 12 August 2005 to 19 August 2005 inclusive, and Director Infrastructure, Dennis Blair from 1 September 2005 to 14 September 2005 inclusive.
It is not intended to backfill the positions of Director, Governance and Strategy or the Director, Infrastructure during these periods whilst the Directors are undertaking the role of Acting Chief Executive Officer.
Comment
Nil
Statutory Compliance
The Local Government Act (1995) s5.3.6 requires that Council appoint the Chief Executive Officer. The Department of Local Government has confirmed that this also extends to the appointment of an Acting Chief Executive Officer.
Strategic Implications
Nil
Policy Implications
Nil
Financial Implications
Nil
Voting Requirements
Simple Majority
EndStrip - This will not be printed so do not delete
Recommendation
That Council:-
1. APPOINT the Director Governance and Strategy, Daniel Simms to the position of Acting Chief Executive Officer for the period 12 August 2005 to 19 August 2005.
2. APPOINT the Director Infrastructure, Dennis Blair to the position of Acting Chief Executive Officer for the period 1 September 2005 to 14 September 2005.
EndOfRecommendation - This line will not be printed Please do NOT delete
File Ref: S07/0057V02
File Name: ADonation Requests Determined Under the Delegated Authority of the Chief Executive Officer.doc This line will not be printed
Level 3 Approval by Rhonda Phillips Date 28 July 2005
Level 2 Approval by Rhonda Phillips Date 26 July 2005
Level 1 Approval by Rhonda Phillips Date 25 July 2005
Responsible Officer: Chief Executive Officer
Disclosure of Interest: Nil
Attachments: Nil
Author: Rhonda Phillips
Meeting Date: 9 August 2005
StartStrip - This line will not be printed so do not delete
Issue
To note donations applications considered and determined by the Chief Executive Officer during July 2005, in accordance with the provisions of the Donations, Sponsorships and Waiver of Fees and Charges Policy.
Background
Council endorsed the reviewed Donations, Sponsorships and Waiver of Fees and Charges Policy under which these requests were considered, at their ordinary meeting held on 20 July 2004.
This policy delegates the consideration and determination of requests for donations, sponsorships and the waiver of fees and charges under the value of $500.00 to the Chief Executive Officer.
Detail
During July 2005, the City received the following requests to be considered under the delegated authority of the Chief Executive Officer:-
· Eight (8) requests for sponsorship,
· Two (2) requests for a donation, and
· One (1) request for a waiver of fees.
Comment
In accordance with the provisions and criteria nominated in the Donations, Sponsorships and Waiver of Fees and Charges Policy, determinations were made as listed in the recommendations to this report.
A complete list of original applications and assessments of each against the policy is available in the Elected Members Reading Room for further information.
Statutory Compliance
Nil
Strategic Implications
Nil
Policy Implications
The report complies with the provisions and delegations of the Donations, Sponsorships and Waiver of Fees and Charges Policy.
Financial Implications
The financial implications of this round of requests has resulted in expenditure in the Governance Donations Account (05201 0001 4402) of:-
· $2,366.50 from the 2005/2006 budget.
A remaining balance of $21,683.50 is available for the 2005/2006 financial year.
Voting Requirements
Simple Majority
EndStrip - This will not be printed so do not delete
Recommendation
That Council NOTES the delegated determination of requests received by the City in July 2005 for donations, sponsorships and waiver of fees and charges, which are as follows:-
|
|
Organisation / Individual |
Event/Activity |
Action |
Reason |
|
1. |
Tenpin Bowling Association of WA |
President Shield Tournament in tenpin bowling held in Canberra in July 2005 |
APPROVE a donation of $400.00 to the Tenpin Bowling Association of WA for sponsorship of Taryn and Kira Cheeseman to support their participation in the President Shield Tournament in tenpin bowling held in Canberra in July 2005 |
This request satisfies the criteria of the policy |
|
2. |
WA School Sport State Netball |
State Schoolgirls Netball Competition being held in Tasmania on 6 August 2005 |
APPROVE a donation of $200.00 to WA School Sport State Netball for sponsorship of Sarah Tatam to support her participation in the State Schoolgirls Netball Competition being held in Tasmania on 6 August 2005 |
This request satisfies the criteria of the policy |
|
|
Organisation / Individual |
Event/Activity |
Action |
Reason |
|
3. |
Western Australia Volleyball Association |
Australian Volleyball Championships being held in Adelaide from 8 – 17 July 2005 |
APPROVE a donation of $200.00 to Western Australia Volleyball Association for sponsorship of Sarah Eames to support her participation in the Australian Volleyball Championships held in Adelaide in July 2005 |
This request satisfies the criteria of the policy |
|
4. |
WA Little Athletics |
International Championships in Track and Field being held in Kuala Lumpur in July 2005 |
APPROVE a donation of $500.00 to WA Little Athletics for sponsorship of Courtney Stubbs to support her participation in the International Championships in Track and Field being held in Kuala Lumpur in July 2005 |
This request satisfies the criteria of the policy |
|
5. |
WA Junior Rugby Union Development Squad |
Under 15 Development Tour in Rugby Union being held in Queensland during July 2005 |
APPROVE a donation of $200.00 to the WA Junior Rugby Union Development Squad for sponsorship of Matt McGrath to support his participation in the Under 15 Development Tour in Rugby Union being held in Queensland during July 2005 |
This request satisfies the criteria of the policy |
|
Organisation / Individual |
Event/Activity |
Action |
Reason |
|
6. |
Gymnastics Western Australia |
Australian
National Gymnastics Champ0ionships held in Sydney from |
NOT APPROVE a donation to Gymnastics Western Australia for sponsorship of Daria and Natalie Joura to support their participation in the Australian National Gymnastics Championships held in Sydney from 15 – 23 May 2005 |
The policy states that retrospective applications will not be supported. This request was received on 29 June 2005 and the event occurred from the 15 – 23 May 2005 therefore this request cannot be supported. |
|
7. |
Ice Hockey WA |
Brown
National Ice Hockey Championships held in Brisbane from |
APPROVE a donation of $200.00 to Ice Hockey WA for sponsorship of Kristy Bruske to support her participation in the Brown National Ice Hockey Championships held in Brisbane from 20 – 24 July 2005 |
This request satisfies the criteria of the policy |
|
8. |
New South Wales Rugby League Coaching and Development Academy |
World Youth
Rugby League Championships being held in Russia from 19 September to |
APPROVE a donation of $500.00 to Adam Egan to support his participation in the World Youth Rugby League Championships being held in Russia from 19 September to 2 October 2005 |
This request satisfies the criteria of the policy and as this supporting organisation is based in New South Wales, the donation will be sent directly to the individual |
|
|
Organisation / Individual |
Event/Activity |
Action |
Reason |
|
9. |
Wanneroo Business Association |
Request for a waiver of fees for the hire of the Banksia Room at the City of Wanneroo Civic Centre to hold the Association’s AGM on the 2 July 2005 |
APPROVE a donation of $66.50 to the Wanneroo Business Association as a waiver of fees for the use of the Banksia Room in the City of Wanneroo Civic Centre for the AGM to be held on 20 July 2005 |
Although this association receives a significant amount of assistance from the City, this waiver of fees is consistent with the support already provided |
|
10. |
Seniors Golf Competition |
Request to support the Seniors’ Golf Competition to be held on Wednesday 26 October 2005 (Seniors Week) at the Marangaroo Golf Course |
APPROVE a
donation of $100.00 for the Seniors’ Golf Competition to be held at the
Marangaroo Golf Course on |
This request satisfies the criteria of the policy and the amount of $100.00 is consistent with the support provided to this event last year |
|
11. |
Westcare Inc |
Request for a donation towards this organisation to assist them in providing support services to people with disabilities |
NOT SUPPORT a request from Westcare Inc to support the services that Westcare provides to disabled people within the community |
Due to the minimal number of people who receive support from Westcare in the City of Wanneroo, this request cannot be supported, as it does not satisfy the criteria of the policy which states that 75% of the members of an organisation need to be City of Wanneroo resident |
File Ref: S/0104VO5
File Name: AConsideration for City of Wanneroo Delegates to attend the Asia Pacific Cities Summit 2005.doc This line will not be printed
Level 3 Approval by Y. Heath Date 04 August 2005
Level 2 Approval by Y. Heath Date 04 August 2005
Level 1 Approval by Y. Heath Date 04 August 2005dont delete
Responsible Officer: Chief Executive Officer
Disclosure of Interest: Nil
Attachments: Nil
Author: Daniel Simms
Meeting Date: 9 August 2005
StartStrip - This line will not be printed so do not delete
Issue
To consider Council Administration’s participation in attending the Asian Pacific Cities Summit 2005 being held in Chongqing, China from 11 October 2005 – 14 October 2005.
Background
The Asia Pacific Cities Summit was established in 1996 and since this time four summits have been held attracting up to 1,000 delegates from cities and corporations all over the world. The purpose of the summit is to foster innovative partnerships and allows exchange of ideas, knowledge and experience between local governments, technical experts and businesses in the Asia Pacific region. The 2005 summit will be held in Chongqing, China.
The Mayor and Deputy Mayor of the City of Wanneroo have been invited to the Summit and are considering attending. Their attendance would be in accordance with the existing Training, Travel and Accommodation – Elected Members Policy and sufficient funds exist to cover the costs.
Detail
The Summit provides a range of opportunities to explore partnerships and cooperative agreements in the areas of:
§ Cooperation and Exchanges between Asia- Pacific Cities;
§ Cultivating Lifetime Learning to Build Capacity;
§ Creating Distinctiveness through Strategic Planning;
§ Smart Governance and Smart Administration;
§ Environmental Management; and
§ Economic & Trade Cooperation.
In addition to the above conference theme, several breakout sessions have been established including a Mayoral Round Table Meeting to discuss and foster partnership agreements including discussions on the establishment of a Chongqing declaration, as well as Chief Executive Officer and senior business leaders forums to consider broad macro-economic business strategy and management issues.
In addition, the City of Wanneroo may be invited to showcase its Smart Growth Strategy and discuss with other local governments within the Asia Pacific region new ideas and practices in urban and social planning and promoting sustainable development in the future.
Council participation in the Summit could lead to the establishment of a formal relationship with a Chinese City including a possible Sister City relationship.
Comment
The City of Chongqing is a city undergoing incredible growth and transformation and is often described as China’s urban rising star. Chongqing is a sprawling city in south-western China with a population of 31 million and is according to Colleen Ryan of the Financial Review a standout symbol of the country’s battle for development.
Chongqing faces many challenges in regards to growth including infrastructure development, education, environmental management and economic growth. In addition Chongqing is on the edge of China’s underdeveloped western provinces.
With the City of Wanneroo growing at a rapid rate a lot can be learnt from this summit. The City of Wanneroo boasts a diverse economy with a horticultural base that accounts for 40% of metropolitan production through to the key industries of advanced manufacturing, warehousing, distribution, construction and retail services. Coupled with the City of Joondalup, which features strong representations in professional services and a world class education precinct, the two areas from the north-west metropolitan region is potentially an attractive offering to areas such as Chongqing.
In 1997, the municipality became the fourth municipality in the Peoples Republic of China to be directly responsible to the central government (together with Beijing, Shanghai and Tianjin). This has spurred high population growth and several major infrastructure projects such as the Three Gorges Dam Project, which will cause a huge level of population relocation to the area. Other major infrastructure projects include road and rail upgrades to enhance transport links from the municipality to eastern provinces. Collectively, these projects offer potential projects for Australian-based companies to supply their services. In addition, there are many other trade opportunities that exist within Chongqing including:
§ Information technology;
§ Transportation;
§ Trade in Education;
§ Construction equipment and services;
§ Environmental Protection; and
§ Agriculture and Agri-food.
Recently the Mayor and Deputy Mayor met with a representative from Austrade, who has offered to introduce City of Wanneroo delegates to meet potential business owners in Chongqing, who may be interested in developing business partners with businesses within the City of Wanneroo.
In considering the potential benefits to both the City of Wanneroo and Chongqing in regards to growth management, education and economic development it is recommended that a delegation from the City of Wanneroo attend the 2005 Asia Pacific Cities Summit in Chongqing, China, and further actively pursue a dialogue with the City of Chongqing with a view of establishing a partnership agreement between the two cities. This possible partnership agreement would also support the recently established relationship between the City of Joondalup and Jinan in Shandong Province in China.
It is recommended that the City of Wanneroo delegation include the Chief Executive Officer and/or the Director Governance & Strategy. It is also recommended that the Wanneroo Business Association be invited to join the delegation (with the associated costs to be met by the WBA).
Statutory Compliance
Nil
Strategic Implications
The establishment of strategic partnership with other international governments has the potential to assist the City of Wanneroo reach its aspirations in relation to economic development, healthy communities and in looking for new models in corporate governance.
Policy Implications
Attendance of the elected members is in accordance with Council’s Policy – Training, Travel and Accommodation for Elected Members.
Financial Implications
It is estimated that the costs associated with attendance at this Summit to be in the vicinity of:
|
Registration fees |
$ 750 |
|
Airfares |
$1,500 |
|
Accommodations |
$1,000 |
|
Meals and incidentals |
$ 750 |
|
TOTAL |
$ 4,000 |
An allocation of $ 30,000 has been included in the current budget for Elected Members Conference and Training. No allocation has been made in the budget for the attendance of either the Chief Executive Officer or Director Governance and Strategy to attend Conferences outside the state in the current budget.
As a result if Council was to approve the attendance of the Chief Executive Officer and/or Director Governance & Strategy as part of the delegation, the cost associated with their attendance would need to be funded from the Elected Members Conference and Training allocation.
Voting Requirements
Simple Majority
EndStrip - This will not be printed so do not delete
Recommendation
That Council:-
1. APPROVE the participation of the Chief Executive Officer and/or Director Governance & Strategy in the 2005 Asia Pacific Cities Summit in Chongqing, China.
2. APPROVE the expenditure of up to $8,000 from the Elected Members Conference and Training allocation budget for the participation of the Chief Executive Officer and/or Director Governance & Strategy at the Chongqing Summit.
3. INVITE a representative from the Wanneroo Business Association to join the City of Wanneroo delegation (costs to be met by the WBA).
4. NOTE that a report will be prepared for Council following the Summit which considers the benefits of developing formal relationships with a City in China.
EndOfRecommendation - This line will not be printed Please do NOT delete
EndOfRecommendation - This line will not be printed Please do NOT delete
