Council Minutes
UNCONFIRMED
ORDINARY COUNCIL MEETING
7.00pm, 12 December, 2006
Civic Centre,
Dundebar Road, Wanneroo

UNCONFIRMED MINUTES OF ORDINARY COUNCIL MEETING
HELD ON TUESDAY 12 DECEMBER 2006
CONTENTS
Item 2 Apologies and Leave of Absence
PQ01-12/06 Mr G Tatam, Rustic Gardens, Carramar
PQ02-12/06 Mr M Aspinall, Uringa Way, Wanneroo
PQ03-12/06 Mrs A Hine, Dundebar Road, Wanneroo
PQ04-12/06 Mr B Smith, Franklin Road, Wanneroo
Item 4 Confirmation of Minutes
OC01-12/06 Minutes of Ordinary Council Meeting held on 21 November 2006
Item 5 Announcements by the Mayor without Discussion
Item 6 Questions from Elected Members
PT01-12/06 Request for Traffic Management, Cardoux Loop, Hocking
PT01-11/06 Proposed Amendment No 16 to East Wanneroo Cell 4 Local Structure Plan No. 6
PT02-11/06 Residential Parking on Verges, Palgrave Elbow, Marangaroo
PT03-11/06 Reduce Traffic Speed, Weymouth Boulevard, Quinns Rocks
Town Planning Schemes and Structure Plans
PD02-12/06 Proposed Amendment No 3 to the Capricorn Coastal Village Agreed Structure Plan
PD03-12/06 Proposed Resource Recovery Facility - Lot 505 (87) Pederick Road, Neerabup
PD04-12/06 Proposed Caretaker's House and Bee Keeping: Part Lot 10 (132) Franklin Road, Jandabup
PD05-12/06 Subdivision Applications Determined under Delegated Authority during October 2006
PD06-12/06 Development Applications Determined by Delegated Authority for October 2006
PD07-12/06 Payment for Cell Works in East Wanneroo Cell 6: Madeley-Darch
PD08-12/06 Acquisition of Land for Ocean Reef Road, Wangara
PD09-12/06 Acquisition of Land for Hartman Drive and Gnangara Road, Madeley-Darch.
IN01-12/06 Tender No 06070 - Upgrade of Materials Recovery Facility, Wangara
IN04-12/06 Ocean Reef Road Advanced Warning Flashing Signals Before Wanneroo Road
IN05-12/06 Wanneroo Roadwise Advisory Committee - 2006 Action Plan
IN06-12/06 Purchase of Second Hand Bag Recycling Collection Trucks
IN08-12/06 Hepburn Avenue Extension - City of Swan Contributions
CS01-12/06 Tender 06066 – Supply, Installation and Commissioning of a Two-Way Radio System
CS02-12/06 Warrant of Payments - for the Period 31 October 2006
CS03-12/06 Sale of Property due to Outstanding Rates - 40 Bendix Way Girrawheen
CS04-12/06 Change Basis of Valuation of Property - 143 (Lot 93) Dundebar Road, Wanneroo
CS05-12/06 Budget Timetable 2007/2008
CS06-12/06 Financial Activity Statements for the Period ended 31 October 2006
CS07-12/06 Civic Purpose Site – Lot 12 Fowey Loop, Mindarie
CS08-12/06 Proposed Lease to Wanneroo Kingsway Football & Sporting Club Inc
CS09-12/06 Heads of Agreement - Neerabup Industrial Area Joint Venture
CD01-12/06 Membership of the Youth Advisory Council
CD03-12/06 Request for a Waiver of Fees
CD04-12/06 Appointment of Community Representatives for the Lebuse Sculptures Working Party
CD05-12/06 Grant from Lotterywest for 2006/07 Community Events Series
CD06-12/06 Acquisition and Development of Community Purpose Sites Policy
CD07-12/06 Future Management Options for the Kingsway International Sports Stadium
CD08-12/06 Proposed Extension of the Closure of the Quinns Rocks Car Park at Night Until July 2007
GS01-12/06 Review of Council Policies
GS03-12/06 Donation Requests to be Considered by Council
GS04-12/06 Community Funding Allocations October 2006 Round
GS04-12/06 Community Funding Allocations October 2006 Round
GS05-12/06 Girrawheen-Koondoola Revitalisation Project
CE01-12/06 Delegation of Authority over the Council Recess
CE02-12/06 Appointment of Acting Chief Executive Officer
CE03-12/06 Donation Requests Considered under the Delegated Authority of the Chief Executive Officer
MN01-12/06 Mayor Kelly - Establishment North-West Corridor Co-Coordinating Committee
MN02-12/06 Mayor Kelly - Wall of Honour - City of Wanneroo Pioneers
MN03-12/06 Cr Salpietro – Honour Board
CR01-12/06 Mindarie Regional Council Resource Recovery Facility - Member Council Guarantees
CR02-12/06 St Anthony's Church Land Acquisition
CR03-12/06 Chief Executive Officer Performance Report
MINUTES
Please refer to agenda for details of full reports and attachments.
Mayor Kelly declared the meeting open at 7.02pm.
JON KELLY, JP Mayor
Councillors:
BRETT TREBY Alexander Ward
SAM SALPIETRO (Deputy Mayor), JP Central Ward
FRANK CVITAN, JP Central Ward
TRACEY ROBERTS Coastal Ward
IAN GOODENOUGH, JP Coastal Ward
RUDI STEFFENS Hester Ward
JOHN STEWART Hester Ward
TERRY LOFTUS North Ward
LAURA GRAY, JP North Ward
COLIN HUGHES South Ward
GLYNIS MONKS, JP Wanneroo Ward
DOT NEWTON, JP Wanneroo Ward
Officers:
C JOHNSON Chief Executive Officer
F BENTLEY Director, Community Development
D BLAIR Director, Infrastructure
W WRIGHT Director, Corporate Services
D SIMMS Director, Governance & Strategy
R PEAKE Manager, Planning Approvals
R HARKINS Minute Officer
ALAN BLENCOWE South Ward (08/12/06-29/12/06)
MARK PEARSON Alexander Ward (31/10/06-12/12/06)
There were 15 members of the public and one member of the press in attendance.
Question 1 – Item PD03 Proposed Resource Recovery Facility, Neerabup
The City had sent an acknowledgement of a submission lodged advising that not enough information was provided on the development application in regard to items such as water tanks not shown on the plans, standby power not identified etc. Would councillors move to incorporate in the recommendations for the development approval reference for the developer to comply with the recommendations of the Environmental Protection Authority?
Response by Mayor Kelly
Council would be considering the item tonight and have the opportunity to take that into consideration.
Question 2 – Item CR01-12/06 Mindarie Regional Council Resource Recovery Facility
Noted this was an $82m investment over 20 years and urged councillors to carefully consider their decision, which would affect ratepayers and the City for many years to come.
Response by Mayor Kelly
Council always takes the best interests of ratepayers into consideration based on sound governance principles.
Statement – Wanneroo Agricultural Show
Thanked Council on behalf of the Wanneroo Agricultural Society for their continued support of the Wanneroo Show, which attracted approximately 20,000 people. Although the show is organised and run by a dedicated group of volunteers from the Agricultural Society without the assistance of the City the task would be far greater and it was requested the Society’s appreciation to the relevant departments be passed on with a special thank you to the staff from Parks Maintenance and Waste Services.
Response by Mayor Kelly
Thank you and I will pass your appreciation to those staff involved.
Question 1 – Item GS03-12/06 Donation Requests to be considered by Council
(a) Applicant 3 – Celebrate Recovery
Will Council explain why a refusal has been given for this request for help? Could Council please reconsider ‘not approve’ to ‘approve’ as when a fun day for the kids was held in August/September this organisation supplied the food and the developer supplied pamphlets because Council could not afford it.
(b) Applicant 6 – Girrawheen Primary School P&C
Can Council explain why all rules laid down fit your Strategic Plan with the exception of an entry fee charge? Could Council change the policy to encourage Parent & Citizens Associations to hold similar annual not-for-profit events such as this disco?
Response by Mayor Kelly
Taken on notice.
Further response by Director, Governance & Strategy
In relation to questions (a) and (b) the report provides the reasons for why the application has not been recommended to Council based on its current policy. Council will consider comments raised when it next reviews this policy.
Question 2 – GS01-12/06 Review of Council Policies
Referred to paragraph number (1) on page 273 of the Agenda and queried why the Minutes and recordings of Public Question Time during Council Briefing Sessions are not available to the public in the libraries?
Response by Mayor Kelly
Taken on notice.
Further response by Director, Governance & Strategy
Council does not take formal minutes at Council Briefing Sessions as this is not a decision making forum. Recording of Public Question Time at Council Briefing Session are available to the public in accordance with the City’s Schedule of Fees and Charges.
Question 3 – Item GB02-12/06 - Annual General Meeting of Electors, 01 December 2006
Could the City please elaborate on the answer to the question “Would Council provide the dates when the committee meetings were trialled and the dates for the minutes of such meeting as was stated in last year’s Wanneroo Times Letters to Editor?” as asked at the Annual General Meeting of Electors on 1 December 2006.
Response by Mayor Kelly
Taken on notice.
Further response by Director, Governance & Strategy
Council considered this matter of a previous Annual General Meeting of Electors and provided a detailed recommendation at its Ordinary Council Meeting on the 16 December 2003 Item CE03-12/03.
Question 1 – Item PD04-12/06 Proposed Caretaker’s House and Bee Keeping, Jandabup
Following the deputation before the council meeting, he was made aware of an amendment which included notification under Section 70A of the Transfer of Land Act. He had specifically asked that such notification not be a condition imposed on the granting of the alternative proposed use of the land.
Can the construction of the building be commenced as discussed with the City previously or does it now have to wait until such time as this Section 70A is put through?
Response by Manager, Planning Services
Firstly Council will have to agree to approve the application. Secondly, the way the suggested condition in the alternative recommendation is framed is that the notification should be in place prior to the commencement of construction. The process of preparing and lodging this form of notification is usually fairly short and certainly will take less time to prepare than the assessment of the building licence application.
Moved Cr Newton, Seconded Cr Gray
That the minutes of the Ordinary Council Meeting held on 21 November 2006 be confirmed.
CARRIED UNANIMOUSLY
Nil.
Nil.
Cr Monks presented a petition signed by 51 residents all of Cardoux Loop, Hocking, requesting Council to take measures to address the current traffic issues being experienced by the residents in Cardoux Loop which are being caused by speeding cars and dangerous driving at all hours.
The petition to be forwarded to the Infrastructure Directorate for action.
Cr Steffens presented a petition with 354 signatures requesting a reduction in the speed limit on Wanneroo Road from Ocean View Tavern to Golf Links Drive, Carramar from 90kmh to 80kph and to install traffic lights at the intersection of Wanneroo Road and Hester Avenue and also the removal of all bushes in the centre islands.
The petition to be forwarded to the Infrastructure Directorate for action.
Moved Cr Treby, Seconded Cr Cvitan
That the petitions be received and forwarded to the relevant Directorates for action.
CARRIED UNANIMOUSLY
Cr Monks presented a petition with 57 signatories from the residents at Pearsall requesting that Proposed Amendment No 16 to East Wanneroo Cell 4 Local Structure Plan No. 6 be refused as they believe the Amendment is detrimental to the future lifestyle of the existing residents and will create an increase in traffic issues and antisocial behaviour.
UPDATE
A report will be presented to the 30 January 2007 meeting of Council.
Cr Treby presented a petition with 9 signatories from residents of Palgrave Elbow, Marangaroo requesting they be allowed to park on their own verges and to have any written fines annulled.
UPDATE
This matter was addressed at Item CD04-11/06 at Council’s meeting of 21 November 2006.
Cr Roberts presented a petition with 13 signatories from residents of Weymouth Boulevard, Quinns Rocks requesting action to be taken to reduce traffic speed at the curve at the west end of Weymouth Boulevard, Quinns Rocks.
UPDATE
A report will be presented to the 20 February 2007 meeting of Council.
Cr Loftus declared a financial interest in PD02-12/06 Proposed Amendment No. 3 to the Capricorn Coastal Village Agreed Structure Plan due to being director of a business that has conducted business with the applicant.
Mayor Kelly declared an indirect financial interest in PD02-12/06 Proposed Amendment No. 3 to the Capricorn Coastal Village Agreed Structure Plan due receiving a political donation from a company associated with the joint venture.
Cr Goodenough declared an impartial interest in GS04-12/06 Community Funding Allocations October 2006 Round due to being the Anglican Bishop’s representative on the Peter Moyes Anglican Community School Council.
Cr Roberts declared an impartial interest in GS04-12/06 Community Funding Allocations October 2006 Round due to being a member of staff at the Peter Moyes Anglican Community School and also People Against Vandalism.
Cr Stewart declared an indirect financial interest in GS04-12/06 Community Funding Allocations October 2006 Round due to being President of the Wanneroo Cricket Association and receives an honorarium.
Mayor Kelly declared an impartial interest in GS04-12/06 Community Funding Allocations October 2006 Round due to being the Patron of the Two Rocks Sea Rescue Group and is a member of the Yanchep Two Rocks RSL Sub-branch.
Town Planning Schemes and Structure Plans
File Ref: TPS/0069V01
File Name: BA Proposed Amendment No 69 to District Planning Scheme No 2 Recoding Lots 282 to 284 Clarkside Court Wanneroo from .doc This line will not be printed Please do NOT delete
Responsible Officer: Director, Planning and Development
Disclosure of Interest: Nil
Author: Timothy Dawson
Meeting Date: 12 December 2006
Attachments: 2
Moved Cr Treby, Seconded Cr Cvitan
That Council:-
1. ADVISES the applicant Taylor Burrell Barnett acting on behalf of DK and AL Fasher, that it will prepare Amendment No.69 to the District Planning Scheme No.2 subject to a satisfactory concept plan and commitment to the principles contained in the design concept being submitted to the satisfaction of the Director Planning and Development.
2. Subject to 1 above, pursuant to Section 75 of the Planning and Development Act 2005 PREPARES Amendment No. 69 to District Planning Scheme No. 2 to recode Lots 282 to 284 Clarkside Court, Wanneroo from R20 to R40.
3. REFERS Amendment No. 69 to District Planning Scheme No. 2 to the Environmental Protection Authority (EPA) pursuant to Section 81 of the Planning and Development Act 2005. Should the EPA advise that the amendment does not require assessment, ADVERTISE the amendment for a period of 42 days.
4. FORWARDS a copy of the amendment to the Western Australian Planning Commission.
Amendment
Moved Cr Monks, Seconded Cr Newton
That the words “the Director Planning and Development” be replaced by “Council” in recommendation 1.
That Council:-
1. ADVISES
the applicant Taylor Burrell Barnett acting on behalf of DK and AL Fasher, that
it will prepare Amendment No.69 to the District Planning Scheme No.2 subject to
a satisfactory concept plan and commitment to the principles contained in the
design concept being submitted to the satisfaction of the Director Planning and
Development Council.
2. Subject to 1 above, pursuant to Section 75 of the Planning and Development Act 2005 PREPARES Amendment No. 69 to District Planning Scheme No. 2 to recode Lots 282 to 284 Clarkside Court, Wanneroo from R20 to R40.
3. REFERS Amendment No. 69 to District Planning Scheme No. 2 to the Environmental Protection Authority (EPA) pursuant to Section 81 of the Planning and Development Act 2005. Should the EPA advise that the amendment does not require assessment, ADVERTISE the amendment for a period of 42 days.
4. FORWARDS a copy of the amendment to the Western Australian Planning Commission.
CARRIED UNANIMOUSLY
The amendment became the substantive motion.
CARRIED UNANIMOUSLY
EndOfRecommendation - This line will not be printed Please do NOT delete
Mayor Kelly declared an indirect financial interest in PD02-12/06 Proposed Amendment No. 3 to the Capricorn Coastal Village Agreed Structure Plan due receiving a political donation from a company associated with the joint venture.
Mayor Kelly vacated the chair and left the chamber at 7.19pm. The Deputy Mayor took the chair.
Cr Loftus declared a financial interest in PD02-12/06 Proposed Amendment No. 3 to the Capricorn Coastal Village Agreed Structure Plan due to being director of a business that has conducted business with the applicant and left chambers at 7.20pm.
File Ref: SP/0055/03V01
File Name: BA Proposed Amendment Number 3 to the Capricorn Coastal Village Agreed Local Structure Plan.doc This line will not be printed Please do NOT delete
Responsible Officer: Director, Planning Development
Disclosure of Interest: Nil
Author: Michael Hudson
Meeting Date: 12 December 2006
Attachment(s): 7
Moved Cr Gray, Seconded Cr Treby
That Council:-
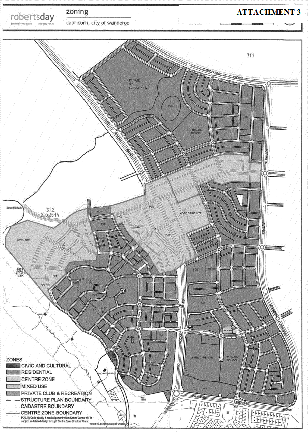
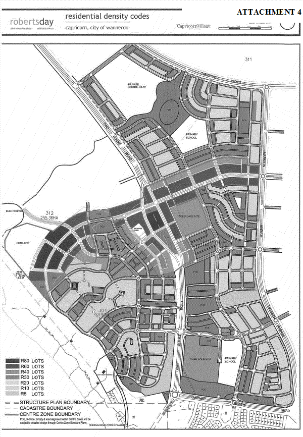
1. Pursuant to Clause 9.6.1 of District Planning Scheme No.2 RESOLVES that Amendment No. 3 to the Capricorn Coastal Village Agreed Structure Plan 44, as submitted by Roberts Day Town Planning and Design on behalf of Capricorn Village Joint Venture and as outlined on Attachments 3 and 4 to this report is satisfactory subject to the issues raised in the Comment section of this report being adequately addressed.
2. REQUEST the Capricorn Village Joint Venture to initiate further discussion with the Director Community Development to explore acceptable, cost effective, short-term solutions for the provision of appropriate Surf Life Saving facilities for the Yanchep/Two Rocks area.
3. Upon receipt of structure plan documents modified in accordance with 1 above, SUBMITS three copies to the Western Australian Planning Commission for its adoption and certification.
4. Pursuant to Clause 9.6.5 of District Planning Scheme No.2 ADOPTS, SIGNS and SEALS Amendment No. 3 to the Agreed Structure Plan once certified by the Western Australian Planning Commission.
5. ENDORSES the comments made in this report regarding the submissions received on this structure plan amendment for inclusion in the schedule of submissions to be forwarded to the Western Australian Planning Commission and ADVISES the submitter of its decision.
CARRIED UNANIMOUSLY
EndOfRecommendation - This line will not be printed Please do NOT delete
Cr Loftus returned to chambers at 7.21pm.
Mayor Kelly returned to the chambers at 7.21pm and resumed the chair.


File Ref: P023/0084V01
File Name: EB Proposed Resource Recovery Facility Lot 505 87 Pederick Road Neerabup.doc This line will not be printed Please do NOT delete
Responsible Officer: Director, Planning and Development
Disclosure of Interest: Nil
Author: Rod Peake
Meeting Date: 12 December 2006
Attachments: 3
Moved Cr Loftus, Seconded Cr Gray
That Council:-
1. APPROVES the application submitted Worley Parsons on behalf of the Mindarie Regional Council for the development of a Resource Recovery Facility on Lot 505 (87) Pederick Road, Neerabup subject to the following conditions:
a) Prior to the commencement of construction the landowner shall make arrangements to the satisfaction of the City for a contribution to the City for the provision of major roads, service concept plans and associated facilities (including planning and administrative costs) to service the Neerabup Industrial Area.
b) Prior to the commencement of construction the landowner shall make arrangements to the satisfaction of the City for the Pederick Road widening and the Bushforever interface road as indicated in the Lot 505 Pederick Road Neerabup and Neerabup Industrial Area Agreed Structure Plans, to be dedicated as public roads free of cost and without payment of compensation.
c) Prior to the commencement of construction the landowner shall make arrangements to the satisfaction of the City for the Bushforever interface road as indicated in the Lot 505 Pederick Road Neerabup and Neerabup Industrial Area Agreed Structure Plans, to be constructed.
d) The design shall be amended to the satisfaction of the City to accommodate the Bushforever interface road and the widening of Pederick Road.
e) Design levels of the development shall be to the satisfaction of the City.
f) An Environmental Management Plan shall be prepared and implemented by the landowners to the satisfaction of the City for that portion of the land identified as a Bush Forever site.
g) The parking bays, driveways and points of ingress and egress shall be designed in accordance with the Australian Standard for Off Street Parking (AS 2890). Such areas shall be constructed, drained and marked prior to the development first being occupied and thereafter maintained to the satisfaction of the City.
h) Disabled car parking bays shall be provided at the rate required under the Australian Standard for Off Street Parking (AS 2890) and shall be located convenient to the building entrance/s to the satisfaction of the City.
i) A stormwater drainage system with a storage capacity sufficient to contain a 1:100 year storm event with a 24 hour duration shall be provided onsite prior to the development first being occupied. The system shall thereafter be maintained to the satisfaction of the City.
j) The car parking areas shall be provided with one shade tree for every four bays prior to the development first being occupied. The trees shall be located within tree wells protected from damage by vehicles and maintained to the satisfaction of the City.
k) Service vehicle manoeuvring to and within the site shall be provided in compliance with the Australian Standard for Off-street Parking Part 2 – Commercial vehicle facilities (AS2890.2). A plan indicating service vehicle sweep paths shall be provide to the City for endorsement prior to the submission of a building licence application.
l) Service areas shall be screened from view of public areas. No storage shall be carried out outside the service areas.
m) All services such as air conditioning plant and compressors shall be located away from public areas. All services and service yards shall be screened from view of streets and other public areas, including car parking areas, by an enclosure in keeping with the style and materials of the adjacent building. Roof mounted equipment such as air conditioning plant and antennae shall be screened from view of the street and other public areas, including car parking areas, by the roof form or parapets.
n) Detailed landscape plans for the development site and the adjoining road verges shall be submitted to and approved by the City prior to the submission of a building licence application. Landscaping shall be established in accordance with the approved plans prior to the development first being occupied and thereafter maintained to the satisfaction of the City.
o) An acoustic consultants report demonstrating to the satisfaction of the City that the proposed development and associated activities are capable of containing noise nuisance and all noise emissions in accordance with the requirements of the Environmental Protection (Noise) Regulations shall be submitted to the City with the building licence application. The recommendations of the approved acoustic consultants report shall be implemented to the satisfaction of the City.
p) Prior to the commencement of construction the applicant shall submit detailed amended plans for the endorsement by the Manager Planning Services indicating compliance with all conditions of this approval and with all statutory building, health and environmental requirements.
q) Arrangements being made to the satisfaction of the City for effluent disposal and potable water supply to service the development. The development shall connect to the reticulated sewer and water supply when this becomes available to the site.
2. ENDORSES the comments made in this report regarding the submissions received on this development application and ADVISES the submitters of its decision.
CARRIED UNANIMOUSLY
EndOfRecommendation - This line will not be printed Please do NOT delete
File Ref: P14/0016V01
File Name: EA Proposed Caretaker s Dwelling Part Lot 10 132 Franklin Road Jandabup.doc This line will not be printed Please do NOT delete
Responsible Officer: Director, Planning and Development
Disclosure of Interest: Nil
Author: Roman Zagwocki
Meeting Date: 12 December 2006
Attachments: 3
Recommendation
That Council:
1. REFUSES the application for a caretaker’s house for Part Lot 10 (132) Franklin Road, Jandabup as submitted by Mr B Smith for the following reasons:
a) The activity of keeping 10 beehives does not generate the need for a person to permanently reside on the subject property.
b) The application does not comply with the provisions of DPS 2 in respect to ‘Grouped Dwelling’ on Rural zoned Land.
c) Approval of this application could lead to an undesirable precedent whereby landowners who otherwise do not comply with the provisions of the City’s DPS for ‘Grouped Dwellings’ on Rural Land would seek the de facto approval of a second dwelling via the ‘Caretaker House’ definition.
2. ADVISES the Applicant that it does not oppose a caretaker’s house for the subject property on the basis that there is a legitimate and demonstrable need for a person to reside on the subject property to care for any building, plant, equipment or grounds in accordance with the City’s DPS. In this regard, it should be noted that the City’s previous approval for a caretaker’s house relating to the keeping of horses, issued on 14 July 2006 is still valid.
LAPSED FOR WANT OF A MOVER
Alternative Motion
Moved Cr Salpietro, Seconded Cr Cvitan
With the consent of the mover and seconder points 2 and 3 be deleted.
That Council APPROVE the application by BA Smith on behalf of BA and MG Smith for a Caretaker's House and Bee Keeping on Part Lot 10 (132) Franklin Road, Jandabup, subject to the following conditions:
1. The persons occupying the caretaker’s house shall be restricted to those who care for the onsite bee keeping activities (as approved as part of this application).
2. The
bee keeping use shall commence prior to or at the same time as the caretaker’s
house is first occupied and this use shall continue to operate whilst the
caretaker’s house is occupied.
3. A
notification under section 70A of the Transfer of Land Act is to be prepared in
a form acceptable to the City and lodged with the Registrar of Titles for
endorsement on the certificate of title for the subject lot, prior to the commencement
of development works associated with the caretaker’s house. This notification
is to be sufficient to alert prospective landowners of the use restrictions of
the caretaker’s house as stipulated under conditions 1 and 2 of this approval.
4. The location and design of the caretaker’s house shall be as previously approved by the City on 13 July 2006 (DA06/0221).
Amendment
Moved Cr Hughes, Seconded Cr Newton
To reinstate point 2 being “The bee keeping use shall commence prior to or at the same time as the caretaker’s house is first occupied and this use shall continue to operate whilst the caretaker’s house is occupied.”
That Council APPROVE the application by BA Smith on behalf of BA and MG Smith for a Caretaker's House and Bee Keeping on Part Lot 10 (132) Franklin Road, Jandabup, subject to the following conditions:
1. The persons occupying the caretaker’s house shall be restricted to those who care for the onsite bee keeping activities (as approved as part of this application).
2. The bee keeping use shall commence prior to or at the same time as the caretaker’s house is first occupied and this use shall continue to operate whilst the caretaker’s house is occupied.
3. A notification
under section 70A of the Transfer of Land Act is to be prepared in a form
acceptable to the City and lodged with the Registrar of Titles for endorsement
on the certificate of title for the subject lot, prior to the commencement of
development works associated with the caretaker’s house. This notification is
to be sufficient to alert prospective landowners of the use restrictions of the
caretaker’s house as stipulated under conditions 1 and 2 of this approval.
4. The location and design of the caretaker’s house shall be as previously approved by the City on 13 July 2006 (DA06/0221).
CARRIED UNANIMOUSLY
The amendment became the substantive motion.
CARRIED UNANIMOUSLY
This is the third attempt by the applicant to achieve an outcome to which he is entitled to within the conditions of our Town Planning Scheme. The first two attempts were unsuccessful due to environmental concerns. The applicant wants his son to be able to live on the property and take care of himself, his wife and the property in the future. The applicant was advised by staff of the conditions pertaining to a caretaker’s residence, [last year] and his third attempt to establish a honey production operation followed a meeting with the Mayor and the Manager Planning Services. After several months this was also refused.
The reason to refuse is not based on any breaches of the Scheme, but on the subjective view [quite appropriate and within the Department’s area of responsibility] of the Planning Department that the size and scope of the bee hive operation does not warrant a caretaker. However, the Scheme does not require details on the size of the operation requiring a caretaker.
EndOfRecommendation - This line will not be printed Please do NOT delete
File Ref: S09/0008
File Name: FC Subdivision Applications Determined under Delegated Authority During October 2006.doc This line will not be printed Please do NOT delete
Responsible Officer: Director, Planning and Development
Disclosure of Interest: Nil
Author: Amy Stockwell
Meeting Date: 12 December 2006
Attachments: 12
Moved Cr Hughes, Seconded Cr Monks
That Council NOTES the actions taken in relation to providing comments to the Western Australian Planning Commission on subdivision applications processed under delegated authority in the period for the month of October as listed below:
Subdivision Application Delegations
|
WAPC No/ Received Date |
Location / Owner |
DPS2 Zoning LDU Category |
Advice |
WAPC Advised |
|
|
1 |
SU131963
28/07/2006 |
LOT 603 (524) KINGSWAY LANDSDALE WA 6065 MARIA ALBANESE & FRANCESCO ALBANESE |
General Rural
SCU5 |
Supported |
06/10/2006 |
|
2 |
SU132483 04/09/2006 |
LOT 100 (103) ELLIOT ROAD WANNEROO WA 6065 TINA M BAZZO |
Urban Development
SCU1 |
Supported |
03/10/2006 |
|
3 |
SU132488 05/09/2006 |
LOT 2 (36) LENORE ROAD WANNEROO WA 6065 WESTEND ASSET PTY LTD |
Urban Development
SCU1 |
Supported |
12/10/2006 |
|
4 |
SU132505 04/09/2006 |
LOT 12 (2) YANDELLA PROMENADE TAPPING WA 6065 LONNEGAL PROPERTY PTY LTD |
Urban Development
SCU1 |
Supported |
11/10/2006 |
|
5 |
SU132550 14/09/2006 |
LOT 9005 (289) PINJAR ROAD TAPPING WA 6065 PEET ASHTON HEIGHTS LIMITED |
Urban Development SCU1 |
Supported |
17/10/2006 |
|
6 |
SU132653 27/09/2006 |
LOT 263 (3) IBIZA COURT MINDARIE WA 6030 EDWARD H JENNINGS, LINDA MCBRIERTY, SIRRACE PTY LTD |
Residential
SCU1 |
Supported |
31/10/2006 |
|
7 |
SU132779 18/10/2006 |
LOT 12 (44) RUSSELL ROAD MADELEY WA 6065 JUSTIN SONIA PTY LTD |
Urban Development
SCU5 |
Supported |
27/10/2006 |
|
8 |
SU132789 18/10/2006 |
LOT 107 (10) GEMINI WAY MADELEY WA 6065 DAVID J SAYERS & KHIA J TERRELL |
Urban Development
SCU5 |
Supported |
27/10/2006 |
|
9 |
SU1339-06 01/09/2006 |
LOT 38 (52) LANDSDALE ROAD DARCH WA 6065 PARK LANE PROPERTIES (WA) PTY LTD |
Urban Development
SCU5 |
Supported |
25/10/2006 |
|
10 |
SU1437-06 04/09/2006 |
LOT 2 (1294) WANNEROO ROAD TAPPING WA 6065 DELSTRAT PTY LTD |
Urban Development
SCU5 |
Supported |
05/10/2006 |
|
11 |
SU1524-06 22/09/2006 |
LOT 703 (15) CROSTHWAIT CIRCLE TAPPING WA 6065 PEET ASHTON HEIGHTS LIMITED |
Urban Development
SCU5 |
Supported |
25/10/2006 |
|
Att |
WAPC No/ Received Date |
Location / Owner |
DPS2 Zoning LDU Category |
Advice |
WAPC Advised |
|
12 |
SU1556-06 27/09/2006 |
LOT 263 (3) IBIZA COURT MINDARIE WA 6030 EDWARD H JENNINGS, LINDA MCBRIERTY, SIRRACE PTY LTD |
Residential
SCU1 |
Supported |
31/10/2006 |
CARRIED UNANIMOUSLY
EndOfRecommendation - This line will not be printed Please do NOT delete
File Ref: S09/0009V01
File Name: FA Development Applications Determined by Delegated Authority for October 2006.doc This line will not be printed Please do NOT delete
Responsible Officer: Director, Planning and Development
Disclosure of Interest: Nil
Attachments: 1
Moved Cr Hughes, Seconded Cr Monks
That Council NOTES the determinations made by Planning and Development Services acting under delegated authority from Council on development applications processed between 1 October 2006 and 31 October 2006.
CARRIED UNANIMOUSLY
EndOfRecommendation - This line will not be printed Please do NOT delete
Development Applications determined for Period City of Wanneroo
WHERE (Issued_date BETWEEN 01/10/2006 00:00:00 AND 31/10/2006 23:59:59)
Note: Estimated cost not provided on applications for use only or where a flat fee is applicable
Ram Id Date Owners Days Est Cost Decision
DA04/0740.01 19/10/2006 LAURENCE J REEVES & LYNETTE M REEVES 3 $0.00 Approved
Prop address 52 RIGALI WAY WANGARA WA 6065
Land Lot 209 DP 31494 Vol 2518 Fol 706
Descriptio FACTORY UNIT - INDUSTRY - LIGHT (WELDING & FABRICATION)
Applicant LJ REEVES
File Number P33/0100V01
DA05/0713.01 26/09/2006 CITY OF WANNEROO 22 $0.00 Approved
Prop address MATERIAL RECOVERY FACILITY 70 MOTIVATION DRIVE WANGARA WA 6065
Land Lot 15 D 16710 Vol 1164 Fol 564
Descriptio STORAGE YARD - FOR PLASTICS IN BULK BAGS & MANUFACTURED PLASTIC
Applicant JOJO PLASTICS PTY LTD
File Number P33/0097V01
DA06/0256 06/04/2006 CHERYL L LARMONT & DARREN LARMONT 5 $14,000.00 Refused
Prop address 3 EMERALD DRIVE CARABOODA WA 6033
Land Lot 101 DP 24938 Vol 2205 Fol 799
Descriptio SINGLE HOUSE - SWIMMING POOL ADDITION
Applicant WIZARD POOLS
File Number P06/0052V01
DA06/0419 31/05/2006 CROWN LAND-CITY OF WANNEROO MANAGEMENT 101 $14,825.00 Refused
Prop address DA VINCI PARK-RES 48382 11 DA VINCI DRIVE TAPPING WA 6065
Land Lot 705 DP 46781
Descriptio PARK - AERATOR
Applicant PEET ASHTON HEIGHTS LIMITED
File Number PR31/0008V01
DA06/0461 21/06/2006 TANKAS PTY LTD 79 $980,000.00 Approved
Prop address REGENTS GARDEN RESORT 33 DROVERS PLACE WANNEROO WA 6065
Land Lot 5 P 7782 Vol 1536 Fol 999
Descriptio AGED OR DEPENDENT PERSON DWELLINGS
Applicant SALIM LEE ARCHITECTS
File Number P34/0208V01
DA06/0491 06/07/2006 MILAN KAPURALIC & IVANKA KAPURALIC 53 $120,000.00 Approved
Prop address 1910 WANNEROO ROAD NEERABUP WA 6031
Land Lot 41 P 8548 Vol 1523 Fol 922
Descriptio MARKET GARDEN SALES
Applicant M KAPURALIC, I KAPURALIC
File Number P23/0050V01
DA06/0513 13/07/2006 LOI T NGUYEN 48 $360,000.00 Approved
Prop address 24 FLORIDA DRIVE LANDSDALE WA 6065
Land Lot 242 DP 42127 Vol 2577 Fol 635
Descriptio GROUPED DWELLING - 2 UNITS
Applicant STIRLING HOMES PTY LTD
File Number P17/1055V01
DA06/0529 21/07/2006 IAN S MALEY & TONYA C MALEY 67 $227,272.73 Approved
Prop address 21 SEMINARA PLACE MARIGINIUP WA 6065
Land Lot 6 D 86459 Vol 2095 Fol 447
Descriptio SINGLE DWELLING
Applicant IS MALEY
File Number P20/0237V01
Development Applications determined for Period City of Wanneroo
WHERE (Issued_date BETWEEN 01/10/2006 00:00:00 AND 31/10/2006 23:59:59)
Note: Estimated cost not provided on applications for use only or where a flat fee is applicable
Ram Id Date Owners Days Est Cost Decision
DA06/0531 06/04/2006 PERMANENT TRUSTEE COMPANY LTD 138 $0.00 Approved
Prop address WANNEROO TAVERN 1/18 DUNDEBAR ROAD WANNEROO WA 6065
Land Lot 1 Vol 1908 Fol 239 S/P 21521
Descriptio SIGNAGE - WANNEROO TAVERN
Applicant Australian Leisure & Hospitality Group
File Number P34/0366V01
DA06/0558 03/08/2006 AUSEGY CONSTRUCTION & DEVELOPMENT PTY 47 $305,000.00 Approved
Prop address 255 OCEAN KEYS BOULEVARD CLARKSON WA 6030
Land Lot 1164 DP 45468 Vol 2597 Fol 871
Descriptio MIXED USE - BANK, PHARMACY, OFFICE X 2 AND SINGLE HOUSE X 2
Applicant AUSEGY CONSTRUCTION &
File Number P08/2297V01
DA06/0562 07/08/2006 PEET ASHTON HEIGHTS LIMITED 37 $4,000,000.00 Approved
Prop address 15 CROSTHWAIT CIRCLE TAPPING WA 6065
Land Lot 703 DP 45447
Descriptio GROUPED DWELLING - 27 UNITS
Applicant SUMMIT PROJECTS
File Number P31/1858V01
DA06/0570 10/08/2006 GRAHAM A CHALLEN & MARJORIE E CHALLEN 12 $4,000.00 Approved
Prop address HARBOURSIDE VILLAGE 25 THE TERRACE MINDARIE WA 6030
Land Lot 1300 Sec 55 D 100611 Vol 2230 Fol 251
Descriptio GROUP DWELLING - PATIO ADDITION (UNIT 55)
Applicant GRANTS HOME MAINTENANCE
File Number P22/1919V01
DA06/0579 14/08/2006 LOULETTA PM D'SOUZA 43 $254,909.09 Approved
Prop address 64 COOPER STREET MADELEY WA 6065
Land Lot 617 DP 46620 Vol 2604 Fol 7
Descriptio TWO GROUPED DWELLINGS
Applicant JWH GROUP PTY LTD
File Number P18/1053V01
DA06/0589 17/08/2006 ANDREW P LORD & ALISON M LORD 41 $3,595.00 Approved
Prop address 18 JUBATA TURN TAPPING WA 6065
Land Lot 351 DP 42718 Vol 2585 Fol 983
Descriptio SINGLE HOUSE - RETAINING WALL ADDITION
Applicant CONWOOD FENCING AND RETAINING WALLS
File Number P31/0794V01
DA06/0593 18/08/2006 DANIEL WY LEUNG, HELLE M LEUNG, HONG P 38 $239,000.00 Approved
Prop address 12 GAUDI WAY CLARKSON WA 6030
Land Lot 1083 DP 45432 Vol 2593 Fol 852
Descriptio TWO STOREY HOUSE & GARAGE ADDITION
Applicant J GRIFFITHS
File Number P08/1848V01
DA06/0626 01/09/2006 QUITO PTY LTD 38 $9,500.00 Approved
Prop address 32 SAFARI PLACE CARABOODA WA 6033
Land Lot 3 D 41471 Vol 488 Fol 005A
Descriptio RETAINING WALLS
Applicant STEVE MAWSON & ASSOCIATES
File Number P06/0076V01
Development Applications determined for Period City of Wanneroo
WHERE (Issued_date BETWEEN 01/10/2006 00:00:00 AND 31/10/2006 23:59:59)
Note: Estimated cost not provided on applications for use only or where a flat fee is applicable
Ram Id Date Owners Days Est Cost Decision
DA06/0644 06/09/2006 JOHN R GALLAGHER & MARTINE J GALLAGHER 22 $13,700.00 Approved
Prop address 295 KAROBORUP ROAD CARABOODA WA 6033
Land Lot 101 D 98640 Vol 2186 Fol 431
Descriptio SINGLE HOUSE - GARAGE ADDITION
Applicant HIGHLINE LTD
File Number P06/0020V01
DA06/0647 05/09/2006 XTREME HOLDINGS PTY LTD 32 $3,187.00 Approved
Prop address 60A COOPER STREET MADELEY WA 6065
Land Part Lot 615 DP 46620
Descriptio GROUPED DWELLING - PATIO ADDITION (UNIT 1)
Applicant POULTER INSTALLATIONS
File Number P18/1127V01
DA06/0666 12/09/2006 CHARLES R MORRIS, GERALDINE M MORRIS, LEE 5 $16,000.00 Approved
Prop address 5/22 PARAMOUNT DRIVE WANGARA WA 6065
Land Lot 5 Vol 2127 Fol 516 S/P 33982
Descriptio CHANGE OF USE TO LIGHT INDUSTRY (PRODUCTION OF BEEF JERKY)
Applicant CR MORRIS
File Number P33/0089V01
DA06/0690 20/09/2006 NESSA PTY LTD 13 $400,000.00 Approved
Prop address 87 INNOVATION CIRCUIT WANGARA WA 6065
Land Lot 216 DP 35032 Vol 2533 Fol 912
Descriptio WAREHOUSE/SHOWROOM
Applicant C VINCIULLO
File Number P33/0170V01
DA06/0694 20/09/2006 BOOLEY CORPORATION PTY LTD 16 $277,720.00 Approved
Prop address 43 MATTA WAY PEARSALL WA 6065
Land Lot 745 DP 43686 Vol 2584 Fol 921
Descriptio TWO GROUPED DWELLINGS
Applicant JWH GROUP PTY LTD
File Number P25/0484V01
DA06/0697 19/09/2006 SUSAN E MCDONALD 24 $26,352.00 Approved
Prop address 4 ACTION PLACE WANGARA WA 6065
Land Lot 53 P 17245 Vol 1860 Fol 514
Descriptio TRADE DISPLAY (REFURBISHMENT)
Applicant OUTDOOR WORLD
File Number P33/0311V01
DA06/0700 22/09/2006 BOOLEY CORPORATION PTY LTD 14 $267,265.45 Approved
Prop address 45 MATTA WAY PEARSALL WA 6065
Land Lot 744 DP 43686 Vol 2584 Fol 920
Descriptio TWO GROUPED DWELLINGS
Applicant JWH GROUP PTY LTD
File Number P25/0483V01
DA06/0702 26/09/2006 TRENT L JEFFREY & AMANDA K JEFFREY 8 $1,000.00 Approved
Prop address 16 RATHKEALE BOULEVARD RIDGEWOOD WA 6030
Land Lot 1314 DP 45013 Vol 2594 Fol 158
Descriptio HOME BUSINESS - CATEGORY 2 - HAIRDRESSING
Applicant AK JEFFREY
File Number P28/0235V01
Development Applications determined for Period City of Wanneroo
WHERE (Issued_date BETWEEN 01/10/2006 00:00:00 AND 31/10/2006 23:59:59)
Note: Estimated cost not provided on applications for use only or where a flat fee is applicable
Ram Id Date Owners Days Est Cost Decision
DA06/0703 26/09/2006 DAVID R MARSDEN 7 $0.00 Approved
Prop address 36A WINSHIP AVENUE WANNEROO WA 6065
Land Lot 1 Vol 471 Fol 049A S/P 647
Descriptio SINGLE HOUSE - GARAGE ADDITION
Applicant DR MARSDEN
File Number P34/1419V01
DA06/0704 27/09/2006 HOMESWEST RENTALS 7 $1,120,000.00 Approved
Prop address (16 UNITS) 54 SALCOTT ROAD GIRRAWHEEN WA 6064
Land Lot 959 P 10869
Descriptio GROUPED DWELLING - THIRTEEN CARPORT EXTENSION ADDITIONS
Applicant AP NAUGHTIN
File Number P11/1684V01
DA06/0708 27/09/2006 THELMA J GOLDBOLD 4 $4,363.00 Approved
Prop address 2/47 DENMAN GARDENS LANDSDALE WA 6065
Land Lot 2 Vol 2623 Fol 939 S/P 50002
Descriptio PATIO ADDITION (UNIT 2)
Applicant THORN ROOFING CONTRACTORS
File Number P17/1497V01
DA06/0710 26/09/2006 DAVID J CHAPMAN 5 $4,536.36 Approved
Prop address KALLISTA GARDENS 30/5 CALABRESE AVENUE WANNEROO WA 6065
Land Lot 30 Vol 2572 Fol 742 S/P 45330
Descriptio GROUPED DWELLING - PATIO ADDITION (UNIT 30)
Applicant THORN ROOFING CONTRACTORS
File Number P34/0315V02
DA06/0712 27/09/2006 GULLA DEVELOPMENTS PTY LTD 4 $25,000.00 Approved
Prop address 49 INSPIRATION DRIVE WANGARA WA 6065
Land Lot 298 DP 45312 Vol 2599 Fol 640 S/P 50656
Descriptio WAREHOUSE FITOUT INCLUDING MEZZANINE ADDITION (UNIT 2)
Applicant GULLA DEVELOPMENTS PTY LTD
File Number P33/0437V01
DA06/0723 29/09/2006 ERNEST HANDLEY, VERONICA HANDLEY, MARK 21 $212,417.00 Approved
Prop address 1 FAIRPORT VISTA MINDARIE WA 6030
Land Lot 1593 DP 28984 Vol 2218 Fol 260
Descriptio GROUPED DWELLING
Applicant APG HOMES
File Number P22/1275V01
DA06/0726 22/09/2006 QUITO PTY LTD 10 $80,000.00 Approved
Prop address 4 SAFARI PLACE CARABOODA WA 6033
Land Lot 2 D 41471 Vol 1370 Fol 155
Descriptio WHOLESALE NURSERY - CARPARK ADDITION
Applicant STEVE MAWSON & ASSOCIATES
File Number P06/0160V01
DA06/0727 22/09/2006 QUITO PTY LTD 10 $10,000.00 Approved
Prop address 32 SAFARI PLACE CARABOODA WA 6033
Land Lot 3 D 41471 Vol 488 Fol 005A
Descriptio WHOLESALE NURSERY - CROSSOVER & DRIVEWAY ADDITION
Applicant STEVE MAWSON & ASSOCIATES
File Number P06/0076V01
Development Applications determined for Period City of Wanneroo
WHERE (Issued_date BETWEEN 01/10/2006 00:00:00 AND 31/10/2006 23:59:59)
Note: Estimated cost not provided on applications for use only or where a flat fee is applicable
Ram Id Date Owners Days Est Cost Decision
DA06/0729 04/10/2006 JOHN E ARNOLD & JULIE C ARNOLD 2 $3,075.00 Approved
Prop address 5 ANISE WAY DARCH WA 6065
Land Lot 741 DP 42990 Vol 2603 Fol 883
Descriptio PATIO ADDITION
Applicant A1 PATIOS
File Number P09/1389V01
DA06/0733 05/10/2006 PAUL E CLANCY 1 $11,597.00 Approved
Prop address 156 PINJAR ROAD MARIGINIUP WA 6065
Land Lot 20 DP 222778 Vol 1765 Fol 935
Descriptio SINGLE HOUSE - PATIO ADDITION
Applicant PEARCEY CONSTRUCTIONS PTY LTD
File Number P20/0242V01
DA06/0734 05/10/2006 STEVEN GOLDING & KARRON E GOLDING 4 $2,995.00 Approved
Prop address 11 ST LOUIS AVENUE HOCKING WA 6065
Land Lot 1 Vol 2610 Fol 747 S/P 49037
Descriptio PATIO ADDITION
Applicant SUNWISE PATIOS
File Number P13/1387V01
DA06/0736 28/09/2006 PATRICIA AH WILLIAMS 9 $26,500.00 Approved
Prop address 14 IANDRA LOOP CARRAMAR WA 6031
Land Lot 255 P 21237 Vol 2069 Fol 922
Descriptio PATIO ADDITION
Applicant PATIO LIVING
File Number P07/1618V01
DA06/0737 06/09/2006 RAAFA ASSOCIATION INC 25 $1,716.00 Approved
Prop address CAMBRAI VILLAGE 85 HESTER AVENUE MERRIWA WA 6030
Land Lot 12 P 24265 Vol 2202 Fol 109
Descriptio AGED OR DEPENDENT PERSONS DWELLINGS - PATIO ADDITION TO UNIT 32
Applicant RAAFA ASSOCIATION INC
File Number P21/0080V01
DA06/0739 06/10/2006 MARIA D HOLLICK 3 $9,563.00 Approved
Prop address 4B KAMARA COURT WANNEROO WA 6065
Land Lot 1 Vol 1822 Fol 335 S/P 16860
Descriptio PATIO ADDITION
Applicant 1/2 PRICE PATIOS
File Number P34/0749V01
DA06/0740 09/10/2006 JOHN A DESKEERE & MAUREEN D DESKEERE 5 $1,600.00 Approved
Prop address 3B MEGA STREET WANNEROO WA 6065
Land Lot 2 Vol 1522 Fol 942 S/P 6379
Descriptio PATIO ADDITION
Applicant JA DESKEERE
File Number P34/2180V01
DA06/0743 03/10/2006 GARY R BECKHURST 6 $6,533.00 Approved
Prop address 104 MANCHESTER DRIVE HOCKING WA 6065
Land Lot 1 Vol 2533 Fol 496 S/P 42517
Descriptio PATIO ADDITION (UNIT 2)
Applicant PATIO LIVING
File Number P13/0108V01
Development Applications determined for Period City of Wanneroo
WHERE (Issued_date BETWEEN 01/10/2006 00:00:00 AND 31/10/2006 23:59:59)
Note: Estimated cost not provided on applications for use only or where a flat fee is applicable
Ram Id Date Owners Days Est Cost Decision
DA06/0744 06/10/2006 BRIAN R ROSS & CHRISTINE A ROSS 4 $150,000.00 Approved
Prop address 45/146 ST ANDREWS DRIVE YANCHEP WA 6035
Land Lot 45 Vol 2614 Fol 145 S/P 48121
Descriptio SINGLE HOUSE
Applicant CA ROSS
File Number P36/1042V01
DA06/0745 09/10/2006 CITY OF WANNEROO 10 $188,000.00 Approved
Prop address MATERIAL RECOVERY FACILITY 70 MOTIVATION DRIVE WANGARA WA 6065
Land Lot 15 D 16710 Vol 1164 Fol 564
Descriptio BULK EARTHWORKS (Proposed Constructions Callaway Street)
Applicant TAYLOR BURRELL BARNETT
File Number P33/0097V01
DA06/0748 10/10/2006 ROBERT M KENT 2 $2,000.00 Approved
Prop address 10B SALITAGE LINK PEARSALL WA 6065
Land Lot 2 Vol 2624 Fol 500 S/P 50391
Descriptio PATIO ADDITION (UNIT B)
Applicant KALMAR PTY LTD
File Number P25/0490V01
DA06/0749 11/10/2006 HELEN D JACKSON & JOHN NELSON 4 $4,700.00 Approved
Prop address 154 PINJAR ROAD MARIGINIUP WA 6065
Land Lot 21 DP 222778 Vol 1252 Fol 803
Descriptio CARPORT ADDITION
Applicant HD JACKSON
File Number P20/0051V01
DA06/0750 11/10/2006 ANDREW P GRAFEN 4 $25,000.00 Approved
Prop address 62 HOUGHTON DRIVE CARRAMAR WA 6031
Land Lot 157 P 22994 Vol 2145 Fol 624
Descriptio ANCILLARY ACCOMMODATION
Applicant AP GRAFEN
File Number P07/1630V01
DA06/0751 06/10/2006 LANDCORP 7 $1,450,000.00 Approved
Prop address SUBDIVIDED 38 CALLAWAY STREET WANGARA WA 6065
Land Lot 4 D 15871 Vol 1302 Fol 548
Descriptio FACTORY WAREHOUSE UNITS (Proposed Lot 325 Inspiration Drive Wangara)
Applicant SFRC ENTERPRISES
File Number P33/0277V01
DA06/0753 12/10/2006 HOMESWEST RENTALS 2 $2,000.00 Approved
Prop address 6B SHORTLAND WAY GIRRAWHEEN WA 6064
Land Lot 2 Vol 2039 Fol 497 S/P 28788
Descriptio CARPORT ADDITION (6B)
Applicant AP NAUGHTIN
File Number P11/1693V01
DA06/0755 12/10/2006 BRUCE DURYEA & RHONDA M DURYEA 3 $4,912.00 Approved
Prop address 30 ST HELENS GROVE LANDSDALE WA 6065
Land Lot 4 Vol 2143 Fol 117 S/P 34912
Descriptio PATIO ADDITION
Applicant OASIS PATIOS
File Number P17/1418V01
Development Applications determined for Period City of Wanneroo
WHERE (Issued_date BETWEEN 01/10/2006 00:00:00 AND 31/10/2006 23:59:59)
Note: Estimated cost not provided on applications for use only or where a flat fee is applicable
Ram Id Date Owners Days Est Cost Decision
DA06/0756 10/10/2006 ANDREW N MILLAR & CARLA O MILLAR 4 $1,600.00 Approved
Prop address 15 JACARANDA DRIVE WANNEROO WA 6065
Land Lot 123 D 94304 Vol 2122 Fol 006
Descriptio PATIO ADDITION
Applicant OUTDOOR WORLD
File Number P34/0588V01
DA06/0757 12/10/2006 BRIGHTWATER CARE GROUP 3 $3,120.00 Approved
Prop address KINGSWAY COURT 141 KINGSWAY MADELEY WA 6065
Land Lot 103 DP 36095 Vol 2536 Fol 968
Descriptio AGED OR DEPENDENT PERSONS DWELLINGS - PATIO ADDITION TO UNIT 56
Applicant PEARCEY CONSTRUCTIONS PTY LTD
File Number P18/1494V01
DA06/0758 12/10/2006 VERONICA A FESTA & ALFREDO FESTA 0 $11,000.00 Approved
Prop address 322 BADGERUP ROAD GNANGARA WA 6065
Land Lot 504 P 21845 Vol 2095 Fol 407
Descriptio PATIO ADDITION
Applicant NORTHERN PATIO INSTALLATIONS
File Number P12/0276V01
DA06/0759 13/10/2006 LYNETTE I MOSEL & WILLIAM C MOSEL 4 $6,690.00 Approved
Prop address 55 LAKEVIEW STREET MARIGINIUP WA 6065
Land Lot 25 D 60299 Vol 1593 Fol 333
Descriptio RURAL SHED ADDITION
Applicant WC MOSEL, LI MOSEL
File Number P20/0136V01
DA06/0760 13/10/2006 HOMER HOLDINGS PTY LTD & MALAGA 3 $1,100,000.00 Approved
Prop address 57 INSPIRATION DRIVE WANGARA WA 6065
Land Lot 327 DP 45312
Descriptio WAREHOUSE UNITS
Applicant CALIBRE CONSTRUCTIONS PTY LTD
File Number P33/0502V01
DA06/0763 10/10/2006 EDUCATION DEPT OF WA 6 $99,000.00 notsupport
Prop address MERRIWA PRIMARY SCHOOL 38 ADDISON GARDENS MERRIWA WA 6030
Land Lot 410 P 17629 Vol 1881 Fol 152
Descriptio EDUCATIONAL ESTABLISHMENT - SECURITY FENCE ADDITION
Applicant DEPARTMENT OF HOUSING & WORKS
File Number P21/1398V01
DA06/0769 13/10/2006 SHAHZAD KHAZALY & SHEDAN KHAZALY 5 $0.00 Approved
Prop address 22 HEATHFIELD DRIVE LANDSDALE WA 6065
Land Lot 472 P 20141 Vol 2018 Fol 930
Descriptio HOME BUSINESS - CATEGORY 2 - HAIRDRESSING
Applicant S KHAZALY
File Number P17/1541V01
DA06/0771 18/10/2006 EDNA A BROWN & PETER J PATERSON 4 $11,500.00 Approved
Prop address 45 CARLOW WAY DARCH WA 6065
Land Lot 285 DP 34478 Vol 2532 Fol 628
Descriptio PATIO ADDITION
Applicant NORTHERN PATIO INSTALLATIONS
File Number P09/0299V01
Development Applications determined for Period City of Wanneroo
WHERE (Issued_date BETWEEN 01/10/2006 00:00:00 AND 31/10/2006 23:59:59)
Note: Estimated cost not provided on applications for use only or where a flat fee is applicable
Ram Id Date Owners Days Est Cost Decision
DA06/0773 19/10/2006 SHANE D FRENCH & JUANITA M FRENCH 5 $0.00 Approved
Prop address 60 MARCHWOOD BOULEVARD BUTLER WA 6036
Land Lot 731 DP 30598 Vol 2514 Fol 427
Descriptio HOME BUSINESS - CATEGORY 2 - BEAUTY SALON
Applicant JM FRENCH
File Number P05/2048v01
DA06/0776 19/10/2006 BRIGHTWATER CARE GROUP 3 $1,700.00 Approved
Prop address KINGSWAY COURT 141 KINGSWAY MADELEY WA 6065
Land Lot 103 DP 36095 Vol 2536 Fol 968
Descriptio AGED OR DEPENDENT PERSONS DWELLINGS - PATIO ADDITION TO UNIT 135
Applicant MINDARIE PATIOS
File Number P18/1018V01
DA06/0777 19/10/2006 REBECCA L OWEN 5 $11,000.00 Approved
Prop address 8/72 AMBERTON AVENUE GIRRAWHEEN WA 6064
Land Lot 63 Vol 2610 Fol 627 S/P 24554
Descriptio PATIO AND GARAGE TO UNIT (UNIT 8)
Applicant QUALITY PATIOS & CARPORTS
File Number P11/1434V01
DA06/0779 20/10/2006 ANDREW N MILLAR & CARLA O MILLAR 6 $23,275.00 Approved
Prop address 15 JACARANDA DRIVE WANNEROO WA 6065
Land Lot 123 D 94304 Vol 2122 Fol 006
Descriptio SWIMMING POOL ADDITION
Applicant AQUA TECHNICS (WA) PTY LTD - WELSHPOOL
File Number P34/0588V01
DA06/0781 20/10/2006 BRETT M LUPTON & TERESA LUPTON 6 $28,000.00 Approved
Prop address 245 BENMUNI ROAD WANNEROO WA 6065
Land Lot 132 D 75591 Vol 1841 Fol 61
Descriptio SWIMMING POOL ADDITION
Applicant FREEDOM POOLS
File Number P34/0431V01
DA06/0786 23/10/2006 NEVILLE L FIRKINS 5 $2,734.00 Approved
Prop address 4A HIGHAM ROAD MARANGAROO WA 6064
Land Lot 1 Vol 1805 Fol 351 S/P 16210
Descriptio PATIO ADDITION
Applicant SWAN PATIOS
File Number P19/2037V01
DA06/0787 20/10/2006 FRANK GHALILI 7 $0.00 Approved
Prop address 176 NICHOLAS ROAD HOCKING WA 6065
Land Lot 20 D 57196 Vol 1546 Fol 284
Descriptio SHOPPING CENTRE SIGNAGE STRATEGY, CHANGE OF USE FROM SHOP TO
Applicant F GHALILI
File Number P13/0777V02
DA06/0788 23/10/2006 JULIA M POYNTON 3 $1,584.00 Approved
Prop address 15B HATFIELD WAY GIRRAWHEEN WA 6064
Land Lot 25 Vol 2571 Fol 496 S/P 45692
Descriptio PATIO ADDITION
Applicant HERITAGE OUTDOOR
File Number P11/0768V01
Development Applications determined for Period City of Wanneroo
WHERE (Issued_date BETWEEN 01/10/2006 00:00:00 AND 31/10/2006 23:59:59)
Note: Estimated cost not provided on applications for use only or where a flat fee is applicable
Ram Id Date Owners Days Est Cost Decision
DA06/0792 20/10/2006 MARK W BEEDHAM 6 $7,300.00 Approved
Prop address JACARANDA 13/18 BUTTERICK PLACE GIRRAWHEEN WA 6064
Land Lot 13 Vol 2202 Fol 437 S/P 38772
Descriptio PATIO ADDITION
Applicant PEARCEY CONSTRUCTIONS
File Number P11/0362V01
DA06/0794 25/10/2006 TREVOR RICHARDSON 3 $4,000.00 Approved
Prop address 41 ST HELENS GROVE LANDSDALE WA 6065
Land Lot 40 Vol 2165 Fol 231 S/P 34912
Descriptio PATIO ADDITION
Applicant ENVY PATIOS
File Number P17/0268V01
DA06/0795 19/10/2006 ROBERT A HAIR & SHONA E HAIR 7 $3,200.00 Approved
Prop address 21B ADDINGTON WAY MARANGAROO WA 6064
Land Lot 2 Vol 1752 Fol 302 S/P 14472
Descriptio PATIO ADDITION (UNIT 21B)
Applicant ENVY PATIOS
File Number P19/1004V01
DA06/0796 23/10/2006 GEORGE C IOPPOLO 5 $2,230.00 Approved
Prop address 81 GUNGURRU AVENUE HOCKING WA 6065
Land Lot 1 Vol 2596 Fol 715 S/P 47347
Descriptio PATIO ADDITION
Applicant FASTA PATIOS
File Number P13/1402V01
DA06/0798 23/10/2006 GILLIAN E HULL & SARAH J WHITTINGHAM 6 $224,545.00 Approved
Prop address 43/146 ST ANDREWS DRIVE YANCHEP WA 6035
Land Lot 43 Vol 2614 Fol 143 S/P 48121
Descriptio SINGLE DWELLING
Applicant GE HULL
File Number P36/1042V01
DA06/0799 18/10/2006 CROWN LAND-CITY OF WANNEROO MANAGEMENT 9 $0.00 support
Prop address FORESHORE MANAGEMENT-RES 48603 602L TWO ROCKS ROAD YANCHEP WA 6035
Land Lot 8024 DP 49302
Descriptio ROAD INTERSECTIONS
Applicant ROBERTS DAY GROUP
File Number P36/0736V01
DA06/0800 26/10/2006 CORNELIS T BUMA & ANTHEA D BUMA 2 $11,950.00 Approved
Prop address 1A WROTHAM PLACE MARANGAROO WA 6064
Land Lot 100 D 80621 Vol 1921 Fol 928
Descriptio PATIO ADDITION
Applicant POULTER INSTALLATIONS
File Number P19/1856V01
DA06/0807 20/10/2006 QUITO PTY LTD 7 $34,463.00 Approved
Prop address 32 SAFARI PLACE CARABOODA WA 6033
Land Lot 3 D 41471 Vol 488 Fol 005A
Descriptio RETAINING WALL
Applicant STEVE MAWSON & ASSOCIATES
File Number P06/0076V01
EndOfAttachment - Do not delete this line will not be printed
File Ref: SP/0007V01
File Name: HA Payment of Nett Compensation Entitlement in East Wanneroo Cell 6 Madeley Darch .doc This line will not be printed dont delete
Responsible Officer: Director, Planning and Development
Disclosure of Interest: Nil
Author: T Neale
Meeting Date: 12 December 2006
Attachments: 1
Moved Cr Hughes, Seconded Cr Monks
That Council AUTHORISES payment of an amount of $1,195,432.46 plus GST of $289,826.00 to Patanal Pty Ltd as a nett payment due for public open space and arterial road land ceded in East Wanneroo Cell 6 Madeley-Darch.
CARRIED UNANIMOUSLY
EndOfRecommendation - This line will not be printed Please do NOT delete
File Ref: SP/0047V01
File Name: HA Acquisition of land for Ocean Reef Road Wangara .doc This line will not be printed dont delete
Responsible Officer: Director, Planning and Development
Disclosure of Interest: Nil
Author: T Neale
Meeting Date: 12 December 2006
Attachments: 1
Moved Cr Hughes, Seconded Cr Monks
That Council AUTHORISES the purchase of land required for Ocean Reef Road within East Wanneroo Cell No. 8 from Lot 30 (254) Mary Street, Wanneroo at the rate of $110.00 per square metre, in accordance with the valuation and acquisition provisions of Part 10 of District Planning Scheme No. 2.
CARRIED UNANIMOUSLY
EndOfRecommendation - This line will not be printed Please do NOT delete
File Ref: SP/0007V01
File Name: HA Acquisition of Land for Skeit Road and Gnangara Road Madeley Darch .doc This line will not be printed dont delete
Responsible Officer: Director, Planning and Development
Disclosure of Interest: Nil
Author: T Neale
Meeting Date: 12 December 2006
Attachments: 1
Moved Cr Hughes, Seconded Cr Monks
That Council AUTHORISES payment of an amount of $1,983,020 plus GST, subject to survey and adjustment of rates and taxes, to Perron Developments Pty Ltd for the land required for the extension of Hartman Drive and widening of Gnangara Road, Madeley-Darch within East Wanneroo Cell 6.
CARRIED UNANIMOUSLY
EndOfRecommendation - This line will not be printed Please do NOT delete
File Ref: C06070;S34/0002v02
File Name: AA Tender 06070 Upgrade of Materials Recovery Facility Wangara.doc This line will not be printed dont delete
Responsible Officer: Director Infrastructure
Disclosure of Interest: Nil
Author: Robert Elliott
Meeting Date: 12 December 2006
Attachment: Nil
Moved Cr Newton, Seconded Cr Salpietro
That Council:-
1. ACCEPTS the grant funding of $300,000 from the National Packaging Covenant for the mixed paper and mixed plastic sorting capacity upgrade to the Wangara Materials Recovery Facility.
2. ACCEPTS Tender No 06070 from Recycling Design and Technologies (Aust) Pty Ltd for the Upgrade of the Material Recovery Facility, Wangara, Option 3, at a cost of $3,695,000.
3. Notes the following budget variations to reflect the grant money from the National Packaging Covenant to Project PR 1218.
INCOME
|
Cost Code |
Present Budget |
Additional Amount |
Revised Budget |
|
918954-8999-502 |
$0 |
$300,000 |
$300,000 |
EXPENDITURE
|
Account No/Project No |
From |
To |
Description |
|
918954-8999-502 |
$300,000 |
|
|
|
Project No PR 1218 |
|
$300,000 |
Upgrade the Material Recovery Facility (MRF) |
CARRIED UNANIMOUSLY
EndOfRecommendation - This line will not be printed Please do NOT delete
File Ref: PA13/0004V01
File Name: AA Tender No 06071 The Replacement Of Wanneroo Recreation Centre Fascia And Softfit Linings.doc This line will not be printed dont delete
Responsible Officer: Director Infrastructure
Disclosure of Interest: Nil
Author: Janek Sobon
Meeting Date: 12 December 2006
Attachment: Nil
Moved Cr Newton, Seconded Cr Salpietro
That Council-:
1. ACCEPTS Tender No. 06071 from Devco Holdings Pty Ltd for the Replacement of Roof and Fascia to the Wanneroo Recreation Centre, Scenic Drive, Wanneroo for the fixed lump sum of $128,270, inclusive of the minor variation of $5,650 for savings in cladding profile and soffit fixings, in accordance with the terms and conditions specified in the tender document.
2. NOTES the following budget variation to accommodate the short fall in funding for the replacement of roof and fascia to the Wanneroo Recreation Centre, Scenic Drive, Wanneroo:
|
Project No |
From |
To |
Description |
|
GL 732380-9399-229 |
$15,000 |
|
Maintain Wanneroo Recreation Centre |
|
PR-1053 |
|
$15,000 |
The Replacement of Wanneroo Recreation Centre Roof and Fascia |
EndOfRecommendation - This line will not be printed Please do NOT delete
CARRIED UNANIMOUSLY
File Ref: R13/0009V01
File Name: BA Traffic Management Treatments and Speed Limit Review Clarkson Avenue Harrington Avenue St Stephens Crescent and .doc This line will not be printed dont delete
Responsible Officer: Director Infrastructure
Disclosure of Interest: Nil
Author: Glenn Shaw
Meeting Date: 12 December 2006
Attachment(s): 4
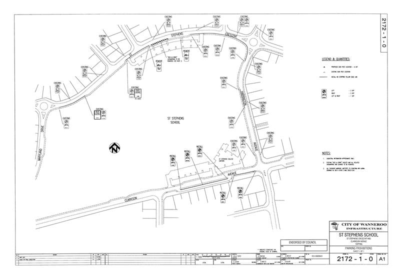
Moved Cr Newton, Seconded Cr Salpietro
That Council:-
1. APPROVES the modifications to the parking embayment and pathways on Harrington Avenue as shown on Drawing 2202-1-0, (Attachment 1) at an estimated cost of $5,000 to be funded from Project No PR – 1099 – Implement Traffic Management Works – Unspecified.
2. APPROVES
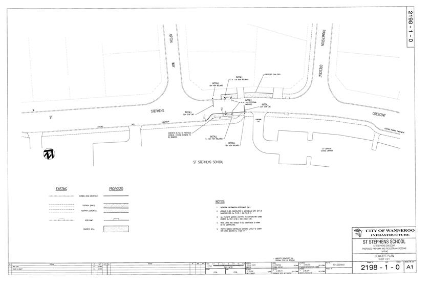
the installation of a pedestrian crossing facility and pathway extensions on St
Stephens Crescent as shown on Drawing 2198–1-0
(Attachment 2) at an estimated cost of $10,000 to be funded from Project No PR
– 1099 Implement Traffic Management Works - Unspecified.
3. NOTES the following budget variation to accommodate the works in Harrington Avenue and St Stephens Crescent
|
Project No |
From |
To |
Description |
|
PR 1253 |
$15,000 |
|
Kingsway Sporting Complex Badminton/Netball Carpark |
|
PR 1099 |
|
$15,000 |
Implementation Traffic Management Works - Unspecified |
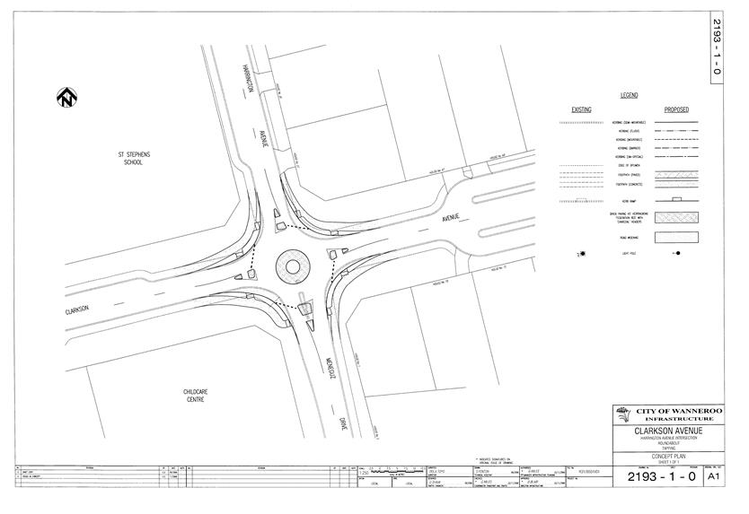
4. LISTS $150,000 for consideration in the draft 2007/2008 Budget for a roundabout treatment at the Clarkson Avenue/Harrington Avenue/Meneguz Drive intersection as shown on Drawing 2193 –1-0 (Attachment 3).
5. APPROVES the installation of “NO PARKING ROAD OR NATURE STRIP” and yellow edge lines on Clarkson Avenue, Harrington Avenue and St Stephens Crescent as shown on Drawing 2172 –1-0 (Attachment 4).
6. APPROVES the removal of the Kiss and Drive facility on St Stephens Crescent as shown on Drawing 2172 –1-0 (Attachment 4).
7. ENDORSES the speed limit restriction of 50km/h on Clarkson Avenue and Yandella Promenade, Tapping.
8. ADVISES Main Roads Western Australia, the residents of Clarkson Avenue, the Principles of St Stephen’s School and Tapping Primary School of Council’s decision.
CARRIED UNANIMOUSLY
EndOfRecommendation - This line will not be printed Please do NOT delete
ATTACHMENT 1

ATTACHMENT 2

ATTACHMENT 3

ATTACHMENT 4

File Ref: R34/0002 and R34/0051
File Name: BA Ocean Reef Road Advanced Warning Signals before Wanneroo Road.doc This line will not be printed dont delete
Responsible Officer: Director Infrastructure
Disclosure of Interest: Nil
Author: Coordinator Transport & Traffic
Meeting Date: 12 December 2006
Attachment: Nil
Moved Cr Newton, Seconded Cr Salpietro
That Council REQUESTS Main Roads Western Australia to install advanced warning flashing signals and overhead mast signals at the intersection of the Ocean Reef Road and Wanneroo Road, Wanneroo.
CARRIED UNANIMOUSLY
EndOfRecommendation - This line will not be printed Please do NOT delete
File Ref: S02/0009v01
Responsible Officer: Director Infrastructure
Disclosure of Interest: Nil
Author: Coordinator Transport & Traffic
Meeting Date: 12 December 2006
File Name: BA Wanneroo RoadWise Advisory Committee 2006 Action Plan .doc This line will not be printed dont delete
Attachment: 1
StartStrip - This line will not be printed Please do NOT delete
Moved Cr Newton, Seconded Cr Salpietro
That Council:-
1. ADOPT the City of Wanneroo RoadWise Advisory Committee Action Plan for 2006/2007, refer Attachment 1.
2. SUPPORT the on-going road safety initiatives of the Driver Reviver Caravan, Caravan, Trailer Safety Checks and Speed Display Trailer administratively and with the appropriate annual budget considerations.
CARRIED UNANIMOUSLY
EndOfRecommendation - This line will not be printed Please do NOT delete
StartOfAttachment - Do not delete this line will not be printed
|
ATTACHMENT 1 Page 1 of 3 |
||||||
|
City of Wanneroo RoadWise Advisory Committee Action Plan 2006/2007 |
||||||
|
Initiative |
Action |
Target Group |
Other Stakeholders |
Timeline |
Budget |
Progress/comments |
|
SPECIFIC 2006/2007ACTIONS |
||||||
|
|
||||||
|
S1. Community Participation |
||||||
|
S1.1 Bin Sticker Project |
Apply for grant funding to expand the existing program. |
Residents with children. |
|
December 2005 |
$2,000 |
|
|
|
|
|
|
|
|
|
|
ANNUAL / CONTINUOUS ACTIONS |
||||||
|
|
|
|
|
|
|
|
|
A1. Fatigue |
||||||
|
A1.1 Driver Reviver Program |
Provide a Driver Reviver Service through community volunteers operating a City maintained caravan. |
Drivers along Wanneroo Rd |
|
Public holidays and end of school holidays |
$2,500 |
|
|
|
|
|
|
|
|
|
|
A2. Community Assistance |
||||||
|
A2.1 School RoadWise Committees |
Identify solutions to school traffic flow congestion. |
Drivers near schools |
|
|
|
|
|
|
Identify solutions to school parking deficiencies. |
Parents of school children |
|
|
|
|
|
|
Safe Routes to School. |
School children |
|
|
|
|
|
|
Travel Smart- alternate transport to schools. |
All road users |
|
|
|
|
|
A2.2 Seniors Groups |
Information forums on topical issues – effects of medication, using gophers safely, changing driving habits. |
|
WALGA RoadWise |
Upon request |
$250 |
|
|
|
Planning safer routes of travel. |
|
|
|
|
|
|
|
|
|
|
|
|
ATTACHMENT 1 Page 2 of 3 |
|
A3. Increasing Restraint Use |
||||||
|
A3.1 Improve how Child Restraints are used. |
Arrange training days for people in the child care industry and product supply industry. |
|
|
When training available |
|
|
|
|
Encourage appropriate staff within City of Wanneroo to be trained in child restraint fitting and checking |
|
|
When training available |
|
|
|
|
Displays and dissemination of educational materials at appropriate events |
|
|
|
|
|
|
A3.2 Child Restraint Check Days |
Coordinate inspection days in conjunction with caravan checks. |
Parents and carers |
RoadWise |
Biannual |
|
|
|
A3.4 Reinforce the use of seatbelts. |
Public Education on the protective value of seatbelts by displays and dissemination of educational materials at appropriate events |
All drivers |
Shopping centres Participating event organisers |
During ORS Restraints Campaign |
|
|
|
|
|
|
|
|
|
|
|
A4. Safer Vehicles |
||||||
|
A4.1 Caravan Trailer checks |
Arrange free inspections of road safety aspects on caravans and trailers. |
Caravan trailer owners |
RAC TowSafe DPI Tyrepower |
Biannual |
$250 |
|
|
A4.2 Public Education |
Displays and dissemination of educational materials at appropriate events |
All drivers Fleet operators |
Shopping centres Participating event organisers |
Ongoing |
|
|
|
|
|
|
|
|
|
|
|
ATTACHMENT 1 Page 3 of 3 |
||||||
|
|
||||||
|
A5. Reducing Travel Speeds |
||||||
|
A5.1 Reinforce public knowledge of the relationship between travel speed, crash occurrence and crash severity |
Displays and dissemination of educational materials at appropriate events |
All drivers |
Shopping centres Participating event organisers |
Ongoing with more emphasis during ORS speed campaigns |
|
|
|
|
Speed Management Program: Combining engineering, education and enforcement using classifiers, speed display trailer and police radar at specific locations |
All drivers |
WA Police Service |
Ongoing with more emphasis during ORS Speed Campaigns |
|
|
|
A5.2 Bin Sticker Project |
Bin Sticker Project: Continue to promote bin stickers and to distribute them at suitable locations |
All drivers |
|
Ongoing |
Funded |
|
|
A5.3 Increase drivers’ awareness of their speed. |
Speed Display Trailer: to be used as needed to help educate the public in areas such as schools, road works, ‘problem’ streets |
All Drivers |
Schools Main Roads |
Ongoing |
|
|
EndOfAttachment - Do not delete this line will not be printed
File Ref: S34/0002V02
File Name: DA Purchase of second hand bag recycling collection trucks.doc This line will not be printed dont delete
Responsible Officer: Director Infrastructure
Disclosure of Interest: Nil
Author: Robert Elliott
Meeting Date: 12 December 2006
Attachment: Nil
Moved Cr Newton, Seconded Cr Salpietro
That Council:
1. Approves the deferral of the replacement of five bag recycling collection trucks subject to a review of the City’s recycling collection service.
2. APPROVES the purchase of up to two second hand bag recycling trucks at an estimated total cost of $60,000 to be funded from the Domestic Refuse Plant Replacement Reserve.
CARRIED UNANIMOUSLY
EndOfRecommendation - This line will not be printed Please do NOT delete
File Ref: R17/0004V01
File Name: FA State Black Spot Program Project Gnangara Road Alexander Drive intersection upgrade.doc This line will not be printed
Responsible Officer: Director Infrastructure
Disclosure of Interest: Nil
Author: Harminder Singh
Meeting Date: 12 Dec 2006
Attachment: Nil
Moved Cr Newton, Seconded Cr Salpietro
That Council:-
1. NOTES the increase in the cost of intersection upgrade works at Gnangara Road/Alexander Drive.
2. ACCEPTS the additional funding of $166,667 approved under the State Black Spot Program for the intersection upgrade works at Gnangara Road/Alexander Drive.
3. Pursuant to Section 6.8.1 (b) of the Local Government Act 1995, ApproveS by absolute majority the expenditure of $100,000 for the installation of new street lighting in Gnangara Road at Alexander Drive.
4. NOTES the amendments to the following projects included in the “Works Schedule” of projects to be undertaken as part of the Federal Government’s AusLink Roads to Recovery Program:
|
Project ID |
Project Description |
Existing Budget |
Revised Budget |
||
|
Municipal/Other |
Roads to Recovery |
Municipal/Other |
Roads to Recovery |
||
|
PR-1097 |
Lenore Road – Street Lighting upgrade |
$0 |
$100,000 |
$0 |
$50,000 |
|
PR-1097 |
Pinjar Road – Street Lighting upgrade |
$0 |
$150,000 |
$0 |
$130,000 |
|
PR-1097 |
Gnangara Road at Alexander Drive – Street Lighting Upgrade (New Project) |
$0 |
$0 |
$30,000 |
$70,000 |
5. NOTES the following budget variation reallocating unexpended funds from other projects to meet the funding shortfall for the intersection upgrade works at Gnangara Road/Alexander Drive and the installation of street lighting in Gnangara Road at Alexander Drive:
INCOME
|
Cost Code |
Present Budget |
Additional Amount |
Revised Budget |
|
918421-8942-501 Capital Grant Income – State Black Spot Program |
$435,000 |
$166,667 |
$601,667 |
EXPENDITURE
|
Account No/ Project No |
From |
To |
Description |
|
918421-8942-501 Capital Grant Income – State Black Spot Program |
$166,667 |
|
State Black Spot Program |
|
Project No PR-1253 Work Order W4206 to W4213 |
$100,000 |
|
Kingsway Sporting Complex – Badminton/Netball Carpark |
|
Project No PR-1054 |
|
$266,667 |
State Black Spot Program – Gnangara Road/Alexander Drive intersection upgrade |
|
Project No PR-1096 |
$30,000 |
|
Upgrade Drainage - Valley View Drive, Lansdale |
|
Project No PR-1097 Work Orders W7389 and W7380 |
$50,000 |
|
Install New Street Lighting – Lenore Road |
|
Project No PR-1097 Work Orders W9172 and W9173 |
$20,000 |
|
Install New Street Lighting – Pinjar Road |
|
Project No PR-1097 Work Orders W9426 and W9427 |
|
$100,000 |
Install New Street Lighting – Gnangara Road at Alexander Drive |
EndOfRecommendation - This line will not be printed Please do NOT delete
CARRIED UNANIMOUSLY &
BY ABSOLUTE MAJORITY
File Ref: R01/0007V01
Responsible Officer: Director Infrastructure
Disclosure of Interest: Nil
Author: Harminder Singh
Meeting Date: 12 Dec 2006
Attachment: Nil
File Name: FA Hepburn Avenue Extension City of Swan Contributions.doc This line will not be printed dont delete
Moved Cr Newton, Seconded Cr Salpietro
That Council:-
1. RECEIVES the $50,000 funding contribution from City of Swan towards the already completed traffic signals at Hepburn Avenue/Alexander Drive intersection.
2. NOTES the following budget variation to receive $50,000 from City of Swan and allocate these funds to Hepburn Avenue landscaping works:
INCOME
|
Cost Code |
Present Budget |
Additional Amount |
Revised Budget |
|
918421-8999-519 |
$0 |
$50,000 |
$50,000 |
EXPENDITURE
|
Account No/ Project No |
From |
To |
Description |
|
918421-8999-519 |
$50,000 |
|
General Income – Capital Works Cash – Contribution Income - Other |
|
Project No PR-1106
|
|
$50,000 |
Install new landscaping – Road Reserves – Hepburn Avenue (Giralt Road to Alexander Drive) |
CARRIED UNANIMOUSLY
EndOfRecommendation - This line will not be printed Please do NOT delete
This item was withdrawn.
File Ref: S13/0002V01
File Name: BA Warrant of Payments For the Period to 31 October 2006.doc This line will not be printed Please do NOT delete
Responsible Officer: Director Corporate Services
Disclosure of Interest: Nil
Author: Juanita Lee
Meeting Date: 12 December 2006
Attachment(s): Nil
Moved Cr Gray, Seconded Cr Roberts
That Council RECEIVES the list of cheques drawn for the month of October, as summarised below:-.
|
Funds |
Vouchers |
Amount |
|
Director Corporate Services Advance A/C Accounts Paid – October 2006 Cheque Numbers EFT Document Numbers TOTAL ACCOUNTS PAID
Less Cancelled Cheques Less Recoups Town Planning Schemes RECOUP FROM MUNICIPAL FUND
|
60996 - 61402 503 - 516
|
$3,492,086.00 $2,820,378.35 $6,312,464.35
($1.354.94) ($2,076,264.29) $4,234,845.12 |
|
Funds |
Vouchers |
Amount |
|
Municipal Fund – Bank A/C Accounts Paid – October 2006 Direct Payments Payroll – Direct Debits TOTAL ACCOUNTS PAID |
|
$4,371,980.84 $1,532,759.43 $5,904,740.37 |
|
Town Planning Scheme Accounts Paid – October 2006 Cell 1 Cell 2 Cell 8 TOTAL ACCOUNTS PAID |
000018 000017 000019 |
$1,055,229.44 $993,682.06 $27,352.79 $2,076,264.29 |
|
WARRANT OF PAYMENTS OCTOBER 2006 |
|
PAYMENT |
DATE |
DESCRIPTION |
AMOUNT |
|
|
00060996 |
04/10/2006 |
MM & NG Lake |
$300.00 |
|
|
|
|
Vehicle Crossing Subsidy |
|
|
|
00060997 |
04/10/2006 |
MR & KM Yaksich |
$300.00 |
|
|
|
|
Vehicle Crossing Subsidy |
|
|
|
00060998 |
04/10/2006 |
DA & M Tierney |
$300.00 |
|
|
|
|
Vehicle Crossing Subsidy |
|
|
|
00060999 |
04/10/2006 |
BD & CF Chitiz |
$300.00 |
|
|
|
|
Vehicle Crossing Subsidy |
|
|
|
00061000 |
04/10/2006 |
ST Guagliardo |
$300.00 |
|
|
|
|
Vehicle Crossing Subsidy |
|
|
|
00061001 |
04/10/2006 |
WM Hambly |
$300.00 |
|
|
|
|
Vehicle Crossing Subsidy |
|
|
|
00061002 |
04/10/2006 |
D Gillette & JM Maxime |
$300.00 |
|
|
|
|
Vehicle Crossing Subsidy |
|
|
|
00061003 |
04/10/2006 |
BC Creighton |
$300.00 |
|
|
|
|
Vehicle Crossing Subsidy |
|
|
|
00061004 |
04/10/2006 |
Carine Nominees Pty Ltd |
$299.60 |
|
|
|
|
Rates Refund 24 Masthead Close PN212274 Overpaid |
|
|
|
00061005 |
04/10/2006 |
E & F Dumlao |
$1,055.72 |
|
|
|
|
Rates Refund 43 Dorneywood Way PN183839 Overpaid |
|
|
|
00061006 |
04/10/2006 |
Girrawheen Senior High School |
$250.00 |
|
|
|
|
Refund Eat House Licence |
|
|
|
00061007 |
04/10/2006 |
Mercy College Primary School |
$250.00 |
|
|
|
|
Refund Eat House Licence |
|
|
|
00061008 |
04/10/2006 |
Blackmore Primary School P&C |
$190.00 |
|
|
|
|
Refund Eat House Licence |
|
|
|
00061009 |
04/10/2006 |
Peet & Company Ltd |
$25.00 |
|
|
|
|
O/Payment Clearance Application Fee |
|
|
|
00061010 |
04/10/2006 |
Michelle Dry |
$532.50 |
|
|
|
|
Bond Refund |
|
|
|
00061011 |
04/10/2006 |
Abok Dua |
$319.50 |
|
|
|
|
Bond Refund |
|
|
|
00061012 |
04/10/2006 |
Marilyn Jackson |
$319.50 |
|
|
|
|
Bond Refund |
|
|
|
00061013 |
04/10/2006 |
Chess Association of WA |
$532.50 |
|
|
|
|
Bond Refund |
|
|
|
00061014 |
04/10/2006 |
Steve Bannister |
$532.50 |
|
|
|
|
Bond Refund |
|
|
|
00061015 |
04/10/2006 |
Katherine Miller |
$300.00 |
|
|
|
|
Bond Refund |
|
|
|
00061016 |
04/10/2006 |
Jade Gath |
$300.00 |
|
|
|
|
Bond Refund |
|
|
|
00061017 |
04/10/2006 |
J Mark Warren & S McKernan-Warren |
$300.00 |
|
|
|
|
Vehicle Crossing Subsidy |
|
|
|
00061018 |
04/10/2006 |
KAK & V McMenemy |
$300.00 |
|
|
|
|
Vehicle Crossing Subsidy |
|
|
|
00061019 |
04/10/2006 |
CW & AM Potts |
$300.00 |
|
|
|
|
Vehicle Crossing Subsidy |
|
|
|
00061020 |
04/10/2006 |
JM Costley |
$300.00 |
|
|
|
|
Vehicle Crossing Subsidy |
|
|
|
00061021 |
04/10/2006 |
MT Kukura & S Janssen |
$300.00 |
|
|
|
|
Vehicle Crossing Subsidy |
|
|
|
00061022 |
04/10/2006 |
MD & KG Richmond |
$300.00 |
|
|
|
|
Vehicle Crossing Subsidy |
|
|
|
00061023 |
04/10/2006 |
A & KF Guelfi |
$300.00 |
|
|
|
|
Vehicle Crossing Subsidy |
|
|
|
00061024 |
04/10/2006 |
S Rabbone |
$220.00 |
|
|
|
|
Reimbursement Small Business Voucher |
|
|
|
00061025 |
04/10/2006 |
Jean Clarke |
$100.00 |
|
|
|
|
Donation Towards The Trophies & Winners Vouchers For |
|
|
|
|
|
The Seniors Week Golfing Day On 25/10/06 |
|
|
|
00061026 |
04/10/2006 |
Deborah Purser |
$400.00 |
|
|
|
|
Sponsorship For Elleanor & Genevieve Purser To Support Their |
|
|
|
|
|
Participation In The National Championships Of Irish Dancing |
|
|
|
|
|
Held On The 27 Sep - 01 Oct 06 |
|
|
|
00061027 |
04/10/2006 |
Western Australian Lacrosse |
$400.00 |
|
|
|
|
Sponsorship Aaron Vogels & Lachlan Walker In The Lacrosse |
|
|
|
|
|
Australia Under 15'S Boys National Tournament |
|
|
|
00061028 |
04/10/2006 |
Debbie Cowell |
$500.00 |
|
|
|
|
Sponsorship For Holly Cowell To Support Her Participation |
|
|
|
|
|
Int The Jenny Kirk Junior Trans Tasman Cup Held In New |
|
|
|
|
|
Zealand |
|
|
|
00061029 |
04/10/2006 |
Aboriginal Seniors Group Petty Cash |
$50.00 |
|
|
|
|
Petty Cash |
|
|
|
00061030 |
04/10/2006 |
Alexander Heights Adult Day Care Petty Cash |
$26.10 |
|
|
|
|
Petty Cash |
|
|
|
00061031 |
04/10/2006 |
Alinta Gas |
$1,350.50 |
|
|
|
|
Gas Supplies For The City |
|
|
|
00061032 |
04/10/2006 |
Shirley Campbell |
$20.00 |
|
|
|
|
Volunteer Payment - Community Buses |
|
|
|
00061033 |
04/10/2006 |
Community Development Support Petty |
$199.00 |
|
|
|
|
Petty Cash |
|
|
|
00061034 |
04/10/2006 |
Corporate Services Petty Cash |
$197.70 |
|
|
|
|
Petty Cash |
|
|
|
00061035 |
04/10/2006 |
Department Of Land Information |
$164.00 |
|
|
|
|
Lodgement Fee Road Acquisition - Planning Services |
|
|
|
00061036 |
04/10/2006 |
Girrawheen Library Petty Cash |
$195.30 |
|
|
|
|
Petty Cash |
|
|
|
00061037 |
04/10/2006 |
Alan Green |
$50.00 |
|
|
|
|
Volunteer Payment - Community Buses |
|
|
|
00061038 |
04/10/2006 |
Mr R Hannan |
$90.00 |
|
|
|
|
Volunteer Payment - Community Buses |
|
|
|
00061039 |
04/10/2006 |
Mr E Martin |
$166.64 |
|
|
|
|
Keyholder/Hainsworth Centre Keyholder/John Moloney |
|
|
|
|
|
Clubrooms & Park Keyholder/Koondoola Hall - Keyholder/Parks |
|
|
|
|
|
Hainsworth, Ferrara, Shelvock - Kingsway, Butterworth, |
|
|
|
|
|
Koondoola |
|
|
|
00061040 |
|
Cancelled |
|
|
|
00061041 |
04/10/2006 |
Quinns Rocks Adult Day Care Petty Cash |
$68.10 |
|
|
|
|
Petty Cash |
|
|
|
00061042 |
04/10/2006 |
Alexander Heights Community House P |
$129.60 |
|
|
|
|
Petty Cash |
|
|
|
00061043 |
04/10/2006 |
Water Corporation |
$1,622.65 |
|
|
|
|
Water Charges For The City |
|
|
|
00061044 |
04/10/2006 |
City of Wanneroo - Payroll Rates |
$255.30 |
|
|
|
|
Travel Expenses For Cr Rudi Steffens September 2006 |
|
|
|
00061045 |
|
Cancelled |
|
|
|
00061046 |
04/10/2006 |
Synergy |
$14,633.85 |
|
|
|
|
Electricity Charges For The City |
|
|
|
00061047 |
04/10/2006 |
Pat Dumaresq |
$65.00 |
|
|
|
|
Volunteer Payment - Podiatry Clinics |
|
|
|
00061048 |
04/10/2006 |
Mrs J Martin |
$183.32 |
|
|
|
|
Keyholder/Alexander Heights Hall Tennis Booking Officer/ |
|
|
|
|
|
Koondoola Park Tennis Court & Montrose Park Tennis Courts |
|
|
|
|
|
- Keyholder/Parks - Alexander Heights, Paloma, Highview |
|
|
|
00061049 |
04/10/2006 |
Angela Genovese |
$30.00 |
|
|
|
|
Volunteer Payment - Community Buses |
|
|
|
00061050 |
04/10/2006 |
Mr S G Wilkinson |
$41.66 |
|
|
|
|
Keyholder/Carramar Community Centre |
|
|
|
00061051 |
04/10/2006 |
Mr J A Baker |
$62.49 |
|
|
|
|
Keyholder/Peridot Park Keyholder/Banksia Grove Com/Centre |
|
|
|
00061052 |
04/10/2006 |
Andy Heerkens |
$60.00 |
|
|
|
|
Volunteer Community Buses |
|
|
|
00061053 |
04/10/2006 |
Roy Bastick |
$50.00 |
|
|
|
|
Volunteer Payments - Community Buses |
|
|
|
00061054 |
04/10/2006 |
Australbricks |
$1,944.98 |
|
|
|
|
Lay Paver New Carpark Rawlinna Pky - Carramar |
|
|
|
00061055 |
04/10/2006 |
City of Joondalup |
$31.35 |
|
|
|
|
Workers Compensation Insurance Adjustment - HR |
|
|
|
00061056 |
04/10/2006 |
Coastal Services |
$187.00 |
|
|
|
|
Repair Dishwasher Civic Centre Staff Room - Building |
|
|
|
|
|
Maintenance |
|
|
|
00061057 |
04/10/2006 |
David's Computer Help |
$45.00 |
|
|
|
|
Printer Repair 23/06/06 - Yanchep Community Centre |
|
|
|
00061058 |
04/10/2006 |
Financial Counsellors Association W |
$150.00 |
|
|
|
|
Membership 2006/2007 - Financial Counsellor |
|
|
|
00061059 |
04/10/2006 |
Hanson Construction Materials Pty L |
$1,156.98 |
|
|
|
|
Construction Materials Delivered For Engineering |
|
|
|
00061060 |
04/10/2006 |
Harvey Norman |
$495.00 |
|
|
|
|
Digital Camera For Yanchep Community Centre |
|
|
|
00061061 |
04/10/2006 |
Hisco |
$420.13 |
|
|
|
|
Catering Equipment For Council Functions |
|
|
|
00061062 |
04/10/2006 |
Huricain Sports |
$442.86 |
|
|
|
|
Table Tennis Bats & Balls For Banksia Grove C/Ctr |
|
|
|
00061063 |
04/10/2006 |
Landsdale Farm School |
$300.00 |
|
|
|
|
Animal Farm - All That Jazz - Cultural Development |
|
|
|
00061064 |
04/10/2006 |
Lynford Motors |
$50,004.90 |
|
|
|
|
New Vehicle - Wn32400 - Fleet |
|
|
|
|
|
New Vehicle - Wn32401 - Fleet |
|
|
|
00061065 |
04/10/2006 |
Lyons & Peirce |
$4,233.35 |
|
|
|
|
Camel Truck Hire - Infrastructure Maintenance |
|
|
|
00061066 |
04/10/2006 |
Mercy College |
$550.00 |
|
|
|
|
Jazz Band - All That Jazz - Cultural Development |
|
|
|
00061067 |
04/10/2006 |
Mindarie Regional Council |
$135,435.23 |
|
|
|
|
Refuse Disposal For The City |
|
|
|
00061068 |
04/10/2006 |
Mining & Hydraulic Supplies |
$60.06 |
|
|
|
|
Spare Parts For Fleet Maintenance |
|
|
|
00061069 |
04/10/2006 |
Museums Australia (WA) |
$35.00 |
|
|
|
|
Attendance Finding The Fit Seminar - P Rogers - Coordinator |
|
|
|
|
|
Heritage & Museum Services |
|
|
|
00061070 |
04/10/2006 |
Promaco Conventions Pty Ltd |
$484.00 |
|
|
|
|
Icomos National Conference - Philippa Rogers |
|
|
|
00061071 |
04/10/2006 |
Sensis Pty Ltd |
$147.40 |
|
|
|
|
White/Yellow Pages Online Aug 06 Aquamotion |
|
|
|
00061072 |
04/10/2006 |
Target Whitfords |
$500.00 |
|
|
|
|
Coles Myer Gift Vouchers - Reward & Recognition Program |
|
|
|
00061073 |
04/10/2006 |
Department Of Land Information |
$192.00 |
|
|
|
|
Lodgement Fee Road Acquisition - Planning Services |
|
|
|
00061074 |
04/10/2006 |
Department Of Land Information |
$372.00 |
|
|
|
|
Lodgement Fee Road Acquisition - Planning Services |
|
|
|
00061075 |
04/10/2006 |
Fernfarm Holdings Pty Ltd |
$30,088.07 |
|
|
|
|
Final Instalment For Purchase of Lot 16 (246) Mary St Wangara |
|
|
|
00061076 |
10/10/2006 |
Corporate Services Petty Cash |
$529.35 |
|
|
|
|
Petty Cash |
|
|
|
00061077 |
11/10/2006 |
Landsdale Cricket Club |
$500.00 |
|
|
|
|
Bond Refund |
|
|
|
00061078 |
11/10/2006 |
Wanneroo Cricket Club |
$50.00 |
|
|
|
|
Bond Refund |
|
|
|
00061079 |
11/10/2006 |
North Coast Ball Club |
$50.00 |
|
|
|
|
Bond Refund |
|
|
|
00061080 |
11/10/2006 |
Warwick Greenwood Junior Cricket Club |
$50.00 |
|
|
|
|
Bond Refund |
|
|
|
00061081 |
11/10/2006 |
Pejcic Mladen |
$155.16 |
|
|
|
|
Rates Refund 28 Finsbury View - 179068 - Overpayment |
|
|
|
00061082 |
11/10/2006 |
S & MJ Richardson |
$1,170.94 |
|
|
|
|
Rates Refund 18 Holyhead Grn - Pn 176058 - Overpayment |
|
|
|
00061083 |
11/10/2006 |
Helen T Maxfield |
$268.13 |
|
|
|
|
Rates Refund 14 Allara Rtt - Pn 172269 - Overpayment |
|
|
|
00061084 |
11/10/2006 |
Girrawheen Primary School P & C |
$319.50 |
|
|
|
|
Bond Refund |
|
|
|
00061085 |
11/10/2006 |
Jason R Bouwhuis |
$972.75 |
|
|
|
|
Rates Refund 42 Kirkstall Dr Hocking Pn 196832 Overpayment |
|
|
|
00061086 |
11/10/2006 |
Benjamin M Innes |
$398.31 |
|
|
|
|
Rates Refund 38 Shropshire Cres Pn 199790 Overpayment |
|
|
|
00061087 |
11/10/2006 |
Joyce Tye |
$15.00 |
|
|
|
|
Gold Program- Refund Fees - Whale Watching X 2 |
|
|
|
00061088 |
11/10/2006 |
City of Wanneroo |
$3,813.52 |
|
|
|
|
Payroll Ded: F/Ending 06/10/06 |
|
|
|
00061089 |
11/10/2006 |
Aboriginal Seniors Group Petty Cash |
$50.00 |
|
|
|
|
Petty Cash |
|
|
|
00061090 |
11/10/2006 |
Alexander Heights Adult Day Care Petty Cash |
$50.75 |
|
|
|
|
Petty Cash |
|
|
|
00061091 |
11/10/2006 |
Alinta Gas |
$50.00 |
|
|
|
|
1 x Rate Payer Financial Assistance |
|
|
|
00061092 |
11/10/2006 |
Amp Flexible Lifetime Super Fund |
$133.22 |
|
|
|
|
Payroll Ded: F/Ending 06/10/06 |
|
|
|
00061093 |
11/10/2006 |
Aquamotion Office Petty Cash |
$143.80 |
|
|
|
|
Petty Cash |
|
|
|
00061094 |
11/10/2006 |
Clarkson Youth Centre Petty Cash |
$46.50 |
|
|
|
|
Petty Cash |
|
|
|
00061095 |
11/10/2006 |
Corporate Services Petty Cash |
$260.35 |
|
|
|
|
Petty Cash |
|
|
|
00061096 |
11/10/2006 |
Quinns Rocks Adult Day Care Petty C |
$39.55 |
|
|
|
|
Petty Cash |
|
|
|
00061097 |
11/10/2006 |
Alexander Heights Community House P |
$12.00 |
|
|
|
|
Petty Cash |
|
|
|
00061098 |
11/10/2006 |
Wanneroo Library Petty Cash |
$144.15 |
|
|
|
|
Petty Cash |
|
|
|
00061099 |
11/10/2006 |
Wanneroo Youth Centre Petty Cash |
$119.10 |
|
|
|
|
Petty Cash |
|
|
|
00061100 |
11/10/2006 |
Water Corporation |
$8.75 |
|
|
|
|
Water Charges For The City |
|
|
|
00061101 |
11/10/2006 |
Zurich Client Service |
$235.38 |
|
|
|
|
Payroll Ded: F/Ending 06/10/06 |
|
|
|
00061102 |
11/10/2006 |
City of Wanneroo - Payroll Deduction |
$379.00 |
|
|
|
|
Payroll Ded: F/Ending 06/10/06 |
|
|
|
00061103 |
11/10/2006 |
City of Wanneroo - Payroll Rates |
$2,002.00 |
|
|
|
|
Payroll Ded: F/Ending 06/10/06 |
|
|
|
00061104 |
11/10/2006 |
City of Wanneroo - Limited Use Coun |
$435.00 |
|
|
|
|
Payroll Ded: F/Ending 06/10/06 |
|
|
|
00061105 |
11/10/2006 |
Synergy |
$4,556.30 |
|
|
|
|
Electricity Charges For The City |
|
|
|
00061106 |
11/10/2006 |
Zurich Aust Insurance Ltd |
$500.00 |
|
|
|
|
Zurich Excess Claim (Our Ref 711531) - Wn32332 Excess |
|
|
|
|
|
Payment - Damage To Third Party Vehicle By Wn32332 |
|
|
|
00061107 |
11/10/2006 |
AlintaGas Networks Pty Ltd |
$990.00 |
|
|
|
|
Minor Gas Alter - Wanneroo Rd, Madeley - Projects |
|
|
|
00061108 |
11/10/2006 |
Western Power |
$2,841.00 |
|
|
|
|
Requested Works - Alexander Dr Landsdale |
|
|
|
00061109 |
11/10/2006 |
HOSTPLUS Superannuation Fund |
$64.09 |
|
|
|
|
Payroll Ded: F/Ending 06/10/06 |
|
|
|
00061110 |
11/10/2006 |
MLC Nominees Pty Limited |
$98.41 |
|
|
|
|
Payroll Ded : F/Ending 06/10/06 |
|
|
|
00061111 |
11/10/2006 |
The Industry Superannuation Fund |
$89.43 |
|
|
|
|
Payroll Ded: F/Ending 06/10/06 |
|
|
|
00061112 |
11/10/2006 |
Academy Clothing |
$1,150.33 |
|
|
|
|
Uniforms For Ranger Services |
|
|
|
00061113 |
11/10/2006 |
Acrylic Domes |
$82.50 |
|
|
|
|
A3 Keyboard Document Holder - Records |
|
|
|
00061114 |
11/10/2006 |
City of Joondalup |
$7,000.00 |
|
|
|
|
Artwork - Joondalup Invitation Art Award 2006 - Cultural |
|
|
|
|
|
Development |
|
|
|
00061115 |
11/10/2006 |
Comfort Keepers |
$525.00 |
|
|
|
|
Support Services Cacp Clients & Personal Care |
|
|
|
00061116 |
11/10/2006 |
Crown Security (WA) Pty Ltd |
$403.70 |
|
|
|
|
Service Call - Security System - Add Detector To The Storage |
|
|
|
|
|
Shed - Contracts & Property |
|
|
|
00061117 |
11/10/2006 |
CRS Australia |
$921.25 |
|
|
|
|
Ergonomic Assessments - HR |
|
|
|
00061118 |
11/10/2006 |
Department of Sport & Recreation |
$1,353.00 |
|
|
|
|
Active 2006 Conference - 21/22 Sept 06 Delegates: Michael |
|
|
|
|
|
Quirk, Ben Bryant, Ian Ireland & S Spinks - Leisure Services |
|
|
|
00061119 |
11/10/2006 |
Dodd & Young Human Resource Consult |
$1,760.00 |
|
|
|
|
Undertake Classification Assessments Of Various Positions |
|
|
|
|
|
For HR |
|
|
|
00061120 |
11/10/2006 |
Grand Cinemas Joondalup |
$36.00 |
|
|
|
|
Movie Tickets X 4 - Youth Services |
|
|
|
00061121 |
11/10/2006 |
Hanson Construction Materials Pty L |
$1,287.66 |
|
|
|
|
Construction Materials Delivered For Engineering |
|
|
|
00061122 |
11/10/2006 |
Label Magic |
$159.50 |
|
|
|
|
Magnetic Labels For Waste Services |
|
|
|
00061123 |
11/10/2006 |
Mindarie Regional Council |
$137,882.58 |
|
|
|
|
Refuse Disposal For The City |
|
|
|
00061124 |
11/10/2006 |
Multispares |
$1,291.11 |
|
|
|
|
Spare Parts For Fleet Maintenance |
|
|
|
00061125 |
11/10/2006 |
Nutrition Australia |
$800.00 |
|
|
|
|
Meal Planning Presentations 22/23 June 2006 - Community |
|
|
|
|
|
Development |
|
|
|
00061126 |
11/10/2006 |
Sanny Ang |
$132.00 |
|
|
|
|
Origami Workshop - Girrawheen Library |
|
|
|
00061127 |
11/10/2006 |
Sensis Pty Ltd |
$130.40 |
|
|
|
|
Yellow Pages Perth 2007 Instal 4 Of 5 - Contracts & Property |
|
|
|
00061128 |
11/10/2006 |
Swan Tafe |
$230.64 |
|
|
|
|
Semester 2 2006 Enrolment Fees Cert 111 In Automotive |
|
|
|
|
|
Mechanical Technology Attendee S Taylor |
|
|
|
|
|
Bookshop Purchases For N Macleod |
|
|
|
00061129 |
11/10/2006 |
Toyota Material Handling (WA) Pty L |
$100.10 |
|
|
|
|
Switch Parts - 98025 - Fleet |
|
|
|
00061130 |
11/10/2006 |
WA Limestone Company |
$3,376.51 |
|
|
|
|
Limestone Products Delivered For Engineering |
|
|
|
00061131 |
11/10/2006 |
West Tip Waste Control Pty Ltd |
$396.00 |
|
|
|
|
General Waste Disposal - Bush Links |
|
|
|
00061132 |
11/10/2006 |
Chemigem |
$111.99 |
|
|
|
|
Replacement Parts For Spa - Aquamotion |
|
|
|
00061133 |
12/10/2006 |
R Dyke & S Anderson |
$810.83 |
|
|
|
|
Rates Refund P/N 199848 Overpayment |
|
|
|
00061134 |
|
Cancelled |
|
|
|
00061135 |
|
Cancelled |
|
|
|
00061136 |
12/10/2006 |
Kulcha-Multicultural Arts Of WA |
$319.50 |
|
|
|
|
Bond Refund |
|
|
|
00061137 |
10/10/2006 |
AQWA Foundation |
$630.00 |
|
|
|
|
AQWA Visit For Gold Program - Community Services |
|
|
|
00061138 |
18/10/2006 |
Kingsway United Christian Soccer Club |
$50.00 |
|
|
|
|
Bond Refund |
|
|
|
00061139 |
18/10/2006 |
Kay Hough |
$532.50 |
|
|
|
|
Bond Refund |
|
|
|
00061140 |
18/10/2006 |
Arrow-Head Ministries Inc |
$532.50 |
|
|
|
|
Bond Refund |
|
|
|
00061141 |
18/10/2006 |
Aguek Koryom |
$319.50 |
|
|
|
|
Bond Refund |
|
|
|
00061142 |
18/10/2006 |
Rosetta Italiano |
$532.50 |
|
|
|
|
Bond Refund |
|
|
|
00061143 |
18/10/2006 |
Greyhounds Christian Soccer Club |
$50.00 |
|
|
|
|
Bond Refund |
|
|
|
00061144 |
18/10/2006 |
SK Beswick & CC Mitchell |
$300.00 |
|
|
|
|
Vehicle Crossing Subsidy |
|
|
|
00061145 |
18/10/2006 |
MA & CT Bonacci |
$300.00 |
|
|
|
|
Vehicle Crossing Subsidy |
|
|
|
00061146 |
18/10/2006 |
DE Casimir |
$300.00 |
|
|
|
|
Vehicle Crossing Subsidy |
|
|
|
00061147 |
18/10/2006 |
RL & CA Ewins |
$300.00 |
|
|
|
|
Vehicle Crossing Subsidy |
|
|
|
00061148 |
18/10/2006 |
G Garzo & BA Matthews |
$300.00 |
|
|
|
|
Vehicle Crossing Subsidy |
|
|
|
00061149 |
18/10/2006 |
PJ & ES Hardwicke |
$300.00 |
|
|
|
|
Vehicle Crossing Subsidy |
|
|
|
00061150 |
18/10/2006 |
G & CT Scala |
$300.00 |
|
|
|
|
Vehicle Crossing Subsidy |
|
|
|
00061151 |
18/10/2006 |
SA & M Tombides |
$300.00 |
|
|
|
|
Vehicle Crossing Subsidy |
|
|
|
00061152 |
18/10/2006 |
SL & NI Pestana |
$300.00 |
|
|
|
|
Vehicle Crossing Subsidy |
|
|
|
00061153 |
18/10/2006 |
D & J Howarth |
$300.00 |
|
|
|
|
Vehicle Crossing Subsidy |
|
|
|
00061154 |
18/10/2006 |
PA Keeble |
$300.00 |
|
|
|
|
Vehicle Crossing Subsidy |
|
|
|
00061155 |
18/10/2006 |
M Truswell |
$300.00 |
|
|
|
|
Vehicle Crossing Subsidy |
|
|
|
00061156 |
18/10/2006 |
CT Rolley-Good |
$300.00 |
|
|
|
|
Vehicle Crossing Subsidy |
|
|
|
00061157 |
18/10/2006 |
Skate WA |
$400.00 |
|
|
|
|
Sponsorship Skating Oct06 T Munckton & C Iopollo |
|
|
|
00061158 |
18/10/2006 |
C Papworth |
$165.00 |
|
|
|
|
Reimbursement Small Business Voucher |
|
|
|
00061159 |
18/10/2006 |
J Ruck |
$192.50 |
|
|
|
|
Reimbursement Small Business Voucher |
|
|
|
00061160 |
18/10/2006 |
P Kotsoglo |
$192.50 |
|
|
|
|
Reimbursement Small Business Voucher |
|
|
|
00061161 |
18/10/2006 |
Neerabup Primary School |
$300.00 |
|
|
|
|
Facility Hire Refund |
|
|
|
00061162 |
18/10/2006 |
West Coast Cricket Club |
$100.00 |
|
|
|
|
Bond Refund |
|
|
|
00061163 |
18/10/2006 |
Doru Bucur |
$532.50 |
|
|
|
|
Bond Refund |
|
|
|
00061164 |
18/10/2006 |
L Powell |
$80.00 |
|
|
|
|
Refund Swimming Lesson |
|
|
|
00061165 |
18/10/2006 |
S Warnock |
$50.00 |
|
|
|
|
Dog Refund Deceased |
|
|
|
00061166 |
18/10/2006 |
M Rofail |
$30.00 |
|
|
|
|
Dog Refund Surrendered |
|
|
|
00061167 |
18/10/2006 |
J Banger |
$57.00 |
|
|
|
|
Dog Refund Sterilised |
|
|
|
00061168 |
18/10/2006 |
S & LE Aung |
$265.82 |
|
|
|
|
Rates Refund 18 Rockdale Pass Landsdale WA O/Payment |
|
|
|
00061169 |
18/10/2006 |
Dave Clemans |
$319.50 |
|
|
|
|
Bond Refund |
|
|
|
00061170 |
18/10/2006 |
Landsdale Junior Football Club |
$585.75 |
|
|
|
|
Hire Fee Refund |
|
|
|
00061171 |
18/10/2006 |
Y & N Susac |
$1,436,980.10 |
|
|
|
|
Full Purchase Price Lot 1002 Pinjar Road Ashby |
|
|
|
00061172 |
18/10/2006 |
AS & CS Reichenberg |
$300.00 |
|
|
|
|
Vehicle Crossing Subsidy |
|
|
|
00061173 |
18/10/2006 |
Aboriginal Seniors Group Petty Cash |
$49.45 |
|
|
|
|
Petty Cash |
|
|
|
00061174 |
18/10/2006 |
Alexander Heights Adult Day Care Petty Cash |
$19.65 |
|
|
|
|
Petty Cash |
|
|
|
00061175 |
18/10/2006 |
Alinta Gas |
$5,865.25 |
|
|
|
|
Gas Charges For The City |
|
|
|
|
|
2 x Rate Payer Financial Assistance |
|
|
|
00061176 |
18/10/2006 |
Amp Flexible Lifetime Super Fund |
$64.34 |
|
|
|
|
Payroll Ded: F/E 28/07/06 |
|
|
|
00061177 |
18/10/2006 |
Building & Construction Industry |
$45,672.49 |
|
|
|
|
Building & Construction Levy Payment 18/9-29/9/06 |
|
|
|
00061178 |
18/10/2006 |
Clarkson Youth Centre Petty Cash |
$66.95 |
|
|
|
|
Petty Cash |
|
|
|
00061179 |
18/10/2006 |
Corporate Services Petty Cash |
$638.65 |
|
|
|
|
Petty Cash |
|
|
|
00061180 |
18/10/2006 |
Michael Hayes |
$40.00 |
|
|
|
|
Keyholder Cokman House Oct06 |
|
|
|
00061181 |
18/10/2006 |
Mr E Martin |
$166.64 |
|
|
|
|
Keyholder Oct06 Hainsworth Centre & Parks/John Moloney |
|
|
|
|
|
Clubrooms & Parks/Koondoola Hall/Park Kingsway & |
|
|
|
|
|
Butterworth Parks |
|
|
|
00061182 |
18/10/2006 |
Alexander Heights Community House P |
$89.60 |
|
|
|
|
Petty Cash |
|
|
|
00061183 |
18/10/2006 |
UDIA(WA) |
$350.00 |
|
|
|
|
Training - Water Forum 10 Nov06 A McGregor & P Thompson |
|
|
|
00061184 |
18/10/2006 |
Valuer Generals Office |
$3,721.28 |
|
|
|
|
Mining Tenements Chargeable Schedule - Rates |
|
|
|
|
|
Gross Rental Valuations Chargeable - Rates |
|
|
|
00061185 |
18/10/2006 |
Water Corporation |
$256.30 |
|
|
|
|
Water Charges For The City |
|
|
|
00061186 |
18/10/2006 |
Yanchep Community House Petty Cash |
$64.20 |
|
|
|
|
Petty Cash |
|
|
|
00061187 |
18/10/2006 |
Youth Projects Petty Cash |
$168.25 |
|
|
|
|
Petty Cash |
|
|
|
00061188 |
18/10/2006 |
Zurich Client Service |
$10.06 |
|
|
|
|
Payroll Ded: F/E 13/10/06 |
|
|
|
00061189 |
|
Cancelled |
|
|
|
00061190 |
18/10/2006 |
Synergy |
$179,356.55 |
|
|
|
|
Electricity Charges For The City |
|
|
|
|
|
2 x Rate Payer Financial Assistance |
|
|
|
|
|
Street Lighting 24.08.06-24.09.06 |
|
|
|
00061191 |
18/10/2006 |
Telstra |
$150.00 |
|
|
|
|
1 x Rate Payer Financial Assistance |
|
|
|
00061192 |
18/10/2006 |
Mrs J Martin |
$183.32 |
|
|
|
|
Tennis Booking/Keyholder Oct06 Koondoola & Montrose Courts |
|
|
|
|
|
A/Heights Hall Highview Paloma & A/Heights Parks |
|
|
|
00061193 |
18/10/2006 |
Zurich Aust Insurance Ltd |
$500.00 |
|
|
|
|
Ins.Excess Wn30919 - Insurance Services |
|
|
|
00061194 |
18/10/2006 |
Mr S G Wilkinson |
$41.66 |
|
|
|
|
Keyholder Oct06 Carramar Comm.Centre |
|
|
|
00061195 |
18/10/2006 |
Mr J A Baker |
$62.49 |
|
|
|
|
Keyholder Oct06 Peridot Park & Banksia Grove Comm.Centre |
|
|
|
00061196 |
18/10/2006 |
3D Networks (Australia) Pty Ltd |
$187.00 |
|
|
|
|
Remote Programming (PABX) - It Services |
|
|
|
00061197 |
18/10/2006 |
Alison McGarrigle |
$70.00 |
|
|
|
|
Dance Tuition - Clarkson Library |
|
|
|
00061198 |
18/10/2006 |
Australian Communications Authority |
$153.00 |
|
|
|
|
Annual Licence Renewal 2006/2007 |
|
|
|
00061199 |
18/10/2006 |
Big W |
$148.27 |
|
|
|
|
Various Items - Community Services |
|
|
|
00061200 |
18/10/2006 |
Briana Wesley |
$100.00 |
|
|
|
|
Ballon Making/Blowing For Community Events |
|
|
|
00061201 |
18/10/2006 |
Cape Demolition/Salvage |
$12.80 |
|
|
|
|
Tiles - Building Maintenance |
|
|
|
00061202 |
18/10/2006 |
Chung Wah Welfare & Community Services |
$630.00 |
|
|
|
|
Support Services Hacc/Cacp Clients |
|
|
|
00061203 |
18/10/2006 |
City of Joondalup |
$13,256.85 |
|
|
|
|
Reimbursement - Thinking Hats Course - Economic Dev. |
|
|
|
|
|
Service Level Agreement Sept06 - Libraries |
|
|
|
|
|
Installation/Configuration Of Test - Geoweb Against Test Plus |
|
|
|
|
|
Database - It Services |
|
|
|
|
|
Hire Cherry Picker - Parks |
|
|
|
00061204 |
18/10/2006 |
Comfort Keepers |
$630.00 |
|
|
|
|
Support Services Hacc/Cacp Clients |
|
|
|
00061205 |
18/10/2006 |
Danka Australia Pty Ltd |
$536.25 |
|
|
|
|
A4 150Gsm Waterproof Paper - Aquamotion |
|
|
|
00061206 |
18/10/2006 |
Dianne Sigel (Art Teacher) |
$539.00 |
|
|
00061207 |
18/10/2006 |
Dymocks - Hay St |
$141.75 |
|
|
|
|
Book Purchases - Girrawheen Library |
|
|
|
00061208 |
18/10/2006 |
FOO HUA Chinese Restaurant |
$215.40 |
|
|
|
|
Catering - Lake Carabooda Fire - Fire Services |
|
|
|
00061209 |
18/10/2006 |
Harvey Norman |
$129.00 |
|
|
|
|
Sharp Compact Elec MWO - Aquamotion |
|
|
|
00061210 |
18/10/2006 |
Human Resource Consulting Pty Ltd |
$12,430.00 |
|
|
|
|
Evaluation/Remuneration Advice - Directors & Management |
|
|
|
|
|
Positions - Office Of CEO |
|
|
|
00061211 |
18/10/2006 |
JB Hi Fi Group Pty Ltd |
$2,297.37 |
|
|
|
|
CD's & DVD's For Girrawheen Library |
|
|
|
00061212 |
18/10/2006 |
John's Handyman Service |
$880.00 |
|
|
|
|
Clean/Vacuum Gutters/Dispose To Kwinana Tip Asbestos |
|
|
|
|
|
Contaminated - Koondoola Community Hall - Building Maint |
|
|
|
00061213 |
18/10/2006 |
Joondalup Drive Medical Centre |
$137.50 |
|
|
|
|
Medical Fees - Infrastructure Projects |
|
|
|
00061214 |
18/10/2006 |
Logiudice Property Group |
$363.00 |
|
|
|
|
Quarterly Admin Levy Due 01/10/06 - Contracts & Property |
|
|
|
00061215 |
18/10/2006 |
M & K Bailey Accredited Newsagents |
$47.60 |
|
|
|
|
Newspapers/Periodicals - Economic Development |
|
|
|
00061216 |
18/10/2006 |
Master Craft Painting Contractors |
$3,382.50 |
|
|
|
|
Basement Modification Admin Centre - Building Projects |
|
|
|
00061217 |
18/10/2006 |
Mindarie Regional Council |
$2,458.01 |
|
|
|
|
Refuse Disposal For The City |
|
|
|
00061218 |
18/10/2006 |
Mining & Hydraulic Supplies |
$163.53 |
|
|
|
|
Spare Parts For Fleet Maintenance |
|
|
|
00061219 |
18/10/2006 |
Northern Suburbs Bailiff |
$2,167.36 |
|
|
|
|
Legal Fees - Rating Services |
|
|
|
00061220 |
18/10/2006 |
Nu Life Sharpening |
$232.50 |
|
|
|
|
Nail Clipper Service/Sharpen - Community Services |
|
|
|
00061221 |
18/10/2006 |
Peet & Company Limited |
$67,488.74 |
|
|
|
|
Pinjar Rd Realignment East Wanneroo Planning Scheme |
|
|
|
00061222 |
18/10/2006 |
Precision Machinery and Safe Removal |
$275.00 |
|
|
|
|
Safe Relocation X 2 - Building Maintenance |
|
|
|
00061223 |
18/10/2006 |
Procific Corporation Pty Ltd |
$894.30 |
|
|
|
|
Street Asphalt - Infrastructure Maintenance |
|
|
|
00061224 |
18/10/2006 |
RNR Contracting Pty Ltd |
$2,910.58 |
|
|
|
|
Bitumen Sealing Work - Mariginiup Rd - Infrastructure Projects |
|
|
|
00061225 |
18/10/2006 |
Scotts Bus Charter |
$230.00 |
|
|
|
|
Yanchep Community Centre To Darklight Joondalup 26/09/06 |
|
|
|
|
|
For Youth Services |
|
|
|
00061226 |
18/10/2006 |
Sensis Pty Ltd |
$224.40 |
|
|
|
|
Advertising For Contracts & Property |
|
|
|
00061227 |
18/10/2006 |
Sizzler Beldon |
$177.50 |
|
|
|
|
Meals Chicz Biz Excursion - Youth Services |
|
|
|
00061228 |
18/10/2006 |
Wanneroo IGA |
$997.52 |
|
|
|
|
Grocery Items - Hospitality & Community Services |
|
|
|
00061229 |
18/10/2006 |
Yvonne Potter - Peaceful Paws Canin |
$210.00 |
|
|
|
|
Dog Listener Seminar 29Oct - Rangers |
|
|
|
00061230 |
18/10/2006 |
Building & Construction Industry |
$59,984.20 |
|
|
|
|
Building & Construction Levy Payment 1/9-15/9/06 |
|
|
|
00061231 |
18/10/2006 |
Councillor F Cvitan |
$583.33 |
|
|
|
|
Monthly Allowance |
|
|
|
00061232 |
18/10/2006 |
Cr Dorothy Newton |
$500.00 |
|
|
|
|
Monthly Allowance |
|
|
|
00061233 |
18/10/2006 |
Councillor S Salpietro |
$1,833.33 |
|
|
|
|
Monthly Allowance |
|
|
|
00061234 |
18/10/2006 |
Councillor J Stewart |
$583.33 |
|
|
|
|
Monthly Allowance |
|
|
|
00061235 |
18/10/2006 |
City of Wanneroo - Payroll Rates |
$583.33 |
|
|
|
|
Rates For Mayor J Kelly $500.00 Rates For Cr D Newton $83.33 |
|
|
|
00061236 |
18/10/2006 |
Councillor Colin Hughes |
$583.33 |
|
|
|
|
Monthly Allowance |
|
|
|
00061237 |
18/10/2006 |
Lancelin Inn Hotel Motel |
$260.02 |
|
|
|
|
Special Offer Lunch For Gold Program |
|
|
|
00061238 |
15/10/2006 |
Desert Storm Adventures |
$840.00 |
|
|
|
|
Desert Storm Adventure For Gold Program |
|
|
|
00061239 |
17/10/2006 |
Hillarys Fast Ferries |
$784.00 |
|
|
|
|
Whale Watching Cruise For Gold Program |
|
|
|
00061240 |
23/10/2006 |
Australian Communications & Media |
$1,794.00 |
|
|
00061241 |
23/10/2006 |
Cancelled |
|
|
|
00061242 |
23/10/2006 |
Quinns Mindarie Surf Lifesaving Club |
$3,300.00 |
|
|
|
|
Donation Towards Rates And Asset Preservation Levy |
|
|
|
00061243 |
23/10/2006 |
Cancelled |
|
|
|
00061244 |
24/10/2006 |
Commonwealth Bank Wanneroo |
$549,661.01 |
|
|
|
|
Purchase Price Less Rates & Taxes For Lot 19 (63) Pinjar Rd |
|
|
|
|
|
Ashby - Includes Bank Charge Of $5.40 |
|
|
|
00061245 |
24/10/2006 |
GW Powers |
$300.00 |
|
|
|
|
Vehicle Crossing Subsidy |
|
|
|
00061246 |
24/10/2006 |
Cancelled |
|
|
|
00061247 |
24/10/2006 |
KS McDermott |
$300.00 |
|
|
|
|
Vehicle Crossing Subsidy |
|
|
|
00061248 |
24/10/2006 |
CHF & RW Young |
$300.00 |
|
|
|
|
Vehicle Crossing Subsidy |
|
|
|
00061249 |
24/10/2006 |
R & M Moran |
$300.00 |
|
|
|
|
Vehicle Crossing Subsidy |
|
|
|
00061251 |
24/10/2006 |
Cancelled |
|
|
|
00061250 |
24/10/2006 |
KT & DJ O'Meara |
$300.00 |
|
|
|
|
Vehicle Crossing Subsidy |
|
|
|
00061252 |
24/10/2006 |
Zebra Properties PL & |
$8,005.91 |
|
|
|
|
Rates Refund 99 Reef Break Drv PN216616 Subdivision |
|
|
|
00061253 |
24/10/2006 |
AC & JJ Kirwan |
$827.62 |
|
|
|
|
Rates Refund 6 Mintaro Pde PN194666 O/Paid |
|
|
|
00061254 |
24/10/2006 |
Cancelled |
|
|
|
00061255 |
24/10/2006 |
Cancelled |
|
|
|
00061256 |
24/10/2006 |
KJ & R A Jennings |
$1,046.50 |
|
|
|
|
Rates Refund 30 Langford Bld PN200470 O/Paid |
|
|
|
00061257 |
24/10/2006 |
AC Atkinson |
$435.34 |
|
|
|
|
Rates Refund 106 Berkley Rd Marangaroo 186088 O/Paid |
|
|
|
00061258 |
24/10/2006 |
S J Wicks |
$73.48 |
|
|
|
|
Rates Refund 14 Beachhaven Dve PN214989 O/Paid |
|
|
|
00061259 |
24/10/2006 |
MK & MW Brandt |
$3,757.13 |
|
|
|
|
Rates Refund 96 Clarkson Ave PN16332 Change Of Valuation |
|
|
|
00061260 |
24/10/2006 |
Cancelled |
|
|
|
00061261 |
24/10/2006 |
GS Jackson & HC Peders-Jackson |
$73.48 |
|
|
|
|
Rates Refund 9 Windward St Pn215008 Valuation Change |
|
|
|
00061262 |
24/10/2006 |
MJ & JM Swan |
$47.59 |
|
|
|
|
Rates Refund 61 Lindsay B/Blvd PN215012 Change O/Ship |
|
|
|
00061263 |
24/10/2006 |
DM Maley |
$73.48 |
|
|
|
|
Rates Refund 5 Parkbeach St PN214985 Valuation Change |
|
|
|
00061264 |
24/10/2006 |
A & L Sharapov |
$121.56 |
|
|
|
|
Rates Refund 4 Birmingham Way PN214882 Valuation Change |
|
|
|
00061265 |
24/10/2006 |
Ballajura Junior Cricket Club |
$50.00 |
|
|
|
|
Bond Refund |
|
|
|
00061266 |
24/10/2006 |
Yanchep Districts Junior Football C |
$50.00 |
|
|
|
|
Bond Refund |
|
|
|
00061267 |
24/10/2006 |
Yanchep Districts Junior Football C |
$50.00 |
|
|
|
|
Bond Refund |
|
|
|
00061268 |
24/10/2006 |
Davly Developments Pty Ltd |
$172.86 |
|
|
|
|
Rates Refund 119 Carosa Rd PN207901 Strata Title |
|
|
|
00061269 |
24/10/2006 |
H Bartelds & MA Ward |
$154.36 |
|
|
|
|
Rates Refund 11 Mandal Cl PN154346 Amend Rubbish |
|
|
|
00061270 |
24/10/2006 |
JW Dawson |
$149.80 |
|
|
|
|
Rates Refund 6 Seadrift St PN214991 Valuation Change |
|
|
|
00061271 |
24/10/2006 |
EM & B Maricic |
$73.48 |
|
|
|
|
Rates Refund 7 Windward St PN215009 Valuation Change |
|
|
|
00061272 |
24/10/2006 |
CE & CA Tribolet |
$590.24 |
|
|
|
|
Rates Refund 6 Lords Court PN213617 O/Paid |
|
|
|
00061273 |
24/10/2006 |
NM Foster |
$18.00 |
|
|
|
|
Rates Refund 66 Hampton Road PN214876 Valuation Change |
|
|
|
00061274 |
24/10/2006 |
Lethbridge Family Trust & |
$1,233.00 |
|
|
|
|
Rates Refund 23 Cooper St PN212232 Strata Title |
|
|
|
00061275 |
24/10/2006 |
LK Bradbrook |
$18.00 |
|
|
|
|
Rates Refund 68 Hampton Rd PN214877 Valuation Change |
|
|
|
00061276 |
24/10/2006 |
Gemmell Homes Pty Ltd |
$91.97 |
|
|
|
|
Rates Refund 1 Parkbeach St PN214987 Valuation Change |
|
|
|
00061277 |
24/10/2006 |
Webb & Brown-Neaves Pty Ltd |
$1,287.19 |
|
|
|
|
Rates Refund 1 St Anthony Ave PN195684 O/Paid |
|
|
|
00061278 |
24/10/2006 |
Homeswest Rentals |
$42,478.94 |
|
|
|
|
Rates Refund 650 Connolly Dve PN216130 O/Paid Subdivision |
|
|
|
00061279 |
24/10/2006 |
State Housing Commission & UPL WA |
$1,863.04 |
|
|
|
|
Rates Refund 11 Yaroomba Pl PN212049 O/Paid Subdivision |
|
|
|
00061280 |
24/10/2006 |
Peet & Co Atf Yanchep Oceanfront |
$2,303.40 |
|
|
|
|
Rates Refund 154 Lagoon Drv PN208863 O/Paid Subdivision |
|
|
|
00061281 |
24/10/2006 |
BA Johns & L Hern |
$20.87 |
|
|
|
|
Rates Refund 8 Seadrift St PN214992 Valuation Change |
|
|
|
00061282 |
24/10/2006 |
Satterley Wanneroo Pty Ltd |
$1,855.47 |
|
|
|
|
Rates Refund 2 Carosa Rd PN216684 O/Paid Subdivision |
|
|
|
00061283 |
24/10/2006 |
Homeswest C/- Satterley Property Gr |
$2,987.33 |
|
|
|
|
Rates Refund 18 Marchwood Blvd PN214474 O/Pay Subdivision |
|
|
|
00061284 |
24/10/2006 |
BJ Maguire |
$73.48 |
|
|
|
|
Rates Refund 69 Lindsay Beach Blvd Amended Valuation |
|
|
|
00061285 |
24/10/2006 |
JB & RL Cvitan |
$73.48 |
|
|
|
|
Rates Refund 12 Beachhaven Drv PN214988 Amended |
|
|
|
|
|
Valuation |
|
|
|
00061286 |
24/10/2006 |
I Valcan |
$73.48 |
|
|
|
|
Rates Refund 64 Hampton Road PN214875 Amended Valuation |
|
|
|
00061287 |
24/10/2006 |
BS & C B McLeod |
$121.56 |
|
|
|
|
Rates Refund 6 Birmingham Rd PN214883 O/Paid Valuation |
|
|
|
00061288 |
24/10/2006 |
Vietnamese Culture Association |
$532.50 |
|
|
|
|
Bond Refund |
|
|
|
00061289 |
24/10/2006 |
B J Manganaro |
$32.79 |
|
|
|
|
Rates Refund 9 Birmingham Rd O/Paid Amend Valuation |
|
|
|
00061290 |
24/10/2006 |
Lonnegal Property Pty Ltd |
$2,067.31 |
|
|
|
|
Rates Refund 100 Clarkson Ave PN163333 Valuation Change |
|
|
|
00061291 |
24/10/2006 |
Lonnegal Property Pty Ltd |
$4,259.14 |
|
|
|
|
Rates Refund 2 Yandella Prom PN142697 Valuation Change |
|
|
|
00061292 |
24/10/2006 |
DC & VJ Trengove |
$37.76 |
|
|
|
|
Rates Refund 7 Parkbeach St PN214984 Valuation Change |
|
|
|
00061293 |
24/10/2006 |
Peet & Co Ltd ATF Yatala Unit Trust |
$39,581.62 |
|
|
|
|
Rates Refund 1000 Joondalup Drv PN214654 S/Division |
|
|
|
00061294 |
24/10/2006 |
Quinns Developments Pty Ltd & |
$29,115.63 |
|
|
|
|
Rates Refund 960 Connolly Drv PN215471 S/Division |
|
|
|
00061295 |
24/10/2006 |
Quinns Developments Pty Ltd & |
$1,551.28 |
|
|
|
|
Rates Refund 81 Ridgewood Blvd PN214782 O/Paid S/Division |
|
|
|
00061296 |
24/10/2006 |
Nicola Edmonds |
$319.50 |
|
|
|
|
Bond Refund |
|
|
|
00061297 |
24/10/2006 |
C Marshall |
$113.00 |
|
|
|
|
Dog Refund - Overpaid |
|
|
|
00061298 |
24/10/2006 |
Cancelled |
|
|
|
00061299 |
24/10/2006 |
Nicola Borthwick |
$300.00 |
|
|
|
|
Vehicle Crossing Subsidy |
|
|
|
00061300 |
24/10/2006 |
CD Watts & SL Amos |
$300.00 |
|
|
|
|
Vehicle Crossing Subsidy |
|
|
|
00061301 |
24/10/2006 |
AV & J Gobu |
$300.00 |
|
|
|
|
Vehicle Crossing Subsidy |
|
|
|
00061302 |
24/10/2006 |
RJ & R Carmo |
$300.00 |
|
|
|
|
Vehicle Crossing Subsidy |
|
|
|
00061303 |
24/10/2006 |
LK Hollands |
$300.00 |
|
|
|
|
Vehicle Crossing Subsidy |
|
|
|
00061304 |
24/10/2006 |
G & KR Fanelli |
$300.00 |
|
|
|
|
Vehicle Crossing Subsidy |
|
|
|
00061305 |
24/10/2006 |
BE & LL Mandolene |
$300.00 |
|
|
|
|
Vehicle Crossing Subsidy |
|
|
|
00061306 |
24/10/2006 |
Andrew McDonald Haxton & Gretchen |
$300.00 |
|
|
|
|
Vehicle Crossing Subsidy |
|
|
|
00061307 |
24/10/2006 |
Wentworth Holding Ltd |
$195.00 |
|
|
|
|
1 X Rate Payer Financial Assistance |
|
|
|
00061308 |
24/10/2006 |
Westchoice Pty Ltd |
$126.73 |
|
|
|
|
Rates Refund 71 Wattle Mews Pn207464 Paid Twice |
|
|
|
00061309 |
24/10/2006 |
Mathew Roper |
$160.00 |
|
|
|
|
Swim School Refund |
|
|
|
00061310 |
24/10/2006 |
Donna Irbe |
$160.00 |
|
|
|
|
Swim School Refund |
|
|
|
00061311 |
24/10/2006 |
Rosslyn Newman |
$70.00 |
|
|
|
|
Swim School Refund |
|
|
|
00061312 |
24/10/2006 |
Sue Spiers |
$319.50 |
|
|
|
|
Bond Refund |
|
|
|
00061313 |
24/10/2006 |
Cancelled |
|
|
|
00061314 |
24/10/2006 |
Wanneroo Agricultural Society |
$300.00 |
|
|
|
|
Bond Refund |
|
|
|
00061315 |
24/10/2006 |
City of Wanneroo |
$203.50 |
|
|
|
|
Deduction From Fdc Carers Pay For Membership Fees |
|
|
|
00061316 |
24/10/2006 |
Aboriginal Seniors Group Petty Cash |
$50.00 |
|
|
|
|
Petty Cash |
|
|
|
00061317 |
24/10/2006 |
Alexander Heights Adult Day Care Petty Cash |
$46.35 |
|
|
|
|
Petty Cash |
|
|
|
00061318 |
24/10/2006 |
Buckingham House Petty Cash |
$99.20 |
|
|
|
|
Petty Cash |
|
|
|
00061319 |
24/10/2006 |
Clarkson Youth Centre Petty Cash |
$44.60 |
|
|
|
|
Petty Cash |
|
|
|
00061320 |
24/10/2006 |
Gloucester Lodge Museum Petty Cash |
$47.85 |
|
|
|
|
Petty Cash |
|
|
|
00061321 |
24/10/2006 |
Hainsworth Community Centre Petty C |
$118.15 |
|
|
|
|
Petty Cash |
|
|
|
00061322 |
24/10/2006 |
Optus |
$21.49 |
|
|
|
|
Service Charges 21/8-20/9/06 - Waste |
|
|
|
00061323 |
24/10/2006 |
Quinns Rocks Adult Day Care Petty C |
$87.90 |
|
|
|
|
Petty Cash |
|
|
|
00061324 |
24/10/2006 |
Rangers & Safety Services Petty Cash |
$197.50 |
|
|
|
|
Petty Cash |
|
|
|
00061325 |
24/10/2006 |
Alexander Heights Community House P |
$65.10 |
|
|
|
|
Petty Cash |
|
|
|
00061326 |
24/10/2006 |
Valuer Generals Office |
$1,480.80 |
|
|
|
|
Valuations For Rating Services |
|
|
|
00061327 |
24/10/2006 |
Wanneroo Youth Centre Petty Cash |
$39.70 |
|
|
|
|
Petty Cash |
|
|
|
00061328 |
24/10/2006 |
Water Corporation |
$1,254.15 |
|
|
|
|
Water Charges For The City |
|
|
|
00061329 |
24/10/2006 |
Synergy |
$317.00 |
|
|
|
|
Electricity Charges For The City |
|
|
|
|
|
2 X Rate Payer Financial Assistance |
|
|
|
00061330 |
24/10/2006 |
Telstra |
$4,646.18 |
|
|
|
|
Bigpond Access For It |
|
|
|
00061331 |
24/10/2006 |
Zurich Aust Insurance Ltd |
$2,000.00 |
|
|
|
|
Insurance Excess - Wn32174 - 611500 |
|
|
|
|
|
Insurance Excess - Wn32175 - 611501 |
|
|
|
|
|
Insurance Excess - Wn32145 - 711534 |
|
|
|
|
|
Insurance Excess - Wn277 - 711530 |
|
|
|
00061332 |
24/10/2006 |
Clarkson Library Petty Cash |
$266.10 |
|
|
|
|
Petty Cash |
|
|
|
00061333 |
24/10/2006 |
Western Power |
$51,832.00 |
|
|
|
|
Payment For Works Requested Lenore Rd Franklin Rd - Install |
|
|
|
|
|
Street Lighting |
|
|
|
00061334 |
24/10/2006 |
Acrylic Domes |
$169.40 |
|
|
|
|
A3 Keyboard Document Holder - Records |
|
|
|
00061335 |
24/10/2006 |
Allen Mobile Phone Services |
$143.00 |
|
|
|
|
Remove/Install Nokia Wn32108 To Wn32400 Fleet |
|
|
|
00061336 |
24/10/2006 |
Aussie Outback Supplies Pty Ltd |
$138.36 |
|
|
|
|
Overboot Covers - Stores |
|
|
|
00061337 |
24/10/2006 |
Barn Babes |
$720.00 |
|
|
|
|
Barn Babes For Childrens Week 22/10/06 - Community Event |
|
|
|
00061338 |
24/10/2006 |
Benedictine Community of New Norcia |
$132.00 |
|
|
|
|
New Norcia Library Lecture 26/10/06 - G Dixon And J McAuliffe |
|
|
|
00061339 |
24/10/2006 |
C & EM Harmer |
$36.80 |
|
|
|
|
Newspapers/Periodicals - Marketing |
|
|
|
00061340 |
24/10/2006 |
City of Joondalup |
$266.67 |
|
|
|
|
Cls Rules Set - Updates/Execution 01/10/06 City Of Wanneroo |
|
|
|
|
|
Libraries |
|
|
|
00061341 |
24/10/2006 |
Collins Craft, School & Office Supp |
$147.25 |
|
|
|
|
Craft Supplies - Heights Community House |
|
|
|
00061342 |
24/10/2006 |
Dianne Sigel (Art Teacher) |
$269.50 |
|
|
|
|
Pottery Classes 3/10/06 - Cultural Development |
|
|
|
00061343 |
24/10/2006 |
Dun & Bradstreet Australia |
$533.17 |
|
|
|
|
Professional Services For Contracts And Property |
|
|
|
00061344 |
24/10/2006 |
Edgewater Veterinary Hospital |
$200.00 |
|
|
|
|
Veterinary Costs - Euthanasie 8 Dogs |
|
|
|
00061345 |
24/10/2006 |
Fines Enforcement Registry |
$2,296.00 |
|
|
|
|
Lodgement Of 56 Infringement Records With Fines |
|
|
|
|
|
Enforcement Registry - Rangers |
|
|
|
00061346 |
24/10/2006 |
Gwen Mcelwee |
$80.00 |
|
|
00061347 |
24/10/2006 |
Hanson Construction Materials Pty L |
$368.54 |
|
|
|
|
Kemp St Pearsall - Infrastructure Maintenance |
|
|
|
|
|
Cnr Elliott/Lenore Rd Wanneroo - Infrastructure Maintenance |
|
|
|
00061348 |
24/10/2006 |
IGroup Consulting Pty Ltd |
$140.00 |
|
|
|
|
Service Charge/Call Out Fee - It Services |
|
|
|
00061349 |
24/10/2006 |
Jane Coffey & Associates |
$1,540.00 |
|
|
|
|
Pd Reviews - Human Resources |
|
|
|
00061350 |
24/10/2006 |
Joondalup Drive Medical Centre |
$172.70 |
|
|
|
|
Medical Fees - Waste Services |
|
|
|
00061351 |
24/10/2006 |
Joondalup Office National |
$590.00 |
|
|
|
|
Assorted Items - Heritage Services |
|
|
|
00061352 |
24/10/2006 |
Kmart Joondalup |
$101.50 |
|
|
|
|
Prizes For Hainsworth School Holiday Program |
|
|
|
00061353 |
24/10/2006 |
Mindarie Regional Council |
$113,948.69 |
|
|
|
|
Refuse Disposal For The City |
|
|
|
00061354 |
24/10/2006 |
Non Organic Disposals |
$9,786.70 |
|
|
|
|
Glass Disposal - Waste Services |
|
|
|
|
|
Disposals - Projects Construction |
|
|
|
00061355 |
24/10/2006 |
Northern Suburbs Bailiff |
$523.62 |
|
|
|
|
Legal Fees - Rating Services |
|
|
|
00061356 |
24/10/2006 |
Rentokil Initial Pty Ltd |
$2,151.03 |
|
|
|
|
Disposal Of Sanitary Units Various Locations |
|
|
|
00061357 |
24/10/2006 |
Sensis Pty Ltd |
$130.40 |
|
|
|
|
Advertising For Contracts And Property |
|
|
|
00061358 |
24/10/2006 |
Smith Broughton & Sons |
$1,155.00 |
|
|
|
|
Sighted Asset Valuation Wangara 19/09/06 - Fleet |
|
|
|
00061359 |
24/10/2006 |
St John Ambulance Australia WA |
$376.02 |
|
|
|
|
Various First Aid Items - Rangers |
|
|
|
00061360 |
24/10/2006 |
Stickfuss Electrcial |
$310.49 |
|
|
|
|
Various Parts Plant 196007 - Fleet |
|
|
|
00061361 |
24/10/2006 |
Sun Flowers And Hampers |
$465.00 |
|
|
|
|
Flower Arrangements For Civic Centre - Marketing/Hospitality |
|
|
|
00061362 |
24/10/2006 |
Suzanne Logue |
$313.25 |
|
|
|
|
Painting Classes 3/10/06 - Cultural Development |
|
|
|
00061363 |
24/10/2006 |
Swan Tafe |
$159.22 |
|
|
|
|
Cert 3 Automotive (Mechanical Tech) S MacLeod - Fleet |
|
|
|
00061364 |
24/10/2006 |
SWY Consulting |
$1,190.00 |
|
|
|
|
Review Position - Youth Development Officer |
|
|
|
00061365 |
24/10/2006 |
WA Limestone Company |
$36,229.20 |
|
|
|
|
Limestone Products Delivered To Various Sites |
|
|
|
00061366 |
24/10/2006 |
Wanneroo Agricultural Society (Inc) |
$200.00 |
|
|
|
|
Refund Of Hire Fees For Banksia Room Due To Successful |
|
|
|
|
|
Application Of The Waiver Of Fees |
|
|
|
00061367 |
24/10/2006 |
Wellington Surplus Stores |
$179.00 |
|
|
|
|
Uniform Belts - Rangers |
|
|
|
00061368 |
24/10/2006 |
West Tip Waste Control Pty Ltd |
$1,676.40 |
|
|
|
|
Motivation Drive Wangara Sept06 - Waste |
|
|
|
00061369 |
24/10/2006 |
Weston Remarking Services |
$2,889.70 |
|
|
|
|
Remarking At Pinjar/Tumbleweed - Projects Construction |
|
|
|
00061370 |
25/10/2006 |
City of Wanneroo |
$3,678.40 |
|
|
|
|
Payroll Ded F/Ending 20/10/2006 |
|
|
|
00061371 |
25/10/2006 |
Amp Flexible Lifetime Super Fund |
$140.01 |
|
|
|
|
Payroll Ded F/Ending 20/10/2006 |
|
|
|
00061372 |
25/10/2006 |
Zurich Client Service |
$235.38 |
|
|
|
|
Payroll Ded F/Ending 20/10/2006 |
|
|
|
00061373 |
25/10/2006 |
City of Wanneroo - Payroll Deduction |
$386.50 |
|
|
|
|
Payroll Ded F/Ending 20/10/2006 |
|
|
|
00061374 |
25/10/2006 |
City of Wanneroo - Payroll Rates |
$2,002.00 |
|
|
|
|
Payroll Ded F/Ending 20/10/2006 |
|
|
|
00061375 |
25/10/2006 |
City of Wanneroo - Limited Use Coun |
$380.00 |
|
|
|
|
Payroll Ded F/Ending 20/10/2006 |
|
|
|
00061376 |
25/10/2006 |
HOSTPLUS Superannuation Fund |
$63.59 |
|
|
|
|
Payroll Ded F/Ending 20/10/2006 |
|
|
|
00061377 |
25/10/2006 |
WESTSCHEME |
$6.63 |
|
|
|
|
Payroll Ded F/Ending 20/10/2006 |
|
|
|
00061378 |
25/10/2006 |
MLC Nominees Pty Limited |
$118.48 |
|
|
|
|
Payroll Ded F/Ending 20/10/2006 |
|
|
|
00061379 |
25/10/2006 |
The Industry Superannuation Fund |
$131.16 |
|
|
|
|
Payroll Ded F/Ending: 20/10/2006 |
|
|
|
00061380 |
25/10/2006 |
Officers Superannuation Corporation |
$27.97 |
|
|
|
|
Payroll Ded: F/Ending 20/10/2006 |
|
|
|
00061381 |
25/10/2006 |
IOOF Portfolio Service Superannuation |
$92.86 |
|
|
|
|
Payroll Ded F/Ending 20/10/2006 |
|
|
|
00061382 |
26/10/2006 |
Cristina Leete |
$319.50 |
|
|
|
|
Bond Refund |
|
|
|
00061383 |
26/10/2006 |
Mr & Mrs Stott |
$114.00 |
|
|
|
|
Dog Refund - Sterilised |
|
|
|
00061384 |
26/10/2006 |
Carine Nominees Pty Ltd |
$292.10 |
|
|
|
|
Rates Refund 24 Masthead Cl Jindalee O/Ship Change |
|
|
|
00061385 |
26/10/2006 |
W & P Hughes |
$260.45 |
|
|
|
|
Rates Refund 17 Portrush Way Mindarie 216460 O/Paid |
|
|
|
00061386 |
26/10/2006 |
JJ & JJ Quinn |
$537.03 |
|
|
|
|
Rates Refund 5 Haddon Tce pn211814 Paid Twice |
|
|
|
00061387 |
26/10/2006 |
P Ebardwell & NL Cornford-Turner |
$300.00 |
|
|
|
|
Vehicle Crossing Subsidy |
|
|
|
00061388 |
26/10/2006 |
Scott RJ Bown |
$300.00 |
|
|
|
|
Vehicle Crossing Subsidy |
|
|
|
00061389 |
26/10/2006 |
Mr William Barry |
$319.50 |
|
|
|
|
Bond Refund |
|
|
|
00061390 |
26/10/2006 |
CP & SP Duina |
$300.00 |
|
|
|
|
Vehicle Crossing Subsidy |
|
|
|
00061391 |
26/10/2006 |
NP Pestell |
$300.00 |
|
|
|
|
Vehicle Crossing Subsidy |
|
|
|
00061392 |
26/10/2006 |
GJ Probin |
$300.00 |
|
|
|
|
Vehicle Crossing Subsidy |
|
|
|
00061393 |
26/10/2006 |
Onsite Enterprises Pty Ltd |
$979.71 |
|
|
|
|
Rates Refund 6/7 Glenrothes Cr PN164216 O/Paid |
|
|
|
00061394 |
26/10/2006 |
EL Croot |
$123.91 |
|
|
|
|
Rates Refund 42 Beachside Pde PN215073 O/Paid |
|
|
|
00061395 |
26/10/2006 |
YouthCARE Clarkson for Mindarie |
$6,000.00 |
|
|
|
|
Beneficiaries Of The City Of Wanneroo Charity Golf Day |
|
|
|
|
|
19/10/06 In Aid Of Chaplains |
|
|
|
00061396 |
26/10/2006 |
Wanneroo Senior High School |
$6,000.00 |
|
|
|
|
Beneficiaries Of The City Of Wanneroo Charity Golf Day |
|
|
|
|
|
19/10/06 In Aid Of Chaplains |
|
|
|
00061397 |
26/10/2006 |
YouthCARE Girrawheen for Girrawheen |
$6,000.00 |
|
|
|
|
Beneficiaries Of The City Of Wanneroo Charity Golf Day |
|
|
|
|
|
19/10/06 In Aid Of Chaplains |
|
|
|
00061398 |
26/10/2006 |
YouthCARE Balga/Girrawheen for |
$6,000.00 |
|
|
|
|
Beneficiaries Of The City Of Wanneroo Charity Golf Day |
|
|
|
|
|
19/10/06 In Aid Of Chaplains |
|
|
|
00061399 |
26/10/2006 |
YouthCARE Clarkson for Clarkson |
$6,000.00 |
|
|
|
|
Beneficiaries Of The City Of Wanneroo Charity Golf Day |
|
|
|
|
|
19/10/06 In Aid Of Chaplains |
|
|
|
00061400 |
26/10/2006 |
Yanchep Senior High School |
$6,000.00 |
|
|
|
|
Beneficiaries Of The City Of Wanneroo Charity Golf Day |
|
|
|
|
|
19/10/06 In Aid Of Chaplains |
|
|
|
00061401 |
19/10/2006 |
LR & YM Coolican |
$231.00 |
|
|
|
|
Strawberry Fields Gold Program Visit - Leisure |
|
|
|
00061402 |
30/10/2006 |
BP Australia Ltd |
$188,049.05 |
|
|
|
|
Fuel Issues For September 2006 |
|
|
|
|
|
Vehicle Oil For Depot Store Stock |
|
|
|
|
|
|
|
|
|
|
|
Total Director Corporate Services Advance - Cheques |
$3,492,086.00 |
|
|
|
|
|
|
|
|
ELECTRONIC TRANSFER LISTING |
||||
|
00000503 |
03/10/2006 |
|
|
|
|
|
|
Westfield Whitford City |
$515.00 |
|
|
|
|
Gift Vouchers For HR |
|
|
|
|
|
|
|
|
|
00000504 |
04/10/2006 |
|
|
|
|
|
|
Australian Taxation Office PAYG Payments |
$2,943.00 |
|
|
|
|
Payroll Ded: Non Cycle Pay |
|
|
|
|
|
Beatrix Rausch |
$474.52 |
|
|
|
|
Keyholder Oldham Reserve & Other Parks |
|
|
|
|
|
Keyholder/Phil Renkin Recreation Centre, Oldham Park Kiosk |
|
|
|
|
|
& Changerooms, St Andrews Clubrooms |
|
|
|
|
|
Volunteer Services Podiatry Clinics |
|
|
|
|
|
Farley Campbell |
$140.00 |
|
|
|
|
Volunteer Payment - Community Buses |
|
|
|
|
|
Joe Arrigo |
$91.66 |
|
|
|
|
Keyholder Wanneroo Community Centre Tennis Booking |
|
|
|
|
|
Keyholder Officer Elliott Road Courts |
|
|
|
|
|
Judith Sims |
$141.66 |
|
|
|
|
Keyholder/Gumblossom Community Centre & Park Tennis |
|
|
|
|
|
Booking Officer/Gumblossom Courts & Bellport Tennis Courts |
|
|
|
|
|
Mindarie |
|
|
|
|
|
Mr John Paton |
$150.00 |
|
|
|
|
Reimbursement - Wireless Router Working From Home |
|
|
|
|
|
Mr Rudolf Schiller |
$83.32 |
|
|
|
|
Keyholder/Clarkson Youth Centre Keyholder/Anthony Waring |
|
|
|
|
|
Clubrooms & Park |
|
|
|
|
|
Ms Deanne Hetherington |
$174.98 |
|
|
|
|
Keyholder/Hudson Clubrooms Keyholder/Hudson Park |
|
|
|
|
|
Keyholder/Cabrini Park & Blackmore Park - Keyholder/Liddell |
|
|
|
|
|
Parks - Tennis Booking Officer/Hudson Park Courts |
|
|
|
|
|
Keyholder/Girrawheen Koondoola Senior Citizens Centre |
|
|
|
|
|
Ms Fiona Bentley |
$305.20 |
|
|
|
|
Reimbursement Of Conference Expenses National Parks & |
|
|
|
|
|
Leisure |
|
|
|
|
|
Ms Hazel Owen |
$41.66 |
|
|
|
|
Keyholder/Warradale Community Hall |
|
|
|
|
|
Peggy Brown |
$83.32 |
|
|
|
|
Keyholder/Jenolan Way Community Centre Keyholder/Addison |
|
|
|
|
|
Park Clubrooms & Parks |
|
|
|
|
|
Victoria Ann Whitten |
$100.00 |
|
|
|
|
Study Assistance Semester 1 2006 |
|
|
|
|
|
|
|
|
|
00000505 |
04/10/2006 |
|
|
|
|
|
|
Aarons Florist |
$221.00 |
|
|
|
|
Flowers - Wreaths - Office Of The Mayor |
|
|
|
|
|
Flowers - Get Well - Office Of The Mayor |
|
|
|
|
|
Angus & Robertson Pty Ltd |
$875.70 |
|
|
|
|
Book Purchases - Clarkson Library |
|
|
|
|
|
Armaguard |
$432.93 |
|
|
|
|
Safe Collection - Clarkson Library |
|
|
|
|
|
Australian Turf Industries |
$761.20 |
|
|
|
|
Landscaping Works At Marangaroo Golf Course Aug/Sept06 |
|
|
|
|
|
Infrastructure Projects |
|
|
|
|
|
Auzzi Bizzi Kites |
$660.00 |
|
|
|
|
Kite Display 24/09/06 - Cultural Development |
|
|
|
|
|
Boffins Bookshop Pty Ltd |
$59.40 |
|
|
|
|
Book Purchases - Mobile Library |
|
|
|
|
|
Boral Construction Materials Group Ltd |
$356.53 |
|
|
|
|
Construction Items Delivered For Engineering |
|
|
|
|
|
Borders Australia Pty Ltd |
$1,364.73 |
|
|
|
|
Books - Girrawheen Library |
|
|
|
|
|
Bounce Away |
$693.00 |
|
|
|
|
Bungee Run - Cultural Development |
|
|
|
|
|
Bunnings Pty Ltd |
$27.22 |
|
|
|
|
Hardware Purchases For Parks |
|
|
|
|
|
CBC Bearings WA Pty Ltd |
$906.19 |
|
|
|
|
Housing Bearing Unit - Stores |
|
|
|
|
|
Clean Sweep |
$550.00 |
|
|
|
|
Madelay - Kingsway Netball Courts - 11, 18 & 25 Aug 2006 |
|
|
|
|
|
Corporate Express |
$19,382.77 |
|
|
|
|
Stationery For The City For August 2006 |
|
|
|
|
|
Couplers Malaga |
$348.62 |
|
|
|
|
Fire Reel Hose - Rangers |
|
|
|
|
|
Various Items - Parks |
|
|
|
|
|
Coventrys |
$9.46 |
|
|
|
|
Vehicle Spare Parts For Depot Store Stock |
|
|
|
|
|
Cummins Engine Company Pty Ltd |
$1,468.93 |
|
|
|
|
Vehicle Spare Parts For Depot Store Stock |
|
|
|
|
|
Diamond Lock & Key |
$165.00 |
|
|
|
|
Locking Services - Depot - Stores |
|
|
|
|
|
Dowsing Concrete |
$29,169.05 |
|
|
|
|
Lay Concrete Paths At Various Sites - Engineering |
|
|
|
|
|
E & MJ Rosher |
$93.45 |
|
|
|
|
Vehicle Spare Parts - Fleet |
|
|
|
|
|
Express Towing Services |
$264.00 |
|
|
|
|
Tow WN31490 To Depot Fleet From Wanneroo Rd/Hepburn Av |
|
|
|
|
|
Geodetic Supply & Repair |
$170.50 |
|
|
|
|
Spray Arm & Scale Rule - Infrastructure Projects |
|
|
|
|
|
Geoffs Tree Service |
$22,315.15 |
|
|
|
|
Various Services For Parks Department |
|
|
|
|
|
GHD Management Engineering Environment |
$6,600.00 |
|
|
|
|
Depot Training Room - AC Installation |
|
|
|
|
|
Banksia Grove Community Centre AC Installation |
|
|
|
|
|
Graffiti Systems Australia |
$11,357.50 |
|
|
|
|
Graffiti Removal From Various Locations |
|
|
|
|
|
Grand Toyota Daihatsu |
$175.00 |
|
|
|
|
Spare Parts For Fleet Maintenance |
|
|
|
|
|
Insight Contact Centre Services |
$2,467.96 |
|
|
|
|
Call Centre Services - August06 - Customer Services |
|
|
|
|
|
Instant Waste Management |
$299.00 |
|
|
|
|
1 X 12M Bin - Waste Services |
|
|
|
|
|
Integrated Group Ltd - Accounts Receivable |
$27,127.65 |
|
|
|
|
Casual Labour For Various Departments |
|
|
|
|
|
JCA Dealer Services |
$269.50 |
|
|
|
|
Repairs - Monitor & Camera (97005) - Fleet |
|
|
|
|
|
Jmac Industries |
$424.60 |
|
|
|
|
Various Items - Fleet Maintenance |
|
|
|
|
|
KAB Seating Systems |
$152.10 |
|
|
|
|
Sensor Pad & Seatbelt Stem Buckle - Fleet |
|
|
|
|
|
Kyocera Mita Aust P/L |
$1,251.47 |
|
|
|
|
Photocopier Meter Reading For Various Departments |
|
|
|
|
|
L & T Venables |
$17.56 |
|
|
|
|
Cut Off Wheel - Fleet Maintenance |
|
|
|
|
|
Local Government Managers Australia |
$433.00 |
|
|
|
|
2006 Lgma Annual State Conference Finance Professionals |
|
|
|
|
|
Breakfast - M Cole |
|
|
|
|
|
Lovegrove Turf Services Pty Ltd |
$123,796.00 |
|
|
|
|
Supply & Laying Of Turf Marangaroo Golf Course - Projects |
|
|
|
|
|
MacDonald Johnston Engineering Company Pty Ltd |
$677.06 |
|
|
|
|
Vehicle Spare Parts - Stores |
|
|
|
|
|
Major Motors |
$390.85 |
|
|
|
|
Spare Parts For Fleet Maintenance |
|
|
|
|
|
Mayday Earthmoving |
$16,104.00 |
|
|
|
|
Heavy Equipment Hire For Infrastructure Works |
|
|
|
|
|
Mey Equipment |
$74.71 |
|
|
|
|
Blade Guard - Fleet Maintenance |
|
|
|
|
|
Mobile Glass |
$369.77 |
|
|
|
|
Glazing Services For The City |
|
|
|
|
|
Motorlife |
$343.20 |
|
|
|
|
Inox Multi Lube Cans For Depot Stores |
|
|
|
|
|
Perth Expo Hire |
$1,059.96 |
|
|
|
|
Display Screens - Office Of The Mayor |
|
|
|
|
|
Pirtek Malaga Pty Ltd |
$2,149.08 |
|
|
|
|
Spare Parts For Fleet Maintenance |
|
|
|
|
|
State Library of Western Australia |
$341.00 |
|
|
|
|
Lost/Damaged Book Charges - Library Services |
|
|
|
|
|
The Printing Factory |
$552.20 |
|
|
|
|
Printing - Library Request Cards New Design - Libraries |
|
|
|
|
|
Toll Transport Pty Ltd |
$752.84 |
|
|
|
|
Courier Services For The City |
|
|
|
|
|
Western Irrigation |
$25,537.82 |
|
|
|
|
Construction Of Wet Well Marangaroo Golf Course - Contract |
|
|
|
|
|
Payment 2/3 Final Claim - Projects |
|
|
|
|
|
Westrac |
$148.93 |
|
|
|
|
Various Parts - Fleet |
|
|
|
|
|
|
|
|
|
00000506 |
04/10/2006 |
|
|
|
|
|
|
Councillor Terry Loftus |
$199.41 |
|
|
|
|
Councillors Allowance |
|
|
|
|
|
|
|
|
|
00000507 |
11/10/2006 |
|
|
|
|
|
|
AAPT Ltd |
$100.00 |
|
|
|
|
1 x Rate Payer Financial Assistance |
|
|
|
|
|
Australian Manufacturing Workers Union |
$143.10 |
|
|
|
|
Payroll Ded: F/Ending 06/10/06 |
|
|
|
|
|
Australian Services Union |
$1,098.00 |
|
|
|
|
Payroll Ded: F/Ending 06/10/06 |
|
|
|
|
|
Australian Taxation Office PAYG Payments |
$222,229.00 |
|
|
|
|
Payroll Ded: F/Ending 06/10/06 |
|
|
|
|
|
CFMEU WA Branch |
$48.00 |
|
|
|
|
Payroll Ded: F/Ending 06/10/06 |
|
|
|
|
|
Child Support Agency |
$1,248.38 |
|
|
|
|
Payroll Ded: F/Ending 06/10/06 |
|
|
|
|
|
City of Wanneroo - Social Club |
$402.00 |
|
|
|
|
Payroll Ded: F/Ending 06/10/06 |
|
|
|
|
|
Generations Personal Super |
$155.73 |
|
|
|
|
Payroll Ded: F/Ending 06/10/06 |
|
|
|
|
|
HBF Insurance |
$2,420.20 |
|
|
|
|
Payroll Ded: F/Ending 06/10/06 |
|
|
|
|
|
John Scarbrough |
$133.32 |
|
|
|
|
Keyholder Wanneroo Recreation Centre |
|
|
|
|
|
Tennis Booking Officer Wanneroo Showgrounds Court |
|
|
|
|
|
Keyholder Wanneroo Showgrounds & Margaret Cockman |
|
|
|
|
|
Pavilion |
|
|
|
|
|
KW Inns & KF Penno |
$6,284.89 |
|
|
|
|
Reimbursement - Eftpos Fees Sept 06 |
|
|
|
|
|
Reimbursement - Maintenance Expenditure |
|
|
|
|
|
Reimbursement - Management Fees Sept 06 |
|
|
|
|
|
LGRCEU |
$1,291.84 |
|
|
|
|
Payroll Ded: F/Ending 06/10/06 |
|
|
|
|
|
Mr Christopher Hunt |
$111.23 |
|
|
|
|
Fleet Services Safety Awards Presentation Catering Cost |
|
|
|
|
|
Mr Daniel Simms |
$29.94 |
|
|
|
|
Reimbursement Of Phone Rental |
|
|
|
|
|
Mr Robert Elliott |
$68.50 |
|
|
|
|
Reimbursement - Various Items/Services Provided Waste Svcs |
|
|
|
|
|
Ms K Christoffelsz |
$89.00 |
|
|
|
|
Reimbursement - Battery Charger For Multi Media Centre |
|
|
|
|
|
Navigator Applications Account |
$52.37 |
|
|
|
|
Payroll Ded: F/Ending 06/10/06 |
|
|
|
|
|
Robert Jack |
$56.18 |
|
|
|
|
Reimbursement - Premium Petrol Wn32378 Plant 99098 |
|
|
|
|
|
Purchased By Mistake - Infrastructure Maintenance |
|
|
|
|
|
Selectus Salary Packaging |
$7,056.86 |
|
|
|
|
Payroll Ded: F/Ending 06/10/06 |
|
|
|
|
|
Snowbird Gardens Superannuation Fun |
$84.01 |
|
|
|
|
Payroll Ded: F/Ending 06/10/06 |
|
|
|
|
|
Trailer Parts Pty Ltd |
$22.43 |
|
|
|
|
Parts For Fleet Maintenance |
|
|
|
|
|
|
|
|
|
00000508 |
11/10/2006 |
|
|
|
|
|
|
Acrod WA Division |
$16.50 |
|
|
|
|
Acrod Permit Renewal Invoice No 45409 Community Services |
|
|
|
|
|
AHG Paper & Magazine Delivery |
$16.40 |
|
|
|
|
Newspapers Girawheen Library 21/08/06-17/09/06 |
|
|
|
|
|
Allmark & Associates Pty Ltd |
$213.40 |
|
|
|
|
Stamper/Rubber Stamp - Purchasing |
|
|
|
|
|
Amcap Distribution Centre |
$3,124.85 |
|
|
|
|
Spare Parts For Fleet & Stores |
|
|
|
|
|
Armstrong Energy |
$105.27 |
|
|
|
|
Vesconite Flanged Bush - Fleet |
|
|
|
|
|
ARRB Transport Research Ltd |
$212.50 |
|
|
|
|
Sealed Local Roads Manual 2005 Edition - Planning |
|
|
|
|
|
Australian Laboratory Services Pty |
$2,420.00 |
|
|
|
|
Oil Sample Kits - Stores |
|
|
|
|
|
Auto Control Doors |
$199.10 |
|
|
|
|
Repair Door - Mobile Library Yanchep - Building Maintenance |
|
|
|
|
|
BCA Consultants Pty Ltd |
$1,100.00 |
|
|
|
|
Floodlighting Electrical Services Kingsbridge Park & Warradale |
|
|
|
|
|
Reserve - Building Projects |
|
|
|
|
|
Beaurepaires For Tyres |
$12,417.91 |
|
|
|
|
Tyre Fitting Services For Fleet Maintenance |
|
|
|
|
|
Beyondblue |
$2,640.00 |
|
|
|
|
Workplace Training Program 15 & 17 Aug 06 Human Resources |
|
|
|
|
|
BP Australia Ltd |
$5,012.19 |
|
|
|
|
Oil Products For Depot Store Stock |
|
|
|
|
|
Break West Pty Ltd |
$5,271.72 |
|
|
|
|
Dry Hire - Skid Steer Loader 01/08/06 - Waste |
|
|
|
|
|
Bunnings Pty Ltd |
$1,099.75 |
|
|
|
|
Hardware Purchases For Various Departments |
|
|
|
|
|
Bywest Pty Ltd |
$399.74 |
|
|
|
|
Mower Spare Parts - Stores |
|
|
|
|
|
CA Technology Pty Ltd |
$4,840.00 |
|
|
|
|
Interplan Training Handout, V3 Datatbase & Load Template |
|
|
|
|
|
Transfer Spreadsheet - Strategic Projects |
|
|
|
|
|
Carpet Force |
$3,327.50 |
|
|
|
|
Supply/Install Carpet To New Records Area - Building Projects |
|
|
|
|
|
CCI Legal Service Pty Ltd |
$1,207.80 |
|
|
|
|
WAMRBPREU/City Of Wanneroo - S.44 Conference - HR |
|
|
|
|
|
Georgina Stevens/City Of Wanneroo Unfair Dismissal - HR |
|
|
|
|
|
City Of Wanneroo - Underpayment Of Wages - HR |
|
|
|
|
|
Consultancy - Legal Opinions - Human Resources |
|
|
|
|
|
Christopher Young |
$1,300.00 |
|
|
|
|
Photographic Artworks - Cultural Development |
|
|
|
|
|
City Business Machines |
$164.04 |
|
|
|
|
Kyocera Km3530/5530 Toner - It Services |
|
|
|
|
|
Coles Supermarkets Aust Pty Ltd |
$139.64 |
|
|
|
|
Various Items - Community Services |
|
|
|
|
|
Community Newspapers |
$38,658.56 |
|
|
|
|
Advertising For August 2006 |
|
|
|
|
|
Courier Australia |
$186.14 |
|
|
|
|
Courier Services - Various Departments |
|
|
|
|
|
Coventrys |
$446.22 |
|
|
|
|
Various Items - Fleet Maintenance |
|
|
|
|
|
Cutting Edges Pty Ltd |
$671.00 |
|
|
|
|
Spare Parts For Fleet Maintenance |
|
|
|
|
|
DBS Fencing |
$127.60 |
|
|
|
|
Supply Mesh & Hinges Alexander Dr Landsdale - Construction |
|
|
|
|
|
Delta Protective Services |
$141.08 |
|
|
|
|
All That Jazz - Mindarie - 24/09/06 Cultural Development |
|
|
|
|
|
Disarect Australia Pty Ltd |
$4,620.00 |
|
|
|
|
9 Leach Road - Disabled Toilet - Contracts & Property |
|
|
|
|
|
Drive In Electrics |
$1,221.10 |
|
|
|
|
Vehicle Repairs - Fleet Maintenance |
|
|
|
|
|
Dy-Mark (wa) Pty Ltd |
$396.00 |
|
|
|
|
Line Marking White/Yellow - Infrastructure Maintenance |
|
|
|
|
|
Edith Cowan University |
$162.00 |
|
|
|
|
Museum Studies - Barbara Phillips - Wanneroo Museum |
|
|
|
|
|
ERS Australia Pty Ltd |
$220.00 |
|
|
|
|
Callout On Aqueous Parts Washer - Fleet |
|
|
|
|
|
Essential Fire Services Pty Ltd |
$885.50 |
|
|
|
|
Fire Alarm Services For The City |
|
|
|
|
|
Frediani Milk Wholesalers |
$318.90 |
|
|
|
|
Milk Deliveries For The City |
|
|
|
|
|
GC Sales (WA) |
$32,340.00 |
|
|
|
|
Domestic Bins - Waste Services |
|
|
|
|
|
Geoffs Tree Service |
$6,451.50 |
|
|
|
|
Trees Pruned - Marangaroo Golf Course |
|
|
|
|
|
Clearing - Flynn Drive Carramar |
|
|
|
|
|
GHD Management Engineering Environment |
$3,575.00 |
|
|
|
|
AC Installation At Wanneroo Youth Centre - Building Maint |
|
|
|
|
|
Grand Toyota Daihatsu |
$214.25 |
|
|
|
|
30,000Km/1.5Yr Service Wn32198 - Fleet |
|
|
|
|
|
Imprint Plastics |
$64.57 |
|
|
|
|
ID Cards - Environmental Health/Rangers |
|
|
|
|
|
Integrated Group Ltd - Accounts Receivable |
$23,355.52 |
|
|
|
|
Casual Labour For Various Departments |
|
|
|
|
|
Itchy Eyes |
$165.00 |
|
|
|
|
Wanneroo Town Centre Visioning Sessions High Tea |
|
|
|
|
|
17/09/06 - Images Onto Disk - Strategic Projects |
|
|
|
|
|
Jason Chatfield |
$176.00 |
|
|
|
|
Live Caricatures For Staff 01 Sept 2006 - Community Services |
|
|
|
|
|
Joondalup Photo Design |
$495.00 |
|
|
|
|
Photography Town Centre Workshops 13 & 19/09/06 - Strategic |
|
|
|
|
|
Projects |
|
|
|
|
|
Knight & Sons |
$107.80 |
|
|
|
|
Food For Animal Care Centre |
|
|
|
|
|
Kyocera Mita Aust P/L |
$62.30 |
|
|
|
|
Photocopier Meter Reading For Clarkson Library |
|
|
|
|
|
Lawrence & Hanson |
$4,210.51 |
|
|
|
|
Various Items - Waste Services |
|
|
|
|
|
Various Items - Depot Stores |
|
|
|
|
|
MacDonald Johnston Engineering Company Pty Ltd |
$8,439.22 |
|
|
|
|
Vehicle Spare Parts Fleet & Stores |
|
|
|
|
|
Major Motors |
$147.40 |
|
|
|
|
Spare Parts For Fleet Maintenance |
|
|
|
|
|
Mayday Earthmoving |
$12,484.45 |
|
|
|
|
Heavy Equipment Hire For Infrastructure |
|
|
|
|
|
McLeods Barristers & Solicitors |
$1,203.95 |
|
|
|
|
Legal Fees - Application For Suspension Order - Grimshaw |
|
|
|
|
|
Dj - Rates |
|
|
|
|
|
Merriwa Supa IGA |
$257.33 |
|
|
|
|
Groceries For Various Youth Services Programs |
|
|
|
|
|
Mike Geary Signs |
$753.50 |
|
|
|
|
Supply Fit & Remove Advertising Sign Planning Services |
|
|
|
|
|
Red Labes For Ranger Services |
|
|
|
|
|
Mindarie Bus Charter Pty Ltd |
$308.00 |
|
|
|
|
Visit To Fremantle Prison - Community Services Program |
|
|
|
|
|
Modern Teaching Aids Pty Ltd |
$17.38 |
|
|
|
|
Tempera Block Set - Family Day Care |
|
|
|
|
|
Morley Mower Centre |
$13.80 |
|
|
|
|
Vehicle Spare Parts - Fleet Maintenance |
|
|
|
|
|
MTU Detroit Diesel Australia |
$379.28 |
|
|
|
|
Parts For Depot Stores |
|
|
|
|
|
Nick Del Borrello |
$2,227.50 |
|
|
|
|
Contract Labour For Fleet Maintenance |
|
|
|
|
|
Northern Districts Pest Control |
$176.00 |
|
|
|
|
Pest Control Services For The City |
|
|
|
|
|
NP Vietnamese Books |
$287.00 |
|
|
|
|
Magazines For Girrawheen Library |
|
|
|
|
|
Ocean Keys Newsagency |
$506.66 |
|
|
|
|
Newspapers/Periodicals - Girrawheen Library |
|
|
|
|
|
OH & JM Edwards |
$581.90 |
|
|
|
|
Repairs To Speakers On Fire Vehicles |
|
|
|
|
|
Repairs To Phones In Fire Vehicles |
|
|
|
|
|
Optima Press |
$1,229.80 |
|
|
|
|
Printing Info For Dog Owners - Ranger Services |
|
|
|
|
|
OSA Group Pty Ltd |
$10,197.00 |
|
|
|
|
Employee Assistance Program 01/07/06 - 30/06/07 |
|
|
|
|
|
Osborne Park Welding Supplies |
$152.24 |
|
|
|
|
Call Out/Repair Welder - Fleet |
|
|
|
|
|
Party Plus |
$143.46 |
|
|
|
|
Modelling Balloons & Pump - Cultural Development |
|
|
|
|
|
Pax Books |
$598.64 |
|
|
|
|
Book Purchases - Wanneroo Library |
|
|
|
|
|
Phase One Audio |
$1,100.00 |
|
|
|
|
All That Jazz - Mindarie - 24 Sept 06 - Cultural Development |
|
|
|
|
|
Podiatry Services |
$7,455.80 |
|
|
|
|
Podiatry Services For August 2006 |
|
|
|
|
|
Pope Packaging |
$19,800.00 |
|
|
|
|
WPP Bag Printed City Of Wanneroo - Waste Services |
|
|
|
|
|
Protector Alsafe |
$652.61 |
|
|
|
|
Various Items - Depot Stores |
|
|
|
|
|
Various Items - Parks Maintenance |
|
|
|
|
|
Recall Total Information Management |
$306.63 |
|
|
|
|
Courier Charges 27/08/06-23/09/06 - Records |
|
|
|
|
|
Red Hot Parcel Taxi |
$218.53 |
|
|
|
|
Courier Services - Fleet |
|
|
|
|
|
Rinker Australia Pty Ltd |
$1,155.00 |
|
|
|
|
Concrete Products Delivered To St Andrews Dr - Construction |
|
|
|
|
|
Roads 2000 Pty Ltd |
$15,711.08 |
|
|
|
|
Road Works For The City - Infrastructure Projects/Maintenance |
|
|
|
|
|
Rocla Quarry Products |
$473.26 |
|
|
|
|
Fill Sand For Engineering Services |
|
|
|
|
|
Royal Life Saving Society Australia |
$150.00 |
|
|
|
|
Heart Beat Club 12/09/06 (11 Attendees) - Community Services |
|
|
|
|
|
Sanax St Andrews Pharmacy |
$487.44 |
|
|
|
|
First Aid Supplies - Stores |
|
|
|
|
|
Schiavello Wa Pty Ltd |
$177.10 |
|
|
|
|
Office Furniture - Contracts & Property |
|
|
|
|
|
Stampalia Contractors |
$17,696.80 |
|
|
|
|
Heavy Equipment Hire For Infrastructure |
|
|
|
|
|
Stanhope Healthcare Services Pty Lt |
$3,528.59 |
|
|
|
|
Support Services Hacc/Cacp Clients |
|
|
|
|
|
State Library of Western Australia |
$35.20 |
|
|
|
|
Lost/Damaged Book Charges Clarkson Library |
|
|
|
|
|
Stopmaster Brakes |
$523.60 |
|
|
|
|
Front/Rear Brake Relining - Fleet |
|
|
|
|
|
Streetcut WA |
$2,720.30 |
|
|
|
|
Concrete Cutting For Construction |
|
|
|
|
|
Sun City News |
$475.20 |
|
|
|
|
Advertising - Oct 2006 Fire Services |
|
|
|
|
|
Suncity Newsagency |
$35.30 |
|
|
|
|
Paper Delivery Clarkson Library 14/08 - 10/09/06 |
|
|
|
|
|
Sunny Brushware Supplies |
$412.50 |
|
|
|
|
Brooms For Depot Stores |
|
|
|
|
|
Sunny Sign Company |
$338.80 |
|
|
|
|
Directional Name Plates - Infrastructure Planning |
|
|
|
|
|
Sunset coast Tourism Assoc Inc |
$198.00 |
|
|
|
|
Advertising 06/07 Holiday Planner - Quinns Rocks Caravan Park |
|
|
|
|
|
Taldara Industries Pty Ltd |
$465.17 |
|
|
|
|
Various Items - Marketing Services |
|
|
|
|
|
Talkin' Dirty |
$5,101.51 |
|
|
|
|
Vehicle Cleaning - Waste Services |
|
|
|
|
|
Tecsound WA Pty Ltd |
$156.75 |
|
|
|
|
Service Call To Repair Audio Equipment Clarkson Library |
|
|
|
|
|
The Planning Group WA Pty Ltd |
$15,480.21 |
|
|
|
|
Wanneroo Town Centre Structure Plan - Consultancy Fees |
|
|
|
|
|
The Potter's Market |
$172.36 |
|
|
|
|
Assorted Craftware - Cultural Development |
|
|
|
|
|
The Red Book Service |
$660.00 |
|
|
|
|
Web LU Premier - Fleet |
|
|
|
|
|
Total Eden Watering Systems |
$20,637.90 |
|
|
|
|
Reticulation Items - Parks Maintenance |
|
|
|
|
|
Total Road Services |
$756.25 |
|
|
|
|
Traffic Control - Alexander/Greenpark - Infrastructure Maint |
|
|
|
|
|
T-Quip |
$106,903.65 |
|
|
|
|
Vehicle Spare Parts - Fleet Maintenance |
|
|
|
|
|
Vehicle Spare Parts - Depot Stores |
|
|
|
|
|
Visimax |
$923.70 |
|
|
|
|
Stationery For Ranger Services |
|
|
|
|
|
WA Hino Sales & Service |
$365.25 |
|
|
|
|
Vehicle Spare Parts - Fleet |
|
|
|
|
|
WA Kerbing Pty Ltd |
$5,862.45 |
|
|
|
|
Lay Kerbing/Footpath - Rawlinna Parkway Carramar |
|
|
|
|
|
Lay Kerbing/Footpath - Bellebille Gdns & Pensacola |
|
|
|
|
|
WA Local Government Assoc |
$53,444.60 |
|
|
|
|
Association Membership/Services - Office Of The Ceo |
|
|
|
|
|
Tax Service Annual Subscription - Governance |
|
|
|
|
|
Biodiversity Project Contributions - Planning |
|
|
|
|
|
WA Profiling |
$3,944.60 |
|
|
|
|
Profiling Services For Infrastructure Maintenance |
|
|
|
|
|
WA Rangers Association Inc |
$900.00 |
|
|
|
|
Rangers Training Conference Attendees Terry Olden & Clint |
|
|
|
|
|
Walker |
|
|
|
|
|
Wanneroo Electric |
$661.65 |
|
|
|
|
Electrical Maintenance For The City |
|
|
|
|
|
Wanneroo Glass |
$5,360.30 |
|
|
|
|
Supply/Install Door Basement Admin Centre - Building Projects |
|
|
|
|
|
Wanneroo Hardware |
$1,675.06 |
|
|
|
|
Hardware Purchases For Various Departments |
|
|
|
|
|
Wanneroo Plumbing |
$3,705.06 |
|
|
|
|
Plumbing Services For The City |
|
|
|
|
|
Wanneroo Towing Service |
$121.00 |
|
|
|
|
Towing Abandoned Vehicles - Ranger Services |
|
|
|
|
|
Wanneroo Trophy Shop |
$130.00 |
|
|
|
|
Name Badges For Various Employees |
|
|
|
|
|
West Coast Suspensions |
$3,199.68 |
|
|
|
|
Spare Parts For Fleet Maintenance |
|
|
|
|
|
West Coast TAFE |
$521.58 |
|
|
|
|
Decoration Of External Area At Banksia Grove C/Centre |
|
|
|
|
|
Westcare Industries |
$663.08 |
|
|
|
|
Safety Clothing - Stores |
|
|
|
|
|
Westrac |
$279.66 |
|
|
|
|
Spare Parts For Fleet Maintenance |
|
|
|
|
|
White Oak Home Care Services Pty Ltd |
$12,042.58 |
|
|
|
|
Support Services Hacc/Cacp Clients |
|
|
|
|
|
Work Clobber |
$667.30 |
|
|
|
|
Staff Uniforms For Outside Employees |
|
|
|
|
|
Worldwide Online Printing |
$247.50 |
|
|
|
|
Printing Of Business Cards For Various Employees |
|
|
|
|
|
Wurths Australia Pty Ltd |
$273.73 |
|
|
|
|
Spare Parts For Fleet Maintenance |
|
|
|
|
|
|
|
|
|
00000509 |
12/10/2006 |
|
|
|
|
|
|
Nick Del Borrello |
$1,831.50 |
|
|
|
|
Contract Labour For Fleet Maintenance |
|
|
|
|
|
Zipform |
$4,133.77 |
|
|
|
|
Collection Notices - Rates |
|
|
|
|
|
|
|
|
|
00000510 |
12/10/2006 |
|
|
|
|
|
|
Councillor Tracey Roberts |
$1,517.30 |
|
|
|
|
Travel Allowance July, Aug & Sept 2006 |
|
|
|
|
|
|
|
|
|
00000511 |
18/10/2006 |
|
|
|
|
|
|
Australian Taxation Office PAYG Payments |
$7,665.00 |
|
|
|
|
Payroll Ded: Non Cycle Pay |
|
|
|
|
|
Beatrix Rausch |
$83.32 |
|
|
|
|
Keyholder Oct06 Oldham Parks/St Andrews Clubrooms/Kiosk |
|
|
|
|
|
Phil Renkin Rec. Centre |
|
|
|
|
|
Crosbie & Duncan Golf |
$26,658.01 |
|
|
|
|
Golf Course Commission Fees Sept06 Carramar |
|
|
|
|
|
Duncan & Crosbie Pro Golf WA Pty Ltd |
$16,628.63 |
|
|
|
|
Golf Course Commissions Sept06 Marangaroo |
|
|
|
|
|
FESA |
$5,218.69 |
|
|
|
|
50% Cost Share Community Fire Manager 28/7-31/8/06 |
|
|
|
|
|
Generations Personal Super |
$156.50 |
|
|
|
|
Payroll Ded: F/E 28/07/06 |
|
|
|
|
|
Joe Arrigo |
$91.66 |
|
|
|
|
Tennis Booking/Keyholder Oct06 Elliott Rd Courts/Wanneroo |
|
|
|
|
|
Comm.Centre |
|
|
|
|
|
John Scarbrough |
$133.32 |
|
|
|
|
Tennis Booking/Keyholder Oct06 Wanneroo Rec/Showgrounds |
|
|
|
|
|
Margaret Cockman Pavilion |
|
|
|
|
|
Judith Sims |
$141.66 |
|
|
|
|
Key Holder & Tennis B/Officer Oct06 Gumblossom Cc |
|
|
|
|
|
Gumblossom Courts Belport Courts |
|
|
|
|
|
Mr Christopher Hunt |
$181.58 |
|
|
|
|
Gift & Farewell Drinks Wayne Rees |
|
|
|
|
|
Mr Rudolf Schiller |
$83.32 |
|
|
|
|
Keyholder Oct 06 Clarkson Youth Centre |
|
|
|
|
|
Anthony Waring Clubroom & Park |
|
|
|
|
|
Ms Deanne Hetherington |
$174.98 |
|
|
|
|
Tennis Booking/Key Holder Oct06 Hudson Park |
|
|
|
|
|
Cabrini & Blackmore Park Liddell Parks |
|
|
|
|
|
Girrawheen/Koondoola Senior Citizens Centre |
|
|
|
|
|
Ms Hazel Owen |
$41.66 |
|
|
|
|
Key Holder Warradale Comm.Hall |
|
|
|
|
|
Peggy Brown |
$83.32 |
|
|
|
|
Key Holder Oct06 Jenolan Way Comm. Centre |
|
|
|
|
|
Addison Park & Clubrooms |
|
|
|
|
|
Wayne Wright |
$419.58 |
|
|
|
|
Reimbursements Telephone Rental Mar/Sep06 |
|
|
|
|
|
Reimbursement For Wireless Router & Internet Oct06 |
|
|
|
|
|
|
|
|
|
00000512 |
18/10/2006 |
|
|
|
|
|
|
Australia Post |
$36,171.22 |
|
|
|
|
Billpay Transaction Fee Sept 06 - Rates |
|
|
|
|
|
Postage Charges - Sep 2006 |
|
|
|
|
|
Mail Preparation September 2006 |
|
|
|
|
|
|
|
|
|
00000513 |
18/10/2006 |
|
|
|
|
|
|
Councillor Alan Blencowe |
$583.33 |
|
|
|
|
Monthly Allowance |
|
|
|
|
|
Councillor Brett Treby |
$583.33 |
|
|
|
|
Monthly Allowance |
|
|
|
|
|
Councillor Glynis Monks |
$583.33 |
|
|
|
|
Monthly Allowance |
|
|
|
|
|
Councillor Ian Goodenough |
$583.33 |
|
|
|
|
Monthly Allowance |
|
|
|
|
|
Councillor Laura Gray |
$583.33 |
|
|
|
|
Monthly Allowance |
|
|
|
|
|
Councillor Mark Pearson |
$583.33 |
|
|
|
|
Monthly Allowance |
|
|
|
|
|
Councillor Rudi Steffens |
$583.33 |
|
|
|
|
Monthly Allowance |
|
|
|
|
|
Councillor Terry Loftus |
$583.33 |
|
|
|
|
Monthly Allowance |
|
|
|
|
|
Councillor Tracey Roberts |
$583.33 |
|
|
|
|
Monthly Allowance |
|
|
|
|
|
Mayor J Kelly |
$5,666.67 |
|
|
|
|
Mayoral Allowance |
|
|
|
00000514 |
18/10/2006 |
|
|
|
|
|
|
Aarons Florist |
$75.00 |
|
|
|
|
Flowers - Funeral Spray - Office Of The Mayor |
|
|
|
|
|
Actimed Australia |
$176.61 |
|
|
|
|
Podiatry Clinic Items - Community Services |
|
|
|
|
|
Allied Air Contractors Pty Ltd |
$5,588.00 |
|
|
|
|
Supply/Install Air Conditioning Unit - Civic Centre - Projects |
|
|
|
|
|
Amcap Distribution Centre |
$470.47 |
|
|
|
|
Vehicle Spare Parts - Depot Store Stock |
|
|
|
|
|
Anitech |
$552.20 |
|
|
|
|
Bond Core Paper - Infrastructure Projects |
|
|
|
|
|
Armaguard |
$2,077.04 |
|
|
|
|
Cash Collection Services For The City |
|
|
|
|
|
Arrow Pressure Wash |
$467.50 |
|
|
|
|
Install Overhead Track - Test/Replace Pressure Hose - Fleet |
|
|
|
|
|
Australian Airconditioning Services Pty Ltd |
$4,415.38 |
|
|
|
|
Airconditioning Services For The City |
|
|
|
|
|
Australian Copyright Council |
$80.00 |
|
|
|
|
Libraries: The Internet & Your Clients - Clarkson Library |
|
|
|
|
|
Australian Institute of Management |
$11,066.00 |
|
|
|
|
Training Services Provided To The City - Human Resources |
|
|
|
|
|
Australian Turf Industries |
$237.60 |
|
|
|
|
Pick Up Sticks & Rake New Work 14/09/06 - Marangaroo Golf |
|
|
|
|
|
Course |
|
|
|
|
|
Beaurepaires For Tyres |
$7,003.39 |
|
|
|
|
Tyre Fitting Services For Fleet Maintenance |
|
|
|
|
|
Belair Smash Repairs Pty Ltd |
$500.00 |
|
|
|
|
Insurance Excess - Wn32374 - Insurance Services |
|
|
|
|
|
Boral Construction Materials Group Ltd |
$565.93 |
|
|
|
|
Various Materials Delivered For Infrastructure Maintenance |
|
|
|
|
|
Bounce Away |
$181.50 |
|
|
|
|
Supervised Bouncer (Mindarie) - Cultural Development |
|
|
|
|
|
Budget Portables |
$763.62 |
|
|
|
|
Material Hire Cnr Alexander Dr/Kingsway Rd - 1-30 Sept 06 |
|
|
|
|
|
Bunnings Pty Ltd |
$147.39 |
|
|
|
|
Hardware Purchases For Various Departments |
|
|
|
|
|
Caris Gibson |
$120.00 |
|
|
|
|
MC For City Of Wanneroo 15/10/06 - Cultural Development |
|
|
|
|
|
Catalyse Pty Ltd |
$2,750.00 |
|
|
|
|
Understanding Stakeholders Needs & Expectations For The |
|
|
|
|
|
Warradale Community Centre Initial 50% Of Fees - Infras. |
|
|
|
|
|
Maintenance |
|
|
|
|
|
Centreline Markings |
$330.00 |
|
|
|
|
Marking Out Car Park Carramar - Infrastructure Projects |
|
|
|
|
|
Challenger TAFE |
$133.20 |
|
|
|
|
Semester 2 2006 Cert III Parks & Gardens - Parks Andrew |
|
|
|
|
|
Bozyle |
|
|
|
|
|
Chef Excel Pty Ltd |
$2,092.20 |
|
|
|
|
Catering Services For Council Functions |
|
|
|
|
|
Cherry's Catering |
$3,579.70 |
|
|
|
|
Catering Services For Council Functions |
|
|
|
|
|
Chicken Treat |
$16.00 |
|
|
|
|
Catering For Lake Carabooda Fire - Fire Services |
|
|
|
|
|
City Business Machines |
$875.06 |
|
|
|
|
Various Items For IT |
|
|
|
|
|
Coles Supermarkets Aust Pty Ltd |
$209.16 |
|
|
|
|
Various Items - Community Services |
|
|
|
|
|
Communique Wangara |
$375.00 |
|
|
|
|
Nokia 6235 - Fire Services |
|
|
|
|
|
Contek Communications |
$8,069.79 |
|
|
|
|
Alexander Dr Near Queensway Landsdale - Projects |
|
|
|
|
|
Coventrys |
$1,047.90 |
|
|
|
|
Spare Parts For Fleet & Stores |
|
|
|
|
|
Dark Light Pty Ltd |
$140.00 |
|
|
|
|
Games Only X 14 - Youth Services |
|
|
|
|
|
Dean Guja |
$1,900.00 |
|
|
|
|
Environmental Health Work 18.09-22.09.06 |
|
|
|
|
|
Dexion Balcatta |
$10.56 |
|
|
|
|
Stationery Items - Human Resources |
|
|
|
|
|
Diesels Plus |
$188.87 |
|
|
|
|
Spare Parts For Fleet Maintenance |
|
|
|
|
|
E'Co Australia Ltd |
$266.20 |
|
|
|
|
Industrial Wiping Rags - Stores |
|
|
|
|
|
Elliotts Irrigation Pty Ltd |
$2,373.36 |
|
|
|
|
Reticulation Items - Parks |
|
|
|
|
|
Estate Landscape Maintenance (E.L.M |
$5,604.50 |
|
|
|
|
Landscape Maintenance Mindarie Lifesaving Club Sept 06 |
|
|
|
|
|
Landscape Maintenance Butler Sept 06 - Parks |
|
|
|
|
|
Foodlink Food Service |
$461.76 |
|
|
|
|
Food/Beverages - All Areas/Stores |
|
|
|
|
|
Frediani Milk Wholesalers |
$354.26 |
|
|
|
|
Milk Deliveries For The City |
|
|
|
|
|
Galvins Plumbing Plus |
$72.63 |
|
|
|
|
Hose Clips/Wood Saw Blades - Parks |
|
|
|
|
|
GC Sales (WA) |
$64,680.00 |
|
|
|
|
Domestic Bins - Waste Services |
|
|
|
|
|
Geoffs Tree Service |
$6,237.55 |
|
|
|
|
Tree Services For The City |
|
|
|
|
|
Gronbek Security |
$246.95 |
|
|
|
|
Lockwood Twins - Building Maintenance |
|
|
|
|
|
Gymcare |
$582.62 |
|
|
|
|
Gym Maintenance - Aquamotion |
|
|
|
|
|
Hallmark Editions |
$330.00 |
|
|
|
|
Subscription Renewal Feb-Dec 2007 - Office Of CEO |
|
|
|
|
|
Hitachi Construction Machinery Pty Ltd |
$1,182.04 |
|
|
|
|
Vehicle Filters For Depot Store |
|
|
|
|
|
Home Chef |
$772.68 |
|
|
|
|
Meals For Hacc/Cacp Clients |
|
|
|
|
|
Imtrade Australia Pty Ltd |
$1,740.86 |
|
|
|
|
Chemag Envirospray - Parks |
|
|
|
|
|
Integrated Group Ltd - Accounts Receivable |
$9,231.49 |
|
|
|
|
Casual Labour For Fleet Maintenance |
|
|
|
|
|
Internet Technology Corp Pty Ltd |
$155.00 |
|
|
|
|
Adobe Photoshop Elements - It Services |
|
|
|
|
|
Jason Chatfield |
$484.00 |
|
|
|
|
Live Caricatures - Dog's Breakfast 15/10/06 Cultural |
|
|
|
|
|
Development |
|
|
|
|
|
KAB Seating Systems |
$99.00 |
|
|
|
|
Spare Parts For Fleet Maintenance |
|
|
|
|
|
Kangaroo Educational Pty Ltd |
$918.94 |
|
|
|
|
Childrens Toys - Family Day Care |
|
|
|
|
|
Ladybirds Plant Hire |
$157.30 |
|
|
|
|
Rental - Indoor Plants Sept 2006 - Customer Relations |
|
|
|
|
|
MacDonald Johnston Engineering Company Pty Ltd |
$605.14 |
|
|
|
|
Vehicle Spare Parts - Stores |
|
|
|
|
|
Mayday Earthmoving |
$33,865.70 |
|
|
|
|
Heavy Equipment Hire For The City |
|
|
|
|
|
Medical Hand |
$2,525.60 |
|
|
|
|
Immunisation School/Clinics Program - Health Services |
|
|
|
|
|
Memo Communications |
$738.43 |
|
|
|
|
De & Install Twoway Radios - Fleet |
|
|
|
|
|
Mercury Firesafety Pty Ltd |
$3,446.30 |
|
|
|
|
Safety Clothing - Fire Services |
|
|
|
|
|
Mercury Technologies |
$5,148.00 |
|
|
|
|
Establish Mast On Wanneroo Civic Centre For Link To Ashby |
|
|
|
|
|
Depot - It Services |
|
|
|
|
|
Merriwa Chinese Restaurant |
$83.00 |
|
|
|
|
Catering - Lake Carabooda Fire - Fire Services |
|
|
|
|
|
Merriwa Supa IGA |
$29.81 |
|
|
|
|
Groceries - Community Services |
|
|
|
|
|
Mirco Bros Pty Ltd |
$460.60 |
|
|
|
|
Various Items - Bush Links |
|
|
|
|
|
Mobile Glass |
$836.32 |
|
|
|
|
Glazing Services For The City |
|
|
|
|
|
Morley Mower Centre |
$523.60 |
|
|
|
|
Vehicle Spare Parts - Stores |
|
|
|
|
|
Motorlife |
$514.80 |
|
|
|
|
Inox Aerosols - Stores |
|
|
|
|
|
MTU Detroit Diesel Australia |
$94.78 |
|
|
|
|
Bracket-Filter - Fleet |
|
|
|
|
|
National Hire Trading Pty Limited |
$220.23 |
|
|
|
|
Generator Hire 22-23/09/06 - Cultural Development |
|
|
|
|
|
Natural Area Management & Services |
$550.00 |
|
|
|
|
Fauna Report Kingsway Bushland - Bushlinks |
|
|
|
|
|
Nick Del Borrello |
$2,277.00 |
|
|
|
|
Contract Labour For Fleet Maintenance |
|
|
|
|
|
Northern Districts Pest Control |
$264.00 |
|
|
|
|
Pest Control Services For The City |
|
|
|
|
|
Oasis Supa Golf |
$560.00 |
|
|
|
|
Lunch & Supa Golf For Gold Program |
|
|
|
|
|
Ocean Keys Newsagency |
$468.06 |
|
|
|
|
Newspapers/Periodicals - Clarkson Library |
|
|
|
|
|
Newspapers/Periodicals - Girrawheen Library |
|
|
|
|
|
Parins |
$500.00 |
|
|
|
|
Insurance Excess - Contracts & Property |
|
|
|
|
|
Peter Wood Pty Ltd |
$1,485.00 |
|
|
|
|
Supply/Instal Dome Toped Pine Bollards - Houghton Car Park |
|
|
|
|
|
PHDsites Pty Ltd |
$228.20 |
|
|
|
|
Nokia 6020 - It Services |
|
|
|
|
|
Pirtek Malaga Pty Ltd |
$1,204.24 |
|
|
|
|
Vehicle Repairs For Fleet Maintenance |
|
|
|
|
|
PJ & CA Contracting |
$16,241.28 |
|
|
|
|
Sandpit Cleaning/Playground Inspections Sept2006 |
|
|
|
|
|
PK Print Pty Ltd |
$1,952.00 |
|
|
|
|
Walking Trail Brochure - Leisure Services |
|
|
|
|
|
Podiatry Services |
$5,936.70 |
|
|
|
|
Podiatry Services Sept 06 - Community Services |
|
|
|
|
|
Power Shield |
$1,386.00 |
|
|
|
|
Powershield Commander - It Services |
|
|
|
|
|
Protector Alsafe |
$221.65 |
|
|
|
|
Various Items - Stores |
|
|
|
|
|
Qualcon Laboratories |
$369.05 |
|
|
|
|
NDM Testing - Kiln Road Carabooda - Projects |
|
|
|
|
|
Asphalt Test - Tumbleweed Road/Pinjar - Projects |
|
|
|
|
|
Quantum Multimedia Communications |
$284.94 |
|
|
|
|
Sms Account - Fire Services |
|
|
|
|
|
Quickcopy Audio Services |
$109.01 |
|
|
|
|
Presentation Material - Clarkson Library |
|
|
|
|
|
Raeco International Pty Ltd |
$355.19 |
|
|
|
|
Book Purchases - Clarkson Library |
|
|
|
|
|
RB Primrose |
$32.50 |
|
|
|
|
Frontline Policing Book - Girrawheen Library |
|
|
|
|
|
RCG Pty Ltd |
$1,115.03 |
|
|
|
|
Landfill - Quinns - Infrastructure Projects |
|
|
|
|
|
Reclaim Industries Ltd |
$1,265.00 |
|
|
|
|
Repairs To Vibraflex Surfacing - Sandow Park Parks |
|
|
|
|
|
Repco - Bayswater |
$442.65 |
|
|
|
|
Clutch Kit Overhaul 96001 - Fleet |
|
|
|
|
|
Rinker Australia Pty Ltd |
$4,533.48 |
|
|
|
|
Construction Materials Delivered For Infrastructure Maintenance |
|
|
|
|
|
Road Safety Shop |
$752.95 |
|
|
|
|
Symbolic Workmen/Swing Stand - Infrastructure Maintenance |
|
|
|
|
|
Sign Legs - Infrastructure Projects |
|
|
|
|
|
Roads 2000 Pty Ltd |
$54,012.20 |
|
|
|
|
Roadworks For The City |
|
|
|
|
|
Royal Life Saving Society Australia |
$1,700.00 |
|
|
|
|
Senior First Aid Course (Group) - 19-20/09/06 HR |
|
|
|
|
|
First Aid Services A Dogs Breakfast 15/10/06 - Community |
|
|
|
|
|
Event |
|
|
|
|
|
Russell Landscaping WA Pty Ltd |
$19,402.49 |
|
|
|
|
Landscaping - Seatrees Estates 18/09/06 Parks |
|
|
|
|
|
Landscaping - Yanchep/Two Rocks - Sept06 |
|
|
|
|
|
Landscaping - Charnwood Park/Yanchep/Two Rocks 8 & |
|
|
|
|
|
25/09/06 |
|
|
|
|
|
Schiavello Wa Pty Ltd |
$13,907.30 |
|
|
|
|
Office Furniture - Vertical Tambour Unit - Finance |
|
|
|
|
|
Office Furniture - Basement - Infrastructure Projects |
|
|
|
|
|
Schindler Lifts Aust Pty Ltd |
$979.29 |
|
|
|
|
Lift Service 01-30 Sept 06 - Building Maintenance |
|
|
|
|
|
Lift Service Aug 06 - Building Maintenance |
|
|
|
|
|
Lift Service Oct 2006 - Building Maintenance |
|
|
|
|
|
Sealanes |
$153.78 |
|
|
|
|
Food/Beverages - Fire Services |
|
|
|
|
|
Sign A Rama |
$1,043.35 |
|
|
|
|
Signage Material - Contracts & Property |
|
|
|
|
|
Solver Paints |
$411.36 |
|
|
|
|
Paint Supplies - Building Maintenance |
|
|
|
|
|
Sports Turf Technology Pty Ltd |
$1,485.00 |
|
|
|
|
Turf Consultancy Services Sept06 - Parks |
|
|
|
|
|
Stampalia Contractors |
$12,042.80 |
|
|
|
|
Heavy Equipment Hire For The City |
|
|
|
|
|
Stanhope Healthcare Services Pty Lt |
$4,178.63 |
|
|
|
|
Support Services Hacc/Cacp Clients |
|
|
|
|
|
State Library of Western Australia |
$2,606.26 |
|
|
|
|
Lost/Damaged Book Charges - Library Services |
|
|
|
|
|
Statewide Cleaning Supplies Pty Ltd |
$5,010.99 |
|
|
|
|
Cleaning Supplies For Depot Store |
|
|
|
|
|
Cleaning Supplies For Hospitality/Marketing |
|
|
|
|
|
Stewarts Laundry Service |
$427.48 |
|
|
|
|
Laundry Services For Hospitality |
|
|
|
|
|
Stirling Irrigation |
$712.80 |
|
|
|
|
Flow Switch Longfin Yanchep - Parks |
|
|
|
|
|
Stopmaster Brakes |
$937.20 |
|
|
|
|
Front/Rear Brake Relining - Fleet |
|
|
|
|
|
Street Talk Entertainment |
$506.00 |
|
|
|
|
Entertainment For Dogs Breakfast 15/10/06 - Community Event |
|
|
|
|
|
Sunny Brushware Supplies |
$786.50 |
|
|
|
|
Tennant Brooms - Fleet Maintenance |
|
|
|
|
|
Sunny Sign Company |
$7,716.12 |
|
|
|
|
Directional Sign - Martial Arts - Traffic Services |
|
|
|
|
|
High Street Name - Physiotherapist - Traffic Services |
|
|
|
|
|
Highstreet Name - Marmion Avenue - Traffic Services |
|
|
|
|
|
Roads To Recovery Signs - Infrastructure Projects Construction |
|
|
|
|
|
Set Of St Name Plates - Infrastructure Maintenance |
|
|
|
|
|
Wedges/No Motorcycles - Infrastructure Maintenance |
|
|
|
|
|
Roads To Recovery - Infrastructure Projects Construction |
|
|
|
|
|
Traffic Cones - Infrastructure Projects Construction |
|
|
|
|
|
Directional - Tavern - Traffic Services |
|
|
|
|
|
Supersealing Pty Ltd |
$770.00 |
|
|
|
|
Crack Seal - Birnam Ct/Russley Gr - Infrastructure Projects |
|
|
|
|
|
Switch Tech Industries Pty Ltd |
$21,457.70 |
|
|
|
|
Install Streetlights - Houghton Park - Infrastructure Projects |
|
|
|
|
|
Table Eight |
$518.10 |
|
|
|
|
Corporate Clothing For Employees |
|
|
|
|
|
Taldara Industries Pty Ltd |
$412.50 |
|
|
|
|
Various Items - All Areas/Stores |
|
|
|
|
|
Technical Irrigation Imports |
$3,044.58 |
|
|
|
|
Irrigation Supplies For The City |
|
|
|
|
|
The Pursuits Group |
$2,699.04 |
|
|
|
|
Support Services Hacc/Cacp Clients |
|
|
|
|
|
Toll Transport Pty Ltd |
$302.24 |
|
|
|
|
Courier Services - Various Departments |
|
|
|
|
|
Total Eden Watering Systems |
$590.10 |
|
|
|
|
Reticulation Items - Parks |
|
|
|
|
|
Total Road Services |
$343.20 |
|
|
|
|
Traffic Control - Pensacola/Burnett 16/09/06 |
|
|
|
|
|
T-Quip |
$768.75 |
|
|
|
|
Vehicle Spare Parts - Depot Stores |
|
|
|
|
|
Vibra Industrial Filtration Australia |
$84.70 |
|
|
|
|
Clean Air Filter - Stores |
|
|
|
|
|
WA Hino Sales & Service |
$401.00 |
|
|
|
|
Vehicle Spare Parts - Fleet |
|
|
|
|
|
WA Kerbing Pty Ltd |
$2,131.03 |
|
|
|
|
Lay Kerbing/Footpath - Neerabup Rd Clarkson |
|
|
|
|
|
WA Local Government Assoc |
$23,084.08 |
|
|
|
|
Advertising - September 2006 |
|
|
|
|
|
Wanneroo Agricultural Machinery |
$194.61 |
|
|
|
|
Various Parts - Stores |
|
|
|
|
|
Wanneroo Business Association |
$16,500.00 |
|
|
|
|
Sponsorship 2006/2007 - Economic Development |
|
|
|
|
|
Wanneroo Electric |
$283.44 |
|
|
|
|
Electrical Maintenance For The City |
|
|
|
|
|
Wanneroo Hardware |
$313.75 |
|
|
|
|
Hardware Purchases For Various Departments |
|
|
|
|
|
Wanneroo Plumbing |
$3,605.26 |
|
|
|
|
Plumbing Services For The City |
|
|
|
|
|
Wanneroo Towing Service |
$935.00 |
|
|
|
|
Towing Abandoned Vehicles - Ranger Services |
|
|
|
|
|
Wanneroo Trophy Shop |
$126.50 |
|
|
|
|
Custom Stamp & Pad - Libraries |
|
|
|
|
|
Water Bore Redevelopers Pty Ltd |
$242.00 |
|
|
|
|
Chemical Dose Bore - Kingsway Cricket Grounds - Parks |
|
|
|
|
|
Weed Safe Pty Ltd |
$3,245.00 |
|
|
|
|
Weed Control - Gumblossum Park - Parks |
|
|
|
|
|
Wendy Carew |
$25.00 |
|
|
|
|
Purchase Of Book - Clarkson Library |
|
|
|
|
|
White Oak Home Care Services Pty Ltd |
$4,449.77 |
|
|
|
|
Support Services Hacc/Cacp Clients |
|
|
|
|
|
Woodhouse Legal |
$1,126.40 |
|
|
|
|
Badminton Association Of Wa Inc - Termination Subleases For |
|
|
|
|
|
Contracts & Property |
|
|
|
|
|
YMCA Youth Headquarters |
$660.00 |
|
|
|
|
Summer Skate Series - Community Services |
|
|
|
|
|
|
|
|
|
00000515 |
25/10/2006 |
|
|
|
|
|
|
AHG Paper & Magazine Delivery |
$16.40 |
|
|
|
|
Newspapers For Girrawheen Library |
|
|
|
|
|
Air Liquide WA Pty Ltd |
$348.27 |
|
|
|
|
Gas Cylinder Hire - Fleet |
|
|
|
|
|
A-Line Brick Paving |
$4,433.00 |
|
|
|
|
Brick Paving Services For Infrastructure Projects |
|
|
|
|
|
Allight Pty Ltd |
$19.18 |
|
|
|
|
Spare Parts For Fleet Maintenance |
|
|
|
|
|
Allmark & Associates Pty Ltd |
$161.70 |
|
|
|
|
Rubber Stamps - Girrawheen Library |
|
|
|
|
|
Ambit Industries Pty Ltd |
$2,117.50 |
|
|
|
|
Remove/Relocate Fencing Anthony Waring Park Parks |
|
|
|
|
|
Arrow Pressure Wash |
$2,007.50 |
|
|
|
|
Supply/Fit New Parts To Burner - Fleet |
|
|
|
|
|
Austral Waste Recycling (WA) Pty Lt |
$63,420.21 |
|
|
|
|
Recycling Sorting Costs - Waste |
|
|
|
|
|
Australian Airconditioning Services Pty Ltd |
$8,997.65 |
|
|
|
|
Airconditioning Services For The City |
|
|
|
|
|
Australian Plant Wholesalers |
$283.80 |
|
|
|
|
Native Seedlings - Marketing |
|
|
|
|
|
Beaurepaires For Tyres |
$2,445.44 |
|
|
|
|
Tyre Fitting Services - Fleet Maintenance |
|
|
|
|
|
Belair Smash Repairs Pty Ltd |
$500.00 |
|
|
|
|
Insurance Excess - Wn323430 99022 |
|
|
|
|
|
Benara Nurseries |
$1,498.48 |
|
|
|
|
Plants - Parks |
|
|
|
|
|
Beryl Weston |
$60.00 |
|
|
|
|
Cleaning Of Hall - Aboriginal Seniors |
|
|
|
|
|
Bladon WA Pty Ltd |
$550.00 |
|
|
|
|
White Rulers For Citizenship Ceremonies |
|
|
|
|
|
Boral Construction Materials Group Ltd |
$230.34 |
|
|
|
|
Concrete Products Delivered For Infrastructure Maintenance |
|
|
|
|
|
Break West Pty Ltd |
$4,612.75 |
|
|
|
|
Hire Skid Steer Loader - 01/09/06-29/09/06 - Waste |
|
|
|
|
|
Bring Couriers |
$448.57 |
|
|
|
|
Courier Services - Health Services |
|
|
|
|
|
Budget Portables |
$332.64 |
|
|
|
|
Equip Hire At 59 Alexander Dr Landsdale 1/9-30/9/06 |
|
|
|
|
|
Bywest Pty Ltd |
$78.02 |
|
|
|
|
Mower Spare Parts - Fleet |
|
|
|
|
|
CBC Bearings WA Pty Ltd |
$42.46 |
|
|
|
|
Bearing Unit Plant 198195 - Fleet |
|
|
|
|
|
City Business Machines |
$112.45 |
|
|
|
|
M450 Answering Machine - It Services |
|
|
|
|
|
D-Link Wireless Lan Pci Adaptor - It Services |
|
|
|
|
|
Civica Pty Ltd |
$83,831.00 |
|
|
|
|
Bank Rec Implementation - Finance |
|
|
|
|
|
Bank Rec Module - Finance |
|
|
|
|
|
Spydus Library Services Software - It Services |
|
|
|
|
|
Clean Sweep |
$2,409.00 |
|
|
|
|
Road Sweeping Services For The City |
|
|
|
|
|
Coates Hire Operations Pty Ltd |
$1,046.26 |
|
|
|
|
Multi Purpose Building Hire - Projects Construction |
|
|
|
|
|
Container Hire - Projects Construction |
|
|
|
|
|
Coles Supermarkets Aust Pty Ltd |
$125.21 |
|
|
|
|
Various Items - Hainsworth Youth Programs |
|
|
|
|
|
Concept Media |
$341.77 |
|
|
|
|
Advertising - Step Back In Time - Libraries |
|
|
|
|
|
Coventrys |
$456.03 |
|
|
|
|
Various Items - Fleet |
|
|
|
|
|
Various Items - Stores |
|
|
|
|
|
DBS Fencing |
$2,860.00 |
|
|
|
|
Fencing Works At Buckingham House Wanneroo - Parks |
|
|
|
|
|
Replace Wire To Cricket Nets - Parks |
|
|
|
|
|
Dowsing Concrete |
$23,460.01 |
|
|
|
|
Lay Concrete At Various Sites - Projects |
|
|
|
|
|
E & MJ Rosher |
$153.10 |
|
|
|
|
Vehicle Spare Parts - Fleet |
|
|
|
|
|
Eclipse Resources Pty Ltd |
$7,001.12 |
|
|
|
|
Disposal Of Rubble - Operations |
|
|
|
|
|
Elliotts Irrigation Pty Ltd |
$82.50 |
|
|
|
|
Reticulation Items - Parks |
|
|
|
|
|
Environmental Jobs Network |
$99.00 |
|
|
|
|
Advertising Credit For HR |
|
|
|
|
|
Essential Fire Services Pty Ltd |
$1,452.00 |
|
|
|
|
Removed 4 Detectors Ashby Building 3 |
|
|
|
|
|
Investigate Feedback On PA At Front Of Library Desk Clarkson |
|
|
|
|
|
Check/Repair/Replace HPA Cockman House |
|
|
|
|
|
Events Industry Assoc |
$60.00 |
|
|
|
|
Seminar Legal Rights And Responsibilities 10/10/06 A McIntosh |
|
|
|
|
|
Fencemakers |
$1,425.00 |
|
|
|
|
Supply/Install Fence/Gate Hainsworth Reserve |
|
|
|
|
|
Foodlink Food Service |
$206.15 |
|
|
|
|
Food/Beverages - Hospitality/Marketing |
|
|
|
|
|
Frediani Milk Wholesalers |
$711.08 |
|
|
|
|
Milk Deliveries For The City |
|
|
|
|
|
GC Sales (WA) |
$64,680.00 |
|
|
|
|
1400 X Domestic Waste Bins - Waste Services |
|
|
|
|
|
GEAC Computers Pty Ltd |
$3,300.00 |
|
|
|
|
Initial Data Extraction - It Services |
|
|
|
|
|
Geoffs Tree Service |
$1,834.25 |
|
|
|
|
Prune Trees - Taywood Drive Wanneroo |
|
|
|
|
|
GHD Management Engineering Environment |
$14,396.25 |
|
|
|
|
Building Services Consultancy - Building Maintenance |
|
|
|
|
|
Depot Training Room Ac Installation - Building Maintenance |
|
|
|
|
|
Banksia Grove Community Centre - AC Installation |
|
|
|
|
|
Wanneroo Youth Centre - AC Installation Building Maintenance |
|
|
|
|
|
Marangaroo Dr/The Ave-Design Doc & Contract Admin |
|
|
|
|
|
Infrastructure Projects |
|
|
|
|
|
Globe Australia Pty Ltd |
$649.00 |
|
|
|
|
Envirodye - Parks Department |
|
|
|
|
|
Graffiti Systems Australia |
$3,730.10 |
|
|
|
|
Graffiti Removal Various Locations |
|
|
|
|
|
Grand Toyota Daihatsu |
$1,288.00 |
|
|
|
|
Various Vehicle Services - Fleet Maintenance |
|
|
|
|
|
Repair Body Wn31802 - Fleet/Contracts - Insurance |
|
|
|
|
|
Heavy Automatics |
$3,823.60 |
|
|
|
|
Overhaul - Sweeper 98168 - Fleet |
|
|
|
|
|
Hitachi Construction Machinery Pty Ltd |
$196.20 |
|
|
|
|
Vehicle Filters For Depot Store |
|
|
|
|
|
Home Chef |
$368.53 |
|
|
|
|
Meals For Hacc/Cacp Clients |
|
|
|
|
|
Homecare Options |
$4,385.99 |
|
|
|
|
Support Services Hacc/Cacp Clients |
|
|
|
|
|
Icon Office Technology |
$6.60 |
|
|
|
|
Waste Toner Cartridge - Aquamotion |
|
|
|
|
|
ID Consulting Pty Ltd |
$12,936.00 |
|
|
|
|
Forcast Second Instalment - Strategic Projects |
|
|
|
|
|
Mapping Completion - CEO's Office |
|
|
|
|
|
Mapping Commencement Fee - CEO's Office |
|
|
|
|
|
Integrated Group Ltd - Accounts Receivable |
$24,085.83 |
|
|
|
|
Casual Labour For Various Departments |
|
|
|
|
|
Intercity Office Partitioning |
$6,105.00 |
|
|
|
|
Install New Ceiling To Training Room - Building Maintenance |
|
|
|
|
|
Jtagz Pty Ltd |
$1,080.92 |
|
|
|
|
Dog Tags For Ranger Services |
|
|
|
|
|
Kelyn Training Services |
$785.00 |
|
|
|
|
Traffic Management Course 11/09/06 - Planning |
|
|
|
|
|
Advanced Traffic Management Course 13-15/09/06 For |
|
|
|
|
|
Infrastructure Planning |
|
|
|
|
|
Knight & Sons |
$145.80 |
|
|
|
|
Animal Foodstuffs - Rangers |
|
|
|
|
|
Kyocera Mita Aust P/L |
$41.29 |
|
|
|
|
Photocopier Meter Reading - Finance |
|
|
|
|
|
L & T Venables |
$7.60 |
|
|
|
|
Spare Parts For Fleet Maintenance |
|
|
|
|
|
Lawrence & Hanson |
$462.00 |
|
|
|
|
Various Items - Parks |
|
|
|
|
|
Logo Appointments |
$345.19 |
|
|
|
|
Casual Labour - Luff, P - Parks Coordinator - Parks |
|
|
|
|
|
MacDonald Johnston Engineering Company Pty Ltd |
$223.09 |
|
|
|
|
Vehicle Spare Parts - Depot Store |
|
|
|
|
|
Mayday Earthmoving |
$21,687.05 |
|
|
|
|
Heavy Equipment Hire For The City |
|
|
|
|
|
McLeods Barristers & Solicitors |
$738.65 |
|
|
|
|
Legal Fees - Double Decker Bus - Whether Commercial |
|
|
|
|
|
Vehicle - Planning Services |
|
|
|
|
|
Mercury Technologies |
$2,860.00 |
|
|
|
|
Replace Radio On Yachep Mast For Two Rocks Links - It |
|
|
|
|
|
Mindarie Bus Charter Pty Ltd |
$264.00 |
|
|
|
|
Site Inspections Yanchep/Two Rocks - Projects |
|
|
|
|
|
Miracle Recreation Equipment Pty Ltd |
$1,606.00 |
|
|
|
|
Playground Equipment For Parks |
|
|
|
|
|
Mobile Glass |
$1,757.77 |
|
|
|
|
Glazing Services For Building Maintenance |
|
|
|
|
|
Morley Mower Centre |
$79.30 |
|
|
|
|
Vehicle Spare Parts - Fleet |
|
|
|
|
|
MP Rogers & Associates Pty Ltd |
$3,910.50 |
|
|
|
|
Professional Fees Quinns Beach Sand Nourishment 06 |
|
|
|
|
|
Infrastructure Projects |
|
|
|
|
|
Northern Districts Pest Control |
$1,222.00 |
|
|
|
|
Pest Control Services For The City |
|
|
|
|
|
Ocean Keys Newsagency |
$403.96 |
|
|
|
|
Newspapers/Periodicals - Girrawheen Library |
|
|
|
|
|
Onesteel Distribution |
$92.40 |
|
|
|
|
Steel Suppliers - Fleet Services |
|
|
|
|
|
Paula Hart |
$275.00 |
|
|
|
|
Artist Fees - Cultural Development |
|
|
|
|
|
Peter Hunt Architect |
$83,001.80 |
|
|
|
|
Aquamotion - Professional Fee Claim No 1 - Leisure |
|
|
|
|
|
Pirtek Malaga Pty Ltd |
$155.28 |
|
|
|
|
Grease Line - 96019 - Fleet Maintenance |
|
|
|
|
|
Prestige Alarms |
$77.00 |
|
|
|
|
Alarm Services At New Civic Centre |
|
|
|
|
|
Professional Products Of Australia |
$858.00 |
|
|
|
|
Chipper Hire 9&10/10/06 - Parks |
|
|
|
|
|
Hire Wood Chipper - Parks |
|
|
|
|
|
Professional Travel |
$3,534.50 |
|
|
|
|
E Applin & H Gill - Travel - Corporate Services 17 Oct 06 Gold |
|
|
|
|
|
Coast/Sydney - Attending The Civica National User Group |
|
|
|
|
|
Conference |
|
|
|
|
|
Red Hot Parcel Taxi |
$216.94 |
|
|
|
|
Courier Services - Fleet |
|
|
|
|
|
Reekie Property Services |
$74,433.69 |
|
|
|
|
Cleaning Services - August 2006 |
|
|
|
|
|
Repco - Bayswater |
$228.80 |
|
|
|
|
Reline Trailer Brake Shoes - Fleet |
|
|
|
|
|
Rinker Australia Pty Ltd |
$16,150.55 |
|
|
|
|
Construction Materials Delivered To Various Locations |
|
|
|
|
|
Roads 2000 Pty Ltd |
$10,494.00 |
|
|
|
|
Roadworks For The City - Construction |
|
|
|
|
|
Royal Life Saving Society Australia |
$1,320.00 |
|
|
|
|
Senior First Aid 4-5/10/06 Human Resources |
|
|
|
|
|
1st Aid Services Ready Teddy Go 22/10/06 - Community Event |
|
|
|
|
|
RPG Auto Electrics |
$308.00 |
|
|
|
|
Repair Harness 97019 - Fleet |
|
|
|
|
|
Sealanes |
$1,559.07 |
|
|
|
|
Food/Beverages - Hospitality/Marketing |
|
|
|
|
|
Spiers & Sons |
$735.41 |
|
|
|
|
Equipment Hire For Infrastructure Maintenance |
|
|
|
|
|
Stampalia Contractors |
$9,537.00 |
|
|
|
|
Loader - Waste Services |
|
|
|
|
|
Stanhope Healthcare Services Pty Lt |
$2,547.05 |
|
|
|
|
Support Services Hacc/Cacp Clients |
|
|
|
|
|
State Library of Western Australia |
$170.50 |
|
|
|
|
Lost/Damaged Book Charges - Library Services |
|
|
|
|
|
Statewide Cleaning Supplies Pty Ltd |
$371.71 |
|
|
|
|
Cleaning Supplies For Depot Store |
|
|
|
|
|
Stopmaster Brakes |
$1,144.00 |
|
|
|
|
Front/Rear Brake Relining - Fleet |
|
|
|
|
|
Street Talk Entertainment |
$506.00 |
|
|
|
|
Craft Stall - Ready Teddy Go 22/10/06 - Community Event |
|
|
|
|
|
Streetcut WA |
$842.60 |
|
|
|
|
Concrete/Asphalt Cutting - St Andrews Dr - Construction |
|
|
|
|
|
Sun City News |
$633.60 |
|
|
|
|
Advertising - Bush Fire Act 1954 - Rangers |
|
|
|
|
|
Advertising - Yanchep Community Centre Newsletter - Oct |
|
|
|
|
|
Sunny Sign Company |
$2,680.48 |
|
|
|
|
Special Signs - Fleet Services |
|
|
|
|
|
Symbolic Workmen/Cones - Parks |
|
|
|
|
|
Traffic Hazard - Projects Construction |
|
|
|
|
|
Table Eight |
$388.30 |
|
|
|
|
Corporate Clothing For Employees |
|
|
|
|
|
Talkin' Dirty |
$1,565.81 |
|
|
|
|
Vehicle Cleaning - Waste Services |
|
|
|
|
|
The Hire Guys Wangara |
$521.00 |
|
|
|
|
Hire Dingo 2002 Mini Loader - Parks |
|
|
|
|
|
The Pursuits Group |
$1,221.30 |
|
|
|
|
Support Services Hacc/Cacp Clients |
|
|
|
|
|
Tiger Tek Pty Ltd |
$475.11 |
|
|
|
|
Flagging Tape/Sig Spots - Stores |
|
|
|
|
|
Total Eden Watering Systems |
$613.10 |
|
|
|
|
Reticulation Items - Parks |
|
|
|
|
|
T-Quip |
$1,352.55 |
|
|
|
|
Vehicle Spare Parts - Fleet |
|
|
|
|
|
WA Kerbing Pty Ltd |
$42,008.04 |
|
|
|
|
Lay Kerbing/Footpath - St Andrews Dr Yanchep |
|
|
|
|
|
WA Local Government Assoc |
$6,414.32 |
|
|
|
|
Advertising - September 2006 |
|
|
|
|
|
WA Profiling |
$4,698.10 |
|
|
|
|
Profiling - St Andrews Dr Yanchep - Construction |
|
|
|
|
|
Wanneroo Agricultural Machinery |
$671.19 |
|
|
|
|
Various Parts - Fleet |
|
|
|
|
|
Wanneroo Caravan Centre & Steel Fabricators |
$214.50 |
|
|
|
|
Steel Fabrication Works - Parks |
|
|
|
|
|
Wanneroo Central Newsagency |
$80.40 |
|
|
|
|
Newspapers - September 2006 - Library |
|
|
|
|
|
Wanneroo Electric |
$13,997.37 |
|
|
|
|
Electrical Maintenance For The City |
|
|
|
|
|
Wanneroo Hardware |
$206.18 |
|
|
|
|
Hardware Purchases For The City |
|
|
|
|
|
Wanneroo Plumbing |
$331.78 |
|
|
|
|
Plumbing Maintenance For The City |
|
|
|
|
|
Wanneroo Trophy Shop |
$179.00 |
|
|
|
|
Name Badges - Heritage/Libraries |
|
|
|
|
|
Customer Service Award - Customer Services |
|
|
|
|
|
Basketball Medals And Ribbons For Youth Services |
|
|
|
|
|
Wel Quip |
$607.20 |
|
|
|
|
Spare Parts For Fleet Maintenance |
|
|
|
|
|
West Coast Radiators |
$900.00 |
|
|
|
|
Recore Radiator - 96008 - Fleet |
|
|
|
|
|
Westcare Industries |
$58.30 |
|
|
|
|
Safety Clothing - Girrawheen Library |
|
|
|
|
|
Western Irrigation |
$264.00 |
|
|
|
|
Marangaroo Golf Course Filter Repairs - Infrastructure Projects |
|
|
|
|
|
Westfuel |
$1,094.48 |
|
|
|
|
Unleaded Petrol - Depot Store Stock |
|
|
|
|
|
White Oak Home Care Services Pty Ltd |
$3,114.48 |
|
|
|
|
Support Services Hacc/Cacp Clients |
|
|
|
|
|
Woodhead International |
$5,390.00 |
|
|
|
|
Consultancy Services - Butler Community Centre - Projects |
|
|
|
|
|
Woodhouse Legal |
$561.00 |
|
|
|
|
Professional Fees Sept 06 - Finance Western Australian |
|
|
|
|
|
Treasury Corporation Loan/Burrowing |
|
|
|
|
|
Work Clobber |
$88.20 |
|
|
|
|
Staff Uniforms - Mike Peden - Parks |
|
|
|
|
|
Worlds Best Products Pty Ltd |
$1,320.00 |
|
|
|
|
Grafitti Remover - Building Maintenance |
|
|
|
|
|
Worldwide Online Printing |
$226.50 |
|
|
|
|
Printing - Business Cards - Waste/Fleet Services |
|
|
|
|
|
|
|
|
|
00000516 |
25/10/2006 |
|
|
|
|
|
|
Australia Post |
$1,778.00 |
|
|
|
|
Mail Preparation Sep06 |
|
|
|
|
|
Australian Manufacturing Workers Union |
$143.10 |
|
|
|
|
Payroll Ded F/Ending 20/10/2006 |
|
|
|
|
|
Australian Services Union |
$1,098.00 |
|
|
|
|
Payroll Ded F/Ending 20/10/2006 |
|
|
|
|
|
Australian Taxation Office PAYG Payments |
$212,711.00 |
|
|
|
|
Payroll Ded F/Ending 20/10/2006 |
|
|
|
|
|
Builders Registration Board |
$20,561.50 |
|
|
|
|
Collection Agency Fees - Sep 06 |
|
|
|
|
|
CFMEU WA Branch |
$48.00 |
|
|
|
|
Payroll Ded F/Ending 20/10/2006 |
|
|
|
|
|
Child Support Agency |
$1,214.01 |
|
|
|
|
Payroll Ded F/Ending 20/10/2006 |
|
|
|
|
|
City of Wanneroo - Social Club |
$398.00 |
|
|
|
|
Payroll Ded F/Ending 20/10/2006 |
|
|
|
|
|
Duncan & Crosbie Pro Golf WA Pty Ltd |
$1,251.60 |
|
|
|
|
Prizes For Staff Golf Day |
|
|
|
|
|
FESA |
$37,894.80 |
|
|
|
|
2006/2007 Emergency Services Levy - Contracts & Property |
|
|
|
|
|
Generations Personal Super |
$156.50 |
|
|
|
|
Payroll Ded F/Ending 20/10/2006 |
|
|
|
|
|
HBF Insurance |
$2,428.20 |
|
|
|
|
Payroll Ded F/Ending 20/10/2006 |
|
|
|
|
|
LGIS Liability |
$175,670.00 |
|
|
|
|
Insurance - Municipal Liability 30/06/06-30/06/07 |
|
|
|
|
|
LGRCEU |
$1,261.24 |
|
|
|
|
Payroll Ded F/Ending 20/10/2006 |
|
|
|
|
|
Mr Charles Marshall |
$89.83 |
|
|
|
|
Telephone Subsidy - Waste Services |
|
|
|
|
|
Navigator Applications Account |
$41.21 |
|
|
|
|
Payroll Ded F/Ending 20/10/2006 |
|
|
|
|
|
Nick Del Borrello |
$2,178.00 |
|
|
|
|
Contract Labour For Fleet Maintenance |
|
|
|
|
|
SA Government Financing Authority |
$8,025.00 |
|
|
|
|
Loan Repayment - Finance |
|
|
|
|
|
Incorrect Amount |
|
|
|
|
|
Selectus Salary Packaging |
$7,209.36 |
|
|
|
|
Payroll Ded F/Ending 20/10/2006 |
|
|
|
|
|
Snowbird Gardens Superannuation Fun |
$84.01 |
|
|
|
|
Payroll Ded F/Ending 20/10/2006 |
|
|
|
|
|
Trailer Parts Pty Ltd |
$97.94 |
|
|
|
|
Spare Parts For Fleet Maintenance |
|
|
|
|
|
|
|
|
|
|
|
Total Director Corporate Services Advance - EFT's |
$2,820,378.35 |
|
|
|
|
|
|
|
|
General Fund Bank Account |
||||
|
00000000 |
01/10/2006 |
|
$1,532,759.43 |
|
|
|
|
Payment of Wages 8/09/2006 |
$763,572.27 |
|
|
|
|
Payment of Wages Non Cycle Pay |
$20,208.76 |
|
|
|
|
Payment of Wages 22/09/2006 |
$740,318.27 |
|
|
|
|
Payment of Wages Non Cycle Pay |
$8,660.13 |
|
|
|
|
|
|
|
|
|
|
Total |
$1,532,759.43 |
|
|
|
|
|
|
|
|
|
|
Bank Fees October 2006: |
|
|
|
|
|
CBA Merchant Fees |
2,030.56 |
|
|
|
|
CBA Pos Fee Waste Services Eftpos |
59.00 |
|
|
|
|
CBA Pos Fee |
132.00 |
|
|
|
|
BPAY FEE |
12,644.31 |
|
|
|
|
DIAMOND BFM PAY FEE |
150.00 |
|
|
|
|
DE SERVICE FEE |
237.34 |
|
|
|
|
DIAMOND CASH MAINT FEE |
33.00 |
|
|
|
|
TRANS NEGOTIATION AUTH LIMIT FEE |
58.33 |
|
|
|
|
ACCOUNT SERVICE FEE |
879.54 |
|
|
|
|
DIAMOND CASH TRANS FEE |
54.44 |
|
|
|
|
GROUP LIMIT FACILITY FEE |
297.96 |
|
|
|
|
Bill Express Fees 28/9/06 To 31/10/06 |
6,263.38 |
|
|
|
|
|
|
|
|
|
|
Credit Card Payments |
|
|
|
|
|
Dennis Blair - Clearing Permit |
50.00 |
|
|
|
|
Wayne Wright - Seminar Cancelled Refund |
-95.00 |
|
|
|
|
Wayne Wright - Lunch with Shire of Busselton |
151.40 |
|
|
|
|
Wayne Wright - Conference 25 - 27th October |
953.00 |
|
|
|
|
Daniel Simms - Conference Registration Cr Gray |
500.00 |
|
|
|
|
Daniel Simms - Registration V Thorogood - Ceda Briefing |
105.00 |
|
|
|
|
Daniel Simms - Interview - Oceanus Restaurant |
17.70 |
|
|
|
|
Roman Zagwocki - Westnet Broadband Pan |
69.95 |
|
|
|
|
Dennis Blair - Clearing Permit |
150.00 |
|
|
|
|
Dennis Blair - Subscription K Smith |
138.72 |
|
|
|
|
Dennis Blair - UITP Assemberly R Korenhof |
199.00 |
|
|
|
|
Dennis Blair Planning Institute Registration - D Blair |
50.00 |
|
|
|
|
Dennis Blair - Planning Institute Registration - R Korenhof |
50.00 |
|
|
|
|
Charles Johnston - Booking for Our Villa |
130.00 |
|
|
|
|
Charles Johnson - Registration UDIA |
1,054.00 |
|
|
|
|
Charles Johnson - Registration ACNU Study Tour |
325.00 |
|
|
|
|
Charles Johnson - Meeting Portofino's Restaurant Café |
56.60 |
|
|
|
|
Charles Johnson - Dinner Meeting University Club |
172.50 |
|
|
|
|
Charles Johnson - Registration Alliance |
330.39 |
|
|
|
|
Charles Johnson - Registration Alliance |
4.96 |
|
|
|
|
|
|
|
|
|
|
ADVANCE RECOUP 19-30 SEP 06 |
4,344,727.76 |
|
|
|
|
|
|
|
|
|
|
Total |
$4,371,980.84 |
|
|
|
|
|
|
|
|
CANCELLED PAYMENTS |
||||
|
501-4312 |
27/09/2006 |
Mr DJ Simms |
-$29.94 |
|
|
00060753 |
12/09/2006 |
LC & LM Chapman |
-$300.00 |
|
|
00060898 |
27/09/2006 |
Romanian Orthodox Church |
-$532.50 |
|
|
00060107 |
02/08/2006 |
ChemCeert WA Incorporated |
-$192.50 |
|
|
00060440 |
23/08/2006 |
JS Broad & JL Wedge |
-$300.00 |
|
|
|
|
|
|
|
|
|
|
Total |
-$1,354.94 |
|
|
|
|
|
|
|
|
TOWN PLANNING SCHEME - MANUAL JOURNALS |
||||
|
00018 |
31/10/2006 |
CELL 1 |
$1,055,229.44 |
|
|
|
|
Corp Serv Petty Cash - Parking -$9.09 |
|
|
|
|
|
CoW - Adjustment of Rates - 63 Pinjar R - $172.19 |
|
|
|
|
|
Commonwealth Bank - Bank Cheque $4.91 |
|
|
|
|
|
BJ & MA Collins - Purchase of 63 Pinjar Rd $274,827.82 |
|
|
|
|
|
Y & N Susac - Purchase of Lot1002 Pinjar Rd $718,490.05 |
|
|
|
|
|
DOLA - Transfer Lodgement Fees for Road Acquisiton $372.00 |
|
|
|
00017 |
31/10/2006 |
CELL 2 |
|
|
|
|
|
CoW - Adjustment of Rates - 63 Pinjar R - $172.20 |
$993,682.06 |
|
|
|
|
DOLA - Transfer Lodgement Fees for Road Acquisition $192.00 |
|
|
|
|
|
Commonwealth Bank - Purchase of Lot 19 Pinjar Rd $274,827.81 |
|
|
|
|
|
Yerke & Nora Susac - Purchase of Lot1002 Pinjar Rd $718,490.05 |
|
|
|
000019 |
31/10/2006 |
CELL 8 |
$27,352.79 |
|
|
|
|
Fernfarm Holdings Pty Ltd - Purchase of Lot 19 Mary St |
|
|
|
|
|
Wangara $27,352.79 |
|
|
|
|
|
|
|
|
|
|
|
Total |
$2,076,264.29 |
|
|
|
|
|
|
|
|
|
|
TOTAL OCTOBER MUNI RECOUP |
$4,234,845.12 |
|
CARRIED UNANIMOUSLY
EndOfRecommendation - This line will not be printed Please do NOT delete
File Ref: P11/0173V01
File Name: BB Sale of Property Due to Outstanding Rates 40 Bendix Way Girrawheen.doc This line will not be printed dont delete
Responsible Officer: Director, Corporate Services
Disclosure of Interest: Nil
Author: Manager Finance
Meeting Date: 12 December 2006
Attachment(s): Nil
Moved Cr Gray, Seconded Cr Roberts
That Council:
1. AGREES to proceed with further legal action to recover unpaid rates for the property at 40 Bendix Way, Girrawheen;
2. AGREES, in the event that the further legal action outlined in 1. above is unsuccessful, to cause notice advising of the City’s intention to sell the property pursuant to Section 6.68(1) of the Act;
3. AGREES to sell the property by public auction, not less than 3 months and not more than 12 months from the date of the notice issued under 2. above, if the outstanding rates remain unpaid; and
4. NOTES that the City will distribute the proceeds of the sale of the land in accordance with Schedule 6.3 of the Local Government Act 1995.
CARRIED UNANIMOUSLY
EndOfRecommendation - This line will not be printed Please do NOT delete
File Ref: P34/0892V01
File Name: BB Change Basis of Valuation of Property 143 Dundebar Road Wanneroo.doc This line will not be printed dont delete
Responsible Officer: Director, Corporate Services
Disclosure of Interest: Nil
Attachments: Nil
Author: Manager Finance
Meeting Date: 12 December 2006
Attachment(s): Nil
Moved Cr Gray, Seconded Cr Roberts
That Council:
1. NOTES the change in predominant use of 143 (Lot 93) Dundebar Road, Wanneroo from rural to non-rural use.
2. RECOMMENDS to the Minister that pursuant to Section 6.28 of the Local Government Act 1995 that the method of valuation of land outlined in 1. above be changed from Unimproved Value to Gross Rental Value.
3. NOTES that the effective date of the new method of valuation for each property outlined in 1. above to be the date of gazettal.
CARRIED UNANIMOUSLY
EndOfRecommendation - This line will not be printed Please do NOT delete
File Ref: S13/0052V01
File Name: BB Budget Timetable 2007 2008.doc This line will not be printed dont delete
Responsible Officer: Director, Corporate Services
Disclosure of Interest: Nil
Author: Manager Finance
Meeting Date: 12 December 2006
Attachment(s): 1
Moved Cr Gray, Seconded Cr Roberts
That Council ENDORSES the proposed timetable (Attachment 1 refers) for the 2007/2008 Annual Budget of the City of Wanneroo.
CARRIED UNANIMOUSLY
EndOfRecommendation - This line will not be printed Please do NOT delete
StartOfAttachment - Do not delete this line will not be printed




EndOfAttachment - Do not delete this line will not be printed
File Ref: S13/0002V011
Responsible Officer: Director, Corporate Services
Disclosure of Interest: Nil
Author: Manager Finance
Meeting Date: 12 December 2006
File Name: BB Financial Activity Statements for the Period Ended 31 October 2006.doc This line will not be printed dont delete
Attachment(s): 2
Moved Cr Gray, Seconded Cr Roberts
That Council RECEIVES the Financial Activity Statement report for the month of October 2006.
CARRIED UNANIMOUSLY
EndOfRecommendation - This line will not be printed Please do NOT delete
StartOfAttachment - Do not delete this line will not be printed
ATTACHMENT 1 Page 1 of 2

ATTACHMENT 1 Page 2 of 2

EndOfAttachment - Do not delete this line will not be printed
StartOfAttachment - Do not delete this line will not be printed
ATTACHMENT 2 Page 1 of 2

ATTACHMENT 2 Page 2 of 2

EndOfAttachment - Do not delete this line will not be printed
File Ref: P22/1771V01
File Name: CA Proposal to Relinquish Site 2 Fowey Loop Mindarie.doc This line will not be printed dont delete
Responsible Officer: Director, Corporate Services
Disclosure of Interest: Nil
Attachments: 1
Author: Manager Contracts & Property
Meeting Date: 12 December 2006
Attachments: 1
Moved Cr Gray, Seconded Cr Roberts
That Council:
1. NOTES an internal review of undeveloped civic/community purpose sites has recommended that Lot 12 Fowey Loop, Mindarie be relinquished in accordance with the Local Government Act and WA Planning Commission requirements; and
2. INSTRUCTS the Chief Executive Officer to prepare a business case for consideration by Council to determine whether to support the disposal of Lot 12 Fowey Loop, Mindarie.
CARRIED UNANIMOUSLY
EndOfRecommendation - This line will not be printed Please do NOT delete
File Ref: S06/0026V01
File Name: CA Proposed Lease to Wanneroo Kingsway Football Sporting Club Inc.doc This line will not be printed dont delete
Responsible Officer: Director Corporate Services
Disclosure of Interest: Nil
Author: Coordinator Property & Insurance
Meeting Date: 12 December 2006
Attachment(s): 2
Moved Cr Gray, Seconded Cr Roberts
That Council:-
1. APPROVES the leasing of portion of the building situated on Reserve 28058, Kingsway Sporting Complex, to the Wanneroo Kingsway Football & Sporting Club Inc for a term of five (5) years together with an option to renew for a further term of five (5) years, with a proposed commencement date of 1 January 2007, subject to the consent of the Minister for Lands;
2. AUTHORISES the Mayor and the Chief Executive Officer to affix the Common Seal of the City of Wanneroo and execute the lease between the City and the Wanneroo Kingsway Football & Sporting Club Inc;
3. AGREES to list for consideration in the 2007/08 Annual Budget the sum of $4,000 as a contribution towards the recarpeting of the upstairs section of the clubroom.
CARRIED UNANIMOUSLY
EndOfRecommendation - This line will not be printed Please do NOT delete
File Ref: P23/0010V01
File Name: CA Heads of Agreement Neerabup Industrial Area Joint Venture.doc This line will not be printed dont delete
Responsible Officer: Director, Corporate Services
Disclosure of Interest: Nil
Author: John Paton
Meeting Date: 12 December 2006
Attachment(s): 2
Moved Cr Gray, Seconded Cr Roberts
That Council:
1. AUTHORISE the Mayor and Chief Executive Officer to sign and affix the Common Seal to the Neerabup Industrial Area Joint Venture Heads of Agreement between the City and LandCorp; and
2. NOTES that a further report will be presented to Council seeking approval to enter into the formal Development Agreement with LandCorp for the Joint Venture detailed in 1. above upon negotiation of the relevant commercial terms.
CARRIED UNANIMOUSLY
EndOfRecommendation - This line will not be printed Please do NOT delete
File Ref: S07 0019
File Name: AA Membership Of The Youth Advisory Council.doc This line will not be printed dont delete
Responsible Officer: Director, Community Development
Disclosure of Interest: Nil
Author: Youth Projects Officer
Meeting Date: 12 December 2006
Attachments: Nil
Moved Cr Treby, Seconded Cr Monks
That Council:-
1. APPOINTS by ABSOLUTE MAJORITY the following as members of the Youth Advisory Council:
Miss Chloe Vallun-kruger CLARKSON
Miss Darlean Monkley WANNEROO
Mr Tony Townley MARIGINIUP
Mr Perryn Maynard WANNEROO
2. RECEIVES the resignation of YAC Advisor Daniel Wheeler.
CARRIED UNANIMOUSLY &
BY ABSOLUTE MAJORITY
EndOfRecommendation - This line will not be printed Please do NOT delete
File Ref: SO7/0004VO2
File Name: AA Tender 06073 The Provision of Specialist Care Services for Eligible Aged and Disabled Residents .doc This line will not be printed dont delete
Responsible Officer: Director, Community Development
Disclosure of Interest: Nil
Attachments: Nil
Author: Garry Prus
Meeting Date: 11 December 2006
Moved Cr Treby, Seconded Cr Monks
That Council:-
1. ACCEPTS the tender from AT&A Pty Ltd t/a HomeCare Options (Tender No. 06073) for the supply and delivery of Specialised Care Services For Eligible Aged And Disabled Residents for a period of eighteen (18) months within the value of the 2006/07 budget allocation.
2. NOTES the ongoing urgent negotiations to funding agreements with the Department of Health to increase unit rates to match current market pricing.
3. NOTES the ongoing review of Home and Community Care Services in light of negotiations with the Department of Health.
CARRIED UNANIMOUSLY
EndOfRecommendation - This line will not be printed Please do NOT delete
File Ref: S07/0057V03
File Name: AA Request for a Waiver of Fees .doc This line will not be printed dont delete
Responsible Officer: Director, Community Development
Disclosure of Interest: Nil
Author: Rhonda Bowman
Meeting Date: 12 December 2006
Attachment(s): 1
Moved Cr Treby, Seconded Cr Monks
That Council APPROVES a donation request of $880.00 to New Beginnings for a waiver of fees for the hire of the Jenolan Way Community Centre for 2007 to be allocated from Account Code 728961-9399-316.
CARRIED UNANIMOUSLY
EndOfRecommendation - This line will not be printed Please do NOT delete
File Ref: S07/0058
File Name: AA Appointment of Community Representatives for the Mark LeBuse Sculptures Working Party.doc This line will not be printed dont delete
Responsible Officer: Director, Community Development
Disclosure of Interest: Nil
Author: Kristy Gough
Meeting Date: 12 December 2006
Attachments: Nil
Moved Cr Treby, Seconded Cr Monks
That Council APPOINTS by ABSOLUTE MAJORITY Ms Amanda van Loon and Mrs Suzanne Logue as the community representatives for the LeBuse Sculptures Working Party with their membership being in accordance with the LeBuse Sculptures Working party Terms of Reference.
CARRIED UNANIMOUSLY &
BY ABSOLUTE MAJORITY
EndOfRecommendation - This line will not be printed Please do NOT delete
File Ref: S17/0117
File Name: BA Grant from Lotterywestfor for 2006 07 Community Events Series.doc This line will not be printed dont delete
Responsible Officer: Director Community Development
Disclosure of Interest: Nil
Author: RR
Meeting Date: 12 December 2006
Attachments: Nil
Moved Cr Treby, Seconded Cr Monks
That Council:-
1. ACCEPTS the grant from Lotterywest for the Community Events and Summer Concert programme;
2. NOTES the budget variation as outlined below for inclusion within the 2006/07 Budget:
Income
|
Account No. |
Present Budget |
Increase |
Revised Budget |
|
617235-8999-141 |
$Nil` |
$20,000 |
$20,000 |
Expenditure
|
Project/Account No |
From |
To |
Description |
|
617235-8999-141 |
$20,000 |
|
Operating Grant Income-State Government |
|
717235-9399-231 |
|
$20,000 |
External Equipment Hire Expenses |
CARRIED UNANIMOUSLY
EndOfRecommendation - This line will not be printed Please do NOT delete
File Ref: S07/0066V01
File Name: BA Aquisition and Development of Community Purpose Sites Policy.doc This line will not be printed dont delete
Responsible Officer: Director Community Development
Disclosure of Interest: Nil
Author: Coordinator Leisure Services
Meeting Date: 12 December 2006
Attachment(s): Nil
Moved Cr Treby, Seconded Cr Monks
That Council ADOPTS the Acquisition and Development of Community Purpose Sites Policy as outlined below:
Acquisition & Development of Community Purpose Sites Policy
Policy Owner: Community
Development Directorate
Distribution: All Employees
Implementation:
Scheduled Review:
Objective
To provide a guiding philosophy and framework for evaluating the allocation of proposed community purpose sites and considering the development of existing community purpose sites.
Statement
This policy relates to the need for the feasibility of local community facilities to be justified prior to development. Rather than relying upon prescriptive standards, or conversely developing facilities in a haphazard manner, this policy prescribes clear guidelines for assessing the suitability of site allocation and the subsequent development of community facilities. The substantial financial demands of the City’s rapid urban growth and the significance of social infrastructure to ensure a healthy community highlights the importance of implementing clear planning principles.
Purpose
The purpose of the policy is to:
· provide a framework and set of guidelines to assess the proposed location of community purpose sites within draft district and local structure plans to ensure maximum benefit to the local community.
· provide benchmark criteria to ascertain the feasibility, required catchment area, purpose, funding, development timeframe and design of future community facilities.
Definition/s
For the purposes of this policy the following definitions are applicable:
1. Community Purpose Site - is land made available free of cost to local government by subdividers of residential land for the specific development of local community infrastructure.
2. Community Infrastructure - refers to buildings and associated amenities that are in public places and enhance community interaction.
3. Community Centre - is a public building that increases opportunities for positive interaction and cooperation amongst the local community through flexible design and management principles that support the provision of affordable, sustainable and equitable recreational, health, educational and social services.
Principles for Assessment
The implementation of development criteria supports the notion that the community should not suffer as a result of inadequately located or designed community purpose sites. The principle objective is to ensure that adequate sites are available to meet local needs for community services and facilities in appropriate and accessible locations. The rapid level of growth and revitalisation throughout the City requires community facility development criteria to be implemented in five stages:
1. Initial Site Assessment
2. Smart Growth Policy Assessment
3. Facility Needs Assessment
4. Facility Feasibility Study
5. Strategic Assessment
Initial Site Assessment
In order for the allocation or development of a community purpose site to be considered the location and suitability of a site must be investigated utilising the following site assessment criteria. Inadequate adherence to the following criteria will diminish the justification of any given site for infrastructure development:
· Allocation of at least one site per 10,000 - 15,000 residents based on the projected residential capacity of any given structure plan area.
· Located on or near public transport routes, at a minimum, any proposed facility must be within 250 metres of a bus/train stop.
· Located within or near neighbourhood/local/district/regional centres and/or public open space, in a position that is relatively central to the proposed long-term catchment.
· Clustered with compatible facilities to form vibrant, frequently visited precincts.
· Located within 1 kilometre of a major arterial road.
· Located off major roads and having safe crossing points in close vicinity to ensure safe access
· Located within 1 kilometre of a government primary/high school
· Located a minimum of 2 kilometres from any other community facility, unless such a facility is considered to offer complementary services
· Located adjacent to or a maximum of 500 metres from public open space (passive or active)
· Site location should take into account future facility design issues to ensure compliance with CEPTED (Crime Prevention Through Environmental Design) principles relating to sightlines, lighting, surveillance and isolation issues, entrapment spots, movement predictors, signage, landuse and activity mix, landscaping and fencing.
· Explanation of the site in terms of purpose, benefit to urban structure, surrounding housing densities and accessibility to likely users within structure plan submission.
Smart Growth Policy Assessment
The second stage of assessing the suitability of a community purpose site for development must involve a direct assessment of the site utilising the City’s Smart Growth Strategy. This provides a range of options for the assessment of urban growth management including the Smart Growth Assessment Tool, Local Planning Policy and Community Development Strategy. The implementation of these tools during the assessment of a community purpose site will ensure an integrated approach to facility sustainability:
Smart Growth Assessment Tool (SGAT)
The SGAT allows developers and the City to consistently assess the performance of structure plans against the City’s Smart Growth Strategy. Specifically, the Smart Growth principles relating to ‘Effective Use of Land & Infrastructure’ (Principle 2) and Identity, Equity & Inclusiveness (Principle 4) refer directly to the provision and development of community facilities.
Community Development Strategy
Wanneroo LIFEstyles brings together the community focused elements of the City’s Strategic Plan and Smart Growth Strategy to form guiding principles and practical applications required to achieve more for the local population. The strategy is linked to the City’s internal strategies, however, an important objective is to encourage all stakeholders involved in our community to assess and evaluate their potential impact. As a result, a series of simple checklists have been established to assist in this process formulated around specific target groups and key development stages. The implementation of these checklists to assess a proposed community facility is vital to gain input from key stakeholders such as community members, service providers, government agencies, internal staff and elected members. In addition, during the preparation of structure plans there are five checklists specifically relevant for developers. The site allocation and development criteria insists these checklists are submitted during the structure planning process to ensure community infrastructure is appropriately planned and located.
Facility Needs Assessment
Upon satisfactory adherence to initial site assessment criteria and the City’s Smart Growth strategies the implementation of a detailed Facility Needs Assessment is the next stage in considering the suitability of a community purpose site for development. The needs assessment will comprehensively test whether a new facility at any given location is justified and also provide clear direction with regard to the most appropriate scope, scale and components of a proposed facility. The implementation of a facility needs assessment must incorporate the following elements to adequately investigate the sustainability of a community purpose site:
· Adherence to the Department of Sport & Recreation Facility Needs Assessment Guidelines
· Projected population trigger of 10,000 - 15,000 people for each allocated community purpose site
· Investigation of the existing and planned future facilities and services within the catchment
· Analysis of current and future needs and trends within the local population relating to community facilities
· Community consultation with residents and service providers
· An assessment of how the local community will use the site and surrounding area, the community aspirations for the site and the local neighbourhood
· Determination of facility need based on analysis and synthesis of the information gathered, and identification of duplications and gaps in provision
Facility Feasibility Study
The finalisation of a Needs Assessment Report will present findings on the needs of the community, results of community consultation and whether a continuation of the facility planning process is justified. The expressed need, viability and sustainability of a community facility will initiate the implementation of a facility feasibility study. The study should critically assess a proposal to develop a facility and make an informed decision whether to proceed with any given project. The study is a means to an end, that end being a detailed report determining recommendations in relation to concept design, draft management plan, location rationale, capital costs, operating income and expenditure, staging alternatives and the overall justification of the project. The implementation of a feasibility study must incorporate the following elements to adequately address the justification of community facility development:
· Adherence to the Department of Sport & Recreation Feasibility Study Guidelines
· Demonstrated demand within the catchment projected 10 to 15 years based on community profile including social and demographic trends
· Suitability of site for community facilities utilising site assessment criteria
· Analysis of the suitability of site for proposed uses
· Analysis of usage rates at existing facilities proving to be viable (to enable this the City must adopt a systematic approach to tracking facility usage levels to ensure facilities are meeting perceived community needs)
· Investigation of options for multipurpose use, shared-use and collocation options
· Completion of a preliminary traffic and parking assessment
· Development of a draft management plan
· Completion of the City’s Community Development Strategy checklists relevant to internal staff, community members, community groups, service providers, government agencies and developers.
Strategic Assessment
The final development criteria stage, and a key supporting element to the feasibility study is ensuring that facility development meets the City’s corporate vision, goals and principles. The following guidelines must be satisfactorily addressed in order for a proposed facility to proceed:
Policy
How does the facility adhere to the goal of ‘Healthy Communities’ within the City’s Strategic Plan?
How does the facility adhere to relevant City of Wanneroo polices relating to the planning, funding and construction of community infrastructure?
How does the facility adhere to the key principles of the City’s Smart Growth Policy?
How does the facility link to specific Community Development action plans and strategies?
Economic
How will the capital costs of the facility be raised?
Does the project warrant inclusion within the City of Wanneroo Forward Capital Works Budget?
How much will the facility cost to build and operate?
How will the facility contribute to employment within the City of Wanneroo?
How will the facility bring new money into the City of Wanneroo?
Who are the partners in the project?
Does the project comply with relevant grant funding guidelines?
Who will and how will the facility be managed?
Social
How does it contribute to the social fabric of the City of Wanneroo?
How does it relate to the culture and history of the City of Wanneroo?
How does the facility take into consideration social and leisure trends?
Who will share the use of the facility?
How does it involve the broader community?
How does it contribute to the creation of a vibrant community precinct?
Environmental
How does the facility relate to environmental best practice with regard to being waterwise, energy efficient and so on?
Is it possible to share or upgrade an existing building?
Does it enrich the natural environment?
Does it raise environmental awareness?
Development Applications
In the event that a proposed site/facility meets the relevant ‘principles for assessment’ it should not be assumed that this approves the development. A development application and any required building licence application may still be required to be lodged and approved in the normal manner.
Responsibility for Implementation
Director Community Development
Other Related Policies
Pre-Funding of Community Infrastructure
Centres Policy
Key Access – Community/Leisure Buildings
Naming of Council Facilities
Facility and Reserve Hire and Use
Local Planning Policy – Smart Growth
CARRIED UNANIMOUSLY
EndOfRecommendation - This line will not be printed Please do NOT delete
File Ref: S25/0183V01
File Name: BA Future Management Options for the Kingsway International Sports Stadium .doc This line will not be printed dont delete
Responsible Officer: Director Community Development
Disclosure of Interest: Nil
Author: Manager Leisure and Cultural Services
Meeting Date: 12 December 2006
Attachment(s): 1
Moved Cr Treby, Seconded Cr Monks
That Council:-
1. NOTES the Badminton Association of WA membership’s endorsement for the termination of the Badminton Association of WA’s lease over the Kingsway International Sports Stadium, effective from 1 January 2007.
2. NOTES that the management of the Kingsway International Sports Stadium will be transferred to the City of Wanneroo as of 1 January 2007.
3. BY ABSOLUTE MAJORITY and in accordance with Section 6.16(3) of the Local Government Act 1995 IMPOSES the proposed Schedule of Fees and Charges for the Kingsway International Sports Stadium as shown in Attachment 1.
4. ENDORSES the implementation of the amended Schedule of Fees and Charges for the period commencing 26 December 2006.
5. NOTES that Administration will give local public notice of the City’s intention to impose these fees and charges from 26 December 2006 in accordance with Section 6.19 of the Local Government Act 1995.
6. NOTES that a further report will be presented to Council in February 2007 to consider the provision of a leased area with in the Kingsway International Sports Stadium for use as an office space for the Badminton Association of WA.
7. NOTES that a further report will be made to Council outlining options for the future management of the Kingsway International Sports Stadium beyond 30 June 2008.
CARRIED UNANIMOUSLY &
BY ABSOLUTE MAJORITY
EndOfRecommendation - This line will not be printed Please do NOT delete
|
ATTACHMENT 1 Page 1 of 2 |
||||||
|
COMMUNITY DEVELOPMENT SERVICES |
||||||
|
LEISURE AND CULTURAL SERVICES cont. |
|
2005-2006 |
2006-2007 |
Change |
|
|
|
Facilities cont. |
|
|
|
|
|
|
|
Kingsway Indoor Stadium |
|
|
|
|
|
|
|
|
Fitness (per class) |
Adults (16 Years +) |
|
7.00 |
|
|
|
|
|
Juniors |
|
n/a |
|
|
|
|
|
Seniors |
|
6.00 |
|
|
|
|
|
|
|
|
|
|
|
|
Soccer (per team per hour) |
Adults (16 Years +) |
|
45.00 |
|
|
|
|
|
Juniors |
|
|
|
|
|
|
|
|
|
|
|
|
|
|
Soccer Coaching (per head) |
Juniors |
|
5.00 |
|
|
|
|
Soccer Comp (per head) |
Juniors |
|
5.00 |
|
|
|
|
|
|
|
|
|
|
|
|
Netball (per team per hour) |
Adults (16 Years +) |
|
45.00 |
|
|
|
|
|
Juniors |
|
|
|
|
|
|
|
|
|
|
|
|
|
|
Volleyball (per team per hour) |
Adults (16 Years +) |
|
45.00 |
|
|
|
|
|
Juniors |
|
|
|
|
|
|
|
|
|
|
|
|
|
|
Badminton (per court, per hour) |
Adult |
|
7.00 |
|
|
|
|
|
Club |
|
5.00 |
|
|
|
|
|
Juniors |
|
5.00 |
|
|
|
|
|
Seniors |
|
5.00 |
|
|
|
|
|
|
|
|
|
|
|
|
Fit kids (per class) |
Juniors |
|
5.00 |
|
|
|
|
|
|
|
|
|
|
|
|
Multi Sports (per class) |
Juniors |
|
5.00 |
|
|
|
|
|
|
|
|
|
|
|
|
HOLDIAY PROGRAMS |
|
|
|
|
|
|
|
Multi Sports (per class) |
Juniors |
|
5.00 |
|
|
|
ATTACHMENT 2 Page 2 of 2 |
||||||
|
COMMUNITY DEVELOPMENT SERVICES |
||||||
|
LEISURE AND CULTURAL SERVICES cont. |
|
2005-2006 |
2006-2007 |
Change |
|
|
|
Facilities cont. |
|
|
|
|
|
|
|
Kingsway Indoor Stadium |
|
|
|
|
|
|
|
|
|
|
|
|
|
|
|
|
ROOM HIRE |
|
|
|
|
|
|
|
|
|
|
|
|
|
|
|
Function Room |
|
|
|
|
|
|
|
Community Rate |
|
|
17.00 |
|
|
|
|
Commercial Rate |
|
|
28.00 |
|
|
|
|
|
|
|
|
|
|
|
|
Board Room |
|
|
|
|
|
|
|
Community Rate |
|
|
11.00 |
|
|
|
|
Commercial Rate |
|
|
21.00 |
|
|
|
|
|
|
|
|
|
|
|
|
Activity Room |
|
|
|
|
|
|
|
Community Rate |
|
|
14.00 |
|
|
|
|
Commercial Rate |
|
|
26.00 |
|
|
|
|
|
|
|
|
|
|
|
|
|
|
|
|
|
|
|
|
|
|
|
|
|
|
|
|
Set up/Pack up rate for Functions |
(max. of 3 hours) |
|
5.00 |
|
|
|
|
Bonds - Building (non-alcohol) |
|
|
300.00 |
|
|
|
|
Bonds - Building (alcohol) |
|
|
500.00 |
|
|
|
|
|
|
|
|
|
|
|
|
EVENT HIRE |
|
|
|
|
|
|
|
|
|
|
|
|
|
|
|
Minor Event per Day |
|
|
500.00 |
|
|
|
|
Major event Per Day |
|
|
1,000.00 |
|
|
File Ref: S/0064V01
File Name: CA Proposed Extension of the Clossure of the Quinns Rocks Car Park at Night until July 2007.doc This line will not be printed dont delete
Responsible Officer: Director Community Development
Disclosure of Interest: Nil
Author: LC
Meeting Date: 12 December 2006
Attachment(s): Nil.
Moved Cr Treby, Seconded Cr Monks
That Council:-
1. APPROVES the continued closure of the Quinns Beach car park on a temporary basis during nighttime hours until 30 July 2007.
2. APPROVES that vehicles will not be permitted into the car park from 10pm to 6am from November to April, and 8pm to 6am for the period May to October commencing from 24 November 2006 and concluding on 24 November 2007.
3. NOTES that an opening fee of $50.00 as specified in the Schedule of Fees and Charges for the City of Wanneroo applies to vehicles released from the car park after hours.
4. NOTES that a community consultation will be conducted during this period on the permanent closure of the car park during night time hours, and a further report submitted to Council on the results of the consultation.
CARRIED UNANIMOUSLY
EndOfRecommendation - This line will not be printed Please do NOT delete
File Ref: S09/0007V01
Responsible Officer: Director, Governance and Strategy
Disclosure of Interest: Nil
Author: Nicky Barker
Meeting Date: 21 November 2006
Attachments: Nil.
File Name: AA Review of Council Policies.doc This line will not be printed dont delete
Moved Cr Stewart, Seconded Cr Steffens
That Council CONSIDER and ADOPT the review of the policies detailed below:
Policy Owner: Office of the CEO
Distribution: All Employees
Implementation: 14 August 2001 W342-08/01
Reviewed: 17 December 2002 - CE03-12/02,
Reviewed:
23 September 2003 – CE03-09/03
26 October 2006
Next Scheduled Review:
October 2008
Objective
· To ensure that there is a process in place to outline access to the recorded proceedings of Council.
· To emphasise that the reason for tape recording of Council Meetings is to ensure the accuracy of Council Minutes.
Statement
Recording of Proceedings
(1) Proceedings for meetings of the Council, of
Eelectors,
Audit Committee and Public Question Time during Council Briefing Sessions shall
be recorded by the City, on sound recording equipment except, in the case of
meetings of the Council or the Audit Committee, where the
Council or the Committee, as the case may be, closes
the meeting to the public.
(2) Notwithstanding subclause (1), proceedings
of a meeting of the Council or of the Audit Committee which is
closed to the public shall be recorded where the Council or the Audit Committee, as
the case requires, resolves to do so.
(3) No member of the public is to use any electronic, visual or vocal recording device or instrument to record the proceedings of the Council or a committee without the written permission of the Council.
Access to Recorded Tapes
(4) Members of the public may purchase a copy of the taped proceedings or alternatively listen to recorded proceedings with the supervision of a City Officer. Costs of providing taped proceedings to members of the public will be the cost of the tape plus staff time to make the copy of the proceedings. The cost of supervised listening to recorded proceedings will be the cost of the staff time. The cost of staff time will be set in the City's schedule of fees and charges each year.
(5) Elected Members may listen to a recording of the Council proceedings upon request at no charge however no transcript will be produced without the approval of the Chief Executive Officer.
Retention of Tapes
(76) Recordings
pertaining to the proceedings of Council Meetings shall be retained in
accordance with the State Records Act 2000 (General
Disposal Authority for Local Government Records). The current
requirement for the retention of recorded proceedings is thirty (30) years.
Disclosure of Policy
(7) This policy shall be printed within the
agenda of all Council, Special Council, Electors and Special Electors and the
Audit Committee meetings to advise the public that the proceedings
of the meeting are recorded.
Responsibility for Implementation
Office of the CEO
Policy Owner: Governance
Distribution: All Elected Members and All Employees
Implementation: 06 March 2001
Scheduled
Review: Reviewed: March 2002,
Reviewed: 23 September 2003 – CE03-09/03
20 October 2006
Next Scheduled Review:
October 2007
Objective
To provide a framework for determining whether financial assistance may be provided to officers or members of council in defending legal actions.
Statement
1.0 Introduction
This policy is designed to protect the interests of council members and employees (including past members and former employees) where they become involved in civil legal proceedings because of their official functions. In most situations the local government may assist the individual in meeting reasonable expenses and any liabilities incurred in relation to those proceedings.
In each case it will be necessary to determine whether assistance with legal costs and other liabilities is justified for the good government of the district. This policy applies in that respect.
2.0 General Principles
2.1 The local government may provide financial assistance to members and employees in connection with the performance of their duties provided that the member or employee has acted reasonably and has not acted illegally, dishonestly, against the interests of the local government or otherwise in bad faith.
2.2 The local government may provide such assistance in the following types of legal proceedings:
(a) proceedings brought by members and employees to enable them to carry out their local government functions (eg where a member or employee seeks a restraining order against a person using threatening behaviour);
(b) proceedings brought against members or employees in relation to a decision of Council or an employee which aggrieves another person (eg refusing a development application) or where the conduct of a member or employee in carrying out his or her functions is considered detrimental to the person (eg defending defamation actions); and
(c) statutory or other inquiries where representation of members or employees is justified.
2.3 The local government will not support any defamation actions seeking the payment of damages for individual members or employees in regard to comments or criticisms leveled at their conduct in their respective roles, or anything that relates to a matter that is of a personal or private nature. Members or employees are not precluded, however, from taking their own private action. Further, the local government may seek its own advice on any aspect relating to such comments and criticisms of relevance to it.
2.4 The legal services the subject of assistance under
this policy will usually be provided by the local government's solicitors.
Where this is not appropriate for practical reasons or because of a conflict of
interest then the service may be provided by other solicitors approved by the
local government.
3.0 Applications for Financial Assistance
3.1 Subject to item (e)3.5,
decisions as to financial assistance under this policy are to be made by the
Council.
3.2 A member or employee requesting financial support for legal services under this policy is to make an application in writing, where possible in advance, to the Council providing full details of the circumstances of the matter and the legal services required.
3.3 An application to the Council is to be accompanied by an assessment of the request, including an estimation of costs, and with a recommendation which has been prepared by, or on behalf of, the Chief Executive Officer (CEO).
3.4 A member or employee requesting financial support for legal services, or any other person who might have a financial interest in the matter, should take care to ensure compliance with the financial interest provisions of the Local Government Act 1995.
3.5 Where there is a need for the provision of urgent legal services before an application can be considered by Council, the CEO may give an authorisation to the value of $5000 in accordance with section 5.42 of the Local Government Act 1995.
3.6 Where it is the CEO who is seeking urgent financial support for legal services the Council shall deal with the application.
4.0 Assistance to be Retrospective
Financial assistance will be paid retrospectively at the conclusion of the legal action for which financial assistance was sought except in cases of serious financial hardship as determined by council.
5.0 Repayment of Assistance
5.1 Any amount recovered by a member or employee in proceedings, whether for costs or damages, will be off set against any moneys paid or payable by the local government.
5.2 Assistance will be withdrawn where an adverse finding has been determined by a civil court or Inquiry established under the auspices of the WA Parliamentary Ombudsman, the Local Government Act or any other Inquiry established by decision of Parliament. Assistance will also be withdrawn where information from the person is shown to have been false or misleading.
5.3 Where assistance is so withdrawn, the person who obtained financial support is to repay any moneys already provided. The local government may take action to recover any such moneys in a court of competent jurisdiction.
Responsibility for Implementation
Governance
Communications
Policy
Owner: Office of the Chief Executive OfficerCorporate
Resources
Distribution:
All Directorates and , all elected
members
Implementation: 12 September 2000
Scheduled ReviewReviewed: June 2001; Review date extended Council meeting 26
April 2005
Item GS04-04/05 – to be reviewed in conjunction with ‘Management of Elected Members Records’, November 2006.
Scheduled review: November 2008
Objective
To achieve provide a
high quality service to all stakeholders in the City of Wanneroo for all
communications regarding Council businessfor
stakeholders in the City of Wanneroo.
Statement
The City of
Wanneroo is committed to ensuring fairness and equity and that the
community is kept informed on matters before Council, whilst providing a fairness
and equity; friendly, helpful, respectful and professional
service. Effective communication is a key to ensuring that these principles of
operation are met. All communication regarding council business from a member
of staff or an elected member shall be at all times courteous, clear and
professional.
Correspondence Received
All external written correspondence will receive a response within 7 working days of receipt, however an acknowledgement will be provided if, in the view of the appropriate Business Manager, a full and detailed reply is not possible within that time frame.
External correspondence that is received marked as a copy and addressed to a third party will not be acknowledged unless, in the opinion of the relevant Business Unit Manager, a response is appropriate.
Facsimiles and electronic mail will be treated as written correspondence.
Directors and the Chief Executive Officer shall determine which items of correspondence will be presented to the Council, through the appropriate committee or portfolio or direct to full Council.
Mayoral correspondence
Mayoral correspondence will be issued on mayoral letterhead. Council letterhead is reserved for use by the administration. A file copy of mayoral correspondence shall be maintained in the appropriate file/s, together with the originating correspondence. In instances where the mayor is providing technical information to correspondents, the appropriate officer will draft the correspondence or that section of the correspondence.
Councillor Correspondence Outgoing:
Correspondence from individual Councillors using the City’s generic Elected member template is at the discretion of the Councillor however, it is not to be construed as official correspondence of the City.
Councillor Correspondence Incoming:
1. All correspondence received by the City of Wanneroo at any of its premises and/or mail receiving centres is deemed as City of Wanneroo correspondence, unless:
a) It is addressed to an elected member’s name, and,
b) Is marked Private and Confidential, and,
c) Has no reference to the City of Wanneroo as part of the addressee or address.
2. In all cases where correspondence as described in Item 1 complies with 1a, b, c, above, it will be left unopened in elected member’s correspondence box.
3. On all occasions when correspondence bearing an elected member’s name is received and does not comply with Item 1a, b, c, it will be opened by administration.
4. This motionThe above
items are is conditional upon total compliance
with all Telecommunications and Australian Postal Regulations and Laws.
In all cases,
when the contents make reference to matters that are deemed as requiring
attention by administration, a reference note will be added to the
correspondence by an appropriate administration officer, marked for the elected
member’s attention, and the note will detail the action to be taken by the
appropriate department, with particular reference to Item 3. above only.
Council Stationery
The City’s stationery and equipment, including Councillor letterhead is not to be used for election purposes.
Communication between Elected Members and Staff
In order to facilitate effective use of staff resources, all inquiries and requests from elected members shall be directed to the Chief Executive Officer or relevant Director in the first instance through the Elected Member’s Action Request system. Where the request entails the use of City resources (human or physical) to an extent which a Director believes may impact on the effective management of the directorate, the request is to be referred to the Chief Executive Officer for determination. The Chief Executive Officer will discuss such requests with the originating elected member to determine the extent of information or action required. The Chief Executive Officer may subsequently refer the matter to Council for determination should a resolution not be achieved.
Communication between elected members and staff will in general be governed by the ‘Code of Conduct’.
Media Contact
In accordance with the Local Government Act 1995, the spokespersons for Council is the Mayor and with the Mayor’s authorisation, the Chief Executive Officer, either of whom may delegate authority to the appropriate Director to make a statement on behalf of the City.
Publications
Publications produced by the City will be available for loan through all libraries within the local government area and available for reading at the Council office and customer service centre/s. Publications distributed to households will also be available through the library system. The following publications will be advertised as available in the Wanneroo Times and will also be available, on request, in alternative formats:
· Annual Report;
· Annual Financials
· Strategic Plan
· Local Laws
Advertising
All statutory
advertisements requiring State-wide local public notice
shall also be advertised in “The Wanneroo Times” unless, in the opinion of the
CEO, this is not practicable for purposes of meeting time frames and required
deadlines.
Responsibility for Implementation
Office of the
Chief Executive Officer; All Directors and Business Unit Managers, All elected
emembersm
Guidelines for the Management of Elected Members Records
Policy Owner: Corporate Resources
Distribution: All Staff
Implementation: 25 February 2003 Ordinary Council Meeting (Item CE05-02/03)
Reviewed: 25 February 2004; Review date extended Council meeting 26 April 2005 Item GS04-04/05 - dependant on the proposed review of the State Records Act, November 2006
Next Review: November 2008
Introduction
Accurately created and maintained records are important and necessary because they serve as a history of the transactions and business processes of Local Government. They are a fundamental tool for providing evidence of Local Government accountability and responsibility. It is for these reasons that legislation exists to ensure that the government record is properly maintained and preserved for future generations.
Objective
Four purposes are served by this guideline:
· To provide records keeping principles that identifies and protects local government records of continuing value.
· To provide guidance on the disposal of local government records, particularly those that have no continuing value.
· To define strategies that will support and document accountability and responsibility throughout local government.
· To show elected members how to establish an audit trail tracing the justifications and authorizations for certain courses of action.
Local Governments are strongly advised to formalize the practices outlined in this document in their Record keeping Plans.
Definitions
Council – in this document means the Local Government office and the Council.
Government organisation employee – means:-
a) a person who, whether or not an employee, alone or with others governs, controls or manages a government organisation;
b) a person who, under the Public Sector Management Act 1994, is a public service officer of a government organisation; or
c) a person who is engaged by a government organisation, whether under a contract for services or otherwise,
and includes, in the case of a government organisation referred to in item 5 or 6 of Schedule 1, a ministerial officer, (as defined in the Public Sector Management Act 1994) assisting the organisation. (State Records Act 2000)
Government Records:- is a record created or received by or for a government organisation or a government organisation employee or contractor in the course of the work for the organization (State Records Act 2000)
Records- means any record of information however recorded and includes:-
a) any thing on which there is writing or Braille;
b) a map, plan, diagram or graph,
c) a drawing, pictorial or graphic work, or photograph;
d) any thing on which there are figures, marks, perforations, symbols, having a meaning for persons qualified to interpret them;
e) anything for which images, sounds or writings can be reproduced with or without the aid of anything else; and
f) any thing on which information has been stored or recorded either mechanically, magnetically or electronically. (State Records Act 2000)
State Archive:- is a State record that is to be retained permanently. (State Records Act 2000)
Guidelines
Some government records created and received by Elected Members in the course of their work for Council have continuing value to Council and should be incorporated into the Council’s records keeping system. Conversely, some of the records of elected members have not continuing value to Council, need not be incorporated into the Council’s Record keeping system and may be destroyed when reference to them ceases.
Government Records of Continuing Value
Government records of continuing value are records created or received which –
· Contain information that is of administrative value to Council. These records may be referred to for many administrative purposes, including the need:-
§ To check an interpretation of Council policy or the rationale behind it,
§ To check the facts on a particular case or provide information to management,
§ To monitor progress and coordination of responses to issues,
§ To document formal communications and/or transactions (e.g. a minute, report or submissions) between elected members and another party, and
§ To document elected members’ decisions, directives, reasons and actions.
· Contain information that is of legal value to Council on the basis that there are statutory requirements or court orders that stipulate the retention of records, which must be observed.
· Contain information of fiscal value to Council that includes original records documentating the receipt, expenditure and control of public money that must be left for a period of time, and will facilitate transparent accountability by the officers responsible.
· Contain information of evidential value to Council such as those that contain information about the legal rights and obligations of the Local Government including elected members, ratepayers, organisations and the general community.
· Contain information of historical value to Council and to the State.
Government Records of No Continuing Value
Government records of no continuing value are records which –
· Are considered ephemeral in that they do not have the attributes stated above and only need to be kept for a limited or short period of time, for example, a few hours or a few days.
· Have only a facilitative or routine instructional value and are used to further some minor activity.
Types of Records created and received by Elected Members
The following descriptions and guidelines relate to records created in any format (e.g. paper, word-processed document, email) or received by any method (e.g. post, fax, email, hand-delivered). Each Council is to develop procedures for Elected Members to forward records of continuing value to the Council for incorporating into the record keeping system.
Appointment Books see Diaries
Calendars see Diaries
Diaries
Diaries, appointment books and desk calendars (e.g. bunch dates) are generally used to record appointments. They may also be used to record messages and notes, some of which may only be an aide memoire of a routine nature, and some of which may be of significance to the conduct of Council business.
It is strongly recommended that elected members maintain separate diaries or appointment books for personal and official use.
Guidelines
· Elected Members’ diaries or appointment books which have been used to records basic information such as dates and times of meetings and other appointments; and
· Elected members’ diaries and appointment books which have been used to record notes and messages, which have been recorded elsewhere and incorporated into the Council’s record keeping system.
have no continuing value and may be destroyed when reference to them ceases in accordance with the General Disposal Authority for Local Government Records (GDALG, ref: 1.10) - As stated by the State Records Act 2000 and Local Government Act 1995.
· Elected members’ diaries and appointment books, which have been used to record notes and messages of significance to Council business and are not recorded elsewhere
Have continuing value and are to be forwarded to the Local Government (LG) office for incorporation into the Council’s record keeping system (GDALG ref: 1.10)
Drafts
A draft record is the preliminary form of any writing in electronic or paper formats. Draft records include outlines of addresses, speeches, reports, correspondence, file notes, preparatory notes, calculations and earlier versions of the draft. Drafts may or may not be circulated to other Elected Members or staff of the Council for comment or revision.
Guidelines
· Drafts of addresses, speeches, reports, correspondence, file notes that are not circulated to other elected members or staff of the Council, and of which the final version has been produced and forwarded for incorporation into the Council’s record keeping system; and
· Drafts circulated to other elected members or staff of the Council, where only editorial or typographical changes have occurred, and of which a final version has been produced and forwarded for incorporation into the Council’s record keeping system
have no continuing value and may be destroyed when reference to them ceases (in compliance with the City’s GDA policy) (GDALG ref: 1.116)
· Drafts which document significant decisions, reasons and actions or contain significant information that is not contained in the final form of the records – for example:
§ Drafts which contain significant or substantial changes or annotations.
§ Drafts relating to the formulation of legislation, legislative proposals and amendments.
§ Draft relating to the formulation of policy and procedures, where the draft provides evidence of the processes involved or contains significantly more information than the final version.
§ Drafts of legal documents (contracts, tenders etc).
Have continuing value and are to be forwarded to the LG Office for incorporation into the Council’s record keeping system.
Duplicates
Duplicates are exact reproductions or copies of records where the original or authorised copy of the record is captured in the Council’s record keeping system.
For duplicates of records issued to an Elected Member for comment or revision, see DRAFTS.
Guidelines
· Duplicates of records issued to an elected member by the Council for information or reference purposes only and where the original or authorised copy is captured in the Council’s record keeping system; and
· Duplicates of internal or external publications issues or received for information or reference purposes (e.g. annual reports, brochures, trade journals, price lists)
have no continuing value and may be destroyed when reference to them ceases (GDALG ref 1.11.1)
· Duplicates of records received by the elected member and sourced from outside the Local Government that are relevant to furthering the business activity of the Council
have continuing value and are to be forwarded to the LG office for incorporation into the Council’s record keeping system.
Facilitating Instructions see Messages
Messages
Messages
and other facilitating instructions may be sent or received via a range of methods,
such as telephone and voice-mail, email, post-it or sticky notes,
facsimile, pieces of paper, transmission reports.
Messages and facilitating instructions may be sent or received on a variety of matters. Some messages or facilitating instructions will have continuing value, as they are considered significant to the conduct of Council business. Others, such as those very routine in nature will only have a short-term value.
Email and facsimile are considered records, and as such are treated the same way as mailed items into the City.
Guidelines
· Routine facilitative instructions, such as edit corrections, distribution lists for information purposes, simple administrative instructions and social invitations and messages; and
· Original messages that have been transferred or transcribed into appropriate formats for incorporation into the Council’s record keeping system; and
· Messages that do not relate to the business functions of the Council,
have no continuing value and may be destroyed when reference to them ceases (in compliance with the City’s GDA policy). (GDALG ref 1.11.5)
· Messages or facilitating instructions which contain information relating to the business functions of the Council such as directives, proposals, recommendations, definitions or interpretations from the Elected Member to another party or vice versa; and
· Messages or facilitating instructions that are part of an actual business transaction itself, or have policy/procedure implications, or otherwise identified as being significant to the conduct of Council business.
have continuing value and are to be forwarded to the LG Office for incorporation into the Council’s record keeping system (GDALG ref: 1.11.5)
Working Papers/Records
Working papers, background notes and reference material that are used to prepare or complete other documents. These documents become the official record and should be forwarded for capture into the Council’s record keeping system.
Guidelines
· Working papers / records that are primarily facilitative and do not relate to:-
§ Significant decisions, reasons or actions; and
§ Do not contain significant information; and
§ Where the final document has been forwarded for capture into the Council’s record keeping system.
have no continuing value and may be destroyed when reference to them ceases (in compliance with the City’s GDA policy). (GDALG ef: 1.11.9)
· Working papers / records which document significant decisions, reasons and actions OR contain significant information (even if that information is not contained in the final form of the document).
have continuing value and are to be forwarded to the LG Office for incorporate into the Council’s record keeping system. (GDALG ref: 1.11.9)
Correspondence
This section deals with government records not covered under the previous headings and relates to correspondence or “mail” received and sent by elected members.
It covers correspondence received or sent by Elected Members’ in any format (e.g. by post, fax, email, courier, hand-delivered) whether received or sent at the Council offices or at an elected member’s private residence / post box.
Guidelines
· Correspondence addressed to elected members at the Council office, including that marked Private, Confidential, Personal, Himself/Herself, etc, should be opened by designated officers, and if of continuing value, incorporates into Council’s record keeping system, before forwarding to the elected member.
· Correspondence addressed to elected members at their private address / post box that is a government record and is of continuing value, should be forwarded for incorporation into Council’s record keeping system along with any response which the elected member may have made.
· Correspondence of no continuing value need not be incorporated into the Council’s record keeping system and may be destroyed when reference to it ceases.
Responsibility for Implementation
Director, Corporate Services
CARRIED UNANIMOUSLY
EndOfRecommendation - This line will not be printed Please do NOT delete
File Ref: S02/0080V01
File Name: AA Resignation of Cr Gray as delegate from Yanchep Two Rocks Community Bus Management Committee External Committee .doc This line will not be printed dont delete
Responsible Officer: Director, Governance & Strategy
Disclosure of Interest: Nil
Author: Tammy Cumbers
Meeting Date: 12 December 2006
Attachment(s): Nil
Moved Cr Stewart, Seconded Cr Steffens
That Council APPOINT by an ABSOLUTE MAJORITY Cr Loftus as the replacement delegate to the Yanchep Two Rocks Community Bus Management Committee (External Committee).
CARRIED UNANIMOUSLY &
BY ABSOLUTE MAJORITY
EndOfRecommendation - This line will not be printed Please do NOT delete
File Ref: S07/0057V03
File Name: AA Donation Requests to be Considered by Council.doc This line will not be printed dont delete
Responsible Officer: Director, Governance & Strategy
Disclosure of Interest: Nil
Author: Rhonda Bowman
Meeting Date: 12 December 2006
Attachment(s): 1
PROCEDURAL MOTION
Moved Cr Salpietro, Seconded Cr Cvitan
That doint point 3 be referred back to Administration for further investigation.
CARRIED UNANIMOUSLY
Moved Cr Stewart, Seconded Cr Steffens
That Council:-
1. APPROVE a donation of $600.00 to Southern Cross Educational Enterprises for sponsorship of Bethany, Joshua and Hannah Throns to support their participation in the South Pacific Student Convention held in Christchurch from the 3 to 12 December 2006.
2. NOT APPROVE a request for a $1,000.00 donation to the Sun City Phoenix Basketball Club towards the costs of holding a junior three on three basketball competition on Wednesday 24 January 2007 at the Phil Renkin Centre in Two Rocks.
4. NOT APPROVE a donation of $8,638.00 to the Wanneroo Bridge Club for a waiver of fees for the hire of the Wanneroo Recreation Centre for 2007.
5. NOT APPROVE a donation towards a waiver of fees to the Wanneroo Indoor Archery for the hire of the Lake Joondalup Pavilion for 2007.
6. NOT APPROVE a donation of $124.00 to the Girrawheen Primary School P & C for a waiver of fees for the hire of the Girrawheen Senior Citizen Hall for a school disco held on Friday 27 October 2006.
CARRIED UNANIMOUSLY
EndOfRecommendation - This line will not be printed Please do NOT delete
Cr Stewart declared an indirect financial interest in GS04-12/06 Community Funding Allocations October 2006 Round due to being President of the Wanneroo Cricket Association and receives an honorarium and left chambers at 7.45pm.
Mayor Kelly declared an impartial interest in GS04-12/06 Community Funding Allocations October 2006 Round due to being the Patron of the Two Rocks Sea Rescue Group and is a member of the Yanchep Two Rocks RSL Sub-branch.
Cr Goodenough declared an impartial interest in GS04-12/06 Community Funding Allocations October 2006 Round due to being the Anglican Bishop’s representative on the Peter Moyes Anglican Community School Council.
Cr Roberts declared an impartial interest in GS04-12/06 Community Funding Allocations October 2006 Round due to being a member of staff at the Peter Moyes Anglican Community School and also People Against Vandalism.
File Ref: S17/0132V01
File Name: AA Community Funding Allocations October 2006 Round.doc This line will not be printed dont delete
Responsible Officer: Director, Governance & Strategy
Disclosure of Interest: Nil
Author: Rhonda Bowman
Meeting Date: 12 December 2006
Attachment(s): 1
Moved Cr Treby, Seconded Cr Newton
That Council ENDORSES the recommendations of the Community Funding Working Party, made at the Community Funding Working Party Meeting on Tuesday, 28 November 2006, as indicated below:-:-
a) ENDORSES funding of $1,500.00 via Community Development Funding to Children in Action Inc to support the Children In Action Easter Camp.
b) ENDORSES funding of $85.00 via Community Development Funding to the Continence Advisory Service of WA Inc to support a waiver of fees for “Simply Busting?”.
c) DOES NOT SUPPORT funding via Community Development Funding to the Girrawheen Senior High School for The Energy Lab.
d) DOES NOT SUPPORT funding via Community Development Funding to Indoor Cricket Australia for the Schools Development Program.
e) ENDORSES funding of $1,000.00 via Community Development Funding to the Koondoola Community Kindergarten to support the cost of shade sails for the playground area subject to the necessary approvals being obtained from the City of Wanneroo.
f) DOES NOT SUPPORT funding via Community Development Funding to the Marangaroo Family Centre for the Spaceage Advertising Sign.
g) ENDORSES funding of $1,200.00 via Community Development Funding to the Merriwa Primary School to support the costs of an artist in residence for the Community Quilt project subject to proof of adequate public liability insurance and incorporation.
h) ENDORSES funding of $2,756.40 via Community Development Funding to NazCare Inc in partnership with Gnangara Community Church of the Nazarene Inc to support “Driving Deadly” subject to proof of adequate public liability insurance.
i) DOES NOT SUPPORT funding via Community Development Funding to People Against Vandalism for communications equipment however ALLOCATES two (2) computers from the City’s decommissioned computer program.
j) ENDORSES funding of $5,000.00 via Community Development Funding to People Against Vandalism for Purchase of Chemicals and Paint
k) DOES NOT SUPPORT funding via Community Development Funding to Quinns Rocks Fishing Club Inc for team uniforms for 2007 State Boating Angling Championships.
l) ENDORSES funding of $1,000.00 via Community Development Funding to Soroptimist International of Joondalup to support Riding for Disabled.
m) ENDORSES funding of $11,100.00 via Community Development Funding to Two Rocks Sea Rescue Group Inc to support the re-motor of the rescue and training vessel.
n) DOES NOT SUPPORT funding via Community Development Funding to Whitfords Volunteer Sea Rescue.
o) ENDORSES funding of $2,000.00 via Community Event Sponsorship to Ashdale Gardens Residents Association Inc to support Summer in the Park subject to proof of adequate public liability insurance and the submission and subsequent approval of an Event Approval Form by the City.
p) ENDORSES funding of $1,400.00 via Community Event Sponsorship to North Metropolitan Community Cricket Association Inc to support Score for Charity 2007.
q) ENDORSES funding of $2,500.00 via Community Event Sponsorship to Peter Moyes Anglican Community School to support the Mindarie Kite Festival through the provision of entertainment by the City of Wanneroo as determined by the Director, Community Development and subject to proof of adequate public liability insurance.
r) DOES NOT SUPPORT funding via Community Event Sponsorship to the Quinns Rocks Cricket Club for Day Night Cricket Matches.
s) ENDORSES funding of $1,000.00 via Community Event Sponsorship to Quinns Rocks RSL Sub Branch to support Vietnam Veterans Day 2007.
t) ENDORSES funding of $300.00 via Community Event Sponsorship to Soroptimist International of Joondalup to support a waiver of fees for the Carers Lunch on the condition that no alcohol is served at the event.
u) ENDORSES funding of $1,100.00 via Community Event Sponsorship to Whitford Church to support North Coast Junior Idol with a trophy and a $1,000.00 music scholarship for the winner.
v) ENDORSES funding of up to $2,000.00 via Community Event Sponsorship to Yanchep Two Rocks RSL Sub Branch to support a 20 year anniversary event in 2007 subject to an application being received by the City of Wanneroo to the satisfaction of the Director, Governance and Strategy.
Amendment
That the words “DOES NOT” be deleted and the words “of $1,000.00” be added after the word “funding”.
File Ref: S17/0132V01
File Name: AA Community Funding Allocations October 2006 Round.doc This line will not be printed dont delete
Responsible Officer: Director, Governance & Strategy
Disclosure of Interest: Nil
Author: Rhonda Bowman
Meeting Date: 12 December 2006
Attachment(s): 1
Moved Cr Goodenough, Seconded Cr Roberts
That Council ENDORSES the recommendations of the Community Funding Working Party, made at the Community Funding Working Party Meeting on Tuesday, 28 November 2006, as indicated below:-:-
a) ENDORSES funding of $1,500.00 via Community Development Funding to Children in Action Inc to support the Children In Action Easter Camp.
b) ENDORSES funding of $85.00 via Community Development Funding to the Continence Advisory Service of WA Inc to support a waiver of fees for “Simply Busting?”.
c) DOES NOT SUPPORT funding via Community Development Funding to the Girrawheen Senior High School for The Energy Lab.
d) DOES NOT SUPPORT funding via Community Development Funding to Indoor Cricket Australia for the Schools Development Program.
e) ENDORSES funding of $1,000.00 via Community Development Funding to the Koondoola Community Kindergarten to support the cost of shade sails for the playground area subject to the necessary approvals being obtained from the City of Wanneroo.
f) DOES NOT SUPPORT funding via Community Development Funding to the Marangaroo Family Centre for the Spaceage Advertising Sign.
g) ENDORSES funding of $1,200.00 via Community Development Funding to the Merriwa Primary School to support the costs of an artist in residence for the Community Quilt project subject to proof of adequate public liability insurance and incorporation.
h) ENDORSES funding of $2,756.40 via Community Development Funding to NazCare Inc in partnership with Gnangara Community Church of the Nazarene Inc to support “Driving Deadly” subject to proof of adequate public liability insurance.
i) DOES NOT SUPPORT funding via Community Development Funding to People Against Vandalism for communications equipment however ALLOCATES two (2) computers from the City’s decommissioned computer program.
j) ENDORSES funding of $5,000.00 via Community Development Funding to People Against Vandalism for Purchase of Chemicals and Paint
k) DOES NOT SUPPORT funding via Community Development Funding to Quinns Rocks Fishing Club Inc for team uniforms for 2007 State Boating Angling Championships.
l) ENDORSES funding of $1,000.00 via Community Development Funding to Soroptimist International of Joondalup to support Riding for Disabled.
m) ENDORSES funding of $11,100.00 via Community Development Funding to Two Rocks Sea Rescue Group Inc to support the re-motor of the rescue and training vessel.
n) DOES NOT SUPPORT funding via Community Development Funding to Whitfords Volunteer Sea Rescue.
o) ENDORSES funding of $2,000.00 via Community Event Sponsorship to Ashdale Gardens Residents Association Inc to support Summer in the Park subject to proof of adequate public liability insurance and the submission and subsequent approval of an Event Approval Form by the City.
p) ENDORSES funding of $1,400.00 via Community Event Sponsorship to North Metropolitan Community Cricket Association Inc to support Score for Charity 2007.
q) ENDORSES funding of $2,500.00 via Community Event Sponsorship to Peter Moyes Anglican Community School to support the Mindarie Kite Festival through the provision of entertainment by the City of Wanneroo as determined by the Director, Community Development and subject to proof of adequate public liability insurance.
r) DOES NOT SUPPORT
funding of $1,000.00 via Community Event Sponsorship to the Quinns Rocks
Cricket Club for Day Night Cricket Matches.
s) ENDORSES funding of $1,000.00 via Community Event Sponsorship to Quinns Rocks RSL Sub Branch to support Vietnam Veterans Day 2007.
t) ENDORSES funding of $300.00 via Community Event Sponsorship to Soroptimist International of Joondalup to support a waiver of fees for the Carers Lunch on the condition that no alcohol is served at the event.
u) ENDORSES funding of $1,100.00 via Community Event Sponsorship to Whitford Church to support North Coast Junior Idol with a trophy and a $1,000.00 music scholarship for the winner.
v) ENDORSES funding of up to $2,000.00 via Community Event Sponsorship to Yanchep Two Rocks RSL Sub Branch to support a 20 year anniversary event in 2007 subject to an application being received by the City of Wanneroo to the satisfaction of the Director, Governance and Strategy.
CARRIED UNANIMOUSLY
The amendment became the substantive motion.
CARRIED UNANIMOUSLY
EndOfRecommendation - This line will not be printed Please do NOT delete
Cr Stewart returned to chambers at 7.46pm
ATTACHMENT 1 Page 1 of 4
File Ref: S41/0063V01
Responsible Officer: Director Governance & Strategy
Disclosure of Interest: Nil
Attachments: Nil
Author: Phil Thompson
Meeting Date: 12 December 2006
Attachment/s: Nil
File Name: BA GIRRAWHEEN KOONDOOLA REVITALISATION PROJECT.doc This line will not be printed dont delete
Moved Cr Hughes, Seconded Cr Treby
That Council:-
1. SEEKS to establish a partnership agreement with the State Government to facilitate the undertaking of a Girrawheen-Koondoola Revitalisation Project, and UNDERTAKES discussions with relevant State Government agencies for this purpose.
2. REFERS the proposed Girrawheen-Koondoola Revitalisation Project to the North West Corridor Coordinating Committee for consideration.
CARRIED UNANIMOUSLY
EndOfRecommendation - This line will not be printed Please do NOT delete
File Ref: S09/0126V01
Responsible Officer: Chief Executive Officer
Disclosure of Interest: Nil
Attachments: Nil
Author: Daniel Simms
Meeting Date: 12 December 2006
File Name: A Delegation of Authority Over the Council Recess.doc This line will not be printed dont delete
Moved Cr Roberts, Seconded Cr Hughes
That Council:
1. DELEGATE BY ABSOLUTE MAJORITY to the Chief Executive Officer the power to make decisions on behalf of the local government with the exemption of those powers or decisions that are detailed in Section 5.43 of the Local Government Act 1995, commencing on 13 December 2006 and concluding on 29 January 2007. The delegation is subject to any decisions being made by agreement with the Mayor (or his nominee) and a report on those decisions being provided to Council at the conclusion of the delegation period.
2. DELEGATE BY ABSOLUTE MAJORITY to the Chief Executive Officer the authority to determine tenders in accordance with the Local Government Act (Functions and General) Regulations 1996 (in addition to the current delegated authority to the Chief Executive Officer to award tenders to a maximum of $250,000) the authority to determine the tender number 06066 - supply, installation and commissioning of a two way radio system.
CARRIED UNANIMOUSLY &
BY ABSOLUTE MAJORITY
File Ref: S24/0023V01
File Name: A Appointment of Acting Chief Executive Officer.doc This line will not be printed dont delete
Responsible Officer: Chief Executive Officer
Disclosure of Interest: Nil
Author: Daniel Simms
Meeting Date: 12 December 2006
Attachments Nil
Moved Cr Roberts, Seconded Cr Hughes
That Council APPOINT
the Director Community Development, Mrs Fiona Bentley, to the position of
Acting Chief Executive Officer for the period 27 December 2006 to the
02 January 2007 inclusive.
CARRIED UNANIMOUSLY
EndOfRecommendation - This line will not be printed Please do NOT delete
File Ref: S07/0057V03
File Name: A Donation Requests ConsideredUnder Delegated Authority of the Chief Executive Officer.doc This line will not be printed dont delete
Responsible Officer: Chief Executive Officer
Disclosure of Interest: Nil
Attachments: Nil
Author: Rhonda Bowman
Meeting Date: 12 December 2006
Moved Cr Roberts, Seconded Cr Hughes
That Council NOTES the delegated determination of requests received by the City of Wanneroo in November 2006 for donations, sponsorships and waiver of fees and charges, which are as follows:-
|
|
Organisation |
Activity |
Action |
Reason |
|
1 |
Skate Australia |
2006 World Artistic
Figure Skating Championships held in Spain on |
APPROVE a donation of $500.00 to Skate Australia for sponsorship of Lara Walters to support her participation in the 2006 World Artistic Figure Skating Championships held in Spain on 26 November 2006. |
This request satisfies the criteria of the policy. |
|
2 |
School Sport WA |
Touch Rugby National Schools Championships held in Perth from 22 to 27 October 2006. |
APPROVE a donation of $200.00 to School Sport WA for sponsorship of Callum Francis to support his participation in the touch Rugby National Schools Championships held in Perth from 22 to 27 October 2006. |
This request satisfies the criteria of the policy. |
|
3 |
Football West |
Qantas National Soccer Championship held in New South Wales from 29 September to 7 October 2006. |
APPROVE a donation of $200.00 to Football West for sponsorship of Adam Bowers for his participation in the Qantas National Soccer Championships held in New South Wales from 29 September to 7 October 2006. |
This request satisfies the criteria of the policy. |
|
4 |
Christian Brothers Community – Eddy’s Carpentry Shop |
Request for a donation to support the costs of the purchase of a sanding machine. |
APPROVE a donation of $328.00 to the Christian Brothers Community Eddy’s Carpentry Shop to support the costs of the purchase of a sanding machine. |
This request satisfies the criteria of the policy. |
|
5. |
St Anthony’s Roman Catholic Church Wanneroo |
Request for a waiver of fees for the hire of the Jacaranda Amphitheatre for a Young Family and Children’s Christmas Vigil Mass to be held on 24 December 2006. |
APPROVE a donation of $150.00 to St Anthony’s Roman Catholic Church Wanneroo as a 50% waiver of fees for the hire of the Jacaranda Amphitheatre for a Young Family and Children’s Christmas Vigil Mass to be held on 24 December 2006. |
This request satisfies the criteria of the policy and approval is for half the cost of the hire as the policy states that only 50% of a request for a waiver of fees will be supported. |
CARRIED UNANIMOUSLY
EndOfRecommendation - This line will not be printed Please do NOT delete
File Name: AMayor Kelly.doc This line will not be printed dont delete
File Ref: S/0062V01
Responsible Officer: Mayor Kelly
Disclosure of Interest: Nil
Attachment(s): 2
Moved Mayor Kelly, Seconded Cr Salpietro
That Council by an ABOSULTE MAJORITY:
1. ESTABLISH a Cities of Joondalup and Wanneroo North West Corridor Co- coordinating Committee.
2. ADOPT the Terms of Reference for the Cities of Joondalup and Wanneroo North West Corridor Co- coordinating Committee as detailed in (Attachment 2).
3. APPOINT Mayor Jon Kelly and Crs
a) Cr Newton
b) Cr Treby
c) Cr Gray
d) Cr Steffens
4. APPOINT the following deputy delegates
a) Cr Monks
b) Cr Roberts
CARRIED UNANIMOUSLY &
BY ABSOLUTE MAJORITY
ATTCHMENT 2 Page 1 of 3

ATTACHMENT 2 Page 2 of 3

ATTACHMENT 2 Page 3 of 3

File Name: AMayor Kxxxxxxxxxxxxxxxx.doc This line will not be printed dont delete
File Ref: CF-001
Responsible Officer: Nil
Disclosure of Interest: Nil
Attachment(s): 1
Moved Mayor Kelly, Seconded Cr Salpietro
With the consent of the mover and seconder in point 3(iv) the word “Two” was replaced with “Three” and the elected members appointed were included being “Councillors Gray, Monks and Newton”
That Council by ABSOLUTE MAJORITY:
1. ENDORSE IN PRINCIPLE the development of a Wall of Honour to celebrate the achievements and contributions of the City’s Pioneer’s to the district.
2. ESTABLISH a Wall of Honour Advisory Committee to progress the design and location of the Wall of Honour in accordance with the Terms of Reference as detailed in (Attachment 1).
3. APPOINT the following representatives to the Wall of Honour Advisory Committee:
i) Mayor Kelly
ii) President of the Wanneroo Historical Society
iii) Two member of the Wanneroo Historical Society
iv)
Two
Three elected members: Councillors Monks, Gray and Newton
v) Director Community Development
vi) Director Governance & Strategy
CARRIED UNANIMOUSLY &
BY ABSOLUTE MAJORITY
EndOfRecommendation - This line will not be printed Please do NOT delete

ATTACHMENT 1 Page 2 of 3

ATTACHMENT 1 Page 3 of 3

File Ref: CE-005V01
Responsible Officer: Director, Governance & Strategy
Disclosure of Interest: Nil
Attachment(s): 2
Moved Cr Salpietro, Seconded Cr Treby
That Council:-
1. Pursuant to Section 6.8(1)(b) of the Local Government Act 1995, APPROVES BY ABSOLUTE MAJORITY expenditure of up to $15,000 for the construction of a series of Honour Boards to be displayed in Council Chambers.
2. Pursuant to Section 6.11(2)(b) of the Local Government Act 1995, AUTHORISES BY AN ABSOLUTE MAJORITY the use of monies held in the Elected Members Conference Account for the construction of a series of four Honour Boards referred to in 1. above.
3. NOTES the following consequential budget variation to give affect to 1. and 2. above:-
|
GL No |
From |
To |
Description |
|
717147-9111-315 |
$15,000 |
|
Elected Members Conference |
|
717147-9399-243 |
|
$15,000 |
Elected Members – Material Expenses General (Presentation Items) |
CARRIED UNANIMOUSLY &
BY ABSOLUTE MAJORITY
EndOfRecommendation - This line will not be printed Please do NOT delete
Nil.
Moved Cr Treby, Seconded Cr Steffens
THAT Council move into a Confidential Session to discuss this item under the terms of the Local Government Act 1995 Section 5.23(2), as follows:
· (e)(iii) a matter that if disclosed, would reveal – information about the business, professional, commercial or financial affairs of a person,
· (a) a matter affecting an employee or employees;
CARRIED UNANIMOUSLY
EndOfRecommendation - This line will not be printed Please do NOT delete
Mayor Kelly resumed the meeting at 8.19pm behind closed doors with Councillors Treby, Salpietro, Cvitan, Roberts, Goodenough, Steffens, Stewart, Loftus, Gray, Hughes, Monks and Newton in attendance.
Moved Cr Gray, Seconded Cr Steffens
That the meeting be re-opened to the public.
CARRIED UNANIMOUSLY
EndOfRecommendation - This line will not be printed Please do NOT delete
The meeting was re-opened to the public and recording recommenced at 9.13pm.
Mayor Kelly read aloud the motions.
File Ref: S/0073V12
File Name: SDA Mindarie Regional Council Resource Recovery Facility Member Council Guarantees.doc This line will not be printed dont delete
Responsible Officer: Director Infrastructure
Disclosure of Interest: Nil
Author: Robert Elliott
Meeting Date: 12 December 2006
Moved Cr Stewart, Seconded Cr Loftus
That Council:-
1. APPROVES the financial guarantees required by the Mindarie Regional Council to progress the Resource Recovery Project;
2. AUTHORISES the Mayor and the CEO to execute, under common seal, the Deed of Guarantee as attached.
CARRIED
12/1
For the motion: Mayor Kelly,
Cr Cvitan, Cr Goodenough, Cr Hughes, Cr Loftus,
Cr Monks, Cr Newton, Cr Roberts, Cr Steffens, Cr Stewart, Cr Treby and Cr Gray.
Against the motion: Cr Salpietro.
File Ref: S37/001V01
File Name: SBA St Anthony s Church Land Acquisition.doc This line will not be printed dont delete
Responsible Officer: Director, Governance & Strategy
Disclosure of Interest: Nil
Author: Daniel Simms
Meeting Date: 12 December 2006
Moved Cr Salpietro, Seconded Cr Monks
That Council:-
1. SUPPORT IN PRINCIPLE and without prejudice purchasing approximately 6545 square metres of land to be subdivided from parent Lot 512 Wanneroo Road from the Archdiocese of Perth for the purpose of retaining and restoring St Anthony’s Church and progressing the revitilisation of the Wanneroo Town Centre SUBJECT to a feasibility study being completed that address the following issues:
a) Strategic value of the land in terms of the Wanneroo Town Centre Structure Plan
b) Independent market valuation of the land
c) Implications of headwork’s charges and in particular sewer headwork’s in the context of the partnership arrangement between the City of Wanneroo and the state government
d) Condition Audit of the former St Anthony’s Church and Primary School site
e) A feasibility study on restoration and cost of the St Anthony’s Church and Primary School building
f) Current status of the proposed relocation of the DEC (CALM) District Office
g) The role of the Wanneroo Town Centre partnership with this initiative, and
h) Wanneroo Road treatments as a result of the new structure plan.
2. PROVIDE a report to Council at its meeting on the 20 February 2007 of the outcome of the feasibility study.
Amendment
Moved Cr Gray, Seconded Cr Loftus
To amend point 1 by inserting the words after the word “prejudice” the words “investigating all options including the possible”.
That Council:-
1. SUPPORT IN PRINCIPLE and without prejudice investigating all options including the possible purchasing approximately 6545 square metres of land to be subdivided from parent Lot 512 Wanneroo Road from the Archdiocese of Perth for the purpose of retaining and restoring St Anthony’s Church and progressing the revitilisation of the Wanneroo Town Centre SUBJECT to a feasibility study being completed that address the following issues:
a) Strategic value of the land in terms of the Wanneroo Town Centre Structure Plan
b) Independent market valuation of the land
c) Implications of headwork’s charges and in particular sewer headwork’s in the context of the partnership arrangement between the City of Wanneroo and the state government
d) Condition Audit of the former St Anthony’s Church and Primary School site
e) A feasibility study on restoration and cost of the St Anthony’s Church and Primary School building
f) Current status of the proposed relocation of the DEC (CALM) District Office
g) The role of the Wanneroo Town Centre partnership with this initiative, and
h) Wanneroo Road treatments as a result of the new structure plan.
2. PROVIDE a report to Council at its meeting on the 20 February 2007 of the outcome of the feasibility study.
CARRIED UNANIMOUSLY
the amendment became the substantive motion.
CARRIED UNANIMOUSLY
File Ref: S24/0097V01
File Name: SAA Chief Executive Officer Performance Report.doc This line will not be printed dont delete
Responsible Officer: Mayor Kelly
Disclosure of Interest: Nil
Author: Daniel Simms
Meeting Date: 12 December 2006
Moved Cr Salpietro, Seconded Cr Treby
With the consent of the mover and seconder that point 7 be added.
That Council:-
1. ADOPT the report prepared by Gary Martin of the Chief Executive Officers Performance Review as detailed in Attachment 1 and CONFIRM that the CEO’s Performance Review for 2006 resulted in a high level of satisfactory performance that exceeded the job requirement.
2. AGREE that the CEO met the requirements of the performance bonus agreement.
3. APPROVE a bonus payment to the Chief Executive Officer of $8,750 (being 5 % of the CEO’s previous cash component of his remuneration package of $175,000), and that any such payment be made in consultation with the CEO in respect of the manner of reward within the limit set and legal constraints.
4.
NOTE that the CEO will be on extended leave for the period 3 March 2007
to
15 October 2007.
5. APPOINT Gary Martin to assist Council to conduct the 2007 A/CEO Performance Review for the period 3 March 2007 to 15 October 2007 and the CEO Performance Review for the remaining period.
6. APPOINT Gary Martin to conduct the 3-year salary review in accordance with the CEO Employment contract in November 2007.
7. REQUEST that the CEO gives consideration to the appointment of a Deputy Chief Executive Officer.
CARRIED UNANIMOUSLY
There being no further business, Mayor Kelly closed the meeting at 9.16pm.
In Attendance
JON KELLY, JP Mayor
Councillors:
BRETT TREBY Alexander Ward
SAM SALPIETRO (Deputy Mayor), JP Central Ward
FRANK CVITAN, JP Central Ward
TRACEY ROBERTS Coastal Ward
IAN GOODENOUGH, JP Coastal Ward
RUDI STEFFENS Hester Ward
JOHN STEWART Hester Ward
TERRY LOFTUS North Ward
LAURA GRAY, JP North Ward
COLIN HUGHES South Ward
GLYNIS MONKS, JP Wanneroo Ward
DOT NEWTON, JP Wanneroo Ward