7.00pm, 03 June, 2008
Civic Centre,
Dundebar Road, Wanneroo
Council allows a minimum of 15 minutes for public questions and statements at each Council Meeting. If there are not sufficient questions to fill the allocated time, the person presiding will move on to the next item. If there are more questions than can be dealt with in the 15 minutes allotted, the person presiding will determine whether to extend question time.
Protocols
During the meeting, no member of the public may interrupt the meeting’s proceedings or enter into conversation. Each person seeking to ask questions during public question time may address the Council for a maximum of 3 minutes each.
A register of person’s wishing to ask a question/s at the Council Meeting is located at the main reception desk outside of the Chamber on the night. However, members of the public wishing to submit written questions are requested to lodge them with the Chief Executive Officer at least 30 hours prior to the start of the meeting i.e. noon on the previous day.
The person presiding will control public question time and ensure that each person wishing to ask a question is given a fair and equal opportunity to do so. A person wishing to ask a question should state his or her name and address before asking the question. If the question relates to an item on the agenda, the item number should also be stated.
The following general rules apply to question and statement time:
· Questions should only relate to the business of the council and should not be a statement or personal opinion.
· Only questions relating to matters affecting Council will be considered at an ordinary meeting, and at a special meeting only questions that relate to the purpose of the meeting will be considered. Questions may be taken on notice and responded to after the meeting.
· Questions may not be directed at specific members of council or employees.
· Questions & statements are not to be framed in such a way as to reflect adversely on a particular Elected Member or Officer.
· The first priority will be given to persons who are asking questions relating to items on the current meeting agenda.
· The second priority will be given to public statements. Only statements regarding items on the agenda under consideration will be heard.
Deputations
The Mayor and Councillors will conduct an informal session on the same day as the meeting of the Council at the Civic Centre, Wanneroo, commencing at 6.00pm where members of the public may, by appointment, present deputations. If you wish to present a deputation please submit your request for a deputation in writing, at least three clear business days prior to the meeting addressed to the Chief Executive Officer or fax through to Governance on 9405 5097. A request for a deputation must be received by Governance by 12 noon on the Thursday before the Council Meeting.
· A deputation is not to exceed 3 persons in number and only those persons may address the meeting.
· Members of a deputation are collectively to have a maximum of 10 minutes to address the meeting, unless and extension of time is granted by the Council.
Please ensure that mobile phones are switched off before entering the Council Chamber. Any queries on this agenda, please contact Governance on 9405 5027 or 9405 5018.
Recording of Council Meetings Policy
Objective
· To ensure that there is a process in place to outline access to the recorded proceedings of Council.
· To emphasise that the reason for tape recording of Council Meetings is to ensure the accuracy of Council Meetings.
Statement
Recording of Proceedings
(1) Proceedings for meetings of the Council, of electors and of the Audit Committee shall be recorded, by the City, on sound recording equipment except, in the case of meetings of the Council or the Audit Committee, where the Council or the Committee, as the case may be, closes the meeting to the public.
(2) Notwithstanding sub clause (1), proceedings of a meeting of the Council or of the Audit Committee which is closed to the public shall be recorded where the Council or the Audit Committee, as the case requires, resolves to do so.
(3) No member of the public is to use any electronic, visual or vocal recording device or instrument to record the proceedings of the Council or a committee without the written permission of the Council.
Access to Recorded Tapes
(4) Members of the public may purchase a copy of the taped proceedings or alternatively listen to recorded proceedings with the supervision of a City Officer.
(5) Elected Members may listen to a recording of the Council proceedings upon request, free of charge. However, no transcript will be produced without the approval of the Chief Executive Officer.
(6) Costs of providing taped proceedings to members of the public will be the cost of the tape plus staff time to make the copy of the proceedings. The cost of supervised listening to recordings will be the cost of the staff time. The cost of staff time will be set in the City’s schedule of fees and charges each year.
Retention of Tapes
(7) Recordings pertaining to the proceedings of Council Meetings shall be retained in accordance with the Library Board of Western Australia Act (1951-83), General Disposal Authority for Local Government Records. The current requirement for the retention of recorded proceedings is thirty (30) years.
Disclosure of Policy
(8) This policy shall be printed within the agenda of all Council, Special Council, Electors and Special Electors and the Audit Committee meetings to advise the public that the proceedings of the meeting are recorded.

Notice is given that the next Ordinary Council Meeting will be held at the Civic Centre,
Dundebar Road, Wanneroo on Tuesday 03 June, 2008 commencing at 7.00pm.
C JOHNSON
Chief Executive Officer
29 May 2008
CONTENTS
Item 2 Apologies and Leave of Absence
Item 4 Confirmation of Minutes
OC01-06/08 Minutes of Ordinary Council Meeting held on 06 May 2008
Item 5 Announcements by the Mayor without Discussion
Item 6 Questions from Elected Members
PT01-05/08 Opposition to BMX Track, Addison Park, Merriwa
Town Planning Schemes and Structure Plans
PD03-06/08 Proposed Omnibus Amendment No. 4B to Various Agreed Structure Plans
PD07-06/08 Development Applications Determined by Delegated Authority for April 2008
PD08-06/08 Subdivision Applications Determined Under Delegated Authority During April 2008
PD09-06/08 Petition No PT01-04/08 - Two Storey Dwelling, Lot 842 (23) Eastcliffe Street, Madeley
IN04-06/08 Tender No 08015 - Provision of Mechanical and HVAC Services for a Period of Three Years
IN05-06/08 Tender No 08017 - Development of Ferrara Reserve Community Garden
IN06-06/08 Mulch Promotion Using Free Mulch Vouchers
IN07-06/08 Metropolitan Regional Road Program 2009/2010
CS01-06/08 Warrant of Payments - for the Period to 30 April 2008
CS02-06/08 Financial Activity Statements for Period ended 30 April 2008
CS03-06/08 Closure of Portions of Exmouth Drive, Butler and Marmion Avenue, Butler-Jindalee
CS04-06/08 Wanneroo Bmx Club - Extension of Lease
CS05-06/08 Proposed Lease for Commercial Tenancy 2 - Clarkson Library
CS06-06/08 Proposed Sale of Portion of Lot 600 Wattle Avenue, Neerabup
CD03-06/08 Applications to Keep More than Two Dogs
GS01-06/08 Donation Requests to be Considered by Council
GS02-06/08 Three Year Audit Plan 2008-2011
CE01-06/08 Donation Requests Considered Under the Delegated Authority of the Chief Executive Officer
CE02-06/08 City of Wanneroo Salaried Officers Collective Agreement 2008
CE03-06/08 Sponsorship of Relay for Life Charity Event
MN01-06/08 Designation of Senior Employees
AGENDA
That the minutes of the Ordinary Council Meeting held on 06 May 2008 be confirmed.
Cr Goodenough presented a petition with 95 signatures objecting to the planned BMX Track at Addison Park, Merriwa.
UPDATE
Administration is undertaking additional consultation with young people in the area. The purpose of this consultation will be to re-assess the need for the facility and the suitability of the proposed site.
The outcome of this consultation and recommendations coming from it will be reported to Council on 1 July 2008.
File Ref: S09/0102V01
File Name: AA Removal of Concession Under Residential Design Codes Affecting Grouped Dwellings in R20 Areas.doc This line will not
Responsible Officer: Acting Director, Planning and Development
Disclosure of Interest: Nil
Author: Phil Thompson
Meeting Date: 3 June 2008
Attachments: Nil
StartStrip - This line will not be printed Please do NOT delete
Issue
To consider a response to removal of a concession under Residential Design Codes affecting grouped dwellings in R20 areas.
Background
Revised Residential Design Codes were gazetted by the State Government on 29 April 2008. Under the previous Residential Design Codes (of 2002), a concession was included for R20 areas which enabled two grouped dwellings to be built on a lot of between 900 and 1000m2 in area, provided the area concerned was coded R20 prior to 4 October 2002. (Normally, a minimum lot size of 1000m2 would be expected to be required for two grouped dwellings on an R20 coded lot).
The concession in the 2002 Codes reflected an historic acceptance of duplex development on lots between 900m2 and 1000m2 and this was also reflected in a requirement under an earlier version of the Codes (of 1991) which required a minimum average site area per dwelling in R20 areas of 450m2 (and therefore meaning a minimum lot size requirement of 900m2 for two grouped dwellings).
In 2006, draft modified Codes were released by the West Australian Planning Commission (WAPC) for public comment. The draft proposed a ‘sunset clause’ of 31 October 2008 for the concession. The WAPC Planning Bulletin No 89 recently released on this matter advises that:
“Following submissions, this has been extended to 30 April 2009 (cl 6.1.3 A3iv). This extension has taken account of delays in the Water Corporation’s Sewerage infill program.
The WAPC will issue at least two public notices approximately six months and three months before the cut-off date advising of the expiration of the transitional concession period.”
Detail
The new Residential Design Codes which were gazetted on 29 April 2008 includes the following Clause 6.1.3 A3iv on this matter:
“in the case of grouped dwellings in areas coded R20 as at 4 October 2002, the average site area shall be 450m2 where applications are made prior to and including 30 April 2009.”
Consultation
The Department for Planning and Infrastructure (DPI) which advised WAPC on the revision of the Codes, consulted with various stakeholders in 2004, and also released a draft of the proposed new Codes in 2006 for public comment.
Comment
Over recent months, Administration has been receiving many enquiries from local property owners who would be disadvantaged by the removal of the concession on 30 April 2009.
Owners who are particularly concerned are those whose properties are in some of the older residential areas (e.g. parts of the Quinns Rocks Townsite and Two Rocks) which are still unsewered, and are therefore unable to apply to build two group dwellings while the concession exists due to non-compliance with the State Government Sewerage requirements, which requires a minimum site area per dwelling in unsewered areas of 2000m2.
Although the expiration date for the concession was moved back from 31 October 2008 to 30 April 2009 in consideration of delays in the Water Corporation’s sewerage infill program, the reality is that not all of the previously unsewered areas will be sewered by that date and these owners will therefore be significantly affected by this. Many advise that they were relying on a future opportunity to have two grouped dwellings on their property to assist their superannuation. Other owners have advised that while they may technically be in a position to take advantage of the concession prior to its expiration, this would mean a significant disruption to their previous plans, where they may have been looking to apply for two grouped dwellings on their property in the longer term, when it better suited their stage of life.
With regard to the matter of why the concession is to be removed, WAPC Planning Bulletin No 77 of March 2006 dealt with the proposed revisions to the Codes, and in respect to this change to the Codes, gave as its “Reason for proposed change” : “To set a time limit on these transition provisions for the first time”. This is not particularly helpful as it does not say why it was proposed to set a time limit.
The concerns being raised by affected landowners as indicated above are considered valid and represent good reasons why the concession should not have a sunset clause applied. A further reason is that it is likely to result in a lesser diversity and density of residential areas, and this would be contrary to the City’s Smart Growth and Local Housing Strategies, as well as the WAPC’s Network City Strategy.
It is therefore recommended that the City initiates actions (as detailed in the report recommendation which follows) aimed at changing the Codes to remove the sunset clause.
Should the City be unsuccessful in having this change made to the Codes, it may be possible to alleviate some of the concerns raised by affected landowners through amendment of District Planning Scheme No 2 (DPS2), however such amendment would require the support of the WAPC and Minister for Planning and Infrastructure.
Further (again in the event that the City may be unsuccessful in having the proposed change made to the Codes), in the case of the presently unsewered areas, some assistance may be able to be provided to those areas if the WAPC agreed to approving strata-subdivisions for grouped dwellings in those areas, subject to provision of deep sewer. Such approvals are valid for 3 years, allowing that extra time for owners to have deep sewer provided.
Statutory Compliance
The recommended changes to the Residential Design Codes will involve a change to State Planning Policy 3.1, which involves a process set out under the Planning and Development Act 2005.
Strategic Implications
The recommended change to the Codes and the recommended approach to seeking this change would be supportive of the following strategies of the City:
1. Strategic Plan 2006-2021:
· Strategy 1.5.2: “Encourage the development of more diverse residential and commercial centres”.
· Strategy 4.1.1: “Establish and actively manage a range of partnerships that add value to our services and support the changing and diverse needs of the community”.
2. Smart Growth Strategy:
Action 1 b. ii): “Encourage a variety of housing types to meet changing lifestyle demands”.
3. Local Housing Strategy:
Objective 9.1 (a): “Ensure that a wide range and choice of housing is provided to meet the changing social and economic needs of the community, and to understand the community’s attitude to housing choice”.
Policy Implications
Nil
Financial Implications
The sunset clause on the concession may have implications for how developer contributions are calculated in the East Wanneroo Cells – effectively cost neutral.
Voting Requirements
Simple Majority.
EndStrip - This line will not be printed Please do NOT delete
Recommendation
That Council:-
1. WRITES to the Western Australian Local Government Association asking it to seek the support of other local governments to a request being made to the State Government for the Residential Design Codes to be amended to remove the sunset clause of 30 April 2009 for the concession relating to minimum average site area requirements for grouped dwellings on lots coded R20 prior to 4 October 2002, and for the Association to make that request to the State Government on behalf of local government in this State.
2. WRITES to the Minister and the Western Australian Planning Commission advising of this matter.
3. WRITES to local Members of Parliament seeking their support on this matter.
4. Should the request to State Government proposed under 1. above be unsuccessful, REQUIRES a further report be presented to Council on this matter to consider other possible ways of addressing this issue, including amendment of District Planning Scheme No 2, and issuing by the Western Australian Planning Commission of strata-subdivision approvals which are conditioned on provision of deep sewer, for those areas which are currently unsewered.
EndOfRecommendation - This line will not be printed Please do NOT delete
Town Planning Schemes and Structure Plans
File Ref: TPS/0090V01
File Name: BB Amendment No 90 to District Planning Scheme No 2 Summerfield Neighbourhood Centre Girrawheen.doc This line will
Responsible Officer: Acting Director, Planning and Development
Disclosure of Interest: Nil
Author: Phil Thompson
Meeting Date: 3 June 2008
Attachments: 1
StartStrip - This line will not be printed Please do NOT delete
Issue
To consider initiation of Amendment No 90 to City of Wanneroo District Planning Scheme No 2 (DPS2) to rezone the land encompassing the Summerfield Neighbourhood Centre to Centre Zone.
Background
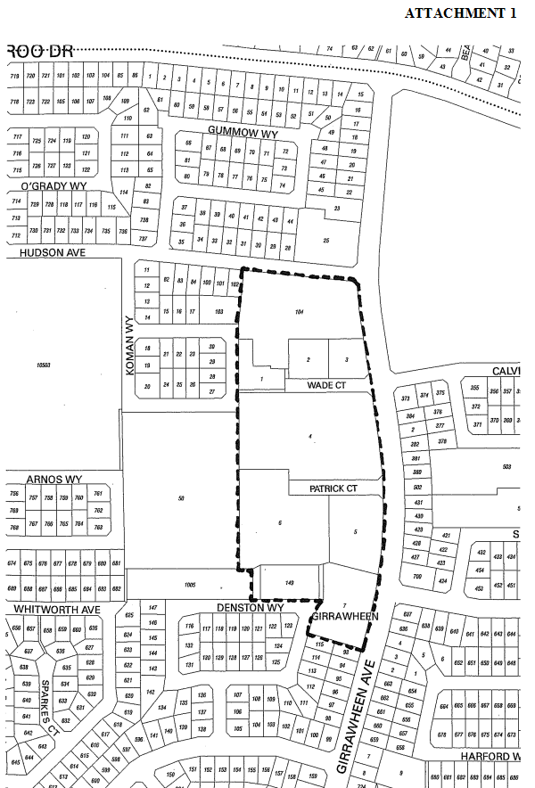
The Summerfield Neighbourhood Centre includes a number of commercial and community uses (refer Attachment 1):
· Lot 4 Wade Court: Summerfield Shopping Centre (zoned Commercial);
· Lot 6 Patrick Court: City-owned land accommodating Girrawheen Library, Senior Citizens Centre and an office building leased to Balga Job Link (zoned Civic and Cultural);
· Lot 1 Wade Court: City-owned land accommodating ‘Daisy House’ (Anglicare) (zoned Civic and Cultural);
· Lot 2 Wade Court: Girrawheen Medical Centre (zoned Commercial);
· Lot 3 Wade Court: ABC Learning Centre (zoned Commercial)
· Lot 104 Hudson Avenue: Our Sisters of Mercy Catholic Primary School (part Local Reserve: Public Use and part Civic and Cultural zone);
· Lot 5 Patrick Court: Our Lady of Mercy Church (zoned Civic and Cultural);
· Lot 7 Girrawheen Avenue: North Way Christian Centre (zoned Residential).
Council’s Smart Growth Steering Committee has been advised at its meetings of 10 December 2007 and 18 March 2008 regarding discussions which have occurred between the owners of the Summerfield Shopping Centre and City representatives regarding the shopping centre owner’s intentions to undertake a major redevelopment of that centre. This would involve demolition of the existing centre and the building of a new centre on the eastern part of the site, and residential use of the western part of the site.
The discussions have identified the possibility of a revitalisation project for this site also involving the adjacent City land and its associated facilities, as the City has previously seen the need for significant improvements required to the existing facilities which are now quite old. A revitalisation project for the broader centre area offers the potential for replacement of the existing City facilities with new buildings in a better location within the centre.
Detail
While the focus for the project is likely to be upon the shopping centre and City properties, it is proposed that the project consider the total neighbourhood centre precinct area as there may be opportunities for improvements to those other parts of the precinct, and it also enables the possibility of improved links through the area to be considered.
The current zoning of the various properties in the area concerned has been indicated in the above listing of properties. To enable the area to be redeveloped in a manner which maximises the available opportunities and is not constrained by the current zoning pattern, it is proposed that DPS2 be amended to rezone the total neighbourhood centre area to Centre zone. This will provide flexibility for the design of the area, with the proposed new detailed zoning pattern being provided through a Structure Plan under DPS2 which will subsequently be prepared.
The area proposed for Centre zoning is shown on Attachment No 1. It may be noted that it also includes Lot 149 Denston Way (which is Department for Housing and Works land with five grouped dwellings on) as this site may enable more options to be considered for the adjacent land to the north. Lot 149 is currently zoned Residential under DPS2.
It may also be noted that the Wade Court and Patrick Court road reserves, as well as pedestrian access routes south of Daisy House and west of the medical centre, are also currently zoned Residential under DPS2.
A possible alternative approach to rezoning to Centre zone (and use of a Structure Plan to apply more specific zonings) would be to first prepare the proposed redevelopment plan for the total area and then to initiate an amendment to DPS2 to adjust the zoning of the area to facilitate that proposed plan, using the more specific types of zone such as Commercial, Civic and Cultural and Residential. The Centre zoning approach is recommended over this possible alternative approach as it has the following advantages:
· It enables the amendment process to be commenced much earlier and as the amendment process can be quite lengthy, an early start for it is preferred to enable the project as a whole to be progressed in a timely manner;
· It enables the new detailed zoning pattern of the area to be applied through a Structure Plan under DPS2. Structure Plans are able to be processed more quickly than scheme amendments and more importantly, if it is found that some further adjustments should be made to the detailed zoning pattern, the amendment process for Structure Plans is much quicker and simpler than that for Scheme amendments;
· Structure Plans provide a mechanism which can allow other matters relating to the project to be secured in a statutory manner.
In regard to what Centre zoning of this area may permit compared to the zonings currently applying under DPS2, this will depend on what the Structure Plan eventually shows for the area in terms of zones, reserves, Residential Codes, etc.
Concerning the matter of the amount of retail floor space permitted in this centre, DPS2 currently provides (in Schedule 3) that the maximum retail net lettable area (NLA) permitted on Lot 4 Wade Court is 5,500m2. DPS2 requires that land which is zoned Centre zone must have its maximum NLA stipulated in Schedule 3 of the Scheme.
It is not intended that proposed Amendment No 90 to DPS2 change the property description or NLA figure currently included for this centre in Schedule 3.
Should it be found through the planning and design studies to be undertaken for this centre that it may be appropriate to vary the NLA or property description details currently included in Schedule 3, the Centre zoning provisions of DPS2 enable this to be done through the Structure Plan for the area, avoiding the need to do any further amendment of DPS2 to attend to this.
Consultation
To date, consultation on this project has occurred with the Summerfield Shopping Centre owner, the Minister for Planning and Infrastructure and the Member for Girrawheen, who have indicated their support for it.
A Memorandum of Understanding (MOU) is currently being prepared between the City and the shopping centre owner, intending to confirm and clarify (in a non-binding manner) the main points of agreement regarding how the project should proceed. A response on a draft MOU is awaited from the centre owner and it is intended that a further report on this matter be provided to Council once that matter has been further progressed. Once the MOU is in place, it is intended that consultation proceed with the various other landowners in the area proposed for rezoning, including the preparation of a Concept Plan for the site. This will desirably occur prior to the advertising of the proposed scheme amendment.
Consultation with the broader community, including the other landowners involved in the area proposed for rezoning, is intended to occur through the rezoning, Structure Planning and Business Plan (Local Government Act requirement) processes to ensue.
Comment
This project is intended to be undertaken as a ‘sub-project’ under the proposed broader Girrawheen-Koondoola Revitalisation Project, serving as a demonstration project for how centres such as this can be revitalised.
It is also intended to apply for Federal Government funding under a program soon to be announced, which should assist the implementation of this project.
This project may encourage the owners of the Koondoola shopping centre to reconsider the future of their centre. (Council resolved to allow that project to lapse at its meeting of 8 April 2008, item GS03-04/09).
It may also act as a catalyst for future increasing of densities in the adjoining residential areas.
As noted previously, rezoning of the total neighbourhood centre area to Centre zone will provide flexibility for the future planning of the area.
Statutory Compliance
The Scheme amendment will follow the process set down in the Town Planning Regulations.
The project as a whole will involve a number of areas where statutory compliance will be important and this will be addressed further in subsequent reports to Council.
Strategic Implications
This project will contribute to the achievement of the environmental, social, economic and governance outcomes of the City’s Strategic Plan, and will particularly support the following specific Objectives and Strategies of the Strategic Plan:
· Objective 1.5: “Improve the physical quality of the built environment”.
· Objective 2.1: “Increase choice and quality of neighbourhood and lifestyle options”.
· Objective 2.4: “Improve community safety”.
· Strategy 3.1.1: “Promote investment that advances the development of commercial and industrial areas within the City”.
· Objective 3.6: “Increase support for new and existing business”.
· Objective 4.1: “Improve strategic partnerships”.
· Objective 4.3: “Improve asset management”.
It will also be consistent with the City’s Smart Growth, Centres, Community Development and Local Housing Strategies.
Policy Implications
Nil
Financial Implications
The City is intended to meet the costs associated with the undertaking of this Scheme amendment (approx. $500) and funds are available to meet this cost.
The project as a whole may have significant financial implications for the City and these will be addressed in detail in subsequent reports to Council.
Voting Requirements
Simple Majority.
EndStrip - This line will not be printed Please do NOT delete
Recommendation
That Council:-
1. Pursuant to Section 75 of the Planning and Development Act 2005 PREPARES Amendment No 90 to District Planning Scheme No 2 to rezone Lots 1, 2, 3 and 4 Wade Court, Lots 5 and 6 Patrick Court, Lot 104 Hudson Avenue, Lot 7 Girrawheen Avenue, Lot 149 Denston Way and Wade Court and Patrick Court road reserves, and the pedestrian access ways extending from Wade Court and Denston Way, from Commercial, Civic and Cultural and Residential zones and Public Use local reserve to Centre zone.
2. REFERS Amendment No 90 to District Planning Scheme No 2 to the Environmental Projection Authority (EPA) pursuant to Section 81 of the Planning and Development Act 2005. Should the EPA advise that the amendment does not require assessment, ADVERTISE the amendment for a period of 42 days.
3. FORWARDS a copy of the amendment to the Western Australian Planning Commission.
EndOfRecommendation - This line will not be printed Please do NOT delete
StartOfAttachment - Do not delete this line will not be printed

EndOfAttachment - Do not delete this line will not be printed
File Ref: SP/0005/20, SP/0005/21, SP/0005/22 & SP/0006/09
File Name: BA Proposed Omnibus Amendment No 4B to Various Agreed Structure Plans.doc This line will not be printed Please do NOT delete
Responsible Officer: Acting Director, Planning and Development
Disclosure of Interest: Nil
Author: Tim Dawson
Meeting Date: 3 June 2008
Attachments: 6
StartStrip - This line will not be printed Please do NOT delete
Issue
To consider Omnibus Amendment No. 4B to the East Wanneroo Cell 4 and 5 Agreed Structure Plans to recode various land parcels.
Background
At its meeting on 16 December 2003 (item PD03-12/03), Council resolved to delegate authority to deal with all decisions relating to amendments to existing structure plans to the Director, Planning and Development (DPD), except where a public submission has been received following advertising of the amendment, or where an Elected Member has provided a written request to the DPD requesting the structure plan be referred to Council.
Administration received seven structure plan amendment proposals, which it was intending to determine under delegated authority as part of an Omnibus Amendment. Accordingly, the Elected Members were advised in a memorandum (Powerdocs No. 685566). In response, Elected Members have requested that the following amendments be referred to Council for consideration:
· Amendment No. 20, 21 & 22 to the East Wanneroo Cell 4 Agreed Structure Plan (ASP); and
· Amendment No. 9 to the East Wanneroo Cell 5 ASP.
The applicant of Amendment No. 21 to Cell 4 ASP has requested the City to defer consideration of this amendment proposal.
The remaining three proposals will be considered by the Acting DPD under delegated authority.
Detail
Particulars of each proposal are provided below.
Proposal 1: Amendment No. 9 to the East Wanneroo Cell 5 ASP – Proposed recoding of Lot 66 Landsdale Road, Landsdale from R20 to R30 & R40
|
Applicant |
Drescher & Associates |
|
Owner |
Le’s Property Group Pty Ltd |
|
DPS 2 Zoning |
Urban Development |
|
ASP Zoning |
Residential (R20) |
Drescher and Associates have requested an amendment to the East Wanneroo Cell 5 ASP to recode Lot 66 Landsdale Road, Landsdale from R20 to R30 and R40. Attachments 1 and 2 show the location plan and the proposed coding of the subject land respectively. The R40 lots are proposed along Landsdale Road and Hepburn Avenue.
The applicant has provided the following justification:
1. The R30 coding will be contiguous to the current R30 coding to the west of the subject land;
2. The R40 coding along Landsdale Road would be overlooking the currently R40 coded areas to the north of Landsdale Road; and
3. R40 coding along Hepburn Avenue, a future bus route, is considered more suitable.
Proposal 2: Amendment No. 20 to the East Wanneroo Cell 4 ASP – Proposed recoding of the remaining portion of Lot 23 Kemp Street, Pearsall from R20 to R40
|
Applicant |
Greg Rowe & Associates |
|
Owner |
Elite Developments (WA) Pty Ltd |
|
DPS 2 Zoning |
Urban Development |
|
ASP Zoning |
Residential (R20 & R40) |
Greg Rowe and Associates have requested an amendment to the East Wanneroo Cell 4 ASP to recode the remaining portion of Lot 23 Kemp Street from R20 to R40 since it is surrounded by areas coded R40 to the east, R30 to the south and R40 and R20 to the west. Attachments 3 and 4 show the existing and proposed coding of the subject land respectively.
The applicant has provided the following justification:
1. It is logical to recode the subject land to R40 given its location amidst higher density areas.
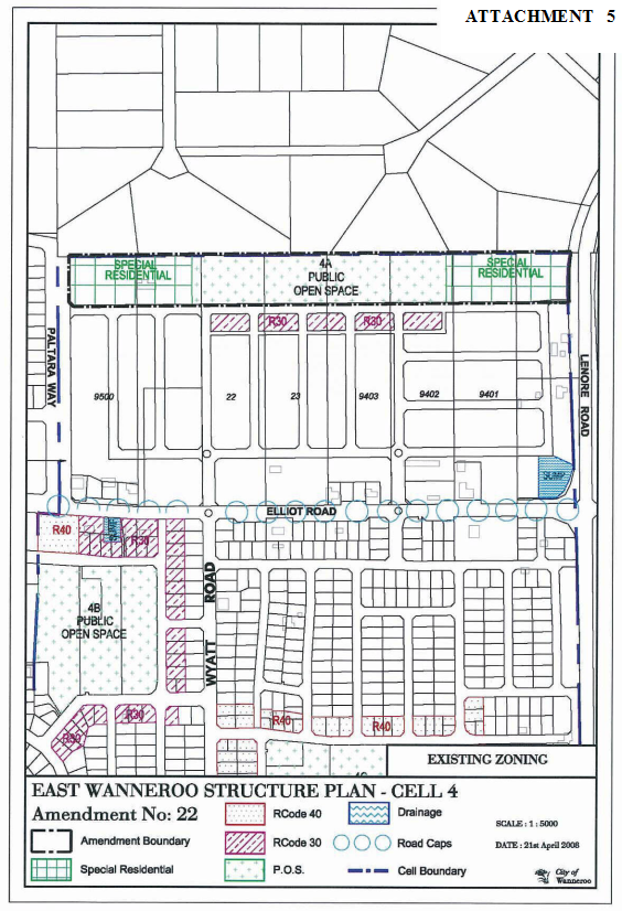
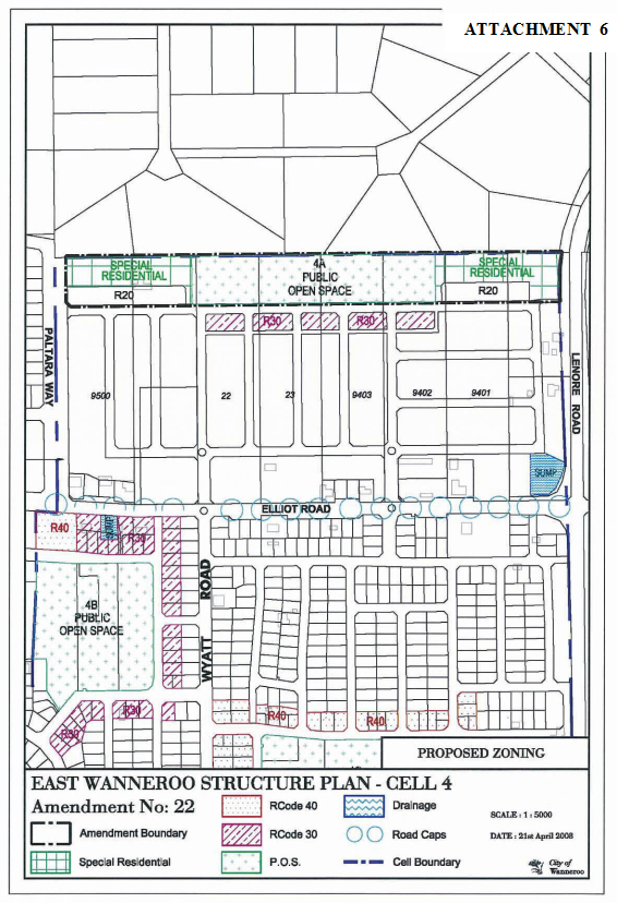
Proposal 3: Amendment No. 22 to the East Wanneroo Cell 4 ASP – Proposed rezoning of Lot 950 Paltara Way, Lots 12-23 and 9401-9403 Elliot Road and Lot 2 Lenore Road, Wanneroo from Special Residential Zone to Special Residential and Residential zones with a density coding of R2 and R20 respectively
|
Applicant |
Koltasz Smith |
|
Owner |
Gucce Holdings Pty Ltd |
|
DPS 2 Zoning |
Special Residential 04 & Urban Development |
|
ASP Zoning |
Residential R20 |
R.P.S. Koltasz Smith Town Planners have requested an amendment to the East Wanneroo Cell 4 ASP to rezone Lot 950 Paltara Way, Lots 12 – 23 and 9401 – 9403 Elliot Road and Lot 2 Lenore Road, Wanneroo from Special Residential Zone to Special Residential and Residential zones with a density coding of R2 and R20 respectively. Attachments 5 and 6 show the existing and proposed zoning and coding of the subject land respectively.
Currently in the ASP the subject land is zoned Special Residential with a minimum lot size of 5000m2 equating to a density coding of R2 as a buffer between the residential areas and the Special Rural zone located to the north of the subject sites.
The applicant has provided the following justification:
1. The proposal would provide a housing variety; and
2. Through the introduction of R20 lots it would improve the streetscape.
Consultation
Under the provisions of DPS2, it is recommended that the proposals be subject to public consultation for a period of 28 days by way of on site signs, an advertisement in the local newspaper and on the City’s website and letters to affected and nearby landowners.
Smart Growth Strategy
The proposals generally satisfy the City’s Smart Growth Strategy by providing for a variety of housing types and enhancement of Lifestyle Options.
Comment
Proposal 1: Amendment No. 9 to the East Wanneroo Cell 5 ASP – Proposed recoding of Lot 66 Landsdale Road, Landsdale from R20 to R30 & R40
Since the lots to the west of the subject land are coded R30, the applicant’s proposal to extend the R30 coding within the subject land is considered to be appropriate. As regards the proposed R40 coding along Landsdale Road and Hepburn Avenue, it is noted that although the lots to the west in line with the proposed R40 lots have been created as R30 lots, considering the uniform front setback of 4.0 metres for both R30 and R40 lots, the proposed R40 coding will not affect the streetscape. Furthermore, the subject land has been subject to a subdivision approval (WAPC Ref 126916) and the lots created would be suitable for R40 development. The proposal will create housing variety.
It is recommended that the proposal be supported.
Proposal 2: Amendment No. 20 to the East Wanneroo Cell 4 ASP – Proposed recoding of the remaining portion of Lot 23 Kemp Street, Pearsall from R20 to R40
The subject land is in close proximity to the proposed Neighbourhood Centre and Primary School and is generally surrounded by R40 coded areas. Therefore it is considered appropriate to recode the remaining portion of the subject land as R40.
Proposal 3: Amendment No. 22 to the East Wanneroo Cell 4 ASP – Proposed rezoning of Lot 950 Paltara Way, Lots 12-23 and 9401-9403 Elliot Road and Lot 2 Lenore Road, Wanneroo from Special Residential Zone to Special Residential and Residential zones with a density coding of R2 and R20 respectively
East Wanneroo Cell 4 ASP made provision for a Special Residential Zone with a minimum lot size of 5000m2, as a buffer between the Residential Zone and the Special Rural Zone located to the north of the ASP area.
While these Special Residential lots would add to the streetscape to the road on to which they abut, the applicant proposes to alter the streetscape by ‘tucking’ these lots away from the road behind some conventional R20 lots. Such a proposal is not supported for the following reasons:
1. Being separated from the abutting road, the Special Residential lots will be deprived of road frontage;
2. Located behind a row of R20 lots and sharing the rear fence of the R20 blocks as the side boundary, the amenity of the Special Residential Lots will be affected;
3. The subject land is located in line with a Public Open Space (POS). Along with the POS area, the Special Residential lots with frontage to the road would provide a desirable streetscape;
4. Such a proposal would set an undesirable precedent.
Statutory Compliance
The proposed Amendments to the ASPs will follow the statutory process outlined in Part 9 of District Planning Scheme No.2.
Strategic Implications
The proposal accords with the following Outcome Objective of the City’s Strategic Plan 2006 – 2021:
“2.1 Increase choice and quality of neighbourhood and lifestyle options.”
Policy Implications
Nil
Financial Implications
Nil
Voting Requirements
Simple Majority.
EndStrip - This line will not be printed Please do NOT delete
Recommendation
That Council:
1. Pursuant to Clauses 9.4 and 9.7 of District Planning Scheme No. 2 RESOLVES that the following structure plan amendments are SATISFACTORY and ADVERTISES them for a period of 28 days.
a) Amendment No. 9 to the East Wanneroo Cell 5 Agreed Structure Plan to recode Lot 66 Landsdale Road, Landsdale from R20 to R30 & R40 as shown on Attachment 2;
b) Amendment No. 20 to the East Wanneroo Cell 4 Agreed Structure Plan to recode the remaining portion of Lot 23 Kemp Street from R20 to R40 as shown on Attachment 4.
2. SUBJECT to no objections being received, ADOPTS, SIGNS and SEALS the Structure Plan Amendment documents referred to in Resolution (1) above under Clauses 9.6 and 9.7 and FORWARDS three copies of the documents to the Western Australian Planning Commission for its adoption and certification.
3. Pursuant to Clause 9.6.1 of District Planning Scheme No.2 REFUSES to Adopt proposed Amendment No. 22 to the East Wanneroo Cell 4 Agreed Structure Plan to rezone Lot 950 Paltara Way, Lots 12-23 and 9401-9403 Elliot Road and Lot 2 Lenore Road, Wanneroo from Special Residential Zone to Special Residential and Residential zones with a density coding of R2 and R20 respectively as shown on Attachment 8 to this report as submitted by RPS Koltasz Smith on behalf of Gucce Holdings Pty Ltd for the following reasons:
a) Being separated from the abutting road, the Special Residential lots will be deprived of road frontage;
b) Located behind a row of R20 lots and sharing the rear fence of the R20 blocks as the side boundary, the amenity of the Special Residential Lots will be affected;
c) The subject land is located in line with a Public Open Space (POS). Along with the POS area, the Special Residential lots with frontage to the road would provide a desirable streetscape;
d) Such a proposal would set an undesirable precedent.
EndOfRecommendation - This line will not be printed Please do NOT delete
StartOfAttachment - Do not delete this line will not be printed

EndOfAttachment - Do not delete this line will not be printed
StartOfAttachment - Do not delete this line will not be printed

EndOfAttachment - Do not delete this line will not be printed
StartOfAttachment - Do not delete this line will not be printed

EndOfAttachment - Do not delete this line will not be printed
StartOfAttachment - Do not delete this line will not be printed

EndOfAttachment - Do not delete this line will not be printed
StartOfAttachment - Do not delete this line will not be printed

EndOfAttachment - Do not delete this line will not be printed
StartOfAttachment - Do not delete this line will not be printed

EndOfAttachment - Do not delete this line will not be printed
File Ref: SP/0015/02V01
File Name: BA Close of Advertising Amendment No 2 to the Neerabup Industrial Area Agreed Structure Plan No 17 Omnibus Amendment.doc This line will not be printed Please do NOT delete
Responsible Officer: Acting Director, Planning and Development
Disclosure of Interest: Nil
Author: Aiton Sheppard
Meeting Date: 3 June 2008
Attachments: 3
StartStrip - This line will not be printed Please do NOT delete
Issue
To consider the public submissions and adoption of Amendment No 2 (Design Guidelines) for the Neerabup Industrial Area Agreed Structure Plan No 17 (ASP).
|
Applicant |
Taylor Burrell Barnett on behalf of LandCorp |
|
Owner |
Various |
|
Location |
Neerabup Industrial Area |
|
DPS 2 Zoning |
Background
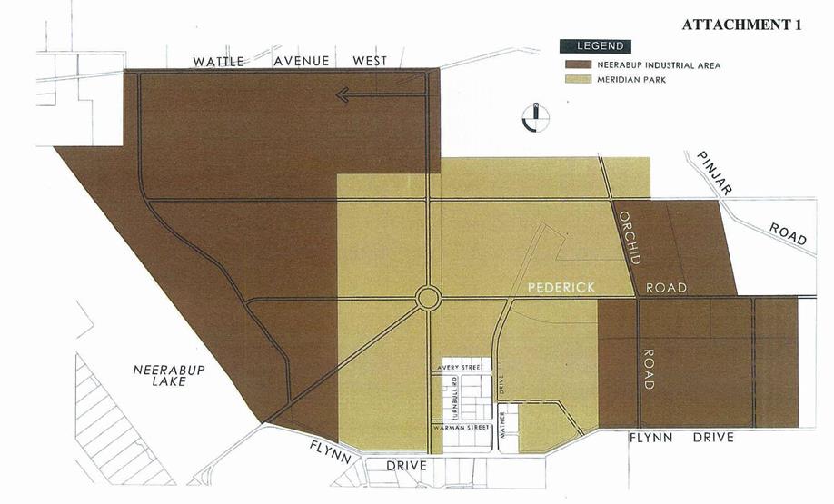
The ASP adopted by the Western Australian Planning Commission and the City makes provision for the preparation of Design Guidelines prior to subdivision commencing within the Structure plan area. The City has received from the applicant a proposal to amend the ASP to make provisions for some design guidelines applicable to a portion of the ASP area known as Meridian Park (refer Attachment 1). Meridian Park covers about 40% of the ASP area. Attachment 2 contains the current Part 1 – Statutory Planning Section of the ASP.
Detail
The design guidelines introduced by Amendment 2 have been prepared for Meridian Park. They are most comprehensive and will be administered by LandCorp. These guidelines in general would provide the prospective purchasers guidance in obtaining development approval from the City. As a result, the Applicants will have an obligation to submit plans to LandCorp for endorsement of design elements, prior to lodging applications for planning approval with the City. These obligations will be written into contracts for the sale of land in Meridian Park for the purchasers to comply with. A copy of the design guidelines is placed in the Elected Members’ reading room for information.
While the City will not be bound by most of the provisions of the design guidelines, the applicant has requested to incorporate some aspects of the design guidelines within Part 1 – Statutory Planning Section to provide statutory status. Attachment 3 sets out the modifications proposed for the Part 1 document, which include some generic clauses and specific design guidelines in relation to Landmark sites, parking provisions, rainwater tanks, energy efficiency, fencing, landscaping, glazing, natural lighting and blade walls.
Consultation
Amendment 2 was advertised for a period of 21 days by way of two on-site signs, an advertisement in the Wanneroo Times and on the City’s website and letters to all landowners in the ASP 17 area. The submission period closed on 11 March, 2008, and there were no objections to the proposed design guidelines.
Smart Growth Strategy
The proposal satisfies the City’s Smart Growth Strategy’s Principles 5.2 – Effective Use of Land and Infrastructure, and 5.5 - Long Term Economic Health.
Comment
The proposed amendment is discussed below.
1. Landmark sites
Since it is difficult to identify the landmark sites at the ASP level considering the extent of the ASP area, which is more than 1000 hectares, it is proposed to identify the landmark sites at the subdivision stage. The development of these sites will be subject to the provisions of a Detailed Area Plan to be prepared as a condition of the subdivision approval.
2. Parking provisions
The applicant has proposed to include the on-street car parking bays abutting the frontage of an industrial lot in the calculation of the parking requirements of the proposed development. This proposal is considered reasonable and therefore recommended.
3. Other development standards
As a statutory provision the applicant has proposed to introduce provisions regarding energy efficiency, fencing, landscaping, glazing, natural lighting, rainwater tanks and blade walls. These matters have been assessed in detail and are considered appropriate to be included in Part 1 of the ASP.
Statutory Compliance
The amendment has followed the procedures required in Part 9 of the City of Wanneroo District Planning Scheme No 2.
It should be noted that the City is a landowner and joint venture partner with LandCorp in the Neerabup Industrial Area development.
Strategic Implications
The proposal satisfies Outcome Objective 3.1 of the City of Wanneroo Strategic Plan 2006 to 2021 to “increase the availability of serviced industrial land”.
Policy Implications
Nil
Financial Implications
Nil
Voting Requirements
Simple Majority.
EndStrip - This line will not be printed Please do NOT delete
Recommendation
That Council:-
1. Pursuant to Clause 9.6.1 (b) of the City of Wanneroo District Planning Scheme No.2 RESOLVES that Amendment No 2 to the Neerabup Industrial Area Agreed Structure Plan No 17, as submitted by Taylor Burrell Barnett on behalf of LandCorp, and depicted in Attachment 3 to this report is satisfactory.
2. SUBMITS three copies of the structure plan amendment documents to the Western Australian Planning Commission for its adoption and certification.
3 Pursuant to Clause 9.6.5 of District Planning Scheme No.2 ADOPTS, SIGNS and SEALS Amendment No. 2 to the Neerabup Industrial Area Agreed Structure Plan once certified by the Western Australian Planning Commission.
EndOfRecommendation - This line will not be printed Please do NOT delete
StartOfAttachment - Do not delete this line will not be printed

EndOfAttachment - Do not delete this line will not be printed
StartOfAttachment - Do not delete this line will not be printed
ATTACHMENT 2 PAGE 1 OF 4

ATTACHMENT 2 PAGE 2 OF 4 ATTACHMENT 2 PAGE 3 OF 4

ATTACHMENT 2 PAGE 4 OF 4

EndOfAttachment - Do not delete this line will not be printed
StartOfAttachment - Do not delete this line will not be printed
ATTACHMENT 3 PAGE 1 OF 3


AMENDMENT 3 PAGE 2 OF 3 AMENDMENT 3 PAGE 3 OF 3

EndOfAttachment - Do not delete this line will not be printed
File Ref: P12/0015V01
File Name: EA Category 3 Home Business Proposed Civil Engineering Operation No 8 Lot 212 Tuscan Way Gnangara .doc This line will not be printed Please do NOT delete
Responsible Officer: Acting Director, Planning and Development
Disclosure of Interest: Nil
Author: Warren Andersen
Meeting Date: 13 June 2008
Attachments: 3
StartStrip - This line will not be printed Please do NOT delete
Issue
To consider an application to operate a Civil Engineering business, which entails an office within an existing dwelling, an external shed, a truck and excavator, and a concrete storage area for materials.
|
Applicant |
D and T Booth |
|
Owner |
D and T Booth |
|
Location |
No.8 (Lot 212) Tuscan Way, Gnangara |
|
Site Area |
1.1307 Hectares |
|
DPS 2 Zoning |
Special Rural 05 |
Background
The subject lot is located within a Special Rural 05 zone – Lakelands Estate, Gnangara (refer Attachment 1).
The site has been subject to two previous complaints lodged with the Council. A complaint (AR 201168) received in July 2005 relates to more than one truck operating onsite. This was resolved with the City’s compliance officer. In October 2007, a complaint (AR 239499) was received about an unauthorised Home Business use. In response to this complaint, on 6 December 2007, the landowner lodged a development application.
Detail
The applicant has submitted the following information in support of this proposal:
1. The business use comprises (a) 20 square metre office within an existing dwelling, (b) 135 square metre shed, and (c) 50 square metre concrete hardstand for storage of materials (refer Attachments 2 and 3);
2. Use of a truck – 2004 Isuzu flatbed 3 axle rigid – 3.5 tonnes;
3. Use of an excavator machine;
4. Storage of materials predominantly for Telstra pit, pipe, and cable installation;
5. Total of 3 employees – 2 landowners, and an external person;
6. Operating hours 6.30am to 4pm, Monday to Friday.
Cable materials and an excavator are taken offsite for installation of services in the Perth metropolitan area and regional Western Australia.
The Council advertised the proposal for 21 days on 10 March 2008 to six adjoining landowners. During the advertising period, the City received two written objections, and one advice of no objection.
Smart Growth Strategy
Nil
Comment
Issues raised during the submissions, together with a comment on each is outlined below:
Issue 1
The business has previously involved numerous trucks, excavators and earthmoving equipment, operating 7 days per week commencing at 5.30am.
Comment:
The applicant has been advised to reduce to one truck and an excavator, and change their operating hours. This matter can be managed by conditions.
Recommendation:
That the issue be noted.
Issue 2
Devaluation of adjoining properties.
Comment
The submittor has not demonstrated how the proposal would devalue the neighbouring properties.
Recommendation:
That the issue not be supported.
Issue 3
Shed and storage area exceed 50 square metre limit for home business
Comment
The proposal has been requested by the applicant to be considered as a Home Business – Category 3. As per the provisions of the DPS2, Schedule 1 of the Scheme describes the definition of Home Business - Category 3: as a business, service, trade or similar activity carried on in a dwelling, or on land around a dwelling by a resident of the dwelling which:
“(e) occupies an area not exceeding 50 square metres. Council may approve, subject to community consultation, an area of up to 100 square metres, or one third of the floor area of the dwelling whichever is the lesser.”
The area nominated for the business is 205 square metres, which is contrary to the limit applied in Schedule 1. Therefore the proposal is not supported.
Recommendation
That the issue be supported.
Issue 4
Damage to the road verge and employees are parking on the road verge.
Comment
Applicant has stated that the number of vehicles and employees has been reduced.
Recommendation
That the issue be supported.
Issue 5
Noise, dust, and rubbish generation associated with the activity and truck movement.
Comment
It is difficult to measure the extent of the complaint without monitoring by the Council’s compliance officer. However, noise, dust, and rubbish can be managed by conditions.
Recommendation
That the issue be noted
Other Issues
In respect to Special Rural Zone, Clause 3.18.2(c) of DPS2 states that all development ‘shall be conducted in a manner that preserves local amenity and the natural landscape or rural character of the zone concerned’. In this regard it is noted that the proposal contradicts the objective of Special Rural Zone.
Objectives of the Clause 3.1.8.2 (c) Special Rural Zone include:
(a) designate areas where rural-residential retreats can be accommodated without detriment to the environment or the rural character
(b) meet the demand for a rural lifestyle on small rural lots generally ranging from one to four hectares in size
(c) maintain and enhance the rural character and amenity of the locality
Moreover, the proposal involves bulk storage and distribution. As per the provisions of the DPS2, this function is considered to be light industrial in nature which is a prohibited (X) use in the Special Rural Zone. Therefore the proposal is not supported.
Statutory Compliance
The proposal does not satisfy the definition of Homes Business Category 3.
Strategic Implications
Nil
Policy Implications
Nil
Financial Implications
Nil
Voting Requirements
Simple Majority.
EndStrip - This line will not be printed Please do NOT delete
Recommendation
That Council:-
1. REFUSES the application for a Home Business Category 3 - Civil Engineering Operation, on No.8 (Lot 212) Tuscan Way, Gnangara submitted by D and T Booth for the following reasons:
a) The subject land is zoned Special Rural in the City of Wanneroo District Planning Scheme No.2 (DPS2). As per the objective of this zone the proposal does not preserve local amenity and the natural landscape or rural character of the zone.
b) The proposal involves bulk storage and distribution which is light industrial and is a prohibited (X) use in the Special Rural Zone.
2. ADVISES the owner/applicant that they are required to cease the use within 42 days, failure to do so may result in the Council initiating legal proceedings.
EndOfRecommendation - This line will not be printed Please do NOT delete
StartOfAttachment - Do not delete this line will not be printed

EndOfAttachment - Do not delete this line will not be printed
StartOfAttachment - Do not delete this line will not be printed

EndOfAttachment - Do not delete this line will not be printed
StartOfAttachment - Do not delete this line will not be printed

EndOfAttachment - Do not delete this line will not be printed
File Ref: P09/0322V01
File Name: EA Proposed Neighbourhood Centre Lots 100 and 9028 213 225 Kingsway Road Corner Ashdale Boulevard Darch.doc This line will not be printed Please do NOT delete
Responsible Officer: Acting Director, Planning and Development
Disclosure of Interest: Nil
Author: John Culmer
Meeting Date: 3 June 2008
Attachments: 3
StartStrip - This line will not be printed Please do NOT delete
Issue
To consider a revised application for the development of the Darch Neighbourhood Centre and the submissions received during the public advertising period of the proposal.
|
Applicant |
TPG Town Planning & Urban Design |
|
Owner |
Barlow Nominees Pty Ltd |
|
Location |
Lots 100 and 9028 (213-225) Kingsway Road, Corner Ashdale Boulevard, Darch |
|
Site Area |
3.1434 hectares |
|
DPS 2 Zoning |
Urban Development |
Background
The East Wanneroo Cell 6 Agreed Structure Plan (ASP) was adopted by Council in September 2004. This Structure Plan establishes a planning framework to guide the subdivision and development of Madeley and Darch and identifies the subject land as a Neighbourhood Centre.
The Darch Neighbourhood Centre ASP was adopted by Council in August 2004. The ASP zoned the subject land Commercial/R40 and established a range of provisions to guide the development of the neighbourhood centre on the site.
In 2005, the City received an application for the development of a tavern on portion of the site. Following Administration’s assessment of this application and the results of the public advertising period, this application was withdrawn by the applicant so that a fresh approach could be taken involving an holistic and integrated design for the overall site which considered the comments received during the public advertising period.
A development application for the proposed Neighbourhood Centre was submitted to the City in May 2006 and was refused by Council on the 19 September 2006 following public consultation. The development application was approved by the State Administrative Tribunal (SAT), with final orders dated 12 July 2007.
The revised proposal does not propose any significant variations to the previously SAT approved proposal, but rather improves the operations and functionality of the Neighbourhood Centre. The revised proposal does not include the details of the proposed residential component and child care centre as they will be subject to further development applications.
Detail
Site
The land subject to the application comprises approximately 3.1 hectares of land bounded by Kingsway Road, Ashdale Boulevard, Athenny Way and the future extension of Carlingford Drive, Darch. Attachment 1 indicates the location of the site.
The land is currently vacant and contains remnant vegetation and a temporary City drainage easement. The site is surrounded to the west by a future State Government high school and otherwise by conventional suburban residential development.
Proposal
“The proposal is seeking variation to the built form proposed by the previously SAT approved plans to produce a built environment that has better functionality and makes better use of the spaces being created within the shopping centre”.
The SAT approved proposal is exhibited in Attachment 2.
The key changes from the original proposal include the following: -
· Relocation of the Child Care Centre away from the Shopping Centre and Service area;
· Relocation of the Medical Centre to a more appropriate position on the site;
· Incorporation of the restaurant use within the tavern;
· Increased provision of car parking bays.
The revised proposal continues to incorporate a ‘main street’ design which will provide a community focal point, viability for commercial activity and minimise the impact of the centre’s activity on the surrounding area.
A range of key plans depicting the proposal are included as Attachment 3. A full copy of the plans and supporting report explaining the design rationale, traffic and car parking analysis have been placed in the Elected Members Reading Room.
Planning Framework
Centres Strategy
The City’s Centres Strategy adopted as a Local Planning Policy by Council in December 2004, encourages a diversity of land uses and community activity in and around centres and promotes as the preferred model, the development and redevelopment of centres in accordance with traditional ‘Main Street’ design principles.
District Planning Scheme No. 2
District Planning Scheme No. 2 (DPS2) includes the Darch Neighbourhood Centre within the Urban Development zone. The purpose of this zone is to “….provide for the orderly planning and development of larger areas of land in an integrated manner within a regional context whilst retaining flexibility to review planning with changing circumstances.”
Subclause 3.14.3 of DPS2 requires that no development shall be commenced or carried our in an Urban Development Zone until an ASP has been prepared and adopted under the provisions of Part 9 of the Scheme and further requires that no development be commenced or carried out otherwise than in conformity with the ASP.
Agreed Structure Plans
The Site is located within the East Wanneroo Cell 6, which establishes the planning framework to guide the subdivision and development of Madeley and Darch. This ASP identifies the subject land as a Neighbourhood Centre.
The Darch Neighbourhood Centre ASP No. 51 relates specifically to the subject site. It zones the land Commercial/R40 and establishes the provisions to guide the development of the land.
The proposed shops, medical centre, restaurant and liquor store are permitted within the Commercial zone whilst the proposed child care centre, tavern, community centre and the residential dwellings are discretionary uses.
Development within the Neighbourhood Centre is planned in a fully integrated manner in accordance with the ASP, with built form relating to its surrounds, and incorporating active external facades, which address the car parking areas and external streets. All buildings are required to maximise openings and entry points and have continuous awnings or a pedestrian colonnade on its external walls and should facilitate footpath trading where possible. The ASP also provides for a community purpose site located in a prominent location fronting either Kingsway or Ashdale Boulevard and well integrated with the centre. The community purpose site is to be set aside for future acquisition by the City as part of the East Wanneroo Infrastructure Contribution Scheme. The City and land developer are currently investigating the options for the subject community purpose site as exhibited in the revised proposal.
Consultation
The application was advertised for public comment for a period of 28 days. It was advertised by means of on-site signage, an advertisement in the local newspaper and on the City’s website and letters to landowners within an approximate 500 metre radius of the site.
The submission period closed on 18 March 2008 and a total of 141 submissions were received, 55 objecting to the proposal or components thereof and 86 supporting the proposal.
Public Submissions
The key issues raised by the public submissions in relation to the proposal, together with an Administration comment on each are outlined in the following table. Full copies of the submissions have been placed in the Elected Members Reading Room.
|
Issue |
Administration Comment |
|
Concern over the proximity between the tavern/liquor store and adjacent schools. |
A planned government high school site is located immediately west of the subject site. An existing government primary school is located approximately 200 metres north and the Kingsway Christian College is located approximately 400 metres west of the site. There are many examples throughout the metropolitan area where there are schools in proximity to taverns and liquor stores. There is no planning policy that seeks to preclude the proximity of such uses and there are laws to prevent unaccompanied minors from such premises. |
|
Don’t support tavern or drive through liquor store, issues raised:
|
A liquor store is a permitted land use with the commercial zone, whilst a tavern is a discretionary use (both approved by SAT). Council cannot therefore refuse the liquor store because of the nature of the use. A tavern is generally considered to be an appropriate use within a centre of this nature and will provide a significant community meeting/socialising place for the local community. The location along the main street will provide for a level of activity and diversity within the centre. It is commonplace for both taverns and liquor stores to be located within neighbourhood centres in the northern suburbs. The revised design of the tavern/liquor shop is considered to be an improvement in terms of the amalgamation of the restaurant into the tavern, which helps reinforce the proposed family orientation of the facility. Given the high level of consultation undertaken for this proposal, a relatively small number of objections were received. There appears to be a number of unsubstantiated or emotive issues raised in relation to the proposed tavern and liquor store. The applicant advises that the intended operators have a clear direction for the style of the tavern. The applicant previously advised that the type of food offer and pricing as well as the ambience and presentation of the venue will be likely to discourage patrons who may be a source of some of the anticipated problems and also advises that there are no plans or allowance in the design to have bands or dj’s (although ambient music is intended to be played). |
|
The centre will create a range of traffic problems, including:
|
The road network surrounding the proposed site has been designed to cater for the anticipated centre related traffic and whilst the centre will certainly increase traffic levels over those at present, the anticipated traffic levels will still be well within the capacity of the surrounding roads. A traffic report justifying the proposal has been submitted with the application. The permeable nature of the road system in the vicinity of the centre will act to distribute, rather than concentrate the centre related traffic on a single road. Kingsway is being progressively upgraded. The location of the main street access point to Kingsway is also considered satisfactory subject to further traffic impact investigations. The plans also appear to satisfactorily accommodate service vehicle manoeuvring and as part of the detailed design service vehicle sweep paths will be confirmed. |
Comment
The development proposal provides for a diverse range of uses, distributed across the site in an integrated manner, focussing around a ‘main street’. The proposed mix of land uses and their design theme toward outdoor pedestrian spaces will provide an opportunity for a high level of activity, a vibrant community focal point and for commercial synergies. Given the level of all the community consultation undertaken for the proposal, there appears to be a broad level of community support for the proposal. The key concerns raised by the community relate to the tavern/liquor store component and traffic related issues.
The revised development proposal is generally consistent with the approval granted by the SAT and more importantly does not significantly alter the approved tavern, continues to use the approved crossover locations and increases the amount of on-site car parking. It is important to note that the tavern is proposed to remain in its current location and is of the same scale, bulk and capacity as the original SAT approved tavern proposal. The majority of objections to the proposal relate only to the proposed tavern and liquor shop operations and the potential for traffic conflict. The applicant has submitted a revised traffic impact report which is generally acceptable other than the ‘main street’ intersection with Kingsway and the service area on Ashdale Boulevard which requires further investigation and resolution. An appropriate condition of planning approval is recommended to resolve the traffic impact report to the satisfaction of the City.
In relation to the tavern/liquor store objections, whilst a number of issues were raised, they were largely of an emotive nature and unsubstantiated.
As stated in the previous Council reports, a tavern is generally considered to be appropriate use within a centre of this nature and will provide an important community meeting/focal point.
To ensure the overall development of the site in a timely coordinated manner it is considered appropriate to impose a relevant condition on the approval requiring a legal agreement in relation to the staging of the centre.
Car Parking
The revised proposal generally complies with the City’s development standards and requirements, with the main key area of variance relating to a car-parking shortfall. It is acknowledged that the revised proposal provides for a significant increase in on-site car parking than the previously SAT approved proposal. The previous planning approval for the site by the SAT considered that the provision of 355 on-site car bays would satisfy the car parking of the proposed development. The revised proposal provides for a total of 420 on-site car bays, which is an increase of 65 on-site car bays. It is considered from a planning view point that the minor parking shortfall of 44 car bays can be supported given the argument of reciprocal use of parking on site. The proposed tavern/restaurant will have a peak operational period that is outside normal business hours or peak periods for the shopping centre.
Hours of Operations
The proposed hours of operations restrictions being placed on the approval as a result of the recommendations of the Acoustic report for the development and the City’s Health Services’ regulations will assist in minimising any impacts of the shopping centre service area and the tavern operations on the local amenity. It is considered from a planning viewpoint that the hours of operations restrictions are acceptable.
The increase in on-site parking and the design improvements coupled with hours of operations restrictions are considered to be a better outcome for the community, given the SAT approved design.
Given the above, it is recommended that the application be approved subject to relevant conditions. A comprehensive list of conditions has been recommended to ensure an acceptable level of detailed design is undertaken.
Statutory Compliance
The application for planning approval has been assessed in accordance with the requirements of the City’s DPS 2 and the Darch Neighbourhood Centre Agreed Structure Plan (ASP). The application generally complies with the City’s DPS 2 and the Darch Neighbourhood ASP.
Strategic Implications
Consideration of this proposal is consistent with the Social Outcome area of the City’s Strategic Plan, which seeks to increase choice and quality of neighbourhood and lifestyle options.
Policy Implications
Nil
Financial Implications
Nil
Voting Requirements
Simple Majority.
EndStrip - This line will not be printed Please do NOT delete
Recommendation
That Council:-
1. In accordance with the City’s District Planning Scheme No. 2, APPROVES the application submitted by TPG Town Planning and Urban Design on behalf of Barwell Nominees Pty Ltd for the development of a Neighbourhood Centre on Lots 100 and 9028 (213 – 225) Kingsway Road, corner Ashdale Boulevard, Darch subject to the following conditions:
Infrastructure
a) Prior to the issue of a building licence the landowner shall make a contribution to the City for the provision of arterial roads, public open space and associated facilities (including administrative costs) to service the East Wanneroo Structure Planning Cell No. 6 in accordance with Part 10 of the City of Wanneroo District Planning Scheme No. 2.
b) The community purposes site shall be set aside as a separate lot pending acquisition by the City as part of the East Wanneroo Infrastructure Contributions Arrangements.
c) The land required for the Carlingford Drive extension from Athenny Way to Kingsway, including associated corner truncations, shall be dedicated as a public road free of cost and without payment of compensation prior to the first stage of the development first being occupied.
d) The Carlingford Drive extension (including drainage and dual use paths) from Athenny Way to Kingsway shall be constructed in accordance with the City’s specification prior to the first stage of the development first being occupied.
e) The upgrading of Kingsway (including drainage, a dual use path and the removal of any redundant crossovers) where it abuts the application area prior to the first stage of development first being occupied. A revised traffic impact report indicating that the ‘main street’ entrance on Kingsway Road is satisfactory shall be provided to the City for assessment and endorsement prior to the submission of a building licence application.
f) The abutting portions of the Ashdale Boulevard and Athenny Way verges shall be provided with on-street car parking bays and otherwise be paved to the full width (with associated street trees) and at a 2% positive grade to the satisfaction of the City prior to the residential component of the development first being occupied.
g) Detailed engineering drawings are to be prepared indicating the proposed construction works for the conditions above to the satisfaction of the City. All works shall be undertaken in accordance with the approved engineering drawings.
Car Parking and Access Ways
h) The detailed design of the ‘main street’ being amended to enable sufficient vehicle reversing.
i) The parking bays, driveways and points of ingress and egress shall be designed in accordance with the Australian Standard for Off Street Parking (AS 2890) Such areas shall be constructed, drained and marked prior to the development first being occupied and thereafter maintained to the satisfaction of the City. The main street car parking bays and vehicle access ways shall be constructed by the proponent in conjunction with the commercial component of the development.
j) Disabled car parking bays shall be provided at the rate required under the Australian Standard for Off Street Parking (AS 2890) and shall be distributed across the site in locations convenient to the building entrances to the satisfaction of the City.
k) A stormwater drainage system with a storage capacity sufficient to contain a 1:100 year storm event with a 24-hour duration shall be provided onsite prior to the development first being occupied. The system shall thereafter be maintained to the satisfaction of the City.
l) The landowner shall enter into an easement in gross in favour of the public at large pursuant to section 196 of the Land Administration Act. The easement shall cover all car parking areas, pedestrian paths and vehicular access ways. The easement shall be prepared to the satisfaction of the City and registered on the title of the subject land prior to the relevant stage of development first being occupied. All costs associated with the preparation of the easement shall be met by the landowner.
m) The car parking areas shall be provided with one shade tree for every four bays prior to the development first being occupied. The trees shall be located within tree wells protected from damage by vehicles and maintained to the satisfaction of the City.
n) Service vehicle manoeuvring to and within the site shall be provided in compliance with the Australian Standard for Off-street Parking Part 2 – Commercial vehicle facilities (AS2890.2). A plan indicating service vehicle sweep paths shall be provide to the City for assessment and endorsement prior to the submission of a building licence application.
Pedestrian and Cyclist Facilities
o) A pedestrian and cyclist permeability plan shall be submitted to and approved by the City prior to the submission of the building licence application. This plan shall indicate how it is intended to provide generous, safe, clear and direct pedestrian and cyclist paths to the site and between car parking areas and key destinations within the site. The plan shall make provision for disabled access and indicate pathway grades, detail of crossing points and any proposed protruding service connections or other projections.
p) Pedestrian pathways on the site shall be provided with appropriate sight lines and pedestrian crossing facilities. Vegetation adjacent to pathways where sightlines may be affected shall be planted and maintained to a maximum height of 450mm from the pathway level. Protruding services or other obstructions shall not be located within the pedestrian paths without the prior approval of the City. Car bays adjoining pedestrian pathways shall be provided with wheel stops to prevent vehicle overhang.
q) Parking areas, pedestrian spines and the main street shall be well lit with ‘white light’ to encourage safe after hours use. Lighting shall be designed and installed so as not to cause nuisance or safety problems.
r) Bicycle parking facilities (number and design) shall be provided in accordance with the Australian Standard for Bicycle Parking Facilities (AS 2890.3-1993) and Austroads’ Guide to Engineering Practice Part 14: Bicycles at convenient locations along the main street prior to the development first being occupied.
s) End of trip bicycle facilities including showers, change rooms and lockers shall be provided for access by centre staff in accordance with the requirements Austroads’ Guide to Engineering Practice Part 14: Bicycles.
Servicing
t) The provision of at least one shopping trolley collection area for each two rows of car bays in a mid block location. The shopping trolley collection areas shall be designed to the satisfaction of the City sufficient to contain the trolleys, protect them from damage by vehicles and be sign posted for easy identification by shoppers.
u) Service areas (bin stores) shall be screened from view of public areas. No storage shall be carried out outside the service areas.
v) All services such as air conditioning plant and compressors shall be located away from public areas. All services and service yards shall be screened from view of streets and other public areas, including car-parking areas, by an enclosure in keeping with the style and materials of the adjacent building. Roof mounted equipment such as air conditioning plant and antennae shall be screened from view of the street and other public areas, including car-parking areas, by the roof form or parapets.
General
w) Detailed landscape plans (including pathways, street furniture, lighting, planting areas, public art etc) for the development site and the adjoining road verges shall be submitted to and approved by the City prior to the submission of a building licence application. Landscaping shall be constructed/established in accordance with the approved plans prior to the development first being occupied and thereafter maintained to the satisfaction of the City.
x) The recommendations of the acoustic consultants report shall be implemented to the satisfaction of the City in accordance with Herring Storer Acoustic Report (ref: 8934-2-08101) dated 8 May 2008 as per the following:
(i) No deliveries allowed during the hours of 10pm-7am (Monday to Saturday) and 10pm-9am (Sunday and Public Holidays);
(ii) The entry and exit crossovers be angled such that a barrier can be installed to screen the trucks while on site;
(iii) A solid 1.8 metre high fence is required along the Eastern Boundary of the Day Care Centre;
(iv) That the Northern wall of the drive thru be extended past the roof section (both east and west sides) by 4 metres, provided the wall is solid and has a minimum density of 15 kg/m2.
y) Revised plans addressing the various conditions of approval shall be submitted to and endorsed by the City prior to the submission of a building licence application.
z) All signage is excluded from this approval. An overall signage strategy for the shopping centre shall be submitted to and approved by the City prior to the submission of a building licence application. All signage should be integrated with the building. Building elevations shall include integrated signage panels sufficient for each external tenancy.
aa) The submission of a construction and staging management plan prior to the commencement of construction detailing how it is proposed to manage:
i) Road construction works required as part of this approval;
ii) Pedestrian, vehicular and service access as well as adequate car parking both during construction and at each stage of development.
iii) The location of the site office, delivery and storage of materials and equipment to the site;
iv) The parking arrangements for the contractors and subcontractors;
v) Operation times including delivery of materials;
vi) Any other matters likely to impact on the safety and amenity of the surrounding area.
bb) A non-sacrificial anti graffiti coating shall be applied to external shopping centre walls. In the event of any graffiti being applied to these areas, then steps are to be taken to remove it as soon as possible.
cc) Applicant/Owner is advised that, there is an obligation to design, construct, and occupy the premises in compliance with the requirements of the Environmental Protection Act 1986 including the Environmental Protection (Noise) Regulations 1997 and Environmental Protection (Unauthorised Discharges) Regulations 2004.
Tavern conditions
dd) The hours of operation of the tavern shall be:-
(i) from 7 am to 11pm from Monday to Thursday;
(ii) from 7 am to Midnight Friday and Saturday;
(iii) from 7 am to 10 pm on Sunday and Public Holidays.
ee) A suitable sound engineering design to be carried out to ensure that, in conjunction with the acoustic engineer’s report, any amplified music is delivered in a manner that ameliorates any noise emissions. Unless otherwise agreed by the City of Wanneroo, the recommendations of the sound engineer shall be implemented in the development. All external speakers are to be switched off when the alfresco areas are closed half an hour before the close of trading.
ff) A Management Strategy for the tavern premises is to be submitted to the City of Wanneroo for approval prior to the operation of the tavern and thereafter the tavern shall be operated in accordance with the approved Management Strategy. The Management Strategy is to address the following matters:
(i) the number of licensed security staff present within hours of operations after 6pm;
(ii) the control of patron numbers;
(iii) serving of complementary drinking water;
(iv) complaint and reporting procedures;
(v) patron control (including staff training) and external surveillance;
(vi) access to taxi service and complementary calling service;
(vii) lighting in and around the perimeter of the tavern premises;
(viii) cleaning of the site and the public area around the site;
(ix) servicing times and service vehicle route for the tavern premises in terms of deliveries and pick up.
2. ENDORSES the comments made in this report regarding the submissions received on this proposed development application and ADVISES the submitters of its decision.
EndOfRecommendation - This line will not be printed Please do NOT delete
StartOfAttachment - Do not delete this line will not be printed
SUBJECT SITE

EndOfAttachment - Do not delete this line will not be printed
StartOfAttachment - Do not delete this line will not be printed

EndOfAttachment - Do not delete this line will not be printed
StartOfAttachment - Do not delete this line will not be printed







EndOfAttachment - Do not delete this line will not be printed
File Ref: S09/0009V014
File Name: FA Development Applications Determined By Delegated Authority For April 2008.doc This line will not be printed Please do NOT delete
Responsible Officer: Acting Director, Planning and Development
Disclosure of Interest: Nil
Author: Sue Shatford
Meeting Date: 3 June 2008
Attachments: 1
StartStrip - This line will not be printed Please do NOT delete
Issue
Development Applications determined by Administration between 1 April 2008 and 30 April 2008, acting under Delegated Authority from Council.
Background
Nil
Detail
The City of Wanneroo District Planning Scheme 2 (DPS2) provides Council with planning approval powers which are designed to avoid conflict between different land uses on adjoining lots. It is also necessary to ensure the completed developments meet the required standards such as building setbacks, carparking and landscaping. Planning approvals are not generally required for single residential houses unless they seek to vary the requirements of the Residential Design Codes (RD Codes.)
Council has delegated some of its responsibilities for decision making on planning applications to certain officers in Administration which enables the processing of applications within the required 60 day statutory period and within normal customer expectations.
Administration, in assessing planning proposals, attempts to extract from the relevant planning documents the key policies and requirements of Council in order to make comments and recommendations on the issues raised in the assessment of each individual planning application.
Planning applications determined by Administration between 1 April 2008 and 30 April 2008, acting under Delegated Authority from Council are included in Attachment 1.
Consultation
Nil
Comment
Nil
Statutory Compliance
A Delegated Authority Register was adopted by Council at its meeting on 29 August 2006 (item GS08-08/06 refers). The decisions referred to in Attachment 1 of this report are in accordance with this register.
Strategic Implications
This report is consistent with the corporate management and development goal of the City’s Strategic Plan, which seeks to establish an organisation that is open, accountable and committed to customer service.
Determination of applications under delegated authority satisfies Outcome Objective 4.4 of the City’s Strategic Plan to Improve business performance and the quality of service delivery.
Policy Implications
Nil
Financial Implications
Planning applications incur administration fees which are generally based on the Town Planning (Local Government Planning Fees) Regulations and have been adopted by Council in its annual budget. The estimated cost of development for each application is listed in Attachment 1. Applications where an estimated cost has not been provided, are either applications for the exercising of discretion or for a change of use.
Voting Requirements
Simple Majority.
EndStrip - This line will not be printed Please do NOT delete
Recommendation
That Council NOTES the determinations made by Administration acting under delegated authority from Council on planning applications processed between 1 April 2008 and 30 April 2008.
EndOfRecommendation - This line will not be printed Please do NOT delete
StartOfAttachment - Do not delete this line will not be printed
Development Applications determined for Period City of Wanneroo
WHERE (Issued date BETWEEN 01/04/2008 00:00:00 AND 30/04/2008)
Ram Id Date Application Days Est Cost Decision
DA08/0287 26/03/2008 14 $3,600.00 Approved
Prop address 31 CASSERLEY AVENUE GIRRAWHEEN WA 6064
Land Lot 844 P 10782 Vol 1390 Fol 017
Description SINGLE HOUSE - PATIO ADDITION
Applicants S & S Outdoors
File Number P11/1918V01
DA08/0189 27/02/2008 34 $350,000.00 Approved
Prop address 18 DEMPSTER PLACE MARIGINIUP WA 6065
Land Lot 44 P 12888 Vol 1538 Fol 356
Description SPECIAL RURAL - RENOVATION & ADDITIONS
Applicants K ACTON
File Number P20/0257V01
DA08/0198 29/02/2008 34 $800,000.00 Approved
Prop address 53 VIA VISTA DRIVE MARIGINIUP WA 6065
Land Lot 47 P 16721 Vol 1829 Fol 446
Description SINGLE HOUSE
Applicants J SHAW
File Number P20/0239V01
DA08/0280 02/04/2008 2 $15,000.00 Approved
Prop address SUBDIVIDED 2 ST MALO COURT MINDARIE WA 6030
Land Lot 30 D 74818 Vol 1831 Fol 741
Description RETAINING WALL AMENDMENT
Applicants RW JOHNSON
File Number P22/1526V01
DA08/0208 27/02/2008 27 $10,000.00 Approved
Prop address 74 BUSHLAND RETREAT CARRAMAR WA 6031
Land Lot 45 P 12964 Vol 1545 Fol 552
Description SINGLE HOUSE - PATIO ADDITION
Applicants ERECT-A-PAT HOME IMPROVEMENTS
File Number P07/0423V02
DA08/0238 17/03/2008 21 $181,818.00 Approved
Prop address 11 BERNBOROUGH PLACE WANNEROO WA 6065
Land Lot 143 P 13145 Vol 1558 Fol 679
Description SPECIAL RURAL - SINGLE HOUSE
- EXTENSIONS & RENOVATIONS
Applicants AMBASSADOR CONSTRUCTION & MAINTENANCE
File Number P34/1282V01
DA08/0056 15/01/2008 22 $72,000.00 Approved
Prop address 18 AQUANITA PLACE WANNEROO WA 6065
Land Lot 103 P 13145 Vol 1558 Fol 640
Description SINGLE HOUSE
- BEDROOM/BATHROOM/WORKSHOP ADDITIONS
Applicants STYLISH EXTENSIONS
File Number P34/1396V01
DA08/0057 15/01/2008 63 $343,658.00 Approved
Prop address 18 AQUANITA PLACE WANNEROO WA 6065
Land Lot 103 P 13145 Vol 1558 Fol 640
Description SINGLE HOUSE - EXTENSIONS
Applicants STYLISH EXTENSIONS
File Number P34/1396V01
Development Applications determined for Period City of Wanneroo
WHERE (Issued date BETWEEN 01/04/2008 00:00:00 AND 30/04/2008)
Ram Id Date Application Days Est Cost Decision
DA08/0265 19/03/2008 19 $10,500.00 Approved
Prop address 23 AQUANITA PLACE WANNEROO WA 6065
Land Lot 109 P 13145 Vol 1558 Fol 646
Description SINGLE HOUSE - PATIO ADDITION
Applicants ONE STOP PATIO SHOP
File Number P34/2002V01
DA08/0289 01/04/2008 20 $800,000.00 Approved
Prop address 637 WANNEROO ROAD WANNEROO WA 6065
Land Lot 101 D 75467
Description ONE (1) WAREHOUSE UNIT
Applicants VESPOLI CONSTRUCTIONS
File Number P34/0160V01
DA08/0184 28/02/2008 33 $14,000.00 Approved
Prop address 55 FRANKLIN ROAD WANNEROO WA 6065
Land Lot 128 P 13145 Vol 1558 Fol 664
Description RURAL SHED ADDITION
Applicants A DI CHIERA
File Number P34/2033V01
DA08/0221 12/03/2008 22 $5,400.00 Approved
Prop address 66 CASUARINA WAY WANNEROO WA 6065
Land Lot 156 P 15402 Vol 2120 Fol 222
Description SINGLE HOUSE - CARPORT & PATIO ADDITION
Applicants HIGH QUALITY PATIOS
File Number P34/3258V01
DA08/0122 01/02/2008 32 $6,600.00 Approved
Prop address 12 DECORA COURT WANNEROO WA 6065
Land Lot 18 D 75033 Vol 1830 Fol 358
Description SINGLE HOUSE - SHED ADDITION
(RETROSPECTIVE APPROVAL)
Applicants KA ARTER
File Number P34/2279V01
DA08/0229 12/12/2007 25 $3,000.00 Approved
Prop address 109 ELLIOT ROAD WANNEROO WA 6065
Land Lot 22 P 6292 Vol 1158 Fol 747
Description TEMPORARY LAND SALES OFFICE
Applicants BENCHMARK PROJECTS
File Number P34/1997V01
DA08/0300 10/04/2008 14 $0.00 Approved
Prop address 170 GIBBS ROAD NOWERGUP WA 6032
Land Lot 31 D 68945 Vol 1731 Fol 481
Description HOME BUSINESS - CATEGORY 1
- COMPLIANCE - FIREARMS DEALER-INTERNET ONLY
Applicants MGN KING
File Number P24/0030V01
DA08/0233 14/03/2008 2 $5,800.00 Approved
Prop address 3B ELLARA COURT ALEXANDER HEIGHTS WA 6064
Land Lot 2 Vol 1782 Fol 108 S/P 15413
Description PATIO ADDITION (UNIT B)
Applicants G DAWSON
File Number P01/0996V01
Development Applications determined for Period City of Wanneroo
WHERE (Issued date BETWEEN 01/04/2008 00:00:00 AND 30/04/2008)
Ram Id Date Application Days Est Cost Decision
DA08/0231 14/03/2008 27 $3,600.00 Approved
Prop address 2B CALVERT WAY GIRRAWHEEN WA 6064
Land Part Lot 355 P 10819
Description GROUPED DWELLING - CARPORT ADDITION 2B
Applicants SW DEARDS
File Number P11/1855V01
DA08/0239 19/03/2008 24 $2,500.00 Approved
Prop address 2A SHALFORD WAY GIRRAWHEEN WA 6064
Land Lot 1 Vol 2609 Fol 889 S/P 48119
Description GROUPED DWELLING - PATIO ADDITION
Applicants N MANDROC
File Number P11/1363V01
DA08/0230 14/03/2008 27 $3,000.00 Approved
Prop address 51B CONNELL WAY GIRRAWHEEN WA 6064
Land Part Lot 522 P 10413
Description GROUPED DWELLING - CARPORT ADDITION (51B)
Applicants SW DEARDS
File Number P11/1825V01
DA08/0278 01/04/2008 15 $4,454.55 Approved
Prop address 20B POINTER WAY GIRRAWHEEN WA 6064
Land Lot 2 Vol 2548 Fol 912 S/P 44407
Description GROUPED DWELLING - PATIO ADDITION (20B)
Applicants BJ CROUCH
File Number P11/0041V01
DA08/0215 21/02/2008 33 $1,992.00 Approved
Prop address 20 STEBBING WAY GIRRAWHEEN WA 6064
Land Lot 5 Vol 2641 Fol 866 S/P 51502
Description GROUPED DWELLING - PATIO ADDITION
Applicants HERITAGE OUTDOOR
File Number P11/1744V01
DA08/0345 18/04/2008 4 $3,980.00 Approved
Prop address 26A CONNELL WAY GIRRAWHEEN WA 6064
Land Lot 13 Vol 2583 Fol 531 S/P 46241
Description GROUPED DWELLING - PATIO ADDITON (UNIT A)
Applicants WESTRAL OUTDOOR CENTRE
File Number P11/1255V01
DA08/0290 19/03/2008 16 $3,600.00 Approved
Prop address PEPPERMINT GROVE 5 30B CASSERLEY AVENUE
GIRRAWHEEN WA 6064
Land Lot 3 Vol 1910 Fol 603 S/P 21594
Description GROUPED DWELLING - PATIO ADDITION
Applicants 1/2 PRICE PATIOS
File Number P11/0823V01
DA08/0288 31/03/2008 14 $3,017.00 Approved
Prop address 10B STELLA PLACE ALEXANDER HEIGHTS WA 6064
Land Lot 1 Vol 1874 Fol 177 S/P 19773
Description GROUPED DWELLING - PATIO ADDITION
Applicants HERITAGE OUTDOOR
File Number P01/1259V01
Development Applications determined for Period City of Wanneroo
WHERE (Issued date BETWEEN 01/04/2008 00:00:00 AND 30/04/2008)
Ram Id Date Application Days Est Cost Decision
DA08/0330 17/04/2008 4 $6,131.82 Approved
Prop address 171 SYDNEY ROAD GNANGARA WA 6065
Land Lot 211 P 17239 Vol 1871 Fol 645
Description SINGLE HOUSE - PATIO ADDITION
Applicants MJ MCGREGOR
File Number P12/0003V01
DA08/0260 26/03/2008 10 $0.00 Approved
Prop address 128 VIA VISTA DRIVE MARIGINIUP WA 6065
Land Lot 69 P 17294 Vol 1860 Fol 889
Description SINGLE HOUSE - AMENDMENT TO FLOOR PLANS
AND ELEVATIONS (MINOR AMENDMENT TO
Applicants AD KLARICH
File Number P20/0215V01
DA08/0292 07/04/2008 11 $0.00 Approved
Prop address 26 PINELAKE TRAIL MARIGINIUP WA 6065
Land Lot 21 D 79588 Vol 1903 Fol 0882
Description HOME BUSINESS - CATEGORY 3
- MASSAGE/FACIALS/SKINCARE
Applicants SA ZANETIC
File Number P20/0048V01
DA08/0267 25/03/2008 20 $1.00 Approved
Prop address BAY52 52/30 MANGANO PLACE WANNEROO WA 6065
Land Lot 52 Vol 1787 Fol 052 S/P 15622
Description HARD ANNEXE ADDITION
Applicants TJ SEYMOUR
File Number P34/0051V01
DA08/0293 31/03/2008 12 $1,540.00 Approved
Prop address 17A LEVEQUE RAMBLE RIDGEWOOD WA 6030
Land Lot 1 Vol 2503 Fol 943 S/P 37203
Description GROUPED DWELLING - PATIO ADDITION (17A)
Applicants KALMAR PTY LTD
File Number P28/0063V01
DA08/0296 08/04/2008 10 $3,000.00 Approved
Prop address 90A MINDARIE DRIVE QUINNS ROCKS WA 6030
Land Lot 1 Vol 2122 Fol 499 S/P 33451
Description GROUPED DWELLING - PATIO ADDITION (UNIT 90A)
Applicants SWAN PATIOS
File Number P27/1319V01
Development Applications determined for Period City of Wanneroo
WHERE (Issued date BETWEEN 01/04/2008 00:00:00 AND 30/04/2008)
Ram Id Date Application Days Est Cost Decision
DA08/0284 02/04/2008 4 $0.00 Approved
Prop address 3 SABINA PARK DRIVE MADELEY WA 6065
Land Lot 122 P 22595 Vol 2137 Fol 729
Description HOME BUSINESS - CATEGORY 3
- MOBILE OPTOMETRIST
Applicants G ANDERSON
File Number P18/0212V01
DA08/0149 14/02/2008 43 $0.00 Approved
Prop address 72 EMERALD DRIVE CARABOODA WA 6033
Land Lot 27 DP 24939 Vol 2205 Fol 810
Description BUILDING ENVELOPE MODIFICATION
Applicants C A DESIGN & DRAFTING
File Number P06/0013V01
DA08/0251 20/03/2008 22 $11,850.00 Approved
Prop address 45 THE FAIRWAYS GNANGARA WA 6065
Land Lot 50 DP 25806 Vol 2503 Fol 44
Description SINGLE HOUSE - OUTBUILDING
Applicants POULTER INSTALLATIONS
File Number P12/0240V01
DA08/0191 22/04/2008 2 $9,550.00 Approved
Prop address 12 CHORLEY AVENUE BUTLER WA 6036
Land Lot 511 DP 33525 Vol 2525 Fol 854
Description SINGLE HOUSE - PATIO ADDITION
Applicants SWAN PATIOS
File Number P05/0255V01
DA07/0687 03/08/2007 155 $300,000.00 Approved
Prop address 5 DALKEY WAY DARCH WA 6065
Land Lot 526 DP 40117 Vol 2562 Fol 102
Description TWO GROUPED DWELLINGS
Applicants DANMAR HOMES PTY LTD
File Number P09/0787V01
DA07/1213 20/12/2007 88 $269,361.82 Approved
Prop address 45 WESTPORT PARADE DARCH WA 6065
Land Lot 522 DP 40125 Vol 2563 Fol 672
Description TWO GROUPED DWELLINGS
Applicants IN VOGUE LIVING PTY LTD
File Number P09/0773V01
DA08/0285 03/04/2008 3 $0.00 Approved
Prop address 47 LANDBEACH BOULEVARD BUTLER WA 6036
Land Lot 162 DP 41455 Vol 2572 Fol 776
Description HOME BUSINESS - CATEGORY 2
- HAIRDRESSSING AND BEAUTY THERAPY
Applicants A SMITH
File Number P05/1502V01
DA08/0249 20/03/2008 18 $278,643.00 Approved
Prop address 14 KARTNER ROAD TAPPING WA 6065
Land Lot 630 DP 41377 Vol 2576 Fol 869
Description TWO GROUPED DWELLINGS
Applicants DANMAR HOMES PTY LTD
File Number P31/2230V01
Development Applications determined for Period City of Wanneroo
WHERE (Issued date BETWEEN 01/04/2008 00:00:00 AND 30/04/2008)
Ram Id Date Application Days Est Cost Decision
DA07/1142 04/12/2007 48 $5,000.00 Approved
Prop address 37 ST ANDREWS DRIVE YANCHEP WA 6035
Land Lot 1 Vol 2575 Fol 92 S/P 45168
Description GROUPED DWELLING - CARPORT ADDITION
Applicants IL GLAVISH
File Number P36/0033V01
DA08/0033 09/01/2008 65 $1,100,000.00 Approved
Prop address 2 KORAB LINK MADELEY WA 6065
Land Lot 758 DP 47161 Vol 2606 Fol 252
Description SIX (6) GROUPED DWELLINGS
Applicants TRENDSTYLE DESIGN
File Number P18/1309V01
DA08/0201 29/02/2008 26 $55,955.00 Approved
Prop address 61 KEY LARGO DRIVE CLARKSON WA 6030
Land Lot 506 DP 47105 Vol 2605 Fol 122
Description ADDITIONS TO SIGNAGE STRATEGY
(INCLUDING 3 X PYLON SIGNS AND ENTRY STATEMENT)
Applicants HODGE & COLLARD PTY LTD
File Number P08/0871V02
DA08/0118 29/01/2008 42 $150,000.00 Approved
Prop address 15 CROSTHWAIT CIRCLE TAPPING WA 6065
Land Lot 703 DP 45447
Description GROUPED DWELLING - RETAINING WALL &
SCREEN FENCES AMENDMENTS/ADDITIONS
Applicants MCNALLY NEWTON LANDSCAPE ARCHITECTS
File Number P31/1858V01
DA08/0247 20/03/2008 14 $1,180.00 Approved
Prop address 21 SIDERNO RISE HOCKING WA 6065
Land Lot 2 Vol 2609 Fol 852 S/P 49317
Description GROUPED DWELLING - PATIO EXTENTION
Applicants SA GUEST
File Number P13/0545V01
DA08/0217 10/03/2008 31 $4,140.00 Approved
Prop address 4/72 AMBERTON AVENUE GIRRAWHEEN WA 6064
Land Lot 61 Vol 2610 Fol 625 S/P 24554
Description GROUPED DWELLING - PATIO ADDITION (UNIT 4)
Applicants HALF PRICE PATIOS & PERGOLAS
File Number P11/1434V01
DA08/0146 13/02/2008 22 $210,000.00 Approved
Prop address 12/146 ST ANDREWS DRIVE YANCHEP WA 6035
Land Lot 12 Vol 2614 Fol 112 S/P 48121
Description TWO STOREY DWELLING
Applicants NORFOLK HOMES
File Number P36/1042V01
Development Applications determined for Period City of Wanneroo
WHERE (Issued date BETWEEN 01/04/2008 00:00:00 AND 30/04/2008)
Ram Id Date Application Days Est Cost Decision
DA08/0096 25/01/2008 18 $285,383.00 Approved
Prop address 35 VAN GOGH ROAD TAPPING WA 6065
Land Lot 1013 DP 49281 Vol 2618 Fol 549
Description TWO GROUPED DWELLINGS
Applicants DANMAR HOMES PTY LTD
File Number P31/2219V01
DA08/0269 27/03/2008 13 $130,075.00 Approved
Prop address 18 BEACHSIDE PARADE YANCHEP WA 6035
Land Lot 452 DP 49288 Vol 2619 Fol 307
Description SINGLE HOUSE
Applicants BGC RESIDENTIAL PTY LTD
File Number P36/1076V01
DA08/0268 27/03/2008 13 $130,075.00 Approved
Prop address 20 BEACHSIDE PARADE YANCHEP WA 6035
Land Lot 453 DP 49288 Vol 2619 Fol 308
Description SINGLE HOUSE
Applicants BGC RESIDENTIAL PTY LTD
File Number P36/1074V01
DA08/0261 27/03/2008 18 $1,300.00 Approved
Prop address 5 IDAHO COURT LANDSDALE WA 6065
Land Lot 2 Vol 2651 Fol 873 S/P 52341
Description PATIO ADDITION
Applicants D TESIC
File Number P17/1828V01
DA08/0325 14/04/2008 6 $24,837.27 Approved
Prop address QUINNS ROCKS SPORTS CLUB 17 TAPPING
WAY QUINNS ROCKS WA 6030
Land Part Lot 500 DP 52810
Description SHADE STRUCTURE ADDITION
Applicants CROWN LAND - CITY OF WANNEROO
MANAGEMENT ORDER
File Number P27/1568V01
DA08/0154 22/04/2008 1 $1,677.00 Approved
Prop address 12/18 WILLESPIE DRIVE PEARSALL WA 6065
Land Part Lot 4 D 9065
Description GROUPED DWELLING - PATIO ADDITION
Applicants STATE HOUSING COMMISSION
File Number P25/0535V01
DA08/0335 18/04/2008 3 $480,000.00 Approved
Prop address 11 SALFORD PROMENADE MINDARIE WA 6030
Land Lot 439 DP 49283 Vol 2626 Fol 009
Description SINGLE HOUSE
Applicants MA WILSON, LT WILSON
File Number P22/2036V01
DA08/0210 25/02/2008 14 $158,975.00 Approved
Prop address 64 SEASIDE AVENUE YANCHEP WA 6035
Land Lot 256 DP 51236 Vol 2639 Fol 334
Description SINGLE HOUSE
Applicants J CORP T/AS IMPRESSIONS
File Number P36/1308V01
Development Applications determined for Period City of Wanneroo
WHERE (Issued date BETWEEN 01/04/2008 00:00:00 AND 30/04/2008)
Ram Id Date Application Days Est Cost Decision
DA08/0250 20/03/2008 23 $205,000.00 Approved
Prop address 57 SEASIDE AVENUE YANCHEP WA 6035
Land Lot 166 DP 52670 Vol 2639 Fol 340
Description SINGLE HOUSE
Applicants NORFOLK HOMES
File Number P36/1294V01
DA08/0068 17/01/2008 60 $122,236.36 Approved
Prop address 7 ICEBERG WAY DARCH WA 6065
Land Lot 779 DP 50063 Vol 2640 Fol 812
Description SINGLE HOUSE
Applicants GEMMILL HOMES PTY LTD
File Number P09/1632V01
DA08/0084 23/01/2008 28 $138,215.00 Approved
Prop address 37 PINJAR ROAD SINAGRA WA 6065
Land Lot 35 Vol 2636 Fol 935 S/P 47046
Description SINGLE HOUSE
Applicants JCORP
File Number P29/0460V01
DA08/0244 19/03/2008 24 $483,376.00 Approved
Prop address 29 MESSINA DRIVE SINAGRA WA 6065
Land Lot 908 DP 49784 Vol 2641 Fol 109
Description TWO GROUPED DWELLINGS
Applicants STUDIO 8 BUILDERS & DESIGNERS
File Number P29/0481V01
DA08/0121 01/02/2008 22 $352,254.00 Approved
Prop address 32 MESSINA DRIVE SINAGRA WA 6065
Land Lot 919 DP 49784 Vol 2641 Fol 120
Description TWO GROUPED DWELLING
Applicants J CORP T/AS IMPRESSIONS
File Number P29/0543V01
DA08/0133 06/02/2008 12 $254,232.73 Approved
Prop address 47 CHEROKEE GREEN CLARKSON WA 6030
Land Lot 1291 DP 52110 Vol 2642 Fol 429
Description TWO GROUPED DWELLINGS
Applicants BGC RESIDENTIAL PTY LTD
File Number P08/3421V01
DA08/0212 06/03/2008 22 $360,000.00 Approved
Prop address 26 COOPER STREET MADELEY WA 6065
Land Lot 797 DP 50837 Vol 2646 Fol 290
Description TWO GROUPED DWELLINGS
Applicants PA TOWLER, NORFOLK HOMES
File Number P18/1547V01
DA08/0294 08/04/2008 10 $12,000.00 Approved
Prop address 264 NEAVES ROAD MARIGINIUP WA 6065
Land Lot 800 DP 52253 Vol 2644 Fol 794
Description SINGLE HOUSE - VERANDAH ENCLOSURE
Applicants LE FIGLIOMENI
File Number P20/0245V02
Development Applications determined for Period City of Wanneroo
WHERE (Issued date BETWEEN 01/04/2008 00:00:00 AND 30/04/2008)
Ram Id Date Application Days Est Cost Decision
DA08/0240 29/02/2008 17 $143,170.00 Approved
Prop address 27 SPERANZA PARKWAY SINAGRA WA 6065
Land Lot 943 DP 53364 Vol 2648 Fol 999
Description SINGLE HOUSE
Applicants BGC RESIDENTIAL PTY LTD
File Number P29/0520V01
DA08/0246 19/03/2008 19 $290,573.00 Approved
Prop address 6 VERDELLO WAY PEARSALL WA 6065
Land Lot 149 DP 52776 Vol 2648 Fol 670
Description TWO GROUPED DWELLING
Applicants AFFORDABLE LIVING HOMES
File Number P25/0656V01
DA08/0255 25/03/2008 9 $199,430.00 Approved
Prop address 35 GRANITE PLACE YANCHEP WA 6035
Land Lot 632 DP 53318 Vol 2651 Fol 660
Description SINGLE HOUSE
Applicants J CORP T/AS IMPRESSIONS
File Number P36/1701V01
DA07/0994 26/10/2007 10 $800,000.00 Approved
Prop address 93 LINDSAY BEACH BOULEVARD
YANCHEP WA 6035
Land Lot 616 DP 53318
Description CHILD CARE CENTRE
Applicants DREAM CHOICE PTY LTD
File Number P36/1648V01
DA07/0906 04/10/2007 134 $318,419.00 Approved
Prop address 254 LANDSDALE ROAD LANDSDALE WA 6065
Land Lot 501 DP 50842 Vol 2653 Fol 36
Description TWO GROUPED DWELLINGS
Applicants PLUNKETT HOMES PTY LTD
File Number P17/1703V01
DA08/0054 15/01/2008 61 $278,527.27 Approved
Prop address 258 LANDSDALE ROAD LANDSDALE WA 6065
Land Lot 503 DP 50842 Vol 2653 Fol 038
Description TWO GROUPED DWELLINGS
Applicants IN VOGUE LIVING PTY LTD
File Number P17/0997V01
DA08/0065 17/01/2008 59 $130,000.00 Approved
Prop address 29A SISTINA ROAD ASHBY WA 6065
Land Lot 1 Vol 2653 Fol 682 S/P 52364
Description SINGLE HOUSE
Applicants DANMAR HOMES PTY LTD
File Number P03/0812V01
DA08/0286 26/03/2008 17 $137,000.00 Approved
Prop address 27 SISTINA ROAD ASHBY WA 6065
Land Lot 3 Vol 2653 Fol 684 S/P 52364
Description SINGLE HOUSE
Applicants DANMAR HOMES PTY LTD
File Number P03/0818V01
Development Applications determined for Period City of Wanneroo
WHERE (Issued date BETWEEN 01/04/2008 00:00:00 AND 30/04/2008)
Ram Id Date Application Days Est Cost Decision
DA08/0067 14/12/2007 56 $138,500.00 Approved
Prop address 19 INDIANA WAY HOCKING WA 6065
Land Lot 2 Vol 2668 Fol 379 S/P 53157
Description SINGLE HOUSE
Applicants HOMEBUYERS CENTRE
File Number P13/1501V01
DA08/0306 07/04/2008 11 $148,420.00 Approved
Prop address 117 CELEBRATION BOULEVARD
CLARKSON WA 6030
Land Lot 2236 DP 53859 Vol 2658 Fol 816
Description SINGLE HOUSE
Applicants J CORP T/AS IMPRESSIONS
File Number P08/3621V01
DA08/0253 25/03/2008 11 $19,995.00 Approved
Prop address 46 LEACH WAY GNANGARA WA 6065
Land Lot 9 DP 49646 Vol 2666 Fol 465
Description SINGLE HOUSE - SHED ADDITION
Applicants S RANIERI
File Number P12/0309V01
DA08/0263 27/03/2008 18 $142,821.81 Approved
Prop address 95 ROSEGREEN AVENUE BUTLER WA 6036
Land Lot 1590 DP 56924 Vol 2675 Fol 776
Description SINGLE HOUSE
Applicants HOMEBUYERS CENTRE
File Number P05/2619V01
DA08/0158 13/02/2008 35 $318,587.27 Approved
Prop address 4 CASS BOULEVARD DARCH WA 6065
Land Lot 413 DP 56903 Vol 2678 Fol 011
Description TWO GROUPED DWELLINGS
Applicants METROSTYLE
File Number P09/1845V01
DA08/0066 20/12/2007 69 $265,000.91 Approved
Prop address 10 CASS BOULEVARD DARCH WA 6065
Land Lot 415 DP 56903 Vol 2678 Fol 013
Description TWO GROUPED DWELLINGS
Applicants IN VOGUE LIVING PTY LTD
File Number P09/1825V01
DA08/0107 29/01/2008 28 $264,747.27 Approved
Prop address 22 CASS BOULEVARD DARCH WA 6065
Land Lot 421 DP 56903 Vol 2678 Fol 019
Description TWO GROUPED DWELLINGS
Applicants METROSTYLE
File Number P09/1840V01
EndOfAttachment - Do not delete this line will not be printed
File Ref: S09/0008
File Name: FC Subdivision Applications Determined Under Delegated Authority During April 2008.doc This line will not be printed Please do NOT delete
Responsible Officer: Acting Director, Planning and Development
Disclosure of Interest: Nil
Author: Sue Shatford
Meeting Date: 3 June 2008
Attachments: 9
StartStrip - This line will not be printed Please do NOT delete
Issue
Determination of subdivision applications processed for the month of April 2008 under delegated authority.
Detail
The Western Australian Planning Commission (WAPC) is responsible for determining all subdivision applications within the State. Applications for approval are lodged with the WAPC and are referred to local governments and affected public bodies for comment. Comments are made within 42 days of receiving the application after which the Commission determines the applications. There is a right of appeal by the applicant if aggrieved with the Commission’s decision.
Council has delegated to the Chief Executive Officer its functions relating to the provision of comments to the Commission on subdivision applications. The Chief Executive Officer has in turn delegated to the Planning and Development Directorate this responsibility. A Land Development Unit has been established to assist with the assessment of all applications.
Those applications considered to be either controversial in nature or contrary to Council policy, are referred to Council for consideration. All other applications are dealt with in respect to the following categories.
SCU 1 Subdivision applications received which are generally consistent with an approved or Agreed Structure Plan (including Outline Development Plan and Development Guide Plan).
SCU 2 Subdivision applications previously supported, or not supported by Council and subsequently determined by the Western Australian Planning Commission (WAPC) consistent with the Council’s recommendation.
SCU 3 Applications for extension of subdivisional approval issued by the WAPC which were previously supported by Council.
SCU 4 Applications for subdivision or amalgamation which result from conditions of development approval given by or on behalf of Council.
SCU 5 Applications for subdivision or amalgamation of lots which would allow the development of the land for uses permitted in the zone within which that land is situated including applications involving the excision of land for road widening, sump sites, school sites, etc.
SCU 6 Applications for subdivision or amalgamation of lots contrary to Council or WAPC Policy or are not generally consistent with an approved or Agreed Structure Plan.
The following table provides the details of the subdivision applications dealt with under delegated authority for the month of April 2008.
Consultation
Nil
Comment
Nil
Statutory Compliance
A Delegated Authority Register was adopted by Council at its meeting on 29 August 2006 (item GS08-08/06 refers). The decisions referred to in this report are in accordance with this register.
Strategic Implications
This report is consistent with the corporate management and development goal of the City’s Strategic Plan, which seeks to establish an organisation that is open, accountable and committed to customer service.
Policy Implications
Nil
Financial Implications
The City does not receive any fees for the consideration of subdivisions or amalgamation applications.
Voting Requirements
Simple Majority.
EndStrip - This line will not be printed Please do NOT delete
Recommendation
That Council NOTES the actions taken in relation to providing comments to the Western Australian Planning Commission on subdivision applications processed under delegated authority in the period for the month of April 2008 as listed below:
Subdivision Application Delegations
|
Att |
WAPC No/ Received Date |
Location / Owner |
DPS2 Zoning LDU Category |
Advice |
WAPC Advised |
|
1 |
SU137180
31/03/2008 |
LOT 600 (570) WATTLE AVENUE, NEERABUP WA 6031
CITY OF WANNEROO |
REGIONAL RESERVATION - PARKS & RECREATION - PUBLIC PURPOSES INDUSTRIAL DEVELOPMENT SCU1 |
SUPPORTED |
21/04/2008 |
|
2. |
SU137276 03/04/2008 |
LOT 538 (148) NICHOLAS ROAD, HOCKING WA 6065 DAVID J KIRBY |
URBAN DEVELOPMENT SCU1 |
SUPPORTED |
17/04/2008 |
|
3 |
SU539-08 22/04/2008 |
LOT 612 (54) MARTINDALE AVENUE, MADELEY WA 6065 MICHAEL SAUNDERS |
URBAN DEVELOPMENT SCU1 |
SUPPORTED |
24/04/2008 |
|
4 |
SU405-08 31/03/2008 |
LOT 1461 (21) ORIOLE WAY, TAPPING WA 6065 MATTHEW I STRAY, LISA M STRAY, BRANDON C SHORTLAND, SONIA L SHORTLAND, GRANT R DUNSTAN, KYM S JEFFS |
URBAN DEVELOPMENT
SCU1 |
SUPPORTED |
14/04/2008 |
|
5 |
SU137273 03/04/2008 |
LOT 633 (64) SUSAN ROAD, MADELEY WA 6065 GUISEPPE PELLEGRINI |
URBAN DEVELOPMENT SCU1 |
SUPPORTED |
15/04/2008
|
|
6 |
SU137270 03/04/2008 |
LOT 635 (68) SUSAN ROAD, MADELEY WA 6065 GUISEPPE PELLEGRINI |
URBAN DEVELOPMENT SCU1 |
SUPPORTED |
15/04/2008 |
|
7 |
SU433-08 31/03/2008 |
LOT 211 (38 ) KEMBLA CIRCLE, MADELEY WA 6065 TRACIE L LUCAS, DEBORAH HAYNES, KEVIN C HAYNES, PAUL LUCAS, ELECTRICAL SERVICES PTY LTD, ADL ELECTRICS PTY LTD |
URBAN DEVELOPMENT
SCU1 |
SUPPORTED |
17/04/2008 |
|
8 |
SU137071 11/03/2008 |
LOT 9013 (599) TWO ROCKS ROAD, YANCHEP WA 6035 YANCHEP SUN CITY PTY LTD & CAPRICORN INVESTMENT GROUP PTY LTD |
URBAN DEVELOPMENT
SCU1 |
SUPPORTED |
11/04/2008 |
|
9 |
SU137121 17/03/2008 |
LOT 9013 (599) TWO ROCKS ROAD, YANCHEP WA 6035 YANCHEP SUN CITY PTY LTD & CAPRICORN INVESTMENT GROUP PTY LTD |
URBAN DEVELOPMENT
SCU1 |
SUPPORTED |
10/04/2008 |
EndOfRecommendation - This line will not be printed Please do NOT delete
StartOfAttachment - Do not delete this line will not be printed

EndOfAttachment - Do not delete this line will not be printed
StartOfAttachment - Do not delete this line will not be printed

EndOfAttachment - Do not delete this line will not be printed
StartOfAttachment - Do not delete this line will not be printed

EndOfAttachment - Do not delete this line will not be printed
StartOfAttachment - Do not delete this line will not be printed

EndOfAttachment - Do not delete this line will not be printed
StartOfAttachment - Do not delete this line will not be printed

EndOfAttachment - Do not delete this line will not be printed
StartOfAttachment - Do not delete this line will not be printed

EndOfAttachment - Do not delete this line will not be printed
StartOfAttachment - Do not delete this line will not be printed

EndOfAttachment - Do not delete this line will not be printed
StartOfAttachment - Do not delete this line will not be printed

EndOfAttachment - Do not delete this line will not be printed
StartOfAttachment - Do not delete this line will not be printed

EndOfAttachment - Do not delete this line will not be printed
File Ref: P18/1435V01
File Name: HA Petition No PT01 04 08 Two Storey Dwelling Lot 842 23 Eastcliffe Street Madeley.doc This line will not be printed dont delete
Responsible Officer: Acting Director, Planning and Development
Disclosure of Interest: Nil
Author: Mark Donnelly
Meeting Date: 3 June 2008
Attachments: Nil
StartStrip - This line will not be printed Please do NOT delete
Issue
To consider a petition from the owner of 16 Tambora Way, Madeley in relation to the construction of a two-storey dwelling at lot 23 Eastcliffe Street, Madeley.
Background
On 17 January 2007 the City received an application for a building licence for the construction of a two storey single dwelling on the subject land. As the application did not meet the acceptable development criteria of the Residential Design Codes (the codes) with respect to setbacks of the upper floor balcony and upper storey bedroom windows the applicant was advised to submit amended plans demonstrating compliance. As permitted by the provisions of the codes the applicant opted to apply for a design codes variation and submitted documentation in support of the sought after variations. The variations included reduced setbacks to the rear balcony and a reduction in setback to upper floor bedroom windows.
After satisfying various outstanding requirements officers of the City subsequently issued a Building Licence under delegated authority. On 20 March 2008 the City received a petition from the rear neighbour at 16 Tambora Way, Madeley with 13 signatories expressing concerns in relation to privacy. A review of the application has been undertaken and the following is in response to that review.
Detail
The site is zoned Residential R20 in the City of Wanneroo District Planning Scheme No2 (DPS2), hence the requirements of the Residential Design Codes applied to this site. The proposal was for a two storey brick rendered dwelling with a tiled roof. The variations sought by the applicant included a reduction in setback of the upper floor rear balcony and a reduction in setback to various upper floor windows. The applicant consulted with all adjoining land owners as required by the codes and provided the City with their respective comments. All neighbours contacted, stated on the relevant Appendix Form Three that they had no objection with the exception of the neighbour at lot 843 Eastcliffe St. This adjoining neighbour located to the South of the subject property, objected to the balcony and requested that a balcony privacy screen be put in place. Accordingly this was brought to the attention of the applicant and brick screening to a height of 165 centimetres was a requirement of the building licence on both the northern and southern elevations.
Consultation
In accordance with the requirements of section 2.5.1 of the Residential Design Codes, comment was sought from the adjoining land owners in relation to the variations requested.
Comment
In accordance with Section 2.5.1 of the Residential Design Codes, neighbour consultation was sought by the applicant in relation to the aforementioned variations. In the context of the petition received it is relevant to note that consultation is only required from adjoining land owners and there is no requirement to consult with any other party. All adjoining landowners with the exception of one signed the appropriate Appendix Form Three stating they had no objection. The neighbour who did raise an objection requested that appropriate screening be put in place. Accordingly appropriate brick screening was required on the southern elevation addressing the neighbour’s concerns.
As no objection was received from the other adjoining land owners, officers were satisfied that the application met the requirements of the relevant codes and standards. In addition, upper floor bedroom windows were required to be provided with obscure glazing as a measure of retaining privacy. A site inspection has confirmed that the screening has been constructed on the northern and southern elevations as required by the building licence. The obscure glazing will be installed at a later date when the building is complete.
Statutory Compliance
The application was determined in accordance with the requirements of the City’s District Planning Scheme, the Residential Design Codes and the Building Code of Australia.
Strategic Implications
The proposal requires satisfying the following outcome objective of the City’ strategic plan for 2006-2021
"2.1 increase quality of neighbourhood and lifestyle options”
Policy Implications
Nil
Financial Implications
Nil
Voting Requirements
Simple Majority.
EndStrip - This line will not be printed Please do NOT delete
Recommendation
That Council:
1. ACKNOWLEDGES the petition from the owner of 16 Tambora Way, Madeley, and that the CEO or his delegate be requested to write to the signatories of the petition advising that the building at Lot 842 (23) Eastcliffe Street, Madeley was determined in accordance with the requirements of the Residential Design Codes.
2. REQUESTS that the CEO or his delegate negotiate with the owners of 23 Eastcliffe Street, Madeley, with a view to the owners providing screening to the balcony on the eastern elevation to a height of 165 centimetres.
EndOfRecommendation - This line will not be printed Please do NOT delete
File Ref: C08008V01
File Name: AA Tender No 08008 Construction Development and Testing of Bores for a Period of Two Years.doc This line will not be printed dont delete
Responsible Officer: Director Infrastructure
Disclosure of Interest: Nil
Author: Warren Stevens
Meeting Date: 3 June 2008
Attachment(s): Nil
StartStrip - This line will not be printed Please do NOT delete
Issue
To consider Tender No 08008 - Construction, Development and Testing of Bores for a period of two years from 1 June 2008 to 31 May 2010, with the option of extending for an additional 12 months to 31 May 2011 or part thereof.
Background
The City is responsible for the construction, development and testing of bores throughout Public Open Space areas of the City. This process is a specialised service that is out sourced due to the type of expertise required.
Previously, the construction, development and testing of bores was carried out via Contract 06064 – The Construction, Development and Testing of Bores within the City of Wanneroo for a period of 18 months, was awarded to P.Rond and Co.
Detail
Tender No 08008 was advertised on 29 March 2008 and closed 15 April 2008.
Essential details of the new contract are shown in the following table:
|
Contract Type: |
Schedule of Rates |
|
Contract Duration: |
Two Years |
|
Commencement Date |
4 June 2008 |
|
Expiry date: |
31 May 2010 |
|
Extension Permitted: |
Yes (up to 12 months or part thereof) |
|
Rise and Fall included |
No |
Tenders were received from:
· P. Rond and Co.
· Water Bore Redevelopers P/L
· Western Irrigation
· Ardmay P/L T/as RBM Drilling
Tender Evaluation
The Tender Evaluation team, comprising the Contracts Officer, Coordinator Conservation Maintenance and Parks Technical Officer has evaluated the tender submission in accordance with the following selection criteria and weightings:
|
Item No |
Description |
Score |
|
1 |
Price for services offered |
40% |
|
2 |
Tenderer’s resources available for this contract |
20% |
|
3 |
Tenderers previous experience in similar works |
20% |
|
4 |
Tenderers Occupational Health and Safety Management Systems |
20% |
Price for services offered
Based on each tenderers schedule of rates and the current Infrastructure Parks Maintenance and Capital Works budgets, a calculation was effected to determine the approximate value of works for the contract period.The contract will provide the activities necessary for the construction, development and testing of bores.
The services contained within the tender are comprised of, but not limited to the following activities:
· The construction of a bore by means of Cable Tool or Fluid Drilling methodology;
· Development of bores, and
· Testing of bores.
In all, the process of bore development is a twelve-step process.
Administration has determined that ninety percent of borehole drilling will utilise the Fluid Drilling method and ten percent on cable drilling and as such the price evaluation was carried out based on this split, as per Price Comparisons attachment.
This criterion represents 40% of the total score and resulted in the following ranking:
|
Tenderer |
Estimated Value of Works per Bore (Fluid Method) |
Estimated Value of Works per Bore (Cable Method) |
Ranking |
|
P. Rond and Co |
$8,409.00 |
$9,992.00 |
1 |
|
Water Bore Redevelopers P/L |
$9,552.50 |
$8,472.50 |
2 |
|
Ardmay P/L T/as RBM Drilling |
$10,010.00 |
$8,457.50 |
3 |
|
Western Irrigation |
$11,965.50 |
$14,026.50 |
4 |
*Additional work will be required for undetermined bore testing and servicing of existing bores and replacement bore failure.
Tenderers resources available for this contract:
P. Rond and Co. has all of the necessary resources available to effectively service the contract and within the time frames specified.
Western Irrigation has all the necessary resources available to effectively service the contract and within the time frames specified. However they only provided generic company information to this criteria.
Water Bore Redevelopers P/L provided limited information for this criteria, listing sub contractors only. Water Bore Redevelopments also indicated that Drill Rig availability could be subject to delays of up to six-eight weeks, which is significantly greater than the response time of five days specified.
Ardmay P/L T/as RMB Drilling have all the necessary resources available to effectively service the contract and within the time frames specified.
This criterion represents 20% of the total score and resulted in the following ranking:
|
Tenderer |
Ranking |
|
P. Rond and Co. |
1 |
|
Ardmay P/L T/as RBM Drilling |
2 |
|
Western Irrigation |
3 |
|
Water Bore Redevelopers P/L |
4 |
Tenderers previous experience in similar works
P.Rond and Co is the current contractor to the City and has performed very well for the duration of the contract. They are highly experienced and have many years undertaking this type of work.
Water Bore Redevelopers P/L are experienced contractors have carried out this type of work for many Local Authorities including the City of Wanneroo over many years.
Western Irrigation are highly experienced contractors and have carried out this type of work for Local Authorities and the commercial sector for many years.
Ardmay P/L T/as RBM Drilling are experienced at carrying out this type of work for the government and commercial sector for many years.
This criterion represents 20% of the total score and resulted in the following ranking:
|
Tenderer |
Ranking |
|
P. Rond and Co |
1 |
|
Water Bore Redevelopers P/L |
1 |
|
Western Irrigation |
1 |
|
Ardmay P/L T/as RBM Drilling |
1 |
Tenderers Occupational Safety and Health Management Systems
P. Rond and Co provided comprehensive and well-structured safety management system.
Water Bore Redevelopers P/L provided a basic safety management system that reflected the small size of the company.
Western Irrigation provided a detailed and thorough safety management system.
Ardmay P/L T/as RBM Drilling provided a safety management system adequate for the purposes of this contract.
This criterion represents 20% of the total score and resulted in the following ranking:
|
Tenderer |
Ranking |
|
P. Rond and Co |
1 |
|
Western Irrigation |
2 |
|
Ardmay P/L T/as RBM Drilling |
3 |
|
Water Bore redevelopers P/L |
4 |
Overall Ranking Assessment
The weighted score analysis resulted in the following overall ranking:
|
Tenderer |
Ranking |
|
P. Rond and Co. |
1 |
|
Ardmay P/L T/as RBM Drilling |
2 |
|
Western Irrigation |
3 |
|
Water Bore redevelopers P/L |
4 |
Comment
The tender submission by P. Rond and Co has been evaluated as the number one ranked tenderer in accordance with the selection criteria and weightings as detailed in the tender document.
It is considered that P. Rond and Co has the ability and experience to perform to the requirements of the contract and is therefore recommended as the successful tenderer.
Initially it was proposed to present this tender recommendation to the Chief Executive Officer for approval under delegated authority, however an extension beyond the two year contract period would result in expenditure in excess of $250,000. As a decision will not be made by Council until 4 June 2008, the commencement date of the contract has been amended from 1 June 2008 accordingly
Statutory Compliance
Tenders have been invited and properly evaluated against the selection criteria in accordance with Section 3.57 of the Local Government Act and associated regulations. The tendering procedures and evaluation complies with the requirements of Part 4 of the Local Government (Function and General) regulations 1996.
The Manager Contracts and Property has reviewed the tender evaluation for compliance and fairness and is satisfied with the process.
Strategic Implications
The Construction, Development and Testing of Bores for a period of two years is consistent with the following City of Wanneroo Strategic Plan (2006-2021) outcomes and objectives: -
“Social
2.1 Increase choice and quality of neighbourhood and lifestyle options.
2.1.2 Provide timely and functional public facilities and open spaces to meet
changing community needs.
2.3 Improve the capacity of local communities to support each other
2.3.1 Provide or facilitate access to services and facilities that support
inclusive communities.”
Policy Implications
Nil
Financial Implications
The estimated cost for a one year duration of this contract is $120,000 (ex GST) and is accommodated in the 2008/2009 Infrastructure Capital Works budget.
Voting Requirements
Simple Majority
EndStrip - This line will not be printed Please do NOT delete
Recommendation
That Council ACCEPTS Tender No 08008 from P. Rond and Co for the Construction, Development and Testing of Bores , as per the Schedule of Rates and General Conditions of Tendering, for a period of two years from 4 June 2008 to 31 May 2010, with an option to extend the contract for 12 months to 31 May 2011 or part thereof.
EndOfRecommendation - This line will not be printed Please do NOT delete
File Ref: C08012V01
File Name: EA PROVISION OF PLANT HIRE AND AUXILIARY PLANT HIRE SERVICES FOR A PERIOD OF THREE 3 YEARS PANEL CONTRACT .doc This line will not be printed dont delete
Responsible Officer: Director Infrastructure
Disclosure of Interest: Nil
Author: M Best
Meeting Date: 3 June 2008
Attachment(s): 1
StartStrip - This line will not be printed Please do NOT delete
Issue
To consider Tender No 08012 – Provision of Plant Hire and Auxiliary Plant Hire Services for a period of three (3) years (Panel Contract).
Background
Due to the continuous need for plant hire and auxiliary plant hire services on construction projects and maintenance works, panel contract arrangements are currently utilised by the City. The present contract arrangements for these services expire on 30 June 2008.
Detail
Tender No 08012 - Provision of Plant Hire and Auxiliary Plant Hire Services for a period of three (3) years (Panel Contract) was advertised on 12 April 2008 and closed on 29 April 2008. Refer Attachment 1 for schedule of tender items.
Essential details of the contract are outlined below.
|
Contract Type |
Schedule of Rates |
|
Contract Duration |
3 Years |
|
Commencement Date |
1 July 2008 |
|
Expiry Date |
30 June 2011 |
|
Extension Permitted |
Yes |
|
Rise And Fall Included |
Yes – CPI adjusted |
At the expiry of the initial contract period, the City may consider extending this contract for two additional periods of one year each or part thereof. Any extension will be in accordance with the same terms and conditions of the original contract and at the discretion of the City.
Tenders were received from the following nine companies listed below:-
· Executive Plant Hire
· Mayday Earthmoving
· Coates Hire
· Harris Hire
· Environmental Land Clearing Services
· Hireways
· Tonca Earthmoving
· Kenco Hire
· WA Profiling
The Tender Evaluation Team comprising the Manager Infrastructure Projects, Coordinator Projects Construction and the Contracts Officer, has evaluated the tenders in accordance with the following selection criteria:
|
Item No |
Description |
Score |
|
1 |
Price for the services offered |
50% |
|
2 |
Tenderer’s experience and ability to do the work |
20% |
|
3 |
Tenderer’s resources |
20% |
|
4 |
Safety Management |
10% |
The tender document included the following clause (Clause 1 – Specification and Scope of Works) regarding establishing a panel of contractors for seeking services for items included in this tender:
“The City of Wanneroo is seeking to establish a panel of Contractors for the Provision of Plant hire and Auxiliary Plant Hire Services during the Contract Period. It is proposed to establish the panel on a “standing offer” basis and as such the Principal does not guarantee a regular allocation of Services to any Contractor. Allocation of Plant hire shall be decided by the Principal based on Plant availability and price. The Principal shall hire Plant from the Contractors on this panel offering the lowest cost for each hire.”
It is noted that the tenderers have offered different items and no tenderer has submitted prices for all of the items and/or options. Therefore, no single tenderer can alone fulfil the requirements for plant hire as needed by the City. Also, at various occasions it may be necessary to seek services for some of the items from more than one contractor. The City’s operational service units hire a considerable amount of plant, auxiliary plant and vehicles to effectively deliver their infrastructure construction works and maintenance programs. From an operational point of view, it is more effective to hire all items of plant from a limited number of contractors. In view of the above, four tenderers being Mayday Earthmoving, Executive Plant Hire, Coates Hire and WA Profiling were short-listed for a detailed evaluation and compliance.
Accordingly, tenders have been evaluated for compliance with the evaluation criteria and these are summarised below:
Price for the services offered:
Price and quantity of plant tendered are considered critical. The three year fixed prices were evaluated to include a number of scenarios/combinations of hire of plant for short and/or long term hire and hire with and/or without an operator.
The evaluation highlighted that the tenderers that offered the greatest quantity of plant also submitted the first, second and third cheapest prices. These three tenderers being, Mayday Earthmoving, Executive Plant Hire and Coates Hire. WA Profiling was the only tenderer who could offer Road Profiler Plant for hire and this fulfils the City’s requirements in this regard.
Together, these four tenderers cover all items listed on the Price Schedule, with the exception of items 24, 25, 41, 46 and 47. It is noted that no tenderers offered these items and alternate machines can be used where necessary.
Tenderer’s experience and ability to do the work:
The four short-listed tenderers were assessed to have sufficient experience with previous contracts for their tendered items.
Tenderer’s resources:
The four short-listed tenderers were assessed to have sufficient resources to provide the required services for their tendered items.
Safety Management:
Evidence of safety management policies and practices was assessed from the tender submissions. The assessment for safety management was based on the tenderer’s response to an Occupational Health and Safety Management System Questionnaire included within the tender documentation.
The four short-listed tenderers were assessed to have sufficient safety management procedures and practices in place to provide the tendered services.
Overall Evaluation Results
Four short-listed tenderers being Mayday Earthmoving, Executive Plant Hire, Coates Hire and WA Profiling offer the majority of the tendered items and meet the requirements of the evaluation criteria. These four tenders are therefore recommended for acceptance to form a panel for the provision of plant hire and auxiliary plant hire services.
Comment
The proposal to commission four tenderers for the tendered services is considered appropriate as it assists in the administration of the contracts and provides the best value for money by reducing administration/management costs related to the contracts. A contract management procedure and hiring schedule will be implemented for the hiring of plant from these contractors in the most cost effective manner.
Statutory Compliance
Tenders were invited in accordance with the requirements of Section 3.57 of the Local Government Act 1995. The tendering procedures and evaluation complied with the requirements of Part 4 of the Local Government (Functions and General) Regulations 1996.
The Manager Contracts and Property has viewed the tender selection process for fairness and compliance and is satisfied with the evaluation process and result.
Strategic Implications
The provision of Plant Hire and Auxiliary Plant Hire Services is consistent with the following City of Wanneroo Strategic Plan (2006-2021) goals and objectives:-
“Social
2.5 Improve transport options and connections
Economic
3.2 Improve regional infrastructure”
Policy Implications
Nil
Financial Implications
The extent of expenditure associated with this tender is dependent on the type of capital works projects approved in the Capital Works Programme. The cost of such works will be directly charged to the projects.
Expenditure will also be incurred for maintenance works, which will be charged to the Maintenance Works Operating Budget allocations.
Based on similar quantities to those used in 2007/2008, the estimated annual cost of Plant Hire Services is in the order of $1.35M.
Voting Requirements
Simple Majority
EndStrip - This line will not be printed Please do NOT delete
Recommendation
That Council ACCEPTS Tender No 08012 from the following four tenderers for the Provision of Plant Hire and Auxiliary Plant Hire Services for a period of three years (panel contract) commencing 1 July 2008 with an option to extend the contract for two additional 12 monthly periods, or part thereof, as per the schedule of rates and general conditions of tendering:-
· Executive Plant Hire
· Mayday Earthmoving
· Coates Hire
· WA Profiling
EndOfRecommendation - This line will not be printed Please do NOT delete
StartOfAttachment - Do not delete this line will not be printed
ATTACHMENT 1
Page 1 of 2
|
Item Number 1 |
Description |
|
1 |
Track Excavator 955 |
|
2 |
Dozer Cat D6 |
|
3 |
Dozer Cat D7 |
|
4 |
Dozer Cat D9 |
|
5 |
Loader 1.5-2m3 Bucket Capacity 9500 Breakout Force KGF |
|
6 |
Loader 2-2.5m3 Bucket Capacity 10,000 Breakout Force KGF with/without clearing rake |
|
7 |
Loader 3-3.5m3 Bucket Capacity 14,000 Breakout Force KGF with/without clearing rake |
|
8 |
Self Propelled Vibro Roller CC10 3 tonne Min Operating Weight – ride on double drum |
|
9 |
Self Propelled Vibro Roller 6 tonne & Drum Min Operating Weight 1670 Width Dual Amp & Frequency |
|
10 |
11 to 13 tonne 3 pin static roller |
|
11 |
Water Cart Tractor Drawn 13,500 litre Min Capacity Incl. Stand Pipes |
|
12 |
Water Truck 13,500 litre Water Tank Pressurised Spray Cart |
|
13 |
6WD Water Truck 12,500 to 13,500 litre Water Tank Pressurised Spray Cart |
|
14 |
6WD Water Truck 15,000 litre Water Tank Pressurised Spray Cart |
|
15 |
Low Loader 10-14 tonne Carrying Capacity |
|
16 |
Low Loader 14-25 tonne Carrying Capacity |
|
17 |
Skid Steer Loader 0.3m3 Bucket Capacity With Truck |
|
18 |
Skid Steer Loader 0.3m3 Bucket Capac No Truck |
|
19 |
Skid Steer Loader With Grab and Truck |
|
20 |
Skid Steer Loader with Grab No Truck |
|
21 |
Tip Truck – 6 Wheeler Rear Tip |
|
22 |
Tip Truck – 8 Wheeler Rear Tip |
|
23 |
Tip Truck semi trailer 25t Rear Tip |
|
24 |
Tip Truck – 6 Wheeler Side Tip |
|
25 |
Tip Truck semi trailer 25t Side Tip |
|
26 |
Backhoe 300 size with/without extended hoe/forks |
|
27 |
Backhoe 600 size with/without extended hoe/forks |
|
28 |
Backhoe 900 size with/without extended hoe/forks |
|
29 |
Crane 10 tonne With or Without Running Rope |
|
30 |
Crane - truck mounted 10 tonne |
|
31 |
Rubber Tyred 15-20 tonne Ballasted Multi Tyred |
|
32 |
Rubber Tyred 30 tonne Ballasted Multi Tyred |
|
33 |
Excavators with buckets/teeth – 1 tonne |
|
34 |
Excavators with buckets/teeth – 3 tonne |
|
|
ATTACHMENT 1 Page 2 of 2 |
|
35 |
Excavators with buckets/teeth – 5 tonne With/without rockbreaker |
|
36 |
Excavators with buckets/teeth – 7 tonne With/without rockbreaker |
|
37 |
Excavators with buckets/teeth – 10 tonne With/without rockbreaker |
|
38 |
Excavators with buckets/teeth – 20 tonne With/without rockbreaker |
|
39 |
Excavators with buckets/teeth – 30 tonne With/without rockbreaker |
|
40 |
Excavators with buckets/teeth – 45 tonne With/without rockbreaker |
|
41 |
Self Elevating 613 Scraper |
|
42 |
Self Elevating 615 Scraper |
|
43 |
Self Elevating 621 Scraper |
|
44 |
Skid Steer road profiler |
|
45 |
Road Profiler – 1.0 m wide profiling |
|
46 |
Road Profiler – 1.3 m wide profiling |
|
47 |
Road Profiler – 1.8 m wide profiling |
|
48 |
Road Profiler – 2.0 m wide profiling |
|
49 |
Skid Steer sweeper |
|
50 |
Grader – 12.5Tonne Class 1 (93-110 kws) |
|
51 |
Grader – 14 Tonne Class 2 (110-125 kws) |
|
52 |
Chemical toilet including cleaning |
|
53 |
Lunch room 6 x 3 m with tables & chairs |
|
54 |
Sea container 6 x 2.4 m |
|
55 |
Sea container 3 x 3 m |
|
56 |
Rubbish Loader 8 Tonne Rubbish Compactor |
EndOfAttachment - Do not delete this line will not be printed
File Ref: C08014V01
File Name: EA THE PROVISION OF EXTRUDED CONCRETE KERBING SERVICES FOR A PERIOD OF THREE 3 YEARS.doc This line will not be printed dont delete
Responsible Officer: Director Infrastructure
Disclosure of Interest: Nil
Author: M Best
Meeting Date: 3 June 2008
Attachment(s): 1
StartStrip - This line will not be printed Please do NOT delete
Issue
To consider Tender No 08014 –Provision of Extruded Concrete Kerbing Services for a period of three (3) years.
Background
The supply of materials, works and services for use on construction and maintenance projects has been addressed in the past by the issue of period contracts. The current contract for the provision of extruded concrete kerbing services expires on 30 June 2008.
Detail
Tender No 08014 - The Provision of Extruded Concrete Kerbing Services for a Period of Three (3) Years was advertised on 12 April 2008 and closed on 29 April 2008. Refer Attachment 1 for schedule of tender items.
A tender was prepared which included the scope, extent of service, and the City’s specifications. Essential details of the new contract are shown in the following table:
|
Contract Type |
Schedule of Rates |
|
Contract Duration |
3 Years |
|
Commencement Date |
1 July 2008 |
|
Expiry Date |
30 June 2011 |
|
Extension Permitted |
Yes |
|
Rise And Fall Included |
Yes – CPI adjusted |
At the expiry of the initial contract period, the City may consider extending this contract for two additional periods of one year each or part thereof. Any extension will be in accordance with the same terms and conditions of the original contract and at the discretion of the City.
Tenders were received from the following four companies: -
· Downer EDI Works
· RoadSite Kerbing
· WA Kerbing
· Kerbing West
The Tender Evaluation Team comprising the Manager Infrastructure Projects, Coordinator Projects Construction, and the Contracts Officer, have evaluated the tenders in accordance with the following selection criteria:
|
Item No |
Description |
Score |
|
1 |
Price for the services offered |
50% |
|
2 |
Tenderer’s experience and ability to do the work |
20% |
|
3 |
Tenderer’s resources |
20% |
|
4 |
Safety Management |
10% |
The Tender Evaluation Team scored each tender against the established criteria to determine the overall weighted score and reported as follows:-
Price for the services offered:
Based on the estimated quantities of major items used by the City, a cost comparison has been undertaken to determine the following rankings:
|
Company |
Rank |
|
WA Kerbing Pty Ltd |
1 |
|
Downer EDI Works |
2 |
|
Kerbing West |
3 |
|
RoadSite Kerbing |
4 |
This criterion represents 50% of the total score.
Tenderer’s experience and ability to do the work:
Tenders were assessed in terms of the tenderer’s experience with previous contracts completed of a similar size and the tenderers were ranked as follows:
|
Company |
Rank |
|
WA Kerbing Pty Ltd |
1 |
|
Downer EDI Works |
1 |
|
Kerbing West |
1 |
|
RoadSite Kerbing |
2 |
This criterion represents 20% of the total score.
Tenderer’s resources:
Tenders were assessed in terms of the tenderer’s resources and the tenderers were ranked as follows:
|
Company |
Rank |
|
Downer EDI Works |
1 |
|
Kerbing West |
2 |
|
WA Kerbing Pty Ltd |
3 |
|
RoadSite Kerbing |
4 |
This criterion represents 20% of the total score
Safety Management:
Evidence of safety management policies and practices was assessed from the tender submissions.
The assessment for safety management was based on the tenderer’s response to an Occupational Health and Safety Management System Questionnaire included within the tender documentation and the tenderers were ranked as follows:
|
Company |
Rank |
|
Downer EDI Works |
1 |
|
Kerbing West |
2 |
|
WA Kerbing Pty Ltd |
3 |
|
RoadSite Kerbing |
4 |
This criterion represents 10% of the total score.
Overall Weighted Scoring
The Tender Evaluation Team scored each tenderer against the above-established criteria. The overall scoring of the tenders based on a weighted score is as follows:-
|
Rank |
Tenderer |
|
1 |
WA Kerbing Pty Ltd |
|
2 |
Downer EDI Works |
|
3 |
Kerbing West |
|
4 |
RoadSite Kerbing |
Comment
It is recommended that Tender No 08014 from WA Kerbing Pty Ltd be accepted in accordance with the tender evaluation results and this recommendation is based on a detailed evaluation of the tenders.
WA Kerbing is the current contractor for the tendered services and has provided satisfactory service to the City.
Statutory Compliance
Tenders were invited in accordance with the requirements of Section 3.57 of the Local Government Act 1995. The tendering procedures and evaluation complied with the requirements of Part 4 of the Local Government (Functions and General) Regulations 1996.
The Manager Contracts and Property has viewed the tender selection process for fairness and compliance and is satisfied with the evaluation process and result.
Strategic Implications
The provision of Extruded Concrete Kerbing Services is consistent with the following City of Wanneroo Strategic Plan (2006-2021) goals and objectives:-
“Social
2.5 Improve transport options and connections
Economic
3.2 Improve regional infrastructure”
Policy Implications
Nil.
Financial Implications
The extent of expenditure associated with this tender is dependent on the type of capital works projects approved in the Capital Works Programme. The cost of such works will be directly charged to the projects.
Expenditure will also be incurred for maintenance works, which will be charged to the Maintenance Works Operating Budget allocations.
Based on anticipated quantities similar to those used in 2007/2008, the estimated annual cost of concrete kerbing is in the order of $250,000. In comparison to the current contract rates the recommended tender has a minimal increase in the rates for the items included in this tender.
Voting Requirements
Simple Majority
EndStrip - This line will not be printed Please do NOT delete
Recommendation
That Council ACCEPTS Tender No 08014 from WA Kerbing Pty Ltd for the Provision of Extruded Concrete Kerbing Services for a period of three years commencing 1 July 2008 as per the schedule of rates and general conditions of tendering.
EndOfRecommendation - This line will not be printed Please do NOT delete
StartOfAttachment - Do not delete this line will not be printed
ATTACHMENT 1
Page 1 of 3
|
LIST OF ITEMS FOR TENDER No 08014 |
|
|
Item Number |
Item Description |
|
1 |
Standard mountable section on base course (ESL, Thicklift etc) |
|
2 |
Mountable section on sub base |
|
3 |
Mountable on sub base |
|
4 |
Standard mountable section on asphalt surface |
|
5 |
Mountable section with key on base |
|
6 |
Modified mountable section - at outer ring of roundabouts |
|
7 - 1A |
Semi mountable section (SM1) – on base course (ESL, Thicklift, etc) Type 1A |
|
7 - 1B |
Semi mountable section (SM1) – on base course (ESL, Thicklift, etc) Type 1B |
|
8 |
Semi mountable section type 1 (SM1) - on sub base |
|
9 |
Semi mountable section type 1 (SM1) - on sub base |
|
10 |
Semi mountable section type 1 (SM1) - on asphalt surface |
|
11 |
Semi mountable section type 2 (SM2) - on base course (ESL, Thicklift, etc) |
|
12 |
Semi mountable section type 2 (SM2) - on sub base |
|
13 |
Semi mountable section type 2 (SM2) - on sub base |
|
14 |
Semi mountable section type 2 (SM2) - on asphalt surface |
|
15 - 3A |
Semi mountable section (SM3) - on base course (ESL, Thicklift, etc) Type 3A |
|
15 - 3B |
Semi mountable section (SM3) - on base course (ESL, Thicklift, etc) Type 3B |
|
16 |
Semi Mountable Section type 3 (SM3) - on Sub Base |
|
17 |
Semi Mountable Section type 3 (SM3) - on Sub Base |
|
18 |
Semi Mountable Section type 3 (SM3) - on asphalt surface |
|
19 |
Modified semi mountable section - at inner ring of roundabouts on asphalt surface |
|
20 |
Standard barrier section on base course |
|
21 |
Standard barrier section on asphalt surface |
|
22 |
Standard barrier section on compacted sub base |
|
23 |
Standard flush kerbing |
|
24 |
Standard flush kerbing |
|
25 |
Standard flush kerbing |
|
26 |
Standard flush kerbing reinforced |
|
27 |
Standard flush kerbing |
|
28 |
Cut asphalt, trench, compact base and install standard flush kerbing |
|
29 |
Cut asphalt, trench, compact base and install standard flush kerbing |
|
30 |
Cut asphalt, trench, compact base and install standard flush kerbing |
ATTACHMENT 1
Page 2 of 3
|
31 |
Cut asphalt, trench, compact base and install standard flush Kerbing (300x150) |
||
|
32 |
Cut asphalt, trench, compact base and install flush kerbing (300x300) |
||
|
33 |
R10 reinforcing steel set at mid depth of kerb section |
||
|
34 |
|
||
|
35 |
250 x 150 deep flush kerb with R10 reinforcing steel Tree wells with top surface at 30mm proud of road surface level – measured externally. |
||
|
36 |
250 x 300 deep flush kerb tree wells with top surface at 30mm proud of road surface level – measured externally |
||
|
37 |
250 x 300 deep flush kerb with R10 reinforcing steel tree wells with top surface at 30mm proud of road surface level –measured externally |
||
|
38 |
Saw cut asphalt, trench and install 250 x 150 deep flush kerb tree wells with top surface at 30mm proud of road surface level – measured externally |
||
|
39 |
Saw cut asphalt, trench and install 250 x 300 deep flush kerb tree wells with top surface at 30mm proud of road surface level - measured externally |
||
|
40 |
Trench, compact base and install standard flush kerbing (150x150) as edge of asphalt DUP in parks |
||
|
41 |
Trench, compact base and install standard flush kerbing (250x150) as edge of asphalt DUP in parks |
||
|
42 |
Trench, compact base and install standard flush kerbing (300x150) as edge of asphalt DUP in parks |
||
|
43 |
Transitions (connecting two different profiles) |
||
|
44 |
Island noses |
||
|
44 |
1500mm wide |
||
|
45 |
1800mm wide |
||
|
46 |
2100mm wide |
||
|
47 |
2400mm wide |
||
|
48 |
3000mm wide |
||
|
49 |
1500mm wide |
||
|
50 |
1800mm wide |
||
|
51 |
2100mm wide |
||
|
52 |
2400mm wide |
||
|
53 |
3000mm wide |
||
|
54 |
1500mm wide |
||
|
55 |
1800mm wide |
||
|
56 |
2100mm wide |
||
|
57 |
2400mm wide |
||
|
58 |
3000mm wide |
||
|
59 |
Extra over above for short lengths of kerb - less than 20m |
||
|
60 |
Extra for automatic levelling of uneven surfaces |
||
|
61 |
Extra for Concrete utilised for very uneven surfaces (with prior approval from the Principal) |
ATTACHMENT 1
Page 3 of 3
|
62 |
Provide and install Y16 steel rods anchored 300mm into the pavement at 500mm spacing |
|
63 |
Provide and install Y16 steel rods anchored 300mm into the pavement at 750mm spacing |
|
64 |
Provide and install Y16 steel rods anchored 300mm into the pavement at 1000mm spacing |
|
65 |
Backfilling and levelling behind new kerb with sand supplied to and stored on Site by the Principal (up to 400mm width) |
|
66 |
Backfilling behind new kerb with sand supplied to and stored on Site by the Principal (more than 400mm width at junctions) |
|
67 |
Saw Cutting of asphalt adjacent to kerb face |
|
68 |
Remove and dispose of existing kerb on the road edge leaving a clean and compact surface ready for kerb installation |
|
69 |
Remove and dispose of existing concrete ramp leaving a clean and compact surface ready for replacement kerb |
|
70 |
Saw Cutting of bitumen crossover |
|
71 |
Remove and dispose of 600mm strip of bitumen crossover (measured from the front face of kerb) leaving a clean, compacted surface ready for new concrete. Form and fill gap with 100mm thick 32 MPA concrete up to the edge of the traffic lane |
|
72 |
Remove and dispose of 1000mm strip of bitumen crossover (measured from the front face of kerb) leaving a clean, compacted surface ready for new concrete. Form and fill gap with 100mm thick 32 MPA concrete up to the edge of the traffic lane |
|
73 |
Saw Cutting of concrete crossover |
|
74 |
Remove and dispose of 600mm strip of concrete crossover (measured from the front face of kerb) leaving a clean, compacted surface ready for new concrete. Form and fill gap with 100mm thick 32 MPA concrete up to the edge of the traffic lane. |
|
75 |
Remove and dispose of 1000mm strip of concrete crossover (measured from the front face of kerb) leaving a clean, compacted surface ready for new concrete. Form and fill gap with 100mm thick 32 MPA concrete up to the edge of the traffic lane |
|
76 |
Over and above the above rates for full depth brown coloured concrete 600mm strip |
|
77 |
Over and above the above rates for full depth brown coloured concrete 1000mm strip |
|
78 |
Over and above the above rates for full depth red coloured concrete 600mm strip |
|
79 |
Over and above the above rates for full depth red coloured concrete 1000mm strip |
|
80 |
2 accredited traffic controllers |
|
81 |
3 accredited traffic controllers |
|
82 |
4 accredited traffic controllers |
EndOfAttachment - Do not delete this line will not be printed
File Ref: C08015V01
File Name: AA Tender No 08015 the Provision of Mechanical and HVAC Services for the a Period of Three Years.doc This line will not be printed dont delete
Responsible Officer: Director Infrastructure
Disclosure of Interest: Nil
Author: Mark Stevens
Meeting Date: 3 June 2008
Attachment(s): Nil
StartStrip - This line will not be printed Please do NOT delete
Issue
To consider Tender No 08015 for the Provision of Mechanical and Heating, Ventilation and Air Conditioning (HVAC) Services for the City of Wanneroo for a Period of Three Years.
Background
The supply of mechanical and heating, ventilation and air conditioning (HVAC) maintenance and installation services and related mechanical and HVAC materials for the City’s building assets has been addressed in the past by the awarding of term contracts. These services are currently being provided through Contract No 04374 - The Provision of Mechanical And Heating, Ventilation and Air Conditioning (HVAC) Services for a Period of Three Years commencing from 1 September 2004, awarded to Australian Air Conditioning PTY LTD (AAC).
This contract is for the maintenance of mechanical and HVAC services for City owned building assets incorporating the Civic Centre, Aquamotion and other large community and leisure centres. The type of plant and equipment to be maintained includes chillers, pumps, room air conditioners, wall split air conditioning systems, evaporative coolers and gas-fired boilers.
The objectives of the contract are to:
· Provide specialist mechanical heating, ventilation and air-conditioning services to the City;
· Carry out monthly maintenance inspections and servicing of the equipment;
· Provide effective breakdown call out response and rectification;
· Carry out and implement works to comply with statutory and legal responsibilities;
· Maintain and improve the levels of the systems and performance, reliability and availability;
· Supply and replace faulty equipment;
· Develop and maintain maintenance record systems; and
· Provide a single point of responsibility for maintenance.
In accordance with the contract a one-year extension was executed. Therefore the current contract expires on 30 June 2008 and the Provision of Mechanical and HVAC Services was advertised for tender.
Detail
Tender No 08015 was advertised on 19 April 2008 and closed on Tuesday 6 May 2008.
Essential details of the new contract are shown in the following table:
|
Contract Type |
Schedule of Rates |
|
Contract Duration |
Three years with the option of a further extension of one year |
|
Commencement Date |
1 July 2008 |
|
Expiry Date |
30 June 2011 |
|
Extension Permitted |
Yes - 12 months to 30 June 2012 |
|
Rise and Fall Included |
No – CPI to apply to extension |
A mandatory site visit for tenderers was held at the Civic Centre, 9:00am on Tuesday 29 April 2008 and tenders were received from the following companies who attended the site visit:
· Australian Airconditioning Services Pty Ltd
· Burke Air Pty Ltd
· Frigrite Refrigeration Pty Ltd t/as FRR Service
· Hastie Services Pty Ltd
· Otto Olivier Pty Ltd t/as Airco
Tender Evaluation
A Tender Evaluation Team was established comprising the City’s Coordinator Building Maintenance, Building Officer and representatives from the City’s Building Services consultant GHD Pty Ltd. The City’s Contracts Officer was present to provide guidance on policy and protocol issues.
As part of its role as the City’s Building Services consultant, GHD Pty Ltd has undertaken analysis of the tenders and provided a spreadsheet report in accordance with the following assessment criteria as detailed in the tender document:
· Costs;
· Technical Competence and Experience;
· Capacity to Manage Contract; and
· Tenderers financial position.
The Tender Evaluation Team members evaluated the submissions separately and met as a group to discuss and combine the scoring attributed to each tenderer.
Each category of the Selection Criteria was awarded a point score on the basis of the tenderer’s performance from either the submitted tender or comments from previous contracts or clients.
The Tender Evaluation Team reported as follows:
1. Price
This was assessed on the price schedules submitted by each tenderer in relation to the base tender price, labour and mark up rates, after hours minimum call out charge, percentage mark up applied to outsourced materials and labour.
The base tender price submitted by the tenderers for regular inspections and servicing are as follows:
|
Rank |
Tenderer |
Base Tender Price |
|
1 |
Burke Air Pty Ltd |
$ 136,410.00 |
|
2 |
Airco |
$ 140,710.00 |
|
3 |
Australian Airconditioning Services Pty Ltd |
$ 162,891.00 |
|
4 |
FRR Service |
$ 264,767.00 |
|
5 |
Hastie Services Pty Ltd |
$ 430,480.00 |
An overall ranking was determined by assessing prices contained within the schedules based on historical maintenance data and/or estimated future expenditure and number/type of jobs.
Based on the above factors and the tender submissions, the total calculated estimate of costs for the three years of the contract are as follows:
|
Rank |
Tenderer |
Total Calculated Cost |
|
1 |
Airco |
$ 270,985.00 |
|
2 |
Burke Air Pty Ltd |
$ 323,290.00 |
|
3 |
Australian Airconditioning Services Pty Ltd |
$ 331,317.00 |
|
4 |
FRR Service |
$ 450,149.50 |
|
5 |
Hastie Servcies Pty Ltd |
$ 659,751.26 |
This criterion represents 55% of the total score and resulted in the following ranking:
Overall Price Ranking
|
Rank |
Tenderer |
|
1 |
Airco |
|
2 |
Burke Air Pty Ltd |
|
3 |
Australian Airconditioning Services |
|
4 |
FRR Service |
|
5 |
Hastie Services Pty Ltd |
2. Technical Competence and Experience
The tenders were assessed on the tenderers’ experience with previous contracts completed of a similar size and nature, experience of key personnel and references. The assessment of this criterion also considered the resources currently available to the tenderer to fulfil the contract, including the number of personnel, direct and subcontracted labour, trade disciplines and qualifications/training of staff.
The five tenderers provided tender submissions demonstrating experience in providing services of a similar size and nature.
The scoring rating of references from previous contracts was removed due to insufficient information from all tenderers within the tender submissions.
This criterion represents 20% of the total score and resulted in the following ranking:
|
Rank |
Tenderer |
|
1 |
Australian Airconditioning Services Ltd |
|
2 |
Hastie Services Pty Ltd |
|
3 |
Burke Air Pty Ltd |
|
4 |
FRR Service |
|
5 |
Airco |
3. Capacity to Manage Contract
Assessment of this criterion considered the tenderers’ management control systems, OH&S, JSA development, risk management, communications and staff resources at all levels including office and workshop support.
The five tenderers provided evidence within their respective tender submissions demonstrating they had the required capacity to manage the contract, albeit at different levels and with varying methodology. Burke Air Pty Ltd, Australian Airconditioning and Hastie Services Pty Ltd provided samples of current JSA or risk analysis documentation.
This criterion represents 15% of the total score and resulted in the following ranking:
|
Rank |
Tenderer |
|
1 |
Australian Airconditioning Services Ltd |
|
2 |
Burke Air Pty Ltd |
|
3 |
Hastie Services |
|
4 |
FRR Service |
|
5 |
Airco |
4. Tenderer’s Financial Position
Assessment of this criterion considered the tenderers period of trading and financial capacity.
The five tenderers provided evidence within their respective tender submissions to demonstrate that they had the required contract approach to fulfil the contract.
This criterion represents 10% of the total score and resulted in the following ranking:
|
Rank |
Tenderer |
|
1 |
Burke Air Pty Ltd |
|
1 |
Australian Airconditioning Services Ltd |
|
1 |
Hastie Services |
|
4 |
FRR Service |
|
5 |
Airco |
Overall Weighted Scoring
The Tender Evaluation Team scored each tenderer against the above-established criteria. The overall scoring of the tenders based on a weighted score out of 100 is as follows:
|
Rank |
Tenderer |
|
1 |
Burke Air Pty Ltd |
|
2 |
Australian Airconditioning Services Ltd |
|
3 |
Airco |
|
4 |
FRR Service |
|
5 |
Hastie Services Pty Ltd |
Comment
It is recommended that the Tender No 08015 from Burke Air Pty Ltd for the Provision of Mechanical and HVAC Services for a Period of Three Years be accepted in accordance with the tender evaluation results. The tender submission from Burke Air Pty Ltd demonstrated that it possesses the resources and capabilities to best fulfil the contract requirements.
Statutory Compliance
Tenders were invited in accordance with the requirements of section 3.57 of the Local Government Act. The tendering procedures and evaluation complied with the requirements of Part 4 of the Local Government (Functions and General) Regulations 1996.
The Manager Contracts and Property has viewed the tender selection process for fairness and compliance and is satisfied with the evaluation process and result.
Strategic Implications
The Provision of Mechanical and HVAC Services to infrastructure assets is consistent with the following City of Wanneroo Strategic Plan (2006-2021) goals and strategies:
“Governance
4.3 Improve Asset Management
Develop and apply asset management principles to support the maintenance and management of public infrastructure and other assets.”
Policy Implications
Nil
Financial Implications
The expenditure associated with mechanical and HVAC services on City building assets is an operational cost which is accommodated in the Building Maintenance budgets each financial year.
Voting Requirements
Simple Majority
EndStrip - This line will not be printed Please do NOT delete
Recommendation
That Council ACCEPTS Tender No 08015 from Burke Air Pty Ltd for the Provision of Mechanical and HVAC Services as per the schedule of rates and general conditions of tendering, for a period of three years from 1 July 2008 to 30 June 2011, with an option to extend the contract for a further 12 months to 30 June 2012.
EndOfRecommendation - This line will not be printed Please do NOT delete
File Ref: C08017V01
File Name: AA Tender Number 08017 The Development of Ferrara Reserve Community Garden.doc This line will not be printed dont delete
Responsible Officer: Director Infrastructure
Disclosure of Interest: Nil
Author: Harminder Singh
Meeting Date: 3 June 2008
Attachment(s): Nil
StartStrip - This line will not be printed Please do NOT delete
Issue
To consider Tender No 08017 - the Development of a Community Garden in Ferrara Reserve, Girrawheen.
Background
Council considered a report at a meeting on 31 October 2006 (Item CD08-10/06 refers) and adopted following resolutions:
“That Council:
1. APPROVES the partial use of Ferrara Reserve, Girrawheen, for the purpose of a drainage swale, subject to the Satterley Property Group submitting a formal technical proposal for the City’s review/approval and undertaking construction of the swale.
2. ENDORSES the use of monetary compensation of $155,000.00 from the Satterley Property Group for design and construction of the Ferrara Reserve Community Garden
3. NOTES the following budget variation to reflect the income and associated expenditure for this project.
INCOME
|
Cost Code |
Present Budget |
Additional Amount |
Revised Budget |
|
917253-8999-519 Capital Income Community Links |
$90,000 |
$65,000 |
$155,000 |
EXPENDITURE
|
Cost Code |
Adopted Budget 06/07 |
Revised Budget 06/07 |
Description |
|
Project No. 1171 |
$90,000 |
$155,000 |
Ferrara Reserve Community Garden |
Funds were subsequently approved in the 2007/08 Capital Works Budget for the development of the Ferrara Reserve Community Garden.
Detail
The scope of works included in this construction contract involves new landscaping based on the needs of the community and will provide a gathering place for schools and community events. The detailed design includes the following items:
· Earthworks
· Limestone walls
· Stage and steps
· Limestone blocks
· Rammed earth walls
· Feature climbing blocks
· Coloured patterned concrete paths
· Anti graffiti coating
· Irrigation
· Turfing
· Planting works
· Mulching
Tenders Received
Public Tender No 08017 for the construction of the Ferrara Reserve Community Garden, Girrawheen was advertised on 19 April 2008 and closed at the City’s Offices at 3.00pm on 6 May 2008 with receipt of only one submission from DME Contractors.
Tender Assessment
Though only one tender submission was received for the tendered works, a detailed evaluation was undertaken to ensure the tender compliance and determine the adequacy of the tender submission. The Tender Evaluation Panel comprising the Coordinator Projects Design, Landscape Projects Designer and Contracts Officer has evaluated tenders based upon the following selection criteria:
|
1 |
Price |
|
2 |
Tenderer’s relevant experience |
|
3 |
Tenderer’s resources |
|
4 |
Tenderer’s safety management |
Price for the works offered
Tenderers were required to provide a lump sum price for the scope of works and DME Contractors has submitted a lump sum price of $170,088.50.
This criterion represents 70% of the total score.
Tenderer’s relevant experience
DME Contractors has extensive industry experience including demonstrated experience in carrying out a range of works similar to the tendered works. DME Contractors is therefore assessed to have sufficient experience to undertake the tendered works.
This criterion represents 20% of the total score.
Tenderer’s resources
DME Contractors has provided details of its plant and equipment, personnel and current work commitments. Information given indicates that the Ferrara Reserve Community Garden project would suit DME Contractors workload as it is seeking new work with current projects either ongoing or nearing completion. Information provided by DME Contractors indicates adequate resources to complete these works.
This criterion represents 5% of the total score.
Tenderer’s Safety Management
Evidence of safety management policies and practices were assessed from the tender documents. The assessment for safety management was based on the DME Contractors response to an Occupational Health and Safety Management System Questionnaire included within the tender documentation. DME Contractors is assessed to have sufficient safety management policies and procedures in place to suit the needs of the tendered works.
This criterion represents 5% of the total score.
Overall Ranking Assessment
The evaluation process determined that the tender from DME Contractors fully complies with the requirements of the tender and meets the selection criteria.
Based on the Tender Evaluation Team’s assessment of the tender submissions, DME Contractors tender lump sum bid of $170,088.50 is recommended for acceptance.
Consultation
Nil
Comment
Tenders have been evaluated in accordance with the selection criteria and based on the tender evaluation undertaken; the tender from DME Contractors for a tender price of $170,088.50 provides the best outcome for the City and is recommended for acceptance.
However, due to an extended time frame and an escalation in costs there is a shortfall in funding. A reduction in the scope of works has been considered but it would seriously impact on the outcome of the overall project and its objectives. Subject to Council’s acceptance of this tender and reallocation of additional funding, as detailed in the Financial Implications section of this report, works are to commence early in June 2008 with completion scheduled for July 2008.
Statutory Compliance
Tenders have been invited and evaluated against the selection criteria in accordance with Section 3.57 of the Local Government Act and associated regulations.
The Manager Contracts and Property has reviewed the tender selection process for fairness and compliance and is satisfied with the evaluation process and result.
Strategic Implications
The Ferrara Reserve Community Garden is consistent with the following City of Wanneroo Strategic Plan 2006-2021 outcome objectives:
“Social
2.1 Increase choice and quality of neighbourhood and lifestyle options
2.2 Improve the City’s identity and community wellbeing through art’s, culture, leisure and recreation
2.3 Improve capacity of local communities to support each other”
Policy Implications
Nil
Financial Implications
By accepting the tender from DME Contractors, the total estimated cost to develop the community garden on Ferrara Reserve is summarised below:
|
ITEM DESCRIPTION |
AMOUNT |
|
Contract works price based on DME Contractors’ tender |
$170,088.50 |
|
Consultancy fees for design and documentation |
$12,500.00 |
|
Project Management Charges |
$5,000.00 |
|
Contingency |
$7,000.00 |
|
TOTAL PROJECT COST |
$194,588.50 |
|
Total Project Funding 07/08, PR-1171 |
$155,000.00 |
|
Funding Shortfall |
$39,588.50 |
The funding shortfall can be met by reallocating unexpended funds ($40,000) from Project Number PR-1255 Hainsworth Skate Park Facility. The skate park was constructed in Hainsworth Park, Girrawheen in 2006/07 financial year and surplus funds ($40,000) were carried forward to the 2007/08 Budget to undertake any related works that may be necessary in future. However, no further works have been identified for the Hainsworth Skate Park Facility and $40,000 has remained unexpended and is available for reallocation to other projects.
Voting Requirements
Simple Majority
EndStrip - This line will not be printed Please do NOT delete
Recommendation
That Council:-
1. ACCEPTS Tender Number 08017 submitted by DME Contractors for the Development of a Community Garden in Ferrara Reserve, Girrawheen for the fixed lump sum price of $170,088.50, in accordance with the terms and conditions specified in the tender document.
2. NOTES the following budget variation to accommodate the shortfall in funding for the Development of a Community Garden in Ferrara Reserve, Girrawheen:
|
Project/Account No |
From |
To |
Description |
|
PR-1255 |
$40,000 |
|
Hainsworth Skate Park Facility
|
|
PR-1171 |
|
$40,000 |
Ferrara Reserve Community Garden
|
EndOfRecommendation - This line will not be printed Please do NOT delete
File Ref: s34/0008v01
File Name: DA Mulch promotion using free mulch vouchers.doc This line will not be printed dont delete
Responsible Officer: Dennis Blair
Disclosure of Interest: Nil
Author: Robert Elliott
Meeting Date: 3 June 2008
Attachment(s): Nil
StartStrip - This line will not be printed Please do NOT delete
Issue
To consider issuing vouchers for a free load of mulch from the Wangara Greens Recycling Facility with the 2008/2009 rates notice.
Background
Since 2004, the Cities of Wanneroo and Joondalup have issued free mulch vouchers with the annual rates notice to promote the mulch from the Wangara Greens Recycling Facility. The vouchers have been valid to the end of September during the normal operating hours of the Facility. In addition, vouchers valid to the end of June the following year have been issued to new residents in the City of Wanneroo.
Detail
The Cities of Wanneroo and Joondalup both implemented this free mulch initiative with ‘free mulch’ vouchers issued through their respective rates notice packages.
A review of data from the Wangara Greens Facility is given in the table below.
|
Year |
Loads sold |
Wanneroo Free |
New Wanneroo residents |
Joondalup Free |
|
2004/05 |
9244 |
1547 |
75 |
1712 |
|
2005/06 |
8207 |
662* |
120 |
1874 |
|
2006/07 |
7121 |
1238 |
194 |
2011 |
|
2007/08 |
7407 |
1292 |
81 |
1692 |
*There were difficulties with the distribution of the rates notices.
Comment
The long term impact on mulch sales has been a drop of about 2000 loads, compared to the 3000 loads distributed. There has been a steady use of the vouchers issued to new residents, with a total of 81 loads being redeemed during 2007/2008. The quantity of mulch provided through this free mulch initiative has little impact on the stockpile at Wangara, which is predominately used for sale to residents and landscaping works by the Cities of Wanneroo and Joondalup.
The City of Joondalup uses the Wangara Greens Recycling Facility to process most of the greens that the City of Wanneroo collects for it from its Bulk Rubbish Collection Service. The current tipping fee is $37.79 + GST per tonne. Joondalup also pays $183,700 pa for its ratepayers to be able to use vouchers to drop off greens on weekends.
As the City of Joondalup contributes proportionately to the running costs of the Wangara Greens Recycling Facility it is appropriate that its ratepayers participate in the free mulch promotion.
The wording on the mulch vouchers was of concern with some residents being unclear of the end date of the offer. This year 28 September is a Sunday and as the greens facility is open only on weekends, it is suggested that it would be appropriate to close the offer on Sunday 28 September 2008.
Overall it is considered that this ‘free mulch’ initiative will encourage residents to use this facility and mulch their gardens in preparation for summer. It will also assist with the recycling of mulch produced from the greens delivered to the facility.
Statutory Compliance
Nil
Strategic Implications
The promotion of the use of mulch from the Wangara Greens Recycling Facility is consistent with the following City of Wanneroo Strategic Plan (2006-2021) goals and strategies:
“Environmental
1.3 improve management, recycling and re-use of waste”
Policy Implications
Nil
Financial Implications
At the end of April, the sale of mulch for the financial year had reached $92,572. This would indicate that the full year sales would reach about $111,000 compared with the budgeted target of $129,000
Income from User/Entry Fees is up slightly at $28,240 to the end of April with a full year projection of $33,000 compared with a budget of $26,000.
Voting Requirements
Simple Majority
EndStrip - This line will not be printed Please do NOT delete
Recommendation
That Council:-
1. APPROVES the promotion of the mulch from the Wangara Greens Recycling Facility by issuing a ‘free mulch’ voucher to each residential property owner of the City of Wanneroo, as part of its rates notice package, such voucher to be valid up to and including 28 September 2008, during the normal operating hours of the facility
2. INVITES the City of Joondalup to participate in the extension of the promotion of mulch from the Wangara Greens Recycling Facility on the basis that the City of Joondalup, as part of its rates notice package, is responsible for the issue of a ‘free mulch’ voucher to each residential property owner of the City of Joondalup, such vouchers to be valid up to and including 28 September 2008, during the normal operating hours of the facility
3. APPROVES the promotion of the mulch from the Wangara Greens Recycling Facility using the issuing of ‘free mulch vouchers’ to new residents of the City of Wanneroo when they move into their new house, such vouchers valid up to the end of June 2009 during the facilities normal operating hours.
EndOfRecommendation - This line will not be printed Please do NOT delete
File Ref: R/0006v02
File Name: EA Metropolitan Regional Road Program 2009 2010 .doc This line will not be printed dont delete
Responsible Officer: Director Infrastructure
Disclosure of Interest: Nil
Author: Benny Chang
Meeting Date: 3 June 2008
Attachment(s): Nil
StartStrip - This line will not be printed Please do NOT delete
Issue
To consider submissions for funding from the 2009/2010 Metropolitan Regional Road Program for Road Improvement and Rehabilitation Projects.
Background
Each year, Main Roads WA (MRWA) invites project submissions for funding consideration as part of the Metropolitan Regional Road Program.
This report outlines the guidelines for the assessment of road works and recommends projects for consideration by the Metropolitan Regional Road Group.
The project types are separated into two categories as outlined below:
Road Improvement Projects
Improvement projects are those which would involve upgrading of an existing road to a higher standard than currently exists, i.e. dual carriageway construction, pavement widening, new overtaking lanes, traffic control measures, etc.
A multi-criteria analysis, (taking into consideration road capacity, geometry, accidents, benefits and costs) is used to prioritise road improvement projects on urban arterial roads within the metropolitan area. This analysis is an integral part of the guidelines for the Metropolitan Regional Road Program and must be followed for submissions to be considered for funding.
Road Rehabilitation Projects
Road rehabilitation projects are those proposed for existing roads where a failed link is to be brought back to the pre-existing physical condition, eg. resealing, reconstruction, re-sheeting and reconditioning.
A number of conditions have to be met for a project to be considered in the program. Projects qualify only if the Average Annual Daily Traffic (AADT) exceeds 2,000 vehicles per day or the design traffic exceeds 1x106 Equivalent Standard Axle (a measurement that relates to the commercial vehicle content). Another qualifying criteria requires the points scored for the criteria relating to road condition to be greater than 700 points.
Detail
The distribution of the Metropolitan Local Road Funds is based on 50% of the pool to Improvement Projects and 50% to Rehabilitation Projects.
A maximum limit of $2M per local government per annum to a maximum of $4M over two years has been set for Improvement Projects and $500,000 for Rehabilitation Projects. Funding approval is based on Councils contributing at least a third of the project cost.
Project submissions have already been forwarded to Main Roads WA (deadline was 2 May 2008). These submissions have been submitted subject to Council endorsement. Following Council’s endorsement a follow up letter will be sent to MRWA advising of Council’s resolution.
Submissions are then checked by MRWA for omissions and errors in computations. The MRWA Pavement Branch will audit submissions relating to Road Rehabilitation Projects and an independent auditor appointed by MRWA will audit Road Improvement Projects.
Final audited projects are then collated by MRWA and a priority listing developed based on the audited points score. It is anticipated that this lists of audited projects will be distributed to all Councils in September 2008.
The Sub Groups of the Metropolitan Regional Road Group (MRRG) each have technical meetings to discuss and approve projects within the Sub Group only. Recommendations are forwarded to the MRRG. The Cities of Wanneroo, Joondalup and Stirling form the North West Group. The MRRG considers funding submissions in accordance with the guidelines and makes recommendations to the Advisory Committee.
Councils would expect to receive advice of approval of projects for 2009/10 from MRWA by December 2008.
Comment
Road Improvement Projects
OPUS International Consultants PCA Limited was commissioned to prepare the Road Improvement Project funding submission. The multi-criteria analysis adopted by MRWA was used to evaluate roads in the City of Wanneroo. The higher the points score the better chance the project has in being funded. The Road Improvement Project prepared and submitted for 2009‑2010 was:
|
YEAR |
ROAD |
SECTION OF PROPOSED DUAL CARRIAGEWAY |
ESTIMATED PROJECT COST |
POINTS SCORE |
|
2009/2010 |
Joondalup Drive, Carramar |
Houghton Drive to Pinjar Road |
$2.1M |
453 |
Preliminary investigations of the extension of the Connelly Drive dual carriageway north of Neerabup Road indicated that the points score would be low compared to the Joondalup Drive project and a detailed submission was not prepared.
It is noted that Council endorsed the staged development of Hepburn Avenue as summarised below for funding consideration as part of the 2008/2009 Metropolitan Regional Road Program at its meeting on 5 June 2007 (Item No IN05-06/07 refers):
2008/2009 Hepburn Avenue Stage 2 Bellerive Boulevard to Mirrabooka Avenue
2009/2010 Hepburn Avenue Stage 3 Mirrabooka Avenue to Alexander Drive
The City was not successful with its submission for funding from the 2008/2009 Program and subsequently submitted an application to the Federal Government for the funding of the Hepburn Avenue dual carriageway project from the AustLink Program.
Advice has been received from the Federal Government that the $5M funding commitment towards the Hepburn Avenue project was made under the AustLink 2 Program which will commence in July 2009. On the basis of this commitment, submissions for funding from the 2009/2010 MRRP for Hepburn Avenue are no longer required.
A review of previously approved programs indicates that a score well in excess of 500 will most likely be required for funding under this program.
Road Rehabilitation Projects
Pavement Analysis Pty Limited was commissioned to undertake the road rehabilitation and mechanical study of various roads, and to provide technical details and recommendations to comply with the criteria for the assessment of Rehabilitation Projects. As a consequence, the following Rehabilitation Projects were submitted for consideration in 2009/2010:
|
ITEM |
ROAD |
SECTION |
LOCALITY |
WORKS |
ESTIMATED PROJECT COST |
POINTS SCORE |
|
1 |
Alexander Dr (a) |
Western Carriageway from Marangaroo Dr to Fenchurch St |
Alexander Heights |
Rehabilitate& Reseal |
$ 541,800 |
2910 |
|
2 |
Alexander Dr (b) |
Eastern Carriageway from Marangaroo Dr to Fenchurch St |
Alexander Heights |
Rehabilitate & Reseal |
$ 541,800 |
2583 |
|
3 |
Marangaroo Dr |
Southern Carriageway from Curtis Way to Highclere Blvd |
Marangaroo |
Asphalt Reseal |
$ 93,200 |
2265 |
|
4 |
Sydney Rd |
Lakelands Dr to 300m northwards |
Gnangara |
Asphalt Reseal |
$ 28,400 |
2094 |
|
5 |
Caporn St |
Pinjar Rd to Franklin Rd |
Jandabup |
Asphalt Reseal |
$ 267,100 |
1934 |
|
6 |
Hollingsworth Av |
Koondoola Ave to Butterworth Ave |
Koondoola |
Asphalt Reseal |
$ 69,600 |
1890 |
The MRWA timetable required both Road Improvement and Rehabilitation submissions to be delivered by 4pm, 2 May 2008 and late submissions rejected. The above projects were submitted to MRWA by the due date with advice that a follow letter will be sent following Council’s endorsement at this meeting.
On receipt of audited point scores for both the Improvement and Rehabilitation Projects from MRWA in September 2008 a further report will be presented to Council advising of the outcome and if necessary, will request consideration of project priority for successful projects.
Statutory Compliance
Nil
Strategic Implications
The submission for road funding is consistent with the City of Wanneroo Strategic Plan 2006‑2021 objections and outcomes.
“Social
2.4 Improve community safety
2.5 Improve transport options and connections”
Policy Implications
Nil
Financial Implications
The Metropolitan Regional Road Program guidelines requires the City to contribute at least a third of the project cost and budget provision will need to be made for the City’s contribution to ensure receipt of the State Government funding.
Voting Requirements
Simple Majority
EndStrip - This line will not be printed Please do NOT delete
Recommendation
That Council ENDORSES the submission of the following projects to Main Roads WA for consideration for funding as part of the 2009/2010 Metropolitan Regional Road Program: -
Road Improvement Projects
|
YEAR |
ROAD |
SECTION OF PROPOSED DUAL CARRIAGEWAY |
ESTIMATED PROJECT COST |
|
2009/2010 |
Joondalup Drive, Carramar |
Houghton Drive to Pinjar Road |
$2.10 Mil |
Road Rehabilitation Projects
|
ITEM |
ROAD |
SECTION |
LOCALITY |
WORKS |
ESTIMATED PROJECT COST |
|
1 |
Alexander Dr (a) |
Western Carriageway from Marangaroo Dr to Fenchurch St |
Alexander Heights |
Rehabilitate& Reseal |
$ 541,800 |
|
2 |
Alexander Dr (b) |
Eastern Carriageway from Marangaroo Dr to Fenchurch St |
Alexander Heights |
Rehabilitate & Reseal |
$ 541,800 |
|
3 |
Marangaroo Dr |
Southern Carriageway from Curtis Way to Highclere Blvd |
Marangaroo |
Asphalt Reseal |
$ 93,200 |
|
4 |
Sydney Rd |
Lakelands Dr to 300m northwards |
Gnangara |
Asphalt Reseal |
$ 28,400 |
|
5 |
Caporn St |
Pinjar Rd to Franklin Rd |
Jandabup |
Asphalt Reseal |
$ 267,100 |
|
6 |
Hollingsworth Av |
Koondoola Ave to Butterworth Ave |
Koondoola |
Asphalt Reseal |
$ 69,600 |
EndOfRecommendation - This line will not be printed Please do NOT delete
File Ref: S13/0002V01
File Name: BA Warrant of Payment For the Period to 30 April 2008.doc This line will not be printed Please do NOT delete
Responsible Officer: Director Corporate Services
Disclosure of Interest: Nil
Author: Juanita Lee
Meeting Date: 3 June 2008
Attachments: Nil
StartStrip - This line will not be printed Please do NOT delete
Issue
Presentation to the Council of a list of accounts paid for the month of April, including a statement as to the total amounts outstanding at the end of the month.
Background
Local Governments are required each month to prepare a list of accounts paid for that month and submit the list to the next Ordinary Meeting of the Council.
In addition, it must record all other outstanding accounts and include that amount with the list to be presented. The list of accounts paid and the total of outstanding accounts must be recorded in the minutes of the Council meeting.
Detail
The following is the Summary of Accounts paid in April -
|
Funds |
Vouchers |
Amount |
|
Director Corporate Services Advance A/C Accounts Paid – APRIL 2008 Cheque Numbers EFT Document Numbers TOTAL ACCOUNTS PAID Less Cancelled Cheques Manual Journals RECOUP FROM MUNICIPAL FUND |
68869 - 69374 718 - 733
|
$2,208,815.88 $9,805,029.07 $12,013,844.95 ($8,450.66) ($1,799.97) $12,003,594.32 |
|
Municipal Fund – Bank A/C Accounts Paid – APRIL 2008 Direct Payments – Advance Recoup Direct Payments – Bank Fees Direct Payments – Credit Cards Direct Payments Total Payroll – Direct Debits TOTAL ACCOUNTS PAID |
|
$12,003,594.32 $6,799.16 $469.00 $12,010,862.48 $1,844,183.00 $13,855,045.48 |
At the close of April outstanding creditors amounted to $1,477,586.04.
Consultation
Nil.
Comment
The list of cheques and the end of month total of outstanding creditors for the month of April 2008 is presented to the Council for information and recording in the minutes of the meeting, as required by the Local Government (Financial Management) Regulations 1996.
Statutory Compliance
Regulation 13(1) of the Local Government (Financial Management) Regulations 1996 requires a local government to list the accounts paid each month and total all outstanding creditors at the month end and present such information to the Council at its next Ordinary Meeting after each preparation. A further requirement of this Section is that the prepared list must be recorded in the minutes of the Council meeting.
Strategic Implications
Nil.
Policy Implications
Nil.
Financial Implications
Nil.
Voting Requirements
Simple Majority
EndStrip - This line will not be printed Please do NOT delete
Recommendation
That Council RECEIVES the list of payments for the month of April 2008, as summarised below:-.
|
Funds |
Vouchers |
Amount |
|
Director Corporate Services Advance A/C Accounts Paid – APRIL 2008 Cheque Numbers EFT Document Numbers TOTAL ACCOUNTS PAID
Less Cancelled Cheques Manual Journals RECOUP FROM MUNICIPAL FUND |
68869 - 69374 718 - 733
|
$2,208,815.88 $9,805,029.07 $12,013,844.95
($8,450.66) ($1,799.97) $12,003,594.32 |
|
Municipal Fund – Bank A/C Accounts Paid – APRIL 2008 Direct Payments – Advance Recoup Direct Payments – Bank Fees Direct Payments – Credit Cards Direct Payments Total Payroll – Direct Debits TOTAL ACCOUNTS PAID |
|
$12,003,594.32 $6,799.16 $469.00 $12,010,862.48 $1,844,183.00 $13,855,045.48 |
|
WARRANT OF PAYMENTS APRIL 2008 |
|
PAYMENT |
DATE |
DESCRIPTION |
AMOUNT |
|
00068869 |
01/04/2008 |
Hash House Harriers |
$565.00 |
|
|
|
Bond Refund |
|
|
00068870 |
01/04/2008 |
Phillip Dale & Tarryn Gill |
$539.43 |
|
|
|
Rates Refund P/N214404 8 Madrid Terrace, Hocking - Overpayment Refund |
|
|
00068871 |
01/04/2008 |
Richard Hills & Donna Hills |
$715.05 |
|
|
|
Rates Refund P/N202209 37 Corinda Way, Ridgewood - Property Sold |
|
|
00068872 |
01/04/2008 |
Ilario Foti |
$923.54 |
|
|
|
Rates Refund P/N216727 99 Kilkee Street, Ridgewood - Overpayment Refund |
|
|
00068873 |
01/04/2008 |
Kimberley Hutchinson |
$300.00 |
|
|
|
Vehicle Crossing Subsidy |
|
|
00068874 |
01/04/2008 |
P Clausen & A K Green |
$300.00 |
|
|
|
Vehicle Crossing Subsidy |
|
|
00068875 |
01/04/2008 |
P J & J A Mellows |
$300.00 |
|
|
|
Vehicle Crossing Subsidy |
|
|
00068876 |
01/04/2008 |
Tom Habbits |
$300.00 |
|
|
|
Vehicle Crossing Subsidy |
|
|
00068877 |
01/04/2008 |
N & M R Pearce |
$300.00 |
|
|
|
Vehicle Crossing Subsidy |
|
|
00068878 |
01/04/2008 |
Paul James Maguire |
$300.00 |
|
|
|
Vehicle Crossing Subsidy |
|
|
00068879 |
01/04/2008 |
Carol Turner |
$340.00 |
|
|
|
Bond Refund |
|
|
00068880 |
01/04/2008 |
Vera Hunt |
$565.00 |
|
|
|
Bond Refund |
|
|
00068881 |
01/04/2008 |
AJ Armstrong |
$243.10 |
|
|
|
Rate Refund P/N184054 20 Hemmings Cl - Paid Twice |
|
|
00068882 |
01/04/2008 |
Adrina Project Management Pty Ltd |
$2,750.00 |
|
|
|
Refund Portion Of Fees Not Expended By The City Processing Amendment 85 To District Planning Scheme No. 2 Council Resolve To Not Initiate Amendment At Its Meeting 11/03/08 |
|
|
00068883 |
01/04/2008 |
A L Llufrio & M J Llufrio |
$300.00 |
|
|
|
Vehicle Crossing Subsidy |
|
|
00068884 |
01/04/2008 |
Rhonda Ruth Bradley |
$300.00 |
|
|
|
Vehicle Crossing Subsidy |
|
|
00068885 |
01/04/2008 |
Keith Lehman |
$1,058.75 |
|
|
|
Refund Facility Hire Fees |
|
|
00068886 |
01/04/2008 |
Jodie Weeks |
$20.00 |
|
|
|
Dog Registration Refund - Sterilised |
|
|
00068887 |
01/04/2008 |
Sue Northorpe |
$6.00 |
|
|
|
Dog Registration Refund - Deceased |
|
|
00068888 |
01/04/2008 |
Kay Arbuckle |
$50.00 |
|
|
|
Dog Registration Refund - Sterilisation Rebate |
|
|
00068889 |
01/04/2008 |
William E Marshall |
$50.00 |
|
|
|
Dog Registration Refund - Sterilisation Rebate |
|
|
00068890 |
01/04/2008 |
Helen Kelly |
$24.00 |
|
|
|
Dog Registration Refund - Pensioner & Tag 10/1779 |
|
|
00068891 |
01/04/2008 |
Deanne Hyland |
$38.00 |
|
|
|
Dog Registration Refund - Sterilised & Tag 08/7440 |
|
|
00068892 |
01/04/2008 |
Edward Marshall |
$20.00 |
|
|
|
Dog Registration Refund - Sterilised |
|
|
00068893 |
01/04/2008 |
Michelle Gibb |
$70.00 |
|
|
|
Dog Registration Refund - Sterilised & Rebate |
|
|
00068894 |
01/04/2008 |
Kellie J Holmes |
$70.00 |
|
|
|
Dog Registration Refund - Sterilised & Rebate |
|
|
00068895 |
01/04/2008 |
Kellie Hall |
$40.00 |
|
|
|
Dog Registration Refund - Sterilised & Tag 08/7236 |
|
|
00068896 |
01/04/2008 |
Therese A Vickers |
$12.00 |
|
|
|
Dog Registration Refund - Deceased |
|
|
00068897 |
01/04/2008 |
Yolanthe Bates |
$57.00 |
|
|
|
Dog Registration Refund - Sterilised |
|
|
00068898 |
01/04/2008 |
Toni Stanley |
$70.00 |
|
|
|
Dog Registration Refund - Sterilised & Rebate |
|
|
00068899 |
01/04/2008 |
Kristina Kerby |
$57.00 |
|
|
|
Dog Registration Refund - Sterilised |
|
|
00068900 |
01/04/2008 |
Mary Cameron |
$70.00 |
|
|
|
Dog Registration Refund - Sterilised & Rebate |
|
|
00068901 |
01/04/2008 |
Leigh Horton |
$20.00 |
|
|
|
Dog Registration Refund - Sterilised |
|
|
00068902 |
01/04/2008 |
Donna Cherrie |
$20.00 |
|
|
|
Dog Registration Refund - Sterilised |
|
|
00068903 |
01/04/2008 |
Cancelled |
|
|
|
|
Dog Registration Refund - Sterilised & Rebate |
|
|
00068904 |
01/04/2008 |
Naval Assoc of Australia (Perth) |
$2,000.00 |
|
|
|
Donation For The Purposes Of Community Event Funding Oct 2007 Round: Navy Day & Remembrance Day |
|
|
00068905 |
01/04/2008 |
Pierre Le Grange |
$220.00 |
|
|
|
Reimbursement Small Business Smart Business Voucher |
|
|
00068906 |
01/04/2008 |
Rocco Schirripa |
$220.00 |
|
|
|
Reimbursement Small Business Smart Business Voucher |
|
|
00068907 |
01/04/2008 |
Wanneroo Congregation of Jehovah Witnesses |
$300.00 |
|
|
|
Bond Refund |
|
|
00068908 |
01/04/2008 |
Aboriginal Seniors Group Petty Cash |
$50.00 |
|
|
|
Petty Cash |
|
|
00068909 |
01/04/2008 |
Alexander Heights Adult Day Care Petty Cash |
$127.85 |
|
|
|
Petty Cash |
|
|
00068910 |
01/04/2008 |
Alinta Gas |
$323.10 |
|
|
|
1 x Ratepayer Financial Assistance ($106.70) |
|
|
|
|
Gas Supplies For The City |
|
|
00068911 |
01/04/2008 |
Quinns Rocks Adult Day Care Petty Cash |
$471.95 |
|
|
|
Petty Cash |
|
|
00068912 |
01/04/2008 |
Alexander Heights Community House Petty Cash |
$40.65 |
|
|
|
Petty Cash |
|
|
00068913 |
01/04/2008 |
Landgate |
$109.40 |
|
|
|
Valuations For Rating Services |
|
|
00068914 |
01/04/2008 |
Water Corporation |
$1,284.10 |
|
|
|
Water Charges For The City |
|
|
00068915 |
01/04/2008 |
Yanchep Community House Petty Cash |
$120.10 |
|
|
|
Petty Cash |
|
|
00068916 |
01/04/2008 |
Synergy |
$16,066.10 |
|
|
|
Electricity Supplies For The City |
|
|
|
|
2 x Ratepayer Financial Assistance ($156,25) |
|
|
00068917 |
01/04/2008 |
Telstra |
$27,831.75 |
|
|
|
Phone Charges For The City Usage Charges To 01/03/08 |
|
|
|
|
Mobile Phone Account – IT Services |
|
|
|
|
Internet & Data Charges For The City |
|
|
00068918 |
01/04/2008 |
City of Wanneroo - Rates |
$50.00 |
|
|
|
P/N127628 - Rangers Infringement Notice Receipted To Rates In Error For 15 Highclere Bvd Marangaroo |
|
|
00068919 |
01/04/2008 |
Wanneroo Adult Day Centre Petty Cash |
$58.70 |
|
|
|
Petty Cash |
|
|
00068920 |
01/04/2008 |
Banksia Grove Community Centre Petty Cash |
$97.40 |
|
|
|
Petty Cash |
|
|
00068921 |
01/04/2008 |
Finance Services Petty Cash |
$193.60 |
|
|
|
Petty Cash |
|
|
00068922 |
01/04/2008 |
Adept Furniture Removals |
$1,135.75 |
|
|
|
Removal Of Items To The Convention Centre - Economic Development |
|
|
|
|
Removal Of Items To Albert Facey House - Economic Development |
|
|
00068923 |
01/04/2008 |
Aquatic Solutions |
$2,850.00 |
|
|
|
Maintenance To Mindarie Duck Pond - Parks |
|
|
00068924 |
01/04/2008 |
Asbestos Removal Statewide |
$250.00 |
|
|
|
Asbestos Removal - Engineering Maintenance |
|
|
00068925 |
01/04/2008 |
Big W |
$1,393.31 |
|
|
|
Supplies For Alexander Heights |
|
|
|
|
Various Items For Girrawheen Library |
|
|
00068926 |
01/04/2008 |
Briana Wesley |
$40.00 |
|
|
|
Balloon Making For The Glow Show - Cultural Development |
|
|
00068927 |
01/04/2008 |
C & EM Harmer |
$36.80 |
|
|
|
Newspapers/Periodicals - Marketing |
|
|
00068928 |
01/04/2008 |
Creating Communities Australia Pty Ltd |
$227.00 |
|
|
|
Wanneroo Contribution For Reprint Of Joint Yanchep/Two Rocks Flyer - Contracts & Property |
|
|
00068929 |
01/04/2008 |
Dell Australia Pty Ltd |
$35.09 |
|
|
|
Adaptor - IT Services |
|
|
00068930 |
01/04/2008 |
Elite Carpet Dry Cleaning |
$378.00 |
|
|
|
Curtain Cleaning For Jenolan Way Community Centre |
|
|
00068931 |
01/04/2008 |
Environmental Construction Pty Ltd |
$553,809.30 |
|
|
|
Progress Payment 1 Innovative Playspace Area - Strategic Projects |
|
|
00068932 |
01/04/2008 |
FOO HUA Chinese Restaurant |
$77.00 |
|
|
|
Catering - Blessing Of The Fleet |
|
|
00068933 |
01/04/2008 |
Mindarie Regional Council |
$163,944.70 |
|
|
|
Refuse Disposal For The City |
|
|
00068934 |
01/04/2008 |
MM Electrical Merchandising |
$271.15 |
|
|
|
Portable RCD X 10 - Community Services |
|
|
00068935 |
01/04/2008 |
Myjalessa Hill |
$75.97 |
|
|
|
Harmony Card Making - Youth Services |
|
|
00068936 |
01/04/2008 |
Northern Suburbs Bailiff |
$595.54 |
|
|
|
Legal Fees - Rating Services |
|
|
00068937 |
01/04/2008 |
Perth Observatory |
$600.00 |
|
|
|
Star Viewing Night - Gold Program |
|
|
00068938 |
01/04/2008 |
Sports Power Joondalup |
$110.00 |
|
|
|
Sports Equipment For Youth Services |
|
|
00068939 |
01/04/2008 |
State Library of WA |
$12.10 |
|
|
|
Lost/Damaged Book Charges |
|
|
00068940 |
01/04/2008 |
Susanne Parker |
$265.36 |
|
|
|
Art Classes - Cultural Development |
|
|
00068941 |
01/04/2008 |
Total Steel of Aust Pty Ltd |
$260.26 |
|
|
|
Spare Parts - Fleet Maintenance |
|
|
00068942 |
01/04/2008 |
Walis Forum 2008 |
$220.00 |
|
|
|
Walis International Forum08 – Attendee D Cox |
|
|
00068943 |
01/04/2008 |
Wanneroo IGA |
$32.68 |
|
|
|
Groceries For Community Services |
|
|
00068944 |
02/04/2008 |
Charlotta Seigerschmidt |
$100.00 |
|
|
|
Second Prize Youth Art Competition Paint - "Forgotten Lives |
|
|
00068945 |
02/04/2008 |
Carley Dimer |
$50.00 |
|
|
|
Third Prize - Youth Art Competition Paint - "Fish With Features" |
|
|
00068946 |
02/04/2008 |
Audrey Pieterse |
$200.00 |
|
|
|
First Prize - Youth Arts Competition Paint - "Well It Puts Bread On The Table" |
|
|
00068947 |
08/04/2008 |
Mark Wilkin |
$565.00 |
|
|
|
Bond Refund |
|
|
00068948 |
08/04/2008 |
Vikings Softball Club |
$565.00 |
|
|
|
Bond Refund |
|
|
00068949 |
08/04/2008 |
AG Owen & SM Floate |
$300.00 |
|
|
|
Vehicle Crossing Subsidy |
|
|
00068950 |
08/04/2008 |
DL & WS Wisdom |
$300.00 |
|
|
|
Vehicle Crossing Subsidy |
|
|
00068951 |
08/04/2008 |
DA Massey |
$300.00 |
|
|
|
Vehicle Crossing Subsidy |
|
|
00068952 |
08/04/2008 |
F Kaiser |
$435.57 |
|
|
|
Rates Refund P/N155867 - 4/6 Seaton Place - Pension Rebate |
|
|
00068953 |
08/04/2008 |
GJ & CA Schuts |
$213.13 |
|
|
|
Rates Refund P/N189854 - 24 Carisbrooke Loop - Pension Rebate |
|
|
00068954 |
08/04/2008 |
NRS & J Ward |
$220.76 |
|
|
|
Rates Refund P/N185888 31 Iandra Loop - Pension Rebate |
|
|
00068955 |
08/04/2008 |
AT & WC Higgins |
$376.71 |
|
|
|
Rates Refund P/N213341 - 7 St Louis Ave - Pension Rebate |
|
|
00068956 |
08/04/2008 |
EM & J Yurisich |
$426.82 |
|
|
|
Rates Refund P/N198515 - 31 The Rise - Pension Rebate |
|
|
00068957 |
08/04/2008 |
Cancelled |
|
|
00068958 |
08/04/2008 |
D & A Babic |
$353.22 |
|
|
|
Rates Refund PN176729 - 49 Rawlinson Drive - Pension Rebate |
|
|
00068959 |
08/04/2008 |
BA Reiger |
$392.47 |
|
|
|
Rates Refund PN196013 -15 Wayford Circle - Pension Rebate |
|
|
00068960 |
08/04/2008 |
PM Tewes |
$389.24 |
|
|
|
Rates Refund PN173855 - 30 Wakefield Mews - Pension Rebate |
|
|
00068961 |
08/04/2008 |
R & NM Versaci |
$183.36 |
|
|
|
Rates Refund PN189988 - 25 Tyndall Circuit - Pension Rebate |
|
|
00068962 |
08/04/2008 |
A & ML Diflorio |
$613.23 |
|
|
|
Rates Refund PN188016 - 93 James Spiers Drive - Pension Rebate |
|
|
00068963 |
08/04/2008 |
Devon & Anita Anderson |
$300.00 |
|
|
|
Vehicle Crossing Subsidy |
|
|
00068964 |
08/04/2008 |
Mervyn Errol Jacob |
$300.00 |
|
|
|
Vehicle Crossing Subsidy |
|
|
00068965 |
08/04/2008 |
Paca Kitanovska |
$300.00 |
|
|
|
Vehicle Crossing Subsidy |
|
|
00068966 |
08/04/2008 |
Terence O'Neill |
$300.00 |
|
|
|
Vehicle Crossing Subsidy |
|
|
00068967 |
08/04/2008 |
Chitranjan P Patel |
$1,560.63 |
|
|
|
Rates Refund P/N220819 9 Emerson Turn -Overpayment |
|
|
00068968 |
08/04/2008 |
K N Parker & K S Bett |
$306.11 |
|
|
|
Rates Refund P/N221806 15 Stanbroke Turn - Overpayment |
|
|
00068969 |
08/04/2008 |
Prabhavathi Govindu |
$300.00 |
|
|
|
Vehicle Crossing Subsidy |
|
|
00068970 |
08/04/2008 |
Jean-Joyce Cyril |
$299.00 |
|
|
|
Vehicle Crossing Subsidy |
|
|
00068971 |
08/04/2008 |
RJ Rowley & HV Rowley |
$276.95 |
|
|
|
Vehicle Crossing Subsidy |
|
|
00068972 |
08/04/2008 |
Cycling WA |
$400.00 |
|
|
|
Sponsorship For Mitch Benson & Luke Zaccaria To Attend Australian Junior Track Cycling Championships In Sydney 27-30/03/08 |
|
|
00068973 |
08/04/2008 |
St George's Cathedral Choir |
$500.00 |
|
|
|
Sponsorship For Stefan Deselys - Claite To Participate At "Our Other Anzac Day" Event In France 16-29/04/08 |
|
|
00068974 |
08/04/2008 |
Tan Chong Siang Michael |
$300.00 |
|
|
|
Vehicle Crossing Subsidy |
|
|
00068975 |
08/04/2008 |
DA & M Craft |
$54.92 |
|
|
|
Rates Refund P/N138090 36 Bernborough Pl - Pension Rebate |
|
|
00068976 |
08/04/2008 |
KC & SM Thompson |
$358.13 |
|
|
|
Rates Refund P/N171055 32 Beachport Ret - Pension Rebate |
|
|
00068977 |
08/04/2008 |
DW & VR MUZZELL |
$129.05 |
|
|
|
Rates Refund P/N209439 27 Whitland Street - Pension Rebate |
|
|
00068978 |
08/04/2008 |
ML & S Brett |
$212.89 |
|
|
|
Rates Refund P/N200791 11 Monet Drive - Pension Rebate |
|
|
00068979 |
08/04/2008 |
N & J Kordic |
$168.37 |
|
|
|
Rates Refund P/N179881 9 Dandenong Way - Pension Rebate |
|
|
00068980 |
08/04/2008 |
L & E Jauk |
$377.75 |
|
|
|
Rates Refund P/N100189 31 Greenpark Road - Pension Rebate |
|
|
00068981 |
08/04/2008 |
TF & JL Reeves |
$308.16 |
|
|
|
Rates Refund P/N188021 128 James Spiers Drive -Pension Rebate |
|
|
00068982 |
08/04/2008 |
D Howarth & Estate of the Late JA Howarth |
$466.05 |
|
|
|
Rates Refund P/N214332 29 Labianca Vista - Pension Rebate |
|
|
00068983 |
08/04/2008 |
BG & PM Nesbitt |
$367.94 |
|
|
|
Rates Refund P/N136934 50 Banyandah Bvd - Pension Rebate |
|
|
00068984 |
08/04/2008 |
KJ Simonsen |
$490.59 |
|
|
|
Rates Refund P/N209601 54 Castledene Way - Pension Rebate |
|
|
00068985 |
08/04/2008 |
Mrs clarissa Attree |
$220.00 |
|
|
|
Reimbursement Small Business Smart Business Voucher |
|
|
00068986 |
08/04/2008 |
Mrs Amanda Cheshire |
$220.00 |
|
|
|
Reimbursement Small Business Smart Business Voucher |
|
|
00068987 |
08/04/2008 |
Danielle McRandal |
$6.00 |
|
|
|
Dog Registration Refund - Deceased |
|
|
00068988 |
08/04/2008 |
Linda Sills |
$20.00 |
|
|
|
Dog Registration Refund - Sterilised |
|
|
00068989 |
08/04/2008 |
Nicola Reynolds |
$20.00 |
|
|
|
Dog Registration Refund - Deceased & Tag 08/9226 |
|
|
00068990 |
08/04/2008 |
Stephen Hodgson |
$20.00 |
|
|
|
Dog Registration Refund - Sterilised |
|
|
00068991 |
08/04/2008 |
Martina Ioppolo |
$300.00 |
|
|
|
Bond Refund |
|
|
00068992 |
08/04/2008 |
M Vandyck & M Feron |
$300.00 |
|
|
|
Vehicle Crossing Subsidy |
|
|
00068993 |
08/04/2008 |
F Galoustian |
$436.15 |
|
|
|
Rates Refund P/N215179 - 23 Jindalee Blvd - Overpayment |
|
|
00068994 |
08/04/2008 |
Vince Belladonna & Lorton Metal |
$1,223.23 |
|
|
|
Rates Refund P/N213008 40 Lancaster Road - Overpayment |
|
|
00068995 |
08/04/2008 |
Western Australian Planning Commission |
$636.74 |
|
|
|
Rates Refund P/N222406 1240 Ocean Reef Road -Overpayment |
|
|
00068996 |
08/04/2008 |
Lonnegal Properties Pty Ltd & Cedar Woods Properties Ltd |
$3,027.58 |
|
|
|
Rates Refund P/N222560 - Various Tapping Properties - Change Of Valuation Of Land & Subdivision |
|
|
00068997 |
08/04/2008 |
AJ Tranter & DL Shepherd |
$469.98 |
|
|
|
Rates Refund P/N219532 6 Knoll Rise - Overpayment |
|
|
00068998 |
08/04/2008 |
Housing Authority |
$409.68 |
|
|
|
Rates Refund P/N160392 & P/N160397 - 9A-9F Ferrara Way - Overpayment / Bin Removal / Demolition |
|
|
00068999 |
08/04/2008 |
Abacus Computers & Technology |
$436.00 |
|
|
|
Copier Repair/Developer - Heights Community Centre |
|
|
00069000 |
08/04/2008 |
Asbestos Removal Statewide |
$3,300.00 |
|
|
|
Asbestos Removal - Various Locations |
|
|
00069001 |
08/04/2008 |
Bev Manning |
$240.00 |
|
|
|
Exercise Classes-05/03/08-31/03/08 At Yanchep Community Centre |
|
|
00069002 |
08/04/2008 |
Big W |
$219.87 |
|
|
|
Supplies For Alexander Heights Day Centre |
|
|
00069003 |
08/04/2008 |
Cut Price Imports |
$169.95 |
|
|
|
Aussie Flags - Marketing |
|
|
00069004 |
08/04/2008 |
Department of Environment & Conservation |
$110.00 |
|
|
|
Registration - Acidsulfate Soils Community Workshop |
|
|
00069005 |
08/04/2008 |
Edgewater Veterinary Hospital |
$175.00 |
|
|
|
Veterinary Costs - Ranger Services |
|
|
00069006 |
08/04/2008 |
Cancelled |
|
|
00069007 |
08/04/2008 |
Mindarie Regional Council |
$12,996.21 |
|
|
|
Refuse Disposal For The City |
|
|
00069008 |
08/04/2008 |
Ranger Outdoors - Joondalup |
$119.90 |
|
|
|
Table Easy Outdoor - Infrastructure Maintenance |
|
|
00069009 |
08/04/2008 |
Specialised Security Shredding |
$32.51 |
|
|
|
Security Shredding - Records |
|
|
00069010 |
08/04/2008 |
WA Sleddog Sports Association |
$300.00 |
|
|
|
Sleddog Team For Glow Show 22/03/08 - Cultural Development |
|
|
00069011 |
08/04/2008 |
Waterman Irrigation |
$2,536.60 |
|
|
|
Joondalup Park Trail Irrigation - Parks |
|
|
00069012 |
08/04/2008 |
Aboriginal Seniors Group Petty Cash |
$50.00 |
|
|
|
Petty Cash |
|
|
00069013 |
08/04/2008 |
Alexander Heights Adult Day Care Petty Cash |
$220.80 |
|
|
|
Petty Cash |
|
|
00069014 |
08/04/2008 |
Building & Construction Industry |
$44,020.76 |
|
|
|
Levy Collections 17/03-31/03/08 - Finance |
|
|
00069015 |
08/04/2008 |
Accounts Services Petty Cash |
$356.80 |
|
|
|
Petty Cash |
|
|
00069016 |
08/04/2008 |
Mr S Freeborn |
$320.00 |
|
|
|
Volunteer Payment - Voluntary Services |
|
|
00069017 |
08/04/2008 |
Alan Green |
$30.00 |
|
|
|
Volunteer Payment - Community Buses |
|
|
00069018 |
08/04/2008 |
Mr R Hannan |
$50.00 |
|
|
|
Volunteer Payment - Community Buses |
|
|
00069019 |
08/04/2008 |
Ms S McMahon |
$45.00 |
|
|
|
Volunteer Payment - Day Care Centres |
|
|
00069020 |
08/04/2008 |
Optus |
$21.49 |
|
|
|
Optus Gas Flare - Waste Services |
|
|
00069021 |
08/04/2008 |
Quinns Rocks Adult Day Care Petty Cash |
$268.95 |
|
|
|
Petty Cash |
|
|
00069022 |
08/04/2008 |
Alexander Heights Community House Petty Cash |
$41.05 |
|
|
|
Petty Cash |
|
|
00069023 |
08/04/2008 |
Landgate |
$3,416.88 |
|
|
|
Valuations - Rating Services |
|
|
00069024 |
08/04/2008 |
Wanneroo Library Petty Cash |
$203.25 |
|
|
|
Petty Cash |
|
|
00069025 |
08/04/2008 |
Water Corporation |
$8,321.00 |
|
|
|
Meter Repair - 14 Carnegie Way, Padbury |
|
|
|
|
Hydrant Standpipe Hire - Parks Maintenance |
|
|
|
|
Water Headworks - Brady Street, Wangara |
|
|
00069026 |
08/04/2008 |
Yanchep Two Rocks Library Petty Cash |
$31.35 |
|
|
|
Petty Cash |
|
|
00069027 |
08/04/2008 |
Zurich Client Service |
$235.38 |
|
|
|
Payroll Ded: F/Ending 04/04/08 |
|
|
00069028 |
08/04/2008 |
City of Wanneroo - Payroll Rates |
$2,490.00 |
|
|
|
Payroll Ded: F/Ending 04/04/08 |
|
|
00069029 |
08/04/2008 |
Cancelled |
|
|
00069030 |
08/04/2008 |
Synergy |
$242,511.55 |
|
|
|
Electricity Supplies For The City |
|
|
|
|
Street Lighting 24/02-24/03/08 ($179,308.05) |
|
|
00069031 |
08/04/2008 |
Pat Dumaresq |
$110.00 |
|
|
|
Volunteer Payment - Podiatry |
|
|
00069032 |
08/04/2008 |
Ms L Stevens |
$110.00 |
|
|
|
Volunteer Payment - Day Care Centres |
|
|
00069033 |
08/04/2008 |
Laurie Bracken |
$120.00 |
|
|
|
Volunteer Payment - Community Buses |
|
|
00069034 |
08/04/2008 |
Department Of The Premier And Cabinet |
$17.45 |
|
|
|
PDF Purchase For Planning Services |
|
|
00069035 |
08/04/2008 |
Bernice Duncan |
$45.00 |
|
|
|
Volunteer Payment - Day Care Centres |
|
|
00069036 |
08/04/2008 |
Ruth Butler |
$50.00 |
|
|
|
Volunteer Payment - Day Care Centres |
|
|
00069037 |
08/04/2008 |
Dale Sutherland |
$40.00 |
|
|
|
Volunteer Payment - Day Care Centres |
|
|
00069038 |
08/04/2008 |
Graeme Lewis |
$45.00 |
|
|
|
Volunteer Payment - Day Care Centres |
|
|
00069039 |
08/04/2008 |
City of Wanneroo - Rates |
$240.12 |
|
|
|
Rates For Cr Steffens P/N126238 Taken From Travel Allowance |
|
|
00069040 |
08/04/2008 |
AlintaGas Networks Pty Ltd |
$142.87 |
|
|
|
Repair Damages To Alinta Pipes Civic Centre By Wanneroo Electric |
|
|
00069041 |
08/04/2008 |
Susan Morrissey |
$115.00 |
|
|
|
Volunteer Payment - Day Care Centres |
|
|
00069042 |
08/04/2008 |
Pat Pearman |
$50.00 |
|
|
|
Volunteer Payment - Day Care Centres |
|
|
00069043 |
08/04/2008 |
June Taylor |
$55.00 |
|
|
|
Volunteer Payment - Day Care Centres |
|
|
00069044 |
08/04/2008 |
Western Power |
$18,050.00 |
|
|
|
Upgrade Streetlights - Rosewell Green Wanneroo |
|
|
|
|
Relocate Streetlights - Alexander Drive, Landsdale |
|
|
00069045 |
08/04/2008 |
Carol Politis |
$45.00 |
|
|
|
Volunteer Payment - Day Care Centres |
|
|
00069046 |
08/04/2008 |
Andy Heerkins |
$160.00 |
|
|
|
Volunteer Payment - Community Buses |
|
|
00069047 |
08/04/2008 |
Ms M A Gilchrist |
$50.00 |
|
|
|
Volunteer Payments - Community Buses |
|
|
00069048 |
08/04/2008 |
Dept For Planning And Infrastructure |
$20,443.28 |
|
|
|
Recoup For Mike Allen On Secondment 11/01/08-06/03/08 – Planning |
|
|
00069049 |
08/04/2008 |
Janice Lewis |
$125.00 |
|
|
|
Volunteer Payment - Day Care Centres |
|
|
00069050 |
08/04/2008 |
Roy Bastick |
$100.00 |
|
|
|
Volunteer Payment - Community Buses |
|
|
00069051 |
08/04/2008 |
Phyllis Bennison |
$50.00 |
|
|
|
Volunteer Payments - Day Care Centres |
|
|
00069052 |
08/04/2008 |
Christine Demiris |
$45.00 |
|
|
|
Volunteer Payment - Day Care Centres |
|
|
00069053 |
08/04/2008 |
Wanneroo Adult Day Centre Petty Cash |
$78.50 |
|
|
|
Petty Cash |
|
|
00069054 |
08/04/2008 |
Vernon Mortensen |
$40.00 |
|
|
|
Volunteer Payment - Day Care Centres |
|
|
00069055 |
08/04/2008 |
Lorraine Mortensen |
$50.00 |
|
|
|
Volunteer Payment - Day Care Centres |
|
|
00069056 |
08/04/2008 |
PBTL - Lifetime Superannuation Fund |
$70.44 |
|
|
|
Payroll Ded: F/Ending 04/04/08 |
|
|
00069057 |
08/04/2008 |
Elizabeth Valeriani |
$75.00 |
|
|
|
Volunteer Payment For Day Care Centres |
|
|
00069058 |
08/04/2008 |
Finance Services Petty Cash |
$468.20 |
|
|
|
Petty Cash |
|
|
00069059 |
08/04/2008 |
Bruce Thompson |
$200.00 |
|
|
|
Volunteer Payment - Community Buses |
|
|
00069060 |
11/04/2008 |
Coles Supermarkets Aust Pty Ltd |
$406.37 |
|
|
|
Various Items - Sausage Sizzle To Be Held At Kingsbridge Park Brighton |
|
|
00069061 |
11/04/2008 |
Brumbys Brighton |
$240.00 |
|
|
|
Various Items - Function To Be Held At Kingsbridge Park Brighton |
|
|
00069062 |
15/04/2008 |
Lino Visintin |
$252.37 |
|
|
|
Rates Refund P/N221059 8 Stint Pass, Tapping; P/N221054 2 Spring Hill, Tapping; P/N221053 47 Ashley Road, Tapping; P/N221051 51 Ashley Road, Tapping - Due To Change Of Valuation Of Land Method |
|
|
00069063 |
15/04/2008 |
Watson Property Group Woodvale Ltd |
$348.48 |
|
|
|
Rates Refund P/N218992 7 Rivonia Brace, Madeley; P/N218985 22 Castanet Drive, Madeley - Due To Change Of Valuation Of Land Method |
|
|
00069064 |
15/04/2008 |
Ante Vlahov & Roka Vlahov |
$901.77 |
|
|
|
Rates Refund P/N219008 63 Cooper Street, Madeley; P/N219009 59 Cooper Street, Madeley - Due To Change Of Valuation Of Land Method |
|
|
00069065 |
15/04/2008 |
Yanchep Sun City Pty Ltd & Capricorn Investment Group Pty Ltd |
$6,207.25 |
|
|
|
Rates Refund P/N221500 602 Two Rocks Road, Yanchep - Overpayment Of Rates Due To Subdivision Yanchep Sun City Pty Ltd & |
|
|
00069066 |
15/04/2008 |
Yanchep Beach Estates Pty Ltd |
$6,612.32 |
|
|
|
Rates Refund P/N222394 131 Yanchep Beach Road, Yanchep - Overpayment Of Rates Due To Subdivision |
|
|
00069067 |
15/04/2008 |
Westminster Estates Pty Ltd |
$44,520.00 |
|
|
|
Rates Refund 2469 Marmion Avenue, Jindalee P/N148721 - Due To Reduced Valuation |
|
|
00069068 |
15/04/2008 |
Yanchep Sun City Pty Ltd & Capricorn Investment Group Pty Ltd |
$2,812.92 |
|
|
|
Rates Refund P/N219519 1 Knoll Rise, Yanchep; P/N219520 3 Knoll Rise, Yanchep; P/N219522 7 Knoll Rise, Yanchep; P/N219523 9 Knoll Rise, Yanchep; P/N219524 11 Knoll Rise, Yanchep; P/N219525 15 Knoll Rise, Yanchep - Due To Change Of Valuation Of Land Method |
|
|
00069069 |
15/04/2008 |
Yanchep Sun City Pty Ltd & Capricorn Investment Group Pty Ltd |
$2,371.14 |
|
|
|
Rates Refund P/N219526 17 Knoll Rise, Yanchep; P/N219527 19 Knoll Rise, Yanchep; P/N219528 21 Knoll Rise, Yanchep; P/N219530 2 Knoll Rise, Yanchep; P/N219529 25 Seaside Avenue, Yanchep - Due To Change Of Valuation Of Land Method |
|
|
00069070 |
15/04/2008 |
Butler Land Company Pty Ltd & Quinns Developments Pty Ltd |
$99.42 |
|
|
|
Rates Refund P/N220485 31 Helmsdale Loop & P/N220484 33 Helmsdale Loop |
|
|
00069071 |
15/04/2008 |
Markeesa Nominees Pty Ltd |
$125.30 |
|
|
|
Rates Refund P/N222477 117 Inspiration Drive, Wangara - Due To Change Of Valuation Of Land Method |
|
|
00069072 |
15/04/2008 |
James Duff & Linda Duff |
$120.51 |
|
|
|
Rates Refund P/N219003 73 Cooper Street, Madeley - Due To Change Of Valuation Of Land Method |
|
|
00069073 |
15/04/2008 |
Frank Ferraloro |
$420.84 |
|
|
|
Rates Refund P/N218995 1 Rivonia Brace, Madeley - Due To Change Of Valuation Of Land Method |
|
|
00069074 |
15/04/2008 |
Rachel McCubbin & Clyde Krynski |
$58.50 |
|
|
|
Rates Refund P/N221058 6 Stint Pass, Tapping - Due To Change Of Valuation Of Land Method |
|
|
00069075 |
15/04/2008 |
Stephen Benedict Duffy |
$46.79 |
|
|
|
Rates Refund P/N218999 5 Norscot Way, Madeley - Due To Change Of Valuation Of Land Method |
|
|
00069076 |
15/04/2008 |
Balcatta Soccer Club (Inc) |
$305.33 |
|
|
|
Rates Refund P/N218988 4 Rivonia Brace, Madeley -Due To Change Of Valuation Of Land Method |
|
|
00069077 |
15/04/2008 |
Bradley W Carter & Bree L Carter |
$669.74 |
|
|
|
Rates Refund P/N221045 9 Spring Hill, Tapping - Due To Change Of Valuation Of Land Method |
|
|
00069078 |
15/04/2008 |
Jonathon P Brown & Rebecca V Barr |
$94.49 |
|
|
|
Rates Refund P/N221206 22 Swinford Approach, Butler - Due To Change Of Valuation Of Land Method |
|
|
00069079 |
15/04/2008 |
Tony Curtis |
$50.00 |
|
|
|
Key Bond Refund |
|
|
00069080 |
15/04/2008 |
Sarah E Acimovic & Brad S Wilson |
$76.72 |
|
|
|
Rates Refund P/N221049 1 Spring Hill, Tapping - Due To Change Of Valuation Of Land Method |
|
|
00069081 |
15/04/2008 |
Benjamin J Gregory |
$59.26 |
|
|
|
Rates Refund P/N221060 10 Stint Pass, Tapping - Due To Change Of Valuation Of Land Method |
|
|
00069082 |
15/04/2008 |
Kim Janet Cormack |
$58.50 |
|
|
|
Rates Refund P/N221046 7 Spring Hill, Tapping - Change Of Valuation Of Land Method |
|
|
00069083 |
15/04/2008 |
S M Williamson, B Williamson, P Williamson, L J P Allen & P B P Allen |
$70.75 |
|
|
|
Rates Refund P/N221055 4 Spring Hill, Tapping - Change Of Valuation Of Land Method |
|
|
00069084 |
15/04/2008 |
Adam J Garrett |
$70.75 |
|
|
|
Rates Refund P/N221700 10 Ardea Way, Tapping |
|
|
00069085 |
15/04/2008 |
Samantha Lee Green |
$58.50 |
|
|
|
Rates Refund P/N221689 17 Jaeger Bend, Tapping -Due To Change Of Valuation Of Land Method |
|
|
00069086 |
15/04/2008 |
Kevin N Gray & Christina Gray |
$417.86 |
|
|
|
Rates Refund P/N2190011 Norscot Way, Madeley - |
|
|
00069087 |
15/04/2008 |
Baden Hutchison & Robyn E Hutchison |
$62.12 |
|
|
|
Rates Refund P/N218993 5 Rivonia Brace, Madeley - Due To Change Of Valuation Of Land Method |
|
|
00069088 |
15/04/2008 |
Jared Ian Conti |
$305.33 |
|
|
|
Rates Refund P/N218991 10 Rivonia Brace, Madeley -Due To Change Of Valuation Of Land Method |
|
|
00069089 |
15/04/2008 |
D W Southern & C R Marino |
$420.84 |
|
|
|
Rates Refund P/N218998 7 Norscot Way, Madeley - Due To Change Of Valuation Of Land Method |
|
|
00069090 |
15/04/2008 |
Huu Phuoc Nguyen |
$300.00 |
|
|
|
Vehicle Crossing Subsidy |
|
|
00069091 |
15/04/2008 |
Michelle Ann Foster |
$300.00 |
|
|
|
Vehicle Crossing Subsidy |
|
|
00069092 |
15/04/2008 |
Jennifer Lee Binder |
$300.00 |
|
|
|
Vehicle Crossing Subsidy |
|
|
00069093 |
15/04/2008 |
R P Williams & R E Doherty |
$300.00 |
|
|
|
Vehicle Crossing Subsidy |
|
|
00069094 |
15/04/2008 |
Daniele Antonio Collova |
$200.00 |
|
|
|
Vehicle Crossing Subsidy |
|
|
00069095 |
15/04/2008 |
Geordie Alan Carson |
$300.00 |
|
|
|
Vehicle Crossing Subsidy |
|
|
00069096 |
15/04/2008 |
Allen William & Julie Perkins |
$300.00 |
|
|
|
Vehicle Crossing Subsidy |
|
|
00069097 |
15/04/2008 |
Mark Paul Ian Allen |
$171.60 |
|
|
|
Vehicle Crossing Subsidy |
|
|
00069098 |
15/04/2008 |
Timothy Derek William Smith |
$300.00 |
|
|
|
Vehicle Crossing Subsidy |
|
|
00069099 |
15/04/2008 |
Graham James Howe |
$300.00 |
|
|
|
Vehicle Crossing Subsidy |
|
|
00069100 |
15/04/2008 |
Pearsall Mews Pty Ltd |
$150,794.55 |
|
|
|
Subdivision Bond Refund Lot 34 Kemp Street, Pearsall |
|
|
00069101 |
15/04/2008 |
VMRO |
$565.00 |
|
|
|
Bond Refund |
|
|
00069102 |
15/04/2008 |
Ivan L Glavish |
$117.00 |
|
|
|
Refund Of Development Application - Not Required |
|
|
00069103 |
15/04/2008 |
RM Buckingham & AW Buckingham |
$300.00 |
|
|
|
Vehicle Crossing Subsidy |
|
|
00069104 |
15/04/2008 |
CA Bartram |
$300.00 |
|
|
|
Vehicle Crossing Subsidy |
|
|
00069105 |
15/04/2008 |
F Martinez |
$300.00 |
|
|
|
Vehicle Crossing Subsidy |
|
|
00069106 |
15/04/2008 |
Focus Self Defence Academy |
$340.00 |
|
|
|
Facility Hire Refund |
|
|
00069107 |
15/04/2008 |
Nicholas Falcone |
$355.45 |
|
|
|
Reimbursement Of Building Application Fee 22 Chalkwell Bend - Not Required |
|
|
00069108 |
15/04/2008 |
Content Living Pty Ltd |
$402.88 |
|
|
|
Reimbursement Of Building Application 5 Harford Drive - Not Required |
|
|
00069109 |
15/04/2008 |
BGC Residential Pty Ltd |
$47.24 |
|
|
|
Reimbursement Of Codes Variation - 27 Tissington Drive - Not Required |
|
|
00069110 |
15/04/2008 |
Oracle Surveys Pty Ltd |
$144.80 |
|
|
|
Reimbursement Of Building Application Fee - 21 Prestige Pde - Overpayment |
|
|
00069111 |
15/04/2008 |
Content Living Pty Ltd |
$338.98 |
|
|
|
Reimbursement Building Codes Variation - 10 Cyandra Loop - Not Required |
|
|
00069112 |
15/04/2008 |
Cherry M L J Todoro |
$305.33 |
|
|
|
Rates Refund P/N218984 12 Keanefield Drive - Change In Valuation Method |
|
|
00069113 |
15/04/2008 |
Lisa N Mitchell |
$272.33 |
|
|
|
Rates Refund P/N218987 6 Norscot Way - Change Of Valuation Method |
|
|
00069114 |
15/04/2008 |
N J Marinovich |
$305.33 |
|
|
|
Rates Refund P/N218989 6 Rivonia Brace - Change In Valuation Method |
|
|
00069115 |
15/04/2008 |
Stacee D Deighton & K N Smith |
$70.75 |
|
|
|
Rates Refund P/N221699 8 Ardea Way - Change Of Valuation Method |
|
|
00069116 |
15/04/2008 |
Tarsha C R Kirk |
$46.26 |
|
|
|
Rates Refund PN221692 7 Jaeger Tapping - Change Of Valuation Method |
|
|
00069117 |
15/04/2008 |
GA & M Moscarda |
$34.01 |
|
|
|
Rates Refund P/N221063 7 Stint Pass - Change Of Valuation Method |
|
|
00069118 |
15/04/2008 |
FN & EA Jordan |
$33.88 |
|
|
|
Rates Refund P/N221065 3 Stint Pass - Change Of Valuation Method |
|
|
00069119 |
15/04/2008 |
NP & AN Sutton |
$82.99 |
|
|
|
Rates Refund P/N221682 38 Meneguz Tapping - Change Of Valuations Method |
|
|
00069120 |
15/04/2008 |
F & R Kajmakoski |
$338.32 |
|
|
|
Rates Refund P/N218980 12 Castanet Drive - Change Of Valuation Method |
|
|
00069121 |
15/04/2008 |
Hinaben Mukeshkumar Patel & Mukeshkumar Nanubahi Patel |
$34.01 |
|
|
|
Rates Refund P/N221073 12 Crimson Way - Change In Valuation Method |
|
|
00069122 |
15/04/2008 |
WF Watts & ML Watts |
$58.51 |
|
|
|
Rates Refund P/N221048 3 Spring Hill - Change In Valuation Method |
|
|
00069123 |
15/04/2008 |
Pauline P J Hook & Trevor J Hook |
$338.33 |
|
|
|
Rates Refund P/N218981 14 Castanet Drive - Change Of Valuation Method |
|
|
00069124 |
15/04/2008 |
Mark A J Halls & Amanda A Halls |
$302.82 |
|
|
|
Rates Refund P/N218983 18 Castanet Drive - Change Of Valuation Method |
|
|
00069125 |
15/04/2008 |
Behzad Kabnabi Silwanagh |
$305.01 |
|
|
|
Rates Refund P/N218994 3 Rivonia Brace - Change Of Valuation Method |
|
|
00069126 |
15/04/2008 |
RK Bollen & EL Quartermaine |
$90.53 |
|
|
|
Rates Refund P/N219000 3 Norscot Way - Change Of Valuation Method |
|
|
00069127 |
15/04/2008 |
DJ & SJ Preston |
$18.50 |
|
|
|
Rates Refund P/N219006 67 Cooper Street - Change Of Valuation Method |
|
|
00069128 |
15/04/2008 |
SF Cvitan & S Cvitan |
$469.44 |
|
|
|
Rates Refund P/N219521 5 Knoll Rise - Change Of Valuation Method |
|
|
00069129 |
15/04/2008 |
Palmtree Grove Pty Ltd |
$82.68 |
|
|
|
Rates Refund P/N221056 6 Spring Hill - Change Of Valuation Method |
|
|
00069130 |
15/04/2008 |
D Kalzee & MZ Kalzee |
$336.92 |
|
|
|
Rates Refund P/N218982 16 Castanet Drive - Change Of Valuation Method |
|
|
00069131 |
15/04/2008 |
RL Ewins & CA Ewins |
$33.88 |
|
|
|
Rates Refund P/N221064 5 Stint Pass - Change Of Valuation Method |
|
|
00069132 |
15/04/2008 |
Lonnegal Properties Pty Ltd & Cedar Woods Properties Ltd |
$556.91 |
|
|
|
Rates Refund P/N221064 5 Stint Pass - Overpayment |
|
|
00069133 |
15/04/2008 |
J & KA Arnold |
$89.12 |
|
|
|
Rates Refund P/N221681 36 Menequz Drive - Change Of Valuation Method |
|
|
00069134 |
15/04/2008 |
EJ & GJ Hart |
$64.63 |
|
|
|
Rates Refund P/N221695 1 Jaeger Bend - Change Of Valuation Method |
|
|
00069135 |
15/04/2008 |
MW Roberts |
$70.75 |
|
|
|
Rates Refund P/N221698 6 Ardea Way - Change Of Valuation Method |
|
|
00069136 |
15/04/2008 |
SD & AC Chourlarton |
$82.99 |
|
|
|
Rates Refund P/N221702 14 Ardea Way - Change Of Valuation Method |
|
|
00069137 |
15/04/2008 |
SC & JL De Bie |
$85.44 |
|
|
|
Rates Refund P/N221704 17 Ardea Way - Change Of Valuation Method |
|
|
00069138 |
15/04/2008 |
RI Leask & A Waldron |
$76.87 |
|
|
|
Rates Refund P/N221066 10 Spring Hill - Change Of Valuation Method |
|
|
00069139 |
15/04/2008 |
J Easton |
$76.87 |
|
|
|
Rates Refund P/N221685 25 Jaeger Bend - Change Of Valuation Method |
|
|
00069140 |
15/04/2008 |
DM Fifield & AL Maloney |
$76.87 |
|
|
|
Rates Refund P/N221701 12 Ardea Way - Change Of Valuation Method |
|
|
00069141 |
15/04/2008 |
Krishna Kumar Kulshreshtha & Mimli Kulshreshtha |
$58.50 |
|
|
|
Rates Refund P/N221047 5 Spring Hill - Change Of Valuation Method |
|
|
00069142 |
15/04/2008 |
J Woelms & RA Woelms |
$288.83 |
|
|
|
Rates Refund P/N218997 9 Norscot Way - Change Of Valuation Method |
|
|
00069143 |
15/04/2008 |
MAM Property Developments Pty Ltd |
$296.71 |
|
|
|
Rates Refund P/N218996 11 Norscot Way - Change Of Valuation Method |
|
|
00069144 |
15/04/2008 |
Endeavour Properties Pty Ltd |
$4,626.57 |
|
|
|
Rates Refund P/N221079 131 Pinjar Road - Change Of Valuation Method |
|
|
00069145 |
15/04/2008 |
Domenic Paul Casotti |
$469.44 |
|
|
|
Rates Refund P/N219531 4 Knoll Rise - Change Of Valuation Method |
|
|
00069146 |
15/04/2008 |
RL & M Strachan |
$300.00 |
|
|
|
Vehicle Crossing Subsidy |
|
|
00069147 |
15/04/2008 |
GJ Huke |
$300.00 |
|
|
|
Vehicle Crossing Subsidy |
|
|
00069148 |
15/04/2008 |
LP & RM Garbellini |
$330.13 |
|
|
|
Rates Refund P/N188010 81 James Spiers Drive -Overpaid |
|
|
00069149 |
15/04/2008 |
Neil Johnston |
$80.00 |
|
|
|
Refund Of Transaction For Art Classes - Processed Twice Eftpos Machine Line Down |
|
|
00069150 |
15/04/2008 |
A Monk |
$30.00 |
|
|
|
Refund - Freedom Of Information Application Lodged 03/04/08 |
|
|
00069151 |
15/04/2008 |
B I Champman |
$6.00 |
|
|
|
Dog Registration Refund - Deceased |
|
|
00069152 |
15/04/2008 |
Kaye Thompson |
$38.00 |
|
|
|
Dog Registration Refund - Sterilised |
|
|
00069153 |
15/04/2008 |
Shane McDonald |
$20.00 |
|
|
|
Dog Registration Refund - Sterilised |
|
|
00069154 |
15/04/2008 |
Leanne Baxter |
$25.00 |
|
|
|
Dog Registration Refund - Deceased |
|
|
00069155 |
15/04/2008 |
Angela Cunningham |
$6.00 |
|
|
|
Dog Registration Refund - Deceased |
|
|
00069156 |
15/04/2008 |
Jim Bateman |
$50.00 |
|
|
|
Dog Registration Refund - Sterilisation Rebate |
|
|
00069157 |
15/04/2008 |
Elpida Politis |
$25.00 |
|
|
|
Dog Registration Refund - Deceased |
|
|
00069158 |
15/04/2008 |
Clive Peter & Julia Ann Gough |
$300.00 |
|
|
|
Vehicle Crossing Subsidy |
|
|
00069159 |
15/04/2008 |
A & E Jetten |
$544.75 |
|
|
|
Rates Refund P/N176185 16 Rousset Road, Jandabup - Overpayment Refund |
|
|
00069160 |
15/04/2008 |
R M Mitchinson & R T Whitcombe |
$300.00 |
|
|
|
Vehicle Crossing Subsidy |
|
|
00069161 |
15/04/2008 |
D R & K A Mees |
$300.00 |
|
|
|
Vehicle Crossing Subsidy |
|
|
00069162 |
15/04/2008 |
Australian Lacrosse Association |
$600.00 |
|
|
|
Sponsorship For Matt Divers & Simon Fleet To Participate In World U19 Lacrosse Championships In Canada 3-12/07/08 |
|
|
00069163 |
15/04/2008 |
Aboriginal Seniors Group Petty Cash |
$50.00 |
|
|
|
Petty Cash |
|
|
00069164 |
15/04/2008 |
Alexander Heights Adult Day Care Petty Cash |
$235.35 |
|
|
|
Petty Cash |
|
|
00069165 |
15/04/2008 |
Alinta Gas |
$287.05 |
|
|
|
Gas Charges For The City |
|
|
00069166 |
15/04/2008 |
Amp Flexible Lifetime Super Fund |
$1,530.74 |
|
|
|
Payroll Ded: F/Ending 04/04/08 |
|
|
00069167 |
15/04/2008 |
Clarkson Youth Centre Petty Cash |
$198.65 |
|
|
|
Petty Cash |
|
|
00069168 |
15/04/2008 |
Hainsworth Community Centre Petty Cash |
$262.20 |
|
|
|
Petty Cash |
|
|
00069169 |
15/04/2008 |
Michael Hayes |
$40.00 |
|
|
|
Key Holder - Cockman House April 2008 |
|
|
00069170 |
15/04/2008 |
Quinns Rocks Adult Day Care Petty Cash |
$185.90 |
|
|
|
Petty Cash |
|
|
00069171 |
15/04/2008 |
Alexander Heights Community House Petty Cash |
$83.90 |
|
|
|
Petty Cash |
|
|
00069172 |
15/04/2008 |
Wanneroo Youth Centre Petty Cash |
$14.10 |
|
|
|
Petty Cash |
|
|
00069173 |
15/04/2008 |
Water Corporation |
$13,080.40 |
|
|
|
Water Charges For Yanchep Repeater Tower |
|
|
|
|
New/Redevelopment, Fire Service & Standard Water Service – Rangers Services |
|
|
|
|
Quoted Works - Connolly Dve Kinross |
|
|
00069174 |
15/04/2008 |
Yanchep Community House Petty Cash |
$71.40 |
|
|
|
Petty Cash |
|
|
00069175 |
15/04/2008 |
City of Wanneroo - Payroll Rates |
$2,390.50 |
|
|
|
Receipting Error - Debtor & Rates Property A/C 920 & P/N153304 |
|
|
00069176 |
15/04/2008 |
Synergy |
$6,678.10 |
|
|
|
3 x Ratepayer Financial Assistance ($488.10) |
|
|
|
|
Electricity Supplies For The City |
|
|
00069177 |
15/04/2008 |
Telstra |
$23,846.88 |
|
|
|
Internet/Phone/Mobile Phone Charges For The City |
|
|
|
|
1 x Ratepayer Financial Assistance ($200.00) |
|
|
00069178 |
15/04/2008 |
Australia Post |
$186.00 |
|
|
|
Charge For PO Box 314 – Human Resources |
|
|
00069179 |
15/04/2008 |
Western Power |
$102,726.95 |
|
|
|
Adjust Cables & Upgrade Streetlights - Alexander Drive, Landsdale |
|
|
00069180 |
15/04/2008 |
HOSTPLUS Superannuation Fund |
$233.80 |
|
|
|
Super Contributions For Staff |
|
|
00069181 |
15/04/2008 |
WESTSCHEME |
$2,048.60 |
|
|
|
Super Contributions For Staff |
|
|
00069182 |
15/04/2008 |
MLC Nominees Pty Limited |
$433.89 |
|
|
|
Super Contributions For Staff |
|
|
00069183 |
15/04/2008 |
The Industry Superannuation Fund |
$482.61 |
|
|
|
Super Contributions For Staff |
|
|
00069184 |
15/04/2008 |
1OOF Portfolio Service Superannuation |
$191.64 |
|
|
|
Super Contributions For Staff |
|
|
00069185 |
15/04/2008 |
Hainsworth Programme Development Petty Cash |
$134.95 |
|
|
|
Petty Cash |
|
|
00069186 |
15/04/2008 |
Integra Super |
$718.20 |
|
|
|
Super Contributions For Staff |
|
|
00069187 |
15/04/2008 |
Catholic Superannuation and Retirement Fund |
$163.20 |
|
|
|
Super Contributions For Staff |
|
|
00069188 |
15/04/2008 |
MTAA Superannuation Fund |
$418.63 |
|
|
|
Super Contributions For Staff |
|
|
00069189 |
15/04/2008 |
Wanneroo Adult Day Centre Petty Cash |
$49.10 |
|
|
|
Petty Cash |
|
|
00069190 |
15/04/2008 |
AustralianSuper |
$1,256.74 |
|
|
|
Super Contributions For Staff |
|
|
00069191 |
15/04/2008 |
REST Superannuation |
$1,310.03 |
|
|
|
Super Contributions For Staff |
|
|
00069192 |
15/04/2008 |
Asgard Elements Super |
$208.60 |
|
|
|
Super Contributions For Staff |
|
|
00069193 |
15/04/2008 |
Printing Industry Superannuation Fund |
$496.56 |
|
|
|
Super Contributions For Staff |
|
|
00069194 |
15/04/2008 |
PBTL - Lifetime Superannuation Fund |
$208.59 |
|
|
|
Super Contributions For Staff |
|
|
00069195 |
15/04/2008 |
Health Super Fund |
$105.49 |
|
|
|
Super Contributions For Staff |
|
|
00069196 |
15/04/2008 |
UniSuper Limited |
$177.49 |
|
|
|
Super Contributions For Staff |
|
|
00069197 |
15/04/2008 |
Finance Services Petty Cash |
$259.45 |
|
|
|
Petty Cash |
|
|
00069198 |
15/04/2008 |
AMREX Behaviour - Animal Behaviour Services |
$450.00 |
|
|
|
Handling & Assessment Seminars For Ranger Services 28/02/08 & 06/03/08 |
|
|
00069199 |
15/04/2008 |
Angus & Robertson Whitfords |
$446.42 |
|
|
|
Purchase Of Yanchep Library Book Stock |
|
|
00069200 |
15/04/2008 |
Art on the Move |
$440.00 |
|
|
|
Training - Exhibition Lighting - Attendees K Gough & A MacIntosh – Leisure Services |
|
|
00069201 |
15/04/2008 |
CCH Australia Ltd |
$163.00 |
|
|
|
Master OHS & Enviro Guide – Human Resources |
|
|
00069202 |
15/04/2008 |
Dell Australia Pty Ltd |
$10,367.39 |
|
|
|
10 Kits For Dell Monitors - Information Services |
|
|
|
|
Dell PC - Information Services |
|
|
00069203 |
15/04/2008 |
Dept of Environment & Conservation |
$200.00 |
|
|
|
Clearing Permit Application For Hartman Drive Darch |
|
|
00069204 |
15/04/2008 |
Diana Pagnacco |
$120.00 |
|
|
|
Bellydance Demonstration At Jenolan Way Family Day Care |
|
|
00069205 |
15/04/2008 |
DVM FENCING |
$308.00 |
|
|
|
Repair Fence In Madeley - Engineering Maintenance |
|
|
00069206 |
15/04/2008 |
Edgewater Veterinary Hospital |
$272.00 |
|
|
|
Veterinary Costs & Euthanasia Of 5 Dogs - Rangers |
|
|
00069207 |
15/04/2008 |
Greater Union Cinema |
$115.00 |
|
|
|
Book Of Tickets For School Holiday Program - Youth Services |
|
|
00069208 |
15/04/2008 |
Jenny Maughan |
$225.00 |
|
|
|
Puppet Show For Parents & Children - Wanneroo Library |
|
|
00069209 |
15/04/2008 |
Jumanga Olives |
$48.00 |
|
|
|
Token Gifts For Conservation Week Guest Speakers |
|
|
00069210 |
15/04/2008 |
Kmart Joondalup |
$148.85 |
|
|
|
CD's For Youth Room At Hainsworth Community Centre |
|
|
|
|
Sports Equipment - Community Services |
|
|
00069211 |
15/04/2008 |
Kott Gunning Lawyers |
$94.49 |
|
|
|
Legal Advice - Rangers Services |
|
|
00069212 |
15/04/2008 |
MacKay Urban Design |
$9,768.00 |
|
|
|
Professional Services For January & February 2008 Centres Design Code - Smart Growth |
|
|
|
|
Professional Services For March 2008 For Activity Centre Design Code - Smart Growth |
|
|
00069213 |
15/04/2008 |
Mindarie Regional Council |
$244,282.24 |
|
|
|
Refuse Disposal For The City |
|
|
00069214 |
15/04/2008 |
Non Organic Disposals |
$854.70 |
|
|
|
Disposal Of Rubble - Engineering Maintenance |
|
|
00069215 |
15/04/2008 |
Northern Suburbs Bailiff |
$59.00 |
|
|
|
Legal Fees - Rating Services |
|
|
00069216 |
15/04/2008 |
Office of The Public Advocate |
$90.00 |
|
|
|
Training Course For Jackie Eley |
|
|
00069217 |
15/04/2008 |
Ozzi Bugs |
$715.00 |
|
|
|
Entertainment For The Glow Show - Cultural Development |
|
|
00069218 |
15/04/2008 |
Promark Promotions |
$990.00 |
|
|
|
Drink Bottles For Fitness Challenge |
|
|
00069219 |
15/04/2008 |
Southern Scene |
$461.18 |
|
|
|
Book Purchases - Wanneroo Library |
|
|
00069220 |
15/04/2008 |
Specialised Security Shredding |
$10.84 |
|
|
|
Security Shredding - Information Management |
|
|
00069221 |
15/04/2008 |
Sports Power Kingsway |
$148.50 |
|
|
|
Equipment For Hainsworth Leisure Centre |
|
|
00069222 |
15/04/2008 |
Susanne Parker |
$447.43 |
|
|
|
Art Classes - March 2008 - Cultural Development |
|
|
00069223 |
15/04/2008 |
Total Steel of Aust Pty Ltd |
$348.70 |
|
|
|
Various Steel Products - Fleet Maintenance |
|
|
00069224 |
15/04/2008 |
Trevors Carpets |
$3,265.00 |
|
|
|
Elliot Park Community Facility Renewal Of Carpets |
|
|
00069225 |
15/04/2008 |
Wanneroo IGA |
$1,714.50 |
|
|
|
Food For Skate Competition - Community Services |
|
|
|
|
Groceries For Hainsworth Youth Program |
|
|
|
|
Groceries For Blast Of Youth Program |
|
|
|
|
Groceries For Hospitality Civic Centre Functions For February 2008 Invoices |
|
|
00069226 |
15/04/2008 |
Wedding Wells WA |
$125.00 |
|
|
|
Hire Of White Wishing Well - Economic Development |
|
|
00069227 |
16/04/2008 |
Councillor F Cvitan |
$583.33 |
|
|
|
Councillors Allowance |
|
|
00069228 |
16/04/2008 |
Cr Dorothy Newton |
$500.00 |
|
|
|
Councillors Allowance |
|
|
00069229 |
16/04/2008 |
Councillor Colin Hughes |
$583.33 |
|
|
|
Councillors Allowance |
|
|
00069230 |
16/04/2008 |
City of Wanneroo - Rates |
$283.33 |
|
|
|
Monthly Allowance Payment Of Rates – P/N136156 For Cr D Newton ($83.33) PN150893 For Mayor Kelly ($200.00) |
|
|
00069231 |
18/04/2008 |
Westland Settlements |
$300.00 |
|
|
|
Purchase Of Lot1552 On DP 55647 Vol 2674 Folio 690 (5) Ardea Way Tapping - Lonnegal Property Pty Ltd To CoW |
|
|
00069232 |
18/04/2008 |
Suncorp Metway |
$154,700.00 |
|
|
|
Purchase Of Lot 1522 On DP 55647 Vol 2674 Folio 690 (5) Ardea Way Tapping- Lonnegal Property Pty Ltd To CoW |
|
|
00069233 |
22/04/2008 |
Vikings Softball Club |
$100.00 |
|
|
|
Key Bond Refund |
|
|
00069234 |
22/04/2008 |
Wanneroo Giants Baseball Club |
$53.00 |
|
|
|
Key Bond Refund |
|
|
00069235 |
22/04/2008 |
M E Warsley |
$175.63 |
|
|
|
Rates Refund P/N203113 11 Bonnievale Terrace -Pension Rebate |
|
|
00069236 |
22/04/2008 |
A F Astone |
$458.81 |
|
|
|
Rates Refund P/N215148 37 Firenze Loop, Landsdale - Pension Rebate |
|
|
00069237 |
22/04/2008 |
S M Bennett-Bremner |
$107.80 |
|
|
|
Rates Refund P/N205931 38 Newgain Crescent, Carramar - Pension Rebate |
|
|
00069238 |
22/04/2008 |
Michael John Giles |
$491.20 |
|
|
|
Rates Refund P/N177667 42 St Barnabus Boulevard, Quinns Rocks - Overpayment Refund |
|
|
00069239 |
22/04/2008 |
Yanchep Red Hawks Cricket Club |
$53.00 |
|
|
|
Key Bond Refund |
|
|
00069240 |
22/04/2008 |
Rachael Wilson |
$20.00 |
|
|
|
Dog Registration Refund - Sterilised |
|
|
00069241 |
22/04/2008 |
Kathleen Chown |
$20.00 |
|
|
|
Dog Registration Refund - Sterilised |
|
|
00069242 |
22/04/2008 |
John & Jeanette Gordon |
$50.00 |
|
|
|
Dog Registration Refund - Sterilisation Rebate |
|
|
00069243 |
22/04/2008 |
Linda Sills |
$20.00 |
|
|
|
Dog Registration Refund - Sterilised |
|
|
00069244 |
22/04/2008 |
Mavis Devereux |
$12.50 |
|
|
|
Dog Registration Refund - Deceased |
|
|
00069245 |
22/04/2008 |
Karen Chee |
$6.00 |
|
|
|
Dog Registration Refund - Deceased |
|
|
00069246 |
22/04/2008 |
Megan McEwan |
$70.00 |
|
|
|
Dog Registration Refund - Sterilised & Sterilisation Rebate |
|
|
00069247 |
22/04/2008 |
Commissioner of State Revenue |
$8.36 |
|
|
|
Rates Refund P/N111105 21 Colne Way & P/N127388 39 Mereworth - Pension Rebate |
|
|
00069248 |
22/04/2008 |
Jean Reed |
$465.00 |
|
|
|
Refund Of Facility Bond |
|
|
00069249 |
22/04/2008 |
Mr A Williams |
$156.19 |
|
|
|
Rates Refund P/N215648 7 Scarfo App - Overpaid |
|
|
00069250 |
22/04/2008 |
JR Murray |
$300.00 |
|
|
|
Vehicle Crossing Subsidy |
|
|
00069251 |
22/04/2008 |
PJ & G Kilgallon |
$300.00 |
|
|
|
Vehicle Crossing Subsidy |
|
|
00069252 |
22/04/2008 |
DJ & KA Hoar |
$300.00 |
|
|
|
Vehicle Crossing Subsidy |
|
|
00069253 |
22/04/2008 |
DE & EJ Mainard |
$824.91 |
|
|
|
Rates Refund P/N 125321 43 Hollingsworth Avenue - Overpayment |
|
|
00069254 |
22/04/2008 |
Peard Cox Real Estate |
$512.37 |
|
|
|
Rates Refund P/N213079 24 Ormond Bend, Butler - Overpayment Refund |
|
|
00069255 |
22/04/2008 |
Megafield Investments |
$6.00 |
|
|
|
Building Application Refund - Overpayment |
|
|
00069256 |
22/04/2008 |
Australian Red Cross |
$500.00 |
|
|
|
Donation For Red Cross Calling Appeal |
|
|
00069257 |
22/04/2008 |
Allied Forklifts Pty Ltd |
$1,626.90 |
|
|
|
Work Platform And Harness - Waste Services |
|
|
00069258 |
22/04/2008 |
Angus & Robertson Whitfords |
$457.23 |
|
|
|
Book Purchases - Wanneroo Library |
|
|
00069259 |
22/04/2008 |
Atkins Electrical Supplies |
$72.68 |
|
|
|
Electrical Equipment - Parks Maintenance |
|
|
00069260 |
22/04/2008 |
Belmont Tool Centre |
$558.75 |
|
|
|
Parts - Fleet Maintenance |
|
|
00069261 |
22/04/2008 |
Bold Park Advisory Council Inc |
$400.00 |
|
|
|
Workshop For Wanneroo Primary School - Community Services |
|
|
00069262 |
22/04/2008 |
Botanic Golf |
$100.00 |
|
|
|
2 X $50 Gift Vouchers Prize For Response To Family Day Care Survey |
|
|
00069263 |
22/04/2008 |
Brighton Estate Residents Association |
$500.00 |
|
|
|
Honorarium To Conduct Catering For Fun Run |
|
|
00069264 |
22/04/2008 |
Chemistry Centre WA |
$242.00 |
|
|
|
Water Sampling - Health Services |
|
|
00069265 |
22/04/2008 |
Claire Bailey |
$16,500.00 |
|
|
|
1st Payment - Public Art Project - Accessible & Inclusive Playground |
|
|
00069266 |
22/04/2008 |
Collins Craft, School & Office Supplies |
$285.92 |
|
|
|
Craft Supplies - The Heights Community Centre |
|
|
00069267 |
22/04/2008 |
Crommelin |
$92.40 |
|
|
|
Cromshield Limestone - Building Maintenance |
|
|
00069268 |
22/04/2008 |
DVM FENCING |
$979.10 |
|
|
|
Supply Fencing Materials - Engineering Maintenance |
|
|
00069269 |
22/04/2008 |
Dymocks - Hay St |
$1,714.78 |
|
|
|
Book Purchases - Girrawheen Library |
|
|
00069270 |
22/04/2008 |
Fines Enforcement Registry |
$1,548.00 |
|
|
|
Lodgement Of 36 Infringement Records - Ranger Services |
|
|
00069271 |
22/04/2008 |
Gilead Estate |
$78.00 |
|
|
|
Token Gifts For Guest Speakers For Conservation Week |
|
|
00069272 |
22/04/2008 |
Hendies Hire Services |
$394.00 |
|
|
|
Equipment Hire For DPI Event 26/03/08 - Economic Development |
|
|
00069273 |
22/04/2008 |
Hermes Precisa Pty Ltd |
$14,037.11 |
|
|
|
Postage Charges For Wanneroo Corporate Calendar - Marketing |
|
|
00069274 |
22/04/2008 |
High Performance Printer Repairs |
$110.00 |
|
|
|
Printer Repair - Infrastructure Maintenance |
|
|
00069275 |
22/04/2008 |
Jane Coffey & Associates |
$990.00 |
|
|
|
Recruitment & Selection Workshop And Developing Position Descriptions – Human Resources |
|
|
00069276 |
22/04/2008 |
JB Precise Engineering |
$1,628.00 |
|
|
|
Vehicle Spare Parts - Fleet Maintenance |
|
|
00069277 |
22/04/2008 |
Joan Roberson |
$770.00 |
|
|
|
Art Lessons For Community Art - Cultural Development |
|
|
00069278 |
22/04/2008 |
John Roussis |
$450.00 |
|
|
|
9 Catering Platters For Gold Program |
|
|
00069279 |
22/04/2008 |
Kmart Joondalup |
$50.69 |
|
|
|
Equipment For Clarkson Youth Centre |
|
|
00069280 |
22/04/2008 |
L & L Design Services Pty Ltd |
$3,245.00 |
|
|
|
Proposed Traffic Management Design At Quinns Road - Infrastructure Planning |
|
|
00069281 |
22/04/2008 |
Mansell Pty Ltd |
$126.50 |
|
|
|
Rate Comparison Report - Corporate Services |
|
|
00069282 |
22/04/2008 |
Master Craft Painting Contractors |
$4,818.00 |
|
|
|
Paint Kingsway Football Club Toilets/Changerooms |
|
|
00069283 |
22/04/2008 |
Mindarie Regional Council |
$9,070.82 |
|
|
|
Refuse Disposal For The City |
|
|
00069284 |
22/04/2008 |
MM Electrical Merchandising |
$6,171.00 |
|
|
|
Underground Bore For Depot - Engineering |
|
|
00069285 |
22/04/2008 |
Northern Suburbs Bailiff |
$339.45 |
|
|
|
Legal Fees - Rating Services |
|
|
00069286 |
22/04/2008 |
Remix Mobile DJ's |
$150.00 |
|
|
|
DJ Services For National Youth Week - Community Services |
|
|
00069287 |
22/04/2008 |
Scape-ism |
$5,500.00 |
|
|
|
Aquamotion Public Art - Strategic Projects |
|
|
00069288 |
22/04/2008 |
Seabreeze Landscape Supplies |
$312.00 |
|
|
|
Sleepers - Fleet Maintenance |
|
|
00069289 |
22/04/2008 |
Sports Power Joondalup |
$90.00 |
|
|
|
Prizes For National Youth Week - Community Services |
|
|
00069290 |
22/04/2008 |
Sports Power Kingsway |
$108.00 |
|
|
|
Sporting Equipment - Leisure Services |
|
|
00069291 |
22/04/2008 |
State Library of WA |
$114.40 |
|
|
|
Lost/Damaged Book Charges - Library Charges |
|
|
00069292 |
22/04/2008 |
Stylus Tapes International |
$214.63 |
|
|
|
Marking Tape - Economic Development |
|
|
00069293 |
22/04/2008 |
WA Limestone Company |
$3,710.24 |
|
|
|
Road Works Materials - Engineering |
|
|
00069294 |
22/04/2008 |
Wanneroo IGA |
$779.30 |
|
|
|
Groceries Items For Various Functions |
|
|
00069295 |
22/04/2008 |
West Australian Newspapers Ltd |
$58.41 |
|
|
|
Death Notice - D Rocca - Marketing |
|
|
00069296 |
22/04/2008 |
Aboriginal Seniors Group Petty Cash |
$50.00 |
|
|
|
Petty Cash |
|
|
00069297 |
22/04/2008 |
Alexander Heights Adult Day Care Petty Cash |
$237.30 |
|
|
|
Petty Cash |
|
|
00069298 |
22/04/2008 |
Alinta Gas |
$10.60 |
|
|
|
Gas Supplies For Wanneroo Youth Centre 04/01-04/04/08 |
|
|
00069299 |
22/04/2008 |
Girrawheen Library Petty Cash |
$106.75 |
|
|
|
Petty Cash |
|
|
00069300 |
22/04/2008 |
Mr E Martin |
$416.60 |
|
|
|
Key Holder Payments |
|
|
00069301 |
22/04/2008 |
National Trust of Australia |
$116.50 |
|
|
|
Purchase CD's For Schools - Heritage Services |
|
|
00069302 |
22/04/2008 |
Quinns Rocks Adult Day Care Petty Cash |
$302.30 |
|
|
|
Petty Cash |
|
|
00069303 |
22/04/2008 |
Alexander Heights Community House Petty Cash |
$56.80 |
|
|
|
Petty Cash |
|
|
00069304 |
22/04/2008 |
Wanneroo Youth Centre Petty Cash |
$49.55 |
|
|
|
Petty Cash |
|
|
00069305 |
22/04/2008 |
Water Corporation |
$3,480.45 |
|
|
|
Water Charges For The City |
|
|
00069306 |
22/04/2008 |
Yanchep Two Rocks Library Petty Cash |
$51.95 |
|
|
|
Petty Cash |
|
|
00069307 |
22/04/2008 |
Youth Projects Petty Cash |
$117.75 |
|
|
|
Petty Cash |
|
|
00069308 |
22/04/2008 |
Zurich Client Service |
$235.38 |
|
|
|
Being Payroll Ded: F/Ending - 18/04/08 |
|
|
00069309 |
22/04/2008 |
City of Wanneroo - Payroll Rates |
$2,240.00 |
|
|
|
Being Payroll Ded: F/Ending - 18/04/08 |
|
|
00069310 |
22/04/2008 |
Cancelled |
|
|
00069311 |
22/04/2008 |
Cancelled |
|
|
00069312 |
22/04/2008 |
Mrs J Martin |
$366.64 |
|
|
|
Key Holder & Tennis Booking Officer Payment |
|
|
00069313 |
22/04/2008 |
Ms D Hetherington |
$349.96 |
|
|
|
Key Holder & Tennis Booking Officer Payment |
|
|
00069314 |
22/04/2008 |
Clarkson Library Petty Cash |
$205.20 |
|
|
|
Petty Cash |
|
|
00069315 |
22/04/2008 |
City of Wanneroo - Rates |
$701.50 |
|
|
|
P/N183865 - Payment For Leisure Services Receipted Against Rates As No Accompanying Documentation With Cheque |
|
|
00069316 |
22/04/2008 |
Yanchep District High School |
$45.25 |
|
|
|
Electricity Supply For Kindergarten - Contracts & Property |
|
|
00069317 |
22/04/2008 |
Mr J A Baker |
$124.98 |
|
|
|
Key Holder Payment |
|
|
00069318 |
22/04/2008 |
Dept For Planning And Infrastructure |
$588.90 |
|
|
|
Cycling Maps - Leisure Services |
|
|
|
|
Vehicles Ownership Searches – Rangers Services |
|
|
00069319 |
22/04/2008 |
Mrs J M Rafferty |
$266.64 |
|
|
|
Key Holder & Tennis Booking Officer Payment |
|
|
00069320 |
22/04/2008 |
Wanneroo Adult Day Centre Petty Cash |
$57.55 |
|
|
|
Petty Cash |
|
|
00069321 |
22/04/2008 |
Mr B A Waddell |
$83.32 |
|
|
|
Key Holder Payment |
|
|
00069322 |
22/04/2008 |
Kay Prentice |
$283.32 |
|
|
|
Key Holder &Tennis Booking Officer Payment |
|
|
00069323 |
22/04/2008 |
PBTL - Lifetime Superannuation Fund |
$77.51 |
|
|
|
Payroll Ded: F/Ending - 18/04/08 |
|
|
00069324 |
22/04/2008 |
Finance Services Petty Cash |
$372.40 |
|
|
|
Petty Cash |
|
|
00069325 |
22/04/2008 |
Kingsway Football & Sporting Club Inc |
$5,225.10 |
|
|
|
Reimbursement Of Club Utility Accounts For The Period 05/12/06-08/01/08 - Contracts & Property |
|
|
00069326 |
23/04/2008 |
City of Wanneroo |
$880.00 |
|
|
|
Cash Advance - Shortbreak For Carers Accommodation - Aged & Disability |
|
|
00069327 |
24/04/2008 |
Cancelled |
|
|
00069328 |
24/04/2008 |
Synergy |
$27,951.65 |
|
|
|
Power Supplies For The City |
|
|
|
|
6 x Ratepayer Financial Assistance ($757.90) |
|
|
00069329 |
29/04/2008 |
John Bloomfield Real Estate Pty Ltd |
$250.00 |
|
|
|
1 x Ratepayer Financial Assistance |
|
|
00069330 |
29/04/2008 |
Bravado Nominees Pty Ltd |
$2,009.70 |
|
|
|
Subdivision Bond Refund Lots 23-26 Pinjar Road Sinagra |
|
|
00069331 |
29/04/2008 |
Baha'i Faith Ridvan |
$340.00 |
|
|
|
Bond Refund |
|
|
00069332 |
29/04/2008 |
Sea Shepherd |
$565.00 |
|
|
|
Bond Refund |
|
|
00069333 |
29/04/2008 |
Ogaden Community Association |
$340.00 |
|
|
|
Bond Refund |
|
|
00069334 |
29/04/2008 |
J & S Archibald |
$194.49 |
|
|
|
Rates Refund PN205526 76 Camborne Parkway - Overpaid |
|
|
00069335 |
29/04/2008 |
VC Huynh & TKP Ho |
$431.88 |
|
|
|
Rates Refund PN200164 19 Welstead Way - Pension Rebate |
|
|
00069336 |
29/04/2008 |
LN Bell |
$215.71 |
|
|
|
Rates Refund P/N206648 32 Oakworth Meander -Pension Rebate |
|
|
00069337 |
29/04/2008 |
J & B Morris |
$456.24 |
|
|
|
Rates Refund P/N192177 20 Denfield Rise - Pension Rebate |
|
|
00069338 |
29/04/2008 |
JB Collins |
$451.34 |
|
|
|
Rates Refund P/N200862 12 Narrien Loop - Pension Rebate |
|
|
00069339 |
29/04/2008 |
SA Ambrosini |
$300.00 |
|
|
|
Vehicle Crossing Subsidy |
|
|
00069340 |
29/04/2008 |
L Bloxham & KA D'Ermilio |
$90.00 |
|
|
|
Vehicle Crossing Subsidy |
|
|
00069341 |
29/04/2008 |
BA Johns |
$300.00 |
|
|
|
Vehicle Crossing Subsidy |
|
|
00069342 |
29/04/2008 |
JC Lenzo |
$300.00 |
|
|
|
Vehicle Crossing Subsidy |
|
|
00069343 |
29/04/2008 |
Beacon Homes Pty Ltd |
$300.00 |
|
|
|
Vehicle Crossing Subsidy |
|
|
00069344 |
29/04/2008 |
KM Roe |
$210.50 |
|
|
|
Vehicle Crossing Subsidy |
|
|
00069345 |
29/04/2008 |
FA Britten |
$300.00 |
|
|
|
Vehicle Crossing Subsidy |
|
|
00069346 |
29/04/2008 |
A Spiteri & S Draca |
$300.00 |
|
|
|
Vehicle Crossing Subsidy |
|
|
00069347 |
29/04/2008 |
SJ Norris & J Pafumi |
$300.00 |
|
|
|
Vehicle Crossing Subsidy |
|
|
00069348 |
29/04/2008 |
Nada Jovicic |
$565.00 |
|
|
|
Bond Refund |
|
|
00069349 |
29/04/2008 |
Rob Biahgi |
$340.00 |
|
|
|
Refund Facility Hire Bond |
|
|
00069350 |
29/04/2008 |
Pro Active Strata Management |
$40.60 |
|
|
|
Refund Facility Hire |
|
|
00069351 |
29/04/2008 |
Angela Bibb |
$120.00 |
|
|
|
Refund Art Classes - Unable To Attend |
|
|
00069352 |
29/04/2008 |
Helen Kucel |
$200.00 |
|
|
|
Reimbursement Small Business Smart Business Voucher |
|
|
00069353 |
29/04/2008 |
JA Achard |
$485.68 |
|
|
|
Rates Refund P/N209581 22 Castledene Way - Pension Rebate |
|
|
00069354 |
29/04/2008 |
Saggio Properties Pty Ltd |
$408.14 |
|
|
|
Rates Refund P/N213348 22 Watkins Loop - Strata Title |
|
|
00069355 |
29/04/2008 |
Janet Herminia Guzman Vasquez & Mario German Arancibi Paez |
$300.00 |
|
|
|
Vehicle Crossing Subsidy |
|
|
00069356 |
29/04/2008 |
Aboriginal Seniors Group Petty Cash |
$50.00 |
|
|
|
Petty Cash |
|
|
00069357 |
29/04/2008 |
Alexander Heights Adult Day Care Petty Cash |
$255.50 |
|
|
|
Petty Cash |
|
|
00069358 |
29/04/2008 |
Building & Construction Industry |
$47,103.72 |
|
|
|
Building & Construction Levy Collections 01/04/08 - 15/04/08 |
|
|
00069359 |
29/04/2008 |
Accounts Services Petty Cash |
$211.75 |
|
|
|
Petty Cash |
|
|
00069360 |
29/04/2008 |
Landgate |
$627.35 |
|
|
|
Searches - Contracts & Property And Rating Services |
|
|
00069361 |
29/04/2008 |
Girrawheen Library Petty Cash |
$79.70 |
|
|
|
Petty Cash |
|
|
00069362 |
29/04/2008 |
Quinns Rocks Adult Day Care Petty Cash |
$272.70 |
|
|
|
Petty Cash |
|
|
00069363 |
29/04/2008 |
Rangers & Safety Services Petty Cash |
$224.85 |
|
|
|
Petty Cash |
|
|
00069364 |
29/04/2008 |
Alexander Heights Community House Petty Cash |
$47.15 |
|
|
|
Petty Cash |
|
|
00069365 |
29/04/2008 |
Synergy |
$7,491.70 |
|
|
|
Power Supplies For The City |
|
|
00069366 |
29/04/2008 |
Telstra |
$6,162.64 |
|
|
|
1 x Ratepayer Financial Assistance ($120.85) |
|
|
|
|
Internet & Data Usage To 09 April 08 |
|
|
00069367 |
29/04/2008 |
Dept Housing & works |
$200.00 |
|
|
|
1 x Ratepayer Financial Assistance |
|
|
00069368 |
29/04/2008 |
Dog Refunds - Customer Service Petty Cash |
$200.00 |
|
|
|
Petty Cash |
|
|
00069369 |
29/04/2008 |
Hainsworth Programme Development Petty Cash |
$142.60 |
|
|
|
Petty Cash |
|
|
00069370 |
29/04/2008 |
Wanneroo Adult Day Centre Petty Cash |
$40.20 |
|
|
|
Petty Cash |
|
|
00069371 |
29/04/2008 |
Finance Services Petty Cash |
$415.05 |
|
|
|
Petty Cash |
|
|
00069372 |
29/04/2008 |
Mrs K A Haunold |
$183.32 |
|
|
|
Key Holder &Tennis Booking Officer Payment |
|
|
00069373 |
29/04/2008 |
Northern Suburbs Bailiff |
$104.80 |
|
|
|
Legal Fees - Rating Services |
|
|
00069374 |
29/04/2008 |
WA Limestone Company |
$451.69 |
|
|
|
Delivery Of Bitumen Mix - Ocean Reef Rd |
|
|
|
|
|
|
|
|
|
Total Director Corporate Services Advance - Cheques |
$2,208,815.88 |
|
|
|
|
|
|
ELECTRONIC TRANSFER LISTING |
|||
|
00000718 |
01/04/2008 |
|
|
|
|
|
Australian Taxation Office PAYG Payments |
$4,083.00 |
|
|
|
Payroll Ded: Non Cycle Pay |
|
|
|
|
DG & MJ Le Cerf |
$565.34 |
|
|
|
Expenditure Reimbursement For March 2008 - Quinns Caravan Park Management |
|
|
|
|
FESA |
$2,241,439.10 |
|
|
|
ESL 07/08 Quarter 3 - Collected Through Rates |
|
|
|
|
LGIS Insurance Broking |
$13,500.43 |
|
|
|
Insurance - Motor Vehicle 30/06/06-30/06/07 - HR |
|
|
|
|
Mr John Love |
$377.99 |
|
|
|
Reimbursement - Cost Of Dinner At Human Resource Conference 2008 In London |
|
|
|
|
Mr Mark Dickson |
$60.00 |
|
|
|
Reimburse 90% Broadband Usage For M Dickson 01/03/08-01/04/08 |
|
|
|
|
Mr Robert Cramp |
$50.00 |
|
|
|
Telephone Subsidy - Waste Services |
|
|
|
|
Mrs Frances Bird |
$97.57 |
|
|
|
Reimbursement - Catering Items For Harmony Week - Community Links |
|
|
|
|
Ms Karen Caple |
$17.48 |
|
|
|
Reimburse 50% Broadband Usage For K Caple 01/03/08-31/03/08 |
|
|
|
|
Nick Del Borrello |
$3,811.50 |
|
|
|
Contract Labour - Fleet Maintenance |
|
|
|
|
|
|
|
00000719 |
01/04/2008 |
|
|
|
|
|
Councillor Robert Smithson |
$137.25 |
|
|
|
Monthly Allowance - Paid Weekly |
|
|
|
|
|
|
|
00000720 |
01/04/2008 |
|
|
|
|
|
3D Networks (Australia) Pty Ltd |
$2,604.76 |
|
|
|
PABX Premium - Maintenance Contract Site 2 Premium - Ashby Depot – IT Services |
|
|
|
|
Aarons Florist |
$73.50 |
|
|
|
Flowers - Congratulations To Cr Roberts - Mayors Office |
|
|
|
|
Action Lock Service |
$95.00 |
|
|
|
Locking Services - Waradale Community Centre |
|
|
|
|
Air Liquide WA Pty Ltd |
$297.10 |
|
|
|
Gas Cylinder Hire - Depot Stores |
|
|
|
|
All-Rubber Pty Ltd |
$66.00 |
|
|
|
Rubber Strips - Fleet Maintenance |
|
|
|
|
Amcap Distribution Centre |
$5,573.81 |
|
|
|
Vehicle Spare Parts - Fleet Maintenance |
|
|
|
|
Vehicle Spare Parts - Depot Stores |
|
|
|
|
Angus & Robertson Pty Ltd |
$842.86 |
|
|
|
Book Purchases - Wanneroo Library |
|
|
|
|
Book Purchases - Clarkson Library |
|
|
|
|
Arrow Recruitment |
$2,786.65 |
|
|
|
Temporary Labour Hire W/E 16/03/08 - Waste Services |
|
|
|
|
Aust Inst of Environmental Health |
$4,895.00 |
|
|
|
Health Conference - Attendees N Rayner, T Politis, C Fleming, J Chuah, V Stumpers, S Ali, N Gray, P Wesley & C Devereux |
|
|
|
|
Australian Institute of Management |
$1,210.00 |
|
|
|
Training - Word Intro 18/03/08 – Human Resources |
|
|
|
|
Australian Protection Services |
$5,814.77 |
|
|
|
Security Guards For Big Screen - Cultural Development |
|
|
|
|
Security For Summer Concert Series |
|
|
|
|
Badge Construction Pty Ltd |
$1,029,249.47 |
|
|
|
Progress Payment 7 Refurbishment Of Aquamotion - Strategic Projects |
|
|
|
|
Beaurepaires For Tyres |
$19,258.73 |
|
|
|
Tyre Fitting Services - Fleet Maintenance |
|
|
|
|
Belair Smash Repairs Pty Ltd |
$500.00 |
|
|
|
Insurance Excess For WN32158 – Human Resources |
|
|
|
|
BG & E Pty Ltd |
$1,797.68 |
|
|
|
Pedestrian Underpass, Pinjar Road - Infrastructure Projects |
|
|
|
|
BGC Concrete |
$167.86 |
|
|
|
Concrete - Engineering Maintenance |
|
|
|
|
Biobag Australasia Pty Ltd |
$14,641.00 |
|
|
|
Biofilm Biodegradable Dog Bags - Waste Services |
|
|
|
|
Bladon WA Pty Ltd |
$891.00 |
|
|
|
Promo Products - Human Resources |
|
|
|
|
Boral Construction Materials Group Ltd |
$1,028.71 |
|
|
|
Drainage Items For Various Locations - Engineering |
|
|
|
|
Bounce Away |
$129.80 |
|
|
|
Self Powering Blower For The Glow Show - Cultural Development |
|
|
|
|
Self Powering Blower - Summer Concert Series |
|
|
|
|
Bunnings Pty Ltd |
$1,573.93 |
|
|
|
Hardware Items For Various Departments |
|
|
|
|
Bynorm |
$837.76 |
|
|
|
Mower Spare Parts - Depot Stores |
|
|
|
|
Cafe Corporate |
$396.17 |
|
|
|
Servicing Of Coffee Machine - Marketing |
|
|
|
|
Capricorn Village Joint Venture |
$52,250.00 |
|
|
|
50% Contribution Toward The Dewars Track Survey Of The Track & Preparation Of Deposit Plan UXO Search - Ranger & Safety Services |
|
|
|
|
Cardiactive Pty Ltd - Health on the Move |
$3,146.00 |
|
|
|
Skin Cancer Checks – Human Resources |
|
|
|
|
Chef Excel Pty Ltd |
$1,346.10 |
|
|
|
Catering For Various Council Functions |
|
|
|
|
City Business Machines |
$1,280.80 |
|
|
|
Bluetooth Adaptor/Mobile Handset/Digital Camera & Accessories – IT Services |
|
|
|
|
Nokia 6233 Mobile Phone - Contracts & Property |
|
|
|
|
Clarkson Holden |
$37,172.00 |
|
|
|
New Vehicle Purchase - Holden Captiva WN32448 - Fleet Services |
|
|
|
|
Clean Sweep |
$18,131.67 |
|
|
|
Road Sweeping Services For The City |
|
|
|
|
Coca Cola Amatil Pty Ltd |
$320.88 |
|
|
|
Bottled Water For Hospitality |
|
|
|
|
Coffey Environments Pty Ltd |
$827.75 |
|
|
|
Consultancy - Flora & Vegetation Assessment - Infrastructure Projects |
|
|
|
|
Corporate Express |
$24,531.16 |
|
|
|
Stationery Purchases For The City For Feb08 |
|
|
|
|
Courier Australia |
$125.14 |
|
|
|
Courier Services - Rangers & Fleet |
|
|
|
|
Coventrys |
$1,249.34 |
|
|
|
Various Items - Fleet Maintenance |
|
|
|
|
Various Items - Depot Stores |
|
|
|
|
Various Items - Parks Maintenance |
|
|
|
|
Cummins South Pacific Pty Ltd |
$3,773.00 |
|
|
|
Various Parts - Depot Stores |
|
|
|
|
Daniels Sharpsmart Australia Pty Ltd |
$45.69 |
|
|
|
Sharps Disposal For Youth Outreach Services |
|
|
|
|
Denmoss Holdings |
$2,904.00 |
|
|
|
Temporary Fencing - Summer Concert Series |
|
|
|
|
Diamond Lock & Key |
$1,081.20 |
|
|
|
Locking Services - Padlock Abus - Depot Stores |
|
|
|
|
Locking Services - Yanchep Tower - Infrastructure Maintenance |
|
|
|
|
Diggers Bobcat Services |
$6,990.50 |
|
|
|
Supply/Install Limestone Edging At Banksia Community Centre |
|
|
|
|
Supply/Erect Limestone Signs At Various Locations - Infrastructure Maintenance |
|
|
|
|
Discus Digital Print |
$561.00 |
|
|
|
Family Day Care Roll Up Banner - Community Services |
|
|
|
|
E & MJ Rosher |
$614.00 |
|
|
|
Vehicle Spare Parts - Depot Stores |
|
|
|
|
Elliotts Irrigation Pty Ltd |
$4,610.59 |
|
|
|
Reticulation Items - Parks Maintenance |
|
|
|
|
Engineering Education Australia |
$550.00 |
|
|
|
Mentoring - H Singh - Course 13.03.08 |
|
|
|
|
Entyce Entertainments |
$510.00 |
|
|
|
DJ Service & Bubble Machine For Glow Show - Cultural Development |
|
|
|
|
Express Towing Services |
$264.00 |
|
|
|
Towing Services - Fleet Maintenance |
|
|
|
|
Five Star Fencing |
$330.00 |
|
|
|
Replace Damaged Fence - Infrastructure Maintenance |
|
|
|
|
Flextool |
$133.65 |
|
|
|
Spare Parts - Fleet Maintenance |
|
|
|
|
Forpark Australia |
$8,625.10 |
|
|
|
Play Structure - Infrastructure Maintenance |
|
|
|
|
Frediani Milk Wholesalers |
$450.75 |
|
|
|
Milk Deliveries For City |
|
|
|
|
FuelDistributors of WA Pty Ltd |
$984.94 |
|
|
|
Bio-Diesel For Waste Services |
|
|
|
|
Fyredanz |
$2,030.00 |
|
|
|
Entertainment For Summer Concert Series |
|
|
|
|
Gecko Contracting Turf & Landscape Maintenance |
$2,700.50 |
|
|
|
Carry Out Clean Up From Lake Area - Infrastructure Maintenance |
|
|
|
|
GHD Pty Ltd |
$5,132.60 |
|
|
|
New Civic Centre - Solar Feasibility Study |
|
|
|
|
New Civic Centre - BMS Upgrade |
|
|
|
|
Consultancy - Road Safety Audit Joondalup Drive - Infrastructure Projects |
|
|
|
|
GPR Truck Sales & Service |
$220.15 |
|
|
|
Steer Axle Alignment - Fleet Maintenance |
|
|
|
|
Grand Toyota Daihatsu |
$2,222.20 |
|
|
|
Various Vehicle Services - Fleet Maintenance |
|
|
|
|
Greenway Enterprises |
$1,599.68 |
|
|
|
Victorinox Leather Knife Pouch - Waste Services |
|
|
|
|
Various Equipment - Depot Stores |
|
|
|
|
Hanson Construction Materials Pty Ltd |
$1,442.10 |
|
|
|
Concrete Drainage Items - Engineering |
|
|
|
|
Hart Sport |
$167.10 |
|
|
|
Netball Bibs Navy+Royal - Netball Bibs Black+Maroon For Kingsway Stadium |
|
|
|
|
Hewlett Packard |
$3,300.00 |
|
|
|
VMWARE Infrastructure 3.5 Install &Configure – IT Services |
|
|
|
|
Hitachi Construction Machinery Pty Ltd |
$3,356.50 |
|
|
|
Vehicle Filters - Depot Stores |
|
|
|
|
Homecare Options |
$44,312.73 |
|
|
|
Support Services HACC/CACP Clients |
|
|
|
|
Hospitality Total Services |
$1,345.85 |
|
|
|
Consultancy - Wanneroo Cultural & Learning Centre - Contracts & Property |
|
|
|
|
Humes |
$269.79 |
|
|
|
Concrete Delivery - Engineering Services |
|
|
|
|
Hyster West |
$2,093.15 |
|
|
|
Forklift Hire For Waste Services |
|
|
|
|
Integrated Group Ltd - Accounts Receivable |
$57,766.36 |
|
|
|
Casual Labour For Various Departments |
|
|
|
|
JCA Dealer Services |
$567.50 |
|
|
|
Spare Parts - Fleet Maintenance |
|
|
|
|
Check Camera System - Fleet Maintenance |
|
|
|
|
John Stevens Carpentry |
$594.00 |
|
|
|
Brickpaving At Amery Park - Parks Maintenance |
|
|
|
|
Joondalup Drive Medical Centre |
$189.20 |
|
|
|
Medical Fees - Infrastructure Projects |
|
|
|
|
Lawrence & Hanson |
$46.20 |
|
|
|
Various Items - Depot Stores |
|
|
|
|
MacDonald Johnston Engineering Company Pty Ltd |
$3,749.72 |
|
|
|
Vehicle Spare Parts - Fleet Maintenance |
|
|
|
|
Vehicle Spare Parts - Depot Stores |
|
|
|
|
Major Motors |
$1,211.06 |
|
|
|
Spare Parts - Fleet Maintenance |
|
|
|
|
Vehicle Spare Parts - Depot Stores |
|
|
|
|
Mayday Earthmoving |
$10,268.50 |
|
|
|
Heavy Equipment Hire For The City |
|
|
|
|
Merriwa Supa IGA |
$17.36 |
|
|
|
Groceries - Community Services |
|
|
|
|
Messages On Hold |
$173.25 |
|
|
|
Phone Contract - Customer Services |
|
|
|
|
Mike Geary Signs |
$269.50 |
|
|
|
Sign For Murphy’s Muster Shed - Infrastructure Maintenance |
|
|
|
|
Mindarie Bus Charter Pty Ltd |
$495.00 |
|
|
|
Bus Hire For Gold Program Excursion |
|
|
|
|
Mobile Glass |
$8,537.69 |
|
|
|
Glazing Services For The City |
|
|
|
|
Mobile Laser Skirmish |
$880.00 |
|
|
|
Entertainment For Glow Show 22/3/08 |
|
|
|
|
Mustang Print & Copy |
$132.00 |
|
|
|
Printing Of Brochures - Fire Services |
|
|
|
|
National Hire Trading Pty Limited |
$2,325.21 |
|
|
|
Generator Hire - Cultural Development |
|
|
|
|
Backup Generator Services For Ashby & New Civic Centre |
|
|
|
|
North Lake Electrical Pty Ltd |
$360.61 |
|
|
|
Power Supply For Irrigation Equipment At Santedoro Park |
|
|
|
|
Northern Corridor Contracting |
$269.50 |
|
|
|
Install Firebreaks At Olivedale Gr & Bobcastle, Darch - Fire Services |
|
|
|
|
Northern Districts Pest Control |
$2,695.00 |
|
|
|
Pest Control Services For The City |
|
|
|
|
Northern Lawnmowers & Chainsaw Specialist |
$2,082.91 |
|
|
|
Spare Parts Fleet Maintenance |
|
|
|
|
OH & JM Edwards |
$159.50 |
|
|
|
GPS Units - Fire Services |
|
|
|
|
Optima Press |
$1,472.90 |
|
|
|
Printing Of FDC Newsletter – Children’s Services |
|
|
|
|
Printing Of Library Request Cards |
|
|
|
|
Printing Of Youth Art Competition |
|
|
|
|
Orchid Cove Pty Ltd |
$114.00 |
|
|
|
Dry Cleaning Services - Fire Services |
|
|
|
|
Pacific Brands |
$615.58 |
|
|
|
Staff Uniforms - Depot Stores |
|
|
|
|
Party Heaven |
$184.50 |
|
|
|
Balloons - Community Services |
|
|
|
|
Pax Books |
$446.81 |
|
|
|
Book Purchases - Girrawheen Library |
|
|
|
|
Perth Expo Hire |
$373.07 |
|
|
|
Hire Of Table & Chair For Careers & Employment - Human Resources |
|
|
|
|
Peter FARR Consultants Australasia Ltd |
$19,250.00 |
|
|
|
Incubator Study Part 1.3 - Economic Development |
|
|
|
|
Phoenix Motors of Wanneroo |
$37,245.84 |
|
|
|
New Vehicle Purchase Holden Captiva WN32619 - Fleet Services |
|
|
|
|
Pink Healthcare Services |
$1,912.96 |
|
|
|
Sanitary Services - Building Maintenance |
|
|
|
|
Pirtek Malaga Pty Ltd |
$418.06 |
|
|
|
Vehicle Hoses - Fleet Maintenance |
|
|
|
|
Podiatry Services |
$4,667.30 |
|
|
|
Podiatry Services For February 2008 |
|
|
|
|
Prestige Alarms |
$2,086.39 |
|
|
|
Alarm Services - Building Maintenance |
|
|
|
|
24Hr Monitoring Of Security Alarm Systems At 25 Sites 01/12/07 - 31/12/07 – Building Maintenance |
|
|
|
|
Pro Tramp Australia Pty Ltd |
$1,650.00 |
|
|
|
Pro-Jump & Moonwalker Hire For The Glow Show - Cultural Development |
|
|
|
|
Productive Plastics |
$572.00 |
|
|
|
Acrylic Cabinet - Heritage |
|
|
|
|
Proquip Machinery |
$165.00 |
|
|
|
Remove/Replace Wood Chipper Blades - Parks |
|
|
|
|
Protector Alsafe |
$3,696.22 |
|
|
|
Various Safety Items - Depot Stores |
|
|
|
|
Put on Happy Face - Face Painting |
$351.00 |
|
|
|
Entertainment For Summer Concert Series |
|
|
|
|
Qualcon Laboratories |
$264.00 |
|
|
|
Limestone Test At Ocean Drive, Quinns Rocks - Engineering |
|
|
|
|
RCG Pty Ltd |
$1,985.12 |
|
|
|
Disposal Of Rubble - Engineering |
|
|
|
|
Reclaim Industries Ltd |
$6,224.90 |
|
|
|
Softfall Surface - Banksia Grove Community Centre |
|
|
|
|
Reliance Petroleum |
$919.18 |
|
|
|
Fuel For Depot Stores |
|
|
|
|
Roads 2000 Pty Ltd |
$5,995.56 |
|
|
|
Roadworks At Various Locations - Engineering |
|
|
|
|
Royal Life Saving Society Australia |
$1,679.00 |
|
|
|
Hearbeat Club Booking - 04/03/08 |
|
|
|
|
First Aid Services For Summer Concert Series |
|
|
|
|
Rural Cinema |
$5,025.00 |
|
|
|
3 Day Hire Of Outdoor Cinema - Cultural Development |
|
|
|
|
Safetyquip |
$423.31 |
|
|
|
Knife & Glove Guards - Waste Services |
|
|
|
|
Sanax St Andrews Pharmacy |
$504.90 |
|
|
|
First Aid Supplies - Depot Stores |
|
|
|
|
Sealanes |
$1,468.12 |
|
|
|
Food/Beverages - Marketing |
|
|
|
|
Site Architecture Studio |
$6,600.00 |
|
|
|
Entry Statement, Gate House & Ticket Box At Showgrounds - Infrastructure Projects |
|
|
|
|
Solver Paints |
$456.37 |
|
|
|
Paint Supplies - Building Maintenance |
|
|
|
|
Paint Supplies - Safety Services |
|
|
|
|
Southcott Hydraulics |
$199.10 |
|
|
|
Spare Parts - Fleet Maintenance |
|
|
|
|
Spotlight Stores Pty Ltd |
$35.88 |
|
|
|
Various Items - Community Services |
|
|
|
|
Stampalia Contractors |
$5,167.80 |
|
|
|
Heavy Equipment Hire For The City |
|
|
|
|
Statewide Cleaning Supplies Pty Ltd |
$4,767.16 |
|
|
|
Cleaning Supplies - Depot Store |
|
|
|
|
Stewart & Heaton Clothing Company Pty Ltd |
$345.07 |
|
|
|
Uniforms - Fire Services |
|
|
|
|
Stress Free Maintenance |
$4,712.50 |
|
|
|
Building Surveyor Services For Feb/March 08 |
|
|
|
|
Sun City Newsagency |
$36.80 |
|
|
|
Newspapers For Yanchep Library |
|
|
|
|
Taldara Industries Pty Ltd |
$699.14 |
|
|
|
Catering Items For Various Departments |
|
|
|
|
TaxEd Pty Ltd |
$790.00 |
|
|
|
FBT 2008 - Who Wants To Be A Millionaire Training - Attendees J Zurbito & D Hattarki |
|
|
|
|
The Carers |
$57.75 |
|
|
|
Support Services HACC/CACP Clients |
|
|
|
|
The Printing Factory |
$1,297.34 |
|
|
|
Printing Of Requisition Books - Depot Stores |
|
|
|
|
TL Engineering Aust Pty Ltd |
$81.40 |
|
|
|
Parts =-Fleet Maintenance |
|
|
|
|
Total Eden Watering Systems |
$12.64 |
|
|
|
Reticulation Items - Parks Maintenance |
|
|
|
|
Total Road Services |
$1,722.60 |
|
|
|
Traffic Control - Ocean Drive, Quinns - Engineering |
|
|
|
|
T-Quip |
$4,216.90 |
|
|
|
Vehicle Spare Parts - Depot Stores |
|
|
|
|
Vehicle Spare Parts - Fleet Maintenance |
|
|
|
|
Turf Tec Australia |
$6,721.00 |
|
|
|
Parts - Fleet Maintenance |
|
|
|
|
Turfmaster Pty Ltd |
$2,074.60 |
|
|
|
Garden Bed Spraying - Parks Maintenance |
|
|
|
|
Wanneroo Agricultural Machinery |
$3,891.60 |
|
|
|
Vehicle Spare Parts - Depot Stores |
|
|
|
|
Vehicle Spare Parts - Fleet Maintenance |
|
|
|
|
Wanneroo Central Newsagency |
$2,888.14 |
|
|
|
Libraries Magazine Subscriptions |
|
|
|
|
Wanneroo Electric |
$4,901.45 |
|
|
|
Electrical Maintenance For The City |
|
|
|
|
Wanneroo Hardware |
$450.97 |
|
|
|
Hardware Items For Various Departments |
|
|
|
|
Wanneroo Plumbing |
$193.66 |
|
|
|
Plumbing Maintenance For The City |
|
|
|
|
Wanneroo Towing Service |
$66.00 |
|
|
|
Towing Abandoned Vehicles |
|
|
|
|
Wanneroo Trophy Shop |
$615.50 |
|
|
|
Name Badges For Various Staff |
|
|
|
|
Junior Rangers Trophies For Students & Teachers |
|
|
|
|
Waste Master |
$400.14 |
|
|
|
Parts For Fleet Maintenance |
|
|
|
|
West Australian Nursing Agency |
$1,521.96 |
|
|
|
Nurses For Immunisation Clinics - Health Services |
|
|
|
|
West Coast Suspensions |
$167.20 |
|
|
|
Spare Parts - Fleet Maintenance |
|
|
|
|
Western Educting Service Pty Ltd |
$1,123.38 |
|
|
|
Sweeping - Oceanic Dr & Pearce In Quinns Rocks |
|
|
|
|
Work Clobber |
$117.90 |
|
|
|
Staff Uniforms - Building & Health |
|
|
|
|
Workforce Alliance |
$5,539.61 |
|
|
|
Labour Hire For Waste Services |
|
|
|
|
Worldwide Online Printing |
$469.00 |
|
|
|
Printing - Cards - Carmen Taylor |
|
|
|
|
Printing Of Community Base stock Sheets - Community Services |
|
|
|
|
Printing Of Business Cards - Building & Health |
|
|
|
|
|
|
|
00000721 |
08/04/2008 |
|
|
|
|
|
A Team Printing Pty Ltd |
$308.00 |
|
|
|
Receipt Books - Library Services |
|
|
|
|
Actimed Australia |
$396.85 |
|
|
|
First Aid Supplies - Community Services |
|
|
|
|
Amazing Staging |
$3,300.00 |
|
|
|
Production Management - Summer Concert Series - Cultural Development |
|
|
|
|
Ambit Industries Pty Ltd |
$495.00 |
|
|
|
Fence Repair - Recycling Facility |
|
|
|
|
Amcap Distribution Centre |
$9.26 |
|
|
|
Vehicle Spare Parts – Depot Stores |
|
|
|
|
Armaguard |
$546.44 |
|
|
|
Safe Fee - Clarkson Library |
|
|
|
|
Artsource |
$141.00 |
|
|
|
Art Advertising - Cultural Development |
|
|
|
|
Australian Institute of Management |
$9,398.90 |
|
|
|
Various Training Courses Run By Human Resources For The City’s Employees |
|
|
|
|
Training - Executive Group Development 21/02/2008 – Attendees J Pollaers, J McNamara & M Dickson |
|
|
|
|
Training - Workshop For LGMA 05/03/2008 - 7 Participants |
|
|
|
|
Barrett Displays |
$1,623.60 |
|
|
|
Hire Of 36 Freestanding Black Display Panels - Economic Development |
|
|
|
|
Benara Nurseries |
$2,387.00 |
|
|
|
Plants - Parks |
|
|
|
|
Bolinda Publishing Pty Ltd |
$401.98 |
|
|
|
Book Purchases - Wanneroo Library |
|
|
|
|
Boral Construction Materials Group Ltd |
$554.27 |
|
|
|
Delivery Of Materials To Tendering Way Girrawheen |
|
|
|
|
BP Australia Ltd |
$4,603.65 |
|
|
|
Vehicle Oil - Depot Stores |
|
|
|
|
Bunnings Pty Ltd |
$115.34 |
|
|
|
Various Items – Leisure Services |
|
|
|
|
Various Items - Waste Services |
|
|
|
|
Cardno BSD Pty Ltd |
$520.52 |
|
|
|
Road Condition Assessment Services - Infrastructure Planning |
|
|
|
|
Caval Ltd |
$40.00 |
|
|
|
Seminar For Vernon Lee(Online Librarian) |
|
|
|
|
Chadson Engineering Pty Ltd |
$47.08 |
|
|
|
Tablets For Photometer - Environment Health Services |
|
|
|
|
Cherry's Catering |
$3,445.60 |
|
|
|
Catering For Various Council Functions |
|
|
|
|
Clean Sweep |
$165.00 |
|
|
|
Sweeping Services At Kingsway Netball Courts 03/06/07 |
|
|
|
|
Cobey Industries |
$195,059.81 |
|
|
|
Payment#1 - Kingsway Sporting Centre Redevelopment Stage 2 - Infrastructure Projects |
|
|
|
|
Coffey Environments Pty Ltd |
$840.13 |
|
|
|
Flora Survey - Lot 600 Orchid Road Neerabup - Contracts & Property |
|
|
|
|
Courier Australia |
$66.76 |
|
|
|
Courier Services - Fleet Maintenance |
|
|
|
|
Courier Services - Ranger Services |
|
|
|
|
Coventrys |
$21.82 |
|
|
|
Various Items - Fleet Maintenance |
|
|
|
|
Diamond Lock & Key |
$2,079.60 |
|
|
|
Padlocks/Keys - Depot Stores |
|
|
|
|
Locking Services - Building Maintenance |
|
|
|
|
Dianne Sigel (Art Teacher) |
$1,525.50 |
|
|
|
Art Classes - Term 1 Wk 1-4 2008 - Cultural Development |
|
|
|
|
Different By Design |
$220.00 |
|
|
|
Graphic Design Service - Marketing |
|
|
|
|
Digital Mapping Solutions - Perth |
$27,720.00 |
|
|
|
GIS Consulting Services - Information Technology |
|
|
|
|
Direct National Business Machines |
$104.50 |
|
|
|
Guillotine Service - Governance |
|
|
|
|
Dormar Indents |
$371.47 |
|
|
|
Supplies For Glow Show 22/03/08 - Cultural Development |
|
|
|
|
Dowsing Concrete |
$46,828.19 |
|
|
|
Install Concrete Footpaths At Various Locations |
|
|
|
|
Drive In Electrics |
$1,810.05 |
|
|
|
Vehicle Electrical Maintenance For The City |
|
|
|
|
Elliotts Irrigation Pty Ltd |
$1,310.02 |
|
|
|
Reticulation Items - Infrastructure Maintenance |
|
|
|
|
Entire IT |
$165.00 |
|
|
|
Computer Consulting - Marketing |
|
|
|
|
ERS Australia Pty Ltd |
$407.11 |
|
|
|
Parts Washer Service - Fleet Maintenance |
|
|
|
|
Forcorp Pty Ltd |
$3,646.50 |
|
|
|
LED Beacons - Depot Store |
|
|
|
|
Fortron Automotive Treatments Pty Ltd |
$396.00 |
|
|
|
Brake & Parts Cleaner - Depot Store |
|
|
|
|
Frediani Milk Wholesalers |
$2,508.90 |
|
|
|
Orange Juice Delivery - Citizenship Ceremony |
|
|
|
|
Milk Deliveries For The City |
|
|
|
|
Fuji Xerox Australia Pty Ltd |
$423.45 |
|
|
|
Various Type Copy Paper - Reprographics |
|
|
|
|
Geoffs Tree Service |
$32,389.74 |
|
|
|
Tree Pruning Services For The City |
|
|
|
|
Graffiti Systems Australia |
$8,301.70 |
|
|
|
Graffiti Removal From Various Locations |
|
|
|
|
Greenway Enterprises |
$110.00 |
|
|
|
Maxi Rake - Stores |
|
|
|
|
Hanson Construction Materials Pty Ltd |
$672.54 |
|
|
|
Concrete Drainage Items Delivered - Engineering |
|
|
|
|
Icon Office Technology |
$452.66 |
|
|
|
Photocopier Meter Reading - Infrastructure Planning |
|
|
|
|
Integrated Group Ltd - Accounts Receivable |
$8,744.32 |
|
|
|
Casual Labour For The City |
|
|
|
|
Joondalup Drive Medical Centre |
$83.60 |
|
|
|
Medical Fees - Parks Maintenance |
|
|
|
|
Knights |
$617.81 |
|
|
|
Animal Foodstuff – Rangers Services |
|
|
|
|
L & T Venables |
$1.11 |
|
|
|
Hardware Items - Fleet Services |
|
|
|
|
Local Government Community Development Association Of WA |
$550.00 |
|
|
|
Conference Registration – Attendee R Raymond |
|
|
|
|
MacDonald Johnston Engineering Company Pty Ltd |
$4,373.08 |
|
|
|
Vehicle Spare Parts - Fleet |
|
|
|
|
Vehicle Spare Parts - Depot Stores |
|
|
|
|
Mayday Earthmoving |
$1,112.10 |
|
|
|
Equipment Hire Vibe Roller - Engineering |
|
|
|
|
McLeods Barristers & Solicitors |
$634.70 |
|
|
|
Legal Fees: Community Services Professional Fees - Memorandum Of Understanding With City Of Stirling |
|
|
|
|
Merriwa Supa IGA |
$40.17 |
|
|
|
BBQ Food - Community Services |
|
|
|
|
Miracle Recreation Equipment Pty Ltd |
$1,265.00 |
|
|
|
Playground Equipment - Parks Maintenance |
|
|
|
|
Morley Mower Centre |
$1,220.10 |
|
|
|
Vehicle Spare Parts - Fleet Maintenance |
|
|
|
|
Motorlife |
$429.00 |
|
|
|
Aerosol Inox - Depot Store |
|
|
|
|
Newscape Contractors |
$25,756.40 |
|
|
|
Landscaping Services - North - Various Locations - Parks |
|
|
|
|
Northern Districts Pest Control |
$99.00 |
|
|
|
Pest Control Services For The City |
|
|
|
|
Optima Press |
$1,049.40 |
|
|
|
Printing - Community Funding Brochure - Governance |
|
|
|
|
Pacific Brands |
$815.94 |
|
|
|
Staff Uniforms – Depot Stores |
|
|
|
|
Party Plus |
$372.60 |
|
|
|
Chair Hire - Marketing |
|
|
|
|
Perth Home Care |
$104.00 |
|
|
|
Support Services HACC/CACP Clients |
|
|
|
|
Pirtek Malaga Pty Ltd |
$1,028.24 |
|
|
|
Vehicle Hoses - Fleet Maintenance |
|
|
|
|
Presidian Legal Publications |
$544.50 |
|
|
|
Training Privacy Officer Training Workshop 11/03/2008 – Attendee M Keady-McCallum |
|
|
|
|
Protector Alsafe |
$1,073.76 |
|
|
|
Various Items – Depot Stores |
|
|
|
|
R And R |
$444.40 |
|
|
|
Various Items – Depot Stores |
|
|
|
|
Ripe Art |
$599.50 |
|
|
|
Services & Supplies For Glow Show 22/03/08 - Cultural Development |
|
|
|
|
Roads 2000 Pty Ltd |
$30,245.79 |
|
|
|
Roadworks At Dundebar Road - Engineering |
|
|
|
|
Royal Life Saving Society Australia |
$100.00 |
|
|
|
Pool Lifeguard Requalification For Gary Choney |
|
|
|
|
Safetyquip |
$1,388.62 |
|
|
|
Shower & Eyewash Station - Waste Services |
|
|
|
|
Sanax St Andrews Pharmacy |
$883.48 |
|
|
|
First Aid Supplies - Depot Stores |
|
|
|
|
Stampalia Contractors |
$5,390.00 |
|
|
|
Water Truck Hire For Works At Ocean Reef Road |
|
|
|
|
Statewide Cleaning Supplies Pty Ltd |
$6,107.80 |
|
|
|
Cleaning Supplies - Depot Store |
|
|
|
|
Sunny Sign Company |
$1,114.30 |
|
|
|
Road Sign For "Abbotswood Drive" - Engineering Maintenance |
|
|
|
|
Park Name Sign - Infrastructure Projects |
|
|
|
|
Supercrane |
$336.60 |
|
|
|
Crane Repair - Fleet Maintenance |
|
|
|
|
Swan Tafe |
$242.05 |
|
|
|
Certificate III In Automotive Semester 1 2008 Enrolment Fees For Nathan MacLeod |
|
|
|
|
The Hire Guys Wangara |
$308.00 |
|
|
|
Dingo Mini Loader & Trench Digger - Parks |
|
|
|
|
Thiess Pty Ltd |
$528.00 |
|
|
|
6 Hrs Hire Cherry Picker Dundebar Rd - Parks |
|
|
|
|
Total Eden Watering Systems |
$26.55 |
|
|
|
Reticulation Items - Parks |
|
|
|
|
TPG Town Planning & Urban Design |
$23,474.00 |
|
|
|
Consultancy Services For The Wanneroo Town Centre |
|
|
|
|
Turfmaster Pty Ltd |
$2,420.00 |
|
|
|
Weed Control At San Teodoro Reserve - Parks |
|
|
|
|
Wacker Neuson Pty Ltd |
$91.08 |
|
|
|
Spare Parts - Fleet Maintenance |
|
|
|
|
Wanneroo Agricultural Machinery |
$546.44 |
|
|
|
Various Parts – Depot Stores |
|
|
|
|
Wanneroo Hardware |
$127.35 |
|
|
|
Hardware Purchases For Various Departments |
|
|
|
|
Wanneroo Plumbing |
$18,221.40 |
|
|
|
Plumbing Maintenance For The City |
|
|
|
|
Wanneroo Trophy Shop |
$116.00 |
|
|
|
BMX/Skate Trophies & Medals - Youth Services |
|
|
|
|
West Tip Waste Control Pty Ltd |
$9,837.30 |
|
|
|
West Tip Bins For Waste Services |
|
|
|
|
Westbooks |
$228.13 |
|
|
|
Book Purchases - Wanneroo Library |
|
|
|
|
Work Clobber |
$129.60 |
|
|
|
Staff Uniforms - Allan Murdoch - Waste Services |
|
|
|
|
Worklink |
$392.48 |
|
|
|
Ergonomic Assessment - Waste Services |
|
|
|
|
Worldwide Online Printing |
$895.00 |
|
|
|
Printing - Economic Development |
|
|
|
|
Yakka Pty Ltd |
$640.20 |
|
|
|
Corporate Uniforms For Various Employees |
|
|
|
|
|
|
|
00000722 |
08/04/2008 |
|
|
|
|
|
Australia Post |
$22,130.41 |
|
|
|
Billpay Fees For Rating Services |
|
|
|
|
Mail Preparation Dec07, Jan 08 & Mar08 |
|
|
|
|
Postage Charges For February 2008 |
|
|
|
|
Australian Manufacturing Workers Union |
$162.90 |
|
|
|
Payroll Ded: F/Ending 04/04/08 |
|
|
|
|
Australian Services Union |
$804.30 |
|
|
|
Payroll Ded: F/Ending 04/04/08 |
|
|
|
|
Australian Taxation Office PAYG Payments |
$254,663.00 |
|
|
|
Payroll Ded: F/Ending 04/04/08 |
|
|
|
|
Beatrix Rausch |
$502.90 |
|
|
|
Volunteer Payment - Podiatry Clinics |
|
|
|
|
Builders Registration Board |
$12,253.50 |
|
|
|
Collection Agency Fee March 08 |
|
|
|
|
CFMEU WA Branch |
$48.00 |
|
|
|
Payroll Ded: F/Ending 04/04/08 |
|
|
|
|
Child Support Agency |
$1,337.68 |
|
|
|
Payroll Ded: F/Ending 04/04/08 |
|
|
|
|
City of Wanneroo - Social Club |
$834.00 |
|
|
|
Payroll Ded: F/Ending 04/04/08 |
|
|
|
|
Councillor Laura Gray |
$1,319.06 |
|
|
|
Travel Allowance And Child Care Reimbursement |
|
|
|
|
Councillor Tracey Roberts |
$648.26 |
|
|
|
Travel Allowance Reimbursement |
|
|
|
|
DG & MJ Le Cerf |
$8,741.33 |
|
|
|
Expenditure Reimbursement Mar08, Reimbursement Of Eftpos Fees Jan/Feb08 &Contract Management Fees For Mar08- Quinns Caravan Park |
|
|
|
|
HBF Insurance |
$2,530.55 |
|
|
|
Payroll Ded: F/Ending 04/04/08 |
|
|
|
|
LGRCEU |
$2,000.80 |
|
|
|
Payroll Ded: F/Ending 04/04/08 |
|
|
|
|
Miss Claire Creamer |
$66.60 |
|
|
|
Reimbursement Of Stationery Costs For DPI Workshop 26/03/08 |
|
|
|
|
Mr Jason McFarlane |
$165.58 |
|
|
|
Reimbursement - Goods Purchased For DPI Workshop 26/03/08 |
|
|
|
|
Mr John Paton |
$10.00 |
|
|
|
Reimbursement - Broadband Usage For March 08 20% |
|
|
|
|
Nick Del Borrello |
$2,747.25 |
|
|
|
Contract Labour - Fleet Maintenance |
|
|
|
|
Councillor Robert Smithson |
$137.25 |
|
|
|
Monthly Allowance Paid Weekly |
|
|
|
|
Sanala Super Fund 72499AG01 |
$2,653.27 |
|
|
|
Payroll Ded: F/Ending 04/04/08 |
|
|
|
|
Selectus Salary Packaging |
$11,448.54 |
|
|
|
Payroll Ded: F/Ending 04/04/08 |
|
|
|
|
Stockland WA Development Pty Ltd |
$2,201.45 |
|
|
|
Reimburse Ashdale & Monaghan Park Electricity |
|
|
|
|
Trailer Parts Pty Ltd |
$186.31 |
|
|
|
Vehicle Spare Parts - Fleet |
|
|
|
|
|
|
|
00000723 |
14/04/2008 |
|
|
|
|
|
Edith Cowan University |
|
|
|
|
Professional Development Fees Semester One Managing Globally & Locally For Mayor J Kelly |
$1,900.00 |
|
|
|
|
|
|
00000724 |
15/04/2008 |
|
|
|
|
|
Abnormal Design |
$8,400.00 |
|
|
|
Commencement Of Contract For Perimeter Mural - Cultural Development |
|
|
|
|
Academy Clothing |
$52.80 |
|
|
|
Shirts For Ranger Services |
|
|
|
|
Accidental First Aid Supplies |
$665.60 |
|
|
|
First Aid Supplies - Human Resources |
|
|
|
|
Affirmative Paving |
$7,037.20 |
|
|
|
Install Paving At Stauton Park For Parks Maintenance |
|
|
|
|
Paving At Hainsworth Leisure Centre - Parks Maintenance |
|
|
|
|
AHG Paper & Magazine Delivery |
$13.50 |
|
|
|
Newspapers For Girrawheen Library |
|
|
|
|
Ambit Industries Pty Ltd |
$3,795.00 |
|
|
|
Depot Implement Shed For Building Maintenance |
|
|
|
|
Amcap Distribution Centre |
$248.60 |
|
|
|
Vehicle Spare Parts - Fleet Maintenance |
|
|
|
|
Vehicle Spare Parts - Stores Depot |
|
|
|
|
Arena Joondalup |
$621.65 |
|
|
|
Pool Hire For Aquamotion Dolphin Swim Program |
|
|
|
|
Armaguard |
$418.05 |
|
|
|
Cash Collection - Works Depot |
|
|
|
|
Australian Airconditioning Services Pty Ltd |
$8,226.08 |
|
|
|
Airconditioning Services For The City |
|
|
|
|
Australian Plant Wholesalers |
$165.00 |
|
|
|
Plants - Marketing |
|
|
|
|
Australian Protection Services |
$1,289.42 |
|
|
|
Security Officers Hire For Citizenship Ceremony |
|
|
|
|
Security For The Glow Show - Cultural Development |
|
|
|
|
Awesome Amusements |
$700.00 |
|
|
|
Arcade Game Hire - Community Services |
|
|
|
|
Beaurepaires For Tyres |
$159.00 |
|
|
|
Tyre Fitting Services - Fleet Maintenance |
|
|
|
|
Belair Smash Repairs Pty Ltd |
$500.00 |
|
|
|
Insurance Excess - WN32547 -HR |
|
|
|
|
Benara Nurseries |
$12,545.78 |
|
|
|
Plants - Parks Maintenance |
|
|
|
|
BGC Blokpave |
$4,415.35 |
|
|
|
Easipave - Cnr Pearce & Ocean Drive, Quinns Rocks |
|
|
|
|
Boffins Bookshop Pty Ltd |
$999.14 |
|
|
|
Book Purchases - Wanneroo Library |
|
|
|
|
Bolinda Publishing Pty Ltd |
$362.24 |
|
|
|
Book Purchases - Clarkson Library |
|
|
|
|
Boral Construction Materials Group Ltd |
$451.04 |
|
|
|
Drainage Items Delivered To 14 Stansted Crescent, Marangaroo |
|
|
|
|
Borders Australia Pty Ltd |
$3,896.96 |
|
|
|
Stock Purchases For Girrawheen Library |
|
|
|
|
Bounce Away |
$88.00 |
|
|
|
Bouncy Castle - Cancelled Booking Admin Fee |
|
|
|
|
BP Australia Ltd |
$210,947.10 |
|
|
|
Fuel Issues For March08 |
|
|
|
|
Break West Pty Ltd |
$8,348.30 |
|
|
|
Hire 2 Wheeled Loader - Waste Services |
|
|
|
|
Bring Couriers |
$393.07 |
|
|
|
Courier Services - Health Services |
|
|
|
|
Bunnings Pty Ltd |
$1,218.05 |
|
|
|
Hardware Purchases For Various Departments |
|
|
|
|
Bynorm |
$1,233.54 |
|
|
|
Mower Spare Parts - Depot Stores |
|
|
|
|
Cable Logic Pty Ltd |
$4,400.00 |
|
|
|
Cabling Services – IT Services |
|
|
|
|
Cadd Systems Pty Ltd |
$1,760.00 |
|
|
|
ACAD 2008 Network Licence - Information Service |
|
|
|
|
Carramar Resources Industries |
$2,212.67 |
|
|
|
Various Sand - Parks & Engineering Maintenance |
|
|
|
|
Carringtons Traffic Services |
$1,526.25 |
|
|
|
Traffic Control Services For The City |
|
|
|
|
CB Richard Ellis (C) Pty Ltd |
$3,190.00 |
|
|
|
Report & Valuation Fee Report & Valuation Fee For Lot 1 Mather Drive Neerabup |
|
|
|
|
CCI Legal Service Pty Ltd |
$182.60 |
|
|
|
Professional Services - HR |
|
|
|
|
CEMEX Australia Pty Ltd |
$166.10 |
|
|
|
Concrete Delivery To Pymore Crt Butler - Engineering |
|
|
|
|
Challenge Batteries WA |
$481.80 |
|
|
|
Vehicle Batteries - Depot Stores |
|
|
|
|
Vehicle Batteries - Fleet Maintenance |
|
|
|
|
Cherry's Catering |
$5,876.50 |
|
|
|
Catering - Sustainable House Eco Vision |
|
|
|
|
Catering - Reward & Recognition Dinner |
|
|
|
|
Chocolate Drops |
$88.00 |
|
|
|
Chocolate Demonstration - Yanchep Library |
|
|
|
|
City Business Machines |
$353.00 |
|
|
|
1 Nokia 6233 Mobile Handset - Health Services |
|
|
|
|
Coates Hire Operations Pty Ltd |
$7,688.92 |
|
|
|
Equipment Hire For Various Departments |
|
|
|
|
Community Newspapers |
$28,747.72 |
|
|
|
Advertising For February 2008 |
|
|
|
|
Computronics Corporation Ltd |
$1,171.50 |
|
|
|
Scoreboard & Indoor Multisport - Hainsworth Leisure Centre |
|
|
|
|
Coventrys |
$873.99 |
|
|
|
Various Items - Emergency Services |
|
|
|
|
Various Items - Fleet Maintenance |
|
|
|
|
Various Items - Depot Stores |
|
|
|
|
CSG Application Services |
$3,080.00 |
|
|
|
Crystal Reports II Training - Human Resources |
|
|
|
|
Cubic Solutions |
$98,379.60 |
|
|
|
Supply Materials For Drainage Upgrade - Ocean Dr |
|
|
|
|
Cutting Edges Pty Ltd |
$530.97 |
|
|
|
Spare Parts - Fleet Maintenance |
|
|
|
|
Dalcon Construction Pty Ltd |
$30,917.70 |
|
|
|
Animal Care Centre Additions Progress Payment 3 |
|
|
|
|
Daniels Sharpsmart Australia Pty Ltd |
$132.64 |
|
|
|
Sharpsmart Bins - Health Services |
|
|
|
|
DBS Fencing |
$143.00 |
|
|
|
Bulk Wire - Engineering Maintenance |
|
|
|
|
Diamond Lock & Key |
$256.25 |
|
|
|
Locking Services For Pumphouse Wanneroo Road & Joondalup Drive - Building Maintenance |
|
|
|
|
Downer EDI Engineering Electrical Pty Ltd |
$11,499.48 |
|
|
|
Install Traffic Signals Alexander Drive & Gnangara Road - Infrastructure Projects |
|
|
|
|
Drive In Electrics |
$1,093.00 |
|
|
|
Vehicle Electrical Repairs - Fleet Maintenance |
|
|
|
|
Eclipse Resources Pty Ltd |
$2,601.50 |
|
|
|
Disposal Of Rubble - Parks Maintenance |
|
|
|
|
Edgewater Communications |
$308.00 |
|
|
|
Service Call To Clarkson Library |
|
|
|
|
Call Out For Fax Machine – IT Services |
|
|
|
|
Elliotts Irrigation Pty Ltd |
$300.84 |
|
|
|
Reticulation Items - Parks Maintenance |
|
|
|
|
Entire IT |
$5,359.00 |
|
|
|
Apple MAC Computer Upgrade - Marketing |
|
|
|
|
ERS Australia Pty Ltd |
$608.30 |
|
|
|
Monthly Charge Parts Washer Service - Fleet Maintenance |
|
|
|
|
Essential Fire Services Pty Ltd |
$1,235.85 |
|
|
|
Testing Of The Fire Equipment For March 2008 At Various Locations - Building Maintenance |
|
|
|
|
Exceed Consulting (WA) Pty Ltd |
$396.00 |
|
|
|
Consultancy For Safety Audit - Infrastructure Projects |
|
|
|
|
Find Wise |
$157.30 |
|
|
|
Location Of Services Cnr Pearce & Ocean Drive - Engineering |
|
|
|
|
Forpark Australia |
$1,822.70 |
|
|
|
Wave Slide & Platform - Parks Maintenance |
|
|
|
|
Foundation Plastering |
$11,000.00 |
|
|
|
Plastering Works At Phil Renkin Recreation Centre |
|
|
|
|
Frediani Milk Wholesalers |
$486.90 |
|
|
|
Milk Deliveries For The City |
|
|
|
|
Fuji Xerox Australia Pty Ltd |
$253.00 |
|
|
|
Paper For Reprographics Printroom |
|
|
|
|
Gecko Contracting Turf & Landscape Maintenance |
$12,981.10 |
|
|
|
Streetscape Maintenance At Various Locations - Parks |
|
|
|
|
Geoffs Tree Service |
$2,442.00 |
|
|
|
Prune Vegetation From Firebreak At Marangaroo Golf Course - Parks Maintenance |
|
|
|
|
GHD Pty Ltd |
$36,574.11 |
|
|
|
Consultation - Kingsway Sporting Complex Stage 2 Construction |
|
|
|
|
Consultation - Hartman Dr Dual Carriageway Design & Documentation |
|
|
|
|
Gladstone MRM (Aust) Pty Ltd |
$21,483.00 |
|
|
|
Booking Systems - Information Services |
|
|
|
|
Training Sessions - Attendees M Butterly, L Clough, L King, J Colgan & I Ireland |
|
|
|
|
Graffiti Systems Australia |
$2,279.20 |
|
|
|
Graffiti Removal Various Locations |
|
|
|
|
Grand Toyota Daihatsu |
$1,129.05 |
|
|
|
Vehicle Services - Fleet Maintenance |
|
|
|
|
Green & Gold Hiab Services |
$729.30 |
|
|
|
Hire Of Hiab - Parks Maintenance |
|
|
|
|
Greenway Enterprises |
$84.70 |
|
|
|
Secateurs - Parks Maintenance |
|
|
|
|
Hanson Construction Materials Pty Ltd |
$2,310.00 |
|
|
|
Drainage Items Delivered To Various Locations - Engineering |
|
|
|
|
Heavy Automatics |
$9,319.20 |
|
|
|
Fit Exchange Transmission Fleet # 96015 - Fleet Maintenance |
|
|
|
|
Hitachi Construction Machinery Pty Ltd |
$261.78 |
|
|
|
Vehicle Filters - Depot Store |
|
|
|
|
Home Chef |
$389.08 |
|
|
|
Meals For HACC/CACP Clients |
|
|
|
|
Icon Office Technology |
$477.48 |
|
|
|
Photocopy Meter Reading For Various Departments |
|
|
|
|
Infection Control Engineering |
$701.80 |
|
|
|
Infection Control - Wanneroo Podiatry Clinic |
|
|
|
|
Integrated Group Ltd - Accounts Receivable |
$35,675.55 |
|
|
|
Casual Labour For Various Departments |
|
|
|
|
J & K Hopkins |
$227.00 |
|
|
|
Sterling Pantry For Quinns Adult Day Centre |
|
|
|
|
Jener8Direct |
$275.00 |
|
|
|
Outbound Telephone Campaign - Economic Development |
|
|
|
|
John Stevens Carpentry |
$935.00 |
|
|
|
Install Hardiflex To Brick Walls At Phil Renkin Recreation Centre - Building Maintenance |
|
|
|
|
Joondalup Drive Medical Centre |
$264.00 |
|
|
|
Medical Fees - Library Services |
|
|
|
|
Medical Fees - Waste Services |
|
|
|
|
Joondalup Photo Design |
$804.38 |
|
|
|
Photography - Citizenship 29/03/08 |
|
|
|
|
Photography Services - Community Services |
|
|
|
|
Photography Costs - Marketing |
|
|
|
|
Koorong |
$303.42 |
|
|
|
Stock Purchases - Girrawheen Library |
|
|
|
|
Kyocera Mita Aust P/L |
$13,187.56 |
|
|
|
Photocopier & Accessories - Information Services |
|
|
|
|
Photocopy Meter Reading For Various Departments |
|
|
|
|
Ladybirds Plant Hire |
$157.30 |
|
|
|
Indoor Plants Rental March - Customer Relations |
|
|
|
|
Lawn Doctor |
$220.00 |
|
|
|
Mowing - San Teodoro Park, Sinagra |
|
|
|
|
Local Government Community Development Association Of WA |
$550.00 |
|
|
|
Conference Registration Kathy Christoffelsz |
|
|
|
|
Lyons & Peirce |
$2,640.00 |
|
|
|
Hire Camel Truck & Operator - Engineering Maintenance |
|
|
|
|
Marquee Magic |
$2,726.68 |
|
|
|
Equipment Hire For Glow Show 22/03/08 |
|
|
|
|
Equipment Hire For Summer Concert3 01/03/08 |
|
|
|
|
Mayday Earthmoving |
$62,566.85 |
|
|
|
Heavy Equipment Hire For The City |
|
|
|
|
McLeods Barristers & Solicitors |
$16,278.04 |
|
|
|
Legal Fees ; Health Act Prosecution - Health Services |
|
|
|
|
Legal Fees; No Codes Approval - Building Services |
|
|
|
|
Legal Fees; Sat Review - Banksia Grove Development |
|
|
|
|
Legal Fees; Convenience Store Use Class |
|
|
|
|
Legal Fees; Soiland Sat Reviews - Planning |
|
|
|
|
Legal Fees: MOU For Sustainable Living Project - Building & Health |
|
|
|
|
Metrocount |
$55.00 |
|
|
|
Stainless Steel Security Strop - Infrastructure Planning |
|
|
|
|
Mey Equipment |
$80.45 |
|
|
|
Parts For Fleet Maintenance |
|
|
|
|
Mike Develter |
$350.00 |
|
|
|
Entertainment For Youth Art Awards - Cultural Development |
|
|
|
|
Mike Geary Signs |
$649.00 |
|
|
|
Sign - Dewars Track - Ranger Services |
|
|
|
|
Advertising Sign - Infrastructure Projects |
|
|
|
|
Mobile Glass |
$657.77 |
|
|
|
Glazing Services For The City |
|
|
|
|
Morley Mower Centre |
$220.60 |
|
|
|
Vehicle Spare Parts - Fleet Maintenance |
|
|
|
|
Mr Rollershutter |
$126.50 |
|
|
|
Service Call - Quinns Rock Child Health Clinic |
|
|
|
|
Natural Wings Aerial Dance |
$400.00 |
|
|
|
Entertainment For Glow Show 22/03/08 - Cultural Development |
|
|
|
|
Newscape Contractors |
$22,790.06 |
|
|
|
Landscaping Services For Parks Maintenance |
|
|
|
|
NewsXpress Ocean Keys |
$27.00 |
|
|
|
Newspapers/Periodicals - Clarkson Library |
|
|
|
|
Northern Districts Pest Control |
$1,881.00 |
|
|
|
Pest Control Services For The City |
|
|
|
|
Novus Autoglass |
$1,373.03 |
|
|
|
Supply/Fit Windscreen - Various Plant |
|
|
|
|
Nuford |
$195.00 |
|
|
|
Repairs To Fleet WN32368 - Fleet Maintenance |
|
|
|
|
Oakvale Capital Limited |
$2,200.00 |
|
|
|
Investment Advisory & Reporting Fee - Financial Services |
|
|
|
|
Optima Press |
$27.50 |
|
|
|
Printing Of Council Letterheads - Marketing |
|
|
|
|
Palis Sound and Lighting |
$1,084.50 |
|
|
|
Hire Of Audio Visual Equipment - Marketing |
|
|
|
|
Pax Books |
$758.32 |
|
|
|
Book Purchases - Wanneroo Library |
|
|
|
|
Perlex Holdings |
$985.00 |
|
|
|
Clarkson Open Day Activities - Community Services |
|
|
|
|
Perth Audiovisual |
$220.00 |
|
|
|
Audio Equipment - Infrastructure Planning |
|
|
|
|
Peter McNabb and Associates Pty Ltd |
$3,916.00 |
|
|
|
Professional Services Contract - Smart Growth Fourth Progress Claim For Professional Services Related To The Review Of City Of Wanneroo Centres Strategy |
|
|
|
|
Phone Control Australia |
$1,045.00 |
|
|
|
1 Year Support For PABX - IT 19/03/08-19/03/09 |
|
|
|
|
Pirtek Malaga Pty Ltd |
$1,041.03 |
|
|
|
Vehicle Hoses - Fleet Maintenance |
|
|
|
|
Preservation Services |
$547.20 |
|
|
|
Copying & Producing Archival Prints - Heritage Services |
|
|
|
|
Prestige Alarms |
$77.00 |
|
|
|
Call Out To Cockman House |
|
|
|
|
Protector Alsafe |
$2,711.88 |
|
|
|
Various Items - Depot Stores |
|
|
|
|
Various Items - Waste Services |
|
|
|
|
Qualcon Laboratories |
$495.00 |
|
|
|
Testing Of Limestone - Ocean Reef Road |
|
|
|
|
Quality Drycleaning |
$70.00 |
|
|
|
Curtains For Addison Park Clubroom - Building Maintenance |
|
|
|
|
Raeco International Pty Ltd |
$451.25 |
|
|
|
Book Purchases - Girrawheen Library |
|
|
|
|
Recall Total Information Management |
$875.06 |
|
|
|
Recall Services 24/02/08 - 22/03/08 - Records |
|
|
|
|
Red Hot Parcel Taxi |
$213.50 |
|
|
|
Courier Services - Fleet Maintenance |
|
|
|
|
Repco - Bayswater |
$97.08 |
|
|
|
Booster Part For Fleet Maintenance |
|
|
|
|
Roads 2000 Pty Ltd |
$3,873.10 |
|
|
|
Road Works At Various Locations - Engineering |
|
|
|
|
Royal Life Saving Society Australia |
$1,518.00 |
|
|
|
Private Swimming Pool Barrier Inspections - Building & Health Services |
|
|
|
|
Safetyquip |
$122.09 |
|
|
|
Warning Sign - Economic Development |
|
|
|
|
SAI Global Ltd |
$71.20 |
|
|
|
Supply Australian Standard - Infrastructure Planning |
|
|
|
|
Schindler Lifts Aust Pty Ltd |
$2,527.03 |
|
|
|
Lift/Escalator Services - Building Maintenance |
|
|
|
|
Sebel Furniture Ltd |
$7,493.64 |
|
|
|
Chairs - Leisure Services |
|
|
|
|
Sign A Rama |
$363.00 |
|
|
|
Name Engraved Name Plates - Human Resources |
|
|
|
|
Skipper Trucks Belmont |
$458.50 |
|
|
|
Vehicle Services - Fleet Maintenance |
|
|
|
|
Solver Paints |
$87.24 |
|
|
|
Paint Supplies - Building Maintenance |
|
|
|
|
SoundFusion Entertainment |
$2,500.00 |
|
|
|
Hire Fees For CoW Function 01/06/08 |
|
|
|
|
Spotlight Stores Pty Ltd |
$39.32 |
|
|
|
Various Items - Community Services |
|
|
|
|
Stanhope Healthcare Services Pty Ltd |
$72.88 |
|
|
|
Support Services HACC Clients |
|
|
|
|
Stewarts Laundry Service |
$202.05 |
|
|
|
Laundry Services - Marketing |
|
|
|
|
Sun City News |
$902.00 |
|
|
|
Advertising Services For The City |
|
|
|
|
The Electric Stoveman |
$150.00 |
|
|
|
Wanneroo Recreation Centre Replace Fuse In Oven |
|
|
|
|
The Pool Table Man |
$96.25 |
|
|
|
Pool Table Accessories - Community Services |
|
|
|
|
The Pursuits Group |
$921.25 |
|
|
|
Support Services HACC/CACP Clients |
|
|
|
|
Total Road Services |
$3,542.81 |
|
|
|
Traffic Control Services For The City |
|
|
|
|
T-Quip |
$5,816.75 |
|
|
|
Vehicle Spare Parts - Fleet Maintenance |
|
|
|
|
Tranen Pty Ltd |
$1,009.25 |
|
|
|
Supply Of Seeds - Conservation Maintenance |
|
|
|
|
Turfmaster Pty Ltd |
$495.00 |
|
|
|
Kingsway Rugby & Warradale Park Fertilizing |
|
|
|
|
Twist Engineering Pty Ltd |
$2,431.00 |
|
|
|
Winston Park Irrigation Design - Infrastructure Projects |
|
|
|
|
Universal Diggers |
$511.50 |
|
|
|
Rockbreaker Hire - Kingsbridge Park, Butler |
|
|
|
|
Variflow |
$163.90 |
|
|
|
Vandal Proof Door Grill New Civic Centre - Building Maintenance |
|
|
|
|
Visimax |
$334.00 |
|
|
|
Jumpers And Vests - Ranger Services |
|
|
|
|
WA Local Government Assoc |
$32,300.68 |
|
|
|
Advertising Services For The City |
|
|
|
|
Wanneroo Agricultural Machinery |
$1,051.70 |
|
|
|
Various Parts - Fleet Maintenance |
|
|
|
|
Hire Of Tractor & Posthole Digger - Parks Maintenance |
|
|
|
|
Wanneroo Caravan Centre & Steel Fabricators |
$1,517.34 |
|
|
|
Steel Fabrication Works - Parks Maintenance |
|
|
|
|
Wanneroo Central Newsagency |
$690.05 |
|
|
|
Newspapers For Wanneroo Library |
|
|
|
|
Wanneroo Electric |
$16,364.61 |
|
|
|
Electrical Maintenance For The City |
|
|
|
|
Wanneroo Hardware |
$263.94 |
|
|
|
Hardware Purchases For Various Departments |
|
|
|
|
Wanneroo Trophy Shop |
$11.00 |
|
|
|
Name Badge - Human Resources |
|
|
|
|
West Australian Nursing Agency |
$1,176.05 |
|
|
|
Immunisation Program - Health Services |
|
|
|
|
Western Irrigation |
$83,907.51 |
|
|
|
Bore Facility Tests - Infrastructure Projects |
|
|
|
|
Service Pumping Equipment And Redevelop Bore At Aldersea Park & Mirto Rise |
|
|
|
|
Irrigation Services - Parks Maintenance |
|
|
|
|
Wilsons Sign Solutions |
$1,485.00 |
|
|
|
Fabrication Of Frame To Support Clarkson Library Sign - Building Maintenance |
|
|
|
|
Woodhouse Legal |
$352.00 |
|
|
|
Legal Fees - Contracts & Property |
|
|
|
|
Work Clobber |
$257.40 |
|
|
|
Staff Uniforms - Ranger Services |
|
|
|
|
Worldwide Online Printing |
$325.50 |
|
|
|
Printing - Business Cards For Various Employees |
|
|
|
|
WT Partnership Australia Pty Ltd |
$3,300.00 |
|
|
|
Quantity Surveying Services For Aquamotion Refurbishment |
|
|
|
|
Yakka Pty Ltd |
$314.60 |
|
|
|
Corporate Uniform - Jan Salvati |
|
|
|
|
|
|
|
00000725 |
15/04/2008 |
Cancelled |
|
|
|
|
|
|
|
00000726 |
15/04/2008 |
|
|
|
|
|
Laughter Works Australia |
$900.00 |
|
|
|
Deposit Due For Juggling Workshops In July 2008 - Library Services |
|
|
|
|
|
|
|
00000727 |
15/04/2008 |
|
|
|
|
|
Austral Mercantile Collections Pty Ltd |
$1,979.97 |
|
|
|
Commissions & Legal Fees For Debtors Recovery |
|
|
|
|
Australia Post |
$11,039.26 |
|
|
|
Postage Charges - March Lodgements |
|
|
|
|
Postage Account For March 2008 |
|
|
|
|
Australian Taxation Office PAYG Payments |
$10,068.00 |
|
|
|
Payroll Ded: Non Cycle Pay |
|
|
|
|
Generations Personal Super |
$581.97 |
|
|
|
Employee Super Ded: Payroll |
|
|
|
|
Miss Sabrina Bruni |
$92.90 |
|
|
|
Reimbursement - Materials For Community Event - Glowshow |
|
|
|
|
Mr Christopher Hunt |
$161.76 |
|
|
|
Reimbursement - Catering Items For Team Building Day |
|
|
|
|
Mrs Charlotte Mostert |
$345.00 |
|
|
|
Reimbursement - Cinema Tickets For Staff Rewards |
|
|
|
|
Navigator Applications Account |
$154.38 |
|
|
|
Employee Super Ded: Payroll |
|
|
|
|
Snowbird Gardens Superannuation Fund |
$266.34 |
|
|
|
Employee Super Ded: Payroll |
|
|
|
|
TPS Retirement Fund |
$244.78 |
|
|
|
Employee Super Ded: Payroll |
|
|
|
|
Trust Company Superannuation Service Limited |
$159.13 |
|
|
|
Employee Super Ded: Payroll |
|
|
|
|
WA Local Govt Superannuation |
$562,112.52 |
|
|
|
Employee Super Ded: Payroll |
|
|
|
|
|
|
|
00000728 |
16/04/2008 |
|
|
|
|
|
Councillor Anh Truong |
$583.33 |
|
|
|
Monthly Allowance |
|
|
|
|
Councillor Alan Blencowe |
$583.33 |
|
|
|
Councillors Allowance |
|
|
|
|
Councillor Brett Treby |
$1,833.33 |
|
|
|
Monthly Allowance |
|
|
|
|
Councillor Glynis Monks |
$583.33 |
|
|
|
Monthly Allowance |
|
|
|
|
Councillor Ian Goodenough |
$583.33 |
|
|
|
Monthly Allowance |
|
|
|
|
Councillor Laura Gray |
$583.33 |
|
|
|
Councillors Allowance |
|
|
|
|
Councillor Paul Miles |
$583.33 |
|
|
|
Monthly Allowance |
|
|
|
|
Councillor Rudi Steffens |
$583.33 |
|
|
|
Monthly Allowance |
|
|
|
|
Councillor Tracey Roberts |
$583.33 |
|
|
|
Councillors Allowance |
|
|
|
|
Councillor Maureen Grierson |
$583.33 |
|
|
|
Monthly Allowance |
|
|
|
|
Mayor J Kelly |
$5,966.67 |
|
|
|
Mayoral Allowance |
|
|
|
|
Councillor Robert Smithson |
$137.25 |
|
|
|
Monthly Allowance - Paid Weekly |
|
|
|
|
|
|
|
00000729 |
17/04/2008 |
|
|
|
|
|
Recycling Design & Technologies (Aust) Pty Ltd |
$84,238.00 |
|
|
|
Install Work Enclosures To Plastic & Glass Work Stations At MRF - Waste Services |
|
|
00000730 |
22/04/2008 |
|
|
|
|
|
360 Environmental Pty Ltd |
$60,164.50 |
|
|
|
Contamination Site Assessment - Wangara Industrial Sump - Infrastructure Planning |
|
|
|
|
3D Networks (Australia) Pty Ltd |
$324.50 |
|
|
|
Service Call To PABX - Information Services |
|
|
|
|
Abacus Cash Systems Pty Ltd |
$764.50 |
|
|
|
Coin Counter/Sorter Purchase - Clarkson Library |
|
|
|
|
Accidental First Aid Supplies |
$1,083.60 |
|
|
|
First Aid Supplies - Waste Services |
|
|
|
|
First Aid Supplies - Youth Services |
|
|
|
|
Action Lock Service |
$22.00 |
|
|
|
Locking Services - Building Maintenance |
|
|
|
|
Affirmative Paving |
$723.80 |
|
|
|
Lift/Relay Paving - Carinda Pl - Infrastructure Maintenance |
|
|
|
|
Akwaaba African Art and Craft |
$385.00 |
|
|
|
Drumming Workshop - Youth Services |
|
|
|
|
Alance Newspaper and Magazine Deliveries |
$72.00 |
|
|
|
Newspapers For Clarkson Library |
|
|
|
|
Alison Cunningham |
$420.00 |
|
|
|
Art Classes - Cultural Development |
|
|
|
|
Amcap Distribution Centre |
$1,789.11 |
|
|
|
Vehicle Spare Parts - Fleet Maintenance |
|
|
|
|
Vehicle Spare Parts - Depot Stores |
|
|
|
|
Angus & Robertson Pty Ltd |
$297.96 |
|
|
|
Book Purchases - Clarkson Library |
|
|
|
|
Armaguard |
$214.29 |
|
|
|
Cash Collections - Leisure Services |
|
|
|
|
Arrow Recruitment |
$3,019.89 |
|
|
|
Labour Hire 23/08/08 - Waste Services |
|
|
|
|
Art on the Move |
$132.00 |
|
|
|
Training - Lighting Workshop 22/02/08 – Attendee K Gough |
|
|
|
|
Australian Institute of Management |
$10,763.50 |
|
|
|
Training - 15 Participants Innovation & Change-Making Change Happen 13/03/2008 |
|
|
|
|
Training - Coaching & Mentoring Skills 06/03/08 & 19/03/08 – Human Resources |
|
|
|
|
Training - Excel Introduction 08-04-08 – Human Resources |
|
|
|
|
Australian Plant Wholesalers |
$846.45 |
|
|
|
Plants - Parks |
|
|
|
|
Australian Turf Industries |
$54,795.62 |
|
|
|
Maintenance Works March 08 For Carramar & Marangaroo Golf Courses |
|
|
|
|
Autosmart WA North Metro |
$665.50 |
|
|
|
Truck Wash - Fleet Maintenance |
|
|
|
|
AUZspec |
$151.00 |
|
|
|
Left Hand Mouse - Rates Services |
|
|
|
|
Badge Construction Pty Ltd |
$908,802.96 |
|
|
|
Progress Payment 9 For Butler Community Centre |
|
|
|
|
Professional Services For Aquamotion Aquatic Centre - Projects |
|
|
|
|
Baileys Fertilisers |
$907.50 |
|
|
|
Fertiliser - Parks Maintenance |
|
|
|
|
Beaurepaires For Tyres |
$41,760.68 |
|
|
|
Tyre Fitting Services - Fleet Maintenance |
|
|
|
|
Benara Nurseries |
$136.51 |
|
|
|
Plants - Parks |
|
|
|
|
Berendsen Fluid Power |
$795.85 |
|
|
|
Spare Parts - Fleet Maintenance |
|
|
|
|
Beryl Weston |
$60.00 |
|
|
|
Cleaning Of Alexander Centre Hall |
|
|
|
|
Bill Express |
$6,799.93 |
|
|
|
Commission On Rates - Finance |
|
|
|
|
Blyth Enterprises |
$37.95 |
|
|
|
Castors For Desk In Chambers - Information Management |
|
|
|
|
Boral Construction Materials Group Ltd |
$3,458.53 |
|
|
|
Drainage Items - Engineering |
|
|
|
|
Boya Equipment |
$884.56 |
|
|
|
Vehicle Spare Parts - Fleet Maintenance |
|
|
|
|
Break West Pty Ltd |
$6,006.00 |
|
|
|
Hire Of Loader - Waste Services |
|
|
|
|
BT Equipment Pty Ltd |
$573.93 |
|
|
|
Parts - Fleet Maintenance |
|
|
|
|
Bunnings Pty Ltd |
$237.08 |
|
|
|
Various Items - Community Services |
|
|
|
|
CA Technology Pty Ltd |
$10,857.00 |
|
|
|
PES Annual Licence Fee July 07 - June 2008 – Human Resources |
|
|
|
|
Cabcharge |
$106.46 |
|
|
|
Cabcharge Services- Welfare |
|
|
|
|
Cable Logic Pty Ltd |
$4,906.00 |
|
|
|
Cabling Services For I T |
|
|
|
|
Carringtons Traffic Services |
$990.00 |
|
|
|
Traffic Control At Camira Street - Engineering |
|
|
|
|
CBC Bearings WA Pty Ltd |
$116.51 |
|
|
|
Parts - Fleet Maintenance |
|
|
|
|
Challenge Batteries WA |
$600.60 |
|
|
|
Vehicle Batteries - Fleet Maintenance |
|
|
|
|
Chamber of Commerce & Industry |
$1,895.00 |
|
|
|
Professional Fees - Visa Application For J Munson - Economic Development |
|
|
|
|
Chef Excel Pty Ltd |
$8,295.00 |
|
|
|
Catering For Various Council Functions |
|
|
|
|
Chifley Business School |
$800.00 |
|
|
|
Supervisor Course For Miriam Best |
|
|
|
|
Chocolate Drops |
$44.00 |
|
|
|
Gift Packs For Conservation Week |
|
|
|
|
City Business Machines |
$3,866.00 |
|
|
|
USB Blue Tooth - Information Technology |
|
|
|
|
Purchase Mobile Phones – IT Services |
|
|
|
|
Samsung Laser Printer – IT Services |
|
|
|
|
Clarkson Holden |
$37,139.00 |
|
|
|
New Vehicle Purchase Holden Cx Captiva WN32569 - Fleet Services |
|
|
|
|
Clean Sweep |
$1,179.75 |
|
|
|
Road Sweeping Services For The City |
|
|
|
|
Coates Hire Operations Pty Ltd |
$214.50 |
|
|
|
Trailer Mounted Boom For Cockman House - Infrastructure Maintenance |
|
|
|
|
Computelec Pty Ltd |
$313.50 |
|
|
|
Software - Photoshop Elements – IT Services |
|
|
|
|
Computronics Corporation Ltd |
$561.00 |
|
|
|
Service Scoreboards - Kingsway -Leisure Services |
|
|
|
|
Connell Wagner Pty Ltd |
$82,715.33 |
|
|
|
Professional Services Pinjar Road - Infrastructure Projects |
|
|
|
|
Couplers Malaga |
$256.41 |
|
|
|
Parts For Fleet Maintenance |
|
|
|
|
Coventry Fasteners |
$474.41 |
|
|
|
Vehicle Spare Parts - Fleet Maintenance |
|
|
|
|
Coventrys |
$744.96 |
|
|
|
Various Items - Depot Stores |
|
|
|
|
Various Items - Fleet Maintenance |
|
|
|
|
DA Information Services Pty Ltd |
$121.08 |
|
|
|
Magazine Subscription For Libraries |
|
|
|
|
Dalcon Construction Pty Ltd |
$30,018.29 |
|
|
|
Progress Payment - Gumblossom Reserve Changerooms |
|
|
|
|
Davson & Ward Pty Ltd |
$6,600.00 |
|
|
|
Claim No 9 - Wanneroo Library & Regional Museum - Strategic Projects |
|
|
|
|
Department Of Water |
$200.00 |
|
|
|
Water Licence Fee For St Andrews Park - Parks |
|
|
|
|
Different By Design |
$200.00 |
|
|
|
Graphic Design Services - Marketing |
|
|
|
|
Diggers Bobcat Services |
$24,818.20 |
|
|
|
Supply/Install Limestone Blocks Ocean Drive, Quinns Rocks |
|
|
|
|
DME Contractors |
$15,018.30 |
|
|
|
Progress Payment 3 For Kingsbridge Park Wheeled Sports Facility |
|
|
|
|
Domus Nursery |
$3,383.60 |
|
|
|
Various Plants For Parks |
|
|
|
|
Dormar Indents |
$212.96 |
|
|
|
Prizes/Giveaways - Community Services |
|
|
|
|
Downer EDI Engineering Pty Ltd |
$308.88 |
|
|
|
Cold Mix For Engineering |
|
|
|
|
Dowsing Concrete |
$22,884.95 |
|
|
|
Supply/Install Footpath At Alexander Drive Koondoola |
|
|
|
|
Drive Straight Alignment & Brake Services |
$165.00 |
|
|
|
Wheel Alignment Wn31596 - Fleet Maintenance |
|
|
|
|
Driveshaft Balancing Services |
$960.00 |
|
|
|
Drive Shaft Repairs - Fleet Maintenance |
|
|
|
|
Eagle Boys Pizza Wanneroo |
$35.80 |
|
|
|
Catering - Volunteer Meeting - Fire Services |
|
|
|
|
Early Childhood Australia Inc |
$160.00 |
|
|
|
Membership Renewal For Children Services |
|
|
|
|
Educational Art Supplies |
$671.20 |
|
|
|
Materials For Childrens Activities - Family Day Care |
|
|
|
|
EIW Wangara Pty Ltd |
$182.18 |
|
|
|
Various Items For Engineering |
|
|
|
|
Elliotts Irrigation Pty Ltd |
$14,249.01 |
|
|
|
Reticulation Items - Parks Maintenance |
|
|
|
|
Estate Landscape Maintenance (E.L.M) |
$42,686.28 |
|
|
|
Park & Landscape Maintenance - Locality Of Butler |
|
|
|
|
Find Wise |
$317.90 |
|
|
|
Location Of Services - Ocean Dr, Quinns Rocks |
|
|
|
|
Flowers In The City |
$60.00 |
|
|
|
Flowers For Crime Prevention Office – Rangers Services |
|
|
|
|
Foundation Plastering |
$1,000.00 |
|
|
|
Plaster Sign Wall Quinns Rocks Building Maintenance |
|
|
|
|
Frediani Milk Wholesalers |
$973.80 |
|
|
|
Milk Deliveries For The City |
|
|
|
|
Friction Control |
$134.20 |
|
|
|
Vehicle Spare Parts - Fleet Maintenance |
|
|
|
|
Fuji Xerox Australia Pty Ltd |
$2,154.90 |
|
|
|
Equipment Hire For Reprographics |
|
|
|
|
Galvins Plumbing Plus |
$239.07 |
|
|
|
Retic Fittings - Parks |
|
|
|
|
GC Sales (WA) |
$43,777.45 |
|
|
|
240L Bins For Waste Services |
|
|
|
|
Geografia |
$11,470.25 |
|
|
|
Feasibility Study - Provision Of Wanneroo Showgrounds Youth Facilities - Community Services |
|
|
|
|
GHD Pty Ltd |
$9,974.25 |
|
|
|
Consultancy Services - Building Maintenance |
|
|
|
|
Gian Manik - Artist |
$100.00 |
|
|
|
Judging Services - Youth Art Awards |
|
|
|
|
GPR Truck Sales & Service |
$660.45 |
|
|
|
Steer Axle Alignment - Fleet Maintenance |
|
|
|
|
Grand Toyota Daihatsu |
$1,710.70 |
|
|
|
Service/Repair For Vehicles - Fleet Maintenance |
|
|
|
|
Grass Growers |
$33,445.72 |
|
|
|
Mulch Stockpiled Greenwaste At Motivation Drive Wangara |
|
|
|
|
Green Skills Inc |
$880.00 |
|
|
|
Presentation Of Workshop - Smart Growth |
|
|
|
|
Greens Hiab Service |
$1,623.60 |
|
|
|
Hire Of Hiab 01/04/08 - Parks |
|
|
|
|
Hamilton Sawmills Pty Ltd |
$83.16 |
|
|
|
Timber For Ocean Drive - Engineering |
|
|
|
|
Hanson Construction Materials Pty Ltd |
$18,369.51 |
|
|
|
Drainage Items - Engineering |
|
|
|
|
Hart Sport |
$546.20 |
|
|
|
Various Equipment For Kingsway Indoor Stadium |
|
|
|
|
Home Chef |
$576.77 |
|
|
|
Meals For HACC/CACP Clients |
|
|
|
|
Hosemart |
$72.88 |
|
|
|
Various Items For Engineering |
|
|
|
|
Hospitality Total Services |
$150.15 |
|
|
|
Consultancy - Wanneroo Cultural & Learning Centre - Contracts & Property |
|
|
|
|
Humes |
$1,417.63 |
|
|
|
Concrete Delivery - Cnr Queensway & Alexander Drive - Engineering |
|
|
|
|
Hyjack |
$2,134.00 |
|
|
|
Parts & Services - Fleet Maintenance |
|
|
|
|
Ibolt Pty Ltd |
$16,390.00 |
|
|
|
Provide Fencing - Banksia Grove Community Centre - Infrastructure Maintenance |
|
|
|
|
Impressions Souvenirs Pty Ltd |
$479.82 |
|
|
|
Supply/Print T-Shirt For Project - Community Services |
|
|
|
|
Insight Call Centre Services |
$3,677.74 |
|
|
|
Call Centre Services For March 2008 - Customer Services |
|
|
|
|
Integrated Group Ltd - Accounts Receivable |
$48,467.32 |
|
|
|
Casual Labour For Various Departments |
|
|
|
|
IPWEA WA |
$1,188.00 |
|
|
|
Membership Fees 01/01-31/12/08 For H Singh, I Barker, P Calley, D Blair - |
|
|
|
|
J & K Hopkins |
$592.00 |
|
|
|
Furniture Purchase - Strategic Projects |
|
|
|
|
JCA Dealer Services |
$209.00 |
|
|
|
Camera Repairs - Fleet Maintenance |
|
|
|
|
John Stevens Carpentry |
$220.00 |
|
|
|
Supply/Construct Work Platform - New Civic Centre |
|
|
|
|
Joondalup Drive Medical Centre |
$343.20 |
|
|
|
Medical Fees - Infrastructure Projects |
|
|
|
|
Medical Fees - Waste Services |
|
|
|
|
Joondalup Photo Design |
$834.63 |
|
|
|
Photography For ECO House Launch - Economic Development |
|
|
|
|
Photography For Youth Awards - Marketing |
|
|
|
|
Photography Youth Event - Youth Services |
|
|
|
|
Photography - Enterprise House - Economic Development |
|
|
|
|
Julian Tennant |
$100.00 |
|
|
|
Judging 2008 Youth Art Awards - Cultural Development |
|
|
|
|
Knights |
$119.60 |
|
|
|
Animal Foodstuff - Ranger Services |
|
|
|
|
Kyocera Mita Aust P/L |
$239.50 |
|
|
|
Photocopier Meter Reading For Various Departments |
|
|
|
|
L & T Venables |
$574.44 |
|
|
|
Parts - Fleet Maintenance |
|
|
|
|
Latitude Creative Services |
$2,475.00 |
|
|
|
Wanneroo Living History For P Rogers |
|
|
|
|
Len French Fencing Contractor |
$250.00 |
|
|
|
Tennis Court Repairs - Gumblossom |
|
|
|
|
Local Government Community Development Association Of WA |
$2,200.00 |
|
|
|
Bi-Annual State Conference Registration – Attendees H Ledesma, F Bird, D Flirber, L Hutchinson |
|
|
|
|
Love Grid Badminton Academy Inc |
$736.50 |
|
|
|
Badminton Nets & Shuttles For Kingsway - Leisure Services |
|
|
|
|
MacDonald Johnston Engineering Company Pty Ltd |
$3,035.84 |
|
|
|
Vehicle Spare Parts - Fleet Maintenance |
|
|
|
|
Mahogany Creek Distributors |
$130.20 |
|
|
|
Sausages For National Youth Week |
|
|
|
|
Major Motors |
$432.91 |
|
|
|
Spare Parts - Fleet Maintenance |
|
|
|
|
Marquee Magic |
$660.48 |
|
|
|
Marquee & Equipment Hire - Marketing |
|
|
|
|
Mayday Earthmoving |
$17,861.25 |
|
|
|
Heavy Equipment Hire For The City |
|
|
|
|
McLeods Barristers & Solicitors |
$1,974.50 |
|
|
|
Legal Fees - Sat Review - Lakelands Dve - Building |
|
|
|
|
Media Monitors WA Pty Ltd |
$680.50 |
|
|
|
Audio Clips 10/03-12/03/08 - Marketing |
|
|
|
|
Medical Hand |
$2,226.40 |
|
|
|
Twinrix & Immunisation For Fleet Maintenance Staff |
|
|
|
|
Nurse For Immunisation Program 14/04/08 - Health Services |
|
|
|
|
Merriwa Supa IGA |
$482.62 |
|
|
|
Groceries For Various Programs |
|
|
|
|
Mey Equipment |
$22.00 |
|
|
|
Hand Grips For Fleet Maintenance |
|
|
|
|
Mindarie Senior College |
$150.00 |
|
|
|
Deposit - Performance Space 2-3 May 2008 - Cultural Development |
|
|
|
|
Mirco Bros Pty Ltd |
$233.30 |
|
|
|
Various Items - Parks Maintenance |
|
|
|
|
Morley Mower Centre |
$204.10 |
|
|
|
Vehicle Spare Parts - Fleet Maintenance |
|
|
|
|
Natural Area Management & Services |
$2,612.50 |
|
|
|
Weed Control - Ottawa Park - Conservation |
|
|
|
|
Newscape Contractors |
$4,380.97 |
|
|
|
Landscaping At Anchorage Drive, Mindarie For March08 |
|
|
|
|
Landscaping At Yanchep/Two Rocks For March 08 |
|
|
|
|
Nilfisk Advance Pty Ltd |
$308.00 |
|
|
|
Service To Floor Scrubber - Economic Development |
|
|
|
|
Northern Districts Pest Control |
$132.00 |
|
|
|
Pest Control Services For The City |
|
|
|
|
Optima Press |
$2,904.00 |
|
|
|
Printing - Kingsway Basestock |
|
|
|
|
Printing - Economic Development Flyer |
|
|
|
|
Printing - Buckingham House Flyers |
|
|
|
|
Printing - Baby Rhyme Time Stock |
|
|
|
|
Printing - Name Tags - Marketing |
|
|
|
|
Osborne Park Welding Supplies |
$376.25 |
|
|
|
Welding Helmet - Fleet Maintenance |
|
|
|
|
Repair Welder - Fleet Maintenance |
|
|
|
|
Patricia O'Connor |
$660.00 |
|
|
|
Art Teacher - Cultural Development |
|
|
|
|
Patrick James Doherty - Artist |
$100.00 |
|
|
|
Judging Services - Youth Art Awards |
|
|
|
|
Pennant House Flags |
$658.90 |
|
|
|
WA Bunting And Australian Flags - Marketing |
|
|
|
|
Peter Wood Pty Ltd |
$7,326.00 |
|
|
|
Install Fencing & Gate At Marangaroo Golf Course - Parks Maintenance |
|
|
|
|
Pickles Auctions |
$132.00 |
|
|
|
Detail Vehicle - Fleet Services |
|
|
|
|
Pirtek Malaga Pty Ltd |
$2,013.17 |
|
|
|
Vehicle Hoses - Fleet Maintenance |
|
|
|
|
PJ & CA Contracting |
$18,271.31 |
|
|
|
Sandpit Cleaning For March 08 - Parks |
|
|
|
|
Playground Equipment Inspections For March 08 - Park |
|
|
|
|
PLE Computers |
$19.00 |
|
|
|
Card Reader – IT Services |
|
|
|
|
Pocket Phone |
$39.90 |
|
|
|
Mobile Case – IT Services |
|
|
|
|
Protector Alsafe |
$141.85 |
|
|
|
Various Items - Fleet Maintenance |
|
|
|
|
Various Items - Waste Services |
|
|
|
|
PS Structures P/L |
$276,100.00 |
|
|
|
Progress Payment 5 New Cultural & Learning Centre - Strategic Projects |
|
|
|
|
Pulse Design |
$4,882.63 |
|
|
|
Courier Charges - Economic Development |
|
|
|
|
Business Support Kits For Economic Development |
|
|
|
|
Qualcon Laboratories |
$264.00 |
|
|
|
NDM Testing - Ocean Drive, Quinns Rocks - Engineering |
|
|
|
|
Raeco International Pty Ltd |
$55.60 |
|
|
|
Book Purchases - Girrawheen Library |
|
|
|
|
RCG Pty Ltd |
$2,441.44 |
|
|
|
Disposal Of Rubble - Engineering |
|
|
|
|
Reekie Property Services |
$15,914.06 |
|
|
|
Resurface Timber Floors At Various Locations - Building Maintenance |
|
|
|
|
Cleaning Services For March 08 - Building Maintenance |
|
|
|
|
Riot Art & Craft |
$174.40 |
|
|
|
Craft Supplies For The Heights Community Centre |
|
|
|
|
Roads 2000 Pty Ltd |
$156,516.69 |
|
|
|
Road Works At Various Locations For The City |
|
|
|
|
Roaming Technologies Pty Ltd |
$8,518.40 |
|
|
|
Install Tough Book Vehicle Dock – Rangers Services |
|
|
|
|
Safety World |
$377.80 |
|
|
|
Earmuffs - Parks Maintenance |
|
|
|
|
Mesh Face Shield - Parks Maintenance |
|
|
|
|
Gloves For Waste Services |
|
|
|
|
SAI Global Ltd |
$374.00 |
|
|
|
Membership Fee For Fee Buyer ADV Program - Infrastructure Planning |
|
|
|
|
Sanax St Andrews Pharmacy |
$11.61 |
|
|
|
First Aid Supplies - Health Services |
|
|
|
|
Schiavello Wa Pty Ltd |
$3,751.00 |
|
|
|
Office Furniture - Community Services |
|
|
|
|
Scotts Trimming Service |
$198.00 |
|
|
|
Recover Armrest - Fleet Maintenance |
|
|
|
|
Sealanes |
$689.82 |
|
|
|
Food/Beverages - Hospitality |
|
|
|
|
Site Architecture Studio |
$1,964.19 |
|
|
|
Professional Services - Gumblossom Reserve Changerooms - Infrastructure Projects |
|
|
|
|
Skipper Trucks Belmont |
$136.65 |
|
|
|
Fixed Warning Light Error - Fleet Maintenance |
|
|
|
|
Solver Paints |
$882.44 |
|
|
|
Paint Supplies - Building Maintenance |
|
|
|
|
Paint Supplies - Rangers Services |
|
|
|
|
Sports Surfaces |
$605.00 |
|
|
|
Install Rubber Softfall At Koondoola Park |
|
|
|
|
Sports Turf Technology Pty Ltd |
$2,549.80 |
|
|
|
Soil Analysis Various Sites - Parks Maintenance |
|
|
|
|
Spotlight Stores Pty Ltd |
$271.51 |
|
|
|
Craft Supplies For Various Community Development |
|
|
|
|
Sprayline |
$174.39 |
|
|
|
Various Items For Conservation |
|
|
|
|
Stampalia Contractors |
$6,905.80 |
|
|
|
Heavy Equipment Hire For The City |
|
|
|
|
Statewide Cleaning Supplies Pty Ltd |
$127.91 |
|
|
|
Cleaning Supplies - Depot Stores |
|
|
|
|
Stewart & Heaton Clothing Company Pty Ltd |
$346.28 |
|
|
|
Uniforms - Fire Services |
|
|
|
|
Stomp Pty Ltd |
$245.81 |
|
|
|
DVD's - Clarkson Library |
|
|
|
|
Stopmaster Brakes |
$981.20 |
|
|
|
Front/Rear Brake Relining - Fleet |
|
|
|
|
Sun City News |
$739.00 |
|
|
|
Advertising - Burning Permit |
|
|
|
|
Advertising - Employment Keyholder |
|
|
|
|
Advertising - North Coast Link - Yanchep Community Centre |
|
|
|
|
Sunny Sign Company |
$4,978.60 |
|
|
|
Street NamePlates- Engineering Maintenance |
|
|
|
|
Overlay Stickers For Ocean Reef Road - Engineering Construction |
|
|
|
|
Surf Life Saving WA Inc |
$18,384.69 |
|
|
|
Lifeguard Contract For March 2008 - Leisure |
|
|
|
|
Technical Irrigation Imports |
$7,262.26 |
|
|
|
Service Work At Various Parks Bores |
|
|
|
|
Various Retic Fittings - Parks Maintenance |
|
|
|
|
The Carers |
$57.75 |
|
|
|
Support Services HACC/CACP Clients |
|
|
|
|
The Pursuits Group |
$744.24 |
|
|
|
Support Services HACC/CACP Clients |
|
|
|
|
Thiess Pty Ltd |
$286.00 |
|
|
|
Hire Of Cherry Picker - Parks |
|
|
|
|
Toll Transport Pty Ltd |
$263.77 |
|
|
|
Courier Services - Various Departments |
|
|
|
|
Tony Sadler Home Decor Service |
$831.90 |
|
|
|
Supply Blinds - 935 Wanneroo Road - Building Maintenance |
|
|
|
|
Total Eden Watering Systems |
$323.75 |
|
|
|
Reticulation Items - Parks Maintenance |
|
|
|
|
Total Road Services |
$6,116.38 |
|
|
|
Traffic Control Services For The City |
|
|
|
|
Toyota Material Handling (WA) Pty Ltd |
$168.91 |
|
|
|
Spare Parts - Fleet Maintenance |
|
|
|
|
T-Quip |
$44,274.15 |
|
|
|
Vehicle Spare Parts - Fleet Maintenance |
|
|
|
|
Trophy Specialists |
$40.00 |
|
|
|
Restoration Of Plaque - Parks Maintenance |
|
|
|
|
United Equipment |
$240.90 |
|
|
|
PMP Service - Fleet Maintenance |
|
|
|
|
Varisigns |
$260.85 |
|
|
|
Door Plaque & Two Vinyl Names On Application Tape - Planning Services |
|
|
|
|
Vertical Telecoms WA Pty Ltd |
$2,023.12 |
|
|
|
Mobile Radio - Fleet Services |
|
|
|
|
WA Hino Sales & Service |
$74.84 |
|
|
|
Vehicle Spare Parts - Fleet Maintenance |
|
|
|
|
WA Kerbing |
$12,495.45 |
|
|
|
Lay Kerbing/Footpath - Wangara |
|
|
|
|
Lay Kerbing/Footpath - Quinns Rocks |
|
|
|
|
WA Local Government Assoc |
$24,976.18 |
|
|
|
Advertising For February 2008 - Rangers Services |
|
|
|
|
Councillor's Manual - Hard Copy |
|
|
|
|
Advertising - March - Human Resources |
|
|
|
|
Advertising - March - Tenders |
|
|
|
|
WA Police Service |
$90.00 |
|
|
|
Volunteer Police Check Feb 08 - Community Services |
|
|
|
|
Wanneroo Baseball Club |
$1,000.00 |
|
|
|
Labour 16-17/11/07 - Parking At Beach To Bush Concert - Cultural Development |
|
|
|
|
Wanneroo Caravan Centre & Steel Fabricators |
$1,625.68 |
|
|
|
Steel Fabrication Works - Engineering |
|
|
|
|
Wanneroo Central Newsagency |
$1,431.17 |
|
|
|
Magazines Subscriptions For Girrawheen Library |
|
|
|
|
Wanneroo Electric |
$14,691.12 |
|
|
|
Electrical Maintenance For The City |
|
|
|
|
Wanneroo Hardware |
$1,680.79 |
|
|
|
Hardware Supplies For The City |
|
|
|
|
Wanneroo Support Fire Brigade |
$110.00 |
|
|
|
PO Box Rental & Postage - Fire Services |
|
|
|
|
Wanneroo Trophy Shop |
$655.00 |
|
|
|
Trophies For Community Services |
|
|
|
|
Name Badges For Various Staff Members |
|
|
|
|
Trophies For Youth Art Awards |
|
|
|
|
Medals For Archery - Youths Services |
|
|
|
|
Medals For Competitions - Community Services |
|
|
|
|
Waste Master |
$177.10 |
|
|
|
Parts For Fleet Maintenance |
|
|
|
|
West Australian Nursing Agency |
$2,040.79 |
|
|
|
Immunisation Program - Health Services |
|
|
|
|
Westbooks |
$255.55 |
|
|
|
Book Purchases - Girrawheen Library |
|
|
|
|
Western Irrigation |
$26,507.75 |
|
|
|
Replace Pumping Equipment In Marangaroo Golf |
|
|
|
|
Supply/Install Pump - Winston Park |
|
|
|
|
Weston Road Systems |
$9,862.60 |
|
|
|
Traffic Control And Line Marking At Various Location - Infrastructure Projects |
|
|
|
|
Linemarking For Alexander Drive - Infrastructure Maintenance |
|
|
|
|
Woodhead International |
$7,260.00 |
|
|
|
Contract Variation - Butler Community Centre - Strategic Projects |
|
|
|
|
Woodhouse Legal |
$1,196.80 |
|
|
|
Legal Fees For Various Departments |
|
|
|
|
Work Clobber |
$470.79 |
|
|
|
Staff Uniforms - Waste Services |
|
|
|
|
Worldwide Online Printing |
$270.60 |
|
|
|
Printing Of Laminating Posters - Marketing |
|
|
|
|
Printing Of Business Cards - Smart Growth |
|
|
|
|
Wrenoil |
$958.75 |
|
|
|
Waste Oil Disposal - Waste Services |
|
|
|
|
Yakka Pty Ltd |
$1,249.60 |
|
|
|
Corporate Uniform For Various Employees |
|
|
|
|
|
|
|
00000731 |
22/04/2008 |
|
|
|
|
|
Australian Manufacturing Workers Union |
$162.90 |
|
|
|
Payroll Ded: F/Ending: 18/04/08 |
|
|
|
|
Australian Services Union |
$804.30 |
|
|
|
Payroll Ded: F/Ending: 18/04/08 |
|
|
|
|
Australian Taxation Office PAYG Payments |
$251,923.00 |
|
|
|
Payroll Ded: F/Ending: 18/04/08 |
|
|
|
|
Badminton Association of WA Inc |
$484.44 |
|
|
|
Reimbursement - Private Line Rental 2- Economic Development |
|
|
|
|
Beatrix Rausch |
$166.64 |
|
|
|
Key Holder Payments |
|
|
|
|
CFMEU WA Branch |
$48.00 |
|
|
|
Payroll Ded: F/Ending: 18/04/08 |
|
|
|
|
Child Support Agency |
$1,337.68 |
|
|
|
Payroll Ded: F/Ending: 18/04/08 |
|
|
|
|
City of Wanneroo - Social Club |
$870.00 |
|
|
|
Payroll Ded: F/Ending: 18/04/08 |
|
|
|
|
Crosbie & Duncan Golf |
$29,984.18 |
|
|
|
Commission Of Fees Collected For March 2008 - Carramar Golf Course |
|
|
|
|
DG & MJ Le Cerf |
$20.81 |
|
|
|
EFTPOS Reimbursement For March 08 - Quinns Caravan Park Management |
|
|
|
|
Duncan & Crosbie Pro Golf WA Pty Ltd |
$25,567.43 |
|
|
|
Marangaroo Golf Course Commissions For March 08 |
|
|
|
|
HBF Insurance |
$2,617.15 |
|
|
|
Payroll Ded: F/Ending: 18/04/08 |
|
|
|
|
Joe Arrigo |
$183.32 |
|
|
|
Key Holder & Tennis Booking Officer Payment |
|
|
|
|
LGRCEU |
$2,082.80 |
|
|
|
Payroll Ded: F/Ending: 18/04/08 |
|
|
|
|
Mr Charles Johnson |
$343.38 |
|
|
|
Reimbursement Of Travel Expens (USA Trip) |
|
|
|
|
Mr Rudolf Schiller |
$166.64 |
|
|
|
Key Holder Payment |
|
|
|
|
Ms Hazel Owen |
$83.32 |
|
|
|
Key Holder Payment |
|
|
|
|
Peggy Brown |
$166.64 |
|
|
|
Key Holder Payment |
|
|
|
|
Councillor Robert Smithson |
$137.25 |
|
|
|
Monthly Allowance - Paid Weekly |
|
|
|
|
Sanala Super Fund 72499AG01 |
$1,649.21 |
|
|
|
Being Payroll Ded: F/Ending - 18/04/08 |
|
|
|
|
Selectus Salary Packaging |
$10,530.92 |
|
|
|
Being Payroll Ded: F/Ending - 18/04/08 |
|
|
|
|
Trailer Parts Pty Ltd |
$270.31 |
|
|
|
Vehicle Spare Parts - Fleet Maintenance |
|
|
|
|
|
|
|
00000732 |
29/04/2008 |
|
|
|
|
|
Australian Taxation Office PAYG Payments |
$100.00 |
|
|
|
Being Payroll Ded: Non Cycle Period |
|
|
|
|
Mr Dennis Blair |
$82.30 |
|
|
|
Reimbursement - Fuel Card Didn't Work |
|
|
|
|
Mrs Martine Baker |
$30.00 |
|
|
|
Reimbursement Computer Usage At Home |
|
|
|
|
Ms Karen Caple |
$17.45 |
|
|
|
Reimbursement Broadband Usage For The Period 01/04/08 - 01/05/08 |
|
|
|
|
Councillor Robert Smithson |
$137.25 |
|
|
|
Monthly Allowance - Paid Weekly |
|
|
|
|
Trailer Parts Pty Ltd |
$616.48 |
|
|
|
Vehicle Spare Parts - Fleet Maintenance |
|
|
|
|
Western Power |
$168,609.95 |
|
|
|
Upgrade Street Lighting Alexander Drive - Infrastructure Projects |
|
|
|
|
|
|
|
00000733 |
29/04/2008 |
|
|
|
|
|
Accidental First Aid Supplies |
$343.20 |
|
|
|
First Aid Supplies - Engineering Maintenance |
|
|
|
|
Ambit Industries Pty Ltd |
$4,081.00 |
|
|
|
Repair Fence & Gates - Wanneroo Showgrounds |
|
|
|
|
Replace Chainwire - Banksia Grove |
|
|
|
|
Repair Fence - Elliott Rd |
|
|
|
|
Amcap Distribution Centre |
$1,879.30 |
|
|
|
Vehicle Spare Parts - Fleet Maintenance |
|
|
|
|
Australian Airconditioning Services Pty Ltd |
$13,036.65 |
|
|
|
Airconditioning Services For The City |
|
|
|
|
Australian Clearinghouse |
$88.00 |
|
|
|
Subscription - Youth Studies Australia - Youth Services |
|
|
|
|
Australian Netmakers |
$2,090.00 |
|
|
|
Indoor Goals For Kingsway Sports Stadium |
|
|
|
|
Australian Paper Recovery Pty Ltd |
$1,138.94 |
|
|
|
Paper Recycling 17/12-28/12/07 - Waste Services |
|
|
|
|
Baileys Fertilisers |
$993.96 |
|
|
|
Fertiliser - Parks Maintenance |
|
|
|
|
Beaurepaires For Tyres |
$891.55 |
|
|
|
Tyre Fitting Services - Fleet Maintenance |
|
|
|
|
Benara Nurseries |
$756.69 |
|
|
|
Plants - Parks Maintenance |
|
|
|
|
BGC Blokpave |
$7,775.81 |
|
|
|
Pavers - Engineering Construction |
|
|
|
|
Big Rock Toyota |
$61.62 |
|
|
|
Vehicle Spare Parts - Fleet Maintenance |
|
|
|
|
Boffins Bookshop Pty Ltd |
$53.76 |
|
|
|
Book Purchases - Wanneroo Library |
|
|
|
|
BT Equipment Pty Ltd |
$422.07 |
|
|
|
Spare Parts - Fleet Maintenance |
|
|
|
|
Bunnings Pty Ltd |
$1,618.23 |
|
|
|
Various Items - Building Maintenance |
|
|
|
|
CBC Bearings WA Pty Ltd |
$17.14 |
|
|
|
Spare Parts - Fleet Maintenance |
|
|
|
|
Cherry's Catering |
$2,140.00 |
|
|
|
Catering - Council Meeting |
|
|
|
|
City Business Machines |
$2,653.90 |
|
|
|
Mobile Phone Handsets – IT Services |
|
|
|
|
2 Olympus Digital Cameras & 2 Memory Cards -Information Technology |
|
|
|
|
1 Label Writer - Information Technology |
|
|
|
|
Clean Sweep |
$1,259.50 |
|
|
|
Road Sweeping Services For The City |
|
|
|
|
Coventrys |
$68.76 |
|
|
|
Various Items - Fleet Maintenance |
|
|
|
|
Dialog |
$5,940.00 |
|
|
|
Business Review - SOE Consultancy Project Professional Services Of Mark Hall - Information Technology |
|
|
|
|
Domus Nursery |
$1,518.00 |
|
|
|
Various Plants For Parks |
|
|
|
|
Donegan Enterprises Pty Ltd |
$159.50 |
|
|
|
10M Gold Chan (Swing) - Parks Maintenance |
|
|
|
|
Dormar Indents |
$150.00 |
|
|
|
Open Day Prizes - Community Services |
|
|
|
|
Drive In Electrics |
$1,598.45 |
|
|
|
Vehicle Electrical Repairs - Fleet Maintenance |
|
|
|
|
Eclipse Resources Pty Ltd |
$2,002.00 |
|
|
|
Disposal Of Rubble - Engineering Maintenance |
|
|
|
|
Elliotts Irrigation Pty Ltd |
$3,304.09 |
|
|
|
Reticulation Items - Parks Maintenance |
|
|
|
|
Essential Fire Services Pty Ltd |
$4,607.35 |
|
|
|
Call Out Services & Testing Of Fire Equipment For April 08 |
|
|
|
|
G & A Nielsen (Ceramic Tile Service) |
$14,588.42 |
|
|
|
Ceramic Tiling For Kingsway Stadium |
|
|
|
|
GC Sales (WA) |
$43,777.45 |
|
|
|
240L Bins - Waste Services |
|
|
|
|
Gecko Contracting Turf & Landscape Maintenance |
$21,283.90 |
|
|
|
Landscaping Services - Streetscapes At Various Locations |
|
|
|
|
Geoffs Tree Service |
$128,278.68 |
|
|
|
Stump Grinding, Root Barrier Installation, Maintenance Services And Various Other Works -Parks Maintenance |
|
|
|
|
GHD Pty Ltd |
$660.00 |
|
|
|
Hainsworth Centre Security Site Assessment - Leisure Services |
|
|
|
|
GM & J Lombardi Pty Ltd |
$1,990.16 |
|
|
|
Spare Parts - Fleet Maintenance |
|
|
|
|
Grand Toyota Daihatsu |
$945.75 |
|
|
|
Vehicle Services - Fleet Maintenance |
|
|
|
|
Hanson Construction Materials Pty Ltd |
$414.67 |
|
|
|
Granite Delivered To Depot |
|
|
|
|
Heavy Automatics |
$534.06 |
|
|
|
Repair Speedo 96024 - Fleet Maintenance |
|
|
|
|
Highline Building Constructions |
$998.18 |
|
|
|
Sheds X 2 - Waste Services |
|
|
|
|
Home Chef |
$291.81 |
|
|
|
Meals For HACC Clients |
|
|
|
|
ID Equipment Pty Ltd |
$3,442.45 |
|
|
|
Spare Parts - Fleet Maintenance |
|
|
|
|
Integrated Group Ltd - Accounts Receivable |
$4,910.10 |
|
|
|
Casual Labour For Various Departments |
|
|
|
|
John Smart Removals |
$374.00 |
|
|
|
Removal Services For Hospitality |
|
|
|
|
Joondalup Business Association Inc |
$800.00 |
|
|
|
Corporate Classic Golf Day 2008 Team Of 4 Sponsorship Hole - Economic Development |
|
|
|
|
Joondalup Drive Medical Centre |
$1,058.20 |
|
|
|
Medical Fees - Waste Services & Parks Maintenance |
|
|
|
|
Kyocera Mita Aust P/L |
$1,089.00 |
|
|
|
1 X A4 Colour Laser Printer - Information Technology |
|
|
|
|
Lawn Doctor |
$9,240.00 |
|
|
|
Mowing Of Verges Connolly Drive - Parks Maintenance |
|
|
|
|
M & K Bailey Accredited Newsagents |
$55.60 |
|
|
|
Newspapers/Periodicals - Economic Development |
|
|
|
|
Major Motors |
$68,941.92 |
|
|
|
New Vehicle Purchase Isuzu NPR400 WN32617 - Fleet Services |
|
|
|
|
Spare Parts - Fleet Maintenance |
|
|
|
|
Messages On Hold |
$12.90 |
|
|
|
Programming Charges - Customer Relations |
|
|
|
|
Mirco Bros Pty Ltd |
$23.40 |
|
|
|
Various Items - Parks Maintenance |
|
|
|
|
Mobile Glass |
$2,037.29 |
|
|
|
Glazing Services For The City |
|
|
|
|
Multispares |
$299.44 |
|
|
|
Spare Parts - Fleet Maintenance |
|
|
|
|
Northern Districts Pest Control |
$7,906.00 |
|
|
|
Pest Control Services For The City |
|
|
|
|
Northern Lawnmowers & Chainsaw Specialist |
$4,165.82 |
|
|
|
Stihl Augers - Fleet Services |
|
|
|
|
Osborne Park Welding Supplies |
$365.77 |
|
|
|
Spare Parts - Fleet Maintenance |
|
|
|
|
Pirtek Malaga Pty Ltd |
$1,490.21 |
|
|
|
Vehicle Hoses - Fleet Maintenance |
|
|
|
|
PLE Computers |
$91.60 |
|
|
|
1 X Canon Colour Printer - Information Technology |
|
|
|
|
Prestige Alarms |
$1,480.60 |
|
|
|
Alarm Services For The City |
|
|
|
|
Proquip Machinery |
$5,632.00 |
|
|
|
Hire Of Chipper/Change Blade On Vermeer - Parks Maintenance |
|
|
|
|
Pulse Design |
$396.00 |
|
|
|
Business Support Kit - Posters & Help Sheets -Economic Development |
|
|
|
|
Reclaim Industries Ltd |
$6,171.00 |
|
|
|
Repair Softfall - Parks Maintenance |
|
|
|
|
Recreation Safety Australia |
$209.00 |
|
|
|
Playground Safety Consultation With Parks Maintenance |
|
|
|
|
Red Hot Parcel Taxi |
$49.00 |
|
|
|
Courier Services - Fleet Maintenance |
|
|
|
|
Reekie Property Services |
$64,401.70 |
|
|
|
Cleaning Services - March 08 |
|
|
|
|
Refresh Waters Pty Ltd |
$165.50 |
|
|
|
Rental Fee For Floor R&C Cooler At Hainsworth Leisure Centre |
|
|
|
|
Royal Life Saving Society Australia |
$1,055.00 |
|
|
|
Senior First Aid Course – Human Resources |
|
|
|
|
Safety World |
$165.00 |
|
|
|
Gloves - Parks Maintenance |
|
|
|
|
Schindler Lifts Aust Pty Ltd |
$940.03 |
|
|
|
Lift Service - Alexander Heights |
|
|
|
|
Lift Service - Wanneroo Community Centre |
|
|
|
|
Lift Service - Building Maintenance |
|
|
|
|
Small Business Centre (North West Metropolitan) Inc |
$60,500.00 |
|
|
|
2007 - 2008 Funding Support For Small Business Centre (North West Metro) Inc |
|
|
|
|
Solver Paints |
$374.82 |
|
|
|
Paint Supplies - Building Maintenance |
|
|
|
|
Sports Surfaces |
$638.00 |
|
|
|
Install Rubber Backing To Practice Wicket At Shelvock Park |
|
|
|
|
Sprayline |
$107.01 |
|
|
|
Spare Parts For Conservation |
|
|
|
|
Stamfords Advisors & Consultants Pty Ltd |
$4,928.00 |
|
|
|
Development Of The City's 3 Year Strategic Audit Plan - Governance |
|
|
|
|
Stampalia Contractors |
$1,925.00 |
|
|
|
Water Truck Hire At Ocean Reef Road - Parks Maintenance |
|
|
|
|
Stopmaster Brakes |
$1,144.00 |
|
|
|
Front/Rear Brake Relining - Fleet |
|
|
|
|
Streetcut WA |
$165.00 |
|
|
|
Cut/Remove Damaged Kerb At Ocean Drive - Engineering |
|
|
|
|
Sun City Newsagency |
$38.40 |
|
|
|
Newspaper Delivery For Yanchep Library |
|
|
|
|
Sunny Sign Company |
$371.80 |
|
|
|
Sign - Workman Fluro - Parks Maintenance |
|
|
|
|
Caution Acid Wash Sign - Parks Maintenance |
|
|
|
|
Technical Irrigation Imports |
$6,380.00 |
|
|
|
New Controllers - Parks Maintenance |
|
|
|
|
The Carers |
$57.75 |
|
|
|
Support Services HACC Clients |
|
|
|
|
The Pool Table Man |
$1,080.00 |
|
|
|
Equipment - Youth Services |
|
|
|
|
Toll Transport Pty Ltd |
$210.74 |
|
|
|
Courier Services For The City |
|
|
|
|
T-Quip |
$423.25 |
|
|
|
Vehicle Spare Parts - Fleet Maintenance |
|
|
|
|
Turfmaster Pty Ltd |
$13,436.50 |
|
|
|
Turf Works At Kingsway Football |
|
|
|
|
Laying Of Turf At Gumblossom Reserve |
|
|
|
|
Vertical Telecoms WA Pty Ltd |
$239.80 |
|
|
|
Fit Two Way Wn32629 - Fleet Maintenance |
|
|
|
|
Wanneroo Caravan Centre & Steel Fabricators |
$1,016.11 |
|
|
|
Steel Fabrication Works - Building Maintenance, Engineering |
|
|
|
|
Wanneroo Central Newsagency |
$787.88 |
|
|
|
Book Purchases - Library Services |
|
|
|
|
Wanneroo Electric |
$21,501.06 |
|
|
|
Electrical Maintenance For The City |
|
|
|
|
Wanneroo Hardware |
$165.25 |
|
|
|
Various Items - Parks Maintenance |
|
|
|
|
Wanneroo Trophy Shop |
$31.00 |
|
|
|
Name Badges For Various Employees |
|
|
|
|
Westrac |
$69.99 |
|
|
|
Spare Parts - Fleet Maintenance |
|
|
|
|
Work Clobber |
$289.78 |
|
|
|
Staff Uniforms For Surveyors |
|
|
|
|
Worldwide Online Printing |
$346.50 |
|
|
|
Printing Of Business Cards For Employees |
|
|
|
|
|
|
|
|
|
Total Director Corporate Services Advance - EFT's |
$9,805,029.07 |
|
|
|
|
|
|
CANCELLED CHEQUES FROM PREVIOUS PERIOD |
|||
|
00062795 |
30/01/2007 |
YHT Nguyen |
-$414.82 |
|
00062305 |
18/12/2006 |
SJ & ND Lancaster |
-$341.06 |
|
00062293 |
18/12/2006 |
TAD Mackie |
-$306.27 |
|
00062131 |
06/12/2006 |
Dept of Planning And Infrastructure |
-$19.00 |
|
00062101 |
06/12/2006 |
Christian Brothers |
-$328.00 |
|
00062066 |
06/12/2006 |
Alan Roper |
-$68.00 |
|
00062064 |
06/12/2006 |
Content Living |
-$404.91 |
|
00061944 |
29/11/2006 |
E Black |
-$3.00 |
|
00061791 |
15/11/2006 |
Connell Wagner |
-$3,520.00 |
|
00061752 |
15/11/2006 |
Kingsway Christian College |
-$55.00 |
|
00061732 |
15/11/2006 |
HNT LE & VC Nguyen |
-$297.39 |
|
00061728 |
15/11/2006 |
VJ & WT Morgan |
-$336.46 |
|
00061688 |
15/11/2006 |
J & RJ Finney |
-$259.25 |
|
00061656 |
15/11/2006 |
Greenwood Baseball Club |
-$50.00 |
|
00061530 |
08/11/2006 |
MA & VG Trigwell |
-$300.00 |
|
00068584 |
05/03/2008 |
Jean Reed |
-$565.00 |
|
00061531 |
08/11/2006 |
Quinns Twekwondo Club |
-$600.00 |
|
00061990 |
29/11/2006 |
Ballajura Association Football |
-$50.00 |
|
00062791 |
30/01/2007 |
Ace Ford Club Inc |
-$532.50 |
|
|
|
|
|
|
|
|
TOTAL |
-$8,450.66 |
|
|
|
|
|
|
MANUAL JOURNALS |
|||
|
|
|
Invoice Incorrectly Posted To Advance Account |
-$1,799.97 |
|
|
|
|
|
|
|
|
Total |
-$1,799.97 |
|
|
|
|
|
|
|
|
Total Municipal Recoup |
$ 12,003,594.32 |
|
|
|
|
|
|
General Fund Bank Account |
|||
|
|
|
Payroll Payments April 2008: |
|
|
|
|
Payment of Wages |
$910,551.71 |
|
|
|
Payment of Wages |
$19,604.23 |
|
|
|
Payment of Wages |
$5,729.90 |
|
|
|
Payment of Wages |
$907,556.65 |
|
|
|
Payment of Wages |
$740.51 |
|
|
|
|
|
|
|
|
Payroll Total |
$1,844,183.00 |
|
|
|
|
|
|
|
|
Bank Fees April 2008: |
|
|
|
|
CBA Merchant Fees |
$339.60 |
|
|
|
CBA Pos Fee Waste Services Eftpos |
$59.00 |
|
|
|
CBA Pos Fee |
$148.48 |
|
|
|
GLF Trans Fee |
$300.00 |
|
|
|
Line Fee |
$208.30 |
|
|
|
Trans Negotiation Auth Limit Fee |
$58.33 |
|
|
|
Account Service Fee |
$540.83 |
|
|
|
COMMBIZ Fee |
$619.38 |
|
|
|
BPAY Fee |
$4,525.24 |
|
|
|
|
|
|
|
|
Total Bank Fees |
$6,799.16 |
|
|
|
|
|
|
|
|
Credit Card Payments: |
|
|
|
|
J Paton |
|
|
|
|
Conference Papers Lexis Nexis 20 - 21/2/08 |
$297.00 |
|
|
|
Parking Fees 8/4/08 |
$15.00 |
|
|
|
|
|
|
|
|
F Bentley |
|
|
|
|
EMT Breakfast Meeting 9/4/08 |
$87.00 |
|
|
|
|
|
|
|
|
M Mansfield |
|
|
|
|
Tickets for Conference - A Craig |
$35.00 |
|
|
|
Tickets for Conference - C Murphy |
$35.00 |
|
|
|
|
|
|
|
|
Total Credit Card Payments |
$469.00 |
|
|
|
|
|
|
|
|
Advance Recoup April 2008 |
$ 12,003,594.32 |
|
|
|
|
|
|
|
|
Direct Payment Total (Includes Advance Recoup, Credit Cards And Bank Fees) |
$12,010,862.48 |
|
|
|
|
|
|
|
|
Total Accounts Paid - Municipal Fund |
$13,855,045.48 |
EndOfRecommendation - This line will not be printed Please do NOT delete
File Ref: S13/0002V11
File Name: BB Financial Activity Statement for Period Ending 31 March 2008.doc This line will not be printed dont delete
Responsible Officer: Director, Corporate Services
Disclosure of Interest: Nil
Author: Coordinator Management Accounting Services
Meeting Date: 3 June 2008
Attachments: 2
StartStrip - This line will not be printed Please do NOT delete
Issue
To consider the 2007/08 Financial Activity Statements for the period ended 30 April 2008.
Background
Regulation 34(1) of the Local Government (Financial Management) Regulations 1996 requires a local government to prepare each month a statement of financial activity, presented according to nature and type, by program, or by business unit. Administration has opted to present the statement of financial activity by nature and type and in a similar format to that presented in the Rate Setting Statement for the 2007/2008 Annual Budget. This format separates operating revenue and expenditure from other revenue and expenditure and provides improved disclosure of Council’s underlying operating result.
The Financial Activity Statement is in the form of an Income Statement and Balance Sheet. The Income Statement compares year to date actual income and expenditure with the year to date budget, shows variances, the adopted budget and the revised budget (if any). The Balance Sheet shows the current status of the City’s assets and liabilities.
Town Planning Scheme’s (TPS) interest earnings and related expenses has been considered as operating income and expenses for our financial activity statements for years as directed by our auditors. Administration has expressed concern in relation to the substantial distortion of operating activities as a result of this accounting treatment. UHY Haines Norton Chartered Accountants (Haines Norton) has recently concurred to Administration’s request, as a consequence all financial activity statements from April 2008 onwards will be reported in a format with all TPS income and expenses treated as non-operating. This change in reporting will allow for a true and fair disclosure of the City’s operating results.
In addition to the above, Regulation 34(5) of the Local Government (Financial Management) Regulations 1996 requires a local government to adopt a percentage or value, calculated in accordance with Australian Accounting Standards, to be used in statements of financial activity for reporting material variances. At its meeting of 31 October 2006, Council adopted 10% for the reporting of variances for financial activities which is also to be used throughout the financial year of 2007/2008.
Detail
The attached Statement of Financial Activity for the period ended 30 April 2008 represents the ten (10) months results of the financial year.
As an ongoing process, each Service Unit is required to review and monitor its actual and budget financials monthly, and as such Administration has updated year end forecasts accordingly, which is reflected as Revised Budget.
Comments on the financial performance are set out below.
Consultation
The City’s auditor UHY Haines Norton Chartered Accountants.
Comments
The following comments are provided on the Income Statement and Balance Sheet for the period ended 30 April 2008: -
Income Statement (Attachment 1 refers)
Operating Result (Operating Revenue – Operating Expenses)
YTD Actual $12.801 million
YTD Budget $ 8.116 million
YTD Variance $ 4.685 million (+58%)
Full Year Adopted Budget -$ 5.572 million
Full Year Revised Budget -$ 1.163 million
The following information is provided on key aspects of the year to date operating result: -
Operating Revenue
YTD Actual $83.165 million
YTD Budget $84.665 million
YTD Variance -$ 1.500 million (-2%)
Full Year Adopted Budget $87.621 million
Full Year Revised Budget $89.720 million
The year to date operating actual revenue was equivalent to 93% of the full year revised budget, which predominantly captured all rates and rubbish collection fee income for the current financial year that was 100% booked as accrued income in the month of August 2007.
The largest component of the operating revenue is Rates, equalling $47.036 million, which forms 57% of the total revenue year to date and 52% of the total revised budget revenues. Due to the City receiving a higher than expected percentage of rates during the first six months, our funding capabilities for investments has subsequently improved compared to budget.
Grants and Subsidies – operating is under budget by $0.485 million (-8%) year to date which is primarily a timing difference. Full year budget has been revised to $7.122 million, an increase of $0.676 million to reflect the higher than expected General Purpose Grant funding.
With the Contributions, Reimbursements and Donations the City has received year to date, we are ahead of budget by $0.282 million (+25%). Administration has revised full year budget to $1.500 million, 22% higher than adopted budget, to reflect the abovesaid positive variance. The main reason for this is due to a greater receipt of cash contributions in relation to parks and additional reimbursements relating to workers compensation.
Of the Fees and Charges the more material amounts accounted for year to date worth noting are $11.692 million for Rubbish Collection Fees, $1.772 million for Green Fees income, $2.960 million for Application, Licence & Permit Fee income (mainly in Building Assessments and Development Assessments) and $3.715 million for Service Fee Income. Overall, year to date receipt of income in this category is slightly below budget by 5%. However, Administration anticipates the original budgeted amounts to be achievable, based on the current projection of usages and demands by the community. Accordingly, the revised budget amounts remain slightly above the adopted budget.
It is worth noting that the City has been continuing to perform extremely well in its investment activities in the current environment. During the year, the international financial market had been substantially adversely affected by the sub prime mortgage crises initiated from U.S.A. However, the City’s Administration had been able to foresee the risks and had been placing all reserve and new funds received during the year to term deposits, which attracted high interest rates with no capital risks. Thus, Administration anticipates substantial improvement on its full year investment return, reaching $6.100 million, a 51% increase from adopted budget.
Operating Expenses
YTD Actual -$ 70.364 million
YTD Budget -$ 76.549 million
YTD Variance $ 6.185 million (+8%)
Full Year Adopted Budget -$ 93.194 million
Full Year Revised Budget -$90.883 million
Employee costs, which represented about 41% of the year to date expenses in actual, is currently below budget, by $1.147 million (+4%).
At present the costs associated to Materials and Contracts are well under the year to date budget, to the value of $4.178 million. It is expected however that, as with most years, a large percentage of these costs are likely to be incurred over the final two months of the financial year.
Utilities are continuing to run under budget to the value of $0.461 million (+16%) at present, which is primarily due to less than expected year to date expenditures on street lighting, predominantly a timing difference to be offset by year end.
Interest Expenses are expected to come close to the adopted budget for the full year. The main component within this category is interest repayments to Western Australia Treasury Corporation on our loan drawn down.
Insurance costs are currently slightly over year to date budget estimates and are expected to increase by $0.084 million for the full year mainly due to the increase in General Insurance Premium.
Overall, the year to date operating expenses are below budget by $6.185 million (+8%), mainly due to the timing differences between the actual materials and contracts works and the budget spreads which were loaded on a pro-rata basis.
Based on recent budget reviews, full year operating expenses is anticipated to be around $90.883 million, 2% better than the original budget.
Other Revenue and Expenses (excluding contributions of physical assets)
YTD Actual $19.490 million
YTD Budget $ 6.212 million
YTD Variance $13.278 million (+214%)
Full Year Adopted Budget $14.450 million
Full Year Revised Budget $19.895 million
The overall year-to-date actual vs budget variance of the Other Revenue and Expenses is positive to the amount of $13.278 million (+214%). Grants and Subsidies and Contributions, Reimbursements and Donations are below budget year to date by 27% and 42% respectively. Grants that have not been receipted year to date primarily include the delay in the receipts of $1.500 million in relation to Aquamotion Upgrade and $0.500 million in relation to Wanneroo Cultural and Learning Centre (to be now received in 2008/2009). There are also delays in receiving developers’ contributions resulting from less than expected progress in the road works program.
Full year budget has been revised up by $5.455 million, mainly due to the expected increase in the full year Town Planning Scheme contribution, which is offset by the deferral of income ($4.2 million) from sale of subdivision land in Motivation Drive, Wangara.
With regard to physical assets contributed by developers, the City has now received the necessary documentation required to calculate the values to be recognised in the accounts for this financial year, which will be completed by year end.
Balance Sheet (Attachment 2 refers)
As at 30 April the current status of the capital budget is as stated below: -
|
|
Current EOY Budget |
YTD Actual |
Commitments |
Total (YTD Actual + Commitments) |
|
Community |
$16.316 m |
$ 7.706 m |
$12.613 m |
$20.319 m |
|
Conservation |
$ 1.271 m |
$ 0.183 m |
$ 0.131 m |
$ 0.314 m |
|
Corporate |
$ 6.563 m |
$ 3.280 m |
$ 0.804 m |
$ 4.084 m |
|
Drainage |
$ 0.471 m |
$ 0.120 m |
$ 0.000 m |
$ 0.120 m |
|
Investment |
$12.235 m |
$ 0.480 m |
$ 0.000 m |
$ 0.480 m |
|
Recreation & Sport |
$23.131 m |
$ 8.222 m |
$13.546 m |
$21.768 m |
|
Transport |
$24.641m |
$ 7.492 m |
$ 2.705 m |
$ 10.197 m |
|
Waste Management |
$11.409 m |
$ 4.176 m |
$ 5.651 m |
$ 9.827 m |
|
Total Capital Works |
$96.037 m |
$31.659 m |
$35.450 m |
$67.109 m |
It should be noted that the YTD actual expenditure relates to the cash position and does not include commitments. Part of the commitments indicated above relate to works to be carried out in 2008/2009.
Historically most projects of a capital nature undertaken by the City are completed towards the end of the financial year. As such much progress is expected over the coming two (2) months.
The status of a number of major projects not specifically reflected in the above table are listed below:-
|
Project Description |
Current EOY Budget |
Comment |
|
Neerabup Industrial Area Development |
$9.000 m |
Substantial project delayed due to environmental constraints impacting on the joint venture. |
|
Upgrade Hartman Drive |
$3.032 m |
Project at detailed design stage - proposed to commence works program in July 2008. |
|
Construct Regional Museum and Library |
$11.838 m |
Project progressing well, with any unspent budget for this year to be carried forward. |
|
Upgrade Aquamotion |
$8.473 m |
Project progressing well, with any unspent budget for this year to be carried forward. |
|
Subdivision of Lot 257 Wangara |
$2.270 m |
Project progressing well. Lots due for completion August 2008. |
|
Construct Ocean Reef Road |
$2.149 m |
Anticipated completion date of July 2008. |
|
Upgrade Ocean Drive |
$2.000 m |
Project well in progress with estimated completion date of July 2008. |
Note: m = million
YTD = Year To Date
EOY = End Of Year
Statutory Compliance
The monthly financial report for the period ended 30 April 2008 complies with Section 6.4 of the Local Government Act 1995 and Regulations 33A and 34 of the Local Government (Financial Management) Regulations 1996.
It is proposed to retain the 10% variance for the reporting of material variances for 2007/08 in accordance with the requirements of Regulations 34(5) of the Local Government (Financial Management) Regulations 1996.
Strategic Implications
Outcome 4 – Governance – “Leadership and Community engagement to ensure the best use of our physical, financial and human resources”.
Policy Implications
Nil.
Financial Implications
As outlined above and detailed in Attachments 1 and 2.
Voting Requirements
Simple Majority.
EndStrip - This line will not be printed Please do NOT delete
Recommendation
That Council:-
1. RECEIVES the Financial Activity Statements for the period ended 30 April 2008; and
2. ADOPTS in accordance with Regulation 34(5) of the Local Government (Financial Management) Regulations 1996 a percentage variance of ten percent (10%) for the reporting of material variances for the 2007/08 financial year.
EndOfRecommendation - This line will not be printed Please do NOT delete
StartOfAttachment - Do not delete this line will not be printed

EndOfAttachment - Do not delete this line will not be printed
StartOfAttachment - Do not delete this line will not be printed

EndOfAttachment - Do not delete this line will not be printed
File Ref: R05/0002V01
File Name: CA Closure of Portions of Exmouth Drive Butler and Marmion Avenue Butler Jindalee.doc This line will not be printed dont delete
Responsible Officer: Director, Corporate Services
Disclosure of Interest: Nil
Author: Team Leader Land Information
Meeting Date: 3 June 2008
Attachment(s): 2
StartStrip - This line will not be printed Please do NOT delete
Issue
To consider the permanent closure of portions of Exmouth Drive, Butler and Marmion Avenue, Butler-Jindalee road reserves.
Background
The City received an application from the Western Australian Planning Commission (WAPC), supported by the Butler Joint Venture, seeking the closure of unconstructed portions of Exmouth Drive (previously Connolly Drive), Butler and Marmion Avenue, Butler-Jindalee road reserves. The purpose of the requested road closures is the downgrading of a portion and cancellation of another portion of Exmouth Drive and the deviation of Marmion Avenue (Attachment 1 refers).
The requested road closures are consistent with the Butler-Ridgewood Agreed Local Structure Plan (27) adopted 4 June 2002 and the Butler-Jindalee Agreed District Structure Plan (39) adopted 20 October 2006, which propose the modification of the regional road reservations for Marmion Avenue and Connolly Drive (Attachment 2 refers). Furthermore, the Minister for Planning and Infrastructure granted final approval to amendment No. 68 to the City’s District Planning Scheme No. 2 on 29 April 2008 that includes the rezoning of the portion of Marmion Avenue subject to the closure application from Other Regional Road reservation to Urban Development zone.
Detail
The Butler Joint Venture (JV) represents the owners of the land abutting the current alignments of Exmouth Drive, Butler and Marmion Avenue, Butler-Jindalee road reserves. The WAPC and the JV have entered into a land exchange agreement whereby the WAPC has agreed to purchase the land required for the Butler railway station, Brighton Boulevard/Mitchell Freeway interchange and the deviation of Marmion Avenue. In exchange, subject to the completion of road closure procedures, the surplus land within the currently dedicated portions of Exmouth Drive, Butler and Marmion Avenue, Butler-Jindalee is to be transferred to the WAPC to then be sold to the JV as offsets.
The WAPC is seeking the urgent closure of the subject portions of road reserve to facilitate the transfer of the land to the JV this current financial year.
Consultation
In accordance with the requirements of Section 58 of the Land Administration Act 1997, the proposed road closures were advertised for public comment in the Wanneroo Times newspaper on Tuesday, 22 April 2008 for a period of 35 days ending Tuesday, 27 May 2008. No submissions were received during the public comment period.
The appropriate public utility service providers have been consulted and their requirements ascertained. There are no objections to the proposal, however, the Water Corporation has advised that the various water mains within the proposed closure areas may require relocation at the time of subdivision, which will need to be arranged by the developer as part of the design of water and sewer reticulation to service the proposed new lots.
Main Roads WA has also been consulted and has indicated that it has no comment regarding the proposed road closures.
Comment
As previously outlined, the proposed road closures conform with Local and District Agreed Structure Plans which have previously been endorsed by both Council and the WAPC. Public advertising and consultation with the relevant stakeholders has been undertaken with no objections or conflicts identified (to date). Therefore, Administration supports the application for closure.
Statutory Compliance
Section 58 of the Land Administration Act 1997 provides that a local government may resolve to request the Minister for Lands to close a road after it has given 35 days public notification of the proposal in a newspaper circulating in the district and has considered any objections received. Where objections or submissions are received, the local government is to comment on them and give the reasons for its decisions in its request to the Minister.
When closed, the land comprising the former road reserve becomes unallocated Crown land and Section 74 of the Land Administration Act 1997 empowers the Minister for Lands to sell such land as the Minister sees fit.
Strategic Implications
The closure of portions of Exmouth Drive, Butler and Marmion Avenue, Butler-Jindalee road reserves are consistent with the City’s 2006 – 2021 Strategic Plan and meets the following Outcome Objectives:-
“3.2 Improve regional infrastructure, and
4.7.2 Ensure compliance with relevant statutory authorities”
Policy Implications
Nil.
Financial Implications
The City has incurred the cost associated with advertising the proposed road closures, in accordance with the requirements of the Land Administration Act 1997. The WAPC has agreed to cover all costs incurred by the City in undertaking the road closure procedures and will reimburse the City upon presentation of an invoice.
If the road closures are approved, the Department for Planning and Infrastructure, on behalf of the Minister for Lands, manages the land transactions and the City receives no income from the sale of the land within the closed road reserves.
Voting Requirements
Simple Majority
EndStrip - This line will not be printed Please do NOT delete
Recommendation
That Council: -
1. SUPPORTS the closure of unconstructed portions of Exmouth Drive, Butler and Marmion Avenue, Butler-Jindalee road reserves as indicated in Attachment 1.
2. AUTHORISES a request being made to the Minister for Lands pursuant to Section 58 of the Land Administration Act 1997, for the permanent closure of portions of Exmouth Drive, Butler and Marmion Avenue, Butler-Jindalee road reserves as indicated in Attachment 1.
EndOfRecommendation - This line will not be printed Please do NOT delete
StartOfAttachment - Do not delete this line will not be printed
ATTACHMENT 1 Page 1 of 1

EndOfAttachment - Do not delete this line will not be printed
StartOfAttachment - Do not delete this line will not be printed

EndOfAttachment - Do not delete this line will not be printed
File Ref: P34/0733V01
File Name: CA Wanneroo BMX Club Extension of Lease.doc This line will not be printed dont delete
Responsible Officer: Director, Corporate Services
Disclosure of Interest: Nil
Author: Property Officer
Meeting Date: 3 June 2008
Attachment(s): 1
StartStrip - This line will not be printed Please do NOT delete
Issue
To consider an extension of the “land only” lease over portion of Lot 21 Mary Street, Wanneroo to the Wanneroo BMX. Raceway Club Inc for a term of one (1) year.
Background
The Wanneroo BMX. Raceway Club Inc (the Club) currently leases portion of Lot 21 Mary Street, Wanneroo being Lot 21 contained in Certificate of Title Volume 1659 Folio 122 and owned freehold by the City (Attachment 1 refers). Council at its Ordinary Meeting of 17 May 2005 approved a three (3) year ‘land only’ lease be entered into with the Club over a portion of this land which is due to expire on 30 June 2008 (CS02-05/05 refers). It was noted in that report that the land from which the Club operates is a significant freehold asset of the City and that the continued use as a BMX circuit might not be appropriate and on that basis it was recommended that only a three year term be offered rather than the five years sought by the Club.
Lot 21 is situated at the intersection of Ocean Reef Road and Lenore Road with the proposed extension/realignment of Hartman Drive, due to commence in 2009/10, dissecting the Lot along the eastern boundary of the existing BMX track. The western portion of the Lot occupied by the Club is currently zoned residential (R20) under the City’s Agreed Local Structure Plan – Cell 4, and it is envisaged that the completion of the road works will expedite the establishment of the land as residential resulting in the continued use of the land as a BMX track being considered inappropriate. The land to the eastern side of the Hartman Drive extension is zoned urban development under the Structure Plan.
Detail
At a meeting held in April 2007 between local ward Councillors, members of the Club and Council officers discussions were held regarding the possibility of an extension to the lease at the expiry of the current term in June 2008 and identification of potential alternative locations from which the Club could operate in the future. An initial assessment of the suggested locations was conducted and most were considered unsuitable for various environmental reasons or because they were in close proximity to residential areas or had little or no available space to accommodate car parking. Administration is continuing its inquiries regarding those options that do have potential however nothing substantial has presented itself as at the writing of this report.
Also, at the meeting the Club was requested to provide Administration with detailed facility requirements to assist the City in identifying a possible appropriate alternate site, together with a plan of its future direction in terms of its growth and financial viability. To date the City is yet to receive this information.
Given that much work is to be done by both the Club and the City in an attempt to resolve the question of a possible relocation of the Wanneroo BMX Raceway Club, and the lease to the Club expires on 30 June of this year, it is considered prudent to seek Council approval to a one year extension of the current lease. It is envisaged that a further report would then be presented to Council within that time period regarding the possible relocation.
Comment
A one year only extension of the lease will reinforce the notion that the future use of the current BMX site is limited and provide a sense of urgency to the process of identifying a suitable alternate site for relocation of the Club should that ultimately be the direction supported by Council.
Statutory Compliance
The proposed extension of lease is considered to be an exempt disposition under regulation 30(2)(b) of the Local Government (Functions and General) Regulations 1996, which states:-
“30(2) A disposition of land is an exempt disposition if –
(b) the land is disposed of to a body, whether incorporated or not –
(i) the objects of which are charitable, benevolent, religious, cultural, educational, recreational, sporting or other like nature; and
(ii) the members of which are not entitled or permitted to receive any pecuniary profit from the body’s transactions;”
As an exempt disposition, a public notice inviting submissions is not required.
Strategic Implications
The proposed extension to the lease is consistent with the City’s Strategic Plan as follows:-
“2.2 Improve the City’s identity and community well-being through arts, culture, leisure and recreation” and
“4.1 Improve strategic partnerships”
Policy Implications
Nil
Financial Implications
The proposed extension to the lease will continue to result in the Club’s requirement to meet its obligation to pay rates and outgoings as per the terms and conditions of its lease agreement, and will therefore be on a ‘no cost to the City’ basis.
Voting Requirements
Simple Majority
EndStrip - This line will not be printed Please do NOT delete
Recommendation
That Council:-
1. APPROVES a one (1) year extension to the ‘land only’ lease to the Wanneroo B.M.X. Raceway Club Inc, commencing 1 July 2008, over portion of Lot 21 Mary Street, Wanneroo;
2. AUTHORISES the Mayor and Chief Executive Officer to affix the Common Seal of the City of Wanneroo and to execute a Deed of Extension between the City and the Wanneroo B.M.X. Raceway Club Inc, prepared by the City’s solicitor at the expense of the Wanneroo B.M.X. Raceway Club Inc.
EndOfRecommendation - This line will not be printed Please do NOT delete
StartOfAttachment - Do not delete this line will not be printed

EndOfAttachment - Do not delete this line will not be printed
File Ref: P08/1150V05
File Name: CA Proposed Lease for Commercial Tenancy 2 Clarkson Library.doc This line will not be printed dont delete
Responsible Officer: Director, Corporate Services
Disclosure of Interest: Nil
Author: Coordinator Property & Leasing
Meeting Date: 3 June 2008
Attachment(s): 1
StartStrip - This line will not be printed Please do NOT delete
Issue
To consider a lease over Tenancy 2 at the Clarkson Library to Sharon Johnson and Joy Anne Smith for the operation of a Hair Dressing & Beauty Salon.
Background
The Clarkson Library is situated on the corner of Ocean Keys Boulevard and Ebb Way, Clarkson and the land is ‘Crown Land’ and is vested to the City under a Management Order, with the power to lease for a term not exceeding 21 years. The building contains three commercial tenancy areas with two of them presently occupied by the Full Monty Café and Cartridge World and the third is currently vacant.
Tenancy 2 was initially leased as a ‘gift and souvenir shop’ however the tenant experienced financial difficulty and, Council at its Ordinary Meeting on 12 February 2008 (CR02-02/08 refers), agreed to the termination of the lease between the City and Dragana Becarevic for the premises known as Dolce Vita Gifts & Souvenirs, effective 29 February 2008.
Following the vacation of the premises David Evans Real Estate was appointed to act on behalf of the City in finding a suitable replacement tenant for Tenancy 2, being an area of approximately 55.5m² (Attachment 1 refers).
Detail
Under cover of a letter dated 15 May 2008 from David Evans Real Estate the City has received a formal offer to lease Tenancy 2, and it is proposed to enter into a commercial lease by ‘private treaty’ under the following essential terms:
|
Lessee |
Sharon Johnson and Joy Ann Smith |
|
Premises |
Tenancy 2 at Clarkson Library being an area of 55.5m² approximately |
|
Proposed Use |
Hair Dressing & Beauty Salon |
|
Term |
Three (3) years with an option to renew for a further term of three (3) years. |
|
Commencement Date |
To be agreed. |
|
Rental |
$16,650 per annum payable monthly in advance* |
|
Outgoings |
$2,385.48 per annum payable monthly in advance |
|
Rent Reviews |
Annually by increases in accordance with CPI and to market at the commencement of option period. |
|
Approvals |
Proposed lessee to obtain all necessary approvals to allow trading as a hair dressing & beauty salon |
|
Lease Costs |
Proposed lessee to execute formal lease documentation and be liable for costs of preparation and stamping of same. |
*Note: A recently obtained valuation indicates that a market rent for this property would be between $275 and $300m² and the proposed rent of $300m2 under the offer sits at the top of that range.
It is proposed that subject to Council approval to the leasing of Tenancy 2, formal commercial lease documentation will be prepared by the City’s solicitor, at the lessee’s cost, which would incorporate the disclosure requirements of the Commercial Tenancies (Retail Shops) Act 1985 and will also be subject to the consent of the Minister for Lands.
In addition, the lessee will be responsible for the proposed fit-out of the premises and any fees associated with relevant development applications, change of use and building approvals required.
Comment
The proposed lease to Sharon Johnson and Joy Ann Smith for the establishment of a hair dressing and beauty salon is supported by Administration for the following reasons:
· The proposed lease fee is at the top of the current market range based on valuation
· A market review of rent is available at the commencement of the option period
· The current zoning for the land under the Agreed Structure Plan No 2 is ‘commercial’ and a hair dressing and beauty salon is a permitted use
· There is no perceived negative impact on the operation of the library building or the adjoining leased areas.
Statutory Compliance
Section 3.58(3) of the Local Government Act 1995 states that a local government can dispose of property (including leasing) other than by public tender or auction if, before agreeing to dispose of the property:
(a) it gives a local public notice of the proposed disposition –
(i) describing the property concerned;
(ii) giving details of the proposed disposition; and
(iii) inviting submissions to be made to the local government before a date to be specified in the notice, being a date not less than 2 weeks after the notice is first given;
The details required under subsection 3.58(3)(a) include:
(a) the names of all other parties concerned;
(b) the consideration to be received by the local government for the disposition; and
(c) the market value of the disposition as ascertained by a valuation carried out not more than 6 months before the proposed disposition.
Strategic Implications
The leasing of Tenancy 2 Clarkson Library aligns with the following strategy in the Strategic Plan 2006-2021:
‘4.5.2 Identify and develop funding options to support long-term financial planning.’
Policy Implications
Under Council’s adopted Tenancy Policy this disposition (lease) is considered ‘commercial’ and therefore the terms are by negotiation.
Financial Implications
The City will receive an annual lease income stream of $16,650 for rent, with annual CPI increases, and $2,385.48 in variable outgoings (all plus GST) together with an opportunity to review the rent to market at the commencement of the option period. The total annual income of $19,035.48 would be in excess of the budgeted income for 2008/09 of $16,150.
Voting Requirements
Simple Majority
EndStrip - This line will not be printed Please do NOT delete
Recommendation
That Council:-
1. NOTES and supports in principle the proposal made by Sharon Johnson and Joy Ann Smith to lease the 55.5m² portion of the Clarkson Library building known as Tenancy 2;
2. AUTHORISES the Chief Executive Officer to publish a local public notice of its intention to enter into the lease in 1. above in accordance with the requirements of Section 3.58(3) of the Local Government Act 1995;
3. NOTES that a further report will be presented to Council at the conclusion of the public notice period in 2. above.
EndOfRecommendation - This line will not be printed Please do NOT delete
StartOfAttachment - Do not delete this line will not be printed

EndOfAttachment - Do not delete this line will not be printed
File Ref: P23/0097V01
File Name: CA Proposed Sale of Portion of Lot 600 Wattle Avenue Neerabup.doc This line will not be printed dont delete
Responsible Officer: Director, Corporate Services
Disclosure of Interest: Nil
Author: Manager Contracts and Property
Meeting Date: 3 June 2008
Attachment(s): 1
StartStrip - This line will not be printed Please do NOT delete
Issue
To consider the sale of a 10 hectare portion on the southeastern corner (Old Yanchep Road) of Lot 600 Wattle Avenue, Neerabup to Griffin Generation Pty Ltd (Griffin).
Background
The City has the freehold ownership of the following property:-
Address: 570 Wattle Avenue, Neerabup WA 6031
Legal Description: Estate in fee simple and being Lot 600 on Deposited Plan 302260
Certificate of Title: Vol 87 Folio 163A
Griffin Generation Pty Ltd Offer to Purchase
Griffin is proposing a 330MW gas turbine power station to be located on land owned by the City at Lot 600 Wattle Avenue, Neerabup.
Griffin has previously offered to buy land from the City in the southwestern corner of Lot 600 Wattle Avenue, Neerabup (Attachment 1 refers). This land is zoned Industrial under the Metropolitan Region Scheme (MRS).
Council at its meeting of 9 October 2007 (CS03-10/07) resolved as follows –
“That Council:-
1. APPROVES the sale of the 10 Hectare industrial zoned portion of Lot 600 Wattle Avenue, Neerabup to Griffin Generation Pty Ltd for the sum of $10,000,000 plus GST, subject to:-
a) the sale being on an ‘as is’ basis;
b) Griffin Generation Pty Ltd being responsible for the provision of services to the subject site and acknowledging its ongoing obligations for infrastructure provision and associated cell works under the Neerabup Industrial Area Structure Plan No 17; and
c) Western Australian Planning Commission approval of the Subdivision of the 10 hectare site from the balance of Lot 600 and issue of new Certificate of Title within a six (6) month period of this approval.
2. AUTHORISES the Chief Executive Officer and Mayor to execute a Contract of Sale with Griffin Generation Pty Ltd in accordance with the conditions in 1. above.
3. AUTHORISES the Chief Executive Officer to investigate strategic land investment opportunities and report back on recommendations.”
Following this resolution, a contract for sale of land was entered into with Griffin. The contract was conditional upon the approval of the Western Australian Planning Commission (WAPC) to the subdivision of the proposed site from the balance of Lot 600 and the issue of a new Certificate of Title within 6 months of Council’s approval to the sale. The date for these conditions to be met was 9 April 2008.
The subdivision condition did not occur and the contract lapsed, however Griffin still wishes to secure a site on the City’s Lot 600 and has now offered to purchase a 10-hectare portion in the southeast corner of Lot 600 (Attachment 1 refers). The attachment shows indicative boundaries for the 10-hectare site. Final boundaries will be subject to adjustment for road reserves and easement requirements. This land is currently zoned Parks and Recreation under the MRS.
Rezoning of Lot 600
The majority of Lot 600 (formerly Pt Lot 2692) is zoned Regional Reservation – Parks and Recreation. The southwestern corner (approx. 10 hectares and the subject of the previous Contract for Sale) is zoned Industrial Development and is covered by the Neerabup Industrial Area (NIA) Structure Plan.
Council at its meeting held on 30 January 2007, considered report CS06-01/07 dealing with a proposal to rezone the balance of Lot 600 from MRS Parks and Recreation to Industrial Development. As a result, the following resolution was adopted:-
“That Council:-
1. Pursuant to Section 75 of the Planning and Development Act 2005 PREPARES Amendment No. 77 to District Planning Scheme No. 2 by rezoning the balance of Lot 2692 and Crown Reserve 11598 from Parks and Recreation Reservation to the Industrial Development Zone;
2. FORWARDS a copy of the amendment to the Western Australian Planning Commission seeking its consent to advertise;
3. REFERS Amendment No. 77 to District Planning Scheme No. 2 to the Environmental Protection Authority (EPA) pursuant to Section 81 of the Planning and Development Act 2005 subject to 2. above. Should the EPA advise that the amendment does not require assessment, ADVERTISE the amendment for a period of 42 days.
4. REQUESTS the North West District Planning Committee to request the Western Australian Planning Commission to amend the Metropolitan Region Scheme by deleting the Parks and Recreation Reservation over the balance of Lot 2692 and Crown Reserve 11598 and rezoning the land to the Industrial Zone.”
Following protracted discussions with representatives from the Department of Planning and Infrastructure (DPI), it was ultimately agreed that DPI would submit a proposal to the Metropolitan Region Planning Committee (MRPC) to amend the zoning to Public Purposes to create an Energy Precinct. However the report proposed the rezoning of the entire area of Lot 600 and consequently MRPC approved initiating an MRS rezoning of all of Lot 600 to Public Purposes including the land already zoned for Industrial Development. This was not the intended outcome of the City and it is planned to make a submission during the advertising period to have the amendment modified to exclude that part of Lot 600 which is already zoned Industrial from the proposed Public Purposes Reserve.
Energy Precinct Management Plan
The City, in conjunction with Landcorp, has commenced the preparation of a management plan (structure plan/master plan) over the non-Industrial portion of Lot 600 that will deal with the matter of easements, sharing of infrastructure, access and how to address any environmental impact issues. This is being progressed concurrently with the rezoning process and will be required to be endorsed by Council and subsequently approved by the WAPC.
Detail
Griffin is willing to be located within the proposed energy precinct; however they require confirmation of tenure over the land. The preferred location for Griffin is in the southeast corner of the energy precinct, which is supported by Administration. Griffin missed the last power tender, with the next tender due in approximately 2 months. As security of tenure over land is required to be demonstrated in the tender process, should this not be met, Griffin would be delayed a further 12 months. The management plan is being progressed as a matter of urgency in an endeavour to provide an opportunity to progress this alternative offer from Griffin (or any other potential energy generating company).
The previous Contract for Sale to purchase 10 hectares of land in the southwestern corner of Lot 600 was for a price of $100 per square metre plus GST or $10,000,000 plus GST. A valuation undertaken by CB Richard Ellis on 15 May 2008 for the adjacent 10 hectare lot in the southeastern corner of Lot 600 advises that the rate for the land should be $107.50 per square metre or $10,750,000. This higher rate is reflective of increases in land value in the NIA.
Griffin has made an indicative offer of $110 per square metre or $11,000,000. This indicative offer is not binding on Griffin, with legally binding relations only arising once Griffin and the City of Wanneroo agree and execute a formal contract of sale. The contract will incorporate usual terms and conditions for the sale and purchase of land of this nature including that the sale is subject to subdivision of the land from the balance of Lot 600 and new titles issued in respect thereof.
It is proposed that the subject property be provided as is, and as an unserviced site, therefore the provision of road access, power, water and wastewater treatment becomes a cost to the owner of the landholding (Griffin). To maintain the real value of the offer, should settlement be more than 30 days after the Contract for the Sale of Land is formally accepted by the City, Griffin would be required to pay a sum calculated from the 31st day at the same rate as the Prescribed Rate in the Joint Form of the General Conditions for the Sale of Land, currently 9% per annum calculated daily.
This clause will most likely be invoked, as settlement will not take place until issuance of a certificate of title for the new lot, which may not be until early 2009, following the MRS amendment. Griffin do not want this process to continue long term and a mutually acceptable date at which the contract will end should settlement not take place will be negotiated.
These rates would also be applied to any additional City owned land required by Griffin for power or gas lines or other easements.
As a land owner, the City would expect Griffin to meet scheme contributions if the Neerabup Industrial Area (NIA) is extended to cover this land or scheme contributions applicable to a local planning scheme for Lot 600/Energy Precinct. Griffin would also be required to meet the subdivisional conditions and costs of subdividing the Griffin Lot from Lot 600.
Consultation
In accordance with the requirements of Section 3.58 of the Act (see Statutory Compliance section of this report), before the Council is in a position to make a decision on the offer to purchase the Land, it must consider any public submissions received in response to the publication of a Local Public Notice in a newspaper circulating generally throughout the district.
Comment
The delay in action over the rezoning of the balance of Lot 600 has prevented an optimal outcome, that being the location of all power stations on the one site, however, at least in the case of Griffin, it is considered that a positive outcome can be achieved without unnecessary loss of zoned industrial land. Efforts are therefore being made to expedite the MRS processes by undertaking relevant activities concurrently. Key targets are listed below:
MRS Amendment
Advertise amendment June – July 2008
Consideration of submissions/reporting Aug – Nov 2008
Seek approval of Minister Dec 2008
Management Plan
Preparation May – June 2008
Advertising July 2008
Referral to key stakeholders July 2008
Present for adoption by Council Sept 2008
Adoption by WAPC Dec 2008
Discussions with Griffin regarding the potential for the disposal of the Land has therefore been on the basis of:-
1. The Land being provided ‘as is’, subject to subdivision and issue of a separate Certificate of Title;
2. Griffin being responsible for the ongoing infrastructure requirements under the Structure Plan or Local Management Plan;
3. The Land being used for the development of a gas turbine power plant; and
4. Support for the land disposition not being construed as an endorsement for the form of development, with Griffin being required to obtain all environmental and statutory approvals associated with the development.
Whilst in the longer term, land values in the NIA will increase, it is unlikely that services will be brought through to this area for some years. Accordingly, given the valuation provided by CB Richard Ellis at $107.5 sqm (excluding GST), the offer by Griffin at $11,000,000 equates to a rate of $110 sqm and therefore represents good value for the City.
In addition to the proposal being financially attractive, as there is a proposal for another gas turbine power station on adjacent land to the south of the proposed site, co-location benefits can accrue. These benefits include:-
· restrict this activity to the outskirts of the NIA; and
· opportunities for sharing infrastructure provision such as road construction, and easements for gas pipelines;
Given that Griffin are keen to locate into Neerabup, the provision of the proposed 10 hectare site on Lot 600 at the offered rate is considered prudent and will provide the City with a valuable injection of capital funding. However, the sale would be subject to the subdivision of the site, which will require the approval of the Western Australian Planning Commission.
The City, as part of the joint venture subdivision activities with LandCorp has submitted a vegetation clearing application for the adjacent Lot 4 and the subject site on Lot 600. Whilst the application has not been approved to date due to issues with the presence of Carnaby’s Black Cockatoo in the area, a request has been made for this area to be considered separately. If this is successful, then subdivision should not be significantly delayed. However, given that this is a risk, it may be prudent to condition the sale on the subdivision approval being received within a reasonable timeframe to ensure that the proceeds can be received expediently. The payment by Griffin of the 9% Prescribed rate will offset any increase in land values in the short term.
Council at its meeting held on Tuesday 28 August 2007 (CS08 – 08/07) adopted a Business Plan in accordance with the requirements of Section 3.59 of the Local Government Act 1995 (the Act), dealing with a proposal for the subdivision of Lot 2692 (now Lot 600) Wattle Avenue, Neerabup. This proposal is consistent with the intent of the Business Plan, therefore Council can consider subdivision and sale proposals, subject to meeting the requirements of section 3.58 of the Act.
In this instance, the proposal has resulted from a private treaty offer requiring advertising and the presentation of public submissions received (if any) in response to the local public notice prior to a formal decision being made by Council. Accordingly, following the two week advertising period, a further report will be presented to Council for consideration.
Statutory Compliance
3.58. Disposing of property (of the Act)
(1) In this section —
“dispose” includes to sell, lease, or otherwise dispose of, whether absolutely or not;
“property” includes the whole or any part of the interest of a local government in property, but does not include money.
(2) Except as stated in this section, a local government can only dispose of property to —
(a) the highest bidder at public auction; or
(b) the person who at public tender called by the local government makes what is, in the opinion of the local government, the most acceptable tender, whether or not it is the highest tender.
(3) A local government can dispose of property other than under subsection (2) if, before agreeing to dispose of the property —
(a) it gives Statewide public notice of the proposed disposition —
(i) describing the property concerned;
(ii) giving details of the proposed disposition; and
(iii) inviting submissions to be made to the local government before a date to be specified in the notice, being a date not less than 2 weeks after the notice is first given;
and
(b) it considers any submissions made to it before the date specified in the notice and, if its decision is made by the council or a committee, the decision and the reasons for it are recorded in the minutes of the meeting at which the decision was made.
(4) The details of a proposed disposition that are required by subsection (3)(a)(ii) include —
(a) the names of all other parties concerned;
(b) the consideration to be received by the local government for the disposition; and
(c) the market value of the disposition as ascertained by a valuation carried out not more than 6 months before the proposed disposition.
Strategic Implications
This proposal is consistent with the City’s 2006-2021 Strategic Plan and meets the following Outcome Objectives –
“3.1 Increase availability of serviced commercial and industrial land; and
3.2 Improve regional infrastructure
4.5 Improve long-term financial viability”
Policy Implications
Nil
Financial Implications
The disposal of this Land would result in proceeds in the order of $11,000,000 (excluding GST) for the 10-hectare site. This income has been provided for in the Draft 2008/09 Budget. The City is expected to incur costs of approximately $90,000 for the preparation of the energy precinct management plan. This expense is budgeted for in the 2007/08 and 2008/09 budget as part of the Neerabup Industrial Area development costs.
Voting Requirements
Simple Majority
EndStrip - This line will not be printed Please do NOT delete
Recommendation
That Council:-
1. NOTES the offer submitted by Griffin Generation Pty Ltd for the purchase of a 10 hectare site on the south-eastern portion of the City’s Lot 600 Wattle Avenue, Neerabup;
2. AUTHORISES the publication of a Local Public Notice in the Wanneroo Times outlining the proposed disposition in 1. above in accordance with Section 3.58 (3) of the Local Government Act 1995; and
3. NOTES that a further report will be presented at the conclusion of the public submission period to formally consider the proposed disposition in 1. above.
EndOfRecommendation - This line will not be printed Please do NOT delete
ATTACHMENT 1
StartOfAttachment - Do not delete this line will not be printed

EndOfAttachment - Do not delete this line will not be printed
File Ref: C08010V01
File Name: AA Tender 08010 The Provision of a Delivered Meal Service to Eligible Aged and Disabled Residents for a Period of Two.doc
Responsible Officer: Director Community Development
Disclosure of Interest: Nil
Author: Ronda Raymond
Meeting Date: 03 June 2008
Attachment(s): Nil
StartStrip - This line will not be printed Please do NOT delete
Issue
To consider the assessment and recommendation of Tender No. 08010 – Provision of a Delivered Meal Service to Eligible Aged and Disabled Residents of the City of Wanneroo.
Background
The City has a current contract to provide a delivered frozen meal service for eligible aged and disabled residents living within the City of Wanneroo until 30 June 2008. The City requires the contractor to provide approximately 21,436 meals to at least 82 residents as part of its Home and Community Care (HACC) program. Clients receiving home support through the Community Aged Care Package (CACP) programs are also eligible for the service.
Detail
Tender 08010 for the Provision of a Delivered Meal Service to Eligible Aged and Disabled Residents was advertised on 5 April 2008 and closed on 22 April 2008. The service is advertised for a period of 2 years (1 July 2008 to 30 June 2010), with the option to extend for a further 12 months.
The contract is dependent on the Department of Health WA funding, thus, it would terminate if the funding were to cease.
Three (3) tender submissions were received from the following contractors at tender closing date:
· Acri Pty Ltd trading as Home Chef
· City of Stirling
· Aurum Catering Management Services
The tender evaluation team comprising of the Team Leader Aged and Disability Services, Project Officer Community Services and the Contract Officer has evaluated the tenders and signed off the evaluation report in accordance with the following assessment criteria as detailed in the tender document: -
|
Selection Criteria |
Weighting |
|
Tenderer’s Industry Experience |
30% |
|
Price for the Services Offered |
25% |
|
Tenderer’s Quality Control Measures |
25% |
|
Tenderer’s Demonstrated Strategies to Reduce Carer Turnover for Individual Clients |
20% |
|
TOTAL |
100% |
Tenderer’s Industry Experience
All tender submissions have achieved the maximum points as they have demonstrated extensive experience in the catering industry.
Acri Pty Ltd t/a Home Chef began in 1995 and has contracts with the City of Wanneroo, Perth Inflight Centre Airline Catering, Community Vision, etc. They are experienced in supplying a variety of meals to suit individual needs e.g. diabetic, low fat, halal.
City of Stirling has over 30years experience supplying meals to residents of City of Stirling, City of Swan, Shire of Mundaring, and Town of Bassendean. They deliver 135,000 meals per annum; offers weekly menu and currently provide special meals to 37% of current clientele.
Aurum Catering Management Services has current contract with Rosewood Care Group, Baptist Care and Catholic Homes Inc, making them the largest provider of aged care catering services in WA. They provide approximately 65,000 meals on wheels annually to about 275 recipients.
This criterion represents 30% of the total score.
|
Tenderer |
Ranking |
|
Acri Pty Ltd t/a Home Chef |
1 |
|
City of Stirling |
1 |
|
Aurum Catering Management Services |
1 |
Prices for the Services offered
Acri Pty Ltd t/a as Home Chef charges $6.70 per meal for the first and second year of the contract. Home Chef has not increased the cost of meal provision since 2006.
City of Stirling charges $9.40 per meal for the first year and $8 plus HACC subsidy on the second year. The current HACC subsidy is $1.70 per meal.
Aurum Catering Management Services charges $8.70 per meal for the first year and $9.10 per meal for the second year.
This criterion represents 25% of the total score and resulted in the following ranking:
|
Tenderer |
Ranking |
|
Acri Pty Ltd t/a Home Chef |
1 |
|
Aurum Catering Management Services |
2 |
|
City of Stirling |
3 |
Tenderer’s Quality Control Measures
Acri Pty Ltd t/a Home Chef considers the medical conditions to be an integral part of the meals program and works on and off with dieticians. Their freezers and cool room are gauge monitored in accordance with the Foodsafe Plus Guidelines. They have a comprehensive OSH Management System and complaints procedure set in place, City of Swan regularly inspects the premises and HACCP audits are carried out on a six monthly basis.
City of Stirling takes a proactive approach in food safety and labelling requirements, liaising regularly with FSANZ, AMOWA (Australian Meals on Wheels Association), Department of Health WA, and other regulatory bodies. They have a comprehensive OSH Management System; have won the Worksafe Awards for Best Practice for 2006 in the category of Innovation for its manual handling systems; and holds HACCP accreditation.
Aurum Catering Management Services menus are reviewed and approved by a qualified dietician. They have submitted their OSH manual which includes policy, responsibilities, induction, inspections, Safety Inspection report, accident/incident report, OHS log, and Preventative maintenance schedule. They also have HACCP certification.
This criterion represents 25% of the total score and resulted in the following weighting: -
|
Tenderer |
Ranking |
|
Acri Pty Ltd t/a Home Chef |
1 |
|
City of Stirling |
2 |
|
Aurum Catering Management Services |
3 |
Tenderer’s Demonstrated Strategies to Reduce Carer Turnover for Individual Clients
Acri Pty Ltd t/a Home Chef has a small team of staff who are trained to HACCP standards. Home Chef drivers are trained in the duty of care to clients. Home Chef management contribute tostaff retention by ensuring quick responses to any concerns and/or issues.
City of Stirling employs 10 permanent staff and has a large pool of volunteers who are provided with induction and ongoing training. The average length of service for current staff is 11 years. They offer an attractive Employee Consultative Agreement; flexible working arrangements and staff are able to avail other services available to all City of Stirling employees.
Aurum Catering Management Services staff undergo training regardless of their qualifications and experience. All staff are paid according to the appropriate Award.
This criterion represents 20% of the total score and resulted in the following weighting: -
|
Tenderer |
Ranking |
|
Acri Pty Ltd t/a Home Chef |
1 |
|
City of Stirling |
1 |
|
Aurum Catering Management Services |
2 |
Overall Ranking Assessment
The weighted score analysis resulted in the following overall ranking:
|
Tenderer |
Ranking |
|
Acri Pty Ltd T/as Home Chef |
1 |
|
City of Stirling |
2 |
|
Aurum Catering Management Services |
3 |
Consultation
The tender evaluation team assessed the applications in line with the City’s tender process.
Comment
In view of the above analysis, the tender evaluation team recommends that Acri Pty Ltd trading as Home Chef is accepted as the successful tenderer. It is evident from the information above that Home Chef offers the best value for money, and being the current contractor for the City’s home delivered meals, the City is already acquainted with the quality of service that they provide.
Statutory Compliance
Tenders have been invited and properly evaluated against the selection criteria in accordance with Section 3.57 of the Local Government Act 1995 and associated regulations.
The Manager Contracts and Property Services has reviewed the tender evaluation for compliance and fairness and is satisfied with the process.
Strategic Implications
The provision of these services is consistent with the City of Wanneroo’s Strategic Plan (2006-2021).
“Social
2.3.1 Provide or facilitate access to services and facilities that support inclusive communities.”
Policy Implications
Nil
Financial Implications
|
Item |
CoW Income |
CoW Expenditure |
|
Contract value for provision of 21,436 meals @ $6.70/meal |
|
$143,621 |
|
Client contribution 21,436 meals @ $6.25/meal |
$133,975 |
|
|
DoH HaCC funding 21,436 meals @ $1.70/meal |
$36,441 |
|
|
Cost meal and administration overhead costs |
|
$ 26,795 |
|
Total |
$170,416 |
$170,416 |
The variance between grants funding and client fees income, and the budgeted contract labour expenses of $26,795 covers part of the administration charges, overhead costs and salaries of the Aged and Disability Services Team.
It is to be noted the volume of contract labour expenses for the above mentioned service may vary, to ensure the most effective and efficient way of utilising available resources and delivery of services.
Voting Requirements
Simple Majority
EndStrip - This line will not be printed Please do NOT delete
Recommendation
That Council ACCEPTS Tender 08010 from Acri Pty Ltd trading as Home Chef (WA) for the supply and delivery of a Delivered Meals Service to Eligible Aged and Disabled Residents for the period 1 July 2008 to 30 June 2010, with an option to extend a further 12 months, as per the schedule of rates and general conditions of tendering.
EndOfRecommendation - This line will not be printed Please do NOT delete
File Ref: C08009V01
File Name: AA Tender 08009 The Provision of Specialist Care Services for Eligible Aged and Disabled Residents.doc This line will not be
Responsible Officer: Director Community Development
Disclosure of Interest: Nil
Author: Ronda Raymond
Meeting Date: 03 June 2008
Attachment(s): Nil
StartStrip - This line will not be printed Please do NOT delete
Issue
To consider the assessment and recommendation of Tender No. 08009 – The Provision of Specialised Care Services for Eligible Aged and Disabled Residents of the City of Wanneroo.
Background
The City receives grant funding from the Federal and State Department of Health and Ageing through its Home and Community Care Program (HACC) and Community Aged Care Program (CACP) for the provision of its home support services to eligible aged and disabled residents of the City of Wanneroo.
The aim of HACC services is to assist frail aged people and younger people with disabilities, and their carers to remain living independently within the community. These support services are provided Monday to Friday with only the occasional need for service on a weekend or public holiday. Listed below are the service types and volume required by HACC as per its latest Service Specification Schedule: -
|
Service Type |
Current Number of Hours Per Annum |
|
Domestic Assistance (home help) |
8,509 |
|
Personal Care |
2,215 |
|
Respite (in home) |
754 |
|
Social Support |
3,247 |
CACP provides services to assist and support the frail aged person with complex needs to remain living within the community. These support services can be required outside of normal hours, on weekends and sometimes on Public Holidays. The City has currently 18 packages available to CACP eligible residents.
Since the inception of HACC and CACP services at the City of Wanneroo, the delivery of in home support services to eligible residents has always been contracted out to external agencies.
§ In May 2006, the City advertised Tender 06020 and subsequently appointed Stanhope Nursing Services to provide specialised care services for eligible aged and disabled residents living within the City of Wanneroo for a period of two years (1 July 2006 to 30 June 2008).
§ Since that appointment, Stanhope had encountered difficulty in meeting its contractual obligations to the City due to labour market shortages and limited available resources, which is a reflection of broader industry conditions.
§ These difficulties led the City to tender (06073) for a second supplier in early November 2006 and subsequently awarded an eighteen months (1 January 2007 to 30 June 2008) contract to AT & A t/a HomeCare Options.
§
In December 2007, Administration appointed in-house casual Home
Support workers to address the ongoing inability of Stanhope to meet its
contractual obligation.
§ In
January 2008, Stanhope formally submitted its intention to terminate its
contract with the City effective 14th April 2008.
§ The City now employs eight (8) part time Home Support workers on a temporary contract arrangement up to 30th June 2008 to deliver domestic assistance services up to 75 hours per week with occasional social support and respite services as required.
Detail
On 5 April 2008, Tender 08009 was advertised for the Provision of Specialised Care Services for Eligible Aged and Disabled Residents of the City of Wanneroo for a period of two years (1 July 2008 to 30 June 2010), with an option to extend for another 12 months. The contract is dependent on HACC and CACP funding, and it would terminate if funding were to cease.
AT & A trading as HomeCare Options was the sole tenderer received at tender closing on 22 April 2008. As there were no other submissions to compare, the tender evaluation team used available information from existing contracts and other contractors, the Consumer Price Index (CPI) and the current industry conditions when assessing HomeCare Options’ submission based on the criteria listed below as detailed in the tender document: -
|
Selection Criteria |
Weighting % |
|
|
Quality of Service & Previous Experience |
30 |
|
|
Price for Services |
25 |
|
|
Safety Management |
25 |
|
|
Resources |
20 |
|
|
TOTAL |
100 |
|
Consultation
The tender evaluation team was comprised of the Team Leader Aged and Disability Services, Project Officer Community Services and the Contract Officer.
Quality of Service and Previous Experience
HomeCare Options was established in 2002 to meet the growing need for broad-based community care provision. It currently provides CACP and EACH care packages, Department of Veteran Affairs’ Nursing and HomeCare services, Disability Service Commission Intensive Family Services, and various brokered HACC services on both short term and long term arrangements.
HomeCare Options has current contracts with the City of Wanneroo, City of Subiaco, Multiple Sclerosis Society, Parkinsons Association, Silver Chain and the Neurological Disease Council. It also provides discharge packages for Osborne Park Hospital, Swan Health Services, Royal Perth Hospital and Armadale Health Services.
This criterion represents 30% of the total score.
Price for services
The price is within the unit budget allowances for 2008-2010 for the specialised care services and represents an overall increase of approximately 14% in the first year of service delivery and 6% in the second year of service delivery from the previous contract. This price reflects the current service provision costs for Specialised Home Care in the industry.
This criterion represents 25% of the total score.
Safety Management
HomeCare Options has satisfactorily addressed all the questions regarding Occupational Health and Safety (OHS) Management System in the tender documents and has provided comprehensive documentation relevant to its safety management system.
This criterion represents 25% of the total score.
Tenderer’s Resources
Listed below are details of qualifications and/or experience of direct care staff proposed to be used in this contract: -
· 74% of care staff have Certificate 3 – Aged/Community of Disability Care
· 14% of care staff are currently undertaking tertiary studies in a care-related discipline, i.e. nursing
· 82% of care staff have been working within the aged or community care industry for over 3 years
· Personal Care Staff without Certificate 3 have either demonstrated and consolidated experience or are currently studying in a health or nursing related discipline.
· All staff working with clients under the age of 18 years have a current “Working with Children’s” check
· All direct care staff have a current Police Clearance.
All staff must attend an annual programme of mandatory training which includes: occupational safety, manual handling, cross-cultural awareness, medication management, first aid and care documentation.
This criterion represents 20% 0f the total score.
Comment
It is the panel’s recommendation that HomeCare Options be appointed as the contracted agency for the provision of HACC and CACP in home support services for the following reasons:
1. HomeCare Options have qualified personnel on board and provides extensive community care services to established agencies such as the Silver Chain Association, Neurological Society of WA, City of Subiaco, etc.
2. HomeCare Options’ fees and charges are considered to be reasonably based on the current industry service charges.
3. The appointment of HomeCare Options will cause nil or minimal disruption to the HACC and CACP clients already receiving services from HomeCare Options.
4. The City of Wanneroo has already established excellent partnership with the management of HomeCare Options in delivering in home support services to the City’s HACC and CACP clients since the latter’s appointment in January 2007.
5. HomeCare Options has satisfactory complied with the contract selection criteria.
Administration will continue to supplement this contract with in-house direct Home Support workers for the following reasons: -
· To ensure the City meets all contractual requirements
· To provide a flexible service delivery model to clients
· To provide clients with a choice of service providers.
Statutory Compliance
Tenders have been invited and properly evaluated against the selection criteria in accordance with Section 3.57 of the Local Government Act 1995 and associated regulations.
The Manager of Contracts and Property has reviewed the tender selection process for fairness and compliance and is satisfied with the evaluation process and result.
Strategic Implications
The provision of these services is consistent with the City of Wanneroo’s Strategic Plan (2006-2021) outcomes and objectives.
“Social- Healthy safe vibrant and connected communities
2.1 Increase choice and quality of neighbourhood and lifestyle options”
Policy Implications
Nil
Financial Implications
The Aged and Disability Service unit has proposed the following budget for Contract Labour Expenses in 2008/2009 for the services listed below: -
HACC Specialised Care Services
|
HACC Specialised Services |
CoW Income |
CoW Expenditure |
|
HACC Contract value funding from State Dept of Health |
$459,610 |
|
|
Client contribution |
$51,707 |
|
|
Contract Labour expenses |
|
$428,624 |
|
Partial service cost and administration overheads |
|
$82,693 |
|
Total |
$511,317 |
-$511,317 |
Community Aged Care Packages Specialised Care Services
|
Community Aged Care Packages (CACP) |
CoW Income |
CoW Expenditure |
|
CACP Contract value from Dept Health & Ageing |
$224,224 |
|
|
Client contribution |
$18,720 |
|
|
Contract Labour expenses |
|
$170,352 |
|
Partial service cost and administration overheads |
|
$72,592 |
|
Total |
$242,944 |
-$242,944 |
The variance between grants funding together with client fees income, and the budgeted contract labour expenses have been accounted to cover part of the administration charges, overhead costs and salaries of the Aged and Disability Services Team.
It is to be noted that the volume of contract labour expenses for the above mentioned service types may vary, to ensure the most effective and efficient way of utilising available resources and delivery of services.
Voting Requirements
Simple Majority
EndStrip - This line will not be printed Please do NOT delete
Recommendation
That Council:
1. ACCEPTS the tender from AT&A Pty Ltd trading as HomeCare Options for the supply and delivery of Specialised Care Services For Eligible Aged And Disabled Residents for a period of two years from 1 July 2008 to 30 June 2010, with an option to extend for another 12 months, within the value of the 2008/09 budget allocation, as per the schedule of rates and general conditions of tendering.
2. NOTES the continued delivery of In House support Specialised Care Services by the City of Wanneroo.
EndOfRecommendation - This line will not be printed Please do NOT delete
File Ref: P34/2596V01, P25/0637V01, P34/0588V01, P12/0104V01
File Name: CA Applications To Keep More Than Two Dogs.doc This line will not be printed dont delete
Responsible Officer: Acting Director Community Development
Disclosure of Interest: Nil
Author: Kelly Temperton
Meeting Date: 3 June 2008
Attachment(s): Nil
StartStrip - This line will not be printed Please do NOT delete
Issue
To consider these applications for an exemption to Council’s Local Laws made under Section 26(3) of the Dog Act 1976 to keep more than two dogs.
Background
Clause 14 of the City of Wanneroo Animal Local Laws 1999 stipulates:
“A person shall not keep or permit to be kept on any premises more than:
a) 2 dogs over the age of 3 months and the young of those dogs under that age; or
b) 6 dogs over the age of 3 months and the young of those dogs under that age if the premises are situated within a rural area or comprise a lot in a special rural area having an area of 4 hectares or more;
unless the premises is licensed as an approved kennel establishment or has been granted an exemption pursuant to section 26(3) of the Dog Act 1976 and have planning approval under the Town Planning Scheme.”
Detail
The following applications have been made under the Dog Act 1976 and are submitted for consideration.
|
Address of Applicants |
Description of Dogs |
|
16 Towarda Way, Wanneroo |
Female unsterilised tan Lhasa Apso cross Female unsterlised tan Terrier Male sterilised brown Terrier cross |
|
88 Archer Street, Pearsall |
Male sterilised tan and white Jack Russell Terrier Female sterilised tan and white Jack Russell Terrier Male unsterilised tri colour Staffordshire Bull Terrier/Kelpie cross |
|
15 Jacaranda Drive, Wanneroo |
Female unsterilised brown and white Cavalier King Charles Spaniel Male sterilised brindle Staffordshire Bull Terrier Male unsterilised black Cavalier King Charles Spaniel |
|
225 Sydney Road, Gnangara |
Male unsterilised brown Rhodesian Ridgeback/Doberman cross Female sterilised white Maltese Terrier cross Female unsterilised black Doberman cross Female unsterilised back Rottweiler cross |
|
19 Emerald Drive, Carabooda
|
Female unsterilised tri colour Blue Heeler Female unsterilised tri colour Blue Heeler Male unsterlised tri colour Red Heeler |
Rangers have inspected these properties to ensure means exist on the premises at which the dogs will ordinarily be kept for effectively confining the dogs within these premises.
|
Address of Applicants |
Property Zonings |
Size of Properties |
|
16 Towarda Way, Wanneroo |
Residential |
0.0756 hectares |
|
88 Archer Street, Pearsall |
Residential |
0.0535 hectares |
|
15 Jacaranda Drive, Wanneroo |
Special Residential |
0.4062 hectares |
|
225 Sydney Road, Gnangara |
Special Rural |
1.0032 hectares |
|
19 Emerald Drive, Carabooda |
Special Rural |
2.0015 hectares |
It has been the practice where applications have been received by the City to keep more than two dogs, that residents immediately adjoining the applicant’s property in question have been consulted by letter to ascertain if they have any objections.
On this occasion the following objections have been received:
16 Towarda Way, Wanneroo
Number of residents consulted: 5
Number of objections received: 1
88 Archer Street, Pearsall
Number of residents consulted: 2
Number of objections received: 2 (1 objection has since been withdrawn on 28 May 2008)
15 Jacaranda Drive, Wanneroo
Number of residents consulted: 4
Number of objections received: 1
225 Sydney Road, Gnangara
Number of residents consulted: 3
Number of objections received: 0
19 Emerald Drive, Carabooda
Number of residents consulted: 0 (adjoining properties - Emerald Park and vacant land)
Number of objections received: 0
Comment
In considering these applications for exemption, the following two options are available:
a) Council may grant an exemption pursuant to Section 26(3) of the Dog Act 1976 subject to conditions;
b) Council may refuse permission to keep more than two dogs.
16 Towarda Way, Wanneroo
The applicant is seeking permission from the City to keep more than two dogs on her premises. The third dog “Marley” a male, brown Terrier cross belongs to the applicant’s daughter who has moved into the applicant’s premises whilst her husband acquires accommodation in the north of Western Australia. It is anticipated that this may take up to twelve months. Following the family’s relocation to the north, the exemption if granted by Council would lapse. Ranger and Safety Services would be tasked with ensuring that the re-homing of the third dog takes place.
A check of the City’s records reveals that prior to this application being made, no previous complaints have been lodged with Ranger and Safety Services in relation to the original dogs at the property.
Upon consultation with immediate adjoining neighbours one objection was received. Since the objection was been received an additional objection email with four names has been received together with an objection form from another neighbour, who does not immediately adjoin the property. As a result of this, letters, information packs and seven-day diaries were also sent to the above-mentioned neighbours as standard practice. Where seven-day diaries are not completed and returned, it is assumed that the barking is not considered to be a significant problem - to date no completed seven-day diaries have been returned. It should also be noted that this application may be varied or revoked should further complaints be received which are considered reasonable.
All of the objecting neighbours have been advised of the City’s due processes in relation to processing these requests and are aware of their opportunities to raise any further concerns in regard to this application.
The inspecting Ranger has assessed that the property is adequate for the confinement and exercise of the dogs. The boundary fences and gates stand at 1.8 metres high. Fences and gates are in compliance with regulations. The dogs are kept in a large rear yard and sleep either in the shed, house or on external beds. The Ranger has recommended that an exemption to the City of Wanneroo Local Laws 1999 made under Section 26(3) of the Dog Act 1976 be granted.
88 Archer Street, Pearsall
The applicant is seeking permission from the City to keep more than two dogs at her property at 88 Archer Street, Pearsall. One of the original dogs belongs to her son and the other belongs to her daughter. The third dog (being the subject of this application) belongs to her partner. The applicant advises that the extended family view the dogs as an essential part of their lives.
A check of the City’s records reveals that prior to this application one previous complaint has been lodged with Ranger and Safety Services relating to barking at the above-mentioned property. Upon consultation with neighbouring properties the City has received two objections.
The inspecting Ranger advises that since the objections have been received the applicant has installed an internal dividing fence to keep the dogs away from the adjoining properties and have also obtained barking dog collars. The Ranger is continuing to liaise with the complainants and dog owner in an effort to assist in resolving the barking nuisance. It should also be noted that this application may be varied or revoked should further complaints be received which are considered reasonable.
All of the objecting neighbours have been advised of the City’s due processes in relation to processing these requests and are aware of their opportunities to raise any further concerns in regard to this application.
The Ranger has assessed that the property is adequate for confining the dogs and the fences and gates are in compliance with regulations. The dogs are kept in a medium rear yard and sleep on the patio at night. The Ranger has recommended that an exemption to the City of Wanneroo Local Laws 1999 made under Section 26(3) of the Dog Act 1976 be granted.
15 Jacaranda Drive, Wanneroo
The applicant is seeking permission from the City to keep more than two dogs at her property at 15 Jacaranda Drive, Wanneroo. The third dog is a five month old Cavalier King Charles Spaniel. A check of the City’s records reveal that prior to this application no previous complaints have been lodged with Ranger and Safety Services in relation to the original dogs at the above‑mentioned property. Upon consultation with neighbouring properties the City received one objection.
It has been the practice that when an objection is received relating to barking, a letter, information pack and a seven-day diary is sent to the objector. If the seven-day diary is not completed and returned it is assumed that the barking problem is not considered to be a significant problem. In this instance, to date no completed seven-day diary has been returned. It should also be noted that this application may be varied or revoked should further complaints be received which are considered reasonable.
The objecting neighbour has been advised of the City’s due processes in relation to processing these requests and is aware of their opportunities to raise any further concerns in regard to this application.
The inspecting Ranger advises that the property is adequate for the confinement and exercise of the dogs. Fences and gates are in compliance with regulations. The dogs are kept in a large back yard and two of the dogs sleep inside at night whilst the third dog sleeps outside. The Ranger has recommended that an exemption to the City of Wanneroo Local Laws 1999 made under Section 26(3) of the Dog Act 1976 be granted.
225 Sydney Road, Gnangara
The applicant is seeking permission from the City to keep more than two dogs at her property at 225 Sydney Road, Gnangara. The additional two dogs are a Doberman cross pup and a Rottweiler cross pup. The applicant advises that there have been several break-ins in the area recently and it is assumed the dogs would improve the applicant’s home and property safety as a deterrent to would be thieves. A check of the City’s records reveals that prior to this application being made, no previous complaints have been lodged with Ranger and Safety Services in relation to the dogs at the above-mentioned property. Upon consultation with neighbouring properties the City received no objections.
The inspecting Ranger advises that the property is more than adequate for the confinement and exercise of the dogs. Fences are 1.8 metres high cyclone fencing and the gates are also 1.8 metres high and are in compliance with regulations. The dogs sleep on a trampoline, elevated bed in a kennel, in the garage. The Ranger has recommended that an exemption to the City of Wanneroo Local Laws 1999 made under Section 26(3) of the Dog Act 1976 be granted.
19 Emerald Drive, Carabooda
The applicant is seeking permission from the City to keep more than two dogs at her property at 19 Emerald Drive, Carabooda. The third dog is a Red Heeler. A check of the City’s records reveals that prior to this application being made, one previous complaint has been lodged with Ranger and Safety Services in relation to barking at the above-mentioned property, which has subsequently been resolved. No consultation with immediately adjoining neighbouring properties was undertaken due to one property being vacant land and the other being Emerald Park.
The inspecting Ranger advises that the property is more than adequate for the confinement and exercise of the dogs. Fences and gates are in compliance with regulations. The dogs sleep in properly constructed brick and wire kennels on a concrete base. The Ranger has recommended that an exemption to the City of Wanneroo Local Laws 1999 made under Section 26(3) of the Dog Act 1976 be granted.
Statutory Compliance
This application for exemption to Council’s Local Laws made under Section 26(3) of the Dog Act 1976 has been detailed in this report.
Strategic Implications
“2.4 Improve Community Safety
2.4.4 Develop and implement a range of activities that promote community safety and well being.”
Policy Implications
Nil
Financial Implications
Nil
Voting Requirements
Simple Majority
EndStrip - This line will not be printed Please do NOT delete
Recommendation
That Council:-
1. GRANTS an exemption to the City of Wanneroo Animal Local Laws 1999 made under Section 26(3) of the Dog Act 1976 to keep more than two dogs at 16 Towarda Way, Wanneroo, 88 Archer Street, Pearsall, 15 Jacaranda Drive, Wanneroo, 225 Sydney Road, Gnangara, 19 Emerald Drive, Carabooda subject to the specified conditions:
a. If any one of the dogs die or is no longer kept on the property, no replacement is to be obtained;
b. Any barking by the subject dogs is to be kept to a minimum;
c. This exemption may be varied or revoked if any complaints are received which are considered reasonable;
d. The exemption at 16 Towarda Way, Wanneroo will lapse upon relocation of the applicant’s daughter’s dog.
2. RESERVES THE RIGHT to vary or revoke, at any future date, the exemption given to the applicant should any relevant conditions be contravened.
3. ADVISES the adjoining neighbours of this decision.
EndOfRecommendation - This line will not be printed Please do NOT delete
File Ref: S07/0057V03
File Name: AA Donation requests to be considered by Council.doc This line will not be printed dont delete
Responsible Officer: Director, Governance & Strategy
Disclosure of Interest: Nil
Author: Tammy Cumbers
Meeting Date: 3 June 2008
Attachment(s): 1
StartStrip - This line will not be printed Please do NOT delete
Issue
To consider a request for a donation in accordance with the City’s Donations, Sponsorships and Waiver of Fees and Charges Policy.
Background
The Donations, Sponsorships and Waiver of Fees and Charges policy requires applications over $500 from individuals and organisations to be determined by Council. Consequently a report is prepared for Council meetings, coinciding with a period where applications of this nature have been received.
Detail
During this period, the City has received one request for a donation to be considered by Council. The request is summarised on the following pages. The application has been included in an attachment to this report (Attachment 1).
Comment
|
Applicant 1 – Wheelchairs for Kids |
|
|
Request amount |
$1,000.00 |
|
Description of request |
Donation towards the purchase of wool to enable blankets to be knitted and supplied with wheelchairs for disabled children. |
|
Criteria |
Evaluation |
|
Potential for income generation |
No |
|
Status of applicant organisation |
Registered Charity |
|
Exclusivity of the event or project |
Wheelchairs are distributed to disabled children in third world countries free of charge. |
|
Alignment with Council’s existing philosophies, values and strategic direction |
This request supports Objective 2.2 of Council’s Strategic Plan being “Improve the City’s identity and community wellbeing through arts, culture, leisure and recreation.” |
|
Alternative funding sources available or accessed by the organisation |
Not specified |
|
Contribution to the event or activity made by the applicant or organisation |
Habourside Village Residents knit the blankets for Wheelchairs for Kids. At a workshop in Wangara retiree volunteers produce over 200 specially sturdy wheelchairs per month for distribution to these needy children. |
|
Previous funding assistance provided to the organisation by the City |
Nil |
|
Commitment to acknowledge the City of Wanneroo |
Not specified. |
|
Comments |
Harbourside Village are not incorporated, therefore they require their request to be presented by Wheelchairs for Kids (being an incorporated organisation). The City’s policy states that 75% of the groups’ membership must be residents of the City of Wanneroo. Harbourside Village (where the volunteers who knit are located) is located in Mindarie and Wheelchairs for Kids is located in Wangara. |
|
Recommendation |
APPROVE a donation of $1,000 to Wheelchairs for Kids towards the purchase of wool to enable blankets to be knitted and supplied with wheelchairs for disabled children. |
Statutory Compliance
Nil
Strategic Implications
This request supports the following objective in the City’s Strategic Plan:
“2.2 Improve the City’s identity and community wellbeing through arts, culture, leisure and recreation.”
Policy Implications
This report complies with the provisions and delegations of the Donations, Sponsorships and Waiver of Fees and Charges policy.
Financial Implications
|
Budget 2007/2008 Governance Award Donations |
$44,000 |
|
Amount expended to date
Under delegated authority: By Council determination: |
$15,122.58 $16,441.65 $31,564.23 |
|
Impact of approval of recommended delegated authority applications: Sponsorships: Donations and Waiver of fees: |
$0.00 $1,000.00 |
|
TOTAL |
$1,000.00 |
|
Remaining funds |
$11,487.77 |
Voting Requirements
Simple Majority
EndStrip - This line will not be printed Please do NOT delete
Recommendation
That Council APPROVE a donation of $1,000 to Wheelchairs for Kids towards the purchase of wool to enable blankets to be knitted and supplied with wheelchairs for disabled children.
EndOfRecommendation - This line will not be printed Please do NOT delete
ATTACHMENT 1
StartOfAttachment - Do not delete this line will not be printed

EndOfAttachment - Do not delete this line will not be printed
File Ref: S13/0024V01
File Name: AA Three Year Strategic Audit Plan.doc This line will not be printed dont delete
Responsible Officer: Director Governance and Strategy
Disclosure of Interest: Nil
Author: Karen Caple
Meeting Date: 3 June 2008
Attachment(s): Nil
StartStrip - This line will not be printed Please do NOT delete
Issue
To consider the Audit Committee’s recommendation to adopt the draft Three Year Audit Plan for the purpose of calling of tenders for Internal Audit Services for a three year period commencing 1 October 2008.
Background
Council at its Ordinary Council Meeting on the 23 June 2005 resolved as follows:
“That the Audit Committee RECOMMEND to Council the ACCEPTANCE of Tender No 05511 submitted by Stamfords Advisors and Consultants Pty Ltd for the provision of Internal Audit Services for the period from 20 July 2005 to 30 June 2008 for an indicative lump sum price of $86,800.”
In accordance with the above resolution the contract between the Council and Stamfords Advisors and Consultants Pty Ltd will conclude on the 30 June 2008. An extension of this contract has been requested until 30 September 2008, to allow for the finalisation of the new tender documentation, leading ultimately to Council approval of the appointment of the City’s new Internal Audit Service Provider for a new three year period.
Detail
The City’s Internal Auditors - Stamfords Advisors and Consultants Pty Ltd, in partnership with the City’s Risk Management Sub-unit were requested to develop a Three Year Audit Plan 2008-2011 for consideration, based on a risk assessment profile of the organisation.
This Risk Assessment profile for the City was developed by undertaking 25 individual workshops or meetings across the organisation with staff from each service unit / directorate. The risks identified were collated as ‘raw data’ and these perceived risks were then categorised and risk ratings applied in order to develop the Risk Assessment Profile. The Profile has then been used to develop the draft Three Year Audit Plan for consideration.
The Audit Committee meeting held on 13 May 2008 considered the Risk Assessment Profile and draft Three Year Audit Plan, and recommended that the Plan be forwarded to Council for consideration and adoption.
Comment
The draft Three Year Audit Plan is required to be inserted in the Contract under development to form the scope of work to go out to tender for a new contractor Internal Audit Services.
Statutory Compliance
Tenders for Internal Audit Services will be invited and evaluated for the purpose of short-listing in accordance with Section 3.57 of the Local Government Act 1995 and associated Regulations. A report will then be presented to the Audit Committee for consideration before seeking final approval from Council.
Strategic Implications
In accordance with the City’s Strategic Plan 2006-2021 outcome objectives:
“4.4 Improve business performance and the quality of service delivery; and
4.7 Maintain a high standard of governance and accountability.”
Policy Implications
Nil
Financial Implications
Funds have been included in the draft 2008/09 budget relating to Internal Audit Service provision, which is currently under consideration by Council.
Voting Requirements
Simple Majority
EndStrip - This line will not be printed Please do NOT delete
Audit Committee Recommendation – 13/05/2008
That Council ADOPT the Three Year Audit Plan as detailed below, which will form the scope of works for the calling of tenders for the provision of Internal Audit Services.



EndOfRecommendation - This line will not be printed Please do NOT delete
File Ref: S07/0057V03
File Name: A Donation Requests Considered Under the Delegated Authority of the Chief Executive Officer.doc This line will not be printed
Responsible Officer: Chief Executive Officer
Disclosure of Interest: Nil
Author: Tammy Cumbers
Meeting Date: 3 June 2008
Attachment(s): Nil
StartStrip - This line will not be printed Please do NOT delete
Issue
To note donation applications considered and determined by the Chief Executive Officer during April 2008, in accordance with the provisions of the Donations, Sponsorships and Waiver of Fees and Charges policy.
Background
The Donations, Sponsorships and Waiver of Fees and Charges policy delegates the consideration and determination of requests for donations, sponsorships and the waiver of fees and charges under the value of $500 to the Chief Executive Officer.
Detail
During April 2008, the City received the following requests to be considered under the delegated authority of the Chief Executive Officer:
1. Four (4) requests for sponsorship
2. One (1) request for a donation
3. Nil (0) requests for a waiver of fees
Comment
In accordance with the provisions and criteria nominated in the Donations, Sponsorships and Waiver of Fees and Charges policy, determinations were made as listed in the recommendations to this report.
Applications and assessments of each request against the policy is available in the Elected Members Reading Room for further information.
Statutory Compliance
Nil
Strategic Implications
Nil
Policy Implications
This report aligns with the provisions and delegations of the Donations, Sponsorships and Waiver of Fees and Charges policy.
Financial Implications
The financial implications of this round of requests has resulted in expenditure in the Award Governance Donations Account (717633-1207-316) of:-
· $1,100.00 from 2007/2008 budget.
Voting Requirements
Simple Majority
EndStrip - This line will not be printed Please do NOT delete
Recommendation
That Council NOTES the delegated determination of requests received by the City in April 2008 for donations, sponsorships and waiver of fees and charges, which are as follows:-
|
Organisation |
Event/Activity |
Recommendation |
Reason |
||||
|
1. WA Softball Association |
2008 U23 National Softball Championships to be held at New South Wales from 15 to 19 April 2008. |
APPROVE a sponsorship request in the sum of $200 to support Annalyse Lister in her participation at the 2008 U23 National Softball Championships to be held at New South Wales from 15 to 19 April 2008. |
This request meets the criteria of the policy. |
||||
|
2. School Sport WA |
National Softball Championships to be held in Sydney from 3 to 10 May 2008. |
APPROVE a sponsorship request in the sum of $200 to support Ashley Ridge in her participation at National Softball Championships to be held in Sydney from 3 to 10 May 2008. |
The policy states that applicants are only to receive one successful request per financial year; Jemma Freegard and Caitlyn Kenny have already received sponsorship this financial year. |
||||
|
3. West Australian Little Athletics |
Malaysian/Singapore/Western Australia International Athletics Championships to be held in Singapore from 30 June to 1 July 2008. |
APPROVE a sponsorship request in the sum of $500 to support Christopher Ninyett in his participation at the Malaysian/Singapore/Western Australia International Athletics Championships to be held in Singapore from 30 June to 1 July 2008. |
This request meets the criteria of the policy. |
||||
|
4. Calisthenics Association of WA |
2008 National Calisthenics Championships to be held in Perth from 14 to 20 July 2008. |
APPROVE a sponsorship request in the sum of $200 to support Tania Noakes in her participation at the 2008 National Calisthenics Championships to be held in Perth from 14 to 20 July 2008. |
This request meets the criteria of the policy. |
||||
|
5. International Association of Lions Club |
“Razz-Ma-Tazz” production at the Children’s Film Festival to be held at the Perth Convention and Exhibition Centre to be held in April 2008. |
NOT APPROVE a donation of $450 to the International Association of Lions Clubs to support the attendance of 10 disadvantaged children to attend the “Razz-Ma-Tazz” production at the Children’s Film Festival to be held at the Perth Convention and Exhibition Centre to be held in April 2008. |
The policy states that 75% of a group need to be residents of the City of Wanneroo and that a generic fundraising request will not be supported. This request does not satisfy the criteria of the policy therefore it cannot be supported. |
|
||||
EndOfRecommendation - This line will not be printed Please do NOT delete
File Ref: S39/1319v01
File Name: CA City of Wanneroo Salaried Officers Collective Agreement 2008.doc This line will not be printed dont delete
Responsible Officer: Chief Executive Officer
Disclosure of Interest: Nil
Author: Anna Gillespie
Meeting Date: 3 June 2008
StartStrip – This line will not be printed Please do NOT delete
Issue
To consider the adoption of the proposed City of Wanneroo Salaried Officers Collective Agreement 2008.
Background
The current City of Wanneroo Certified Agreement 2003 expired on 29 April 2008. Protracted negotiations for a new Agreement have occurred with both employee representatives and Australian Services Union (ASU) officials. The City has met with the representatives regularly over the past seven month period and a draft Collective Agreement has been developed.
This proposed Agreement was circulated to employee representatives and ASU officials on Thursday, 22 May 2008 for final consideration and endorsement. There may be a few minor amendments to the proposed Agreement following their consideration, however these amendments will not affect the intent of the Agreement. If there were major changes to the proposed agreement the Agreement would be presented again to Council.
The basis for the Collective Agreement was modelled on the Building Trades Collective Agreement 2007, which was endorsed by Council in January 2007 and the City of Wanneroo Fleet Services Collective Agreement 2007, which was endorsed by Council on 11 March 2008.
As stated at the Council meeting on 11 March 2008, the City intends to align all staff entitlements, where possible, across the organisation, to ensure fairness and equity for all staff. There are areas, however, which are industry specific and only apply to certain employees. In such cases these entitlements will also be included in the specific Agreement where appropriate.
Detail
This Agreement covers over 450 staff who work in occupations such as Rangers, Library staff, Engineers, Building Surveyors, Lifeguards, inside workforce workers such as staff within the Office of the Mayor and Information Management.
The proposed new Agreement (which is available in the Elected Members reading room) is broadly based on the existing Award and Agreement and has taken into account the requirements under the Workchoices Legislation. A significant amount of work has gone into establishing an Agreement that is not only contemporary, competitive, but has set the basis for future Agreements thereby establishing a standard set of conditions across the City. The essential elements of the new Agreement are outlined hereunder.
WAGE MODEL
All employees shall be entitled to a wage increase in accordance with Appendix 1 contained in the Agreement. The first pay increase of 8% (or $67 whichever is the greater) will be operative from the first full pay period on or after 29 April 2008.
Further wage increases of 4.5% or $40 or Perth CPI, which ever is the greater, will be paid from the first full pay period commencing on or after 29 April 2009 and 29 April 2010 respectively.
These increases reflect the City’s commitment to remain competitive within the Local Government Industry and indeed retain the relativity between the City of Wanneroo rates and that awarded by the Fair Pay Commission for the minimum wage earners.
Working Arrangements
New clauses have been included to align the City with Industry Standards in areas such as:
1. Defence Force Reserve Leave;
2. Emergency Services Leave; and
3. Jury Duty.
To ensure the City is able to provide staff with family friendly working practices the City has also converted the current 17.5% leave loading and two days public service holidays in lieu, to 5 weeks annual leave. This proposal is cost neutral to the City.
Finally the City has also extended an employees access to pro-rata long service leave, allowing them to access any accumulated leave after 7 years of service. Again this is a cost neutral proposal as the City currently needs to budget for this leave as it is payable to staff after 7 years if they resign.
Comment
From management’s perspective the main benefits of this new Agreement are:-
1. The new Agreement provides the City with the opportunity for the retention of the majority of existing work arrangements and conditions and provides a sense of stability amongst the workforce, maintains good morale levels and should ensure that healthy productivity levels are sustained.
2. The establishment of a single Agreement that now combines both the Award and the separate Enterprise Bargaining Agreement will avoid ambiguity and differing interpretation.
Some of the significant benefits to employees will be:
· In addition to the increased rates of pay there is also a commitment to review the classification structure that currently exists;
· Commitment towards a broad Training and Development programme; and
· Greater family friendly leave conditions, which will assist employees meet their personal and professional commitments.
Statutory Compliance
Council approval and subsequent registration of the Agreement is in accordance with the Workplace Relations Act 1996.
Strategic Implications
The adoption of the Agreement is in accordance with the following City of Wanneroo Strategic Plan (2006-2021) in aligning to the value that states:-
Outcome 4 ‘Leadership and community engagement ensure the best use of our physical, financial and human resources’
Objective 4.4 ‘Improve business performance and the quality of service delivery’
Objective 4.6 ‘Improve support for staff, Council and volunteers’
Policy Implications
Nil
Financial Implications
The 8% salary increase will increase the City’s 2008/2009 payroll costs by approximately $1,600,000 and has been budgeted for in the budget process currently underway. The additional 4.5%, in years two and three will increase the relevant FY salaries budget by approximately $960,000 and $1,037,000 respectively and will be budgeted for in the appropriate budget process.
Voting Requirements
Simple Majority
EndStrip - This line will not be printed Please do NOT delete
Recommendation
That Council:-
1. AUTHORISES the Chief Executive Officer in consultation with the Mayor to approve any minor changes to the proposed Agreement;
2. ENDORSES the Chief Executive Officer to adopt the proposed City of Wanneroo Salaried Officers Collective Agreement 2008;
3. AUTHORISES the Chief Executive Office to pay the initial increase of up to 8% in this financial year if he believes that it is appropriate due to the state of negotiations; and
4. AUTHORISES the Mayor and Chief Executive Officer to execute the finalised City of Wanneroo Salaried Officers Collective Agreement 2008 for referral to the Office of Workplace Authority for ratification following a successful staff ballot.
EndOfRecommendation - This line will not be printed Please do NOT delete
File Ref: S07/0057V03
File Name: A Sponsorship of Relay for Life Charity Event.doc This line will not be printed dont delete
Responsible Officer: A/Chief Executive Officer
Disclosure of Interest: Nil
Author: Tammy Cumbers
Meeting Date: 3 June 2008
Attachment(s): Nil
StartStrip - This line will not be printed Please do NOT delete
Issue
To consider sponsoring the inaugural Relay for Life event
taking place at Joondalup Arena on
20 and 21 September 2008.
Background
The first Western Australian Relay for Life was held at Perry Lakes Stadium in 2001, raising in excess of $5.4 million for the Cancer Council WA. Relay for Life is a team event to raise funds for cancer research and services. Relay for Life events are also now held in Bunbury, Merredin, Perth, Narrogin, Geraldton, Exmouth, Miling, Albany, Mandurah and Karratha.
Detail
The City of Wanneroo has been given the opportunity of sponsoring Relay for Life @ Arena Joondalup for $5,000. This includes:
1. Provision of significant space at Joondalup Arena to enable promotion of the City of Wanneroo’s services throughout the duration of the event.
2. Highly sought after track side positioning for corporate team tent sites. Staff moral and camaraderie is greatly enhanced through participation.
3. Up to 5 on-site banners of approximately 2m in length permitted at high traffic/profile points (banner provided by City of Wanneroo).
4. Invitation to include City of Wanneroo promotional material in team kits on registration and show bags given to teams on check-in at the event.
5. PA announcements every 2 hours by MC at the event acknowledging the City’s sponsorship and contribution (at least 12 times).
6. City of Wanneroo logo on the back of the event Relay for Life t-shirts given to all registered team members prior to the event. An opportunity for moving advertisement of the City of Wanneroo.
7. Placement of City of Wanneroo logo on event collateral such as brochures and posters. Minimal generic promotional materials may need to be developed prior to sponsor confirmation.
8. Prominent logo recognition on formal event program distributed to team and public on the day. Space for ¼ page editorial or advertisement of the City’s choice in the event program.
9. Corporate recognition in at least one of the Relay for Life newsletters produced quarterly and distributed to approximately 4,000 past and present Relay participants via email and regular post.
10. Name recognition on at least 3 event specific promotional emails sent to all team captains and committee prior to the event.
11. Name recognition on event specific acquisition fax or emails sent to companies inviting them to register for Relay for Life.
12. Recognition at the Opening and Closing Ceremonies of the event.
13. Name recognition in the large prominently placed Thank You advertisement published in the local newspaper following the event
14. Acknowledgement in 2 places on the Cancer Council website for at least 6 months; the Relay for Life page will include the City’s logo, The Cancer Council Partnership program section will acknowledge the City of Wanneroo as a valued partner at a sponsor level.
15. The opportunity to have a reciprocal link from the City’s organisations website to the Cancer Council WS website.
16. Recognition on the Cancer Council website for at least 6 months.
17. Recognition of the City’s sponsorship level within the Cancer Council’s Honour Board in the foyer of the building.
Comment
Its main aim is to unite the community for a common cause in hope for a cancer free future. Participants and visitors enjoy a fantastic carnival-style team event complete with live entertainment, camping out, free breakfast and an opportunity to learn more about the work and services of the Cancer Council WA. It is anticipated that over 70 teams and 1,000 people will be involved at the inaugural event in September, designed to cater for the northern corridor community, specifically residents of the City of Joondalup and the City of Wanneroo. The event is suitable for people of all ages and all levels of fitness.
Statutory Compliance
Nil
Strategic Implications
This report aligns with the following strategic objectives:
“2.2 Improve the City’s identity and community wellbeing through arts, cultura, leisure and recreation.
2.3 Improve the capacity of local communities to support each other.
2.3.1 Provide or facilitate access to services and facilities that support inclusive communities.”
Policy Implications
Administration is in the process of developing a Sponsorship Policy for Council’s consideration, however currently does not have a criteria to refer to.
Financial Implications
Sufficient savings have been identified within the Elected members travel budget to fund the sponsorship package of $5,000.
Voting Requirements
Absolute Majority
EndStrip - This line will not be printed Please do NOT delete
Recommendation
That Council:-
1. APPROVE by ABSOLUTE MAJORITY sponsorship of $5,000 to the Relay for Life @ Arena Joondalup event to be held on 20 and 21 September 2008.
2. NOTES the following budget variation in the 2007/2008 financial year to fund the above program.
|
GL |
From |
To |
Description |
|
717147 9111 315 |
$5,000 |
|
Funds from Elected Members Travel Budget |
|
717633 1207 316 |
|
$5,000 |
Sponsorship package for Relay for Life @ Arena Joondalup. |
EndOfRecommendation - This line will not be printed Please do NOT delete
File Ref: s24/023v01
File Name: A DESIGNATION OF SENIOR EMPLOYEES.doc This line will not be printed dont delete
Responsible Officer: Director Governance & Strategy
Disclosure of Interest: Nil
Author: Mayor J Kelly
Meeting Date: 3 June 2008
Attachment(s): Nil
StartStrip - This line will not be printed Please do NOT delete
Issue
To consider the designation of all Managers as Senior Employees until the appointment of a new Chief Executive Officer (CEO).
Background
Under the terms of s5.37 of the Local Government Act (1995), Council has previously designated all Directors as senior employees. The requirement for all senior employees is that the CEO is to inform Council of each proposal to employ or dismiss them, and Council may accept or reject the CEO’s recommendation. It is not possible for Council to recommend a particular candidate, but only to inform the CEO of the reasons for rejecting a candidate.
Detail/Comment
With the resignation of the CEO it is considered prudent to include Managers in this category until such time as the new CEO is appointed.
The City of Wanneroo currently has 18 Managers. Some of these Managers’ contracts may be in the process of being renewed and there may be resignations and advertising of positions over the coming months. Until such time as the new CEO takes up his or her appointment, it is considered that Council should have the opportunity to consider the appointment of Managers.
Statutory Compliance
The Local Government Act (1995), section s5.37(1), (2) and (3) state:
“(1) A Local Government may designate employees or persons belonging to a class of employee to be senior employees.
(2) The CEO is to inform the Council of each proposal to employ or dismiss a senior employee and the Council may accept or reject the CEO’s recommendation but if the Council rejects a recommendation, it is to inform the CEO of the reasons for its doing so.
(3) Where a local government advertises the position of a senior employee, the local government is to state in the advertisement the salary and the total value of all remuneration and benefits payable to the senior employee.”
Policy Implications
The current recruitment policies and procedures of the City will be adhered to during this interim period.
Financial Implications
Nil
Voting Requirements
Simple Majority
EndStrip - This line will not be printed Please do NOT delete
Recommendation
That Council DESIGNATES all Managers as senior employees under section s5.37 of the Local Government Act (1995), until such time as the new Chief Executive Officer takes up his or her appointment.
EndOfRecommendation - This line will not be printed Please do NOT delete
