BRIEFING PAPERS
FOR COUNCIL MEMBERS’
BRIEFING SESSION
Draft Only
to be held at
the Council Chambers (Level 1), Civic Centre,
23 Dundebar Road, Wanneroo
on 18 August, 2020 commencing at 6:00pm
PROCEDURE FOR FULL COUNCIL BRIEFING SESSION
COVID-19 Pandemic Situation
The City of Wanneroo is committed to ensuring the safety of all attendees at public meetings. Therefore, social distancing will be applied in the Council Chambers in accordance with State Government Regulations.
The capacity of the Council Chambers is restricted under these conditions and should the maximum capacity of the Chambers be exceeded, additional seating will be available in an alternative room to enable all public attendees to listen live to the audio (only) of the meeting (no video is available). Should the maximum capacity be exceeded, you may be asked to attend the alternative room and may not be able to enter the Chambers as required by current State Government Regulations.
Thank you for your understanding of these circumstances.
PRINCIPLES
A Council Briefing occurs a week prior to the Ordinary Council Meeting and provides an opportunity for Council Members to ask questions and clarify issues relevant to the specific agenda items before council. The Briefing is not a decision-making forum and the Council has no power to make decisions. The Briefing Session will not be used, except in an emergency, as a venue or forum through which to invoke the requirements of the Local Government Act 1995 and call a Special Meeting of Council.
In order to ensure full transparency the meetings will be open to the public to observe the process. Where matters are of a confidential nature, they will be deferred to the conclusion of the Briefing and at that point, the Briefing Session closed to the public. The reports provided are the Officers’ professional opinions. Whilst it is acknowledged that Council Members may raise issues that have not been considered in the formulation of the report and recommendation, it is a basic principle that as part of the Briefing Sessions Council Members cannot direct Officers to change their reports or recommendations.
PROCESS
The Briefing Session will commence at 6.00pm and will be chaired by the Mayor or in his/her absence the Deputy Mayor. In the absence of both, Councillors will elect a Chairperson from amongst those present. In general, the Standing Orders Local Law 2008 will apply, EXCEPT THAT Council Members may speak more than once on any item, there is no moving or seconding items, Officer’s will address the Council Members and the order of business will be as follows:
Members of the public present may observe the process and there is an opportunity at the conclusion of the Briefing for a Public Question Time where members of the public may ask questions (no statements) relating only to the business on the Agenda. The Agenda will take the form of:
· Attendance and Apologies
· Declarations of Interest
· Reports for discussion
· Tabled Items
· Public Question Time
· Closure
Where an interest is involved in relation to an item, the same procedure which applies to Ordinary Council Meetings will apply. It is a breach of the City’s Code of Conduct for an interest to not be declared. The Briefing Session will consider items on the Agenda only and proceed to deal with each item as they appear. The process will be for the Mayor to call each item number in sequence and ask for questions. Where there are no questions regarding the item, the Briefing will proceed to the next item.
AGENDA CONTENTS
While every endeavour is made to ensure that all items to be presented to Council at the Ordinary Council Meeting are included in the Briefing Session papers, it should be noted that there will be occasions when, due to necessity, items will not be ready in time for the Briefing Session and will go straight to the full Council Agenda as a matter for decision. Further, there will be occasions when items are TABLED at the Briefing Session rather than the full report being provided in advance. In these instances, staff will endeavour to include the item on the Agenda as a late item, noting that a report will be tabled at the agenda Briefing Session.
AGENDA DISTRIBUTION
The Council Briefing Session Agenda will be distributed to Council Members on the FRIDAY prior to the Council Briefing Session. Copies will be made on the City’s website for interested members of the public. Spare Briefing Session papers will be available at the Briefing Session for interested members of the public.
DEPUTATIONS
Deputations will generally not be heard prior to the Council Briefing Session and are reserved for prior to the Ordinary Council Meeting.
RECORD OF BRIEFING
The formal record of the Council Briefing Session will be limited to notes regarding any agreed action to be taken by staff or Council Members. No recommendations will be included and the notes will be retained for reference and are not distributed to Council Members or the public.
LOCATION
The Council Briefing Session will take place in the Council Chamber at the Civic Centre.

Briefing Papers for Tuesday 18 August, 2020
CONTENTS
Item 2_____ Apologies and Leave of Absence
Strategic Land Use Planning and Environment
3.4 Consideration of Actions Relating to Developer Contribution Arrangements
3.5 Amendment to Local Planning Policy 3.1 - Local Housing Strategy Implementation
3.7 Draft Waste Plan 2020-2025
3.8 Southern Suburbs Library Update
3.9 Splendid Park Cycling Facility - Community Engagement Outcomes
3.10 Community Sporting and Recreation Facilities Fund (CSRFF) - 2021/22 Funding Round
Corporate Strategy & Performance
3.11 Financial Activity Statement for the period ended 30 June 2020
3.12 PT01-06/20 - Response to Rates Petition
3.13 Warrant of Payments For The Period to 31 July 2020
Advocacy & Economic Development
3.15 Updated Advocacy Agenda 2020-2025
3.16 Neerabup Industrial Area Update
Item 5_____ Late Reports (to be circulated under separate cover)
5.1 Decisions during COVID-19 Pandemic and Delegations and Authorisations
Item 6_____ Public Question Time
Item 8_____ Date of Next Meeting
Agenda
Good evening Councillors, staff, ladies and gentlemen, we wish to acknowledge the traditional custodians of the land we are meeting on, the Whadjuk people. We would like to pay respect to the Elders of the Nyoongar nation, past and present, who have walked and cared for the land and we acknowledge and respect their continuing culture and the contributions made to the life of this city and this region.
Item 2 Apologies and Leave of Absence
3.1 Consideration of Amendment No. 38 to the East Wanneroo Cell 4 Approved Structure Plan No. 6 - Lot 594 Ranworth Road, Hocking
File Ref: 3379-38 – 20/306821
Responsible Officer: Director Planning and Sustainability
Disclosure of Interest: Nil
Attachments: 8
Issue
To consider submissions received during public advertising of Amendment No. 38 to the East Wanneroo Cell 4 Approved Structure Plan No.6 (ASP 6) and to provide a recommendation to the WAPC.
|
Applicant |
Roberts Day Town Planning |
|
Owner |
Archbishop |
|
Location |
Lot 594 Ranworth Road, Hocking |
|
Site Area |
Approximately 10 hectares |
|
MRS Zoning |
Urban |
|
DPS 2 Zoning |
Urban Development |
|
ASP 6 Zoning |
Residential Precinct (R20) |
Background
On 10 September 2019, the applicant on behalf of the owner, lodged Amendment No. 38 to ASP 6 for the City's consideration. The amendment relates to Lot 594 (30) Ranworth Road, Hocking (the site).
Owners of the site have decided not to proceed with developing the site for a secondary school and have advised the City that:
“An internal review has determined that development of a secondary Catholic College on this site is no longer viable. As such this site is being prepared for alternative uses.”
On 1 October 2019, the Manager Approval Services forwarded a memorandum to all Elected Members advising that the amendment proposal will be advertised for a period of 28 days from 10 October to 7 November 2019 in accordance with Clause 18 of the deemed provisions of the District Planning Scheme No. 2 (DSP 2).
Following consultation, Administration has been in a series of discussions with the applicant to address the issues raised in objection to the proposal relating to the Business zone, traffic and density. Those discussions resulted in Administration not being able to present a report on the matter within the 60-day period after the close of submissions, which ended on 7 November 2019. Under the provisions of the clause 20(1) of the deemed provisions of the District Planning Scheme No.2 the City obtained an extension up to 30 June 2020 from the WAPC to consider this amendment with the support of the applicant.
However, at the request of the applicant, the amendment proposal was not considered by Council at its meeting on 30 June 2020 and was withdrawn to allow the applicant to provide further clarification on the amendment proposal.
Detail
The site
The site is bound by Wanneroo Road to the west, residential housing and Ranworth Road to the north, Anfield Parade to the east and Kirkstall Drive to the south. The residential areas surrounding the site are fully developed. Hocking Shopping Centre is approximately 500 metres to the north-east. A government primary school is also located north-east diagonally opposite the site. The area to the west of Wanneroo Road is developed as a Special Residential area. St Elizabeth’s Catholic Primary School is located on the eastern portion of the site and the remaining portion is vacant containing some native vegetation to the southern side of the site. A location plan is provided as Attachment 1.
The proposal
The amendment to the structure plan proposes to:
1. Rezone:
· The eastern portion of the site (which includes the existing private primary school) from Residential Precinct to Private Clubs/Recreation Zone; and
· The westernmost portion of the site fronting Wanneroo Road to Business Zone;
2. Recode the remaining portion of the site currently zoned Residential Precinct in ASP 6 from Residential R20 to the following density codes R25, R30, R40 and R60.
3. Amend Part 1.0 (Implementation) of ASP 6 to include:
· Clause 4.6 - Business Zone and Clause 4.7 - Private Clubs/Recreation Zone; and
· Clause 8 which sets out specific development provisions for locational criteria to determine densities and the requirement for a Local Development Plan (LDP) and criteria for the preparation of LDPs.
Attachment 2 contains the Part 1 provisions and the existing and proposed zoning and coding maps relating to the amendment proposal.
The applicant has justified zoning a portion of the site as Business as follows:
“Business Zone.
· Fronting Wanneroo Road the Business Zone will maximise exposure to passing trade and provide a land use offer that is not represented in the wider ASP 6 area;
· Will provide for a bulky land use mix which is reflective of the function and amenity of Wanneroo Road as a major freight route; and
· The land uses Supermarket and Shop are not permitted in Business Zone and therefore does not provide an offering that would be in direct competition with the Hocking Neighbourhood Centre and would ensure there is no dilution of retail core from Kingsway and Wanneroo Shopping Centres.”
The private primary school site is currently zoned Residential Precinct. Rezoning this portion of the site to Private Clubs/Recreation is considered appropriate as the land use Education Establishment is a more appropriate zone for a private education facility and is consistent with the approved use of the land.
Consultation
The Amendment was advertised for public comment for a period of 28 days by means of an on-site sign, an advertisement in the Wanneroo Times newspaper and the City’s website and letters to affected owners and occupiers. The submission period commenced on 10 October and closed on 7 November 2019. The City received 87 submissions including submissions from the Department of Water and Environmental Regulation, ATCO Gas Australia Pty Ltd, Water Corporation of Western Australia and Department of Education. The government agencies did not object to the proposal. The remaining 83 submitters objected to the amendment proposal. A summary of submissions received and Administration’s responses is contained in Attachment 3.
The main issues raised in the submissions are:
· Object to high-density development as it is contrary to current housing in Hocking;
· Object to additional traffic generated by the proposed development and the noise pollution; and
· Object to the Business zone as there are already established businesses in the locality and the Business Zone could provide an opportunity for a service station.
A detailed discussion of these three matters raised in the responses to consultation is provided in the Comment section below.
Comment
The following comments are made on the advertised version of the amendment proposal.
Business Zone
The portion of the site proposed to be rezoned to Business is approximately 1.13 hectares in area and with an average depth of 50 metres from Wanneroo Road. Administration does not support the proposed Business Zone fronting Wanneroo Road in this location on the basis that it is:
· ad-hoc as there is no strategic framework that identifies Business as a suitable zone for this location;
· inconsistent with the established surrounding residential area established through the existing structure plan; and
· inconsistent with DPS 2 and the Western Australian Planning Commission’s (WAPC) State Planning Policy 4.2 – Activity Centres for Perth and Peel (SPP 4.2) as discussed below:
Clause 3.6.1 of DPS 2 states:
“The Business Zone is intended to accommodate warehouses, showrooms, trade and professional services and small scale complementary and incidental retailing uses, as well as providing for retail and commercial businesses which require large areas such as bulky goods and category/theme-based retail outlets that provide for the needs of the community but which due to their nature are generally not appropriate to or cannot be accommodated in a commercial area. “
Clause 3.6.2 of DPS 2 lists the following objectives for the Business Zone:
“(a) To provide for retail and commercial businesses which require large areas such as bulky goods and category/theme based retail outlets as well as complementary business services;
(b) To ensure that development within this zone creates an attractive façade to the street for the visual amenity of surrounding areas.”
DPS2 Table 1 – The Zoning Table sets out a wide range of Permissible (P) and Discretionary (D) uses in the Business zone, which include among other uses:
· Bank, Medical Centre, Office, Restaurant, Showroom and Veterinary Consulting Rooms as ‘P’ uses; and
· Child Care Centre, Drive-Through Food Outlet, Hardware Store, Service Station, Takeaway Food Outlet and Vehicle Sales/Hire Premises as ‘D’ uses.
The relevant provision of SPP 4.2 relating to bulky goods retailing and mixed business is discussed below:
SPP 4.2 Section 5.6.1 Bulky goods retailing and mixed business
One of the objectives of Business zone is to provide for bulky goods. Subsection 5.6.1 of SPP4.2 provides the criteria to establish bulky good retailing. The relevant criteria applicable to the subject proposal are as follows:
(1) Bulky goods retailing is unsuited to the walkable catchment;
(4) The encroachment of bulky goods retail into residential zones should be avoided. Furthermore, locating such development in an ad hoc manner or as ribbon development along regional roads is discouraged; and
(6) The preferred suitable locations is where it is demonstrated that sufficient suitable sites are not available.
Administration considers that the proposed Business Zone does not satisfy SPP4.2 for the following reasons:
1. Section 5.6.1(1) of SPP 4.2 states that bulky goods retailing is unsuited to the walkable catchment given their size and car-parking requirements, low employment densities and need for freight vehicle access. The proposed Business Zone is contrary to this provision as it is located within the walkable catchment of the surrounding residential areas.
2. In ASP 6 the site is entirely zoned as Residential Precinct with a density coding of R20. The proposal to rezone part of the site to Business is considered to be an encroachment into the Residential Precinct which is contrary to 5.6.1 (4) of SPP 4.2.
3. Section 5.6.1(4) of SPP 4.2 discourages ribbon development along regional roads. The proposed Business Zone along Wanneroo Road would set an undesirable precedent and is contrary to the intent and provisions of SPP4.2.
4. As per Section 5.6.1(6) of SPP 4.2 the applicant has not demonstrated that suitable sites are not available in the area. In regard to this it is noted that a portion of Wangara Industrial Area bounded by Wanneroo Road, Gnangara Road, Hartman Drive and Ocean Reef Road located approximately 2.5 kilometres to the south of the site, is zoned Service Industrial and Business. As per the provisions of DPS 2 the use class Showroom is a Permissible (P) use. Since the site is in close proximity to Wangara, the proposed Business zone is considered to be unnecessary and ad hoc in nature.
Considering the matters noted above it is recommended that the proposed Business Zone should not be supported.
Bushfire Management Plan
DFES has examined the Bushfire Management Plan submitted by the applicant and has advised as follows:
At the structure planning stage, consideration should be given to the intensification of land use and how this relates to identified bushfire hazards. DFES is satisfied that the bushfire hazard level assessment has adequately identified the bushfire risk and considered how compliance with the bushfire protection criteria can be achieved at subsequent planning stages.
DFES has advised at the subsequent planning stages (subdivision & development applications) the developer be required to address the following issues:
· To ensure BAL impact is accurate and the required hazard separation distances are achieved; and
· To provide evidence to support the exclusion of the POS low fuel zone as managed to low threat in accordance with AS 3959.
The BMP submitted by the applicant suitably addresses the requirements for the structure planning stage. The developer will be required to provide a BMP, which addresses the issues identified by DFES at the subdivision stage.
Local Planning Policy 3.1- Local Housing Strategy Implementation (LPP3.1)
The proposal has been assessed against LPP3.1, which provides the framework to guide the planning and development of increased housing density in the housing precincts that are identified in the policy. The policy also guides other infill development areas located outside those housing precincts. The site is not located in a housing precinct. Therefore Section 9 in Part 2 of LPP 3.1 relevant to “Other Infill Development” will apply.
The proposed residential densities will enable the creation of approximately 90 lots.
Subsection 9.1 (b) of LPP3.1 states that:
“Where the land concerned is the subject of an approved structure plan under DPS2, the application for amendment of that Structure Plan must include an assessment of how the proposal:
i. Is appropriate within the broader planning framework provided by the Structure Plan;
ii. Satisfies the criteria in Table 3 of this Policy relating to infill development and increased density; and
iii. Supports the objectives and recommendations of the Local Housing Strategy.”
The proposed amendment satisfies these criteria as discussed below:
1. The ASP 6 area is well established and is comprised predominantly of single residential development at an R20 density with pockets of R30 and R40 coded residential land throughout East Wanneroo Cell 4. The site is surrounded by R20 development. The nearest R40 development is approximately 250 metres to the north of the site and is surrounded by R20 development. Currently there are no R60 coded lots in Cell 4. If this amendment were to be approved then small pockets within the site could be coded R60. Since the proposed density range accords with LPP 3.1, it is considered to be appropriate within the broader planning framework set out by ASP 6.
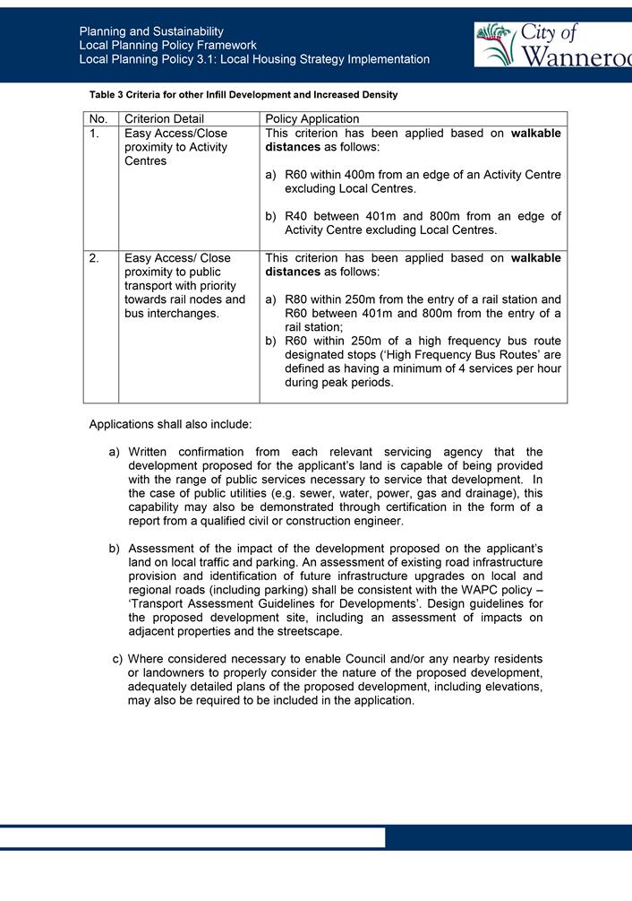
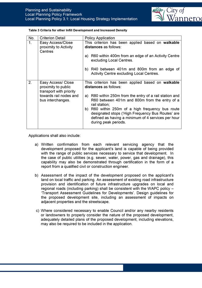
2. The proposal satisfies Table 3 of the policy as demonstrated below:
Table 3 Criteria for other Infill Development and increased Density
|
No. |
Criterion |
Policy Application |
Comment |
|
1. |
Easy access/close proximity to Activity Centres |
R40 between 401 and 800 metres from an edge of Activity Centre excluding Local Centres. |
The subject land is approximately 470 metres from the edge of the Hocking Neighbourhood Centre as shown in Attachment 1. |
|
2. |
Easy access/close proximity to public transport with priority towards rail nodes and bus interchanges. |
R60 within 250 metres of a high frequency bus route designated stops. High frequency bus route is defined as having a minimum of four services per hour during peak periods. |
The site is located on Wanneroo Road and is served by high frequency bus routes 389 and 468. The farthest lot on the site (when developed) from Wanneroo Road is likely to be at a distance of approximately 250 metres. At the subdivision stage, a pedestrian access way to Wanneroo Road will be required. |
3. The objectives of LPP3.1 are as follows:
· To address State government policy to increase housing density within the existing urban footprint of the metropolitan region and meet State Government infill housing targets;
· To address housing affordability within the City by providing a variety of housing stock;
· To better utilise existing infrastructure and amenities in existing suburbs by providing additional dwellings in close proximity; and
· To promote higher density development in appropriate locations.
The proposed amendment supports the objectives of LPP3.1 as follows:
· The amendment proposal addresses the WAPC’s State Planning Policy 3 – Urban Growth and Settlement by proposing higher density development in areas accessible to transport and services
· The proposed R25-R60 density addresses housing affordability by providing a variety of housing stock;
· The proposed amendment would better utilise the existing infrastructure and amenities available in this locality; and
· As demonstrated in Table 3 above, the amendment satisfactorily proposes a density range between R25 and R60.
Traffic
In order to assess the potential impact of traffic on Kirkstall Drive caused by development of the vacant portion of the site (i.e. excluding St Elizabeth Catholic Primary School area), it is considered appropriate to consider the following five scenarios including the subject amendment proposal:
1. The subject application as proposed including the Business Zone;
2. Residential R25 - 60 development;
3. Secondary School development as proposed in ASP 8;
4. Residential R20 (as per ASP 8 provisions); and
5. The subject application excluding Business Zone.
In all scenarios the Primary School site is rezoned to Private Clubs/Recreation.
1. The application as proposed including the Business Zone
The applicant provided a Traffic Impact Assessment (TIA) based on a concept plan (Attachment 4). The details of the concept plan are as follows:
· 14.2-metre wide internal roads and 6.0 and 9.0-metre wide laneways;
· A four-way intersection with Tenement Loop to the south;
· A pedestrian access way connection to Ranworth Road;
· A left-in/left-out access from Wanneroo Road to the Business Zone;
· Additional access to the Business zone from Kirkstall Drive at a distance of approximately 80 metres from the intersection of Wanneroo Road and Kirkstall Drive; and
· No vehicular access to the Business Zone from the adjoining 14.2-metre road.
Regarding the fourth dot point it is noted that MRWA does not support this access as alternative access via Kirkstall Drive could be made available.
The total volume of traffic generated by this proposal is estimated to be approximately 4,300 vehicles per day (vpd) of which 712vpd will be generated by the Residential Precinct and the balance by the proposed Business Zone. In the absence of an access from Wanneroo Road and Ranworth Road, only Kirkstall Drive will provide access to this site. At the November 2019 traffic count, Kirkstall Drive carried 2,998vpd to the west of Tenement Loop. Therefore the total volume of traffic on Kirkstall Drive is likely to be approximately 7,300vpd.
Under the provisions of the WAPC’s Liveable Neighbourhoods (LN) policy, a road carrying an indicative traffic volume up to 7,000vpd is classified as Neighbourhood Connector A and should have a road reserve width of 24.4 metres. Kirkstall Drive has an 18-metre wide reserve and does not meet the criteria for a Neighbourhood Connector A.
Administration notes that the traffic analysis shows that the right-turn traffic from Kirkstall Drive into Wanneroo Road heading north will become more difficult. The current Level of Service (LOS) at the intersection of Wanneroo Road and Kirkstall Drive is LOS C, which is acceptable however it would become LOS F by 2029 as a result of the proposal.
LOS C means that there is a stable flow of traffic at or near the free flow speed. At LOS F frequent slowing could be required on Kirkstall Drive. At LOS C the average queue length to turn right onto Wanneroo Road would be two cars while at LOS F it would mean queues of around five cars waiting to turn right.
Furthermore Main Roads WA in its submission has noted as follows:
“The traffic analysis demonstrates that by 2029 the right movement from Wanneroo Road (South) to Kirkstall Drive (West) will be oversaturated. The same with the through movement out of Kirkstall Drive. This is both a performance and safety issue. This demonstrates that the network cannot support the structure plan as proposed.”
Attachment 5 is a copy of the MRWA submission dated 21 November 2019 containing the above advice as Point 3(d). Administration concurs with MRWA’s comments.
Therefore, the proposed Business Zone is not supported due to the likely excessive traffic that will impact on the movement of traffic at the intersection of Wanneroo Road and Kirkstall Drive and on Kirkstall Drive.
2. Residential R25 - R60 development
It is noted that the applicant’s proposal is to develop the site only as proposed and not to develop it purely for residential purposes.
However, to demonstrate the impact of traffic generated by a residential development at a density range of R25 to R60 on Kirkstall Drive, the applicant submitted a traffic report. Attachment 6 is a concept plan indicating the densities and a possible road network similar to the concept plan in Attachment 4 except that is there is no direct access to Wanneroo Road.
This scenario is likely to create up to approximately 122 dwellings generating 976vpd at the rate of eight vehicle trips per dwelling per day accessing and exiting via Kirkstall Drive. The current volume of traffic on Kirkstall Drive as noted above is 2,998 vpd. Therefore the total volume would be 3,974vpd, which exceeds the indicative traffic volume of 3,000 vpd as per the WAPC’s LN policy. If a road connection to Ranworth Road were to be provided, then the volume of traffic on Kirkstall Drive could drop to approximately 3,700 vpd.
The City’s Transport and Traffic section has assessed the traffic report submitted by the applicant and has advised that Kirkstall Drive will be able to carry the additional volume generated by this development and the level of service (LOS) at the intersection of Kirkstall Drive and Wanneroo Road will still remain as LOS C if the western portion is developed for residential purposes instead of commercial development.
At LOS C, as per the traffic report, the queuing length at the intersection of Kirkstall Drive and Wanneroo Road is 5.2 metres (one car length) in 2021 and 9.1 metres (two car lengths) in 2031. The time delay to turn right onto Wanneroo Road is approximately 25 seconds due to the volume of traffic on Wanneroo Road. While this is the general operation the actual operation at certain times of the day may exceed these amounts such as early morning and afternoon peaks associated with school pick up and drop off times. In normal operation the level of traffic generated would not substantially affect the operation of Kirkstall Drive.
3. Development of the site as a High School
In the current ASP 6, the site is earmarked for a secondary school to accommodate 1,200 students. At 2.0 vehicle trips per day per student, the school would generate 2,400vpd. In addition to the current traffic volume of 2,998 vpd, the total volume of traffic on Kirkstall Drive would be 5,398vpd. Since the applicant has not proposed a road connection to Ranworth Road, the traffic generated by the secondary school will exit/access via Kirkstall Drive. Considering the drop-off and pick-up hours during mornings and afternoons, the Level of Service at the intersection of Kirkstall Drive and Wanneroo Road is likely to be severe.
The applicant has not provided a traffic analysis for this scenario since the owners do not intend to develop the site for a secondary school. In the event the owners intend to develop a school, a development application would be determined on its merits considering the traffic volumes and the impact on Kirkstall Drive and Wanneroo Road as would be relevant to such a proposal.
4. Residential R20 development
If the site were to be developed at the current density of R20, it is likely to create approximately 62 dwellings generating 496vpd. Therefore the total volume of traffic on Kirkstall Drive would be 3,494vpd. Since the volume of traffic on Kirkstall Drive is similar to the volumes generated by Scenario 2, the LOS at this intersection for this scenario is considered to be also LOS C with queuing length of one car in 2021 and two cars in 2031.
5. The application as proposed but excluding Business Zone
By not rezoning a portion of the site from Residential Precinct to Business Zone, this portion would remain as Residential Precinct with a density coding of R20 creating approximately 14 residential lots. As discussed in Scenario 1, the proposed density range of R25 to R60 would create approximately 89 lots in the central portion of the site. Therefore Scenario 5 would create in total approximately 103 lots. At the rate 8 vehicle trips per dwelling per day, 103 lots will generate 824 vpd. Considering the current traffic volume of 2,998 vpd on Kirkstall Drive the total volume of traffic on this road would be 3,822. If a road connection to Ranworth Road is provided the volume of traffic on Kirkstall Drive is likely to be around 3,600 vpd. The traffic conditions of this scenario which reflects Administration’s recommendation is expected to be similar to Scenarios 2 and 4 discussed above.
Analysis of Development Scenarios
Scenario 1 incorporating the Business zone generates the highest amount of traffic on Kirkstall Drive at 7,300vpd and is not supported by MRWA or the City’s Traffic Engineers. Administration does not support the proposed Business Zone for the policy reasons set out in the report as well as the traffic reasons set out above.
Scenario 2 (Residential R25 – R60)generates 3,700vpd which is marginally more than the base case of retaining R20 over the whole area (i.e., Scenario 4), which would generate 3,494 vpd. Scenario 2 represents an extra of 206 vpd and 33 lots)
If the WAPC supports removal of the Business Zone, the WAPC may decide to direct the City to re-advertise the proposal under clause 22(2) of the deemed provisions of DPS 2 if it considers the R60 density code should be applied to the area and WAPC considers this to be a major modification to the proposal.
Scenarios 3 and 4 provide a baseline in relation to what the land was originally intended to be used for, those being a High School or R20 density housing under the current provisions of the structure plan. The additional traffic generated by increasing densities of the central portion of the site from R20 to a range of R25 to R60 will not significantly impact on the operation of Kirkstall Drive. In this regard development of the site as a high school would have a significantly greater impact on traffic than Scenario 2 resulting in an additional 2,400 vpd at the peak school periods on Kirkstall Drive.
Movement network
While primarily a matter for subdivision, the applicant has proposed 14.2-metre wide internal roads in the concept plans based on the provisions of the WAPC’s LN, which recommends 14.2-metre wide road for shorter lengths, low parking demand and serving larger lots. Administration does not support 14.2-metre wide road reserves for the following reasons:
· These roads would not be servicing larger lots but smaller lots coded between R25 and R60; and
· The laneway lots will create on street parking demand as visitors parking bays are provided within the lots primary street road reserve. A 16 metre wide road reserves will ensure that sufficient on-road space is available to provide on street parking bays.
Administration discussed with the applicant the provision of a road connection to Ranworth Road in the north east corner of the site instead of a PAW. The applicant did not support this for the following reasons:
Prevent unnecessary through-traffic from Ranworth Road to create a quiet residential area.
Prevent the site being used as a de-facto ‘pick-up’ and ‘drop-off’ area for the school further compromising the amenity of new residents.
Prevent conflict with existing access crossovers from the school and the existing residential crossover of the resident on the corner of Ranworth Road.
Imposing especially deleterious impacts on the adjacent landowner by introducing unnecessary through traffic.
Administration notes the concerns raised, however, recommends this road connection to Ranworth Road be provided at the subdivision stage as it will provide easy access for future residents to the Hocking Neighbourhood Centre and provide an alternate escape route in the event of a fire in this area.
It is noted that the proposal is to rezone/recode the site and not to approve the concept plan. Detailed design matters such as internal reserve widths and connections to existing roads will be considered in detail at the subdivision stage.
Private Clubs and Recreation Zone and Road Connection to Ranworth Road
Although the concept plan is not for approval, the applicant has only allowed for a pedestrian connection to Ranworth Road as shown in the concept plan. The configuration of the proposed Private Clubs and Recreation Zone does not allow for a vehicular access from the residential zoned land direct to Ranworth Road. Administration considers that a road connection to Ranworth Road is required in order to provide logical access to services, a permeable road network and minimise the impact of traffic on Kirkstall Drive. It is recommended that the configuration of the Private Clubs/Recreation Zone be modified to enable a 15-metre wide road connection to Ranworth Road.
In regard to the proposed 15-metre wide road, the school carpark located at the north-western corner of the primary school site gains access from Ranworth Road via two driveways. The western driveway is likely to be very close to the proposed 15-metre road. This driveway will therefore be required to be replaced with another driveway from the 15-metre road. This modification is not likely to affect any school parking bays. Attachment 7 depicts this road and the driveway connecting the carpark and the road on the concept plan.
Public Open Space
As the site was initially identified for a private school, it was excluded from the POS contribution calculation of the East Wanneroo Cell 4 area. This was as per the provisions of DPS 2 for the purposes of determining how much land was required for Public Open Space (POS) for the entire Cell. As the proposal is to change the zoning to Business and Residential these areas will be required to contribute to the provision of POS.
Under the provisions of the WAPC’s Liveable Neighbourhoods policy, a minimum of 10% POS contribution will be required at subdivision stage. The total area of the site excluding St Elizabeth’s Catholic Primary School is approximately 6 hectares. The applicant in the concept plan has proposed a POS site 1.194 hectares in area, which is greater than the 10% required.
The environmental report submitted by the applicant states that two species of Black Cockatoo potentially utilise the site. The report further states that the site is not a known breeding site and no evidence of breeding has been recorded. No threatened (Declared Rare) Flora species occur on the site. Considering the environmental value of the site the applicant has proposed more than 10% POS.
The POS is located on the southern side of the subject area and abuts the western side of the existing primary school. In the Concept Plan two Black Cockatoo significant trees have been identified within the POS area and a third one opposite the POS. The POS design and details will be addressed at subdivision stage.
POS Schedule 4 of ASP 6
The proposed POS site is required under Cell 4 to be listed in the POS schedule for Cell 4 so that it can be acquired as a DCP item.
The East Wanneroo Cell 4 ASP 6 currently includes eleven different POS sites. These sites have been notated as “POS 4A” through to “POS 4K” in the structure plan. Schedule 3 of ASP 6 lists the details of each of the POS sites. Attachment 8 is a copy of Schedule 3.
Lot 594 Ranworth Road, Darch was excluded from the determination of the area required to contribute 10% POS in East Wanneroo Cell 4. This is because at the time the whole site was intended to be developed as a private primary and secondary school which would exempt it from the POS contribution requirement. As a portion of the site is now to be developed for residential and commercial (as per the proposal) it is necessary that a new POS site be added to Schedule 3 in order to meet the 10% POS contribution required for Cell 4.
A 10% POS contribution will require a 0.676ha site to be added to Schedule 3 which will be listed as POS site 4L. This POS contribution calculation excludes the balance of the site forming the St Elizabeth Catholic Primary School site.
DCP funds will be used to purchase the POS site while each lot created through subdivision of the land will make a DCP contribution under the Cell 4 requirements.
Issues raised through consultation
Object to high-density development as it is contrary to current housing in Hocking.
The surrounding lots are coded R20 and generally range in size between 600m2 to 700m2, which is greater than the minimum average lot size of 450m2 prescribed by the R-Codes for R20 lots. The amendment would enable development of lots with an average lot size of 350m2 in R25 codes areas and 150m2 for the R60 coded areas. In the Concept Plan (Attachment 4), some of the R25 lots are proposed along the northern boundary of the site backing on to the existing R20 development to achieve a development interface of similar to that of the R20 development to the north. The remainder of the site is proposed to be coded R25 to R60. While the lot sizes are smaller than the prevailing lot sizes in the surrounding areas, Council’s LPP 3.1 provides a framework that supports the proposed density ranges in this location as detailed above. The increase in density of residential development would not have a direct impact on the amenity of the surrounding residential area with the higher density (R60) contained to the central portion of the site and does not abut any existing residential development.
In order to ensure that at the subdivision stage the applicant develops R25 density lots backing onto the existing R20 lots to the immediate north of the site, it is recommended that the proposed Structure Plan be modified accordingly and to retain the R25-R60 density range for the remainder of the site as proposed.
Object to additional traffic generated by the proposed development
The impact of traffic has been discussed in detail above. The City does not support the proposed Business zone which would generate the majority of the traffic from the site and would significantly impact on the operation of the junction of Kirkstall Drive and Wanneroo Road. In this regard Administration is recommending a modification to delete the proposed Business Zone and retain the existing residential R20 density under the Structure Plan.
However, if the site were to have been developed as a high school the traffic impact would be greater than developing the site entirely for residential housing at the proposed densities, (if substituting R60 in lieu of the Business Zone). In this regard it is considered that the difference in traffic generated from the site as a result of the proposed density increases would be less than the original intention for the site as a private high school. In addition the traffic generated by residential development at a range of densities up the R60 across the site will not be significantly different from developing the site at the R20 density code as is currently permitted. The proposed density range would result in an additional 33 lots and 206 vpd on Kirkstall Drive.
Object to the Business zone as there are already established businesses in the locality and the Business Zone could provide an opportunity for a service station
The Wangara industrial area is approximately 2.5 kilometres to the south of the site, which provides for bulky goods land uses and includes Business zoned land. Business zoned land adjoining residential in the subject area is considered to be unnecessary and incompatible with the form and character of residential development in the area.
Several submitters have stated that introducing a Business Zone could provide an opportunity for a Service Station. They object to this as they consider that there are too many service stations on Wanneroo Road.
Under the provisions of DPS 2, the land use Service Station is a Discretionary Use in Business Zone and as such a development would be capable of development approval should the rezoning be approved. A rezoning application is not for development of a Service Station or any other use, however, as detailed above Administration does not support the proposed Business zone as such uses are not considered to be appropriate in this location and there is suitable land nearby.
Developer Contribution Arrangements
Part 9 of DPS 2 contains the provisions relating to the developer contribution arrangements for East Wanneroo Cells 1 to 9. In calculating the Infrastructure Cost per lot (ICPL) for East Wanneroo Cell 4, as per the provision of clause 9.4.2 of DPS 2, Lot 594 Ranworth Road, Hocking in its entirety was deducted in the calculation of the Cell area as the entire lot was earmarked for a private school in ASP 6.
The subject proposal is to rezone part of Lot 594 from Residential Precinct to Business Zone and to develop the remaining Residential Precinct for residential purposes. This area will need to be included in the calculation of the Cell 4 area as part of the City’s Annual Review of Cell Costs to determine any implications in relation to the estimated lot yield and contribution rates for Cell 4. It is further noted that the applicant has proposed to provide more than 10% POS. As per the provisions of clause 9.5.1(a) of DPS 2, 10% of the POS provided will need to be included in the Cell 4 POS schedule, which will form part of the Cell Costs.
Conclusion
The applicant has requested the City consider a proposal to rezone the site partly as Business and partly as Private Clubs/Recreation and to recode the remaining Residential Precinct from Residential R20 to a range of Residential densities between R25 and R60. Considering the matters discussed above, it is recommended to support the proposal subject to modifications to delete the proposed Business Zone and provide a 15m wide Road connection to Ranworth Road and to amend the R-Code plan by proposing R25 density backing onto the existing R20 coded area and to recond the remainder at a density range of R25 to R60.
Consequently, the portion of the site within the proposed Business Zone will remain Residential Precinct with a density coding of R20 under the Structure Plan. If the WAPC proposes to recode this portion as R60 (as demonstrated in the section discussing LPP 3.1), it would be appropriate to recode this portion as R60 as it would satisfy the provisions of LPP 3.1. However, this matter is outside the scope of this proposal.
It is recommended that the amendment proposal be forwarded to the WAPC for is consideration subject to these modifications which address traffic concerns raised by MRWA, the Administration and the public submissions.
Statutory Compliance
This Structure Plan Amendment has been processed in accordance with the requirements of DPS 2.
Strategic Implications
The proposal aligns with the following objective within the Strategic Community Plan 2017 – 2027:
“1 Society
1.1 Healthy and Active People
1.1.1 Create opportunities that encourage community wellbeing and active and healthy lifestyles”
Risk Management Considerations
|
Risk Title |
Risk Rating |
|
ST-G09 Long Term Financial Planning |
Moderate |
|
Accountability |
Action Planning Option |
|
Director Corporate Strategy & Performance |
Manage |
|
Risk Title |
Risk Rating |
|
ST-S04 Integrated Infrastructure & Utility Planning |
Moderate |
|
Accountability |
Action Planning Option |
|
Director P&S and Director Assets |
Manage |
|
Risk Title |
Risk Rating |
|
CO-O22 Environmental Management |
Moderate |
|
Accountability |
Action Planning Option |
|
Director Planning & Sustainability |
Manage |
|
Risk Title |
Risk Rating |
|
CO-O23 Safety of Community |
Low |
|
Accountability |
Action Planning Option |
|
Director Community and Place |
Manage |
The above risks relating to the issue contained within this report have been identified and considered within the City’s Strategic and Corporate risk register. Action plans have been developed to accept this risk to support existing management systems. This proposal aligns with the Society objective of the existing Strategic Community Plan, Council should therefore consider the following risk appetite statement: 1.1 Healthy and Active People
The City’s defined risk appetite for 1.1 Healthy and Active People is articulated through the risk appetite statement as - All sporting activities in which local governments are involved have the potential to cause injury and/or ill health to participants, spectators and third parties. However, the City believes the health benefits for the community outweigh these impacts, and will continue to plan, deliver, fund and permit events and activities which support a healthy and active population – subject to robust risk assessment and management that can be evidenced. The City provides facilities that are for leisure and general recreation activities and as a facility provider; ensures facility design and support the community to utilise the facilities. Therefore the City will accept a low to moderate level of risk to ensure health and safety impacts are reduced to ‘as low as reasonable practicable’ (ALARP) and reputation risk is restricted to low.
Policy Implications
This proposal is assessed under the provisions of the City’s Local Planning Policy 3.1 – Local Housing Strategy Implementation and the WAPC’s Liveable Neighbourhoods Policy and State Planning Policy 4.2 – Activity Centres for Perth and Peel.
Financial Implications
In calculating the East Wanneroo Cell 4 area to assess the Infrastructure Cost per lot, the site being a private school site was excluded as per clause 9.4.2 of DPS 2. As a result of the amendment proposal, the development will attract developer contributions.
Voting Requirements
Simple Majority
That Council:-
1. Pursuant to subclause 20(2)(e) of the Deemed Provisions of the City of Wanneroo District Planning Scheme No. 2 RECOMMENDS to the Western Australian Planning Commission that the proposed Amendment No. 38 to the East Wanneroo Cell 4 Approved Structure Plan No. 6 to rezone Lot 594 Ranworth Road, Hocking partly as Private Clubs/Recreation and to recode the remaining Residential Precinct from Residential R20 to a density range of Residential R25 to R60 as shown in Attachment 2 BE APPROVED subject to the following modifications:
a) In the Zoning Map and the Structure Plan to re-configure the boundaries of the Private Clubs/Recreation Zone to accommodate a 15-metre wide road reserve connection to Ranworth Road;
b) In the Structure Plan, recode the portion of the site abutting the existing R20 coded areas located to the immediate north of the site as R25 and to recode the remainder of the site excluding the proposed Business Zoned land at a density range of R25 to R60; and
c) Amend Schedule 3 Public Open Space Provision: Cell 4 in the Part 1 of ASP 6 to include the following additional POS site:
|
Public Open Space |
Lot No. |
Area (ha) |
|
4L |
Part of Lot 594 Ranworth Road |
0.676 |
2. Pursuant to subclause 20(2)(e) of the Deemed Provisions of the City of Wanneroo District Planning Scheme No. 2 RECOMMENDS to the Western Australian Planning Commission that the proposed Amendment No. 38 to the East Wanneroo Cell 4 Approved Structure Plan No. 6 to rezone Lot 594 Ranworth Road, Hocking partly as Business as shown in Attachment 2 SHOULD NOT BE APPROVED for the following reasons:
a) The proposed Business Zone does not satisfy the Western Australian Planning Commission’ State Planning Policy 4.2 – Activity Centres for Perth and Peel (SPP 4.2) as listed below:
i. The proposal is contrary to Section 5.6.1(1) of SPP 4.2 as the proposed Business Zone is located within the walkable catchment of the surrounding residential areas;
ii. The proposal is contrary to Section 5.6.1(4) of SPP 4.2 as the proposed Business Zone encroaches into the approved Residential Precinct under ASP 6;
iii. The proposal is contrary to Section 5.6.1(4) ) of SPP 4.2 as the proposed Business Zone constitutes ribbon development along Wanneroo Road which is a regional road; and
iv. The proposal is contrary to Section 5.6.1(6) ) of SPP 4.2 as it has not been demonstrated that there is a lack of available sites for business development in the area; and
b) Pursuant to Clause 67(t) of the deemed provisions of District Planning Scheme No.2, the amount of traffic estimated to be generated by the proposed development would have probable effect on the traffic flow and safety in relation to the capacity of the road system in the locality;
3. Pursuant to subclause 20(2)(a-d) of the deemed provisions of the City of Wanneroo District Planning Scheme No. 2 PROVIDES a copy of the report on the proposed Amendment No. 38 to East Wanneroo Cell 4 Approved Structure Plan No. 6 to the Western Australian Planning Commission including the schedule of submissions and the City’s response and recommendations; and
4. ADVISES the submitters of its decision.
Attachments:
|
1⇩. |
Attachment 1 - Location Plan |
19/378112 |
|
|
2⇩. |
Attachment 2 - Zoning/Coding map & Part 1 provisions |
19/378196 |
Minuted |
|
3⇩. |
Attachment 3 - Schedule of submissions - Amendment No.38 |
20/163989 |
|
|
4⇩. |
Attachment 4 - Concept Plan |
20/133778 |
|
|
5⇩. |
Attachment 5 - MRWA comments |
20/203278 |
|
|
6⇩. |
Attachment 6 - Alternative concept plan |
20/314584 |
|
|
7⇩. |
Attachment 7 - Concept Plan showing 15m wide road off Ranworth Road |
20/332059 |
|
|
8⇩. |
Attachment 8 - POS Schedule |
20/341967 |
|
CITY OF WANNEROO Agenda OF Elected Members' Briefing Session 18 August, 2020 55
3.2 Consideration of Amendment No. 177 to District Planning Scheme No. 2 and Amendment No.4 to Banksia Grove Approved Structure Plan No. 21A
File Ref: 37441 – 20/57650
Responsible Officer: Director Planning and Sustainability
Disclosure of Interest: Nil
Attachments: 9
Issue
To consider the submissions received during the public advertising of Amendment No. 177 to District Planning Scheme No.2 (DPS 2) and Amendment No. 4 to Banksia Grove Approved Structure No 21A (ASP 21A) and to provide a recommendation on the proposals to the WAPC.
|
Applicant |
CLE Town Planning & Design |
|
Owner |
Housing Authority |
|
Location |
Lot 9193 (171K) Joseph Banks Boulevard, Banksia Grove |
|
Site Area |
3.6074 Hectares (ha) |
|
MRS Zoning |
Urban |
|
DPS 2 Zoning |
Special Residential |
|
ASP21A Zoning |
Special Residential |
Background
On 22 February 2019, CLE Town Planning and Design, on behalf of Banksia Grove Nominees (acting on behalf of Housing Authority), submitted two applications:
1) Proposed Amendment No. 177 to DPS 2 to rezone Lot 9193 (171K) Joseph Banks Boulevard, Banksia Grove (the subject land) from Special Residential No.2 (SR 2) wherein the minimum lot size is 5,000m2 in area to Urban Development and to amend Schedule 11 of DPS 2 by deleting the subject land from SR 2. The subject land was previously zoned SR2 under Town Planning Scheme No.1 prior to DPS2.
2) Proposed Amendment No.4 to ASP 21A to rezone the subject land from Special Residential to Residential with a density coding of R10 and a minimum lot size of 1,500m2 as the subject land is also zoned Special Residential in ASP 21A
Council, at its meeting of 15 October 2019 considered the amendment proposal and resolved as follows (refer Item PS01-10/19):
“That Council:-
1. Pursuant to Section 75 of the Planning and Development Act 2005 ADOPTS Amendment No. 177 to District Planning Scheme No. 2 to:
a) Rezone Lot 9193 Joseph Banks Boulevard, Banksia Grove from Special Residential to Urban Development and amend the scheme map accordingly as shown on Attachment 4 to this report; and
b) Modify Schedule 11 - Special Residential Provisions relating to Special Residential Zone No.2 by deleting ‘Portion of Lot 9189 Flynn Drive, Banskia Grove’ currently described as Lot 9193 Joseph Banks Boulevard, Banksia Grove.
2. RESOLVES, pursuant to the Regulation 35(2) of the Planning and Development (Local Planning Schemes) Regulations 2015 (the Regulations), that Amendment No. 177 of the District Planning Scheme No. 2 is a standard amendment pursuant to Regulation 34(c) of the Regulations as it proposes to rezone the amendment area to Urban Development to be consistent with the Metropolitan Region Scheme wherein the amendment area is zoned Urban;
3. Pursuant to Section 81 of the Planning and Development Act 2005, REFERS Amendment No. 177 of the District Planning Scheme No. 2 to the Environmental Protection Authority (EPA); and
4. Subject to EPA approval ADVERTISES Amendment No. 177 of the District Planning Scheme No. 2 pursuant to Regulation 47 of the Regulations for a period of 42 days.”
Proposed Amendment 4 to ASP 21A did not require a resolution of Council to commence advertising as it is processed under the Structure Planning provisions of DPS2.
Amendment 177 to DPS 2 and Amendment No. 4 to ASP 21A were both advertised concurrently, inviting public comment between 5 December 2019 and 23 January 2020.
Under the provisions of DPS 2, Council was required to consider all submissions on Amendment 177 within 60 of the end of the submission period. During the advertising period, the Department of Fire and Emergency Services (DFES) made a submission providing comments on the Bushfire Management Plan (BMP) submitted by the applicant raising significant concerns. The applicant was then invited to respond to the comments from DFES. Administration could not report the matter to Council within the statutory time frame because the applicant had not responded to the issues raised by DFES until June 2020. The WAPC was made aware of the need for additional time for the applicant to address these issues.
Detail
Site
The subject land is predominantly vegetated and is bound by the Carramar Special Rural Zone (CSRZ) to the west and Harden Park Trail to the east connected to Pinjar Road. Attachment 1 contains the location plan of the subject land. The residential area to the east of Harden Park Trail has been fully developed.
Proposal
Amendment No. 177 to DPS 2
The amendment to DPS 2 is to,
1. Rezone the subject land from Special Residential to Urban Development; and
2 Amend Schedule 11 – Special Residential Provisions by deleting the subject land.
Attachment 2 contains the proposed Scheme Amendment including the existing and proposed zoning maps.
Amendment No.4 to ASP 21A
The amendment to ASP 21A is to,
1. Rezone the subject land from Special Residential to Residential with a density coding of R10 and a minimum lot area of 1,500m2;
2. Amend the heading of Clause 8.7 as ‘Development Controls for Lots coded R10-Precinct A’; and
3. Insert a new Clause 8.8 on Development Controls for Lots coded R10-Precinct B.
Attachment 3 contains the structure plan amendment document including the modified zoning map and R-Code plan by indicating the subject land.
Consultation
In accordance with the Council’s decision, Amendment 177 was referred to the Environmental Protection Authority (EPA) for comment. On 18 November 2019, the EPA advised the City that Amendment 177 did not warrant an environmental assessment.
Under the provisions of the Regulation 34 of the Planning and Development (Local Planning
Schemes) Regulations 2015 (Regulations), Amendment 177 is considered to be standard for the following reason:
· It proposes to rezone the amendment area to Urban Development to be consistent with the Metropolitan Region Scheme wherein the amendment area is zoned Urban.
Being a standard amendment, under the provisions of DPS 2, the Western Australian Planning Commission’s consent to advertise it was not required. Under Regulation 47(4) of the Regulations, a standard amendment is required to be advertised for a minimum period of 42 days.
Clause 18 of the deemed provisions of the DPS 2 requires a structure plan amendment to be advertised within 28 days of accepting it. As the structure plan amendment was directly related to and contingent on Amendment 177, it was considered appropriate to advertise both the Scheme amendment and Structure Plan amendment proposals at the same time for the same duration.
A 49-day public advertising period was carried out between 5 December 2019 and 23 January 2020 by way of an on-site sign, advertisement in the local newspaper, a notice in the Council offices and the City’s website, and letters to the affected and nearby landowners. The period of advertising was extended by 7 days to account for the end of year holiday period. The City received four submissions including one from the Department of Water and Environmental Regulation who did not comment on the amendment proposals. The other three submitters objected to the proposal. The main issues raised in the submissions are:
· Loss of vegetation affecting outlook, streetscape and impact on wildlife, and
· Increase in traffic.
These issues are discussed in detail in the Comment Section below.
Attachment 4 is the schedule of submissions and Administration’s response to each issue.
It should be noted that no submissions were specifically received on the structure plan amendment. However as the two proposals were advertised concurrently the issues raised are taken to address both the Scheme amendment and Structure Plan amendment.
Comment
BMP
The subject land is a bushfire prone area and therefore the applicant was required to submit a BMP under State Planning Policy 3.7 (SPP 3.7) Planning in Bushfire Prone Areas. Section 6.3 c) of the policy requires that an application provides “clear demonstration that compliance with the bushfire protection criteria in the Guidelines can be achieved in subsequent planning stages.”
The City referred the BMP to DFES for comments. On 13 September 2019, the City received comments from DFES requesting further information on vegetation classification and clearing, minimising the level of bushfire impact and vehicle access. DFES also requested that a Fire Service Access Route (FSAR) should be provided at the rear of the properties to provide defendable space and to reduce the potential impact of bushfire on the adjoining properties.
In response the applicant modified the BMP and it was again referred to DFES for comment. Attachment 5 is the Bushfire Attack Level (BAL) contour plan showing ratings of the subject land which range between Flame Zone (FZ) and 12.5. Attachment 6 provides an explanation of the BAL ratings. Attachment 7 is the building envelope plan locating the building envelopes where the BAL ratings are 29 or lower.
DFES in its correspondence of 20 July 2020 advised the City that the modified BMP is not supported for the following reasons:
· The BMP did not adequately address the policy requirements of the WAPC State Planning Policy 3.7 – Planning in Bushfire Prone Areas and the Guidelines;
· Significant areas of the lots abutting Carramar Special Residential Zone have a BAL rating of 40 and FZ; and
· A Fire Services Access Route (FSAR) should be explored at the rear of the properties to provide defendable space and to reduce the bushfire impact on adjoining properties.
DFES further advised Administration that even if the applicant provided an FSAR, DFES would still not support the BMP as significant areas of the lots have a BAL rating of 40 and FZ.
In relation to development within areas with a BAL rating of 40 of FZ, SPP 3.7 states the following:
“There is a presumption against approving any strategic planning proposal, subdivision or development application that will result in the introduction or intensification of development or land use in an area that has or will, on completion, have an extreme BHL and/or where BAL-40 or BAL-FZ applies unless it meets the definition of unavoidable development.”
The proposal does not meet the definition of being Unavoidable Development under SPP 3.7.
It is noted that the land located to the immediate north of the subject land and between Pinjar Road and Moort Rise was able to be rezoned via Amendment 149 from Special Residential to Urban Development. This was because the BAL rating for the land was a maximum of BAL 29. Attachment 8 depicts the Amendment No.149 land and the subject land. The area subject of Amendment No.149 received lower BAL ratings due to its separation from CSRZ by the 14 metre wide Moort Rise road reserve. The land subject of this proposal does not benefit from a road reserve separating the lots from an area of high bushfire risk.
On 27 February 2017 the WAPC granted subdivision approval (WAPC ref 154562) to subdivide the subject land into seven 5,000m2 (approx) Special Residential lots. As part of the referral process the WAPC referred that application to DFES who, to Administrations understanding, did not object to the subdivision proposal. Following the initial objection from DFES to Amendment 177 the applicant requested DFES reconsider its position. In support of their position the Applicant cited the support DFES provided for the 2017 subdivision application to create 5000m2 lots. However DFES has maintained is opposition to this scheme amendment proposal.
The existing subdivision approval to create 7 Special Residential Lots of around 5000m2 is valid for 4 years – expiring on 27 February 2021. The proponent is still able to act on that approval to create the approved lots if they choose. The BMP that was produced to support the Special Residential subdivision of the lots requires building envelopes and 20m Bushfire Protection Zones around each building envelope to woodland vegetation.
It is understood that DFES’s position on proposed Amendment 177 relates to minimisation of risk as Amendment 177 would allow subdivision of the land into 23 residential lots of around 1500m2 each thereby exposing more residents to the risk of bushfire in this location.
Considering that DEFS has advised that the proposal cannot resolve the inherent bushfire risk associated with the site, it is recommended that the proposed amendments not be supported as they are inconsistent with the provisions of State Planning Policy 3.7.
The issues raised in the public submissions
Loss of native vegetation impacting on outlook, streetscape and wildlife
The submitters are concerned that the proposed Amendment will allow clearing of much needed habitat and feeding grounds for fauna.
Submissions also raised concerns regarding the loss of visual amenity as there was a belief the lots would remain heavily vegetated and not be cleared.
EPA has advised that clearing of vegetation within the amendment area does not require any further State environmental approvals, as Ministerial Statement No. 280 is an implementation agreement which makes the project exempt from requiring a clearing permit under the Environmental Protection (Clearing of Native Vegetation) Regulations 2004.
In order to identify any Carnaby’s Cockatoo habitats within the amendment area, the applicant undertook a significant tree survey in accordance with the EPBC Act Referral guidelines for three threatened black cockatoo species: Carnaby's cockatoo, Baudin's cockatoo and Forest red-tailed black cockatoo.
The survey identified seven significant trees. Two of the trees identified contain potentially suitable breeding hollows for black cockatoos. Attachment 9 contains the plan locating the significant trees.
The land subject of the amendment is already zoned Urban under the MRS and the site is not protected bushland, being private property. Any owner of zoned land is able to apply to rezone land under DPS2 or a structure plan. The applicant’s proposal indicates that there would remain vegetated buffers on the future lots subject of a Local Development Plan, the intention being to retain the natural steetscape. The details would be addressed through a Local Development Plan, conditions of subdivision approval and development applications if the amendments were to be finalised.
Increase in traffic
If proposed amendments are approved the site could possibly yield up to 23 lots. At the rate of eight vehicle trips per dwelling per day, 23 dwellings are likely to generate up to 184 additional vehicles per day (vpd). Harden Park Trail currently provides access to about 50 dwellings generating 400 vpd.
Harden Park Trail is a 16-metre wide Access Street with a six-metre wide carriageway. As per the WAPC’s Liveable Neighbourhoods Policy, the indicative traffic volume on this road is 1,000 vpd. The estimated volume of traffic generated by the amendment proposals will remain less than 1000 vpd and would not impact on the normal operation of Harden Park Trail.
Amendment No. 4 to Agreed Structure Plan 21A
A there remains significant bushfire risk and in consideration of the advice from DFES which does not support the BMP, it is recommended Amendment No.4 to ASP 21A also not be supported as the proposed structure plan amendment is contingent on the progression of proposed Amendment 177 to DPS2 which is not recommended to be supported as it is inconsistent with the provisions of SPP 3.7.
Conclusion
The amendment proposals are considered to be appropriate with respect to environmental and traffic impacts. However, considering the comments made by DFES on the inherent bushfire risks associated with the site as detailed in the Bushfire Management Plan, it is recommended that Amendment 177 DPS 2 and Amendment No. 4 to Banksia Grove Approved Structure ASP 21A not be supported as the proposals cannot sufficiently mitigate bushfire risk and are contrary to the provisions of State Planning Policy 3.7 Planning in Bushfire Prone Areas.
Statutory Compliance
Amendment No. 177 to DPS 2
Amendment No. 177 to DPS 2 has been processed in accordance with the Planning and Development (Local Planning Schemes) Regulations 2015.
Amendment No. 4 to ASP 21A
Amendment No.4 to ASP 21A is processed under the provisions of Clause 20 of the deemed provisions of DPS 2.
Strategic Implications
The proposal aligns with the following objective within the Strategic Community Plan 2017 – 2027:
“1 Society
1.2 Safe Communities
1.2.1 Enable community to be prepared and to recover from emergency situations”
Risk Management Considerations
|
Risk Title |
Risk Rating |
|
CO-O01 Relationship Management |
Low |
|
Accountability |
Action Planning Option |
|
Director Corporate Strategy & Performance and Director Community & Place |
Manage |
|
Risk Title |
Risk Rating |
|
CO-O22 Environmental Management |
Moderate |
|
Accountability |
Action Planning Option |
|
Director Planning & Sustainability |
Manage |
|
Risk Title |
Risk Rating |
|
CO-O23 Safety of Community |
Low |
|
Accountability |
Action Planning Option |
|
Director Community and Place |
Manage |
The above risks relating to the issue contained within this report have been identified and considered within the City’s Corporate risk register. Action plans have been developed to accept this risk to support existing management systems. This proposal aligns with the Society objective of the existing Strategic Community Plan, Council should therefore consider the following risk appetite statement: 1.2 Safe Communities
The City’s defined risk appetite for 1.2 Safe Communities is articulated through the risk appetite statement as - The City places a high priority on the safety of its community particularly in the public realm and the importance of hazard and risk identification, management and reduction. Primarily, the City seeks to protect life over property and will not tolerate any deliberate act or omission by any party that jeopardises that objective. Subject to a rigorous cost/benefit analysis, the City’s property will also be protected and assets insured. Legislation governs the City’s activities including the Local Emergency Preparedness Plan to ensure the safety of the Community. The City places a high priority on the safety of its Volunteers and staff and will support operating models that achieve and represent the most effective model to ensure the safety of its volunteers. Therefore the City will accept a moderate risk to reputation, low risk to financial and safety.
With respect to this application, Administration considers that the risk of bushfire cannot be reduced to a satisfactory level as advised by DFES. In addition the public advertising and received submissions objecting to the proposal raised environmental issues. A site survey identified seven significant trees. Two of the trees identified contain potentially suitable breeding hollows for black cockatoos.
Policy Implications
State Planning Policy 3.7 Planning in Bushfire Prone Areas.
Financial Implications
Nil
Voting Requirements
Simple Majority
That Council:-
1. Pursuant to Section 50(3)(a) of the Planning and Development (Local Planning Schemes) Regulations 2015 DOES NOT SUPPORT Amendment No. 177 to District Planning Scheme No. 2 to:
a) Rezone Lot 9193 Joseph Banks Boulevard, Banksia Grove from Special Residential to Urban Development and amend the scheme map accordingly as shown on Attachment 2 to this report; and
b) Modify Schedule 11 - Special Residential Provisions relating to Special Residential Zone No.2 by deleting ‘Portion of Lot 9189 Flynn Drive, Banksia Grove’ currently described as Lot 9193 Joseph Banks Boulevard, Banksia Grove,
for the following reasons as advised by the Department of Fire and Emergency Services:
· The Bushfire Management Plan did not adequately address the policy requirements of the Western Australian Planning Commission’s State Planning Policy 3.7 – Planning in Bushfire Prone Areas and the Guidelines;
· Significant areas of the lots abutting Carramar Special Rural Zone have a Bushfire Attack Level rating of 40 and Flame Zone; and
· A Fire Services Access Route should be explored at the rear of the properties to provide defendable space and to reduce the bushfire impact on adjoining properties.
2. Pursuant to subclause 20(2)(e) of the deemed provisions of the District Planning Scheme No.2 RECOMMENDS to the Western Australian Planning Commission that the proposed Amendment No.4 to Banksia Grove Approved Structure Plan No. 21A to rezone Lot 9193 Joseph Banks Boulevard, Banksia Grove from Special Residential to Residential with a residential density of R10 and to amend the structure plan and the Zoning Map and the R-Code plan accordingly should not be approved for the reasons stated in Resolution 1 above.
3. ADVISE the submitters of the above decision.
Attachments:
|
1⇩. |
Attachment 1 - Location Plan |
19/265301 |
|
|
2⇩. |
Attachment 2 - Zoning Map |
19/267383 |
Minuted |
|
3⇩. |
Attachment 3 - Amdt 4 to ASP 21A document |
20/302420 |
|
|
4⇩. |
Attachment 4 - Schedule of submissions |
20/310276 |
|
|
5⇩. |
Attachment 5 - BAL plan |
20/269544 |
|
|
6⇩. |
Attachment 6 - BAL ratings |
19/353594 |
|
|
7⇩. |
Attachment 7 - Building envelope plan |
20/269547 |
|
|
8⇩. |
Attachment 8 - Subject land and 149 |
20/326155 |
|
|
9⇩. |
Attachment 9 - Significant Tree Survey |
20/302890 |
|
CITY OF WANNEROO Agenda OF Elected Members' Briefing Session 18 August, 2020 89
3.3 Consideration of Amendment No. 184 to District Planning Scheme No. 2 to allow Smash Repair Station as an Additional Use to Lot 216 (87) Innovation Circuit, Wangara
File Ref: 40636 – 20/315001
Responsible Officer: Director Planning and Sustainability
Disclosure of Interest: Nil
Attachments: 5
Issue
To consider a request to amend District Planning Scheme No. 2 (DPS 2) to include ‘Smash Repair Station’ as an Additional Use at Lot 216 (87) Innovation Circuit, Wangara (subject site).
|
Applicant |
Planning Solutions |
|
Owner |
A&R Development Holdings P/L ATF A&R Property Development Trust |
|
Location |
Lot 216 (87) Innovation Circuit, Wangara |
|
Site Area |
2,960m2 |
|
MRS Zoning |
Industrial |
|
DPS 2 Zoning |
Service Industrial |
Background
On 1 May 2020, Planning Solutions on behalf of the land owners lodged Amendment No. 184 to DPS2 for consideration of including the land use class ‘Smash Repair Station’ as an Additional Use on the subject site. Smash Repair Station is a use that is listed as Not Permitted ‘X’ in the Service Industrial zone.
On 4 May 2020, the City granted development approval at the subject site to operate a ‘Motor Vehicle Repairs’ centre. The building on site has an area of 1,641m2 with 36 on-site bays provided. The operators of the approved Motor Vehicle Repairs land use are seeking to expand their activities to include smash repairs. However, as this is a prohibited use in the zone, a Scheme Amendment is required. The surrounding lots are developed and their uses generally consist of warehousing, showrooms, light manufacturing, wholesalers, lunch bars, private recreation and food manufacturing.
Detail
Site
The subject site fronts onto Innovation Circuit and is located just to the west of Hartman Drive. The site is bound by Service Industrial zoned land to the north-west, west and south, and General Industrial zoned land to the east, on the opposite side of Hartman Drive. The closest Residential zoned land is located approximately 360 metres south of the subject site.
A plan showing the location of the subject site is included as Attachment 1.
Existing Smash Repair Stations within Wangara are located to the east of Hartman Drive, which is zoned General Industrial. Administration is not aware of any Smash Repair Station land uses operating to the west of Hartman Drive within the Service Industrial zone.
Proposal
The proposal seeks to amend DPS2 by:
1. Introducing ‘Smash Repair Station’ as an Additional Use on Lot 216 (87) Innovation Circuit, Wangara and amending Schedule 2 – Section 1 (Clause 3.20) – Additional Uses, as follows:
|
No |
Street/Locality |
Particulars of Land |
Additional Use and Conditions (where applicable) |
|
|
A42 |
1-42 |
87 Innovation Circuit, Wangara |
Lot 216 on Deposited Plan 35032 |
Smash Repair Station (‘D’ use) |
2. Amend the Scheme Map accordingly.
The applicant’s justification for the proposal can be summarised as follows:
1. The Service Industrial zone is intended to cater for a wide range of businesses which include light industries, mixed commercial/industrial activities and other associated businesses which are complementary in nature. The proposed use can be co-located as any offsite impacts are not likely to be obtrusive and will not be detrimental to the local amenity.
2. The nature of the use is therefore complementary to other uses capable of approval in the Service Industrial zone.
Attachment 2 contains the amendment document showing the existing and amended zoning.
Consultation
The proposed amendment to DPS2 is considered to be a ‘standard amendment’ in accordance with Part 5 – Division 1 of the Planning and Development (Local Planning Schemes) Regulations 2015 for the following reason:
· It is consistent with the region planning scheme that applies to the scheme area, other than an amendment that is a basic amendment.
In this regard the land is zoned Industry under the MRS and the use is considered to be consistent with a region scheme.
Where a scheme amendment is required to be advertised, the amendment will need to be referred to the Environmental Protection Authority (EPA) to assess the environmental impacts of the proposal and to determine whether any formal environmental assessment is necessary prior to advertising.
Subject to no objections being received from the EPA, the amendment must be advertised for public comment for a period of 42 days. Advertising is to occur in the following manner, consistent with the requirements of the Planning and Development (Local Planning Schemes) Regulations 2015:
· Advertisement in a local newspaper for one week;
· Placement of a sign on affected sites, giving notice of the proposal;
· Display notice of the proposal in Council offices;
· Display on the City’s website; and
· Referral in writing to affected persons/agencies.
Comment
Proposed Operation
‘Smash Repair Station’ is defined under DPS2 as follows:
‘Smash Repair Station: means land and buildings used for, or in connection with smash repairs including panel beating, spray painting, chassis reshaping, application and sanding down or motor vehicle body filler.’
The operator is seeking to expand their existing motor vehicle repairs facility to include replacement or repair of vehicle panels, spray painting, various forms of bodywork and other automotive repairs usually required as a result of collisions or accidents. It is stated in the application that the company specifically deals with rapid repairs on driveable vehicles and repairs on vehicles with more significant damage. All repair works will be conducted within the building.
The application indicates that they do not intend to perform any full scale dismantling, vehicle wrecking or store wrecked vehicles. These activities fall into the “Vehicle Wrecking” land use and are not permitted as part of a Smash Repair Station.
Attachment 3 contains photographic examples of the interior of an existing facility by the same company. Attachment 4 contains the conceptual plans of the proposed Smash Repair Station.
Service Industrial Zone
The subject site is located within the Service Industrial zone. The objectives of the Service Industrial zone are to:
a) Accommodate a range of light industries, showrooms and warehouses, entertainment and recreational activities, and complementary business services which by nature would not detrimentally affect the amenity of surrounding areas; and
b) Ensure that development within this zone creates an attractive façade to the street for the visual amenity of surrounding areas.
Smash Repairs is listed as a prohibited use in the Service Industrial zone as it is considered to be an intensive land use that can have off-site impacts due to noise, odour and emissions. Automotive servicing which is permitted in the Service Industrial Zone does not allow for the activities associated with Smash Repair that can have an impact on surrounding properties.
Smash Repairs is accommodated in the General Industrial zone and is listed as a Discretionary “D” use. The Wangara General Industrial zone is located immediately to the east of the site across Hartman Drive.
Offsite Impacts
The applicant has submitted a Traffic Impact Statement (TIS), an Environmental Noise Assessment, and information and specifications of the spray booths, in support of this amendment to demonstrate that offsite impacts would be mitigated to ensure the proposal will not have a detrimental effect on the amenity of the surrounding area.
Administration considers that the offsite impacts can be mitigated for the following reasons:
· The TIS has demonstrated that the proposed development would generate 310 vehicle trips per day, 50 vehicle trips during the AM peak, and 62 vehicle trips in the PM peak. The overall net traffic increase resulting from this proposed land use is below 100 vehicles in the peak hour, resulting in moderate traffic impacts to the surrounding roads. The TIS concluded that the existing roads are capable of accommodating the increased traffic generated on site.
· The Environmental Noise Assessment concluded that the noise levels generated from the proposed Smash Repair Station will comply with the Environmental Protection (Noise) Regulations 1997 at all times.
· The application states that the operator specialises in rapid repairs. The application indicates only vehicles which have completed the repair process will be kept outside the building awaiting collection and therefore the use would not have a detrimental impact on the streetscape.
· Under DPS 2, the car parking standard for Smash Repair Station is 1 bay per 50m2 GFA. For a floor area 1,641m2, the Smash Repair Station will require 32.82 (33) car bays. There is currently a total of 36 on-site bays which exceeds the required parking for this land use.
· The conceptual plans provided with the application indicates the use of two spray booths located entirely within the building, occupying an area of 60m2. The operator intends to use traditional spray booths that are manufactured by Junair (specifications included in Attachment 5), where all spray booths consists of a two stage filtration system. An emissions assessment was carried out on the Junair spray booth equipment but has not yet demonstrated it complies with the Australian Standards No. 4114 Spray Painting Booths, Designated Spray Painting Areas and Paint Mixing Rooms.
In addition to this, the following management practices will be undertaken as a minimum:
o Spray booth doors will be completely shut while spray painting is being carried out to ensure particulates are redirected through exhaust fans and treatment systems;
o Exhaust fans and treatment systems are activated before spray painting is carried out to ensure they are operating at full capacity once painting commences;
o Exhaust fans and treatment systems are checked and maintained regularly to ensure they are operating at the correct performance level;
o Spray booths are regularly cleaned and kept in a tidy condition;
o The contact details of the manufacturer and/or an approved maintenance consultant of the manufacturer are always available.
The amendment proposes for the Smash Repair Station use to be a discretionary (‘D’) use. Therefore, the City would require a site specific emissions report and a management plan demonstrating compliance with the Australian Standards No. 4114 Spray Painting Booths, Designated Spray Painting Areas and Paint Mixing Rooms to be submitted and considered at the development application stage, prior to any development commencing.
Sensitive Uses within the Service Industrial zone
The Service Industrial zone allows for a range of potentially more sensitive uses such as:
· Bakery;
· Educational Establishment;
· Lunch Bar; and
· Recreation Centre.
Based on the provisions of DPS2, such uses can be and are located in the surrounding area of the subject site and are considered to be incompatible with industrial uses that produce emissions that could detrimentally affect the amenity of the surrounding areas. Administration was initially concerned that a future proposed Smash Repair Station may impact these more sensitive uses. However, based on the information provided by the proponent in support of their amendment, Administration is satisfied that the proposal can at the development application stage meet the objectives of the Service Industrial zone and will not detrimentally impact the amenity of the surrounding areas and will provide an attractive façade to the street. The proponent will be required to provide an emissions report and management plan as part of the future development application to demonstrate how the specific proposal will ensure there are no amenity concerns at the detailed stage of the planning process.
Conclusion
Whilst Administration had some initial concerns that the proposal may impact the amenity of the surrounding areas, the applicant has submitted sufficient supporting information to demonstrate that this specific proposal is unlikely to detrimentally affect the surrounding areas. Therefore, it is recommended that Council initiates Amendment 184 to DPS2 for advertising.
Statutory Compliance
The scheme amendment will follow the statutory process outlined in the Planning and Development (Local Planning Schemes) Regulations 2015.
Strategic Implications
The proposal aligns with the following objective within the Strategic Community Plan 2017 – 2027:
“2 Economy
2.1 Local Jobs
2.1.1 Develop strong economic hubs locally and near transport”
Risk Management Considerations
|
Risk Title |
Risk Rating |
|
CO-O01 Relationship Management |
Low |
|
Accountability |
Action Planning Option |
|
Director Corporate Strategy & Performance and Director Community and Place |
Manage |
|
Risk Title |
Risk Rating |
|
CO-O22 Environmental Management |
Moderate |
|
Accountability |
Action Planning Option |
|
Director Planning & Sustainability |
Manage |
|
Risk Title |
Risk Rating |
|
CO-O23 Safety of Community |
Low |
|
Accountability |
Action Planning Option |
|
Director Community and Place |
Manage |
The above risks relating to the issue contained within this report have been identified and considered within the City’s Corporate risk register. Action plans have been developed to accept this risk to support existing management systems. This proposal aligns with the Economic objective of the existing Strategic Community Plan, Council should therefore consider the following risk appetite statement: 2.2 Strategic Growth.
The City’s defined risk appetite for 2.2 Strategic Growth is articulated through the risk appetite statement as - The City encourages a diverse range of businesses including emerging industries with different industries to establish themselves or expand in Wanneroo. The City acknowledges that undertaking industry development and growth requires ongoing capital expenditure for essential infrastructure within key strategic areas (for example, in Yanchep and Neerabup). As such, the City is prepared to accept risk subject to the City exercising prudent stewardship through disclosing financial risk and mitigation strategies, strong internal controls (such as Council policies and procedures for governance as well as administration delegations) and meeting compliance requirements. Therefore, the City will accept a moderate level of financial risk for facilitating industry development and growth.
Policy Implications
Nil
Financial Implications
Nil
Voting Requirements
Simple Majority
That Council:-
1. Pursuant to Section 75 of Planning and Development Act 2005 ADOPTS Amendment No. 184 to District Planning Scheme No. 2 to allow the use class Smash Repair Station as an Additional Use at Lot 216 (87) Innovation Circuit, Wangara and AMENDS Schedule 2 of the District Planning Scheme No. 2 as follows:
|
No |
Street/Locality |
Particulars of Land |
Additional Use and Conditions (where applicable) |
|
|
A42 |
1-42 |
87 Innovation Circuit, Wangara |
Lot 216 on Deposited Plan 35032 |
Smash Repair Station (‘D’ use) |
and the Amend the Scheme Map accordingly;
2. Pursuant to Section 35(2) of Planning and Development (Local Planning Schemes) Regulations 2015 RESOLVES that Amendment No. 184 to District Planning Scheme No. 2 is a Standard Amendment for the following reasons:
a) The Amendment that is consistent with the region planning scheme that applies to the scheme area, other than an amendment that is a basic amendment.
3. Pursuant to Section 81 of the Planning and Development Act 2005 REFERS Amendment No. 184 to District Planning Scheme No. 2 to the Environmental Protection Authority; and
4. Subject to approval from Environmental Protection Authority:
a) NOTIFIES the Western Australian Planning Commission of its intent to advertise Amendment No. 184 to District Planning Scheme No. 2 pursuant to Regulation 47(1) of the Planning and Development (Local Planning Schemes) Regulations 2015; and
b) ADVERTISES Amendment No. 184 to District Planning Scheme No. 2 for a period of not less than 42 days pursuant to Regulation 47(2) and 47(4) of the Planning and Development (Local Planning Schemes) Regulations 2015.
Attachments:
|
1⇩. |
Attachment 1 - Location Plan - Lot 216 (87) Innovation Circuit WANGARA |
20/254694 |
|
|
2⇩. |
Attachment 2 - Scheme Amendment Map - Lot 216 (87) Innovation Circuit WANGARA |
20/254697 |
|
|
3⇩. |
Attachment 3 - Photographic Examples of Gemini Operations - Amendment No. 184 to District Planning Scheme No. 2 - Lot 216 (87) Innovation Circuit WANGARA |
20/287097 |
|
|
4⇩. |
Attachment 4 - Concept Plans - Amendment No. 184 to District Planning Scheme No. 2 - Lot 216 (87) Innovation Circuit WANGARA |
20/315911 |
|
|
5⇩. |
Attachment 5 - Junair Spray Booths Specifications - Amendment No. 184 to District Planning Scheme No. 2 - Lot 216 (87) Innovation Circuit WANGARA |
20/315921 |
|
CITY OF WANNEROO Agenda OF Elected Members' Briefing Session 18 August, 2020 110
Strategic Land Use Planning and Environment
File Ref: 5734V04 – 20/316277
Responsible Officer: Director Planning and Sustainability
Disclosure of Interest: Nil
Attachments: 1
Issue
To authorise various actions associated with the management of developer contribution arrangements under District Planning Scheme Number 2 (DPS2).
Background
At the meeting of Council on 30 June 2020, Council initiated Amendment 185 to DPS2 to advertise an amendment to the Scheme to facilitate a number of improvements to the provisions relating to the management of developer contribution arrangements by the City.
Administration has identified that there are numerous decisions required by Parts 9, 10 and Schedules 6, 7, 14 and 15 of DPS2 that are not currently able to be delegated to Administration, pending the finalisation of the Amendment to scheme. This is due to the reference to a decision by “Council” in relation to actions in certain sections of DPS2 (which cannot be delegated) rather than the ‘local government’ (that can be delegated). Previously, the interpretation was broadly interpreted as Council being the same as the local government, and therefore, the daily decisions such as quotations, tax invoices and the deferral of contributions were carried out by Administration. As reported to Council on 30 June 2020, the inability to delegate certain aspects of DCP management was an unintended consequence embedded in the drafting of DPS2 but it cannot be interpreted differently until such time that DPS2 is amended to replace the term “Council” with “local government” to enable delegation to be considered for those aspects of DCP management.
The consequence of this is that until the Scheme Amendment is gazetted, Council is required to make these decisions. Until this occurs, all discretionary decisions under Parts 9, 10 and Schedules 6, 7, 14 and 15 of DPS2 that refer to Council will need to be reported to Council for approval. The extent and nature of the decision-making will vary month-to-month and in most cases subdividers will be awaiting a determination to enable payment to be made for outstanding contributions associated with subdivision or payment to landowners for Cell Works. Subsequent to the finalisation of Amendment 185 (which is anticipated to take a year), Council will have the ability to determine which aspects of DCP management should be delegated to the CEO.
Detail
Administration is required to refer a range of DCP decisions to Council in the form of a summary report to authorise various actions, including:
· Tax Invoice/Quotations for contributions required by conditions of subdivision or development approval;
· Deferral of contributions requests and lodgement of a caveat;
· Offsetting of Cell Works credits against Infrastructure Contributions payable (land or works); and
· Prefunding of Cell Works.
In relation to the above, the actions normally occur through the subdivision process and therefore require a timely determination. Subdividers frequently require quotations on DCP contribution, offsetting of Cell Works Credits and payment of compensation in accordance with the requirements of DPS2 to satisfy conditions of subdivision. If these requests are not processed in a timely manner, then this could lead to delays in the creation of new lots.
In addition, certain actions required as part of the Annual Review of DCP’s may require an earlier determination by Council to inform the Annual Review process. These decisions may be included into the DCP report enable the timely consideration of factors affecting the Annual Review.
Consultation
Nil
Comment
Attachment 1 includes the details of the various aspects of DCP management that require a Council determination as follows:
· Tax Invoices/Quotations
In accordance with the relevant sections of DPS2, Council may, upon receiving a written request from an owner of land in a Cell, provide the landowners with a Tax Invoice or Quotation to enable the subdivider to pay their infrastructure Costs. The estimates are valid for a period of 6 months and calculated using the Infrastructure Cost per Lot (ICPL) or contribution rate approved by Council at the last Annual Review of costs.
The preparation of a Tax Invoice is the preferred manner to provide landowners with an estimate of their Infrastructure Costs, which provides a mechanism to inform and capture the contribution liability for both the landowner and the City.
In most cases a landowner will request a Tax Invoice or Quotation to facilitate the contribution payment necessary to comply with the conditions of planning approval. These conditions are most commonly associated with subdivision conditions and payment is required to enable the new lots to be created; and the processing of Tax Invoice requests in a timely manner is a critical aspect of the land development process. Until such time as DPS2 has been amended in accordance with Omnibus 185, Council does not have the ability to delegate this function to Administration.
All Cells and DCP areas have well defined methodologies in DPS2 for calculating landowners contribution liabilities, thereby ensuring clarity in the calculation of individual landowners obligations, as reported in Attachment 1.
· Deferral of Contributions
The City often receives requests to defer contributions, which is possible through Clause 9.10.9 of DPS 2. The City has supported such requests to facilitate clearance of conditions imposed by the Western Australian Planning Commission’s (WAPC) subdivision approval, subject to the payment of interest on deferred amounts in accordance with DPS2 and the landowner and the City entering into a Deed of Agreement to secure the liability.
Clause 9.10.9 also allows Council to suspend or waive interest or any part thereof if satisfied that it would be fair and equitable to allow such as request. As reported to Council on 30 June 2020 (Omnibus Amendment 185), it was identified that this clause refers to the payment of interest on outstanding contributions being charged in accordance with Section 142 of the Supreme Court Act, which was repealed in 2004. Amendment 185 recommends that this clause be replaced with Section 142 of the Supreme Court Act 1935 with the Civil Judgement Enforcement Act (2004) to enable interest to be charged (6%) pursuant to this Act and the associated Regulations (2005).
Until such time as DPS2 has been amended to refer to a relevant interest provision, the deferral of contributions is not supported by Administration. Notwithstanding, Administration will report any such requests to Council for consideration.
· Cell Works Credits
Cell works may be prefunded by the landowner through the provision of land and or construction works. Land acquisition is compensated at the ‘assessed’ value adopted by Council as part of the last Annual Review and in accordance with Clause 9.10.6 of DPS2.
In relation to the vesting of Public Open Space and/or the dedication or land for road purposes, the Planning and Development Act 2005 provides for the land to be vested or transferred to the Crown through the subdivision process in accordance with an approval issued by the WAPC. Where the land is identified as a Cell Work, the landowner receives a credit or compensation for the works (where funds are available). Further, DPS2 provides that compensation is payable at the ‘Assessed’ Value for the relevant Cell (unless compulsorily acquired), which is annually approved by Councils as part of the Annual Review process.
Credits to be offset or paid for Cell Works for individual landowners are listed in Attachment 1 for Councils consideration; and hence only be recommended where adequate funding exists within the relevant DCP account.
· Payment of Residual Credits
In response to COVID-19, the City wrote to landowners within the East Wanneroo Cells that have remaining land development potential. The aim was to assist the development industry in stimulating land development and generally encourage economic activity within the City.
The City has received two requests from landowners to make payment from the cell account for their residual credits, which would otherwise be ‘offset’ against the landowner’s future stages of subdivision at that time.
The release of the residual credits is not a common action, however it is necessary to assist these landowners in raising capital for funding future stages and to reconcile the outstanding developer balances.
Statutory Compliance
The completion of the Annual Review ensures that contribution payments, compensation and estimated costs are compliant with Councils statutory obligations in accordance with DPS2.
Strategic Implications
The proposal aligns with the following objective within the Strategic Community Plan 2017 – 2027:
“4 Civic Leadership
4.2 Good Governance
4.2.1 Provide transparent and accountable governance and leadership”
Risk Management Considerations
|
Risk Title |
Risk Rating |
|
ST-G09 Long Term Financial Plan |
Moderate |
|
Accountability |
Action Planning Option |
|
Director Corporate Strategy & Performance |
Manage |
|
Risk Title |
Risk Rating |
|
ST-S23 Stakeholder Relationships |
Moderate |
|
Accountability |
Action Planning Option |
|
CEO |
Manage |
|
Risk Title |
Risk Rating |
|
CO-O17 Financial Management |
Moderate |
|
Accountability |
Action Planning Option |
|
Director Corporate Strategy and Performance |
Manage |
The above risks relating to the issue contained within this report have been identified and considered within the City’s Strategic and Corporate Risk Registers. The annual review of the DCP assists in addressing the impacts of the strategic risk relating to Long Term Financial Planning (LTFP) as it ensures that appropriate budget monitoring, timing and provisions are considered. The strategic risk relating to Stakeholder Relationships applies as a key element in the DCP review process to maintain effective engagement with relevant stakeholders. In addition, the Corporate Risk relating to Financial Management would apply as awareness of financial policies and financial management at unit level will be maintained to promote accountability by business owners and an integrated approach to risk assurance.
Policy Implications
Nil
Financial Implications
The Tax Invoices equate to a total amount of $502,149.40 and upon receipt of payment by the developer will increase the balances held in the relevant DCP account, as defined in Attachment 1.
Voting Requirements
Simple Majority
That Council APPROVES the actions as contained in Attachment 1 to this report.
Attachments:
|
1⇩. |
Attachment 1 - DCP Report (August 2020) |
20/344460 |
Minuted |
CITY OF WANNEROO Agenda OF Elected Members' Briefing Session 18 August, 2020 116
File Ref: 3516V02 – 20/332026
Responsible Officer: Director Planning and Sustainability
Disclosure of Interest: Nil
Attachments: 4
Issue
To consider the draft revised Local Planning Policy 3.1: Local Housing Strategy Implementation (LPP 3.1).
Background
In November 2005, Council adopted the City’s Local Housing Strategy (LHS). The LHS identified six suburbs where the City would investigate a potential increase in residential density (or recoding) to accommodate the City’s growing population. The City subsequently developed LPP 3.1 (Attachment 1) in order to implement the recommendations of the LHS, and to facilitate the recoding of the six suburbs identified. Old Quinns (now Quinns Rocks) was one of the areas proposed by LPP 3.1 to be recoded to a combination of R40 and R60 zones (refer to Attachment 2).
The intent at the time was to initiate staged scheme amendments to the City’s District Planning Scheme No. 2 (DPS 2) in order to bring about the proposed density changes identified in LPP 3.1. The implementation of LPP 3.1 and the recoding of Old Quinns was delayed; however, originally due to a lack of adequate sewer infrastructure.
More recently, four major State Government initiated planning changes have occurred which resulted in a need to revisit the policy and in particular the future planning for Quinns Rocks. These include:
a) The City’s Coastal Hazard Risk Mitigation and Adaptation Plan (CHRMAP) was identified as a requirement by State Planning Policy No. 2.6 – Coastal Planning and was adopted by Council in August 2018. The CHRMAP identified Quinns Rocks and areas of Two Rocks as being at particular risk of future sea level rise and serious coastal erosion risks;
b) The State Government’s Perth and Peel @ 3.5 Million and the associated North-West Sub-Regional Planning Framework (NWSRPF) were released in March 2018. The NWSRF defines the urban form for the North-West of the Perth and Peel region (e.g. the cities of Joondalup and Wanneroo) over the next 30 years and aims to limit uncontrolled urban growth by specifying locations for future infill development. Together with the State Government’s existing operational policy Liveable Neighbourhoods (LN) 2015, the NWSRF includes specific criteria to apply when planning for increased density, such as in and around activity centres, along established transit corridors and around major transport infrastructure including as rail stations;
c) The State Government is committed to the Metronet extension of the Joondalup Line from Butler, 14.5km north to Yanchep in 2018. The Metronet Yanchep Rail Extension was endorsed by the State Government in 2018 with joint State and Federal funding allocated for the extension. The extension includes the construction of new stations at Alkimos, Eglinton and Yanchep. The projects seek to stimulate new employment opportunities and support higher density land use for residential and commercial purposes in the three activity centres supported by the new stations; and
d) Design WA was released by the State Government in May 2019, which provides the broad framework for the design of the built environment and applies to all levels of planning. Design WA further builds on the requirement for infill development in and around activity centres, transit corridors and around rail stations.
In order to determine the extent to which these planning changes will impact the City’s local planning framework, its existing residential suburbs and LPP 3.1 in particular, the City engaged Hames Sharley in February 2019 to undertake a Landform and Recoding Study (the Study) for Old Quinns Rocks. The Study closely considered potential residential coding scenarios varying from the reduction of residential coding through to an increased residential coding for the entire area (a blanket recoding) and how each of these scenarios would impact the character and amenity of the area.
In October 2019, the findings from the Study were presented to the Department of Planning, Lands and Heritage (DPLH) for their informal consideration. The DPLH advised that it would be unlikely to support an increase to the residential coding of Quinns Rocks as the area does not comply with the State Government’s criteria for increased densities as it is not an identified activity centre, located along a transit corridor, nor is the area situated within or near a station precinct. The DPLH further confirmed that it would not support the increase of residential coding to land identified within the City’s CHRMAP as being at risk of sea level rise.
Detail
Administration has prepared a draft revised LPP 3.1 reflecting the following recommended changes, for Council’s consideration and input (attached at Attachment 3 and Attachment 4):
· The draft revised policy mainly proposes the removal of Quinns Rocks as being referenced as an area suitable for increased residential density. A density coding of R20 is therefore recommended to be retained for the area as currently contained in DPS2. The structure, objectives, overall intention and operation of LPP 3.1 is recommended to remain unchanged; and
· Further minor amendments to the policy include updating associated density tables, maps and renumbering subsequent sections accordingly.
It is anticipated that the City’s new Local Planning Strategy, which is currently being prepared and is anticipated to be released for advertising in October 2021, may necessitate an additional review of LPP 3.1 to reflect any new recommendations adopted by Council with regard to residential density and infill development in particular.
Consultation
In accordance with the Planning and Development (Local Planning Schemes) Regulations 2015 (the Regulations), a local planning policy is required to be advertised for public comment for a period of no less than 21 days after which time it is to be reviewed in the context of any submissions received. Administration proposes to advertise the policy for 42 days, to give the community ample opportunity to consider the draft revised policy.
Administration further proposes to undertake the following community engagement initiatives to enable comments and feedback on the draft revised LPP 3.1:
a) Letters to Old Quinns Rocks residents and property owners giving notice of the City’s intention to retain the R20 residential coding following advice from the DPLH;
b) Updates to the City’s ‘Your Say’ page providing the community with the details of the proposed changes;
c) Drop-in information session at an appropriated location in Quinns Rocks;
d) Advertising notices in a local newspaper; and
e) Displaying notices of the proposal in Council offices and the City’s website.
Comment
Quinns Rocks Housing Precinct
The existing LPP 3.1 identifies a potential residential coding change from R20 to R40/R60 for Quinns Rocks. Implementation of these densities in the existing policy would require a scheme amendment to DPS 2, and would be required to align with relevant State Government strategic policies and guidelines.
Having regard to the State’s recently released NWSRPF, its current State planning policies, and based on recent advice received by the DPLH, Quinns Rocks would not meet the criteria to justify an increase in density as proposed by the existing LPP 3.1.
A scheme amendment will need to demonstrate compliance with the WAPC’s Liveable Neighbourhoods, which is an operational policy for the design and assessment of subdivisions and large urban areas identified for infill. Reinforcing the NWSRPF, a principle aim of LN is to provide for an urban structure of walkable neighbourhoods within close proximity to mixed uses in order to reduce car dependency for accessing employment, retail and community facilities. Quinns Rocks does not comply with these requirements.
Additionally, a significant number of properties along the coastline in Quinns Rocks are affected by future sea level rise as identified in the City’s CHRMAP. State planning policy prohibits increased densification within areas that are likely to be affected by sea level rise.
Yanchep and Two Rocks Housing Precincts
Within the context of the major State Government initiated planning changes, Administration has also undertaken a review of the two remaining housing precincts, Yanchep and Two Rocks, to determine whether a residential recoding as identified in LPP 3.1 remains appropriate for these areas.
The review determined that unlike Quinns Rocks, Two Rocks and Yanchep would be consistent with the State’s planning framework. Therefore, no changes are proposed for the Yanchep and Two Rocks housing precincts within LPP 3.1 in this context.
However, Administration notes that there are lots within Two Rocks that are indicated as being potentially affected by sea level rise as indicated on the City’s CHRMAP. It is proposed that further investigations be undertaken for the Two Rocks housing precinct to determine any potential impacts as a result of the City’s CHRMAP, with the outcomes of these further investigations proposed to be presented to Council at a later date.
Minor Amendment to Part 2 of LPP 3.1
Minor amendments are required to Part 2 of the LPP 3.1 to assist with the interpretation of the Table 3, where previously there has been some uncertainty in its implementation.
Table 3 of the policy outlines the criteria for proposals for infill development and increased density, where the subject site is located outside of a housing precinct, as identified by the policy.
There have been previous instances where it was believed that the City required compliance with each of the Table 3 criteria. The proposed minor amendment clarifies that where proposals for increased density of lots are located outside of a designated housing precinct, the proposal is required to comply with at least one of the Table 3 criteria only.
Statutory Compliance
In accordance with the Regulations, Council may resolve to adopt an amended local planning policy to apply to any matter related to planning and development in the City.
A draft policy must be advertised for public comment for a period of not less than 21 days, after which time it is to be reviewed in the context of any submissions received and either adopted with or without modifications or not proceeded with.
Strategic Implications
The proposal aligns with the following objective within the Strategic Community Plan 2017 – 2027:
“3 Environment (Built)
3.6 Housing Choice
3.6.1 Facilitate housing diversity to reflect changing community needs”
Risk Management Considerations
|
Risk Title |
Risk Rating |
|
ST-S23 Stakeholder Relationships |
Moderate |
|
Accountability |
Action Planning Option |
|
Chief Executive Officer |
Manage |
|
Risk Title |
Risk Rating |
|
CO-O20 Productive Communities |
Moderate |
|
Accountability |
Action Planning Option |
|
Director Community and Place |
Manage |
The above risk relating to the issue contained within this report has been identified and considered within the City’s Corporate Risk Register. An action plan has been developed to manage this risk to support existing management systems.
Policy Implications
The review and draft revised LPP 3.1 has been undertaken by Administration to ensure that the City achieves compliance with the State Government’s planning framework, Perth and Peel @3.5million and the NWSRPF.
Financial Implications
Nil
Voting Requirements
Simple Majority
That Council, pursuant to clauses 4 and 5 of the deemed provisions of City of Wanneroo District Planning Scheme No. 2, resolves to ADOPT the draft amended Local Planning Policy 3.1 – Local Planning Strategy Implementation, as contained in Attachment 3, for the purpose of advertising; and ADVERTISE it for public comment for a period of 42 days by way of:
1. Advertisement in all local newspapers circulating within the City of Wanneroo for two consecutive editions;
2. Display at the City’s Administration Centre Building and on the City’s Website;
3. Letters to relevant stakeholders as determined by the Director, Planning and Sustainability; and
4. Drop-in community information session at an appropriate location in Quinns Rocks within the 42 day public comment period, as determined by the Director, Planning and Sustainability.
Attachments:
|
1⇩. |
Attachment 1 - LPP 3.1 - Local Housing Strategy Implementation - Adopted Version |
20/175215 |
|
|
2⇩. |
Attachment 2 - Old Quinns Rocks LPP3.1 Plan Extract |
20/327435 |
|
|
3⇩. |
Attachment 3 - Draft revised LPP 3.1 - Local Housing Strategy Implementation |
20/175216 |
Minuted |
|
4⇩. |
Attachment 4 - Draft revised LPP 3.1 - Local Housing Strategy Implementation WITH track changes |
20/183868 |
|
CITY OF WANNEROO Agenda OF Elected Members' Briefing Session 18 August, 2020 166
Assets
3.6 Tender No. 20040 - Provision of Minor Works for the Renewal of Play Equipment, Softfall and Installation of Shade Sail Structures
File Ref: 24985V04 – 20/283991
Responsible Officer: Director Assets
Disclosure of Interest: Nil
Attachments: 2
Issue
To consider Tender No. 20040 for the Provision of Minor Works for the Renewal of Play equipment, Softfall and Installation of Shade Sail Structures within the City of Wanneroo.
Background
The 2020/21 Capital Works Program has identified twenty four parks within the Park Asset Renewal Program, New Shade Structure Installation Program and the Park Structure Renewal Program across the City which require the renewal of park assets and/or the installation of shade structures.
Tender No. 20040 included each park as a separable portion which allowed Tenderers to submit tenders for each park separately or collectively for all parks.
The parks that form the Scope of this Tender are as follows:
|
No |
Park Name |
Suburb |
Scope of Works |
|
Part A The renewal of playgrounds that require equipment, softfall and shade sails |
|||
|
1 |
Dunmore Park |
Merriwa |
Play equipment, softfall replacement and the installation of new shade sails. |
|
2 |
Windjammer Park |
Jindalee |
Play equipment, softfall replacement and the installation of new shade sails. |
|
3 |
Edgar Griffiths Park |
Wanneroo |
Play equipment, softfall replacement. |
|
4 |
Garry Meinck Park |
Butler |
Play equipment, softfall replacement and the installation of new shade sails. |
|
5 |
Josephine Park |
Alexander Heights |
Play equipment, softfall replacement. |
|
6 |
Belvoir Park |
Darch |
Play equipment, softfall replacement and the extension of the playground footprint.
|
|
7 |
Alston Park |
Butler |
Play equipment, softfall replacement and the installation of new shade sails. |
|
8 |
Orara Park |
Merriwa |
Play equipment and softfall replacement. |
|
9 |
Staunton Park |
Carramar |
Play equipment, softfall replacement and the installation of new shade sails. |
|
10 |
Waldburg Park |
Tapping |
Play equipment and softfall replacement. |
|
11 |
Houghton Park |
Carramar |
Play equipment, softfall replacement and the installation of new shade sails, as well as installation of additional pieces of equipment. |
|
Part B The renewal of playgrounds that require shade sails and softfall only |
|||
|
12 |
Gungurru Park |
Hocking |
Softfall replacement and installation of shade sails. |
|
13 |
Bardsley Park |
Girrawheen |
Softfall replacement and installation of shade sails. |
|
14 |
Brampton Park |
Butler |
Softfall replacement and installation of shade sails. |
|
15 |
Pat Scarfo Park |
Tapping |
Softfall replacement and installation of shade sails. |
|
16 |
Rousham Park |
Landsdale |
Softfall replacement to all sections and installation of shade sails over the swing section only. |
|
17 |
Winston Park |
Madeley |
Softfall replacement and installation of shade sails. |
|
18 |
Hidden Valley Retreat |
Clarkson |
Installation of shade sails. |
|
19 |
Gangway Park |
Alkimos |
Installation of shade sails. |
|
20 |
Glenfine Park |
Carramar |
Installation of shade sails. |
|
21 |
Gidgi Park |
Wanneroo |
Installation of shade sails. |
|
22 |
Brockwell Park |
Landsdale |
Installation of shade sails. |
|
23 |
Gumblossom Community Centre |
Quinns Rock |
Replacement of the shade structure over the sandpit. |
|
Optional Items |
|||
|
24 |
Amstel Park |
Madeley |
Installation of shade sails. |
|
25 |
Paloma Park |
Marangaroo |
Installation of shade sails. |
Detail
Tender No. 20040 for the Provision of Minor Works for the Renewal of Play equipment, Softfall and Installation of Shade Sail Structures was advertised on the 8 April 2020 and closed on the 3 June 2020.
A number of addenda were issued as follows:
· Addendum 1- Response to tenderers queries – General Questions.
· Addendum 2- Response to tenderers queries – Design Questions.
· Addendum 3- Response to tenderers queries – General Questions.
· Addendum 4- Response to tenderers queries – Design Questions.
· Addendum 5- Revised Price Schedule.
· Addendum 6- Extension of Time.
Essential details of the proposed contract are as follows:
|
Item |
Detail |
|
Contract Form |
Minor Works |
|
Contract Type |
Fixed Lump Sum Price |
|
Contract Duration |
12 months |
|
Commencement Date |
September 2020 |
|
Defects Liability Period |
12 months |
|
Extension Permitted |
No |
|
Rise and Fall |
No |
Tender submissions were received from the following companies:
Part A
· Humphrey Group Australia Pty Ltd as Trustee for the Humphrey Group Trust (Active Discovery)
· Adventure Playgrounds Pty Ltd T/as adventure+ (Adventure Plus)
· Hansen Pty Ltd ATF Hansen Family Trust TA Forpark Australia (Forpark)
· Kompan Playscapes Pty Ltd (Kompan)
· Playmaster Pty Ltd (Playmaster)
Part B
· NH Enterprises Pty Ltd as the Trustee for the Lucwambu Discretionary Trust Trading as Perth Better Homes (Perth Better Homes)
· Perth Playground and Rubber (Perth Playground and Rubber)
· Supreme Shades (Supreme Shades)
· West Coast Shade Pty Ltd ATf the West Coast Shade Trust (West Coast Shade)
· Mark Lewis Pty Ltd Trading as Weathersafe WA (Weathersafe)
· Astro Synthetic Surfaces Pty Ltd (Astro Synthetic Surfaces)
Part A & B
· MAS (WA) Pty Ltd atf the Simpson Family Trust t/a Miracle Recreation Equipment (Miracle)
· Sanpoint Pty Ltd T/A LD Total (LD Total)
· Erutan PTY LTD Trading as Nature Playgrounds (Nature Playgrounds)
Each tenderer was required to provide an individual design proposal for each park within the scope of works. These individual designs were then assessed for suitability whilst conforming to all relevant City and Australian Standards.
Conforming designs were then assessed on the value for money provided.
On initial review of the tender submissions by the Tender Evaluation Panel (TEP), it was confirmed that Nature Playgrounds, Weathersafe and Astro Synthetic Surfaces submission were non-conforming due to missing critical information that was required to successfully assess their design criterion, therefore were not considered for further evaluation.
The Tender Evaluation Panel (TEP) comprised:
· Coordinator Construction
· Project Officer Parks & Conservation
· Landscape Designer
· Technical Officer Parks
· Coordinator Safety Systems
Probity Oversight
Oversight of the tender assessment process was undertaken by the City’s Contracts Officer.
Tender submissions were evaluated in accordance with the Procurement and Evaluation Plan (PEP). The PEP included the following selection criteria:
|
· Item No |
· Description |
· Weighting |
|
· 1 |
· Sustainable Procurement (Corporate Social Responsibility) · Environmental Considerations 5% · Buy Local 10% · Reconciliation Action Plan 2.5% · Disability Access & Inclusion 2.5% |
20% |
|
· 2 |
· Demonstrated Experience |
20% |
|
· 3 |
· Methodology, Understanding and Capacity |
20% |
|
· 4 |
· Occupational Health and Safety |
20% |
|
· 5 |
· Design compliance and suitability to the scope |
20% |
|
· 6 |
· Pricing (assessed based exclusively on Value for Money principles) |
· Not weighted |
Price was not included in the weighted criteria but was considered as part of the overall value for money assessment.
Value for money assessed the quality, play value, materials and compliance to City’s requirement of the individual playground proposals in comparison to the lump sum price for each park.
Evaluation Criteria 1 – Sustainable Procurement (Corporate Social Responsibility) (20%)
An assessment was made to determine the ranking based on the tenderers’ environmental policy and practices, buy local contributions, as well as commitment to reconciliation and disability access and inclusion.
The overall assessment of all Sustainable Procurement criteria resulted in the following consolidated ranking:
Part A
|
Tenderer |
Ranking |
|
Miracle – Conforming |
1 |
|
Miracle – Alternative |
1 |
|
Forpark |
3 |
|
Kompan |
4 |
|
Active Discovery – Option 1 |
5 |
|
Active Discovery – Option 2 |
5 |
|
Active Discovery – Option 3 |
5 |
|
Playmaster |
8 |
|
Adventure Plus |
9 |
|
LD Total |
10 |
Part B
|
Tenderer |
Ranking |
|
Supreme Shades |
1 |
|
Miracle – Conforming |
2 |
|
Perth Playground & Rubber |
3 |
|
West Coast Shade – Option 1 |
4 |
|
West Coast Shade – Option 2 |
4 |
|
Perth Better Homes |
6 |
|
LD Total |
7 |
Evaluation Criteria 2 - Demonstrated Relevant Experience (30%)
The tenderers’ relevant experience in demonstrating the achievement of meeting client expectations as presented in their tender submission were assessed in order to evaluate their capability to meet the requirements of the contract. Assessment of this criterion considered the tendering entity’s credentials to fulfil the requirements of the contract.
The assessment of this criterion has resulted in the following ranking:
Part A
|
Tenderer |
Ranking |
|
Miracle – Conforming |
1 |
|
Miracle – Alternative |
1 |
|
Active Discovery – Option 1 |
3 |
|
Active Discovery – Option 2 |
3 |
|
Active Discovery – Option 3 |
3 |
|
Playmaster |
6 |
|
Adventure Plus |
6 |
|
Forpark |
6 |
|
Kompan |
9 |
|
LD Total |
9 |
Part B
|
Tenderer |
Ranking |
|
Miracle - Conforming |
1 |
|
Perth Better Homes |
2 |
|
Supreme Shades |
3 |
|
Perth Playground & Rubber |
4 |
|
West Coast Shade – Option 1 |
4 |
|
West Coast Shade – Option 2 |
4 |
|
LD Total |
7 |
Evaluation Criteria 3 – Methodology, Understanding and Capacity (20%)
The tenderer’s methodology, understanding and capacity as presented in their tender submission were assessed in order to evaluate their capacity to meet the requirements of the contract. Assessment of this criterion considered the tenderer’s understanding of the project scope, current workload and the proposed Schedule of Works.
The assessment of this criterion has resulted in the following ranking:
Part A
|
Tenderer |
Ranking |
|
Miracle – Conforming |
1 |
|
Miracle – Alternative |
1 |
|
Active Discovery – Option 1 |
3 |
|
Active Discovery – Option 2 |
3 |
|
Active Discovery – Option 3 |
3 |
|
Playmaster |
6 |
|
Forpark |
6 |
|
Adventure Plus |
8 |
|
Kompan |
9 |
|
LD Total |
9 |
Part B
|
Tenderer |
Ranking |
|
Miracle – Conforming |
1 |
|
Perth Better Homes |
2 |
|
Perth Playground & Rubber |
3 |
|
Supreme Shades |
3 |
|
West Coast Shade – Option 1 |
3 |
|
West Coast Shade – Option 2 |
3 |
|
LD Total |
7 |
Evaluation Criteria 4 – Occupational Health and Safety (20%)
Evidence of occupational safety, health, quality and environmental management systems were assessed from the tender submissions. The assessment was based on the tenderers’ response to an Occupational Health and Safety Management System Questionnaire included within the tender documentation.
The assessment of this criterion has resulted in the following ranking:
Part A
|
Tenderer |
Ranking |
|
Miracle – Conforming |
1 |
|
Miracle – Alternative |
1 |
|
Active Discovery – Option 1 |
1 |
|
Active Discovery – Option 2 |
1 |
|
Active Discovery – Option 3 |
1 |
|
Playmaster |
6 |
|
Forpark |
6 |
|
Kompan |
6 |
|
Adventure Plus |
9 |
|
LD Total |
10 |
Part B
|
Tenderer |
Ranking |
|
Perth Better Homes |
1 |
|
Miracle – Conforming |
2 |
|
Perth Playground & Rubber |
3 |
|
Supreme Shades |
3 |
|
West Coast Shade – Option 1 |
3 |
|
West Coast Shade – Option 2 |
3 |
|
LD Total |
7 |
Evaluation Criteria 5 - Design (35%)
The tenderers’ site specific designs were evaluated based on submission of drawings, technical notes, coverage, tender specification compliance and compliance with all Australian Standards provided with the tender documentation.
The assessment of the tenders resulted in the below rankings:
Part A
|
Tenderer |
Ranking |
|
Forpark |
1 |
|
Miracle Conforming |
2 |
|
Active Discovery – Option 1 |
2 |
|
Active Discovery – Option 2 |
2 |
|
Kompan |
2 |
|
Adventure Plus |
2 |
|
Playmaster |
7 |
|
Miracle – Alternative |
7 |
|
Active Discovery – Option 3 |
7 |
|
LD Total |
10 |
Part B
|
Tenderer |
Ranking |
|
Supreme Shade |
1 |
|
Perth Playground & Rubber |
1 |
|
Perth Better Homes |
1 |
|
LD Total |
4 |
|
Miracle Conforming |
4 |
|
West Coast Shade – Option 1 |
4 |
|
West Coast Shade – Option 2 |
7 |
Overall Weighted Assessment and Ranking
Tenderers’ submissions were reviewed in accordance with the PEP with the following key observations:
· Price is not weighted and is included in the overall value for money assessment.
· The tenderers’ submissions were evaluated in accordance with the selection criteria and were assessed as having the necessary resources, previous experience, capability and safety and quality management systems to undertake the tender.
· The tenderers’ design proposals for both shade sails and play equipment complied with the scope of works.
· The Park Asset Renewal Program is to be issued as a separable portion contract.
The overall qualitative weighted assessment resulted in the following tenderer ranking:
Part A
|
Tenderer |
Ranking |
|
Miracle – Conforming |
1 |
|
Miracle - Alternative |
2 |
|
Active Discovery – Option 1 |
3 |
|
Active Discovery – Option 2 |
3 |
|
Active Discovery – Option 3 |
5 |
|
Forpark |
6 |
|
Kompan |
7 |
|
Playmaster |
8 |
|
Adventure Plus |
9 |
|
LD Total* |
10 |
Part B
|
Tenderer |
Ranking |
|
Miracle – Conforming |
1 |
|
Supreme Shades |
2 |
|
Perth Better Homes |
3 |
|
Perth Playground & Rubber |
4 |
|
West Coast Shade – Option 1 |
5 |
|
West Coast Shade – Option 2 |
6 |
|
LD Total* |
7 |
*Tender offer did not meet the City’s tender assessment requirements.
Evaluation Criteria 6 - Pricing (Non-weighted)
Refer to Confidential Attachment 2 for the lump sum prices submitted by each tenderer for each park. The fixed lump sum price, as per each individual park proposal, was applied in the overall value for money assessment for tenderers that met the Overall Qualitative Criteria requirement
Overall Value for Money Assessment
Miracle Recreation Equipment, Playmaster, Kompan, Adventure Plus, Forpark, Perth Better Homes, Supreme Shades, West Coast Shades, Active Discovery and Perth Playground and Rubber all achieved acceptable qualitative criteria weighted scores.
The individual park design proposals from these tenderers that conformed to the relevant standards and scope of works were then assessed for the value of money, which resulted in the following evaluation outcome:
|
Park Name |
Recommended Tender |
|
Dunmore Park |
Playmaster |
|
Windjammer Park |
Miracle - Alternative |
|
Edgar Griffiths Park |
Playmaster |
|
Garry Meinck Park |
Active Discovery – Option 2 |
|
Josephine Park |
Kompan |
|
Belvoir Park |
Forpark |
|
Alston Park |
Active Discovery – Option 3 |
|
Orara Park |
Forpark |
|
Staunton Park |
Miracle - Alternative |
|
Waldburg Park |
Miracle - Conforming |
|
Houghton Park |
Forpark |
|
Gungurru Park |
Supreme Shade |
|
Bardsley Park |
West Coast Shade – Option 1 |
|
Brampton Park |
Miracle |
|
Pat Scarfo Park |
West Coast Shade – Option 1 |
|
Rousham Park |
Perth Playground & Rubber |
|
Winston Park |
West Coast Shade – Option 1 |
|
Hidden Valley Retreat |
West Coast Shade – Option 1 |
|
Gangway Park |
Supreme Shade |
|
Glenfine Park |
Supreme Shade |
|
Gidgi Park |
Supreme Shade |
|
Brockwell Park |
Miracle |
|
Gumblossom Community Centre |
Miracle |
|
Amstel Park |
Miracle |
|
Paloma Park |
Not to be awarded (exceeds overall budget) |
As a result, it is recommended that the separable portions tenders be awarded to the tenderers as detailed in Attachment 1.
Consultation
Community was consulted on the concepts for Houghton Park and Belvoir Park as a result of interest in the existing playgrounds. Feedback received was incorporated into the scope of works.
Signage was installed at sites 3 months prior to the request for tender being advertised, informing the community of the upcoming renewal works and prompting residents to contact the City for further information.
On award of each Contract, the relevant contractor is required to install signage of the intended works at each individual playground relating to the construction works. Prior to construction, an information letter will be delivered to all residents within a 400m radius of the relevant park.
Post tender award and prior to the construction phase, the City will provide regular progress updates on key project milestones; posting of information on the City’s webpage and media channels.
Statutory Compliance
Tenders were invited in accordance with the requirements of Section 3.57 of the Local Government Act 1995. The tendering procedures and evaluation complied with the requirements of Part 4 of the Local Government (Functions and General) Regulations 1996.
Strategic Implications
The proposal aligns with the following objective within the Strategic Community Plan 2017 – 2027:
“3 Environment (Built)
3.4 Activated Places
3.4.2 Provide safe spaces, centres and facilities through our infrastructure management and designs for community benefit and recreation”
3.4.3 Enhance distinctive built form and spaces based on identity of areas
3.4.4 Improve local amenity by retaining and complementing natural landscapes within the built environment.”
Enterprise Risk Management Considerations
|
Risk Title |
Risk Rating |
|
CO-O08 Contract Management |
Moderate |
|
Accountability |
Action Planning Option |
|
Director Corporate Strategy & Performance |
Manage |
|
Risk Title |
Risk Rating |
|
ST-S04 Integrated Infrastructure & Utility Planning |
Moderate |
|
Accountability |
Action Planning Option |
|
Director Planning & Sustainability and Director Assets |
Manage |
The above risks relating to the issue contained within this tender have been identified and considered within the City’s Strategic and Corporate risk register. Action plans have been developed to manage/mitigate/accept these risks to support existing management systems.
Financial and Performance Risk
Financial Risk
The combined value of the works recommended to be allocated to each tenderer with the exception of Miracle Recreation Equipment and Forpark Australia is below the Tender threshold. It is noted that each playground that forms part of the eight contracts will be awarded as separable portion, and payment for each separable portion will be made in full on reaching the practical completion for each park.
A financial risk assessment was undertaken as part of the tender evaluation process for Miracle Recreation Equipment and Forpark Australia, the outcome of these independent assessments by Corporate Scorecard Pty Ltd advised that both Miracle Recreation Equipment and Forpark Australia have been assessed with a satisfactory financial capacity to meet the requirements of the contract.
Performance Risk
All tenderers have a varying degree of experience in the playground industry working with various local governments across Western Australia and have completed several projects for the City with positive results. In addition to that, the recommended tenderers have no disputes and claims history as stated in each submission.
Individual reference checks have also indicated that the recommended tenderers have a strong track record of working with local government for more than 5 years.
Policy Implications
Tenders were invited in accordance with the requirements of the City’s Purchasing Policy.
Financial (Budget) Implication
The table below summarises the available funding for the renewal of play equipment, softfall and installation of shade sails and associated expenses in the 2020/2021 Capital Works Program:
|
Description |
Expenditure |
Budget |
|
Budget: |
|
|
|
Allocated Capital Works Budget for 2020/21 (PR-1910, PR-4089 & PR-2484) |
|
$ 1,940,000 |
|
Expenditure: |
|
|
|
Expenditure incurred to date |
$ 0 |
|
|
Commitment to date |
$ 0 |
|
|
Project Management |
$ 50,000 |
|
|
Tender 20040 (this Tender) - Total |
$ 1,866,514 |
|
|
Construction Activities |
|
|
|
- Playground safety audit |
$ 5,100 |
|
|
- Contingency |
$ 18,000 |
|
|
Total Expenditure |
$ 1,939,614 |
|
Voting Requirements
Simple Majority
That Council ACCEPTS the tender submitted by Active Discovery, Forpark Australia, Kompan, Miracle, Playmaster, Perth Playground & Rubber, Supreme Shades and West Coast Shade for Tender No. 20040, for the renewal of park assets and installation of new shade sails, for their respective lump sum prices as per the General Conditions of Tendering and as detailed in Attachment 1.
Attachments:
|
1⇩. |
Attachment 1 - Tender 20040 |
20/339336 |
Minuted |
|
2. |
Attachment 2 - Confidential - Tender 20040 |
Confidential |
|
CITY OF WANNEROO Agenda OF Elected Members' Briefing Session 18 August, 2020 173
Waste Services
File Ref: 2240V02 – 20/335322
Responsible Officer: Director Assets
Disclosure of Interest: Nil
Attachments: 3
Issue
To advise Council Members on the outcome of a review and update of the City’s Strategic Waste Management Plan (SWMP) in alignment with the State Government’s Waste Avoidance and Resource Recovery Strategy 2030 (the Waste Strategy).
Background
In 2016, the City developed its first SWMP outlining its current waste management services and future waste projects and objectives.
The City’s existing SWMP (endorsed by Council in 2016) aligns with the West Australian Waste Strategy: Creating the Right Environment 2012. The City has undertaken a review of the current SWMP in the format provided by the Department of Water and Environmental Regulation (DWER) to satisfy the new Waste Strategy’s requirements for Waste Plans. As a result, the City’s draft Waste Plan will satisfy the Waste Avoidance and Resource Recovery Act 2007 (WARR Act) Waste Plan requirements, and may be submitted to DWER.
The purpose of the newly developed Waste Plan is to align local government waste management activities with the requirements of the new Waste Strategy, map current performance, establish a benchmark to achieve the Waste Strategy targets by 2030, monitor progress on local government achievements and design programs and activities that will support the implementation of the Waste Plan.
Detail
Section 40(4) of the WARR Act gives the Chief Executive Officer of the DWER (DG, DWR) powers to require local governments to include within its Waste Plan how they will manage their waste services to achieve consistency with the Waste Strategy in the protection of human health and the environment.
Local governments and regional Councils in Perth and Peel and major regional centres are required to develop Waste Plans for the 2020-21 financial year. In late 2019, DWER facilitated two workshops to assist local governments in the drafting their Waste Plans in alignment with the new requirements, of which Administration attended both. For those local governments and regional Councils that already have SWMPs in place, these can be modified to incorporate the new requirements.
Section 6.2(2) of the Local Government Act 1995 requires local governments to have regard to their plans for the future (which include Waste Plans made under section 40 of the WARR Act) in the preparation of their annual budgets.
The Waste Plan template designed by DWER comprises three parts:
1. Attachment 1 describes the City’s waste profile, services and performance in relation to objectives and targets set out in the Waste Strategy 2030. It identifies the City’s waste challenges, strategic waste and resource recovery infrastructure needs and provides a baseline to compare progress when annually reviewing and updating waste plans;
2. The City’s draft Waste Plan (Attachment 2 refers) details the actions and priorities for the next five years that the City will take to contribute to the achievement of relevant Waste Strategy targets and objectives, and its performance against the actions in the previous SWMP; and
3. A self-assessment checklist for Parts 1 and 2 (Attachment 3 refers) which assists local governments in ensuring that all key information is included in the Waste Plan. The checklist is required to be signed by the City’s CEO.
The City’s updated draft Waste Plan incorporates key priorities for 2020-2025 with clearly defined objectives, detailed actions, milestones, targets, timeframe for delivery, associated cost if known, how it aligns with the Waste Strategy objectives (avoid, recover, protect), who will be implementing, identified risks and relevant mitigation strategies for said risks.
Local governments can submit their draft Waste Plans to DWER for review by 30 September 2020.
The City’s final Waste Plan as adopted and endorsed by Council must be submitted to DWER by 31 March 2021.
The first progress report on the implementation of the City’s Waste Plan is required by DWER on 1 October 2022 and annually thereafter.
Consultation
In preparing the draft Waste Plan consultation with internal stakeholders occurred.
Comment
The Waste Plan template developed by DWER seeks to provide key decision-makers in government with standardised information/data from all local governments in a concise and easily collated format. This is in response to the difficulties which State Government has had in the past in accessing reliable waste data for the purposes of public reporting and policy development. The changes that are required will have minimal impact on the City’s operations, but have the ability to provide good data to the State Government, with respect to how society is complying with the requirements of the new Waste Strategy.
The new Waste Strategy mandates that each local government must deliver a three bin Food and Garden Organics (FOGO) service by 2025. Discussions within industry suggest that the greatest risk in achieving this target is whether there are sufficient operators available to process all materials and thereafter whether a sufficient market demand exists for the compost once produced. It is unclear what background information (overall rationale, expected commercial impacts, end-product market use assessment, etc.) informed the decision-making process for the new FOGO requirement. Commentary has been included in section 4.0 asking for this information to be shared with local governments.
The draft Waste Plan (Attachment 2) is an evolution of the City’s previous SWMP, which reflects the changes in the newer Waste Strategy document, and aligns well with the outcomes from the Service Delivery Review of Waste Services that was undertaken in 2018.
The document highlights the progress that the City has made since the current SWMP was endorsed in 2016. It shows how overall tonnages have dropped since then, reflects on the most up to date audit results of residents’ waste (and the potential options to drive improvement) and states which SWMP actions have been completed, and which are still proceeding.
All of these matters have been taken into account in the development of a new set of priorities for the next five years, which align directly with the Waste Strategy’s three new Objectives: Avoid, Recover, Protect. It is proposed that the adoption of the new Waste Plan will drive the City further along this pathway over the next five years.
Statutory Compliance
The WARR Act gives the CEO of DWER powers to require local governments to include within its SWMP how it will manage its waste services to achieve consistency with the Waste Strategy in the protection of human health and the environment.
Strategic Implications
The proposal aligns with the following objective within the Strategic Community Plan 2017 – 2027:
“3 Environment (Natural)
3.3 Reduce, Reuse, Recycle, Waste
3.3.3 Create and promote waste management solutions”
Risk Management Considerations
|
Risk Title |
Risk Rating |
|
CO-021 Competitive Service Costing |
High |
|
Accountability |
Action Planning Option |
|
Director Community & Place |
Manage |
|
Risk Title |
Risk Rating |
|
CO-022 Environmental Management |
High |
|
Accountability |
Action Planning Option |
|
Director Planning & Sustainability |
Manage |
The above risks relating to the issue contained within this report have been identified and considered within the City’s Strategic/ Corporate risk register. Action plans have been developed to manage these risks to support existing management systems.
Policy Implications
The development of a SWMP was undertaken in accordance with the Waste Management Services Policy (CS07–04/15).
“The City of Wanneroo is committed to ensuring that its waste management services support the Strategic Plan to improve management, recycling and re-use of waste.”
Financial Implications
Expenditure associated with the adoption and implementation of the SWMP forms part of the Annual Waste Services operational budget. Financial implications from projects and initiatives resulting from the implementation of each of the actions from the adopted Waste Plan will be considered in the detailed analysis of each action and included in future reports to Council as necessary.
Voting Requirements
Simple Majority
That Council: -
1. ENDORSES the draft Waste Plan 2020 – 2025, as contained in Attachments 1, 2 and 3 for community feedback; and
2. AUTHORISES Administration to submit the draft Waste Plan 2020 – 2025, as contained in Attachments 1, 2 and 3 to the Department of Water, Environment and Regulation for review.
Attachments:
|
1⇩. |
Attachment 1 - Waste Plan City of Wanneroo |
20/7735 |
Minuted |
|
2⇩. |
Attachment 2 - Draft Waste Plan 2020-2025 |
19/379587[v3] |
Minuted |
|
3⇩. |
Attachment 3 - Self Assessment Checklists CoW.DOCX |
20/17095 |
Minuted |
CITY OF WANNEROO Agenda OF Elected Members' Briefing Session 18 August, 2020 235
Community & Place
File Ref: 25883V06 – 20/328087
Responsible Officer: Director Community and Place
Disclosure of Interest: Nil
Attachments: 2
Issue
To provide an update on the feedback from stakeholders on the elements that will inform the design of the Southern Suburbs Library and seek approval to progress to tender for detailed design based on a series of high level design principles.
Background
The development of a new library/community facility in the southern suburbs has been under consideration for some time. Although initially planned for a site near the Kingsway Shopping Centre, this site has not come to fruition and as a result alternative locations for the library/community facility were investigated.
In May 2019, Council endorsed draft concept designs for the proposed location at 15 The Broadview, Landsdale for the purposes of community consultation (CP01-05/19).
The community consultation was subsequently undertaken and the outcomes considered by Council in August 2019, resulting in endorsement of the location for the proposed library/community facility being 15 The Broadview, Landsdale (CP01-08/19).
The table below provides further detail in respect to this site:
|
OWNER |
State of WA (Crown Land) |
|
MANAGEMENT ORDER |
City of Wanneroo (Document No. XE L040598) |
|
LEGAL DESCRIPTION |
Lot 990 on Deposited Plan 39373 Volume: LR3134 Folio: 32 |
|
RESERVE NUMBER |
47559 |
|
RESERVE PURPOSE |
Community Purposes |
|
RESERVE CLASS |
C |
|
POWER TO LEASE |
Yes |
|
LEGAL AREA |
5,000m2 |
|
DPS2 ZONING |
Civic & Cultural |
|
ASP ZONING |
Commercial ASP No. 16 (Landsdale Gardens Estate Neighborhood Centre) |
|
DEVELOPMENT STATUS |
Vacant |
Detail
Since endorsement of the location in August 2019, Administration has worked with the Bollig Design Group (BDG) to begin the initial phase of the concept design for the Landsdale site, noting that this body of work finalises the City’s current contract arrangements with BDG.
In order to inform the initial phase of the concept design for the Landsdale location, input was sought from the City’s Design Review Panel on 21 June 2019. The view of the Panel was that the design for the library needed to align with the architectural language of the site context and history, bringing the soft landscape from the park into the building and the topography. There was a particular emphasis on the landscape of the park, which has a sloping aspect as it interfaces with the building. The park itself has wetlands within it and this gives cues for how an organic response is needed for the building.
The Panel’s recommendation was to integrate the park landscape into and through the site, thereby connecting the library into the park.
In addition to seeking input from the City’s Design Review Panel, Administration undertook further engagement with key stakeholders including local schools to understand their requirements for a library to inform the design elements. Details of the engagement process are outlined in the Consultation section of this report.
The feedback from the engagement undertaken with local schools has been collated into three themes: Resources, Facilities, and Look and Feel.
Resources
· Good, free Wi-Fi;
· Advanced technology, gaming section/room;
· Capacity to listen to music while reading e.g. rent/loan access to personal music;
· Virtual Reality room;
· Lego pit; and
· Abundance of power points and laptop and phone chargers.
Facilities
· Homework help section;
· Places to work on school projects with space to spread out;
· Learning laboratory/study space;
· Private rooms and learning spaces to hire;
· Spaces to learn new hobbies such as multicultural classes to learn about other cultures; and
· Quiet reading spaces and reading nooks.
Look and Feel
· Comfortable hangout spaces;
· Good lighting for long periods of reading, desks with task lamps, fun lighting such as fairy lights/lanterns; and
· Comfortable furnishings such as sofas, chairs, cushions, egg chairs, pods.
In addition to this, students and teachers expressed a need for facilities, resources and buildings that complement their schools’ existing facilities.
Consultation
The engagement process comprised the following activities undertaken during the period 9 March to the end of April 2020:
· City of Wanneroo Your Say;
· In-school activities;
· School competition;
· School interviews; and
· Community feedback.
Students and teachers from four local schools - Landsdale and Carnaby Rise Primary Schools, Landsdale Christian School and Ashdale Secondary College - participated in the initial engagement prior to community consultation being suspended due to COVID-19 pandemic, resulting in a planned community event not progressing.
The engagement looked at:
· How people want to use the library (spaces, services, programs);
· How the common space should be activated; and
· How close people live to the site and likely to get there?
Given the planned engagement was disrupted by the COVID-19 pandemic, further consultation with additional local schools and other stakeholders will be undertaken through the design phase.
Comment
Following input from community stakeholders (including local schools), the City’s Design Review Panel and Council Members, high level design principles have been formulated to inform the next stage of the project. These principles will guide the detailed design and procurement of the facility and were discussed with the Design Review Panel on 23 July 2020:
· The design should be sympathetic to the surrounding park area and encourage natural light into the building;
· Embrace the aesthetic of the park and local area through function, form and design with complementary building materials;
· Existing local trees should be incorporated into the design with the intention of preserving and including local flora in the profile of the facility;
· Civic in nature, including cultural and artistic interpretation of both indigenous and non-indigenous history of the area;
· Balance functionality with contemporary design and aesthetics;
· Be environmentally sustainable;
· Dynamic and adaptable spaces which are multi-functional, flexible in design and able to accommodate differing requirements for both community and potential commercial uses;
· A technologically enhanced library/community space with provision for a ‘tech hub’ that promotes digital learning and emerging technologies. This area should be open and accessible to the public, including consideration of technologies that enable after hours community access to areas such as meeting rooms and the tech hub;
· Encourage patrons of all ages to explore technology, literacy and life-long learning;
· Focus on ‘STEAM’ learning (Science, Technology, Engineering, Arts and Mathematics). Facilities such as a podcast studio and gaming/virtual reality area considered in the design;
· Provision of a tenancy, preferably on the ground floor, to increase accessibility after hours;
· Inclusion of a café with a link to an outdoor play area and visibility from various aspects of the interior and exterior; and
· Shading and encroachment on the neighbouring child care/playgroup needs to be considered in the design.
These high level design principles have been developed taking account of Local Planning Policy 4.23 in terms of context and character, landscape quality, built form and scale, functionality and build quality, sustainability, amenity, legibility, safety, community, aesthetics and accessibility.
Stage 2 Proposed Youth Innovation Space
Since 2018, the City has been in discussion with the local Member of Parliament, Margaret Quirk regarding the concept of including a Youth Innovation Space either within or in close proximity to the Southern Suburbs Library. This concept was being progressed on the basis that the State Government potentially had funding available for delivery of a youth centre in a neighbouring locality. It was considered that a Youth Innovation Space could meet the contemporary needs of young people, with an emphasis on developing a range of new skills that could progress to employment while also delivering a service offering similar to a youth centre.
As a concept, a Youth Innovation Space has the potential to provide the following services/programs:
· Music studio;
· Podcast studio;
· Gaming room;
· Space for education providers such as TAFE to run programs;
· Sewing facilities;
· Space for robotics and coding;
· Access to iMacs for design learning;
· Access to programs for audio and video production; and
· Meeting rooms and chill out spaces.
To accommodate these services, a building of 600sqm would be required at a cost of approximately $2 million. In addition, fit out in the region of $1 million would enable the envisaged technology to be provided. An indicative site plan for a Youth Innovation Space as an annex to the Southern Suburbs Library is included as Attachment 2.
In July 2019, the Mayor received a letter from the then Minister for Youth indicating support for the concept of developing a Youth Hub as an annex to the Southern Suburbs Library however there was no definitive funding commitment provided. A copy of this letter is available as a confidential attachment.
As a funding commitment to the Youth Hub/Youth Innovation Space has yet to be secured from the State Government, it is proposed that a Youth Innovation Hub be considered as Stage 2 of the project and treated as a separable portion to the Southern Suburbs Library.
This will enable the next stage of the Southern Suburbs Library project to proceed while advocacy continues to secure external funding for a Youth Innovation Hub. If funding is not forthcoming for a Youth Innovation Hub, the proposed site would remain as car parking.
The table below shows the anticipated timeline to completion of Stage 1 of the facility. This may need to be reconsidered if Stage 2 comes to fruition:
|
Stage |
Planned Start |
Planned Finish |
|
Clearing Approvals |
May 2020 |
May 2021 |
|
Council Approval for design principles and tender for detailed design |
Jul 2020 |
Aug 2020 |
|
Detailed Design including further Council and community engagement |
Sep 2020 |
Mar 2021 |
|
Development Submission/Approval |
Nov 2020 |
Jan 2021 |
|
Council approval for construction tender and contract formulation |
May 2021 |
Jun 2021 |
|
Construction |
Jul 2021 |
May 2022 |
|
Handover, Landscaping |
May 2022 |
Jun 2022 |
|
Defects Liability Period |
Jun 2022 |
Jun 2023 |
Statutory Compliance
Nil
Strategic Implications
The proposal aligns with the following objective within the Strategic Community Plan 2017 – 2027:
“1 Society
1.4 Connected Communities
1.4.2 Strengthen community and customer connectedness through community hubs”
Risk Management Considerations
|
Risk Title |
Risk Rating |
|
CO-020 Productive Communities |
Moderate |
|
Accountability |
Action Planning Option |
|
Director Community & Place |
Manage |
|
Risk Title |
Risk Rating |
|
ST-S23 Stakeholder Relationships |
Moderate |
|
Accountability |
Action Planning Option |
|
Chief Executive Officer |
Manage |
|
Risk Title |
Risk Rating |
|
ST-G09 Long Term Financial Planning |
Moderate |
|
Accountability |
Action Planning Option |
|
Director Corporate Strategy & Performance |
Manage |
The above risks relating to the issue contained within this report have been identified and considered within the City’s Strategic and corporate risk registers. Action plans have been developed to manage these risks to support existing management systems.
Policy Implications
Any tender process will be in accordance with the City’s Purchasing Policy. Any potential commercial lease will be in accordance with the City’s Leasing Policy. Community consultation will be undertaken in accordance with the City’s Community Engagement Policy.
Financial Implications
The budget for the Stage 1 of the project is as follows:
· 2020/21 $670,000 (detailed design and tender documentation); and
· 2021/22 $6,244,000 (construction and fit out)
Stage 1 - Southern Suburbs Library - Based on Total Project Value of $7.2M + GST
Allowing for breakdown of the total budget into the base build, fitout, fees, etc., a revised $5 million base-build is required. An allocated fitout budget of $750,000 has been allowed for loose furniture, equipment, and ICT equipment. A “Future (Year) Fitout Budget” of $125,000 will be allocated from within the existing budget for the first two years of building operations to cover additional fitout once the building is being used.
In 2008, the City secured a $60 million loan with the Western Australian Treasury Corporation (WATC). A range of other infrastructure projects were funded by this loan, with the last being the Southern Suburbs Library project.
Stage 2 Youth Innovation Hub
The initial cost estimates for a Youth Innovation Hub as an annex to the Southern Suburbs Library are in the vicinity of $3 million.
As noted, this stage will only progress if there is State Government funding committed. The City will continue discussions with State Government representatives to understand if the latest announcements as part of the State Government’s COVID-19 pandemic recovery plan include funding for a project such as a Youth Innovation Hub.
The proposal to include Stage 2 as a separable portion in any tender process means that the works can be included, omitted or staged as necessary.
Voting Requirements
Simple Majority
That Council:-
1. ENDORSES the high level design principles articulated in this report to inform the detailed design for the Southern Suburbs Library;
2. APPROVES progressing to tender to engage a consultant to undertake the detailed design phase of the project;
3. NOTES the proposal for the Stage 2 Youth Innovation Hub as an annex to the Southern Suburbs Library, subject to the procuring of external funding and ENDORSES continued advocacy to the State Government for this funding; and
4. RECOGNISES and THANKS the schools for their involvement in the community consultation component of the project.
Attachments:
|
1. |
Attachment 1 - Copy Minister Tinley's letter re the $3m for Youth Hub Southern Library |
Confidential |
|
|
2⇩. |
Attachment 2 - 20200811 Southern Suburbs Library - Concept Overlay |
20/341750 |
|
Attachment 1 - Copy Minister Tinley's letter re the $3m for Youth Hub Southern Library
This attachment is confidential and distributed under separate cover to all Council Members
Administration Use Only
Attachment 1 – HPE #20/332162
CITY OF WANNEROO Agenda OF Elected Members' Briefing Session 18 August, 2020 248
Community Facilities
File Ref: 40569 – 20/239175
Responsible Officer: Director Community and Place
Disclosure of Interest: Nil
Attachments: 8
Previous Items: CP04-06/20 - Splendid Park Cycling Facility Concept Design and Cost Estimate - Ordinary Council - 02 Jun 2020 7:00pm
Issue
To consider the Splendid Park Cycling Facility Master Plan and community engagement outcomes.
Background
Splendid Park (the Park) is located on Splendid Avenue, Yanchep (Attachment 1). The Park has an overall land area of approximately 12.8 hectares, classifying it as a District Park. The Park is Crown Land vested to the City of Wanneroo for the purpose of public recreation.
The Park is bounded by residential properties to the west and bushland to the north, east and south. Residents to the west are separated by the road reserve for the future Marmion Avenue extension.
The Park includes the following amenities:
· Two multi-purpose ovals catering for athletics and junior and senior Australian Rules Football (AFL), Soccer, Rugby and Cricket;
· Two multipurpose hard courts accommodating Basketball and Netball;
· Floodlighting to the required Australian Standard for large ball sports;
· Cricket nets;
· Long jump pits;
· 1.8 metre perimeter fence;
· Sports Amenities Building;
· Playground adjacent to the amenities building; and
· Skate Park.
The Northern Beaches Cycling Club (the NBCC) is based in the City’s northern coastal corridor. Most recent membership data (May 2020) indicates a total membership of 1,100 (800 in 2018) and active members (i.e. who participate in cycling activities) of 639 (333 in 2018). The NBCC accommodates a diversity of cycling interests from social rides, racing, mountain biking and cyclocross, and has also developed a school-based cycling academy.
At its meeting held on 2 June 2020, Council considered report CP04-06/20 – Splendid Park Cycling Facility Concept Design and Cost Estimate. As a result of the report, Council resolved the following:
“1. ENDORSES, for the purposes of public comment, Option 1 and Option 2 in the draft Splendid Park Cycling Master Plan, as shown in Attachment 2 of this report;
2. NOTES that Administration’s preferred option is Option 1 (Attachment 4) based on the ability to deliver a cycle track and its cost effectiveness; and
3. NOTES that the draft Splendid Park Cycling Master Plan is intended to be released for a 28 day public comment period from 8 June 2020 to 3 July 2020, with the outcome to be reported to Council at its meeting held on 28 July 2020.”
Detail
Master Plan
A copy of the Master Plan report has been provided within Attachment 2. As outlined within report CP04-06/20, the key principles in the design of the Master Plan at Splendid Park (the Park) included:
· Maintain a minimum of a five-metre-wide path around the entire path (separate from the existing dual use path);
· Include a 200m sprint approaching the finish line;
· Maximise usage throughout the day;
· Leave current facilities untouched;
· Provide space for six marquees; and
· Parking space for bicycles.
In the development of the Master Plan, two concept plans were prepared.
Concept 1
Apart from the key principles, some important items to note regarding Concept 1 in Attachment 3 include:
· Start/Finish located near main car park entrance;
· Current swale upgraded and allows for a bridge and extra shade for competitors;
· Marquee area larger than Concept 2, providing greater flexibility;
· Separate start and finish line;
· Close connections to main club house;
· 200m sprint slightly up hill; and
· Mounded hills and terraced retaining walls.
The total estimated cost for this concept is $1,806,100, as summarised in the table below:
|
Item |
Cost |
|
Preliminaries |
$97,250 |
|
Demolition |
$5,600 |
|
Siteworks and Earthworks |
$369,250 |
|
Track |
$410,000 |
|
Electrical |
$96,000 |
|
Exterior Elements |
$330,900 |
|
External Services |
$19,000 |
|
Professional Fees 6% |
$79,700 |
|
Design Contingency 15% |
$199,200 |
|
Construction Contingency 15% |
$199,200 |
|
TOTAL |
$1,806,100 |
Concept 2
Apart from the key principles, some important items to note regarding Concept 2 in Attachment 4 include:
· Start/Finish located adjacent to skate park and the proposed Marmion Avenue extension;
· Flyover has been incorporated into this design at the main entrance, being a basic ‘culvert’ style overpass with embankment construction (soil ramps) up to the edges of the entry road. This would be a single span of approximately 11m over the road and with a 5 metre width. This would lessen the need for gate provision, and potential add to the safety of riders due to not having to watch for cars entering the car park;
· Downhill sprint towards the finish line; and
· Mounded hill at finish line.
The total estimated cost for this concept is $2,611,000, as summarised in the table below:
|
Item |
Cost |
|
Preliminaries |
$170,000 |
|
Demolition |
$5,600 |
|
Siteworks and Earthworks |
$364,000 |
|
Bridge |
$541,400 |
|
Track |
$411,000 |
|
Electrical |
$96,000 |
|
Exterior Elements |
$294,000 |
|
External Services |
$10,000 |
|
Professional Fees 6% |
$151,400 |
|
Design Contingency 15% |
$283,800 |
|
Construction Contingency 15% |
$283,800 |
|
TOTAL |
$2,611,000 |
The total cost of this concept has increased to that reported to Council at its meeting held on 2 June 2020 ($2,191,400). This is due to further refinement to the concept design, with the increase largely due to the flyover construction and associated increases in fees and contingencies. This cost increase was advised to Council Members on 12 June 2020 and via email correspondence to the North Coast Cycling Facility Master Plan Implementation Working Group on 8 June 2020.
As noted with report CP04-06/20 Administration undertook further investigation into the impact on drainage volumes as its relates to Concepts 1 and 2. This was undertaken by JDSI Engineers (JDSI) who advised that the proposed design will affect the capacity of the following areas:
· Sump 4;
· Open Basin 3; and
· Open Basin 2.
JDSI found that the concepts do not adversely affect Open Basin 2 or 3, and that no further works are required to ensure the basins comply with the required capacity specifications. Regarding Sump 4, JDSI recommended amendments to the design including reconstruction of the sump access track and fencing alterations, at an estimated cost of $26,000 (excluding the cost of the path and associated earthworks).
It should be noted that within the Master Plan report, the consultant recommends Concept 1 as a more cost-effective design and with the risk mitigations (signs, gates) in place, the risk of cars entering the carpark can be lessened. This recommendation has been supported by Administration (as noted within the recommendations of report CP04-06/20) subject to discussions being held with the City’s insurers as part of the detailed design phase if progressed.
Management of Use
A key principle for the scope of the Master Plan is to ensure the track has been designed so as not to impede the current use of the Park by other user groups, including the resident sporting clubs and residents.
While the use of the cycling facility will not affect the direct use of the playing fields at the Park, it will have an impact on parking and general access to the Park, which will require users of the track to work with existing user groups and Administration to manage the impact. It should be noted that while the design of the track includes risk mitigation features, there is still an onus on the users to provide effective and qualified traffic management protocols, particularly during large events, and a safety management plan encompassing all aspects of proposed use. Administration will also be required to develop an internal Management Procedure to guide the use of the proposed facility.
It should be noted that use of the track for large events would impact on the use of the Park for other sporting events and vice versa.
Environmental Considerations
As advised to Council at its meeting held on 2 June 2020, consideration will need to be given to progressing a clearing permit for the development of the track.
A clearing permit will be required as previous Planning Approvals for the construction of the Reserve required landscaping to be undertaken utilising Black Cockatoo Habitat Species to re-establish the vegetation lost as a result of the development of the site. The development of the proposed track will impact on this re-vegetation and triggers the clearing permit requirement. As the requirement for revegetation was conditioned under the Planning and Development Act 2005, the vegetation is deemed as being ‘native’ under the Environmental Protection Act 1986.
Administration has commenced this process and will submit the clearing permit once the detail design is completed. A biological survey of the site is scheduled to be undertaken later in the year to inform the clearing permit application.
It is likely that this application will require the City to provide an offset of land for Black Cockatoo Habitat at an alternate site. Administration has commenced discussions with Department of Water and Environmental Regulation (DWER) in respect to potential off set requirements, with a view to this process progressing in parallel with the detail design process.
Project Schedule
The current project schedule will see detail design undertaken in the 2020/21 financial year and procurement and construction undertaken in the 2021/22 financial year. As previously advised, the project schedule will be subject to further revision as the project progresses and more detailed planning is undertaken.
North Coast Cycling Facility Master Plan Implementation Working Group
The results of the community consultation process were presented to the North Coast Cycling Facility Master Plan Implementation Working Group (the Working Group) at its meeting held on 8 July 2020.
As a result, the Working Group resolved the following:
“That North Coast Cycling Facility Master Plan Implementation Working Group:
1. NOTES the outcome of the Splendid Park Cycling Facility Master Plan community engagement (public comment) process held from 8 June 2020 to 3 July 2020, which resulted in the following outcomes:
a. A total of 348 responses received, with 338 (97.1%) in favour and 10 (2.9%) against of the proposed development of a cycling track at Splendid Park;
b. Of those responses 216 (66.1%) indicated a preference for Option 2 (with the flyover), with 111 (33.9%) indicating a preference for Option 1 (without the flyover);
c. A total of 20 (6%) comments were received which indicated a preference for either option; and
d. Of the 79 responses received from Northern Beaches Cycling Club members, 43 (54.4%) indicated their preference for Option 1 and 36 (45.6%) indicating a preference for Option 2.
2. NOTES that Administration’s preferred option is Option 1 (Attachment 2) based on the ability to deliver a cycle track and its cost effectiveness; and
3. RECOMMENDS to Council the implementation of Option 1.”
In consideration of the community consultation process, the Working Group noted the need to extend the width of the track from the existing width of 5m to 6m and to 8m at the finish line. The Working Group recommended that Administration include the provision of a 6m width track and 8m width finish line within the detail design process.
Consultation
Public Comment Process
The public comment process was undertaken as per the City’s Community Engagement Policy and was conducted for a 28-day period from 8 June to 3 July 2020. The public comment process included the following consultation strategy:
· Information provided on the City’s “Your Say” page;
· Advertising for feedback on the City’s various social media platforms;
· Letters to residents within 400m of the Park;
· Direct communication with relevant stakeholders including:
o Cycling Groups
§ Northern Beaches Cycling Club (NBCC);
§ WestCycle;
§ Masters Cycling WA; and
§ Other cycling groups as identified.
o Resident Sporting Clubs
§ Yanchep Redhawks Football Club;
§ Yanchep United Soccer Club;
§ Yanchep Junior Football Club;
§ Yanchep Netball Club;
§ Yanchep Cricket Club; and
§ Yanchep Little Athletics Club.
o Department of Local Government, Sport and Cultural Industries; and
o Two Rocks Yanchep Residents Association.
The endorsed concept plans were advertised for public consideration and a consultation letter (including concept designs and costings) (Attachment 5) advising of the opportunity to comment on this proposal, was sent to 582 properties that surround the Park. This information was also made available to stakeholders, identified by both Administration and the NBCC.
The consultation period was advertised on the City’s ‘Your Say’ section on the website with links provided on the City’s Facebook page. Onsite signage was also placed at the Park.
Public Comment Outcomes
At the close of the consultation period, Administration received 348 responses, of which 338 (97.1%) of respondents supported the provision of the cycling facility and 10 (2.9%) of respondents did not support the provision of the cycling facilities.
Other key outcomes of the consultation period are as follows:
· Of the 338 respondents in favour of the upgrade, 216 (66.1%) indicated a preference for Option 2 (with the flyover), with 111 (33.9%) preferring Concept 1 (without the flyover);
· Of these it should be noted that 20 (6%) comments stated that either option would be acceptable;
· Of the 79 (22.7%) of responses who identified themselves as being from the NBCC (or associated with the club), 43 (54.4%) indicated their preference for Concept 1, with 36 (45.6%) indicating their preference for Concept 2 (Flyover);
· Of the 348 responses, 223 (64.1%) identified themselves as members of cycling and wheeled sport clubs, with 203 identified their address as being outside the City of Wanneroo (58.3% of responses); and
· There were 138 (39.7%) City residents who responded, with eight (5.8%) of these responses not supporting the plan. Of the eight responses, five were from Yanchep and two located directly to the west of Splendid Park.
A summary of the comments received in favour of the project are as follows:
· I would just love a track to use;
· Really pleased to see this in progress;
· We really need this…;
· This would be an amazing cycling facility and could have a major impact on the development of our future professional and Olympic athletes; and
· This is a great initiative for the Perth community, not just Splendid park.
It should be noted that while there was significant support for the facility, several respondents indicated the track would need to be six metres wide (eight metres at the start / finish line), and the flyover component would need to be wider for safety.
A summary of the main reasons for the proposal not being supported has been included below:
· Waste of ratepayers money;
· If the proposal is an interim measure until a permanent cycling facility is established in Alkimos I would prefer to see the funding used to improve current facilities, including floodlighting at Splendid Park and sports centre;
· There is already too much crammed into the area. The skate park will encourage unsavoury characters. Now our once peaceful park is going to over-run by cyclists? I moved to Yanchep for the quiet and semi remote lifestyle. It’s becoming a carbon copy of the rubbish communities closer to the city; and
· Priority should be given for new BMX facility in a more central location.
A more detailed summary of responses can be found in Attachment 6.
Should it be required, further consultation with key stakeholders will be undertaken as a matter of course throughout the detail design and construction processes, subject to Council’s consideration of this report.
Comment
As noted above, 66.1% of respondents indicated their preference for Option 2 (inclusive of the flyover), however it should be noted that 20 comments indicated that either option would be acceptable. In addition to this, 54.4% of responses from the NBCC indicated Option 1 (no flyover) as their preferred option. This in confirmed by the submission received from the NBCC in Attachment 7.
In addition, feedback has been received from Rebound WA, an association that assists West Australians living with physical disability to lead fuller, more active and connected lives. They have indicated their preference for Concept 1, as it offers a more inclusive and accessible choice. This is due to the restrictive gradients of the flyover in Concept 2 would impose on their members.
Both the position of the NBCCC and Rebound WA is consistent with the Master Plan report recommendations and the Working Group’s recommendation. This is also consistent with Administration’s preference, as per report CP04-06/20 considered at Council’s meeting held on 2 June 2020.
As a result of the Working Group’s consideration of the public comment process, the submission received from the NBCC and several individual responses received during the public comment process, it was requested that Administration undertake a review of Concept 1 to include a general 6m track width and 8m start/finish line width. Administration subsequently engaged the existing consultant to undertake preliminary work on a revised concept.
This revised Concept, referred to as Concept 1B, has been included within Attachment 8 with the related cost estimate included within Attachment 2.
The concept design demonstrates that, at this stage of the design process Concept 1B may be achievable, though it needs to be noted there is less buffer between the edge of the track and the neighbouring lot, particularly to the north west of the facility. The consultant identified there would likely be additional retaining required on the northern embankment. There is also potential to impact the recently constructed Skate Park, as well existing lighting and fencing.
The cost estimate for Concept 1B is detailed below:
|
Item |
Cost |
|
Preliminaries |
$114,170 |
|
Demolition |
$13,650 |
|
Siteworks and Earthworks |
$400,600 |
|
Track |
$471,680 |
|
Electrical |
$96,000 |
|
Exterior Elements |
$427,900 |
|
External Services |
$19,000 |
|
Professional Fees 6% |
$92,600 |
|
Design Contingency 15% |
$231,400 |
|
Construction Contingency 15% |
$231,400 |
|
TOTAL |
$2,098,400 |
This represents an increase on Option 1 of $292,300.
Administration also sought updated advice from JDSI Engineers in relation to Concept 1B, who have advised that:
“Subject to confirmation at detailed design, it appears that all basins will still have sufficient capacity to take the run off from the 10 year storm. The flooding experienced at the catchment low points for the 100 year storm will have a slightly larger foot print than previously assessed. However, there should still be sufficient freeboard between the flood level and the change room building, on the assumption that it was constructed at the pad level indicated on the original earthworks design.
As the above advice is subject to further assessment at detailed design, we recommend that an additional provisional allowance of $20,000 be made within any budgets for possible drainage modifications.”
Administration’s comments in relation to Concept 1B include the following:
· Current topography is sloping towards west. Having a widened lane will increase batter/embankment requirements which may extend past the boundary in some areas;
· Safety infrastructure maybe required in some corners to prevent bike riders from being thrown onto the batter;
· A widened track will increase the required cut on adjacent batters;
· The primary Western Power switchboards will most likely be within the 8m wide lane;
· Widened lane may affect the western section of the newly completed skate park;
· Impact of the widened track on the existing shared use path;
· Consideration of additional infrastructure to mitigate risks (i.e. safety fencing) as a result of the track being used for competitive cycling; and
· The concept requires further scoping as part of the detail design to understand the implications of a wider track based on the issues raised above.
In addition to this it should be noted the initial intent for this facility was to provide a training facility and lower level competition facility (as per the Terms of Reference for the Working Group), for the use of cyclists and other users (in-line skating, running etc.). It should also be noted that the scope for the Master Plan (and therefore track widths) was based on the initial concept layouts provided by the NBCC. The intention was not to develop a criterium level facility, noting that a regional level criterium track was identified at the future Alkimos Regional Open Space, as per the Northern Corridor Cycling Facility Master Plan, endorsed by Council at its meeting held in October 2018 (report CP06-10/18).
As per the Working Group Recommendation 3 from its meeting held on 8 July 2020, this report will recommend Concept 1 (Attachment 3), noting that further work will be undertaken as a part of the detail design process to consider the provision of a general track width of 6m and start/finish width of 8m.
Statutory Compliance
Nil
Strategic Implications
The proposal aligns with the following objective within the Strategic Community Plan 2017 – 2027:
“1 Society
1.1 Healthy and Active People
1.1.1 Create opportunities that encourage community wellbeing and active and healthy lifestyles”
Risk Management Considerations
|
Risk Title |
Risk Rating |
|
ST-S23 Stakeholder relationships |
Moderate |
|
Accountability |
Action Planning Option |
|
Chief Executive Officer |
Manage |
|
Risk Title |
Risk Rating |
|
CO-O17 Financial Management |
Moderate |
|
Accountability |
Action Planning Option |
|
Director Corporate Strategy and Performance |
Manage |
|
Risk Title |
Risk Rating |
|
ST-G09 Long Term Financial Planning |
Moderate |
|
Accountability |
Action Planning Option |
|
Director Corporate Strategy and Performance |
Manage |
|
Risk Title |
Risk Rating |
|
CO-O22 Environmental Management |
Moderate |
|
Accountability |
Action Planning Option |
|
Director Planning and Sustainability |
Manage |
The above risks relating to the issues contained within this report have been identified and considered within the City’s Strategic and Corporate risk registers. Action plans have been developed to manage these risks to improve the existing management systems.
As noted earlier within this report, it will be the responsibility of the users of the proposed facility to have in place effective traffic management and safety management plans, while Administration will be required to develop an internal Management Procedure to guide the use of the proposed facility. Further advice is being sought from the City’s Insurer and will be distributed under separate cover prior to the Council Meeting on 25 August 2020.
Policy Implications
The City's Local Planning Policy 4.3 Public Open Spaces was used as the guiding framework for the development of the draft concept plan. The community consultation process was undertaken as per the City’s Community Engagement Policy.
Financial Implications
Currently, the project (PR-4271) is listed on the City’s Long Term Financial Plan as per the following:
|
Year |
Detail |
Amount |
|
1 |
Survey, Site Investigation and Procurement |
$80,000 |
|
2 |
Detailed Design and Construction |
$1,500,000 |
|
Total |
$1,580,000 |
|
As identified earlier in this report the cost of the concepts considered, being Concept 1, Concept 1B and Concept 2 are as follows, noting this does not include contingencies for drainage, environmental requirements and barrier fencing of the track:
Concept 1 : $1,806,100;
Concept 1B : $2,098,400; and
Concept 2 : $2,611,000.
This is noting the advice for JDSI Engineers that a contingency of approximately $26,000 should be allowed for sump rectification works for Concept 1 and $46,000 for Concept 1B.
As outlined within report CP04-06/20, additional cost contingencies have been identified for the project and include $320,000 for the provision of barrier fencing around the track and $135,000 for up front environmental offset costs (with a further $300,000 in rehabilitation costs over a five year maintenance period). The requirement and amount of these contingencies is subject to further confirmation.
When the additional contingency amounts are added to the estimated cost of Concept 1, the total estimated project cost is $2,287,100. This has been itemised in the table below noting the project budget and funding shortfall:
|
Item |
Estimated Cost |
|
Concept 1 |
$1,806,100 |
|
Drainage Contingency |
$26,000 |
|
Environmental Offset Contingency (Up Front Cost) |
$135,000 |
|
Fencing Contingency |
$320,000 |
|
Total |
$2,287,100 |
|
|
|
|
Approved budget |
$1,580,000 |
|
Funding Shortfall |
$707,100 |
Based on the above cost estimate, Administration will seek a grant to a maximum of one-third of the total project cost ($762,366) through the 2020 round of the Community Sport and Recreation Facility Fund, via the Department of Local Government Sport and Cultural Industries. If the CSRFF grant is successful, the City’s funding component for the project (being municipal funding) would be $1,524,734 and therefore within existing budget parameters.
Taking account of the additional contingencies outlined above, the estimated cost for Concept 1B is $2,599,400 and Concept 2 is $3,092,000. Allowing for the possibility of a CSRFF grant, the City’s funding component for Concepts 1B and 2 would be higher than the existing budget parameters.
It should be noted that, subject to Council consideration of this report, Administration will progress detail design in 2020/21, with construction being dependant on securing the CSRFF grant (or other external grant funds to at least the equivalent value) or additional municipal funding being identified as a result of the LTFP review, to cover the budget shortfall.
It should be noted the above figures are a preliminary estimate only, and are subject to change as a result of the detail design and environmental approval stages. The provision of fencing will also be the subject of further design review and risk assessment in consultation with the Club, Westcycle and the City’s Insurer.
As per the consultant’s estimate, the total asset management cost over a 10-year period would be $537,500.
Voting Requirements
Simple Majority
That Council:-
1. NOTES the outcome of the North Coast Cycling Facility Master Plan Implementation Working Group meeting held on 8 July 2020, as follows:
“a) NOTES the outcome of the Splendid Park Cycling Facility Master Plan community engagement (public comment) process held from 8 June 2020 to 3 July 2020, which resulted in the following outcomes;
i. A total of 348 responses received, with 338 (97.1%) in favour and 10 (2.9%) against of the proposed development of a cycling track at Splendid Park;
ii. Of those responses 216 (66.1%) indicated a preference for Option 2 (with the flyover), with 111 (33.9%) indicating a preference for Option 1 (without the flyover);
iii. A total of 20 (6%) comments were received which indicated a preference for either option; and
iv. Of the 79 responses received from Northern Beaches Cycling Club members, 43 (54.4%) indicated their preference for Option 1 and 36 (45.6%) indicating a preference for Option 2.
b) NOTES that Administration’s preferred option is Option 1 (Attachment 2) based on the ability to deliver a cycle track and its cost effectiveness; and
c) RECOMMENDS to Council the implementation of Option 1.”
2. NOTES
the outcome of the Splendid Park Cycling Facility Master Plan community
engagement (public comment) process held from 8 June 2020 to
3 July 2020, which resulted in the following outcomes;
a) A total of 348 responses received, with 338 (97.1%) in favour and 10 (2.9%) against of the proposed development of a cycling track at Splendid Park; and
b) Of the 79 responses received from Northern Beaches Cycling Club members, 43 (54.4%) indicated their preference for Concept 1 and 36 (45.6%) indicating a preference for Concept 2;
3. NOTES the completion of the Splendid Park Cycling Master Plan Report, as per Attachment 2;
4. ENDORSES Concept 1 as per Attachment 3, at an estimated cost of $2,287,100 as itemised below, noting that the feasibility of increasing the width of the track will be considered as part of the detail designed:
|
Item |
Estimated Cost |
|
Concept 1 |
$1,806,100 |
|
Drainage Contingency |
$26,000 |
|
Environmental Offset Contingency (Up Front Cost) |
$135,000 |
|
Fencing Contingency |
$320,000 |
|
TOTAL |
$2,287,100 |
5. NOTES that progress of the construction phase of the project is subject to the City’s Community Sport and Recreation Facility Fund grant application for the sum of $762,366 being successful, or securing other external funding to at least the equivalent value or additional municipal funding being identified as a result of the Long Term Financial Plan review, to cover the budget shortfall.
Attachments:
|
1⇩. |
Attachment 1 - Splendid Park - Site Plan |
19/132092 |
|
|
2⇩. |
Attachment 2 - Splendid Park Cycling Upgrade Masterplan Report - updated 6 August 2020 |
20/331835 |
Minuted |
|
3⇩. |
Attachment 3 - Splendid Park Cycling Facility - Concept Design - Option 1 |
20/139513 |
Minuted |
|
4⇩. |
Attachment 4 - Splendid Park Cycling Facility - Concept Design - Option 2 |
20/139515 |
|
|
5⇩. |
Attachment 5 - Letter - Community Engagement - Splendid Park Cycling Upgrade |
20/226719 |
|
|
6⇩. |
Attachment 6 - Consultation Summary - Splendid Park Cycling Upgrade |
20/290764 |
|
|
7⇩. |
Attachment 7 - Feedback - Splendid Park Cycling Upgrade - Northern Beaches Cycling Club |
20/281696 |
|
|
8⇩. |
Attachment 8 - Splendid Park Cycling Upgrade - Concept Design - Option 1B |
20/320738 |
|
CITY OF WANNEROO Agenda OF Elected Members' Briefing Session 18 August, 2020 318
File Ref: 41146 – 20/322746
Responsible Officer: Director Community and Place
Disclosure of Interest: Nil
Attachments: 5
Issue
To seek approval to submit applications for the 2021/22 Annual and Forward Planning Round of the Community Sport and Recreation Facility Fund (CSRFF) to the Department of Local Government, Sport and Cultural Industries (DLGSCI).
Background
The CSRFF is administered by DLGSCI on behalf of the State Government. Each year funding is available to community/sporting groups and Local Governments to assist in the development of sport and recreation infrastructure. The aim of the program is to increase participation in sport and recreation through an emphasis on well-planned and well-utilised facilities.
The 2020/21 CSRFF Annual and Forward Planning round opened on 25 May 2020 with $12M available for allocation. Small Grants are available for projects between $7,500 and $300,000 and will be complete within 12 months. Forward Planning Grants are available for large scale projects over $300,001 and may require an implementation period of between one and three years.
The maximum grant offered for standard grant applications is one third of the total estimated project cost up to a maximum of $2M. Applications are due to be submitted to DLGSCI by no later than 11 September 2020.
Detail
For the 2021/22 round three CSRFF grant applications have been listed for consideration, as outlined in the table below:
|
Grant Type |
Project # |
Description |
Municipal |
Cont. |
CSRFF Funds (2) |
Total |
|
Cost (1) |
||||||
|
Forward |
PR-4213 |
Ferrara Park Sports Floodlighting Upgrades |
$228,781 |
$0.00 |
$114,219 |
$343,000 |
|
Forward |
PR-2792 |
Dalvik Park, New Sports Amenities Building |
$1,060,082 |
$0.00 |
$500,918 |
$1,561,000 |
|
Forward |
PR-4271 |
Splendid Park Cycling Facility |
$1,524,734 |
$0.00 |
$762,366 |
$2,287,100 |
|
TOTALS |
$2,813,597 |
$0 |
$1,377,503 |
$4,191,100 |
||
Notes:
(1) Current total project cost estimate; and
(2) CSRFF grant amount sought based on eligible project costs.
Project: Ferrara Park Floodlighting
Applicant: City of Wanneroo
Ferrara Park is a District Active Reserve located at 27 Ferrara Park, Girrawheen. The site is on Lot 9768 on Reserve Number 35186, with a total land area of approximately 7.0ha. The reserve is currently used by Australia Karen Organisation WA Inc., Gortankaku Community Association WA Inc., and Roseworth Primary School. A copy of the endorsed Active Reserve Master Plan (ARMP) for the reserve has been included in Attachment 1.
This project is to design and construct sports floodlighting at Ferrara Park to meet Australian Standard AS2560 – Large Ball Sport Training (Amateur) 50 Lux LED (with capacity to increase to 100 Lux), and AS4282 to control the obtrusive effect of the lighting.
This project has been captured within the City’s LTFP and was identified as a high priority within the ARMP, with the following priorities listed for Ferrara Park:
· Priority 1: Floodlighting for large ball sports (this project);
· Priority 2: Path Network;
· Priority 3: Installation of Shade Sails over existing playground;
· Priority 4: Refurbishment of Cricket Nets and 3 on 3 Basketball Facilities;
· Priority 5: Review layout of existing playground equipment locations;
· Priority 6: Audit Building Refurbishment (Change rooms); and
· Priority 7: Installation of History plaques around the playground commemorating historical achievements.
The project is listed under PR-4213 in the 2021/22 Capital Works Budget and the Long Term Financial Plan (LTFP) as follows, noting design was completed in 2019/20. The current project construction cost is as per the budget listed below:
|
Financial Year |
Work Description |
Funding Amount |
|
2021/22 |
Construct |
$343,000 |
|
Total |
$343,000 |
|
Based on the eligible CSRFF components this report recommends that a Forward Planning Grant of $114,219 be sought in the upcoming round to be claimed in 2021/22.
Installation of floodlights at Ferrara Park will allow the reserve to be available for night time training for local clubs. The table in Attachment 2 shows a detailed breakdown of the usage at parks surrounding Ferrara Park in the South Ward over the course of a one-week period during both summer and winter months. The information captured in this table focuses on hours that are typically outside of daylight hours.
The information presented in the attachment shows a high level of use of the facilities at Shelvock Park, Hudson Park and Koondoola Park. This is based on full capacity being defined as between 24 to 26 hours per week in total and on average four hours of use per night.
On this basis the data presented demonstrates a need for the installation of floodlighting at Ferrara Park to provide increased capacity to accommodate sporting clubs within the area, noting that the addition of floodlighting will complement the existing Sports Amenities Building on site.
The balance of the active reserves listed within the ARMP will be subject to further review based on current demand and anticipated need, as is the case for all ARMP projects within the City.
Project: Dalvik Park Sports Amenities Building
Applicant: City of Wanneroo
Dalvik Park is a Neighbourhood Active Reserve located at 20 Dalvik Avenue, Merriwa. The site sits on Lot 1019, Reserve 48091 with a total land area of approximately 5.7ha. The reserve is used by the Alkimos Baptist College. Due to the lack of appropriate infrastructure the City does not currently take organised sports bookings for the reserve. A number of clubs have expressed their interest in Dalvik Park in recent years looking for additional playing field space for training and matches. This project will assist to alleviate the ground usage pressures on nearby reserves that are at capacity. A floodlighting upgrade is also scheduled for the reserve in 2021/22 (design) and 2022/23 (construct).
The table in Attachment 3 shows a detailed breakdown of the usage at parks surrounding Dalvik Park in the North Ward over the course of a one-week period during both summer and winter months. The information captured in this table focuses on hours that are typically outside of daylight hours.
The information presented in the attachment shows a high level of use of the facilities at Abbeville Park, Anthony Waring Park, Gumblossom Park, Kingsbridge Park, Ridgewood Park and Riverlinks Park. This is based on full capacity being defined as between 24 to 26 hours per week in total and on average four hours of use per night.
This project is for the construction of a sports amenities building and carpark. As per the City’s standard level of provision for a neighbourhood level active reserve, the Sports Amenities Building will include:
· 2 x unisex change rooms (includes partitioned / lockable showers and toilets);
· Public toilets (male, female and universal access toilet);
· 4 x store rooms;
· First aid room;
· Umpire’s room;
· Kiosk;
· Multipurpose Room;
· Furniture store;
· Carpark; and
· Bin store.
A copy of the concept plan is included in Attachment 4. The project is listed under PR-2792 in the 2020/21 Capital Works Budget and the LTFP. The current project cost is as per the budget listed below:
|
Financial Year |
Description |
Total |
|
2020/21 |
Design & construction |
$587,000 |
|
2021/22 |
Construction |
$974,000 |
|
Total |
$1,561,000 |
|
Based on the eligible CSRFF components this report recommends that a Forward Planning Grant of $500,918 be sought in the upcoming round to be claimed in 2021/22.
Project: Splendid Park New Cycling Facility
Applicant: City of Wanneroo
Splendid Park is located on Splendid Avenue Yanchep. The Reserve sits on Lot 8000 and has an overall land area of approximately 12.8 hectares, classifying it as a District Park. The site is currently used by several sporting clubs. Following the development of the North Coast Cycling Facility Master Plan, the City formed the North Coast Cycling Facility Master Plan Implementation Working Group (the Working Group). As a part of the Working Group’s Terms of Reference, consideration has been given to the development of a cycling facility at Splendid Park.
This facility comprises of a track around the perimeter of Splendid Park at a width of 5m and associated supporting infrastructure suitable for cycling activity (including recreational riding, club activity, competition and cycling education programs), wheelchair based recreational and competitive activity, in-line skating etc. The preferred concept plan of the Working Group (Concept 1) has been included within Attachment 5.
It should be noted that endorsement of this project is the subject of a separate report listed in this agenda.
The estimated cost of the proposed concept is $2,287,100. The project is listed under PR-4271 in the 2020/21 Capital Works Budget and the LTFP as per below:
|
Financial Year |
Description |
Total |
|
2020/21 |
Survey, site investigation & procurement |
$80,000 |
|
2021/22 |
Detailed Design & Construction |
$1,500,000 |
|
Total |
$1,580,000 |
|
Based on the eligible CSRFF components this report recommends that a Forward Planning Grant of $762,366 be sought in the upcoming round to be claimed in 2021/22.
Consultation
Consultation for these projects has included discussions with current users of the facilities as well as discussions with the relevant State Sporting Associations where appropriate.
Community engagement for Dalvik Park included a more detailed consultation with user groups, in particular on the concept design which was endorsed by Council on 30 July 2019 (CP06-07/19). Community engagement in relation to the Splendid Park Cycling Facility is as outlined in the separate report listed in this agenda.
Community engagement for all projects has been undertaken in line with the City’s Community Engagement Policy.
Comment
The CSRFF grant is a vital element within the City of Wanneroo’s funding model for the provision of community level sport and recreation infrastructure. This includes floodlighting and sports amenities buildings (change rooms, storage areas, kiosk, public toilets and multipurpose/meeting room space).
This infrastructure is critical in delivering new facilities and increasing the capacity of existing facilities to accommodate growth within the City and in developing sustainable clubs. A lack of CSRFF funds increases the cost burden on the City, resulting in projects being staged, delayed or not proceeding. This directly impacts on clubs and the community.
In terms of project assessment, the projects identified for the 2021/22 grant round were assessed by Administration utilising the following philosophy and exclusion criteria established as a part of the CSRFF Review Process:
Philosophy
· Meets a clearly demonstrated need within the community;
· Supports the City’s Strategic Community Plan;
· Provides maximum benefit and value for money for the community by providing multi-purpose facilities and allow for general community uses (e.g. other community-based activities);
· Financially viable, with the applicant able to demonstrate the ability to meet the financial commitment;
· Increases participation;
· Includes a clear management plan; and/ or
· Facility provision to meet all relevant Australian Standards.
Items Not Eligible for CSRFF Funding
· Deficit funding;
· Recurrent salaries or operational costs;
· Non-fixed equipment;
· Projects that have already commenced or been completed;
· The purchase of land;
· Provision of bar facilities;
· Development of privately owned facilities;
· Facility maintenance; and/ or
· Clubs/Organisations that have outstanding debts with the City, or are failing to meet financial obligations with the City.
In addition to these criteria, the application was assessed on the basis of the CSRFF assessment principles and project rating as outlined below:
Assessment Principles
The application is to be assessed on the following principles using a scale of satisfactory, unsatisfactory and not relevant:
· Project Justification;
· Planned approach;
· Community input;
· Management Planning;
· Access and Opportunity;
· Design;
· Financial Viability;
· Co-ordination; and
· Potential to increase physical activity.
Project Rating
· Well planned and needed by the municipality;
· Well planned and needed by the applicant;
· Needed by the municipality, more planning required;
· Needed by applicant, more planning required;
· Idea has merit, more preliminary work needed; or
· Not recommended.
Statutory Compliance
Nil
Strategic Implications
The proposal aligns with the following objective within the Strategic Community Plan 2017 – 2027:
“1 Society
1.1 Healthy and Active People
1.1.1 Create opportunities that encourage community wellbeing and active and healthy lifestyles”
Risk Management Considerations
|
Risk Title |
Risk Rating |
|
CO-O17 Financial Management |
Moderate |
|
Accountability |
Action Planning Option |
|
Director Corporate Strategy & Performance |
Manage |
|
Risk Title |
Risk Rating |
|
ST-S23 Stakeholder relationships |
Moderate |
|
Accountability |
Action Planning Option |
|
Chief Executive Officer |
Manage |
The above risks relating to the issue contained within this report have been identified and considered within the City’s Strategic/ Corporate risk register. Action plans have been developed to manage this risk to support existing management systems
Policy Implications
The provision of floodlighting at Ferrara Park is consistent with the City’s Sports Floodlighting Policy. Community engagement has been undertaken as per the City’s Community Engagement Policy.
Financial Implications
The following table identifies the financial implications for the City, with a total of $1,377,503 being sought from CSRFF, noting each of the projects is listed within the current LTFP:
|
Grant Type |
Project # |
Description |
Municipal |
Cont. |
CSRFF Funds (2) |
Total |
|
Cost (1) |
||||||
|
Forward |
PR-4213 |
Ferrara Park Sports Floodlighting Upgrades |
$228,781 |
$0.00 |
$114,219 |
$343,000 |
|
Forward |
PR-2792 |
Dalvik Park, New Sports Amenities Building |
$1,060,082 |
$0.00 |
$500,918 |
$1,561,000 |
|
Forward |
PR-4271 |
Splendid Park Cycling Facility |
$1,524,734 |
$0.00 |
$762,366 |
$2,287,100 |
|
TOTALS |
$2,813,597 |
$0 |
$1,377,503 |
$4,191,100 |
||
It should be noted that the construction phase of each project is dependent on securing the CSRFF grant (or other external grant funds to at least the equivalent value), and/or funding being identified as a result of the Long Term Financial Plan review.
Voting Requirements
Simple Majority
That Council:-
1. SUBMITS the following Community Sport and Recreation Facilities Fund applications to the Department of Local Government, Sport and Cultural Industries for the 2020/21 funding round with the following assessment, project rating and prioritisation, noting a total grant amount sought of $1,377,503:
|
Project |
Assessment |
Project Rating |
Priority |
|
PR-2792 Dalvik Park, New Sports Amenities Building |
Satisfactory |
Well planned and needed by the municipality |
1 |
|
PR-4271 Splendid Park New Cycling Facility |
Satisfactory |
Well planned and needed by the municipality |
2 |
|
PR-4213 Ferrara Park Sports Floodlighting Installation |
Satisfactory |
Well planned and needed by the municipality |
3 |
2. NOTES that the construction phase of each project is dependent on the successful outcome of the Community Sport and Recreation Facility Fund applications for the 2021/22 funding round (or securing other external funding at least to the equivalent value) and/or funding being identified as a result of the review of the Long Term Financial Plan, with a further report to be presented to Council in March 2021 advising the outcomes of all applications.
Attachments:
|
1⇩. |
Attachment 1 - Active Reserves Master Plan Report Ferrara Park |
20/325962 |
|
|
2⇩. |
Attachment 2 - Usage hours Winter and Summer - South Ward Active Reserves |
20/325968 |
|
|
3⇩. |
Attachment 3 - Usage hours Winter and Summer - North Ward Active Reserves |
20/326246 |
|
|
4⇩. |
Attachment 4 - Dalvik Park - Concept and Site Plan |
19/256444 |
|
|
5⇩. |
Attachment 5 - Splendid Park Cycling Facility - Concept Design - Option 1 |
20/139513 |
|
CITY OF WANNEROO Agenda OF Elected Members' Briefing Session 18 August, 2020 342
Corporate Strategy & Performance
File Ref: 30724V05 – 20/280073
Responsible Officer: Director Corporate Strategy & Performance
Disclosure of Interest: Nil
Attachments: 6
Issue
To consider the Financial Activity Statement for the period ended 30 June 2020.
Background
In accordance with Local Government (Financial Management) Regulations 1996, the Financial Activity Statement has been prepared in compliance with the following:
“Regulation 34(1) of the Local Government (Financial Management) Regulations 1996, which requires a local government to prepare a statement of financial activity each month, presented according to nature and type, by program, or by business unit. For the 2019/20 financial year the statement of financial activity will be presented by nature and type.
Regulation 34(5) of the Local Government (Financial Management) Regulations 1996, which requires a local government to adopt a percentage or value, calculated in accordance with Australian Accounting Standards, to be used in statements of financial activity for reporting material variances. For the 2019/20 financial year 10% and a value greater than $100,000 will be used for the reporting of variances.”
Detail
Financial Activity for the period ended 30 June 2020
Council adopted the Annual Budget for the 2019-20 financial year on 28 June 2019 (SCS01-06/19). The Mid-Year Review (MYR) was conducted in January and adopted by Council on 10 February 2020 (SC01-02/20). The figures in this report are compared to the MYR Revised Budget.
The budget changes proposed in the Financial Activity Statement for the period ended 31 May 2020 have been included in the June 2020 Statement as the report was adopted on 30 June 2020.
The financial position reported as at 30 June 2020 is draft and subject to change with the end of the year adjustments.
Overall Comments Month-to-Date
Results from Operations
The Financial Activity Statement report for the month of June 2020 shows an overall unfavourable variance from Operations before Non-Operating Revenue and Expenses of $6.2m.
The unfavourable variance is due to receipt of 2020/21 Federal Assistance Grants in May 2020; lower user or entry fee and facility booking fees income as a result of lower patronage at the City’s Recreational facilities, increased expenses for Materials & Contracts due to Wangara Site Rehabilitation Provision and State Library publication book expense and higher Depreciation expense.

Capital Program
During June 2020, $13.4m was spent on various capital projects of which $10.5m was spent on roads and sport facilities (Refer to Attachment 3 for more details).

Overall Comments on Year-to-Date (YTD) Figures
Results from Operations
The Financial Activity Statement report for the year-to-date of June 2020 shows an overall unfavourable variance from Operations before Non-Operating Revenue and Expenses of $1.7m.
The unfavourable variance is due to lower income from Fees and Charges, Rates and Other Revenue and increase in Depreciation charge and Interest Expense, partially offset by lower Utility Charges, Employee Costs and Insurance Expenses.

Capital Program
At the end of June 2020, $78.2m was expended on various capital projects of which $56.5m was spent on roads and sport facilities (Refer Attachment 4 – Top Projects 2019-20 for more details).

Investment Portfolio Performance

Detailed Analysis of Statement of Comprehensive Income (Attachment 1)
Comments relating to the Statement of Comprehensive Income are provided under the following two sections:
a) Current month comparison of Actuals to Budgets; and
b) Year to date of Actuals to Budgets;
where the variance is higher than reporting threshold or item of interest to Council.

Revenues
Note 1 Rates
Month to Date - (Actual -$745, Revised Budget $0)
The variance is unfavourable by $745 due to adjustment processed for residential Interim Rates.
Year to Date - (Actual $134.2m, Revised Budget $134.6m)
The unfavourable variance of $394k is mainly due to lower Interim Rates than anticipated.
Note 2 Operating Grants, Subsidies & Contributions
Month to Date - (Actual $2.0m, Revised Budget $4.2m)
The variance is unfavourable by $2.3m mainly relates to 2020/21 Federal Assistance Grants received in May to assist Local Governments stimulate economic activity.
Year to Date - (Actual $13.3m, Revised Budget $11.7m)
The variance is favourable by $1.6m is due to early receipt of 2020/21 State Library Books Donations.
Note 3 Fees and Charges
Month to Date - (Actual $916k, Revised Budget $1.4m)
As a response plan to minimising the spread of COVID-19 within the community, many City of Wanneroo services, programs and facilities have been temporarily closed, modified or suspended. The closure of Wanneroo Aquamotion, Kingsway Indoor Stadium, Libraries, Hall hire and other facilities effective from 23rd of March 2020 resulted in unfavourable variance by $449k related to lower user or entry fee and facility booking fees income.

Year to Date - (Actual $44.5m, Revised Budget $46.6m)
The variance is unfavourable by $2.1m mainly due to the reason noted above.
Note 4 Interest Earnings
Month to Date - (Actual $393k, Revised Budget $283k)
The variance is favourable by $110k relates to increase in interest in non-payment penalty and in interest income from reserves.

Year to Date - (Actual $7.9m, Revised Budget $7.6m)
The variance is favourable by $297k but within the reporting threshold.
Note 5 Other Revenue
Month to Date - (Actual $80k, Revised Budget $54k)
The variance is favourable by $26k is due to higher fuel tax credits.

Year to Date - (Actual $558k, Revised Budget $775k)
The variance is unfavourable due to delay in receiving insurance reimbursement of $250k from Local Government Insurance Scheme (LGIS).
Expenses
Note 6 Employee Costs
Month to Date - (Actual $6.4m, Revised Budget $6.1m)
The variance is unfavourable by $256k but within the reporting threshold.

Year to Date - (Actual $75.4m, Revised Budget $75.9m)
The variance is favourable by $469k but within the reporting threshold.
Note 7 Materials and Contracts
Month to Date - (Actual $12.2m, Revised Budget $9.1m)
The variance is unfavourable by $3.1m mainly relates to:
· Wangara Site Rehabilitation Provision of $2.2m;
· State Library publication book expense of $1.4m; and offset by
· Lower consulting fees of $428k; and
· Lower sponsorship expense of $140k.

Year to Date - (Actual $69.1m, Revised Budget $69.1m)
The variance is favourable by $421k but within the reporting threshold.
Note 8 Utility Charges
Month to Date - (Actual $712k, Revised Budget $908k)
The variance is favourable by $196k due to lower electricity usage.

Year to Date - (Actual $9.1m, Revised Budget $9.6m)
The variance is favourable by $512k mainly coming from lower electricity usage as some of the City’s Recreational facilities have been in partial shutdown as a result of the COVID-19 pandemic measures.
Note 9 Depreciation
Month to Date - (Actual $3.7m, Revised Budget $3.4m)
The variance is unfavourable by $320k mainly due to depreciation on new assets acquired during the period and Plant & Equipment revaluation at the end of financial year 2018/19, which had not been considered in calculating the deprecation budget for the 2019/20.

Year to Date - (Actual $43.2m, Revised Budget $40.9m)
The variance is unfavourable by $2.2m mainly due to the reasons noted above.
Note 10 Interest Expense
Month to Date - (Actual $452k, Revised Budget $262k)
The unfavourable variance of $191k mainly attributable to a provision for Splendid Park Council Rates and various capital works loan interest repayments.

Year to Date - (Actual $4.2m, Revised Budget $4.1m)
The unfavourable variance of $118k is mainly due to the reasons noted above.
Note 11 Insurance
Month to Date - (Actual $93k, Revised Budget $127k)
The favourable variance of $33k reflects improved claims experience.

Year to Date - (Actual $1.2m, Revised Budget $1.5m)
The favourable variance of $363k reflects improved claims experience.
Non Operating Revenue & Expenses
Note 12 Non Operating Grants, Subsidies & Contributions
Month to Date – (Actual $2.0m, Revised Budget $23.4m)
The variance is unfavourable by $21.4m predominantly due to:
· delay in income recognition of grants previously received for Marmion Avenue dual carriageway of $13.6m, Connolly Drive dual carriageway of $700k, and Bellhaven sports amenities building of $600k;
· delay in income recognition of grant previously received for Halesworth park due to delays in project commencement of $620k;
· delay in grant receival for Halesworth park due to de delays in project commencement of $500k;
· delay in grant receival for Pinjar Road duplication due to de delays in project acquittal of $730k;
· State Government Grant for Splendid Park of $450k received in August 2019, but budgeted in June 2020; and
· income recognition of restricted cash and delays in project acquittal in various project of $4.2m.
Year to Date – (Actual $19.2m, Revised Budget $37.7m)
The unfavourable variance of $18.4m year to date reflects the delay in income recognition as noted above.
Note 13 Contributed Physical Assets
Month to Date – (Actual $4.0m, Revised Budget $1.4m)
The variance is favourable by $2.7m due to higher than anticipated level of asset handover from developers. The actual asset recognition is recorded as and when assets are handed over to the City.
Year to Date – (Actual $12.5m, Revised Budget $16.3m)
The unfavourable variance of $3.8m is due to lower than anticipated level of asset handover from developers. As noted in the comment above, the actual asset recognition is recorded as and when assets are handed over to the City.
Note 12 Profit / Loss on Asset Disposals
Month to Date – (Combined Actual -$16.5k, Combined Revised Budget $14.6k)
The unfavourable variance is a result of lower proceeds relating to Tamala Park Regional Council (TPRC) than anticipated.
Year to Date – (Combined Actual $520k, Combined Revised Budget -$13.4m)
The variance is favourable by $13.9m mainly due to delay in land disposal in relation to Main Roads WA taking over ownership of Ocean Reef Road and Gnangara Road.
Note 13 Town Planning Scheme (TPS) Revenues
Month to Date – (Actual $639k, Revised Budget $2.2m)
The unfavourable variance of $1.5m is due to decreased income of $1.4m for headworks levy and lower than anticipated interest income of $78k for Town Planning Scheme (TPS).
Year to Date – (Actual $9.8m, Revised Budget $11.9m)
The unfavourable variance of $2.1m relates to delay in receipt of headworks levy year to date for Cell 4, 8, 9 of $1.7m and $352k for associated interest income from TPSs.
Note 14 Town Planning Scheme (TPS) Expenses
Month to Date – (Actual $6.7m, Revised Budget $2.8m)
The variance is unfavourable by $3.9m is due to provision of $4.5m for Cell 9 for potential excess return to previous subdividers at a full development and offset by lower contract expense of $734k for Cell 9 of $134k and Woodvale Structure Plan of $600k.
Year to Date – (Actual $11.6m, Revised Budget $10.7m)
The unfavourable result of $878k is due to provision of $4.5m for Cell 9 for potential excess return to previous subdividers at a full development, and offset by lower contract expenses of $2.9m, lower salary recovery and interest expense of $613k.
Statement of Financial Position (Attachment 2)

Note 1 - Net Current Assets
When compared to the opening position at 30 June 2019 Net Current Assets have decreased by $31.7m, which is predominately due to the impact of 2019/20 Rates and Waste Service Fees levied offset by increase in Payables and Interest Bearing Liabilities.
Within the Current Assets, Current Receivables of $18.7m are mainly comprised of collectable Rates and Waste Service Fees debtors of $10.2m and Emergency Services Levy of $931k, with the remaining balance attributed to General Debtors of $7.5m.
Note - Non-Current Assets
Non-Current Assets as at 30 June 2020 have increased by $44.7m from 30 June 2019 Actuals. The movement is due to increase in Work in Progress and Asset Acquisition of $25.6m partially offset by accumulated depreciation of $43.1m.
Note 3 - Non-Current Liabilities
Non-Current Liabilities as at 30 June 2020 have increased by $14.5m due to change in the Australian Accounting Standards Board (AASB) Standard 15 for Revenue from Contracts. The revised AASB 15 requires the City to recognise Grants and Contributions as liability when performance obligations have not yet been met.
The existing loan with the Western Australia Treasury Corporation remains unchanged making up 78% of total Non-Current Liabilities.
Financial Performance Indicators
The ratios as at 30 June 2020 will be published as part of the 2019/20 Statutory Financial Statements.
Capital Works Program
The status of the Capital Works Program is summarised by Sub-Program in the table below:

During June 2020, $13.4m was spent. Details of significant expenditure for the month are included in Attachment 3. As at 30 June 2020, the City has spent $78.2m, which represents 86.7% of the $90.1m Capital Works Budget.
The City actual spend of $78,226,802 represents 86.7% of the 2019/20 management budget.

To further expand on the Capital Works Program information above, updates in key capital projects are selected to be specifically reported on, is provided in the Top Capital Projects attachment to this report (Attachment 4).
Capital Changes
The following change is proposed to be made to the 2019/20 Capital Works budget.
PR-3098 Hepburn Ave/Highclere Blvd, Upgrade Intersection – Additional grant funds of $75,000 have been received from the State Government to assist with the completion of the project.
Investment Portfolio (Attachment 5)
In accordance with the Local Government (Financial Management) Regulations 1996 (and per the City’s Investment Policy), the City invests solely in Authorised Deposit taking Institutions (ADI’s):

At the end of June 2020, the City held an investment portfolio (cash & cash equivalents) of $371m (Face Value), equating to $373.9m inclusive of accrued interest. The City’s year to date investment portfolio return has exceeded the UBS Australia Bank Bill rate index benchmark by 0.57% pa (1.42% pa vs. 0.85% pa), however it is noted that Interest Earnings were budgeted at a 2.25% yield.
As global equities tumble and markets contemplate the economic impact of the COVID-19, markets have begun ramping up rate cut expectations across all major economies. This is affecting the City’s ability to attract higher interest rates from ADI’s.
Rate Setting Statement (Attachment 6)
The Rate Setting Statement represents a composite view of the finances of the City, identifying the movement in the Surplus/ (Deficit) based on the Revenues (excluding Rates), Expenses, Capital Works and Funding Movements, resulting in the Rating Income required. It is noted that the closing Surplus/ (Deficit) will balance to the reconciliation of Net Current Assets Surplus/ (Deficit) Carried Forward (detailed below):

*The change in the AASB Standard 15 has resulted in the City now recognising Grants and Contributions received as a liability when performance obligations have not yet been met.
Consultation
This document has been prepared in consultation with Responsible Officers for review and analysis.
Comment
In reference to Statement of Comprehensive Income in the report, the following colours have been used to categorise three levels of variance:
Revenues:
· Green > 0%;
· Amber -0% to -10%; and
· Red < -10%.
Expenses:
· Green > 0%;
· Amber -0% to -10%; and
· Red < -10%.
Statutory Compliance
This monthly financial report complies with Section 6.4 of the Act and Regulations 33A and 34 (5) of the Local Government (Financial Management) Regulations 1996.
Strategic Implications
The proposal aligns with the following objective within the Strategic Community Plan 2017 – 2027:
“4 Civic Leadership
4.2 Good Governance
4.2.2 Provide responsible resource and planning management which recognises our significant future growth”
Risk Management Considerations
|
Risk Title |
Risk Rating |
|
CO-017 Financial Management |
Moderate |
|
Accountability |
Action Planning Option |
|
Director Corporate Strategy and Performance |
Manage |
The above risk relating to the issue contained within this report has been identified and considered within the City’s corporate risk register. Action plans have been developed to manage this risk to support existing management systems.
Policy Implications
· Accounting Policy;
· Investment Policy;
· Reserves Policy; and
· Strategic Budget Policy.
Financial Implications
As outlined in the report and detailed in Attachments 1 to 6.
Voting Requirements
Absolute Majority
That Council:
1. RECEIVES the Financial Activity Statement and commentaries on variances year to date Budget for the period ended 30 June 2020 consisting of:
a) June 2020 year to date Financial Activity Statement;
b) June 2020 year to date Net Current Assets Position; and
c) June 2020 year to date Material Financial Variance Notes.
2. APPROVES BY ABSOLUTE MAJORITY the following change to the 2019/20 Capital Work Budget:
|
Number |
From |
To |
Amount |
Description |
|
PR-3098 |
State Government Main Roads |
Hepburn Ave/Highclere Blvd, Upgrade Intersection |
$75,000 |
Additional grant funds of $75,000 have been received from the State Government to assist with the completion of the project. |
3.
Attachments:
|
1⇩. |
Attachment 1 - Statement of Comprehensive Income June 2020 |
20/332469 |
Minuted |
|
2⇩. |
Attachment 2 - Statement of Financial Position June 2020 |
20/332471 |
Minuted |
|
3⇩. |
Attachment 3 - Significant Capital Expenditure June 2020 |
20/332476 |
Minuted |
|
4⇩. |
Attachment 4 - Top Projects 2019-20 June 2020 |
16/151914[v52] |
Minuted |
|
5⇩. |
Attachment 5 - Investment Report June 2020 |
20/332481 |
Minuted |
|
6⇩. |
Attachment 6 - Rate Setting Statement June 2020 |
20/332484 |
Minuted |
CITY OF WANNEROO Agenda OF Elected Members' Briefing Session 18 August, 2020 362
File Ref: 37350 – 20/316495
Responsible Officer: Director Corporate Strategy & Performance
Disclosure of Interest: Nil
Attachments: Nil
Issue
To consider a petition received on 18 June 2020 objecting to a rate increase (PT01-06/20).
Background
At its meeting held 30 June 2020, Council received a petition from the petition organiser Ms Michelle Macintyre of Butler, Western Australia.
Detail
In accordance with the Local Government Act 1995 Section 6.36, the City gave local public notice of its intention to impose the Differential Rates Rate-in-the-dollar (RID) and Minimum Rates on 28 May 2020. The City also advised media outlets and published the notice on its website. The notice included that the City proposed to deliver an overall average Rates Revenue increase of 0% in line with the Council Resolution on 7 April 2020.
In response to the public notice the City received a Petition hosted through the website, “Change.Org”, submitted by Michelle McIntyre. The online petition was signed electronically by 1,893 people, with 406 signatories identified as City of Wanneroo residents. The purpose of the petition title on its cover page was “Stop the Rate increase for ALL ratepayers.” The petition actually asked for the Council to consider – “To stop the proposed differential rates and give 0% increase as promised on 7th April 2020.”
In accordance with the City's Management of Petitions Procedure, the Petition, PT01-06/20 (detailed below) was presented at the next available Ordinary Council meeting held on the 30 June 2020 and forwarded to the relevant Director to provide a response.
Consultation
The 2020/21 Annual Budget was prepared based on extensive consultation with Council Members (seven meetings), the Executive Leadership Team and Service Unit Managers through scheduled Workshops. Feedback was also received from the community through submissions from the advertising of differential RID and local businesses were surveyed by the Economic Development and Advocacy Team.
The budget also includes capital projects which have been developed through consultation processes with the community.
Comment
The amount of revenue required from Rates depends on the planned service levels and capital works based on community needs within the City and amount of income that can be generated from other income sources such as Fees & Charges, Grants and Interest Income and so forth.
Landgate provides triennial Gross Rental Values (GRV) of all properties within the Perth metropolitan area. The City received the latest GRV revaluation for all properties in the Perth metropolitan area in late April 2020 and this is based at the Date of Valuation being 1 August 2018 and which comes into force on 1 July 2020.
The City derives respective Rate-in-the-Dollar (RID) for each rating category by dividing the amount of rates revenue required by the total GRV applicable for the relevant differential rating category.
The Local Government Act 1995 permits a local government to change RID to balance changes in the GRV such that there can be consistency in the revenue generation. Due to the valuations generally decreasing this year, the proposed RID has increased, but only to the extent that there is an overall 0% rate increase on existing properties.
Given the applicable valuations are different on individual properties, the City has introduced one off COVID-19 concession that will ensure 99.25% of Residential Improved GRV ratepayer category will pay the same or less rates than in 2019/20. Equally, the City values the contribution made by its business community and the financial pressures they are facing, and the City has introduced a COVID-19 concession for Commercial/Industrial ratepayer category ensuring that 95% will pay the same or less rates than in 2019/20. The budget also includes $0.5m for the community members facing financial hardship due to the impact of COVID-19.
The Rates amount per property is calculated by multiplying the RID by the GRV applicable for that individual property.
The below diagram published by Western Australian Local Government Association (WALGA) depicts aforementioned local governments rates calculation process in more simplified manner and further information on this process can be found at https://walga.asn.au/About-Local-Government/Rates

It is assumed that the petition was asking for the proposed RID to be stopped. This option would have meant keeping the previous RID which would have resulted in a significant reduction in revenue which would have in turn significantly affected services to the Community.
As requested in the Petition, the City has achieved overall 0% rates increase for existing properties.
Statutory Compliance
· The Local Government Act 1995 sections relating to Annual Budget, Integrated Planning and Reporting Framework and Local Government (Financial Management) Regulations 1996 have been utilised to develop the Budget;
· The Local Government (COVID-19 Response) Ministerial Order 2020, gazetted on 8 May 2020 on matters relating to rating and budget decisions, including the adoption of the adoption of penalty interest rates for over-due debts. In addition, considerations for a future review to be taken into account for impacts on previous adopted priorities arising from the Community Strategic Plan and Corporate Business Plan (Plan for the Future) in accordance with Administrative Regulations Part 5, Division 3; and
· The specific section of the Local Government Act 1995 of note against which the Rates Relief Concessions have been applied is:
“Section 6.47 - Concessions
Subject to the Rates and Charges (Rebates and Deferments) Act 1992, a local government may at the time of imposing a rate or service charge or at a later date resolve to waive* a rate or service charge or resolve to grant other concessions in relation to a rate or service charge.”
Strategic Implications
The proposal aligns with the following objective within the Strategic Community Plan 2017 – 2027:
“4 Civic Leadership
4.2 Good Governance
4.2.2 Provide responsible resource and planning management which recognises our significant future growth”
Risk Management Considerations
|
Risk Title |
Risk Rating |
|
CO-017 – Financial Management |
Moderate |
|
Accountability |
Action Planning Option |
|
Director Corporate Strategy and Performance |
Manage |
|
|
|
|
Risk Title |
Risk Rating |
|
ST-G09 Long Term Financial Planning |
Moderate |
|
Accountability |
Action Planning Option |
|
Director Corporate Strategy and Performance |
Manage |
|
Risk Title |
Risk Rating |
|
ST-S24 Strategic Asset Management |
Moderate |
|
Accountability |
Action Planning Option |
|
Director Assets |
Manage |
The above risk relating to the issue contained within this report has been identified and considered within the City’s Strategic and Corporate risk register. Action plans have been developed to manage this risk to support existing management systems.
Policy Implications
Rate setting is an integrated process of the City’s Annual Budgeting process which has been developed in accordance with the Strategic Budget Policy, Accounting Policy, Financial Cash Backed Reserves Policy and Financial Hardship – Collection of Rates and Service Charges Policy.
Financial Implications
The Rate Setting Statement reflected a deficit of $2.8m with maintaining rates as low as possible due to the impact of COVID-19 on the community. The City is undertaking a review of its service levels and any efficiency gains will be applied against the budget deficit to ensure the City is running in a financially responsible manner.
Voting Requirements
Simple Majority
That Council:
1. NOTES the Petition PT01-06/20 received at the 30 June 2020 Ordinary Council Meeting;
2. ACKNOWLEDGES the response to the Petition provided in this report;
3. AUTHORISES the Director Corporate Strategy and Performance to advise the petition organiser of the details in this report.
CITY OF WANNEROO Agenda OF Elected Members' Briefing Session 18 August, 2020 391
Transactional Finance
File Ref: 1859V02 – 20/331866
Responsible Officer: Director Corporate Strategy & Performance
Disclosure of Interest: Nil
Attachments: Nil
Issue
Presentation to the Council of a list of accounts paid for the month of July 2020, including a statement as to the total amounts outstanding at the end of the month.
Background
Local Governments are required each month to prepare a list of accounts paid for that month and submit the list to the next Ordinary Meeting of the Council.
In addition, it must record all other outstanding accounts and include that amount with the list to be presented. The list of accounts paid and the total of outstanding accounts must be recorded in the minutes of the Council meeting.
Detail
The following is the Summary of Accounts paid in July 2020:
|
Funds |
Vouchers |
Amount |
|
Director Corporate Services Advance A/C Accounts Paid – July 2020 Cheque Numbers EFT Document Numbers TOTAL ACCOUNTS PAID
Less Cancelled Cheques Manual Journal Interim Recoup Variance – June 2020 Town Planning Scheme RECOUP FROM MUNICIPAL FUND |
119766 - 119884 3877 - 3902 |
$607,802.64 $19,211,798.83 $19,819,601.47
($2,111.35) $108,064.93 (2,495,844.00) ($1,568,243.22) ($15,861,467.83) |
|
Municipal Fund – Bank A/C Accounts Paid – July 2020 Recoup to Director Corporate Services Advance A/C Payroll – Direct Debits TOTAL ACCOUNTS PAID |
|
$15,861,467.83 $3,529,421.99 $19,390,889.82 |
|
Town Planning Scheme Accounts Paid – July 2020 Cell 1 Cell 2 Cell 3 Cell 4 Cell 5 Cell 6 Cell 7 Cell 8 Cell 9 TOTAL ACCOUNTS PAID |
|
$1,531,079.11 $382.20 $382.20 $24,138.20 $3,424.35 $382.20 $382.20 $6,700.56 $1,372.20 $1,568,243.22 |
At the close of July 2020 outstanding creditors amounted to $187,316.40.
Consultation
Nil
Comment
The list of payment (cheques and electronic transfers) and the end of month total of outstanding creditors for the month of July 2020 is presented to the Council for information and recording in the minutes of the meeting, as required by the Local Government (Financial Management) Regulations 1996.
Statutory Compliance
Regulation 13(1) of the Local Government (Financial Management) Regulations 1996 requires a local government to list the accounts paid each month and total all outstanding creditors at the month end and present such information to the Council at its next Ordinary Meeting after each preparation. A further requirement of this Section is that the prepared list must be recorded in the minutes of the Council meeting.
Strategic Implications
The proposal aligns with the following objective within the Strategic Community Plan 2017 – 2027:
“4 Civic Leadership
4.3 Progressive Organisation
4.3.2 Ensure excellence in our customer service”
Risk Management Considerations
There are no existing Strategic or Corporate risks within the City's existing risk registers which relate to the issues contained in this report.
Policy Implications
Nil
Financial Implications
Nil
Voting Requirements
Simple Majority
That Council RECEIVES the list of payments drawn for the month of July 2020, as summarised below:-
|
Funds |
Vouchers |
Amount |
|
Director Corporate Services Advance A/C Accounts Paid – July 2020 Cheque Numbers EFT Document Numbers TOTAL ACCOUNTS PAID
Less Cancelled Cheques Manual Journal Interim Recoup Variance – June 2020 Town Planning Scheme RECOUP FROM MUNICIPAL FUND |
119766 - 119884 3877 - 3902 |
$607,802.64 $19,211,798.83 $19,819,601.47
($2,111.35) $108,064.93 (2,495,844.00) ($1,568,243.22) ($15,861,467.83) |
|
Municipal Fund – Bank A/C Accounts Paid – July 2020 Recoup to Director Corporate Services Advance A/C Payroll – Direct Debits TOTAL ACCOUNTS PAID |
|
$15,861,467.83 $3,529,421.99 $19,390,889.82 |
|
Town Planning Scheme Accounts Paid – July 2020 Cell 1 Cell 2 Cell 3 Cell 4 Cell 5 Cell 6 Cell 7 Cell 8 Cell 9 TOTAL ACCOUNTS PAID |
|
$1,531,079.11 $382.20 $382.20 $24,138.20 $3,424.35 $382.20 $382.20 $6,700.56 $1,372.20 $1,568,243.22 |
|
WARRANT OF PAYMENTS JULY 2020 |
|||
|
|
|
|
|
|
PAYMENT |
DATE |
DESCRIPTION |
AMOUNT |
|
00119767 |
30/06/2020 |
Cancelled - Print Error |
|
|
00119768 |
30/06/2020 |
Cancelled - Print Error |
|
|
00119769 |
30/06/2020 |
Cancelled - Print Error |
|
|
00119770 |
30/06/2020 |
Cancelled - Print Error |
|
|
00119771 |
01/07/2020 |
Kleenheat Gas Pty Ltd |
$9,341.08 |
|
|
|
Gas Supplies For The City |
|
|
00119772 |
01/07/2020 |
The Trustee for Hayto Trust |
$1,683.00 |
|
|
|
Filming And Post Production - Volunteer Vibe - Community Development |
|
|
00119773 |
01/07/2020 |
Cathara Consulting Pty Ltd |
$1,949.07 |
|
|
|
Casual Labour For The City |
|
|
00119774 |
01/07/2020 |
Pavement Management Services |
$32,120.00 |
|
|
|
Road Asset Data Capturing And Condition Survey - Assets |
|
|
00119775 |
01/07/2020 |
First Class Constructions (WA) |
$29,558.65 |
|
|
|
Park Seat Replacement - Various Locations - Assets |
|
|
00119776 |
01/07/2020 |
Museum Petty Cash |
|
|
|
|
Accounted For Against cheque 00119766 June Warrant of Payments $96.95 |
|
|
00119777 |
01/07/2020 |
Credentia Construction |
$2,000.00 |
|
|
|
Refund - Street & Verge Bond |
|
|
00119778 |
01/07/2020 |
Stockland WA Development Pty Limited |
$10,818.33 |
|
|
|
Synergy Costs - Lot 8022 Cinnabar Drive - Parks |
|
|
00119779 |
01/07/2020 |
Telstra |
$12,236.55 |
|
|
|
Phone/Internet Charges For The City |
|
|
00119780 |
30/06/2020 |
CCWA Pty Ltd |
$148.00 |
|
|
|
Refund - Development Application - Overpayment |
|
|
00119781 |
30/06/2020 |
Manoj Battan |
$163.00 |
|
|
|
Reimbursement - Glass Replacement - Mowing Incident - Parks |
|
|
00119782 |
30/06/2020 |
Carramar Golf Course |
$9,267.50 |
|
|
|
Refund - Lease Account - Overpayment |
|
|
00119783 |
30/06/2020 |
Bluesight Building |
$147.00 |
|
|
|
Refund - Development Application - Not Required |
|
|
00119784 |
30/06/2020 |
G Sharp-Bucknall |
$51.80 |
|
|
|
Refund - Copies Of Plans - Reissue Of Stale Cheque 00114897 |
|
|
00119785 |
30/06/2020 |
Belinda Seery |
$147.00 |
|
|
|
Refund - Development Application - Already Approved |
|
|
00119786 |
30/06/2020 |
David Sharp |
$2,000.00 |
|
|
|
Refund - Street & Verge Bond |
|
|
00119787 |
30/06/2020 |
Hamersley Rovers Soccer Club |
$84.00 |
|
|
|
Key Bond Refund |
|
|
00119788 |
30/06/2020 |
Rates Refund |
$2,149.62 |
|
00119789 |
30/06/2020 |
Buildinglines Approvals Pty Ltd |
$105.00 |
|
|
|
Refund - Occupancy Permit - Not Required |
|
|
00119790 |
30/06/2020 |
Justin Sinclair |
$30.00 |
|
|
|
Dog Registration Refund - Sterilised |
|
|
00119791 |
30/06/2020 |
Reality Enterprises Incorporated |
$4,928.00 |
|
|
|
Donation - Support Food Relief For Up To 6,000 People Per Month For A 6 Month Period During Covid-19 Response And Recovery Period |
|
|
00119792 |
07/07/2020 |
Cancelled |
|
|
00119793 |
07/07/2020 |
Keyuri Patel |
$15.00 |
|
|
|
Refund - Hip Hop Workshop - Cancelled |
|
|
00119794 |
07/07/2020 |
CCWA Pty Ltd |
$147.00 |
|
|
|
Refund - Development Application - Not Required |
|
|
00119795 |
07/07/2020 |
Edon25 Pty Ltd |
$295.00 |
|
|
|
Refund - Development Application - Insufficient Information |
|
|
00119796 |
07/07/2020 |
Natasha Moran |
$69.00 |
|
|
|
Refund - Copies Of Plans - Not Required |
|
|
00119797 |
07/07/2020 |
Annette Welsh |
$69.00 |
|
|
|
Refund - Copies Of Plans - Not Required |
|
|
00119798 |
07/07/2020 |
Mona Attia Omar |
$32.00 |
|
|
|
Refund - Copies Of Plans - Not Available |
|
|
00119799 |
07/07/2020 |
Rodney Wayne Norris |
$2,000.00 |
|
|
|
Refund – Street & Verge Bond |
|
|
00119800 |
07/07/2020 |
Telstra |
$50.87 |
|
|
|
Phone Charges - Girrawheen Hub |
|
|
00119801 |
07/07/2020 |
Clarkson Library Petty Cash |
$98.55 |
|
|
|
Petty Cash |
|
|
00119802 |
07/07/2020 |
Homestart |
$2,000.00 |
|
|
|
Refund - Street & Verge Bond |
|
|
00119803 |
07/07/2020 |
Encycle Consulting Pty Ltd |
$3,481.50 |
|
|
|
Consultancy Services - Waste |
|
|
00119804 |
07/07/2020 |
Rocorp Constructions |
$2,000.00 |
|
|
|
Refund – Street & Verge Bond |
|
|
00119805 |
07/07/2020 |
Alina Behan |
$13,320.00 |
|
|
|
Consulting Support - Preparation Of Specifications - Building Project Services - Assets |
|
|
00119806 |
07/07/2020 |
The Trustee for Hayto Trust |
$1,100.00 |
|
|
|
Volunteering Photoshoot - Community Services |
|
|
00119807 |
07/07/2020 |
Xylem Water Solutions Australia Limited |
$82,500.00 |
|
|
|
Material For The Design And Installation Of Auto Samplers - Yellagonga Wetlands - ICT |
|
|
00119808 |
07/07/2020 |
Cr F Cvitan |
$4,435.74 |
|
|
|
Monthly Allowance |
|
|
00119809 |
07/07/2020 |
Cr X Nguyen |
$2,596.56 |
|
|
|
Monthly Allowance |
|
|
00119810 |
14/07/2020 |
City of Wanneroo |
$1,500.00 |
|
|
|
Cash Advance - Employee Retirement Gift |
|
|
00119811 |
14/07/2020 |
Health Services Petty Cash |
$77.20 |
|
|
|
Petty Cash |
|
|
00119812 |
14/07/2020 |
Mr Joshua Miller |
$280.00 |
|
|
|
Reimbursement - Austswim Extension Course To Maintain Current Role |
|
|
00119813 |
14/07/2020 |
Telstra |
$28.99 |
|
|
|
Civic Centre Management System - ICT |
|
|
00119814 |
14/07/2020 |
Cathara Consulting Pty Ltd |
$1,852.82 |
|
|
|
Casual Labour For The City |
|
|
00119815 |
14/07/2020 |
Peet Alkimos Pty Ltd |
$90.53 |
|
|
|
Recharge Water Usage - Drinking Tap Topsail - Parks |
|
|
00119816 |
14/07/2020 |
Rates Refund |
$491.51 |
|
00119817 |
14/07/2020 |
Rainbow Community Services |
$4,872.00 |
|
|
|
Donation - Additional Costs Associated With Food Distribution Program For Vulnerable Residents During Covid-19 - Response & Recovery Period June To December 2020 |
|
|
00119818 |
14/07/2020 |
Brent James Evans |
$48.00 |
|
|
|
Refund - Swimming Lessons |
|
|
00119819 |
14/07/2020 |
Charlotte L Cleary |
$165.00 |
|
|
|
Refund - Swimming Lessons |
|
|
00119820 |
14/07/2020 |
Daniel Truslove |
$63.80 |
|
|
|
Refund - Swimming Lessons |
|
|
00119821 |
14/07/2020 |
Haylee Ann Gaff |
$140.00 |
|
|
|
Refund - Swimming Lessons |
|
|
00119822 |
14/07/2020 |
Heather Hughen |
$47.85 |
|
|
|
Refund - Swimming Lessons |
|
|
00119823 |
14/07/2020 |
Atlantis Beach Baptist College |
$237.60 |
|
|
|
Hire Fee Refund |
|
|
00119824 |
14/07/2020 |
Rates Refund |
$1,405.85 |
|
00119825 |
14/07/2020 |
Monty Shipman |
$835.97 |
|
|
|
Partial Refund - Fees Not Expended Processing Amendment No. 170 To District Planning Scheme No. 2 |
|
|
00119826 |
14/07/2020 |
Ritebuild Group |
$228.30 |
|
|
|
Refund - Building Approval Certificate Fee - No Delegation Determined |
|
|
00119827 |
14/07/2020 |
Berriman Resources P/L |
$330.00 |
|
|
|
Refund - Double Payment - Finance |
|
|
00119828 |
14/07/2020 |
Mr Adrian Andrews & Mrs Kim Andrews |
$550.00 |
|
|
|
Refund - Overpayment Of Invoice - Finance |
|
|
00119829 |
21/07/2020 |
Rates Refund |
$114.01 |
|
00119830 |
21/07/2020 |
Rates Refund |
$619.00 |
|
00119831 |
21/07/2020 |
Rates Refund |
$223.09 |
|
00119832 |
21/07/2020 |
Rates Refund |
$109.90 |
|
00119833 |
21/07/2020 |
Rates Refund |
$31.47 |
|
00119834 |
21/07/2020 |
Rates Refund |
$499.44 |
|
00119835 |
21/07/2020 |
Kerry Landlands |
$69.00 |
|
|
|
Refund - Copies Of Plans - Not Available |
|
|
00119836 |
21/07/2020 |
Ho Vu Duong |
$64.00 |
|
|
|
Refund - Copies Of Plans - Not Available |
|
|
00119837 |
21/07/2020 |
Joshua Bomford |
$166.65 |
|
|
|
Refund - Building Application - Rejected |
|
|
00119838 |
21/07/2020 |
Suzanne Clairs |
$61.65 |
|
|
|
Refund - Building Services Levy - Withdrawn |
|
|
00119839 |
21/07/2020 |
Marek Toczylowski |
$25.00 |
|
|
|
Refund - Art Award Entry - Cultural Development |
|
|
00119840 |
21/07/2020 |
Natasha Sharp |
$116.50 |
|
|
|
Refund - Term 3 Swimming Lessons - Aquamotion |
|
|
00119841 |
21/07/2020 |
Atlantis Beach Baptist College |
$350.00 |
|
|
|
Bond Refund |
|
|
00119842 |
21/07/2020 |
Vishal Jethwa |
$150.00 |
|
|
|
Bond Refund |
|
|
00119843 |
21/07/2020 |
Kaushikkumar Patel |
$540.00 |
|
|
|
Function Bond Refund |
|
|
00119844 |
21/07/2020 |
Ballajura Landsdale Cricket Club |
$150.00 |
|
|
|
Function Bond Refund |
|
|
00119845 |
21/07/2020 |
Calisthenics Association of Western Australia |
$57.00 |
|
|
|
Hire Fee Refund |
|
|
00119846 |
21/07/2020 |
Melissa Mauchien |
$499.00 |
|
|
|
Reimbursement - Replace Damaged Basketball Stand - Waste |
|
|
00119847 |
21/07/2020 |
Ashby Operations Centre Petty Cash |
$284.70 |
|
|
|
Petty Cash |
|
|
00119848 |
21/07/2020 |
Insurance Advisernet Australia Pty Ltd |
$698.50 |
|
|
|
Insurance - Hirers Of The WLCC Exhibition Spaces - Sculptures/Artwork Including |
|
|
00119849 |
21/07/2020 |
Telstra |
$2,470.87 |
|
|
|
Internet/Phone Charges For The City |
|
|
00119850 |
21/07/2020 |
Tydan Constructions Pty Ltd |
$2,000.00 |
|
|
|
Refund - Street & Verge Bond |
|
|
00119851 |
21/07/2020 |
Kleenheat Gas Pty Ltd |
$5.65 |
|
|
|
Gas Supplies For The City |
|
|
00119852 |
21/07/2020 |
Surfing Western Australia Surf School |
$2,200.00 |
|
|
|
Event Hosting Rights - 2020 Sunsmart WA Bodyboard Titles - Claytons Beach - Economic Development |
|
|
00119853 |
21/07/2020 |
The Honda Shop |
$33.50 |
|
|
|
Vehicle Spare Parts - Fleet |
|
|
00119854 |
21/07/2020 |
SMEC Australia Pty Limited |
$49,720.00 |
|
|
|
Gnangara Road Needs & Feasibility Study - Transport & Traffic |
|
|
00119855 |
21/07/2020 |
Get Home Safe Limited |
$408.13 |
|
|
|
Monthly Subscription - July 2020 - ICT |
|
|
00119856 |
21/07/2020 |
Working On Fire Australia |
$12,320.00 |
|
|
|
Burn - Burbanks & Susan Parks - Community Safety |
|
|
00119857 |
21/07/2020 |
DJ Riches & L Riches |
$1,000.00 |
|
|
|
Music Performance - Wandjoo Festival - Community Development |
|
|
00119858 |
21/07/2020 |
Haynes Australia Pty Ltd |
$2,200.00 |
|
|
|
Subscription 2020 / 2021 - Library Services |
|
|
00119859 |
21/07/2020 |
Alina Behan |
$3,060.00 |
|
|
|
Consultancy Services - Building Specification - Assets |
|
|
00119860 |
21/07/2020 |
Rebecca Anne Garlett |
$100.00 |
|
|
|
Storytime - Virtual Recording - Wanneroo Library |
|
|
00119861 |
21/07/2020 |
Cook Islands (WA) Incorporated |
$2,500.00 |
|
|
|
Tua Tokerau Cultural Performance - Wanneroo Festival - Events |
|
|
00119862 |
21/07/2020 |
Oracle Corporation Australia Pty Ltd |
$83.70 |
|
|
|
Integration Cloud Service & Cloud Infrastructure - ICT |
|
|
00119863 |
21/07/2020 |
DigiPed Pty Ltd |
$1,144.00 |
|
|
|
Training - Records Awareness 30.06.2020 - Cultural Services |
|
|
00119864 |
28/07/2020 |
Rates Refund |
$684.21 |
|
00119865 |
28/07/2020 |
Caroline Chadd |
$259.25 |
|
|
|
Refund - Balance Of Gift Card - Unable To Attend |
|
|
00119866 |
28/07/2020 |
Rates Refund |
$494.00 |
|
00119867 |
28/07/2020 |
Yoga with Audrey Jane |
$12.80 |
|
|
|
Hire Fee Refund |
|
|
00119868 |
28/07/2020 |
Rates Refund |
$100.00 |
|
00119869 |
28/07/2020 |
Pushpa Raghwani |
$350.00 |
|
|
|
Bond Refund |
|
|
00119870 |
28/07/2020 |
Carine Primary School |
$350.00 |
|
|
|
Bond Refund |
|
|
00119871 |
28/07/2020 |
Megan Emily Waters |
$850.00 |
|
|
|
Bond Refund |
|
|
00119872 |
28/07/2020 |
Andrew McKenzie |
$100.00 |
|
|
|
Bond Refund |
|
|
00119873 |
28/07/2020 |
Jon Blanksby |
$850.00 |
|
|
|
Bond Refund |
|
|
00119874 |
28/07/2020 |
Bavani Bala Subarammany |
$63.80 |
|
|
|
Refund - Swimming Lessons - Cancelled |
|
|
00119875 |
28/07/2020 |
Rates Refund |
$768.42 |
|
00119876 |
28/07/2020 |
Goodstart WA |
$240.00 |
|
|
|
Hire Fee Refund |
|
|
00119877 |
28/07/2020 |
City of Wanneroo |
$1,260.00 |
|
|
|
Cash Advance - Employee Retirement Gift |
|
|
00119878 |
28/07/2020 |
Encycle Consulting Pty Ltd |
$7,480.00 |
|
|
|
Consultancy Services - Matrix & Report, Approvals Review - Waste |
|
|
00119879 |
28/07/2020 |
Telstra |
$10,673.22 |
|
|
|
Phone Charges For The City |
|
|
00119880 |
28/07/2020 |
City of Whittlesea |
$22,000.00 |
|
|
|
NGAA Membership 2020 / 2021 - Economic Development |
|
|
00119881 |
28/07/2020 |
EBSCO International Incorporated |
$16,344.05 |
|
|
|
Periodicals - 2020 / 2021 - Library Services |
|
|
00119882 |
28/07/2020 |
Suez Recycling & Recovery Pty Ltd |
$205,284.42 |
|
|
|
Process Recyclables - Waste |
|
|
00119883 |
28/07/2020 |
Third Light Limited |
$9,080.47 |
|
|
|
Third Light
Chorus |
|
|
00119884 |
28/07/2020 |
Western Australian Genealogical Society Incorporated |
$100.00 |
|
|
|
Annual Subscription - Cultural Development |
|
|
|
|
|
|
|
|
|
Total Director Corporate Services Advance - Cheques |
$607,802.64 |
|
|
|
|
|
|
ELECTRONIC FUNDS TRANSFER |
|||
|
00003877 |
01/07/2020 |
|
|
|
|
|
Synergy |
$9,670.25 |
|
|
|
Power Supplies For The City |
|
|
|
|
|
|
|
00003878 |
01/07/2020 |
|
|
|
|
|
Alinta Gas |
$848.70 |
|
|
|
Gas Supplies For The City |
|
|
|
|
Australian Library & Information Association |
$2,060.00 |
|
|
|
Annual Membership - Library Services |
|
|
|
|
Australian Manufacturing Workers Union |
$83.40 |
|
|
|
Payroll Deductions |
|
|
|
|
Australian Services Union |
$697.30 |
|
|
|
Payroll Deductions |
|
|
|
|
Australian Taxation Office |
$19,558.00 |
|
|
|
Payroll Deductions |
|
|
|
|
BGC Residential Pty Ltd |
$6,000.00 |
|
|
|
Refund - 3 Street & Verge Bonds |
|
|
|
|
Celebration Homes Pty Ltd |
$4,000.00 |
|
|
|
Refund - 2 Street & Verge Bonds |
|
|
|
|
CFMEU |
$60.00 |
|
|
|
Payroll Deductions |
|
|
|
|
Child Support Agency |
$1,847.57 |
|
|
|
Payroll Deductions |
|
|
|
|
City of Wanneroo - Payroll Rates |
$6,004.00 |
|
|
|
Payroll Deductions |
|
|
|
|
City of Wanneroo - Social Club |
$716.00 |
|
|
|
Payroll Deductions |
|
|
|
|
Distinct Living Pty Ltd |
$2,000.00 |
|
|
|
Refund - Street & Verge Bond |
|
|
|
|
Essential First Choice Homes Pty Ltd |
$4,000.00 |
|
|
|
Refund - 2 Street & Verge Bonds |
|
|
|
|
Fleet Network |
$1,617.90 |
|
|
|
Input Tax Credits For Salary Packaging For 23 June 2020 |
|
|
|
|
Payroll Deductions |
|
|
|
|
GKR Karate WA Incorporated |
$286.65 |
|
|
|
Hire Fee Refund - Pearsall Hocking Community Centre |
|
|
|
|
HBF Health Limited |
$622.90 |
|
|
|
Payroll Deductions |
|
|
|
|
Landgate |
$3,070.85 |
|
|
|
Unimproved Valuations Chargeables - Rating Services |
|
|
|
|
Swimming Pool Detection - Compliance |
|
|
|
|
LD & D Australia Pty Ltd |
$49.25 |
|
|
|
Milk Deliveries For The City |
|
|
|
|
LGISWA |
$2,847.46 |
|
|
|
Flu Vaccinations - April 2020 - OSH |
|
|
|
|
LGRCEU |
$1,732.26 |
|
|
|
Payroll Deductions |
|
|
|
|
Main Roads WA |
$48,825.00 |
|
|
|
Intersection Works - Butler - Transport & Traffic Services |
|
|
|
|
Marmion Avenue Duplication - Assets |
|
|
|
|
Road Safety Audit Training - Land Development |
|
|
|
|
Maxxia Pty Ltd |
$8,590.17 |
|
|
|
Payroll Deductions |
|
|
|
|
Miss Maria McArthur |
$42.50 |
|
|
|
Dog Registration Refund - Overpayment |
|
|
|
|
Mr Emilio Valenti |
$1,000.00 |
|
|
|
Refund - Street & Verge Bond |
|
|
|
|
Mr James Millward |
$2,000.00 |
|
|
|
Refund - Street & Verge Bond |
|
|
|
|
Mr Lachlan Gowan |
$360.00 |
|
|
|
Vehicle Crossing Subsidy |
|
|
|
|
Mrs Georgina Wilkinson |
$150.00 |
|
|
|
Dog Registration Refund - Sterilised |
|
|
|
|
Rates Refund |
$60.68 |
|
|
|
Ms Issabella De Beer |
$360.00 |
|
|
|
Vehicle Crossing Subsidy |
|
|
|
|
Paywise Pty Ltd |
$3,974.14 |
|
|
|
Payroll Deductions |
|
|
|
|
Pure Homes Pty Ltd Trading As B1 Homes |
$6,000.00 |
|
|
|
Refund - 3 Street & Verge Bonds |
|
|
|
|
Satterley Property Group |
$941.13 |
|
|
|
Partial Refund - Fees Not Expended Processing Amendment 2 To The North Eglinton Structure Plan 93 |
|
|
|
|
Smartsalary |
$8,608.29 |
|
|
|
Payroll Deductions |
|
|
|
|
SSB Pty Ltd |
$1,308.29 |
|
|
|
Refund - Street & Verge Bond |
|
|
|
|
VC Build Pty Ltd |
$2,000.00 |
|
|
|
Refund - Street & Verge Bond |
|
|
|
|
Water Corporation |
$9,209.54 |
|
|
|
Water Charges For The City |
|
|
|
|
Western Power |
$23,107.00 |
|
|
|
Commercial Connection - Shelvock Crescent - Assets |
|
|
|
|
|
|
|
00003879 |
01/07/2020 |
|
|
|
|
|
Action Glass & Aluminium |
$495.00 |
|
|
|
New Door Closer - Phil Renkin - Building Maintenance |
|
|
|
|
Acurix Networks Pty Ltd |
$4,452.80 |
|
|
|
Monthly Charges For Monitoring, Licensing, Support, Category Based Content Filtering - ICT |
|
|
|
|
Adform Engraving & Signs |
$33.55 |
|
|
|
Name Badge - Community Safety |
|
|
|
|
Advanced Traffic Management |
$19,812.38 |
|
|
|
Traffic Control Services For The City |
|
|
|
|
AE Hoskins Building Services |
$3,939.11 |
|
|
|
Progress Claim 2 - Two Rocks Playgroup - Assets |
|
|
|
|
AMBIUS |
$174.10 |
|
|
|
Provision Of Plant Services - Place Management |
|
|
|
|
Amgrow Australia Pty Ltd |
$737.00 |
|
|
|
Supply Seed - Parks |
|
|
|
|
Animal Pest Management Services |
$15,730.00 |
|
|
|
2 Week Fox Control - Parks |
|
|
|
|
Archival Survival Pty Ltd |
$639.82 |
|
|
|
Fuzzy Tacking Iron, Polystyrene Paperclips/Twine - Cultural Services |
|
|
|
|
Australian Airconditioning Services Pty Ltd |
$22,879.98 |
|
|
|
Airconditioning Maintenance For The City |
|
|
|
|
Australian Institute of Traffic Planning and Management Incorporated |
$775.00 |
|
|
|
Subscription - Transport & Traffic Services |
|
|
|
|
Azure Painting Pty Ltd |
$1,760.00 |
|
|
|
Shade Structure Painting - Fishermans Hollow - Parks |
|
|
|
|
Benara Nurseries |
$22.00 |
|
|
|
Plants - Parks |
|
|
|
|
Benx World Trade |
$514.80 |
|
|
|
Bag Of Rags 8kg - Stores Stock |
|
|
|
|
Binley Fencing |
$408.54 |
|
|
|
Temporary Fencing - 64 Aldersea Circle - Parks |
|
|
|
|
Bollig Design Group Ltd |
$6,600.00 |
|
|
|
Professional Services - Southern Suburbs Library - Assets |
|
|
|
|
Boral Construction Materials Group Ltd |
$2,188.16 |
|
|
|
Concrete Mix - Various Locations - Engineering |
|
|
|
|
Borrell Rafferty Associates Pty Ltd |
$3,520.00 |
|
|
|
Quantity Surveying - Wanneroo Districts Netball Association Building Upgrade - Assets |
|
|
|
|
Boss Bollards |
$2,002.00 |
|
|
|
Install Pad Footings - Blackmore Avenue - Assets |
|
|
|
|
Bradbury Sewell Pty Ltd |
$1,144.00 |
|
|
|
Survey - Quinns Rock Drainage Project - Assets |
|
|
|
|
Brian Zucal & Associates |
$5,335.00 |
|
|
|
Revaluation - East Wanneroo - Property |
|
|
|
|
Bridgestone Australia Limited |
$14,435.83 |
|
|
|
Tyre Fitting Services For The City |
|
|
|
|
Bucher Municipal Pty Ltd |
$2,705.99 |
|
|
|
Vehicle Spare Parts - Stores |
|
|
|
|
Bunzl Limited |
$4,531.08 |
|
|
|
Stock - Stores Issues |
|
|
|
|
BYOM Pty Ltd |
$3,740.00 |
|
|
|
Workshop - Entrepreneurial Mindset - Economic Development |
|
|
|
|
Capital Finance Australia Limited |
$2,050.73 |
|
|
|
Spin Bike Rental - Aquamotion |
|
|
|
|
Car Care Motor Company Pty Ltd |
$2,605.40 |
|
|
|
Vehicle Services - Fleet |
|
|
|
|
Challenge Batteries WA |
$178.20 |
|
|
|
Vehicle Batteries - Fleet |
|
|
|
|
Cherry's Catering |
$1,455.00 |
|
|
|
Catering Services For The City |
|
|
|
|
Climate Change Response Pty Ltd |
$9,972.05 |
|
|
|
Subscription - Annual Software 2019 / 2020 - Assets |
|
|
|
|
Aquamotion Electrical Usage Assessment - Assets |
|
|
|
|
Commissioner of Police |
$49.20 |
|
|
|
Volunteer Police Checks - Conservation |
|
|
|
|
National Volunteer Police Checks - Community Planning & Development |
|
|
|
|
Corsign (WA) Pty Ltd |
$283.25 |
|
|
|
Sign - Parakeelya Park - Parks |
|
|
|
|
Cossill & Webley Consulting Engineers |
$4,444.00 |
|
|
|
Civil Engineering Services - Pavement Linemarking - Assets |
|
|
|
|
Critical Fire Protection & Training Pty Ltd |
$344.32 |
|
|
|
Isolate Detection For Works - AOC - Building Maintenance |
|
|
|
|
CS Legal |
$1,928.59 |
|
|
|
Court Fees - Rates |
|
|
|
|
Customised Metal Works |
$16,232.70 |
|
|
|
Concourse Point Drain & Additional Steel Grate - Aquamotion - Assets |
|
|
|
|
Delos Delta Pty Ltd |
$12,650.00 |
|
|
|
Consultancy - Project Plan, Desktop Review & Initial Engagement - Community Development |
|
|
|
|
Design & Construct Mechanical Services Pty Ltd |
$2,915.00 |
|
|
|
Install Condensing Unit - Butler Community Centre - Building Maintenance |
|
|
|
|
Diamond Plumbing & Gas |
$620.51 |
|
|
|
Plumbing Maintenance For The City |
|
|
|
|
Dowsing Group Pty Ltd |
$34,123.23 |
|
|
|
Replace Concrete - Portofinos - Engineering |
|
|
|
|
Repair Footpath - Hartman - Engineering |
|
|
|
|
Drainflow Services Pty Ltd |
$11,877.03 |
|
|
|
Road Sweeping/Drain Cleaning Services For The City |
|
|
|
|
Driving Wheels |
$275.00 |
|
|
|
Wheel Alignment - WN 33627 Fleet |
|
|
|
|
Ecoscape Australia Pty Ltd |
$26,391.76 |
|
|
|
Feasibility Study - Bird Viewing Structures - Assets |
|
|
|
|
Elliotts Irrigation Pty Ltd |
$10,334.76 |
|
|
|
Reticulation Items - Parks |
|
|
|
|
Environmental Industries Pty Ltd |
$54,707.40 |
|
|
|
Landscape Maintenance - Various Location - Parks |
|
|
|
|
Flick Anticimex Pty Ltd |
$1,672.00 |
|
|
|
Install Hand Sanitiser Dispensers - Ashby Operations Centre Building 2 - Building Maintenance |
|
|
|
|
Install Baby Change Table - St Andrews Park Community Facility - Building Maintenance |
|
|
|
|
Focus Consulting WA Pty Ltd |
$2,750.00 |
|
|
|
Electrical Investigation - Gumblossom Reserve - Assets |
|
|
|
|
Forch Australia Pty Ltd |
$881.38 |
|
|
|
Cleaning Items - Stores Stock |
|
|
|
|
Forrest And Forrest Games |
$10,255.96 |
|
|
|
Tees Management Works & Greens Management Works - Marangaroo & Carramar Golf Course - Assets |
|
|
|
|
Fratelle Group Pty Ltd |
$3,168.00 |
|
|
|
Concept Design & Quantity Surveying - Eglinton Indoor Recreation Centre - Community Facility Planning |
|
|
|
|
Frontline Fire & Rescue Equipment |
$928.14 |
|
|
|
Boots - Wanneroo - Emergency Management |
|
|
|
|
Fuji Xerox Australia Pty Ltd |
$5,277.80 |
|
|
|
Ezescan Maintenance - ICT |
|
|
|
|
Geoff's Tree Service Pty Ltd |
$64,961.12 |
|
|
|
Tree Works - Various Locations - Parks/Assets |
|
|
|
|
GHD Pty Ltd |
$8,021.20 |
|
|
|
Progress Claim 1 - MRRG Lenore Road - Transport & Traffic Services |
|
|
|
|
Hang Art Pty Ltd |
$242.00 |
|
|
|
Install Art Work And Coaching - Cultural Services |
|
|
|
|
Hanson Construction Materials Pty Ltd |
$472.01 |
|
|
|
Concrete Mix - Brazier Road Yanchep - Engineering |
|
|
|
|
Hays Personnel Services |
$11,091.70 |
|
|
|
Casual Labour For The City |
|
|
|
|
Heatley Sales Pty Ltd |
$493.13 |
|
|
|
Safety Boots - Stores Stock |
|
|
|
|
Hesperian Press |
$200.00 |
|
|
|
Books Purchase - Cultural Services |
|
|
|
|
Hickey Constructions Pty Ltd |
$6,061.00 |
|
|
|
Repair Storage Boxes - Splendid Park - Parks |
|
|
|
|
Repair Broken Balustrade - Kalbarri Park - Parks |
|
|
|
|
Repair Broken Bollards - Jindalee Foreshore - Parks |
|
|
|
|
Hitachi Construction Machinery Pty Ltd |
$54.97 |
|
|
|
Vehicle Spare Parts - Stores |
|
|
|
|
Hose Right |
$2,320.38 |
|
|
|
Vehicle Spare Parts - Fleet |
|
|
|
|
Iconic Property Services Pty Ltd |
$911.73 |
|
|
|
Cleaning Services For The City |
|
|
|
|
Imagesource Digital Solutions |
$5,493.40 |
|
|
|
Front Desk Re-Design - Wanneroo Museum - Cultural Services |
|
|
|
|
Pull Up Banners - Community Development |
|
|
|
|
Inclusion Solutions Limited |
$1,760.00 |
|
|
|
Social Inclusive Initiative Contribution - Community Planning |
|
|
|
|
Innerspace Commercial Interiors Pty Ltd |
$10,880.10 |
|
|
|
27 Chairs - Civic Centre Banksia Room - Projects |
|
|
|
|
Integrity Industrial Pty Ltd |
$23,152.96 |
|
|
|
Casual Labour For The City |
|
|
|
|
Interfire Agencies Pty Ltd |
$1,481.45 |
|
|
|
Fire Helmet - Emergency Services |
|
|
|
|
IPWEA |
$605.00 |
|
|
|
Fleet Subscription Renewal - 01.07.2020 - 30.06.2021 - Contracts & Procurement |
|
|
|
|
J Blackwood & Son Ltd |
$5,043.66 |
|
|
|
Stock - Stores Issues |
|
|
|
|
James Bennett Pty Ltd |
$4,655.60 |
|
|
|
Book Purchases - Library Services |
|
|
|
|
Kerb Direct Kerbing |
$4,506.70 |
|
|
|
Install Kerbing - Smailes Road - Construction |
|
|
|
|
Kingsley Smash Repairs |
$636.61 |
|
|
|
Vehicle Repairs - Waste |
|
|
|
|
Kleenit |
$1,717.19 |
|
|
|
Graffiti Removal Services For The City |
|
|
|
|
Kyocera Document Solutions |
$176.00 |
|
|
|
IC Card Authentication Kit - ICT |
|
|
|
|
Landcare Weed Control |
$848.82 |
|
|
|
Landscape Maintenance - Lake Joondalup - Parks |
|
|
|
|
LD Total |
$228,798.30 |
|
|
|
Landscaping Services For The City |
|
|
|
|
Ligna Construction |
$6,424.00 |
|
|
|
Install Retaining Wall - Bayport Park Mindarie - Parks |
|
|
|
|
Repair Limestone Wall - Broadview Park - Parks |
|
|
|
|
Repair Stair Cappers - Beachwood Parks - Parks |
|
|
|
|
Linemarking WA Pty Ltd |
$3,466.69 |
|
|
|
Linemarking - Boston Quays Carpark - Engineering |
|
|
|
|
Pavement Marking & Associated Works - Quinns Sports Club Easter Carpark - Engineering |
|
|
|
|
LKS Constructions (WA) Pty Ltd |
$4,017.20 |
|
|
|
Seat Additions To Toilet Units - Edgar Griffiths Park - Facility Projects |
|
|
|
|
Replace Autogate Panel - Edgar Griffiths Sports Amenities Building - Assets |
|
|
|
|
Maar Koodjal Aboriginal Corporation |
$2,200.00 |
|
|
|
Consultation & Report - Pallido Park - Community Planning & Development |
|
|
|
|
Major Motors |
$1,149.76 |
|
|
|
Vehicle Spare Parts - Stores |
|
|
|
|
Mammoth Equipment & Exhausts Pty Ltd |
$1,650.00 |
|
|
|
Ecoblue - Stores Stock |
|
|
|
|
Manheim Pty Ltd |
$7,703.80 |
|
|
|
Selling Fees For Abandoned Vehicles - Rangers |
|
|
|
|
Market Creations |
$14,264.40 |
|
|
|
Intranet Replacement - ICT |
|
|
|
|
Marketforce Pty Ltd |
$282.68 |
|
|
|
Advertising - Public Notices - Land Development |
|
|
|
|
Mayday Earthmoving |
$1,619.75 |
|
|
|
Heavy Equipment Hire For The City |
|
|
|
|
McGees Property |
$5,500.00 |
|
|
|
Valuation Services - East Wanneroo Development Areas - Cells 1 - 9 - Property Services |
|
|
|
|
McLeods |
$9,200.75 |
|
|
|
Legal Fees For The City |
|
|
|
|
Meter Office |
$277.20 |
|
|
|
Waterproof Paper - Aquamotion |
|
|
|
|
Midalia Steel Pty Ltd |
$566.32 |
|
|
|
Steel Supplies - Engineering |
|
|
|
|
Mindarie Regional Council |
$533,211.30 |
|
|
|
Refuse Disposal For The City |
|
|
|
|
Minuteman Press Joondalup |
$1,984.27 |
|
|
|
Food Inspection Booklets - Health Services |
|
|
|
|
Miracle Recreation Equipment Pty Ltd |
$957.00 |
|
|
|
Playground Equipment Repairs - Parks |
|
|
|
|
NAPA - GPC Asia Pacific Pty Ltd |
$221.71 |
|
|
|
Vehicle Spare Parts - Fleet |
|
|
|
|
Natural Area Holdings Pty Ltd |
$77,923.70 |
|
|
|
Seed Collection Services & Revegetation Maintenance - Conservation |
|
|
|
|
Netstar Australia Pty Ltd |
$1,364.91 |
|
|
|
Vehicle Fit Out - Community Safety |
|
|
|
|
Northern Lawnmower & Chainsaw Specialists |
$1,748.10 |
|
|
|
Stock - Stores Issues |
|
|
|
|
Stihl Brushcutter - Fleet Assets |
|
|
|
|
OEM Group Pty Ltd |
$1,546.71 |
|
|
|
Vehicle Spare Parts - Fleet |
|
|
|
|
Officeworks Superstores Pty Ltd |
$9.98 |
|
|
|
Sign - Staff Only - Community Development |
|
|
|
|
On Tap Plumbing & Gas Pty Ltd |
$7,501.16 |
|
|
|
Plumbing Maintenance For The City |
|
|
|
|
OSHGroup Pty Ltd |
$2,921.25 |
|
|
|
Fitness For Work Assessment - OSH |
|
|
|
|
Paperbark Technologies Pty Ltd |
$6,936.90 |
|
|
|
Tree Inspection Audit - Various Locations - Parks |
|
|
|
|
Parker Black & Forrest |
$132.00 |
|
|
|
Supply Keys - Building Maintenance |
|
|
|
|
PLE Computers |
$2,034.00 |
|
|
|
Computer Accessories - ICT |
|
|
|
|
Porter Consulting Engineers |
$1,980.00 |
|
|
|
Concept Design & Black Spot Application - Santa Barbara Parade / Marmion Avenue Intersection - Transport And Traffic |
|
|
|
|
Practical Products Pty Ltd |
$4,455.00 |
|
|
|
Fridge - Two Rocks Fire Station - Emergency Services |
|
|
|
|
Prestige Alarms |
$2,022.04 |
|
|
|
CCTV And Alarms Services For The City |
|
|
|
|
Programmed Integrated Workforce |
$1,508.02 |
|
|
|
Casual Labour For The City |
|
|
|
|
RAC Motoring & Services Pty Ltd |
$99.00 |
|
|
|
Call Out - WN 33472 - No Fault Found - Building Maintenance |
|
|
|
|
Reliable Fencing |
$15,135.78 |
|
|
|
Repair Fences/Gates - Various Locations - Parks/Engineering |
|
|
|
|
Rent A Dingo |
$275.00 |
|
|
|
Hire Of Dingo - Parks |
|
|
|
|
Repco |
$194.15 |
|
|
|
Vehicle Spare Parts - Stores |
|
|
|
|
Roads 2000 |
$371,546.97 |
|
|
|
Road Resurfacing - Various Locations - Assets |
|
|
|
|
Supply Asphalt - Engineering |
|
|
|
|
RSEA Pty Ltd |
$804.98 |
|
|
|
Stock - Stores Issues |
|
|
|
|
Scatena Clocherty Architects |
$9,575.50 |
|
|
|
Architectural Consultancy - Wanneroo Netball Building - Assets |
|
|
|
|
Architectural Consultancy - Shelvock Park Sports Amenities Building - Projects |
|
|
|
|
Schindler Lifts Australia Pty Ltd |
$3,440.14 |
|
|
|
Lift Service - Various Locations - Building Maintenance |
|
|
|
|
Scott Print |
$5,579.20 |
|
|
|
Printing - Your Dog And The Law - Community Safety |
|
|
|
|
Printing - Tip Passes - Waste Services |
|
|
|
|
Printing - Flyer - Communications And Events |
|
|
|
|
Sealanes |
$1,637.56 |
|
|
|
Food/Beverages - Hospitality |
|
|
|
|
Sheridans For Badges |
$1,914.00 |
|
|
|
Metal Name Badges - Emergency Services |
|
|
|
|
Sign A Rama |
$132.00 |
|
|
|
Floor Graphics - Building Maintenance |
|
|
|
|
SJ McKee Maintenance Pty Ltd |
$1,083.00 |
|
|
|
Remove Asbestos - Beonaddy & Townsend - Waste |
|
|
|
|
Skipper Transport Parts |
$49.50 |
|
|
|
Vehicle Spare Parts - Fleet |
|
|
|
|
Skyline Landscape Services (WA) |
$1,518.00 |
|
|
|
Streetscapes - Gnangara Road - Assets |
|
|
|
|
Softfall Guys |
$1,859.00 |
|
|
|
Softfall Repairs - Various Locations - Parks |
|
|
|
|
Solution 4 Building Pty Ltd |
$84,627.50 |
|
|
|
Payment Certificate 10 - Wanneroo City Soccer Clubrooms - Assets |
|
|
|
|
Sonic Healthplus Pty Ltd |
$2,256.00 |
|
|
|
Medical Fees For The City |
|
|
|
|
Spot on Print |
$302.50 |
|
|
|
Banner For Gym Wall - Aquamotion |
|
|
|
|
St John Ambulance Western Australia Ltd |
$523.90 |
|
|
|
First Aid Supplies & Training - Safety Systems |
|
|
|
|
Statewide Cleaning Supplies Pty Ltd |
$541.33 |
|
|
|
Cleaning Supplies For Depot Store |
|
|
|
|
Stewart & Heaton Clothing Company Pty Ltd |
$378.20 |
|
|
|
Uniforms & Name Badges - Community Safety |
|
|
|
|
Stiles Electrical |
$49,894.32 |
|
|
|
Electrical Upgrade - Girrawheen Complex - Projects |
|
|
|
|
The Rigging Shed |
$114.40 |
|
|
|
Dyneema Rope With Snap Hook - Youth Services |
|
|
|
|
The Royal Life Saving Society Australia |
$4,982.17 |
|
|
|
Maintenance - Kingsway Aquatic Park - Parks |
|
|
|
|
The Spiers Centre Incorporated |
$665.28 |
|
|
|
Refund - Bookings Cancelled - 24.03.2020 - 30.06.2020 - Due To Covid-19 - Place Management |
|
|
|
|
The Trustee for the Naughton Family Trust |
$1,150.00 |
|
|
|
Corn Bullnose - Engineering |
|
|
|
|
Paver Replacement - Yanchep Surf Club - Engineering |
|
|
|
|
The Workwear Group Pty Ltd |
$3,293.75 |
|
|
|
Stock - Stores Issues |
|
|
|
|
Tim Eva's Nursery |
$3,267.00 |
|
|
|
Planting - Various Locations - Parks |
|
|
|
|
TJ Depiazzi & Sons |
$40,147.80 |
|
|
|
Pine Bark Mulch - Various Locations - Parks |
|
|
|
|
Landscaping - Sydney Road - Projects |
|
|
|
|
Total Landscape Redevelopment Service Pty Ltd |
$9,603.00 |
|
|
|
Remove Dead Tree - Edgar Griffiths - Assets |
|
|
|
|
Landscape Works - Belhaven Park - Assets |
|
|
|
|
Traffic Calming Australia Pty Ltd |
$21,774.50 |
|
|
|
Remove Signs - Tyne Crescent - Engineering |
|
|
|
|
Traffic Bollards - Ashby - Engineering |
|
|
|
|
Kerb Supply - Tyne Crescent - Engineering |
|
|
|
|
Trophy Shop Australia |
$13.70 |
|
|
|
Name Badge - Waste Services |
|
|
|
|
Turf Care WA Pty Ltd |
$178,178.75 |
|
|
|
Turfing Works For The City |
|
|
|
|
Move Cricket Mats From Cabrini Oval To Leatherback Oval - Parks |
|
|
|
|
Two Rocks SES Unit |
$10,371.51 |
|
|
|
Local Government Grant Scheme - Reimbursement Of GST Component 2017 / 2018 Operating Grant Acquittal - Emergency Services |
|
|
|
|
Local Government Grant Scheme - Interim Operating Grant From DFES - Quarter 1 - Emergency Services |
|
|
|
|
Wangara Subaru & Volkswagen |
$412.50 |
|
|
|
Vehicle Spare Parts - Fleet |
|
|
|
|
Wanneroo Central Bushfire Brigade |
$250.00 |
|
|
|
Controlled Burn - 86 Cinnamon Meander Two Rocks - 21.06.2020 - Fire Services |
|
|
|
|
Wanneroo Electric |
$8,439.95 |
|
|
|
Electrical Maintenance For The City |
|
|
|
|
West Coast Turf |
$31,063.70 |
|
|
|
Turfing Works For The City |
|
|
|
|
Western Australian Local Government Association |
$1,618.00 |
|
|
|
Training - Understanding Financial Reports - 1 Attendee - Corporate Support |
|
|
|
|
Training - Conflicts Of Interest - 1 Attendee - Corporate Support |
|
|
|
|
Training - Meeting Procedures - 1 Attendee - Corporate Support |
|
|
|
|
Training - Understanding Local Government - 1 Attendee - Corporate Support |
|
|
|
|
Legal Opinion - Coastal Hazard Planning Issues Paper - Parks |
|
|
|
|
Training - Serving On Council - 1 Attendee - Corporate Support |
|
|
|
|
Western Resource Recovery Pty Ltd |
$2,528.90 |
|
|
|
Collect Waste Oil - Fleet Workshop - Building Maintenance |
|
|
|
|
Workpower Incorporated |
$218,474.09 |
|
|
|
Weed Control & Planting Services - Various Locations - Conservation |
|
|
|
|
WSP Australia Pty Ltd |
$9,900.00 |
|
|
|
Feasibility Report - CCTV - Community Safety |
|
|
|
|
Yanchep News Online |
$400.00 |
|
|
|
Advertising - Wanneroo Link - Communications & Brand |
|
|
|
|
Zenien |
$7,177.50 |
|
|
|
Video Management Software - Assets |
|
|
|
|
|
|
|
00003880 |
07/07/2020 |
|
|
|
|
|
Accenture Australia Pty Ltd |
$361,941.80 |
|
|
|
Oracle Fusion Financials - ICT |
|
|
|
|
Advanteering - Civil Engineers |
$57,337.61 |
|
|
|
Progress Claim 3 - Upgrade Claytons Beach Access Way - Projects |
|
|
|
|
Elliotts Irrigation Pty Ltd |
$3,279.10 |
|
|
|
Move & Adjust Sprinklers & Pipework - Wanneroo City Soccer - Assets |
|
|
|
|
West Coast Turf |
$4,408.80 |
|
|
|
Lay Turf - Kingsway Soccer - Assets |
|
|
|
|
|
|
|
00003881 |
07/07/2020 |
|
|
|
|
|
Landgate |
$778,844.35 |
|
|
|
GRV General Values Metro 2019 / 2020 - Rates |
|
|
|
|
|
|
|
00003882 |
07/07/2020 |
|
|
|
|
|
Synergy |
$19,491.03 |
|
|
|
Power Supplies For The City |
|
|
|
|
|
|
|
00003883 |
07/07/2020 |
|
|
|
|
|
Alinta Gas |
$38.30 |
|
|
|
Gas Supplies For The City |
|
|
|
|
Australia Post |
$1,073.39 |
|
|
|
Billpay Transaction - Rates |
|
|
|
|
Aveling Homes Pty Ltd |
$2,000.00 |
|
|
|
Refund - Street & Verge Bond |
|
|
|
|
Ben Trager Homes Pty Ltd |
$2,000.00 |
|
|
|
Refund - Street & Verge Bond |
|
|
|
|
Blueprint Homes (WA) Pty Ltd |
$2,000.00 |
|
|
|
Refund - Street & Verge Bond |
|
|
|
|
Buckby Contracting Pty Ltd |
$2,000.00 |
|
|
|
Refund - Street & Verge Bond |
|
|
|
|
Celebration Homes Pty Ltd |
$6,000.00 |
|
|
|
Refund - 3 Street & Verge Bonds |
|
|
|
|
Dale Alcock Homes Pty Ltd |
$4,000.00 |
|
|
|
Refund - 2 Street & Verge Bonds |
|
|
|
|
Decipha Pty Ltd |
$2,001.57 |
|
|
|
Mail Preparation Fees - IM |
|
|
|
|
Department of Fire & Emergency Services |
$34,795.22 |
|
|
|
50% Cost Sharing - Community Fire Manager 01.10.2019 - 26.03.2020 - Community Safety |
|
|
|
|
Halpd Pty Ltd Trading As Affordable Living Homes |
$6,000.00 |
|
|
|
Refund - 3 Street & Verge Bonds |
|
|
|
|
Home Group WA Pty Ltd |
$16,000.00 |
|
|
|
Refund - 8 Street & Verge Bonds |
|
|
|
|
Homestead For Youth |
$50.00 |
|
|
|
Refund - Temporary Signage Bond - Traffic Services |
|
|
|
|
LD & D Australia Pty Ltd |
$368.70 |
|
|
|
Milk Deliveries For The City |
|
|
|
|
Mr Christopher Smith |
$1,000.00 |
|
|
|
Refund - Street & Verge Bond |
|
|
|
|
Mr Craig Reece |
$1,000.00 |
|
|
|
Refund – Street & Verge Bond |
|
|
|
|
Mr Daniel Pember |
$2,000.00 |
|
|
|
Refund - Street & Verge Bond |
|
|
|
|
Mr Thomas Ravenscroft |
$360.00 |
|
|
|
Vehicle Crossing Subsidy |
|
|
|
|
Mrs Anne Lee |
$1,000.00 |
|
|
|
Refund - Street & Verge Bond |
|
|
|
|
Mrs Jo-Anne Harrington |
$40.00 |
|
|
|
Dog Registration Refund - Deceased |
|
|
|
|
Ms Jenna-Lee Fairclough |
$360.00 |
|
|
|
Vehicle Crossing Subsidy |
|
|
|
|
Ms Rosemary Dudfield |
$1,000.00 |
|
|
|
Refund – Street & Verge Bond |
|
|
|
|
Ms Sandy West |
$2,000.00 |
|
|
|
Refund - Street & Verge Bond |
|
|
|
|
Optus |
$1,313.70 |
|
|
|
Phone Charges For The City |
|
|
|
|
Pure Homes Pty Ltd Trading As B1 Homes |
$2,000.00 |
|
|
|
Refund - Street & Verge Bond |
|
|
|
|
SSB Pty Ltd |
$4,000.00 |
|
|
|
Refund – 2 Street & Verge Bonds |
|
|
|
|
St Vincent de Paul Society |
$2,804.00 |
|
|
|
Donation - Support Families In Wanneroo Who Are Facing Hardship During Covid-19 Pandemic - Recovery Period June - November 2020 |
|
|
|
|
Water Corporation |
$1,797.87 |
|
|
|
Water Charges For The City |
|
|
|
|
|
|
|
00003884 |
07/07/2020 |
|
|
|
|
|
ABM Landscaping |
$15,554.83 |
|
|
|
Paving Repairs - Various Locations - Engineering/Parks |
|
|
|
|
Brick Paving - Rocca Way - Assets |
|
|
|
|
Activtec Solutions |
$1,681.00 |
|
|
|
Service & Repair Chair Hoist - Aquamotion |
|
|
|
|
Adelphi Apparel |
$550.00 |
|
|
|
Staff Uniforms - Rangers |
|
|
|
|
Advanced Traffic Management |
$28,811.76 |
|
|
|
Traffic Control Services For The City |
|
|
|
|
Advanteering - Civil Engineers |
$76,252.21 |
|
|
|
Construction - Splendid Skate Park - Assets |
|
|
|
|
Alcolizer Technology |
$198.00 |
|
|
|
Service Of Breathalysers - OSH |
|
|
|
|
Ascender Peoplestreme Pty Ltd |
$17,875.07 |
|
|
|
Software - Annual Licence Fees - People And Culture |
|
|
|
|
Aslab Pty Ltd |
$2,167.00 |
|
|
|
Roundabout
Upgrade |
|
|
|
|
Australian Airconditioning Services Pty Ltd |
$11,510.49 |
|
|
|
Routine Maintenance - June 2020 - Building Maintenance |
|
|
|
|
AV Truck Service Pty Ltd |
$711.32 |
|
|
|
Vehicle Spare Parts - Fleet |
|
|
|
|
Backyards To Barnyards |
$80.98 |
|
|
|
Supplies For Animal Care Centre - Rangers |
|
|
|
|
Ball & Doggett Pty Ltd |
$142.56 |
|
|
|
Paper Supplies - Print Room |
|
|
|
|
Binley Fencing |
$463.98 |
|
|
|
Temporary Fencing - Rocca Way - Assets |
|
|
|
|
Temporary Fencing - Joondalup Drive / Tumbleweed Roundabout - Assets |
|
|
|
|
Bladon WA Pty Ltd |
$818.84 |
|
|
|
Staff Uniforms - Rangers |
|
|
|
|
Boral Construction Materials Group Ltd |
$1,959.89 |
|
|
|
Concrete Mix - Various Locations - Engineering |
|
|
|
|
BP Australia Ltd |
$62,973.86 |
|
|
|
Fuel Issues For The City |
|
|
|
|
Bridgestone Australia Limited |
$10,975.73 |
|
|
|
Tyre Fitting Services For The City |
|
|
|
|
Bucher Municipal Pty Ltd |
$3,640.12 |
|
|
|
Vehicle Spare Parts - Fleet |
|
|
|
|
Business Foundations Incorporated |
$220.00 |
|
|
|
Covid-19 Business Advisory - Advocacy & Economic Development |
|
|
|
|
Cabcharge |
$237.47 |
|
|
|
Cabcharge Services For The City |
|
|
|
|
Car Care Motor Company Pty Ltd |
$251.90 |
|
|
|
Vehicle Service - Fleet |
|
|
|
|
Cardno (WA) Pty Ltd |
$5,773.63 |
|
|
|
Professional Services - Quinns Beach Groyne 1 Design - Coastal Projects |
|
|
|
|
Carramar Resources Industries |
$1,711.65 |
|
|
|
Disposal Of Materials - Assets |
|
|
|
|
Catalyse Pty Ltd |
$31,900.00 |
|
|
|
Fees For MARKYT 2020 - Community & Business Perception Surveys - Strategic & Business Planning |
|
|
|
|
Chadson Engineering Pty Ltd |
$315.70 |
|
|
|
Pool Test - Aquamotion |
|
|
|
|
Challenge Batteries WA |
$297.00 |
|
|
|
Vehicle Batteries - Fleet |
|
|
|
|
Cleanaway |
$5,000.00 |
|
|
|
Tenancy Bond Refund - Property |
|
|
|
|
Coates Hire Operations Pty Ltd |
$473.83 |
|
|
|
Portable Toilet, Tables & Chairs - Joondalup Drive - Construction |
|
|
|
|
Commercial Aquatics Australia |
$9,147.78 |
|
|
|
Works/Services On Pool - Aquamotion |
|
|
|
|
Corsign (WA) Pty Ltd |
$5,425.09 |
|
|
|
Sign - Gungurru Park - Parks |
|
|
|
|
Signs - Gate Numbers - Kingsway Netball - Engineering |
|
|
|
|
Signs - Workman Symbolics - Parks |
|
|
|
|
Street Name Plates - Engineering |
|
|
|
|
Signs - Caution Glyphosate Being Applied - Parks |
|
|
|
|
200 Traffic Cones - Engineering |
|
|
|
|
Cossill & Webley Consulting Engineers |
$5,434.00 |
|
|
|
Road Resurfacing - Wanneroo Pavement Linemarking - Assets |
|
|
|
|
Coyle Editing Service |
$3,080.00 |
|
|
|
Editorial Services - Develop Writing Style Guide 2020 - Communications & Brand |
|
|
|
|
CR Kennedy & Co Pty Ltd |
$2,181.30 |
|
|
|
Equipment Service - Surveyors |
|
|
|
|
Critical Fire Protection & Training Pty Ltd |
$1,110.87 |
|
|
|
New Log Book - WLCC - Building Maintenance |
|
|
|
|
Monthly Fire Equipment Tests - June 2020 - Building Maintenance |
|
|
|
|
CS Legal |
$3,749.10 |
|
|
|
Court Fees - Rating Services |
|
|
|
|
Data #3 Limited |
$19,676.89 |
|
|
|
Licence Renewals - ICT |
|
|
|
|
Dave Lanfear Consulting |
$27,769.50 |
|
|
|
Consultancy Services - 10 Year Facility Management Plan - Assets |
|
|
|
|
David Gray & Company Pty Ltd |
$93.28 |
|
|
|
Waste Education 60L Bin & Lid - Waste |
|
|
|
|
DDLS Australia Pty Ltd |
$3,135.00 |
|
|
|
Training - Agil Business Analysis - 20.04.2020 & 23.04.2020 - 1 Attendee - Projects |
|
|
|
|
Delville Smith |
$800.00 |
|
|
|
Art Collection Restoration - Cultural Services |
|
|
|
|
Diamond Plumbing & Gas |
$1,345.32 |
|
|
|
Plumbing Maintenance For The City |
|
|
|
|
Digital Education Services |
$599.32 |
|
|
|
DVD Stock - Library Services |
|
|
|
|
Direct Communications |
$572.00 |
|
|
|
Call Out Fee - Community Safety |
|
|
|
|
Dowsing Group Pty Ltd |
$133,066.55 |
|
|
|
Concrete Works - Various Locations - Engineering/Assets |
|
|
|
|
Drainflow Services Pty Ltd |
$20,682.29 |
|
|
|
Drain Cleaning And Road Sweeping Services For The City |
|
|
|
|
Drovers Vet Hospital Pty Ltd |
$60.00 |
|
|
|
Veterinary Services For The City |
|
|
|
|
Edge People Management |
$416.61 |
|
|
|
Review Job Dictionaries - People & Culture |
|
|
|
|
Ellenby Tree Farms |
$3,041.50 |
|
|
|
Plants - Projects |
|
|
|
|
Elliotts Irrigation Pty Ltd |
$31,828.35 |
|
|
|
Reticulation Items & Irrigation Repairs - Assets/Parks |
|
|
|
|
Engineering Technology Consultants |
$26,675.00 |
|
|
|
Consultancy - Street Lighting Upgrade Dundebar Road - Transport & Traffic |
|
|
|
|
Environmental Industries Pty Ltd |
$14,131.04 |
|
|
|
Landscape Services For The City |
|
|
|
|
Flick Anticimex Pty Ltd |
$5,327.03 |
|
|
|
Install Hand Sanitiser Dispenser - Various Locations - Building Maintenance |
|
|
|
|
Sanitary Waste Services For The City |
|
|
|
|
Geoff's Tree Service Pty Ltd |
$40,693.51 |
|
|
|
Pruning Works For The City |
|
|
|
|
GHD Pty Ltd |
$11,667.87 |
|
|
|
Road Improvement - Lenore Road Duplication - Traffic Services |
|
|
|
|
Delivery Phase - Quinns Road Widening - Traffic Services |
|
|
|
|
Hose Right |
$173.18 |
|
|
|
Vehicle Hoses - Fleet |
|
|
|
|
Hydroquip Pumps |
$17,361.99 |
|
|
|
Bore And Pump Works - Various Locations - Parks |
|
|
|
|
Iconic Property Services Pty Ltd |
$137,635.97 |
|
|
|
Cleaning Services For The City |
|
|
|
|
Identity Perth |
$10,898.53 |
|
|
|
Banners - Volunteer Services Campaign - Community Development |
|
|
|
|
Budget Campaign Animated Explainer Videos - Communications & Brand |
|
|
|
|
Budget Campaign 2020 / 2021 - Communications & Brand |
|
|
|
|
Imagesource Digital Solutions |
$1,738.00 |
|
|
|
Interactive Display Board And Graphics - Waste |
|
|
|
|
IMEX Solutions WA Pty Ltd |
$5,445.00 |
|
|
|
HPE Content Manager Consultancy & Support - ICT |
|
|
|
|
Impact Training Corporation |
$2,519.00 |
|
|
|
Sales Training - Aquamotion |
|
|
|
|
Inclusion Solutions Limited |
$1,509.20 |
|
|
|
Development Of A Social Inclusion Toolkit - Community Development |
|
|
|
|
Integrity Industrial Pty Ltd |
$15,064.08 |
|
|
|
Casual Labour For The City |
|
|
|
|
Interpretation Australia Association Incorporated |
$432.00 |
|
|
|
12 Month Organisational Membership - Cultural Services |
|
|
|
|
Ixom Operations Pty Ltd |
$1,565.82 |
|
|
|
Pool Chemicals - Aquamotion |
|
|
|
|
Jodie Aedy |
$120.00 |
|
|
|
Graphic Design Services - Flyers - East Keys Collective - Place Management |
|
|
|
|
Joondalup Smash Repairs Pty Ltd |
$763.40 |
|
|
|
Vehicle Repairs - Fleet |
|
|
|
|
Kerb Direct Kerbing |
$18,588.90 |
|
|
|
Kerbing - Fred Stubbs Park - Assets |
|
|
|
|
Roundabout Upgrade - Joondalup Drive - Assets |
|
|
|
|
Kleenit |
$440.00 |
|
|
|
Remove Paint - Anchorage - Engineering |
|
|
|
|
Remove Paint - Flagtail - Engineering |
|
|
|
|
Mayday Earthmoving |
$11,390.50 |
|
|
|
Loader - Fred Stubbs Park - Parks |
|
|
|
|
McGees Property |
$5,500.00 |
|
|
|
Market Valuation Advice - Property |
|
|
|
|
Menchetti Consolidated Pty Ltd |
$8,236.80 |
|
|
|
Shade Structure Painting - Warradale Skate Park - Assets |
|
|
|
|
Mindarie Regional Council |
$146,225.71 |
|
|
|
Refuse Disposal For The City |
|
|
|
|
Miracle Recreation Equipment Pty Ltd |
$4,790.50 |
|
|
|
Playground Equipment Repairs - Parks |
|
|
|
|
NAPA - GPC Asia Pacific Pty Ltd |
$197.12 |
|
|
|
Vehicle Spare Parts - Fleet |
|
|
|
|
Natural Area Holdings Pty Ltd |
$9,230.24 |
|
|
|
Plant Propagation - Frangipani Park - Assets |
|
|
|
|
Revegetation Maintenance - Yellagonga Regional Park - Planning & Sustainability |
|
|
|
|
Officeworks Superstores Pty Ltd |
$1,581.85 |
|
|
|
Storage Containers - Cultural Development |
|
|
|
|
Brochure Stand - Community Safety |
|
|
|
|
On Tap Plumbing & Gas Pty Ltd |
$2,397.25 |
|
|
|
Plumbing Maintenance For The City |
|
|
|
|
Orbit Health & Fitness Solutions |
$401.70 |
|
|
|
Equipment Service - Aquamotion |
|
|
|
|
Palace Homes & Construction Pty Ltd |
$3,062.02 |
|
|
|
Extension - Cricket Practice Rail - Kingsway Sporting Complex - Assets |
|
|
|
|
Paperbark Technologies Pty Ltd |
$2,545.00 |
|
|
|
Reports - Various Trees - Parks/Assets |
|
|
|
|
Parker Black & Forrest |
$567.60 |
|
|
|
Padlocks - Building Maintenance |
|
|
|
|
Plantrite |
$3,224.17 |
|
|
|
Tubestock - Parks |
|
|
|
|
Prestige Alarms |
$11,680.76 |
|
|
|
Alarm/CCTV Services For The City |
|
|
|
|
Programmed Integrated Workforce |
$5,510.19 |
|
|
|
Casual Labour For The City |
|
|
|
|
Reliable Fencing |
$242.00 |
|
|
|
Repair Post And Rail Bollard - Scenic Drive - Parks |
|
|
|
|
Roads 2000 |
$2,176.81 |
|
|
|
Profiling - Joondalup Drive - Assets |
|
|
|
|
Rubek Automatic Doors |
$308.00 |
|
|
|
Investigate Fault - WLCC - Building Maintenance |
|
|
|
|
Safety And Rescue Equipment |
$4,516.05 |
|
|
|
Sign - Mandatory Information - Ashby Operations Centre Fire Light Tanker Shed - Building Maintenance |
|
|
|
|
Mesh Sheets - Wangara Recycling Centre - Building Maintenance |
|
|
|
|
Scatena Clocherty Architects |
$5,434.00 |
|
|
|
Design & Construction - Shevlock Sports Amenities Building Variations June 2020 - Projects |
|
|
|
|
Seabreeze Landscape Supplies |
$162.00 |
|
|
|
Landscape Mix & Brickies Sand - Parks |
|
|
|
|
Sigma Chemicals |
$1,019.70 |
|
|
|
Pool Chemical Supplies - Aquamotion |
|
|
|
|
SJ McKee Maintenance Pty Ltd |
$755.00 |
|
|
|
Repair Works - Various Locations - Waste |
|
|
|
|
Skipper Transport Parts |
$164.84 |
|
|
|
Vehicle Spare Parts - Fleet |
|
|
|
|
Skyline Landscape Services (WA) |
$1,518.00 |
|
|
|
Streetscape Maintenance - Sydney Road - Parks |
|
|
|
|
St John Ambulance Western Australia Ltd |
$429.44 |
|
|
|
1st Aid Training Services For The City |
|
|
|
|
First Aid Supplies - OSH |
|
|
|
|
Stiles Electrical |
$25,859.49 |
|
|
|
Progress Claim 5 - Hainsworth Park Floodlighting - Assets |
|
|
|
|
Progress Claim 5 - Koondoola Park Floodlighting - Assets |
|
|
|
|
Technology One Limited |
$3,935.80 |
|
|
|
Consulting Services - June 2020 - ICT |
|
|
|
|
Terravac Vacuum Excavations Pty Ltd |
$8,704.25 |
|
|
|
Location Of Services - Various Sites - Assets |
|
|
|
|
The Factory (Australia) Pty Ltd |
$655.05 |
|
|
|
Storage Of Christmas Decorations - Building Maintenance |
|
|
|
|
The Royal Life Saving Society Australia |
$2,544.00 |
|
|
|
Lifeguard Requalifications - 16 Participants - Aquamotion |
|
|
|
|
The Trustee for TLC Solutions Australia Unit Trust |
$1,155.00 |
|
|
|
3 Post Workshop Coaching Sessions - 18.06.2020 - Community Safety |
|
|
|
|
TJ Depiazzi & Sons |
$9,367.82 |
|
|
|
Pine Bark Mulch - Connolly Drive - Projects |
|
|
|
|
Toll Transport Pty Ltd |
$516.82 |
|
|
|
Courier Services For The City |
|
|
|
|
Tony Pankiw |
$2,733.50 |
|
|
|
Synthesis Plinth - Cultural Development |
|
|
|
|
Turf Care WA Pty Ltd |
$3,903.24 |
|
|
|
Install Cricket Mats - Various Locations - Parks |
|
|
|
|
Mow Active Parks - Various Locations - Parks |
|
|
|
|
Ungerboeck Systems International Pty Ltd |
$25,205.57 |
|
|
|
Annual Software & Licence Fees - 01.02.2020 - 30.06.2020 - ICT |
|
|
|
|
Viva Energy Australia Pty Ltd |
$52,413.18 |
|
|
|
Fuel Issues For The City |
|
|
|
|
WA Hino Sales & Service |
$768.50 |
|
|
|
Vehicle Spare Parts - Fleet |
|
|
|
|
Wanneroo Electric |
$10,570.67 |
|
|
|
Electrical Maintenance For The City |
|
|
|
|
West Coast Turf |
$19,855.00 |
|
|
|
Turfing - Belhaven Park - Assets |
|
|
|
|
Westbooks |
$1,303.08 |
|
|
|
Book Purchases - Library Services |
|
|
|
|
Western Australian Local Government Association |
$195.00 |
|
|
|
Training - Serving On Council - 1 Attendee - Corporate Support |
|
|
|
|
West-Sure Group Pty Ltd |
$143.66 |
|
|
|
Cash Collection Service - Civic Centre |
|
|
|
|
Workpower Incorporated |
$170.50 |
|
|
|
10 Plants - Connolly Drive - Assets |
|
|
|
|
Xref (AU) Pty Ltd |
$9,900.00 |
|
|
|
Xref - Reference Credits X 150 - People And Culture |
|
|
|
|
Zenien |
$6,618.43 |
|
|
|
It Consulting, Equipment Purchased - ICT |
|
|
|
|
|
|
|
00003885 |
07/07/2020 |
|
|
|
|
|
City of Wanneroo |
$915.00 |
|
|
|
Rates Assessment - Deductions From Monthly Allowances |
|
|
|
|
Cr Brett Treby |
$2,371.56 |
|
|
|
Monthly Allowance |
|
|
|
|
Cr Christopher Baker |
$2,596.56 |
|
|
|
Monthly Allowance |
|
|
|
|
Cr Domenic Zappa |
$2,386.56 |
|
|
|
Monthly Allowance |
|
|
|
|
Cr Dot Newton |
$2,496.56 |
|
|
|
Monthly Allowance |
|
|
|
|
Cr Glynis Parker |
$2,596.56 |
|
|
|
Monthly Allowance |
|
|
|
|
Cr Huu Van Nguyen |
$2,596.56 |
|
|
|
Monthly Allowance |
|
|
|
|
Cr Jacqueline Huntley |
$2,596.56 |
|
|
|
Monthly Allowance |
|
|
|
|
Cr Lewis Flood |
$2,501.56 |
|
|
|
Monthly Allowance |
|
|
|
|
Cr Linda Aitken |
$2,596.56 |
|
|
|
Monthly Allowance |
|
|
|
|
Cr Natalie Sangalli |
$2,596.56 |
|
|
|
Monthly Allowance |
|
|
|
|
Cr Paul Miles |
$2,311.56 |
|
|
|
Monthly Allowance |
|
|
|
|
Cr Sonet Coetzee |
$2,596.56 |
|
|
|
Monthly Allowance |
|
|
|
|
Mayor Tracey Roberts |
$11,251.56 |
|
|
|
Monthly Allowance |
|
|
|
|
|
|
|
00003886 |
09/07/2020 |
|
|
|
|
|
WEX Australia Pty Ltd |
$856.04 |
|
|
|
Fuel Issues - June 2020 |
|
|
|
|
|
|
|
00003887 |
14/07/2020 |
|
|
|
|
|
Synergy |
$582,944.40 |
|
|
|
Power Supplies For The City |
|
|
|
|
|
|
|
00003888 |
14/07/2020 |
|
|
|
|
|
Banksia Grove Development Nominees PL |
$219,759.51 |
|
|
|
Bond Refund - Wildwood Stage 2 Banksia Grove WAPC 156782 |
|
|
|
|
McCorkell Constructions Pty Ltd |
$46,221.96 |
|
|
|
Progress Claim 8 - Dennis Coolley Pavilion Upgrade Hudson Park - Assets |
|
|
|
|
|
|
|
00003889 |
14/07/2020 |
|
|
|
|
|
Satterley Property Group |
$329,439.10 |
|
|
|
Subdivision Bond Refund - Allara North Eglinton POS 10D Dazzle Park - Finance |
|
|
|
|
The Trustee For The Gucce Holdings Trust |
$131,678.84 |
|
|
|
Partial Refund - East Wanneroo Cell 1 Excess Funds |
|
|
|
|
|
|
|
00003890 |
14/07/2020 |
|
|
|
|
|
Alinta Gas |
$59.25 |
|
|
|
Gas Supplies For The City |
|
|
|
|
Australian Taxation Office |
$558,781.00 |
|
|
|
Payroll Deductions |
|
|
|
|
City of Wanneroo |
$2,174.68 |
|
|
|
Development Application - Changeroom Block At Aquamotion - Assets |
|
|
|
|
Cr Lewis Flood |
$324.89 |
|
|
|
Travel Allowance June 2020 |
|
|
|
|
Dale Alcock Homes Pty Ltd |
$2,000.00 |
|
|
|
Refund - Street & Verge Bond |
|
|
|
|
Department of Fire & Emergency Services |
$20,731.01 |
|
|
|
50% Cost Sharing - Community Fire Manager - 27.03.2020 - 25.06.2020 - Community Safety |
|
|
|
|
Department of Planning, Lands and Heritage |
$9,948.00 |
|
|
|
Application Fee - Accepted By The City Of Wanneroo - Development Assessment Panel - Applicant Planning Solutions, Reference DAP/20/01814, Value $16,800.000, Address Lot 9633 Fomiatti Street, Proposal Mixed Use |
|
|
|
|
Fleet Network |
$166.00 |
|
|
|
Input Tax Credits - Salary Packaging 07.06.2020 & 09.06.2020 - Finance |
|
|
|
|
Homebuyers Centre |
$570.75 |
|
|
|
Refund - Building Application - Submitted In Error |
|
|
|
|
LD & D Australia Pty Ltd |
$583.75 |
|
|
|
Milk Deliveries For The City |
|
|
|
|
Mr Andrew Peet |
$360.00 |
|
|
|
Vehicle Crossing Subsidy |
|
|
|
|
Mr Graham Woodard |
$243.55 |
|
|
|
Keyholder Payments |
|
|
|
|
Mr James Church |
$360.00 |
|
|
|
Vehicle Crossing Subsidy |
|
|
|
|
Mr Nathan English |
$2,000.00 |
|
|
|
Refund - Street & Verge Bond |
|
|
|
|
Rates Refund |
$923.04 |
|
|
|
Mrs Tennille Vukovich |
$51.66 |
|
|
|
Dog Registration Refund - Sterilised |
|
|
|
|
Ms Joanne Hunter |
$75.00 |
|
|
|
Dog Registration Refund - Sterilised |
|
|
|
|
Ms Sharon Greenslade |
$130.00 |
|
|
|
Dog Registration Refund - Double Payment |
|
|
|
|
Dog Registration Refund - Sterilised |
|
|
|
|
Ms Yvonne Coetzee |
$350.00 |
|
|
|
Bond Refund |
|
|
|
|
Rates Refund |
$1,556.34 |
|
|
|
Redink Homes Pty Ltd |
$4,130.00 |
|
|
|
Refund - 2 Street & Verge Bonds |
|
|
|
|
Partial Refund - Verge Licence - Incorrect Fee Charged |
|
|
|
|
SSB Pty Ltd |
$4,000.00 |
|
|
|
Refund - 2 Street & Verge Bonds |
|
|
|
|
Trailer Parts Pty Ltd |
$37.60 |
|
|
|
Vehicle Spare Parts - Fleet |
|
|
|
|
Water Corporation |
$1,423.86 |
|
|
|
Water Charges For The City |
|
|
|
|
|
|
|
00003891 |
14/07/2020 |
|
|
|
|
|
ABM Landscaping |
$11,450.18 |
|
|
|
Repair Paving - Various Locations - Engineering |
|
|
|
|
Action Glass & Aluminium |
$2,426.93 |
|
|
|
Glazing Services For The City |
|
|
|
|
Adform Engraving & Signs |
$72.60 |
|
|
|
Name Badges - Community Safety |
|
|
|
|
Airlite Cleaning |
$232.28 |
|
|
|
Office Cleaning Services - YTRAC - Place Management |
|
|
|
|
Alexander House of Flowers |
$115.00 |
|
|
|
Large Mixed Arrangement - J Goodwin - Office Of The Mayor |
|
|
|
|
Amgrow Australia Pty Ltd |
$610.50 |
|
|
|
Fusilade Forte & Freight Charges - Parks |
|
|
|
|
Armaguard |
$150.61 |
|
|
|
Cash Collection Service - Aquamotion |
|
|
|
|
Ascender Peoplestreme Pty Ltd |
$2,640.00 |
|
|
|
Configuration Services - Single Sign On - People And Culture |
|
|
|
|
Ascon Survey And Drafting Pty Ltd |
$4,782.25 |
|
|
|
Feature Survey X 4 Locations - Design |
|
|
|
|
Audi Centre Perth |
$4,865.00 |
|
|
|
Vehicle Service - Fleet |
|
|
|
|
Australian Airconditioning Services Pty Ltd |
$1,012.55 |
|
|
|
Airconditioning Maintenance For The City |
|
|
|
|
Australian Training Management Pty Ltd |
$3,800.00 |
|
|
|
Training - Front End Loader - 4 Attendees - Engineering |
|
|
|
|
Bistel Construction Pty Ltd |
$206,160.00 |
|
|
|
Payment Certificate 3 - Leatherback Park Alkimos Sport Amenities Building - Projects |
|
|
|
|
Bladon WA Pty Ltd |
$22,397.74 |
|
|
|
Staff Uniforms - Various Employees |
|
|
|
|
Borrell Rafferty Associates Pty Ltd |
$1,779.25 |
|
|
|
Quantity Surveying - Butler North District Open Space - Projects |
|
|
|
|
Bridgestone Australia Limited |
$4,362.60 |
|
|
|
Tyre Fitting Services For The City |
|
|
|
|
Cabcharge |
$824.07 |
|
|
|
Cabcharge Services For The City |
|
|
|
|
Canon Production Printing Australia Pty Ltd |
$428.80 |
|
|
|
Colour Print Charges - Assets |
|
|
|
|
Car Care Motor Company Pty Ltd |
$500.50 |
|
|
|
Vehicle Service - Fleet |
|
|
|
|
Pick Up/Drop Off Charge - Vehicles Unavailable - Assets/Parks |
|
|
|
|
Cherry's Catering |
$1,455.00 |
|
|
|
Catering Services For The City |
|
|
|
|
Chris Kershaw Photography |
$440.00 |
|
|
|
Photography - Elected Member Portraits - Communications & Brand |
|
|
|
|
Critical Fire Protection & Training Pty Ltd |
$55.00 |
|
|
|
New Log Book - Ashby Operations Centre Building 2 - Building Maintenance |
|
|
|
|
DC Golf |
$99,855.50 |
|
|
|
Commission Fees - Carramar Golf Course - Property Services |
|
|
|
|
Commission Fees - Marangaroo Golf Course - Property Services |
|
|
|
|
Diamond Plumbing & Gas |
$628.30 |
|
|
|
Plumbing Maintenance For The City |
|
|
|
|
Drainflow Services Pty Ltd |
$1,177.00 |
|
|
|
Road Sweeping Services For The City |
|
|
|
|
Edge People Management |
$3,039.83 |
|
|
|
Case Management - OSH |
|
|
|
|
Elliotts Irrigation Pty Ltd |
$1,123.85 |
|
|
|
Replace Cables - Hacienda Park - Parks |
|
|
|
|
Environmental Industries Pty Ltd |
$31,430.83 |
|
|
|
Landscape Maintenance For The City |
|
|
|
|
EnvisionWare Pty Ltd |
$11,950.84 |
|
|
|
Niche Academy Annual Subscription - Library Services |
|
|
|
|
Envisionware Annual Software - ICT |
|
|
|
|
Rosetta And Cable - Cultural Services |
|
|
|
|
Feral Invasive Species Eradication |
$1,140.00 |
|
|
|
Fox Control - Yellagonga Reserve - Environmental Management |
|
|
|
|
Flick Anticimex Pty Ltd |
$30.03 |
|
|
|
Sanitary Waste Services For The City |
|
|
|
|
Forrest And Forrest Games |
$3,085.50 |
|
|
|
Nematode Analysis - Kingsway - Parks |
|
|
|
|
Geoff's Tree Service Pty Ltd |
$26,334.97 |
|
|
|
Pruning Works For The City |
|
|
|
|
GHD Pty Ltd |
$80,526.20 |
|
|
|
Consultancy Services - Neerabup District Planning - Approval Services |
|
|
|
|
Grand Toyota |
$160.00 |
|
|
|
Vehicle Service - Fleet |
|
|
|
|
Greens Hiab Service |
$1,028.50 |
|
|
|
Install Goal Posts - Various Locations - Parks |
|
|
|
|
Griffin Valuation Advisory |
$2,640.00 |
|
|
|
2020 Land And Building Valuation Services - Assets Planning |
|
|
|
|
Guardian Doors |
$3,814.80 |
|
|
|
6 Monthly Servicing - Various Locations - Building Maintenance |
|
|
|
|
Hanson Construction Materials Pty Ltd |
$534.60 |
|
|
|
Concrete Mix - Various Locations - Engineering |
|
|
|
|
Hays Personnel Services |
$7,130.38 |
|
|
|
Casual Labour For The City |
|
|
|
|
Hydroquip Pumps |
$36,756.94 |
|
|
|
Irrigation Pump Works - Various Locations - Parks |
|
|
|
|
i3 Consultants WA |
$6,037.90 |
|
|
|
3 Road Safety Audits - Wanneroo, Marangaroo & Butler - Assets |
|
|
|
|
Iconic Property Services Pty Ltd |
$270,293.19 |
|
|
|
Cleaning Services For The City |
|
|
|
|
Imagesource Digital Solutions |
$3,355.00 |
|
|
|
Petanque Pitch Overlay Decal - Communications & Brand |
|
|
|
|
700 Corflute Signs - Facility Now Open - Parks |
|
|
|
|
Integrity Industrial Pty Ltd |
$16,264.70 |
|
|
|
Casual Labour For The City |
|
|
|
|
Jadu Software Pty Ltd |
$45,592.80 |
|
|
|
Annual Support And Maintenance - 2019 / 2020 - ICT |
|
|
|
|
James Bennett Pty Ltd |
$594.58 |
|
|
|
Book Purchases - Library Services |
|
|
|
|
JB Hi Fi Group Pty Ltd |
$387.00 |
|
|
|
TV And Wall Mount - Cultural Services |
|
|
|
|
Joondalup Smash Repairs Pty Ltd |
$2,000.00 |
|
|
|
Insurance Excess - WN 33909 & WN 34164 - Parks |
|
|
|
|
Kleenit |
$815.29 |
|
|
|
Graffiti Removal For The City |
|
|
|
|
Landcare Weed Control |
$69,638.97 |
|
|
|
Landscaping Services For The City |
|
|
|
|
LD Total |
$11,044.68 |
|
|
|
Landscaping Services For The City |
|
|
|
|
Lee Syminton |
$955.90 |
|
|
|
Construction Revisions - Leatherback Park Sports Amenities Building - Assets |
|
|
|
|
Magia Solutions Pty Ltd |
$57,200.00 |
|
|
|
Integration Consultant - Wanneroo - Customer & Information Services |
|
|
|
|
Marketforce Pty Ltd |
$9,766.24 |
|
|
|
Advertising Services For The City |
|
|
|
|
Mastec Australia Pty Ltd |
$27,849.36 |
|
|
|
467 360L Green Bins - Waste |
|
|
|
|
Mayday Earthmoving |
$1,866.15 |
|
|
|
Heavy Equipment Hire For The City |
|
|
|
|
Mega Music Australia |
$2,980.00 |
|
|
|
Speakers - Wanneroo - Cultural Development |
|
|
|
|
Michael Page International (Australia) Pty Ltd |
$3,001.93 |
|
|
|
Casual Labour For The City |
|
|
|
|
Mindarie Regional Council |
$321,285.56 |
|
|
|
Refuse Disposal For The City |
|
|
|
|
Minuteman Press Joondalup |
$1,000.00 |
|
|
|
Swimming Pool Inspection Booklets - Wanneroo - Compliance |
|
|
|
|
Miracle Recreation Equipment Pty Ltd |
$4,994.00 |
|
|
|
Playground Repairs - Various Locations - Parks |
|
|
|
|
Modern Motor Trimmers |
$2,464.00 |
|
|
|
8 X Seatcover Bulk Vehicles - Waste |
|
|
|
|
Natural Area Holdings Pty Ltd |
$21,960.01 |
|
|
|
Beach Access Way Maintenance - Various Location - Trees & Conservation |
|
|
|
|
Forestry Tube Stock - Wanneroo - Planning & Sustainability |
|
|
|
|
Seed Collection - Various Locations - Trees & Conservation |
|
|
|
|
Nerida Moredoundt |
$600.00 |
|
|
|
Professional Services - Wanneroo - Approval Services |
|
|
|
|
Netsight Pty Ltd |
$30,465.60 |
|
|
|
Myosh Annual Subscription Fee - ICT |
|
|
|
|
NVMS Pty Ltd |
$1,193.50 |
|
|
|
Calibration Of Equipment - Wanneroo - Environmental Health |
|
|
|
|
On Tap Plumbing & Gas Pty Ltd |
$2,033.09 |
|
|
|
Plumbing Maintenance For The City |
|
|
|
|
Paperbark Technologies Pty Ltd |
$9,658.80 |
|
|
|
Street Tree Data Collection - Wanneroo - Parks |
|
|
|
|
Parker Black & Forrest |
$616.00 |
|
|
|
Supply Keys Cut - Belhaven - Parks |
|
|
|
|
Plantrite |
$4,537.50 |
|
|
|
Plant Propagation - Various Locations - Conservation |
|
|
|
|
Prestige Alarms |
$6,383.66 |
|
|
|
Alarm Monitoring Services For The City |
|
|
|
|
Programmed Integrated Workforce |
$10,984.83 |
|
|
|
Casual Labour For The City |
|
|
|
|
Reliable Fencing |
$18,308.07 |
|
|
|
Fencing Works For The City |
|
|
|
|
Repco |
$196.90 |
|
|
|
Vehicle Spare Parts - Fleet |
|
|
|
|
Roberts Day Group Pty Ltd |
$700.22 |
|
|
|
Refund - Local Development Plan Fee - No. 1.2 (Stage 1B) Jindee |
|
|
|
|
Roy Gripske & Sons Pty Ltd |
$183.42 |
|
|
|
File Holder - Stores |
|
|
|
|
RW Quantity Surveyors |
$1,694.00 |
|
|
|
Quantity Surveying - Leatherback Park Sports Amenities Building - Assets |
|
|
|
|
Safety And Rescue Equipment |
$203.50 |
|
|
|
Height Safety Equipment Inspection - Belhaven Park Sports Amenities Building - Building Maintenance |
|
|
|
|
Safety Tactile Pave |
$12,227.90 |
|
|
|
Replace Tactile Pavers - Grand Paradiso/Tarbert Parade - Engineering |
|
|
|
|
Install Tactile Pavers - Hepburn Avenue/Highclere Boulevard - Assets |
|
|
|
|
Safety World |
$448.80 |
|
|
|
Ranger Vest - Wanneroo - Community Safety |
|
|
|
|
Safeway Building & Renovations Pty Ltd |
$30,219.20 |
|
|
|
Install Auto Dialler For SMS - Kingsway Aquatic Play Space - Assets |
|
|
|
|
Paving Works - Kingsway Aquatic Play Space - Assets |
|
|
|
|
Scott Print |
$396.00 |
|
|
|
Volunteer Brochure Printing - Wanneroo - Community Development |
|
|
|
|
Sifting Sands |
$4,705.96 |
|
|
|
Sand Cleaning @ 14 Locations - Parks |
|
|
|
|
Site Environmental & Remediation Services Pty Ltd |
$7,772.66 |
|
|
|
Removal Of Asbestos - Various Locations - Parks |
|
|
|
|
Skipper Transport Parts |
$562.88 |
|
|
|
Vehicle Spare Parts - Fleet |
|
|
|
|
Smartbuilt Perth Pty Ltd |
$2,386.06 |
|
|
|
Pest Control Services For The City |
|
|
|
|
Sonic Healthplus Pty Ltd |
$135.85 |
|
|
|
Medical Fees For The City |
|
|
|
|
St John Ambulance Western Australia Ltd |
$904.74 |
|
|
|
First Aid Supplies For The City |
|
|
|
|
Statewide Pump Services |
$1,067.00 |
|
|
|
Waste Sewage Pump - 2 Locations - Building Maintenance |
|
|
|
|
Stiles Electrical |
$12,038.39 |
|
|
|
Centralised Floodlight Control System - Multiple Sites - Assets |
|
|
|
|
Payment Certificate 7 - Abbeville Park Floodlighting - Projects |
|
|
|
|
Strategic DCP Consulting |
$3,465.10 |
|
|
|
Consulting Services - Cells - Strategic Land |
|
|
|
|
Supersealing Pty Ltd |
$3,157.00 |
|
|
|
Crack Sealing - Wanneroo - Engineering Maintenance |
|
|
|
|
Tenco Engineers Pty Ltd |
$9,988.00 |
|
|
|
Structural Engineering Services - Wanneroo - Assets |
|
|
|
|
Terra Rosa Consulting |
$7,067.12 |
|
|
|
Survey - Two Rocks Archaeological Site - Strategic Land Use Planning |
|
|
|
|
Terravac Vacuum Excavations Pty Ltd |
$13,604.96 |
|
|
|
Location Of Services - Various Locations - Assets |
|
|
|
|
The Rigging Shed |
$3,527.70 |
|
|
|
Onsite Testing & Tagging Of Equipment - Fleet |
|
|
|
|
The Royal Life Saving Society Australia |
$4,392.68 |
|
|
|
Maintenance - Kingsway Aquatic - Parks |
|
|
|
|
The Trustee for CWC Trust |
$3,003.00 |
|
|
|
Consultancy Services - Ridgewood Park Lighting Upgrade - Projects |
|
|
|
|
The Wipes Australia Trust |
$1,026.74 |
|
|
|
Gym Wipes - Aquamotion |
|
|
|
|
TJ Depiazzi & Sons |
$32,787.37 |
|
|
|
Pine Bark Mulch Delivery - Connolly Drive - Assets |
|
|
|
|
Toll Transport Pty Ltd |
$237.16 |
|
|
|
Courier Services - Corporate Support |
|
|
|
|
Toolmart |
$1,489.00 |
|
|
|
Hammer Drill Kit - Wanneroo - Engineering |
|
|
|
|
Top Of The Ladder Gutter Cleaning |
$17,743.00 |
|
|
|
Roof And Gutter Cleaning - Various Locations - Building Maintenance |
|
|
|
|
Total Landscape Redevelopment Service Pty Ltd |
$2,992.00 |
|
|
|
Landscaping - Ashby Operations Centre |
|
|
|
|
Triton Electrical Contractors Pty Ltd |
$1,262.25 |
|
|
|
Reticulation Electrical Works - Various Locations - Parks |
|
|
|
|
Turf Care WA Pty Ltd |
$19,133.71 |
|
|
|
Turfing Works For The City |
|
|
|
|
WA Hino Sales & Service |
$160.58 |
|
|
|
Vehicle Spare Parts - Fleet |
|
|
|
|
Wanneroo Electric |
$66,154.24 |
|
|
|
Electrical Maintenance For The City |
|
|
|
|
Water Technology Pty Ltd |
$13,053.90 |
|
|
|
Consultancy Services - Mindarie Breakwater - Assets |
|
|
|
|
West Coast Turf |
$19,911.60 |
|
|
|
Turfing Works For The City |
|
|
|
|
Western Australian Local Government Association |
$578.00 |
|
|
|
Training - Professionally Speaking - 1 Attendee - Council & Corporate Support |
|
|
|
|
Western Environmental |
$8,096.00 |
|
|
|
Drainage Sump Contamination Assessment - Alexander Heights Shopping Centre - Property |
|
|
|
|
Contamination Due Diligence Assessment - Wanneroo Road - Property |
|
|
|
|
Western Tree Recyclers |
$24,386.67 |
|
|
|
Green Waste Removal - Wangara - Waste Services |
|
|
|
|
Winc Australia Pty Limited |
$5,828.48 |
|
|
|
Stationery For The City |
|
|
|
|
Wirtgen Australia |
$568.76 |
|
|
|
Vehicle Spare Parts - Fleet |
|
|
|
|
Work Clobber |
$292.50 |
|
|
|
Staff Uniforms - 5 Bomber Jackets - Parks |
|
|
|
|
|
|
|
00003892 |
15/07/2020 |
|
|
|
|
|
Australia Post |
$9,191.98 |
|
|
|
Postage Charges For The City |
|
|
|
|
|
|
|
00003893 |
16/07/2020 |
|
|
|
|
|
Geared Construction Pty Ltd |
$151,777.31 |
|
|
|
Progress Claim 2 - Construction Of Accessibility Upgrade - Jenolan Way Community Centre - Assets |
|
|
00003894 |
20/07/2020 |
|
|
|
|
|
Department of Mines, Industry Regulation & Safety |
$50,634.81 |
|
|
|
Collection Agency Fee Payments 01 - 30.06.2020 |
|
|
|
|
|
|
|
00003895 |
21/07/2020 |
|
|
|
|
|
Synergy |
$8,996.01 |
|
|
|
Power Supplies For The City |
|
|
|
|
|
|
|
00003896 |
21/07/2020 |
|
|
|
|
|
Perth Energy Pty Ltd |
$120,849.48 |
|
|
|
Power Supplies For The City |
|
|
|
|
|
|
|
00003897 |
21/07/2020 |
|
|
|
|
|
Australian Manufacturing Workers Union |
$83.40 |
|
|
|
Payroll Deductions |
|
|
|
|
Australian Services Union |
$697.30 |
|
|
|
Payroll Deductions |
|
|
|
|
Australian Taxation Office |
$1,150,529.00 |
|
|
|
Payroll Deductions |
|
|
|
|
Building & Construction Industry Training Board |
$12,513.41 |
|
|
|
Collection Agency Levy Payments June 2020 - Finance |
|
|
|
|
CFMEU |
$60.00 |
|
|
|
Payroll Deductions |
|
|
|
|
Child Support Agency |
$1,649.03 |
|
|
|
Payroll Deductions |
|
|
|
|
City of Wanneroo - Payroll Rates |
$1,280.00 |
|
|
|
Payroll Deductions |
|
|
|
|
City of Wanneroo - Social Club |
$708.00 |
|
|
|
Payroll Deductions |
|
|
|
|
Cr Jacqueline Huntley |
$183.03 |
|
|
|
Reimbursement - Travel Expenses - 13.01.2020 - 04.03.2020 |
|
|
|
|
Department of Transport |
$1,232.80 |
|
|
|
Vehicle Ownership Search - Community Safety |
|
|
|
|
Fleet Network |
$1,534.90 |
|
|
|
Payroll Deductions |
|
|
|
|
Rates Refund |
$513.96 |
|
|
|
HBF Health Limited |
$622.90 |
|
|
|
Payroll Deductions |
|
|
|
|
Landgate |
$5,148.44 |
|
|
|
Service Fee - Extraction Of Tenure Data - ICT |
|
|
|
|
Gross Rental Valuations - Rating Services |
|
|
|
|
LD & D Australia Pty Ltd |
$98.50 |
|
|
|
Milk Deliveries For The City |
|
|
|
|
LGISWA |
$392,792.94 |
|
|
|
Insurance - Workcare 30.06.2020 - 31.10.2020 |
|
|
|
|
LGRCEU |
$1,711.76 |
|
|
|
Payroll Deductions |
|
|
|
|
Lotterywest |
$17,495.88 |
|
|
|
Global Beats & Eats Grant Acquittal - Events |
|
|
|
|
Main Roads WA |
$83,435.82 |
|
|
|
Refund - 2018 / 2019 State Black Spot Project - Gnangara Road To Alexander Drive - Assets |
|
|
|
|
Design/Install Traffic Control Mast Arms - Ocean Reef Road At Intersection Of Lenore Road & Hartman Drive - Assets |
|
|
|
|
Maxxia Pty Ltd |
$8,350.22 |
|
|
|
Payroll Deductions |
|
|
|
|
Input Tax Credits For Salary Packaging June 2020 - Finance |
|
|
|
|
Mr Matthew Spiteri |
$2,000.00 |
|
|
|
Refund - Street & Verge Bond |
|
|
|
|
Mr Philipe De Freitas |
$360.00 |
|
|
|
Vehicle Crossing Subsidy |
|
|
|
|
Mr Roy Bastick |
$60.00 |
|
|
|
Volunteer Payment |
|
|
|
|
Rates Refund |
$504.18 |
|
|
|
Mr Thomas Bird |
$360.00 |
|
|
|
Vehicle Crossing Subsidy |
|
|
|
|
Mrs Michelle Dempster |
$150.00 |
|
|
|
Dog Registration Refund - Sterilised |
|
|
|
|
Ms Jennifer Brown |
$1,000.00 |
|
|
|
Refund - Street & Verge Bond |
|
|
|
|
Paywise Pty Ltd |
$2,127.16 |
|
|
|
Payroll Deductions |
|
|
|
|
Input Tax Credits For Salary Packaging For June 2020 - Finance |
|
|
|
|
Quinns Mindarie Surf Life Saving Club Incorporated |
$22,000.00 |
|
|
|
Payment For Beach Safety Services - Community Services |
|
|
|
|
Royal Western Australian Historical Society |
$95.00 |
|
|
|
Annual Subscription 2020 / 2021 - Cultural Services |
|
|
|
|
Smartsalary |
$10,283.42 |
|
|
|
Payroll Deductions |
|
|
|
|
Input Tax Credits For Salary Packaging For June 2020 - Finance |
|
|
|
|
Swan Group WA |
$242.00 |
|
|
|
Cupboard Rekeying - Edgar Griffiths - Assets |
|
|
|
|
Ventura Home Group Pty Ltd |
$216.00 |
|
|
|
Refund - Verge Licence Application - Duplicated |
|
|
|
|
Water Corporation |
$63,451.11 |
|
|
|
Water Supplies For The City |
|
|
|
|
Zurich Australia Insurance Ltd |
$1,000.00 |
|
|
|
Insurance Excess - Waste Services |
|
|
|
|
|
|
|
00003898 |
21/07/2020 |
|
|
|
|
|
Acurix Networks Pty Ltd |
$4,452.80 |
|
|
|
Monthly Monitoring Charges - ICT |
|
|
|
|
Advanced Traffic Management |
$23,739.10 |
|
|
|
Traffic Control Services For The City |
|
|
|
|
AFGRI Equipment Australia Pty Ltd |
$1,290.85 |
|
|
|
Vehicle Spare Parts - Fleet |
|
|
|
|
Air Liquide Australia |
$285.12 |
|
|
|
Gas Bottle Rental - Fleet |
|
|
|
|
Alinea Incorporated |
$5,141.13 |
|
|
|
Metropolitan Library Courier Service 2020 / 2021 - Library Services |
|
|
|
|
Allaboutxpert Technologies Pty Ltd |
$1,203.13 |
|
|
|
Consulting Services - HRP Post - ICT |
|
|
|
|
Animal Pest Management Services |
$2,915.00 |
|
|
|
Fox Trapping - Marangaroo Park, Damian Park, Franklin Park, Golfview Park - Conservation |
|
|
|
|
Remove Dangerous Fauna - Cull Aggressive Australian Raven - Parks |
|
|
|
|
Aqua Attack Drilling |
$37,863.50 |
|
|
|
Renew Irrigation Bore - Carramar Golf Club - Parks |
|
|
|
|
Arcus Wire Group Pty Ltd |
$1,184.70 |
|
|
|
Picture Tracks - Cultural Services |
|
|
|
|
Artref Pty Ltd |
$156.20 |
|
|
|
Printer Supplies - Planning |
|
|
|
|
Ascender Peoplestreme Pty Ltd |
$4,400.00 |
|
|
|
Annual Licence - Provision For Single Sign On - 2020 / 2021 - People And Culture |
|
|
|
|
Atom Supply |
$2,044.90 |
|
|
|
Vehicle Spare Parts - Fleet/Stores Stock |
|
|
|
|
Australian Property Consultants |
$2,750.00 |
|
|
|
Consultancy - Market Rent Assessment - Property Services |
|
|
|
|
AV Truck Service Pty Ltd |
$1,902.61 |
|
|
|
Vehicle Spare Parts - Fleet |
|
|
|
|
Azility |
$30,213.70 |
|
|
|
Subscription - 01.04.2020 - 30.06.2021 Core & Addition Of Utility Module - ICT |
|
|
|
|
Ball & Doggett Pty Ltd |
$709.27 |
|
|
|
Paper Supplies - Print Room |
|
|
|
|
Barra Civil & Fencing |
$23,643.40 |
|
|
|
Replace Wire Sump Fence - Abbeville Crescent - Engineering |
|
|
|
|
BCI Sales Pty Ltd |
$57.20 |
|
|
|
Vehicle Spare Parts - Fleet |
|
|
|
|
Benara Nurseries |
$4,506.18 |
|
|
|
Plants - Parks |
|
|
|
|
Better Pets and Gardens Wangara |
$642.73 |
|
|
|
Animal Care Centre Supplies |
|
|
|
|
Bioscience Pty Ltd |
$572.00 |
|
|
|
Leaf Tissue Analysis - Parks |
|
|
|
|
BOC Limited |
$59.01 |
|
|
|
Industrial Nitrogen & Oxygen - Rangers/Community Safety |
|
|
|
|
Bollig Design Group Ltd |
$5,225.00 |
|
|
|
Consultancy - Southern Suburbs Library - Projects |
|
|
|
|
Boral Construction Materials Group Ltd |
$2,876.01 |
|
|
|
Concrete Mix - Various Locations - Engineering |
|
|
|
|
Boss Bollards |
$13,887.50 |
|
|
|
Install Bollards - Dog Beach Car Park - Quinns Rocks - Assets Maintenance |
|
|
|
|
Install New Steel Bollard - Sovereign Drive - Engineering |
|
|
|
|
Replace & Repair Bollards & Install Bitumen - Portofino's Main Entry Carpark - Engineering |
|
|
|
|
Boya Equipment |
$114.99 |
|
|
|
Handpump Sprayer - Parks |
|
|
|
|
Bradbury Sewell Pty Ltd |
$550.00 |
|
|
|
Dilapidation Survey - Scarlett Mews Pathway - Assets |
|
|
|
|
Bridgestone Australia Limited |
$17,916.19 |
|
|
|
Tyre Fitting Services For The City |
|
|
|
|
Bucher Municipal Pty Ltd |
$23,336.88 |
|
|
|
Vehicle Spare Parts - Fleet/Stores |
|
|
|
|
Cameron Chisholm & Nicol (WA) Pty Ltd |
$1,100.00 |
|
|
|
Professional Services - Design Review |
|
|
|
|
Canford Hospitality Consultants |
$1,386.00 |
|
|
|
Review & Consultation - Yanchep Lagoon Project - Economic Development |
|
|
|
|
Canon Production Printing Australia Pty Ltd |
$101.62 |
|
|
|
Scanner Charges - ICT |
|
|
|
|
Canterbury Group Pty Ltd |
$423.50 |
|
|
|
Linear Medium Work Chair - Facilities |
|
|
|
|
Car Care Motor Company Pty Ltd |
$1,954.70 |
|
|
|
Vehicle Services For The City |
|
|
|
|
Carramar Resources Industries |
$4,197.89 |
|
|
|
Disposal Of Materials For The City |
|
|
|
|
CDM Australia Pty Ltd |
$1,705.90 |
|
|
|
Licence Renewal & Computer Straps - ICT |
|
|
|
|
Challenge Batteries WA |
$858.00 |
|
|
|
Vehicle Batteries - Fleet |
|
|
|
|
Cherry's Catering |
$2,244.50 |
|
|
|
Catering Services For The City |
|
|
|
|
Civica Pty Ltd |
$24,691.70 |
|
|
|
Trim Licences - ICT |
|
|
|
|
CK Maloney Surveying |
$12,410.20 |
|
|
|
Detail Survey - Brazier Road & Yanchep Beach Road - Design |
|
|
|
|
Clark Equipment Sales Pty Ltd |
$104.50 |
|
|
|
Vehicle Spare Parts - Fleet |
|
|
|
|
Clayton Utz |
$6,664.68 |
|
|
|
Legal Fees For The City |
|
|
|
|
Cleanaway Equipment Services Pty Ltd |
$415.80 |
|
|
|
Monthly Charge Parts Washer - Fleet |
|
|
|
|
Clinipath Pathology |
$290.70 |
|
|
|
Medical Fees For The City |
|
|
|
|
Coastal Navigation Solutions |
$1,237.50 |
|
|
|
Install Mosaics - Ridgewood Park - Cultural Services |
|
|
|
|
Coates Hire Operations Pty Ltd |
$4,091.00 |
|
|
|
Lighting Tower - Tumbleweed Drive Roundabout - Construction |
|
|
|
|
Portable Toilet - Bennett Road - Construction |
|
|
|
|
Colleagues Nagels Pty Ltd |
$2,403.20 |
|
|
|
Infringement Rolls - Community Safety |
|
|
|
|
Colourpoint Print & Design |
$713.00 |
|
|
|
Printing - Duties Performed By Rangers Books - Community Safety |
|
|
|
|
Commercial Aquatics Australia |
$5,274.50 |
|
|
|
Monthly Preventative Maintenance - Aquamotion |
|
|
|
|
Community Greenwaste Recycling Pty Ltd |
$1,910.70 |
|
|
|
Disposal Of Mixed Types Of Waste - Parks |
|
|
|
|
Consolidation Enterprises Pty Ltd |
$2,200.00 |
|
|
|
Install Plank And Mesh - Bushland Retreat - Compliance |
|
|
|
|
Converge International Pty Ltd |
$9,968.75 |
|
|
|
Provide EAP Service - People And Culture |
|
|
|
|
Cooldrive Distribution |
$366.96 |
|
|
|
Vehicle Spare Parts - Fleet |
|
|
|
|
Corsign (WA) Pty Ltd |
$1,496.77 |
|
|
|
Street Name Plates - Engineering |
|
|
|
|
Sticker - Corrosive 8 - Parks |
|
|
|
|
2 Signs - Boardwalk Closure - Studmaster Park - Parks |
|
|
|
|
CR Kennedy & Co Pty Ltd |
$973.50 |
|
|
|
3 X Leica Batteries - Surveying |
|
|
|
|
Critical Fire Protection & Training Pty Ltd |
$4,514.48 |
|
|
|
Call Out Services - Fire Detection Equipment - Building Maintenance |
|
|
|
|
Crown Lift Trucks |
$257.95 |
|
|
|
Vehicle Spare Parts - Fleet |
|
|
|
|
Daimler Trucks Perth |
$886.53 |
|
|
|
Vehicle Spare Parts - Fleet |
|
|
|
|
Database Consultants Australia |
$1,375.00 |
|
|
|
Pinforce Workflow Configuration To Add School Parking And Schools List - Community Safety |
|
|
|
|
Dave Lanfear Consulting |
$40,180.00 |
|
|
|
Feasibility Study - Wanneroo Recreation Centre - Facilities |
|
|
|
|
DDLS Australia Pty Ltd |
$4,455.00 |
|
|
|
Training - Mastering Business Analysis - 1 Attendee - ICT |
|
|
|
|
Department Of Biodiversity, Conservation And Attractions |
$1,515.00 |
|
|
|
Park Passes - Yanchep National Park - Economic Development |
|
|
|
|
Department of the Premier and Cabinet |
$123.60 |
|
|
|
Advertising - Basis Of Rates - Rating Services |
|
|
|
|
Devlyn Australia Pty Ltd |
$3,303.30 |
|
|
|
Variation - Belhaven Park Sports Amenities Building - Assets |
|
|
|
|
Digga West |
$166.10 |
|
|
|
Threaded Adjuster - Fleet |
|
|
|
|
Digital Education Services |
$3,392.07 |
|
|
|
DVD Stock - Library Services |
|
|
|
|
Discus Print & Signage |
$789.80 |
|
|
|
Replace Above Door Sign - WLCC - Building Maintenance |
|
|
|
|
Dowsing Group Pty Ltd |
$12,649.48 |
|
|
|
Concrete Works - Highclere Boulevard/Hepburn Avenue - Construction |
|
|
|
|
Concrete Works - Tumbleweed Road/Joondalup Drive - Construction |
|
|
|
|
Drainflow Services Pty Ltd |
$56,621.25 |
|
|
|
Road Sweeping/Drain Cleaning Services For The City |
|
|
|
|
Driving Wheels |
$330.00 |
|
|
|
Wheel Alignment Check - Fleet |
|
|
|
|
Drovers Vet Hospital Pty Ltd |
$90.00 |
|
|
|
Veterinary Services For The City |
|
|
|
|
E & MJ Rosher |
$1,406.98 |
|
|
|
Vehicle Spare Parts - Fleet |
|
|
|
|
ECO Environmental Holdings Pty Ltd |
$449.00 |
|
|
|
Rental - Multi-Parameter Meter And Associated Equipment - Parks |
|
|
|
|
Eco-Growth International Pty Ltd |
$482.35 |
|
|
|
Eco Prime Purple Fertiliser - Parks |
|
|
|
|
Edge People Management |
$3,890.78 |
|
|
|
Case Management, Review Job Dictionaries & Ergonomic Assessments - People And Culture |
|
|
|
|
Edith Cowan University |
$1,941.50 |
|
|
|
Extension To Incorporate Reporting On The Wangara Sump Into The Yellagonga Wetlands Report 2019 / 2020 - Assets |
|
|
|
|
Elliotts Irrigation Pty Ltd |
$10,728.43 |
|
|
|
Reticulation Works/Items - Various Locations - Parks |
|
|
|
|
Emerge Environmental Services Pty Ltd |
$29,908.55 |
|
|
|
Stormwater Masterplan - Yellagonga Catchment Review - Projects |
|
|
|
|
Encore Automation |
$212.96 |
|
|
|
Calibration/Service Of Portable Gas Detector - Fleet |
|
|
|
|
Environmental Industries Pty Ltd |
$160,608.99 |
|
|
|
Landscape Maintenance For The City |
|
|
|
|
Epic Catering |
$195.25 |
|
|
|
Grease Trap Return - Aquamotion |
|
|
|
|
EPM Partners Pty Ltd |
$11,616.00 |
|
|
|
Care Support Package - ICT |
|
|
|
|
Equifax Australasia Credit Rating Pty Ltd |
$1,811.70 |
|
|
|
Financial Assessments - Contracts & Procurement |
|
|
|
|
Equifax Australasia Workforce Solutions Pty Limited |
$275.00 |
|
|
|
Fit2Work Licence Fee - 01.06.2020 - 31.05.2021 - Fire Services |
|
|
|
|
Ergolink |
$145.70 |
|
|
|
Corded Trackball Mouse - Council & Corporate Support |
|
|
|
|
Esri Australia |
$11,367.04 |
|
|
|
Desktop Licences - ICT |
|
|
|
|
Excalibur Printing |
$135.30 |
|
|
|
Reflective Print - Ranger - Community Safety |
|
|
|
|
Extent Heritage WA Pty Ltd |
$6,435.00 |
|
|
|
Consultancy Services - Registration Of Significant Aboriginal, Vegetation And Cultural Heritage Sites - Strategic Land Use Planning |
|
|
|
|
Focus Consulting WA Pty Ltd |
$5,016.00 |
|
|
|
Consultancy Works - Various Project Sites - Assets |
|
|
|
|
Frontline Fire & Rescue Equipment |
$1,319.30 |
|
|
|
Vehicle Spare Parts - Fleet |
|
|
|
|
Replace Fire Blanket - Emergency Services |
|
|
|
|
Davey Single Impellor Pump - Fleet |
|
|
|
|
Gaia Resources |
$6,600.00 |
|
|
|
Development Of The Wanneroo Regional Museum Repatriation Website - Cultural Development |
|
|
|
|
Geared Construction Pty Ltd |
$484.00 |
|
|
|
Progress Claim 3 - Jenolan Way Community Centre - Assets |
|
|
|
|
Geofabrics Australasia Pty Ltd |
$20,715.20 |
|
|
|
Grassroots Rolls & Pins - Assets |
|
|
|
|
Geoff's Tree Service Pty Ltd |
$215,609.72 |
|
|
|
Pruning and Associated Services For The City |
|
|
|
|
GHD Pty Ltd |
$5,545.21 |
|
|
|
Final Claim - Marmion Avenue Works - Assets |
|
|
|
|
Gillmore Electrical Services |
$23,854.60 |
|
|
|
Progress Claim 2 - Koondoola Park Floodlighting - Assets |
|
|
|
|
GISSA International Pty Ltd |
$2,987.60 |
|
|
|
Contribution A-Spec Administration - 2020 / 2021 - Assets |
|
|
|
|
Global Spill Control Pty Ltd |
$1,165.47 |
|
|
|
Sorbalite Zeolite - Stores |
|
|
|
|
GrantReady |
$4,950.00 |
|
|
|
Grantguru Portal 2020 / 2021 - Economic Development |
|
|
|
|
Greens Hiab Service |
$605.00 |
|
|
|
Relocate Goal Posts - Wanneroo Showgrounds & Ridgewood - Parks |
|
|
|
|
Hall & Wilcox |
$600.60 |
|
|
|
Legal Fees For The City |
|
|
|
|
Hays Personnel Services |
$3,961.32 |
|
|
|
Casual Labour For The City |
|
|
|
|
Heatley Sales Pty Ltd |
$1,705.35 |
|
|
|
Stock - Stores Issues |
|
|
|
|
Cargo Net - Waste |
|
|
|
|
Heavy Automatics |
$74.25 |
|
|
|
Vehicle Spare Parts - Fleet |
|
|
|
|
Hendry Group Pty Ltd |
$22,410.03 |
|
|
|
Consultancy Services - Accessibility Audits For Properties In The City - Assets |
|
|
|
|
Design Appraisal Accessibility Improvements Quinns Mindarie Surf Lifesaving Club - Projects - Assets |
|
|
|
|
Heritage Link |
$495.00 |
|
|
|
Aboriginal Heritage Management - Planning Services |
|
|
|
|
Heritage Medals |
$360.00 |
|
|
|
Medals - Fire Services |
|
|
|
|
Hickey Constructions Pty Ltd |
$22,498.30 |
|
|
|
Repaint Partitions - Lake Joondalup Park Changerooms - Assets |
|
|
|
|
Construction Services - Lake Joondalup Changeroom - Assets |
|
|
|
|
Replace Limestone Wall - Boston Quays Carpark - Engineering |
|
|
|
|
Hitachi Construction Machinery Pty Ltd |
$1,101.59 |
|
|
|
Vehicle Spare Parts - Stores |
|
|
|
|
Horizon West Landscape & Irrigation Pty Ltd |
$685,321.79 |
|
|
|
Landscaping Services For The City |
|
|
|
|
Hose Right |
$1,821.71 |
|
|
|
Vehicle Spare Parts - Fleet |
|
|
|
|
Hydreco Hydraulics (WA) Pty Ltd |
$406.74 |
|
|
|
Vehicle Spare Parts - Fleet |
|
|
|
|
Hydroquip Pumps |
$9,553.50 |
|
|
|
Irrigation Pump Works - Various Locations - Parks |
|
|
|
|
Imagesource Digital Solutions |
$1,381.60 |
|
|
|
Corflutes - Social Distancing - Library Services |
|
|
|
|
Corflutes - Revised Welcome Message - Library Services |
|
|
|
|
Corflutes - Kids Safety - Cultural Services |
|
|
|
|
Corflutes - Social Distancing - Cultural Services |
|
|
|
|
Corflutes - Library Re-Open - Library Services |
|
|
|
|
Display Panel - Gloucester Lodge - Cultural Services |
|
|
|
|
2 A1 Maps Printed & Mounted - Heritage & Museums |
|
|
|
|
Indoor Gardens Pty Ltd |
$266.20 |
|
|
|
Rental Of Indoor Plants - New Civic Centre Foyer - Customer Relations |
|
|
|
|
InfoCouncil Pty Ltd |
$2,018.28 |
|
|
|
Template Changes - Committees & Working Group Table Of Contents - Corporate Support |
|
|
|
|
Information Proficiency |
$1,760.00 |
|
|
|
IP Consultant - ICT |
|
|
|
|
InSig Technologies Pty Ltd |
$27,450.50 |
|
|
|
Summary & Recommendation - Yellagonga Proof Of Concept - ICT |
|
|
|
|
Integrity Industrial Pty Ltd |
$62,829.31 |
|
|
|
Casual Labour For The City |
|
|
|
|
Intelife Group |
$16,569.00 |
|
|
|
Clean/Disinfect Drink Fountains - Various Locations |
|
|
|
|
Interfire Agencies Pty Ltd |
$1,281.88 |
|
|
|
Pacific Helmets & Fire Hose Reel - Fire Services |
|
|
|
|
Iron Mountain Australia Group Pty Ltd |
$4,966.22 |
|
|
|
Document Management Services |
|
|
|
|
J Blackwood & Son Ltd |
$722.10 |
|
|
|
Stock - Store Issues |
|
|
|
|
Jadu Software Pty Ltd |
$9,240.00 |
|
|
|
AWS DR Site - Annual Hosting And Set Up Costs - ICT |
|
|
|
|
James Bennett Pty Ltd |
$679.06 |
|
|
|
Book Purchases - Library Services |
|
|
|
|
Jason Sign Makers |
$1,177.00 |
|
|
|
Signage - Bus Shelter Repairs - Quinns Rocks - Engineering |
|
|
|
|
JDSI Consulting Engineers |
$4,141.38 |
|
|
|
Park Survey - Butler North District Open Space - Assets |
|
|
|
|
Park Survey - Halesworth Park Assets |
|
|
|
|
Jesse Lewis Winton |
$5,016.00 |
|
|
|
Legal Fees For The City |
|
|
|
|
Kerb Direct Kerbing |
$6,887.32 |
|
|
|
Kerbing Works - Various Locations - Engineering |
|
|
|
|
Kinetic IT Pty Ltd |
$43,497.27 |
|
|
|
Disaster Recovery Assurance Firewall Assessment - ICT |
|
|
|
|
Threat Intelligence Service - June 2020 - ICT |
|
|
|
|
Vulnerability Assessment & Phishing - ICT |
|
|
|
|
Kleenit |
$3,889.56 |
|
|
|
Graffiti Removal Services For The City |
|
|
|
|
Pressure Clean Oil Stain - Kilborne Avenue - Engineering |
|
|
|
|
Komatsu Australia Pty Ltd |
$516.07 |
|
|
|
Vehicle Spare Parts - Fleet |
|
|
|
|
Konnect (Coventry Fasteners) |
$47.34 |
|
|
|
Vehicle Spare Parts - Fleet |
|
|
|
|
KR Engineering (WA) Pty Ltd |
$330.00 |
|
|
|
Reset Machine - Building Maintenance |
|
|
|
|
Kyocera Document Solutions |
$4,611.67 |
|
|
|
Photocopier Meter Reading For The City |
|
|
|
|
IC Card Authentication Kit & Related Services - ICT |
|
|
|
|
Landcare Weed Control |
$5,233.49 |
|
|
|
Revegetation Site Weed Control - Various Locations - Conservation |
|
|
|
|
Laundry Express |
$1,425.06 |
|
|
|
Laundry Services - Fleet |
|
|
|
|
Washing Of Chaps Overalls - Conservation |
|
|
|
|
Law Gear |
$366.20 |
|
|
|
Uniforms - Rangers |
|
|
|
|
LD Total |
$17,180.14 |
|
|
|
Landscape Maintenance Works For The City |
|
|
|
|
Lee Syminton |
$1,760.00 |
|
|
|
Electrical Engineer - Leatherback Park Sports Amenities Building - Assets |
|
|
|
|
Leederville Cameras |
$1,560.41 |
|
|
|
Camera, Service & Accessories - Cultural Development |
|
|
|
|
Ligna Construction |
$7,716.50 |
|
|
|
Install Limestone Wall - Anchorage Park - Assets |
|
|
|
|
Repairs To Limestone Wall - Rosslare Park - Parks |
|
|
|
|
Linemarking WA Pty Ltd |
$440.00 |
|
|
|
Pavement Marking & Associated Works - Graceful Boulevard - Engineering |
|
|
|
|
LKS Constructions (WA) Pty Ltd |
$22,798.30 |
|
|
|
Landscaping Works - Edgar Griffiths Sports Amenities Building - Projects |
|
|
|
|
Local Government Professionals Australia WA |
$2,200.00 |
|
|
|
Silver Local Government Membership 2020 / 2021 - People & Culture |
|
|
|
|
Major Motors |
$279.52 |
|
|
|
Vehicle Spare Parts - Fleet |
|
|
|
|
Market Creations |
$12,540.00 |
|
|
|
Additional Development - Intranet Platform - ICT |
|
|
|
|
Marketforce Pty Ltd |
$5,101.38 |
|
|
|
Advertising Services For The City |
|
|
|
|
Mayday Earthmoving |
$34,688.50 |
|
|
|
Heavy Equipment Hire For The City |
|
|
|
|
McLeods |
$9,343.17 |
|
|
|
Legal Fees For The City |
|
|
|
|
Meltwater Australia Pty Ltd |
$42,900.00 |
|
|
|
Renewal - Media Monitoring Services - Communications & Brand |
|
|
|
|
Menchetti Consolidated Pty Ltd |
$756.25 |
|
|
|
Temporary Fencing - Hardcastle Park - Assets |
|
|
|
|
MGA Town Planners |
$10,450.00 |
|
|
|
Retail Needs Assessment - Economic Development |
|
|
|
|
Michael Page International (Australia) Pty Ltd |
$9,625.29 |
|
|
|
Casual Labour For The City |
|
|
|
|
Mindarie Regional Council |
$348,333.63 |
|
|
|
Refuse Disposal For The City |
|
|
|
|
Mini-Tankers Australia Pty Ltd |
$3,612.36 |
|
|
|
Fuel - June 2020 - Fleet Assets |
|
|
|
|
Miracle Recreation Equipment Pty Ltd |
$4,603.50 |
|
|
|
Playground Equipment Repairs - Various Locations - Parks |
|
|
|
|
Moharich And More Pty Ltd |
$742.50 |
|
|
|
Legal Fees For The City |
|
|
|
|
Mysite Design Pty Ltd |
$8,525.00 |
|
|
|
12 Month Consultation Fee Manager Unlimited Enterprise System - ICT |
|
|
|
|
NAPA - GPC Asia Pacific Pty Ltd |
$2,201.61 |
|
|
|
Vehicle Spare Parts - Fleet/Stores |
|
|
|
|
Nastech (WA) Pty Ltd |
$5,131.50 |
|
|
|
Cadastral Survey - Hudson Park Reserve - Property |
|
|
|
|
Natural Area Holdings Pty Ltd |
$27,852.28 |
|
|
|
Weed Control - Yellagonga Regional Park - Strategic Land Use Planning |
|
|
|
|
Seed Collection And Plant Propagation - Conservation |
|
|
|
|
Neltronics Australia Pty Ltd |
$757.90 |
|
|
|
Vehicle Spare Parts - Fleet |
|
|
|
|
Neverfail Springwater Limited |
$39.00 |
|
|
|
Water Supply - Print Room |
|
|
|
|
Northern Lawnmower & Chainsaw Specialists |
$499.80 |
|
|
|
Air Filter - Stores |
|
|
|
|
Northern Suburbs Men's Shed Incorporated |
$984.00 |
|
|
|
Children's Play Kitchen - Cultural Services |
|
|
|
|
Nutrien Ag Solutions Limited |
$300.74 |
|
|
|
White Staples, Wire & Gripples - Conservation |
|
|
|
|
On Tap Plumbing & Gas Pty Ltd |
$5,694.70 |
|
|
|
Plumbing Maintenance For The City |
|
|
|
|
Orbit Health & Fitness Solutions |
$388.30 |
|
|
|
Exercise Equipment - Aquamotion |
|
|
|
|
Paperbark Technologies Pty Ltd |
$9,370.50 |
|
|
|
Reports - Various Locations - Parks/Assets |
|
|
|
|
Parks & Leisure Australia |
$2,750.00 |
|
|
|
Annual Corporate Membership - Parks |
|
|
|
|
Pavement Analysis Pty Ltd |
$1,650.00 |
|
|
|
Pavement Profile Recommendations For Smales Road - Assets |
|
|
|
|
Penske Power Systems Pty Ltd |
$351.96 |
|
|
|
Vehicle Filter - Stores |
|
|
|
|
Perth Detailing Centre |
$291.00 |
|
|
|
Cleaning Community Transport - Community Development |
|
|
|
|
Perth Testing & Tagging Pty Ltd |
$165.00 |
|
|
|
3 Monthly Testing & Tagging - Ashby Operations Centre - Construction |
|
|
|
|
Plantrite |
$2,456.52 |
|
|
|
Supply Of Plants - Parks |
|
|
|
|
Poolegrave Signs & Engraving |
$165.00 |
|
|
|
Repair Sign - Redgum Room - Assets |
|
|
|
|
Prestige Alarms |
$15,343.23 |
|
|
|
Alarm/CCTV Services For The City |
|
|
|
|
Professional Trapping Supplies |
$2,171.00 |
|
|
|
3 Hyperfire 2 & 3 Sandisk SD Cards - Parks |
|
|
|
|
Programmed Integrated Workforce |
$12,481.84 |
|
|
|
Casual Labour For The City |
|
|
|
|
Public Transport Authority |
$40,320.50 |
|
|
|
Bus Shelter X 4 - Construction |
|
|
|
|
Publik Group |
$6,129.87 |
|
|
|
Supply Interpretive Graphic Pane & Brolga Double Interpretive Signs - Heritage & Museums |
|
|
|
|
Signage - 10th Light Horse - Heritage & Museums |
|
|
|
|
Quadient |
$146.74 |
|
|
|
Print Room Supplies - Print Room |
|
|
|
|
RAC Motoring & Services Pty Ltd |
$209.00 |
|
|
|
Call Out - WN 33567 - Compliance |
|
|
|
|
RAMM Software Ltd |
$52,329.50 |
|
|
|
Pocket Ramm Software - ICT |
|
|
|
|
Rental Of Ramm Work Management Licence - ICT |
|
|
|
|
Annual Support And Maintenance Fee - ICT |
|
|
|
|
Randal |
$92.40 |
|
|
|
Subscription - Financial Review Newspaper - CEO's Office |
|
|
|
|
Reliable Fencing |
$37,683.65 |
|
|
|
Fencing Works For The City |
|
|
|
|
Ricoh Australia Pty Ltd |
$6,021.91 |
|
|
|
Equipment Rental And Service Contract Charges - Print Room |
|
|
|
|
RJ Vincent & Co |
$1,644,219.78 |
|
|
|
Payment Certificate 16 - Marmion Avenue Duplication - Assets |
|
|
|
|
Variation 4 & Lighting Relocations - Hartman Drive Duplication - Assets |
|
|
|
|
Payment Certificate 9 & 10 - Connolly Drive Duplication - Assets |
|
|
|
|
Refund - Building Application Fee (Partial) - Overpaid 24 Halesworth Butler |
|
|
|
|
RM Gillis & CJ Marci |
$1,080.00 |
|
|
|
Move Furniture - Buckingham House - Cultural Services |
|
|
|
|
Roads 2000 |
$820.49 |
|
|
|
Supply Asphalt - Engineering |
|
|
|
|
Royal Wolf Trading Australia Pty Ltd |
$600.58 |
|
|
|
Monthly Cabin Hire Charges - Fire Services |
|
|
|
|
RS Components Pty Ltd |
$123.36 |
|
|
|
Vehicle Spare Parts - Fleet |
|
|
|
|
Safeman WA Pty Ltd |
$275.00 |
|
|
|
Safety Boots - Stores Stock |
|
|
|
|
Safety And Rescue Equipment |
$275.00 |
|
|
|
Audit Roof Safety - Leatherback Park Sports Amenities - Facilities |
|
|
|
|
Safety World |
$283.80 |
|
|
|
Mechanic Gloves - Conservation |
|
|
|
|
Scott Print |
$9,014.50 |
|
|
|
Printing - Waste Guides - Waste |
|
|
|
|
Printing - Community Safety Flyers - Community Safety |
|
|
|
|
Seabreeze Landscape Supplies |
$216.00 |
|
|
|
Landscape Mix - Parks |
|
|
|
|
Sealanes |
$586.89 |
|
|
|
Food/Beverages - Hospitality |
|
|
|
|
Shred-X |
$187.44 |
|
|
|
Shredding Services For The City |
|
|
|
|
Sifting Sands |
$343.48 |
|
|
|
Clean Sand Pit - Amery Park Hocking - Parks |
|
|
|
|
Site Environmental & Remediation Services Pty Ltd |
$12,796.96 |
|
|
|
Soil Removal - Contaminated Material - Pinjar Park - Assets |
|
|
|
|
Asbestos Removal And Report - Jambanis Park - Parks |
|
|
|
|
Site Sentry Pty Ltd |
$3,846.70 |
|
|
|
Site Entry Security Tower - Safety Services |
|
|
|
|
SJ McKee Maintenance Pty Ltd |
$3,540.50 |
|
|
|
Repair Works - Various Locations - Waste |
|
|
|
|
Skipper Transport Parts |
$7,919.79 |
|
|
|
Vehicle Spare Parts - Fleet/Stores |
|
|
|
|
Skyline Landscape Services (WA) |
$37,230.18 |
|
|
|
Landscape Maintenance For The City |
|
|
|
|
Slater-Gartrell Sports |
$802.00 |
|
|
|
Sports Equipment - Kingsway |
|
|
|
|
Smartbuilt Perth Pty Ltd |
$2,903.77 |
|
|
|
Pest Control Services For The City |
|
|
|
|
Solution 4 Building Pty Ltd |
$190,385.25 |
|
|
|
Progress Claim 9 - Shelvock Park - Hall And Changerooms - Assets |
|
|
|
|
Sonic Healthplus Pty Ltd |
$1,904.30 |
|
|
|
Medical Fees For The City |
|
|
|
|
Sphere Architects |
$3,844.50 |
|
|
|
Design & Superintendent Services - Jenolan Way Community Centre - Assets |
|
|
|
|
Sports World of WA |
$1,484.45 |
|
|
|
Googles - Aquamotion |
|
|
|
|
St John Ambulance Western Australia Ltd |
$73.50 |
|
|
|
First Aid Training Services For The City |
|
|
|
|
Statewide Bearings |
$788.48 |
|
|
|
Vehicle Spare Parts - Workshop |
|
|
|
|
Statewide Cleaning Supplies Pty Ltd |
$382.62 |
|
|
|
Hand Sanitiser - Stores |
|
|
|
|
Stewart & Heaton Clothing Company Pty Ltd |
$25.63 |
|
|
|
Badge Name & Freight Charges - Community Safety |
|
|
|
|
Stiles Electrical |
$26,869.29 |
|
|
|
Final Progress Claim & Release Of Retention - Koondoola Park Floodlighting - Assets |
|
|
|
|
Final Progress Claim & Release Of Retention - Hainsworth Park Floodlighting - Assets |
|
|
|
|
Floodlight Control - Peridot Park |
|
|
|
|
Strategic DCP Consulting |
$3,792.25 |
|
|
|
Internal Transactional Review - Planning Services |
|
|
|
|
Sunny Industrial Brushware |
$1,239.92 |
|
|
|
Brooms & Gutter Brushes - Stores |
|
|
|
|
Swan Towing Services Pty Ltd |
$247.50 |
|
|
|
Bogged Vehicle - Wanneroo Recreation Centre - Parks |
|
|
|
|
Systems Edge Management Services Pty Ltd |
$78,086.25 |
|
|
|
Variation 1 - Yanchep Lagoon Masterplan - Place Management |
|
|
|
|
Business Case - Aquatic And Recreation Facility - Northern Coastal Growth Corridor - Place Management |
|
|
|
|
Tamala Park Regional Council |
$4,128.00 |
|
|
|
GST Payable For June 2020 Pursuant To Section 153B Of Agreement - Finance |
|
|
|
|
Taylor Robinson Chaney Broderick |
$660.00 |
|
|
|
Professional Services - Design Reviews Panel - Planning |
|
|
|
|
Technology One Limited |
$113,409.60 |
|
|
|
Annual Support And Maintenance Fee - ICT |
|
|
|
|
Terravac Vacuum Excavations Pty Ltd |
$7,136.86 |
|
|
|
Locations Of Services For The City |
|
|
|
|
The Hire Guys Wangara |
$440.00 |
|
|
|
Arrow Board - Bulk Refuse - Waste |
|
|
|
|
The Royal Life Saving Society Australia |
$4,679.28 |
|
|
|
Testing & Maintenance - Kingsway Aquatic Playspace - Parks |
|
|
|
|
The Tree Guild of WA Incorporated |
$385.00 |
|
|
|
Membership Fees 2020 / 2021 - Conservation Maintenance |
|
|
|
|
The Trustee for New Dealership Trust |
$159.58 |
|
|
|
Vehicle Spare Parts - Fleet |
|
|
|
|
The Workwear Group Pty Ltd |
$2,246.73 |
|
|
|
Uniforms - Stores Stock |
|
|
|
|
Thirty4 Pty Ltd |
$211.20 |
|
|
|
Qnav Monthly Subscription - July 2020 Community Safety |
|
|
|
|
TJ Depiazzi & Sons |
$45,500.84 |
|
|
|
Pine Bark Mulch - Various Locations - Parks |
|
|
|
|
Toll Transport Pty Ltd |
$1,263.82 |
|
|
|
Courier Services For The City |
|
|
|
|
Tony Pankiw |
$500.00 |
|
|
|
Relocation - Jon Tarry Sculpture - Cultural Development |
|
|
|
|
Toolmart |
$146.00 |
|
|
|
Star Picket Driver - Surveyors |
|
|
|
|
Total Eden Pty Ltd |
$8,976.00 |
|
|
|
20 Trees - Shorehaven - Assets |
|
|
|
|
Total Landscape Redevelopment Service Pty Ltd |
$5,599.00 |
|
|
|
Planting 6 X Magnolias - Pearsall/Wanneroo/Darch - Parks |
|
|
|
|
Landscape Preparation - Edgar Griffiths Park - Projects |
|
|
|
|
TQuip |
$11,778.80 |
|
|
|
Vehicle Spare Parts - Fleet |
|
|
|
|
Triton Electrical Contractors Pty Ltd |
$40,712.43 |
|
|
|
Electrical Works - Various Locations - Parks |
|
|
|
|
Trophy Shop Australia |
$13.70 |
|
|
|
Name Badge - Communications & Brand |
|
|
|
|
Truck Centre WA Pty Ltd |
$1,718.96 |
|
|
|
Vehicle Spare Parts - Fleet |
|
|
|
|
Turf Care WA Pty Ltd |
$10,698.39 |
|
|
|
Turfing Works For The City |
|
|
|
|
Two Rocks Volunteer Bush Fire Brigade |
$82.06 |
|
|
|
Reimbursement - Stationery - Fire Services |
|
|
|
|
Reimbursement - Fuel For Tr1.4 - Fire Services |
|
|
|
|
Tyrecycle Pty Ltd |
$1,147.83 |
|
|
|
Removal Of Tyres - Waste Services |
|
|
|
|
Underground Power Development Pty Ltd |
$3,385.25 |
|
|
|
Design Fee - Traffic Signal Power - Marmion Avenue - Assets |
|
|
|
|
Phase 4 - Marmion Avenue Duplication - Assets |
|
|
|
|
United Equipment Pty Ltd |
$457.46 |
|
|
|
Vehicle Spare Parts - Fleet |
|
|
|
|
Vermeer (WA & NT) |
$446.39 |
|
|
|
Vehicle Spare Parts - Fleet |
|
|
|
|
VMS Trailer Signs Pty Ltd |
$1,210.00 |
|
|
|
VMS Trailer Hire - Compliance |
|
|
|
|
WA Hino Sales & Service |
$3,458.75 |
|
|
|
Vehicle Spare Parts/Repairs - Fleet/Stores |
|
|
|
|
WA Limestone Company |
$6,145.80 |
|
|
|
Supply Class 2 Armour - Two Rocks Road - Engineering |
|
|
|
|
Supply Limestone - Engineering |
|
|
|
|
Wanneroo Agricultural Machinery |
$532.50 |
|
|
|
Vehicle Spare Parts - Fleet |
|
|
|
|
Wanneroo Business Association Incorporated |
$14,850.00 |
|
|
|
Official Sponsorship - Economic Development |
|
|
|
|
Wanneroo Electric |
$6,551.60 |
|
|
|
Electrical Maintenance For The City |
|
|
|
|
Wanneroo Smash Repairs Pty Ltd |
$1,000.00 |
|
|
|
Insurance Excess - WN 33619 - Rangers |
|
|
|
|
Wanneroo Towing Service |
$844.80 |
|
|
|
Towing Services - Fleet/Parks |
|
|
|
|
WATM Crane Sales and Services WA |
$916.96 |
|
|
|
Vehicle Repairs - Fleet |
|
|
|
|
West Coast Turf |
$3,863.20 |
|
|
|
Install Turf - Mintaro Park - Parks |
|
|
|
|
Install Turf - Hainsworth Park - Parks |
|
|
|
|
Westbuild Products Pty Ltd |
$612.48 |
|
|
|
Kwikset 20kg - Stores Stock |
|
|
|
|
Western Australian Treasury Corporation |
$212,839.90 |
|
|
|
Guarantee Fee For P/E 30.06.2020 - Finance |
|
|
|
|
Western Tree Recyclers |
$16,173.26 |
|
|
|
Removal Of Greenwaste - Waste |
|
|
|
|
West-Sure Group Pty Ltd |
$287.32 |
|
|
|
Cash Collection Services For The City |
|
|
|
|
William Buck Consulting (WA) Pty Ltd |
$6,600.00 |
|
|
|
Probity Adviser Services - Contracts |
|
|
|
|
Workpower Incorporated |
$1,466.30 |
|
|
|
Plants - Connolly Drive - Assets |
|
|
|
|
Wrenoil |
$918.50 |
|
|
|
Oil Waste Disposal - Waste |
|
|
|
|
Wrong Fuel Rescue Pty Ltd |
$631.67 |
|
|
|
Fuel Drain - WN 33628 - Parks |
|
|
|
|
Yanchep Beach Joint Venture |
$8,806.71 |
|
|
|
Yanchep Hub - Rent, Outgoings, Rates And Taxes - July 2020 - Property Services |
|
|
|
|
Zetta Group |
$62,614.13 |
|
|
|
EDSM Document Store Technical Leadership - Senior Server Engineer - ICT |
|
|
|
|
DRAAS Managed Services & Hosting - Monthly Service Fee - 01 - 30.06.2020 - ICT |
|
|
|
|
|
|
|
00003899 |
24/07/2020 |
|
|
|
|
|
Courtney Aaron |
$270.00 |
|
|
|
Digital Artwork - Christmas Cards - Moodjar - Communications & Brand |
|
|
|
|
Geared Construction Pty Ltd |
$21,320.75 |
|
|
|
Timelock Installation - Peridot Park - Projects |
|
|
|
|
RJ Vincent & Co |
$50,929.58 |
|
|
|
Payment Certificate 1 - Halesworth Park - Facility Projects |
|
|
|
|
|
|
|
00003900 |
28/07/2020 |
|
|
|
|
|
ABM Landscaping |
$2,239.05 |
|
|
|
Drainage Upgrade - Lift, Stack & Relay Pavers - Quinns Rocks - Assets |
|
|
|
|
Adform Engraving & Signs |
$152.90 |
|
|
|
Name Badges - Emergency Management |
|
|
|
|
Advanced Traffic Management |
$1,021.35 |
|
|
|
Traffic Control - Tumbleweed - Engineering |
|
|
|
|
Alexander House of Flowers |
$210.00 |
|
|
|
Large Arrangement - M Evans - Mayors Office |
|
|
|
|
Large Arrangement - Sympathy L Antulov - Mayors Office |
|
|
|
|
Animal Pest Management Services |
$990.00 |
|
|
|
Final Report - Feral Animal Program 2020 - Trees & Conservation |
|
|
|
|
Atom Supply |
$296.47 |
|
|
|
Stock - Stores Issues |
|
|
|
|
Auscontact Association Limited |
$650.00 |
|
|
|
Auscontact Association Corporate Membership - Customer Relations Centre |
|
|
|
|
Australian Airconditioning Services Pty Ltd |
$819.50 |
|
|
|
Airconditioning Maintenance For The City |
|
|
|
|
Auto Blackbox Pty Ltd |
$208.00 |
|
|
|
Micro SD Card Tray Repairs - Civic Centre - Community Safety |
|
|
|
|
Ball & Doggett Pty Ltd |
$237.60 |
|
|
|
White Copy Paper - Corporate Support |
|
|
|
|
Bartco Traffic Equipment Pty Ltd |
$5,808.00 |
|
|
|
3 Year Webstudio Licence Agreement - Community Safety |
|
|
|
|
Better Pets and Gardens Wangara |
$197.92 |
|
|
|
Animal Care Centre Supplies |
|
|
|
|
Bridgestone Australia Limited |
$21,185.45 |
|
|
|
Tyre Fitting Services For The City |
|
|
|
|
Bucher Municipal Pty Ltd |
$8,320.81 |
|
|
|
Vehicle Spare Parts - Fleet |
|
|
|
|
Car Care Motor Company Pty Ltd |
$1,958.40 |
|
|
|
Vehicle Services - Fleet |
|
|
|
|
Castledine Gregory |
$28,474.60 |
|
|
|
Legal Fees For The City |
|
|
|
|
Challenge Batteries WA |
$264.00 |
|
|
|
Vehicle Batteries - Fleet |
|
|
|
|
Chemistry Centre WA |
$838.26 |
|
|
|
Water Sampling - Wangara - Conservation |
|
|
|
|
Cherry's Catering |
$3,000.00 |
|
|
|
Catering Services For The City |
|
|
|
|
Clinipath Pathology |
$1,342.55 |
|
|
|
Medical Fees For The City |
|
|
|
|
Critical Fire Protection & Training Pty Ltd |
$1,083.31 |
|
|
|
Fire Panel Report - Wanneroo Community Centre - Building Maintenance |
|
|
|
|
Contract Variation - Kingsway Football Clubrooms - Building Maintenance |
|
|
|
|
CS Legal |
$668.80 |
|
|
|
Court Fees - Rating Services |
|
|
|
|
Deans Auto Glass |
$104.50 |
|
|
|
On Site Stone Chip Repair - Fleet |
|
|
|
|
Digital Education Services |
$1,651.09 |
|
|
|
Purchase DVDs - Library Services |
|
|
|
|
Digital Mapping Solutions - Perth |
$13,310.14 |
|
|
|
Technology One Spatial - 29.06.2020 - 31.01.2021 - ICT |
|
|
|
|
Direct Communications |
$118.80 |
|
|
|
Battery - Ashby - Workshop |
|
|
|
|
Dowsing Group Pty Ltd |
$4,744.65 |
|
|
|
Pathway Reinstatements - Mirrabooka - Assets |
|
|
|
|
Drovers Vet Hospital Pty Ltd |
$60.00 |
|
|
|
Veterinary Services For The City |
|
|
|
|
Edge People Management |
$332.74 |
|
|
|
Ergonomic Assessments - OSH |
|
|
|
|
Elliotts Irrigation Pty Ltd |
$16,092.95 |
|
|
|
Irrigation Works - Various Locations - Parks |
|
|
|
|
Irrigation Parts Replacement - Parks |
|
|
|
|
Encompass Construction Risk Services |
$203.50 |
|
|
|
Proposed Roundabout - Hepburn / Highclere - Assets |
|
|
|
|
Galt Geotechnics |
$3,960.00 |
|
|
|
Training - Provision Of Karst Risk Management - Assets |
|
|
|
|
Geoff's Tree Service Pty Ltd |
$74,737.52 |
|
|
|
Pruning Works For The City |
|
|
|
|
Guardian Doors |
$281.00 |
|
|
|
Removed Guides - Clarkson - Building Maintenance |
|
|
|
|
Hall & Wilcox |
$5,684.80 |
|
|
|
Legal Fees For The City |
|
|
|
|
Hendry Group Pty Ltd |
$1,069.48 |
|
|
|
Consultancy Services - Condition And Structural Audits - 12 Properties - Assets |
|
|
|
|
Identity Perth |
$107.25 |
|
|
|
Budget Campaign Updates July 2020 - Corporate Support |
|
|
|
|
Imagesource Digital Solutions |
$324.50 |
|
|
|
Install Of Pentanque Pitch Sign - Facilities |
|
|
|
|
Integrity Industrial Pty Ltd |
$16,779.93 |
|
|
|
Casual Labour For The City |
|
|
|
|
Intercity Office Partitioning |
$870.00 |
|
|
|
Repairs - Kingsway Sports Stadium - Building Maintenance |
|
|
|
|
J Blackwood & Son Ltd |
$2,281.32 |
|
|
|
Stock - Stores Issues |
|
|
|
|
Jadu Software Pty Ltd |
$660.00 |
|
|
|
City Of Wanneroo - Change Of Logo - Communications & Brand |
|
|
|
|
James Bennett Pty Ltd |
$1,692.87 |
|
|
|
Book Purchases - Library Services |
|
|
|
|
Kerb Direct Kerbing |
$2,380.12 |
|
|
|
Roundabout - Viridian Drive/Turquoise Loop - Assets |
|
|
|
|
Kleenit |
$3,313.97 |
|
|
|
Graffiti Removal Services For The City |
|
|
|
|
Landcare Weed Control |
$1,424.57 |
|
|
|
Burn Site Maintenance July 2020 - February 2021 - Conservation |
|
|
|
|
LD Total |
$130,077.01 |
|
|
|
Streetscapes - Darch Parks - Parks |
|
|
|
|
Streetscapes - Banksia Grove - Parks |
|
|
|
|
Local Government Professionals Australia WA |
$44.95 |
|
|
|
Handbook - Weaving Tapestries - Community Development |
|
|
|
|
Lock Joint Australia |
$847.00 |
|
|
|
Stock - Stores Issues |
|
|
|
|
Mayday Earthmoving |
$1,375.00 |
|
|
|
Skid Steer Loader - Sinagra - Engineering |
|
|
|
|
Metropolitan Cash Register Co |
$539.00 |
|
|
|
Thermal Paper Rolls - Library Services |
|
|
|
|
Mindarie Regional Council |
$273,711.50 |
|
|
|
Refuse Disposal For The City |
|
|
|
|
Northern Suburbs Men's Shed Incorporated |
$15,000.00 |
|
|
|
Community Sheds Establishment Fund Allocation - Community Development |
|
|
|
|
Office Line |
$2,178.00 |
|
|
|
2 Tables And Chrome Pole - Cultural Development |
|
|
|
|
On Tap Plumbing & Gas Pty Ltd |
$1,427.07 |
|
|
|
Plumbing Maintenance For The City |
|
|
|
|
Palace Homes & Construction Pty Ltd |
$11,560.34 |
|
|
|
Basketball Court Upgrade - Koondoola & Girrawheen - Construction |
|
|
|
|
Paperbark Technologies Pty Ltd |
$2,131.00 |
|
|
|
Tree Survey - Houghton Drive Carramar - Parks |
|
|
|
|
Pedders Suspension |
$99.00 |
|
|
|
Front Wheel Alignment - Fleet |
|
|
|
|
Perth Heavy Towing |
$577.50 |
|
|
|
Towing Services - Fleet |
|
|
|
|
Plantrite |
$271.35 |
|
|
|
Supply Of Forestry Tubes - Hepburn |
|
|
|
|
Powerhouse Batteries Pty Ltd |
$212.29 |
|
|
|
Vehicle Batteries - Fleet |
|
|
|
|
Premier Tarps |
$971.52 |
|
|
|
Razor Tarp Controller - Fleet |
|
|
|
|
Prestige Alarms |
$1,271.38 |
|
|
|
Alarm Services For The City |
|
|
|
|
Print Smart Online Pty Ltd |
$496.00 |
|
|
|
Direct Debit Request Book - Aquamotion |
|
|
|
|
Programmed Integrated Workforce |
$10,964.17 |
|
|
|
Casual Labour For The City |
|
|
|
|
Reliable Fencing |
$3,795.00 |
|
|
|
Fencing Works - Lake Gnangara - Conservation |
|
|
|
|
Safeman WA Pty Ltd |
$797.50 |
|
|
|
Safety Boots - Stores Stock |
|
|
|
|
SJ McKee Maintenance Pty Ltd |
$753.00 |
|
|
|
Repair Fence - Antares - Waste |
|
|
|
|
Remove Asbestos - Errina - Waste |
|
|
|
|
Smartbuilt Perth Pty Ltd |
$246.88 |
|
|
|
Pest Control Services For The City |
|
|
|
|
St John Ambulance Western Australia Ltd |
$196.75 |
|
|
|
First Aid Training Services For The City |
|
|
|
|
Statewide Bearings |
$660.00 |
|
|
|
Vehicle Spare Parts - Fleet |
|
|
|
|
Suez Recycling & Recovery Pty Ltd |
$197,160.50 |
|
|
|
Waste Collection - Waste |
|
|
|
|
The Factory (Australia) Pty Ltd |
$655.05 |
|
|
|
Storage Of Christmas Decorations June & July 2020 - Building Maintenance |
|
|
|
|
TJ Depiazzi & Sons |
$9,367.82 |
|
|
|
Drainage Upgrade |
|
|
|
|
Toll Transport Pty Ltd |
$867.36 |
|
|
|
Courier Services The City |
|
|
|
|
Total Landscape Redevelopment Service Pty Ltd |
$2,970.00 |
|
|
|
Installation Of Forestry Tubes - Hepburn Avenue And Highclere Boulevard - Construction |
|
|
|
|
Tourism Council Western Australia |
$2,145.00 |
|
|
|
Membership Renewal 2020 / 2020 - Economic Development |
|
|
|
|
Turf Care WA Pty Ltd |
$6,780.19 |
|
|
|
Application Of Soil Amendment & Mowing - Various Locations - Asset Maintenance |
|
|
|
|
Two Rocks Volunteer Bush Fire Brigade |
$833.80 |
|
|
|
Reimbursement - Cotton Shirts - Fire Services |
|
|
|
|
United Fasteners WA Pty Ltd |
$167.44 |
|
|
|
Washer & Bolts - Ashby - Workshop |
|
|
|
|
WA Hino Sales & Service |
$1,052.04 |
|
|
|
Vehicle Spare Parts - Fleet |
|
|
|
|
WA Limestone Company |
$3,884.84 |
|
|
|
Limestone Products - Various Locations - Assets |
|
|
|
|
Wanneroo Agricultural Machinery |
$152.05 |
|
|
|
Vehicle Spare Parts - Fleet |
|
|
|
|
Wanneroo Central Bushfire Brigade |
$1,967.40 |
|
|
|
Reimbursement - Controlled Burns -Various Locations - Emergency Services |
|
|
|
|
Reimbursement - Trailer Registration WN 28870 - Fire Services |
|
|
|
|
Wanneroo Electric |
$503.80 |
|
|
|
Electrical Maintenance For The City |
|
|
|
|
Wanneroo Smash Repairs Pty Ltd |
$1,390.79 |
|
|
|
Repairs - Wanneroo - Building Maintenance |
|
|
|
|
Wanneroo Towing Service |
$220.00 |
|
|
|
Tow Toilet - Yanchep - Community Safety |
|
|
|
|
William Buck Consulting (WA) Pty Ltd |
$3,300.00 |
|
|
|
Probity Adviser Services - Procurement Advisor |
|
|
|
|
Workpower Incorporated |
$392.15 |
|
|
|
Tree Supply - Wanneroo - Construction |
|
|
|
|
|
|
|
00003901 |
28/07/2020 |
|
|
|
|
|
Synergy |
$19,722.07 |
|
|
|
Power Supplies For The City |
|
|
|
|
|
|
|
00003902 |
29/07/2020 |
|
|
|
|
|
Alinta Gas |
$886.20 |
|
|
|
Gas Supplies For The City |
|
|
|
|
Australian Taxation Office |
$732.00 |
|
|
|
Payroll Deductions |
|
|
|
|
Fleet Network |
$83.00 |
|
|
|
Input Tax Credits For Salary Packaging For 21 July 2020 |
|
|
|
|
Jardine Lloyd Thompson Pty Ltd |
$1,980.00 |
|
|
|
Insurance - Contract Works 30.06.2020 - 30.06.2021 |
|
|
|
|
Insurance - Marine Cargo 30.06.2020 - 30.06.2021 |
|
|
|
|
Landgate |
$764.04 |
|
|
|
Land Enquiries For The City |
|
|
|
|
LD & D Australia Pty Ltd |
$386.10 |
|
|
|
Milk Deliveries For The City |
|
|
|
|
LGISWA |
|
|
|
|
Insurance Premiums - Personal Accident, Bushfire, Management Liability, Corporate Travel - 2020 / 2021 |
$96,296.40 |
|
|
|
Miss Brooke McAdam |
$150.00 |
|
|
|
Dog Registration Refund - Sterilised |
|
|
|
|
Mr Adam Harding |
$150.00 |
|
|
|
Dog Registration Refund - Sterilised |
|
|
|
|
Mr Humphrey Kabange |
$2,000.00 |
|
|
|
Refund - Street & Verge Bond |
|
|
|
|
Rates Refund |
$60.00 |
|
|
|
Ms Anne Welsby |
$2,610.00 |
|
|
|
Reimbursement - Study Assistance |
|
|
|
|
Rates Refund |
$631.95 |
|
|
|
Quinns FC Incorporated |
$105.30 |
|
|
|
Hire Fee Refund |
|
|
|
|
Serenitas Communities Holdings Pty Ltd |
$1,398,993.38 |
|
|
|
Refund - East Wanneroo Cell 1 Partial Return Of Excess Funds As Approved By Council At It's Ordinary Meeting 04.06.2019 (Ps02-0619) |
|
|
|
|
Yanchep Community Mens Shed |
$24,000.00 |
|
|
|
Community Shed Establishment Fund Allocation - Community Development |
|
|
|
|
|
|
|
|
|
Total Director Corporate Services Advance - Cheques |
$19,211,798.83 |
|
|
|
|
|
|
CANCELLED CHEQUES FROM PREVIOUS PERIOD |
|||
|
3869-13299 |
24/06/2020 |
Mrs Georgina Wilkinson |
-$150.00 |
|
119740 |
23/06/2020 |
Yogi Worms Book Club |
-$150.00 |
|
119737 |
23/06/2020 |
The Fairway Circle Book Club |
-$150.00 |
|
119741 |
23/06/2020 |
Joondalup U3A II Book Club |
-$150.00 |
|
115311 |
11/12/2018 |
Firm Property Development |
-$109.90 |
|
114977 |
13/11/2018 |
Mr Darram Dempster |
-$31.47 |
|
119636 |
19/05/2020 |
Wacker Neuson Pty Ltd |
-$491.08 |
|
119621 |
12/05/2020 |
Crown Leadership International Group Pty Ltd |
-$878.90 |
|
|
|
|
|
|
|
|
Total |
-$2,111.35 |
|
|
|
|
|
|
MANUAL JOURNAL |
|||
|
11279/20 |
30/06/2020 |
Returned Creditor Reject Bank Fee 30.06.2020 |
$2.50 |
|
11279/20 |
30/06/2020 |
Lodgement Fee 29.6.2020 Unpaid Infringements |
$2,100.00 |
|
11304/20 |
30/06/2020 |
Flexi Purchase April 2020 |
$28,217.28 |
|
11306/20 |
30/06/2020 |
Flexi Purchase March 2020 |
$33,896.53 |
|
11310/20 |
30/06/2020 |
Flexi Purchase May 2020 |
$41,958.62 |
|
11414/21 |
24/07/2020 |
Lodgement Fee 16.7.2020 27 Unpaid Infringements |
$1,890.00 |
|
|
|
|
|
|
|
|
Total |
$108,064.93 |
|
|
|
|
|
|
Town Planning Scheme |
|||
|
|
|
Cell 1 |
|
|
|
|
ASIC Accrual 29 May to 26 June |
$17.00 |
|
|
|
Strategic DCP Consulting |
$389.89 |
|
|
|
Serenitas Communities Holdings Cell 1 Return Excess Funds |
$1,398,993.38 |
|
|
|
Gucce Holding Cell 1 Return Excess Funds |
$131,678.84 |
|
|
|
|
|
|
|
|
Cell 2 |
|
|
|
|
Strategic DCP Consulting |
$382.20 |
|
|
|
|
|
|
|
|
Cell 3 |
|
|
|
|
Strategic DCP Consulting |
$382.20 |
|
|
|
|
|
|
|
|
Cell 4 |
|
|
|
|
Strategic DCP Consulting |
$382.20 |
|
|
|
Castledine Gregory |
$23,756.00 |
|
|
|
|
|
|
|
|
Cell 5 |
|
|
|
|
Strategic DCP Consulting |
$382.20 |
|
|
|
McLeods Legal Fees |
$3,042.15 |
|
|
|
|
|
|
|
|
Cell 6 |
|
|
|
|
Strategic DCP Consulting |
$382.20 |
|
|
|
|
|
|
|
|
Cell 7 |
|
|
|
|
Strategic DCP Consulting |
$382.20 |
|
|
|
|
|
|
|
|
Cell 8 |
|
|
|
|
McLeods Legal Fees |
$6,318.36 |
|
|
|
Strategic DCP Consulting |
$382.20 |
|
|
|
|
|
|
|
|
Cell 9 |
|
|
|
|
Ecoscape Australia POS Development Cost Estimate |
$990.00 |
|
|
|
Strategic DCP Consulting |
$382.20 |
|
|
|
|
|
|
|
|
Total |
$1,568,243.22 |
|
|
|
|
|
|
GENERAL FUND BANK ACCOUNT |
|||
|
|
|
Payroll Payments - July 2020 |
|
|
|
|
14.07.2020 |
$18,035.84 |
|
|
|
14.07.2020 |
$124.90 |
|
|
|
14.07.2020 |
$1,711,397.22 |
|
|
|
14.07.2020 |
$35,248.32 |
|
|
|
15.07.2020 |
$1,199.05 |
|
|
|
16.07.2020 |
$2,010.18 |
|
|
|
28.07.2020 |
$9,400.06 |
|
|
|
28.07.2020 |
$1,720,631.54 |
|
|
|
28.07.2020 |
$31,054.90 |
|
|
|
29.07.2020 |
$319.98 |
|
|
|
|
|
|
|
|
Total |
$3,529,421.99 |
|
|
|
|
|
|
|
|
Recoup to Director Corporate Services Advance A/C |
$15,861,467.83 |
|
|
|
|
|
|
|
|
Direct Payments Total (Includes Payroll, Advance Recoup, Credit Cards And Bank Fees) |
$19,390,889.82 |
CITY OF WANNEROO Agenda OF Elected Members' Briefing Session 18 August, 2020 436
Chief Executive Office
Advocacy & Economic Development
3.14 Infrastructure Western Australia Submission : A Stronger Tomorrow, State Infrastructure Strategy Discussion Paper.
File Ref: 41095 – 20/308810
Responsible Officer: Chief Executive Officer
Disclosure of Interest: Nil
Attachments: 3
Issue
To consider the City’s submission (Attachment 1) on the Infrastructure Western Australia (IWA) State Infrastructure Strategy Discussion Paper, which provides a foundation for the development of a State Infrastructure Strategy that will ultimately inform State infrastructure needs and priorities over a 20-year horizon.
Background
IWA was established by WA State Parliament in June 2019 to provide expert advice and assistance to the WA Government on the State’s infrastructure needs and priorities.
Its key objectives are:
· To assist in enhancing the efficiency and effectiveness of infrastructure planning and coordination; and
· To promote the adoption and use of policies, practices, information and analysis to support sound decision-making in relation to infrastructure.
The initial primary focus is to develop WA’s first 20-year State Infrastructure Strategy. Pursuant to this IWA is calling for comments via a twenty-two question submission template (Attachment 2) on “A Stronger Tomorrow - State Infrastructure Strategy Discussion Paper”.
A review of the Discussion Paper illustrates a high degree of alignment between issues identified as important by the City and the IWA document. A summary of the discussion paper is included at Attachment 3 and the full document is available at www.infrastructure.wa.gov.au.
Submissions close on Friday 21 August 2020 but the City was granted an extension to this deadline to Monday 31 August 2020 to enable Council to consider the submission.
Detail
IWA is seeking feedback on three documents, including:
· ‘A Stronger Tomorrow’ - State Infrastructure Strategy Discussion Paper;
· A Look at the Sectors; and
· A Look at the Regions.
The context for this discussion is covered in the following statement:
“In developing Western Australia’s first 20-year State Infrastructure Strategy (Strategy), Infrastructure WA (IWA) will consider all infrastructure sectors, with a primary focus on infrastructure owned and delivered by State Government agencies and government trading enterprises (GTEs). The Strategy will also consider other infrastructure types that provide an important service to the community, particularly those that have a direct or indirect financial or policy implication for State Government. This may be infrastructure provided by other levels of government, or infrastructure owned or operated by the private sector, such as key airports, gas pipelines and telecommunications networks.”
IWA has taken a wide view of infrastructure, with the sectors identified in the complementary document ‘A Look at the Sectors’ including:
· Transport
An integrated transport system is essential for moving goods to market and people to jobs and services. For Western Australia to continue to be competitive and globally connected, transport needs to operate as a single reliable and connected system. Integrated planning and operation will maximise economic prosperity and social inclusion throughout the State.
· Energy
A safe and reliable supply of energy is essential to everyday life and to support economic growth. Western Australia is fortunate in that it has abundant solar and wind resources and substantial gas reserves. The energy sector at both a state and national level is going through a major transition, transforming from a traditional fossil fuel-reliant centralised system to a cleaner, smarter and consumer-focussed system.
· Water
Water services are essential to everyday life – providing clean drinking water, water for businesses, industries and farms, irrigating parks and taking away our wastewater for treatment. The water sector is also responsible for managing water resources to ensure future supplies are managed and maintained.
· Waste
Waste management is a global concern, with poor waste management methods in the past resulting in toxic outcomes for the planet, such as soil and water contamination and air pollution. These outcomes impact human health and the health of ecosystems. Globally, new methods for managing waste are being employed, with a strong focus on waste avoidance and materials recovery through recycling. Commonly recycled wastes include construction and demolition waste, organic waste, metals, paper and cardboard, glass, plastics, and textiles.
· Digital connectivity and telecommunications
Digital technology has broad ranging impacts on modern living, sometimes in ways that are not obvious. Most people have come to expect affordable and uninterrupted access to reliable telecommunications services. Over the past 20 years, there has been a growing reliance on digital connectivity for Western Australia’s economic development, and as digital technologies become more integrated into homes and businesses, telecommunications networks become even more critical to achieving greater productivity and being globally competitive.
· Education and training,
Education is an essential service. Access to quality education services is a key factor in Western Australia’s social and economic development, and in ensuring that skills are adequate to support jobs into the future. The education sector comprises early childhood, primary, secondary and tertiary (for example, universities and vocational training) education services.
· Social and affordable housing
Access to safe and secure housing is considered a basic human right. A place to call home is integral to the wellbeing of happy and healthy individuals and families, who in turn can provide a positive social and economic contribution to their communities. This can have significant flow-on effects to physical and mental health, education outcomes, workforce participation, and social behaviour. Children in particular require safe and secure homes which nurture their development, shaping them into the productive adults of tomorrow.
· Health
Health is central to wellbeing. A strong healthcare system that protects and promotes the health of the population contributes to our social and economic development. The healthcare system represents a significant proportion of government spending and employs a large number of people across both the public and private sectors. In 2017-18, an estimated $185.4 billion was spent on health goods and services in Australia. This equates to an average of approximately $7,485 per person and constituted ten per cent of overall economic activity for this period. Around two-thirds of health spending was funded by governments.
· Justice and public safety
A peaceful, law-abiding and safe society can provide a stable foundation for a prosperous and productive community. Through justice and policing systems we set and maintain the standards of behaviour that are considered acceptable. In times of need, emergency services assist by managing multi-agency responses to natural disasters and serious incidents.
· Arts, culture, sport and recreation
Arts, culture, sport, tourism and recreation offer a range of benefits to people who live in and visit Western Australia. There are significant and measurable economic benefits to industries such as tourism, international education, entertainment and hospitality (for example, Western Australia’s recreational assets, including its beaches and coastline, unique natural assets, and pristine natural environment, are one of the main reasons visitors choose to holiday in the State). However, the complete range of benefits from these assets, such as health, education and community wellbeing outcomes, can be challenging to quantify. Major State Government investments, such as the Kalbarri Skywalk, Optus Stadium and the New Museum project, provide social and economic benefits (for example, investment in Optus Stadium has resulted in 66,000 interstate tourists during the 2018 Australian Football League season, bolstering the economy by an estimated $66 million).”
The City’s submission (Attachment 1) on the IWA Discussion Paper is aligned to the City’s endorsed documents including the current Advocacy Strategy. The City has developed and used its own methodology for identification of infrastructure needs and priorities since the endorsement of the 2014 Advocacy Strategy. The City’s approach is consistent with the approach outlined in the IWA Discussion Paper indicating that the State Infrastructure Strategy will be developed using a robust and transparent methodology for identifying the State’s infrastructure needs and priorities.
Consultation
Internal consultation was undertaken across Administration to seek comments and input into the submission. Alignment with the Strategic Planning process and the City’s Advocacy Plan has also been maintained.
It should be noted that there will be additional opportunities for the City to comment on State infrastructure priorities as it is anticipated that IWA will release a draft State Infrastructure Strategy for comment.
Comment
The planned development of the 20-year State Infrastructure Structure is indicative of a shift from ad-hoc infrastructure funding and development to a more transparent, longer term approach.
This request for comments on the Discussion Paper presents the first opportunity to engage with the newly formed IWA and ensure the City’s needs and priorities for infrastructure investment are taken into account in the State’s infrastructure planning process.
The City is supportive of the development of a robust and transparent methodology that identifies the State’s infrastructure needs and priorities.
Statutory Compliance
Nil
Strategic Implications
The proposal aligns with the following objective within the Strategic Community Plan 2017 – 2027:
“2 Economy
2.2 Strategic Growth
2.2.5 Attract investment development and major infrastructure”
Risk Management Considerations
|
Risk Title |
Risk Rating |
|
ST-S04 Integrated Infrastructure & Utility Planning |
Moderate |
|
Accountability |
Action Planning Option |
|
Director Planning & Sustainability and Director Assets |
Manage |
|
Risk Title |
Risk Rating |
|
ST-S05 Water Availability |
Moderate |
|
Accountability |
Action Planning Option |
|
Director Planning & Sustainability |
Manage |
|
Risk Title |
Risk Rating |
|
ST-S23 Stakeholder Engagement |
Low |
|
Accountability |
Action Planning Option |
|
Chief Executive Officer |
Manage |
The above risks relating to the issue contained within this report have been identified and considered within the City’s Strategic risk register. Action plans have been developed to accept this risk to support existing management systems. This proposal aligns with the Economy objective of the existing Strategic Community Plan, Council should therefore consider the following risk appetite statement: 2.2 Strategic Growth - 2.2.5 Attract investment development and major infrastructure, which refers to the City acknowledging that undertaking industry development and growth requires ongoing capital expenditure for essential infrastructure within key strategic areas (for example, in Yanchep and Neerabup). The statement concludes that “the City will accept a moderate level of financial risk for facilitating industry development and growth.”
Policy Implications
Nil
Financial Implications
The City’s ability to influence IWA to support future investment decisions in Wanneroo will impact on the City’s long term financial sustainability through its capacity to advance its infrastructure agenda to meet the needs of current and future residents as well as generate employment and economic growth.
Voting Requirements
Simple Majority
That Council: -
1. NOTE Infrastructure Western Australia’s submission template (Attachment 2) and the IWA Discussion Paper Summary (Attachment 3);
2. ENDORSE the City’s submission (Attachment 1), to be provided to Infrastructure Western Australia before the agreed extended deadline of 31 August 2020; and
3. SUPPORT the City establishing a strategic advocacy relationship with Infrastructure Western Australia.
Attachments:
|
1⇩. |
Attachment 1 - IWA Submission - A Stronger Tomorrow - Online Submission Form Questions & Proposed Responses |
20/338703 |
Minuted |
|
2⇩. |
Attachment 2 - Infrastructure WA Discussion Paper Submission Template |
20/331851 |
Minuted |
|
3⇩. |
Attachment 3 - Infrastructure WA Discussion Paper Summary |
20/333446 |
Minuted |
CITY OF WANNEROO Agenda OF Elected Members' Briefing Session 18 August, 2020 444
A Stronger Tomorrow - Online Submission Form
Questions & Proposed Responses
1. What do you think the implications of the pandemic for infrastructure will be in the recovery phase, and over the medium and long-term? Do you see any new opportunities or challenges?
Implications for Infrastructure:
In the new environment, infrastructure investment needs consider a return on that investment that is measured in different ways, including economic and social returns for short term, medium and long term results. The short term is considerably more important as there is the potential to more directly mitigate the significant COVID-19 economic and social impacts through targeted investment in the right infrastructure.
These returns also have to take into account ongoing investment in livability for residents within WA. Without a focus on this, there is the potential for social disengagement and conflict to rise.
Opportunities:
There is the opportunity in Western Australia to review the infrastructure needs and priorities through the new lens that the COVID-19 event has imposed. The State Infrastructure Strategy will need to consider the recovery over the next 5-years in this context and this will alter the State’s historical priorities. Infrastructure in WA that provides improved linkages between the primary production regions and the cities should be a major focus area. With impacts on immigration and migration there may be a need to review the ratio of investment between new infrastructure and upgrading and replacing existing infrastructure. With economic impacts it can be assumed that investment may need to be prioritized to strategic security, strengthening of primary production areas and the restriction of “urban sprawl” in favor of agricultural and renewable energy zones in proximity to population centres.
Challenges:
The challenges presented by this situation are still being worked through and it is likely that new challenges will emerge over the next few years depending on the COVID-19 impact timeframe. For example, COVID-19 has highlighted the need for greater biosecurity infrastructure to control the movement of people. Generation of employment in the new environment will also be a challenge and will require economic development strategies and actions to directly address the likely shifting of the State’s industry and employment profile.
Although downturns are often short-lived, their effects can be long-lasting for some groups and individuals. There is potential for the targeted investment we are currently seeing to further heighten disadvantage in some groups. For example, there may be disproportionately lower access to jobs for CALD communities, youth and women through focus on construction and manufacturing investment.
We need to address this disadvantage to avoid long term impacts on these groups, including job losses, poverty, lower wages, reduced labour force participation.
This disadvantage was already being seen across the City of Wanneroo, with higher unemployment and youth unemployment and lower labour force participation, education levels and access to jobs. It is expected this will be heighted by the COVID-19 pandemic. Investing in education and workforce skills may help the economy recover from the impact of COVID-19 and avoid a two-speed labour market.
2. Are there early learnings resulting from the pandemic around the resilience of our
economy and our infrastructure that we should consider as we develop the
Strategy?
Given the number and types of safety nets put in place to cushion the economic impacts it is hard to ascertain the true nature of how resilient the WA economy is. The strength of the State’s mining sector that has continued to export has proven to be important not only for WA but for the country. The below quote from the State Government is pertinent.
“The effects of COVID-19 have not been uniform across the economy. Fortunately for Western Australia, mining industry output has been relatively unaffected. Mining accounted for 36 per cent of Western Australia’s gross state product in 2018‑19 and accounts for the majority of the State’s exports and investment. In March 2020, the value of Western Australia’s merchandise exports reached a monthly record of $17.6 billion, including $9.0 billion of iron ore exports. While supply out of Western Australia has continued largely unabated, sustaining export values will largely depend on demand from the State’s major and emerging export markets.” https://jtsi.wa.gov.au/about-the-state/quality-of-life/economy
While there are advantages to WA being able to manage sea, air, rail and land borders in an emergency such as COVID-19 there are impacts on needing to be more self-sufficient than other states and territories in the areas of food, water and border security.
From a facility investment aspect, it may be an important consideration in the future to consider how such large community based facilities can be converted quickly into large scale emergency control centres and hospitals at the design stage. Building in contingency and flexible design in planning for future events whether they be fires, floods or other emergencies should be considered.
COVID-19 has highlighted a housing security issue with recent implications including eviction moratorium, access to suspension of mortgage payments and more homeowners under mortgage stress. Social and affordable housing may become a higher priority and it is noted that this is included in the IWA Discussion Paper as a consideration.
3. What elements should a well-developed 20-year Strategy include?
A rigorous demand and needs assessment is required across all infrastructure types from cemeteries, hospitals, waste facilities, education, housing and water infrastructure to rail and road. It is noted that the IWA Discussion paper includes the infrastructure sectors primarily focusing on those delivered by State Government agencies and government trading enterprises. All infrastructure delivery agencies need to be able to deliver and operate the new infrastructure, so a well-coordinated and integrated infrastructure delivery program is required as part of the strategy.
The strategy methodology is important to identifying the needs as well as the priorities for delivery noting that economic decisions will need to be made in order to allocate limited resources that have optimal impact.
The current lack of a State plan or strategy with targets (or aspirational targets) is a challenge for producing a robust infrastructure strategy that can facilitate achievement of those targets. If there were targets for renewable energy and water efficiency for example, this would significantly impact on how the State Infrastructure Strategy is shaped and implemented. If the State had a target of 25% water reduction (per capita) over the next 10 years and then achieved this target, for example, there would be a resulting saving on water infrastructure costs that could be used for other purposes. The City of Wanneroo has significant issues regarding water availability for north Wanneroo growers and this is threatening the viability of the City’s agricultural industry. A well-coordinated water infrastructure program that independently assesses industry water needs could help to address this issue.
Allocating scarce resources will be a challenge without an agreed suite of State level targets to meet or aspire to. The current WA State Planning Strategy (2014) unfortunately does not include specific targets, although it does include some robust goals. This needs revision as the State Planning Strategy could easily have some aspirational measurable targets included.
The IWA Discussion paper identifies some high level aspirations, such as achieving net zero emissions by 2050, however it is unclear whether this is an agreed State target. Aside from a comprehensive list of specific aspirational targets, the elements contained in the IWA Discussion paper form a sound base for developing the State Infrastructure Strategy. The top ten strategic objectives are appropriate in this regard.
4. Are there any additional or alternative principles that should guide the development of the Strategy?
The Guiding Principles together with the Top Ten Objectives identified in the IWA Discussion Paper form a sensible set of parameters to build the State Infrastructure Strategy. There are a set of principles contained in the State Planning Strategy that are also quite good and should be considered. The City of Wanneroo supports the further development of criteria to determine infrastructure priorities as part of the development of the State Infrastructure Strategy. It is suggested that consideration be given to developing aspirational targets to enable the objectives to be measured in terms of success.
In order to deliver this in an integrated way across government agencies, the State Planning Strategy needs to be reviewed and aspirational targets developed in concert with the development of the State Infrastructure Strategy.
5. Are there other strategic issues that we have not addressed that should form part of these objectives?
Integrated planning and delivery of optimal infrastructure outcomes will be challenging in the absence of a review of the State Planning Strategy to include aspirational targets.
A key consideration that needs to be investigated is how the delivery of the objectives will be measured. For example, how will the State know when a “strong, resilient and diversified economy” is achieved? There needs to be a target or a measure perhaps benchmarking Western Australia against other regions or using OECD measures. The State Infrastructure Strategy implementation could then be assessed in terms of its impact on delivering the economic outcome.
The City of Wanneroo notes that this could be included as part of continuous improvement of the State Infrastructure Strategy and other State level strategies that need to be reviewed in light of the new coordinated approach to identifying and delivering on infrastructure needs and priorities.
6. What are the macro trends that you see as important over the 20-year timeframe? What risks or opportunities do they provide to the Strategy?
There are a number of macro trends that could be considered by IWA in developing the State Infrastructure Strategy, including but not limited to:
· Changes to global and local supply chains and implications for industry (sustainability, hygiene, e-commerce, consumer preferences) including supply chain diversification and on-shoring key industries;
· Decrease in personal and business travel (impact on hotels, airlines and tourism sectors);
· Disruptions to existing global food systems;
· Increased focus on healthcare / health industry and agriculture;
· Further shift to online education;
· Expectations for medium to long term economic growth;
· Rising debt levels and long term interest rates remaining low;
· Rising wealth inequality;
· Global unrest;
· Aging populations;
· Natural resource constraints and climate change;
· Technology – greater automation and artificial intelligence; and
· Increased role / interventions of governments.
The City of Wanneroo acknowledges that IWA will need to respond appropriately to a number of identified macro trends that will be constantly changing over the 20-year period of the plan.
For the City of Wanneroo, there is concern that the growing population will not be adequately serviced by appropriate level of infrastructure at the appropriate time when compared with other locations. This is a risk for a number of outer metropolitan growth councils too. Historically, the inner metro areas and a number of regional areas with regional development commissions have been able to secure infrastructure that was not available to the outer ring of metropolitan growth councils.
Whist there has been improvement in this situation over recent years, the opportunity exists to ensure that the outer growth councils are included as a priority for future IWA recommendations to State Government.
7. How can regions work together to identify and deliver large scale opportunities, projects and programs which extend across regional boundaries?
Local government needs to be recognised as having a key role to play in collaborating with other tiers of government to deliver regional level projects and programs. The recent Local Government Act Review recommendations included:
· Expanded regional cooperation, including streamlined arrangements for the establishment of
joint subsidiaries (which could then replace existing regional local governments);
· Advancing inter-governmental relations through a set of legislated principles that could be
linked to the State Local Government Partnership Agreement (refer to Attachment 4 for an
example); additional consultative mechanisms if required; and arrangements for collaborative governance at the regional level (including involvement of federal agencies where appropriate); and
· New provisions for local and joint subsidiaries that enable local governments to play an
effective role in economic and regional development, and in the case of joint subsidiaries, provide a vehicle for regional cooperation.
These elements should be considered by IWA as a potential means of implementing large scale projects that require collaboration with local government.
8. What do you think are the greatest infrastructure needs and priorities across the regions and Perth?
The City of Wanneroo has grappled with determining its own infrastructure needs and priorities for many years. Since adopting an its Advocacy Strategy in 2014, a methodology has been used to determine priority that includes a set of criteria developed for the City that align with the Strategic Community Plan aspirations.
Rather than list a set of infrastructure needs and priorities here, it is recommended that a robust methodology with well-defined criteria is developed to ascertain the infrastructure needs and priorities for the State. The State does not have the equivalent of a Strategic Community Plan so the criteria will need to align with existing State strategic intent documents such as the State Planning Strategy from 2014.
9. How can declining population in some regions be slowed or reversed?
It is difficult for the City to comment on this question since the issues experienced in the City of Wanneroo relate to the significant population growth that is occurring. One issue that this creates is that the local economy is not generating local jobs fast enough to keep up with the growth. The City’s economic development strategy has been developed to assist in accelerating local jobs growth.
This is perhaps the issue that needs to be addressed in regional areas experiencing decline – work on maintaining or growing the employment base through economic development activities and programs.
10. Should Western Australia have a second major city of more than 200,000 people? Which of the State’s existing centres should be a second major city and why?
It may be possible for a second major city of more than 200,000 people to be developed but this would be subject to the designated city having a range of economic anchors to ensure jobs growth and diversity. A number of existing regional centres could be considered including Karratha, Port Hedland, Geraldton and Bunbury.
The City is working towards ensuring that Yanchep emerges as a Strategic Metropolitan Centre to serve as the major centre in the northern region of Perth that would also service areas to the north such as Gingin.
11. What, if any, other infrastructure sectors should be addressed in the Strategy?
The City of Wanneroo encourages IWA to review the State Planning Strategy to check for alignment and to ensure opportunities to include infrastructure sectors have not been missed. The State Planning Strategy does provide a useful context for delivering overarching planning goals with physical infrastructure playing a key role. The following shows areas included in the State Planning Strategy and indicates those that are included in the IWA Discussion Paper as a key sector and those that are referred to:
· 1. Economic development
· 1.1 The resources economy (referred to in IWA)
· 1.2 Education, training and knowledge transfer (Included as key sector in IWA)
· 1.3 Tourism (referred to in IWA)
· 1.4 Agriculture and food (referred to in IWA)
· 1.5 Remote settlements (referred to in IWA)
· 1.6 Land availability (referred to in IWA)
· 2. Physical infrastructure
· 2.1 Movement of people, resources and information (Included as key sector in IWA)
· 2.2 Water (Included as key sector in IWA)
· 2.3 Energy (Included as key sector in IWA)
· 2.4 Waste (Included as key sector in IWA)
· 2.5 Telecommunications (Included as key sector in IWA)
· 3. Social infrastructure
· 3.1 Spaces and places (partially Included in IWA – arts, culture, sport & recreation)
· 3.2 Affordable living (partially Included in IWA – social and affordable housing)
· 3.3 Health and wellbeing (partially Included in IWA)
· 4. Environment (referred to in IWA)
5. Security (partially Included in IWA)
The IWA Discussion Paper covers most of the State Planning Strategy elements and it would be useful for this to be referred to rather than just highlighting the Stephenson Hepburn Plan. To omit the general alignment of the IWA Discussion Paper with the current State Planning Strategy is a missed opportunity to demonstrate strategic alignment and how infrastructure prioritisation is a key element in delivering on the State Planning Strategy.
12. How should the Strategy address private sector infrastructure requirements?
This question needs to be predominantly answered by the private sector. Generally, there should be a set of principles developed to ensure that private sector infrastructure needs are met and that private sector investment can be encouraged and facilitated in order to share costs where appropriate. Government involvement may also be included where infrastructure for the private sector involves a common user type facility.
Private sector needs must be considered as part of the IWA needs and prioritisation methodology. Where infrastructure delivered by government results in ongoing generation of employment by the private sector, it should considered be a priority.
13. How can the Strategy assist to coordinate and integrate across infrastructure sectors? What interdependencies do you consider most important?
There are a number of interdependencies that IWA will need to consider such that infrastructure provision is optimised across these sectors. For the City of Wanneroo, there is certainly synergy between waste management and energy production. The development of waste to energy plants that integrate with municipal waste management and private sector waste management functions are a significant opportunity for the State to meet waste objectives and energy objectives.
The City of Wanneroo welcomes the establishment of IWA to assist with the coordination of opportunities to deliver infrastructure more effectively and sustainably.
14. Do the opportunities and challenges identified in this section reflect the most important and/or pressing matters in each sector?
The City generally agrees with the headline opportunities and challenges identified noting that these are likely to change over time.
It is expected that IWA will work in close consultation with sector peak bodies to clearly identify and confirm opportunities and challenges. For the local government sector this would be with WALGA. The City of Wanneroo is supportive of IWA and sees its role in the future being strengthened through the partnership with local government and with WALGA.
15. Are there particular aspects of infrastructure provision in these sectors which you think IWA should focus on?
The City of Wanneroo recommends that IWA focus on areas that deliver good economic, social and environmental outcomes for the State. The areas identified will all impact on City of Wanneroo residents and businesses to a degree.
16. In what way do you think the core sectors may change (for example, emergence of new sectors or shifts in the importance or significance of sectors) over the life of the Strategy?
There is likely to be the need to look at priority industry sectors for inclusion in the strategy. The importance of food security and production (Agri-business) and the re-emergence of manufacturing to ensure supply chains may need to be considered future priorities. This will depend on external global events as well as Western Australia’s intentions around its global competitiveness and positioning.
17. What are your thoughts on the proposed methodology to develop the Strategy?
The methodology approach is sound and at this stage will be taking into consideration submissions received to assist in finalising the methodology. With that in mind, the City generally agrees with a quadruple bottom line approach (economic, social, environment, governance) to determining the infrastructure needs and priorities for the State.
The City will be keen to provide additional feedback on the methodology when the Draft Strategy is released for comment.
18. What approaches can IWA take to compare and assess priorities across different sectors, regions and issues? What prioritisation criteria should be applied?
The City of Wanneroo encourages IWA to consider the current State Planning Strategy when looking at ways to compare and assess priorities across different sectors and the regions. This is a considerable task and the State Planning Strategy has looked at many of these elements in detail.
Prioritisation of infrastructure delivery should generally be developed using a quadruple bottom line approach. The approach used by Infrastructure Australia could also be considered to ensure some alignment.
The City of Wanneroo along with other Growth Area Perth and Peel (GAPP) LGA’s submitted a business case to Infrastructure Australia in 2019 focusing on the shortage of regional level sporting facilities in the outer Perth metropolitan areas. The assessment framework utilised by Infrastructure Australia to receive the GAPP proposal should be investigated by IWA as an option and for consistency with the national parameters.
19. To what extent should IWA consider the potential for infrastructure to directly promote new economic development and diversification (including in the regions), as opposed to improvements in core service delivery?
The State currently has an economic development strategy “Diversify WA”. IWA definitely needs to directly promote new economic development and diversification initiatives as part of its core deliverables. It is crucial to acknowledge a business as usual approach is unlikely to result in improved global competitiveness for Western Australia.
20. What is an appropriate significance threshold to apply, to enable a focus on larger and more strategic infrastructure? Should it vary across different regions and/or sectors and, if so, how?
IWA should look at the Infrastructure Australia thresholds and consider a similar threshold methodology at the State level. Infrastructure proposals of significant scale ($100million seems reasonable) would need to demonstrate that they address a problem of “State Significance”. A business case of an appropriate standard would be required.
There is potential for a discount to be applied to regions to enable appropriate equitable infrastructure investment across the State.
21. What specific scenarios should IWA consider from a top-down perspective, particularly as part of its 11 to 20 year outlook?
The City of Wanneroo agrees that the objectives should be used to inform longer term scenarios. The examples given in the IWA Discussion Paper as listed below seem reasonable to consider in development of appropriate scenarios.
· enhanced climate resilience and adaptation;
· the impact of major disruptive events, such as the COVID-19 pandemic;
· cross-agency synergies in regional projects;
· infrastructure provision in remote communities;
· changes in traditional sector employment patterns; and
· greater use of digital services delivery;
22. Do you have any comments about the proposed engagement approach?
The City of Wanneroo congratulates IWA on the release of Discussion Paper and providing the opportunity to comment prior to the development of Strategy. The City also looks forward to providing feedback when the Draft State Infrastructure Strategy is released for public comment.
CITY OF WANNEROO Agenda OF Elected Members' Briefing Session 18 August, 2020 466
File Ref: 38449 – 20/308982
Responsible Officer: Chief Executive Officer
Disclosure of Interest: Nil
Attachments: 2
Issue
To seek Council endorsement of the Advocacy Project Evaluation Guidelines (Attachment 1) and a City of Wanneroo Priority Infrastructure Projects list (Attachment 2) to inform the City’s advocacy efforts.
Background
In April 2014 (CEO1-07/14) Council unanimously endorsed the City’s first Advocacy Strategy. The Strategy, which focussed on Roads, Rail, Region and Reserves, has informed the City’s advocacy focus for Federal and State elections from 2016 to 2019 and for ongoing advocacy work undertaken by the City in a wide range of political and policy settings.
The 2014 methodology was effective and robust and after undertaking a comprehensive review of this methodology it is proposed that this approach is still applicable for application in 2020. The 2020 Advocacy Project Evaluation Guidelines (Guidelines) are shown at Attachment 1.
Detail
The methodology for identifying the City’s infrastructure needs and priorities requires the initial listing of a large number of projects using a wide range of information including:
· City planning documents such as the Strategic Community Plan and Corporate Business Plan;
· Capital works plans;
· Electorate specific projects where budget allocation has been sought by the local Member of Parliament;
· Pending City reports including for example the draft Northern Community Facilities Plan;
· Current advocacy projects endorsed by Council 16 October 2018;
· Input from City Executive and Managers; and
· Input from Elected members.
A set of criteria and scoring system was used to assess and prioritise these projects. The assessment criteria are outlined in the Guidelines shown at Attachment 1.
A long list of projects and priorities was presented to Council Members at the 25 February 2020 Council Forum showing how these were evaluated using the Guidelines. The most highly scoring projects were further assessed for investment readiness in order to assist in focusing advocacy effort on projects that are more ready for implementation. This short list was also presented to Council Members at the 25 February Council Forum.
However, the COVID-19 pandemic has now provided another significant aspect that the City needs to consider for identification of more short term infrastructure needs and priorities. Following assessment of projects against this backdrop, a short term City of Wanneroo Priority Infrastructure Projects list has been developed (see Attachment 2).
Of this list of 13 projects, 7 were already included as high scoring projects for advocacy priority in February 2020.
These 7 projects are:
1. North Coast Aquatic and Recreation Centre;
2. Flynn Drive (Part A), Neerabup, Upgrade to Single Carriageway on New Alignment from Travertine Vista to Tranquil Drive;
3. Flynn Drive (Part B), Neerabup, Upgrade to Dual Carriageway from Travertine Vista to Pinjar Road;
4. Southern Suburbs Library;
5. Wanneroo Recreation Centre Precinct;
6. Design and construction of cycle track at Splendid Park Yanchep; and
7. Additional cycling Infrastructure as per Cycle Plan.
The value of these projects totals approximately $119,150,000.
The additional 6 projects identified as a priority due to availability of potential funding opportunities connected to various COVID-19 stimulus initiatives include:
1. Yanchep Industrial Upgrade Road and Services Infrastructure;
2. Quinns Rocks, Upgrade Road and Drainage Infrastructure at Ashley Avenue, Nicholas Avenue and Quinns Rocks Primary School Precinct;
3. Marmion Ave / Santa Barbara Pde, Quinns Rocks, Upgrade Intersection – Marmion Ave Acceleration Lane & Santa Barbara Pde Left Turn Slip Lane;
4. Implementation of Traffic Management Scheme Upgrades on Highclere Blvd, Azelia St and Kingsbridge Blvd;
5. Montrose Park, New Sports Amenities Building; and
6. Conversion of Sports Lighting to LED.
The value of these projects totals approximately $5,503,000.
Consultation
Project identification was undertaken through previous Council resolutions and discussions within the organisation.
Statutory Compliance
The advocacy agenda has to ensure that all statutory requirements are known and met. Depending on the activity and the issue Legal Counsel would be sought if required.
Strategic Implications
The proposal aligns with the following objective within the Strategic Community Plan 2017 – 2027:
“4 Civic Leadership
4.1 Working with Others
4.1.3 Advocate and collaborate for the benefit of the City”
Risk Management Considerations
|
.Risk Title |
Risk Rating |
|
ST-S12 Economic Growth |
Moderate |
|
Accountability |
Action Planning Option |
|
Chief Executive Officer |
Manage |
|
Risk Title |
Risk Rating |
|
ST-S23 Stakeholder Engagement |
Low |
|
Accountability |
Action Planning Option |
|
Chief Executive Officer |
Manage |
The above risks relating to the issue contained within this report have been identified and considered within the City’s Strategic risk register. Action plans have been developed to accept this risk to support existing management systems. This proposal aligns with the Civic Leadership objective of the existing Strategic Community Plan, Council should therefore consider the following risk appetite statement: 4.1 Working with Others – 4.1.3 Advocate and collaborate for the benefit of the City. The statement indicates the requirement for a collaborative approach, working with the community, partners, government agencies and the broader business community to achieve outcomes that are aligned to community aspirations. The statement concludes that “the City is prepared to accept a moderate level of reputational risk.”
Policy Implications
All infrastructure projects outlined in the City of Wanneroo Priority Infrastructure Projects list have already been identified by the City with many reflected in formal and Council endorsed documents such as the Strategic Community Plan, Corporate Business Plan and Long Term Financial Plan, capital works schedule and previous advocacy documents.
Financial Implications
The outcome of any funding commitments arising from application of the Advocacy Strategy will be reported formally to Council.
Voting Requirements
Simple Majority
That Council:-
1. ENDORSE the Advocacy Project Evaluation Guidelines to assist with identification of the City’s infrastructure needs and priorities for advocacy (Attachment 1);
2. ENDORSE the City of Wanneroo Priority Infrastructure Projects list (Attachment 2) to inform the City’s advocacy efforts; and
3. REQUEST that Administration report back to Council at the earliest opportunity with a revised Advocacy Plan and Factsheets for consideration.
Attachments:
|
1⇩. |
Attachment 1 - Advocacy Project Evaluation Guidelines |
20/343699 |
|
|
2⇩. |
Attachment 2 - City of Wanneroo Priority Projects List |
20/343704 |
|
CITY OF WANNEROO Agenda OF Elected Members' Briefing Session 18 August, 2020 473
File Ref: 38808 – 20/309895
Responsible Officer: Chief Executive Officer
Disclosure of Interest: Nil
Attachments: 2
Issue
To formalise the strategic direction that is intended to be progressed in the development of the City’s landholdings within the Neerabup Industrial Area.
Background
At the Neerabup Industrial Area Development Working Group (NIADWG) meeting held on 27 November 2019, the Working Group supported Administration presenting the Final Concept Plan for Lot 9100 to a Council Forum for discussion. At the 11 March 2020 NIADWG meeting, it was noted that Administration will present the cash flow modelling at a Council Forum for discussion. As a result, these matters were presented to the 9 June Council Forum.
Detail
Following the delivery of a market review of the Neerabup Industrial Area and the provision of a discussion paper on disposal options available for the City’s landholdings at Neerabup, Administration has prepared a number of cash flow scenarios for consideration by Elected Members. This is essentially a review of the cash flow modelling contained in the 2015 Order of Magnitude Business Case. The Cash Flow modelling for six scenarios are detailed in Attachment 1 with Scenario 6 (develop and lease Lot 9100) being the recommended model. A final concept plan for Lot 9100 has also been prepared and presented at the 9 June Council Forum and detailed in Attachment 2.
In addition, Administration proposes to undertake related work on the project to ensure energy and water supply are secured for the City’s industrial land.
Energy Supply Project
Consultants EPC Technologies were engaged to undertake a feasibility study on renewable energy supply for the City’s landholdings within the NIA with the objective to provide a less expensive and secure energy supply. The studies have since been completed and the findings were presented to the NIAWG. The next step is to decide the most appropriate procurement strategy and scope the project.
Water Supply Project
Water Corporation has undertaken testing of the current water supply pressure to the NIA and confirmed that there is a supply threshold limit. This means that the majority of Lot 9003 cannot be serviced using current Water Corporation infrastructure. Pritchard Francis has been engaged on behalf of the City to develop an engineering solution and potential solutions have been presented to the NIAWG. Administration is awaiting the final report and recommendations, of which will be presented at the NIAWG in due course.
Consultation
The consultation undertaken on the project has been delivered through the NIAWG.
Comment
The City’s landholding at Neerabup is a key asset that has the potential to provide a significant long-term revenue stream to the City as well as significant regional economic benefits. The investigations that have been carried out to date have been critical to understanding the potential revenue and risks to the City in developing the landholding.
If the total landholding is disposed through a freehold only sale model, the City would lose control of all of the land. Retaining a proportion of the land through a leasehold model would enable the City to revisit the land use and intensity of the land at the end of lease. This gives the City the ability to control the way that the land use intensity is increased to optimise employment generation outcomes at that future time. It is therefore critical to determine the viability of the leasehold model.
Finalising the Lot 9100 Detailed Design and going to market seeking EOIs for businesses to locate to the land under a leasehold model will provide the City with critical information to make a decision on which development scenario will provide the best return and outcome for the City. This will enable an appropriate Business Plan to be developed for consideration by Council.
Energy Supply
The provision of a renewable energy source that can provide less expensive and secure power whilst also being sustainable and achieving environmental benefits is considered a must-have for modern developments. Administration will therefore continue to investigate renewable energy for the City’s landholdings within the NIA.
Water Supply
The supply and management of water is critical to the success of any development. Without a water source, each building will need to house its own water tank not only for amenities, but for fire safety. This would add an additional expense to any business looking to locate to the NIA and may ultimately deter businesses from this area. Administration will therefore continue to investigate water supply and management for the City’s landholdings within the NIA.
Recommendations from 2015 Order of Magnitude Business Case
There are a number of recommendations and principles contained in the Council endorsed Order of Magnitude Business Case that are still relevant and need to be reinforced. These include:
· Strong recommendation to retain the City’s landholding through using a leasehold model;
· Attract intensive employment industries;
· Provide sufficient flexibility to allow more traditional industrial development to assist in financing the development;
· Amend NIA Structure Plan 17;
· Commence primary resource extraction; and
· Maintain City control of the site until such time as the land is development ready at which point further decisions on investment or divestment can be considered.
The NIA Structure Plan is currently being reviewed and is expected to enable a more flexible planning approach.
Statutory Compliance
Section 3.59 of the Local Government Act 1995 (LGA) sets out the steps required for commercial enterprises by local governments and Section 10 of the Local Government (Functions and General) Regulations 1996 sets out the requirements for a business plan for a major trading undertaking.
As required by Section 3.59 of the LGA, local governments undertaking commercial enterprises are required to:
1. Prepare a business plan;
2. Undertake local and state wide advertising of the business plan; and
3. Consider any submissions received.
Administration will develop a business plan for the development of the City’s landholdings at Neerabup in accordance with the LGA.
Strategic Implications
The proposal aligns with the following objective within the Strategic Community Plan 2017 – 2027:
“2 Economy
2.2 Strategic Growth
2.2.6 Focus on industry development in key strategic areas such as Neerabup”
Risk Management Considerations
|
Risk Title |
Risk Rating |
|
ST-S12 Economic Growth |
Moderate |
|
Accountability |
Action Planning Option |
|
Chief Executive Officer |
Manage |
The above risk relating to the issue contained within this report has been identified and considered within the City’s Strategic risk register. Action plans have been developed to manage this risk to support existing management systems.
This proposal aligns with the Economy objective of the existing Strategic Community Plan. Council should therefore consider the following risk appetite statement: 2.1 Local jobs
The City’s defined risk appetite for 2.1 Local Jobs is articulated through the risk appetite statement that refers to the development of “strong economic hubs for growth and employment within the region” including Neerabup. The City’s risk appetite statement concludes that “the City is prepared to accept a high level of financial risk provided that the City implements a risk management strategy to manage any risk exposure.”
Policy Implications
The Elected Members are to be aware of the requirement to operate in alignment with the City’s Strategic Land Policy.
Financial Implications
The financial implications for this project are significant. The financial modelling shows that while costs of development are significant, the potential for revenue to the City is also significant with a high project Internal Rate of Return expected.
The City has included $980,523 in the 2020/21 capital works budget to facilitate progression of the development of the City’s landholdings, of which approximately $670,000 is to cover resource extraction costs.
It should be noted that the ability to develop the City’s landholdings will be subject to available funding determined through the Long Term Financial Plan and annual budgeting process, in the context of the current constrained financial environment. Further detail on the financial implications will be disclosed in the new business plan
Voting Requirements
Simple Majority
That Council:-
1. SUPPORTS development of the subdivision engineering design for Lot 9100;
2. APPROVES an Expressions of Interest process calling for interested businesses to locate at the development ready Lot 9100 under a leasehold model;
3. REQUESTS Administration to report back to Council with the findings from the Expression of Interest and the recommended Lot 9100 development scenario for consideration;
4. SUPPORTS the investigation of energy supply options for the City of Wanneroo’s Neerabup Industrial Area landholdings;
5. SUPPORTS the investigation of water supply and management options for the City of Wanneroo’s Neerabup Industrial Area landholdings;
6. AFFIRMS that the development recommendations and principles contained in the Council endorsed 2015 Order of Magnitude Business will continue to be used to guide the development of the City of Wanneroo’s Neerabup landholdings. The development recommendations and principles include:
a) Strong recommendation to retain the City of Wanneroo’s landholding through using a leasehold model;
b) Attract intensive employment industries;
c) Provide sufficient flexibility to allow more traditional industrial development to assist in financing the development;
d) Amend Neerabup Industrial Area Structure Plan 17;
e) Commence primary resource extraction;
f) Maintain City control of the site until such time as the land is development ready at which point further decisions on investment or divestment can be considered; and
7. REQUEST Administration to prepare the Business Plan for Neerabup Industrial Area for consideration by Council.
Attachments:
|
1. |
Attachment 1 - NIA DRAFT Cash Flow |
Confidential |
|
|
2. |
Attachment 2 - Lot 9100 Concept Designs - Neerabup Industrial Area |
Confidential |
|


CITY OF WANNEROO Agenda OF Elected Members' Briefing Session 18 August, 2020 475
Item 4 Motions on Notice
Item 5 Late Reports (to be circulated under separate cover)
Item 7 Confidential
Nil
The next Ordinary Council Meeting has been scheduled for 7:00pm on Tuesday 25 August 2020, to be held at Council chambers, Civic Centre, 23 Dundebar Road, Wanneroo










![]()
![]()
![]()
![]()
![]()
![]()
![]()

![]()

![]()
![]()

![]()


![]()
![]()

![]()
![]()
![]()

![]()
![]()
![]()
![]()
![]()
![]()



![]()


![]()
![]()
![]()
![]()
![]()
![]()
![]()

![]()

