SUPPLEMENTARY BRIEFING AGENDA

Council Members’ Briefing Session

 

Draft Only

 

 

 

6:00pm, 30 November 2021

Council Chamber (Level 1), Civic Centre,

23 Dundebar Road, Wanneroo

 

wanneroo.wa.gov.au

 


 

 

 

Briefing Papers for Tuesday 30 November, 2021

 

 

 

 

CONTENTS

 

Item  6_____ Late Reports_ 1

6.1                         Preparation of Amendment No. 197 to District Planning Scheme
No. 2 – Part Zoning Normalisation of Various Structure Plan Areas   1

 


Late Items Agenda

Item  6     Late Reports

6.1    Preparation of Amendment No. 197 to District Planning Scheme No. 2 – Part Zoning Normalisation of Various Structure Plan Areas

File Ref:                                              42952 – 21/291910

Responsible Officer:                          Director Planning and Sustainability

Disclosure of Interest:                         Nil

Attachments:                                       4         

Issue

To consider initiating Amendment No. 197 to DPS 2, to normalise the zoning of land affected by Lot 12 Jindalee Agreed Local Structure Plan No. 36 (ASP 36) and Lot 501 Two Rocks Road, Two Rocks Agreed Local Structure Plan No. 48 (ASP 48).

Background

The preparation and operation of the City’s structure plans is undertaken pursuant to the Deemed Provisions of the City’s DPS 2 (Deemed Provisions). The Deemed Provisions are contained within Schedule 2 of the Planning and Development (Local Planning Schemes) Regulations 2015 (the Regulations). The Deemed Provisions define and set out the purpose of a structure plan as follows:

 

structure plan means a plan for the coordination of future subdivision and zoning of an area of land

 

Many of the City’s structure plans are necessary planning instruments to guide ongoing subdivision and zoning of land. However, the City has a growing number of structure plans with subject areas becoming substantially subdivided and built out.

 

The Western Australian planning framework intends that once a structure plan has achieved its purpose of guiding the zoning and subdivision of land, the land would be zoned under a local planning scheme (such as DPS 2) via a scheme amendment, a process referred to as ‘normalising’. The planning framework does not prevent a ‘partial normalising’ of structure plan areas if substantial areas are subdivided and built out, as is the case with a number of the City’s structure plans.

 

Council requesting the WAPC normalise established areas within structure plans is a normal administrative practice that ensures the planning framework remains current and relevant. In previous reporting to Council, Administration established a staged and progressive approach toward normalising and/or revoking structure plans. In this Report, Administration is requesting Council consider initiate a normalising of parts of the ASP 36 and ASP 48 areas, and to amend those structure plans to exclude areas where zoning will be normalised under DPS 2.

Detail

Amendment No. 197 to DPS 2 proposes to normalise already subdivided portions of the Lot 12 Jindalee Agreed Local Structure Plan No. 36 (ASP 36) and Lot 501 Two Rocks Road, Two Rocks Agreed Local Structure Plan No. 48 (ASP 48). Normalisation will include taking those zones, reserves and residential density codes set out within the structure plans, and inserting them into DPS 2. The extent of normalisation proposed for each structure plan area through Amendment No. 197 to DPS 2 is shown on the Scheme (Amendment) Maps included in Attachment 1.

Information and mapping from Administration pertaining to the structure plans subject to the partial normalisation is included in the following attachments:

·     Lot 12 Jindalee Agreed Local Structure Plan No. 36 (ASP 36) – in Attachment 2; and

·     Lot 501 Two Rocks Road, Two Rocks Agreed Local Structure Plan No. 48 (ASP 48) – in Attachment 3;

 

As discussed later in the Report, following the Minister for Planning’s approval of Amendment No. 197 to DPS 2, the WAPC will also need to undertake amendments to ASP 36 and ASP 48 to ‘exclude’ the normalised areas from those structure plans. To facilitate the structure plan amendments, Amendment No. 197 is proposed to include the following statement:

 

Upon approval of Amendment No. 197 to District Planning Scheme No. 2, the plans contained within Part 1 of City of Wanneroo’s Lot 12 Jindalee Agreed Local Structure Plan No. 36 and the Lot 501 Two Rocks Road, Two Rocks Agreed Local Structure Plan No. 48 are to be amended by the Western Australian Planning Commission to the extent shown on the Structure Plan (Amendment) Maps.

 

The Structure Plan (Amendment) Maps referred to in the above statement are included in Attachment 4 of this Report.

 

Administration considers that proposed Amendment No. 197 to DPS2 meets the following criteria for ‘Basic Amendments’ in the context of Regulation 34 of the Regulations:

 

An amendment to the scheme map that is consistent with a structure plan, activity centre plan or local development plan that has been approved under the scheme for the land to which the amendment relates if the scheme currently includes zones of all types that are outlined in the plan.

Consultation

The Regulations do not require ‘basic amendments’ to be advertised, unless the Minister for Planning directs the City to advertise pursuant to Regulation 61(1). Alternatively, should the WAPC not consider the amendment to be a ‘basic amendment’, the City may be directed to advertise the amendment as a ‘standard amendment’ or ‘complex amendment’ as the case may require. If the proposed DPS2 amendment is presented and initiated by Council, the amendment will need to be referred to the Environmental Protection Authority pursuant to Sections 81 and 82 of the Planning and Development Act 2005.

 

The Deemed Provisions do not outline a procedure to undertake consultation regarding the WAPC’s amendment to ASP 36 and ASP 48 required after the Minister for Planning’s approval of Amendment No. 197 to DPS 2. Administration considers that advertising the proposed amendments to the structure plans is not necessary in any case, as the amendments will not materially change development potential of the affected lots.

Comment

Administration has identified that subdivision has been completed on substantial portions of land within the ASP 36 and ASP 48 areas; and as such, a partial normalisation of those structure plans can occur.

 

Although there is no urgency to commence the partial normalisation of ASP 36 and ASP 48, Administration has proceeded to undertake this work for the following reasons:

 

·        There are numerous other structure plans that require a partial or complete normalisation of zonings, but contain significant built form variations to the provisions of the Residential Design Codes (R-Codes). Administration is deferring considerations to normalise those structure plans whilst the DPLH undertakes a major review of low and medium density standards of the R-Codes. The R-Codes review impacts on how those structure plans will be normalised.

·        Although there are vacant land parcels in the portions of the ASP 36 and ASP 48 areas to be normalised, there are adequate controls through DPS 2 and the Residential Design Codes to guide any remaining development. Development on the remaining lots in these areas can occur without the need for a structure plan, as discussed below.

 

Normalising portions of the ASP 36 and ASP 48 areas provides an opportunity to gain a better understanding on how partial normalisation of structure plans will be processed by the WAPC; in advance of more complex partial structure plan normalisation amendments to DPS 2 that the City will need to prepare in the future.

 

Normalisation of Portion of ASP 36 Area – Status and Consequence

 

ASP 36 effects over 74 hectares of land in Jindalee and Quinns Rocks. Amendment No. 197 proposes to normalise the zoning of a substantial portion of the ASP 36 area (61 hectares) which has been subdivided and largely built out.

 

Normalisation of established residential areas through Amendment No. 197 will be given a ‘Residential’ zoning under DPS 2, with density codings that align with those in ASP 36. Normalisation will also affect public open space, drainage and utility reserves; with Amendment No. 197 proposing to impose local scheme reserves for the purpose of ‘parks and recreation’ (over public open space areas) and ‘public use’ (over drainage and utility sites).

 

There are approximately 650 dwelling lots located within the portion of ASP 36 to be normalised; of which only approximately 20 lots within this area remain vacant. All the vacant lots are owned by individuals and not the developer.

 

The only structure plan provisions that can be applied to the vacant lots are those contained in the R-Code Variation Table (Table A of ASP 36). Table A is encompassed within Attachment 2. The need for development approval is typically the case when variations to the deemed-to-comply provisions to the R-Codes are sought; and Table A provides for variations to the R-Codes that can be applied without the need for development approval.

 

Table A would cease to have effect for the vacant lots in the portion of the ASP 36 area that becomes normalised.  However, the R-Codes do provide for design principles that allow the standard deemed-to-comply provisions of the R-Codes to be varied (on merit) in a manner consistent with the provisions of Table A or otherwise.

 

Therefore, the only consequence in normalising the subject portion of ASP 36 would be that a small number of vacant lot owners would need to seek development approval where they seek to vary the deemed-to-comply provisions of the R-Codes. This is the same as is required for other landowners located in most residential areas outside the ASP 36 area.

 

Normalisation of Portion of ASP 48 Area – Status and Consequence

 

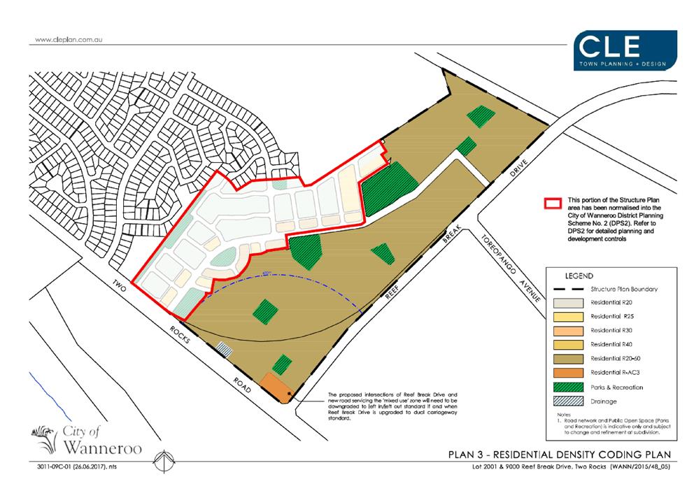
ASP 48 affects over 68 hectares of land in Two Rocks. Amendment No. 197 proposes to normalise approximately 21 hectares of the ASP 48 area which has been subdivided and partly built out.

 

The lots which are to be normalised have a Residential and Mixed Use zoning designation (with various density codings) under ASP 48, which will likewise be imposed in DPS 2 through Amendment No. 197. Normalisation will also affect public open space, drainage and utility reserves; with Amendment No. 197 proposing to impose local scheme reserves for the purpose of ‘parks and recreation’ (over public open space areas) and ‘public use’ (over drainage and utility sites).

 

There are approximately 230 lots located within the portion of ASP 36 to be normalised, of which approximately 70 remain vacant. Approximately ten of the vacant lots remain in the ownership of the developer.

 

ASP 48 offers no specific development provisions for further development of these lots. By ASP 48 being silent on development provisions, other documents in the Planning Framework (including DPS 2, the R-Codes and the City’s Local Planning Policy 4.27: Mixed Use Zones) are then relied upon to guide future development of these lots; should the subject lots become normalised. 

 

Amendments to ASP 36 and ASP 48

 

The Regulations (Regulation 35A) make provision for when an amendment to a local planning scheme affects a structure plan area, the amendment includes either of the statements, that when the amendment takes effect:

 

(a)     the approval of the structure plan is to be revoked; or

(b)     the structure plan is to be amended in accordance with the statement; or

(c)     the approval of the structure plan is not affected.

 

Normalising the zoning of parts of the ASP 36 and ASP 48 areas would make those structure plans redundant for those areas. As a result, a corresponding amendment to ASP 36 and ASP 48 will need to be undertaken, to recognise the normalisation of the respective parts of ASP 36 and ASP 48. The extent of amendments proposed will be to the structure plan maps, as outlined in the Structure Plan (Amendment) Maps prepared and provided in Attachment 4. Administration is therefore proposing that Amendment No. 197 to DPS 2 include a statement in accordance with Regulation 35A(b) of the Regulations that the structure plans will be amended. The amendment will then be undertaken by the WAPC pursuant to Clause 29A(2) of the Deemed Provisions.

Statutory Compliance

Amendment No. 197 to DPS 2 is being prepared to facilitate normalisation of substantial parts of the Lot 12 Jindalee Agreed Local Structure Plan No. 36 and Lot 501 Two Rocks Road, Two Rocks Agreed Local Structure Plan No. 48 areas, as the structure plans have served their purpose for these areas. Amendment No. 197 to DPS 2, can be processed in accordance with the Planning and Development Act 2005 and the Planning and Development (Local Planning Schemes) Regulations 2015.

 

Following the Minister for Planning’s approval of Amendment No. 197 to DPS 2, amendments to Lot 12 Jindalee Agreed Local Structure Plan No. 36 and Lot 501 Two Rocks Road, Two Rocks Agreed Local Structure Plan No. 48 will then occur pursuant to Clause 29A(2) of the deemed provisions for local planning schemes, provided in Schedule 2 of the Planning and Development (Local Planning Schemes) Regulations 2015.

Strategic Implications

The proposal aligns with the following objective within the Strategic Community Plan 2021 – 2031:

5 ~ A well planned, safe and resilient City that is easy to travel around and provides a connection between people and places

5.2 - Plan for and manage land use

Risk Management Considerations

There are no existing Strategic or Corporate risks within the City's existing risk registers which relate to the issues contained in this report.

Policy Implications

The WAPC’s Structure Plan Framework document acknowledges how structure plans are prepared with the view to future incorporation into a local planning scheme. What is proposed ‘incorporates’ part of the ASP 36 and ASP 48 areas into DPS 2.

Financial Implications

The financial implications of preparing Amendment No. 197 to DPS 2, and assisting the WAPC in its undertaking of amendments to ASP 36 and ASP 48, can be met from the current Planning and Sustainability operational budget.

Voting Requirements

Simple Majority

 

Recommendation

That Council:-

 

1.       Pursuant to Section 75 of the Planning and Development Act 2005, PREPARES Amendment No. 197 to City of Wanneroo District Planning Scheme No. 2, to amend the local planning scheme by:

 

a)      Rezoning various residential lots and adjoining road reserves located within the City of Wanneroo’s Lot 12 Jindalee Agreed Local Structure Plan No. 36 from ‘Urban Development’ to ‘Residential’ (with residential density codings of R20, R30 and R40), as shown on Scheme (Amendment) Map 1 (included as Attachment 1 of this Report) and as consistent with that structure plan;

 

b)      Rezoning portion of Lot 15167 (30P) Rupara Circle, Quinns Rocks (on DP: 37480) from ‘Urban Development’ to ‘Residential (R20)’, as shown on Scheme (Amendment) Map 1 (included as Attachment 1 of this Report);

 

c)      Reclassifying the following land parcels from the ‘Urban Development’ zone to ‘Local Scheme Reserve – Parks & Recreation’:

 

·        Lot 8014 (20) Windjammer Parkway, Jindalee (on DP: 56907);

·        Lot 8015 (18) Watersun Gardens, Jindalee (on DP 50638);

·        Lot 15528 (19) Brigantine Drive, Jindalee (on DP: 40501);

·        Lot 15529 (8) Portsmouth Street, Jindalee (on DP: 40501);

·        Lot 8004 (15) Forecastle Avenue, Jindalee (on DP: 64298); and

·        Lot 8001 (61K) Maritime Drive, Jindalee (on DP: 404198),

 

as shown on Scheme (Amendment) Map 1 (included as Attachment 1 of this Report);

 

d)      Reclassifying the following land parcels from the ‘Urban Development’ zone to ‘Local Scheme Reserve – Public Use’:

 

·        Lot 8006 (46) Masthead Close, Jindalee (on DP: 46267);

·        Lot 14874 (1) Hampshire Drive, Quinns Rocks (on DP: 35178); and

·        Lot 14854 (1P) Hampshire Drive, Quinns Rocks (on DP: 35178),

 

as shown on Scheme (Amendment) Map 1 (included as Attachment 1 of this Report);

 

e)      Rezoning various residential lots and adjoining road reserves located within the City of Wanneroo’s Lot 501 Two Rocks Road, Two Rocks Agreed Local Structure Plan No. 48 from ‘Urban Development’ to ‘Residential’ (with residential density codings of R20, R25 and R30), as shown on Scheme (Amendment) Map 2 (included as Attachment 1 of this Report) and as consistent with that structure plan;

 

f)       Rezoning the following lots from ‘Urban Development’ to ‘Mixed Use (R40)’:

 

·        Lot 719 (67) Montebello Boulevard, Two Rocks (on DP: 52013);

·        Lot 720 (69) Montebello Boulevard, Two Rocks (on DP: 52013);

·        Lot 721 (71) Montebello Boulevard, Two Rocks (on DP: 52013);

·        Lot 722 (73) Montebello Boulevard, Two Rocks (on DP: 52013); and

·        Lot 723 (75) Montebello Boulevard, Two Rocks (on DP: 52013),

 

as shown on Scheme (Amendment) Map 2 (included as Attachment 1 of this Report);

 

g)      Reclassifying the following land parcels from the ‘Urban Development’ zone to ‘Local Scheme Reserve – Parks & Recreation’:

 

·        Portion Lot 500 (25) Ashmore Avenue, Two Rocks (on DP: 54122);

·        Lot 1005 (49) Fawkner Road, Two Rocks (on DP: 52013);

·        Lot 1002 (18) Wistari Circle, Two Rocks (on DP: 45227); and

·        Lot 1001 (8) Montebello Boulevard, Two Rocks (on DP: 45225),

 

as shown on Scheme (Amendment) Map 2 (included as Attachment 1 of this Report)

 

h)      Reclassifying Lot 1010 (8) Abrolhos Close, Two Rocks (on DP: 45225) and Lot 1013 (85) Ashmore Avenue, Two Rocks (on DP: 52013) from the ‘Urban Development’ zone to ‘Local Scheme Reserve – Public Use’, as shown on Scheme (Amendment) Map 2 (included as Attachment 1 of this Report);

 

2.       Pursuant to Regulation 35A(b) of the Planning and Development (Local Planning Schemes) Regulations 2015, RESOLVES that Amendment No. 197 to District Planning Scheme No. 2 include the following statement:

 

Upon approval of Amendment No. 197 to District Planning Scheme No. 2, the plans contained within Part 1 of City of Wanneroo’s Lot 12 Jindalee Agreed Local Structure Plan No. 36 and the Lot 501 Two Rocks Road, Two Rocks Agreed Local Structure Plan No. 48 are to be amended by the Western Australian Planning Commission to the extent shown on the Structure Plan (Amendment) Maps (refer Attachment 4 of the Report);

 

3.       Pursuant to Regulation 34 and Regulation 35(2) of the Planning and Development (Local Planning Schemes) Regulations 2015, RESOLVES that Amendment No. 197 to District Planning Scheme No. 2 is a basic amendment for the following reason:

 

An amendment to the scheme map that is consistent with a structure plan, activity centre plan or local development plan that has been approved under the scheme for the land to which the amendment relates if the scheme currently includes zones of all types that are outlined in the plan;

 

4.       Pursuant to Section 81 and Section 82 of the Planning and Development Act 2005, REFERS Amendment No. 197 to District Planning Scheme No. 2 to the Environmental Protection Authority;

 

5.       AUTHORISES the Mayor and Chief Executive Officer to SIGN and SEAL Amendment No. 197 to District Planning Scheme No. 2 documents in accordance with the City’s Execution of Documents Policy;

 

6.       Pursuant to Regulation 58 of the Planning and Development (Local Planning Scheme) Regulations 2015, PROVIDES Amendment No. 197 to District Planning Scheme No. 2 to the Western Australian Planning Commission; and

 

7.       REQUESTS the Western Australian Planning Commission amend the City of Wanneroo’s Lot 12 Jindalee Agreed Local Structure Plan No. 36 and Lot 501 Two Rocks Road, Two Rocks Agreed Local Structure Plan No. 48, to the extent outlined in Resolution Item (2) and pursuant to Schedule 2, Clause 29A(2) of the Planning and Development (Local Planning Schemes) Regulations 2015; after the Minister for Planning (or their delegate) approves Amendment No. 197 to District Planning Scheme No. 2.

 

Attachments:

1.

Attachment 1 - Scheme (Amendment) Maps - Amendment No. 197 to DPS 2

21/464162

Minuted

2.

Attachment 2 - Structure Plan Extracts and Other Information - ASP 36

21/365653

 

3.

Attachment 3 - Structure Plan Extracts and Other Information - ASP 48

21/365871

 

4.

Attachment 4 - Structure Plan (Amendment) Maps - Attachment to Council Report - To Support Amendment No. 197 to DPS 2

21/464394

Minuted

 

 

 

 


CITY OF WANNEROO Late Items Agenda OF Council Members' Briefing Session 30 November, 2021                                             9

PDF Creator

PDF Creator


CITY OF WANNEROO Late Items Agenda OF Council Members' Briefing Session 30 November, 2021                                           11

PDF Creator

PDF Creator


PDF Creator

PDF Creator


CITY OF WANNEROO Late Items Agenda OF Council Members' Briefing Session 30 November, 2021                                           15

PDF Creator

PDF Creator


CITY OF WANNEROO Late Items Agenda OF Council Members' Briefing Session 30 November, 2021                                           21

PDF Creator

PDF Creator

PDF Creator

PDF Creator

PDF Creator

PDF Creator