Council Minutes
Confirmed Minutes
Council Meeting
6:00pm, 25
February 2025
Council Chambers (Level 1) Civic Centre
23 Dundebar Road, Wanneroo
wanneroo.wa.gov.au
RECORDING AND ACCESS TO RECORDINGS OF COUNCIL MEETINGS POLICY
To be open and transparent regarding Council Meeting recordings and access to these recordings for members of the public and Council Members.
Objective
The objective of this policy is to ensure there is a process in place to outline the access to recorded Council Meetings.
Purpose
The purpose of this policy is to ensure that Council Members, the community, government bodies and other stakeholders are able to access recordings of the proceedings of Council meetings in compliance with the Local Government Act 1995 and associated Regulations.
This Policy applies to Council Members and employees of the City of Wanneroo.
The policy aligns with the following Strategic Community Plan Goal and Priorities:
Strategic Community Plan 2021-2031
Goal 7: A well-governed and managed City that makes informed decisions, provides strong community leadership and valued customer focused services.
Priority 7.2 – Responsibly and ethically managed. The City of Wanneroo will be managed responsibly to ensure a long-term, sustainable future. The City will have effective governance arrangements and ethical leadership that is open and transparent, ensuring a clear understanding of roles and accountabilities.
6.1. This Policy shall be printed within the Agenda of all Council Meetings, which include:
· Ordinary Council Meeting;
· Special Council Meeting;
· Annual General Meeting of Electors;
· Special Electors Meeting; and
· Agenda Briefing Session
to advise the public that the proceedings of the meeting are recorded.
Recording of Proceedings
6.2. Proceedings of Meetings detailed in this policy, as well as Deputations and Public Question Time during these meetings, shall be recorded by the City on audio and video recording equipment. Meetings and portions of Meetings taking place in closed session will be recorded on audio recording equipment.
6.3. No member of the public is to use any audio-visual technology or devices to record the proceedings of a Meeting, without the written permission of the Mayor or the Mayor’s Delegate.
6.4. Arrangements for the broadcast and recording of meetings conducted by electronic means under s14D of the Local Government (Administration) Regulations 1996 (Regulations), for example in the situation of a public health emergency or state of emergency, will be made in compliance with ss.14H and 14I of the Regulations.
6.5. Arrangements for the recording of Meetings not held at the Council’s usual meeting place, or for the recording of Meetings in the event of a technological failure of the City’s recording equipment, will be made in compliance with ss.14I(2) to 14I(9) of the Regulations.
6.6. In compliance with the City’s approved Recordkeeping Plan and the State Records Act 2000, recordings made under this policy will be retained for the period specified in the General Retention and Disposal Authority for Local Government Information.
Access to Recordings
6.7. Recordings of Meetings made under this policy will be published via the City’s online channels no later than fourteen (14) days after the Meeting and will remain accessible for a minimum period of five (5) years after the Meeting date.
6.8. Members of the public may purchase a copy of the recorded proceedings or alternatively, listen to the recorded proceedings at the Civic Centre online once the recording is published on the City of Wanneroo website. Costs for providing a copy of the recorded proceedings to members of the public will include staff time to make the copy of the proceedings, as well as the cost of the digital copy for the recording to be placed on. The cost of staff time will be set in the City’s Schedule of Fees and Charges each financial year.
6.9. Council Members may request a copy of the recording of the Council proceedings at no charge.
6.10. All Council Members are to be notified when recordings are requested by members of the public or by Council Members.
The Policy is the responsibility of the Manager Council & Corporate Support.
All disputes in regard to this policy will be referred to the Director Corporate Strategy and Performance in the first instance. In the event that an agreement cannot be reached, the matter will be submitted to the Chief Executive Officer for a ruling.
This policy will be evaluated and its effectiveness reviewed by the following key performance measures:
· All relevant meetings recorded;
· Acceptable quality of recordings captured; and
· Resolution of requests for copies of recordings within appropriate timeframes.
City of Wanneroo Recordkeeping Plan
Nil
COMMONLY USED ACRONYMS AND THEIR MEANING
|
Acronym |
Meaning |
|
|
|
|
ABN |
Australian Business Number |
|
|
|
|
ACN |
Australian Company Number |
|
|
|
|
Act |
Local Government Act 1995 |
|
|
|
|
CBP |
City of Wanneroo Corporate Business Plan |
|
|
|
|
CHRMAP |
Coastal Hazard Risk Management & Adaption Plan |
|
|
|
|
City |
City of Wanneroo |
|
|
|
|
CPI |
Consumer Price Index |
|
|
|
|
DBCA |
Department of Biodiversity Conservation and Attractions |
|
|
|
|
DFES |
Department of Fire and Emergency Services |
|
|
|
|
DOE |
Department of Education Western Australia |
|
|
|
|
DOH |
Department of Health |
|
|
|
|
DPLH |
Department of Planning Lands and Heritage |
|
|
|
|
DPS2 |
District Planning Scheme No. 2 |
|
|
|
|
DLGSCI |
Department of Local Government, Sport and Cultural Industries |
|
|
|
|
DWER |
Department of Water and Environmental Regulation |
|
|
|
|
EPA |
Environmental Protection Authority |
|
|
|
|
GST |
Goods and Services Tax |
|
|
|
|
JDAP |
Joint Development Assessment Panel |
|
|
|
|
LTFP |
Long Term Financial Plan |
|
|
|
|
MRS |
Metropolitan Region Scheme |
|
|
|
|
MRWA |
Main Roads Western Australia |
|
|
|
|
POS |
Public Open Space |
|
|
|
|
PTA |
Public Transport Authority of Western Australia |
|
|
|
|
SAT |
State Administrative Tribunal |
|
|
|
|
SCP |
City of Wanneroo Strategic Community Plan |
|
|
|
|
WALGA |
Western Australian Local Government Association |
|
|
|
|
WAPC |
Western Australian Planning Commission |

Unconfirmed Minutes of Ordinary Council Meeting
held on Tuesday 25 February 2025
CONTENTS
Item 2 Apologies and Leave of Absence
Item 3 Public Question and Statement Time
PQ01-02/25 Mr P Mulcahy, Marangaroo
PQ02-02/25 Ms L Kennedy, Eglinton
PQ03-02/25 Mrs D Newton, Wanneroo
PQ04-02/25 Mrs D Newton, Wanneroo
Item 4 Confirmation of Minutes
OC01-02/25 Minutes of Ordinary Council Meeting held on 10 December 2024
Item 5 Announcements by the Mayor without Discussion
Item 6 Questions from Council Members
CQ01-02/25 Cr Wright - Green Village, Gnangara - Petition
PT01-02/25 Dalvik Park, Merriwa - Installation of a Fronton Court
PT02-02/25 2/1 Fairywren Street, Banksia Grove - Proposed Cafe/Bar
PT03-02/25 Frangipani Park, Marangaroo - Request for Upgrade
PT04-02/25 Landsdale Primary School - Parking Issues
Strategic Land Use Planning & Environment
AS01-02/25 Department of Transport WA Bicycle Network Grants Program 2024
AS03-02/25 Girrawheen Hub Precinct Redevelopment - Project Update
AS04-02/25 Yanchep Coastal Management Advisory Group - Appointment of Council Members Delegates
Withdrawn Proposed Deaccessioning of Tony Jones Public Artworks in Kahana Park, Butler
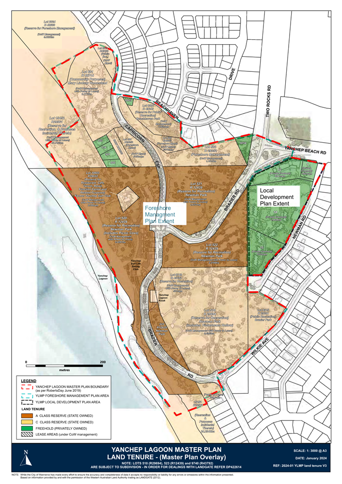
CP01-02/25 Yanchep Lagoon - Preliminary Foreshore Management Plan
Corporate Strategy & Performance
CS01-02/25 Financial Activity Statement for the Period ended 30 November 2024
CS02-02/25 Financial Activity Statement for the Period ended 31 December 2024
Corporate Planning Performance & Improvement
CS03-02/25 Mid Year Review of Corporate Business Plan 2024/25 - 2027/28 and Annual Budget 2024/25
CS04-02/25 Warrant of Payments for the Period to 30 November 2024
CS05-02/25 Warrant of Payments for the Period to 31 December 2024
CE01-02/25 Strategic Risk Profile Update
Withdrawn Change to Appointment of Presiding and Deputy Presiding Members of Committees
CE02-02/25 Corporate Risk Profile - CO-O10 Workforce Planning Risk Rated High
CE03-02/25 Ordinary Council Meetings and Forums of Council Policy - Exemption Request
CE04-02/25 City of Wanneroo Integrity Framework Review
CE05-02/25 Update on the Proposal for Minor Change to Ward Boundary
MN02-02/25 Cr Berry - Elected Member Superannuation
MN03-02/25 Cr Smith - Fostering Urban Art in Wanneroo
MN04-02/25 Cr Coetzee - Investigation into a Mountain Bike Trail in the Alkimos Area
MN05-02/25 Cr Miles - Review of District Boundaries
MN07-02/25 Mayor Aitken - Provision of Bin-Mounted Dog Waste Bag Dispensers
MN08-02/25 Cr Bedworth - Bookable Bulk Verge Collection
MN09-02/25 Cr Wright - Position Statement on Political Figures and Political Parties
CR01-02/25 Acquisition of Land from Lot 5 (190) Flynn Drive, Neerabup as Road Reserve
CR02-02/25 Independent Members of the Audit and Risk Committee
Mayor Aitken declared the meeting open at 6:00pm and read the prayer.
Good evening Councillors, staff, ladies and gentlemen, this meeting today is being held on Whadjuck Nyoongar Boodjar and I would like to acknowledge and pay my respects to Elders, past, present and future. I thank all past and present members of the community that have supported the City to better understand and value Nyoongar culture within the City of Wanneroo.
I invite you to bow your head in prayer:
Lord, We thank you for blessing our City, our community and our Council. Guide us all in our decision making to act fairly, without fear or favour and with compassion, integrity, wisdom and honesty. May we show true leadership, be inclusive of all, and guide all of the City’s people and many families to a prosperous future that all may share. We ask this in your name. Amen.
LINDA AITKEN, JP Mayor
Councillors:
ALEX FIGG North Ward
SONET COETZEE North Ward
GLYNIS PARKER North-East Ward
BRONWYN SMITH North-East Ward
PAUL MILES Central-East Ward
HELEN BERRY Central-West Ward
PHIL BEDWORTH Central-West Ward
JACQUELINE HUNTLEY Central Ward
JORDAN WRIGHT Central Ward
NATALIE HERRIDGE South-West Ward
VINH NGUYEN South-West Ward (left 9:34pm)
JAMES ROWE, JP South Ward
EMAN SEIF, JP South Ward
Officers:
BILL PARKER Chief Executive Officer
MARK DICKSON Director, Planning and Sustainability
HARMINDER SINGH Director, Assets
KIRSTIE DAVIS Director, Community & Place
NOELENE JENNINGS Director, Corporate Strategy & Performance
VICKI COLES General Counsel
DOUG BRETT-MATTHEWSON Acting Manager Council Services
SUAD ALLIE Coordinator Council Services
THUSHARA WIJESIRI Acting Chief Finance Officer
ROHAN KLEMM Manager Community Facilities
NICK STAWARZ Manager Place Management
JACKIE KALLEN Manager Communications & Brand
CHRIS FORDE Project Director
MADONNA ILIFFE Governance Specialist
AMANDA BLYTH Council Support Officer (Minutes)
KRISTY AVACONE Council Support Officer
Item 2 Apologies and Leave of Absence
MARIZANE MOORE Central-East Ward (maternity leave)
There were two members of the public and no members of the press in attendance.
Item 3 Public Question and Statement Time
|
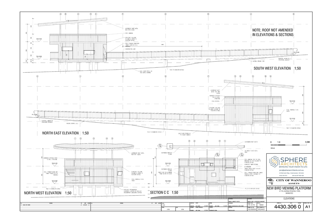
Questions received in writing: 1. Why in the tender documents for the Yellagonga Boardwalk does it not state the location of the.
2. Also in the consultation part of the report When were the Wanneroo Residents Association consulted. As they were the group, who originally proposed this asset to our community? Response by Director Assets The tender documents include an aerial map showing the location of the bird viewing platform. The report to be considered by Council at Ordinary Council Meeting on 25 February 2025 includes plans. Community engagement was undertaken from 22 July to 14 August 2022. An information letter with the proposed location was sent to 134 local residents/homeowners. Information was also provided on the City’s “Your Say” page. |
Item 4 Confirmation of Minutes
Item 5 Announcements by the Mayor without Discussion
Item 6 Questions from Council Members
|
1. In regard to Council decision in December 2021, that Council accepted a petition from Green Village in Gnangara, to list a detailed design for the footpath on Clubhouse Lane and to support the design and construction, can Administration provide an update? Response by Director Assets
A design was prepared, and community engagement was undertaken with the affected residents. Lack of support and feedback from the community meant the design did not progress to construction. An updated was provided to Council Members via a Briefing Note in March 2023.
2. Were the residents from Greens Village consulted as part of the consultation process?
Response by Director Assets
No, only the residents directly impacted by the proposed footpath location were consulted.
3. Can Administration provide the resolution of Council to discontinue the project or to not proceed?
Response by Director Assets
The Council resolution was to request Administration to list the detailed design, including the assessment of the storm water drainage and trees removal and community engagement for 170 meters of footpath on the eastern side of Clubhouse Lane in the draft long term capital works program, in accordance with the request set out in the petition. The detailed design was listed in the budget and under that particular project the City prepared the design and undertook the community engagement, which didn’t support the footpath, therefore it did not proceed to the construction. 4. Is this project still listed in the draft long Capital Works Program, if so, has Council endorsed the removal of this project?
Response by Director Assets
Footpaths are listed in a separate database based on the priority order, based on the Pathway Policy and the Long-Term Financial Plan which lists the recurring program for a footpath program, so depending upon the priority order of all projects they form part of the annual budget to delivered in that particular year.
Further response by Director Assets
The project scores 18 using the Council Pathways Policy. This places it below over 2,000 other projects.
5. With the retention of trees and noting that Council decision was in 2021, what are the implications of that particular policy now that Council has endorsed that particular detailed design and construction with the new City tree policy?
Response by Director Assets
Administration has not changed its Policy on tree retention. Council adopted the revised City Tree Policy in December 2024. The Policy:
· Recognises the significance of trees within the urban setting in terms of creating functional and aesthetic streetscapes and reserves, and has the responsibility for the planning, establishment, care, control and maintenance of all City trees. · Will plan for urban enhancement through the retention of suitable trees within proposed road reservations and public reserves.
The Policy adopted in December 2024 supports the retention of trees in Clubhouse Lane. |
|
Cr Parker presented a petition of 21 signatories requesting the installation of a Fronton Court at Dalvik Park, Merriwa.
Moved Cr Parker, Seconded Cr Smith
That petition PT01-02/25 be received and forwarded to the relevant Directorate for reporting back to Council.
Carried Unanimously 14/0 For the motion: Mayor
Aitken, Cr Bedworth, Cr Berry, Cr Coetzee, Cr Figg, Against the motion: Nil Absent: Cr Moore |
|
Cr Rowe presented a petition of 16 signatories objecting to the proposed Café/Bar at 2/1Fairywren Street, Banksia Grove.
Moved Cr Rowe, Seconded Cr Miles
That petition PT02-02/25 be received and forwarded to the relevant Directorate for reporting back to Council.
Carried Unanimously 14/0 For the motion: Mayor
Aitken, Cr Bedworth, Cr Berry, Cr Coetzee, Cr Figg, Against the motion: Nil Absent: Cr Moore
|
|
Cr Seif presented a petition of 29 signatories requesting upgrades at Frangipani Park, Marangaroo.
Moved Cr Seif, Seconded Cr Rowe
That petition PT03-02/25 be received and forwarded to the relevant Directorate for reporting back to Council.
Carried Unanimously 14/0 For the motion: Mayor
Aitken, Cr Bedworth, Cr Berry, Cr Coetzee, Cr Figg, Against the motion: Nil Absent: Cr Moore
|
|
Cr Nguyen* presented a petition of 15 signatories requesting the City investigate parking issues around Landsdale Primary school.
Moved Cr Nguyen, Seconded Cr Huntley
That petition PT04-02/25 be received and forwarded to the relevant Directorate for reporting back to Council.
Carried Unanimously 14/0 For the motion: Mayor
Aitken, Cr Bedworth, Cr Berry, Cr Coetzee, Cr Figg, Against the motion: Nil Absent: Cr Moore
|
Update on Petitions
Nil
Cr Huntley declared an impartiality interest in Item CS07-02/25 due to being a member of the Wanneroo RSL.
Cr Coetzee declared an impartiality interest in Item CP01-02/25 due to being a resident in the vicinity in the Yanchep and Two Rocks.
Director Community & Place declared an impartiality interest in Item CP01-02/25 due to being a resident in the vicinity of Yanchep and Two Rocks.
Cr Miles declared an impartiality interest in Item CR01-02/25 due being friends of the family related to the property.
General Counsel declared an impartiality interest in Item CR02-02/25 due to previously working with one of the candidates.
Strategic Land Use Planning & Environment
PS01-02/25 Authorisation for Signing and Sealing Proposed Scheme Amendment No. 225 to District Planning Scheme No. 2
File Ref: 50334 – 24/422641
Responsible Officer: Director Planning & Sustainability
Attachments: 1
Issue
To obtain Council’s approval to sign and seal Amendment No. 225 to District Planning Scheme No.2 (DPS2) in accordance with the Section 9.49A(1) of the Local Government Act 1995 and the City of Wanneroo’s (City) Execution of Documents Policy.
Background
Amendment No. 225 to DPS2 was initiated by Administration to correct an inadvertent text change caused by previous Amendment No. 200, which (consequently) resulted in Administration’s delegation to approve Developer Contribution Plan (DCP) tax invoices for grouped dwelling sites (East Wanneroo Cells 1-9) being returned to Council.
On 13 August 2024 (Report PS01-08/24), Council resolved to prepare Amendment No. 225 to DPS2, which proposed to change the word ‘Council’ to ‘Local Government’ in Schedule 14, Clause 1.6.4 (a) of DPS2. The sealing of Amendment No. 225 was not requested by Administration at this time because the Department of Planning, Lands and Heritage (DPLH) was not able to confirm whether the Western Australian Planning Commission (WAPC) would classify the Amendment as either a Basic Amendment (which does not require advertising) or Complex Amendment (which would require public advertising prior to signing and sealing).
On 27 November 2024, the DPLH advised the City that Amendment No. 225 can now proceed as a Basic Amendment and does not require public advertising. However, Council is required to authorise the signing and sealing sections of the Amendment No. 225 document (refer Attachment 1) to enable the Minister to consider the proposal under the Planning and Development Act 2005 and the Town Planning Regulations 2015.
Detail
The requirement to sign and seal a Scheme Amendment document is prescribed in the amendment form (Form 2), which refers to the resolution of Council and the Common Seal of the City of Wanneroo being affixed. The signing and sealing occurs immediately or shortly after Council’s consideration of the Scheme Amendment.
The execution of documents must occur in accordance with the requirements of Section 9.49A(1) of the Local Government Act 1995 and the City’s Execution of Documents Policy. The City’s Execution of Documents Policy classifies scheme amendments as Category 1 documents, which requires the City’s common seal to be affixed.
Council approval is required to authorise execution of the
Amendment No. 225 document by the Mayor and Chief Executive Officer to
implement Council’s original approval on 13 August 2024 (Report
PS01-08/24) and submit Amendment No. 225 to District Planning Scheme
No. 2 documentation to the Western Australian Planning Commission for
determination.
Comment
DPLH has now confirmed Amendment No. 225 can proceed as a Basic Amendment, and as such, it is recommended that the amendment proposal be signed and sealed without modification (refer Attachment 1) and forwarded to the Western Australian Planning Commission for final approval, as required by the DPLH.
Statutory Compliance
Amendment No. 225 has been processed in accordance with the Planning and Development Act 2005 and the Town Planning Regulations 2015.
Administration recommends that Council adopts Amendment No. 225 in accordance with Regulation 17(2)(a), without modification.
Strategic Implications
The proposal aligns with the following objective within the Strategic Community Plan 2021 – 2031:
5 ~ A well planned, safe and resilient City that is easy to travel around and provides a connection between people and places
5.1 - Develop to meet current need and future growth
Risk Appetite Statement
In pursuit of strategic objective goal 5, we will accept a Medium level of risk, extended to High in the areas of Community / Reputation & Financial / Commercial impacts. Shifting transport modes and usage in the City may require short term pain for longer term gain as the City supports the development, maintenance and connection of alternatives to car use (e.g. cycle ways) and the supporting infrastructure.
Risk Management Considerations
|
Risk Title |
Risk Rating |
|
ST-G09 Long Term Financial Plan |
Low |
|
Accountability |
Action Planning Option |
|
Director Corporate Strategy & Performance |
Manage |
|
Risk Title |
Risk Rating |
|
ST-S23 Stakeholder Relationships |
Medium |
|
Accountability |
Action Planning Option |
|
Chief Executive Officer |
Manage |
|
Risk Title |
Risk Rating |
|
CO-O17 Financial Management |
High |
|
Accountability |
Action Planning Option |
|
Director Corporate Strategy & Performance |
Manage |
The above risks have been identified and considered within the City’s Strategic and Corporate risk registers. The annual review of the DCP and associated provisions of DPS2 assist Council to address the Strategic risk relating to Long Term Financial Planning (LTFP) as ensure that appropriate budget monitoring, timing and provisions are considered. The strategic risk relating to Stakeholder Relationships applies as a key element in the DCP review process to maintain effective engagement with relevant stakeholders. In addition, the Corporate risk relating to Financial Management would apply as awareness of financial policies and financial management to promote accountability by business owners and an integrated approach to risk assurance.
Policy Implications
Nil
Financial Implications
Nil
Changes to Reports arising from Agenda Briefing
Nil
Voting Requirements
Simple Majority
|
Moved Cr Miles, Seconded Cr Rowe That Council AUTHORISES the Mayor and the Chief Executive Officer to SIGN and SEAL Amendment No. 225 to District Planning Scheme No. 2 documents in accordance with the City’s Execution of Documents Policy, as contained in Attachment 1.
14/0 For
the motion: Mayor
Aitken, Cr Bedworth, Cr Berry, Cr Coetzee, Cr Figg, Against the motion: Nil Absent: Cr Moore
|
Attachments:
|
1⇩. |
Attachment 1 - Amendment 225 report |
24/289583 |
|
PS02-02/25 Close of Advertising - East Wanneroo Cells 1-9 Developer Contribution Plans Annual Review of Costs (2024-2025)
File Ref: 5734V009 – 24/366406
Responsible Officer: Director Planning & Sustainability
Attachments: 11
Issue
To consider the Annual Review of Cell Costs for the East Wanneroo Cells 1-9 Developer Contributions Arrangements and recommended responses to the public submissions received during the public advertising.
Background
The East Wanneroo Cells include the areas of Wanneroo, Ashby, Tapping, Sinagra, Hocking, Pearsall, Landsdale, Darch, Madeley and Wangara. (Attachment 1)
The City of Wanneroo’s (City) District Planning Scheme No. 2 (DPS2) provides the statutory basis for the administration and management of Developer Contributions Plans (DCP). DPS2 requires the City to review the East Wanneroo Cell (1-9) infrastructure costs on an annual basis. This includes the review of Estimated Lot Yields (ELY) for Cells 1-6 and 9, the remaining area to be developed for the industrial Cells 7 and 8, actual expenditure in the prior financial year, estimated remaining costs and delivery timeframes for remaining Cell Works.
On 17 September 2024, the Audit and Risk Committee considered the East Wanneroo Cells 1-9 DCP Annual Review for the 2024-2025 period and recommended that Council initiates public consultation. On 8 October 2024 (PS03-10/24), Council considered the draft Annual Review of Costs for 2024-2025 (Attachments 2-10) and resolved to advertise the Annual Review for a period of 42 days. The Annual Review included revised cost estimates, land valuations and recommended an Infrastructure Cost Per Lot (ICPL) for each cell, as depicted below:
· Cell 1 - ICPL rate of $18,019 (retained) and Land Valuation of $1,900,000 per hectare;
· Cell 2 - ICPL rate of $19,701 (decreased by $1,146) and Land Valuation of $1,900,000 per hectare;
· Cell 3 - ICPL rate of $28,702 (increased by $2,799) and Land Valuation of $1,900,000 per hectare;
· Cell 4 - ICPL rate of $23,328 (retained) and Land Valuation of $1,940,000 per hectare;
· Cell 5 - ICPL rate of $30,909 (retained) and Land Valuation of $2,125,000 per hectare;
· Cell 6 - ICPL rate of $24,678 (retained) and Land Valuation of $2,125,000 per hectare;
· Cell 7 - Contribution rate of $12.42 per/m2 (increased by $1.30 per/m2) and Land Valuation of $3,050,000 per hectare;
· Cell 8 - Contribution rate of $34.53 per/m2 (increased by $2.99 per/m2) and Land Valuation of $2,850,000 per hectare; and
· Cell 9 - ICPL rate of $29,947 (retained) and Land Valuation of $2,100,000 per hectare.
In accordance with the provisions of DPS2, the City advertised the proposed land value and the revised Cell Costs for a period of 42 days from 17 October to 28 November 2024 and included advertisements in the PerthNow (Wanneroo), the West Australian, letters to affected landowners and on the City’s website.
At the close of the public advertising period, Administration had received 3 submissions objecting to the proposed land valuations for East Wanneroo Cells 6, 7 and 9.
Detail
In accordance with the requirements of DPS2, the Local Government will have regard for the value of land required to complete the remaining Cell Works. Clause 1.14.3 of DPS2 specifies that a land Valuation Panel (consisting of two independent valuation consultants), shall be engaged to derive a consensus valuation for each of the East Wanneroo Cells.
The April 2024 Valuation recommended a decrease for all residential cells. The Valuation Panel advised that the lower valuation was a consequence of higher labour and construction costs required to deliver the residential lots to the market. In this regard, whilst the new lot prices have continued to increase, the lower values reflect the prices that developers were prepared to pay for unimproved land (at that time), due to the higher development and subdivision costs.
Administration received three submissions objecting to the proposed lower valuations for East Wanneroo Cells 6, 7 and 9. In accordance with clause 1.14.3(c) of Schedule 14 of DPS No. 2, the submissions were referred to the City’s appointed Valuation Panel for comment. In addition, Administration requested the Valuation Panel to consider any potential implications for the other Cells (2, 3, 4 and 8), which did not receive submissions. It should also be noted that Cells 1 and 5 do not have any remaining land acquisition and therefore were excluded from the revised valuation advice.
The Valuation Panel updated the valuations to reflect a December 2024 valuation (to ensure that the latest information was being applied), which resulted in higher land valuations being recommended for the residential and industrial cells (refer Attachment 11). The Valuation Panel recommends that the residential valuations increase to a level slightly higher than the current assessed value (approved February 2024), however a significant increase in Industrial land values (Cells 7 and 8) is recommended (refer below).
|
Current Value Per/Ha (2023-2024) Annual Review |
Advertised Value (April 2024) |
Revised Value (December 2024) |
Revised Value % Increase compared to Current Value |
|
|
1 |
$1,965,000 |
$1,900,000 |
N/A |
N/A |
|
2 |
$1,965,000 |
$1,900,000 |
$2,000,000 |
1.78% |
|
3 |
$1,965,000 |
$1,900,000 |
$2,000,000 |
1.78% |
|
4 |
$2,020,000 |
$1,940,000 |
$2,050,000 |
1.49% |
|
5 |
$2,160,000 |
$2,125,000 |
N/A |
N/A |
|
6 |
$2,185,000 |
$2,125,000 |
$2,350,000 |
7.55% |
|
7 |
$2,600,000 |
$3,050,000 |
$3,500,000 |
34.62% |
|
8 |
$2,400,000 |
$2,850,000 |
$3,300,000 |
37.5% |
|
9 |
$2,160,000 |
$2,100,000 |
$2,350,000 |
8.80% |
Consultation
In accordance with Councils resolution at the Ordinary
Council Meeting on 8 October 2024 (PS03-10/24), public consultation
occurred for 42 days between 17 October 2024 and
28 November 2024. The City received three submissions all relating to land
valuations.
Comment
A summary of the submission and Administrations response is provided below.
Landowner Submission 1 (Parcel Darch Pty Ltd)
This submission does not support the proposed decrease in the Land Valuations for East Wanneroo Cell 6 as the advertised rate of $2,125,000 per hectare rate is too conservative and is reducing the cells valuation from last year ($2,185,000 per hectare). Parcel Darch Pty Ltd sought land valuation advice from licenced land valuers, MMJ Real Estate (WA) Pty Ltd who has advised that the sales evidence within the East Wanneroo Cell 6 DCP and surrounding areas should not allow for a decreased land valuation rate per hectare as proposed by the City’s land valuation panel.
Administration’s Response:
The land valuation panel assessed the submission and resolved that land valuations based on updated December 2024 values have increased in Cell 6 by 7.55% from the currently approved valuation (2023-2024 annual review).
Landowner Submission 2 (Private Landowner Submission)
This submission does not support proposed increase of the land valuation for East Wanneroo Cell 7 due to their research on sales data for the surrounding area being considerably higher than the City’s proposed land valuation.
Administration’s Response:
Although there were no professional land valuation comments accompanying the submission, Administration sent the submission to the City’s land valuation panel for comment. The land valuation panel assessed land valuations based on updated December 2024 values, resulting in a 34.62% recommended increase compared to the currently approved valuation (2023-2024 annual review).
Landowner Submission 3 (Private Landowner Submission)
This submission does not support the proposed decrease in the land valuation for East Wanneroo Cell 9 due to land and real estate prices significantly increasing in the area over the last 12 months.
Administration’s Response:
Although there were no professional land valuation information accompanying the submission, Administration sought comment from the Land Valuation Panel to address the submission issues. The land valuation panel re-assessed land valuations based on December 2024 values, resulting in a 8.80% increase compared to the currently approved valuation (2023-2024 annual review).
Consideration for Land Valuations
The annual review process defined in DPS2 requires significant investigation, consultation and reporting. In addition, Administration has undertaken external auditing and reporting to the Audit and Risk Committee. This operational process requires the engagement of consultants very early in the annual review process. As part of this annual review, valuation advice was sought in April 2024 and Council approved public advertising of the annual review at the October 2024 Ordinary Council Meeting. This frequently results in remaining cost estimates being outdated by the time Council considers the landowner submissions, which in this case was 10 months after the valuation date. The external auditing of the annual review and reporting to the Audit and Risk Committee is not a requirement of DPS2 or the operational requirements of State Planning Policy 3.6 (SPP3.6). This external auditing was undertaken by Administration whilst the City was completing the transactional review of historic costs, which is now complete. Therefore, Administration is considering whether the annual review preparation should occur after the auditing of the City’s end of year financial reporting, to enable a more efficient annual review process to be applied and to ensure that Council has the latest valuation advice when the matter is reported to Council.
ICPL Rates
The increase in land valuation could result in a minor increase in the ICPL rate in some cells, however, Council has previously supported the retention of ICPL rates in Cells 4, 5, 6 and 9, and as such the increased land valuation in these cells would have no material impact on the ICPL rates.
Whilst Cells 2, 3, 7 and 8 may ultimately require an increase in the ICPL rate, the true impact cannot be established without completing a full annual review process, including audited financial information up to the revised review date. Given the next annual review process is likely to be initiated in the coming months and finalised by December 2025, it is recommended that Council support inclusion of the revised valuations and utilise the advertised ICPL rates.
Statutory Compliance
In accordance with the requirements of DPS2, the completion of the Annual Review as outlined in this report, will satisfy the City’s statutory obligations to complete Annual Reviews for the 2024/2025 financial year. External auditing of the DCP accounts has been completed in line with the provisions of the Local Government (Financial Management) Regulations 1996.
If the objections are not addressed to the satisfaction of the objectors, Council may be required to refer the objection to commercial arbitration in accordance with the provisions of DPS2.
Strategic Implications
The proposal aligns with the following objective within the Strategic Community Plan 2021 – 2031:
5 ~ A well planned, safe and resilient City that is easy to travel around and provides a connection between people and places
5.1 - Develop to meet current need and future growth
Risk Appetite Statement
In pursuit of strategic objective goal 5, we will accept a Medium level of risk, extended to High in the areas of Community / Reputation & Financial / Commercial impacts. Shifting transport modes and usage in the City may require short term pain for longer term gain as the City supports the development, maintenance and connection of alternatives to car use (e.g. cycle ways) and the supporting infrastructure.
Risk Management Considerations
|
Risk Title |
Risk Rating |
|
ST-G09 Long Term Financial Plan |
Low |
|
Accountability |
Action Planning Option |
|
Director Corporate Strategy & Performance |
Manage |
|
Risk Title |
Risk Rating |
|
ST-S23 Stakeholder Relationships |
Medium |
|
Accountability |
Action Planning Option |
|
Chief Executive Officer |
Manage |
The above risks have been identified and considered within the City’s existing Strategic risk register. The Annual Review has been undertaken to ensure that adequate contingency is held to fund the remaining Cell Works and recognises factors that may affect a particular Cells income and expenditure estimates.
The work undertaken by the City in relation to the Internal Transactional Review and proper interpretation of the provisions of DPS2 along with the completion of the Annual Review for all Cells reduces the City’s risk of impacts on trust, probity and accountability as it will bring the City to a level of compliance.
Policy Implications
Nil
Financial Implications
To support the Annual Review, William Buck was engaged to perform an audit to ensure the accuracies of the calculated ICPL rate. The relevant audit reports were finalised and delivered to the City in August 2024 (refer Attachments 12-20 in Council report PS03-10/24 on 8 October 2024). The audit reports have confirmed that the adjusted contribution rates are fairly stated and in compliance with DPS2.
In relation to Cells 1, 4, 5, 6 and 9, the audit reports have highlighted that the methodology of DPS2 cannot be utilised to establish a reasonable ICPL rate for remaining (undeveloped) landowners. In these Cells, due to the relatively small number of remaining landholdings, Administration recommends that the ICPL rates be retained until consideration has been given to completing the remaining cell works and finalising the cells as soon as possible, including an appropriate methodology to secure future income from landowners that have not previously contributed. This will ensure fairness and equity between those who have already contributed and those that are still to contribute. Administration will shortly be presenting a report to Council on an approach to closing cells where all infrastructure has been delivered and only a small number of undeveloped sites remain.
Changes to Reports arising from Agenda Briefing
At the Council Briefing meeting on 11 February 2025 two questions were taken on notice by the Director, Planning and Sustainability. The following summarises the questions and provides a response by Administration.
1. 80 Vincent Road Public Open Space acquisition is listed as a pending work in the annual review. The Capital Expenditure Plan (CEP) indicates that this area of POS will be acquired in the 2024-2025 financial year for approximately $10.8 million. Can Administration confirm whether this has occurred?
Response by Administration:
$10.9 million (incl. GST) was paid to Quito Unit Trust (Benara Nurseries) in October 2024 following vesting of the Public Recreation Reserve in the crown.
2. The Cell 9 Capital Expenditure Plan states that in 2024-2025 the City will purchase Public Open Space from Lot 150 (322) Landsdale Road, Landsdale and several other minor land acquisitions in the same period. Can Administration confirm that these will be finalised in the next 3 months?
Response by Administration:
Lot 150 (322) Landsdale Road, Landsdale (Nosow), was acquired in October 2024 for $1.15 million (plus GST). The other items refer to an outstanding landscape buffer cost of $53,498, which is likely to occur prior to 30 June 2025. If the landscape buffer claim is not finalised this financial year, then the estimated cost will be moved into the next financial year as part of the annual review process.
Voting Requirements
Simple Majority
Attachments:
|
1⇩. |
Attachment 1 - Cells 1-9 Consolidated Location Plan |
19/162679 |
|
|
2⇩. |
Attachment 2 - East Wanneroo Cell 1 - Annual Review 2024-2025 |
24/279604 |
|
|
3⇩. |
Attachment 3 - East Wanneroo Cell 2 - Annual Review 2024-2025 |
24/279608 |
|
|
4⇩. |
Attachment 4 - East Wanneroo Cell 3 - Annual Review 2024-2025 |
24/279610 |
|
|
5⇩. |
Attachment 5 - East Wanneroo Cell 4 - Annual Review 2024-2025 |
24/279611 |
|
|
6⇩. |
Attachment 6 - East Wanneroo Cell 5 - Annual Review 2024-2025 |
24/279615 |
|
|
7⇩. |
Attachment 7 - East Wanneroo Cell 6 - Annual Review 2024-2025 |
24/279617 |
|
|
8⇩. |
Attachment 8 - East Wanneroo Cell 7 - Annual Review 2024-2025 |
24/279620 |
|
|
9⇩. |
Attachment 9 - East Wanneroo Cell 8 - Annual Review 2024-2025 |
24/279622 |
|
|
10⇩. |
Attachment 10 - East Wanneroo Cell 9 - Annual Review 2024-2025 |
24/279624 |
|
|
11⇩. |
Attachment 11 - Revised Valuation Panel Advice - Cells 1-9 (Annual Review) |
25/18398 |
|
CITY OF WANNEROO Minutes OF Ordinary Council Meeting 25 February, 2025 1
Assets
File Ref: 47211 – 25/11722
Responsible Officer: Director Assets
Attachments: 1
Issue
To consider offers for funding from the Department of Transport WA Bicycle Network (WABN) Grants Program 2024.
Background
The WA Bicycle Network Grants Program is a State Government initiative that provides funding to local governments to deliver active transport infrastructure that supports more people to walk, wheel and ride as part of their everyday journeys.
The WABN Grants Program is administered by the Department of Transport and matches local government expenditure dollar-for-dollar up to 50 per cent of the total project cost. Local governments apply for funding under the program with application rounds open every one to two years, dependant on funding availability. For the 2024 round, funding support is offered over a four-year program period to help facilitate higher value projects, ensuring quality planning, design and construction to enhance safety and accessibility of critical active transport routes.
The metropolitan stream of the program changed the qualifying project criteria to support the State Government’s investment in public transport infrastructure, requiring projects to be on the Long Term Cycle Network and within two kilometres of new METRONET stations to help fill significant gaps in the cycle network to key public transport sites.
On 30 August 2024, the City of Wanneroo (City) submitted the following six (6) applications (refer Attachment 1 for locations) for funding in the 2025/2026 – 2027/2028 financial years, prior to close of submissions on 6 September 2024:
Design & Construction:
1. Marmion Avenue from Yanchep Beach Road to Botanic Boulevard – 3.5m red asphalt shared pathway on the east verge.
2. Yanchep Beach Road from Spinnaker Boulevard to St Andrews Drive - 2.5m concrete shared pathway on the north verge.
3. Brazier Road from Yanchep Beach Road to Capricorn Esplanade - 3.5m red asphalt shared pathway on the south-east verge.
Detailed Design only:
4. Butler to Alkimos Station shared path - Halesworth Park to Darbyshire Parade – 3.5m red asphalt shared pathway on the east verge of local roads along the rail corridor.
5. St Andrews Drive from Yanchep Beach Road to Botanic Boulevard - 3.5m red asphalt shared pathway on the east verge.
Feasibility/Concept Design only:
6. Two Rocks Road from Yanchep Beach Road to Marcon Street – 3.5m red asphalt shared pathway.
Each of the selected projects were eligible as they form part of the Long Term Cycle Network for the City of Wanneroo as approved by Council in 2020 and fall within 2km of a new Metronet Station on the Yanchep Rail Extension, a new requirement for applications.
Detail
On 6 January 2025, the City received and was required to accept the grant offer notifications from the Department of Transport by 10 January 2025, subject to signing of grant agreement contracts.
The City’s successful grant applications are summarised in the table below. It is noted that funding has been offered to commence design activities in the 2024/25 financial year and does not form part of the current adopted budget. This was unexpected, as the City had requested in all applications that successful projects commence in the 2025/26 financial year.
|
Project name |
Scope |
Funding Offer* |
||
|
2024-25 |
2025-26 |
2026-27 |
||
|
St Andrews Drive Shared Path - Yanchep Beach Road to Yanchep Golf Club |
Detailed design |
$40,000 |
$40,000 |
- |
|
Two Rocks town site to Yanchep Station - feasibility design |
Feasibility/concept |
$40,000 |
$70,000 |
- |
|
Marmion Avenue, Yanchep, New Shared Path from Yanchep Beach Road to Botanic Boulevard |
Design and construction |
$87,500 |
$330,000 |
$487,500 |
|
Butler Station to Alkimos Station, New Shared Path |
Design and construction |
$86,000 |
$471,000 |
$332,500 |
*Figures are 50% grant contribution; project budget is double the amounts shown.
Additionally, the Two Rocks Road and St Andrews Drive projects have been placed on a reserve funding list for additional construction funding if the design and cost estimates show that the project is feasible and provides a positive cost benefit analysis. Subject to the outcome of reserve funding allocation, the City may be required to apply for construction funding for these two projects.
Each successful project has been listed in the draft Long Term financial Plan in the year(s) indicated as either design only or design and construction projects; and will be included in the next revision of the City’s Active Transport Plan from 2026/27 to 2030/31.
The unsuccessful projects, Yanchep Beach Road and Brazier Road, have now been submitted for funding under a separate Federal ‘Active Transport Fund’ grant program, made on 13 January 2025. Both projects are high priority projects contained in the City’s Active Transport Plan and to meet the requirements of the City’s Pathways Policy. If these applications under this federal grant program are again unsuccessful, the projects will be progressed in a future budget as 100% municipally funded and further funding applications made in future WABN grant rounds.
Consultation
Community Engagement will occur as required for each successful project in accordance with the Grant Agreement Contract. Generally, this is limited to ‘Inform’ level of engagement similar to that which occurs for other projects in the City’s Major Pathways recurring capital works program.
Comment
Each of the successful projects will provide significant benefit to the City’s community to deliver safe, connected and accessible shared pathway routes to stations on the Yanchep Rail Line. These are required as the planned Principal Shared Path along the rail corridor from Butler to Yanchep was removed from the scope of the MetroNet rail project.
Delivery of the projects will require Administration to commit to a project delivery and resourcing schedule. Timing of the delivery and completion of the respective projects will be agreed with the Department of Transport under the applicable Grant Agreement contract milestones once they have been set. In accepting these funding offers; it is generally expected that the City can deliver each project over the financial year(s) shown above.
Administration has confirmed there are sufficient resources to commence delivery of these projects earlier than anticipated with capacity available to conduct feature survey, investigate impact on services and commence concept design in the remainder of 2024/25 financial year.
Statutory Compliance
Nil
Strategic Implications
The proposal aligns with the following objective within the Strategic Community Plan 2021 – 2031:
5 ~ A well planned, safe and resilient City that is easy to travel around and provides a connection between people and places
5.4 - People can move around easily
Risk Appetite Statement
In pursuit of strategic objective goal 5, we will accept a Medium level of risk, extended to High in the areas of Community / Reputation & Financial / Commercial impacts. Shifting transport modes and usage in the City may require short term pain for longer term gain as the City supports the development, maintenance and connection of alternatives to car use (e.g. cycle ways) and the supporting infrastructure.
Risk Management Considerations
|
Risk Title |
Risk Rating |
|
ST – G09 Long Term Financial Planning |
Low |
|
Accountability |
Action Planning Option |
|
Director Corporate Strategy & Performance |
Manage |
|
Risk Title |
Risk Rating |
|
ST – S24 Strategic Asset Management |
Medium |
|
Accountability |
Action Planning Option |
|
Director Assets |
Manage |
The above risks relating to the issue contained within this report have been identified and considered within the City’s Strategic risk register. Action plans are in place to manage these risks.
Policy Implications
All the projects identified have been assessed and prioritised accordingly in accordance with the City’s Pathways Policy.
Financial Implications
After execution of grant agreement contracts, the City will receive $173,580 in 2024/25; $911,000 in 2025/26 and $820,000 in 2026/27 being paid in instalments, subject to compliance with the program guidelines. To facilitate the receipt of the first payments of the grant funding and for the City to begin designs as soon as practicable; allocation of $173,580 grant funding offered in 2024/25, is required to conduct feature surveys, investigate impact on services and commence concept design.
Subject to Council accepting these grant offers the draft Long Term Financial Plan (LTFP) will be reviewed and updated with exact funding requirements for these projects, noting that some of these projects have previously been listed in the earlier draft of the LTFP. The proposed allocation of project funding is outlined below, noting the first two projects will be listed within the minor pathways recurring program as no construction is currently proposed.
|
Project name |
Finance Code |
Grant |
Muni |
Grant |
Muni |
Grant |
Muni |
|
2024-25 |
2025-26 |
2026-27 |
|||||
|
St Andrews Drive Shared Path - Yanchep Beach Road to Yanchep Golf Club |
PR-4578 (24/25) PR- 4627 (25/26) |
$40,000 |
- |
$40,000 |
$80,000 |
- |
- |
|
Two Rocks town site to Yanchep Station - feasibility design |
PR-4578 (24/25) PR- 4627 (25/26) |
$40,000 |
$40,000* |
$70,000 |
$70,000 |
- |
- |
|
Marmion Avenue, Yanchep, New Shared Path from Yanchep Beach Road to Botanic Boulevard |
PR-4628 |
$87,500 |
- |
$330,000 |
$417,500 |
$487,500 |
$487,500 |
|
Butler Station to Alkimos Station, New Shared Path |
PR-4629 |
$86,000 |
- |
$471,000 |
$557,000 |
$332,500 |
$332,500 |
Subject to the Council decision on recommendations made in this report further budget adjustment will be requested in a future Financial Activity Statement report to allocate funds in 2024/25 financial year.
Changes to Reports arising from Agenda Briefing
· Change made to Map for Two Rocks project (Attachment 1).
· Question taken on notice regarding information about the need to reapply for the projects approved for design only, has been answered in the last sentence, paragraph 3 under ‘Detail’.
Voting Requirements
Simple Majority
Attachments:
|
1⇩. |
Attachment 1 - WABN Location Map for offered funding in 2024 |
25/25641 |
|
CITY OF WANNEROO Minutes OF Ordinary Council Meeting 25 February, 2025 1
Infrastructure Capital Works
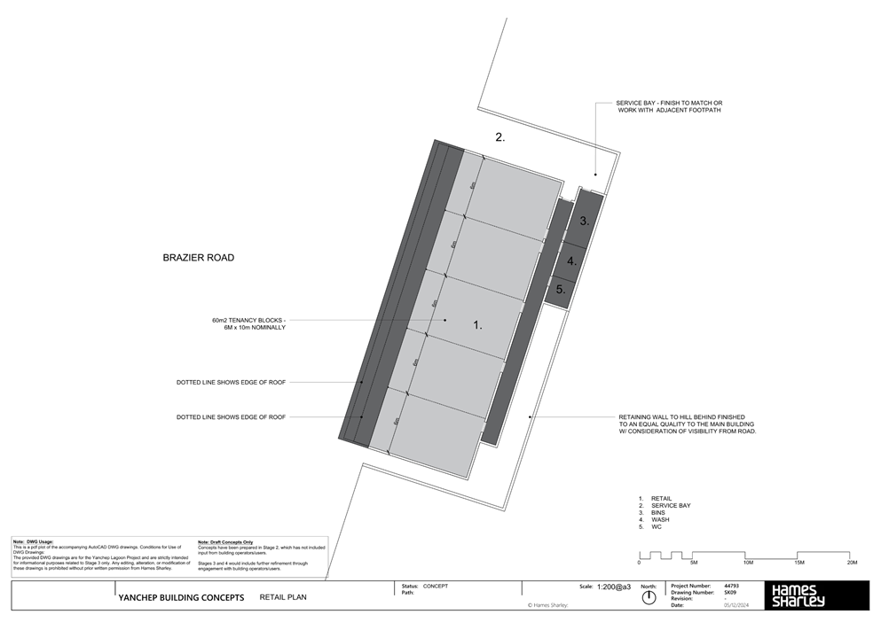
AS02-02/25 Tender 24147 Provision of Minor Works for the Supply and Installation of a Boardwalk at Yellagonga Regional Park
File Ref: 36525 – 24/444965
Responsible Officer: Director Assets
Attachments: 4
Issue
To consider Tender No. 24147 for the Supply and Installation of a Boardwalk at Yellagonga Regional Park, Wanneroo.
Background
State Government grant of $1.235m was accepted by Council in March 2022 (Council report item CP01-03/22) to deliver a boardwalk at Yellagonga Regional Park on the basis that prior to the funding agreement being signed, additional funding would be sought to include the installation of a bird viewing structure.
The City of Wanneroo (City) was successful in securing the additional funding to provide the full project scope and an agreement for a total grant value of $1.936m was signed in November 2023.
Following completion of the detailed design, consultation and approval process, this tender was advertised for the construction of a bird-viewing structure and boardwalk at Yellagonga Regional Park in Wanneroo. The project includes a two-story structure designed to enhance birdwatching experiences for visitors, along with a connecting boardwalk, (refer to Artistic Impression Attachment 1) at site location of Lake Joondalup Park (Attachment 2).
This report considers the outcome of the tender process.
Detail
Tender 24147 for the Supply and Installation of a Boardwalk at Yellagonga Regional Park, Wanneroo was advertised on 2 November 2024 and closed on 10 December 2024. One addenda was issued to extend the original closing date.
Essential details of the proposed contract are as follows:
|
Item |
Detail |
|
Contract Form |
Minor Works |
|
Contract Type |
Fixed Lump Sum |
|
Contract Duration |
7 months |
|
Commencement Date |
April 2025 |
|
Expiry Date |
November 2025 |
|
Extension Permitted |
No |
|
Rise and Fall |
NA |
Tender submissions were received from the following companies:
|
Legal Entity |
Trading Name |
Abbreviation |
|
Hoskins Investments Pty Ltd ATF M R Hoskins Family Trust |
AE Hoskins Building Services
|
AE Hoskins |
|
D.B. Cunningham Pty Ltd |
Advanteering – Civil Engineers
|
Advanteering |
Probity Oversight
Oversight to the tender assessment process was undertaken by the City’s Contracts Officer.
Tender submissions were evaluated in accordance with the Procurement and Evaluation Plan (PEP). The PEP included the following selection criteria:
|
|
Criteria Description |
Weighting |
|
Qualitative Criteria 1: |
Sustainable (Corporate Social Responsibility) Procurement a. Environmental Considerations 5% b. Buy Local 10% c. Reconciliation Action Plan 5% d. Access & Inclusion 5% |
25% |
|
Qualitative Criteria 2: |
* Tenderer’s Safety Management Systems -WHS |
20% |
|
Qualitative Criteria 3: |
* Demonstrated Understanding and Methodology |
30% |
|
Qualitative Criteria 4: |
* Demonstrated Experience, Capacity and Resources |
25% |
All tenderers must meet the City’s minimum requirements (as determined by the City) for each of the qualitative criteria detailed above (*) in order to be considered for further evaluation.
Pricing is not included in the qualitative criteria and is considered as part of the overall value for money assessment.
Both tender submissions were received conforming.
Evaluation Criteria 1 – Sustainable (Corporate Social Responsibility) Procurement (25%)
Evidence of Sustainable (Corporate Social Responsibility) Procurement assessment was based on the tenderers’ responses provided within the Questionnaires set out in Schedules 3A, 3B, 3C and 3D that were included in the tender documentation.
An assessment was made to determine the ranking based on the tenderers’ environmental policy and practices, buy local contributions, as well as commitment to reconciliation and disability access and inclusion.
Sub Criteria a) – Environment Consideration (5%)
The City is committed to procuring goods and services that have the most positive environmental, social and economic impacts over the entire life cycle of a product or service. The environmental assessment based on tenderers’ response to their Environmental policy and practices.
An assessment was made to determine the ranking based on tenderer’s environmental policy and practices.
The assessment of this criterion determined the following ranking:
|
Tenderer |
Ranking |
|
AE Hoskins |
1 |
|
Advanteering |
2 |
Sub Criteria b) – Buy Local (10%)
An assessment was made to determine the ranking based on the responses provided, detailing the following information:
· Purchasing arrangements through local businesses.
· Location of tenderer’s offices and workshops.
· Residential municipality of staff and subcontractors, and
· Requirement for new employees arising from award of the contract.
The assessment of this criterion determined the following ranking:
|
Tenderer |
Ranking |
|
Advanteering |
1 |
|
AE Hoskins |
2 |
Sub Criteria c) – Reconciliation Action Plan (5%)
An assessment was made to determine the ranking based on the responses provided that relate to:
· Relationships – building positive relationships between indigenous and non-indigenous people.
· Respect – recognising the contribution of Indigenous people to Australia and learning more about the history, culture and diversity in a two-way communication process; and
· Opportunities – attracting, developing and retaining organizational talent to build opportunities for aboriginal employment, training and development and mentoring.
The assessment of this criterion determined the following ranking:
|
Tenderer |
Ranking |
|
Advanteering |
1 |
|
AE Hoskins |
2 |
Sub Criteria d) – Access & Inclusion (5%)
An assessment was made to determine the ranking based on the responses provided that relate to:
· People with disabilities have the same buildings and facilities access opportunities as other people;
· People with disabilities receive information in a format that will enable them to access information as readily as other people are able to access it;
· People with disabilities receive the same level and quality of service from staff as other people receive;
· People with disabilities have the same opportunities as other people to make complaints; and
· People with disabilities have the same opportunities as other people to participate in any employment opportunities.
The assessment of this criterion determined the following ranking:
|
Tenderer |
Ranking |
|
AE Hoskins |
1 |
|
Advanteering |
2 |
Overall Sustainable Procurement Ranking Summary
An overall assessment of Evaluation Criteria 1 - Sustainable (Corporate Social Responsibility) Procurement has resulted in the following ranking:
|
Tenderer |
Ranking |
|
Advanteering |
1 |
|
AE Hoskins |
2 |
Evaluation Criteria 2 - Tenderer’s Safety Management Systems - WHS (20%)
Evidence of safety management policies and practices was assessed from the tender submissions. The assessment for safety management was based on the tenderers’ responses to a Health and Safety Management System Questionnaire included within the tender documentation.
All tenderers provided details of their safety management systems with the following ranking:
|
Tenderer |
Ranking |
|
AE Hoskins |
1 |
|
Advanteering |
1 |
Evaluation Criteria 3 – Demonstrated Understanding and Methodology (30%)
The tenderer’s proposed methodology presented in their submission were assessed in order to evaluate their understanding of the scope. The assessment of this criterion has resulted in the following ranking:
|
Tenderer |
Ranking |
|
AE Hoskins |
1 |
|
Advanteering |
1 |
Evaluation Criteria 4 – Demonstrated Experience, Capacity and Resources (25%)
The tenderer’s relevant experience and resources as presented in their tender submission were assessed to evaluate their capability and capacity to meet the requirements of the contract. Assessment of this criterion considered the tenderer’s experience, staff resources, their qualifications, vehicles, plant/equipment and workshop support to manage the contract and meet the project demands. The assessment of this criterion has resulted in the following ranking:
|
Tenderer |
Ranking |
|
Advanteering |
1 |
|
AE Hoskins |
2 |
Overall Qualitative Weighted Assessment and Ranking
The tenderers’ submissions were evaluated in accordance with the selection criteria and were assessed against sustainable procurement, experience, methodology, capacity and resources and safety management systems to undertake the works.
The overall qualitative weighted assessment resulted in the following tender ranking:
|
Tenderer |
Ranking |
|
Advanteering |
1 |
|
AE Hoskins |
2 |
Pricing for the Works Offered
An assessment was made to determine the ranking based on the fixed lump sum pricing provided with the tender documentation.
Based on the lump sum pricing information provided, tenderers are ranked as follows:
|
Tenderer |
Ranking |
|
AE Hoskins |
1 |
|
Advanteering |
2 |
Overall Value for Money Assessment and Comment
The tender submission from AE Hoskins satisfied the overall value for money assessment in accordance with the assessment criteria and weightings as detailed in the Procurement and Evaluation Plan and is therefore recommended as the successful tenderer.
The Confidential Memorandum 1 (Attachment 3) provides further information supporting the recommendation.
The Confidential Memorandum 2 (Attachment 4) provides the information on the lump sum price submitted by the recommended tenderer. Subject to the Council’s decision on the recommendations made in this report, the information contained within the Confidential Memorandum 2 (Attachment 4) will be released via the City’s website after a formal letter of Tender award is issued to the successful tenderer.
Consultation
In accordance with the City’s Community Engagement Policy, consultation has been undertaken with internal and external stakeholders including agencies such as Whadjuk Aboriginal Corporation, and adjoining landowners throughout the detailed design and project development phase. The concept design was presented to the community, and the community was invited to provide feedback. The overall majority responded favourably to the proposed design. The adjoining landowners and associated stakeholders will be informed of project further during construction phase.
The Department of Biodiversity Conservation & Attractions (DBCA) and the Member for Wanneroo have been advised of this Tender Report being considered by Council at this Ordinary Council Meeting.
Statutory Compliance
Tenders were invited in accordance with the requirements of Section 3.57 of the Local Government Act 1995. The tendering procedures and evaluation complied with the requirements of Part 4 of the Local Government (Functions and General) Regulations 1996.
The outcome of an application for development approval which is currently being assessed by the West Australian Planning Commission is likely to be known by mid-February 2025.
Aboriginal Cultural Heritage approval has been received through a Section 18 with specific conditions which can be met during the construction phase of the project.
Strategic Implications
The proposal aligns with the following objective within the Strategic Community Plan 2021 – 2031:
1 ~ An inclusive and accessible City with places and spaces that embrace all
1.3 - Facilities and activities for all
Risk Appetite Statement
In pursuit of strategic objective goal 1, we will accept a Medium level of risk. The recent pandemic has challenged our previous event delivery, place activation and community connection processes, and the City accepts that meeting community expectations in a more restrictive environment needs flexibility and innovation if community connection is to develop and grow in contrast to social and individual isolation.
Enterprise Risk Management Considerations
The risks relating to the issues contained within this report are identified and considered within the City’s Strategic and Corporate risk register with action plans developed to manage/mitigate/accept these risks to support existing management systems.
|
Risk Title |
Risk Rating |
|
CO-015 – Project Management |
Medium |
|
Accountability |
Action Planning Option |
|
Director Corporate Strategy & Performance |
Manage |
|
Risk Title |
Risk Rating |
|
CO-O08 Contract Management |
Low |
|
Accountability |
Action Planning Option |
|
Director Corporate Strategy & Performance |
Manage |
Financial and Performance Risk
Financial Risk
A financial risk assessment was undertaken by Equifax Australasia Credit Ratings Pty Ltd as part of the tender evaluation process and the outcome of this independent assessment advised that AE Hoskins has been assessed with the financial capacity to meet the requirements of the contract.
Performance Risk
Performance and operational risks are managed through the risk assessment process outlined in the project management framework. Before work commences, the appointed contractor will undergo a comprehensive induction to the project site. Ongoing auditing of the contractor’s work practices during the works will be undertaken to ensure compliance with the Work Health Safety requirements.
AE Hoskins has a proven track record, having successfully completed previous construction projects for the City. Independent reference checks further confirm that the recommended tenderer consistently delivers projects on time and meets expected standards.
Policy Implications
Tenders were invited in accordance with the requirements of the City’s Purchasing Policy.
Financial (Budget) Implications
|
PR 4179 Yellagonga Regional Park |
||
|
Description |
Expenditure |
Budget |
|
Budget: |
|
|
|
PR 4179 – 2021/22 to 2023/24 Capital Works Budget |
|
$104,935 |
|
PR 4179 Allocated Capital Works Budget for 2024/25 |
|
$155,065 |
|
PR 4179 Listed Capital Works Budget for 2025/26 |
|
$1,944,935 |
|
Expenditure: |
|
|
|
Expenditure incurred – 2021/22 to 2023/24 |
$104,935 |
|
|
Expenditure incurred in 2024/2025 as at 31/12/2024 |
$44,160 |
|
|
Commitment to date |
$466,248 |
|
|
Construction Costs Including Tender 24147 (this tender), Project Management, ACH Section 18, Environmental Considerations and Contingency |
$1,589,592 |
|
|
Total Expenditure |
$2,204,935
|
|
|
Total Funding |
|
$2,204,935
|
It is noted that the total project cost is $268,935 above the state government grant agreement of $1,936,000 and is to be funded from the City own sources. To suit the project cashflow, an amendment to the 2024/25 budget utilising the approved state government grant (currently listed in the draft 2025/26 Capital Works Budget) will be required to progress construction.
The project construction will continue into 2025/26 financial year, requiring the remaining $944,935 to be listed in the 2025/26 Capital Works Budget.
Changes to Reports arising from Agenda Briefing
· Attachments renumbered with the inclusion of two new Attachments 1 and 2.
· Additional (last) paragraph added under Consultation section.
Voting Requirements
Absolute Majority
|
These attachments are confidential and distributed under separate cover to Council Members. |
|
|
Attachment 3 - RFT 24147 Confidential Memorandum 1 - Boardwalk at Yellagonga Regional Park |
24/462290 |
|
Attachment 4 - RFT 24147 Confidential Memorandum 2 - Boardwalk at Yellagonga Regional Park |
25/14583 |
Attachments:
|
1⇩. |
Attachment 1 - Artistic Impression of the Boardwalk at Yellagonga Regional Park |
25/54999 |
|
|
2⇩. |
Attachment 2 - Lake Joondalup Site Plan and Elevations (Boardwalk at Yellagonga Regional Park) |
25/55713 |
|
|
3. |
Attachment 3 - RFT 24147 Confidential Memorandum 1 - Boardwalk at Yellagonga Regional Park |
Confidential |
|
|
4. |
Attachment 4 - RFT 24147 Confidential Memorandum 2 - Boardwalk at Yellagonga Regional Park |
Confidential |
|
File Ref: 42326 – 25/3337
Responsible Officer: Director Assets
Attachments: 2
Previous Items: CP05-05/24 - Girrawheen Hub Redevelopment Concept Plan - Community Engagement Outcomes - Ordinary Council - 21 May 2024
CP01-08/23 - Girrawheen Hub Redevelopment - Community Engagement - Ordinary Council - 15 Aug 2023
CP04-02/20 - Future Direction of Girrawheen Hub - Ordinary Council - 10 Feb 2020
Issue
To consider the revised concept design ahead of finalisation for community engagement for the Girrawheen Hub Redevelopment project.
Background
At the Ordinary Council Meeting 21 May 2024, Council considered report CP05-05/24 Girrawheen Hub Redevelopment Concept Plan - Community Engagement Outcomes and resolved:
“That Council: -
1. NOTES the outcome of the Girrawheen Hub Precinct Concept Design community engagement process;
2. ENDORSES Concept Design Option 2 as the guiding concept for the redevelopment of the Girrawheen Hub Precinct;
3. AUTHORISES the Chief Executive Officer to progress the project to the next phase of design;
4. NOTES that further community consultation will need to be undertaken to inform further design phases including internal design; and
5. NOTES that an advocacy approach is being developed to seek $20M external funding to support the implementation of the Option 2 Concept Plan.”
Subsequent to the above resolution on 12 November 2024 Council appointed Carabiner Architect Pty Ltd through report AS01-11/24 Tender 24137 - Provision of Consultancy Services for Girrawheen Hub Precinct Redevelopment.
Detail
The first key task for the consultants was to review the previous concept design prepared by CCS Strategic in the Girrawheen Hub Precinct Masterplan in 2022. This concept plan allowed for a two-storey community hub incorporating a library, a senior’s centre and a community hub. The plan also allowed for a portion of the land parcel to be excised and utilised for residential and commercial retail development. (Attachment 1)
On review of the previous concept design the consultants in conjunction with the key stakeholders within the Girrawheen Hub Redevelopment Project Board, have progressed with the revised concept design (Attachment 2) that is reflective of the current operations of the existing, library, seniors and community hub facilities and includes the following adjustments:
· Removal of the proposal to excise a portion of the site for commercial and residential development, providing greater development area for the Girrawheen Hub Redevelopment and lessen the impact on existing tress and vegetation;
· The provision of a single storey facility providing greater accessibility and interaction across the various area of the facility and provide opportunity to access to outdoor spaces from all aspects of the building;
· Consolidation of the car parking to the east of the site to improve user arrival wayfinding experience and provide increased car parking between 50 - 100 bays;
· Removal of the car park from behind the building (Crime Prevention Through Environmental Design / antisocial behaviour) and additionally removing the risk of pedestrian and vehicle conflict;
· Expansion of parkland natural landscape into existing car park spaces;
· Inclusion of outdoor event space, integrated with existing trees and landscape, adjacent to indoor event space;
· Inclusion of additional Youth Services and Child & Adolescent Health Service areas (300m2 in total), services identified subsequent to the 2022 masterplan exercise; and
· Delivery of construction in a single stage, reducing the construction time and impact.
The concept design represents the overall footprint required for the replacement of the existing three buildings and is consistent with the overall footprint of the 2022 concept design, with allowance for the increased scope identified above.
The key change from the previous concept is the provision of a single storey building as opposed to a two-storey facility previously presented.
The total floor area (≈2,700m2) proposed in both concepts is higher than the combined floor area (≈2,000m2) of the three existing stand-alone facilities at Girrawheen Hub site.
Ahead of stakeholder engagement from 25 March to 19 May 2024, the concept design will undergo further refinement to include the representation of internal spaces and functionality to provide a facility that meets the needs of the community, based on the design and consultation processes to date, incorporating the original 2022 master plan and design workshops with the Project Team.
Preliminary order of magnitude cost estimates indicates that the 2022 Masterplan Option 2, two storey concepts as shown in Attachment 1 is in the region of $28.7m, whereas the revised single-story concept shown in Attachment 2 is in the region of $26.2m.
Consultation
Community engagement for the project was previously conducted in accordance with the City of Wanneroo’s (City) Community Engagement Policy. Further engagement from 25 March to 19 May 2025 is scheduled to be conducted under the policy.
It is proposed that unless the outcomes of the community engagement identify significant changes to the project, administration will progress the project to the next design stage and provide update to all stakeholders including Council Members.
Comment
Access and inclusion requirements are greatly improved in a single storey building and allow users to freely move throughout the building and gain access to external areas more easily from within the building providing greater integration with the wider site.
The revised concept design provides a facility that has improved operational management capacity with all the facilities being on a single level, providing easier access and security for staff and user groups.
It is noted that the construction methodology for single storey facility will be less complex and will result in a reduced cost as opposed to a two-storey facility of a comparable footprint.
The 2022 masterplan report prepared by CCS Strategic included the following advice from the Department of Communities in relation to the development of public housing on the site:
“There is high concentration of public housings within the area and a number of development sites that are vacant and development ready that could support public housing requirements.”
And advised that the Department did not wish to pursue investigations into land purchase.
The Council report of May 2024 identified that further feasibility would be required to investigate the residential aspect of the endorsed concept. If the recommendations of this report are supported by Council, then the need for any further feasibility investigation will not be required.
Administration’s preference is to proceed with the revised single-story concept as presented in Attachment 2 for the key following points:
· Greater accessibility and interaction throughout the facility/site;
· Improved access to the outdoor spaces;
· Improved CPTED;
· Improved user arrival, way finder experience;
· Reduced construction complexity and costs;
· Maintaining natural landscape and tree canopy; and
· Shorter design and delivery schedule.
It is noted that the development of a single storey option will considerably reduce any future opportunity and capacity to undertake residential development on the site.
Upon completion of the detailed design and assuming the pre-tender cost estimate is within the approved secured budget, Administration will proceed directly to the market for tender and subsequently provide a tender report to Council for consideration.
Statutory Compliance
Nil
Strategic Implications
The proposal aligns with the following objective within the Strategic Community Plan 2021 – 2031:
1 ~ An inclusive and accessible City with places and spaces that embrace all
1.3 - Facilities and activities for all
Risk Appetite Statement
In pursuit of strategic objective goal 1, we will accept a Medium level of risk. The recent pandemic has challenged our previous event delivery, place activation and community connection processes, and the City accepts that meeting community expectations in a more restrictive environment needs flexibility and innovation if community connection is to develop and grow in contrast to social and individual isolation.
Risk Management Considerations
|
Risk Title |
Risk Rating |
|
ST- G09 Long Term Financial Planning |
Low |
|
Accountability |
Action Planning Option |
|
Director Corporate Strategy & Performance |
Manage |
|
Risk Title |
Risk Rating |
|
ST- S23 Stakeholder Relationships |
Medium |
|
Accountability |
Action Planning Option |
|
Chief Executive Officer |
Manage |
Policy Implications
Community engagement for the project was previously conducted in accordance with the City’s Community Engagement Policy. Further consultation under the policy would be required as part of the detailed design process.
Financial Implications
The project is currently listed in the City’s Capital Works Budget (PR-4335 Girrawheen Hub Precinct Redevelopment) and draft Long Term Financial Plan:
|
Year |
Description |
Asset Renewal Reserve |
Grant |
Total |
|
2024/25 |
Engagement & Concept Design |
$156,000 |
$0 |
$156,000 |
|
Detailed Design |
$1,000,000 |
$0 |
$1,000,000 |
|
|
2026/27 |
Detailed Design, Procurement & Construction |
$1,000,000 |
$0 |
$1,000,000 |
|
2027/28 |
Construction |
$4,000,000 |
$10,000,000 |
$14,000,000 |
|
2028/29 |
Construction |
$3,900,000 |
$10,000,000 |
$13,900,000 |
|
TOTAL |
$10,000,000 |
$20,000,000 |
$30,056,000 |
|
The Girrawheen Hub Redevelopment is a key project within the City’s Advocacy Plan for 2025 and funding is being sought from both Federal and State Governments to support the project to a value of $20.5m. It is noted that at this stage the construction of this project is dependent on securing external grant funding and may have to be revised depending on the funding application outcomes. Administration is currently preparing applications for the Federal Government’s Urban Precincts and Partnership Program for both the design and delivery stages of the project.
Changes to Reports arising from Agenda Briefing
· Additional paragraph added under the Details section of the report regarding the floor areas of the existing three buildings and the new proposed building; and
· Information added in the last paragraph under the Financial Implications section of the report.
Voting Requirements
Simple Majority
Attachments:
|
1⇩. |
Attachment 1 - Girrawheen Hub Precinct - Concept Design and Elevation Drawings 2022 |
24/287850 |
|
|
2⇩. |
Attachment 2 - Girrawheen Hub Redevelopment - Revised Concept - single storey. |
25/14885 |
|
CITY OF WANNEROO Minutes OF Ordinary Council Meeting 25 February, 2025 1
Assets Maintenance
File Ref: 45250 – 25/22356
Responsible Officer: Director Assets
Attachments: 2
Previous Items: AS05-12/24 - Yanchep Coastal Management Project - Establishment of a Community Advisory Group - Ordinary Council - 10 Dec 2024
Issue
To consider the appointment of Council Members to the Yanchep Coastal Management Advisory Group.
Background
At the Ordinary Council meeting held on 10 December 2024, Council considered a report (AS05-12/24) to establish the Yanchep Coastal Management Advisory Group and endorsed the following:
“That Council:-
1. RESOLVES to establish the Yanchep Coastal Management Advisory Group based on the Terms of Reference as detailed in Attachment 1; and
2. SUPPORTS the guiding principle of an integrated approach for Coastal Management within the City of Wanneroo through a single group to form part of the current committee and working group review process.”
Detail
The Yanchep Coastal Management Advisory Group will assist with the development and implementation of long-term coastal management measures along the Yanchep coastline, an aerial view of the Yanchep coastal management study area is shown in Attachment 2.
The aims of the Group are as follows:
· To receive information and provide feedback on coastal monitoring, maintenance and management projects for the Yanchep coastline;
· To provide input into the development and implementation of coastal management measures for the Yanchep coastline; and
· To present community views to the Group.
The Terms of Reference for the Group is found in Attachment 1.
Membership of the Group shall include:
· The Mayor;
· A maximum of five (5) Councillors;
· A maximum of six representatives from the community/community groups; and
· A representative from the State Government (Department of Transport).
Membership shall be for a period of up to two years terminating on the day of the Ordinary Council Elections.
The Group shall meet quarterly or at major project milestones, with additional meetings scheduled as needed, with proper notice.
Consultation
The establishment of the Yanchep Coastal Management Advisory Group has been discussed with community representatives on the Community Advisory Group established to inform the preparation of the Yanchep Lagoon Preliminary Foreshore Management Plan in October 2024 and directly with various Yanchep residents. This has been met with significant community support and interest. A call for community nomination will be advertised in February 2025 with the intention to hold the first Group meeting in March 2025.
Community engagement for Yanchep will not be limited to Advisory Group but will also include community information sessions, community surveys (if required) and various notifications throughout the study and into the construction phase via signage, social media and the City of Wanneroo’s (the City) website.
The majority of the Yanchep coastline is also a registered Aboriginal Heritage Site and therefore development of coastal management options will require consultation with Aboriginal Knowledge Holders. This will be achieved through the engagement of a consultant Anthropologist to facilitate this process.
The Yanchep Coastal Management Study is also being undertaken in collaboration with the Department of Transport, with an approved Coastal Adaptation and Protection Grant of $107,268 for 2024/25.
Comment
The Yanchep Coastal Management Advisory Group will enable transparent and effective consultation with the local Yanchep community throughout the Yanchep Coastal Management Project. The Group will act as a conduit to the wider community to disseminate project information, receive input on community preferences and resolve community concerns or issues throughout all stages of the project.
Community representatives and Council Members within the Group will provide Administration with local knowledge and input that will be critical for the successful development and implementation of long-term costal management measures for the Yanchep coastline. This will improve beach accessibility, beach amenity and the City’s ability to manage coastal issues such as erosion over the long term.
Statutory Compliance
Nil
Strategic Implications
The proposal aligns with the following objective within the Strategic Community Plan 2021 – 2031:
6 ~ A future focused City that advocates, engages and partners to progress the priorities of the community
6.3 - Build local partnerships and work together with others
Risk Appetite Statement
In pursuit of strategic objective goal 6, we will accept a Medium level of risk extended to High in the areas of Community / Reputation, Financial / Commercial & Management Systems / Operations impacts. This is required to address legacy ways of operating, support investment in the technology changes needed to deliver digital democracy, citizen engagement and involvement and move to more data-driven decision-making which may not align with Community sentiment or expectation.
Risk Management Considerations
|
Risk Title |
Risk Rating |
|
ST-S06 Climate Change |
Medium |
|
Accountability |
Action Planning Option |
|
Director Planning & Sustainability |
Manage |
|
Risk Title |
Risk Rating |
|
ST-23 Stakeholder Relationships |
Medium |
|
Accountability |
Action Planning Option |
|
Chief Executive Officer |
Manage |
|
Risk Title |
Risk Rating |
|
CO-022 Environmental Management |
Medium |
|
Accountability |
Action Planning Option |
|
Director Planning & Sustainability |
Manage |
The above risks relating to the issue contained within this report have been identified and considered within the City’s Strategic and Corporate risk registers. Action plans have been developed to manage/mitigate/accept these risks to support existing management systems.
In addition to the above risks, a further coastal erosion risk exists to existing coastal infrastructure which is being managed through ongoing monitoring and implementing coastal management works such as beach renourishment on an as-needed basis.
Policy Implications
Nil
Financial Implications
The costs associated with meetings and administration of this Group will be accommodated from within the City’s operating budget.
Changes to Reports arising from Agenda Briefing
Nil
Voting Requirements
Absolute Majority
Attachments:
|
1⇩. |
Attachment 1 - Yanchep Coastal Management Advisory Group Terms of Reference |
24/384164 |
|
|
2⇩. |
Attachment 2 - Yanchep Coastal Management Study Area ~ Aerial View |
25/26979 |
|
CITY OF WANNEROO Minutes OF Ordinary Council Meeting 25 February, 2025 1
Community & Place
The Proposed Decommissioning of Tony Jones Public Artworks in Kahanna Park, Butler report has been withdrawn from February Ordinary Council Meeting so more information can be added to the report as requested at February Briefing. It is now listed for April 2025 Ordinary Council Meeting.
Cr Coetzee declared an impartiality interest in Item CP01-02/25 due to being a resident in the vicinity in the Yanchep and Two Rocks.
Director Community & Place declared an impartiality interest in Item CP01-02/25 due to being a resident in the vicinity of Yanchep and Two Rocks.
File Ref: 45803 – 24/449961
Responsible Officer: Director Community & Place
Attachments: 8
Previous Items: CP06-08/19 - Yanchep Lagoon Master Plan - Final - Ordinary Council - 27 Aug 2019
CS05-04/24 - Old Yanchep Surf Club Site - Agreement for Lease and Ground Lease - Ordinary Council - 23 Apr 2024
Issue
To consider the outcomes of the Yanchep Lagoon Preliminary Foreshore Management Plan.
Background
In March 2019 Council considered the Yanchep Lagoon Master Plan and resolved as follows:
“That Council:-
1. NOTES the summary of community comments received during the public comment period on the draft Yanchep Lagoon Master Plan and Administration’s response to those comments, as included at Attachment 2;
2. ENDORSES the final Yanchep Lagoon Master Plan, as shown in Attachment 2 and ADVISES community and key stakeholders of Council’s decision;
3. NOTES that work has commenced on the preparation of an Economic Feasibility Study, Level 2 Flora and Vegetation Survey and Foreshore Management Plan that are precursors to the implementation of the Yanchep Lagoon Master Plan; and
4. NOTES the proposed governance structure to support implementation of the Yanchep Lagoon Master Plan as included at Attachment 4 and NOTES that a further report will be presented to Council to consider establishing a Yanchep Lagoon Community Working Group.”
In September 2022, the City of Wanneroo (the City) released a Request for Quotation for a suitably qualified and experienced consultant to deliver a Foreshore Management Plan (FMP). However, after two deadline extensions, no responses were received.
Subsequently, Tender No. 23104 for the provision of a Masterplan Implementation Plan for the Yanchep Lagoon Masterplan was publicly advertised in July 2023. Due to a poor response, the City made the decision to decline the tender due to insufficient budget in the 2023/24 financial year.
In light of the decision to decline Tender 23104, Administration revised its approach to progressing the project in consultation with the Department of Planning Land & Heritage, which breaks down the delivery of the project into smaller stages to allow for review and consideration by stakeholders. This resulted in a revised scope to prepare a Preliminary Foreshore Management Plan (PFMP), which was supported by the Yanchep Lagoon Community Working Group in February 2024. The objective of the PFMP is to identify opportunities and constraints to implement the Yanchep Master Plan (2019) by analysing the existing land conditions and statutory requirements in relation to the proposed changes from the Masterplan.
Tender 24044 for the PFMP was advertised on 10 April 2024 and closed on 14 May 2024. The City subsequently engaged consultants UDLA to undertake the PFMP.
Detail
The PFMP for the Yanchep Lagoon Precinct (YLP) has been developed in accordance with the Yanchep-Two Rocks District Structure Plan, the 2007 Yanchep-Two Rocks Foreshore Management Plan, and State Coastal Planning Policy SPP 2.6 and responds to a request from the Department of Planning, Lands and Heritage (DPLH) during the master planning phase in 2019.
The PFMP provides guidance on the design for the YLP and identifies opportunities and constraints, including coastal hazards, vegetation, transport, and commercial opportunities, to inform future planning and development. It outlines a framework for the final Foreshore Management Plan (FMP), which is intended to be submitted to the Western Australian Planning Commission (WAPC) for endorsement before being implemented by the City.
The full PFMP report is provided under separate cover (Attachment 1).
The PFMP concept for the Yanchep Lagoon Precinct (Attachment 2) builds on the 2019 Yanchep Lagoon Masterplan and its five sub-precincts:
· The Homestead;
· The Lagoon;
· The Settlement;
· The Dune Park; and
· The Promenade.
This represents a step towards realising the 2019 Masterplan’s vision, incorporating key design moves and more detailed concept plans for each sub-precinct. It aims to refine and implement the strategic objectives set out in the original Masterplan while addressing current site conditions and critical planning requirements including coastal adaptation, impacts on the existing environment and development control measures.
To address the outcomes of feasibility investigations and advice from approval authorities relating to coastal adaptation, the PFMP has reduced the scope of the Masterplan in some areas, incorporating the following:
· Substantial reduction in built form scope where development encroaches on vulnerable areas. The number, footprint, and location of proposed commercial developments have been adjusted to better align with coastal adaptation goals, particularly within the Settlement and Promenade sub-precincts, reducing the extent of development within future hazard zones; and
· Minimised impact on natural coastal features including dunes, limestone cliffs, vegetation, and coastal views. The scale, location and approach to new structural elements have been reinterpreted to better align with the promotion of the Lagoon’s unique coastal character.
The key scope changes between the 2019 Masterplan and the 2024 PFMP are summarised in the tables below and outlined in more detail within the PFMP on pages 46 – 60.
|
Settlement Sub-Precinct |
||
|
2019 Masterplan |
2024 PFMP |
Justification |
|
Two additional split-level retail/food and beverage buildings fronting Brazier Road. |
To be consolidated as a single, elevated food and beverage development. |
The proposed location for this development type is situated within the 2050–2090 coastal vulnerability zone. |
|
Long-term accommodation development |
Removed from scope. |
The proposed development is located within the 2050 to 2090 coastal vulnerability zone. |
|
One additional food and beverage facility on the former Surf Club site |
No revision. |
The development was approved prior to the creation of the PFMP. |
|
Renovations to the new Surf Life Saving Club (SLSC), including the addition of a second floor to expand community space |
To be reinterpreted as expansion of the public realm, with the addition of a public deck above the SLSC roof. |
The PFMP proposes a beach deck extending over the SLSC roof, offering an opportunity to expand the public realm. This proposal was strongly supported by the community. |
|
Promenade Sub-Precinct |
||
|
2019 Masterplan |
2024 PFMP |
Justification |
|
The existing kiosk (Orion Cafe) is replaced by two new buildings, a micro-brewery/restaurant and new change room/shower facilities |
To be reinterpreted by retaining the existing, recently refurbished café and adding a small-scale, temporary retail development. |
The proposed micro-brewery is located within the 2050–2090 coastal vulnerability zone. |
|
An additional cafe adjacent to Fisherman’s Hollow |
Removed from scope. |
The proposed café is situated within the 2050–2090 coastal vulnerability zone, which limits its design life. |
|
Cantilevered coastal boardwalk below road level |
To be reinterpreted and included within the extent of existing infrastructure. |
The Masterplan’s proposed boardwalk is designed to sit below road level, cantilevered off the western side of Brazier Road, placing much of its length within the current coastal vulnerability zone. |
|
Homestead Sub-Precinct |
||
|
2019 Masterplan |
2024 PFMP |
Justification |
|
Two additional buildings to support accommodation for artists in residence. |
Removed from scope. |
The City is already supporting the Masterplan’s vision by hosting Artists in Residence at the existing Mary Lindsay Homestead. |
|
An additional community catering/art building adjacent to the homestead. |
To be revised in future iterations of the PFMP. |
The Mary Lindsay Homestead currently serves the community by providing gallery and kitchen facilities. |
|
Multi-purpose sport court |
Removed from scope |
The existing parkland sufficiently caters for the use of the area for recreation. The proposed sport court has been removed from the scope to minimise clearing requirements. |
|
Dune Park Sub-Precinct |
||
|
2019 Masterplan |
2024 PFMP |
Justification |
|
Playground (Fisherman’s Hollow)
|
To be relocated.
|
The PFMP proposed relocating the playground to be situated within the current extent of clearing. |
|
Dune-top walking trails and lookout |
To be relocated. |
Walking trails and lookout structures are proposed to run along existing cleared/degraded areas of vegetation. |
|
Dune road and car park |
Removed from scope. |
The revised PFMP avoids additional land clearing by adopting a development strategy that retains existing parking and optimises current road infrastructure. |
|
Botanic garden beds |
Removed from scope. |
the PFMP proposes the protection and rehabilitation of existing vegetation to show case the Lagoon’s natural beauty. |
These scope changes were considered throughout the stakeholder engagement with both community and state government stakeholders and was widely supported as it reflected the PFMPs approach of a ‘light touch’ rather than a ‘brutal intervention’.
Other key design factors considered within the PFMP and supported through the stakeholder engagement include:
Pedestrian Connections
The pedestrian connection strategy aims to establish a hierarchy of walking routes and loops throughout the precinct, providing safe, clear pathways that offer diverse experiences (refer Attachment 3).
Primary connections will include Principle Shared Path (PSPs) along the full length of Brazier Road and Capricorn Avenue, ensuring efficient and safe movement for both pedestrians and cyclists.
Secondary connections include an off-street boardwalk trail, linking the Homestead to the Settlement, with potential for future extension north to Two Rocks. This boardwalk will also offer opportunities to enhance and formalise beach access between the Homestead and Settlement.
Additionally, a network of tertiary walking loops will be introduced through Dune Park, improving access between Brazier Road (east), Fisherman’s Hollow, the Promenade, and the Settlement. Two iconic exercise staircases will connect the Lookout to Fisherman’s Hollow and the Settlement, appealing to both hikers and runners and enhancing the precinct’s recreational appeal.
Cycling and E-transport Connections
The PFMP seeks to align with the City of Wanneroo Active Transport Plan, which aims to create a safe, connected, and reliable active transport environment that is attractive to all potential users (including walking, bike riding (incl. eBike’s) and eRideables); providing a credible alternative to driving a car for local trips.
The Plan proposes a comprehensive and safe PSP network, to encourage the desired shifts
in travel behaviour (refer Attachment 4).
Vehicle Connections
The Plan focuses on reducing the dominance of vehicle infrastructure to improve parking efficiency and increase space for pedestrians. A key design change involves narrowing the entire length of Brazier Road (south) and converting part of it to one-way traffic in the north-to-south direction. By reducing the road width, pedestrian space can be expanded, and angled parking bays are introduced, decentralising parking and orientating it to capture coastal views (refer Attachment 5).
Currently, Brazier Road consists of approximately 60% vehicle infrastructure and 40% pedestrian/landscape space. The proposed design reverses this ratio, dedicating 60% of the space to pedestrians, while contributing to the provision of 105 net new parking spaces throughout the precinct (refer Attachment 6).
The PFMP has also investigated the potential amendment of existing bus route 494, which would improve connection between the Lagoon and Train Station, while allowing the route to cater to more residential areas within the surrounding precinct. Engagement with the Public Transport Authority is required to test feasibility and gain support for this approach.
Development
Several new buildings have been proposed to broaden the range of options within the precinct and meet the growing needs of the community. The PFMP prioritises development that enhances sense of place over purely economic outcomes — a sentiment strongly supported by both the community and government reference groups. To minimise environmental and coastal impacts, the PFMP clusters development within specific nodes in each sub-precinct, aiming to offer diverse experiences while giving each sub-precinct a distinct purpose and character (refer Attachment 7).
The following tables summarise the development proposed by the PFMP and net commercial floor space expected within the precinct.
|
Sub Precinct |
Type/Purpose |
Existing/Proposed |
Sqm |
|
The Settlement |
Beach Bar (2A) |
Proposed |
535 |
|
|
Be Our Guest Holdings (BOGH) Development* |
Proposed |
550 |
|
The Promenade |
Orion Café |
Existing |
265 |
|
|
Bespoke Retail (3A) |
Proposed |
300 |
|
Dune Park |
Café & Toilets (5A & 5B) |
Proposed |
135 |
|
|
|
Total |
1785 |
*Development on Old Surf Life Saving Club site has been negotiated by the City ahead of the PFMP.
It should be noted that although the tourist accommodation component of the 2019 Masterplan has been removed from the PFMP Concept on the basis of coastal vulnerability and environmental impact, the development of short-stay accommodation is still listed as a permitted use under the City’s lease with BOGH for the redevelopment of the old Surf Life Saving Club site. Should BOGH decide to progress this option in future, this would still be subject to further approvals, from both the City as landlord and from the WAPC as the planning authority.
Rehabilitation and Conservation
The PFMP seeks to enhance the overall quality of vegetation within the precinct by focusing on the restoration of areas classified as ‘completely degraded,’ and ‘degraded,’ in line with the recommendations of the preliminary Environmental Management Plan. To safeguard the integrity of ‘very good’ and ‘excellent’ vegetation and associated habitats, two conservation areas have been proposed where public access will be restricted, and active management weed/pest management will occur (refer Attachment 8).
Implementation
The implementation of the PFMP (and subsequently the FMP) hinges on a number of critical actions which predominantly relate to closing information gaps identified when developing the PFMP and to maintaining continued engagement with critical stakeholders. Examples of this include:
· Cultural Guidance: Initiate cultural engagement by meeting with the City’s Aboriginal and Torres Strait Islander Community Reference Group and developing an ongoing engagement plan for the project.
· Flora & Fauna Study: Update the Environmental Management Plan and initiate a detailed flora and fauna study, including mapping of weeds and vegetation.
· Cost Planning: Finalise the draft design concepts and define the development scope to enable the draft Cost Plan to be updated to inform procurement / delivery strategy.
It is intended to implement the FMP in consideration of the priorities described in Section 5 of the PFMP. A preliminary program proposes the FMP being developed in June to November 2025.
Consultation
Extensive engagement through the preparation of the PFMP involved participation from key government stakeholders and thus supports the delivery of the project through early identification of government requirements and expectations for this PFMP and beyond.
The engagement process comprised three workshop stages, each involving two workshops with community members and government department respectively, resulting in a total of six workshops. These workshops were conducted with the following guiding principles:
· Acknowledge that the project is community-led and thus must involve the right people from the outset. This was achieved through the establishment of a Community Reference Group, following an Expression of Interest (EoI) process.
· Reiterate the vision and place principles identified during the 2019 master planning stage which ensured the PFMP balances strategic aspirations with community expectations and protects the unique qualities of the site. This was achieved through in-depth evaluation of the 2019 Masterplan in Workshop Series 1.
· Ensure participants have genuine influence over decisions. This was achieved through designated ‘Recap’ points at each workshop.
· Acknowledge the value of generating early, visible success to build confidence in the participation process. This was achieved through a review of the engagement at the final workshop.
· Provide training for people where appropriate to assist their participation. This was achieved through inclusive language, and issue of clear agendas.
· Apply a range of meeting formats and tools that suit various groups. This was achieved by offering face-to-face and dial-in options and tailoring the workshop structure to suit the audience (i.e. One-on-one engagement with facilitators).
Upon conclusion of the engagement, community and government members reflected positively on the engagement process and expressed interest in further involvement. The Plan described in Section 4 is a result of a genuine co-design process and considers community needs alongside statutory and other regulatory requirements. The engagement also allowed the project team to better understand the governance framework applicable to the final Foreshore Management Plan and to plan and focus efforts to develop that document.
Administration did not engage directly with the City’s Yanchep Lagoon Community Working Group through the process of preparing the PFMP, as the majority of community representatives on that Working Group participated in the community stakeholder workshops, and Council Members were provided regular updates on the project. Community representatives on the Working Group that weren’t involved in the PFMP process have been kept informed via email communication.
Comment
The PFMP provides a stepping stone between the 2019 Yanchep Lagoon Masterplan and the future Foreshore Management Plan required by DPLH and WAPC to consider the City’s intentions for the future sustainable development at Yanchep Lagoon. Accordingly, Council’s consideration of the PFMP concept for the Yanchep Lagoon Precinct (refer Attachment 2) is being sought to facilitate ongoing work to finalise the FMP.
The PFMP which has been developed in partnership with the community and various State Government agencies and adopts a ‘light touch’ rather than a ‘brutal intervention’ approach to the improvement of the YLP.
The PFMP is cognisant of existing coastal investigations and projects being carried out in the locality and the future FMP will continue to maintain a close interaction with these processes to ensure sustainable outcomes for the Yanchep Lagoon development.
Statutory Compliance
Nil
Strategic Implications
The proposal aligns with the following objective within the Strategic Community Plan 2021 – 2031:
5 ~ A well planned, safe and resilient City that is easy to travel around and provides a connection between people and places
5.1 - Develop to meet current need and future growth
Risk Appetite Statement
In pursuit of strategic objective goal 5, we will accept a Medium level of risk, extended to High in the areas of Community / Reputation & Financial / Commercial impacts. Shifting transport modes and usage in the City may require short term pain for longer term gain as the City supports the development, maintenance and connection of alternatives to car use (e.g. cycle ways) and the supporting infrastructure.
Risk Management Considerations
|
Risk Title |
Risk Rating |
|
ST-S23 – Stakeholder Relationships |
Medium |
|
Accountability |
Action Planning Option |
|
Chief Executive Officer |
Manage |
|
Risk Title |
Risk Rating |
|
ST-S24 – Strategic Asset Management |
Medium |
|
Accountability |
Action Planning Option |
|
Director Assets |
Manage |
Policy Implications
Nil
Financial Implications
The cost of developing the full Foreshore Management Plan is estimated at $400,000.00 and it is proposed that funding is provided through the Community & Place operational budget (Place Planning: Consulting Fee Expenses) as follows:
· 2024/25 - $100,000 (through mid-year budget review)
· 2025/25 - $300,000
Changes to Reports arising from Agenda Briefing
· Relevant previous reports to Council have been included in the “Previous Items” section of the report.
· Clarifying text has been included under the ‘Development’ heading of the ‘Detail’ section of the report stating that although tourism accommodation has been removed from the PFMP, there is still a provision for short-term accommodation in the City’s lease with BOGH for the development of the old Surf Life Saving Club site. The development of accommodation would still need to be subject to relevant approvals by both the City and the WAPC.
· In response to questions at the Agenda Briefing about the timeframes associated with the BOGH development, below are the milestone dates included in the lease between the City and BOGH (refer CS05-04/24):
|
Stage/Milestone |
Due Date (Estimated dates - calculated by reference to the execution date of the Agreement for Lease. All dates may be adjusted by prior agreement of the parties.) |
|
Conditions Precedent |
1 November 2025 Includes development approval and building licence. Concept designs are progressing, with Administration reviewing whether any extension to the due date is needed. |
|
City’s Works Completed (Service Upgrades) |
1 May 2027 |
|
Lease Works Completed |
1 November 2027 (2 years after satisfaction of conditions precedent.) |
Voting Requirements
Simple Majority
Attachments:
|
1⇩. |
Attachment 1 - Yanchep Lagoon - Preliminary Foreshore Management Plan |
25/37836 |
|
|
2⇩. |
Attachment 2 - Yanchep Lagoon Preliminary Foreshore Management Plan Concept |
25/14124 |
|
|
3⇩. |
Attachment 3 - Pedestrian Connections |
25/14125 |
|
|
4⇩. |
Attachment 4 - Cycling and E-transport Connections |
25/14126 |
|
|
5⇩. |
Attachment 5 - Vehicle Connections |
25/14127 |
|
|
6⇩. |
Attachment 6 - Parking |
25/14129 |
|
|
7⇩. |
Attachment 7 - Proposed PFMP Development |
25/14131 |
|
|
8⇩. |
Attachment 8 - Rehabilitation and Conservation |
25/14132 |
|
CITY OF WANNEROO Minutes OF Ordinary Council Meeting 25 February, 2025 1
Corporate Strategy & Performance
File Ref: 45975V002 – 24/456887
Responsible Officer: Director Corporate Strategy & Performance
Attachments: 5
Issue
To consider the Financial Activity Statement for the period ended 30 November 2024.
Background
In accordance with Local Government (Financial Management) Regulations 1996, the Financial Activity Statement has been prepared in compliance with the following:
· Regulation 34(1) and (3) of the Local Government (Financial Management) Regulations 1996, which requires a local government to prepare a statement of financial activity each month, presented according to nature classification;
· Regulation 34(5) of the Local Government (Financial Management) Regulations 1996, which requires a local government to adopt a percentage or value, calculated in accordance with Australian Accounting Standards, to be used in statements of financial activity for reporting material variances. For the 2024/25 financial year 10% and a value greater than $100,000 will be used for the reporting of variances; and
· Regulation
35 of the Local Government (Financial Management) Regulations 1996,
which requires a local government to prepare a statement of financial position
of the local government as at the last day of the previous month.
Detail
Financial Activity for the Period Ended 30 November 2024
At the Ordinary Council Meeting on 16 July 2024 (CS02-07/24), Council adopted the Annual Budget for the 2024/25 financial year. The figures in this report are compared to the Revised Budget.
Overall Comments Year-to-Date
Results from Operating Activities
The net amount attributable from Operating Activities for the period ended 30 November 2024 is higher than budget by $22.2m, including non-cash adjustment of $15.7m. The cash inflows variances before non-cash adjustments from Operating Activities is higher by $3.7m, and the cash outflows variances before non-cash adjustments from Operating Activities is lower by $2.8m.
The overall variance is mainly due to higher inflows from Fees and Charges ($2.1m), Operating Grants, Subsidies & Contributions ($1.1m) and Interest Earnings ($514k), underspend on Employee Costs ($798k) and Materials and Contracts ($2.1m) and Utility Charges ($121k).
Results from Investing Activities
The net amount attributable from Investing Activities is higher than budget by $11.3m due to higher inflows from Contributed Physical Assets ($15.8m), higher inflows from Development Contribution Plans Revenue (4.1m) and lower outflows from Purchase of Property, Plant and Equipment ($3.3m), lower outflows from the Development Contribution Plans Expenses ($12.6m) offset by the higher outflows from Purchase and Construction of Infrastructure Assets (1.0m) and the non cash adjustment of $23.4m.
Results from Financing Activities
Financing Activities mainly consist of Reserve transfers and Development Contribution Plans transfers, which align with the budget.
Capital Program
Year to date 30 November 2024, $26.8m (excluding leased assets and contributed physical assets) was spent on various capital projects, of which $10.3m was spent on Roads, $5.6m was spent on Sports Facilities, and $3.0m was spent on Community Buildings. (Refer to Attachment 4 for more details).

Investment Portfolio Performance
Comments relating to the Statement of Financial Activity are provided for the variances between Year-to-Date Actuals and Year to Date Revised Budgets, where the variance is higher than the reporting threshold or an item of interest to Council.

Operating Activities
Note 1 Operating Grants, Subsidies & Contributions
Year to Date - (Actual $2.5m, Revised Budget $1.3m)
The variance is favourable by $1.1m. This is mainly due to the higher Financial Assistance Grant of $626k due to timing differences, Cash contribution of $332k for School Parks maintenance and $134k for Conservation Management.

Note 2 Fees and Charges
Year to Date - (Actual $42.9m, Revised Budget $40.8m)
The favourable variance of $2.1m is mainly due to:
· Higher Rubbish Collection Fee of $750k due to higher than budgeted additional bin requests;
· Higher Applications, License and Permit Fee income of $985k from Building Approvals and Planning Approval Services;
· Higher Search Fee income from Rates and Compliance Services of $140k;
· Higher Service Fee Income of $96k;
· Higher Engineering Supervision Income of $197k;
Offset by;
· Lower Property Lease or Rental Fee Income of $98k.

Note 3 Interest Earnings
Year to Date - (Actual $8.8m, Revised Budget $8.3m)
The variance is favourable by $514k. This is mainly due to higher interest received from investments of $442k.

Note 4 Employee Costs
Year to Date - (Actual $38.0m, Revised Budget $38.8m)
The employee costs are below budget by $798k, mainly due to;
· Lower spending on Training Courses, and Conference & Seminars Fees expenses of $335k due to timing differences.
· Higher employee cost recoveries from the Cost Allocations to Capital Projects and Development Contribution plans of $279k; and
· Lower Temporary Personnel Expenses of $195k due to timing differences.

Note 5 Materials & Contracts
Year to Date - (Actual $31.7m, Revised Budget $33.8m)
The Materials & Contracts expenditure is lower than the budget by $2.0m, mainly due to;
· Lower Refuse Removal Expenses of $1.6m due to lower than expected tonnages;
· Delay in General Material Expenses due to timing differences of $599k;
· Lower Contract Expenses due to timing differences of $334k;
· Lower Consulting Fee Expenses due to timing differences of $359k;
· Lower Diesel Expenses of $236k due to timing differences in invoicing;
· Delay in Software Maintenance, Support & Licence Expenses of $291k;
· Lower Postage Expenses of $87k due to timing differences from Rates Services and Communications and Brand Services;
Offset by;
· Higher Legal Fee Expenses of $163k due to timing differences; and
· Timing differences of higher Maintenance Services Expenses of $1.3m.

Note 6 Utility Charges
Year to Date - (Actual $4.3m, Revised Budget $4.4m)
The variance is favourable by $121k. This is mainly due to timing differences of utility consumption.

Note 7 Depreciation
Year to Date - (Actual $20.8m, Revised Budget $20.6m)
The variance is unfavourable by $177k. This is mainly due to higher depreciable asset base due to higher contribution of physical assets by the developers.

Investing Activities
Note 8 Contributed Physical Assets
Year to Date – (Actual $28.0m, Revised Budget $12.2m)
The favourable variance of $15.8m due to timing differences of contributing various infrastructure physical assets by residential land developers. This is a non cash transaction which has no impact to the overall surplus.
Note 9 Development Contribution Plans - Revenue
Year to Date – (Actual $14.3, Revised Budget $10.1m)
The higher inflow of $4.1m from the Development Contribution Plans Revenue is due to timing differences of Contribution Income from Development Headwork.
Note 10 Purchase of Property, Plant and Equipment
Year to Date – (Actual $9.5m, Revised Budget $12.8m)
The lower outflow of $3.3m from the Purchase of Property, Plant and Equipment is due to the timing of actual expenditure.
Note 11 Purchase & Construction of Infrastructure Assets
Year to Date – (Actual $17.3m, Revised Budget $16.3m)
The higher outflow of $1.0m in the Purchase and Construction of Infrastructure Assets is due to the timing of actual expenditure.
Note 12 Development Contribution Plans - Expenses
Year to Date – (Actual $11.7m, Revised Budget $24.2m)
The lower outflow of $12.6m from the Development Contribution Plans Expenses is due to timing differences in acquisitions of various Public Open Spaces.
Statement of Financial Position (Attachment 2)

Note 1 - Net Current Assets
Compared to the closing position on 30 June 2024, Net Current Assets have increased by $145.0m, predominately due to the levying of 2024/25 Rates and Waste Service Fees in July 2024.
Within the Current Assets, Current Receivables of $87.5m are mainly comprised of Rates and Waste Service Fees debtors of $59.0m and Emergency Services Levy of $8.6m. The remaining balance is attributed to General Debtors of $19.9m.
Note 2 - Non-Current Assets
Non-Current Assets as at 30 November 2024 have increased by $30.5m from 30 June 2024 closing balance, due to increase in Infrastructure Assets and Property, Plant and Equipment offset by the decrease in investments in Associates and decrease in non-current receivables.
Note 3 - Non-Current Liabilities
Non-Current Liabilities as at 30 November 2024 have increased by $21.2m from 30 June 2024 closing balance, mainly due to an increase in Deferred Revenue from Developer Contribution Plans and Unspent Grant Liabilities associated with Capital Projects.
Financial Performance Indicators
The table below presents data on relevant financial ratios, comparing the minimum standard expected as per the Department of Local Government, Sport and Cultural Industries (DLGSC) as at 30 November 2024 and at the same period of the previous year.
A green highlight is used where the minimum standard is met or exceeded. Highlighted in red is below the standard (where relevant).

Capital Works Program
The status of the Capital Works Program is summarised by Sub-Program in the table below:

As at 30 November 2024, the City of Wanneroo (City) incurred $26.8m of capital expenditure, which represents 31.3% of the $85.8m Capital Works Revised Budget.

To further expand on the Capital Works Program information above, updates in key capital projects are selected to be specifically reported on and is provided in the Top Capital Projects attachment to this report (Attachment 4).
Investment Portfolio (Attachment 3)
In accordance with the Local Government (Financial Management) Regulations 1996 (and per the City’s Investment Policy), the City invests solely in Authorised Deposit taking Institutions (ADI’s):

At the end of November 2024, the City held an investment portfolio (cash & cash equivalents) of $605.8m (Face Value), equating to $616.8m inclusive of accrued interest. The City’s year to date investment portfolio return has exceeded the UBS Australia Bank Bill rate index benchmark by 0.29% pa (4.74% pa vs. 4.45% pa).
Fees and Charges
The published Fees and Charges Schedule requires a revision of wording to Fees and Discounts (Page 57 of the published Fees and Charges Schedule) applicable to Gold Facility: Access to all areas including gym, aquatic and group fitness Corporate Membership Packages to reflect the discounts applied for the City’s staff.
Proposed change is:
From:
Corporate membership discount of 20% apply for groups of up to 5-15 people. City of Wanneroo staff are also eligible for corporate memberships.
To:
Corporate membership discount of 20% apply for groups of up to 5-15 people and discount of 41% apply for groups of more than 16. City of Wanneroo staff are also eligible for discount applicable to groups of more than 16 corporate memberships.
The correction of words to be made in the Fees and Charges Schedule administratively.
Consultation
This document has been prepared in consultation with Relevant Officers.
Comment
This report has incorporated recent amendments to the Local Government (Financial Management) Regulations 1996, which require local governments to prepare monthly Statement of Financial Activity (formerly Rate Setting Statement) with variance analysis, and the Statement of Comprehensive Income by Nature is no longer required.
The Regulations also require the preparation of Net Current Asset Notes (Attachment 1) to complement the Statement of Financial Activity.
In reference to Statement of Financial Activity in the report, the following symbols have been used to categorise three levels of variance:
Inflows/Outflows:
· é - Positive Variance more than 10% and/or more than $100,000
· ê - Negative Variance more than 10% and/or more than $100,000
· è - Negative Variance Less than 10% or less than $100,000
Statutory Compliance
This Monthly Financial Activity Statement complies with Regulations 34 and 35 of the Local Government (Financial Management) Regulations 1996.
Strategic Implications
The proposal aligns with the following objective within the Strategic Community Plan 2021 – 2031:
7 ~ A well governed and managed City that makes informed decisions, provides strong community leadership and valued customer focused services
7.1 - Clear direction and decision making
Risk Appetite Statement
In pursuit of strategic objective goal 7, we will accept a Medium level of risk as the City balances the capacity of the community to fund services through robust cost-benefit analysis and pursues evidence-based decision making to be effective stewards of the Council and City for future generations.
Risk Management Considerations
|
Risk Title |
Risk Rating |
|
CO-017 Financial Management |
High |
|
Accountability |
Action Planning Option |
|
Director Corporate Strategy & Performance |
Manage |
The above risk relating to the issue contained within this report has been identified and considered within the City’s Corporate risk register. Action plans have been developed to manage this risk to support existing management systems.
Local Jobs
The City is prepared to accept a high level of financial risk provided that the City implements a risk management strategy to manage any risk exposure.
Strategic Growth
The City will accept a moderate level of financial risk for facilitating industry development and growth.
Any strategic objective including ongoing planning, funding and capital investment to develop infrastructure strategic assets carries financial risks.
Policy Implications
The following policies are relevant for this report:
· Accounting Policy;
· Investment Policy;
· Financial Cash Back Reserve Policy; and
· Strategic Budget Policy.
Financial Implications
As outlined in the report and detailed in Attachments 1 to 5.
Changes to Reports arising from Agenda Briefing
One minor edit for clarity under the interest earnings note.
Voting Requirements
Simple Majority
Attachments:
|
1⇩. |
Attachment 1 - Net Current Assets - November 2024 |
24/467501 |
|
|
2⇩. |
Attachment 2 - Statement of Financial Position November 2024 |
24/467502 |
|
|
3⇩. |
Attachment 3 - Investment Report November 2024 |
24/467503 |
|
|
4⇩. |
Attachment 4 - Top Capital Projects November 2024 |
24/467504 |
|
|
5⇩. |
Attachment 5 - Fees and Charges Schedule - Amendment |
25/35272 |
|
CS02-02/25 Financial Activity Statement for the Period ended 31 December 2024
File Ref: 45975V002 – 25/6147
Responsible Officer: Director Corporate Strategy & Performance
Attachments: 4
Issue
To consider the Financial Activity Statement for the period ended 31 December 2024.
Background
In accordance with Local Government (Financial Management) Regulations 1996, the Financial Activity Statement has been prepared in compliance with the following:
· Regulation 34(1) and (3) of the Local Government (Financial Management) Regulations 1996, which requires a local government to prepare a statement of financial activity each month, presented according to nature classification;
· Regulation 34(5) of the Local Government (Financial Management) Regulations 1996, which requires a local government to adopt a percentage or value, calculated in accordance with Australian Accounting Standards, to be used in statements of financial activity for reporting material variances. For the 2024/25 financial year 10% and a value greater than $100,000 will be used for the reporting of variances, and
· Regulation 35 of the Local Government (Financial Management) Regulations 1996, which requires a local government to prepare a statement of financial position of the local government as at the last day of the previous month.
Detail
Financial Activity for the Period Ended 31 December 2024
At the Ordinary Council Meeting on 16 July 2024 (CS02-07/24), Council adopted the Annual Budget for the 2024/25 financial year. The figures in this report are compared to the Revised Budget.
Overall Comments Year-to-Date
Results from Operating Activities
The net amount attributable from Operating Activities for the period ended 31 December 2024 is higher than budget by $25.3m, including non-cash adjustment of $21.0m. The cash inflows variances before non-cash adjustments from Operating Activities is higher by $1.7m, and the cash outflows variances before non-cash adjustments from Operating Activities is lower by $2.6m.
The overall variance is mainly due to higher inflows from Fees and Charges ($2.3m), Interest Earnings ($570k) and Other Revenue ($193k), underspend on Employee Costs ($955k) and Materials and Contracts ($1.9m) offset by lower Operating Grants ($1.2m) and higher Depreciation ($207k).
Results from Investing Activities
The net amount attributable from Investing Activities is higher than budget by $5.3m due to higher inflows from Contributed Physical Assets ($21.0m) and lower outflows from Purchase of Property, Plant and Equipment ($5.0m), lower outflow from Purchase & Construction of Infrastructure Assets ($769k), lower outflows from the Development Contribution Plans Expenses ($12.9m) offset by the non cash adjustment of $34.2m.
Results from Financing Activities
Financing Activities mainly consist of Reserve transfers and Development Contribution Plans transfers, which align with the budget.
Capital Program
Year to date 31 December 2024, $33.0m (excluding leased assets and contributed physical assets) was spent on various capital projects, of which $11.7m was spent on Roads, $8.5m was spent on Sports Facilities, and $3.6m was spent on Community Buildings. (Refer to Attachment 4 for more details).

Investment Portfolio Performance
Comments relating to the Statement of Financial Activity are provided for the variances between Year-to-Date Actuals and Year to Date Revised Budgets, where the variance is higher than the reporting threshold or an item of interest to Council.

Operating Activities
Note 1 Rates
Year to Date - (Actual $162.6m, Revised Budget $162.7m)
The variance is unfavourable by $164k mainly due to lower residential interim rates of $84k and lower interim rates from Rural and Mining $80k due to timing differences.
Note 2 Operating Grants, Subsidies & Contributions
Year to Date - (Actual $2.4m, Revised Budget $3.6m)
The variance is unfavourable by $1.2m. This is mainly due to over budgeting of Financial Assistance Grant of $708k, which will be revised during the mid-year budget review, and the timing difference between the budget and receipting of Financial Assistance Grant quarterly payments of $626k partially offset by the early receipt of State Grants of $128k for Conservation Management.

Note 3 Fees and Charges
Year to Date - (Actual $44.3m, Revised Budget $42.0m)
The favourable variance of $2.3m is mainly due to:
· Higher Rubbish Collection Fee of $758k due to higher than budgeted additional bin requests;
· Higher Applications, License and Permit Fee income of $1.1m from Building Approvals and Planning Approval Services;
· Higher Search Fee income from Rates and Compliance Services of $192k; and
· Higher Engineering Supervision Income of $243k.

Note 4 Interest Earnings
Year to Date - (Actual $10.6m, Revised Budget $10.0m)
The variance is favourable by $570k. This is mainly due to higher interest received from investments of $512k.

Note 5 Other Revenue
Year to Date - (Actual $1.9m, Revised Budget $1.7m)
The variance is favourable by $193k. This is mainly due to unbudgeted income from Container Deposit Scheme. Budget will be added via Mid Year Review.

Note 6 Employee Costs
Year to Date - (Actual $46.0m, Revised Budget $47.0m)
The employee costs are below budget by $955k, mainly due to;
· Lower spending on Training Courses, Travel Expenses and Conference & Seminars Fees expenses of $376k due to timing differences.
· Lower Normal Salary expenses due to higher utilisation of leave provisions and unfilled vacancies of $354k;
· Higher employee cost recoveries from the Cost Allocations to Capital Projects and Development Contribution plans of $112k; and
· Lower Temporary Personnel Expenses of $116k due to timing differences.

Note 7 Materials & Contracts
Year to Date - (Actual $39.0m, Revised Budget $40.9m)
The Materials & Contracts expenditure is lower than the budget by $1.9m, mainly due to;
· Lower Refuse Removal Expenses of $876k due to lower than expected tonnages;
· Delay in General Material Expenses due to timing differences of $630k;
· Lower Contract Expenses due to timing differences of $1.3m;
· Lower Consulting Fee Expenses due to timing differences of $383k;
· Delay in Software Maintenance, Support & Licence Expenses of $352k;
· Lower Postage Expenses of $63k due to timing differences from Rates Services and Communications and Brand Services;
Offset by;
· Higher Legal Fee Expenses of $190k due to timing differences; and
· Timing differences of higher Maintenance Services Expenses of $1.5m.

Note 8 Depreciation
Year to Date - (Actual $24.9m, Revised Budget $24.7m)
The variance is unfavourable by $207k. This is mainly due to higher depreciable asset base due to higher contribution of physical assets by the developers.

Investing Activities
Note 9 Contributed Physical Assets
Year to Date – (Actual $34.2m, Revised Budget $13.3m)
The favourable variance of $21.0m due to timing differences of contributing various infrastructure physical assets by residential land developers. This is a non cash transaction which has no impact to the overall surplus.
Note 10 Development Contribution Plans - Revenue
Year to Date – (Actual $14.9m, Revised Budget $15.0m)
The lower inflow of $140k from the Development Contribution Plans Revenue is due to timing differences of Contribution Income from Development Headwork.
Note 11 Purchase of Property, Plant and Equipment
Year to Date – (Actual $11.6m, Revised Budget $16.6m)
The lower outflow of $5.0m from the Purchase of Property, Plant and Equipment is due to the timing of actual expenditure.
Note 12 Purchase & Construction of Infrastructure Assets
Year to Date – (Actual $21.3m, Revised Budget $22.1m)
The lower outflow of $769k in the Purchase and Construction of Infrastructure Assets is due to the timing of actual expenditure.
Note 13 Development Contribution Plans - Expenses
Year to Date – (Actual $11.7m, Revised Budget $24.6m)
The lower outflow of $12.9m from the Development Contribution Plans Expenses is due to timing differences in acquisitions of various Public Open Spaces.
Statement of Financial Position (Attachment 2)

Note 1 - Net Current Assets
Compared to the closing position on 30 June 2024, Net Current Assets have increased by $138.7m, predominately due to the levying of 2024/25 Rates and Waste Service Fees in July 2024.
Within the Current Assets, Current Receivables of $77.5m are mainly comprised of Rates and Waste Service Fees debtors of $52.5m and Emergency Services Levy of $7.7m. The remaining balance is attributed to General Debtors of $17.3m.
Note 2 - Non-Current Assets
Non-Current Assets as at 31 December 2024 have increased by $34.2m from 30 June 2024 closing balance, due to increase in Infrastructure Assets and Property, Plant and Equipment offset by the decrease in investments in Associates and decrease in non-current receivables.
Note 3 - Non-Current Liabilities
Non-Current Liabilities as at 31 December 2024 have increased by $29.0m from 30 June 2024 closing balance, mainly due to an increase in Deferred Revenue from Developer Contribution Plans and Unspent Grant Liabilities associated with Capital Projects.
Financial Performance Indicators
The table below presents data on relevant financial ratios, comparing the minimum standard expected as per the Department of Local Government, Sport and Cultural Industries (DLGSC) as at 31 December 2024 and at the same period of the last year.
A green highlight is used where the minimum standard is met or exceeded. Highlighted in red is below the standard (where relevant).

Capital Works Program
The status of the Capital Works Program is summarised by Sub-Program in the table below:

As at 31 December 2024, the City of Wanneroo (City) incurred $33.0m of capital expenditure, which represents 36.3% of the $90.8m Revised Capital Works Budget. Whilst the City is making good progress with the Capital Works Program, as of 22 January 2024, Capital Expenditure commitments are recorded at $38.4m.
Total Capital Expenditure including Commitments is $71.4m which represents 78.6% of the $90.8m Capital Works Budget.

To further expand on the Capital Works Program information above, updates in key capital projects are selected to be specifically reported on and is provided in the Top Capital Projects attachment to this report (Attachment 4).
Investment Portfolio (Attachment 3)
In accordance with the Local Government (Financial Management) Regulations 1996 (and per the City’s Investment Policy), the City invests solely in Authorised Deposit taking Institutions (ADI’s):

At the end of December 2024, the City held an investment portfolio (cash & cash equivalents) of $602.3m (Face Value), equating to $615.5m inclusive of accrued interest. The City’s year to date investment portfolio return has exceeded the UBS Australia Bank Bill rate index benchmark by 0.30% pa (4.77% pa vs. 4.47% pa).
Consultation
This document has been prepared in consultation with Relevant Officers.
Comment
This report has incorporated recent amendments to the Local Government (Financial Management) Regulations 1996, which require local governments to prepare monthly Statement of Financial Activity (formerly Rate Setting Statement) with variance analysis, and the Statement of Comprehensive Income by Nature is no longer required.
The Regulations also require the preparation of Net Current Asset Notes (Attachment 1) to complement the Statement of Financial Activity.
In reference to Statement of Financial Activity in the report, the following symbols have been used to categorise three levels of variance:
Inflows/Outflows:
· é - Positive Variance more than 10% and/or more than $100,000
· ê - Negative Variance more than 10% and/or more than $100,000
· è - Negative Variance Less than 10% or less than $100,000
Statutory Compliance
This Monthly Financial Activity Statement complies with Regulations 34 and 35 of the Local Government (Financial Management) Regulations 1996.
Strategic Implications
The proposal aligns with the following objective within the Strategic Community Plan 2021 – 2031:
7 ~ A well governed and managed City that makes informed decisions, provides strong community leadership and valued customer focused services
7.1 - Clear direction and decision making
Risk Appetite Statement
In pursuit of strategic objective goal 7, we will accept a Medium level of risk as the City balances the capacity of the community to fund services through robust cost-benefit analysis and pursues evidence-based decision making to be effective stewards of the Council and City for future generations.
Risk Management Considerations
|
Risk Title |
Risk Rating |
|
CO-017 Financial Management |
High |
|
Accountability |
Action Planning Option |
|
Director Corporate Strategy & Performance |
Manage |
The above risk relating to the issue contained within this report has been identified and considered within the City’s Corporate risk register. Action plans have been developed to manage this risk to support existing management systems.
Local Jobs
The City is prepared to accept a high level of financial risk provided that the City implements a risk management strategy to manage any risk exposure.
Strategic Growth
The City will accept a moderate level of financial risk for facilitating industry development and growth.
Any strategic objective including ongoing planning, funding and capital investment to develop infrastructure strategic assets carries financial risks.
Policy Implications
The following policies are relevant for this report:
· Accounting Policy;
· Investment Policy;
· Financial Cash Back Reserve Policy; and
· Strategic Budget Policy.
Financial Implications
As outlined in the report and detailed in Attachments 1 to 4.
Changes to Reports arising from Agenda Briefing
One minor edit for clarity under the interest earnings note.
Voting Requirements
Simple Majority
Attachments:
|
1⇩. |
Attachment 1 - Net Current Assets - December 2024 |
25/16573 |
|
|
2⇩. |
Attachment 2 - Statement of Financial Position December 2024 |
25/16578 |
|
|
3⇩. |
Attachment 3 - Investment Report December 2024 |
25/16582 |
|
|
4⇩. |
Attachment 4 - Top Capital Projects December 2024 |
25/16585 |
|
CITY OF WANNEROO Minutes OF Ordinary Council Meeting 25 February, 2025 1
Corporate Planning Performance & Improvement
File Ref: 48056 – 24/451535
Responsible Officer: Director Corporate Strategy & Performance
Attachments: 7
Issue
To consider the Mid-Year Review (MYR) of the Corporate Business Plan 2024/25 - 2027/28 (CBP) and the Annual Budget 2024/25 (Annual Budget).
Background
Regulation 33A of the Local Government (Financial
Management) Regulations 1996 requires a local government to carry out a
review of its Annual Budget for that year, between
1 January and 28 February in each financial year. The review of an annual
budget for a financial year must be submitted to Council on or before 31 March
in that financial year, for consideration.
The Revised Budgets resulting from the MYR are detailed in (Attachments 1 to 7) and are inclusive of endorsed amendments from Council up to December 2024 and the MYR recommendations.
The CBP was reviewed in conjunction with the legislated Mid-Year Budget Review, and it was considered that no changes were required. Any changes to project delivery are captured in the regular quarterly reports. The quarter 2 report will go to Council at a future meeting.
Detail
Annual Budget 2024/25 Mid-Year Review
The MYR of the Annual Budget was undertaken for the period up to 31 December 2024. Commentaries on Revised Budgets, as a result of the MYR, are provided below.
Statement of Financial Activity (Attachment 1)
The Statement of Financial Activity (SOFA) represents a composite view of the finances of the City. It is based on the movement of Operation Activities, Investing Activities and Financing Activities, providing an indication of the required Rating Income from General Rates.
The SOFA is prepared based on the December Financial Activity Statement report figures, which have been subsequently amended to reflect budget variations approved by Council via monthly Financial Activity Statements. Furthermore, all adjustments proposed as part of the mid-year review are identified, alongside the resulting Post MYR position.
The overall operating adjustments captured through the MYR reflect a favourable impact to net Operating Activities by $5.2m, after eliminating non-cash adjustment of $4.4m. Of the $5.2m net operating MYR adjustment, $10.6m is a gross favourable adjustment to the Operating Revenue and $983k is a gross unfavourable adjustment to the Operating Expenditure.
As per Attachment 1, the 2024/25 Opening Surplus reported at the time of adoption was $14.5m, which has subsequently improved to reflect a Surplus of $22.9m, after taking into account the 2023/24 financial year-end adjustments. Furthermore, the budgeted 2024/25 closing balance inclusive of the MYR adjustments now presents a $3.7m Surplus position, from a restated Revised Budget Surplus of $1.6m.
Operating Activities (+$5.2m)
1. Rates (-52k)
The decrease in Rates income is due to slightly lower UV General Rates Rural/Mining Improved to budgeted.
2. Operating Grants, Subsidies & Contributions (+$109k)
Increase in Operating Grants is mainly due to:
· Additional Department of Transport Grants including Coastal Adaptation & Protection Grant of $243k;
· Additional Department of Education Shared Use (License) Agreements of $165k;
· Additional Western Australian Police (WAPOL) Grant for engaging youth in Banksia Grove of $122k;
· Additional Australian Early Development Census (AEDC) Grants of $107k;
· Additional Department of Fire and Emergency Services (DFES) Grant for Mariginiup Bushfire and Western Australian Local Government Association (WALGA) Urban Greening Grant Program $82k; and
· Increase to Mitigation Activity Fund (MAF) Grant of $71k.
Offset by:
· A reduction of Financial Assistance Grants of $708k from the final Grants Commission announcement.
3. Fees & Charges (+$4.0m)
Increase in Fees & Charges is mainly due to:
· Increase in Waste Fee Income of $1.4m;
· Increase in Building Permit Applications of $1m;
· Increase in Development Applications of $600k;
· Increase in Engineering Supervision Fee Income of $549k;
· Increase in Development Applications Search Fee Income of $250k;
· Increase in enrolments at the Aquamotion Swim School of $74k; and
· Increase in Aquamotion Bookings & Memberships due to 6 weeks free promotion of $62k.
4. Interest Earnings (+$1.3m)
The increase in Interest Earnings is due to a higher investment portfolio.
5. Other Revenue (+$247k)
The proposed increase in Other Revenue by $247k is mainly due to:
· Increased revenue from the Container Deposit Scheme of $400k;
Offset by:
· Reduction in revenue from the Merchant Fees of $82k; and
· Reduction in revenue from Verge Bonds $69k.
6. Profit/(Loss) on Asset Disposals (+$5.0m)
The Catalina Regional Council (CRC) has confirmed an additional distribution of $30.0m for the 2024/25 financial year. The City has recognised one sixth of $30.0m ($5.0m), which is proposed to transfer to the Asset Replacement/Enhancement Reserve $2.0m, Regional Recreational Reserve $2.0m and Loan Repayment Reserve $1.0m.
7. Employee Costs (+$445k)
The overall Employee Costs is proposed to increase by $445k due the following main reasons:
· Increase in Temporary Personnel ($252k);
· Increase in Fringe Benefits Tax due to a correction ($159k), and
· Increase in Overtime ($123k);
Offset by:
· Decrease in Training Course Fees ($83k).
8. Materials & Contracts (-$322k)
The full year Materials & Contracts budget has been proposed to revise down by $322k. The main reasons for a favourable adjustment are as follows:
· Reduction to Refuse Removal Expenses of $1.3m;
· Lower Contract Expenses of $644k; and
· Lower General Material Expenses of $143k;
Offset by:
· Reduction in net plant recoveries of $849k,
· Higher discount allowed of $456k. This is mainly due to reclassification of pensioner discount from waste fees income;
· Higher Consulting Fee Expenses of $297k; and
· Higher Audit fees of $139k
9. Utility Charges (+$228k)
An increase in forecast budget in Utility Charges is primarily a result of expected increase in Electricity ($124k), Gas ($55k) and Water ($49k) expenses.
10. Depreciation (+$626k)
Depreciation expenses for Buildings have increased ($1.7m) mainly due to the Capitalisation of Halesworth Community Centre in June 2024, however depreciation expenses for Furniture & Fittings have decreased ($2.3m) mainly due to the MyFinance software being fully depreciated.
11. Finance Costs (-$9k)
Finance costs have decreased due to a delay in the commencement of the lease for the Cardio Equipment at Aquamotion.
12. Insurance (+$15k)
Insurance has increased due to additional premiums ($8k) and an increase in insurance excesses ($7k).
13. Non-Cash Amounts Excluded (-$4.4m)
The following items have been classified under Non-Cash Amounts Excluded in calculating amount attributable to Operating Activities:
· Increase in Depreciation of $626k;
Offset by:
· Increase in Profit from Disposal of Assets of $5.0m.
Investing Activities (+$12.4m)
14. Grants, Subsidies & Contributions (Non-Operating) (-$252k)
The decrease in Grants, Subsidies & Contributions is due to the net of:
· Re-budgeted Capital Works funded from Grants of $2.1m (Attachment 5);
· Additional Grant funding requirement of $2.0m (Attachment 4); and
· Proposed savings from Grant funded Capital Works of $307k (Attachment 3).
15. Contributed Physical Assets (+$25m)
The higher than expected handover of assets from Developers to the end of December is forecast to continue across the remainder of the financial year.
16. Development Contribution Plan (DCP) - Revenues (+$2.8m)
Significant entries contributing toward the net adjustment are listed below:
Increases:
· $800k in Yanchep Two Rocks Coastal Corridor Community Facilities;
· $518k in East Wanneroo Cell 5;
· $1.1m in East Wanneroo Cell 4;
· $187k in East Wanneroo Cell 8; and
· $567k in East Wanneroo Cell 9.
Partially offset by decreases of:
· $135k in East Wanneroo Cell 6;
· $13k in East Wanneroo Cell 7; and
· $217k in TPS 5 Landsdale.
17. Purchase of Property, Plant & Equipment (-$4.1m)
Purchase & Construction of Infrastructure Assets (+$27k)
The review of Capital Works Program has produced various adjustments to the capital projects as detailed in (Attachment 2). These adjustments have resulted in a post MYR Capital Works Program budget of $86.7m, compared to the annual Revised Budget of $90.8m, being a 5% reduction.
With particular attention paid to the timing of the spending on large projects, in 2024/25, there have been a number of projects relinquishing funds, amounting to $3.1m (Attachment 3), several projects requiring additional funding of $6.9m (Attachment 4) and $7.9m has been earmarked to be re-budgeted into future years (Attachment 5).
Whilst there are Municipal Fund savings of $1.3m, there are additional Municipal Fund requirements of $1.7m. Hence, there is an overall deficit of $467k in Municipal Funds. In addition, $2.9m worth of Municipal Funded Capital Projects will be re-budgeted in future years.
Listed below are the more prominent amendments (greater than $100k):
Table 1 - Capital Projects with Surplus Funds Relinquished:
|
Project Name |
Relinquished Funds ($) |
Comments |
|
Heath Park, Alkimos, new sports amenities building |
700,000 |
Savings identified. |
|
Renew Human Resource System |
490,000 |
Forecast savings due to system costs being less than anticipated. |
|
Recurring Program, New IT Equipment and Software 2023-24 |
409,325 |
Savings identified. |
|
New Assets Management System |
204,917 |
Savings identified, with project due to be completed this financial year. |
|
Neerabup Industrial Area, Neerabup, New Renewable Energy Infrastructure |
155,000 |
Savings identified with project to be terminated. |
|
McCoy Park, Quinns Rocks, Renew BMX Track |
118,000 |
Savings identified due to tender price below budget |
|
Recurring Program, New Corporate Business Systems 2023-24 |
105,648 |
Funds no longer required. |
|
Recurring Program, Renew Heavy Trucks 2024-25 |
100,000 |
Funds not required |
Table 2 - Capital Projects with Additional Funding Requirement:
|
Project Name |
Additional Funds ($) |
Comments |
|
Hepburn Ave Mirrabooka Ave, Marangaroo, Upgrade Intersection |
888,000 |
Funds to be brought forward for construction works, as well as additional funds being required for costs associated with night works. |
|
Hartman Dr, Wangara, New Pathway from Ocean Reef Rd to Gnangara Rd |
570,000 |
Funds to be brought forward for construction. |
|
Neerabup Industrial Area, Neerabup, New Development |
450,000 |
Additional funds required for non-extraction works associated with Lot 9003. |
|
Recurring Program, Renew Transport Infrastructure Assets 2024-25 |
440,000 |
Additional funds required for increased scope. |
|
Montrose Ave Mirrabooka Ave Koondoola Ave, Marangaroo, Upgrade Intersection |
419,000 |
Funds to be brought forward for construction works. |
|
Recurring Program, Renew Domestic Waste Vehicles 2024-25 |
410,000 |
Additional funds required for an additional waste truck delivered in December 2024. |
|
Lenore Road, Hocking, Upgrade to Dual Carriageway from Kemp St to Elliot Rd |
340,000 |
Additional funds required for construction works, which will be funded from TPS Cell 4. |
|
Recurring Program, Renew Light Vehicles 2024-25 |
250,000 |
Additional funds required for extra light vehicles to be replaced in 2024/25. |
|
Kingsway RSC, Madeley, upgrade Kingsway Splashpad Toilets and Changerooms |
231,000 |
Funds to be brought forward to progress construction in 2024/25. |
|
Salerno Drive and Anchorage Drive North, Quinns Rocks, upgrade traffic treatments |
210,000 |
Additional funds due to the complexity of works requiring multiple mobilisation/ demobilisation by the contractor. |
|
Wangara Transfer Station, Wangara, Upgrade Site Works |
200,000 |
Additional funds required in 2024/25 for expansion works at the site. Funds b/f from 2025/26. |
|
Recurring Program, New IT Equipment and Software 2024-25 |
200,000 |
Additional funds required for new IT equipment to cover for new positions within the City. |
|
Landsdale Rd, Landsdale, Upgrade Traffic Treatments |
165,000 |
Additional funds required due to streetlighting relocations that were not originally anticipated to be required. |
|
Kingsway RSC, new car park and access road |
152,000 |
Additional funds required due to higher than anticipated civil construction costs. |
|
Upgrade Oracle Enterprise Performance Management |
134,000 |
Additional funds required. |
|
Waste Management, Upgrade Vehicle Safety Equipment |
125,000 |
Funds to be brought forward to prioritise the installation of the safety equipment. |
|
Wanneroo showgrounds, Wanneroo, Sports Amenities building extension |
120,000 |
Additional funds required to finalise design works. |
|
Recurring Program, New Mobile Garbage Bins 2024-25 |
115,000 |
Additional funds required to support on-going purchases of bins for new properties. |
|
James Spiers Park, Wanneroo, Renew Pathway and Paving |
105,000 |
Additional funds required due to labour hire costs and unforeseen additional scope to complete works. |
|
Splendid Park, Yanchep, new cycling facility |
100,000 |
Additional funds required for erosion remediation works and further revegetation monitoring. |
|
Gumblossom Community Centre, Quinns Rocks, Upgrade works |
100,000 |
Additional funds required for an increase to scope. |
Table 3- Capital Projects with Proposed Re-budget:
|
Project Name |
Re-budget ($) |
Comments |
|
Dordaak Kepup Library and Youth Innovation Hub, Landsdale, new building |
3,175,000 |
Funds to be re-budgeted to 2025/26 due to delays to steel fabrication (cash flow adjustment). |
|
Flynn Dr, Banksia Grove, Upgrade from Mather Dr to Old Yanchep Rd |
1,616,000 |
Funds to be re-budgeted to 2025/26 due to delays in ATCO gas works. |
|
Capricorn Coastal Node, Yanchep, New Recreation and Amenity Facilities |
744,186 |
Funds to be re-budgeted to 2025/26 to align with developer's schedule. |
|
Renew Facility Booking System |
350,000 |
Funds to be re-budgeted to 2025/26 due to delays. |
|
Ashby Operations Centre, Ashby, Renew Building 3 Roof Sheeting, Drainage, HVAC |
220,000 |
Funds to be re-budgeted to 2025/26 to allow for a September roof construction after winter. |
|
Renew Reporting Portal |
192,056 |
Funds to re-budgeted to 2025/26. |
|
Yanchep Community Centre, Yanchep, Yanchep Two Rocks Access Centre Relocation |
180,000 |
Funds to be re-budgeted to 2025/26 for construction. |
|
Yellagonga Regional Park/Chianti Estate, Woodvale, upgrade pathway |
150,000 |
Funds to be re-budgeted to 2025/26 for construction of stage 2. |
|
Enterprise Software Renewal - Property & Rating System |
132,037 |
Funds to re-budgeted to 2025/26 due to delays in project. |
|
Queenscliff Park, Quinns Rocks, Renew Boardwalk and Pergola |
106,000 |
Funds to be re-budgeted to 2025/26 for construction. |
18. Development Contribution Plan Expenses (+$1.8m)
Significant adjustments contributing toward the net increase are listed below:
Increases:
· $740k in East Wanneroo Cell 4 Contract Expenses - Other;
· $567k in East Wanneroo Cell 9 Contract Expenses - Other; and
· $518k in East Wanneroo Cell 5 Consulting Fee Expenses.
Partially offset by decreases of:
· $217k in TPS No.5 Contract Expenses - Other; and
· $122k in East Wanneroo Cell 6 Consulting Fee Expenses.
19. Non-Cash Amounts Excluded (-$22.7m)
This non-cash adjustment is required to reflect the value of assets received by the City at no cost (-$25.0m). This is offset by a $2.3m adjustment to reinstate the deferred revenue for transferring to DCP reserves.
Financing Activities (-$24.0m)
20. Contributions from New Loans ($0)
No new loans are proposed to be entered into.
21. Transfer from Unused Borrowings (+$707k)
Funding from existing unused borrowings is proposed to be increased for the current financial year to progress the Dordaak Kepup development project.
22. Transfer from/(to) Reserves (Net -$24.7m)
The decrease in Transfer from Reserves (-1.1m) is mainly due to:
· ($3.6m) worth of reserve funded proposed re-budgeted capital projects (Attachment 5);
· $2.8m worth of proposed additional reserve funding requirement for capital projects (Attachment 4);
· ($1.5m) worth of proposed savings from reserve funded capital projects which are either completed or changed scope (Attachment 3); and
· $1.2m transfer to Golf Course Reserve from Asset Renewal/Enhancement Reserve.
The increase in Transfer to Reserves (+$23.6m) is mainly due to:
· Additional transfer to Strategic Projects/Initiatives Reserve of $8.4m from a higher than expected 2023/24 year end surplus;
· Transfer of an equivalent amount of Muni funded re-budgeted 2024/25 capital projects of $2.9m to the Strategic Projects/Initiatives Reserve (Attachment 7);
· Transfer of proceeds from CRC distribution of $2.0m to the Asset Replacement/Enhancement Reserve;
· Transfer of proceeds from CRC distribution of $2.0m to the Regional Recreational Reserve;
· Additional contributions from Developers to Alkimos-Eglington Coastal Corridor Community Facilities of $2.0m;
· Increase in transfer to Waste Management Reserve of $1.8m to reflect improvement in operational surplus; and
· Transfer of proceeds from CRC distribution of $1.0m to the Loan Repayment Reserve.
It should be noted that the opening balances have been adjusted in line with the 2023/24 Audited Financial Statements (closing balances), which were adopted by Council in its Council Meeting held on 10 December 2024.
A summary of movements by individual reserve are disclosed in (Attachment 6).
23. Transfer from/(to) Development Contribution Plans not in Reserve ($0m)
The proposed change has a zero impact to the bottom line, as the funds are not Municipal and represent balancing amounts transferred from/to Development Contribution Plan reserves.
24. Repayment of Borrowings ($0)
There is no change to the adopted budget with respect to repayment of borrowings.
25. Non-Cash Amounts Excluded ($0)
There are no non-cash amounts to be excluded from Financing Activities.
26. Surplus/(Deficit) at the Start of the Financial Year (+8.4m)
The 2024/25 opening balance at the start of the financial year has been adjusted to reflect the audited closing balance for 2023/24.
27. Surplus/(Deficit) After Imposition of General Rates ($2.1m)
The MYR proposed amendments has resulted in having a Surplus of $2.1m. As a result, post MYR annual revised budget Surplus of $3.7m is an improvement of $2.1m from the Revised Budget Surplus of $1.6m at the end of December 2024.
Consultation
Comment
Mid-Year Annual Budget Review Summary of Changes
Operating Activities
An improvement in the Result from Operations of $5.2m is identified, mostly represented by the +$4.0m improvement in Fees & Charges and +$1.3m in Interest Earnings.
Investing Activities
The $4.1m net reduction in the Capital Works Program budget includes $3.1m in surplus funds relinquished, offset by $6.9m in additional funds requested and $7.9m has been deferred for consideration in 2025/26 and future years.
Regarding the financial impact from Capital on Municipal Funds, a net deficit of $467k is identified, due to $1.3m in savings together with $1.7m in additional funding requirements.
Of the capital projects to be re-budgeted, the three main funding sources are Reserves ($3.6m), Municipal ($2.9m) and Grants ($2.1m).
Financing Activities
Due to an increase in net cash inflows ($1.6m) and an increase in net cash outflows ($25.6m), the overall adjustment to Financing Activities is a net outflow of $24.0m.
Transfer from Reserves reflects a net decrease of $1.1m, resulting from reduced funding requirements towards capital projects.
Transfer to Reserves are significantly higher, largely due to the transfer of additional 2023/24 surplus ($8.4m), additional distribution from CRC ($5.0m) and reserve funded re-budget capital works ($3.6m).
Surplus/(Deficit) after Imposition of General Rates
As a result of the above MYR adjustments, there is an overall favourable adjustment of $2.1m, resulting in a $3.7m proposed revised budget Surplus for the 2024/25 financial year.
Statutory Compliance
Regulation 33A of the Local Government (Financial
Management) Regulations 1996 requires a local government to carry out a
review of its Annual Budget for that year between
1 January and the last day of February in each financial year.
The review of an annual budget for a financial year must be submitted to Council on or before 31 March in that financial year.
A Council is to consider a review submitted to it and is to determine with absolute majority whether or not to adopt the review, any parts of the review or any recommendations made in the review.
Within 14 days after Council has made a determination, a copy of the review and determination is to be provided to the Department.
Strategic Implications
The proposal aligns with the following objective within the Strategic Community Plan 2021 – 2031:
7 ~ A well governed and managed City that makes informed decisions, provides strong community leadership and valued customer focused services
7.2 - Responsibly and ethically managed
Risk Appetite Statement
In pursuit of strategic objective goal 7, we will accept a Medium level of risk as the City balances the capacity of the community to fund services through robust cost-benefit analysis and pursues evidence-based decision making to be effective stewards of the Council and City for future generations.
Risk Management Considerations.
|
Risk Title |
Risk Rating |
|
CO-009 Integrated Reporting |
Low |
|
Accountability |
Action Planning Option |
|
Director Corporate Strategy & Performance |
Manage |
|
Risk Title |
Risk Rating |
|
CO-017 Financial Management |
High |
|
Accountability |
Action Planning Option |
|
Director Corporate Strategy & Performance |
Manage |
The above risks relating to the issue contained within this report has been identified and considered within the City’s Corporate risk register. Action plans have been developed to manage these risks to support existing management systems.
In pursuing growth under the Economic objectives of the existing Strategic Community Plan (SCP), Council should consider the following risk appetite statements:
“Local Jobs
The City is prepared to accept a high level of financial risk provided that the City implements a risk management strategy to manage any risk exposure.
Strategic Growth
The City will accept a moderate level of financial risk for facilitating industry development and growth.
Any strategic objective including ongoing planning, funding, and capital investment to develop infrastructure strategic assets carries financial risks.”
Policy Implications
The MYR has been undertaken in accordance with the requirements detailed in the City’s Accounting Policy and Strategic Budget Policy.
Financial Implications
As outlined above and detailed in Attachments 1 to 7.
Changes to Reports from Agenda Briefing
This report was not presented or discussed to Agenda Briefing.
Voting Requirements
Absolute Majority
Attachments:
|
1⇩. |
Attachment 1 - Statement of Financial Activity |
25/59143 |
|
|
2⇩. |
Attachment 2 - Capital Works Program MYR - Proposed Changes |
25/39071 |
|
|
3⇩. |
Attachment 3 - Capital Works Program MYR - Proposed Surplus Funds Relinquished |
25/39072 |
|
|
4⇩. |
Attachment 4 - Capital Works Program MYR - Proposed Additional Funds Required |
25/39073 |
|
|
5⇩. |
Attachment 5 - Capital Works Program MYR - Proposed Rebudgets to Future Years |
25/39074 |
|
|
6⇩. |
Attachment 6 - Reserve Schedule - Summary |
25/59139 |
|
|
7⇩. |
Attachment 7 - Capital Works Program - Proposed Municipal Rebudgets to Future Years |
25/39080 |
|
CITY OF WANNEROO Minutes OF Ordinary Council Meeting 25 February, 2025 1
Transactional Finance
File Ref: 1859V02 – 24/441431
Responsible Officer: Acting Chief Financial Officer
Attachments: Nil
Issue
Presentation to the Council of a list of accounts paid for the month of November 2024, including a statement as to the total amounts outstanding at the end of the month.
Background
Local Governments are required each month to prepare a list of accounts paid for that month and submit the list to the next Ordinary Meeting of the Council.
In addition, it must record all other outstanding accounts and include that amount with the list to be presented. The list of accounts paid, and the total of outstanding accounts must be recorded in the minutes of the Council meeting.
Detail
The following is the Summary of Accounts paid in November 2024.
|
Funds |
Vouchers |
Amount |
|
Director Corporate Services Advance A/C Accounts Paid – November 2024 Cheque Numbers CBA & NAB Credit Cards EFT Document Numbers TOTAL ACCOUNTS PAID
Manual Journals Less Cancelled Cheques Town Planning Scheme RECOUP FROM MUNICIPAL FUND |
124844 - 124876 73 - 74 36056 - 37204 |
$28,080.91 $69,745.53 $20,958,912.62 $21,056,739.06
($7,701.22) ($2,135.15) ($2,494.45) $21,044,408.24 |
|
Municipal Fund – Bank A/C Accounts Paid – November 2024
Recoup to Director Corporate Services Advance A/C Bank Fees Payroll – Direct Debits TOTAL ACCOUNTS PAID |
|
$21,044,408.24 $37,291.35 $4,607,231.39 $25,688,930.98 |
|
Town Planning Scheme Accounts Paid – November 2024 Cell 1 Cell 2 Cell 3 Cell 4 Cell 5 Cell 6 Cell 7 Cell 8 Cel 9 TOTAL ACCOUNTS PAID |
|
$276.09 $277.45 $278.80 $276.10 $276.11 $276.12 $276.12 $281.54 $276.12 $2,494.45 |
(Please note in some instances descriptions/details of one transaction are presented across two pages in following table.)
|
Warrant of Payments November 2024 |
|||
|
|
|
|
|
|
Number |
Date |
Supplier / Description |
Amount |
|
124844 |
4/11/2024 |
Suresh Vekria |
$42.00 |
|
|
|
Refund - Badminton Booking - Cancelled |
|
|
124845 |
4/11/2024 |
Rates Refund |
$319.77 |
|
124846 |
4/11/2024 |
Rates Refund |
$193.66 |
|
124847 |
4/11/2024 |
Rates Refund |
$752.02 |
|
124848 |
4/11/2024 |
Le Tran Thuy |
$61.65 |
|
|
|
Refund - Building Application - Rejected |
|
|
124849 |
4/11/2024 |
Johannes Van Gemmert |
$61.65 |
|
|
|
Refund - Building Application - Rejected |
|
|
124850 |
4/11/2024 |
Teresa De Jager |
$147.00 |
|
|
|
Refund - Development Application - Withdrawn |
|
|
124851 |
4/11/2024 |
Caley Andrews |
$59.50 |
|
|
|
Refund - Copies Of Plans - Incorrect Option Chosen |
|
|
124852 |
11/11/2024 |
Rates Refund |
$180.72 |
|
124853 |
11/11/2024 |
Phoenix Dear |
$112.00 |
|
|
|
Refund - Impound Fees - Lifetime Registration In Place |
|
|
124854 |
11/11/2024 |
Rates Refund |
$823.92 |
|
124855 |
11/11/2024 |
Rates Refund |
$802.23 |
|
124856 |
11/11/2024 |
Rates Refund |
$758.87 |
|
124857 |
11/11/2024 |
Constantin Vasiasi |
$73.00 |
|
|
|
Refund - Written Planning Advice - Submitted In Error |
|
|
124858 |
11/11/2024 |
Wanneroo Sports & Social Club Incorporated |
$50.00 |
|
|
|
Deposit - Barefoot Bowls - Gold Program |
|
|
124859 |
11/11/2024 |
Rates Refund |
$2,886.87 |
|
124860 |
11/11/2024 |
Vorgee Pty Ltd |
$178.20 |
|
|
|
Small Kickboards - Aquamotion Swim School |
|
|
124861 |
18/11/2024 |
Melissa Dax |
$30.00 |
|
|
|
Refund - Fitness Membership - Cancelled |
|
|
124862 |
18/11/2024 |
Renae Flegg |
$56.00 |
|
|
|
Refund - Acrobatics School Holiday Program - Cancelled |
|
|
124863 |
18/11/2024 |
Heather Dimond |
$70.00 |
|
|
|
Refund - Gold Program - Unable To Attend |
|
|
124864 |
18/11/2024 |
Rates Refund |
$920.30 |
|
124865 |
18/11/2024 |
Rates Refund |
$667.92 |
|
124866 |
18/11/2024 |
Rates Refund |
$931.39 |
|
124867 |
18/11/2024 |
Rates Refund |
$777.16 |
|
124868 |
18/11/2024 |
Rates Refund |
$3,913.68 |
|
124869 |
18/11/2024 |
Burgess Rawson Pty Ltd |
$3,850.00 |
|
|
|
Valuation - 81 Ghost Gum Boulevard - Property Services |
|
|
124870 |
18/11/2024 |
Christine Ruby Farrell |
$600.00 |
|
|
|
Pastels Workshop - Wanneroo Library & Cultural Centre |
|
|
124871 |
18/11/2024 |
Tucker Bush Australia Pty Ltd |
$440.00 |
|
|
|
Tucker Bush Presentation By Mark Tucek - Girrawheen Community Garden Open Day |
|
|
124872 |
18/11/2024 |
Perth Party Time |
$750.00 |
|
|
|
Tragic Magic Show - Halloween Entertainment |
|
|
124873 |
25/11/2024 |
Rates Refund |
$656.57 |
|
124874 |
25/11/2024 |
Australian Outdoor Living (WA) Pty Ltd |
$2,000.00 |
|
|
|
Refund - Street & Verge Bond |
|
|
124875 |
25/11/2024 |
Rates Refund |
$435.84 |
|
124876 |
25/11/2024 |
Rates Refund |
$4,478.99 |
|
|
|
|
|
|
|
|
Total Cheque Payments |
$28,080.91 |
|
|
|
|
|
|
Electronic Funds Transfer |
|||
|
36056 |
4/11/2024 |
Ms C Buck |
$10.37 |
|
|
|
Reimbursement - Parking |
|
|
36057 |
4/11/2024 |
Mr C Bartlett |
$85.00 |
|
|
|
Reimbursement - Equipment |
|
|
36058 |
4/11/2024 |
Ms E Brown |
$20.00 |
|
|
|
Reimbursement - Test For Covid |
|
|
36059 |
4/11/2024 |
Cancelled |
|
|
36060 |
4/11/2024 |
Ms L Saunders |
$25.24 |
|
|
|
Reimbursement - Parking Expense CBD Seminar |
|
|
36061 |
4/11/2024 |
Ms Y Dubois |
$79.00 |
|
|
|
Reimbursement - Work Boots |
|
|
36070 |
4/11/2024 |
3Logix Pty Ltd |
$1,072.50 |
|
|
|
Subscription - Waste Track Access |
|
|
36071 |
4/11/2024 |
8 Slice Productions |
$910.00 |
|
|
|
Wood Fired Pizza Oven Hire & 50 Pizza Dough Balls - Youth Services |
|
|
36072 |
4/11/2024 |
AAC ID Solutions |
$1,981.36 |
|
|
|
12000 Spa Bands - Aquamotion |
|
|
36073 |
4/11/2024 |
AARCO Environmental Solutions Pty Ltd |
$860.75 |
|
|
|
Removal Of Asbestos - Kingsway Sports |
|
|
|
|
Removal Of Asbestos - Karoborup Road |
|
|
36074 |
4/11/2024 |
ABN Residential WA Pty Ltd |
$5,076.98 |
|
|
|
Refund - Development Application - Withdrawn |
|
|
|
|
Refund - Street & Verge Bonds |
|
|
36075 |
4/11/2024 |
Access Technologies |
$933.90 |
|
|
|
Main Cable Sheathing - John Moloney Park |
|
|
36076 |
4/11/2024 |
AE Hoskins Building Services |
$3,076.26 |
|
|
|
Inspection And Repairs To Roof Leaks – Quinns Rocks Bowls Club |
|
|
|
|
Valley Replacement - Lake Joondalup Park |
|
|
36077 |
4/11/2024 |
Alinta Gas |
$8,060.40 |
|
|
|
Gas Supply Charges - Various Locations |
|
|
36078 |
4/11/2024 |
Allworks (WA) Pty Ltd |
$10,994.50 |
|
|
|
Excavation Of Remaining Soil - Koondoola Swale Refurbishment |
|
|
36079 |
4/11/2024 |
Rates Refund |
$91.11 |
|
36080 |
4/11/2024 |
Andrew Mann |
$2,000.00 |
|
|
|
Refund - Street & Verge Bond |
|
|
36081 |
4/11/2024 |
Animal Health Solutions Pty Ltd |
$1,202.56 |
|
|
|
Animal Care Centre Supplies |
|
|
36082 |
4/11/2024 |
Annabel Rose Smith |
$625.00 |
|
|
|
Workshop - Overcoming Self-Doubt & Procrastination - Clarkson Library |
|
|
36083 |
4/11/2024 |
Anton Mennie |
$500.00 |
|
|
|
CCTV Rebate |
|
|
36084 |
4/11/2024 |
AR Awards |
$590.00 |
|
|
|
Registration - 2025 Awards - 1 Attendee |
|
|
36085 |
4/11/2024 |
Ascon Survey and Drafting |
$13,033.08 |
|
|
|
Digital Ground Survey - Various Locations |
|
|
36086 |
4/11/2024 |
Australian Airconditioning Services Pty Ltd |
$8,649.41 |
|
|
|
Airconditioning Maintenance Services - Various Locations |
|
|
36087 |
4/11/2024 |
Australian Security Technology Pty Ltd |
$2,362.80 |
|
|
|
Subscription - Kmaas Enterprise - 01.10.2024 - 30.09.2025 - ICT |
|
|
36088 |
4/11/2024 |
Australian Services Union |
$238.50 |
|
|
|
Payroll Deductions |
|
|
36089 |
4/11/2024 |
Australian Taxation Office |
$677,912.00 |
|
|
|
Payroll Deductions |
|
|
36090 |
4/11/2024 |
Avantgarde Technologies Pty Ltd |
$84,423.35 |
|
|
|
Comprehensive Defence Plan For The Period 21.12.2024 -20.12.2025 |
|
|
36091 |
4/11/2024 |
Axiell Pty Ltd |
$0.00 |
|
|
|
Annual Support And Maintenance For 3 EMu Licences - Museum Collections Management System |
|
|
36092 |
4/11/2024 |
Ball & Doggett Pty Ltd |
$595.69 |
|
|
|
Paper Supplies - Print Room |
|
|
36093 |
4/11/2024 |
Belinda Ochieng |
$2,000.00 |
|
|
|
Refund - Street & Verge Bond |
|
|
36094 |
4/11/2024 |
Beth Louise Mullany |
$1,204.50 |
|
|
|
Wild Life Display - Banksia Grove Fun Festival |
|
|
36095 |
4/11/2024 |
BGC Residential Pty Ltd |
$8,000.00 |
|
|
|
Refund - Street & Verge Bonds |
|
|
36096 |
4/11/2024 |
Bladon WA Pty Ltd |
$1,154.43 |
|
|
|
Corporate Uniform Issue |
|
|
36097 |
4/11/2024 |
Blueprint Homes (WA) Pty Ltd |
$10,000.00 |
|
|
|
Refund - Street & Verge Bonds |
|
|
36098 |
4/11/2024 |
Blueprint Homes (WA) Pty Ltd |
$8,000.00 |
|
|
|
Refund - Street & Verge Bond |
|
|
36099 |
4/11/2024 |
Bollig Design Group Ltd |
$2,464.00 |
|
|
|
Architectural Services - Creche, Staff Room, & Training Room Upgrades - Wanneroo Aquamotion |
|
|
36100 |
4/11/2024 |
Bree-Anne Muir |
$2,000.00 |
|
|
|
Refund - Street & Verge Bond |
|
|
36101 |
4/11/2024 |
Brian Keegan |
$402.27 |
|
|
|
CCTV Rebate |
|
|
36102 |
4/11/2024 |
Brian Moss |
$500.00 |
|
|
|
CCTV Rebate |
|
|
36103 |
4/11/2024 |
Bridgestone Australia Limited |
$18,596.59 |
|
|
|
Tyre Fitting Services |
|
|
36104 |
4/11/2024 |
Bridgestone Australia Limited |
$2,318.37 |
|
|
|
Tyre Fitting Services |
|
|
36105 |
4/11/2024 |
Brownes Foods Operations Pty Limited |
$252.75 |
|
|
|
Milk Deliveries |
|
|
36106 |
4/11/2024 |
Bucher Municipal Pty Ltd |
$1,407.61 |
|
|
|
Vehicle Spare Parts |
|
|
36107 |
4/11/2024 |
Bunzl Limited |
$3,138.52 |
|
|
|
40 Hand Towel Dispensers - Stores |
|
|
36108 |
4/11/2024 |
BWY Engineering Consultants Pty Ltd |
$1,980.00 |
|
|
|
Report & Recommendations Inc Budgetary Cost Estimate |
|
|
36109 |
4/11/2024 |
Canford Hospitality Consultants |
$3,785.50 |
|
|
|
Aquamotion - Consider Plans Received |
|
|
36110 |
4/11/2024 |
Car Care Motor Company Pty Ltd |
$1,322.60 |
|
|
|
Vehicle Repairs - Fleet |
|
|
36111 |
4/11/2024 |
Carnival Amusements |
$13,779.00 |
|
|
|
Hire Carnival Amusements - Banksia Grove Fun Fest - Events |
|
|
36112 |
4/11/2024 |
Carolyn Bye |
$50.66 |
|
|
|
Materials - Halloween Craft |
|
|
36113 |
4/11/2024 |
Catalina Regional Council |
$96,802.69 |
|
|
|
Bond Refund -
Catalina Stage 31 Clarkson |
|
|
|
|
GST Payable – Sept 2024 Pursuant To Section 153 B Of Agreement |
|
|
36114 |
4/11/2024 |
CDM Australia Pty Ltd |
$10,340.00 |
|
|
|
15 Dell Latitude Laptops - ICT |
|
|
36115 |
4/11/2024 |
CFMEU |
$110.00 |
|
|
|
Payroll Deductions |
|
|
36116 |
4/11/2024 |
Child Support Agency |
$1,938.48 |
|
|
|
Payroll Deductions |
|
|
36117 |
4/11/2024 |
Chris Kershaw Photography |
$2,200.00 |
|
|
|
Photography - Artworks |
|
|
36118 |
4/11/2024 |
Christopher Brown |
$500.00 |
|
|
|
CCTV Rebate |
|
|
36119 |
4/11/2024 |
City of Wanneroo |
$500.00 |
|
|
|
Payroll Deductions |
|
|
36120 |
4/11/2024 |
Civil Sciences and Engineering |
$16,280.00 |
|
|
|
Drainage Catchment Analysis / Sump Rationalisation - Ridgewood And Pearsall |
|
|
|
|
Line Marking Design - Koondoola |
|
|
36121 |
4/11/2024 |
Coates Hire Operations Pty Limited |
$1,181.24 |
|
|
|
Equipment Hire - Portable Toilet - Mary Street & Peak Road |
|
|
36122 |
4/11/2024 |
Complete Approvals |
$147.00 |
|
|
|
Refund - Building Application - Withdrawn |
|
|
36123 |
4/11/2024 |
Complete Office Supplies Pty Ltd |
$1,079.02 |
|
|
|
Office Supplies For The City |
|
|
36124 |
4/11/2024 |
Corralee Gray |
$2,000.00 |
|
|
|
Refund - Street & Verge Bond |
|
|
36125 |
4/11/2024 |
Corsign (WA) Pty Ltd |
$4,950.00 |
|
|
|
100 Signs - Authorised Sprinkler Operation In Progress |
|
|
36126 |
4/11/2024 |
Cory Richardson |
$500.00 |
|
|
|
CCTV Rebate |
|
|
36127 |
4/11/2024 |
Courageous Church Inc |
$250.00 |
|
|
|
Bond Refund |
|
|
36128 |
4/11/2024 |
Cr Alexander Figg |
$6,411.28 |
|
|
|
Monthly & ICT Allowance |
|
|
36129 |
4/11/2024 |
Cr Bronwyn Smith |
$6,411.28 |
|
|
|
Monthly & ICT Allowance |
|
|
36130 |
4/11/2024 |
Cr Eman Seif |
$6,411.28 |
|
|
|
Monthly & ICT Allowance |
|
|
36131 |
4/11/2024 |
Cr Glynis Parker |
$6,411.28 |
|
|
|
Monthly & ICT Allowance |
|
|
36132 |
4/11/2024 |
Cr Helen Berry |
$6,411.28 |
|
|
|
Monthly & ICT Allowance |
|
|
36133 |
4/11/2024 |
Cr Jacqueline Huntley |
$6,411.28 |
|
|
|
Monthly & ICT Allowance |
|
|
36134 |
4/11/2024 |
Cr James Rowe |
$8,473.33 |
|
|
|
Monthly & ICT Allowance |
|
|
36135 |
4/11/2024 |
Cr Jordan Wright |
$6,411.28 |
|
|
|
Monthly & ICT Allowance |
|
|
36136 |
4/11/2024 |
Cr Marizane Moore |
$6,411.28 |
|
|
|
Monthly & ICT Allowance |
|
|
36137 |
4/11/2024 |
Cr Natalie Herridge |
$6,411.28 |
|
|
|
Monthly & ICT Allowance |
|
|
36138 |
4/11/2024 |
Cr Paul Miles |
$6,411.28 |
|
|
|
Monthly & ICT Allowance |
|
|
36139 |
4/11/2024 |
Cr Philip Bedworth |
$6,411.28 |
|
|
|
Monthly & ICT Allowance |
|
|
36140 |
4/11/2024 |
Cr Sonet Coetzee |
$6,411.28 |
|
|
|
Monthly & ICT Allowance |
|
|
36141 |
4/11/2024 |
Cr Vinh Nguyen |
$6,411.28 |
|
|
|
Monthly & ICT Allowance |
|
|
36142 |
4/11/2024 |
Critical Fire Protection & Training Pty Ltd |
$2,777.84 |
|
|
|
Fire Equipment Testing – Gumblossom Changerooms - Building Maintenance |
|
|
|
|
Fire Panel Fault - Aquamotion |
|
|
|
|
Replace Lift Pump - Kingsway Electrical / Irrigation Control Building |
|
|
36143 |
4/11/2024 |
CS Legal |
$7,461.40 |
|
|
|
Court Fees - Rating Services |
|
|
36144 |
4/11/2024 |
Culture Counts (Australia) Pty Ltd |
$3,850.00 |
|
|
|
Subscription - Culture Counts Evaluation Platform |
|
|
36145 |
4/11/2024 |
Dale Alcock Homes Pty Ltd |
$2,000.00 |
|
|
|
Refund - Street & Verge Bond |
|
|
36146 |
4/11/2024 |
Danmar Homes Pty Ltd |
$1,853.19 |
|
|
|
Refund - Building Application - Duplicate |
|
|
36147 |
4/11/2024 |
Rates Refund |
$2,059.46 |
|
36148 |
4/11/2024 |
Daryl Jacobs |
$500.00 |
|
|
|
CCTV Rebate |
|
|
36149 |
4/11/2024 |
Data #3 Limited |
$2,299.92 |
|
|
|
Adobe Subscriptions - ICT |
|
|
|
|
Azure Plan Under The Microsoft Customer |
|
|
36150 |
4/11/2024 |
Rates Refund |
$910.84 |
|
36151 |
4/11/2024 |
David Roy Cull |
$1,466.00 |
|
|
|
Pest Control Services - Various Locations |
|
|
36152 |
4/11/2024 |
Department Of Biodiversity, Conservation And Attractions |
$2,922.00 |
|
|
|
Yanchep National Park Passes - Economic Development |
|
|
36153 |
4/11/2024 |
Department of the Premier and Cabinet |
$713.40 |
|
|
|
Gazette Advertising - District Planning Scheme |
|
|
36154 |
4/11/2024 |
Diego Nanini |
$351.15 |
|
|
|
Refund - Copies Of Plans - Overpayment |
|
|
36155 |
4/11/2024 |
DMC Cleaning |
$115,994.47 |
|
|
|
Cleaning Services - Various Locations |
|
|
36156 |
4/11/2024 |
Dodgy Bros Dodgeball Company |
$1,320.00 |
|
|
|
Community Development - Childhood And Youth Services - Contract Expenses |
|
|
36157 |
4/11/2024 |
Dowsing Group Pty Ltd |
$48,783.62 |
|
|
|
Concrete Mix - Koondoola Avenue |
|
|
|
|
Footpath Repair / Replacement - Susan Road, Cooper Street, Olivedale & Martindale - Engineering |
|
|
36158 |
4/11/2024 |
Drainflow Services Pty Ltd |
$150,631.44 |
|
|
|
Road Sweeping / Drain Cleaning Services - Various Locations |
|
|
36159 |
4/11/2024 |
Du Clene Pty Ltd |
$2,442.00 |
|
|
|
Cleaning Services - Various Locations |
|
|
36160 |
4/11/2024 |
Dylan Eastough & Lucy De Graaf |
$985.70 |
|
|
|
Vehicle Crossing Subsidy |
|
|
36161 |
4/11/2024 |
EBSCO International Incorporated |
$0.00 |
|
36162 |
4/11/2024 |
Ecoblue International |
$2,178.00 |
|
|
|
Ecoblue Bulk Adblue Per Litre - Delivery Service |
|
|
36163 |
4/11/2024 |
Ecoscape Australia Pty Ltd |
$8,079.49 |
|
|
|
Flora & Vegetation Survey, Report & IBSA Package |
|
|
36164 |
4/11/2024 |
Emily Smith |
$2,000.00 |
|
|
|
Refund - Street & Verge Bond |
|
|
36165 |
4/11/2024 |
Emineo Engineering Services |
$14,688.87 |
|
|
|
Transport Container - Assemble Beach Tower - Quinns Beach |
|
|
|
|
Variation 1 - Additional Works - October 2024 Installation |
|
|
36166 |
4/11/2024 |
Enchanted Stiltwalking |
$1,562.00 |
|
|
|
Stilt Walking Duo - Banksia Grove Fun Fest |
|
|
36167 |
4/11/2024 |
Encounter City Church |
$250.00 |
|
|
|
Bond Refund - Community Transport |
|
|
36168 |
4/11/2024 |
Environmental Industries Pty Ltd |
$51,702.96 |
|
|
|
Landscape Maintenance Services - Various Locations |
|
|
36169 |
4/11/2024 |
Equifax Australasia Workforce Solutions Pty Limited |
$53.90 |
|
|
|
Australian Criminal History Checks - Volunteer Fire Brigade |
|
|
36170 |
4/11/2024 |
Evoke Interior Design Pty Ltd |
$2,417.80 |
|
|
|
Upgrade Works -
Gumblossom Community |
|
|
36171 |
4/11/2024 |
Evolve Talent Pty Ltd |
$18,094.95 |
|
|
|
Casual Labour Services - Various Service Units |
|
|
36172 |
4/11/2024 |
Feral Invasive Species Eradication |
$1,925.00 |
|
|
|
Feral Fox Control - Yellagonga |
|
|
36173 |
4/11/2024 |
Fleet Network |
$11,541.26 |
|
|
|
Payroll Deductions |
|
|
36174 |
4/11/2024 |
Flick Anticimex Pty Ltd |
$8.65 |
|
|
|
Sanitary Disposal Unit - Splendid Park- Netball |
|
|
36175 |
4/11/2024 |
Focus Consulting WA Pty Ltd |
$1,045.00 |
|
|
|
Electrical Consulting Services - Wanneroo Sports & Social Club Remedial Works |
|
|
36176 |
4/11/2024 |
Forch Australia Pty Ltd |
$1,571.90 |
|
|
|
Safety Gloves / Brake Cleaner - Stores |
|
|
36177 |
4/11/2024 |
Foxfish Pty Ltd t/as Binley Fencing |
$511.50 |
|
|
|
Temporary Fencing - Riverlinks Park - Assets |
|
|
36178 |
4/11/2024 |
Frontline Fire & Rescue Equipment |
$1,000.00 |
|
|
|
Insurance Excess - QRFB 34 - Fire Services |
|
|
36179 |
4/11/2024 |
Fusion Applications Pty Ltd |
$14,300.00 |
|
|
|
Consulting Fees For OICS Architecture Integration |
|
|
36180 |
4/11/2024 |
Geoff's Tree Service Pty Ltd |
$90,013.41 |
|
|
|
Pruning Services - Various Locations |
|
|
36181 |
4/11/2024 |
Getty Images Pty Ltd |
$2,494.80 |
|
|
|
Istock Signature 50 - 1 Year Subscription |
|
|
36182 |
4/11/2024 |
Global Marine Enclosures Pty Ltd |
$88,522.50 |
|
|
|
Enclosure Management - Quinns Beach - Coastal Maintenance |
|
|
36183 |
4/11/2024 |
Grand Toyota |
$85,644.52 |
|
|
|
New Vehicle Purchase - 2 Toyota Rav 4 $42,822.26 Each |
|
|
36184 |
4/11/2024 |
Gray-Nicolls Sports Pty Ltd |
$719.40 |
|
|
|
Netball Supplies - Kingsway Stadium |
|
|
36185 |
4/11/2024 |
Green Options Pty Ltd |
$33,030.68 |
|
|
|
Rotary Mowing Of Active Parks |
|
|
36186 |
4/11/2024 |
Greenlite Electrical Contractors Pty Ltd |
$44,541.76 |
|
|
|
Carpark Lighting - Kingsway Sporting Complex |
|
|
36187 |
4/11/2024 |
Greenwood Party Hire |
$466.00 |
|
|
|
Stool Hire - Festival Of Speed |
|
|
36188 |
4/11/2024 |
Halpd Pty Ltd Trading As Affordable Living Homes |
$4,000.00 |
|
|
|
Refund - Street & Verge Bonds |
|
|
36189 |
4/11/2024 |
Hanson Construction Materials Pty Ltd |
$400.40 |
|
|
|
Concrete Mix - Kilborne Avenue |
|
|
36190 |
4/11/2024 |
Hays Personnel Services |
$7,198.62 |
|
|
|
Casual Labour Services - Various Service Units |
|
|
36191 |
4/11/2024 |
Heatley Sales Pty Ltd |
$4,718.25 |
|
|
|
Ratchet Straps / Buckles / Antislip Mat / Vehicle Spare Parts |
|
|
36192 |
4/11/2024 |
Hemsley Paterson |
$2,750.00 |
|
|
|
Valuation Services - Office Space Wanneroo Enterprise House |
|
|
36193 |
4/11/2024 |
Hickey Constructions Pty Ltd |
$822,000.94 |
|
|
|
Carry Out Shelter Maintenance - Various Locations |
|
|
|
|
Progress Claim 8 - Construction Heath Park Pavilion |
|
|
|
|
Replace Capping - Gazebo Steps - Ronsard Park |
|
|
|
|
Structure Maintenance - Kalbarri Park – Bridge Repairs |
|
|
|
|
Variations - Heath Park |
|
|
|
|
Storage Of Tiles - Abbeville Park |
|
|
36194 |
4/11/2024 |
Hitachi Construction Machinery Pty Ltd |
$631.67 |
|
|
|
Vehicle Spare Parts |
|
|
36195 |
4/11/2024 |
Homestart |
$2,000.00 |
|
|
|
Refund - Street & Verge Bond |
|
|
36196 |
4/11/2024 |
Houspect WA |
$1,799.60 |
|
|
|
Building Inspection - The Limelight Theatre |
|
|
36197 |
4/11/2024 |
Hydroquip Pumps & Irrigation Pty Ltd |
$29,605.91 |
|
|
|
Irrigation Pump Works - Various Locations |
|
|
36198 |
4/11/2024 |
Imagesource Digital Solutions |
$1,899.70 |
|
|
|
Discover Wanneroo Postcards & Business Cards - Economic Development |
|
|
|
|
Vinyl Banners - Event Season 2024 / 2025 |
|
|
36199 |
4/11/2024 |
Inflatable Entertainment Perth Pty Ltd T/a Perth Bubble Soccer |
$475.00 |
|
|
|
Hire Fees - Bubble Soccer - Youth Programs |
|
|
36200 |
4/11/2024 |
Integrity Industrial Pty Ltd |
$29,853.29 |
|
|
|
Casual Labour Services - Various Service Units |
|
|
36201 |
4/11/2024 |
Integrity Staffing |
$4,691.74 |
|
|
|
Casual Labour Services - Various Service Units |
|
|
36202 |
4/11/2024 |
Integro Homes Pty |
$2,000.00 |
|
|
|
Refund - Street & Verge Bond |
|
|
36203 |
4/11/2024 |
Intelife Group |
$3,099.94 |
|
|
|
Cleaning Services - Various Locations |
|
|
36204 |
4/11/2024 |
Interfire Agencies Pty Ltd |
$2,003.52 |
|
|
|
4 Rugged Extremes Stowage Kit Bags |
|
|
|
|
PPE - Fire Services |
|
|
36205 |
4/11/2024 |
J Blackwood & Son Ltd |
$541.75 |
|
|
|
Truck Wash / Jerry Cans / Sand Bags |
|
|
36206 |
4/11/2024 |
Rates Refund |
$3,761.00 |
|
36207 |
4/11/2024 |
Rates Refund |
$3,196.19 |
|
36208 |
4/11/2024 |
James Bennett Pty Ltd |
$6,193.41 |
|
|
|
Book Stock - Library Services |
|
|
36209 |
4/11/2024 |
Japanese Truck & Bus Spares Pty Ltd |
$691.90 |
|
|
|
Vehicle Spare Parts |
|
|
36210 |
4/11/2024 |
Jaypee Constructions Pty Ltd |
$2,000.00 |
|
|
|
Refund - Street & Verge Bond |
|
|
36211 |
4/11/2024 |
JCorp Pty Ltd |
$110.00 |
|
|
|
Refund - Building Application - Admin Fees |
|
|
36212 |
4/11/2024 |
Jobfit Health Group Pty Ltd |
$1,354.10 |
|
|
|
Provision Of Pre-Employment Medical Assessments |
|
|
36213 |
4/11/2024 |
Rates Refund |
$910.84 |
|
36214 |
4/11/2024 |
Jonathan Mitchell |
$192.00 |
|
|
|
Refund - Development Application - Withdrawn |
|
|
36215 |
4/11/2024 |
Joondalup Centa Pty Ltd T/A Harvey Norman AV/IT |
$2,607.00 |
|
|
|
6 Garmin Drivesmart GPS - Waste Services |
|
|
36216 |
4/11/2024 |
Jordan Lewis Dench trading as Dench Entertainment |
$580.00 |
|
|
|
DJ Services - Banksia Grove Event 26.10.2024 |
|
|
36217 |
4/11/2024 |
K2 Audiovisual Pty Ltd |
$2,090.00 |
|
|
|
Change Control Method Of Sony Bravia - Numbat Room & Westringia |
|
|
36218 |
4/11/2024 |
Karin Nobbs & Cameron Nobbs |
$2,000.00 |
|
|
|
Refund - Street & Verge Bond |
|
|
36219 |
4/11/2024 |
Kate Coorey |
$500.00 |
|
|
|
CCTV Rebate |
|
|
36220 |
4/11/2024 |
Rates Refund |
$1,216.00 |
|
36221 |
4/11/2024 |
Kerb Direct Kerbing |
$7,246.70 |
|
|
|
Semi Mountable Kerb - Shorehaven Boulevard |
|
|
36222 |
4/11/2024 |
Kerb Direct Kerbing |
$1,954.60 |
|
|
|
Kerbing Works - Potoroo Street |
|
|
36223 |
4/11/2024 |
Kids Just Wanna Have Fun Amusement Hire |
$1,450.00 |
|
|
|
Equipment Hire - Banksia Grove Fun Fest |
|
|
36224 |
4/11/2024 |
Kleenit |
$6,358.85 |
|
|
|
Graffiti Removal / High Pressure Cleaning - Various Locations |
|
|
36225 |
4/11/2024 |
Komatsu Australia Pty Ltd |
$201.96 |
|
|
|
Vehicle Spare Parts |
|
|
36226 |
4/11/2024 |
La Vida Australia Pty Ltd |
$2,000.00 |
|
|
|
Refund - Street & Verge Bond |
|
|
36227 |
4/11/2024 |
Landcare Weed Control |
$29,403.65 |
|
|
|
Landscape Maintenance Services - Various Locations |
|
|
36228 |
4/11/2024 |
Laszlo Heredi |
$2,000.00 |
|
|
|
Refund - Street & Verge Bond |
|
|
36229 |
4/11/2024 |
Rates Refund |
$856.44 |
|
36230 |
4/11/2024 |
LGISWA |
$1,005.17 |
|
|
|
Insurance - Local Government Special Risks - 30.06.2023 - 30.06.2024 - Pro Rata Contribution |
|
|
|
|
MRRP Currently Applicable To Claim - Compliance |
|
|
36231 |
4/11/2024 |
Linemarking WA Pty Ltd |
$2,796.74 |
|
|
|
Linemarking - Highclere Boulevard & Ariti Road - Assets |
|
|
36232 |
4/11/2024 |
Little People Play |
$2,200.00 |
|
|
|
Toddle Zone Soft Play - Banksia Grove Fun Festival & Ridgewood Evening In The Park |
|
|
36233 |
4/11/2024 |
Living Turf |
$12,182.50 |
|
|
|
Fertiliser - Parks |
|
|
36234 |
4/11/2024 |
Local Government Professionals Australia WA |
$142.50 |
|
|
|
Membership - 2024 / 2025 - 1 Employee |
|
|
36235 |
4/11/2024 |
M Power Health & Wellness |
$150.00 |
|
|
|
Sound Meditation - Kingsway Stadium |
|
|
36236 |
4/11/2024 |
Major Motors |
$1,268.21 |
|
|
|
Vehicle Repairs |
|
|
36237 |
4/11/2024 |
Makin Dust Plant Hire |
$3,203.20 |
|
|
|
Equipment Hire - Mather Avenue – Limestone Track |
|
|
36238 |
4/11/2024 |
Rates Refund |
$2,030.00 |
|
36239 |
4/11/2024 |
Mastec Australia Pty Ltd |
$3,665.64 |
|
|
|
480 240 Litre Red Bin Lids - Waste Services |
|
|
36240 |
4/11/2024 |
Maxxia Pty Ltd |
$9,014.06 |
|
|
|
Payroll Deductions |
|
|
36241 |
4/11/2024 |
Mayor Linda Aitken |
$16,114.62 |
|
|
|
Monthly & ICT Allowance |
|
|
36242 |
4/11/2024 |
McIntosh & Son |
$349.26 |
|
|
|
Skid Steer Loader Service - Fleet |
|
|
36243 |
4/11/2024 |
McKenzie Group Consulting (Compliance) Pty Ltd |
$1,232.00 |
|
|
|
Phase 2 Certificate Of Construction Compliance - Kingsway Little Athletics Kiosk |
|
|
36244 |
4/11/2024 |
McLeods Lawyers Pty Ltd |
$186.12 |
|
|
|
Legal Fees For The City |
|
|
36245 |
4/11/2024 |
Meta Maya Environmental Pty Ltd |
$127,264.50 |
|
|
|
ACM Remediation - Quinns Rocks Caravan Park |
|
|
36246 |
4/11/2024 |
Rates Refund |
$925.97 |
|
36247 |
4/11/2024 |
Michael Page International (Australia)Pty Ltd |
$4,128.32 |
|
|
|
Casual Labour Services |
|
|
36248 |
4/11/2024 |
Micktric Events |
$280.50 |
|
|
|
Form 5 Sign Off - Banksia Grove Fun Fest – Events |
|
|
36249 |
4/11/2024 |
Mindarie Regional Council |
$231,586.61 |
|
|
|
Refuse Disposal Charges |
|
|
36250 |
4/11/2024 |
MME Underground Services Pty Ltd |
$9,396.90 |
|
|
|
Location Of Services - Various Locations |
|
|
|
|
Water Test Pits – Ashley Road |
|
|
36251 |
4/11/2024 |
Modern Teaching Aids Pty Ltd |
$55.85 |
|
|
|
Teachables Large Pin Board Material |
|
|
36252 |
4/11/2024 |
Mor Construction Pty Ltd |
$908.22 |
|
|
|
Refund - Building Application - Rejected |
|
|
36253 |
4/11/2024 |
MSC Safe Company |
$180.00 |
|
|
|
Service Call - Repair Lock On Safe – Clarkson Library |
|
|
36254 |
4/11/2024 |
Nastech (WA) Pty Ltd |
$770.00 |
|
|
|
Site Inspection And Confirmation Of Easement For DPLH |
|
|
36255 |
4/11/2024 |
National Museum of Australia |
$13,167.00 |
|
|
|
Final Instalment - Walking Through A Songline - Hire Fee |
|
|
36256 |
4/11/2024 |
Natural Area Consulting Management Services |
$1,732.50 |
|
|
|
Inspection & Report - Black Cockatoo Artificial Hollow Usage - Assets |
|
|
36257 |
4/11/2024 |
Rates Refund |
$1,834.33 |
|
36258 |
4/11/2024 |
Noma Pty Ltd |
$660.00 |
|
|
|
Design Review Panel Meeting Attendance |
|
|
36259 |
4/11/2024 |
Noongar Boodjar Language Cultural Aboriginal Corporation |
$462.00 |
|
|
|
Dordaak Kepup Room Naming Noongar Boodjar Language Centre Report |
|
|
36260 |
4/11/2024 |
Nordic Sport Australia Pty Ltd |
$1,523.00 |
|
|
|
Discus Circuit, Shot Put Circuit - Halesworth Park |
|
|
36261 |
4/11/2024 |
Northern Perth Mobile Vet |
$243.00 |
|
|
|
Animal Euthanasia Services |
|
|
36262 |
4/11/2024 |
Office Cleaning Experts |
$50,821.73 |
|
|
|
Cleaning Services - Various Locations |
|
|
36263 |
4/11/2024 |
On Tap Services |
$35,856.06 |
|
|
|
Plumbing Maintenance Services - Various Locations |
|
|
36264 |
4/11/2024 |
Orixon Pty Ltd |
$36,654.00 |
|
|
|
Progress Claim 7 - Construction Of New Kiosk And Storage - Kingsway Little Athletics |
|
|
36265 |
4/11/2024 |
Owen Consulting Quantity Surveyors & Construction Consultants |
$1,650.00 |
|
|
|
Quantity Surveying Services - Kingsway Football Club - Accessibility Upgrade |
|
|
36266 |
4/11/2024 |
Owners of 18 Dundebar Rd SP21521 |
$2,970.00 |
|
|
|
Lease Fees - Monthly Carpark Bays - Property Services |
|
|
36267 |
4/11/2024 |
Paperbark Technologies Pty Ltd |
$6,984.58 |
|
|
|
Soil And Tissue Testing / Arboricultural Advice Report / Quantified Tree Risk Assessment - Various Locations |
|
|
36268 |
4/11/2024 |
Rates Refund |
$2,506.46 |
|
36269 |
4/11/2024 |
Paywise Pty Ltd |
$4,874.10 |
|
|
|
Input Tax Credits - Salary Packaging - September 2024 |
|
|
|
|
Payroll Deductions |
|
|
36270 |
4/11/2024 |
Rates Refund |
$467.41 |
|
36271 |
4/11/2024 |
Perth Materials Blowing Pty Ltd |
$16,016.00 |
|
|
|
Blower Truck - Installation Of Mulch On Garden Beds - Seeadler Park |
|
|
36272 |
4/11/2024 |
Perth Playground And Rubber |
$1,391.50 |
|
|
|
Repair Softfall - 2 Locations |
|
|
36273 |
4/11/2024 |
Perth Traffic Training, Perth Traffic Auditing and Consulting |
$2,082.00 |
|
|
|
Traffic Management Services |
|
|
36274 |
4/11/2024 |
POP! Floral Studio |
$340.00 |
|
|
|
Arrangement - S Christiansen 90th Birthday - Mayors Office |
|
|
|
|
Large Arrangement - Mr I Duivebode - Mayors Office |
|
|
|
|
Large Floral Box Arrangement - 60th Wedding Anniversary - C & C Raynor - Office Of The Mayor |
|
|
36275 |
4/11/2024 |
Porter Consulting Engineers |
$20,344.50 |
|
|
|
Detailed Design Of Lenore Road Duplication - Kemp Street To Elliott Road |
|
|
36276 |
4/11/2024 |
Premier Workplace Solutions |
$358.60 |
|
|
|
Brush Scrape Mat - Kingsway |
|
|
36277 |
4/11/2024 |
Prestige Alarms |
$4,289.78 |
|
|
|
Alarm / CCTV Services - Various Locations |
|
|
36278 |
4/11/2024 |
Prime West Constructions Pty Ltd |
$2,000.00 |
|
|
|
Refund - Street & Verge Bond |
|
|
36279 |
4/11/2024 |
Printstuf |
$249.70 |
|
|
|
Printing - Brochure - Kingsway |
|
|
36280 |
4/11/2024 |
Professional Arts Management |
$951.50 |
|
|
|
Black Foam Blocks - Wooden Carpet Anti-Slip Block |
|
|
36281 |
4/11/2024 |
Pront Tow Towing / Wanneroo Towing Service |
$522.50 |
|
|
|
Towing Services - Abandoned Vehicles |
|
|
36282 |
4/11/2024 |
Public Sector Training Solutions Pty Ltd |
$2,400.00 |
|
|
|
Training - Certificate IV In Government Investigations - 1 Attendee - Waste Services |
|
|
36283 |
4/11/2024 |
Quik Corp Pty Ltd |
$242.00 |
|
|
|
Danger Stickers - Fleet |
|
|
36284 |
4/11/2024 |
Quinns Rock Bush Fire Brigade |
$1,200.00 |
|
|
|
Reimbursement - Operational Expenses |
|
|
36285 |
4/11/2024 |
Quinns Rock Bush Fire Brigade |
$4,000.00 |
|
|
|
Annual Contribution For The Ouinns Rocks Bush Fire Brigade 2024 / 2025 |
|
|
36286 |
4/11/2024 |
Rates Refund |
$564.69 |
|
36287 |
4/11/2024 |
Reliable Fencing WA Pty Ltd |
$13,280.36 |
|
|
|
Fencing Repairs / Install Gates & Bollards - Various Locations |
|
|
36288 |
4/11/2024 |
Residential Building WA Pty Ltd |
$2,000.00 |
|
|
|
Refund - Street & Verge Bond |
|
|
36289 |
4/11/2024 |
Returned & Services League Yanchep-Two Rocks Sub-branch |
$1,850.00 |
|
|
|
Community Funding Program - Flagship Fund - Support Delivery Of The 2024 / 2025 Commemorative Events |
|
|
36290 |
4/11/2024 |
Ricky Adams |
$750.00 |
|
|
|
Caricaturist - Banksia Grove Fun Festival 26.10.2024 |
|
|
36291 |
4/11/2024 |
Roads 2000 |
$243.88 |
|
|
|
Asphalt Supplies - Asset Maintenance |
|
|
36292 |
4/11/2024 |
Robert Edmond and Christine Edmond |
$2,000.00 |
|
|
|
Refund - Street & Verge Bond |
|
|
36293 |
4/11/2024 |
Robert Walters Pty Ltd |
$16,040.85 |
|
|
|
Casual Labour Services |
|
|
36294 |
4/11/2024 |
Roy Gripske & Sons Pty Ltd |
$1,614.47 |
|
|
|
Vehicle Spare Parts |
|
|
36295 |
4/11/2024 |
Rubek Automatic Doors |
$369.05 |
|
|
|
Repair Accessible Washroom Door - Edgar Griffiths Park Toilets |
|
|
36296 |
4/11/2024 |
Rural Building Company Pty Ltd |
$2,000.00 |
|
|
|
Refund - Street & Verge Bond |
|
|
36297 |
4/11/2024 |
Safety World |
$4,181.10 |
|
|
|
2 Drum Spill Control Pallet & Spill Cover / Frame - Waste Services |
|
|
|
|
Safety Boots - Waste Employee |
|
|
|
|
Sqwincher Qwik Stiks Lite - Parks |
|
|
36298 |
4/11/2024 |
Sanax Medical And First Aid Supplies |
$1,004.19 |
|
|
|
Wet Wipes / Hand Sanitiser - Stores |
|
|
36299 |
4/11/2024 |
Sanpoint Pty Ltd ATF the Fiore Family Trust |
$153,159.09 |
|
|
|
Landscape Maintenance Services - Various Locations |
|
|
36300 |
4/11/2024 |
Scott Print |
$2,099.90 |
|
|
|
Printing - Ranger Books |
|
|
36301 |
4/11/2024 |
Seabreeze Landscape Supplies |
$19.00 |
|
|
|
Scoop Brickie Sand - Parks |
|
|
36302 |
4/11/2024 |
Shaun Evans |
$147.00 |
|
|
|
Refund - Development Application - Withdrawn |
|
|
36303 |
4/11/2024 |
Shelter WA Inc |
$401.50 |
|
|
|
Associate Membership LGA - 2024 / 2025 - Community Development |
|
|
36304 |
4/11/2024 |
Shipstone Building Services Pty Ltd |
$10,857.00 |
|
|
|
Relocate Demountable Buildings - Assets |
|
|
36305 |
4/11/2024 |
SJ McKee Maintenance Pty Ltd |
$1,101.00 |
|
|
|
Repair Works - Various Locations - Waste |
|
|
36306 |
4/11/2024 |
Smartsalary |
$3,034.15 |
|
|
|
Input Tax Credits - Salary Packaging - September 2024 |
|
|
|
|
Payroll Deductions |
|
|
36307 |
4/11/2024 |
SOLO Resource Recovery |
$170,396.96 |
|
|
|
Green Waste Bin Collection - Fortnightly Collection |
|
|
36308 |
4/11/2024 |
Sphere Architects |
$9,570.00 |
|
|
|
Montrose Park - Upgrades To Cleaners Room And Storage Cages |
|
|
36309 |
4/11/2024 |
St John Ambulance Western Australia Ltd |
$1,740.00 |
|
|
|
Servicing Of First Aid Kits And Defibrillators |
|
|
36310 |
4/11/2024 |
Stacey Ann Newton-Pickles |
$471.27 |
|
|
|
CCTV Rebate |
|
|
36311 |
4/11/2024 |
Steven Bold |
$500.00 |
|
|
|
CCTV Rebate |
|
|
36312 |
4/11/2024 |
Stihl Shop Osborne Park |
$2,219.00 |
|
|
|
2 Guide Bar 3/8 / Edger Blades - Stores |
|
|
36313 |
4/11/2024 |
Superior Nominees Pty Ltd |
$9,591.43 |
|
|
|
Playground Equipment Repairs - Various Locations |
|
|
36314 |
4/11/2024 |
Susan Hoy |
$1,200.00 |
|
|
|
Acquisition Of A Gouache Artwork By Local Artist For The City's Art Collection |
|
|
36315 |
4/11/2024 |
Susan Joan King |
$900.00 |
|
|
|
Animal Farm - Emergency Preparedness Community Event |
|
|
36316 |
4/11/2024 |
Sydney Tools Pty Ltd |
$109.90 |
|
|
|
Sqwincher Qwik Stiks Lite - Parks |
|
|
36317 |
4/11/2024 |
Synergy |
$48,894.60 |
|
|
|
Power Supply Charges - Various Locations |
|
|
36318 |
4/11/2024 |
Team Global Express Pty Ltd |
$858.60 |
|
|
|
Courier Services |
|
|
36319 |
4/11/2024 |
Technologically Speaking |
$720.00 |
|
|
|
Technology Education Workshops - Get Online Week - Wanneroo And Clarkson Library |
|
|
36320 |
4/11/2024 |
Telstra Limited |
$1,453.45 |
|
|
|
Girrawheen Hub Ethernet Service |
|
|
|
|
Integrated Messaging Charges |
|
|
36321 |
4/11/2024 |
Thanh Tuyen Le & Tuan Anh Nguyen |
$985.70 |
|
|
|
Vehicle Crossing Subsidy |
|
|
36322 |
4/11/2024 |
The Distributors Perth |
$657.70 |
|
|
|
Confectionery - Kingsway |
|
|
36323 |
4/11/2024 |
The Factory Aust. Pty Ltd |
$2,172.50 |
|
|
|
Installation, Dismantling & Storage of Christmas Decorations |
|
|
36324 |
4/11/2024 |
The Local Government, Racing and Cemeteries Employees Union (WA) |
$1,100.00 |
|
|
|
Payroll Deductions |
|
|
36325 |
4/11/2024 |
The Pavilion at Mindarie |
$22,000.00 |
|
|
|
Sponsorship - Mindarie Festival |
|
|
|
|
Sponsorship - New Year's Eve |
|
|
36326 |
4/11/2024 |
The Royal Life Saving Society Australia |
$7,775.53 |
|
|
|
Lifeguard
Requalification - 1 Employee - |
|
|
|
|
Water Feature Monthly Services - Kingsway / Revolution Park |
|
|
36327 |
4/11/2024 |
The Trustee for BARRA CIVIL AND FENCING Trust |
$336.60 |
|
|
|
Repair Fence - Wanneroo Showgrounds |
|
|
36328 |
4/11/2024 |
The Trustee for New Dealership Trust |
$1,375.25 |
|
|
|
Vehicle Spare Parts |
|
|
36329 |
4/11/2024 |
Thyssen Elevator Australia Pty Ltd |
$649.00 |
|
|
|
Quinns Mindarie Community Centre |
|
|
36330 |
4/11/2024 |
Time's Up Escape Rooms |
$1,529.00 |
|
|
|
Charlie Chocolate Factory Escape Room - Wanneroo Library |
|
|
|
|
Pirate Pop Up Game Installation And Hire - Clarkson Library |
|
|
36331 |
4/11/2024 |
Toro Australia Group Sales Pty Ltd |
$1,251.29 |
|
|
|
Mower Spare Parts |
|
|
36332 |
4/11/2024 |
TRDW Council Approvals |
$110.00 |
|
|
|
Refund - Building Application – Amendment Submitted |
|
|
36333 |
4/11/2024 |
Triton Electrical Contractors Pty Ltd |
$16,922.09 |
|
|
|
Irrigation Electrical Works - Various Locations |
|
|
36334 |
4/11/2024 |
Trophy Shop Australia |
$850.31 |
|
|
|
115 Medals - 2024 School Leadership Program - Achievement Award |
|
|
|
|
Name Badges - Various Employees |
|
|
36335 |
4/11/2024 |
Truck Centre WA Pty Ltd |
$4,111.70 |
|
|
|
Vehicle Repairs - Fleet |
|
|
36336 |
4/11/2024 |
Two Rocks SES Unit |
$4,572.70 |
|
|
|
LGGS Operating Grant – Quarter 1 2024 / 2025 Operating Grant Payment To Two Rocks SES Unit |
|
|
36337 |
4/11/2024 |
Ventura Home Group Pty Ltd |
$6,000.00 |
|
|
|
Refund - Street & Verge Bonds |
|
|
36338 |
4/11/2024 |
Veolia Recycling & Recovery Pty Ltd |
$100,604.00 |
|
|
|
Bulk Hard Waste Tip Off Fees - Waste Services |
|
|
36339 |
4/11/2024 |
Vergola WA |
$110.00 |
|
|
|
Refund - Building Application - Overdue |
|
|
36340 |
4/11/2024 |
Veris |
$73.28 |
|
|
|
Refund - Building Application - No Payment Required |
|
|
36341 |
4/11/2024 |
Vivienne Hansen |
$600.00 |
|
|
|
Consultation 2024 - Dordaak Kepup Room Naming |
|
|
36342 |
4/11/2024 |
WA Library Supplies |
$69.00 |
|
|
|
12 Aboriginal Flag Vinyl Gloss Stickers – Cultural Development |
|
|
36343 |
4/11/2024 |
WA Limestone Contracting Pty Ltd |
$990.00 |
|
|
|
Registration - Civil Contractors Federation Awards - Coastal Maintenance |
|
|
36344 |
4/11/2024 |
WA Temporary Fencing Supplies |
$2,046.00 |
|
|
|
Temp Fence Panels - Engineering |
|
|
36345 |
4/11/2024 |
Wanneroo Central Bushfire Brigade |
$2,350.00 |
|
|
|
Reimbursement - Operational Costs |
|
|
36346 |
4/11/2024 |
Wanneroo Electric |
$54,729.71 |
|
|
|
Electrical Maintenance Services – Various Locations |
|
|
36347 |
4/11/2024 |
Wanneroo Joondalup Regional Broadcasting Assn Inc |
$11,000.00 |
|
|
|
Sponsorship 01.07.2024 - 30.06.2025 |
|
|
36348 |
4/11/2024 |
Wanneroo Patios |
$147.00 |
|
|
|
Refund - Development Application - Withdrawn |
|
|
36349 |
4/11/2024 |
Wanneroo RSL Sub Branch |
$1,850.00 |
|
|
|
Community Funding Program – Flagship Funding - Support The Delivery Of 2024 / 2025 Community Remembrance Services |
|
|
36350 |
4/11/2024 |
Wanneroo Smash Repairs Pty Ltd |
$1,000.00 |
|
|
|
Vehicle Excess - WN 34388 |
|
|
36351 |
4/11/2024 |
West Coast Turf |
$53,206.63 |
|
|
|
Turfing Works - Various Locations |
|
|
36352 |
4/11/2024 |
West to West Indigenous Corporation Pty Ltd |
$49,986.47 |
|
|
|
Electrical Upgrades - Gumblossom |
|
|
36353 |
4/11/2024 |
Western Australian Local Government Association |
$11,045.50 |
|
|
|
Training - Introduction To Managing Business Records In Local Government - 1 Attendee |
|
|
|
|
Registration- WALGA Urban Forest Conference 2025 - 6 Attendees |
|
|
|
|
Training - Short Course Bookings - M Moore |
|
|
|
|
Training - Local Government Act 1995 - Essentials - 1 Attendee |
|
|
|
|
Training - Effective Supervision - 6 Attendees |
|
|
|
|
Training - Report Writing For Informed Decision Making - 1 Attendee |
|
|
36354 |
4/11/2024 |
Western Irrigation Pty Ltd |
$15,864.69 |
|
|
|
Irrigation Items - Parks |
|
|
36355 |
4/11/2024 |
Western Power |
$1,056,177.85 |
|
|
|
Installation Of Street Lights - Two Rocks Road - Assets |
|
|
36356 |
4/11/2024 |
WFS Australia Pty Limited |
$217.25 |
|
|
|
Draw Down Service For EmpLive Licenses |
|
|
36357 |
4/11/2024 |
Wirtgen Australia |
$124.83 |
|
|
|
Vehicle Spare Parts |
|
|
36358 |
4/11/2024 |
Work Clobber |
$3,346.75 |
|
|
|
PPE Issue - Various Employees |
|
|
36359 |
4/11/2024 |
Worldwide Joondalup Malaga |
$140.00 |
|
|
|
Printing - Cannister Labels |
|
|
36360 |
4/11/2024 |
Wurth Australia Pty Ltd |
$1,041.65 |
|
|
|
Vehicle Spare Parts - Fleet |
|
|
36361 |
7/11/2024 |
Chrysalis Quantity Surveying Pty Ltd |
$7,042.20 |
|
|
|
Quantity Surveying - Alkimos Aquatic & Recreation Centre - Assets |
|
|
36362 |
7/11/2024 |
Rates Refund |
$695.82 |
|
36363 |
7/11/2024 |
Playmaster Pty Ltd |
$17,687.55 |
|
|
|
Refund - Playground Renewal Program 2021 / 2022 |
|
|
36373 |
11/11/2024 |
Ms C Lim |
$40.00 |
|
|
|
Reimbursement - Coffee - SFBP - Planning Development Day |
|
|
36374 |
11/11/2024 |
Cancelled |
|
|
36375 |
11/11/2024 |
Mr M Trusso |
$32.98 |
|
|
|
Reimbursement - Cleaning Supplies |
|
|
36376 |
11/11/2024 |
Mr M Dickson |
$24.00 |
|
|
|
M Dickson - Hospitality - Meeting With Councillor |
|
|
36377 |
11/11/2024 |
Mr N Stawarz |
$266.39 |
|
|
|
Reimbursement - Fuel Cost |
|
|
36378 |
11/11/2024 |
Mr P Greer |
$27.00 |
|
|
|
Reimbursement - Parking Fees |
|
|
36379 |
14/11/2024 |
Rates Refund |
$300.00 |
|
36380 |
14/11/2024 |
Rates Refund |
$388.54 |
|
36381 |
14/11/2024 |
Reliable Fencing WA Pty Ltd |
$5,867.38 |
|
|
|
Install Baseball Backnet - South Oval Halesworth Park |
|
|
|
|
Repair Fencing - Portofino's |
|
|
36382 |
14/11/2024 |
Renee Day |
$500.00 |
|
|
|
CCTV Rebate |
|
|
36383 |
14/11/2024 |
Roy Gripske & Sons Pty Ltd |
$1,026.26 |
|
|
|
Small Plant Spare Parts |
|
|
36384 |
14/11/2024 |
Shipstone Building Services Pty Ltd |
$6,567.00 |
|
|
|
Concrete Circles For LAC Infrastructure - Halesworth Park |
|
|
36385 |
14/11/2024 |
Craneswest (WA) Pty Ltd |
$239,412.75 |
|
|
|
For Work Completed By Western Go Organics |
|
|
36386 |
14/11/2024 |
Craneswest (WA) Pty Ltd |
$12,652.82 |
|
|
|
Removal Of Green Waste - Motivation Drive Site |
|
|
36387 |
11/11/2024 |
3Logix Pty Ltd |
$3,274.70 |
|
|
|
Waste Truck Access, System Integration APIS, SMS Self Service Portal - Waste Services |
|
|
36388 |
11/11/2024 |
4x4 Extras |
$781.00 |
|
|
|
Stepboards - Install Side Steps |
|
|
36389 |
11/11/2024 |
7 to 1 Photography |
$891.00 |
|
|
|
Photography - Banksia Grove Fun Fest - Events |
|
|
36390 |
11/11/2024 |
A.D. Engineering International Pty Ltd |
$2,112.00 |
|
|
|
Subscription - Annual WAN Service |
|
|
36391 |
11/11/2024 |
AAAC Towing |
$8,921.00 |
|
|
|
Abandoned Vehicle Management Services |
|
|
36392 |
11/11/2024 |
AARCO Environmental Solutions Pty Ltd |
$2,695.00 |
|
|
|
ACM Sub Contract Works - Badgerup Reserve |
|
|
36393 |
11/11/2024 |
ABN Residential WA Pty Ltd |
$10,000.00 |
|
|
|
Refund - Street & Verge Bonds |
|
|
36394 |
11/11/2024 |
ABN Residential WA Pty Ltd |
$5,161.80 |
|
|
|
Refund - Street & Verge Bonds |
|
|
36395 |
11/11/2024 |
Acclaimed Catering |
$1,386.00 |
|
|
|
Catering - Council Forum 29.10.2024 |
|
|
36396 |
11/11/2024 |
Action Glass & Aluminium |
$236.50 |
|
|
|
Reglazed Broken Door Panel – Hainsworth Leisure Centre |
|
|
36397 |
11/11/2024 |
Advanced Lock & Key |
$4,400.00 |
|
|
|
Padlocks - Stores |
|
|
36398 |
11/11/2024 |
AE Hoskins Building Services |
$4,994.00 |
|
|
|
Roof Works - Quinns Rocks Bowls Club |
|
|
36399 |
11/11/2024 |
AFGRI Equipment Australia Pty Ltd |
$1,949.60 |
|
|
|
Vehicle Spare Parts |
|
|
36400 |
11/11/2024 |
AHA! Consulting |
$8,144.40 |
|
|
|
Youth Engagement 30% Project Commencement Fee |
|
|
36401 |
11/11/2024 |
Alinta Gas |
$13,133.97 |
|
|
|
Gas Supply Charges - Various Locations |
|
|
36402 |
11/11/2024 |
Allworks (WA) Pty Ltd |
$1,799.60 |
|
|
|
Equipment Hire - Excavator - Parks |
|
|
36403 |
11/11/2024 |
Alphazeta |
$3,520.00 |
|
|
|
Sewage Upgrade - Wanneroo Showground |
|
|
36404 |
11/11/2024 |
AME System Pty Ltd |
$2,411.64 |
|
|
|
Desk Spare Parts - Building Maintenance |
|
|
36405 |
11/11/2024 |
AP Aluminium |
$3,977.60 |
|
|
|
Supply / Installation Of New Acoustic Louvre - Carramar Community Centre |
|
|
36406 |
11/11/2024 |
Armaguard |
$586.12 |
|
|
|
Cash Collection Services |
|
|
36407 |
11/11/2024 |
Ascon Survey and Drafting |
$2,364.92 |
|
|
|
Drainage And Road Widening Surveying - Landsdale Road, Landsdale |
|
|
|
|
Survey & Drafting - Aspec - Two Rocks Road |
|
|
36408 |
11/11/2024 |
Aussie Natural Spring Water |
$59.75 |
|
|
|
Bottled Water - Place Management |
|
|
36409 |
11/11/2024 |
Australian Airconditioning Services Pty Ltd |
$18,700.79 |
|
|
|
Air Conditioning Maintenance Services – Various Locations |
|
|
|
|
Provision Of Periodic Scheduled Maintenance - Various Sites |
|
|
36410 |
11/11/2024 |
Australian Laboratory Services Pty Ltd |
$1,381.75 |
|
|
|
4 Sampling Occasions Including Additional Analyses - Wangara Sump |
|
|
36411 |
11/11/2024 |
Auto Control Systems |
$6,048.75 |
|
|
|
Vehicle Repairs |
|
|
36412 |
11/11/2024 |
Autosmart North Metro Perth |
$851.40 |
|
|
|
Floor Cleanse - Stores |
|
|
36413 |
11/11/2024 |
Aveling Homes Pty Ltd |
$2,000.00 |
|
|
|
Refund - Street & Verge Bond |
|
|
36414 |
11/11/2024 |
Bee Advice |
$400.00 |
|
|
|
Consultation - Advice On Bee Problem In Boxes - Ashby Operations Centre |
|
|
|
|
Treat Beehives - Voyager Park |
|
|
36415 |
11/11/2024 |
Benara Nurseries, Quito Pty Ltd |
$10,516.90 |
|
|
|
Plant Supply - Parks |
|
|
36416 |
11/11/2024 |
BGC Residential Pty Ltd |
$10,625.00 |
|
|
|
Refund - Street & Verge Bonds |
|
|
36417 |
11/11/2024 |
Bing Technologies Pty Ltd |
$3,749.96 |
|
|
|
Postage Charges For The City - 01 - 14.10.2024 |
|
|
36418 |
11/11/2024 |
Binocentral |
$2,499.00 |
|
|
|
Hikmicro Falcon FH25 Thermal Camera – Trees & Conservation |
|
|
36419 |
11/11/2024 |
Blueprint Homes (WA) Pty Ltd |
$2,000.00 |
|
|
|
Refund - Street & Verge Bond |
|
|
36420 |
11/11/2024 |
BMT Commercial Australia Pty Ltd |
$2,618.00 |
|
|
|
Professional Services - Offshore Sand Source Dredge |
|
|
36421 |
11/11/2024 |
BP Australia Ltd |
$57,513.11 |
|
|
|
Fuel Issues |
|
|
36422 |
11/11/2024 |
Bridgestone Australia Limited |
$1,453.79 |
|
|
|
Tyre Fitting Services |
|
|
36423 |
11/11/2024 |
Bridgestone Australia Limited |
$24,774.61 |
|
|
|
Tyre Fitting Services |
|
|
36424 |
11/11/2024 |
BrightMark Group Pty Ltd |
$40,299.35 |
|
|
|
Cleaning Services - Various Locations |
|
|
36425 |
11/11/2024 |
Rates Refund |
$693.83 |
|
36426 |
11/11/2024 |
Brownes Foods Operations Pty Limited |
$101.10 |
|
|
|
Milk Deliveries For The City |
|
|
36427 |
11/11/2024 |
Bucher Municipal Pty Ltd |
$10,106.29 |
|
|
|
Vehicle Spare Parts / Repairs |
|
|
36428 |
11/11/2024 |
Canford Hospitality Consultants |
$2,749.00 |
|
|
|
Consultancy Services - Aquamotion Building (Cafe Tenancy) |
|
|
36429 |
11/11/2024 |
Car Care Motor Company Pty Ltd |
$2,968.13 |
|
|
|
Vehicle Services / Repairs |
|
|
36430 |
11/11/2024 |
Carnival Amusements |
$700.00 |
|
|
|
Sideshow Games - The Banksia Grove Fun Fest |
|
|
36431 |
11/11/2024 |
Carramar Resources Industries |
$3,727.59 |
|
|
|
Yellow Fill Sand - James Spiers Park |
|
|
36432 |
11/11/2024 |
Carvalho Design Solutions Pty Ltd |
$6,380.00 |
|
|
|
Design Changes - Kingsway Regional Sporting Complex |
|
|
36433 |
11/11/2024 |
Rates Refund |
$704.67 |
|
36434 |
11/11/2024 |
Cat Welfare Society Incorporated |
$5,384.50 |
|
|
|
Daily Impound Fees - Rangers |
|
|
36435 |
11/11/2024 |
CDM Australia Pty Ltd |
$17,674.80 |
|
|
|
Exclaimer Management Cloud For Office 365 |
|
|
36436 |
11/11/2024 |
Certex Lifting Pty Ltd |
$2,141.70 |
|
|
|
Lifting Gear Inspection - October 2024 |
|
|
36437 |
11/11/2024 |
Christine Farrell |
$60.00 |
|
|
|
Materials - Pastel Workshop |
|
|
36438 |
11/11/2024 |
Rates Refund |
$693.83 |
|
36439 |
11/11/2024 |
Christopher Hoyle |
$2,000.00 |
|
|
|
Refund - Street & Verge Bond |
|
|
36440 |
11/11/2024 |
CK Maloney Surveying Pty Ltd |
$4,429.70 |
|
|
|
Provision Of Digital Ground Survey And Quality Class B Utility Survey - Marmion Avenue North Of Santorini Promenade Alkimos |
|
|
36441 |
11/11/2024 |
Clayton Utz |
$19,239.00 |
|
|
|
Legal Fees For The City |
|
|
36442 |
11/11/2024 |
Cleanaway Operations Pty Ltd |
$6,501.00 |
|
|
|
Removal & Disposal Of Waste Liquid – Fleet Workshop |
|
|
36443 |
11/11/2024 |
Coates Hire Operations Pty Limited |
$1,782.28 |
|
|
|
Equipment Hire - Portable Toilet / Lunchroom & Transport Charge - James Spiers Park |
|
|
36444 |
11/11/2024 |
Coca Cola Amatil Pty Ltd |
$953.12 |
|
|
|
Beverages - Kingsway Indoor Stadium |
|
|
36445 |
11/11/2024 |
Commercial Aquatics Australia |
$6,268.90 |
|
|
|
Monthly Service - October 2024 - Aquamotion |
|
|
36446 |
11/11/2024 |
Community Greenwaste Recycling Pty Ltd |
$4,020.50 |
|
|
|
Tipping Of Spoils - James Spiers Park, |
|
|
36447 |
11/11/2024 |
Complete Office Supplies Pty Ltd |
$787.01 |
|
|
|
Stationery Purchases - Various Service Units |
|
|
36448 |
11/11/2024 |
Complete Office Supplies Pty Ltd |
$212.69 |
|
|
|
Stationery Purchases - Various Service Units |
|
|
36449 |
11/11/2024 |
Conplant Pty Ltd |
$5,581.68 |
|
|
|
Hire Fees - Tandem Vibrating Smoothdrum Roller - 30.09.2024 - 11.10.2024 |
|
|
|
|
Hire Fees - Smoothdrum Oscillating Single Drum Roller - James Spiers Park |
|
|
36450 |
11/11/2024 |
Contra-Flow Pty Ltd |
$23,999.70 |
|
|
|
Traffic Control Services - Various Locations |
|
|
36451 |
11/11/2024 |
Corsign (WA) Pty Ltd |
$229.90 |
|
|
|
Sign - Mowing In Progress |
|
|
36452 |
11/11/2024 |
Critical Fire Protection & Training Pty Ltd |
$256.03 |
|
|
|
Fire Protection Equipment Works – Various Locations |
|
|
36453 |
11/11/2024 |
Cromag Pty Ltd T/a Sigma Telford Group |
$1,890.90 |
|
|
|
Pool Chemicals & Photometer Tabs - Aquamotion |
|
|
36454 |
11/11/2024 |
CS Legal |
$13,247.13 |
|
|
|
Court Fees - Rating Services |
|
|
36455 |
11/11/2024 |
CTI Couriers |
$1,166.55 |
|
|
|
Courier Services |
|
|
36456 |
11/11/2024 |
CW Brands Pty Ltd |
$726.66 |
|
|
|
Marker Paint / Spray Paint / Inox |
|
|
36457 |
11/11/2024 |
Daimler Trucks Perth |
$91.29 |
|
|
|
Vehicle Spare Parts |
|
|
36458 |
11/11/2024 |
Daniel Gros |
$84.00 |
|
|
|
Refund - Key Bond Refund - Re - Issue Of Stale Cheque 122907 |
|
|
36459 |
11/11/2024 |
Rates Refund |
$429.69 |
|
36460 |
11/11/2024 |
David Roy Cull |
$973.50 |
|
|
|
Pest Control Services - Various Locations |
|
|
36461 |
11/11/2024 |
Department of Climate Change, Energy, the Environment and Water |
$2,883.00 |
|
|
|
Upgrade Of Flynn Drive To Dual Carriageway Between Tranquil Vista |
|
|
36462 |
11/11/2024 |
Department of Energy, Mines, Industry Regulation & Safety |
$170,607.74 |
|
|
|
Collection Agency Fee Payments – 01 - 31.10.2024 |
|
|
36463 |
11/11/2024 |
Department of the Premier and Cabinet |
$532.59 |
|
|
|
Gazette Announcement - Advertising Services |
|
|
36464 |
11/11/2024 |
Diverseco Pty Ltd |
$2,244.00 |
|
|
|
Calibrate OBW Plant - Fleet |
|
|
36465 |
11/11/2024 |
Double G (WA) Pty Ltd |
$7,425.34 |
|
|
|
Remove Valve Boxes & Cable Pits - Corner Of Monet Drive And Carosa Road |
|
|
|
|
Realignment Of Irrigation Station Pipework - Queenscliff Park |
|
|
36466 |
11/11/2024 |
Dowsing Group Pty Ltd |
$15,950.40 |
|
|
|
Concrete Mix -
Shorehaven / Helmsman / |
|
|
36467 |
11/11/2024 |
Dowsing Group Pty Ltd |
$5,500.00 |
|
|
|
Concrete Mix - Elegant Road / Kimolos Way |
|
|
36468 |
11/11/2024 |
Drainflow Services Pty Ltd |
$48,369.22 |
|
|
|
Drain Cleaning / Road Sweeping Services - Various Locations |
|
|
36469 |
11/11/2024 |
Drovers Vet Hospital Pty Ltd |
$1,150.49 |
|
|
|
Veterinary Charges |
|
|
36470 |
11/11/2024 |
Dual Autos Pty Ltd |
$280.75 |
|
|
|
Registration Fees - Fleet Assets |
|
|
36471 |
11/11/2024 |
Eclipse Soils |
$33,453.75 |
|
|
|
Mulch Supplies - Various Locations |
|
|
36472 |
11/11/2024 |
Elderbloom Community Care Centres |
$473.28 |
|
|
|
Repair Keypad & Sign - Belgrade Park Village - Waste Services |
|
|
36473 |
11/11/2024 |
Elite Tours |
$3,825.00 |
|
|
|
Club & Groups Day Trip - Amaze & Ravenswood - Gold Program |
|
|
36474 |
11/11/2024 |
Elizabeth Mary Jackson |
$80.00 |
|
|
|
Tech Skills For Beginners - Wanneroo Library |
|
|
36475 |
11/11/2024 |
Ellenbrook Football Club |
$137.50 |
|
|
|
Ellenbrook Dockers Football Club 2018 - Re-Issue Of Stale Cheque 121429 |
|
|
36476 |
11/11/2024 |
Entire Land Care Pty Ltd |
$12,650.00 |
|
|
|
Completion Of Eco-Burn For - Huntington Park And Kinsale Park |
|
|
36477 |
11/11/2024 |
Environmental Industries Pty Ltd |
$59,249.61 |
|
|
|
Landscape Maintenance Services - Various Locations |
|
|
36478 |
11/11/2024 |
Equifax Australasia Credit Rating Pty Ltd |
$2,590.94 |
|
|
|
Standard Financial & Performance Assessments |
|
|
36479 |
11/11/2024 |
Evolve Talent Pty Ltd |
$9,630.71 |
|
|
|
Casual Labour Services - Parks |
|
|
36480 |
11/11/2024 |
Face Painter Extraordinaire |
$720.00 |
|
|
|
2 Face Painting Staff - Halloween Event |
|
|
36481 |
11/11/2024 |
First Homebuilders Pty Ltd |
$2,000.00 |
|
|
|
Refund - Street & Verge Bond |
|
|
36482 |
11/11/2024 |
Flick Anticimex Pty Ltd |
$206.80 |
|
|
|
Hygienic Services - Various Locations |
|
|
36483 |
11/11/2024 |
Focus Consulting WA Pty Ltd |
$7,986.00 |
|
|
|
Electrical Consulting Services - Edgar Griffiths AFL Sports Lighting |
|
|
|
|
Redesign - Gumblossom Community Facility Electrical Renewals |
|
|
36484 |
11/11/2024 |
Foxfish Pty Ltd t/as Binley Fencing |
$4,681.33 |
|
|
|
Temporary Fencing - James Speirs Park |
|
|
|
|
Temporary Fencing - Peridot Park BMX Resurfacing |
|
|
36485 |
11/11/2024 |
Frontline Fire & Rescue Equipment |
$663.96 |
|
|
|
Vehicle Spare Parts / Repairs |
|
|
36486 |
11/11/2024 |
Fusion Applications Pty Ltd |
$7,150.00 |
|
|
|
Consulting Fees For OICS Architecture Integration |
|
|
36487 |
11/11/2024 |
Cancelled |
|
|
36488 |
11/11/2024 |
Geoff's Tree Service Pty Ltd |
$28,469.04 |
|
|
|
Pruning Services - Various Locations |
|
|
36489 |
11/11/2024 |
GJ Woodard |
$243.55 |
|
|
|
Keyholder Payments |
|
|
36490 |
11/11/2024 |
Governance Institute Of Australia Ltd |
$605.00 |
|
|
|
Advertising - Audit And Risk Committee - External Independent Members |
|
|
36491 |
11/11/2024 |
Green Options Pty Ltd |
$4,136.83 |
|
|
|
Active Parks - Granular Fertiliser Application To Wear Areas - October 2024 |
|
|
36492 |
11/11/2024 |
Hang Art Pty Ltd |
$1,056.00 |
|
|
|
De-Install Artworks And Pack For Transporting In Crates - Cultural Services |
|
|
36493 |
11/11/2024 |
Harp Collective |
$6,600.00 |
|
|
|
Internal & External Render Of Kiosk – Kingsway Little Athletics - Assets |
|
|
36494 |
11/11/2024 |
Hays Personnel Services |
$2,768.70 |
|
|
|
Casual Labour Services |
|
|
36495 |
11/11/2024 |
Heatley Sales Pty Ltd |
$248.95 |
|
|
|
PPE Issue - Safety Boots |
|
|
36496 |
11/11/2024 |
Hanson Construction Materials Pty Ltd |
$776.82 |
|
|
|
Concrete Mix - Various Locations |
|
|
36497 |
11/11/2024 |
Helbig Artworks |
$660.00 |
|
|
|
Contract Expense - Banksia Grove Artist |
|
|
36498 |
11/11/2024 |
Helene Pty Ltd trading as Lo-Go Appointments WA |
$10,231.31 |
|
|
|
Casual Labour Services |
|
|
36499 |
11/11/2024 |
Hickey Constructions Pty Ltd |
$4,083.20 |
|
|
|
Re-Level Paver's - Memorial Park |
|
|
|
|
Repair Paving And Capping - Pat Scarfo Park |
|
|
|
|
Install Flush Kerbing To Garden Bed – Wanneroo Showgrounds |
|
|
36500 |
11/11/2024 |
Homestart |
$6,000.00 |
|
|
|
Refund - Street & Verge Bonds |
|
|
36501 |
11/11/2024 |
HopgoodGanim Lawyers |
$1,645.60 |
|
|
|
Legal Fees For The City |
|
|
36502 |
11/11/2024 |
Hosanna Australia Association Incorporated |
$5,000.00 |
|
|
|
Support Delivery Of Hosanna Night Of Honour Via City Of Wanneroo |
|
|
36503 |
11/11/2024 |
Hose Right |
$775.24 |
|
|
|
Vehicle Spare Parts - Fleet |
|
|
36504 |
11/11/2024 |
Hydroquip Pumps & Irrigation Pty Ltd |
$31,770.68 |
|
|
|
Irrigation Pump Works - Various Locations |
|
|
36505 |
11/11/2024 |
Ideal Homes Pty Ltd |
$8,000.00 |
|
|
|
Refund - Street & Verge Bonds |
|
|
36506 |
11/11/2024 |
Imagesource Digital Solutions |
$1,897.50 |
|
|
|
Signs - Cooking Oil / Limit Stickers / ACM |
|
|
|
|
Decal - School Leadership Program Event Podium |
|
|
|
|
Pull Up Banner - Sunset Coast iSilver |
|
|
|
|
Window Decals - Walking Through A Songline Exhibition |
|
|
36507 |
11/11/2024 |
Instant Weighing Systems |
$831.60 |
|
|
|
Calibration Services |
|
|
36508 |
11/11/2024 |
Integrity Industrial Pty Ltd |
$16,925.48 |
|
|
|
Casual Labour Services |
|
|
36509 |
11/11/2024 |
Integrity Industrial Pty Ltd |
$2,050.47 |
|
|
|
Casual Labour Services |
|
|
36510 |
11/11/2024 |
Intelife Group |
$52,262.83 |
|
|
|
Cleaning Services - BBQ Maintenance / Sports Courts / Vehicles / Various Parks / Carpet - Wanneroo Library |
|
|
36511 |
11/11/2024 |
Interfire Agencies Pty Ltd |
$1,187.88 |
|
|
|
PPE - Fire Services |
|
|
36512 |
11/11/2024 |
IPWEA |
$825.00 |
|
|
|
Fleet Subscription 2024 / 2025 |
|
|
36513 |
11/11/2024 |
Ixom Operations Pty Ltd |
$2,814.37 |
|
|
|
Pool Chemicals - Aquamotion |
|
|
36514 |
11/11/2024 |
J Blackwood & Son Ltd |
$302.46 |
|
|
|
LED Headlamp - Multifunction |
|
|
36515 |
11/11/2024 |
Jackson McDonald |
$2,717.55 |
|
|
|
Legal Fees For The City |
|
|
36516 |
11/11/2024 |
Jackson McDonald |
$9,216.90 |
|
|
|
Legal Fees For The City |
|
|
36517 |
11/11/2024 |
James Bennett Pty Ltd |
$5,471.40 |
|
|
|
Library Book Stock |
|
|
|
|
Subscription - Community Collection Manager 2024 / 2025 |
|
|
36518 |
11/11/2024 |
James Hamilton |
$12.90 |
|
|
|
Refund - Copies Of Plans - Plans Not Available |
|
|
36519 |
11/11/2024 |
Japanese Truck & Bus Spares Pty Ltd |
$584.15 |
|
|
|
Vehicle Spare Parts |
|
|
36520 |
11/11/2024 |
JCorp Pty Ltd |
$4,000.00 |
|
|
|
Refund - Street & Verge Bonds |
|
|
36521 |
11/11/2024 |
Jurovich Surveying Pty Ltd |
$12,595.00 |
|
|
|
Digital Ground Survey And Quality Class B Utility Survey – Girrawheen Avenue |
|
|
36522 |
11/11/2024 |
K & K Facility Services Pty Ltd |
$1,650.00 |
|
|
|
Daily Cleaning Of The Park Toilets – Hinckley Park |
|
|
36523 |
11/11/2024 |
Kerb Direct Kerbing |
$29,738.47 |
|
|
|
Kerbing Works - Various Locations |
|
|
36524 |
11/11/2024 |
Kleenit |
$11,741.37 |
|
|
|
Graffiti Removal - Various Locations |
|
|
|
|
High Pressure Cleaning - Depot |
|
|
36525 |
11/11/2024 |
Landcare Weed Control |
$38,353.55 |
|
|
|
Prescription Burn Sites Weed Control |
|
|
36526 |
11/11/2024 |
Landscape Elements |
$25,634.05 |
|
|
|
Park & Streetscape Maintenance - Butler East - October 2024 |
|
|
|
|
Remove Limestone Pavers Around Gazebo & Playground - Ronsard Park |
|
|
36527 |
11/11/2024 |
Landscape Elements |
$33,975.54 |
|
|
|
Streetscapes North Maintenance - October 2024 |
|
|
|
|
Prune Vegetation - Ghost Gum Boulevard |
|
|
|
|
Streetscape Maintenance - Ocean Keys / Caribbean |
|
|
36528 |
11/11/2024 |
Lawn Doctor Turf Solutions |
$6,453.54 |
|
|
|
Turfing Works - Various Locations |
|
|
36529 |
11/11/2024 |
Les Mills Asia Pacific |
$1,246.78 |
|
|
|
Fitness Classes Licence Fees - Aquamotion |
|
|
36530 |
11/11/2024 |
Linemarking WA Pty Ltd |
$4,530.59 |
|
|
|
Pavement Marking - Koondoola Avenue |
|
|
|
|
Spotting Works - Blaxland Avenue |
|
|
36531 |
11/11/2024 |
Little People Play |
$1,182.50 |
|
|
|
Toddler Zone Soft Play - Alkimos Concert |
|
|
36532 |
11/11/2024 |
Living Turf |
$1,353.00 |
|
|
|
Analysis Of Golf Course Benchmarking Report - Parks |
|
|
36533 |
11/11/2024 |
Rates Refund |
$323.67 |
|
36534 |
11/11/2024 |
Maclean & Lawrence Pty Ltd |
$1,254.00 |
|
|
|
Wastewater Monitoring Process – Yanchep Lagoon Kiosk |
|
|
36535 |
11/11/2024 |
Rates Refund |
$165.28 |
|
36536 |
11/11/2024 |
Materon Investments WA Pty Ltd |
$18,009.00 |
|
|
|
Refund - Street & Verge Bonds |
|
|
36537 |
11/11/2024 |
Materon Investments WA Pty Ltd |
$2,000.00 |
|
|
|
Refund - Street & Verge Bond |
|
|
36538 |
11/11/2024 |
McIntosh & Son |
$93.50 |
|
|
|
Vehicle Parts / Repairs |
|
|
36539 |
11/11/2024 |
McLeods Lawyers Pty Ltd |
$9,652.39 |
|
|
|
Legal Fees For The City |
|
|
36540 |
11/11/2024 |
Michael Page International (Australia)Pty Ltd |
$3,855.63 |
|
|
|
Casual Labour Services |
|
|
36541 |
11/11/2024 |
Michelle Walker |
$2,000.00 |
|
|
|
Refund - Street & Verge Bond |
|
|
36542 |
11/11/2024 |
Mindarie Regional Council |
$493,124.49 |
|
|
|
Disposal Of Refuse Charges |
|
|
|
|
Reimbursement Of Admin Expenses October 2024 |
|
|
36543 |
11/11/2024 |
Mini-Tankers Australia Pty Ltd |
$5,190.08 |
|
|
|
Fuel Issues |
|
|
36544 |
11/11/2024 |
Miniquip Hire |
$12,360.15 |
|
|
|
Equipment Hire - Loader / Forks - Parks |
|
|
36545 |
11/11/2024 |
MKDC Design Consultants |
$2,103.20 |
|
|
|
Claim No 2 - Interior Design Services - Depot |
|
|
36546 |
11/11/2024 |
Ms Peggy Brown |
$145.00 |
|
|
|
Keyholder Payments |
|
|
36547 |
11/11/2024 |
Nastech (WA) Pty Ltd |
$7,590.00 |
|
|
|
Lease Area Survey - Portion Of Kingsway Sporting Complex |
|
|
36548 |
11/11/2024 |
Natural Area Consulting Management Services |
$18,725.78 |
|
|
|
Landscape Maintenance Services – Various Locations |
|
|
36549 |
11/11/2024 |
Rates Refund |
$256.00 |
|
36550 |
11/11/2024 |
Northern Perth Mobile Vet |
$1,364.00 |
|
|
|
Animal Euthanasia Services |
|
|
36551 |
11/11/2024 |
Nu-Trac Rural Contracting |
$31,086.19 |
|
|
|
PEM Beach Cleaning Services 2024 |
|
|
36552 |
11/11/2024 |
Nuturf |
$10,318.00 |
|
|
|
Biostim Pellets - Health Services |
|
|
|
|
Supply And Deliver Biostim Algae Control Product - Irrigation Lakes, Multiple Suburbs |
|
|
36553 |
11/11/2024 |
Omnicom Media Group Australia Pty Ltd trading as Marketforce |
$17,143.49 |
|
|
|
Advertising Services |
|
|
36554 |
11/11/2024 |
On Road Auto Electrics |
$3,210.90 |
|
|
|
Vehicle Electrical Works - Fleet |
|
|
36555 |
11/11/2024 |
On Tap Services |
$4,526.01 |
|
|
|
Plumbing Maintenance Services – Various Locations |
|
|
36556 |
11/11/2024 |
Optus |
$6,556.44 |
|
|
|
Phone Charge For The City |
|
|
36557 |
11/11/2024 |
Paperbark Technologies Pty Ltd |
$1,375.49 |
|
|
|
Arboricultural Tree Survey - 59 And 74 Linksman Street, Yanchep |
|
|
36558 |
11/11/2024 |
Parins |
$1,000.00 |
|
|
|
Insurance Excess - WN 34681 |
|
|
36559 |
11/11/2024 |
Parker Black & Forrest |
$341.22 |
|
|
|
Irrigation Box Repairs - Beaumarks Park - Parks |
|
|
36560 |
11/11/2024 |
Play Check Pty Ltd |
$770.00 |
|
|
|
Comprehensive Playground Audit – Aquamotion Splash Pad |
|
|
|
|
Playground Audit - Riverlinks All Abilities Playground |
|
|
36561 |
11/11/2024 |
Porter Consulting Engineers |
$4,400.00 |
|
|
|
Upgrade Design & Documentation – Existing Roads & Services Neerabup Industrial Area |
|
|
36562 |
11/11/2024 |
Premier Tarps |
$320.10 |
|
|
|
Razor Battery Charger - Fleet |
|
|
36563 |
11/11/2024 |
Prestige Alarms |
$4,560.60 |
|
|
|
Alarm / CCTV Services - Various Locations |
|
|
36564 |
11/11/2024 |
Prime West Constructions Pty Ltd |
$4,048.58 |
|
|
|
Refund - Development Application - Withdrawn |
|
|
|
|
Refund - Street & Verge Bond |
|
|
36565 |
11/11/2024 |
Pro-Am Australia |
$159.50 |
|
|
|
Floating Noodle Tunnel - Swim School Classes - Aquamotion |
|
|
36566 |
11/11/2024 |
Quinns Rock Bush Fire Brigade |
$4,000.00 |
|
|
|
Annual Contribution - Quinns Rocks Bush Fire Brigade - 2023 / 2024 - Community Safety |
|
|
36567 |
11/11/2024 |
ReadyTech User Group WA Inc |
$847.00 |
|
|
|
Membership Fees 2024 / 2025 - ICT |
|
|
36568 |
11/11/2024 |
Reliable Fencing WA Pty Ltd |
$20,173.54 |
|
|
|
Fencing / Bollard Works - Various Locations |
|
|
36569 |
11/11/2024 |
Returned & Services League Quinns Rocks Sub-branch |
$1,850.00 |
|
|
|
Community Funding - Support The Delivery Of 2024 / 2025 Commemorative Events |
|
|
36570 |
11/11/2024 |
RM Surveys |
$44,209.00 |
|
|
|
Digital Ground Survey & Class B Utility Survey – Joondalup Drive |
|
|
36571 |
11/11/2024 |
Roads 2000 |
$504,143.95 |
|
|
|
Asphalt Supplies - Engineering |
|
|
|
|
Final Claim - Highclere Boulevard/Windan Way /Villanova Street |
|
|
|
|
Progress Claim 3
- Gnangara Road / |
|
|
|
|
Progress Claim 1 - Pari Road |
|
|
36572 |
11/11/2024 |
Robert Walters Pty Ltd |
$5,629.56 |
|
|
|
Casual Labour Services |
|
|
36573 |
11/11/2024 |
Rogers Axle & Spring Works Pty Ltd |
$198.00 |
|
|
|
Vehicle Spare Parts |
|
|
36574 |
11/11/2024 |
Roslyn Lewis |
$985.70 |
|
|
|
Vehicle Crossing Subsidy |
|
|
36575 |
11/11/2024 |
Royal Pride Pty Ltd |
$872.11 |
|
|
|
Service / Repair PA Units PAV - Aquamotion |
|
|
36576 |
11/11/2024 |
Safety World |
$129.80 |
|
|
|
Uniform Issue - Waste |
|
|
36577 |
11/11/2024 |
Sanpoint Pty Ltd ATF the Fiore Family Trust |
$486,789.45 |
|
|
|
Landscape Maintenance Works – Various Locations |
|
|
36578 |
11/11/2024 |
Rates Refund |
$3,983.81 |
|
36579 |
11/11/2024 |
SCA Architecture Studio Pty Ltd |
$12,628.00 |
|
|
|
Concept Phase - Wanneroo Showgrounds Refurbishment - Assets |
|
|
36580 |
11/11/2024 |
Scott Print |
$465.30 |
|
|
|
Printing - Interim Receipt Books |
|
|
36581 |
11/11/2024 |
Seabreeze Landscape Supplies |
$19.00 |
|
|
|
1 Scoop - Brickie Sand |
|
|
36582 |
11/11/2024 |
Shari-Ann Livingston |
$295.00 |
|
|
|
Refund - Development Application - Withdrawn |
|
|
36583 |
11/11/2024 |
Shorehaven Homes Pty Ltd |
$9,362.38 |
|
|
|
Refund - Lot 1582-1585 Bainbridge Avenue Alkimos - Works Completed |
|
|
36584 |
11/11/2024 |
Signblitz |
$2,810.50 |
|
|
|
Custom Embroidered Hats - Chief Warden |
|
|
36585 |
11/11/2024 |
Slithers & Slides |
$165.00 |
|
|
|
Call-Out - Reptile Removal |
|
|
36586 |
11/11/2024 |
SLR Consulting Australia Pty Ltd |
$7,871.91 |
|
|
|
Habitat Survey - Basic Fauna & Black Cockatoo - Hepburn Park |
|
|
36587 |
11/11/2024 |
Sphere Architects |
$18,173.93 |
|
|
|
Concept Design - Kingsway Regional Sporting Complex New Football Modular Changeroom Facility |
|
|
|
|
Design Consultancy And Contract Administratio - New Bird Viewing Platform And Boardwalk |
|
|
36588 |
11/11/2024 |
Sravan Maddipati |
$985.70 |
|
|
|
Vehicle Crossing Subsidy |
|
|
36589 |
11/11/2024 |
SSB Pty Ltd |
$2,000.00 |
|
|
|
Refund - Street & Verge Bond |
|
|
36590 |
11/11/2024 |
St John Ambulance Western Australia Ltd |
$3,455.65 |
|
|
|
Servicing Of First Aid Kits And Defibrillators |
|
|
|
|
Event Health Services – Emergency Preparedness Event Bunnings Landsdale |
|
|
|
|
First Aid Training Services |
|
|
36591 |
11/11/2024 |
Stephen Lordan |
$183.70 |
|
|
|
Vehicle Crossing Subsidy |
|
|
36592 |
11/11/2024 |
StrataGreen |
$2,496.12 |
|
|
|
Hardwood Tree Stakes - Parks |
|
|
36593 |
11/11/2024 |
Superior Nominees Pty Ltd |
$8,456.80 |
|
|
|
Playground Equipment Repairs – Various Locations |
|
|
36594 |
11/11/2024 |
Susan Hoy |
$300.00 |
|
|
|
2 Photograph Of Gouache Artwork For SLSC |
|
|
36595 |
11/11/2024 |
Rates Refund |
$211.40 |
|
36596 |
11/11/2024 |
Sustain Patios and Outdoors |
$147.00 |
|
|
|
Refund - Development Application - Withdrawn |
|
|
36597 |
11/11/2024 |
Swan Group WA |
$507,496.46 |
|
|
|
Progress Claim 3 - Dordaak Kepup - Assets |
|
|
36598 |
11/11/2024 |
Sydney Tools Pty Ltd |
$2,697.00 |
|
|
|
Tool Purchases - Various |
|
|
36599 |
11/11/2024 |
Synergy |
$683,376.92 |
|
|
|
Power Supply Charges - Various Locations |
|
|
36600 |
11/11/2024 |
Tangent Nominees Pty Ltd (Atf The Summit Homes Group Trust) |
$2,000.00 |
|
|
|
Refund - Street & Verge Bond |
|
|
36601 |
11/11/2024 |
Team Global Express Pty Ltd |
$865.32 |
|
|
|
Courier Services |
|
|
36602 |
11/11/2024 |
Technologically Speaking |
$720.00 |
|
|
|
Technology Education Workshops – Library Services |
|
|
36603 |
11/11/2024 |
Techworks Electrical Pty Ltd |
$10,413.30 |
|
|
|
Progress Claim 2 - Carramar Golf Course |
|
|
36604 |
11/11/2024 |
The Factory Aust. Pty Ltd |
$918.50 |
|
|
|
Supply (Hire) Deliver, Install And Remove The Nativity |
|
|
36605 |
11/11/2024 |
The Institute of Internal Auditors – Australia |
$580.00 |
|
|
|
Local Government Assurance Forum – 1 Attendee - Enterprise Risk Management |
|
|
36606 |
11/11/2024 |
The Marketing Room |
$2,904.00 |
|
|
|
Social Media Manager |
|
|
36607 |
11/11/2024 |
The Pavilion at Mindarie |
$5,500.00 |
|
|
|
Sponsorship - Lunar New Year |
|
|
36608 |
11/11/2024 |
The Reef Two Rocks Pty Ltd |
$76,870.64 |
|
|
|
Refund - Nautic Estate Stage 1 Montebello Park Two Rocks |
|
|
36609 |
11/11/2024 |
The Royal Life Saving Society Australia |
$175.00 |
|
|
|
Lifeguard License Renewal - I Employee |
|
|
36610 |
11/11/2024 |
Think Water Wanneroo |
$1,369.00 |
|
|
|
Lawnmower & File Holders - Parks |
|
|
36611 |
11/11/2024 |
Thyssen Elevator Australia Pty Ltd |
$1,298.00 |
|
|
|
Elevator Works - Civic Centre |
|
|
36612 |
11/11/2024 |
TQuip |
$420.73 |
|
|
|
Vehicle Spare Parts |
|
|
36613 |
11/11/2024 |
Tracey Tylor |
$110.00 |
|
|
|
Refund - Building Application - Incorrectly Submitted |
|
|
36614 |
11/11/2024 |
Triton Electrical Contractors Pty Ltd |
$11,971.30 |
|
|
|
Irrigation Electrical Works - Various Locations |
|
|
36615 |
11/11/2024 |
Trophy Shop Australia |
$813.90 |
|
|
|
Name Badge - 1 Employee |
|
|
|
|
Medals - Student Citizenship Awards |
|
|
36616 |
11/11/2024 |
Truck Centre WA Pty Ltd |
$10,017.00 |
|
|
|
Subscription - Tech Tool Software - 27.11.2024 - 27.11.2025 |
|
|
|
|
Vehicle Repairs / Spare Parts |
|
|
36617 |
11/11/2024 |
United Equipment Pty Ltd |
$1,171.25 |
|
|
|
Vehicle Repairs |
|
|
36618 |
11/11/2024 |
United Fasteners WA Pty Ltd |
$1,052.28 |
|
|
|
Consumables - Fleet |
|
|
36619 |
11/11/2024 |
University of Western Australia |
$20,274.10 |
|
|
|
Wave Buoys - Year 2 Servicing, Data And Reporting |
|
|
36620 |
11/11/2024 |
Ventura Home Group Pty Ltd |
$8,000.00 |
|
|
|
Refund - Street & Verge Bonds |
|
|
36621 |
11/11/2024 |
Veolia Recycling & Recovery Pty Ltd |
$5,844.96 |
|
|
|
Waste Disposal Services |
|
|
36622 |
11/11/2024 |
Viva Energy Australia Pty Ltd |
$114,016.51 |
|
|
|
Fuel Issues |
|
|
36623 |
11/11/2024 |
WA Garage Doors Pty Ltd |
$341.00 |
|
|
|
Roller Door Motor Service - Cafe Elixir Bin Store- Building Maintenance |
|
|
36624 |
11/11/2024 |
Wanneroo Central Bushfire Brigade |
$1,482.98 |
|
|
|
Reimbursement - Operational Expenses |
|
|
36625 |
11/11/2024 |
Wanneroo Electric |
$29,634.35 |
|
|
|
Electrical Maintenance Works - Various Locations |
|
|
36626 |
11/11/2024 |
Water Corporation |
$4,687.82 |
|
|
|
Water Supply Charges - Various Locations |
|
|
36627 |
11/11/2024 |
WATM Crane Sales and Services WA |
$1,897.90 |
|
|
|
Vehicle Repairs - Fleet |
|
|
36628 |
11/11/2024 |
WCP Civil Pty Ltd |
$209,381.23 |
|
|
|
Progress Claim 2 - Upgrade Accessibility To Carpark - Alexander Heights Community Centre |
|
|
36629 |
11/11/2024 |
West Coast Turf |
$21,991.81 |
|
|
|
Turfing Works - Various Locations |
|
|
36630 |
11/11/2024 |
Western Australian Local Government Association |
$2,508.00 |
|
|
|
Training - Effective Supervision - 1 Attendee |
|
|
|
|
Training - Delegation & Authorisation Essentials - 1 Attendee |
|
|
|
|
Training - Local Government Act 1995 – 1 Attendee |
|
|
36631 |
11/11/2024 |
Western Australian Treasury Corporation |
$981,472.91 |
|
|
|
Loan Interest Payment To Western Australian Treasury Corporation |
|
|
36632 |
11/11/2024 |
Western Irrigation Pty Ltd |
$44,116.01 |
|
|
|
Irrigation Equipment - Parks |
|
|
36633 |
11/11/2024 |
WEX Australia Pty Ltd |
$3,306.38 |
|
|
|
Fuel Issues - Fire Services |
|
|
36634 |
11/11/2024 |
William Buck Consulting (WA) Pty Ltd |
$5,500.00 |
|
|
|
Fraud Risk Assessment |
|
|
36635 |
11/11/2024 |
Winc Australia Pty Limited |
$432.08 |
|
|
|
Multi Card Holder & Card Adjustable Pocket Clip - Building Maintenance |
|
|
36636 |
11/11/2024 |
Work Clobber |
$407.70 |
|
|
|
Staff Uniforms |
|
|
36637 |
11/11/2024 |
Workpower Incorporated |
$48,984.01 |
|
|
|
Landscape Maintenance Works – Various Locations |
|
|
36638 |
11/11/2024 |
Wow Group (WA) Pty Ltd |
$2,000.00 |
|
|
|
Refund - Street & Verge Bond |
|
|
36639 |
11/11/2024 |
Wow Wipes |
$654.50 |
|
|
|
Antibacterial Wipes - Kingsway Stadium |
|
|
36640 |
11/11/2024 |
Zetta Pty Ltd |
$47,681.50 |
|
|
|
Managed Services Fee - ICT |
|
|
36653 |
19/11/2024 |
Australia Post |
$6,207.10 |
|
|
|
Postage Charges For The City |
|
|
36654 |
19/11/2024 |
Australia Post |
$2,517.12 |
|
|
|
Billpay Transactions - Rates |
|
|
36655 |
19/11/2024 |
Australia Post |
$59,369.73 |
|
|
|
Postage Charges For The City - Lodged |
|
|
36656 |
18/11/2024 |
Mr C Wansbrough |
$15.14 |
|
|
|
Reimbursement - Parking - East Wanneroo DSP Groundwater Control Working Group Meeting at Department of Planning, Lands & Heritage |
|
|
36657 |
18/11/2024 |
Mr J Gault |
$359.00 |
|
|
|
Reimbursement - Travel Expenses - Waste Conference |
|
|
36658 |
18/11/2024 |
Ms K Leavesley |
$26.00 |
|
|
|
Reimbursement - Items For Wanneroo Show |
|
|
36659 |
18/11/2024 |
Mr T Verteramo |
$1,243.80 |
|
|
|
Reimbursement - Builders Registration Renewal & Police Clearance |
|
|
36660 |
18/11/2024 |
AAAC Towing |
$3,278.00 |
|
|
|
Abandoned Vehicle Management Services |
|
|
36661 |
18/11/2024 |
AARCO Environmental Solutions Pty Ltd |
$1,372.36 |
|
|
|
Asbestos Removal - Waste Services |
|
|
36662 |
18/11/2024 |
ABM Landscaping |
$10,600.43 |
|
|
|
Landsdale Road - Brick Paving Installation |
|
|
36663 |
18/11/2024 |
ABN Residential WA Pty Ltd |
$16,000.00 |
|
|
|
Refund - Street & Verge Bonds |
|
|
36664 |
18/11/2024 |
ABN Residential WA Pty Ltd |
$28,000.00 |
|
|
|
Refund - Street & Verge Bonds |
|
|
36665 |
18/11/2024 |
Access Unlimited International Pty Ltd |
$173.28 |
|
|
|
Service And Calibration Of Gas Detector |
|
|
36666 |
18/11/2024 |
Activ Foundation Incorporated |
$27,498.68 |
|
|
|
Property Care - Maintenance Garden Bed Maintenance And Weed Control - 8 Parks |
|
|
36667 |
18/11/2024 |
Acurix Networks Pty Ltd |
$11,468.60 |
|
|
|
Monitoring, Licensing, Support, Category-Based Content Filtering, Premium Portaland Unlimited Downloads For The Month Of November 2024 |
|
|
36668 |
18/11/2024 |
Advanced Patios |
$171.65 |
|
|
|
Refund - Building Application - Incorrect |
|
|
36669 |
18/11/2024 |
Rates Refund |
$2,573.98 |
|
36670 |
18/11/2024 |
Air Liquide Australia |
$232.32 |
|
|
|
Gas Bottle Rental |
|
|
36671 |
18/11/2024 |
Rates Refund |
$845.60 |
|
36672 |
18/11/2024 |
Alan Heppell |
$2,000.00 |
|
|
|
Refund - Street & Verge Bond |
|
|
36673 |
18/11/2024 |
Alinta Gas |
$1,180.25 |
|
|
|
Gas Supply Charges - Various Locations |
|
|
36674 |
18/11/2024 |
Alkimos Pirates Lacrosse Club Inc. |
$200.00 |
|
|
|
Have A Go Session - Ridgewood Evening In The Park |
|
|
36675 |
18/11/2024 |
Allworks (WA) Pty Ltd |
$12,192.40 |
|
|
|
Equipment Hire - Posi Truck - Engineering |
|
|
|
|
Operators / Machinery And BSL Limestone Material - Heritage Terrace Track Works |
|
|
36676 |
18/11/2024 |
Amanda Edmonds |
$2,000.00 |
|
|
|
Refund - Street & Verge Bond |
|
|
36677 |
18/11/2024 |
Andrew Moorhouse |
$2,000.00 |
|
|
|
Refund - Street & Verge Bond |
|
|
36678 |
18/11/2024 |
Anmar Al-Salihi |
$319.00 |
|
|
|
Refund - Application Fees - Not Required |
|
|
36679 |
18/11/2024 |
Rates Refund |
$2,496.87 |
|
36680 |
18/11/2024 |
Applied Security Force |
$596.88 |
|
|
|
Security - Banksia Grove Fun Fes |
|
|
36681 |
18/11/2024 |
Ascon Survey and Drafting |
$11,846.88 |
|
|
|
Surveying Services - Various Locations |
|
|
36682 |
18/11/2024 |
Atom Supply |
$5,715.42 |
|
|
|
Mechanics Gloves / Safety Glasses / Hand Cleaner |
|
|
36683 |
18/11/2024 |
Aussie Natural Spring Water |
$21.50 |
|
|
|
Water Supplies - Print Room |
|
|
36684 |
18/11/2024 |
Australian Airconditioning Services Pty Ltd |
$1,864.48 |
|
|
|
Exhaust Fans Not Working - Kingsway |
|
|
36685 |
18/11/2024 |
Australian Services Union |
$238.50 |
|
|
|
Payroll Deductions |
|
|
36686 |
18/11/2024 |
Australian Taxation Office |
$674,707.00 |
|
|
|
Payroll Deductions |
|
|
36687 |
18/11/2024 |
Autosmart North Metro Perth |
$1,179.20 |
|
|
|
Floor Smart Cleaner & Plus 10 - Fleet |
|
|
36688 |
18/11/2024 |
AV Truck Service Pty Ltd |
$2,158.04 |
|
|
|
Vehicle Spare Parts |
|
|
36689 |
18/11/2024 |
Baileys Fertilisers |
$5,120.50 |
|
|
|
Apply Sure Green Profile |
|
|
36690 |
18/11/2024 |
Barbara J Jones |
$295.00 |
|
|
|
Refund - Development Application - Withdrawn |
|
|
36691 |
18/11/2024 |
Bee Advice |
$400.00 |
|
|
|
Move Bees Nest - McAllister Park |
|
|
36692 |
18/11/2024 |
Ben Hill |
$2,000.00 |
|
|
|
Refund - Street & Verge Bond |
|
|
36693 |
18/11/2024 |
Benara Nurseries, Quito Pty Ltd |
$1,544.80 |
|
|
|
Plant Supplies - Parks |
|
|
36694 |
18/11/2024 |
Blueprint Homes (WA) Pty Ltd |
$6,320.30 |
|
|
|
Refund - Street & Verge Bonds |
|
|
36695 |
18/11/2024 |
Blueprint Homes (WA) Pty Ltd |
$2,162.09 |
|
|
|
Refund - Development Application - Overpayment |
|
|
|
|
Refund - Street & Verge Bond |
|
|
36696 |
18/11/2024 |
BOS Civil Pty Ltd |
$387,657.53 |
|
|
|
Progress Claim 2 - Upgrade Of Hester & Connolly Drive - Assets |
|
|
36697 |
18/11/2024 |
Boulevard Group Pty Ltd |
$3,432.00 |
|
|
|
Health Monitoring And Surveillance Schedule - Work Health & Safety |
|
|
36698 |
18/11/2024 |
Bridgestone Australia Limited |
$4,070.20 |
|
|
|
Tyre Fitting Services |
|
|
36699 |
18/11/2024 |
Bronwyn Rayner |
$2,000.00 |
|
|
|
Refund - Street & Verge Bond |
|
|
36700 |
18/11/2024 |
Brownes Foods Operations Pty Limited |
$454.95 |
|
|
|
Milk Supplies For The City |
|
|
36701 |
18/11/2024 |
Bucher Municipal Pty Ltd |
$24,620.20 |
|
|
|
Vehicle Spare Parts |
|
|
36702 |
18/11/2024 |
Buildmark Pty Ltd |
$2,000.00 |
|
|
|
Refund - Street & Verge Bond |
|
|
36703 |
18/11/2024 |
Bullseye Entertainment Perth Pty Ltd |
$2,250.00 |
|
|
|
Inflatable Sports Package - Ridgewood Park |
|
|
36704 |
18/11/2024 |
Business News Pty Ltd |
$4,290.00 |
|
|
|
Subscription - Business News |
|
|
36705 |
18/11/2024 |
Rates Refund |
$463.02 |
|
36706 |
18/11/2024 |
Call Associates Pty Ltd trading as Connect Call Centre Services |
$7,215.18 |
|
|
|
After Hours Calls Service |
|
|
36707 |
18/11/2024 |
Cameron Chisholm & Nicol (WA) Pty Ltd |
$1,375.00 |
|
|
|
Design Review Services - Panel Member |
|
|
36708 |
18/11/2024 |
Car Care (WA) Mindarie |
$460.95 |
|
|
|
Vehicle Cleaning - Community Buses |
|
|
36709 |
18/11/2024 |
Car Care Motor Company Pty Ltd |
$829.89 |
|
|
|
Vehicle Repairs |
|
|
36710 |
18/11/2024 |
Carvalho Design Solutions Pty Ltd |
$9,845.00 |
|
|
|
Issue Of Final Design Documentation – Banksia Grove Community Centre |
|
|
36711 |
18/11/2024 |
CDM Australia Pty Ltd |
$611.58 |
|
|
|
Screen Connect Premium Co-Term With Current Licence - ICT |
|
|
36712 |
18/11/2024 |
CFMEU |
$110.00 |
|
|
|
Payroll Deductions |
|
|
36713 |
18/11/2024 |
Champion Music WA |
$1,419.00 |
|
|
|
Musician - Citizenship Ceremonies |
|
|
36714 |
18/11/2024 |
Child Support Agency |
$1,882.16 |
|
|
|
Payroll Deductions |
|
|
36715 |
18/11/2024 |
City of Wanneroo |
$492.00 |
|
|
|
Payroll Deductions |
|
|
36716 |
18/11/2024 |
Rates Refund |
$799.52 |
|
36717 |
18/11/2024 |
Civcon Civil & Project Management Pty Ltd |
$876,016.63 |
|
|
|
Progress Claim 2 - Kingsway Sporting Complex Netball Court Floodlights - Assets |
|
|
|
|
Progress Claim 7A - Road & Drainage Upgrade - Neerabup Industrial Park |
|
|
36718 |
18/11/2024 |
Claire McLeod |
$2,000.00 |
|
|
|
Refund - Street & Verge Bond |
|
|
36719 |
18/11/2024 |
Claw Environmental |
$132.00 |
|
|
|
Polystyrene Collection - WRC |
|
|
36720 |
18/11/2024 |
Cleanaway Equipment Services Pty Ltd |
$529.10 |
|
|
|
Parts Washer Rental - Fleet |
|
|
36721 |
18/11/2024 |
Clinipath Pathology |
$1,106.12 |
|
|
|
Medical Fees For The City |
|
|
36722 |
18/11/2024 |
Coca Cola Amatil Pty Ltd |
$414.40 |
|
|
|
Beverages - Kingsway |
|
|
36723 |
18/11/2024 |
Commissioner of Police |
$18.00 |
|
|
|
Police Checks - Volunteers September 2024 |
|
|
36724 |
18/11/2024 |
Complete Approvals |
$171.65 |
|
|
|
Refund - Building Application - Duplicate |
|
|
36725 |
18/11/2024 |
Complete Office Supplies Pty Ltd |
$353.89 |
|
|
|
Stationery Purchases - Assets |
|
|
36726 |
18/11/2024 |
Complete Office Supplies Pty Ltd |
$1,186.98 |
|
|
|
Stationery Purchases - Various Service Units |
|
|
36727 |
18/11/2024 |
Contra-Flow Pty Ltd |
$433.40 |
|
|
|
Traffic Management - Old Yanchep Road |
|
|
36728 |
18/11/2024 |
Contra-Flow Pty Ltd |
$1,359.21 |
|
|
|
Traffic Management - Wanneroo Road / Dundebar Road / Sinagra Street |
|
|
36729 |
18/11/2024 |
Corsign (WA) Pty Ltd |
$94.05 |
|
|
|
Sign - No Dog On Beach |
|
|
36730 |
18/11/2024 |
Cossill & Webley Consulting Engineers (New Entity) |
$4,246.00 |
|
|
|
Professional Services - Flynn Drive Duplication |
|
|
36731 |
18/11/2024 |
Cr Jordan Wright |
$318.06 |
|
|
|
Travel Expense Claim - August - November 2024 |
|
|
36732 |
18/11/2024 |
Rates Refund |
$754.74 |
|
36733 |
18/11/2024 |
Craneswest (WA) Pty Ltd |
$31,605.29 |
|
|
|
Debris Collection - Various Locations |
|
|
|
|
Transport And Processing Of Green Waste From Wangara |
|
|
36734 |
18/11/2024 |
Critical Fire Protection & Training Pty Ltd |
$2,432.16 |
|
|
|
Fire Detection Systems Works - Various Locations |
|
|
36735 |
18/11/2024 |
Cromag Pty Ltd T/a Sigma Telford Group |
$1,963.50 |
|
|
|
Pool Chemicals - Aquamotion |
|
|
36736 |
18/11/2024 |
Crown Lift Trucks |
$559.81 |
|
|
|
Plant Services - Fleet |
|
|
36737 |
18/11/2024 |
Cummins South Pacific Pty Ltd |
$828.03 |
|
|
|
Subscription - Insite 2025 - Fleet |
|
|
36738 |
18/11/2024 |
Dale Alcock Homes Pty Ltd |
$2,000.00 |
|
|
|
Refund -Street & Verge Bond |
|
|
36739 |
18/11/2024 |
Daniel Crofskey |
$850.00 |
|
|
|
Bond Refund |
|
|
36740 |
18/11/2024 |
Danmar Homes Pty Ltd |
$2,120.00 |
|
|
|
Refund - Street & Verge Bond |
|
|
36741 |
18/11/2024 |
Data #3 Limited |
$202.97 |
|
|
|
Subscription - Adobe - ICT |
|
|
36742 |
18/11/2024 |
David Roy Cull |
$1,589.50 |
|
|
|
Pest Control Services - Various Locations |
|
|
36743 |
18/11/2024 |
Department of the Premier and Cabinet |
$111.93 |
|
|
|
Gazette Publication - Basis Of Rates |
|
|
36744 |
18/11/2024 |
DMC Cleaning |
$6,554.11 |
|
|
|
Cleaning Services / Consumables – Various Locations |
|
|
36745 |
18/11/2024 |
Rates Refund |
$726.45 |
|
36746 |
18/11/2024 |
Double G (WA) Pty Ltd |
$4,291.19 |
|
|
|
Irrigation Works - Various Locations |
|
|
36747 |
18/11/2024 |
Dowsing Group Pty Ltd |
$62,621.50 |
|
|
|
Concrete Pathways Construction – Landsdale Road |
|
|
|
|
Replace Crossover Panels / Kerbing - Birnam Court |
|
|
36748 |
18/11/2024 |
Drainflow Services Pty Ltd |
$46,844.22 |
|
|
|
Drain Cleaning / Road Sweeping Services - Various Locations |
|
|
36749 |
18/11/2024 |
Drovers Vet Hospital Pty Ltd |
$160.00 |
|
|
|
Veterinary Charges |
|
|
36750 |
18/11/2024 |
Du Clene Pty Ltd |
$2,851.48 |
|
|
|
Cleaning Services - Halesworth Park Sporting Pavilion / Two Rocks Community Facility |
|
|
36751 |
18/11/2024 |
Ecoblue International |
$1,386.00 |
|
|
|
Ecoblue And Adblue Chemicals - Parks |
|
|
36752 |
18/11/2024 |
Edge People Management |
$9,666.30 |
|
|
|
Case Management - Return To Work & Ergonomic Assessments |
|
|
36753 |
18/11/2024 |
Edith Cowan University |
$1,100.00 |
|
|
|
Contribution 2024 - ‘Entrepreneurship’ & ‘New Product Development’ Prizes |
|
|
36754 |
18/11/2024 |
Elliotts Irrigation Pty Ltd |
$3,795.00 |
|
|
|
October Iron Filter Services - Parks |
|
|
36755 |
18/11/2024 |
Entire Land Care Pty Ltd |
$15,400.00 |
|
|
|
Provision Of Mitigation Works - McAllister Park |
|
|
36756 |
18/11/2024 |
Environmental Industries Pty Ltd |
$165,625.14 |
|
|
|
Landscape Maintenance Services – Various Locations |
|
|
36757 |
18/11/2024 |
Epic Catering & Events Services Pty Ltd |
$4,053.50 |
|
|
|
Catering - Council Meetings |
|
|
36758 |
18/11/2024 |
Ergolink |
$337.00 |
|
|
|
Perching Stool - Hospitality |
|
|
36759 |
18/11/2024 |
Evoke Interior Design Pty Ltd |
$6,682.50 |
|
|
|
Gumblossom Community Centre Refurbishment - Upgrade Works |
|
|
36760 |
18/11/2024 |
Evolve Talent Pty Ltd |
$8,344.61 |
|
|
|
Casual Labour Services |
|
|
36761 |
18/11/2024 |
Rates Refund |
$1,707.55 |
|
36762 |
18/11/2024 |
Fiona Shackles |
$150.00 |
|
|
|
Refund - Animal Registration - Sterilised |
|
|
36763 |
18/11/2024 |
First Homebuilders Pty Ltd |
$2,000.00 |
|
|
|
Refund - Street & Verge Bond |
|
|
36764 |
18/11/2024 |
Fleet Network |
$11,541.27 |
|
|
|
Payroll Deductions |
|
|
36765 |
18/11/2024 |
Fleetspec Hire |
$414.94 |
|
|
|
Truck Hire - Mayors Christmas Appeal |
|
|
36766 |
18/11/2024 |
Foxfish Pty Ltd t/as Binley Fencing |
$72.22 |
|
|
|
Rehire Of Temp Fence - Montrose Clubrooms |
|
|
36767 |
18/11/2024 |
Fusion Applications Pty Ltd |
$7,150.00 |
|
|
|
Provision Of Integration Development Support Services - Draw Down Service |
|
|
36768 |
18/11/2024 |
Geoff's Tree Service Pty Ltd |
$67,114.39 |
|
|
|
Pruning Services - Various Locations |
|
|
36769 |
18/11/2024 |
Gordon Crawford |
$24.50 |
|
|
|
Refund Copy Of Plans - Not Available |
|
|
36770 |
18/11/2024 |
Greenwood Party Hire |
$600.00 |
|
|
|
Equipment Hire - Active Ageing Expo |
|
|
36771 |
18/11/2024 |
Hall Chadwick WA Audit Pty Ltd |
$9,680.00 |
|
|
|
Audit Of The Roads To Recovery 4 And LRCIP For 2023 / 2024 |
|
|
36772 |
18/11/2024 |
Halpd Pty Ltd Trading As Affordable Living Homes |
$6,000.00 |
|
|
|
Refund - Street & Verge Bonds |
|
|
36773 |
18/11/2024 |
Hang Art Pty Ltd |
$1,056.00 |
|
|
|
Install - Andy Warhol Spring Flower Series |
|
|
36774 |
18/11/2024 |
Rates Refund |
$501.93 |
|
36775 |
18/11/2024 |
Hays Personnel Services |
$8,898.79 |
|
|
|
Casual Labour Services |
|
|
36776 |
18/11/2024 |
Heatley Sales Pty Ltd |
$18.08 |
|
|
|
Lynch Pins - Stores |
|
|
36777 |
18/11/2024 |
Helene Pty Ltd trading as Lo-Go Appointments WA |
$3,917.43 |
|
|
|
Casual Labour Services |
|
|
36778 |
18/11/2024 |
Hickey Constructions Pty Ltd |
$1,381.60 |
|
|
|
Remove And Replace Timber Decking – Zambia Park |
|
|
|
|
Repair Damaged Stringers - Yanchep Skybridge |
|
|
36779 |
18/11/2024 |
Hodge Collard Preston Unit Trust |
$7,725.85 |
|
|
|
Contract Administration Practical Completion & Construction Close Outs - Heath Park Sports Amenities Building |
|
|
36780 |
18/11/2024 |
Holden Thomas Massimo Sheppard |
$530.20 |
|
|
|
Appearance Fee - Writers Of The North Event - Clarkson Library |
|
|
36781 |
18/11/2024 |
Holmes à Court Gallery |
$3,300.00 |
|
|
|
Exhibition Loan Fee - Seven Sisters |
|
|
36782 |
18/11/2024 |
Home Group WA Pty Ltd |
$25,079.30 |
|
|
|
Refund - Street & Verge Bonds |
|
|
36783 |
18/11/2024 |
HopgoodGanim Lawyers |
$5,665.00 |
|
|
|
Legal Fees For The City |
|
|
36784 |
18/11/2024 |
Horizon West Landscape Constructions |
$4,688.75 |
|
|
|
Park Maintenance - Riverlinks - Assets |
|
|
36785 |
18/11/2024 |
Hose Right |
$3,864.10 |
|
|
|
Vehicle Spare Parts |
|
|
36786 |
18/11/2024 |
Houspect WA |
$7,470.00 |
|
|
|
Building Inspection - Wanneroo Trotting & Training Club |
|
|
|
|
Building Inspection - Orion Café |
|
|
|
|
Dilapidation Inspections - James Spiers Park |
|
|
|
|
Property Inspection - Wanneroo Horse And Pony Club |
|
|
36787 |
18/11/2024 |
Hydroquip Pumps & Irrigation Pty Ltd |
$20,277.18 |
|
|
|
Irrigation Pump Works - Various Locations |
|
|
36788 |
18/11/2024 |
ID Consulting Pty Ltd |
$66,473.00 |
|
|
|
Subscription Fees - ICT |
|
|
36789 |
18/11/2024 |
Ideal Homes Pty Ltd |
$2,000.00 |
|
|
|
Refund - Street & Verge Bond |
|
|
36790 |
18/11/2024 |
Indoor Gardens Pty Ltd |
$325.89 |
|
|
|
Service & Hire Of Live Plant Displays – Civic Centre |
|
|
36791 |
18/11/2024 |
Inflatable Entertainment Perth Pty Ltd T/a Perth Bubble Soccer |
$1,275.00 |
|
|
|
Bubbles Hire -
Kingsbridge / Banksia Grove |
|
|
36792 |
18/11/2024 |
Inspired Development Solutions Pty Ltd |
$2,178.00 |
|
|
|
Executive Coaching - Mayor Linda Aitken |
|
|
|
|
Facilitation - Focus Group Elected Member 15.10.2024 |
|
|
36793 |
18/11/2024 |
Instant Weighing Systems |
$2,984.30 |
|
|
|
Calibration Services - Various Plant - Fleet |
|
|
36794 |
18/11/2024 |
Integrity Industrial Pty Ltd |
$23,232.16 |
|
|
|
Casual Labour Services |
|
|
36795 |
18/11/2024 |
Integrity Industrial Pty Ltd |
$26,870.81 |
|
|
|
Casual Labour Services |
|
|
36796 |
18/11/2024 |
Integrity Staffing |
$8,445.13 |
|
|
|
Casual Labour Services |
|
|
36797 |
18/11/2024 |
Intelife Group |
$19,324.87 |
|
|
|
Slashing Rural Verges / Cleaning Services & Consumables |
|
|
36798 |
18/11/2024 |
IPWEA |
$1,287.00 |
|
|
|
Training - Fleet Management - 2 Attendees - Fleet Management |
|
|
36799 |
18/11/2024 |
J Blackwood & Son Ltd |
$2,929.94 |
|
|
|
Rakes / Plastic Buckets / Jerry Cans / Pliers / Headlamp - Stores |
|
|
36800 |
18/11/2024 |
Jackson McDonald |
$33,589.60 |
|
|
|
Legal Fees For The City |
|
|
36801 |
18/11/2024 |
James Bennett Pty Ltd |
$3,431.01 |
|
|
|
Library Book Stock |
|
|
36802 |
18/11/2024 |
James Thompson |
$156.00 |
|
|
|
Refund - Building Application - Incorrect Fees Paid |
|
|
36803 |
18/11/2024 |
Jason Seipp |
$2,000.00 |
|
|
|
Refund - Street & Verge Bond |
|
|
36804 |
18/11/2024 |
Jennifer Merritt |
$150.00 |
|
|
|
Refund - Animal Registration - Sterilised |
|
|
36805 |
18/11/2024 |
Jenny Yelland |
$20.00 |
|
|
|
Dog Registration Refund - Deceased |
|
|
36806 |
18/11/2024 |
Jobfit Health Group Pty Ltd |
$1,362.63 |
|
|
|
Pre-Employment Medical Assessments |
|
|
36807 |
18/11/2024 |
Jordan Lewis Dench trading as Dench Entertainment |
$580.00 |
|
|
|
DJ Services - Ridgewood Event |
|
|
36808 |
18/11/2024 |
Josephine Taylor |
$482.00 |
|
|
|
Author Panel Appearance - Writers Of The North Literary Fiesta - Clarkson Library |
|
|
36809 |
18/11/2024 |
Joy Basilan & Rolando Basilan |
$985.70 |
|
|
|
Vehicle Crossing Subsidy |
|
|
36810 |
18/11/2024 |
Jurovich Surveying Pty Ltd |
$21,890.00 |
|
|
|
Digital Ground Survey And Quality Class B Utility Survey – Wanneroo Recreation Centre |
|
|
36811 |
18/11/2024 |
Karen Bisman |
$30.00 |
|
|
|
Refund - Animal Registration - Overpayment |
|
|
36812 |
18/11/2024 |
Katie Turina-Deering |
$20.00 |
|
|
|
Refund - Animal Registration - Deceased |
|
|
36813 |
18/11/2024 |
Rates Refund |
$390.00 |
|
36814 |
18/11/2024 |
Kingsway Football & Sporting Club Inc |
$7,150.00 |
|
|
|
Damaged To Equipment During Ducting Work - Fridge, Microwave, Ice Machine Etc. |
|
|
36815 |
18/11/2024 |
Kleenit |
$4,171.55 |
|
|
|
Graffiti Removal - Various Locations |
|
|
|
|
Pressure Cleaning - Kingsway Dog Park – Asset Maintenance - |
|
|
36816 |
18/11/2024 |
Komatsu Australia Pty Ltd |
$700.00 |
|
|
|
Powertrain Oil - Fleet |
|
|
36817 |
18/11/2024 |
Konica Minolta Business Solutions Australia Pty Ltd |
$1,779.73 |
|
|
|
Image Charge And Maintenance - Print Room |
|
|
36818 |
18/11/2024 |
Kyocera Document Solutions |
$5,033.82 |
|
|
|
Photocopier Meter Reading Charges - ICT |
|
|
36819 |
18/11/2024 |
Rates Refund |
$431.21 |
|
36820 |
18/11/2024 |
Landgate |
$7,959.82 |
|
|
|
Gross Rental Valuations Chargeable - Rates |
|
|
36821 |
18/11/2024 |
Landscape Elements |
$31,980.54 |
|
|
|
Streetscape Maintenance - North – September 2024 |
|
|
36822 |
18/11/2024 |
Laundry Express |
$753.38 |
|
|
|
Laundry Services - Hospitality |
|
|
36823 |
18/11/2024 |
Leanne Pereira |
$2,000.00 |
|
|
|
Refund - Street & Verge Bond |
|
|
36824 |
18/11/2024 |
Little People Play |
$1,182.50 |
|
|
|
Toddler Zone Soft Play - Ridgewood Evening In The Park |
|
|
36825 |
18/11/2024 |
Luca Letizia |
$295.00 |
|
|
|
Refund - Development Application - Withdrawn |
|
|
36826 |
18/11/2024 |
Rates Refund |
$667.92 |
|
36827 |
18/11/2024 |
Lynette De Silva |
$2,000.00 |
|
|
|
Refund - Street & Verge Bond |
|
|
36828 |
18/11/2024 |
M P Rogers & Associates Pty Ltd |
$5,907.85 |
|
|
|
Professional Coastal Engineering Services - Various Locations |
|
|
36829 |
18/11/2024 |
Mackay Urban Design |
$440.00 |
|
|
|
Design Review Panel - Member |
|
|
36830 |
18/11/2024 |
Main Roads WA |
$22,807.90 |
|
|
|
Line Marking - The Avenue |
|
|
36831 |
18/11/2024 |
Makin Dust Plant Hire |
$6,846.40 |
|
|
|
Equipment Hire - Limestone Track |
|
|
36832 |
18/11/2024 |
Manuel III Cabahug |
$2,000.00 |
|
|
|
Refund - Street & Verge Bond |
|
|
36833 |
18/11/2024 |
Master Meyn |
$21,120.00 |
|
|
|
Provision Of Human Resources And Industrial Relations Services |
|
|
36834 |
18/11/2024 |
Maxxia Pty Ltd |
$9,014.06 |
|
|
|
Payroll Deductions |
|
|
36835 |
18/11/2024 |
Mayankkumar Dave |
$985.70 |
|
|
|
Vehicle Crossing Subsidy |
|
|
36836 |
18/11/2024 |
McLeods Lawyers Pty Ltd |
$16,586.79 |
|
|
|
Legal Fees For The City |
|
|
36837 |
18/11/2024 |
Metrostrata Developments Pty Ltd |
$1,219.68 |
|
|
|
Refund - Building Application - Returned |
|
|
36838 |
18/11/2024 |
Michael Page International (Australia)Pty Ltd |
$8,628.67 |
|
|
|
Casual Labour Services |
|
|
36839 |
18/11/2024 |
Mindarie Regional Council |
$234,886.24 |
|
|
|
Refuse Disposal Charges |
|
|
36840 |
18/11/2024 |
MKDC Design Consultants |
$5,988.40 |
|
|
|
Planning & Environment - Civic Centre Building - Interior Design Services |
|
|
36841 |
18/11/2024 |
MME Underground Services Pty Ltd |
$11,749.89 |
|
|
|
Service Locating / Potholing – Girrawheen Ave |
|
|
36842 |
18/11/2024 |
Montebello Catering |
$473.00 |
|
|
|
Catering - Council Meeting |
|
|
36843 |
18/11/2024 |
Mr Christopher Hardy |
$2,000.00 |
|
|
|
Refund - Street & Verge Bond |
|
|
36844 |
18/11/2024 |
Nastech (WA) Pty Ltd |
$4,900.00 |
|
|
|
Surveying Works - Lot 218 (65) Prindiville Drive Wangara |
|
|
36845 |
18/11/2024 |
Natural Area Consulting Management Services |
$8,903.10 |
|
|
|
Black Cockatoo Artificial Hollows – Inspection And Reporting - Mather Reserve |
|
|
|
|
The Provision Of Biological Surveys - Edgar Griffith Bushland |
|
|
36846 |
18/11/2024 |
Nicole Doick and Catherine Stocker |
$985.70 |
|
|
|
Vehicle Crossing Subsidy |
|
|
36847 |
18/11/2024 |
Nicole Gordon |
$1,035.00 |
|
|
|
Face Painter - Banksia Grove Fun Festival |
|
|
36848 |
18/11/2024 |
Nicolene Van Der Merwe |
$500.00 |
|
|
|
Together We Shine Mural - Community Funding Program - Community Development |
|
|
36849 |
18/11/2024 |
Northern District Gymnastic Club |
$400.00 |
|
|
|
Refund - Participation Funding - 2 Members - Australian Gymnastics Championships |
|
|
36850 |
18/11/2024 |
Norwest Building Group |
$730.42 |
|
|
|
Refund - Building Application - Returned |
|
|
36851 |
18/11/2024 |
Nutrien Ag Solutions Limited |
$774.00 |
|
|
|
Silv Prograde Knapsack 15ltr - Parks |
|
|
36852 |
18/11/2024 |
Nuturf |
$5,159.00 |
|
|
|
Biostim Pellets - Parks |
|
|
36853 |
18/11/2024 |
Office Fitout Professionals Pty Ltd |
$20,107.34 |
|
|
|
Replace Two Existing Doors - Alexander Heights Community Centre |
|
|
36854 |
18/11/2024 |
Omnicom Media Group Australia Pty Ltd trading as Marketforce |
$3,607.59 |
|
|
|
Advertising Services - Various |
|
|
36855 |
18/11/2024 |
On Road Auto Electrics |
$1,953.60 |
|
|
|
Vehicle Repairs |
|
|
36856 |
18/11/2024 |
On Tap Services |
$31,544.93 |
|
|
|
Plumbing Maintenance Services - Various Locations |
|
|
36857 |
18/11/2024 |
Optus |
$6,556.44 |
|
|
|
Tracking Hardware And Monthly Software Access |
|
|
36858 |
18/11/2024 |
Oracle Corporation Australia Pty Ltd |
$1,370.37 |
|
|
|
Oracle Integration Cloud Service |
|
|
36859 |
18/11/2024 |
P&M Automotive Equipment |
$225.50 |
|
|
|
Hoist & Safety Compliance Inspection - Fleet |
|
|
36860 |
18/11/2024 |
Paperbark Technologies Pty Ltd |
$6,542.63 |
|
|
|
Aerial Inspection & Qtra Reports - Trees In Various Locations |
|
|
36861 |
18/11/2024 |
Parker Black & Forrest |
$4,775.88 |
|
|
|
Locking Services - Various Locations |
|
|
36862 |
18/11/2024 |
Paul Byrne |
$110.00 |
|
|
|
Refund - Building Application - Rejected |
|
|
36863 |
18/11/2024 |
Paywise Pty Ltd |
$4,679.71 |
|
|
|
Payroll Deductions |
|
|
36864 |
18/11/2024 |
Rates Refund |
$726.35 |
|
36865 |
18/11/2024 |
PGV Environmental |
$12,567.50 |
|
|
|
Environmental Consultation For Auditing And Compliance Of Works Relating To Resource Extraction Of Lot 9003 - Neerabup Industrial Area - Assets |
|
|
36866 |
18/11/2024 |
Play Check Pty Ltd |
$396.00 |
|
|
|
Design Review - Rotary Park Upgrade |
|
|
36867 |
18/11/2024 |
POP! Floral Studio |
$960.00 |
|
|
|
Large Boxed Arrangement - Get Well - Office Of The Mayor |
|
|
|
|
Wreath - Remembrance Day |
|
|
36868 |
18/11/2024 |
Power Vac Pty Ltd |
$1,881.15 |
|
|
|
Vehicle Spare Parts |
|
|
36869 |
18/11/2024 |
Powerlyt |
$5,525.52 |
|
|
|
Kingsway Men’s Shed - Inspections |
|
|
36870 |
18/11/2024 |
Premier Tarps |
$218.02 |
|
|
|
Vehicle Spare Parts |
|
|
36871 |
18/11/2024 |
Prestige Alarms |
$51,019.25 |
|
|
|
CCTV / Alarm Services - Various Locations |
|
|
36872 |
18/11/2024 |
Pront Tow Towing / Wanneroo Towing Service |
$385.00 |
|
|
|
Towing Services - Bobcat |
|
|
36873 |
18/11/2024 |
Public Sector Training Solutions Pty Ltd |
$2,400.00 |
|
|
|
Training - Certificate IV In Government Investigations - 1 Attendees |
|
|
36874 |
18/11/2024 |
Qiong Hu |
$328.36 |
|
|
|
Refund - Food Application Fee - Not Within City Of Wanneroo |
|
|
36875 |
18/11/2024 |
Quik Corp Pty Ltd |
$3,688.01 |
|
|
|
Vehicle Spare Parts |
|
|
36876 |
18/11/2024 |
Quinns Rock Bush Fire Brigade |
$1,305.25 |
|
|
|
Compressor For 3.4 And Hoses |
|
|
36877 |
18/11/2024 |
RAC BusinessWise |
$108.00 |
|
|
|
Businesswise Service Fee Roadside Assistance - WN 34499 |
|
|
36878 |
18/11/2024 |
Randstad Pty Limited |
$4,461.95 |
|
|
|
Casual Labour Services |
|
|
36879 |
18/11/2024 |
Rates Refund |
$799.52 |
|
36880 |
18/11/2024 |
Rates Refund |
$1,022.43 |
|
36881 |
18/11/2024 |
Reginald Addicott |
$2,000.00 |
|
|
|
Refund - Street & Verge Bond |
|
|
36882 |
18/11/2024 |
Reliable Fencing WA Pty Ltd |
$13,008.77 |
|
|
|
Fencing Works - Various Locations |
|
|
36883 |
18/11/2024 |
Residential Building WA Pty Ltd |
$14,000.00 |
|
|
|
Refund - Street & Verge Bonds |
|
|
36884 |
18/11/2024 |
Resource Recovery Group |
$138,472.25 |
|
|
|
Recycling Tip Off Fees |
|
|
36885 |
18/11/2024 |
RJ Vincent & Co |
$1,273,499.87 |
|
|
|
Certificate 6 - Lenore Road Duplication |
|
|
36886 |
18/11/2024 |
Roads 2000 |
$90,932.99 |
|
|
|
Progress Claim 3 - Landsdale Road – Road Widening And Asphalt |
|
|
|
|
Progress Claim 1 - Quinns Rocks Sports Club |
|
|
|
|
Final Claim - Fordoun Way |
|
|
36887 |
18/11/2024 |
Robert Walters Pty Ltd |
$5,426.08 |
|
|
|
Casual Labour Services |
|
|
36888 |
18/11/2024 |
Ross Loughton |
$500.00 |
|
|
|
CCTV Rebate |
|
|
36889 |
18/11/2024 |
Royal Pride Pty Ltd |
$302.94 |
|
|
|
Parallel Bodypack Transmitter - Aquamotion |
|
|
36890 |
18/11/2024 |
Ryan Lewis |
$985.70 |
|
|
|
Vehicle Crossing Subsidy |
|
|
36891 |
18/11/2024 |
SafePath Pty Ltd |
$5,238.75 |
|
|
|
Concrete Footpath Grinding - Thurleigh Park Butler - Assets |
|
|
36892 |
18/11/2024 |
Safety World |
$3,810.40 |
|
|
|
PPE - Waste Services & Community Safety |
|
|
36893 |
18/11/2024 |
SAI360 Pty Ltd T/As Evotix360 |
$3,118.50 |
|
|
|
Safety System Consulting Support - Draw Down Service |
|
|
36894 |
18/11/2024 |
Sanpoint Pty Ltd ATF the Fiore Family Trust |
$8,316.00 |
|
|
|
Landscape Maintenance Services – Various Locations |
|
|
36895 |
18/11/2024 |
Sara Foster |
$530.20 |
|
|
|
Writers Of The North - Clarkson Library |
|
|
36896 |
18/11/2024 |
Seabreeze Landscape Supplies |
$106.00 |
|
|
|
Landscape Supplies |
|
|
36897 |
18/11/2024 |
Seek Limited |
$8,340.61 |
|
|
|
Branded Ads October 2024 - People & Culture |
|
|
36898 |
18/11/2024 |
Rates Refund |
$125.72 |
|
36899 |
18/11/2024 |
Site Environmental & Remediation Services Pty Ltd |
$192.50 |
|
|
|
Asbestos Sampling - Ashby Operations Centre |
|
|
36900 |
18/11/2024 |
SJ McKee Maintenance Pty Ltd |
$1,420.00 |
|
|
|
Repair Works - Various Locations - Waste |
|
|
36901 |
18/11/2024 |
Skills Force Australia (Wangara) |
$378.00 |
|
|
|
Training- Fire Warden And Fire Extinguisher - 1 Attendee |
|
|
36902 |
18/11/2024 |
Slater-Gartrell Sports |
$1,892.00 |
|
|
|
Match Wicket Repair - Edgar Griffiths Park |
|
|
|
|
Tennis Net Repairs - Yanchep Sports Club |
|
|
36903 |
18/11/2024 |
Smartsalary |
$1,876.41 |
|
|
|
Payroll Deductions |
|
|
36904 |
18/11/2024 |
Soft Landing |
$29,063.65 |
|
|
|
Mattress Collection And Processing Charges - Waste |
|
|
36905 |
18/11/2024 |
SPORTENG |
$12,876.60 |
|
|
|
Construction Phase And Phase 2 – Kingsway Regional Sporting Complex |
|
|
36906 |
18/11/2024 |
SSB Pty Ltd |
$2,000.00 |
|
|
|
Refund - Street & Verge Bond |
|
|
36907 |
18/11/2024 |
St John Ambulance Western Australia Ltd |
$540.06 |
|
|
|
Service First Aid Kits And Defibrillators |
|
|
|
|
First Aid Training Services - Various |
|
|
36908 |
18/11/2024 |
Stihl Shop Osborne Park |
$1,514.70 |
|
|
|
Edger Blades & Oil - Stores |
|
|
36909 |
18/11/2024 |
StrataGreen |
$910.94 |
|
|
|
Heavy Duty Flat Tree Ties - Parks |
|
|
|
|
Swolf Power Cut Telescopic Bypass Loppers - Parks |
|
|
36910 |
18/11/2024 |
Sunrise Building Co Pty Ltd |
$492.67 |
|
|
|
Refund - Building Application - Overdue |
|
|
36911 |
18/11/2024 |
Superior Nominees Pty Ltd |
$11,850.30 |
|
|
|
Drink Fountain - Discovery Park |
|
|
|
|
Playground Equipment Repairs - Rotary Park |
|
|
36912 |
18/11/2024 |
Supreme Shades Pty Ltd |
$968.00 |
|
|
|
Backing Screen For Pump Filter Compound Fence - Kingsway Sporting Complex Dosing Unit |
|
|
36913 |
18/11/2024 |
Synergy |
$25,886.89 |
|
|
|
Power Supply Charges - Various Locations |
|
|
36914 |
18/11/2024 |
Tangent Nominees Pty Ltd (Atf The Summit Homes Group Trust) |
$2,000.00 |
|
|
|
Refund - Street & Verge Bond |
|
|
36915 |
18/11/2024 |
Tanya Lang |
$2,000.00 |
|
|
|
Refund - Street & Verge Bond |
|
|
36916 |
18/11/2024 |
Team Digital |
$1,685.00 |
|
|
|
Tripod Kit / Teleprompter - Communications & Brand |
|
|
36917 |
18/11/2024 |
Technologically Speaking |
$360.00 |
|
|
|
Technology Education Workshop – Google Photos |
|
|
36918 |
18/11/2024 |
Technology One Limited |
$65,048.73 |
|
|
|
Application Managed Service (Ams) Program & SAAS Fee - ICT |
|
|
36919 |
18/11/2024 |
Techworks Electrical Pty Ltd |
$11,295.90 |
|
|
|
Progress Claim 3 - Carramar Golf Course |
|
|
36920 |
18/11/2024 |
Telstra Limited |
$11,337.13 |
|
|
|
Fire Protection Wireless Data / Phone Charges / M2M Services |
|
|
36921 |
18/11/2024 |
Tenfold Investments Pty Ltd |
$4,950.00 |
|
|
|
Catering - Xmas Function - Gold Program |
|
|
36922 |
18/11/2024 |
Thanh Nguyen |
$480.00 |
|
|
|
CCTV Rebate |
|
|
36923 |
18/11/2024 |
The Distributors Perth |
$1,566.70 |
|
|
|
Confectionery - Kingsway |
|
|
36924 |
18/11/2024 |
The Factory Aust. Pty Ltd |
$55,814.00 |
|
|
|
Installation, Dismantling & Storage Of Christmas Decorations |
|
|
36925 |
18/11/2024 |
The Local Government, Racing and Cemeteries Employees Union (WA) |
$1,122.00 |
|
|
|
Payroll Deductions |
|
|
36926 |
18/11/2024 |
The Trustee for Talis Unit Trust T/a Talis Consultants |
$10,978.00 |
|
|
|
Consultancy Services - Wanneroo Waste Plan |
|
|
36927 |
18/11/2024 |
The Trustee for The Antonelli Property Trust T/A Novus Homes |
$2,000.00 |
|
|
|
Refund - Street & Verge Bond |
|
|
36928 |
18/11/2024 |
Think Promotional |
$7,168.70 |
|
|
|
500 Cooler Bags
/ 800 Key Rings - Waste |
|
|
36929 |
18/11/2024 |
Think Water Wanneroo |
$3,685.20 |
|
|
|
Trimmer And Trim Line - Parks |
|
|
36930 |
18/11/2024 |
Thomson Reuters (Professional) Australia Limited |
$22,110.00 |
|
|
|
Implementation And Development - E- Recruitment Solutions Big Redsky |
|
|
36931 |
18/11/2024 |
Toro Australia Group Sales Pty Ltd |
$876.48 |
|
|
|
Vehicle Spare Parts |
|
|
36932 |
18/11/2024 |
Triton Electrical Contractors Pty Ltd |
$10,913.10 |
|
|
|
Irrigation Electrical Works - Various Locations |
|
|
36933 |
18/11/2024 |
Trophy Shop Australia |
$236.30 |
|
|
|
Name Badges - Various Employees |
|
|
36934 |
18/11/2024 |
Truck Centre WA Pty Ltd |
$1,431.57 |
|
|
|
Vehicle Spare Parts |
|
|
36935 |
18/11/2024 |
United Fasteners WA Pty Ltd |
$43.14 |
|
|
|
Consumables - Fleet |
|
|
36936 |
18/11/2024 |
Veolia Recycling & Recovery Pty Ltd |
$106,090.50 |
|
|
|
Collection Charges - Confidential Paper |
|
|
|
|
Waste Disposal Fees |
|
|
36937 |
18/11/2024 |
Vocus Pty Ltd |
$495.00 |
|
|
|
Business Unlimited - Standard Access – Lagoon Drive |
|
|
36938 |
18/11/2024 |
WA Garage Doors Pty Ltd |
$385.00 |
|
|
|
Repair Of Roller Door - Quinns Mindarie Surf Life Saving Club & Community Centre |
|
|
36939 |
18/11/2024 |
WA Limestone Company |
$9,880.49 |
|
|
|
Limestone Products - Various Locations |
|
|
36940 |
18/11/2024 |
Wanderly Basso |
$2,000.00 |
|
|
|
Refund - Street & Verge Bond |
|
|
36941 |
18/11/2024 |
Wanneroo Business Association Incorporated |
$2,530.00 |
|
|
|
Awards Tickets - 2024 Wanneroo Business Awards |
|
|
|
|
November Business Breakfast Event - 2 Tickets |
|
|
36942 |
18/11/2024 |
Wanneroo Central Bushfire Brigade |
$4,000.00 |
|
|
|
Annual Contribution From CoW |
|
|
36943 |
18/11/2024 |
Wanneroo Central Bushfire Brigade |
$1,325.00 |
|
|
|
Control Burn: Rustic Gardens Carramar & Perry Road |
|
|
36944 |
18/11/2024 |
Wanneroo Electric |
$63,198.14 |
|
|
|
Electrical Maintenance Services - Various Locations |
|
|
36945 |
18/11/2024 |
Water Corporation |
$18,467.78 |
|
|
|
Water Supply Charges - Various Locations |
|
|
36946 |
18/11/2024 |
Waterfeatures By Design |
$318,220.14 |
|
|
|
Design, Supply & Installation – Aquamotion Splashpad |
|
|
36947 |
18/11/2024 |
Wayne Wan |
$500.00 |
|
|
|
CCCTV Rebate |
|
|
36948 |
18/11/2024 |
West Coast Turf |
$27,575.61 |
|
|
|
Turfing Works - Various Locations |
|
|
36949 |
18/11/2024 |
West-Sure Group Pty Ltd |
$368.98 |
|
|
|
Cash Collection Services |
|
|
36950 |
18/11/2024 |
Western Australian Christian Football Association |
$200.00 |
|
|
|
Participation Funding - 1 Member - WACFA - Melbourne 03 - 10.10.2024 |
|
|
36951 |
18/11/2024 |
Western Environmental Approvals Pty Ltd |
$8,280.80 |
|
|
|
Consulting Services - Biological Surveys 2024 - Badgerup Reserve |
|
|
36952 |
18/11/2024 |
Western Irrigation Pty Ltd |
$22,277.87 |
|
|
|
Irrigation Parts Replacement List |
|
|
36953 |
18/11/2024 |
William Buck Consulting (WA) Pty Ltd |
$2,200.00 |
|
|
|
24088 Probity Service - Supply And Installation Of Turf |
|
|
36954 |
18/11/2024 |
William Jackson |
$150.00 |
|
|
|
Dog Registration Refund - Sterilised |
|
|
36955 |
18/11/2024 |
Windcave Pty Limited |
$253.00 |
|
|
|
Eftpos Plan - City Of Wanneroo Library |
|
|
36956 |
18/11/2024 |
Work Clobber |
$198.00 |
|
|
|
Uniform Issue - 1 Employee |
|
|
36957 |
18/11/2024 |
Work Clobber |
$1,334.51 |
|
|
|
Uniform Issue - Various Employees |
|
|
36958 |
18/11/2024 |
Wrenoil |
$544.50 |
|
|
|
Oil Waste Disposal, Administration & Compliance Fees |
|
|
36959 |
18/11/2024 |
Zeplin Pty Ltd |
$7,128.00 |
|
|
|
Pronestor Display License - ICT |
|
|
36960 |
18/11/2024 |
Zipform Pty Ltd |
$5,310.29 |
|
|
|
Printing - 2nd Instalment Notices - Rates |
|
|
36961 |
21/11/2024 |
AARCO Environmental Solutions Pty Ltd |
$1,289.75 |
|
|
|
Removal Of Asbestos - Various Locations |
|
|
36962 |
21/11/2024 |
Anthony Humphreys |
$2,000.00 |
|
|
|
Refund - Street & Verge Bond |
|
|
36963 |
21/11/2024 |
Bollig Design Group Ltd |
$8,846.86 |
|
|
|
Consultancy Services - Dordaak Kepap Library & Youth Innovation Hub |
|
|
36964 |
21/11/2024 |
Challenge Brass Band |
$4,155.00 |
|
|
|
Community Funding - Grant Funds |
|
|
36965 |
21/11/2024 |
Double G (WA) Pty Ltd |
$1,712.79 |
|
|
|
Install Reticulation - Halesworth Park - Asset |
|
|
36966 |
21/11/2024 |
Institute of Public Works Engineering Australasia – Western Australia Inc. |
$3,800.00 |
|
|
|
Registration - Public Works Professional Development Week - 9 Attendees |
|
|
36967 |
21/11/2024 |
Cancelled |
|
|
36968 |
21/11/2024 |
Randstad Pty Limited |
$5,228.86 |
|
|
|
Casual Labour Services |
|
|
36973 |
25/11/2024 |
Ms C Buck |
$28.96 |
|
|
|
Reimbursement - Travel Expenses |
|
|
36974 |
25/11/2024 |
Cancelled |
|
|
36975 |
25/11/2024 |
Mr R Ellyard |
$14.32 |
|
|
|
Reimbursement - Parking Ticket |
|
|
36976 |
25/11/2024 |
Mr S Paulsen |
$837.00 |
|
|
|
Reimbursement - Annual CPA Membership |
|
|
36977 |
25/11/2024 |
Mr W Pearce |
$35.59 |
|
|
|
Reimbursement - Fuel |
|
|
36978 |
25/11/2024 |
IRREX |
$1,210.00 |
|
|
|
Installation And
Commissioning – Moisture |
|
|
36979 |
25/11/2024 |
1Spatial Australia Pty Limited |
$665.79 |
|
|
|
FME Enterprise Subscription - October 2024 |
|
|
36980 |
25/11/2024 |
AARCO Environmental Solutions Pty Ltd |
$954.25 |
|
|
|
Asbestos Removal - Various Locations |
|
|
36981 |
25/11/2024 |
ABN Residential WA Pty Ltd |
$8,161.90 |
|
|
|
Refund - Street & Verge Bonds |
|
|
36982 |
25/11/2024 |
ABN Residential WA Pty Ltd |
$2,000.00 |
|
|
|
Refund - Street & Verge Bond |
|
|
36983 |
25/11/2024 |
Access Unlimited International Pty Ltd |
$126.50 |
|
|
|
Service And Calibration Of Gas Detector |
|
|
36984 |
25/11/2024 |
Acclaimed Catering |
$7,031.75 |
|
|
|
Catering - 2024 School Leadership Showcase |
|
|
36985 |
25/11/2024 |
Acclaimed Catering |
$2,370.50 |
|
|
|
Catering - Time Capsule Opening |
|
|
36986 |
25/11/2024 |
Action Glass & Aluminum |
$255.75 |
|
|
|
Reglaze Door Panel - Hainsworth Leisure Centre - Building Maintenance |
|
|
36987 |
25/11/2024 |
ACwest Electrical PTY LTD |
$2,711.50 |
|
|
|
Electrical Renewal - Liddell Park Toilets |
|
|
36988 |
25/11/2024 |
Adelphi Apparel |
$2,700.50 |
|
|
|
Uniform Issue - Rangers |
|
|
36989 |
25/11/2024 |
Alinta Gas |
$2,223.05 |
|
|
|
Gas Supply Charges - Various Locations |
|
|
36990 |
25/11/2024 |
All Bar None |
$385.00 |
|
|
|
Bike Rack Hire - Bike Month - Traffic Services |
|
|
36991 |
25/11/2024 |
Allworks (WA) Pty Ltd |
$18,047.98 |
|
|
|
Excavator Hire - 20.09.2024 - Assets |
|
|
36992 |
25/11/2024 |
ANZ Enviro Pty Ltd |
$4,702.50 |
|
|
|
Removed And Disposed Of Carpet And Asbestos Floor Tiles - Ashby Operations Centre |
|
|
36993 |
25/11/2024 |
Ascon Survey and Drafting |
$3,653.65 |
|
|
|
Drainage And Road Widening Surveying - Landsdale Road |
|
|
|
|
Spotting Work - Parin Road |
|
|
|
|
Sign Renewal - Various Locations |
|
|
36994 |
25/11/2024 |
Ashley Barker |
$500.00 |
|
|
|
CCTV Rebate |
|
|
36995 |
25/11/2024 |
Aslab Pty Ltd |
$14,949.00 |
|
|
|
Asphalt Testing: - Gnangara Road / Hartman Drive - Rigali Way / Neerabup Industrial Area |
|
|
36996 |
25/11/2024 |
Atlas Dry Cleaners |
$301.42 |
|
|
|
Laundry Services - Trees & Conservation |
|
|
36997 |
25/11/2024 |
Audi Centre Perth |
$68,821.25 |
|
|
|
New Vehicle Purchase - Audi Q3 Wagon – Fleet Assets |
|
|
36998 |
25/11/2024 |
Australian Airconditioning Services Pty Ltd |
$2,478.39 |
|
|
|
Aircon Maintenance Services - Various Locations |
|
|
36999 |
25/11/2024 |
Autoscreens Automotive Glass |
$302.50 |
|
|
|
Multiple Chip Repairs - 2 Vehicles |
|
|
37000 |
25/11/2024 |
Aveling Homes Pty Ltd |
$1,211.20 |
|
|
|
Refund - Development Application - Withdrawn |
|
|
37001 |
25/11/2024 |
Back Beach Co Pty Ltd |
$1,786.40 |
|
|
|
Hawaiian Stripe Towel Robes - Aquamotion |
|
|
37002 |
25/11/2024 |
Bing Technologies Pty Ltd |
$4,304.41 |
|
|
|
Postage Charges For The City |
|
|
37003 |
25/11/2024 |
BOC Limited |
$66.62 |
|
|
|
Industrial Nitrogen & Oxygen Cylinders - Fleet & Community Safety |
|
|
37004 |
25/11/2024 |
Boya Equipment |
$1,007.36 |
|
|
|
Small Plant Spare Parts |
|
|
37005 |
25/11/2024 |
Rates Refund |
$3,053.81 |
|
37006 |
25/11/2024 |
Brendan Mertens |
$449.70 |
|
|
|
CCTV Rebate |
|
|
37007 |
25/11/2024 |
Bridgestone Australia Limited |
$1,055.12 |
|
|
|
Tyre Fitting Services |
|
|
37008 |
25/11/2024 |
Bridgestone Australia Limited |
$4,052.05 |
|
|
|
Tyre Fitting Services |
|
|
37009 |
25/11/2024 |
Brighton Seahawks Junior Football Club |
$215.60 |
|
|
|
Refund - Hire Fees |
|
|
37010 |
25/11/2024 |
Brownes Foods Operations Pty Limited |
$353.85 |
|
|
|
Milk Supplies - Various Locations |
|
|
37011 |
25/11/2024 |
Buggybuddys |
$764.50 |
|
|
|
Gold Package / Shared EDM Guide – Water Guide |
|
|
37012 |
25/11/2024 |
BWY Engineering Consultants Pty Ltd |
$29,400.80 |
|
|
|
Condition Assessment and Validation of Park and Natural Area Assets - Various Locations |
|
|
37013 |
25/11/2024 |
Car Care Motor Company Pty Ltd |
$2,461.69 |
|
|
|
Vehicle Repairs - Fleet |
|
|
37014 |
25/11/2024 |
Castledex |
$2,970.00 |
|
|
|
10 Optima Visitor Chairs - Community Centre Furniture |
|
|
37015 |
25/11/2024 |
Catalina Regional Council |
$53,302.47 |
|
|
|
GST Payable – Oct 2024 Pursuant To Section 153 B Of Agreement |
|
|
37016 |
25/11/2024 |
CDM Australia Pty Ltd |
$715.00 |
|
|
|
1 Graphics Card - ICT |
|
|
37017 |
25/11/2024 |
Chadson Engineering Pty Ltd |
$401.50 |
|
|
|
Calibrate - Pool Test - Compliance |
|
|
37018 |
25/11/2024 |
Chenghui Tang |
$345.00 |
|
|
|
CCTV Rebate |
|
|
37019 |
25/11/2024 |
Chillo Refrigeration & Air-Conditioning |
$2,586.16 |
|
|
|
Repair Ice Machine In Staff Muster Area. Ashby Operations Centre |
|
|
|
|
Cool Room Repairs - Civic Centre |
|
|
37020 |
25/11/2024 |
Chiragkumar Patel |
$354.27 |
|
|
|
CCTV Rebate |
|
|
37021 |
25/11/2024 |
Christine Sandra Taite |
$499.36 |
|
|
|
CCTV Rebate |
|
|
37022 |
25/11/2024 |
City of Armadale |
$4,477.89 |
|
|
|
Long Service Leave Portability Recoup – Former Employee |
|
|
37023 |
25/11/2024 |
Coca Cola Amatil Pty Ltd |
$627.26 |
|
|
|
Beverages - Kingsway |
|
|
37024 |
25/11/2024 |
Commissioner of Police |
$18.00 |
|
|
|
National Police Check - 1 Volunteer |
|
|
37025 |
25/11/2024 |
Complete Office Supplies Pty Ltd |
$3,069.10 |
|
|
|
Stationery Purchases - Various Service Units |
|
|
37026 |
25/11/2024 |
Contra-Flow Pty Ltd |
$22,425.58 |
|
|
|
Traffic Control Services - Various Locations |
|
|
37027 |
25/11/2024 |
Corsign (WA) Pty Ltd |
$8,695.50 |
|
|
|
Sign - (Symb No Stopping) Road Or Nature Strip |
|
|
|
|
Sign - Blackspot MRWA Funding - Hester Avenue And Connolly Drive Intersection Upgrade |
|
|
|
|
Signs - (Residential Area) (Pic) Reduce Vehicle Noise |
|
|
|
|
Signs - Care For Our Wildlife (Symb Quenda) Wildcare Helpline |
|
|
|
|
Signs - Health Warning |
|
|
|
|
Signs - Park In Bays Only |
|
|
|
|
Signs - No Parking |
|
|
|
|
Signs - No Stopping |
|
|
|
|
Street Name Plates |
|
|
37028 |
25/11/2024 |
Craneswest (WA) Pty Ltd |
$12,513.60 |
|
|
|
Debris Collection - Various Locations |
|
|
37029 |
25/11/2024 |
Critical Fire Protection & Training Pty Ltd |
$2,477.33 |
|
|
|
Fire Protection Equipment Services – Various Locations |
|
|
37030 |
25/11/2024 |
CS Legal |
$24,480.66 |
|
|
|
Court Fees - Rating Services |
|
|
37031 |
25/11/2024 |
CS Legal |
$5,102.84 |
|
|
|
Court Fees - Rating Services |
|
|
37032 |
25/11/2024 |
Daimler Trucks Perth |
$2,584.84 |
|
|
|
Vehicle Spare Parts |
|
|
37033 |
25/11/2024 |
Daniel Hughes |
$2,000.00 |
|
|
|
Refund - Street And Verge Bond |
|
|
37034 |
25/11/2024 |
Data #3 Limited |
$608.91 |
|
|
|
Subscriptions - Acrobat - ICT |
|
|
37035 |
25/11/2024 |
David Allan-Petale |
$482.00 |
|
|
|
Writers Of The North Event - Clarkson Library |
|
|
37036 |
25/11/2024 |
David Roy Cull |
$2,513.50 |
|
|
|
General Pest Control Services – Various Locations |
|
|
37037 |
25/11/2024 |
Rates Refund |
$120.00 |
|
37038 |
25/11/2024 |
Deans Autoglass |
$990.00 |
|
|
|
Replace Windscreen - WN 33602 - Fleet |
|
|
37039 |
25/11/2024 |
Delos Delta Pty Ltd |
$10,912.00 |
|
|
|
Artificial Intelligence (Ai) Policy Development |
|
|
37040 |
25/11/2024 |
Department of Planning, Lands and Heritage |
$6,168.00 |
|
|
|
Application Fee - Applicant: Peter Simpson, PTS Town Planning Pty Ltd - Reference: DAP/24/02795 - Property Address: 61 (Lot 506) Key Largo Drive Clarkson - Proposal: Change Of Use To Tavern And Amusement Parlour |
|
|
37041 |
25/11/2024 |
Department of the Premier and Cabinet |
$596.55 |
|
|
|
Government Gazette - Fire Mitigation Notice And Fire Management 2024 / 2025 Fire Season FCO's |
|
|
37042 |
25/11/2024 |
DMC Cleaning |
$6,144.57 |
|
|
|
Cleaning Consumables / Services – Various Locations |
|
|
37043 |
25/11/2024 |
Dowsing Group Pty Ltd |
$15,709.43 |
|
|
|
Concrete Works - Various Locations |
|
|
37044 |
25/11/2024 |
Dowsing Group Pty Ltd |
$3,904.82 |
|
|
|
Concrete Works - Grassington Entrance |
|
|
37045 |
25/11/2024 |
Drainflow Services Pty Ltd |
$48,782.56 |
|
|
|
Drain Cleaning / Road Sweeping Services - Various Locations |
|
|
37046 |
25/11/2024 |
Drovers Vet Hospital Pty Ltd |
$269.90 |
|
|
|
Veterinary Charges |
|
|
37047 |
25/11/2024 |
Du Clene Pty Ltd |
$7,276.50 |
|
|
|
Cleaning Services - Various Locations |
|
|
37048 |
25/11/2024 |
Eclipse Soils |
$7,425.00 |
|
|
|
Mulch - Kingsbridge Boulevard |
|
|
37049 |
25/11/2024 |
Rates Refund |
$10,972.84 |
|
37050 |
25/11/2024 |
Environmental Industries Pty Ltd |
$23,138.50 |
|
|
|
Landscape Maintenance Works – Various Locations |
|
|
37051 |
25/11/2024 |
EPM Partners Pty Ltd |
$4,620.00 |
|
|
|
Subscription Self Managed Program - November 2024 |
|
|
37052 |
25/11/2024 |
Evolve Talent Pty Ltd |
$10,418.16 |
|
|
|
Casual Labour Services |
|
|
37053 |
25/11/2024 |
Fleet Network |
$2,423.85 |
|
|
|
Input Tax Credits – 08.10.2024 19.11.2024 22.10.2024 |
|
|
37054 |
25/11/2024 |
Fleetspec Hire |
$6,201.54 |
|
|
|
Equipment Hire - Parks |
|
|
37055 |
25/11/2024 |
Foxfish Pty Ltd t/as Binley Fencing |
$1,120.37 |
|
|
|
Temporary Fencing - James Spires Park & Wanneroo Showgrounds |
|
|
37056 |
25/11/2024 |
Rates Refund |
$14,000.00 |
|
37057 |
25/11/2024 |
Frontline Fire & Rescue Equipment |
$344.30 |
|
|
|
Service Pump Engine - QRFB02 |
|
|
37058 |
25/11/2024 |
Fusion Applications Pty Ltd |
$6,435.00 |
|
|
|
Integration Development Support Services - Draw Down Service |
|
|
37059 |
25/11/2024 |
Rates Refund |
$2,915.82 |
|
37060 |
25/11/2024 |
Geoff's Tree Service Pty Ltd |
$27,170.09 |
|
|
|
Tree Works - Various Locations |
|
|
37061 |
25/11/2024 |
Glenys Mullins |
$2,000.00 |
|
|
|
Refund - Street & Verge Bond |
|
|
37062 |
25/11/2024 |
GPC Asia Pacific Pty Ltd |
$946.00 |
|
|
|
Subscription - G-Scan Update - Fleet |
|
|
37063 |
25/11/2024 |
Hays Personnel Services |
$4,717.41 |
|
|
|
Casual Labour Services |
|
|
37064 |
25/11/2024 |
Helene Pty Ltd trading as Lo-Go Appointments WA |
$986.61 |
|
|
|
Casual Labour Services |
|
|
37065 |
25/11/2024 |
Hickey Constructions Pty Ltd |
$16,369.65 |
|
|
|
CFC Sheeting Works / Concrete Cutting - Kingsway Football Club |
|
|
|
|
Replacement Duck Ramp - Kingsway Sports Complex |
|
|
|
|
Limestone Wall Repairs - Liddell Park |
|
|
37066 |
25/11/2024 |
Hitachi Construction Machinery Pty Ltd |
$1,029.56 |
|
|
|
Vehicle Spare Parts |
|
|
37067 |
25/11/2024 |
Home Group WA Pty Ltd |
$2,000.00 |
|
|
|
Refund - Street & Verge Bond |
|
|
37068 |
25/11/2024 |
Hose Right |
$558.17 |
|
|
|
Vehicle Hoses / Repairs |
|
|
37069 |
25/11/2024 |
Houspect WA |
$1,900.80 |
|
|
|
Building Inspection - Wanneroo Sports & Social Club |
|
|
37070 |
25/11/2024 |
Hydroquip Pumps & Irrigation Pty Ltd |
$54,522.26 |
|
|
|
Irrigation Pump Works - Various Locations |
|
|
37071 |
25/11/2024 |
Imagesource Digital Solutions |
$2,112.00 |
|
|
|
Waste Recycling Truck Reskin - Site Visit & Install |
|
|
37072 |
25/11/2024 |
Insight Urbanism |
$1,100.00 |
|
|
|
Design Review Panel Member - Approvals |
|
|
|
|
Presentation And Facilitation Design Review Training (Internal) - Approvals |
|
|
37073 |
25/11/2024 |
Institute of Public Works Engineering Australasia – Western Australia Inc. |
$50.00 |
|
|
|
Registration - Public Works Professional Development Week - 1 Attendee |
|
|
37074 |
25/11/2024 |
Integrity Industrial Pty Ltd |
$27,378.36 |
|
|
|
Casual Labour Services |
|
|
37075 |
25/11/2024 |
Integrity Industrial Pty Ltd |
$20,745.60 |
|
|
|
Casual Labour Services |
|
|
37076 |
25/11/2024 |
Integrity Staffing |
$4,660.46 |
|
|
|
Casual Labour Services |
|
|
37077 |
25/11/2024 |
Intelife Group |
$68,398.00 |
|
|
|
Conservation EAWs Brushcutting / Mowing - October 2024 |
|
|
37078 |
25/11/2024 |
J Blackwood & Son Ltd |
$753.97 |
|
|
|
WD-40 / Lens Wipes / Tape Measures - Stores |
|
|
37079 |
25/11/2024 |
Jackson McDonald |
$1,296.90 |
|
|
|
Legal Fees For The City |
|
|
37080 |
25/11/2024 |
Japanese Truck & Bus Spares Pty Ltd |
$233.50 |
|
|
|
Vehicle Spare Parts |
|
|
37081 |
25/11/2024 |
JCorp Pty Ltd |
$2,000.00 |
|
|
|
Refund - Street & Verge Bond |
|
|
37082 |
25/11/2024 |
JLT Risk Solutions Pty Ltd |
$816.75 |
|
|
|
Public & Products Liability For City Of Wanneroo - Uninsured Stallholders, Buskers, Performers, Artists And Entertainers From 7/11/2024 To 7/11/2025 |
|
|
37083 |
25/11/2024 |
Jobfit Health Group Pty Ltd |
$3,425.96 |
|
|
|
Pre-Employment Medical Assessments |
|
|
37084 |
25/11/2024 |
Jonathan Taylor |
$2,000.00 |
|
|
|
Refund - Street & Verge Bond |
|
|
37085 |
25/11/2024 |
Katherine Biddle |
$222.00 |
|
|
|
Refund - Development Application - Withdrawn |
|
|
37086 |
25/11/2024 |
Kaye Hiden |
$500.00 |
|
|
|
CCTV Rebate |
|
|
37087 |
25/11/2024 |
Kerb Direct Kerbing |
$25,844.05 |
|
|
|
Kerbing Works - Various Locations |
|
|
37088 |
25/11/2024 |
Kerb Direct Kerbing |
$8,372.42 |
|
|
|
Kerbing Works - Various Locations |
|
|
37089 |
25/11/2024 |
Kiri Dawson |
$500.00 |
|
|
|
CCTV Rebate |
|
|
37090 |
25/11/2024 |
Kleenit |
$1,697.71 |
|
|
|
Graffiti Removal - Various Locations |
|
|
37091 |
25/11/2024 |
Komatsu Australia Pty Ltd |
$461.16 |
|
|
|
Vehicle Spare Parts |
|
|
37092 |
25/11/2024 |
Kyocera Document Solutions |
$4,494.60 |
|
|
|
Scanner 1 Year Equipment Maintenance Agreement |
|
|
37093 |
25/11/2024 |
Landcare Weed Control |
$37,542.99 |
|
|
|
General Spray And Hand Weeding - Burn Sites |
|
|
37094 |
25/11/2024 |
Landgate |
$6,766.05 |
|
|
|
Unimproved / Gross Rental Valuations Chargeable - Rating Services |
|
|
37095 |
25/11/2024 |
Landscape Elements |
$17,610.56 |
|
|
|
Pest Control - Grand Bank Parkway - Parks |
|
|
|
|
Vegetation Removal - Seeadler Park - Parks |
|
|
37096 |
25/11/2024 |
Larrikin House Pty Ltd |
$323.00 |
|
|
|
Library Book Stock |
|
|
37097 |
25/11/2024 |
Launa Alexander |
$500.00 |
|
|
|
CCTV Rebate |
|
|
37098 |
25/11/2024 |
Lawn Doctor Turf Solutions |
$143,514.80 |
|
|
|
Turfing Works - Various Locations |
|
|
37099 |
25/11/2024 |
LGC Traffic Management |
$163.50 |
|
|
|
Refund - Noise Management Plan Application -Paid Twice |
|
|
37100 |
25/11/2024 |
Linemarking WA Pty Ltd |
$1,654.33 |
|
|
|
Linemarking Services - Various Locations |
|
|
37101 |
25/11/2024 |
Maclean & Lawrence Pty Ltd |
$5,852.00 |
|
|
|
Waste System Concept Design - Ashby Operations Centre & Animal Care Centre |
|
|
37102 |
25/11/2024 |
Maharshi Pandya |
$500.00 |
|
|
|
CCTV Rebate |
|
|
37103 |
25/11/2024 |
Main Roads WA |
$3,824.13 |
|
|
|
Repair Damaged Loop 6 & 7 Of Traffic Lights - The Avenue And Marangaroo Drive |
|
|
37104 |
25/11/2024 |
Martin Dryburgh & Caroline Dryburgh |
$985.70 |
|
|
|
Vehicle Crossing Subsidy |
|
|
37105 |
25/11/2024 |
Materon Investments WA Pty Ltd |
$2,000.00 |
|
|
|
Refund - Street & Verge Bond |
|
|
37106 |
25/11/2024 |
Maxxia Pty Ltd |
$1,442.55 |
|
|
|
Input Tax Credits For Salary Packaging – Oct 2024 |
|
|
37107 |
25/11/2024 |
McLeods Lawyers Pty Ltd |
$5,393.96 |
|
|
|
Legal Fees For The City |
|
|
37108 |
25/11/2024 |
Melissa Wigley |
$2,000.00 |
|
|
|
Refund - Street & Verge Bond |
|
|
37109 |
25/11/2024 |
Meta Maya Environmental Pty Ltd |
$159,720.00 |
|
|
|
Site Remediation Works ACM Removal – Quinns Rocks Caravan Park |
|
|
37110 |
25/11/2024 |
Michael Page International (Australia)Pty Ltd |
$3,642.14 |
|
|
|
Casual Labour Services |
|
|
37111 |
25/11/2024 |
Mindarie Regional Council |
$217,052.65 |
|
|
|
Refuse Disposal Charges |
|
|
37112 |
25/11/2024 |
MME Underground Services Pty Ltd |
$21,644.04 |
|
|
|
Location Of Services - Various Locations |
|
|
37113 |
25/11/2024 |
Montebello Catering |
$709.50 |
|
|
|
Catering - A & R Committee 19.11.2024 |
|
|
37114 |
25/11/2024 |
Nastech (WA) Pty Ltd |
$1,954.00 |
|
|
|
Preparation Of IODP (Easement) - Welwyn Park |
|
|
37115 |
25/11/2024 |
Natural Area Consulting Management Services |
$18,591.08 |
|
|
|
Landscape Maintenance Services – Various Locations |
|
|
37116 |
25/11/2024 |
Nawej Rubemb |
$233.30 |
|
|
|
Refund - Building Application – Application Returned |
|
|
37117 |
25/11/2024 |
Neil Stenhouse |
$985.70 |
|
|
|
Vehicle Crossover Subsidy |
|
|
37118 |
25/11/2024 |
Nimish Solanki |
$408.82 |
|
|
|
CCTV Rebate |
|
|
37119 |
25/11/2024 |
Nuturf |
$13,684.00 |
|
|
|
Chemicals - Parks |
|
|
37120 |
25/11/2024 |
NVMS Pty Ltd |
$1,089.00 |
|
|
|
Calibrate Sound Level Meter - Health & Compliance |
|
|
37121 |
25/11/2024 |
Omnicom Media Group Australia Pty Ltd trading as Marketforce |
$3,058.00 |
|
|
|
Advertising Services For The City |
|
|
37122 |
25/11/2024 |
On Road Auto Electrics |
$1,729.13 |
|
|
|
Vehicle Electrical Works - Fleet |
|
|
37123 |
25/11/2024 |
On Tap Services |
$7,003.57 |
|
|
|
Plumbing Maintenance Services -Various Locations |
|
|
37124 |
25/11/2024 |
Outdoor World |
$2,000.00 |
|
|
|
Refund - Street & Verge Bond |
|
|
37125 |
25/11/2024 |
OzKidzKartz |
$1,540.00 |
|
|
|
Community Event - 09.11.2024 - Events |
|
|
37126 |
25/11/2024 |
Paperbark Technologies Pty Ltd |
$3,923.20 |
|
|
|
Aerial Inspection & Qtra Reports – Various Locations |
|
|
37127 |
25/11/2024 |
Parins |
$1,000.00 |
|
|
|
Insurance Excess - 1HGD 151 |
|
|
37128 |
25/11/2024 |
Parker Black & Forrest |
$413.21 |
|
|
|
Locking Services - Various Locations |
|
|
37129 |
25/11/2024 |
Paywise Pty Ltd |
$373.58 |
|
|
|
Input Tax Credits - Salary Packaging – October 2024 |
|
|
37130 |
25/11/2024 |
Perth Geotechnics Pty Ltd |
$770.00 |
|
|
|
Geotechnical Report - Modular Toilet Block - Amery Park |
|
|
37131 |
25/11/2024 |
Perth Materials Blowing Pty Ltd |
$179,074.61 |
|
|
|
Mulch Application - Various Locations |
|
|
37132 |
25/11/2024 |
Precision Carpets Pty Ltd |
$18,878.09 |
|
|
|
Supply & Install Carpet - Library & Phil Renkin - Assets |
|
|
37133 |
25/11/2024 |
Precision Visual Group Pty Ltd |
$294.00 |
|
|
|
Refund - Development Applications - Withdrawn |
|
|
37134 |
25/11/2024 |
Prestige Alarms |
$34,564.69 |
|
|
|
Alarm / CCTV Services - Various Locations |
|
|
37135 |
25/11/2024 |
Print Integrity |
$2,912.25 |
|
|
|
Pet Bag Dispenser / Pens / Trek Dog Collars / Stress Balls |
|
|
37136 |
25/11/2024 |
Professional Arts Management |
$7,920.00 |
|
|
|
Performance Of
Necessary Reactive |
|
|
37137 |
25/11/2024 |
Pront Tow Towing / Wanneroo Towing Service |
$847.00 |
|
|
|
Towing Services - Fleet |
|
|
37138 |
25/11/2024 |
Quremed Pty Ltd |
$459.19 |
|
|
|
Multiflow Regulator & Oxygen Hose Assembly - Aquamotion |
|
|
37139 |
25/11/2024 |
Reliable Fencing WA Pty Ltd |
$3,287.90 |
|
|
|
Repair Fencing - Various Locations |
|
|
|
|
Supply / Install New Metal Bollard - Abbeville Park |
|
|
37140 |
25/11/2024 |
Ricky Adams |
$600.00 |
|
|
|
Live Caricature Art - Ridgewood Park Event 09.11.2024 |
|
|
37141 |
25/11/2024 |
Roads 2000 |
$469,650.15 |
|
|
|
Final Claim - Civil Works - Quinns Rocks Sports Club |
|
|
|
|
Progress Claim 1 & 2 - Mirrabooka Avenue - Rawlinson Drive To Hepburn Avenue |
|
|
37142 |
25/11/2024 |
Robert Walters Pty Ltd |
$5,290.43 |
|
|
|
Casual Labour Services |
|
|
37143 |
25/11/2024 |
Rosita Stewart |
$500.00 |
|
|
|
CCTV Rebate |
|
|
37144 |
25/11/2024 |
Royal Pride Pty Ltd |
$1,467.10 |
|
|
|
Service / Repair PA Units Pav - Aquamotion |
|
|
37145 |
25/11/2024 |
SafePath Pty Ltd |
$5,995.00 |
|
|
|
Footpath Grinding - Colmworth Park & Rosegreen Park - Engineering |
|
|
37146 |
25/11/2024 |
Safety And Rescue Equipment |
$360.47 |
|
|
|
Inspection Of Roof Safety System – Halesworth Park |
|
|
37147 |
25/11/2024 |
Safety World |
$222.20 |
|
|
|
Uniform Issue - 1 Employee |
|
|
37148 |
25/11/2024 |
Sanpoint Pty Ltd ATF the Fiore Family Trust |
$274,422.76 |
|
|
|
Landscape Maintenance Services - Various Locations |
|
|
37149 |
25/11/2024 |
Scott Print |
$886.96 |
|
|
|
Envelopes - Community Safety & Emergency |
|
|
37150 |
25/11/2024 |
Seabreeze Landscape Supplies |
$87.00 |
|
|
|
Landscape Mix - Parks |
|
|
37151 |
25/11/2024 |
Rates Refund |
$500.00 |
|
37152 |
25/11/2024 |
Sharka Hornakova t/a Donut Waste |
$600.00 |
|
|
|
Plastic Free Deodorant Workshop - The Girrawheen Hub |
|
|
37153 |
25/11/2024 |
Shree Jalaram Mandal WA |
$295.00 |
|
|
|
Refund - Development Application - Waiver Of Fees |
|
|
37154 |
25/11/2024 |
Site Sentry Pty Ltd |
$4,136.00 |
|
|
|
Relocate Site Sentry - Yanchep Sports & Social Club To Oldham Park |
|
|
|
|
Relocate Site Sentry - Discovery Park To Alexander Heights Park |
|
|
|
|
Relocate Site Sentry - Hudson Park To Pollino Gardens |
|
|
|
|
Relocate Site Sentry - Ridgewood Park To Blackmore Park |
|
|
37155 |
25/11/2024 |
Soco Studios |
$1,320.00 |
|
|
|
Active Ageing Expo - Videography 3 Hours - 60- 120 Second Video |
|
|
37156 |
25/11/2024 |
SOLO Resource Recovery |
$187,245.06 |
|
|
|
Greenwaste Bin Collections |
|
|
37157 |
25/11/2024 |
SSB Pty Ltd |
$144.40 |
|
|
|
Refund - Verge Licence Application - Returned |
|
|
37158 |
25/11/2024 |
St John Ambulance Western Australia Ltd |
$620.40 |
|
|
|
Event Services - Active Ageing Expo |
|
|
|
|
First Aid Training - 1 Attendee |
|
|
37159 |
25/11/2024 |
Steens Gray & Kelly |
$1,524.60 |
|
|
|
Progress Invoice - Contract Administration - Quinns Rock Bowls Sports Club HVAC Update |
|
|
37160 |
25/11/2024 |
Stephen Creamer |
$123.30 |
|
|
|
Refund - Building Application - Rejected |
|
|
37161 |
25/11/2024 |
Stihl Shop Osborne Park |
$3,051.80 |
|
|
|
Small Plant Spare Parts |
|
|
37162 |
25/11/2024 |
StrataGreen |
$1,209.12 |
|
|
|
Hardwood Tree Stakes - Conservation |
|
|
37163 |
25/11/2024 |
Structerre Consulting Engineers |
$7,045.50 |
|
|
|
Geotechnical Investigation & Report Commercial - Wanneroo Showgrounds |
|
|
37164 |
25/11/2024 |
Superior Nominees Pty Ltd |
$45,820.50 |
|
|
|
Playground
Equipment Repairs - Various |
|
|
|
|
Supply Of Grillex Drink Fountain - Sanctuary Parks |
|
|
37165 |
25/11/2024 |
Supreme Shades Pty Ltd |
$1,754.50 |
|
|
|
Shade Sail Removal For Repairs - Yanchep Surf Life Saving Club |
|
|
|
|
Replaced Snapped Cable On The Shades – Fred Stubbs Park |
|
|
37166 |
25/11/2024 |
Synergy |
$16,869.27 |
|
|
|
Power Supply Charges - Various Locations |
|
|
37167 |
25/11/2024 |
Team Global Express Pty Ltd |
$1,193.79 |
|
|
|
Courier Services |
|
|
37168 |
25/11/2024 |
Telstra Limited |
$1,210.00 |
|
|
|
Girrawheen Hub Ethernet |
|
|
37169 |
25/11/2024 |
The Artists' Foundation of Western Australia Ltd |
$275.00 |
|
|
|
Artsource Associate Subscription |
|
|
37170 |
25/11/2024 |
The Distributors Perth |
$232.50 |
|
|
|
Confectionery - Kingsway |
|
|
37171 |
25/11/2024 |
The Hire Guys Wangara |
$1,936.00 |
|
|
|
Hire Of Mitsubishi Triton 4X4 - Bulk Services |
|
|
37172 |
25/11/2024 |
The Trustee for New Dealership Trust |
$670.85 |
|
|
|
Vehicle Spare Parts |
|
|
37173 |
25/11/2024 |
The Trustee For The Simmonds Steel Trust |
$4,416.50 |
|
|
|
Fabrication And Powder Coating - Bag Dispensers |
|
|
37174 |
25/11/2024 |
Think Water Wanneroo |
$237.00 |
|
|
|
Stihl Batteries - Parks |
|
|
37175 |
25/11/2024 |
Three Chillies Design Pty Ltd |
$2,904.00 |
|
|
|
Pump Track Repairs - Mariala Park |
|
|
37176 |
25/11/2024 |
Thu Hoang |
$330.37 |
|
|
|
Refund - Skin Penetration Premises Application Fee - Paid Twice |
|
|
37177 |
25/11/2024 |
Toolmart |
$1,228.00 |
|
|
|
Tool Purchases - Fleet Maintenance |
|
|
37178 |
25/11/2024 |
Total Tools Joondalup |
$1,729.97 |
|
|
|
Tool Purchases - Parks |
|
|
37179 |
25/11/2024 |
Totally Workwear Joondalup & Butler |
$188.90 |
|
|
|
Safety Boots - Assets Employee |
|
|
37180 |
25/11/2024 |
TQuip |
$2,518.80 |
|
|
|
Mower Spare Parts |
|
|
37181 |
25/11/2024 |
Triton Electrical Contractors Pty Ltd |
$3,903.90 |
|
|
|
Electrical Works - Various Parks |
|
|
37182 |
25/11/2024 |
Trophy Shop Australia |
$475.46 |
|
|
|
Name Badge - 2 Employees |
|
|
|
|
Trophies - Kingsway Indoor Stadium |
|
|
37183 |
25/11/2024 |
Truck Centre WA Pty Ltd |
$635.10 |
|
|
|
Vehicle Spare Parts |
|
|
37184 |
25/11/2024 |
Valvoline (Australia) Pty Ltd |
$17,377.58 |
|
|
|
Vehicle Oil Products - Stores |
|
|
37185 |
25/11/2024 |
Ventura Home Group Pty Ltd |
$2,000.00 |
|
|
|
Refund - Street & Verge Bond |
|
|
37186 |
25/11/2024 |
Rates Refund |
$2,458.44 |
|
37187 |
25/11/2024 |
WA Hino Sales & Service |
$2,297.10 |
|
|
|
Vehicle Spare Parts / Repairs |
|
|
37188 |
25/11/2024 |
WA Hino Sales & Service |
$890.60 |
|
|
|
Vehicle Spare Parts |
|
|
37189 |
25/11/2024 |
WA Structural Consulting Engineers Pty Ltd |
$880.00 |
|
|
|
Stage 2 - Rotary Park Playground - Engineering |
|
|
37190 |
25/11/2024 |
Wanneroo Central Bushfire Brigade |
$64.62 |
|
|
|
Reimbursement - Copy Paper |
|
|
37191 |
25/11/2024 |
Wanneroo Electric |
$45,634.62 |
|
|
|
Electrical Maintenance Works - Various Locations |
|
|
37192 |
25/11/2024 |
Warwick A Willetts |
$83.82 |
|
|
|
Refund - Copies Of Plans - Jadu Issue |
|
|
37193 |
25/11/2024 |
Water Corporation |
$10,650.62 |
|
|
|
Water Supply Charges - Various Locations |
|
|
37194 |
25/11/2024 |
West Coast Turf |
$12,480.88 |
|
|
|
Wanneroo Showgrounds - Wicket Rectification |
|
|
37195 |
25/11/2024 |
Western Australian Local Government Association |
$2,750.00 |
|
|
|
Training - Introduction To Local Government - 05.11.2024 |
|
|
37196 |
25/11/2024 |
Work Clobber |
$1,304.61 |
|
|
|
Polo Shirts - Fire Control Officer |
|
|
|
|
Uniform Issue - Various Employees |
|
|
37197 |
25/11/2024 |
Workpower Incorporated |
$22,251.13 |
|
|
|
Landscape Maintenance - Various Locations |
|
|
37198 |
25/11/2024 |
Workpower Incorporated |
$21,308.67 |
|
|
|
Verge Side Collections - Recycling Of Whitegoods |
|
|
37199 |
25/11/2024 |
Wurth Australia Pty Ltd |
$878.90 |
|
|
|
Vehicle Spare Parts |
|
|
37200 |
25/11/2024 |
Zipform Pty Ltd |
$2,736.63 |
|
|
|
Printing - Final Notices - Rates |
|
|
37201 |
28/11/2024 |
Coffeelicous |
$600.00 |
|
|
|
Coffee Van - Bike Month Event |
|
|
37202 |
28/11/2024 |
Neevas Construction Pty Ltd |
$1,024.00 |
|
|
|
Refund - Development Application - Title Not Released |
|
|
37203 |
28/11/2024 |
Terravac Vacuum Excavation |
$4,776.75 |
|
|
|
Scan Irrigation Infrastructure Between AFL & Rugby 1 - Kingsway Sporting Complex |
|
|
37204 |
28/11/2024 |
The Trustee for UDLA Unit Trust |
$99,931.43 |
|
|
|
Progress Payment 4 - Yanchep Lagoon Management Plan |
|
|
|
|
|
|
|
|
|
Total EFT Payments |
$20,958,912.62 |
|
|
|
|
|
|
CREDIT CARD RECONCILIATIONS |
|||
|
73 |
1/11/2024 |
CBA Corporate Card |
$11,185.22 |
|
|
|
Vicki Coles |
|
|
73-01 |
|
03/09/2024 - Tickets*Moray Agn - Moray & Agnew Conference - Local Government Governance |
$165.00 |
|
73-02 |
|
11/09/2024 - Governance Institute - Governance Institute - Certificate In Governance & Risk Management - 1 Attendee |
$3,735.00 |
|
73-03 |
|
12/09/2024 - CPP Terrace Road - Parking Fees - Training City - 1 Attendee |
$18.17 |
|
|
|
|
|
|
|
|
Mark Dickson |
|
|
73-04 |
|
16/09/2024 - IPAA - Training - 1 Attendee |
$710.60 |
|
|
|
|
|
|
|
|
Noelene Jennings |
|
|
73-05 |
|
04/09/2024 - IPAA - Additional Fee For Non- Member To Attend Skilled Minute Taking Course |
$74.80 |
|
73-06 |
|
07/09/2024 - Intuit Mailchimp - Monthly Mail Chimp - Wanneroo Wrap |
$19.63 |
|
73-07 |
|
25/09/202 - Coles - Catering - Years Of Service Morning Tea |
$293.25 |
|
|
|
|
|
|
|
|
Bill Parker |
|
|
73-08 |
|
10/09/2024 - Cafe Elixir - Coffee Voucher For Staff For Reward And Recognition During Rates Season |
$177.12 |
|
73-09 |
|
11/09/2024 - Wilson Parking Per055 - Parking - Meeting With Mayor And Yanchep Beach Joint Venture |
$17.00 |
|
73-10 |
|
13/09/2024 - Ritz Carlton Perth Fp - Valet Parking - Mayor And Cr Coetzee For Yanchep Beach Joint Venture 50th Anniversary Celebration |
$71.37 |
|
73-11 |
|
13/09/2024 - CPP Terrace Road - Parking - Yanchep Beach Joint Venture 50th Anniversary Celebration |
$5.05 |
|
73-12 |
|
20/09/2024 - Dome Joondalup - Coffee For Meeting With CFMEU - Nathan Fisher |
$11.80 |
|
|
|
|
|
|
|
|
Harminder Singh |
|
|
73-13 |
|
11/09/2024 - Western Power - Western Power Asset Relocation - Pinjar Road Carramar |
$498.91 |
|
73-14 |
|
11/09/2024 - Western Power - Western Power Asset Relocation - Brazier Road Project |
$498.91 |
|
73-15 |
|
27/09/2024 - Water Corporation - Upgrade - Sheffield Park Stockholm Road |
$4,888.61 |
|
|
|
|
|
|
|
|
Total - CBA |
$11,185.22 |
|
|
|
|
|
|
74 |
1/11/2024 |
NAB Corporate Card |
|
|
|
|
Advocacy & Economic Development |
|
|
74-01 |
|
17/09/2024 - Facebk *4Lghadufj2 – Advertising Services - Various |
$77.00 |
|
74-02 |
|
21/09/2024 - Facebk *Fw8H4Byfj2 – Advertising Services - Various |
$1.78 |
|
74-03 |
|
21/09/2024 - Facebk *Ygl6Zbqfj2 – Advertising Services - Various |
$35.55 |
|
74-04 |
|
24/09/2024 - Facebk *Xcexpa4Tx2 – Advertising Services - Various |
$92.44 |
|
74-05 |
|
25/09/2024 - Localis.Co - Localis Membership September 2024 |
$163.90 |
|
74-06 |
|
27/09/2024 - Annual Fee - Credit Card Fee - Paid Monthly |
$5.00 |
|
|
|
|
|
|
|
|
Building Maintenance |
|
|
74-07 |
|
05/09/2024 - Bunnings - Cabinets / Drawers / Hinges - Maintenance Corporate Buildings |
$1,038.16 |
|
74-08 |
|
11/09/2024 - Bunnings - Mirror Clips - Maintenance Community Buildings |
$6.20 |
|
74-09 |
|
16/09/2024 - Bunnings - Cabinet Door / Cabinet Base - Maintenance Community Buildings |
$315.83 |
|
74-10 |
|
17/09/2024 - Bunnings - Laminate Benchtop / Sink / Cabinet Doors - Maintenance Community Buildings |
$952.83 |
|
74-11 |
|
17/09/2024 - Bunnings - Credit - Cabinet Door - Maintenance Community Buildings |
-$174.90 |
|
74-12 |
|
19/09/2024 - Classic Hire - Credit - Hire Man Lift - Maintenance Community Buildings |
-$193.60 |
|
74-13 |
|
19/09/2024 - Classic Hire - Hire Man Lift - Maintenance Community Buildings |
$387.20 |
|
74-14 |
|
20/09/2024 - Bunnings - Cabinet Hinges / Metal Handle / Drill Bits - Maintenance Community Buildings |
$66.12 |
|
74-15 |
|
27/09/2024 - Annual Fee - Credit Card Fee - Paid Monthly |
$5.00 |
|
74-16 |
|
27/09/2024 - Annual Fee - Credit Card Fee - Paid Monthly |
$5.00 |
|
74-17 |
|
27/09/2024 - Annual Fee - Credit Card Fee - Paid Monthly |
$5.00 |
|
74-18 |
|
28/08/2024 - Bunnings - Paint / Paint Brush - Maintenance - Community Buildings |
$77.21 |
|
74-19 |
|
04/09/2024 - Bunnings - Toilet Seat - Maintenance Community Buildings |
$8.89 |
|
74-20 |
|
10/09/2024 - Bunnings - Rubbish Bin / Toilets - Maintenance Community Buildings |
$68.45 |
|
74-21 |
|
16/09/2024 - Bunnings - Lubricants - Maintenance Corporate Buildings |
$46.66 |
|
74-22 |
|
19/09/2024 - Bunnings - Timber Benchtop / Cabinet Bases - Maintenance Corporate Buildings |
$1,019.88 |
|
74-23 |
|
20/09/2024 - Bunnings - Level Spirit / Melamine - Maintenance Corporate Buildings |
$75.18 |
|
74-24 |
|
27/09/2024 - Annual Fee - Credit Card Fee - Paid Monthly |
$5.00 |
|
74-25 |
|
28/08/2024 - Bunnings - Passage Knobs – Disc Cutting - Maintenance Community Buildings |
$81.96 |
|
74-26 |
|
29/08/2024 - Bunnings - Passage Knob - Maintenance Community Buildings |
$16.00 |
|
74-27 |
|
29/08/2024 - Bunnings - Drill Bits – Maintenance Community Buildings |
$12.30 |
|
74-28 |
|
17/09/2024 - Rsea Pty Ltd - Boots - PPE - Maintenance |
$214.99 |
|
74-29 |
|
27/09/2024 - Annual Fee - Credit Card Fee - Paid Monthly |
$5.00 |
|
74-30 |
|
29/08/2024 - Bunnings 389000 - Paint / Roller Cover - Maintenance - Community Buildings |
$367.47 |
|
74-31 |
|
30/08/2024 - Valspar Mindarie - Paint - Maintenance - Community Buildings |
$80.42 |
|
74-32 |
|
11/09/2024 - Valspar Mindarie - Paint - Maintenance Community Buildings |
$164.00 |
|
74-33 |
|
12/09/2024 - Bunnings 389000 - Vacuum / Hand Vacuum - Maintenance Corporate Buildings |
$318.00 |
|
74-34 |
|
27/09/2024 - Annual Fee - Credit Card Fee - Paid Monthly |
$5.00 |
|
74-35 |
|
27/09/2024 - Annual Fee - Credit Card Fee - Paid Monthly |
$5.00 |
|
74-36 |
|
28/08/2024 - Bunnings - Blades / Hacksaw / Storm PVC / Silicone - Maintenance Community Buildings |
$48.33 |
|
74-37 |
|
28/08/2024 - Bunnings - Toilet Roll Holder - Maintenance Community Buildings |
$21.82 |
|
74-38 |
|
29/08/2024 - Bunnings - Lockwood Latch - Maintenance Community Buildings |
$58.95 |
|
74-39 |
|
02/09/2024 - Bunnings - Gutterguard - Maintenance Community Buildings |
$65.46 |
|
74-40 |
|
02/09/2024 - Bunnings - MDF Moulding - Maintenance Community Buildings |
$38.40 |
|
74-41 |
|
03/09/2024 - Bunnings - Barrel Bolt - Maintenance Community Buildings |
$7.53 |
|
74-42 |
|
03/09/2024 - Bunnings - Liquid Nails / Scoop / Bucket - Maintenance Community Buildings |
$14.52 |
|
74-43 |
|
04/09/2024 - The Good Guys - Hair Dryer - Maintenance Community Buildings |
$49.00 |
|
74-44 |
|
05/09/2024 - Bunnings - Chipboard / Screws - Maintenance Community Buildings |
$29.34 |
|
74-45 |
|
05/09/2024 - Bunnings - Downpipes / Holesaw - Maintenance Community Buildings |
$31.90 |
|
74-46 |
|
09/09/2024 - Bunnings - Flush Door / Pine - Maintenance Community Buildings |
$342.90 |
|
74-47 |
|
09/09/2024 - Barnetts Archite H - Door Furniture - Maintenance Community Buildings |
$507.18 |
|
74-48 |
|
10/09/2024 - Bunnings - Filing Blade / Scraper / Adhesive - Maintenance Community Buildings |
$30.54 |
|
74-49 |
|
11/09/2024 - Bunnings - Dressed Pine - Maintenance Community Buildings |
$22.02 |
|
74-50 |
|
11/09/2024 - Bunnings - Plaster Tools / Comp Less Mess - Maintenance Community Buildings |
$39.91 |
|
74-51 |
|
12/09/2024 - Bunnings - Dressed Pine - Maintenance Community Buildings |
$9.63 |
|
74-52 |
|
12/09/2024 - Bunnings - Hydraulic Door Closer - Maintenance Community Buildings |
$86.03 |
|
74-53 |
|
12/09/2024 - Bunnings - Slab Adaptor / PVC Floor Flange - Maintenance Community Buildings |
$6.40 |
|
74-54 |
|
13/09/2024 - Bunnings - Deadlatch Cylinder - Maintenance Community Buildings |
$138.50 |
|
74-55 |
|
13/09/2024 - Bunnings - Extension Cord - Maintenance Community Buildings |
$11.38 |
|
74-56 |
|
13/09/2024 - Bunnings - Socket Adaptor - Maintenance Community Buildings |
$13.78 |
|
74-57 |
|
16/09/2024 - Bunnings - Cable Ties / Twine - Maintenance Community Buildings |
$13.02 |
|
74-58 |
|
16/09/2024 - Bunnings - Gutterguard - Maintenance Community Buildings |
$65.46 |
|
74-59 |
|
17/09/2024 - Bunnings - Nails / Indicator Bolts - Maintenance Community Buildings |
$89.25 |
|
74-60 |
|
17/09/2024 - Bunnings - Rubbish Bin / Plugs / Pine Shorts - Maintenance Community Buildings |
$26.93 |
|
74-61 |
|
18/09/2024 - Bunnings - Storm Pit Basket / Hose Clamps / PVC Grate - Maintenance Community Buildings |
$45.46 |
|
74-62 |
|
26/09/2024 - Rynat Industries Aus - Slide Lock And Indicator - Maintenance Community Buildings |
$207.57 |
|
74-63 |
|
27/09/2024 - Annual Fee - Credit Card Fee - Paid Monthly |
$5.00 |
|
74-64 |
|
28/08/2024 - Bunnings - Paving Paint / Tray Liners / Brushes - Paint / Paint Brush - Graffiti Removal - Maintenance - Community Buildings |
$128.46 |
|
74-65 |
|
02/09/2024 - Valspar Joondalup - Paint / Brushes - Graffiti Removal - Maintenance Community Buildings |
$199.60 |
|
74-66 |
|
05/09/2024 - Valspar Malaga - Paint - Graffiti Removal - Maintenance Community Buildings |
$151.84 |
|
74-67 |
|
04/09/2024 - Bunnings - Paint - Graffiti Removal - Maintenance Community Buildings |
$100.49 |
|
74-68 |
|
11/09/2024 - Valspar Malaga - Paint - Graffiti Removal - Maintenance Community Buildings |
$371.65 |
|
74-69 |
|
18/09/2024 - Bunnings - Paving Paint / Safety Glasses - Graffiti Removal Maintenance Community Buildings |
$104.87 |
|
74-70 |
|
19/09/2024 - Bunnings - Masking Tape / Paint Brush / Varnish - Graffiti Removal Maintenance Community Buildings |
$30.41 |
|
74-71 |
|
26/09/2024 - Valspar Malaga - Paint - Graffiti Removal - Maintenance Community Buildings |
$98.12 |
|
74-72 |
|
27/09/2024 - Annual Fee - Credit Card Fee - Paid Monthly |
$5.00 |
|
74-73 |
|
27/09/2024 - Annual Fee - Credit Card Fee - Paid Monthly |
$5.00 |
|
74-74 |
|
30/08/2024 - Bunnings - Screws / Chipboard / Fastener Drive Bits - Maintenance Community Buildings |
$37.14 |
|
74-75 |
|
04/09/2024 - SAS Locksmithing - Key Cutting - Maintenance Community Buildings |
$60.00 |
|
74-76 |
|
03/09/2024 - Bunnings - Screws - Maintenance Community Buildings |
$37.77 |
|
74-77 |
|
04/09/2024 - Barnetts Archite H - Primary Door Lock - Maintenance Community Buildings |
$790.28 |
|
74-78 |
|
10/09/2024 - Bunnings - Adhesive Moroday - Maintenance Community Buildings |
$35.92 |
|
74-79 |
|
11/09/2024 - Bunnings - Plugs / Drill Bits / Pine - Maintenance Community Buildings |
$110.24 |
|
74-80 |
|
17/09/2024 - Bunnings - Treated Pine - Maintenance Community Buildings |
$55.42 |
|
74-81 |
|
17/09/2024 - Bunnings - Corrugated Polycarb / Roof Fixings - Maintenance Community Buildings |
$261.51 |
|
74-82 |
|
19/09/2024 - Bunnings - Hand Saw / Roof Screws / Corrugated Polycarb - Maintenance Community Buildings |
$95.86 |
|
74-83 |
|
27/09/2024 - Annual Fee - Credit Card Fee - Paid Monthly |
$5.00 |
|
74-84 |
|
27/09/2024 - Annual Fee - Credit Card Fee - Paid Monthly |
$5.00 |
|
74-85 |
|
28/08/2024 - Bunnings - Adhesive - Maintenance - Corporate Buildings |
$16.47 |
|
74-86 |
|
29/08/2024 - Bunnings - Lubricant - Maintenance - Corporate Buildings |
$22.93 |
|
74-87 |
|
29/08/2024 - Bunnings - Torch Recharge - Maintenance - Corporate Buildings |
$58.00 |
|
74-88 |
|
29/08/2024 - Bunnings - Digital Entry Lock - Maintenance - Corporate Buildings |
$74.00 |
|
74-89 |
|
30/08/2024 - Bunnings - Swing Bin - Maintenance - Corporate Buildings |
$12.99 |
|
74-90 |
|
30/08/2024 - CSR Gyprock - Ceiling Tiles - Maintenance - Corporate Buildings |
$297.80 |
|
74-91 |
|
03/09/2024 - Bunnings - Bolts & Nuts / Washers / Alum Angle - Maintenance Corporate Buildings |
$88.55 |
|
74-92 |
|
03/09/2024 - Bunnings - Drill Bits / Screws / Plugs - Maintenance Corporate Buildings |
$194.48 |
|
74-93 |
|
04/09/2024 - Bunnings - Batteries - Maintenance Corporate Buildings |
$11.98 |
|
74-94 |
|
04/09/2024 - Bunnings - Primer / Screws / Angle Bracket - Maintenance Corporate Buildings |
$90.16 |
|
74-95 |
|
05/09/2024 - Totally Workwear-Joond - PPE - Jacket - Maintenance |
$73.90 |
|
74-96 |
|
09/09/2024 - Bunnings - Drill Bit - Maintenance Corporate Buildings |
$22.98 |
|
74-97 |
|
09/09/2024 - Bunnings - Treated Pine / Screws - Maintenance Corporate Buildings |
$82.36 |
|
74-98 |
|
10/09/2024 - Bunnings - Timber Screws / Super Am Buckle - Maintenance Corporate Buildings |
$23.13 |
|
74-99 |
|
10/09/2024 - Bunnings - Plywood / Wall Vent / Screws - Maintenance Corporate Buildings |
$208.12 |
|
74-100 |
|
10/09/2024 - Bunnings - Wall Vent / MDF - Maintenance Corporate Buildings |
$62.26 |
|
74-101 |
|
11/09/2024 - Bunnings - Button Screws / Countersink Bits - Maintenance Corporate Buildings |
$26.09 |
|
74-102 |
|
11/09/2024 - Bunnings - Plywood - Maintenance Corporate Buildings |
$113.00 |
|
74-103 |
|
12/09/2024 - Bunnings - Wall Vent - Maintenance Corporate Buildings |
$32.36 |
|
74-104 |
|
13/09/2024 - Bunnings - Batteries / Air Freshener / Moisture Meter - Maintenance Corporate Buildings |
$99.05 |
|
74-105 |
|
13/09/2024 - Bunnings - Drill Bits / Nuts & Bolts - Maintenance Corporate Buildings |
$18.05 |
|
74-106 |
|
16/09/2024 - Bunnings - PVC - Maintenance Corporate Buildings |
$13.50 |
|
74-107 |
|
16/09/2024 - Bunnings - Gap Filler - Maintenance Corporate Buildings |
$6.76 |
|
74-108 |
|
17/09/2024 - Bunnings - Flyscreen - Maintenance Corporate Buildings |
$6.87 |
|
74-109 |
|
17/09/2024 - Bunnings - Handle / Galvanised Chain / Bolt Cutter - Maintenance Corporate Buildings |
$65.29 |
|
74-110 |
|
17/09/2024 - Bunnings - Aerator Swivel Fixatap - Maintenance Corporate Buildings |
$12.94 |
|
74-111 |
|
18/09/2024 - Bunnings - Sealant - Maintenance Corporate Buildings |
$20.49 |
|
74-112 |
|
19/09/2024 - Bunnings - Hinges / Metal Handle / Drill Bits - Maintenance Community Buildings |
$38.57 |
|
74-113 |
|
19/09/2024 - Bunnings - Brackets / Screws - Maintenance Corporate Buildings |
$143.27 |
|
74-114 |
|
25/09/2024 - Sydney Tools Pty Ltd - Router Bit - Maintenance Corporate Buildings |
$46.80 |
|
74-115 |
|
24/09/2024 - Bunnings - Drill Jober / Rivets - Maintenance Corporate Buildings |
$19.32 |
|
74-116 |
|
24/09/2024 - Bunnings - Cable Ties - Maintenance Corporate Buildings |
$4.07 |
|
74-117 |
|
25/09/2024 - Blyth Enterprises Pty - Castor Wheels - Maintenance Corporate Buildings |
$166.10 |
|
74-118 |
|
27/09/2024 - Annual Fee - Credit Card Fee - Paid Monthly |
$5.00 |
|
|
|
|
|
|
|
|
Chief Bush Fire Control Officer |
|
|
74-119 |
|
27/09/2024 - Annual Fee - Credit Card Fee - Paid Monthly |
$5.00 |
|
|
|
|
|
|
|
|
Coastal Maintenance |
|
|
74-120 |
|
27/09/2024 - Annual Fee - Credit Card Fee - Paid Monthly |
$5.00 |
|
|
|
|
|
|
|
|
Community & Place - Events |
|
|
74-121 |
|
27/09/2024 - Annual Fee - Credit Card Fee - Paid Monthly |
$5.00 |
|
74-122 |
|
11/09/2024 - Cup And Carry - General Event Materials |
$545.00 |
|
74-123 |
|
27/09/2024 - Annual Fee - Credit Card Fee - Paid Monthly |
$5.00 |
|
|
|
|
|
|
|
|
Community & Place - Place Management |
|
|
74-124 |
|
27/09/2024 - Annual Fee - Credit Card Fee - Paid Monthly |
$5.00 |
|
|
|
|
|
|
|
|
Community Development |
|
|
74-125 |
|
03/09/2024 - Trybooking*Ecu - Migration Update Conference |
$85.50 |
|
74-126 |
|
12/09/2024 - Coles Online - Catering - Grow Your Group Workshop |
$82.02 |
|
74-127 |
|
27/09/2024 - Annual Fee - Credit Card Fee - Paid Monthly |
$5.00 |
|
|
|
|
|
|
|
|
Community History |
|
|
74-128 |
|
02/09/2024 - Oxlade Art Supplies - Provide Community Art Projects Supplies |
$170.44 |
|
74-129 |
|
24/09/2024 - Coles - Community Art Projects Materials |
$20.85 |
|
74-130 |
|
25/09/2024 - Allstamps.Com.Au - Wanneroo Community History Centre Self Inking Rubber Stamps |
$86.10 |
|
74-131 |
|
27/09/2024 - Annual Fee - Credit Card Fee - Paid Monthly |
$5.00 |
|
|
|
|
|
|
|
|
Community Safety & Emergency Management |
|
|
74-132 |
|
11/09/2024 - City Of Joondalup - Parking - Attend Emergency Exercise |
$10.80 |
|
74-133 |
|
13/09/2024 - CPP Pier Street - Parking - Attend Emergency Management Meeting |
$15.14 |
|
74-134 |
|
27/09/2024 - Annual Fee - Credit Card Fee - Paid Monthly |
$5.00 |
|
74-135 |
|
26/09/2024 - Reconyx - Covert SIM |
$14.83 |
|
74-136 |
|
27/09/2024 - Annual Fee - Credit Card Fee - Paid Monthly |
$5.00 |
|
|
|
|
|
|
|
|
Construction Team |
|
|
74-137 |
|
13/09/2024 - Batteryworldjoondalup - Battery -Drainage Laser |
$29.00 |
|
74-138 |
|
27/09/2024 - Annual Fee - Credit Card Fee - Paid Monthly |
$5.00 |
|
|
|
|
|
|
|
|
Council & Corporate Support - Hospitality |
|
|
74-139 |
|
02/09/2024 - TCS Wanneroo - In House Hospitality Requests - Council Development Program - WALGA Procedures Meeting |
$42.95 |
|
74-140 |
|
02/09/2024 - Coles - In House Hospitality Requests - Council Member Development Program - WALGA Procedures Meeting / Various Functions And Events |
$89.79 |
|
74-141 |
|
02/09/2024 - Smp*Wanneroo Fresh - In House Hospitality Requests - Council Member Development Program - WALGA Procedures Meeting / MAG Meeting / Corporate Induction |
$24.29 |
|
74-142 |
|
03/09/2024 - Target - Purchase Of Cannisters - Civic Centre Staffrooms / Kitchenettes |
$253.50 |
|
74-143 |
|
04/09/2024 - Target - Refund Due To Unavailable Product |
-$6.50 |
|
74-144 |
|
05/09/2024 - Subway Wanneroo - In House Hospitality Requests - MAG Meeting |
$84.60 |
|
74-145 |
|
09/09/2024 - Coles - In House Hospitality Requests - Hazards Of Duke And Wanneroo Library - Author Talk |
$146.06 |
|
74-146 |
|
10/09/2024 - Smp*Wanneroo Fresh - In House Hospitality Requests - Hazards Of Duke And Wanneroo Library - Author Talk |
$3.69 |
|
74-147 |
|
11/09/2024 - Dan Murphy's - Purchase Of Goods - Various Functions And Events For And When Required |
$355.90 |
|
74-148 |
|
09/09/2024 - Smp*Wanneroo Fresh - In House Hospitality Requests - Hazards Of Duke And Wanneroo Library - Author Talk |
$32.16 |
|
74-149 |
|
10/09/2024 - Coles - In House Hospitality Requests - Hazards Of Duke And Wanneroo Library - Author Talk |
$48.50 |
|
74-150 |
|
10/09/2024 - Coles - In House Hospitality Requests - Hazards Of Duke And Wanneroo Library - Author Talk |
$24.20 |
|
74-151 |
|
25/09/2024 - Coles - In House Hospitality Requests - Retirement Function |
$117.30 |
|
74-152 |
|
25/09/2024 - Smp*Wanneroo Fresh - In House Hospitality Requests - Retirement Function |
$24.52 |
|
74-153 |
|
27/09/2024 - Annual Fee - Credit Card Fee - Paid Monthly |
$5.00 |
|
74-154 |
|
04/09/2024 - Coles - Purchases - Corporate Induction |
$56.78 |
|
74-155 |
|
16/09/2024 - Coles - Purchases - The Dining Room And Council Forum |
$207.30 |
|
74-156 |
|
16/09/2024 - TCS Wanneroo - Purchases - Council Forum / Service Review Meeting |
$82.90 |
|
74-157 |
|
17/09/2024 - Smp*Wanneroo Fresh - Purchases - Council Forum |
$9.26 |
|
74-158 |
|
16/09/2024 - Wanneroo Fresh - Purchases - Council Forum / Service Review Meeting / Compliance Training / Suburban Managers Collaboration / Yanchep Lagoon Workshop |
$43.28 |
|
74-159 |
|
16/09/2024 - Subway - Purchases - BFAC Meeting |
$168.00 |
|
74-160 |
|
17/09/2024 - Coles - Purchases - Council Forum / Service Review Meeting / Compliance Training / Suburban Managers Collaboration And Yanchep Lagoon Workshop |
$137.23 |
|
74-161 |
|
17/09/2024 - Aldi Stores - Purchases - The Dining Room |
$68.17 |
|
74-162 |
|
19/09/2024 - Coles Online - Purchases - Council Forum |
$55.00 |
|
74-163 |
|
27/09/2024 - Annual Fee - Credit Card Fee - Paid Monthly |
$5.00 |
|
|
|
|
|
|
|
|
Curatorial Services |
|
|
74-164 |
|
19/09/2024 - Coles - Cleaning Supplies - Museum |
$22.60 |
|
74-165 |
|
19/09/2024 - Kmart - Dustpan And Brushes |
$6.00 |
|
74-166 |
|
26/09/2024 - Kmart - Halloween Event Supplies And Materials |
$137.00 |
|
74-167 |
|
27/09/2024 - Annual Fee - Monthly Credit Card Fee |
$5.00 |
|
|
|
|
|
|
|
|
Customer & Information Services |
|
|
74-168 |
|
09/09/2024 - Iot Store - 4 Milesight Wireless Pulse Counters |
$1,036.20 |
|
74-169 |
|
18/09/2024 - Ifixit Oceania - Pro Tech Toolkit / Repair Business Toolkit |
$656.20 |
|
74-170 |
|
18/09/2024 - Bunnings Group Ltd - WD-40 / Stanley 16 Piece Cushion Grip Screwdriver Set / Trojan 3 Piece Plier Set / Insulation Tape / Click Cable Management Ties |
$209.93 |
|
74-171 |
|
18/09/2024 - Bunnings Group Ltd - Credit - Click Cable Management Ties |
-$19.00 |
|
74-172 |
|
27/09/2024 - Annual Fee - Credit Card Fee - Paid Monthly |
$5.00 |
|
74-173 |
|
31/08/2024 - PayPal - Zoom Workplace Business Monthly |
$340.89 |
|
74-174 |
|
31/08/2024 - Campaignmonitor - Subscription |
$1,232.87 |
|
74-175 |
|
02/09/2024 - FS *Techsmith - Camtasia Government Maintenance Billed Yearly |
$77.62 |
|
74-176 |
|
01/09/2024 - Google*Cloud M9Ccqk - Google Cloud Search Fee - Monthly Fee |
$122.33 |
|
74-177 |
|
02/09/2024 - Rezdy - Accelerate Plan - Rezdy Booking System Monthly Subscription |
$108.90 |
|
74-178 |
|
16/09/2024 - PayPal - Canva Additional Subscription |
$201.33 |
|
74-179 |
|
19/09/2024 - PayPal - Zoom Workplace Promonthly |
$49.26 |
|
74-180 |
|
20/09/2024 - Lighting Analytics Inc - 2 Multiuser Subscriptions |
$3,043.10 |
|
74-181 |
|
21/09/2024 - PayPal - Yumpu Subscription PayPal Adfree New |
$38.33 |
|
74-182 |
|
21/09/2024 - Gethomesafe - Get Home Safe Subscription |
$738.99 |
|
74-183 |
|
24/09/2024 - Freshworks Inc - Freshworks - Pro Monthly Subscription |
$1,245.00 |
|
74-184 |
|
27/09/2024 - Annual Fee - Credit Card Fee - Paid Monthly |
$5.00 |
|
|
|
|
|
|
|
|
Engineering Maintenance |
|
|
74-185 |
|
28/08/2024 - Bunnings - Chisel Attachment - Maintenance 06 / Cement - Sign Pole- Maintenance 04 |
$30.53 |
|
74-186 |
|
29/08/2024 - Bunnings - Hand Tools / Hose Connectors - Maintenance 06 |
$137.38 |
|
74-187 |
|
30/08/2024 - Master Hose Pty Ltd - Ball Valves - Maintenance 11 |
$42.90 |
|
74-188 |
|
02/09/2024 - Totally Workwear Butle - Shirts - PPE Issue |
$204.80 |
|
74-189 |
|
03/09/2024 - Bunnings - Bolts / Washers / Nuts - Sign Installations |
$14.00 |
|
74-190 |
|
06/09/2024 - Bunnings - Bolts / Washers - Sign Installations |
$90.54 |
|
74-191 |
|
06/09/2024 - Cleaners Supermarket - Graffiti Wipes - Maintenance 4 |
$197.47 |
|
74-192 |
|
06/09/2024 - Lindan Pty Ltd - Safety Boots / Glasses - PPE Issue |
$534.00 |
|
74-193 |
|
12/09/2024 - Lindan Pty Ltd - Hi Vis Vest |
$107.80 |
|
74-194 |
|
12/09/2024 - Lindan Pty Ltd - PPE Issue - 3 Employees |
$684.64 |
|
74-195 |
|
13/09/2024 - Totally Workwear Butle - Shirts And Trousers - James Heath And Gary Hinsey |
$645.70 |
|
74-196 |
|
18/09/2024 - Sydney Tools - Guard - Angle Grinder - Maintenance 11 |
$35.70 |
|
74-197 |
|
18/09/2024 - Bunnings - Bar To Secure New Kerbing To Road Beam |
$50.90 |
|
74-198 |
|
19/09/2024 - Bunnings - Hose Clamps - Maintenance 11 |
$9.35 |
|
74-199 |
|
19/09/2024 - Bunnings - Cable Ties And Pails - Maintenance 06 / Cable Ties - Maintenance 03 |
$60.21 |
|
74-200 |
|
20/09/2024 - Bunnings - Hose Adapter - Maintenance 11 Hose Pump |
$13.11 |
|
74-201 |
|
25/09/2024 - Wizard Pharmacy - Bronze Zinc - Operational Team |
$9.99 |
|
74-202 |
|
27/09/2024 - Annual Fee - Credit Card Fee - Paid Monthly |
$5.00 |
|
74-203 |
|
30/08/2024 - Bunnings - New Screws Clamps - Maintenance 04 |
$242.19 |
|
74-204 |
|
06/09/2024 - Lindan Pty Ltd - PPE Issue - 1 Employee |
$117.15 |
|
74-205 |
|
27/09/2024 - Annual Fee - Credit Card Fee - Paid Monthly |
$5.00 |
|
|
|
|
|
|
|
|
Fleet Maintenance |
|
|
74-206 |
|
29/08/2024 - IPWEA - Na2411Ftdp/Workshop - Fleet Management Training |
$715.00 |
|
74-207 |
|
11/09/2024 - Truckline Wangara - Vehicle Spare Parts - Cap Fuel Tank |
$167.81 |
|
74-208 |
|
27/09/2024 - Annual Fee - Credit Card Fee - Paid Monthly |
$5.00 |
|
74-209 |
|
03/09/2024 - Statewide Bearings - Bearings / Seals |
$272.69 |
|
74-210 |
|
05/09/2024 - Boya Equipment Pty L - Hydraulic Oil / Keys |
$178.52 |
|
74-211 |
|
11/09/2024 - A And M Bolts Nuts - Fasteners |
$10.00 |
|
74-212 |
|
11/09/2024 - AFGRI Const N Forestry - Switch |
$102.04 |
|
74-213 |
|
18/09/2024 - Filter Discounters - Fuel Filters |
$46.64 |
|
74-214 |
|
18/09/2024 - L And T Venables Pty Ltd - Button HD Cap / Screws |
$39.60 |
|
74-215 |
|
19/09/2024 - Statewide Bearings - Vehicle Vee Belt |
$17.60 |
|
74-216 |
|
27/09/2024 - Annual Fee - Credit Card Fee - Paid Monthly |
$5.00 |
|
74-217 |
|
02/09/2024 - Martins Trlr Parts - Vehicle Spare Parts |
$558.95 |
|
74-218 |
|
04/09/2024 - Hose Right - Vehicle Hoses |
$495.95 |
|
74-219 |
|
20/09/2024 - Arrowes Roading Saft - PCB Board 4 Relay |
$749.50 |
|
74-220 |
|
27/09/2024 - Annual Fee - Credit Card Fee - Paid Monthly |
$5.00 |
|
74-221 |
|
02/09/2024 - Martins Trlr Parts - Electric Brake |
$186.32 |
|
74-222 |
|
12/09/2024 - JTB Spares - Cover RHS Mirror |
$25.90 |
|
74-223 |
|
12/09/2024 - Martins Trlr Parts - Pin & Nut / Nylon Bush / Hyd Shoes / Hyd Shoes / Short Shoe |
$92.00 |
|
74-224 |
|
16/09/2024 - Repco Banksia Grove - Led Amber / Red Side Marker |
$12.00 |
|
74-225 |
|
18/09/2024 - Bunnings - Wheel Pneumatic Easyroll |
$35.00 |
|
74-226 |
|
18/09/2024 - Martins Trlr Parts - Brake Plate |
$80.73 |
|
74-227 |
|
18/09/2024 - Repco - Brake Fluid |
$38.00 |
|
74-228 |
|
19/09/2024 - L And T Venables Pty Ltd - Loctite |
$56.46 |
|
74-229 |
|
19/09/2024 - Martins Trlr Parts - Brake Plates |
$242.19 |
|
74-230 |
|
27/09/2024 - Annual Fee - Credit Card Fee - Paid Monthly |
$5.00 |
|
74-231 |
|
30/08/2024 - Sq *Watt Torque & Porta P - Large Torque Wrench |
$2,551.99 |
|
74-232 |
|
16/09/2024 - ABS Trailquip Pl - Spare Parts For Dual Mower Transport Trailers |
$2,817.10 |
|
74-233 |
|
27/09/2024 - Annual Fee - Credit Card Fee - Paid Monthly |
$5.00 |
|
|
|
|
|
|
|
|
Health Services |
|
|
74-234 |
|
27/09/2024 - Annual Fee - Credit Card Fee - Paid Monthly |
$5.00 |
|
|
|
|
|
|
|
|
Heritage Education |
|
|
74-235 |
|
30/08/2024 - Spotlight - Fabric - Childrens Craft Activity - Cockman House |
$32.00 |
|
74-236 |
|
02/09/2024 - Coles - Cleaning Supplies - Heritage Education Programs |
$17.60 |
|
74-237 |
|
02/09/2024 - Amznprimeau Membership - Amazon Prime - Heritage Education Team |
$9.99 |
|
74-238 |
|
02/09/2024 - Little Toy Tribe - Buckingham House Modified Program Materials |
$149.90 |
|
74-239 |
|
02/09/2024 - Amazon Marketplace Au - Buckingham House Modified Education Program Story Props |
$74.92 |
|
74-240 |
|
04/09/2024 - Bee Aroma - Beeswax Candles - Buckingham House Education Program |
$63.07 |
|
74-241 |
|
04/09/2024 - Dragonfly Toys - Education Materials - Buckingham House Program |
$64.30 |
|
74-242 |
|
04/09/2024 - Spotlight Pty Ltd - Buckingham House Modified Education Program Materials |
$132.50 |
|
74-243 |
|
16/09/2024 - Coles - Craft Supplies - Wanneroo Museum October School Holidays |
$21.60 |
|
74-244 |
|
16/09/2024 - Happy Go Ducky - Wooden House Building Activity - Wanneroo Museum |
$120.85 |
|
74-245 |
|
16/09/2024 - Amazon Marketplace Au - Firewood Game - Buckingham House Education Program |
$66.96 |
|
74-246 |
|
17/09/2024 - Amazon Marketplace Au - Magnetic Metal Trays - Buckingham House Education Program |
$26.99 |
|
74-247 |
|
18/09/2024 - Amazon Au - Museum Tour Handbook - Heritage Education Team |
$83.82 |
|
74-248 |
|
20/09/2024 - Etsy.Com*Woodinout - Custom Made Wooden Hammer Toy - Museum Education Program |
$204.15 |
|
74-249 |
|
20/09/2024 - Coles - Heritage Houses Education Program Materials |
$6.80 |
|
74-250 |
|
21/09/2024 - Taylor And Francis - Book - Heritage Education Object-Based Learning - Museums |
$62.39 |
|
74-251 |
|
27/09/2024 - Annual Fee - Credit Card Fee - Paid Monthly |
$5.00 |
|
|
|
|
|
|
|
|
Irrigation Maintenance |
|
|
74-252 |
|
13/09/2024 - Bunnings - Hose And Reel - WCC Pond Cleaning / Lock And Key - Damaged Replacement - WCC / Pond Batteries |
$211.97 |
|
74-253 |
|
18/09/2024 - Bunnings - Tool Replacements |
$147.47 |
|
74-254 |
|
24/09/2024 - Direct Fasteners - Tools Replacement |
$195.80 |
|
74-255 |
|
25/09/2024 - Master Hose Pty Ltd - Tools Replacement |
$331.67 |
|
74-256 |
|
24/09/2024 - Bunnings - Tool Replacements |
$288.89 |
|
74-257 |
|
26/09/2024 - Woolworths - Outside Workers BBQ - Rewards And Recognition |
$174.75 |
|
74-258 |
|
27/09/2024 - Annual Fee - Credit Card Fee - Paid Monthly |
$5.00 |
|
|
|
|
|
|
|
|
Kingsway Indoor Stadium |
|
|
74-259 |
|
02/09/2024 - Facebk *C87B57Un42 - Facebook Advertising |
$79.05 |
|
74-260 |
|
04/09/2024 - BigW Online - Dyson Vacuum - Group Fitness Room |
$399.00 |
|
74-261 |
|
04/09/2024 - Bunnings - Velcro - Operational Use |
$128.80 |
|
74-262 |
|
08/09/2024 - Eg Group/Shorehaven Blvd - Ice - Operational Use |
$12.00 |
|
74-263 |
|
27/09/2024 - Annual Fee - Credit Card Fee - Paid Monthly |
$5.00 |
|
74-264 |
|
12/09/2024 - Bunnings - Velcro - Soccer Goals |
$20.76 |
|
74-265 |
|
27/09/2024 - Annual Fee - Credit Card Fee - Paid Monthly |
$5.00 |
|
|
|
|
|
|
|
|
Library Services |
|
|
74-266 |
|
27/09/2024 - Annual Fee - Credit Card Fee - Paid Monthly |
$5.00 |
|
74-267 |
|
30/08/2024 - Two Rocks IGA - Libraries - Milk |
$3.10 |
|
74-268 |
|
30/08/2024 - Two Rocks IGA - Libraries - Playdoh Ingredients |
$4.09 |
|
74-269 |
|
27/09/2024 - Annual Fee - Credit Card Fee - Paid Monthly |
$5.00 |
|
74-270 |
|
02/09/2024 - Coles - Catering – Light Refreshments – Author Talk – Customer Use |
$18.75 |
|
74-271 |
|
03/09/2024 - Coles - Catering – Light Refreshments – Author Talk – Customer Use |
$21.00 |
|
74-272 |
|
06/09/2024 - Coles - Catering – Light Refreshments – Art Workshop – Customer Use |
$11.00 |
|
74-273 |
|
06/09/2024 - Coles - Catering – Light Refreshments – Writing Workshop – Customer Use |
$23.20 |
|
74-274 |
|
06/09/2024 - Kmart - General Materials - Family Literacy Programs – School Holidays - Patron Use |
$55.00 |
|
74-275 |
|
09/09/2024 - Community Arts Network - Training Course - Making Time - Staff Use |
$125.00 |
|
74-276 |
|
09/09/2024 - Community Arts Network - Training Course - Making Time - Staff Use |
$125.00 |
|
74-277 |
|
10/09/2024 - Liquorland - Catering – Light Refreshments – Literary Event – Customer Use |
$50.00 |
|
74-278 |
|
27/09/2024 - Annual Fee - Credit Card Fee - Paid Monthly |
$5.00 |
|
74-279 |
|
04/09/2024 - Blyth Enterprises Pty - Part Replacements - Trolley |
$77.00 |
|
74-280 |
|
18/09/2024 - Officeworks - USB Adaptors For Customers Use - Wanneroo Library |
$29.96 |
|
74-281 |
|
17/09/2024 - Coles Online - Platter - Author David Whish-Wilson Event |
$59.75 |
|
74-282 |
|
27/09/2024 - Annual Fee - Credit Card Fee - Paid Monthly |
$5.00 |
|
74-283 |
|
11/09/2024 - Coles - Catering For Digital Literacy Session - Biscuits - Clarkson |
$6.00 |
|
74-284 |
|
11/09/2024 - Coles - Staff Milk - Clarkson |
$4.50 |
|
74-285 |
|
18/09/2024 - Temu.com - Prizes - Summer Reading Quest Program |
$389.22 |
|
74-286 |
|
24/09/2024 - Bunnings - Mahjong Table - Library Program - Yanchep |
$39.97 |
|
74-287 |
|
24/09/2024 - Bunnings - Materials - Mental Health Month Library Program - Planting Supplies - Clarkson |
$72.96 |
|
74-288 |
|
24/09/2024 - PayPal - Library Services - Mahjong Set And Rack - Library Program - Yanchep |
$190.90 |
|
74-289 |
|
27/09/2024 - Annual Fee - Credit Card Fee - Paid Monthly |
$5.00 |
|
74-290 |
|
27/09/2024 - Annual Fee - Credit Card Fee - Paid Monthly |
$5.00 |
|
74-291 |
|
06/09/2024 - Two Rocks IGA - Milk Supplies |
$3.10 |
|
74-292 |
|
13/09/2024 - Two Rocks IGA - Milk Supplies |
$3.10 |
|
74-293 |
|
25/09/2024 - Two Rocks IGA - Milk Supplies |
$3.10 |
|
74-294 |
|
27/09/2024 - Annual Fee - Credit Card Fee - Paid Monthly |
$5.00 |
|
74-295 |
|
29/08/2024 - Lams Oriental Superm - Milk For Staff |
$3.29 |
|
74-296 |
|
03/09/2024 - Lams Oriental Superm - Materials For IAAP - Glad Wrap |
$6.57 |
|
74-297 |
|
03/09/2024 - Lams Oriental Superm - Milk For Staff |
$3.29 |
|
74-298 |
|
06/09/2024 - Summerfield Variety - Materials For Craft |
$6.00 |
|
74-299 |
|
11/09/2024 - Lams Oriental Superm - Milk For Staff |
$3.29 |
|
74-300 |
|
11/09/2024 - Lams Oriental Superm - Catering For Travel Writing Workshop |
$5.99 |
|
74-301 |
|
10/09/2024 - Summerfield Variety - Steam Supplies |
$5.00 |
|
74-302 |
|
12/09/2024 - Post Girrawheen Lpo - Working With Children Check Fee |
$87.00 |
|
74-303 |
|
27/09/2024 - Annual Fee - Credit Card Fee - Paid Monthly |
$5.00 |
|
74-304 |
|
29/08/2024 - Red Dot Stores - Crepe Paper Streamers |
$12.00 |
|
74-305 |
|
31/08/2024 - Coles - Toilet Cleaner - Staff Bathroom |
$3.50 |
|
74-306 |
|
31/08/2024 - Coles - Milk For Staff |
$4.50 |
|
74-307 |
|
31/08/2024 - Coles - Various Consumables - Catering An Author Event |
$83.03 |
|
74-308 |
|
26/09/2024 - Kmart - Play Resources - Junior Program IAAP |
$41.50 |
|
74-309 |
|
27/09/2024 - Annual Fee - Credit Card Fee - Paid Monthly |
$5.00 |
|
74-310 |
|
29/08/2024 - My Post Business/Post - Interlibrary Loans Postage |
$10.73 |
|
74-311 |
|
30/08/2024 - My Post Business/Post - Interlibrary Loans Postage |
$25.38 |
|
74-312 |
|
31/08/2024 - My Post Business/Post - Interlibrary Loans Postage |
$14.65 |
|
74-313 |
|
02/09/2024 - My Post Business/Post - Interlibrary Loans Postage |
$9.64 |
|
74-314 |
|
03/09/2024 - My Post Business/Post - Interlibrary Loans Postage |
$10.73 |
|
74-315 |
|
04/09/2024 - My Post Business/Post - Interlibrary Loans Postage |
$21.94 |
|
74-316 |
|
07/09/2024 - My Post Business/Post - Interlibrary Loans Postage |
$29.30 |
|
74-317 |
|
10/09/2024 - My Post Business/Post - Interlibrary Loans Postage |
$36.11 |
|
74-318 |
|
12/09/2024 - My Post Business/Post - Interlibrary Loans Postage |
$60.00 |
|
74-319 |
|
16/09/2024 - My Post Business/Post - Interlibrary Loans Postage |
$21.46 |
|
74-320 |
|
16/09/2024 - My Post Business/Post - Interlibrary Loans Postage |
$10.73 |
|
74-321 |
|
18/09/2024 - Stamplab - Self-Inking Stamp - JP Service |
$105.95 |
|
74-322 |
|
16/09/2024 - My Post Business/Post - Interlibrary Loans Postage |
$10.73 |
|
74-323 |
|
17/09/2024 - My Post Business/Post - Interlibrary Loans Postage |
$9.64 |
|
74-324 |
|
19/09/2024 - My Post Business/Post - Interlibrary Loans Postage |
$32.19 |
|
74-325 |
|
21/09/2024 - My Post Business/Post - Interlibrary Loans Postage |
$21.46 |
|
74-326 |
|
26/09/2024 - My Post Business/Post - Interlibrary Loans Postage |
$40.03 |
|
74-327 |
|
27/09/2024 - Annual Fee - Credit Card Fee - Paid Monthly |
$5.00 |
|
74-328 |
|
30/08/2024 - News Pty Limited - Australian Newspaper - Wanneroo Library |
$80.00 |
|
74-329 |
|
02/09/2024 - Dymocks Online - Book Club Kit Replacement |
$42.98 |
|
74-330 |
|
09/09/2024 - Amazon Au - Library Book Stock |
$26.69 |
|
74-331 |
|
09/09/2024 - Dymocks Online - Library Book Club Kits |
$355.89 |
|
74-332 |
|
10/09/2024 - Wanewsdti - West Australian Newspaper Sub For Clarkson Library |
$144.00 |
|
74-333 |
|
12/09/2024 - Amazon Au - Library Book Stock |
$66.03 |
|
74-334 |
|
13/09/2024 - Amazon Au - Library Book Stock |
$69.60 |
|
74-335 |
|
18/09/2024 - Amazon Au - Library Book Stock |
$49.90 |
|
74-336 |
|
16/09/2024 - Amazon Au - Library Book Stock |
$30.06 |
|
74-337 |
|
19/09/2024 - Amazon Au - Library Book Stock |
$98.08 |
|
74-338 |
|
24/09/2024 - Amazon Au - Library Book Club Kits |
$242.28 |
|
74-339 |
|
26/09/2024 - Auslan Hub - Library Book Stock |
$212.35 |
|
74-340 |
|
26/09/2024 - Parish Chest - Library Book Stock |
$32.64 |
|
74-341 |
|
27/09/2024 - Annual Fee - Credit Card Fee - Paid Monthly |
$5.00 |
|
74-342 |
|
05/09/2024 - Salvos Stores - Adult Craft Program Items |
$39.00 |
|
74-343 |
|
05/09/2024 - JB Hi Fi Ocean Keys - Cultural Development- Clarkson Library- General Material- Customer Service- Jbhifi |
$45.00 |
|
74-344 |
|
09/09/2024 - Kmart - IAAP Program Supplies - Bubble Machine |
$12.00 |
|
74-345 |
|
16/09/2024 - Kmart - IAAP - Bubbles |
$5.00 |
|
74-346 |
|
16/09/2024 - Temu.Com - Craft Program Supplies |
$43.42 |
|
74-347 |
|
18/09/2024 - Kmart - Lego Club - Supplies |
$31.00 |
|
74-348 |
|
17/09/2024 - Coles - IAAS - Craft Supplies |
$16.60 |
|
74-349 |
|
19/09/2024 - Coles - Staff Milk |
$3.10 |
|
74-350 |
|
19/09/2024 - Newsxpress Ocean Keys - Junior Program - Craft Supplies |
$28.08 |
|
74-351 |
|
19/09/2024 - Coles - Event Catering |
$11.70 |
|
74-352 |
|
19/09/2024 - Muffin Break - Catering - Library Event |
$39.00 |
|
74-353 |
|
19/09/2024 - JB Hi Fi Ocean Keys - USB Cable - Customer Service |
$9.00 |
|
74-354 |
|
27/09/2024 - Annual Fee - Credit Card Fee - Paid Monthly |
$5.00 |
|
74-355 |
|
17/09/2024 - Lams Oriental Superm - Milk For Staff |
$5.29 |
|
74-356 |
|
25/09/2024 - Viettown Girrawheen - Jelly Beans AH |
$6.60 |
|
74-357 |
|
27/09/2024 - Annual Fee - Credit Card Fee - Paid Monthly |
$5.00 |
|
|
|
|
|
|
|
|
Media & Communications Services |
|
|
74-358 |
|
02/09/2024 - Google Ads1626843768 - Waste - Bookable Bulk Google Ads |
$499.88 |
|
74-359 |
|
04/09/2024 - Facebk *Yndpq9Ube2 - Advertising Services - Various |
$1,250.00 |
|
74-360 |
|
20/09/2024 - Facebk *Bbdzhclbe2 - Advertising Services - Various |
$1,250.00 |
|
74-361 |
|
26/09/2024 - Facebk *Nls8Bb4Be2 - Advertising Services - Various |
$193.75 |
|
74-362 |
|
27/09/2024 - Annual Fee - Credit Card Fee - Paid Monthly |
$5.00 |
|
|
|
|
|
|
|
|
Parks & Conservation Management |
|
|
74-363 |
|
12/09/2024 - Work Clobber - Safety Boots |
$179.10 |
|
74-364 |
|
13/09/2024 - Bunnings - Tie-Down Ratchet Straps - Trailer |
$52.20 |
|
74-365 |
|
27/09/2024 - Annual Fee - Credit Card Fee - Paid Monthly |
$5.00 |
|
|
|
|
|
|
|
|
Parks Maintenance |
|
|
74-366 |
|
13/09/2024 - Bunnings - Drink Bottles - Allocated To Field Staff Members |
$65.85 |
|
74-367 |
|
19/09/2024 - Bunnings Group Ltd - Irrigation Fittings - Assist With Watering - WLCC |
$23.30 |
|
74-368 |
|
25/09/2024 - Totally Workwear-Joond - Uniform - Hi Vis Jacket |
$99.90 |
|
74-369 |
|
27/09/2024 - Annual Fee - Credit Card Fee - Paid Monthly |
$5.00 |
|
|
|
|
|
|
|
|
People & Culture |
|
|
74-370 |
|
09/09/2024 - Kmart - Value-able Awards |
$100.00 |
|
74-371 |
|
09/09/2024 - Kmart - Value-able Awards |
$100.00 |
|
74-372 |
|
09/09/2024 - Kmart - Value-able Awards |
$100.00 |
|
74-373 |
|
09/09/2024 - Kmart - Value-able Awards |
$100.00 |
|
74-374 |
|
17/09/2024 - Kmart - Value-able Awards |
$100.00 |
|
74-375 |
|
17/09/2024 - Kmart - Value-able Awards |
$100.00 |
|
74-376 |
|
17/09/2024 - Kmart - Value-able Awards |
$100.00 |
|
74-377 |
|
17/09/2024 - Kmart - Value-able Awards |
$100.00 |
|
74-378 |
|
27/09/2024 - Annual Fee - Credit Card Fee - Paid Monthly |
$5.00 |
|
|
|
|
|
|
|
|
Place Management |
|
|
74-378 |
|
05/09/2024 - Bunnings - Girrawheen Hub Activation Items - Plants - Potting Mix And Other Small Items |
$170.08 |
|
74-379 |
|
05/09/2024 - Bunnings - Girrawheen Hub Activation Items |
$16.48 |
|
74-380 |
|
18/09/2024 - Kmart - Supplies For Community Event - Girrawheen Neighbourhood Network |
$49.40 |
|
74-381 |
|
25/09/2024 - Coles - Catering Expenses External - Workshops At The Girrawheen Hub |
$116.53 |
|
74-382 |
|
25/09/2024 - Kmart - Supplies For Community Event - Girrawheen Neighbourhood Network |
$26.25 |
|
74-383 |
|
27/09/2024 - Annual Fee - Credit Card Fee - Paid Monthly |
$5.00 |
|
|
|
|
|
|
|
|
Preventative Engineering Maintenance |
|
|
74-384 |
|
09/09/2024 - PayPal - AWTM Refresher Training - 1 Attendee |
$550.00 |
|
74-385 |
|
27/09/2024 - Annual Fee - Credit Card Fee - Paid Monthly |
$5.00 |
|
|
|
|
|
|
|
|
Property Services |
|
|
74-386 |
|
02/09/2024 - ASIC - Company Search |
$20.00 |
|
74-387 |
|
27/09/2024 - Annual Fee - Credit Card Fee - Paid Monthly |
$5.00 |
|
|
|
|
|
|
|
|
Surveys |
|
|
74-388 |
|
27/09/2024 - Annual Fee - Credit Card Fee - Paid Monthly |
$5.00 |
|
|
|
|
|
|
|
|
Traffic Services |
|
|
74-389 |
|
27/09/2024 - Annual Fee - Credit Card Fee - Paid Monthly |
$5.00 |
|
|
|
|
|
|
|
|
Tree & Conservation Maintenance |
|
|
74-390 |
|
03/09/2024 - Officeworks - SD Card Readers |
$48.95 |
|
74-391 |
|
04/09/2024 - Total Eden Pty Ltd - 9V Batteries - Spray Remotes |
$30.84 |
|
74-392 |
|
04/09/2024 - Nutrien Ag Solutions - Spray Gun For 95601 |
$80.10 |
|
74-393 |
|
10/09/2024 - Bunnings - Assorted Tools / Hose Clamps For Water Truck |
$142.82 |
|
74-394 |
|
18/09/2024 - Work Clobber - PPE Issue |
$605.30 |
|
74-395 |
|
17/09/2024 - Woolworths - Catering Items |
$29.80 |
|
74-396 |
|
18/09/2024 - Bunnings - 5L Water Bottle - Parks North |
$131.70 |
|
74-397 |
|
20/09/2024 - Kitchen Warehouse - Kitchen Warehouse - Thermos - Community Events |
$79.95 |
|
74-398 |
|
20/09/2024 - Bunnings - Bunnings - Rope - Installation Of Plover Fencing - Quinns Beach |
$25.20 |
|
74-399 |
|
27/09/2024 - Annual Fee - Credit Card Fee - Paid Monthly |
$5.00 |
|
|
|
|
|
|
|
|
Wanneroo Aquamotion |
|
|
74-400 |
|
29/08/2024 - Coles Online - Swim Nappies - Retail |
$92.00 |
|
74-401 |
|
31/08/2024 - Kmart - Craft |
$45.50 |
|
74-402 |
|
04/09/2024 - Twilio Sendgrid - Envibe Email Credits |
$135.47 |
|
74-403 |
|
06/09/2024 - Spotlight - Craft |
$19.00 |
|
74-404 |
|
09/09/2024 - Trophy Shop - Retirement Gift - Former Employee |
$45.25 |
|
74-405 |
|
09/09/2024 - Officeworks - Stationery & Aquatics Purchases |
$138.18 |
|
74-406 |
|
16/09/2024 - Bunnings - Aquatics Products |
$158.72 |
|
74-407 |
|
17/09/2024 - Kitchen Warehouse - Ice Maker |
$143.95 |
|
74-408 |
|
27/09/2024 - Annual Fee - Credit Card Fee - Paid Monthly |
$5.00 |
|
74-409 |
|
05/09/2024 - Aust Wide First Aid - Training - 1 Attendee |
$59.00 |
|
74-410 |
|
05/09/2024 - Aust Wide First Aid - Training - 1 Attendee |
$59.00 |
|
74-411 |
|
09/09/2024 - Bunnings - Aquatics Maintenance Items |
$236.49 |
|
74-412 |
|
09/09/2024 - Red Dot Stores - R U Ok Day |
$8.00 |
|
74-413 |
|
09/09/2024 - Bunnings - Aquatics Maintenance Equipment |
$465.80 |
|
74-414 |
|
18/09/2024 - Kmart - Body Combat 100 Launch Decorations |
$9.00 |
|
74-415 |
|
18/09/2024 - Kmart - Replacement Microwave |
$89.00 |
|
74-416 |
|
18/09/2024 - Fitness Audio Sho - Group Fitness Microphone Cleaning Spray |
$51.00 |
|
74-417 |
|
09/09/2024 - Red Dot Stores - R U Ok Day |
$8.00 |
|
74-418 |
|
18/09/2024 - Fitness Audio Sho - Group Fitness Microphone Cleaning Spray |
$51.00 |
|
74-419 |
|
27/09/2024 - Annual Fee - Credit Card Fee - Paid Monthly |
$5.00 |
|
74-420 |
|
30/08/2024 - Royal Life Saving WA - Bronze Medallion Renewal - Rescue Skills In Junior Lifeguard Club Swim School Programs |
$21.45 |
|
74-421 |
|
19/09/2024 - Shein Aus - Aquatic Hoops - Swim School Classes |
$34.90 |
|
74-422 |
|
19/09/2024 - Sq *Oncore Academy - Swimming Equipment - Learn To Swim Classes |
$28.00 |
|
74-423 |
|
20/09/2024 - Sq *Oncore Academy - Swimming Equipment - Learn To Swim Classes |
$28.00 |
|
74-424 |
|
26/09/2024 - Sq *Oncore Academy - Swimming Equipment - Learn To Swim Classes |
$145.84 |
|
74-425 |
|
27/09/2024 - Annual Fee - Credit Card Fee - Paid Monthly |
$5.00 |
|
|
|
|
|
|
|
|
Waste Services |
|
|
74-426 |
|
12/09/2024 - Woolworths - Reward And Recognition - 3 Staff Members 35 Years Of Service |
$149.86 |
|
74-427 |
|
27/09/2024 - Annual Fee - Credit Card Fee - Paid Monthly |
$5.00 |
|
74-428 |
|
11/09/2024 - CPP Cultural Centre - Parking - Meeting |
$15.14 |
|
74-429 |
|
17/09/2024 - Slimline Warehouse - Display Boxes - Library Static Waste Education |
$234.34 |
|
74-430 |
|
27/09/2024 - Annual Fee - Credit Card Fee - Paid Monthly |
$5.00 |
|
74-431 |
|
11/09/2024 - Alexanderhouse-Flowers - Flowers For The Family Of Ex Employee's Passing |
$115.00 |
|
74-432 |
|
27/09/2024 - Annual Fee - Credit Card Fee - Paid Monthly |
$5.00 |
|
|
|
|
|
|
|
|
Youth Services |
|
|
74-433 |
|
28/08/2024 - Red Dot Stores - Materials - Yanchep Youth Centre - Term 3 |
$7.99 |
|
74-434 |
|
03/09/2024 - Merriwa Supa GA - Food - Yanchep Youth Centre - Term 3 |
$13.16 |
|
74-435 |
|
04/09/2024 - Coles - Food - Yanchep Youth Centre - Term 3 |
$9.80 |
|
74-436 |
|
04/09/2024 - Kmart - Materials - Outreach - Kmart |
$35.40 |
|
74-437 |
|
05/09/2024 - Coles - Food - Outreach |
$71.20 |
|
74-438 |
|
05/09/2024 - Coles - Food - Yanchep Youth Centre - Term 3 |
$10.42 |
|
74-439 |
|
05/09/2024 - Coles - Materials - Outreach |
$36.35 |
|
74-440 |
|
11/09/2024 - Coles - Food- Yanchep Youth Centre - Term 3 |
$36.90 |
|
74-441 |
|
10/09/2024 - Coles - Food - Outreach |
$63.20 |
|
74-442 |
|
12/09/2024 - Coles - Food - Outreach |
$98.00 |
|
74-443 |
|
17/09/2024 - Dominos - Food - Yanchep Youth Centre - Term 3 |
$84.00 |
|
74-444 |
|
17/09/2024 - Coles Online - Food - Yanchep Youth Centre - Term 3 |
$142.69 |
|
74-445 |
|
26/09/2024 - Coffeelicious - Contractor - October School Holidays - Yanchep Community Open Day |
$506.00 |
|
74-446 |
|
26/09/2024 - S24 Yanchep - Materials - October School Holidays - Yanchep Community Youth Day |
$79.99 |
|
74-447 |
|
26/09/2024 - S24 Yanchep - Food - Yanchep Convenience - October School Holidays - Ice |
$9.98 |
|
74-448 |
|
27/09/2024 - Annual Fee - Credit Card Fee - Paid Monthly |
$5.00 |
|
74-449 |
|
02/09/2024 - Spotify P2F16C6D21 - School Holidays - Contractor |
$251.99 |
|
74-450 |
|
03/09/2024 - Coles Online - Food - Wanneroo Youth Centre - Term 3 - Drop In |
$80.67 |
|
74-451 |
|
04/09/2024 - Kmart - Materials - Wanneroo Youth Centre - Term 3 - Drop In |
$53.00 |
|
74-452 |
|
05/09/2024 - Coles - Materials And Food - Wanneroo Youth Centre - Term 3 - Drop In |
$51.35 |
|
74-453 |
|
12/09/2024 - Coles Online - Food - Wanneroo Youth Centre - Term 3 - Drop In |
$84.05 |
|
74-454 |
|
17/09/2024 - Coles - Food - Wanneroo Youth Centre - Term 3 - Drop In |
$34.40 |
|
74-455 |
|
17/09/2024 - Dominos Estore Jindalee - Food - Outreach |
$70.00 |
|
74-456 |
|
17/09/2024 - Kmart - Materials - Wanneroo Youth Centre - Term 3 - Drop In |
$106.00 |
|
74-457 |
|
19/09/2024 - Dominos - Food - Wanneroo Youth Centre - Term 3 - Drop In |
$61.00 |
|
74-458 |
|
27/09/2024 - Annual Fee - Credit Card Fee - Paid Monthly |
$5.00 |
|
74-459 |
|
30/08/2024 - Morris Supa Foods - Food - Drop-In - Hainsworth Youth Centre |
$13.70 |
|
74-460 |
|
02/09/2024 - Coles Online - Food - Drop-In - Hainsworth Youth Centre |
$102.90 |
|
74-461 |
|
05/09/2024 - Coles - Materials - Drop-In - Hainsworth Youth Centre |
$40.35 |
|
74-462 |
|
06/09/2024 - Supa Valu Girrawheen - Food - Drop-In - Hainsworth Youth Centre |
$15.38 |
|
74-463 |
|
06/09/2024 - Officeworks - Materials - School Holidays - Slime And Shine |
$85.09 |
|
74-464 |
|
06/09/2024 - Coles Online - Food - October School Holidays - Slime And Shine |
$183.65 |
|
74-465 |
|
09/09/2024 - Coles Online - Food - Drop-In - Hainsworth Youth Centre |
$58.20 |
|
74-466 |
|
12/09/2024 - Kmart - Materials - Drop-In - Hainsworth Youth Centre |
$20.20 |
|
74-467 |
|
13/09/2024 - Kmart - Materials - School Holidays - Hungry Games 2.0 |
$141.50 |
|
74-468 |
|
16/09/2024 - Instant Products Hire - July School Holidays - Contractor Portable Toilet - NAIDOC Tree Planting Day |
$364.65 |
|
74-469 |
|
16/09/2024 - Coles Online - Food - Drop-In - Hainsworth Youth Centre |
$155.89 |
|
74-470 |
|
19/09/2024 - Coles Online - Food - October School Holidays - Hungry Games 2.0 |
$51.70 |
|
74-471 |
|
19/09/2024 - Coles Online - Food - October School Holidays - Bulk Food Order |
$188.50 |
|
74-472 |
|
20/09/2024 - Morris Supa Foods - Food - Drop-In - Hainsworth Youth Centre |
$19.60 |
|
74-473 |
|
20/09/2024 - Spudshed - Food - Drop-In - Hainsworth Youth Centre |
$23.98 |
|
74-474 |
|
27/09/2024 - Annual Fee - Credit Card Fee - Paid Monthly |
$5.00 |
|
74-475 |
|
19/09/2024 - Coles Online - Food - October School Holidays - Bulk Food Order |
$478.00 |
|
74-476 |
|
24/09/2024 - Bunnings Group Ltd - Materials |
$199.00 |
|
74-477 |
|
27/09/2024 - Annual Fee - Credit Card Fee - Paid Monthly |
$5.00 |
|
74-478 |
|
03/09/2024 - Coles Online - Food - Clarkson Youth Hub - Drop-In |
$162.13 |
|
74-479 |
|
05/09/2024 - Woolworths - Food - Clarkson Youth Hub - Drop-In |
$8.30 |
|
74-480 |
|
05/09/2024 - Kmart - Food - Clarkson Youth Hub - Drop-In |
$44.50 |
|
74-481 |
|
05/09/2024 - Kmart - Materials - Clarkson Youth Hub - Drop-In |
$19.00 |
|
74-482 |
|
05/09/2024 - Pay.Ecu.Edu.Au Prkng - Parking - Youth Review |
$5.00 |
|
74-483 |
|
10/09/2024 - Kmart - Food - School Engagement |
$30.00 |
|
74-484 |
|
18/09/2024 - Dominos - Food - Dominos - Outreach |
$56.00 |
|
74-485 |
|
20/09/2024 - Dominos - Food - Clarkson Youth Hub |
$71.00 |
|
74-486 |
|
24/09/2024 - Woolworths - Material - October School Holiday - Cleaning Box |
$28.70 |
|
74-487 |
|
24/09/2024 - Spudshed - Food - October School Holidays |
$292.15 |
|
74-488 |
|
27/09/2024 - Annual Fee - Credit Card Fee - Paid Monthly |
$5.00 |
|
|
|
|
|
|
|
|
Total - NAB |
$58,560.31 |
|
|
|
|
|
|
|
|
Total - Credit Cards |
$69,745.53 |
|
|
|
|
|
|
CANCELLED PAYMENTS FROM PREVIOUS PERIODS |
|||
|
35885 |
25.10.2024 |
Diego Nanini |
-$351.15 |
|
122836 |
03.03.2022 |
The Richard Walley Family Trust |
-$550.00 |
|
122844 |
09.03.2022 |
West Coast Heli Scene |
-$210.00 |
|
123655 |
14.11.2022 |
Neevas Construction Pty Ltd |
-$1,024.00 |
|
|
|
|
|
|
|
|
Total - Cancelled |
-$2,135.15 |
|
|
|
|
|
|
MANUAL JOURNALS |
|||
|
FA25-350 |
30.11.2024 |
CBA Corp Credit Card Acquittal EFT 73 |
-$11,185.22 |
|
|
|
Returned Reject Fees - EFT's |
$10.00 |
|
|
|
Prosecution Lodgement Fees |
$378.00 |
|
|
|
Fines Enforcement Lodgements |
$3,096.00 |
|
|
|
|
|
|
|
|
Total - Journals |
-$7,701.22 |
|
|
|
|
|
|
TOWN PLANNING SCHEME |
|||
|
|
|
Cell 1 |
|
|
|
|
Bing Technologies - Advertising Annual Review |
$31.06 |
|
|
|
Omnicom Media Group - West Australian - Advertising |
$145.15 |
|
|
|
Omnicom Media Group - Perth Now - Advertising |
$99.88 |
|
|
|
Cell 2 |
|
|
|
|
Bing Technologies - Advertising Annual Review |
$31.07 |
|
|
|
Omnicom Media Group - West Australian - Advertising |
$145.15 |
|
|
|
Omnicom Media Group - Perth Now - Advertising |
$99.88 |
|
|
|
Australia Post - Advertising Annual Review |
$1.35 |
|
|
|
Cell 3 |
|
|
|
|
Bing Technologies - Advertising Annual Review |
$31.06 |
|
|
|
Omnicom Media Group - West Australian - Advertising |
$145.15 |
|
|
|
Omnicom Media Group - Perth Now - Advertising |
$99.88 |
|
|
|
Australia Post - Advertising Annual Review |
$2.71 |
|
|
|
Cell 4 |
|
|
|
|
Bing Technologies - Advertising Annual Review |
$31.06 |
|
|
|
Omnicom Media Group - West Australian - Advertising |
$145.16 |
|
|
|
Omnicom Media Group - Perth Now - Advertising |
$99.88 |
|
|
|
Cell 5 |
|
|
|
|
Bing Technologies - Advertising Annual Review |
$31.07 |
|
|
|
Omnicom Media Group - West Australian - Advertising |
$145.16 |
|
|
|
Omnicom Media Group - Perth Now - Advertising |
$99.88 |
|
|
|
Cell 6 |
|
|
|
|
Bing Technologies - Advertising Annual Review |
$31.07 |
|
|
|
Omnicom Media Group - West Australian - Advertising |
$145.16 |
|
|
|
Omnicom Media Group - Perth Now - Advertising |
$99.89 |
|
|
|
Cell 7 |
|
|
|
|
Bing Technologies - Advertising Annual Review |
$31.07 |
|
|
|
Omnicom Media Group - West Australian - Advertising |
$145.16 |
|
|
|
Omnicom Media Group - Perth Now - Advertising |
$99.89 |
|
|
|
Cell 8 |
|
|
|
|
Bing Technologies - Advertising Annual Review |
$31.07 |
|
|
|
Omnicom Media Group - West Australian - Advertising |
$145.16 |
|
|
|
Omnicom Media Group - Perth Now - Advertising |
$99.89 |
|
|
|
Australia Post - Advertising Annual Review |
$5.42 |
|
|
|
Cell 9 |
|
|
|
|
Bing Technologies - Advertising Annual Review |
$31.07 |
|
|
|
Omnicom Media Group - West Australian - Advertising |
$145.16 |
|
|
|
Omnicom Media Group - Perth Now - Advertising |
$99.89 |
|
|
|
|
|
|
|
|
Total - TPS |
$2,494.45 |
|
|
|
|
|
|
General Fund Bank Account |
|||
|
|
|
Payroll Payments November 2024 |
|
|
|
|
12/11/2024 |
$2,261,044.52 |
|
|
|
12/11/2024 |
$16,372.43 |
|
|
|
12/11/2024 |
$5,598.64 |
|
|
|
26/11/2024 |
$2,304,066.54 |
|
|
|
26/11/2024 |
$367.62 |
|
|
|
26/11/2024 |
$19,781.64 |
|
|
|
|
|
|
|
|
Total - Payroll |
$4,607,231.39 |
|
|
|
|
|
|
|
30/11/2024 |
Municipal Account Bank Fees November 2024 |
|
|
|
|
CBA Pooling Maintenance Fee |
$50.00 |
|
|
|
Merchant Fees |
$24,363.65 |
|
|
|
Amex Fee |
$921.37 |
|
|
|
BPAY Rates |
$11,238.06 |
|
|
|
BPAY FAC |
$67.00 |
|
|
|
BPAY Debtors |
$44.50 |
|
|
|
Bpoint Rates |
$176.65 |
|
|
|
Bpoint Debtors |
$0.72 |
|
|
|
Commbiz Transaction Fees |
$354.70 |
|
|
|
Commbiz Fee Account Service Fees / DDA Transactions |
$74.70 |
|
|
|
|
|
|
|
|
Total - Bank Fees |
$37,291.35 |
|
|
|
|
|
|
|
|
Total - Muni Recoup |
$21,044,408.24 |
|
|
|
|
|
|
|
|
Direct Payments Total (Includes Payroll, Bank Fees & Advance Recoup) |
$25,688,930.98 |
At the close of November 2024 outstanding creditors amounted to $12,540,173.25.
Consultation
Nil
Comment
The list of payment (cheques and electronic transfers) and the end of month total of outstanding creditors for the month of November 2024 is presented to the Council for information and recording in the minutes of the meeting, as required by the Local Government (Financial Management) Regulations 1996.
Statutory Compliance
Regulation 13(1) of the Local Government (Financial Management) Regulations 1996 requires a local government to list the accounts paid each month and total all outstanding creditors at the month end and present such information to the Council at its next Ordinary Meeting after each preparation. A further requirement of this Section is that the prepared list must be recorded in the minutes of the Council meeting.
Strategic Implications
The proposal aligns with the following objective within the Strategic Community Plan 2021 – 2031:
7 ~ A well governed and managed City that makes informed decisions, provides strong community leadership and valued customer focused services
7.2 - Responsibly and ethically managed
Risk Appetite Statement
In pursuit of strategic objective goal 7, we will accept a Medium level of risk as the City balances the capacity of the community to fund services through robust cost-benefit analysis and pursues evidence-based decision making to be effective stewards of the Council and City for future generations.
Risk Management Considerations
There are no existing Strategic or Corporate risks within the City's existing risk registers which relate to the issues contained in this report.
Policy Implications
Nil
Financial Implications
Nil
Changes to Reports arising from Agenda Briefing
Nil
Voting Requirements
Simple Majority
Attachments: Nil
CITY OF WANNEROO Minutes OF Ordinary Council Meeting 25 February, 2025 1
CS05-02/25 Warrant of Payments for the Period to 31 December 2024
File Ref: 1859V02 – 25/17904
Responsible Officer: Acting Chief Financial Officer
Attachments: Nil
Issue
Presentation to the Council of a list of accounts paid for the month of December 2024, including a statement as to the total amounts outstanding at the end of the month.
Background
Local Governments are required each month to prepare a list of accounts paid for that month and submit the list to the next Ordinary Meeting of the Council.
In addition, it must record all other outstanding accounts and include that amount with the list to be presented. The list of accounts paid and the total of outstanding accounts must be recorded in the minutes of the Council meeting.
Detail
The following is the Summary of Accounts paid in December 2024:
|
Funds |
Vouchers |
Amount |
|
Director Corporate Services Advance A/C Accounts Paid – December 2024 Cheque Numbers Credit Cards EFT Document Numbers TOTAL ACCOUNTS PAID
Less Cancelled Cheques Town Planning Scheme RECOUP FROM MUNICIPAL FUND |
124877 – 124906 75 - 76 37220 - 38154 |
$23,787.29 $88,804.51 $24,270,554.36 $24,383,146.16
($0.00) ($8,150.98) $24,374,995.18 |
|
Municipal Fund – Bank A/C Accounts Paid – December 2024
Recoup to Director Corporate Services Advance A/C Bank Fees Payroll – Direct Debits TOTAL ACCOUNTS PAID |
|
$24,374,995.18 $54,617,75 $4,820,946.27 $29,250,559.20 |
|
Town Planning Scheme Accounts Paid – December 2024 Cell 1 Cell 2 Cell 3 Cell 4 Cell 5 Cell 6 Cell 7 Cell 8 Cell 9 TOTAL ACCOUNTS PAID |
|
$397.88 $565.88 $397.88 $565.89 $397.89 $1,776.57 $1,734.55 $509.89 $1,804.55 $8,150.98 |
(Please note in some instances descriptions/details of one transaction are presented across two pages in following table.)
|
Warrant of Payments December 2024 |
|||
|
|
|
|
|
|
Number |
Date |
Supplier / Description |
Amount |
|
124877 |
2/12/2024 |
Rates Refund |
$667.92 |
|
124878 |
2/12/2024 |
Rates Refund |
$604.00 |
|
124879 |
2/12/2024 |
Rates Refund |
$643.33 |
|
124880 |
2/12/2024 |
Rates Refund |
$658.46 |
|
124881 |
2/12/2024 |
Rates Refund |
$856.44 |
|
124882 |
2/12/2024 |
Rates Refund |
$379.44 |
|
124883 |
2/12/2024 |
Rates Refund |
$878.13 |
|
124884 |
2/12/2024 |
Rates Refund |
$758.87 |
|
124885 |
2/12/2024 |
Rates Refund |
$737.19 |
|
124886 |
2/12/2024 |
Rates Refund |
$702.55 |
|
124887 |
2/12/2024 |
Rates Refund |
$916.51 |
|
124888 |
2/12/2024 |
Rates Refund |
$376.01 |
|
124889 |
2/12/2024 |
Daniel Tiani |
$1,000.00 |
|
|
|
Refund - Street & Verge Bond |
|
|
124890 |
2/12/2024 |
Boyd Swanson |
$2,000.00 |
|
|
|
Refund - Street & Verge Bond |
|
|
124891 |
2/12/2024 |
1800 Move It |
$807.50 |
|
|
|
Move Shelving From 3 Libraries To Two Rocks Library |
|
|
124892 |
09/12/2024 |
Rates Refund |
$650.89 |
|
124893 |
09/12/2024 |
Rates Refund |
$664.14 |
|
124894 |
09/12/2024 |
Rates Refund |
$742.12 |
|
124895 |
09/12/2024 |
Rates Refund |
$780.56 |
|
124896 |
09/12/2024 |
Logiudice Property Group |
$1,306.45 |
|
|
Quarterly Admin / Reserve Fund Levy 01/01/2025 - 31/03/2025 - Mindarie Medical Centre |
|
|
|
124897 |
16/12/2024 |
Rates Refund |
$652.79 |
|
124898 |
16/12/2024 |
Rates Refund |
$170.01 |
|
124899 |
16/12/2024 |
Rates Refund |
$569.71 |
|
124900 |
16/12/2024 |
Rates Refund |
$422.80 |
|
124901 |
16/12/2024 |
Rates Refund |
$899.80 |
|
124902 |
16/12/2024 |
Rates Refund |
$924.08 |
|
124903 |
16/12/2024 |
Rates Refund |
$908.94 |
|
124904 |
16/12/2024 |
Rates Refund |
$692.65 |
|
124905 |
16/12/2024 |
Gary & Mary Harvey |
$416.00 |
|
|
|
Refund - Development Application - Withdrawn |
|
|
124906 |
16/12/2024 |
John Mosalski |
$2,000.00 |
|
|
|
Refund - Street & Verge Bond |
|
|
|
|
|
|
|
|
|
Total Cheque Payments |
$23,787.29 |
|
|
|
|
|
|
Electronic Funds Transfer |
|||
|
37220 |
2/12/2024 |
Ms C Buck |
$11.21 |
|
|
|
Reimbursement - Parking Fee - Facet Board Meeting |
|
|
37221 |
2/12/2024 |
Mr D Kerry |
$424.06 |
|
|
|
Reimbursement - Transport And Refreshments Whilst Attending Business Conference In Sydney |
|
|
37222 |
2/12/2024 |
Ms K Leavesley |
$70.00 |
|
|
|
Reimbursement - Animal Care Centre Purchase |
|
|
37223 |
2/12/2024 |
Mr L Smith |
$25.24 |
|
|
|
Reimbursement - Parking Fees |
|
|
37224 |
2/12/2024 |
Mr M Little |
$17.16 |
|
|
|
Reimbursement - Parking Fees |
|
|
37225 |
2/12/2024 |
Mr M Dickson |
$253.03 |
|
|
|
Reimbursement - Coffee Vouchers - Reward & Recognition |
|
|
37226 |
2/12/2024 |
Ms S Straker |
$123.33 |
|
|
|
Reimbursement - Travel Expenses |
|
|
37229 |
2/12/2024 |
Western Power |
$15,000.00 |
|
|
|
Retrospective Underground Project Contract Initiation - Wanneroo - Girrawheen |
|
|
37230 |
5/12/2024 |
(A) Pod Pty Ltd |
$31,553.61 |
|
|
|
Detailed Design (Architectural) Services - Alkimos Aquatic & Recreation Centre |
|
|
37231 |
5/12/2024 |
3Logix Pty Ltd |
$165.00 |
|
|
|
System Integration APIS - Waste |
|
|
37232 |
5/12/2024 |
7-Eleven Stores Pty Ltd |
$229.50 |
|
|
|
Refund – Food Fee - Business Closed |
|
|
37233 |
5/12/2024 |
AAAC Towing |
$341.00 |
|
|
|
Abandoned Vehicle Management Services |
|
|
37234 |
5/12/2024 |
ABN Residential WA Pty Ltd |
$12,000.00 |
|
|
|
Refund - Street & Verge Bond |
|
|
37235 |
5/12/2024 |
ABN Residential WA Pty Ltd |
$2,000.00 |
|
|
|
Refund - Street & Verge Bond |
|
|
37236 |
5/12/2024 |
Activ Foundation Incorporated |
$2,828.65 |
|
|
|
Garden Maintenance - Ray Gardiner Park |
|
|
|
|
Footpath Maintenance And Weed Treatment - Wanneroo Road |
|
|
37237 |
5/12/2024 |
Activ Foundation Incorporated |
$9,541.57 |
|
|
|
Mulching Works - Kingsway Sports Complex - Dog Park |
|
|
37238 |
5/12/2024 |
Adelphi Apparel |
$220.00 |
|
|
|
Uniform Issue - Community Safety |
|
|
37239 |
5/12/2024 |
Akcelik & Associates Pty Ltd t/a Sidra Solutions |
$2,475.00 |
|
|
|
Training - Sidra Traffic Engineer - 5 Attendees |
|
|
37240 |
5/12/2024 |
Alessio Conerdi & Cinzia Bulegato |
$874.50 |
|
|
|
Vehicle Crossing Subsidy |
|
|
37241 |
5/12/2024 |
Alinta Gas |
$47.10 |
|
|
|
Gas Supply Charges |
|
|
37242 |
5/12/2024 |
Alpesh Patel |
$500.00 |
|
|
|
CCTV Rebate |
|
|
37243 |
5/12/2024 |
Amitkumar Makani |
$449.70 |
|
|
|
CCTV Rebate |
|
|
37244 |
5/12/2024 |
Ampelite Australia Pty Ltd |
$2,772.00 |
|
|
|
Webglas Skylights - Building Maintenance |
|
|
37245 |
5/12/2024 |
Amy Smith |
$1,844.50 |
|
|
|
Refund - Building Application - Returned |
|
|
37246 |
5/12/2024 |
Andrea Pollard |
$500.00 |
|
|
|
CCTV Rebate |
|
|
37247 |
5/12/2024 |
Andrew Goold |
$700.80 |
|
|
|
Refund - Development Application - Withdrawn |
|
|
37248 |
5/12/2024 |
Animal Health Solutions Pty Ltd |
$1,320.51 |
|
|
|
Supplies - Animal Care Centre |
|
|
37249 |
5/12/2024 |
Ann Vinci |
$2,000.00 |
|
|
|
Refund - Street & Verge Bond |
|
|
37250 |
5/12/2024 |
Applied Security Force |
$596.88 |
|
|
|
Security - Evening In The Park - Ridgewood |
|
|
37251 |
5/12/2024 |
Ascon Survey and Drafting |
$1,041.70 |
|
|
|
A-Spec Pick Up - Burbanks Park & Koondoola Bushland |
|
|
37252 |
5/12/2024 |
Atlas Dry Cleaners |
$1,227.27 |
|
|
|
Laundry Services - Fleet Workshops |
|
|
37253 |
5/12/2024 |
Aurora Environmental Perth |
$2,139.50 |
|
|
|
Develop SWMS And Liaise With Contractor - Poinciana Park |
|
|
37254 |
5/12/2024 |
Aussie Natural Spring Water |
$21.66 |
|
|
|
Bottled Water - Print Room |
|
|
37255 |
5/12/2024 |
Australian Airconditioning Services Pty Ltd |
$689.28 |
|
|
|
Airconditioning Maintenance Services - Various Locations |
|
|
37256 |
5/12/2024 |
Australian Property Consultants |
$385.00 |
|
|
|
Market Rent Assessment - Tenancy 2, 27 Ocean Keys Boulevard Clarkson |
|
|
37257 |
5/12/2024 |
Australian Services Union |
$238.50 |
|
|
|
Payroll Deductions |
|
|
37258 |
5/12/2024 |
Australian Taxation Office |
$692,780.00 |
|
|
|
Payroll Deductions |
|
|
37259 |
5/12/2024 |
Aveling Homes Pty Ltd |
$2,000.00 |
|
|
|
Refund - Street & Verge Bond |
|
|
37260 |
5/12/2024 |
Ball & Doggett Pty Ltd |
$8,087.56 |
|
|
|
Paper Supplies - Print Room |
|
|
37261 |
5/12/2024 |
Beat Hess |
$50.00 |
|
|
|
Dog Registration Refund - Sterilisation |
|
|
37262 |
5/12/2024 |
Befriend Incorporated |
$5,069.90 |
|
|
|
Support Delivery Of Allara Community Christmas Carols 2024 Via City Of Wanneroo Community Funding Program |
|
|
37263 |
5/12/2024 |
Bing Technologies Pty Ltd |
$3,780.36 |
|
|
|
Postage Charges For The City |
|
|
37264 |
5/12/2024 |
Bistel Construction Pty Ltd |
$1,774.17 |
|
|
|
Consultancy Services - Roof Replacement - Building 3 |
|
|
37265 |
5/12/2024 |
Bladon WA Pty Ltd |
$4,271.55 |
|
|
|
Corporate Uniform Issue - Various Employees |
|
|
37266 |
5/12/2024 |
Bookery |
$1,395.90 |
|
|
|
Road To IELTS & Clear Pronunciation Subscription Renewal 2024 / 2025 |
|
|
37267 |
5/12/2024 |
Boya Equipment |
$377.69 |
|
|
|
Vehicle Spare Parts - Fleet |
|
|
37268 |
5/12/2024 |
Braddan Wilson |
$500.00 |
|
|
|
CCTV Rebate |
|
|
37269 |
5/12/2024 |
Brett Chaisiri-Clark |
$2,000.00 |
|
|
|
Refund - Street & Verge Bond |
|
|
37270 |
5/12/2024 |
Bridgestone Australia Limited |
$8.80 |
|
|
|
Tyre Fitting Services |
|
|
37271 |
5/12/2024 |
Bridgestone Australia Limited |
$70.91 |
|
|
|
Tyre Fitting Services |
|
|
37272 |
5/12/2024 |
Brightly Software Australia Pty Ltd |
$27,715.60 |
|
|
|
Assetic Implementation Service |
|
|
|
|
Project Management - September 2023 - ICT |
|
|
37273 |
5/12/2024 |
Bucher Municipal Pty Ltd |
$5,692.90 |
|
|
|
Vehicle Spare Parts |
|
|
37274 |
5/12/2024 |
Built Ink Pty Ltd |
$2,120.00 |
|
|
|
Refund - Street & Verge Bond |
|
|
37275 |
5/12/2024 |
Cabcharge |
$479.12 |
|
|
|
Cabcharge Services |
|
|
37276 |
5/12/2024 |
Cafe Coffeelicious 4 U WA |
$1,170.00 |
|
|
|
Coffee And Treats Supplies - 12.11.2024 - Mindarie - Community Development |
|
|
37277 |
5/12/2024 |
Car Care Motor Company Pty Ltd |
$2,471.40 |
|
|
|
Vehicle Services - Fleet |
|
|
37278 |
5/12/2024 |
Casey McArthur |
$499.47 |
|
|
|
CCTV Rebate |
|
|
37279 |
5/12/2024 |
CF Town Planning & Development |
$417.58 |
|
|
|
Refund - Development Application - Duplicate |
|
|
37280 |
5/12/2024 |
CFMEU |
$110.00 |
|
|
|
Payroll Deductions |
|
|
37281 |
5/12/2024 |
Cherry Yip |
$245.00 |
|
|
|
Refund - Birthday Party Package - Aquamotion Pool Closure |
|
|
37282 |
5/12/2024 |
Child Support Agency |
$1,830.06 |
|
|
|
Payroll Deductions |
|
|
37283 |
5/12/2024 |
City of Fremantle |
$9,901.39 |
|
|
|
Long Service Leave Entitlements - Former Employee |
|
|
37284 |
5/12/2024 |
City of Wanneroo |
$492.00 |
|
|
|
Payroll Deductions |
|
|
37285 |
5/12/2024 |
Coca Cola Amatil Pty Ltd |
$366.02 |
|
|
|
Beverages - Kingsway |
|
|
37286 |
5/12/2024 |
Complete Office Supplies Pty Ltd |
$2,011.05 |
|
|
|
Stationery Purchases - Various Service Units |
|
|
37287 |
5/12/2024 |
Complete Office Supplies Pty Ltd |
$266.86 |
|
|
|
Stationery Purchases - Various Service Units |
|
|
37288 |
5/12/2024 |
Contra-Flow Pty Ltd |
$3,370.13 |
|
|
|
Traffic Management - Tamala Park - Parks |
|
|
37289 |
5/12/2024 |
Corsign (WA) Pty Ltd |
$801.90 |
|
|
|
Signs - Install - Kiss And Drive |
|
|
|
|
Street Name Plates |
|
|
37290 |
5/12/2024 |
Cossill & Webley Consulting Engineers (New Entity) |
$28,754.00 |
|
|
|
Consulting Engineering Services - Flynn Drive Duplication |
|
|
37291 |
5/12/2024 |
Rates Refund |
$178.14 |
|
37292 |
5/12/2024 |
Craneswest (WA) Pty Ltd |
$239,653.46 |
|
|
|
Work Completed By Western Go Organics JV |
|
|
37293 |
5/12/2024 |
Craneswest (WA) Pty Ltd |
$3,584.20 |
|
|
|
Bulk Verge Received At Our Wesco Road Site |
|
|
37294 |
5/12/2024 |
Critical Fire Protection & Training Pty Ltd |
$2,550.56 |
|
|
|
Repairs - Fire Detection / Protection Equipment - Various Locations |
|
|
37295 |
5/12/2024 |
CW Brands Pty Ltd |
$1,319.56 |
|
|
|
Marker Paint / Flagging Tape - Stores |
|
|
37296 |
5/12/2024 |
Daimler Trucks Perth |
$1,085.03 |
|
|
|
Vehicle Spare Parts |
|
|
37297 |
5/12/2024 |
Dale Alcock Homes Pty Ltd |
$2,000.00 |
|
|
|
Refund - Street & Verge Bond |
|
|
37298 |
5/12/2024 |
Darryl Falls |
$2,000.00 |
|
|
|
Refund - Street & Verge Bond |
|
|
37299 |
5/12/2024 |
Data #3 Limited |
$536.20 |
|
|
|
Azure Annual Fee - Year 2 - ICT |
|
|
37300 |
5/12/2024 |
David Cousel |
$850.00 |
|
|
|
Bond Refund |
|
|
37301 |
5/12/2024 |
David Roy Cull |
$1,023.00 |
|
|
|
Pest Control Services - Various Locations |
|
|
37302 |
5/12/2024 |
Rates Refund |
$664.14 |
|
37303 |
5/12/2024 |
Department of Fire & Emergency Services |
$9,157,694.24 |
|
|
|
2024 / 2025 ESL Quarter 2 |
|
|
37304 |
5/12/2024 |
Department of Planning, Lands and Heritage |
$12,336.00 |
|
|
|
Application Accepted By The City DAP/24/02806 - Planning Solutions Bourke Way Eglinton - Childcare Centre |
|
|
|
|
Application Accepted By The City DAP/24/02801 - Apex Planning 125 Butler Boulevard Service Station |
|
|
37305 |
5/12/2024 |
Discus Print & Signage |
$1,092.30 |
|
|
|
Install Graphics On City Vehicles |
|
|
37306 |
5/12/2024 |
Dong Kim |
$500.00 |
|
|
|
CCTV Rebate |
|
|
37307 |
5/12/2024 |
Double G (WA) Pty Ltd |
$8,336.49 |
|
|
|
Repair Irrigation Leak, Decoder Replacement And System Updates - Kingsbridge Park |
|
|
37308 |
5/12/2024 |
Drainflow Services Pty Ltd |
$85,599.85 |
|
|
|
Drain Cleaning / Road Sweeping Charges - Various Locations |
|
|
37309 |
5/12/2024 |
Eclipse Soils |
$26,625.50 |
|
|
|
Bushland Mulch - Leatherback Park |
|
|
37310 |
5/12/2024 |
Edith Cowan University Student Guild |
$110.00 |
|
|
|
Newsletter Advert - 2024 Wanneroo Liveability Survey |
|
|
37311 |
5/12/2024 |
Environmental Industries Pty Ltd |
$39,183.97 |
|
|
|
Landscape Maintenance Services - Various Locations |
|
|
37312 |
5/12/2024 |
Epic Catering & Events Services Pty Ltd |
$1,969.00 |
|
|
|
Catering - WALGA Meeting 20 November |
|
|
37313 |
5/12/2024 |
Ergolink |
$1,556.55 |
|
|
|
Office Chair - Contracts & Procurement Management |
|
|
|
|
Office Chair - Office Of The Mayor |
|
|
|
|
Office Chair - Communications & Brand Administration |
|
|
37314 |
5/12/2024 |
Evolve Talent Pty Ltd |
$8,769.48 |
|
|
|
Casual Labour Services |
|
|
37315 |
5/12/2024 |
First 5 Minutes Pty Ltd |
$2,026.48 |
|
|
|
Emergency Evacuation Plans - Halesworth Park |
|
|
37316 |
5/12/2024 |
Fleet Network |
$11,541.26 |
|
|
|
Payroll Deductions |
|
|
37317 |
5/12/2024 |
Flick Anticimex Pty Ltd |
$5,505.41 |
|
|
|
Sanitary Waste Services |
|
|
37318 |
5/12/2024 |
Focus Consulting WA Pty Ltd |
$484.00 |
|
|
|
Electrical Consultancy Services - Elliot Park Tennis Lighting |
|
|
37319 |
5/12/2024 |
Foxfish Pty Ltd t/as Binley Fencing |
$2,348.00 |
|
|
|
Temp Fence Hire Service - Pit Repairs |
|
|
|
|
Temporary Fencing - Upgrade External Patio - Aquamotion |
|
|
37320 |
5/12/2024 |
Fusion Applications Pty Ltd |
$7,150.00 |
|
|
|
Integration Development Support Services - Draw Down Service |
|
|
37321 |
5/12/2024 |
GB Construction & Investments Pty Ltd |
$3,375.38 |
|
|
|
Refund - Building Application - Duplicate |
|
|
37322 |
5/12/2024 |
Geoff's Tree Service Pty Ltd |
$39,040.16 |
|
|
|
Tree Pruning Services - Various Locations |
|
|
37323 |
5/12/2024 |
Georgina Cowan |
$436.36 |
|
|
|
CCTV Rebate |
|
|
37324 |
5/12/2024 |
GPC Asia Pacific Pty Ltd |
$800.26 |
|
|
|
Tool Purchases - Fleet / Stores |
|
|
37325 |
5/12/2024 |
Greenwood Party Hire |
$948.00 |
|
|
|
Equipment Hire - Marquee And Table - Work Health & Safety |
|
|
|
|
Stage Hire & Delivery - Clarkson Library |
|
|
|
|
Equipment Hire - Tables & Cloths - Time Capsule |
|
|
37326 |
5/12/2024 |
Halpd Pty Ltd Trading As Affordable Living Homes |
$2,000.00 |
|
|
|
Refund - Street & Verge Bond |
|
|
37327 |
5/12/2024 |
Hart Sport |
$385.00 |
|
|
|
Deep Water Aqua Belts - Aquamotion |
|
|
37328 |
5/12/2024 |
Hayley McGreal |
$345.00 |
|
|
|
CCTV Rebate |
|
|
37329 |
5/12/2024 |
Hays Personnel Services |
$13,261.52 |
|
|
|
Casual Labour Services |
|
|
37330 |
5/12/2024 |
Heavy Automatics Pty Ltd |
$871.00 |
|
|
|
Vehicle Spare Parts |
|
|
37331 |
5/12/2024 |
Helene Pty Ltd trading as Lo-Go Appointments WA |
$2,379.48 |
|
|
|
Casual Labour Services |
|
|
37332 |
5/12/2024 |
Hickey Constructions Pty Ltd |
$1,980.00 |
|
|
|
Sign Repairs - Alkimos Sign Reinstatement - Santorini Promenade |
|
|
37333 |
5/12/2024 |
Hiren Amin |
$449.70 |
|
|
|
CCTV Rebate |
|
|
37334 |
5/12/2024 |
Home Group WA Pty Ltd |
$742.65 |
|
|
|
Refund - Building Application - Timeframes Do Not Meet Guidelines |
|
|
37335 |
5/12/2024 |
Horizon West Landscape Constructions |
$77,095.70 |
|
|
|
Landscape Construction & Carpark Construction Claim - Riverlinks Park All Abilities |
|
|
37336 |
5/12/2024 |
Hydroquip Pumps & Irrigation Pty Ltd |
$5,690.45 |
|
|
|
Renewal / Supply / Install Octave Irrigation Flow Meter And Remove Existing Infrastructure - Heath Park |
|
|
37337 |
5/12/2024 |
Imagesource Digital Solutions |
$297.00 |
|
|
|
2 Velcro Wrap PVC Banners - Christmas Fiesta |
|
|
37338 |
5/12/2024 |
IMCO Australasia Pty Ltd |
$5,940.00 |
|
|
|
Par-Permanent Asphalt Repair 3 Pallets |
|
|
37339 |
5/12/2024 |
Integrity Industrial Pty Ltd |
$9,841.52 |
|
|
|
Casual Labour Services |
|
|
37340 |
5/12/2024 |
Integrity Industrial Pty Ltd |
$20,502.18 |
|
|
|
Casual Labour Services |
|
|
37341 |
5/12/2024 |
Integrity Staffing |
$3,753.39 |
|
|
|
Casual Labour Services |
|
|
37342 |
5/12/2024 |
Ixom Operations Pty Ltd |
$2,578.40 |
|
|
|
Pool Chemicals - Aquamotion |
|
|
37343 |
5/12/2024 |
J Blackwood & Son Ltd |
$3,710.37 |
|
|
|
Measuring Tapes / Gloves / Hammers / Wrench / Dispenser / Bootguards - Stores |
|
|
37344 |
5/12/2024 |
Jaimie Barrow |
$500.00 |
|
|
|
CCTV Rebate |
|
|
37345 |
5/12/2024 |
James Bennett Pty Ltd |
$1,695.34 |
|
|
|
Library Book Stock |
|
|
37346 |
5/12/2024 |
Japanese Truck & Bus Spares Pty Ltd |
$297.55 |
|
|
|
Vehicle Spare Parts |
|
|
37347 |
5/12/2024 |
Jason Drummond |
$381.54 |
|
|
|
CCTV Rebate |
|
|
37348 |
5/12/2024 |
Jobfit Health Group Pty Ltd |
$954.80 |
|
|
|
Provision Of Pre-Employment Medical Assessments |
|
|
37349 |
5/12/2024 |
John Benson |
$47.55 |
|
|
|
Refund - Copies Of Plans - Not Available |
|
|
37350 |
5/12/2024 |
Joshua Perman |
$2,000.00 |
|
|
|
Refund - Street & Verge Bond |
|
|
37351 |
5/12/2024 |
K & K Facility Services Pty Ltd |
$1,089.00 |
|
|
|
Daily Cleaning Of The Park Toilets - Hinckley Park |
|
|
37352 |
5/12/2024 |
Kerb Direct Kerbing |
$6,316.90 |
|
|
|
Traffic Management / Install Kerbing - Quinns Rocks Sports Club |
|
|
37353 |
5/12/2024 |
Kerb Direct Kerbing |
$6,731.11 |
|
|
|
Kerbing Works - Various Locations |
|
|
37354 |
5/12/2024 |
Kerry Lester |
$2,000.00 |
|
|
|
Refund - Street & Verge Bond |
|
|
37355 |
5/12/2024 |
Kingsway Christian Education Association Incorporated |
$7,500.90 |
|
|
|
Venue Hire - 2024 School Leadership Program Annual Showcase Evening |
|
|
37356 |
5/12/2024 |
Kit Prendergast |
$880.00 |
|
|
|
2 Native Bee Presentations - Pollinator Week |
|
|
37357 |
5/12/2024 |
Kleenit |
$4,065.04 |
|
|
|
Graffiti Removal - Various Locations |
|
|
37358 |
5/12/2024 |
Komatsu Australia Pty Ltd |
$1,240.67 |
|
|
|
Vehicle Spare Parts |
|
|
37359 |
5/12/2024 |
Landcare Weed Control |
$23,216.13 |
|
|
|
Landscape Maintenance Services - Various Locations |
|
|
37360 |
5/12/2024 |
Laura Bond |
$2,000.00 |
|
|
|
Refund - Street & Verge Bond |
|
|
37361 |
5/12/2024 |
Laura Brinkley |
$2,000.00 |
|
|
|
Refund - Street & Verge Bond |
|
|
37362 |
5/12/2024 |
Laura McCool |
$2,000.00 |
|
|
|
Refund - Street & Verge Bond |
|
|
37363 |
5/12/2024 |
Lawn Doctor Turf Solutions |
$35,753.69 |
|
|
|
Turf Sweeping Of Selected Area For Removal Of Tree Nuts - Kingsway AFL |
|
|
|
|
Turf Renovations - Various Locations |
|
|
37364 |
5/12/2024 |
LGISWA |
$1,000.00 |
|
|
|
Fleet Protection - Motor Vehicle Claim |
|
|
37365 |
5/12/2024 |
Linemarking WA Pty Ltd |
$8,691.12 |
|
|
|
Linemarking Services - Various Locations |
|
|
37366 |
5/12/2024 |
Living Turf |
$1,300.20 |
|
|
|
Fertiliser Audits Of New Fertiliser Spreading Contractor |
|
|
37367 |
5/12/2024 |
Luxworks Traffic Control and Management Pty Ltd |
$1,210.00 |
|
|
|
Traffic Management Plan / Removal Of Bollards - Rocca Way |
|
|
37368 |
5/12/2024 |
Cancelled |
|
|
37369 |
5/12/2024 |
Materon Investments WA Pty Ltd |
$2,000.00 |
|
|
|
Refund - Street & Verge Bond |
|
|
37370 |
5/12/2024 |
Maxxia Pty Ltd |
$8,802.24 |
|
|
|
Payroll Deductions |
|
|
37371 |
5/12/2024 |
Michael Page International (Australia)Pty Ltd |
$4,819.54 |
|
|
|
Casual Labour Services |
|
|
37372 |
5/12/2024 |
Mindarie Regional Council |
$14,542.64 |
|
|
|
Refuse Disposal Charges |
|
|
37373 |
5/12/2024 |
MME Underground Services Pty Ltd |
$3,306.98 |
|
|
|
Service Location Services - Civic Centre - Jacaranda Amphitheatre |
|
|
|
|
Service Locations Investigation - Two Rocks Road Intersection Treatment |
|
|
37374 |
5/12/2024 |
Modern Teaching Aids Pty Ltd |
$2,865.34 |
|
|
|
Creche Room Dividers & Craft Supplies |
|
|
37375 |
5/12/2024 |
Nicole Gordon |
$1,035.00 |
|
|
|
Face Painting - Ridgewood Evening In The Park |
|
|
37376 |
5/12/2024 |
Cancelled |
|
|
37377 |
5/12/2024 |
Nuturf |
$8,514.00 |
|
|
|
Adama Quali-Pro Marvel Ultra - Parks |
|
|
|
|
Biostim Pellets / Dredging Tabs - Lake Treatment - Various Locations |
|
|
37378 |
5/12/2024 |
Office Cleaning Experts |
$99,978.74 |
|
|
|
Cleaning Services - Various Locations |
|
|
37379 |
5/12/2024 |
Omnicom Media Group Australia Pty Ltd trading as Marketforce |
$2,529.90 |
|
|
|
Advertising Services - Various |
|
|
37380 |
5/12/2024 |
On Road Auto Electrics |
$691.05 |
|
|
|
Vehicle Works - Fleet |
|
|
37381 |
5/12/2024 |
On Tap Services |
$19,133.63 |
|
|
|
Plumbing Maintenance Charges - Various Locations |
|
|
37382 |
5/12/2024 |
Orixon Pty Ltd |
$7,819.61 |
|
|
|
Progress Claim 4 - Construction Of Canopy - Wanneroo Showgrounds |
|
|
37383 |
5/12/2024 |
OSH Group Pty Ltd |
$937.20 |
|
|
|
Medical Fees For The City |
|
|
37384 |
5/12/2024 |
Outdoor World |
$4,000.00 |
|
|
|
Refund - Street & Verge Bonds |
|
|
37385 |
5/12/2024 |
Paperbark Technologies Pty Ltd |
$1,841.12 |
|
|
|
Arboricultural Site Inspection And Overseeing Of Excavation Works - Atkings Way Netball |
|
|
|
|
Quantified Tree Risk Assessment - Various Trees |
|
|
37386 |
5/12/2024 |
Parker Black & Forrest |
$164.08 |
|
|
|
Locking Services - Warradale Park Community Centre |
|
|
37387 |
5/12/2024 |
Paywise Pty Ltd |
$4,495.01 |
|
|
|
Payroll Deductions |
|
|
37388 |
5/12/2024 |
Perth Bouncy Castle Hire |
$9,194.24 |
|
|
|
Community Event - Evening In The Park - Ridgewood Park |
|
|
37389 |
5/12/2024 |
Perth Bouncy Castle Hire |
$975.92 |
|
|
|
Hungry Games - Kingsbridge Park - Youth Services |
|
|
37390 |
5/12/2024 |
Perth Heavy Tow |
$3,850.00 |
|
|
|
Towing Services - Fleet |
|
|
37391 |
5/12/2024 |
Perth Playground And Rubber |
$2,118.60 |
|
|
|
Repairs To Softfall - Anthony Waring Reserve & Dalvik Park |
|
|
37392 |
5/12/2024 |
Planning Institute of Australia Limited |
$1,840.00 |
|
|
|
Registration Fee - Planet WA - Introduction To Planning 2025 - 14.04.2025 - 2 Attendees |
|
|
37393 |
5/12/2024 |
Porter Consulting Engineers |
$10,450.00 |
|
|
|
Contract Administration - Lenore Road Duplication |
|
|
37394 |
5/12/2024 |
Powerhouse Batteries Pty Ltd |
$1,795.27 |
|
|
|
Various Batteries - Stores |
|
|
37395 |
5/12/2024 |
Precision Visual Group Pty Ltd |
$147.00 |
|
|
|
Refund - Development Application - Withdrawn |
|
|
37396 |
5/12/2024 |
Prestige Alarms |
$95,834.94 |
|
|
|
Alarm / CCTV Services - Various Locations |
|
|
37397 |
5/12/2024 |
Priteshkumar Patel & Hetalben Patel |
$500.00 |
|
|
|
CCTV Rebate |
|
|
37398 |
5/12/2024 |
Programmed Facility Management Pty Ltd |
$300,129.10 |
|
|
|
Progress Claim 1 & 2 - Tennis Court & Floodlight Renewal - Bellport Park - Assets |
|
|
37399 |
5/12/2024 |
Pront Tow Towing / Wanneroo Towing Service |
$423.50 |
|
|
|
Transportation - Plant Items From Ashby Operations Centre To Slattery Auctions For Disposal |
|
|
37400 |
5/12/2024 |
PTE Group Pty Ltd |
$1,504.37 |
|
|
|
Vehicle Repairs - Fleet |
|
|
37401 |
5/12/2024 |
Randstad Pty Limited |
$2,370.41 |
|
|
|
Casual Labour Services |
|
|
37402 |
5/12/2024 |
Randstad Pty Limited |
$2,614.43 |
|
|
|
Casual Labour Services |
|
|
37403 |
5/12/2024 |
Reliable Fencing WA Pty Ltd |
$1,459.72 |
|
|
|
Install Chain Gate - Lake Adams |
|
|
|
|
Repair Fence - Gumblossom Park |
|
|
|
|
Replace Gate - Houghton Park |
|
|
37404 |
5/12/2024 |
Residential Building WA Pty Ltd |
$42,000.00 |
|
|
|
Refund - Street & Verge Bonds |
|
|
37405 |
5/12/2024 |
Resource Recovery Group |
$13,866.60 |
|
|
|
Recycling Tip Fees |
|
|
37406 |
5/12/2024 |
Roads 2000 |
$126,863.44 |
|
|
|
Road Resurfacing - Parin Road - Assets |
|
|
|
|
Supply Asphalt - Engineering |
|
|
37407 |
5/12/2024 |
Robert Walters Pty Ltd |
$5,358.25 |
|
|
|
Casual Labour Services |
|
|
37408 |
5/12/2024 |
Rates Refund |
$1,280.00 |
|
37409 |
5/12/2024 |
Rowan O’Hara |
$600.00 |
|
|
|
Robostart Academy Series - Wanneroo Library |
|
|
37410 |
5/12/2024 |
Royal Pride Pty Ltd |
$181.92 |
|
|
|
1 Service / Repair PA - Aquamotion |
|
|
37411 |
5/12/2024 |
RSEA Pty Ltd |
$199.99 |
|
|
|
Safety Boots - Health & Compliance |
|
|
37412 |
5/12/2024 |
Rubek Automatic Doors |
$330.00 |
|
|
|
Automatic Door Maintenance - Aquamotion - 06.11.2024 |
|
|
37413 |
5/12/2024 |
SafePath Pty Ltd |
$1,278.75 |
|
|
|
Path Grinding - Oban Park |
|
|
37414 |
5/12/2024 |
Safety And Rescue Equipment |
$724.91 |
|
|
|
Hight Safety Equipment Inspection - Kingsway Little Athletics Building |
|
|
|
|
Install New Anchor Point As Per Inspection / Recertification Recommendation - Leach Road Duplex |
|
|
37415 |
5/12/2024 |
Safety Tactile Pave |
$1,886.72 |
|
|
|
Install Pavers - Darling Rise / Candlestick Avenue / Watling Gate |
|
|
37416 |
5/12/2024 |
Safety World |
$3,306.60 |
|
|
|
PPE And Hydro Packs - Parks |
|
|
37417 |
5/12/2024 |
Sanax Medical And First Aid Supplies |
$293.70 |
|
|
|
Zinc, Sharps Container - Stores |
|
|
37418 |
5/12/2024 |
Sanpoint Pty Ltd ATF the Fiore Family Trust |
$623,903.07 |
|
|
|
Landscape Maintenance Services - Various Locations |
|
|
37419 |
5/12/2024 |
Scott Print |
$22,107.80 |
|
|
|
Printing - 2025 Calendar |
|
|
37420 |
5/12/2024 |
Seabreeze Landscape Supplies |
$135.00 |
|
|
|
5 Scoops Crushed Limestone |
|
|
37421 |
5/12/2024 |
Shannon Stern |
$500.00 |
|
|
|
CCTV Rebate |
|
|
37422 |
5/12/2024 |
Sharka Hornakova t/a Donut Waste |
$1,800.00 |
|
|
|
Workshop - Coffee Body Scrub - Waste Education |
|
|
37423 |
5/12/2024 |
Shaye Sutherland |
$71.90 |
|
|
|
Refund - Copies Of Plans - Not Available |
|
|
37424 |
5/12/2024 |
Site Environmental & Remediation Services Pty Ltd |
$8,379.36 |
|
|
|
Annual Asbestos Re-Inspections - Various Locations |
|
|
37425 |
5/12/2024 |
SJ McKee Maintenance Pty Ltd |
$3,212.00 |
|
|
|
Repair Fence / Gate / Paving - Various Locations |
|
|
37426 |
5/12/2024 |
Smartsalary |
$1,870.27 |
|
|
|
Payroll Deductions |
|
|
37427 |
5/12/2024 |
Sprayline Spraying Equipment |
$651.40 |
|
|
|
Radio Double 915Mhz Upgrade Kit Plug And Play - Parks |
|
|
37428 |
5/12/2024 |
SSB Pty Ltd |
$1,223.70 |
|
|
|
Refund - Building Application - Land Not Released |
|
|
37429 |
5/12/2024 |
St John Ambulance Western Australia Ltd |
$926.23 |
|
|
|
First Aid Supplies / Training Services |
|
|
37430 |
5/12/2024 |
Stiles Electrical & Communication Services Pty Ltd |
$151,000.82 |
|
|
|
Progress Claim 1 - Footpath Lighting - Brampton Park And Lighthouse Park |
|
|
37431 |
5/12/2024 |
Subiaco Building Company |
$2,000.00 |
|
|
|
Refund - Street & Verge Bond |
|
|
37432 |
5/12/2024 |
Superior Nominees Pty Ltd |
$1,510.30 |
|
|
|
Playground Equipment Repairs - Various Locations |
|
|
37433 |
5/12/2024 |
Synergy |
$33,056.89 |
|
|
|
Power Supply Charges - Various Locations |
|
|
37434 |
5/12/2024 |
Team Global Express Pty Ltd |
$1,183.36 |
|
|
|
Courier Services |
|
|
37435 |
5/12/2024 |
Telstra Limited |
$5,329.58 |
|
|
|
City Of Wanneroo ADSL / Phone Charges |
|
|
37436 |
5/12/2024 |
The Hire Guys Wangara |
$3,500.00 |
|
|
|
Equipment Hire - VMS Boards - "Caution - Turtles Crossing" |
|
|
37437 |
5/12/2024 |
The Local Government, Racing and Cemeteries Employees Union (WA) |
$1,122.00 |
|
|
|
Payroll Deductions |
|
|
37438 |
5/12/2024 |
The Royal Life Saving Society Australia |
$13,535.01 |
|
|
|
Private Swimming Pool Spa Barrier Inspection Program |
|
|
|
|
Water Feature Maintenance - Kingsway Splashpad & Revolution Park |
|
|
37439 |
5/12/2024 |
Think Promotional |
$585.20 |
|
|
|
Promotional Clothing - Putting Community First - Biz Collection Ice Tees |
|
|
37440 |
5/12/2024 |
Thomas Linford |
$2,000.00 |
|
|
|
Refund - Street & Verge Bond |
|
|
37441 |
5/12/2024 |
Thomas Russell |
$75.00 |
|
|
|
Dog Registration Refund - Sterilised |
|
|
37442 |
5/12/2024 |
Thyssen Elevator Australia Pty Ltd |
$7,590.00 |
|
|
|
Lift Works - Emergency Phone 4G GSM Network Device Upgrade - Civic Centre |
|
|
37443 |
5/12/2024 |
Tim Boston |
$2,000.00 |
|
|
|
Refund - Street & Verge Bond |
|
|
37444 |
5/12/2024 |
Tim Nickoll |
$550.00 |
|
|
|
Support Delivery Of The Urban Pantry Upgrade And Signage - Funding Program – Kickstarter Funding Support |
|
|
37445 |
5/12/2024 |
Toolmart |
$780.00 |
|
|
|
Tool Purchases - Fleet |
|
|
37446 |
5/12/2024 |
Toro Australia Group Sales Pty Ltd |
$3,929.31 |
|
|
|
Small Plant Spare Parts |
|
|
37447 |
5/12/2024 |
Totally Workwear Joondalup & Butler |
$266.00 |
|
|
|
2 Hi Vis Long Sleeve Polos & 2 Cotton Pants - Assets |
|
|
37448 |
5/12/2024 |
Tree Planting & Watering |
$142,841.53 |
|
|
|
Tree Watering With Bioprime Addition - October |
|
|
37449 |
5/12/2024 |
Triton Electrical Contractors Pty Ltd |
$415.80 |
|
|
|
Irrigation Electrical Works - Various Locations |
|
|
37450 |
5/12/2024 |
Trophy Shop Australia |
$69.50 |
|
|
|
Name Badges - Various Employees |
|
|
37451 |
5/12/2024 |
True North Church |
$2,035.00 |
|
|
|
Community Funding - Yanchep Carols In The Park |
|
|
37452 |
5/12/2024 |
Trustee for the TCF Trust |
$1,672.00 |
|
|
|
Workshop - Grow Your Group - Grant Writing |
|
|
37453 |
5/12/2024 |
Tyron Walters |
$2,000.00 |
|
|
|
Refund - Street & Verge Bond |
|
|
37454 |
5/12/2024 |
Vescon Australia Pty Ltd |
$2,000.00 |
|
|
|
Refund - Street & Verge Bond |
|
|
37455 |
5/12/2024 |
Vocus Pty Ltd |
$29,552.60 |
|
|
|
Pit & Pipe Lowering Works- Cnr Prindiville Drive & Hartman Drive |
|
|
37456 |
5/12/2024 |
Rates Refund |
$1,421.83 |
|
37457 |
5/12/2024 |
WA Garage Doors Pty Ltd |
$8,305.00 |
|
|
|
Service Roller Doors - Various Locations |
|
|
37458 |
5/12/2024 |
Wanneroo Electric |
$33,083.05 |
|
|
|
Electrical Maintenance Works - Various Locations |
|
|
37459 |
5/12/2024 |
Water Corporation |
$10,260.64 |
|
|
|
Water Supply Charges - Various Locations |
|
|
37460 |
5/12/2024 |
WATM Crane Sales and Services WA |
$616.00 |
|
|
|
Vehicle Repairs - Fleet |
|
|
37461 |
5/12/2024 |
Webster Padera |
$308.00 |
|
|
|
Hire Fee Refund |
|
|
37462 |
5/12/2024 |
West Coast Turf |
$8,905.96 |
|
|
|
Turfing Works - Halesworth Park |
|
|
37463 |
5/12/2024 |
William Buck Consulting (WA) Pty Ltd |
$8,250.00 |
|
|
|
Professional Services - Asset Renewal |
|
|
37464 |
5/12/2024 |
Work Clobber |
$1,060.40 |
|
|
|
PPE Issues - Various Employees |
|
|
37465 |
5/12/2024 |
Workpower Incorporated |
$34,296.29 |
|
|
|
Landscape Maintenance Services - Various Locations |
|
|
37466 |
5/12/2024 |
Worldwide Joondalup Malaga |
$1,995.00 |
|
|
|
Bin Stickers - Waste |
|
|
37467 |
5/12/2024 |
Xiaomin Lu |
$233.30 |
|
|
|
Refund - Building Application - Incorrect |
|
|
37468 |
5/12/2024 |
Xtreme Bounce Party Hire |
$3,145.00 |
|
|
|
Mini Trackless Train And Carriages - Banksia Grove Fun Festival |
|
|
|
|
Mini Trackless Train And Carriages - Ridgewood Evening in the Park |
|
|
37469 |
9/12/2024 |
Mr C Wansbrough |
$10.10 |
|
|
|
Reimbursement - Parking Fees |
|
|
37470 |
9/12/2024 |
Mr M Dickson |
$2,024.00 |
|
|
|
Reimbursement - Retirement Gift - 2 Former Employees |
|
|
37471 |
9/12/2024 |
Mr M Redmond |
$107.73 |
|
|
|
Reimbursement - Vehicle Fuel - Missing Fuel Card |
|
|
37472 |
9/12/2024 |
Tian Kotze |
$5,600.00 |
|
|
|
Reimbursement - Training Fees |
|
|
37478 |
9/12/2024 |
3Logix Pty Ltd |
$3,454.77 |
|
|
|
Monthly Costs - Waste Track Access |
|
|
|
|
SMS Self Service Portal - Waste / OSH / Volunteer Fire Brigade |
|
|
37479 |
9/12/2024 |
A Nice Option Pty Ltd |
$327.00 |
|
|
|
Refund - Food Application & Registration Fees - Withdrawn |
|
|
37480 |
9/12/2024 |
AARCO Environmental Solutions Pty Ltd |
$698.50 |
|
|
|
Removal Of Asbestos - Well Street / Tapping Road - Assets |
|
|
37481 |
9/12/2024 |
ABN Residential WA Pty Ltd |
$812.16 |
|
|
|
Refund - Building Application - Not Done In The Expected Timeframe |
|
|
37482 |
9/12/2024 |
ABN Residential WA Pty Ltd |
$110.00 |
|
|
|
Refund - Building Application - Not Done In The Expected Timeframe |
|
|
37483 |
9/12/2024 |
Action Glass & Aluminium |
$1,575.33 |
|
|
|
Repair 3 Windows - Shelvock Park Sport Amenities Building |
|
|
37484 |
9/12/2024 |
Activ Foundation Incorporated |
$628.65 |
|
|
|
Garden Maintenance - Salitage Park |
|
|
37485 |
9/12/2024 |
Adform Engraving & Signs |
$1,988.80 |
|
|
|
Educational Magnetic Porcelain Whiteboard - Fire Services |
|
|
|
|
16 Name Badges - Two Rocks Bushfire Brigade |
|
|
|
|
Printed And Laminated Magnetic "Bush Fire Service WA" Logo Vehicle Shields |
|
|
37486 |
9/12/2024 |
Air Liquide Australia |
$345.17 |
|
|
|
Gas Bottle Rental Charges |
|
|
37487 |
9/12/2024 |
Alinta Gas |
$14.00 |
|
|
|
Gas Supply Charges |
|
|
37488 |
9/12/2024 |
Alinta Gas |
$120.70 |
|
|
|
Gas Supply Charges |
|
|
37489 |
9/12/2024 |
Allworks (WA) Pty Ltd |
$2,887.50 |
|
|
|
Equipment Hire - Cat Posi Track 2019 - Assets |
|
|
37490 |
9/12/2024 |
Altus Group Consulting Pty Ltd |
$2,351.25 |
|
|
|
Quantity Surveying - Alkimos Aquatic & Recreation Centre |
|
|
37491 |
9/12/2024 |
Ampelite Australia Pty Ltd |
$8,847.30 |
|
|
|
Webglas Skylights - Building Maintenance |
|
|
37492 |
9/12/2024 |
Appliances Online Pty Ltd |
$626.00 |
|
|
|
Kelvinator Fridge - Warradale Community Centre |
|
|
37493 |
9/12/2024 |
Applied Security Force |
$1,119.15 |
|
|
|
3 Security Officers - Crowd Controllers - Alkimos Concert 30/11/2024 |
|
|
37494 |
9/12/2024 |
Aqua Attack Drilling |
$99,297.00 |
|
|
|
Drilling Of New Irrigation Bore And Decommission Of Old Bore - Gumblossom Park / Shelvock Park |
|
|
37495 |
9/12/2024 |
Armaguard |
$574.05 |
|
|
|
Cash Collection Services |
|
|
37496 |
9/12/2024 |
Aslab Pty Ltd |
$484.00 |
|
|
|
Asphalt Testing - Landsdale Road Widenings |
|
|
37497 |
9/12/2024 |
Aussie Natural Spring Water |
$1,977.16 |
|
|
|
Water Supplies - Fire Services / Print Room |
|
|
37498 |
9/12/2024 |
Australasian Performing Right Association |
$655.97 |
|
|
|
Music Licence Fees - Kingsway Stadium |
|
|
37499 |
9/12/2024 |
Australia Post |
$8,849.32 |
|
|
|
Billpay Transactions - Rates |
|
|
37500 |
9/12/2024 |
Australian Airconditioning Services Pty Ltd |
$7,489.19 |
|
|
|
Airconditioning Maintenance Services - Various Locations |
|
|
37501 |
9/12/2024 |
Australian Institute of Management Western Australia Human Resource Development Centre Limited |
$3,377.00 |
|
|
|
Training - Excel - Intermediate - 2 Attendees |
|
|
|
|
Training - Applied Project Management - 1 Attendee |
|
|
37502 |
9/12/2024 |
Banksia Grove Development Nominees Pty Ltd |
$2,880.00 |
|
|
|
Refund - Overcharge On Bonding Fees |
|
|
37503 |
9/12/2024 |
BCA Consultants (WA) Pty Ltd |
$3,168.00 |
|
|
|
Pool Pump Asset Inspections And Assessment - Aquamotion - Assets |
|
|
37504 |
9/12/2024 |
BOC Limited |
$66.48 |
|
|
|
Oxygen & Industrial Nitrogen Cylinder - Fleet & Community Safety |
|
|
37505 |
9/12/2024 |
Bollig Design Group Ltd |
$21,463.86 |
|
|
|
Architectural Services — Creche, Staff Room & Training Room Upgrades - Wanneroo Aquamotion |
|
|
|
|
Consultancy Services - Dordaak Kepup Library & Youth Innovation Hub |
|
|
|
|
Underground Services Detection - Two Rocks Bushfire Brigade Station |
|
|
37506 |
9/12/2024 |
BP Australia Ltd |
$59,903.87 |
|
|
|
Fuel Issues |
|
|
37507 |
9/12/2024 |
Bridgestone Australia Limited |
$1,388.77 |
|
|
|
Tyre Fitting Services |
|
|
37508 |
9/12/2024 |
Bridgestone Australia Limited |
$40.26 |
|
|
|
Tyre Fitting Services |
|
|
37509 |
9/12/2024 |
BrightMark Group Pty Ltd |
$40,048.55 |
|
|
|
Cleaning Services - Various Locations |
|
|
37510 |
9/12/2024 |
Bucher Municipal Pty Ltd |
$6,106.32 |
|
|
|
Vehicle Spare Parts |
|
|
37511 |
9/12/2024 |
Bullseye Entertainment Perth Pty Ltd |
$1,700.00 |
|
|
|
Inflatable Sports Package - Alkimos Concert - Events |
|
|
37512 |
9/12/2024 |
Canford Hospitality Consultants |
$695.00 |
|
|
|
Consultancy Services - Aquamotion Building (Cafe Tenancy) |
|
|
37513 |
9/12/2024 |
Car Care Motor Company Pty Ltd |
$2,268.66 |
|
|
|
Vehicle Services / Repairs |
|
|
37514 |
9/12/2024 |
Rates Refund |
$939.22 |
|
37515 |
9/12/2024 |
Castledex |
$6,098.40 |
|
|
|
72 Postura Max Size 6 Chairs - Gumblossom Community Centre - Facilities |
|
|
37516 |
9/12/2024 |
Chrysalis Quantity Surveying Pty Ltd |
$7,042.20 |
|
|
|
Quantity Surveying - Alkimos Aquatic & Recreation Centre |
|
|
37517 |
9/12/2024 |
CK Maloney Surveying Pty Ltd |
$13,168.10 |
|
|
|
Digital Ground Survey And Quality Class B Utility Survey – Kemp Street |
|
|
|
|
Digital Ground Survey - Dundebar Road / Servite Terrace |
|
|
37518 |
9/12/2024 |
Claw Environmental |
$161.70 |
|
|
|
Polystyrene On Call Collection - Wangara Greens Recycling Facility |
|
|
37519 |
9/12/2024 |
Clayton Utz |
$7,587.80 |
|
|
|
Legal Fees For The City |
|
|
37520 |
9/12/2024 |
Cleanaway Operations Pty Ltd |
$3,707.66 |
|
|
|
Empty Pesticide Tank |
|
|
37521 |
9/12/2024 |
Commercial Aquatics Australia |
$6,560.40 |
|
|
|
Preventative Maintenance Plantroom - Aquamotion |
|
|
|
|
Replace The 2 Leaking UFF Transfer Valves - Aquamotion |
|
|
37522 |
9/12/2024 |
Complete Office Supplies Pty Ltd |
$785.88 |
|
|
|
Stationery Supplies - Various Service Units |
|
|
37523 |
9/12/2024 |
Conplant Pty Ltd |
$3,050.99 |
|
|
|
Smoothdrum Vibrating Single Drum Roller - James Spiers Drive |
|
|
37524 |
9/12/2024 |
Conplant Pty Ltd |
$3,790.60 |
|
|
|
Hire Charges - Multi Tyred Roller - James Spiers Drive |
|
|
37525 |
9/12/2024 |
Construction Hydraulic Design Pty Ltd |
$2,420.00 |
|
|
|
Completion Of Report - Wastewater Oversight - Yanchep Lagoon Kiosk |
|
|
37526 |
9/12/2024 |
Converge International Pty Ltd |
$1,452.00 |
|
|
|
Critical Incident Response - People & Culture |
|
|
37527 |
9/12/2024 |
Corsign (WA) Pty Ltd |
$7,966.20 |
|
|
|
Sign Accessories - Engineering |
|
|
|
|
Street Name Plates |
|
|
|
|
Sign - Footpath Renewal Etc. |
|
|
|
|
Sign - Take Care Of Our Wetland And Wildlife |
|
|
37528 |
9/12/2024 |
Cr Alexander Figg |
$2,817.37 |
|
|
|
Monthly Allowance |
|
|
37529 |
9/12/2024 |
Cr Bronwyn Smith |
$2,817.37 |
|
|
|
Monthly Allowance |
|
|
37530 |
9/12/2024 |
Cr Eman Seif |
$2,817.37 |
|
|
|
Monthly Allowance |
|
|
37531 |
9/12/2024 |
Cr Glynis Parker |
$2,817.37 |
|
|
|
Monthly Allowance |
|
|
37532 |
9/12/2024 |
Cr Helen Berry |
$2,817.37 |
|
|
|
Monthly Allowance |
|
|
37533 |
9/12/2024 |
Cr Jacqueline Huntley |
$2,817.37 |
|
|
|
Monthly Allowance |
|
|
37534 |
9/12/2024 |
Cr James Rowe |
$4,812.90 |
|
|
|
Monthly Allowance |
|
|
37535 |
9/12/2024 |
Cr Jordan Wright |
$2,817.37 |
|
|
|
Monthly Allowance |
|
|
37536 |
9/12/2024 |
Cr Marizane Moore |
$2,817.37 |
|
|
|
Monthly Allowance |
|
|
37537 |
9/12/2024 |
Cr Natalie Herridge |
$2,817.37 |
|
|
|
Monthly Allowance |
|
|
37538 |
9/12/2024 |
Cr Paul Miles |
$2,817.37 |
|
|
|
Monthly Allowance |
|
|
37539 |
9/12/2024 |
Cr Philip Bedworth |
$2,817.37 |
|
|
|
Monthly Allowance |
|
|
37540 |
9/12/2024 |
Cr Sonet Coetzee |
$2,817.37 |
|
|
|
Monthly Allowance |
|
|
37541 |
9/12/2024 |
Cr Vinh Nguyen |
$2,817.37 |
|
|
|
Monthly Allowance |
|
|
37542 |
9/12/2024 |
Critical Fire Protection & Training Pty Ltd |
$27,315.37 |
|
|
|
Fire Protection Equipment Maintenance - Various Locations |
|
|
37543 |
9/12/2024 |
Cromag Pty Ltd T/a Sigma Telford Group |
$1,676.40 |
|
|
|
Pool Chemicals & Photometer Tabs - Aquamotion |
|
|
37544 |
9/12/2024 |
CS Legal |
$26,687.56 |
|
|
|
Court Fees - Rating Services |
|
|
37545 |
9/12/2024 |
Data #3 Limited |
$738.11 |
|
|
|
Software Subscriptions - ICT |
|
|
37546 |
9/12/2024 |
David Roy Cull |
$1,265.00 |
|
|
|
General Pest Service - Various Locations |
|
|
37547 |
9/12/2024 |
Davley Building Pty Ltd |
$418.00 |
|
|
|
Refund - Building Application - Not Done In Expected Timeframe |
|
|
37548 |
9/12/2024 |
Department of Transport |
$1,847.30 |
|
|
|
Vehicle Ownership Search - Rangers |
|
|
37549 |
9/12/2024 |
Dismantle |
$583.00 |
|
|
|
Mowing, Edging, Wipe & Blow Down - Verge Of Lefroy Road & Brazier Road |
|
|
37550 |
9/12/2024 |
Double G (WA) Pty Ltd |
$526.26 |
|
|
|
Irrigation Investigation - Landsdale Road |
|
|
37551 |
9/12/2024 |
Douglas Partners Pty Ltd |
$21,945.00 |
|
|
|
Geotechnical Investigation - Coastal Limestone Hazard Assessment |
|
|
37552 |
9/12/2024 |
Dowsing Group Pty Ltd |
$16,452.77 |
|
|
|
Pathways - Quinns Rocks Sports Club |
|
|
37553 |
9/12/2024 |
Drainflow Services Pty Ltd |
$99,409.93 |
|
|
|
Drain Cleaning / Road Sweeping Services - Various Locations |
|
|
37554 |
9/12/2024 |
Du Clene Pty Ltd |
$2,574.00 |
|
|
|
Cleaning Services - Various Locations |
|
|
37555 |
9/12/2024 |
Ecoscape Australia Pty Ltd |
$8,418.87 |
|
|
|
Flora And Vegetation Field Survey - IBSA Data Package - Damian Park |
|
|
37556 |
9/12/2024 |
Rates Refund |
$129.78 |
|
37557 |
9/12/2024 |
Edge People Management |
$7,834.80 |
|
|
|
Provision Of Case Management Return To Work Monitoring / Ergonomic Assessments |
|
|
37558 |
9/12/2024 |
Rates Refund |
$3,000.00 |
|
37559 |
9/12/2024 |
Rates Refund |
$856.44 |
|
37560 |
9/12/2024 |
Emerg Solutions Pty Ltd |
$4,320.00 |
|
|
|
Regional Group Subscription - Fire Services |
|
|
37561 |
9/12/2024 |
Encounter Church of Christ |
$5,484.49 |
|
|
|
Community Funding - Support Delivery Of Community Christmas Carols 2024 |
|
|
37562 |
9/12/2024 |
Environmental Industries Pty Ltd |
$7,618.94 |
|
|
|
Remove And Dispose Of Non-Functional Surface Irrigation - Marmion Avenue |
|
|
|
|
Supply / Application Of Monarch Insecticide - Alexander Heights Park |
|
|
37563 |
9/12/2024 |
Epic Catering & Events Services Pty Ltd |
$2,057.00 |
|
|
|
Catering - Council Meals |
|
|
37564 |
9/12/2024 |
Equifax Australasia Credit Rating Pty Ltd |
$5,567.32 |
|
|
|
Standard Financial & Performance Assessment |
|
|
37565 |
9/12/2024 |
Ergolink |
$1,125.30 |
|
|
|
Office Chairs - Office Of The CEO / OSH |
|
|
37566 |
9/12/2024 |
Erin Milroy |
$985.70 |
|
|
|
Vehicle Crossing Subsidy |
|
|
37567 |
9/12/2024 |
Essential First Choice Homes Pty Ltd |
$679.60 |
|
|
|
Refund - Building Application - Not Done In Expected Time Frame |
|
|
37568 |
9/12/2024 |
Evolve Talent Pty Ltd |
$9,660.62 |
|
|
|
Casual Labour Services |
|
|
37569 |
9/12/2024 |
First Homebuilders Pty Ltd |
$6,580.78 |
|
|
|
Refund - Building Applications - Jadu Issue And Duplicate Payment Taken |
|
|
37570 |
9/12/2024 |
Rates Refund |
$1,736.48 |
|
37571 |
9/12/2024 |
Foxfish Pty Ltd t/as Binley Fencing |
$520.94 |
|
|
|
Install Signage - Riverlinks Park |
|
|
|
|
Temporary Fencing - Montrose Clubrooms |
|
|
|
|
Temporary Site Fencing - Riverlinks Toilet Block |
|
|
37572 |
9/12/2024 |
Frontline Fire & Rescue Equipment |
$614.35 |
|
|
|
Jerry Can / Handlelok - Fire Services |
|
|
|
|
Vehicle Spare Parts |
|
|
37573 |
9/12/2024 |
Fusion Applications Pty Ltd |
$2,860.00 |
|
|
|
Consulting Fees For OICS Architecture Integration |
|
|
37574 |
9/12/2024 |
Fyrebird Entertainment |
$2,020.00 |
|
|
|
LED Light Show Entertainment - Alkimos Concert |
|
|
|
|
Circus Workshop - Ridgewood Evening In The Park |
|
|
37575 |
9/12/2024 |
Gen Connect Pty Ltd |
$1,399.79 |
|
|
|
Service - Emergency Power Generators - Various Locations |
|
|
37576 |
9/12/2024 |
Geoff's Tree Service Pty Ltd |
$52,060.48 |
|
|
|
Pruning Services For The City |
|
|
37577 |
9/12/2024 |
GJ Woodard |
$243.55 |
|
|
|
Keyholder Payments |
|
|
37578 |
9/12/2024 |
Gymcare |
$819.05 |
|
|
|
Gym Cable Repair - Aquamotion |
|
|
37579 |
9/12/2024 |
Hammond Woodhouse Advisory |
$3,025.00 |
|
|
|
Review Current General Counsel Position Description And Draft New Position Description |
|
|
37580 |
9/12/2024 |
Hays Personnel Services |
$7,952.41 |
|
|
|
Casual Labour Services |
|
|
37581 |
9/12/2024 |
Haz-Ed Services Pty Ltd |
$2,178.17 |
|
|
|
Roof Safety Installation - Wanneroo Showgrounds Clubrooms |
|
|
37582 |
9/12/2024 |
Helen Walker |
$500.00 |
|
|
|
CCTV Rebate |
|
|
37583 |
9/12/2024 |
Hickey Constructions Pty Ltd |
$652,268.77 |
|
|
|
Communication Room Card Reader - The Work Completed |
|
|
|
|
Construction - Heath Park Pavilion |
|
|
|
|
Limestone Repairs - Windjammer Park / Jindalee Staircase Repairs |
|
|
|
|
Re- Construct Damaged Brick Wall - Alexander Heights |
|
|
|
|
To Install Roller Door And Motor - Depot |
|
|
|
|
Remove And Repair Damaged Paving - Tobermany Park |
|
|
37584 |
9/12/2024 |
HKY Real Estate |
$27.50 |
|
|
|
Refund - Copies Of Plans - Not Available |
|
|
37585 |
9/12/2024 |
Hodge Collard Preston Unit Trust |
$8,428.20 |
|
|
|
Contract Administration Practical Completion & Construction Closeoutees - Heath Park Sports Amenities Building |
|
|
37586 |
9/12/2024 |
Home Group WA Pty Ltd |
$669.21 |
|
|
|
Refund - Building Application - Not Done In The Expected Timeframe |
|
|
37587 |
9/12/2024 |
Hose Right |
$3,760.81 |
|
|
|
Vehicle Spare Parts |
|
|
37588 |
9/12/2024 |
Houspect WA |
$1,320.00 |
|
|
|
Building Inspection - Wanneroo Districts Netball Association |
|
|
37589 |
9/12/2024 |
Hydroquip Pumps & Irrigation Pty Ltd |
$4,929.06 |
|
|
|
Supply / Installation Of New Octave Water Meter - Booderie Park |
|
|
37590 |
9/12/2024 |
Ideal Homes Pty Ltd |
$564.15 |
|
|
|
Refund - Building Application - Not Done In The Expected Timeframe |
|
|
37591 |
9/12/2024 |
Identity Perth |
$5,936.70 |
|
|
|
City Of Wanneroo Recreation Centre Sub-Branding - Communications & Brand |
|
|
37592 |
9/12/2024 |
Imagesource Digital Solutions |
$3,901.71 |
|
|
|
Sign - IT Service Desk |
|
|
|
|
Decals - Halesworth Park Pavillion Opening |
|
|
|
|
Banner Wrap Stickers - IBC Container |
|
|
|
|
Wall Decal - Kingsway Spin Room |
|
|
|
|
Sign - Toilet Block |
|
|
37593 |
9/12/2024 |
Indoor Gardens Pty Ltd |
$325.89 |
|
|
|
Indoor Plant Hire - Customer Relations |
|
|
37594 |
9/12/2024 |
Institute of Public Works Engineering Australasia – Western Australia Inc. |
$3,200.00 |
|
|
|
Livestream: Shared Registration - Full Conference - 1 Attendee |
|
|
37595 |
9/12/2024 |
Integrity Industrial Pty Ltd |
$14,295.53 |
|
|
|
Casual Labour Services |
|
|
37596 |
9/12/2024 |
Integrity Industrial Pty Ltd |
$20,052.82 |
|
|
|
Casual Labour Services |
|
|
37597 |
9/12/2024 |
Integrity Staffing |
$2,815.04 |
|
|
|
Casual Labour Services |
|
|
37598 |
9/12/2024 |
Intelife Group |
$127,755.14 |
|
|
|
Cleaning Services - BBQs / Vehicles / Sport Surfaces - Various Locations |
|
|
|
|
Landscape Services - Mowing / Brushcutting / Slashing / Sand Sifting - Various Locations |
|
|
37599 |
9/12/2024 |
Interfire Agencies Pty Ltd |
$1,138.84 |
|
|
|
Helmets / Safety Boots - Fire Services |
|
|
37600 |
9/12/2024 |
Interfire Agencies Pty Ltd |
$355.94 |
|
|
|
Structural Fire Boots - Fire Services |
|
|
37601 |
9/12/2024 |
Ixom Operations Pty Ltd |
$199.14 |
|
|
|
Chlorine Gas - Aquamotion |
|
|
37602 |
9/12/2024 |
James Bennett Pty Ltd |
$5,005.80 |
|
|
|
Library Book Stock |
|
|
37603 |
9/12/2024 |
Jason Smith |
$1,000.00 |
|
|
|
Refund - Street & Verge Bond |
|
|
37604 |
9/12/2024 |
Jobfit Health Group Pty Ltd |
$715.00 |
|
|
|
Pre-Employment Medical Assessments |
|
|
37605 |
9/12/2024 |
Jodi Butcher |
$2,000.00 |
|
|
|
Refund - Street & Verge Bond |
|
|
37606 |
9/12/2024 |
Judo Western Australia (Inc) |
$400.00 |
|
|
|
Participation Funding - Cadet European Cups & Training Camps - 01 -19.04.2024 - Czech Republic & Germany - 1 Child |
|
|
37607 |
9/12/2024 |
Kerb Direct Kerbing |
$5,859.67 |
|
|
|
Kerbing Works - Parin Road |
|
|
37608 |
9/12/2024 |
Kerry Steyn |
$2,000.00 |
|
|
|
Refund -Street & Verge Bond |
|
|
37609 |
9/12/2024 |
Kevin Kavanagh |
$500.00 |
|
|
|
CCTV Rebate |
|
|
37610 |
9/12/2024 |
Kitco Builders Pty Ltd |
$820.61 |
|
|
|
Refund - Building Application - System Issue |
|
|
37611 |
9/12/2024 |
Kleenit |
$329.52 |
|
|
|
Graffiti Removal - Various Locations |
|
|
37612 |
9/12/2024 |
Konecranes Pty Ltd |
$2,536.47 |
|
|
|
Routine Maintenance - Fleet |
|
|
37613 |
9/12/2024 |
Rates Refund |
$839.74 |
|
37614 |
9/12/2024 |
Landcare Weed Control |
$23,300.32 |
|
|
|
Landscape Maintenance Services - Various Locations |
|
|
37615 |
9/12/2024 |
Landgate |
$9,390.20 |
|
|
|
GRV Interim Rates Schedules |
|
|
37616 |
9/12/2024 |
Landscape Elements |
$31,976.18 |
|
|
|
Landscape Maintenance Services - Various Locations |
|
|
37617 |
9/12/2024 |
Landscape Elements |
$25,229.14 |
|
|
|
Landscape Maintenance Services - Various Locations |
|
|
37618 |
9/12/2024 |
Les Mills Asia Pacific (Old Entity) |
$1,249.52 |
|
|
|
Exercise Class License Fees - Aquamotion |
|
|
37619 |
9/12/2024 |
Lexis Nexis |
$13,780.80 |
|
|
|
Premium Plus Access Renewal |
|
|
37620 |
9/12/2024 |
LGISWA |
$1,000.00 |
|
|
|
Member Retained Risk Payment (MRRP) Applicable To Claim - Excess Payment |
|
|
37621 |
9/12/2024 |
Living Turf |
$1,016.40 |
|
|
|
Fertiliser Audits - Alexander / Accomplish Park |
|
|
37622 |
9/12/2024 |
Local Government Professionals Australia WA |
$680.00 |
|
|
|
Registration - 2024 Age Friendly Australia National Conference - 1 Attendee |
|
|
37623 |
9/12/2024 |
Rates Refund |
$704.67 |
|
37624 |
9/12/2024 |
M Power Health & Wellness |
$150.00 |
|
|
|
Sound Meditation - 02.12.2024 - Aquamotion |
|
|
37625 |
9/12/2024 |
Maclean & Lawrence Pty Ltd |
$8,151.00 |
|
|
|
Wastewater Feasibility And Recommendation - Yanchep Lagoon Kiosk |
|
|
37626 |
9/12/2024 |
Main Roads WA |
$933.32 |
|
|
|
Final Invoice - Works Associated With Installation Of Pedestrian Crossing - The Avenue / Marangaroo Drive |
|
|
37627 |
9/12/2024 |
Major Motors |
$1,047.70 |
|
|
|
Vehicle Spare Parts |
|
|
37628 |
9/12/2024 |
Rates Refund |
$715.50 |
|
37629 |
9/12/2024 |
Marquee Magic |
$2,434.00 |
|
|
|
Marquee And Furniture Hire - Banksia Grove Fun Fest |
|
|
|
|
Marquee And Furniture Hire - Ridgewood Evening In The Park |
|
|
37630 |
9/12/2024 |
Master Meyn |
$16,896.00 |
|
|
|
Human Resources & Industrial Relations Services |
|
|
37631 |
9/12/2024 |
Materon Investments WA Pty Ltd |
$564.35 |
|
|
|
Refund - Application Fee - Not Done In Time Frame |
|
|
37632 |
9/12/2024 |
Mayor Linda Aitken |
$12,207.70 |
|
|
|
Monthly Allowance |
|
|
37633 |
9/12/2024 |
McLeods Lawyers Pty Ltd |
$6,856.22 |
|
|
|
Legal Fees For The City |
|
|
37634 |
9/12/2024 |
MDM Entertainment Pty Ltd |
$259.23 |
|
|
|
Book Purchases - Library Services |
|
|
37635 |
9/12/2024 |
Mercer Consulting (Australia) Pty Ltd |
$324.50 |
|
|
|
2024 Australia Mercer Learning - Blended Learning Extension To 23 February 2025 - 1 Attendee |
|
|
37636 |
9/12/2024 |
Rates Refund |
$797.72 |
|
37637 |
9/12/2024 |
Michael Casale (MR) |
$27.50 |
|
|
|
Refund - Copies Of Septic Plans - Not Available. |
|
|
37638 |
9/12/2024 |
Micktric Events |
$1,486.10 |
|
|
|
Festoon Lighting Supplied And Installed With Warm White Globes - Alkimos Concert |
|
|
37639 |
9/12/2024 |
Mindarie Regional Council |
$324,932.53 |
|
|
|
Refuse Charges - Various |
|
|
37640 |
9/12/2024 |
Miniquip Hire |
$5,768.07 |
|
|
|
Hire Of Avant - Hire Of Forks |
|
|
37641 |
9/12/2024 |
MME Underground Services Pty Ltd |
$67,272.37 |
|
|
|
Location Of Services - Various Locations |
|
|
37642 |
9/12/2024 |
MNG Pty Ltd |
$49,005.00 |
|
|
|
Provision Of Coastal Surveys - Northern Beaches |
|
|
37643 |
9/12/2024 |
Modern Teaching Aids Pty Ltd |
$280.01 |
|
|
|
Teaching Aids - WLCC |
|
|
37644 |
9/12/2024 |
Moore Australia (WA) Pty Ltd |
$6,050.00 |
|
|
|
Advice And Assistance In Relation To Tax Liability - CEO's Office |
|
|
37645 |
9/12/2024 |
Morley Mower Centre |
$1,318.63 |
|
|
|
Small Plant Spare Parts |
|
|
37646 |
9/12/2024 |
Ms Peggy Brown |
$145.00 |
|
|
|
Keyholder Payments |
|
|
37647 |
9/12/2024 |
Nastech (WA) Pty Ltd |
$12,892.00 |
|
|
|
Cadastral Survey - 150 Flynn Drive - Assets |
|
|
37648 |
9/12/2024 |
Natural Area Consulting Management Services |
$7,814.40 |
|
|
|
Fuel Load Reduction - Voyager Park - Conservation |
|
|
37649 |
9/12/2024 |
Navman Wireless Australia Pty Ltd |
$18.15 |
|
|
|
Solar Tracker - Fleet |
|
|
37650 |
9/12/2024 |
Neal Mason |
$500.00 |
|
|
|
CCTV Rebate |
|
|
37651 |
9/12/2024 |
Nilfisk Advance Pty Ltd |
$445.50 |
|
|
|
Scrubber Maintenance Contract - Kingsway |
|
|
37652 |
9/12/2024 |
Nu-Trac Rural Contracting |
$19,440.71 |
|
|
|
Mechanical Beach Cleaning - Various Locations |
|
|
37653 |
9/12/2024 |
Octagon Lifts Pty Ltd |
$495.00 |
|
|
|
Emergency Callout - Civic Centre |
|
|
37654 |
9/12/2024 |
OEM Group Pty Ltd |
$1,426.69 |
|
|
|
Service 2 Machines - Fleet |
|
|
37655 |
9/12/2024 |
Omnicom Media Group Australia Pty Ltd trading as Marketforce |
$1,550.42 |
|
|
|
Advertising Services - Various |
|
|
37656 |
9/12/2024 |
On Tap Services |
$22,799.63 |
|
|
|
Plumbing Maintenance Services - Various Locations |
|
|
37657 |
9/12/2024 |
Optus |
$3,585.99 |
|
|
|
Phone Charges For The City |
|
|
37658 |
9/12/2024 |
Oracle Corporation Australia Pty Ltd |
$213,283.18 |
|
|
|
Oracle Fusion Cloud Service - 30.11.2024 - 27.02.2025 - ICT |
|
|
37659 |
9/12/2024 |
P&M Automotive Equipment |
$225.50 |
|
|
|
Hoist & Safety Compliance Inspection - Fleet |
|
|
37660 |
9/12/2024 |
Paperbark Technologies Pty Ltd |
$4,697.54 |
|
|
|
Arboricultural Reports - Trees - Various Locations |
|
|
37661 |
9/12/2024 |
Parker Black & Forrest |
$354.63 |
|
|
|
Locking Services - Ferrara Park |
|
|
37662 |
9/12/2024 |
Patricia Cortez |
$663.00 |
|
|
|
Vehicle Crossing Subsidy |
|
|
37663 |
9/12/2024 |
Perth Better Homes |
$3,234.00 |
|
|
|
Replace A Shade Sail - Curtis Park |
|
|
37664 |
9/12/2024 |
Perth Patio Magic Pty Ltd |
$220.00 |
|
|
|
Refund - Building Applications - Not Done In The Expected Timeframe |
|
|
37665 |
9/12/2024 |
Perth Traffic Training, Perth Traffic Auditing and Consulting |
$1,716.00 |
|
|
|
Traffic Management Audit - Hepburn Avenue |
|
|
|
|
Traffic Management Plan - Verge Collection |
|
|
37666 |
9/12/2024 |
Philip Leeman |
$2,000.00 |
|
|
|
Refund - Street & Verge Bond |
|
|
37667 |
9/12/2024 |
Pineapple Fingers |
$192.50 |
|
|
|
Photography - Time Capsule Event |
|
|
37668 |
9/12/2024 |
Porter Consulting Engineers |
$2,530.00 |
|
|
|
Administration Support - Existing Roads & Services Neerabup Industrial Area Upgrade - Design & Documentation |
|
|
37669 |
9/12/2024 |
Prestige Alarms |
$11,789.95 |
|
|
|
Alarm / CCTV Services - Various Locations |
|
|
37670 |
9/12/2024 |
Priteshkumar Patel & Hetalben Patel |
$985.70 |
|
|
|
Vehicle Crossing Subsidy |
|
|
37671 |
9/12/2024 |
RAC BusinessWise |
$740.00 |
|
|
|
Vehicle Call Out Fees - Various |
|
|
37672 |
9/12/2024 |
Red OHMS Group Pty Ltd |
$4,748.70 |
|
|
|
Asbestos Consultancy Services - Mariginiup Bushfire Cleanup |
|
|
37673 |
9/12/2024 |
Reliable Fencing WA Pty Ltd |
$37,505.88 |
|
|
|
Fencing Repairs - Various Locations |
|
|
|
|
Replace Pine Lap Fencing - Hidden Valley Sump |
|
|
37674 |
9/12/2024 |
Roads 2000 |
$38,660.85 |
|
|
|
Road Widening And Asphalt - Landsdale Road |
|
|
|
|
Profiling And Asphalting - Mirrabooka Avenue |
|
|
|
|
Civil Works - Quinns Rocks Sports Club Alteration |
|
|
37675 |
9/12/2024 |
Rates Refund |
$1,878.48 |
|
37676 |
9/12/2024 |
Rates Refund |
$834.76 |
|
37677 |
9/12/2024 |
Robert Walters Pty Ltd |
$5,392.17 |
|
|
|
Casual Labour Services |
|
|
37678 |
9/12/2024 |
RTSM Consulting |
$4,950.00 |
|
|
|
Preliminary Design Road Safety Audit Yanchep Beach Road – Marmion Avenue / Spinnaker Boulevard |
|
|
37679 |
9/12/2024 |
Ryan Wouters |
$985.70 |
|
|
|
Vehicle Crossing Subsidy |
|
|
37680 |
9/12/2024 |
SafePath Pty Ltd |
$9,253.75 |
|
|
|
Concrete Footpath Grinding - 3 Locations |
|
|
37681 |
9/12/2024 |
Safety And Rescue Equipment |
$440.00 |
|
|
|
Compliance Assessment And Report - Proposed Height Safety Systems, Pre-Construction - Dordaak Kepup |
|
|
37682 |
9/12/2024 |
Safety World |
$26.38 |
|
|
|
Custom Signage - Health Hazard Pictogram |
|
|
37683 |
9/12/2024 |
SAI360 Pty Ltd T/As Evotix360 |
$106,920.00 |
|
|
|
Safety System License Renewal - 01.02.2025 To 31.01.2026 - ICT |
|
|
37684 |
9/12/2024 |
Sanpoint Pty Ltd ATF the Fiore Family Trust |
$128,809.89 |
|
|
|
Landscape Maintenance Services - Various Locations |
|
|
37685 |
9/12/2024 |
SCA Architecture Studio Pty Ltd |
$1,540.00 |
|
|
|
Concept Design Works - Female AFI Changeroom Refurbishment - Wanneroo Showgrounds |
|
|
37686 |
9/12/2024 |
SCF Group Pty Ltd |
$3,448.50 |
|
|
|
Storage Container - Waste Education |
|
|
37687 |
9/12/2024 |
School Sport Western Australia Incorporated |
$1,000.00 |
|
|
|
Community Funding - AFL 12 Girls - 2 Members & Netball - 2 Members |
|
|
37688 |
9/12/2024 |
Seabreeze Landscape Supplies |
$19.00 |
|
|
|
Landscape Supplies |
|
|
37689 |
9/12/2024 |
Seek Limited |
$6,127.58 |
|
|
|
Seek Branded Adverts - People & Culture |
|
|
37690 |
9/12/2024 |
Rates Refund |
$908.94 |
|
37691 |
9/12/2024 |
Shred-X |
$474.71 |
|
|
|
Shredding Services |
|
|
37692 |
9/12/2024 |
Site Sentry Pty Ltd |
$1,034.00 |
|
|
|
Landsdale Relocation Services |
|
|
37693 |
9/12/2024 |
Slater-Gartrell Sports |
$9,691.00 |
|
|
|
Replace Stolen Goal Posts - Laricina Park |
|
|
|
|
Installation Of New Wicket Synthetic Surface - Wanneroo Showgrounds |
|
|
37694 |
9/12/2024 |
Smartsalary |
$448.66 |
|
|
|
Input Tax Credits - Salary Packaging - October 2024 |
|
|
37695 |
9/12/2024 |
Smoke & Mirrors Audio Visual |
$10,314.85 |
|
|
|
Stage, Sound & Lighting - Alkimos Concert |
|
|
37696 |
9/12/2024 |
SPORTENG |
$5,821.20 |
|
|
|
Irrigation Design and Consultancy Services - Celebration Park |
|
|
37697 |
9/12/2024 |
St James Anglican School |
$500.00 |
|
|
|
Students Musical Performance - Leatherback Park |
|
|
37698 |
9/12/2024 |
St John Ambulance Western Australia Ltd |
$2,665.89 |
|
|
|
First Aid Supplies / Training Services |
|
|
37699 |
9/12/2024 |
StrataGreen |
$1,024.66 |
|
|
|
2 Leatherman Multitools With Sheaths / 2 Secateurs With Pouches / 2 Long Arm Spotting Handles & 2 Storage Bags |
|
|
37700 |
9/12/2024 |
Stylus Tapes International |
$0.01 |
|
|
|
PVC Floor Marking Tape - Kingsway Stadium |
|
|
37701 |
9/12/2024 |
Superior Nominees Pty Ltd |
$105,168.69 |
|
|
|
New Shelters And Bench Seat - Aquamotion Wanneroo |
|
|
|
|
Playground Repairs & Maintenance - Various Locations |
|
|
37702 |
9/12/2024 |
Supreme Shades Pty Ltd |
$41,057.50 |
|
|
|
Shade Sail Reinstallations - Parks North |
|
|
37703 |
9/12/2024 |
Sydney Tools Pty Ltd |
$2,182.35 |
|
|
|
Tool Purchases - Engineering |
|
|
37704 |
9/12/2024 |
Synergy |
$81,898.99 |
|
|
|
Power Supply Charges - Various Locations |
|
|
37705 |
9/12/2024 |
Technology One Limited |
$82,095.28 |
|
|
|
Technology One Cloud / SAAS Platform - ICT |
|
|
37706 |
9/12/2024 |
Telstra Limited |
$34.95 |
|
|
|
Fire Protection Wireless Data |
|
|
37707 |
9/12/2024 |
Teresa Newton |
$800.00 |
|
|
|
MC - Alkimos Concert |
|
|
37708 |
9/12/2024 |
Rates Refund |
$173.80 |
|
37709 |
9/12/2024 |
The Futures Group |
$693.75 |
|
|
|
Legal Fees For The City |
|
|
37710 |
9/12/2024 |
The Hire Guys Wangara |
$3,284.00 |
|
|
|
Equipment Hire - 2 VMS Boards - Displaying "Caution - Turtles Crossing" |
|
|
|
|
Equipment Hire - Ute - Parks |
|
|
37711 |
9/12/2024 |
The Physio Nook |
$357.00 |
|
|
|
Author Interview - Australian Short Story Festival |
|
|
37712 |
9/12/2024 |
The Trustee for Osborne Park Unit Trust |
$834.10 |
|
|
|
Code Key To Vehicle - Fleet |
|
|
37713 |
9/12/2024 |
The Trustee for UDLA Unit Trust |
$72,447.93 |
|
|
|
Landscape Architectural Consultancy Services - Yanchep Lagoon Management Plan |
|
|
37714 |
9/12/2024 |
Total Tools Joondalup |
$1,253.00 |
|
|
|
Tool Purchases |
|
|
37715 |
9/12/2024 |
Totally Workwear Joondalup & Butler |
$341.40 |
|
|
|
Uniform Issue - Assets Design |
|
|
37716 |
9/12/2024 |
Tree Planting & Watering |
$1,870.00 |
|
|
|
Install And Water Trees - 1 Magnolia - Clarkson Avenue / 1 Fraxinus - Kingsway Little Athletic Club |
|
|
37717 |
9/12/2024 |
Trent Gibson |
$100.38 |
|
|
|
Refund - Temporary Camping Application Fee - Incorrect Form |
|
|
37718 |
9/12/2024 |
Triton Electrical Contractors Pty Ltd |
$14,220.80 |
|
|
|
Irrigation Electrical Wors - Various Locations |
|
|
37719 |
9/12/2024 |
Trophy Shop Australia |
$1,522.78 |
|
|
|
11 Student Citizenship Medals |
|
|
|
|
Name Badges - Various Employees |
|
|
|
|
Netball & Basketball Trophies - Kingsway |
|
|
37720 |
9/12/2024 |
Truck Centre WA Pty Ltd |
$12,422.91 |
|
|
|
Vehicle Spare Parts / Repairs |
|
|
37721 |
9/12/2024 |
Urbsol |
$2,475.00 |
|
|
|
Annual Subscription - Tomtom Junction Monitoring |
|
|
37722 |
9/12/2024 |
Veolia Recycling & Recovery Pty Ltd |
$5,527.05 |
|
|
|
General / Paper / Cardboard Collections - Waste |
|
|
37723 |
9/12/2024 |
Vocus Pty Ltd |
$495.00 |
|
|
|
Standard Access 100mbps - Lagoon Drive |
|
|
37724 |
9/12/2024 |
WA Limestone Company |
$2,841.88 |
|
|
|
Limestone Road Sub Base - Engineering |
|
|
|
|
Supply ESL - Badgerup Reserve |
|
|
37725 |
9/12/2024 |
Wanneroo Electric |
$35,982.87 |
|
|
|
Electrical Maintenance - Various Locations |
|
|
37726 |
9/12/2024 |
Water Corporation |
$18,164.88 |
|
|
|
Water Supply Charges - Various Locations |
|
|
37727 |
9/12/2024 |
WCP Civil Pty Ltd |
$180,597.16 |
|
|
|
Progress Claim 3 - Upgrade Accessibility To Carpark - Alexander Heights Community Centre |
|
|
37728 |
9/12/2024 |
West Coast Shade Pty Ltd |
$110.00 |
|
|
|
Refund - Building Application - Not Done In Expected Timeframe |
|
|
37729 |
9/12/2024 |
West Coast Turf |
$25,354.93 |
|
|
|
Turfing Works - Various Locations |
|
|
37730 |
9/12/2024 |
Western Australian Local Government Association |
$1,100.00 |
|
|
|
GAPP Group Membership 2024 / 2025 |
|
|
37731 |
9/12/2024 |
Western Environmental Approvals Pty Ltd |
$7,532.80 |
|
|
|
Consulting Services - Biological Surveys 2024 - Hardcastle Park - Assets |
|
|
37732 |
9/12/2024 |
Western Power |
$106,143.00 |
|
|
|
Upgrade Traffic Treatments – Landsdale Road Blackspot |
|
|
37733 |
9/12/2024 |
WEX Australia Pty Ltd |
$4,339.79 |
|
|
|
Fuel Issues - Wanneroo Fire Services |
|
|
37734 |
9/12/2024 |
William Buck Consulting (WA) Pty Ltd |
$5,500.00 |
|
|
|
Probity Services - Alkimos Aquatic & Recreation Centre |
|
|
37735 |
9/12/2024 |
Work Clobber |
$179.10 |
|
|
|
Safety Boots - Compliance |
|
|
37736 |
9/12/2024 |
Work Health Professionals Pty Ltd |
$1,558.70 |
|
|
|
Air Monitoring - Respirable Dust - Crystalline Silica |
|
|
37737 |
9/12/2024 |
Workpower Incorporated |
$19,931.38 |
|
|
|
Waste Collections - White Good & Electrical |
|
|
37738 |
9/12/2024 |
Workpower Incorporated |
$31,584.59 |
|
|
|
Landscape Maintenance Services - Various Locations |
|
|
37739 |
9/12/2024 |
Wow Wipes |
$654.50 |
|
|
|
Antibacterial Wipes - Aquamotion |
|
|
37740 |
11/12/2024 |
Andrea Ludvik |
$171.65 |
|
|
|
Refund - Building Application - Incorrect |
|
|
37741 |
11/12/2024 |
Australia Post |
$48,247.46 |
|
|
|
Postage Charges - Lodged |
|
|
37742 |
11/12/2024 |
BCA Consultants (WA) Pty Ltd |
$792.00 |
|
|
|
Contract Administration - Wanneroo Aquamotion HVAC Replacement |
|
|
37743 |
11/12/2024 |
Bibliotheca Australia Pty Ltd |
$3,810.40 |
|
|
|
RFID Tags - Library Services |
|
|
37744 |
11/12/2024 |
Entire Land Care Pty Ltd |
$33,330.00 |
|
|
|
Mitigation Works - Various Locations - Community & Emergency Services |
|
|
37745 |
11/12/2024 |
Innovative Garage Solutions |
$374.00 |
|
|
|
Threshold Seals For 3 Storage Roller Doors - Halesworth Park - Assets |
|
|
37746 |
11/12/2024 |
Swan Group WA |
$332,298.00 |
|
|
|
Construction - Dordaak Kepup Library & Youth Innovation Hub - Assets |
|
|
37747 |
11/12/2024 |
Viva Energy Australia Pty Ltd |
$102,599.09 |
|
|
|
Fuel Issues |
|
|
37748 |
16/12/2024 |
Australia Post |
$5,052.87 |
|
|
|
Postage Charges For The City |
|
|
37759 |
16/12/2024 |
Ms A Croker |
$12.00 |
|
|
|
Reimbursement - Parking Costs At Event |
|
|
37760 |
16/12/2024 |
Ms K Davis |
$103.27 |
|
|
|
Reimbursement - Parking - Governance Institute Of Australia Training |
|
|
37761 |
16/12/2024 |
Ms P Swe |
$397.50 |
|
|
|
Reimbursement - Aqua Fitness Course |
|
|
37762 |
17/12/2024 |
Acclaimed Catering |
$26,326.50 |
|
|
|
Catering - 25th & 26th November Forums |
|
|
|
|
Catering - Staff Christmas Party - Food |
|
|
37763 |
16/12/2024 |
A&M Construction Group Pty Ltd |
$2,000.00 |
|
|
|
Refund - Street & Verge Bond |
|
|
37764 |
16/12/2024 |
AAAC Towing |
$341.00 |
|
|
|
Towing Services - Abandoned Vehicle Management |
|
|
37765 |
16/12/2024 |
ABM Landscaping |
$1,677.50 |
|
|
|
Reinstate Brick Paving - Aquamotion - Assets |
|
|
37766 |
16/12/2024 |
ABM Landscaping |
$1,412.40 |
|
|
|
Install Paving - Shorehaven Boulevard |
|
|
37767 |
16/12/2024 |
ABN Residential WA Pty Ltd |
$8,000.00 |
|
|
|
Refund - Street & Verge Bonds |
|
|
37768 |
16/12/2024 |
Adelphi Apparel |
$440.00 |
|
|
|
Uniform Issue - Community Safety |
|
|
37769 |
16/12/2024 |
Ben Rowson |
$2,000.00 |
|
|
|
Refund - Street & Verge Bond |
|
|
37770 |
16/12/2024 |
BGC Residential Pty Ltd |
$2,000.00 |
|
|
|
Refund - Street & Verge Bond |
|
|
37771 |
16/12/2024 |
Bing Technologies Pty Ltd |
$9,050.69 |
|
|
|
Postage Charges For The City 15 - 30.11.2024 |
|
|
37772 |
16/12/2024 |
BMT Commercial Australia Pty Ltd |
$67,694.00 |
|
|
|
Stage 3 - Geophys Hydro Survey Offshore Sand Source Dredge |
|
|
37773 |
16/12/2024 |
Brazilian Combat Pty Ltd |
$200.00 |
|
|
|
Participation Funding For The Participation 1 Member - IBJJF Pan Pacific Jiu Jitsu Championships Melbourne |
|
|
37774 |
16/12/2024 |
Bucher Municipal Pty Ltd |
$8,569.28 |
|
|
|
Vehicle Spare Parts |
|
|
37775 |
16/12/2024 |
Rates Refund |
$1,410.22 |
|
37776 |
16/12/2024 |
Carramar Resources Industries |
$1,246.30 |
|
|
|
Yellow Fill Sand - James Spiers Park |
|
|
37777 |
16/12/2024 |
Carrisa Pty Ltd Trading As Domination Homes |
$2,000.00 |
|
|
|
Refund - Street & Verge Bond |
|
|
37778 |
16/12/2024 |
CFMEU |
$110.00 |
|
|
|
Payroll Deductions |
|
|
37779 |
16/12/2024 |
Chillo Refrigeration & Air-Conditioning |
$1,683.00 |
|
|
|
Kitchen - Supply And Install New Fridge Door - Dennis Cooley Pavilion |
|
|
37780 |
16/12/2024 |
City of Wanneroo |
$488.00 |
|
|
|
Payroll Deductions |
|
|
37781 |
16/12/2024 |
Rates Refund |
$855.98 |
|
37782 |
16/12/2024 |
Contra-Flow Pty Ltd |
$16,614.11 |
|
|
|
Traffic Management Services |
|
|
37783 |
16/12/2024 |
CS Legal |
$2,194.50 |
|
|
|
Court Fees - Rating Services |
|
|
37784 |
16/12/2024 |
Curtis Hancock |
$2,000.00 |
|
|
|
Refund - Street & Verge Bond |
|
|
37785 |
16/12/2024 |
D H Kerai & J L Vekaria |
$590.00 |
|
|
|
Refund - Development Applications - Withdrawn |
|
|
37786 |
16/12/2024 |
Delstrat Pty Ltd |
$2,000.00 |
|
|
|
Refund - Street & Verge Bond |
|
|
37787 |
16/12/2024 |
Department of the Premier and Cabinet |
$207.87 |
|
|
|
Advertising - District Planning Scheme No. 2 Amendment |
|
|
37788 |
16/12/2024 |
Dodgy Bros Dodgeball Company |
$1,320.00 |
|
|
|
Dodgeball Package - Youth Group Party |
|
|
37789 |
16/12/2024 |
Dr John Desmond West |
$600.00 |
|
|
|
Universe Of Maths Mon 7, 14, 21 & 26 Yanchep Library |
|
|
37790 |
16/12/2024 |
Drovers Vet Hospital Pty Ltd |
$1,013.80 |
|
|
|
Veterinary Charges |
|
|
37791 |
16/12/2024 |
Duncan Goodwin |
$25.00 |
|
|
|
Refund - Dog Registration Refund |
|
|
37792 |
16/12/2024 |
Dylan Lowis |
$2,000.00 |
|
|
|
Refund - Street & Verge Bond |
|
|
37793 |
16/12/2024 |
Economic Development Australia Limited |
$2,524.50 |
|
|
|
Annual Membership 2025 |
|
|
37794 |
16/12/2024 |
Elite Tours |
$2,327.00 |
|
|
|
Gold Program - Christmas Botanical Gardens Lights |
|
|
37795 |
16/12/2024 |
Elza van der Walt |
$2,000.00 |
|
|
|
Refund - Street & Verge Bond |
|
|
37796 |
16/12/2024 |
Emerg Solutions Pty Ltd |
$660.00 |
|
|
|
Bart Direct SMS Numbers Annual Fee - Community Safety |
|
|
37797 |
16/12/2024 |
Emineo Engineering Services |
$11,299.76 |
|
|
|
Transport Of Yanchep Container - Ashby And Return |
|
|
37798 |
16/12/2024 |
Environmental Industries Pty Ltd |
$174,480.09 |
|
|
|
Landscape Maintenance Services - Various Locations |
|
|
37799 |
16/12/2024 |
Equifax Australasia Workforce Solutions Pty Limited |
$53.90 |
|
|
|
Fit2Work Charges - People & Culture |
|
|
37800 |
16/12/2024 |
Essential First Choice Homes Pty Ltd |
$814.26 |
|
|
|
Refund - Building Application - Not Done In Expected Time Frame |
|
|
37801 |
16/12/2024 |
Rates Refund |
$924.08 |
|
37802 |
16/12/2024 |
Rates Refund |
$769.72 |
|
37803 |
16/12/2024 |
Fleet Network |
$12,367.63 |
|
|
|
Refund - Payroll Deduction - Pp 12 Period Ending 06/12/2024 |
|
|
37804 |
16/12/2024 |
Rates Refund |
$360.24 |
|
37805 |
16/12/2024 |
George Bartell Pty Ltd |
$255.00 |
|
|
|
Refund - Annual Food Safety Service Charge - Business Sold |
|
|
37806 |
16/12/2024 |
George van der Walt |
$2,000.00 |
|
|
|
Refund - Street & Verge Bond |
|
|
37807 |
16/12/2024 |
Rates Refund |
$165.28 |
|
37808 |
16/12/2024 |
Gillian Dudley |
$500.00 |
|
|
|
CCTV Rebate |
|
|
37809 |
16/12/2024 |
Glenn James |
$187.47 |
|
|
|
Refund - Building Application - Not Approved Within Statutory Timeframe |
|
|
37810 |
16/12/2024 |
Glenn Sanders |
$149.40 |
|
|
|
Refund - Copies Of Plans - Not Available |
|
|
37811 |
16/12/2024 |
Gorton Building Group |
$10,000.00 |
|
|
|
Refund - Street & Verge Bonds |
|
|
37812 |
16/12/2024 |
Hays Personnel Services |
$3,322.44 |
|
|
|
Casual Labour Services |
|
|
37813 |
16/12/2024 |
Horizon West Landscape Constructions |
$135,273.33 |
|
|
|
Landscape Construction Claim - Riverlinks Park All Abilities - October 2024 |
|
|
37814 |
16/12/2024 |
Horizon West Landscape Constructions |
$171.65 |
|
|
|
Refund - Building Application - Rejected |
|
|
37815 |
16/12/2024 |
Hydroquip Pumps & Irrigation Pty Ltd |
$26,463.23 |
|
|
|
Removal And Servicing Of Bore Pump - 4 Locations |
|
|
37816 |
16/12/2024 |
Inspired Development Solutions Pty Ltd |
$1,958.00 |
|
|
|
Coaching - 06.11.2024 & 11-12-2024 - 1 Attendee |
|
|
|
|
Executive Mentoring - Mentoring Session With Mayor & Deputy Mayor - 03.12.2024 |
|
|
37817 |
16/12/2024 |
Integrity Industrial Pty Ltd |
$1,813.61 |
|
|
|
Casual Labour Services |
|
|
37818 |
16/12/2024 |
Intelife Group |
$194.48 |
|
|
|
Extra Clean - Civic Centre |
|
|
37819 |
16/12/2024 |
Interfire Agencies Pty Ltd |
$2,157.60 |
|
|
|
Respirators / Helmet Stickers / Stowage Kit Bags - Fire Services |
|
|
37820 |
16/12/2024 |
Ixom Operations Pty Ltd |
$2,578.40 |
|
|
|
Pool Chemicals - Aquamotion |
|
|
37821 |
16/12/2024 |
James Kielty |
$2,000.00 |
|
|
|
Refund - Street & Verge Bond |
|
|
37822 |
16/12/2024 |
JBA Pacific Scientists and Engineers Pty Ltd |
$8,316.00 |
|
|
|
Professional Services - Coastal Monitoring Program |
|
|
37823 |
16/12/2024 |
Jenny Johnson |
$500.00 |
|
|
|
CCTV Rebate |
|
|
37824 |
16/12/2024 |
Rates Refund |
$488.15 |
|
37825 |
16/12/2024 |
Rates Refund |
$2,181.24 |
|
37826 |
16/12/2024 |
Rates Refund |
$1,231.73 |
|
37827 |
16/12/2024 |
Komatsu Australia Pty Ltd |
$1,377.60 |
|
|
|
Vehicle Spare Parts |
|
|
37828 |
16/12/2024 |
La Vida Australia Pty Ltd |
$18,000.00 |
|
|
|
Refund - Street & Verge Bonds |
|
|
37829 |
16/12/2024 |
Laundry Express |
$776.28 |
|
|
|
Laundry Services - Hospitality |
|
|
37830 |
16/12/2024 |
Rates Refund |
$899.80 |
|
37831 |
16/12/2024 |
Lessen with Peg – Rethink Waste |
$500.00 |
|
|
|
Making Beeswax Wraps - Girrawheen Hub |
|
|
37832 |
16/12/2024 |
Linemarking WA Pty Ltd |
$1,263.91 |
|
|
|
Spotting - Mirrabooka Avenue |
|
|
37833 |
16/12/2024 |
Louise Fenwick |
$2,000.00 |
|
|
|
Refund - Street & Verge Bond |
|
|
37834 |
16/12/2024 |
Louise Murray |
$2,000.00 |
|
|
|
Refund - Street & Verge Bond |
|
|
37835 |
16/12/2024 |
Rates Refund |
$667.92 |
|
37836 |
16/12/2024 |
Luxury Living WA Pty Ltd t/a Status Residential |
$4,000.00 |
|
|
|
Refund - Street & Verge Bonds |
|
|
37837 |
16/12/2024 |
M Gregory Legal |
$5,538.20 |
|
|
|
Legal Fees For The City |
|
|
37838 |
16/12/2024 |
McLeods Lawyers Pty Ltd |
$5,977.07 |
|
|
|
Legal Fees For The City |
|
|
37839 |
16/12/2024 |
Megan Dowdall |
$400.00 |
|
|
|
Participation Funding For The Participation - 1 Member - The LT Worlds Windsurfing Competition15 - 22.09.2024, Club De Vela Ballena Alegre, Spain |
|
|
37840 |
16/12/2024 |
Natasha Greenhill |
$500.00 |
|
|
|
CCTV Rebate |
|
|
37841 |
16/12/2024 |
Nature Play WA |
$481.24 |
|
|
|
Trail Hosting Fee - The Period October 2024 - April 2025 |
|
|
37842 |
16/12/2024 |
Neeraj Prasad |
$2,000.00 |
|
|
|
Refund - Street & Verge Bond |
|
|
37843 |
16/12/2024 |
Rates Refund |
$270.00 |
|
37844 |
16/12/2024 |
Ngulla Koort Indigenous Corporation |
$11,850.00 |
|
|
|
Community Funding - Support Delivery Of 2025 Mookaroo Outer North NAIDOC Event |
|
|
37845 |
16/12/2024 |
Cancelled |
|
|
37846 |
16/12/2024 |
On Tap Services |
$1,575.69 |
|
|
|
Plumbing Maintenance Services - Various Locations |
|
|
37847 |
16/12/2024 |
Oscar Espachs Diez |
$2,000.00 |
|
|
|
Refund - Street & Verge Bond |
|
|
37848 |
16/12/2024 |
Oswald Homes Pty Ltd |
$2,000.00 |
|
|
|
Refund - Street & Verge Bond |
|
|
37849 |
16/12/2024 |
Rates Refund |
$884.64 |
|
37850 |
16/12/2024 |
Paperbark Technologies Pty Ltd |
$861.00 |
|
|
|
Arboricultural Report - Cassilda Park, Two Rocks |
|
|
37851 |
16/12/2024 |
Paul Clinton |
$2,000.00 |
|
|
|
Refund - Street & Verge Bond |
|
|
37852 |
16/12/2024 |
Paul Lambe |
$83.82 |
|
|
|
Refund - Copies Of Plans - Duplicate |
|
|
37853 |
16/12/2024 |
Cancelled |
|
|
37854 |
16/12/2024 |
Paywise Pty Ltd |
$3,943.80 |
|
|
|
Payroll Deductions |
|
|
37855 |
16/12/2024 |
Rates Refund |
$1,144.83 |
|
37856 |
16/12/2024 |
Rebecca Mungall |
$2,000.00 |
|
|
|
Refund - Street & Verge Bond |
|
|
37857 |
16/12/2024 |
Rates Refund |
$411.96 |
|
37858 |
16/12/2024 |
Reliable Fencing WA Pty Ltd |
$1,126.40 |
|
|
|
Fencing Works - Cassilda Park Bollard Installation Where Trees Were Removed |
|
|
|
|
Repair Fencing & Install Chaingate - Leatherback Oval |
|
|
37859 |
16/12/2024 |
Robert Stevenson |
$500.00 |
|
|
|
CCTV Rebate |
|
|
37860 |
16/12/2024 |
Rynat Industries Australia Pty Ltd |
$2,984.06 |
|
|
|
Baby Change Table Vertical Recessed Stainless Steel |
|
|
37861 |
16/12/2024 |
S & K Spadaccini Family Home Builders |
$2,000.00 |
|
|
|
Refund - Street & Verge Bond |
|
|
37862 |
16/12/2024 |
Safety World |
$917.40 |
|
|
|
Stop / Slow Baton Aluminium Extendable Handle - Engineering |
|
|
37863 |
16/12/2024 |
Sanpoint Pty Ltd ATF the Fiore Family Trust |
$4,510.00 |
|
|
|
Streetscape Maintenance - Montebello Boulevard |
|
|
37864 |
16/12/2024 |
Rates Refund |
$1,166.51 |
|
37865 |
16/12/2024 |
School Sport Western Australia Incorporated |
$700.00 |
|
|
|
Participation Funding - 1 Member - 12/U Football Championship - Port Kennedy 13 - 18.09.2024 |
|
|
|
|
Participation Funding - 1 Member - 18 Years & Under Golf Championships - Canberra 18 - 23.08.2024 |
|
|
|
|
Participation Funding - 2 Members - 12 Years & Under Netball Championships - Parkville Victoria 07 - 13.09.2024 |
|
|
37866 |
16/12/2024 |
Scott Puhara & Melinda Puhara |
$2,000.00 |
|
|
|
Refund - Street & Verge Bond |
|
|
37867 |
16/12/2024 |
Shaun Gallacher |
$2,000.00 |
|
|
|
Refund - Street & Verge Bond |
|
|
37868 |
16/12/2024 |
Softwoods Timberyards Pty Ltd t/a Patio Living |
$2,000.00 |
|
|
|
Refund - Street & Verge Bond |
|
|
37869 |
16/12/2024 |
Stewart & Heaton Clothing Company Pty Ltd |
$2,185.65 |
|
|
|
Uniform Issue - Community Safety |
|
|
37870 |
16/12/2024 |
Rates Refund |
$920.30 |
|
37871 |
16/12/2024 |
Synergy |
$17,660.84 |
|
|
|
Power Supply Charges - Various Locations |
|
|
37872 |
16/12/2024 |
Tania Collins |
$2,000.00 |
|
|
|
Refund - Street & Verge Bond |
|
|
37873 |
16/12/2024 |
Team Global Express Pty Ltd |
$1,216.32 |
|
|
|
Courier Services |
|
|
37874 |
16/12/2024 |
Telstra Limited |
$9,369.27 |
|
|
|
Phone Charges For The City |
|
|
|
|
Telstra Integrated Messaging |
|
|
37875 |
16/12/2024 |
Rates Refund |
$1,654.65 |
|
37876 |
16/12/2024 |
Thanh Tung Le |
$150.00 |
|
|
|
Dog Registration Refund - Sterilised |
|
|
37877 |
16/12/2024 |
The Grove Church Inc |
$295.00 |
|
|
|
Refund - Development Application - Withdrawn |
|
|
37878 |
16/12/2024 |
The Hire Guys Wangara |
$1,936.00 |
|
|
|
Vehicle Hire - Mitsubishi Triton Extra Cab 4X4 |
|
|
37879 |
16/12/2024 |
The Local Government, Racing and Cemeteries Employees Union (WA) |
$1,100.00 |
|
|
|
Payroll Deductions |
|
|
37880 |
16/12/2024 |
The Royal Life Saving Society Australia |
$636.90 |
|
|
|
Operations - Water Feature Reactive Maintenance |
|
|
37881 |
16/12/2024 |
The Trustee for Talis Unit Trust T/a Talis Consultants |
$21,521.50 |
|
|
|
Consultancy Services To Develop A Masterplan - Neerabup Resource Precinct |
|
|
37882 |
16/12/2024 |
Tim Eva's Nursery |
$396.00 |
|
|
|
Plant Supply - Parks |
|
|
37883 |
16/12/2024 |
Toro Australia Group Sales Pty Ltd |
$756.58 |
|
|
|
Small Plant Spare Parts |
|
|
37884 |
16/12/2024 |
Urban Development Institute of Australia WA Division Incorporated |
$297.00 |
|
|
|
Registration - National Housing Pipeline Outlook Forum - 3 Attendees - 12.06.2024 |
|
|
37885 |
16/12/2024 |
Vigneshkumar Nakrani |
$354.27 |
|
|
|
CCTV Rebate |
|
|
37886 |
16/12/2024 |
WA Library Supplies |
$4,258.00 |
|
|
|
Display Top Bookcase - Library Services |
|
|
37887 |
16/12/2024 |
Wanneroo Electric |
$144.10 |
|
|
|
Electrical Works - Callout To Restore Power - Kingsway Splashpad |
|
|
37888 |
16/12/2024 |
Water Corporation |
$4,853.18 |
|
|
|
Application Fee - New Water Supply - Amstrel Parks |
|
|
37889 |
16/12/2024 |
Water Corporation |
$8,134.89 |
|
|
|
Water Supply Charges - Various Locations |
|
|
37890 |
16/12/2024 |
West Coast Fury |
$1,600.00 |
|
|
|
Participation Funding – West Coast Fury - The Cheerleading Worlds |
|
|
37891 |
16/12/2024 |
Rates Refund |
$976.31 |
|
37892 |
16/12/2024 |
Windcave Pty Limited |
$253.00 |
|
|
|
Eftpos Services - Wanneroo Library |
|
|
37893 |
19/12/2024 |
1Spatial Australia Pty Limited |
$3,118.50 |
|
|
|
Subscription - FME Enterprise - ICT |
|
|
37894 |
19/12/2024 |
ABM Landscaping |
$3,403.40 |
|
|
|
Progress Claim 1 - Install Mulch & Plants - Aquamotion |
|
|
37895 |
19/12/2024 |
Acclaimed Catering |
$1,705.00 |
|
|
|
Catering - Bike Month Breakfast |
|
|
37896 |
19/12/2024 |
Activ Foundation Incorporated |
$1,760.22 |
|
|
|
Turf And Horticultural Maintenance - Sydney Park |
|
|
37897 |
19/12/2024 |
Activ Foundation Incorporated |
$3,362.48 |
|
|
|
Garden Maintenance - Houghton Park - Parks |
|
|
37898 |
19/12/2024 |
Acurix Networks Pty Ltd |
$11,468.60 |
|
|
|
Monitoring, Licensing, Support, Category Based Content Filtering, Premium Portal And Unlimited Downloads - December 2024 |
|
|
37899 |
19/12/2024 |
Advanced Perth Removals Pty Ltd |
$579.71 |
|
|
|
Removal / Disposal Of Items - Addison Clubrooms |
|
|
37900 |
19/12/2024 |
Alinta Gas |
$623.10 |
|
|
|
Gas Supply Charges - Various Locations |
|
|
37901 |
19/12/2024 |
Allworks (WA) Pty Ltd |
$10,309.75 |
|
|
|
Excavator & Loader Hire - Quinns Dog Beach |
|
|
37902 |
19/12/2024 |
Andrew Thomas Bredow |
$2,000.00 |
|
|
|
Refund - Street & Verge Bond |
|
|
37903 |
19/12/2024 |
Aqua Attack Drilling |
$43,763.50 |
|
|
|
Irrigation Supplies - Amery Park |
|
|
37904 |
19/12/2024 |
Aqua Attack Swimming Club (Incorporated) |
$45.00 |
|
|
|
Refund - Room Booking WLCC - Paid Twice |
|
|
37905 |
19/12/2024 |
Aquatic Leisure Technologies |
$330.00 |
|
|
|
Refund - Building Applications - Application Not Approved Within Statutory Time Frame |
|
|
37906 |
19/12/2024 |
Aslab Pty Ltd |
$10,672.20 |
|
|
|
Asphalt Cores - Mirrabooka Avenue / Hester Avenue / Connolly Drive |
|
|
37907 |
19/12/2024 |
Atlas Dry Cleaners |
$1,286.34 |
|
|
|
Laundry Services - November 2024 - Fleet |
|
|
37908 |
19/12/2024 |
Aussie Natural Spring Water |
$21.66 |
|
|
|
Water Supplies - Print Room |
|
|
37909 |
19/12/2024 |
Australian Airconditioning Services Pty Ltd |
$27,733.06 |
|
|
|
Airconditioning Maintenance Services - Various Locations |
|
|
|
|
Install Daikin Reverse Cycle - Halesworth Park Demountable |
|
|
37910 |
19/12/2024 |
Australian Services Union |
$238.50 |
|
|
|
Payroll Deductions |
|
|
37911 |
19/12/2024 |
Australian Taxation Office |
$699,566.00 |
|
|
|
Payroll Deductions |
|
|
37912 |
19/12/2024 |
AV Truck Service Pty Ltd |
$1,299.32 |
|
|
|
Vehicle Spare Parts |
|
|
37913 |
19/12/2024 |
Bark Environmental |
$6,022.50 |
|
|
|
5 Volunteer Dieback Hygiene Kits |
|
|
|
|
Dieback Treatments & Assessments - Ashbrook & Pinjar Parks |
|
|
37914 |
19/12/2024 |
Belinda Korpak |
$500.00 |
|
|
|
CCTV Rebate |
|
|
37915 |
19/12/2024 |
Bladon WA Pty Ltd |
$3,445.45 |
|
|
|
500 Lanyards - Organisational Development |
|
|
|
|
Corporate Uniform Issue |
|
|
37916 |
19/12/2024 |
Boya Equipment |
$918.89 |
|
|
|
Small Plant Spare Parts |
|
|
37917 |
19/12/2024 |
Bridgestone Australia Limited |
$61.60 |
|
|
|
Tyre Fitting Services |
|
|
37918 |
19/12/2024 |
Bridgestone Australia Limited |
$16,666.99 |
|
|
|
Tyre Fitting Services |
|
|
37919 |
19/12/2024 |
Brownes Foods Operations Pty Limited |
$845.87 |
|
|
|
Milk Deliveries For The City |
|
|
37920 |
19/12/2024 |
Bunzl Limited |
$1,886.10 |
|
|
|
Wiper Roll & Sheets / Dispensers - Stores |
|
|
37921 |
19/12/2024 |
BWY Engineering Consultants Pty Ltd |
$7,350.20 |
|
|
|
RFQ Consultancy - Condition Assessment & Data Validation - Multiple Parks - 2024 / 2025 |
|
|
37922 |
19/12/2024 |
Cameron Van der Does t/a Cameron the Magician |
$350.00 |
|
|
|
Magic Show - Christmas Fiesta - Events |
|
|
37923 |
19/12/2024 |
Car Care (WA) Mindarie |
$460.95 |
|
|
|
Cleaning Of Community Buses - Community Development |
|
|
37924 |
19/12/2024 |
Car Care Motor Company Pty Ltd |
$1,495.89 |
|
|
|
Vehicle Services / Repairs - Fleet |
|
|
37925 |
19/12/2024 |
Castledex |
$5,552.80 |
|
|
|
Pastoe Chairs - Wanneroo Community Centre |
|
|
|
|
Postura Chair - Girrawheen Koondoola Senior Citizens Centre |
|
|
37926 |
19/12/2024 |
Cat Welfare Society Incorporated |
$8,596.50 |
|
|
|
Cat Impound Fees |
|
|
37927 |
19/12/2024 |
CDM Australia Pty Ltd |
$97,290.60 |
|
|
|
Dell Computers - ICT |
|
|
37928 |
19/12/2024 |
CDM Australia Pty Ltd |
$935.00 |
|
|
|
Sonnet EGFX Breakaway Box - ICT |
|
|
37929 |
19/12/2024 |
Child Support Agency |
$1,750.93 |
|
|
|
Payroll Deductions |
|
|
37930 |
19/12/2024 |
Chillo Refrigeration & Air-Conditioning |
$429.00 |
|
|
|
Callout - Freezer In Kitchen Noisy - Replaced Fan Motor - WLCC |
|
|
37931 |
19/12/2024 |
Chubb Fire & Security Pty Ltd |
$449.90 |
|
|
|
Fire Extinguisher Protection Bags - Depot |
|
|
37932 |
19/12/2024 |
Churches of Christ Sport & Recreation Association (CCSRA) |
$900.00 |
|
|
|
Participation Funding - Footlocker National Club Championships - Perth |
|
|
37933 |
19/12/2024 |
Circle of Friends Women’s Community Choir Inc |
$450.00 |
|
|
|
Choir Performances - Wanneroo & Clarkson Libraries |
|
|
37934 |
19/12/2024 |
Civcon Civil & Project Management Pty Ltd |
$1,180,872.52 |
|
|
|
Progress Claim 3 - Kingsway Sporting Complex Netball Court |
|
|
37935 |
19/12/2024 |
Cleanaway Equipment Services Pty Ltd |
$529.10 |
|
|
|
Parts Washer Rental - Fleet |
|
|
37936 |
19/12/2024 |
Coates Hire Operations Pty Limited |
$2,820.24 |
|
|
|
Hire - Portable Toilet - James Spiers Park - Assets |
|
|
37937 |
19/12/2024 |
Coca Cola Amatil Pty Ltd |
$759.37 |
|
|
|
Beverages - Kingsway Stadium |
|
|
37938 |
19/12/2024 |
Community Greenwaste Recycling Pty Ltd |
$1,310.10 |
|
|
|
Collection Of Debris - James Spiers Park / Wanneroo Shops Drainage |
|
|
37939 |
19/12/2024 |
Complete Office Supplies Pty Ltd |
$6,186.72 |
|
|
|
Stationery Purchases - Various Service Units |
|
|
37940 |
19/12/2024 |
Complete Office Supplies Pty Ltd |
$718.54 |
|
|
|
Stationery Purchases - Various Service Units |
|
|
37941 |
19/12/2024 |
Contra-Flow Pty Ltd |
$1,662.28 |
|
|
|
Traffic Management - Wanneroo Road Median Maintenance |
|
|
37942 |
19/12/2024 |
Converge International Pty Ltd |
$13,173.05 |
|
|
|
Critical Incident Response - WHS |
|
|
|
|
Employee Assistance Program |
|
|
37943 |
19/12/2024 |
Corbyn Rees |
$500.00 |
|
|
|
CCTV Rebate |
|
|
37944 |
19/12/2024 |
Corsign (WA) Pty Ltd |
$40.15 |
|
|
|
1 Sticker - Step / Stairs Symbol - Engineering |
|
|
37945 |
19/12/2024 |
Craneswest (WA) Pty Ltd |
$46,937.55 |
|
|
|
Debris Collection - Various Locations - Parks |
|
|
|
|
Green Waste Disposal |
|
|
37946 |
19/12/2024 |
Craneswest (WA) Pty Ltd |
$201,712.02 |
|
|
|
Work Completed By Western Go Organics To 29/11/2024 |
|
|
37947 |
19/12/2024 |
Critical Fire Protection & Training Pty Ltd |
$4,085.28 |
|
|
|
Fire Protection Equipment Works - Various Locations |
|
|
37948 |
19/12/2024 |
CS Legal |
$12,363.22 |
|
|
|
Court Fees - Rating Services |
|
|
37949 |
19/12/2024 |
CSE Crosscom Pty Ltd |
$27,524.70 |
|
|
|
Two-Way Radio Equipment / Subscriptions |
|
|
37950 |
19/12/2024 |
CTI Couriers |
$1,198.20 |
|
|
|
Courier Services - Health Services |
|
|
37951 |
19/12/2024 |
Curtin University of Technology |
$1,204.50 |
|
|
|
Radio Advertising - Christmas Card Activity |
|
|
37952 |
19/12/2024 |
Daimler Trucks Perth |
$1,495.86 |
|
|
|
Vehicle Spare Parts |
|
|
37953 |
19/12/2024 |
Dale Alcock Homes Pty Ltd |
$4,000.00 |
|
|
|
Refund - Street & Verge Bonds |
|
|
37954 |
19/12/2024 |
Data #3 Limited |
$184.53 |
|
|
|
Acrobat Standard Subscription - ICT |
|
|
37955 |
19/12/2024 |
David Roy Cull |
$209.00 |
|
|
|
General Pest Service - Ants - Fleet Workshop Lunchroom |
|
|
37956 |
19/12/2024 |
Department of Energy, Mines, Industry Regulation & Safety |
$194,375.41 |
|
|
|
Collection Agency Fee Payments – 01/11/2024 – 30/11/2024 |
|
|
37957 |
19/12/2024 |
Department of Fire & Emergency Services |
$140,447.70 |
|
|
|
2024 / 2025 ESL Income Local Government - Emergency Services Levy |
|
|
37958 |
19/12/2024 |
Department of Planning, Lands and Heritage |
$18,504.00 |
|
|
|
Application Fee - Applicant Carlo Famiano, CF Town Planning & Development - DAP/24/02814 - Address Lot 1022 (150) St Andrews Drive Yanchep - Proposal Childcare Premises |
|
|
|
|
Application Fee - Applicant Urbis Ltd Nominees Pty Ltd - DAP/24/02812 - Address Garzoni Lane Landsdale - Proposal 4 Story - 23 Unit Apartment Building |
|
|
|
|
Application Fee - Applicant Stephanie Wright, Meyer Shircore Architects - DAP/24/02802 - Address Amesbury Loop - Proposal Office / Warehouse |
|
|
37959 |
19/12/2024 |
Department of Primary Industries and Regional Development |
$3,781.00 |
|
|
|
Inspection & Treatment - Skeleton Weed |
|
|
37960 |
19/12/2024 |
Department of Transport |
$6,435.00 |
|
|
|
Production Of Your Move Map Online Version - Wanneroo North - Traffic Services |
|
|
37961 |
19/12/2024 |
Department of Transport |
$1,737.45 |
|
|
|
Disclosure Of Information Fees - Community Safety |
|
|
37962 |
19/12/2024 |
Destination Perth |
$5,500.00 |
|
|
|
Sunset Coast Alliance Campaign Fee 50% |
|
|
37963 |
19/12/2024 |
DMC Cleaning |
$107,862.19 |
|
|
|
Cleaning Services - Various Locations |
|
|
37964 |
19/12/2024 |
Double G (WA) Pty Ltd |
$16,833.65 |
|
|
|
Reticulation Works - Various Locations |
|
|
37965 |
19/12/2024 |
Dowsing Group Pty Ltd |
$4,777.30 |
|
|
|
Repair Footpath - Bresnahan Street |
|
|
37966 |
19/12/2024 |
Dowsing Group Pty Ltd |
$65,352.73 |
|
|
|
Install Hand Rail - Bethwyn Circuit |
|
|
|
|
Concrete Crossover - Houghton Drive Carramar |
|
|
|
|
Concrete Works - Aquamotion |
|
|
37967 |
19/12/2024 |
Dr John Desmond West |
$180.00 |
|
|
|
Universe Of Maths Stem Top Up Materials - Library Services |
|
|
37968 |
19/12/2024 |
Drainflow Services Pty Ltd |
$114,871.64 |
|
|
|
Road Sweeping / Drain Cleaning Services - Various Locations |
|
|
37969 |
19/12/2024 |
Drovers Vet Hospital Pty Ltd |
$289.11 |
|
|
|
Veterinary Charges |
|
|
37970 |
19/12/2024 |
Du Clene Pty Ltd |
$1,477.34 |
|
|
|
Cleaning Services - Various Locations |
|
|
37971 |
19/12/2024 |
E & MJ Rosher |
$330.45 |
|
|
|
Vehicle Spare Parts |
|
|
37972 |
19/12/2024 |
Eclipse Soils |
$286.00 |
|
|
|
Blowable Aquamor Mulch - Parks |
|
|
37973 |
19/12/2024 |
Elite Office Furniture |
$2,926.93 |
|
|
|
Filing Cabinet, Pedestal & Tambour Cupboard - Community Safety |
|
|
37974 |
19/12/2024 |
Elliotts Irrigation Pty Ltd |
$5,111.70 |
|
|
|
Iron Filter Services - Various Locations |
|
|
37975 |
19/12/2024 |
Emineo Engineering Services |
$933.88 |
|
|
|
Monthly Preventative Maintenance - Quinns / Yanchep |
|
|
37976 |
19/12/2024 |
Emma Dalzell |
$1,000.00 |
|
|
|
Refund -Street & Verge Bond |
|
|
37977 |
19/12/2024 |
Enchanted Stiltwalking |
$1,562.00 |
|
|
|
Stilt Walkers - Wanneroo Festival - 14.12.2024 - Events |
|
|
37978 |
19/12/2024 |
Epic Catering & Events Services Pty Ltd |
$4,515.50 |
|
|
|
Catering - Christmas Fiesta Lunch Boxes |
|
|
|
|
Catering - Council Meals |
|
|
37979 |
19/12/2024 |
EPM Partners Pty Ltd |
$4,620.00 |
|
|
|
Subscription Self Managed Program Level - December 2024 |
|
|
37980 |
19/12/2024 |
Erections Roadside Safety Solutions WA |
$1,848.00 |
|
|
|
Replace Curved Rail - Southmead |
|
|
37981 |
19/12/2024 |
Ergolink |
$492.80 |
|
|
|
Office Chair - Depot |
|
|
37982 |
19/12/2024 |
Ergolink |
$1,947.25 |
|
|
|
3 Office Chairs - Economic Development |
|
|
|
|
Office Chair / Mobile Pedestal - Depot |
|
|
37983 |
19/12/2024 |
Cancelled |
|
|
37984 |
19/12/2024 |
EVH Emergency Vet Hospital |
$410.00 |
|
|
|
Veterinary Charges |
|
|
37985 |
19/12/2024 |
Evolve Talent Pty Ltd |
$18,482.58 |
|
|
|
Casual Labour Charges |
|
|
37986 |
19/12/2024 |
Exemplary Holdings Pty Ltd t/a Vergola WA |
$2,000.00 |
|
|
|
Refund - Street & Verge Bond |
|
|
37987 |
19/12/2024 |
First 5 Minutes Pty Ltd |
$643.50 |
|
|
|
Training - Emergency Response Procedures |
|
|
37988 |
19/12/2024 |
Focus Consulting WA Pty Ltd |
$341.22 |
|
|
|
Electrical Consultancy Services - Bellport Park |
|
|
37989 |
19/12/2024 |
Forch Australia Pty Ltd |
$1,790.25 |
|
|
|
Screenwash & Brake Cleaner / Grips - Stores |
|
|
37990 |
19/12/2024 |
Foxfish Pty Ltd t/as Binley Fencing |
$757.02 |
|
|
|
Temporary Fencing - James Spiers Park - Assets |
|
|
37991 |
19/12/2024 |
Fusion Applications Pty Ltd |
$2,860.00 |
|
|
|
Consulting Fees For OICS Architecture Integration |
|
|
37992 |
19/12/2024 |
GDR Mobile Auto Electrical Services Pty Ltd |
$621.50 |
|
|
|
Vehicle Electrical Repairs |
|
|
37993 |
19/12/2024 |
Gemini Music Pty Ltd |
$2,376.00 |
|
|
|
Performances - Alkimos Concert |
|
|
37994 |
19/12/2024 |
Geoff's Tree Service Pty Ltd |
$41,309.30 |
|
|
|
Pruning Services - Various Locations |
|
|
37995 |
19/12/2024 |
Glevan Consulting |
$8,140.00 |
|
|
|
Phytophthora Dieback Occurrence Assessments - Chancellor Park / Alhambra Park / Versailles Park |
|
|
37996 |
19/12/2024 |
Global Marine Enclosures Pty Ltd |
$9,680.00 |
|
|
|
Summer Maintenance - November 2024 - Report 1 - 2 |
|
|
37997 |
19/12/2024 |
GPC Asia Pacific Pty Ltd |
$113.45 |
|
|
|
Vehicle Spare Parts |
|
|
37998 |
19/12/2024 |
Gresley Abas Pty Ltd |
$2,200.00 |
|
|
|
Illustration - Alkimos Regional Open Space - Economic Development |
|
|
37999 |
19/12/2024 |
Hang Art Pty Ltd |
$2,112.00 |
|
|
|
December Warhol Rotation - 2 Days - Cultural Services |
|
|
38000 |
19/12/2024 |
Hang Art Pty Ltd |
$1,584.00 |
|
|
|
Install - Walking Through A Songline Exhibition |
|
|
38001 |
19/12/2024 |
Hays Personnel Services |
$19,352.65 |
|
|
|
Casual Labour Charges |
|
|
38002 |
19/12/2024 |
Haz-Ed Services Pty Ltd |
$1,540.00 |
|
|
|
Recertification Of Height Safety System With Recommendations - Various Locations |
|
|
38003 |
19/12/2024 |
Heavy Automatics Pty Ltd |
$1,712.05 |
|
|
|
Vehicle Spare Parts |
|
|
38004 |
19/12/2024 |
Hickey Constructions Pty Ltd |
$16,699.10 |
|
|
|
Repair Concrete Steps - Carosa Park |
|
|
|
|
Flashing Works - Kingsway Football Club |
|
|
|
|
Replacement - 8 Damaged Pavers - Montrose Walk |
|
|
|
|
New Pavers And Pink Cement - Fleming Park |
|
|
|
|
Repair Limestone Wall - Talara Park |
|
|
|
|
Removal Of Orange Bus Shelter - The Broadview |
|
|
|
|
Repair Gym Equipment Concrete Surroundings - Salitage |
|
|
|
|
Remove 8 Steel Bollards - Wanneroo Town Centre |
|
|
38005 |
19/12/2024 |
Holty's Hiab |
$396.00 |
|
|
|
Grandis Park Season Changeover |
|
|
38006 |
19/12/2024 |
Home Group WA Pty Ltd |
$1,151.86 |
|
|
|
Refund - Development Application - Withdrawn |
|
|
38007 |
19/12/2024 |
Hose Right |
$5,663.28 |
|
|
|
Vehicle Spare Parts |
|
|
38008 |
19/12/2024 |
Host Corporation Pty Ltd |
$18.70 |
|
|
|
Platters - Hospitality |
|
|
38009 |
19/12/2024 |
Hydra Storm |
$7,505.33 |
|
|
|
Concrete Drainage Items - Various |
|
|
38010 |
19/12/2024 |
ibuild Solutions Pty Ltd |
$6.60 |
|
|
|
Refund - Verge Licence Application - Rejected |
|
|
38011 |
19/12/2024 |
Ideal Homes Pty Ltd |
$2,000.00 |
|
|
|
Refund - Street & Verge Bond |
|
|
38012 |
19/12/2024 |
Imagesource Digital Solutions |
$1,205.60 |
|
|
|
Banners - Putting Community First |
|
|
38013 |
19/12/2024 |
Inspired Development Solutions Pty Ltd |
$5,280.00 |
|
|
|
Training - Elected Members Leadership Development & Team Culture Survey |
|
|
38014 |
19/12/2024 |
Integrity Industrial Pty Ltd |
$13,908.47 |
|
|
|
Casual Labour Charges |
|
|
38015 |
19/12/2024 |
Integrity Industrial Pty Ltd |
$3,173.82 |
|
|
|
Casual Labour Charges |
|
|
38016 |
19/12/2024 |
Integrity Staffing |
$6,958.76 |
|
|
|
Casual Labour Charges |
|
|
38017 |
19/12/2024 |
Intelife Group |
$24,298.68 |
|
|
|
Cleaning Services - Car Wash & Vacuum / WLCC / Depot / Kingsway / Marangaroo |
|
|
|
|
Cleaning Consumables - November 2024 |
|
|
38018 |
19/12/2024 |
J Blackwood & Son Ltd |
$10,285.39 |
|
|
|
Pruning Saws / Wide Brim Hats / Fly Veils / Shelving / Pliers /Safety Glasses / Truckwash - Stores |
|
|
38019 |
19/12/2024 |
Jackson McDonald |
$37,016.10 |
|
|
|
Legal Fees For The City |
|
|
38020 |
19/12/2024 |
Japanese Truck & Bus Spares Pty Ltd |
$158.05 |
|
|
|
Vehicle Spare Parts |
|
|
38021 |
19/12/2024 |
Rates Refund |
$496.36 |
|
38022 |
19/12/2024 |
Jeffery Electronics |
$10,125.50 |
|
|
|
4 GLSAF, 4G Modem Monthly Fees To December |
|
|
38023 |
19/12/2024 |
Jessica Cicchino-Russo |
$329.00 |
|
|
|
Refund - Skin Penetration Application - Not Required |
|
|
38024 |
19/12/2024 |
Jobfit Health Group Pty Ltd |
$1,904.10 |
|
|
|
Pre-Employment Medical Assessments |
|
|
38025 |
19/12/2024 |
Kelyn Training Services |
$4,975.00 |
|
|
|
Install Kerb - Sketch Road |
|
|
38026 |
19/12/2024 |
Kerb Direct Kerbing |
$2,976.32 |
|
|
|
Carry Out Kerbing Repair/Replacement As Directed |
|
|
38027 |
19/12/2024 |
Kerb Direct Kerbing |
$51,674.47 |
|
|
|
Flush Kerb – James Spiers Park, Wanneroo – Footpath Upgrade |
|
|
|
|
Repair Kerbing - Pectoral Promenade |
|
|
|
|
Install Kerb – Wanneroo Shops |
|
|
38028 |
19/12/2024 |
Ketan Jaiswal |
$500.00 |
|
|
|
CCTV Rebate |
|
|
38029 |
19/12/2024 |
Kleenit |
$9,980.55 |
|
|
|
Cleaning Of Wash Bay - Ashby Yard |
|
|
|
|
Clean Area Of Concrete Where Demountable Toilets Were Recently Removed - Halesworth Park |
|
|
|
|
Graffiti Removal - Various Locations |
|
|
|
|
Remove Floor Coating - Ridgewood Park Toilets - Building Maintenance |
|
|
38030 |
19/12/2024 |
Konecranes Pty Ltd |
$1,126.14 |
|
|
|
Complete Routine Maintenance - Fleet |
|
|
38031 |
19/12/2024 |
Konica Minolta Business Solutions Australia Pty Ltd |
$3,342.57 |
|
|
|
Image Charge And Maintenance - Print Room |
|
|
38032 |
19/12/2024 |
Landgate |
$3,745.92 |
|
|
|
Gross Rental Value Chargeable - Rates |
|
|
|
|
Land Enquiries For The City |
|
|
38033 |
19/12/2024 |
Lawn Doctor Turf Solutions |
$64,901.87 |
|
|
|
Turf Works - Various Locations |
|
|
38034 |
19/12/2024 |
Lee Syminton |
$11,289.30 |
|
|
|
Detailed Design & Documentation / Contract Administration Charges - Kingsway Little Athletics Centre |
|
|
38035 |
19/12/2024 |
Les Mills Asia Pacific Industries |
$1,440.21 |
|
|
|
Weight Plates - Aquamotion |
|
|
38036 |
19/12/2024 |
Lessen with Peg – Rethink Waste |
$1,000.00 |
|
|
|
Beeswax Wraps - Two Rocks / Wanneroo Libraries |
|
|
38037 |
19/12/2024 |
Let's All Party |
$1,190.00 |
|
|
|
Pop Corn And Fairy Floss - Aquamotion Movie Night |
|
|
38038 |
19/12/2024 |
Little People Play |
$1,182.50 |
|
|
|
Toddler Zone Soft Play - Alkimos Concert |
|
|
38039 |
19/12/2024 |
Living Turf |
$15,643.65 |
|
|
|
Turf Works - Various Locations |
|
|
38040 |
19/12/2024 |
Llamas Downunder |
$350.00 |
|
|
|
Llama Dharma Storytime - Clarkson Library |
|
|
38041 |
19/12/2024 |
Local Government Professionals Australia WA |
$4,765.00 |
|
|
|
Registration - 2024 Age Friendly Australia National Conference - 1 Attendee |
|
|
|
|
Registration - Ignite Leadership Program - 1 Attendee |
|
|
|
|
Registration - Finance For Non-Financial People - 1 Attendee |
|
|
38042 |
19/12/2024 |
Major Motors |
$1,937.84 |
|
|
|
Vehicle Spare Parts / Services |
|
|
38043 |
19/12/2024 |
Maxxia Pty Ltd |
$8,791.09 |
|
|
|
Payroll Deductions |
|
|
38044 |
19/12/2024 |
Melville Subaru |
$48,408.83 |
|
|
|
New Vehicle Purchase - Forester Hybrid |
|
|
38045 |
19/12/2024 |
MG Motor Wangara Pty Ltd |
$56,213.26 |
|
|
|
New Vehicle Purchase - 2 Excite EVs - Fleet Assets |
|
|
38046 |
19/12/2024 |
Michael Page International (Australia)Pty Ltd |
$6,713.53 |
|
|
|
Casual Labour Charges |
|
|
38047 |
19/12/2024 |
Mindarie Regional Council |
$177,544.92 |
|
|
|
Refuse Disposal Charges |
|
|
38048 |
19/12/2024 |
Mini-Tankers Australia Pty Ltd |
$1,327.70 |
|
|
|
Fuel Issues |
|
|
38049 |
19/12/2024 |
MKDC Design Consultants |
$9,059.60 |
|
|
|
Progress Claim 5 - Planning, Documentation & Budgeting - Additional Ground Floor Work Stations - Civic Centre - Assets |
|
|
|
|
Documentation / Plans For Additional Workstations In Finance Area – Level 1 Extension |
|
|
38050 |
19/12/2024 |
MME Underground Services Pty Ltd |
$9,946.86 |
|
|
|
Location Of Services - Santa Rosalia Vista - Assets |
|
|
38051 |
19/12/2024 |
Morley Mower Centre |
$606.32 |
|
|
|
Small Plant Spare Parts |
|
|
38052 |
19/12/2024 |
Nami Osaki |
$1,800.00 |
|
|
|
2 Furoshiki Workshops - Girrawheen Hub - Providing 20 Furoshiki Sheets For Participants |
|
|
38053 |
19/12/2024 |
Natural Area Consulting Management Services |
$13,514.27 |
|
|
|
Landscape Maintenance - Various Locations |
|
|
38054 |
19/12/2024 |
Nebojsa Javonovic |
$495.00 |
|
|
|
CCTV Rebate |
|
|
38055 |
19/12/2024 |
Nicole Gordon |
$1,552.50 |
|
|
|
Face Painting - Alkimos Concert & Aquamotion |
|
|
38056 |
19/12/2024 |
Office Line |
$3,260.40 |
|
|
|
3 Easy Lift Ergo Cart To Suit Trestle Tables - ICW |
|
|
38057 |
19/12/2024 |
Office Of The Auditor General |
$150,621.90 |
|
|
|
Audit For The Year Ended 30 June 2024 |
|
|
38058 |
19/12/2024 |
Omnicom Media Group Australia Pty Ltd trading as Marketforce |
$6,556.04 |
|
|
|
Advertising Services - Various |
|
|
38059 |
19/12/2024 |
On Tap Services |
$38,728.93 |
|
|
|
Plumbing Maintenance Services - Various Locations |
|
|
|
|
Yearly Gas Hot Water Unit & Furnace Service - 2024 / 2025 |
|
|
38060 |
19/12/2024 |
Orixon Pty Ltd |
$21,277.43 |
|
|
|
Progress Claim 5 - Works At Wanneroo Showgrounds |
|
|
38061 |
19/12/2024 |
Outdoor World |
$2,000.00 |
|
|
|
Refund - Street & Verge Bond |
|
|
38062 |
19/12/2024 |
Paperbark Technologies Pty Ltd |
$19,650.21 |
|
|
|
Arboricultural Works / Reports - Various Locations |
|
|
38063 |
19/12/2024 |
Parker Black & Forrest |
$1,269.18 |
|
|
|
Locking Services - Various Locations |
|
|
38064 |
19/12/2024 |
Patricia Delaney |
$908.00 |
|
|
|
Vehicle Crossing Subsidy |
|
|
38065 |
19/12/2024 |
Cancelled |
|
|
38066 |
19/12/2024 |
Perth Academy of Highland Dance |
$600.00 |
|
|
|
Participation Funding - International Highland Dancing Festival - Gosford NSW 3 Attendees - Community Development |
|
|
38067 |
19/12/2024 |
Perth Heavy Tow |
$385.00 |
|
|
|
Towing Services - Case Bobcat - WN 34822 - Fleet Maintenance |
|
|
38068 |
19/12/2024 |
Perth Materials Blowing Pty Ltd |
$10,912.00 |
|
|
|
Install Mulch - Aquamotion / Friars Drive - Parks |
|
|
|
|
Mulching Works - Lenore Road |
|
|
38069 |
19/12/2024 |
Perth Playground And Rubber |
$1,865.60 |
|
|
|
Repairs To Softfall - Rotary Park / Tamarama Park |
|
|
38070 |
19/12/2024 |
Pineapple Fingers |
$3,883.00 |
|
|
|
Event Videography & Photography - Christmas Fiesta 2024 / Sunset Sounds Alkimos Event |
|
|
38071 |
19/12/2024 |
Place Score Pty Ltd |
$3,616.80 |
|
|
|
Additional Place Score Mailchimp Email Campaign For The 2024 Wanneroo Liveability Survey |
|
|
38072 |
19/12/2024 |
POP! Floral Studio |
$500.00 |
|
|
|
Arrangement - 60th Wedding Anniversary - Lesley And Barry Younger |
|
|
|
|
Arrangement - Bereavement - Shenaede Baron Family |
|
|
|
|
Arrangement - 90th Birthday - Irene Shortland |
|
|
|
|
Wreath - 44th Battalion Memorial Ceremony |
|
|
38073 |
19/12/2024 |
Prestige Alarms |
$7,269.57 |
|
|
|
24hr Monitoring Of Security Alarm Systems |
|
|
|
|
Sim Card Management - November 2024 |
|
|
38074 |
19/12/2024 |
Priority Management Australia Pty Ltd |
$1,859.00 |
|
|
|
Online Training - Working Smart With Microsoft Outlook - 2 Attendees - Community Safety & Emergency Management |
|
|
38075 |
19/12/2024 |
Professional Arts Management |
$1,658.80 |
|
|
|
Ironkleen Bore Stain Remover / Water Tank & Pump (Trailer) & Site Staff |
|
|
38076 |
19/12/2024 |
Promolab |
$2,816.00 |
|
|
|
Bouncy Balls - Wanneroo Festival 2025 |
|
|
38077 |
19/12/2024 |
Pront Tow Towing / Wanneroo Towing Service |
$412.50 |
|
|
|
Transportation Of City Owned Plant Item From Ashby Operations Centre To John Papas Trailers |
|
|
38078 |
19/12/2024 |
Reconciliation Western Australia Inc |
$550.00 |
|
|
|
Street Banners 2025 - Perth Flags - Kings Park Road |
|
|
38079 |
19/12/2024 |
Reliable Fencing WA Pty Ltd |
$6,623.46 |
|
|
|
Fence / Bollard / Gate Works / Repairs - Various Locations |
|
|
38080 |
19/12/2024 |
Residential Building WA Pty Ltd |
$2,000.00 |
|
|
|
Refund - Street & Verge Bond |
|
|
38081 |
19/12/2024 |
RJ Vincent & Co |
$864,529.76 |
|
|
|
Certificate 7 - Lenore Road Duplication - Assets |
|
|
38082 |
19/12/2024 |
RM Surveys |
$26,620.00 |
|
|
|
Digital Ground Survey And Quality Class B Utility Survey - Yanchep Beach Road |
|
|
38083 |
19/12/2024 |
Roads 2000 |
$49,713.24 |
|
|
|
Asphalt Works - Sydney / Ross - Engineering |
|
|
|
|
Concrete Supplies - Assets |
|
|
|
|
Final Claim - Asphalt Works - Sydney Road / Ross Road |
|
|
38084 |
19/12/2024 |
Royal Pride Pty Ltd |
$495.00 |
|
|
|
Group Fitness Microphone Headset - Aquamotion |
|
|
38085 |
19/12/2024 |
Rubek Automatic Doors |
$1,404.70 |
|
|
|
Door Maintenance - Civic Centre / WLCC |
|
|
38086 |
19/12/2024 |
RW Quantity Surveyors |
$1,925.00 |
|
|
|
UAT Upgrades - Carramar And Butler Community Centre |
|
|
|
|
Updated Costs - Kingsway FC Change Rooms |
|
|
38087 |
19/12/2024 |
Cancelled |
|
|
38088 |
19/12/2024 |
Safety World |
$1,973.51 |
|
|
|
Uniform / PPE Issue - Various Employees |
|
|
38089 |
19/12/2024 |
Sanax Medical And First Aid Supplies |
$2,934.40 |
|
|
|
Sunscreen Supplies - Stores |
|
|
38090 |
19/12/2024 |
Sanpoint Pty Ltd ATF the Fiore Family Trust |
$195,929.00 |
|
|
|
Landscape Maintenance Services - Various Locations |
|
|
38091 |
19/12/2024 |
SCA Architecture Studio Pty Ltd |
$1,980.00 |
|
|
|
50% Detailed Design Stage - Wanneroo Showground Female AFI Change Room |
|
|
38092 |
19/12/2024 |
School Sport Western Australia Incorporated |
$1,600.00 |
|
|
|
Participation Funding - Cross Country Championships - 10 Participants - Yarra Glen - 20 - 23.08.2024 |
|
|
38093 |
19/12/2024 |
Scott Print |
$20,243.30 |
|
|
|
Printing - Mayoral Letterheads |
|
|
|
|
Printing - What's Happening Newsletter |
|
|
38094 |
19/12/2024 |
Sharmini Fraser Designs |
$660.00 |
|
|
|
Design Work - Investment Interactive Map |
|
|
38095 |
19/12/2024 |
Sharon Towell |
$500.00 |
|
|
|
CCTV Rebate |
|
|
38096 |
19/12/2024 |
Shred-X |
$420.33 |
|
|
|
Shredding Services |
|
|
38097 |
19/12/2024 |
Smartsalary |
$1,870.27 |
|
|
|
Payroll Deductions |
|
|
38098 |
19/12/2024 |
Soft Landing |
$24,528.90 |
|
|
|
Mattress Collection And Processing - Bulk Services |
|
|
38099 |
19/12/2024 |
SOLO Resource Recovery |
$171,627.77 |
|
|
|
Kerbside Bin Collection & Transport (Organics) |
|
|
38100 |
19/12/2024 |
Specialist Wholesalers Pty Ltd t/as Truckline |
$731.61 |
|
|
|
Vehicle Spare Parts |
|
|
38101 |
19/12/2024 |
Sphere Architects |
$8,553.60 |
|
|
|
Contract Documentation - Montrose Park Change Rooms |
|
|
38102 |
19/12/2024 |
SSB Pty Ltd |
$5,176.18 |
|
|
|
Refund - Building Application - Returned |
|
|
|
|
Refund - Street & Verge Bonds |
|
|
38103 |
19/12/2024 |
St John Ambulance Western Australia Ltd |
$3,079.23 |
|
|
|
Event Health Services - Community Concert - 30.11.2024 |
|
|
|
|
Servicing Of First Aid Kits And Defibrillators |
|
|
|
|
Training - CPR - Additional Course Hours - Wanneroo PFA |
|
|
38104 |
19/12/2024 |
Stephen Grinter |
$234.19 |
|
|
|
Refund - Building Application - Duplicate |
|
|
38105 |
19/12/2024 |
Stewart & Heaton Clothing Company Pty Ltd |
$1,469.43 |
|
|
|
PPE Issue - Fire Services |
|
|
38106 |
19/12/2024 |
Stihl Shop Osborne Park |
$999.50 |
|
|
|
50 Atom Edger Blades - Stores |
|
|
38107 |
19/12/2024 |
Sunsafe Australia Pty Ltd |
$918.45 |
|
|
|
Polo Shirts - Compliance Services |
|
|
38108 |
19/12/2024 |
Superior Nominees Pty Ltd |
$16,982.91 |
|
|
|
Playground Equipment Repairs - Various Locations |
|
|
|
|
Install Drink Fountain - Bellport Park |
|
|
38109 |
19/12/2024 |
Synergy |
$33,529.61 |
|
|
|
Power Supply Charges - Various Locations |
|
|
38110 |
19/12/2024 |
Technology One Limited |
$6,380.00 |
|
|
|
AMS Program 01 - 31.12.2024 |
|
|
38111 |
19/12/2024 |
Techworks Electrical Pty Ltd |
$65,288.23 |
|
|
|
Progress Claim 4 - Renew Electrical Infrastructure - Carramar Golf Course |
|
|
38112 |
19/12/2024 |
Telstra Limited |
$8,501.45 |
|
|
|
Girrawheen Hub Ethernet Service |
|
|
|
|
Mobile Charges For The City |
|
|
38113 |
19/12/2024 |
Teresa Newton |
$800.00 |
|
|
|
MC - Christmas Fiesta - Events |
|
|
38114 |
19/12/2024 |
The Distributors Perth |
$601.05 |
|
|
|
Snacks & Confectionery - Kingsway Stadium |
|
|
38115 |
19/12/2024 |
The Event Mill Pty Ltd |
$7,139.00 |
|
|
|
Turf & Bean Bag Hire - Christmas Fiesta - Events |
|
|
38116 |
19/12/2024 |
The Institute of Internal Auditors – Australia |
$2,010.00 |
|
|
|
Training - Grad Cert II Module 4 - 1 Attendee |
|
|
38117 |
19/12/2024 |
The Marketing Room |
$3,965.50 |
|
|
|
Provision Of Social Media Manager - Tourism Business Support |
|
|
|
|
Social Media Management - Discover Wanneroo |
|
|
38118 |
19/12/2024 |
The Royal Life Saving Society Australia |
$479.60 |
|
|
|
Water Feature Reactive Maintenance - Kingsway Splashpad |
|
|
38119 |
19/12/2024 |
The Trustee for the BRT Family Trust |
$636.90 |
|
|
|
Managed Hosting (Yearly) - Discover Wanneroo Website |
|
|
38120 |
19/12/2024 |
The Trustee for The Curry Family Trust t/a Elevate Survey Supplies |
$191.18 |
|
|
|
Marker Pens - Surveys |
|
|
38121 |
19/12/2024 |
Thyssen Elevator Australia Pty Ltd |
$9,521.60 |
|
|
|
Lift Works - Various Locations |
|
|
38122 |
19/12/2024 |
Toolmart |
$298.00 |
|
|
|
Impact Wrench - Fleet |
|
|
38123 |
19/12/2024 |
Top Of The Ladder Gutter Cleaning |
$26,727.25 |
|
|
|
Gutter & Downpipe Cleaning - Various Locations |
|
|
38124 |
19/12/2024 |
Toro Australia Group Sales Pty Ltd |
$1,025.19 |
|
|
|
Vehicle Spare Parts |
|
|
38125 |
19/12/2024 |
Totally Workwear Joondalup & Butler |
$382.80 |
|
|
|
Uniform Issue - 1 Employee |
|
|
38126 |
19/12/2024 |
TQuip |
$963.80 |
|
|
|
Small Plant Spare Parts |
|
|
38127 |
19/12/2024 |
Tree Planting & Watering |
$170,214.36 |
|
|
|
Tree Watering - November 2024 |
|
|
38128 |
19/12/2024 |
Triton Electrical Contractors Pty Ltd |
$35,355.59 |
|
|
|
Irrigation Electrical Works - Various Locations |
|
|
38129 |
19/12/2024 |
Trophy Shop Australia |
$194.65 |
|
|
|
Glass Arrow Award - Cadet Participation Award - Emergency Services |
|
|
|
|
Name Badges - Various Employees |
|
|
38130 |
19/12/2024 |
Urban Development Institute of Australia WA Division Incorporated |
$2,500.00 |
|
|
|
Registration - UDIA WA 2025 State Conference - Busselton - 1 Attendee |
|
|
38131 |
19/12/2024 |
Cancelled |
|
|
38132 |
19/12/2024 |
WA Fibreglass Pools |
$220.00 |
|
|
|
Refund - Building Applications - Not Approved Within Statutory Time Frame |
|
|
38133 |
19/12/2024 |
WA Limestone Company |
$9,369.03 |
|
|
|
Limestone Supplies - Various Locations |
|
|
38134 |
19/12/2024 |
Wanneroo Botanic Gardens |
$5,500.00 |
|
|
|
Sponsorship - Magic Of Christmas |
|
|
38135 |
19/12/2024 |
Wanneroo Central Bushfire Brigade |
$63.98 |
|
|
|
Reimbursement - Air Filters |
|
|
38136 |
19/12/2024 |
Wanneroo Civic Choir |
$200.00 |
|
|
|
Carols Performance - Wanneroo Library |
|
|
38137 |
19/12/2024 |
Wanneroo Electric |
$62,526.50 |
|
|
|
Electrical Maintenance Works - Various Locations |
|
|
38138 |
19/12/2024 |
Wanneroo Patios |
$110.00 |
|
|
|
Refund - Building Application - Not Approved Within Statutory Time Frame |
|
|
38139 |
19/12/2024 |
Water Corporation |
$7,143.88 |
|
|
|
Water Supply Charges - Various Locations |
|
|
38140 |
19/12/2024 |
Water Corporation |
$8,140.11 |
|
|
|
Water Supply Charges - Various Locations |
|
|
38141 |
19/12/2024 |
Water Features By Design |
$15,439.50 |
|
|
|
Provision Of Design, Supply And Installation Of Aquamotion Splashpad Renewal — Work Completed |
|
|
38142 |
19/12/2024 |
Cancelled |
|
|
38143 |
19/12/2024 |
West Coast Turf |
$27,201.11 |
|
|
|
Turfing Works - Various Locations |
|
|
38144 |
19/12/2024 |
West-Sure Group Pty Ltd |
$368.98 |
|
|
|
Cash Collection Services |
|
|
38145 |
19/12/2024 |
Western Australian Local Government Association |
$16.50 |
|
|
|
Training - CEO Performance Review - Cr Herridge And Cr Rowe (Payment Includes 2 Credit Notes For Previous Invoices) |
|
|
38146 |
19/12/2024 |
Western Irrigation Pty Ltd |
$67,062.64 |
|
|
|
Irrigation Parts - Parks |
|
|
38147 |
19/12/2024 |
Western Irrigation Pty Ltd |
$1,362.90 |
|
|
|
Irrigation Parts - Parks |
|
|
38148 |
19/12/2024 |
Western Irrigation Pty Ltd |
$8,434.00 |
|
|
|
Irrigation Parts - Parks |
|
|
38149 |
19/12/2024 |
Work Clobber |
$2,321.84 |
|
|
|
Uniform / PPE Issue - Various Employees |
|
|
38150 |
19/12/2024 |
Workpower Incorporated |
$10,473.22 |
|
|
|
Landscape Maintenance Works - Various Locations |
|
|
38151 |
19/12/2024 |
Wrenoil |
$231.00 |
|
|
|
Oil Waste Disposal - Waste Services |
|
|
38152 |
19/12/2024 |
WSP Australia Pty Ltd |
$15,785.00 |
|
|
|
Environmental Consultancy Services - SAQP - 70 Motivation Dr Wangara |
|
|
38153 |
19/12/2024 |
Yvonne Sanyangore |
$500.00 |
|
|
|
CCTV Rebate |
|
|
38154 |
19/12/2024 |
Zetta Pty Ltd |
$34,701.69 |
|
|
|
DRAAS Managed Services - ICT |
|
|
|
|
|
|
|
|
|
Total EFT Payments |
$24,270,554.36 |
|
|
|
|
|
|
CREDIT CARD RECONCILIATIONS |
|||
|
75 |
2/12/2024 |
CBA Corporate Card |
$13,672.24 |
|
|
Vicki Coles |
|
|
|
75-01 |
|
04/10/2024 - Sp166 Railway Parade - Parking Fees - Training W |
13.00 |
|
75-02 |
|
17/10/2024 - Wanneroo Central News - Leaving Card |
14.99 |
|
75-03 |
|
18/10/2024 - CPP Terrace Road - Parking Fees - External Lawyer Meeting |
15.14 |
|
|
|
|
|
|
|
|
Kirstie Davis |
|
|
75-04 |
|
2708/2024 - Company Director - Generative AI Webinar |
$69.00 |
|
75-05 |
|
03/09/2024 - Accor*Breakfree Grand - Swim24 Conference - 1 Attendee |
$967.00 |
|
75-06 |
|
13/09/2024 - Local Government Mana - Local Government Professionals Event |
$165.00 |
|
75-07 |
|
16/09/2024 - Work Clobber - Safety Boots - Emergency Services |
$228.40 |
|
75-08 |
|
16/09/2024 - Company Director - Perth Directors Briefing |
$90.00 |
|
75-09 |
|
18/09/2024 - WALGA Events - Convention Registration |
$676.00 |
|
75-10 |
|
19/09/2024 - Coles Online - Community And Place Consumables - October 2024 |
$293.90 |
|
75-11 |
|
02/10/2024 - Local Governement Mana - LGPA - Annual State Conference - 1 Attendee |
$1,285.00 |
|
75-12 |
|
11/10/2024 - Local Governement Mana - LGPA - Annual State Conference - 1 Attendee |
$2,140.00 |
|
|
|
|
|
|
|
|
Mark Dickson |
|
|
75-13 |
|
07/10/2024 - Planning Institute Of - Awards For Planning Excellence Gala Dinner - 8 Attendees |
$1,800.00 |
|
|
|
|
|
|
|
|
Noelene Jennings |
|
|
75-14 |
|
04/10/2024 - Local Governement Mana - Local Professionals Australia WA - Annual State Conference 2024 - 1 Attendee |
$1,090.00 |
|
75-15 |
|
04/10/2024 - Local Governement Mana - Local Professionals Australia WA - Annual State Conference 2024 - 1 Attendee |
$1,090.00 |
|
75-16 |
|
07/10/2024 - Intuit Mailchimp - Monthly Mailchimp For Wanneroo Wrap |
$19.26 |
|
75-17 |
|
18/10/2024 - Mastercard - Intnl Transaction Fee For Subscription |
$5.40 |
|
75-18 |
|
18/10/2024 - Mentimeter Basic - Subscription - Mentimeter Software |
$216.13 |
|
75-19 |
|
22/10/2024 - Dome Wanneroo Central - Refreshments - Meeting With External Consultant |
$4.90 |
|
75-20 |
|
22/10/2024 - Dome Wanneroo Central - Refreshments - Meeting With External Consultant |
$16.20 |
|
75-21 |
|
24/10/2024 - Local Governement Mana - Local Government Professionals Annual State Conference 2024 |
$1,030.00 |
|
75-22 |
|
25/10/2024 - World Business Forum - Accommodation - Conference In Sydney |
$1,435.50 |
|
|
|
|
|
|
|
|
Bill Parker |
|
|
75-23 |
|
30/09/2024 - Sq *Gunawardena Family - Coffee - Mayor And CEO Prior To Meeting With Department Of Health |
$9.60 |
|
|
|
|
|
|
|
|
Harminder Singh |
|
|
75-24 |
|
11/09/2024 - Western Power - Asset Relocation - Pinjar Road |
$498.91 |
|
75-25 |
|
11/09/2024 - Western Power - Asset Relocation, Brazier Road Project - Yanchep |
$498.91 |
|
|
|
|
|
|
|
|
Total - CBA |
$13,672.24 |
|
|
|
|
|
|
76 |
2/12/2024 |
NAB Corporate Card |
|
|
|
|
Advocacy & Economic Development |
|
|
76-01 |
|
27/09/2024 - Officeworks - Discover Wanneroo - Hard Drive For Image/Video Content |
$184.00 |
|
76-02 |
|
11/10/2024 - Do Gooder Subscription - Advocacy Campaign |
$266.81 |
|
76-03 |
|
14/10/2024 - Facebk *A8Fv7D8Gj2 - Business Wanneroo - Social Media Campaign To Promote Business Awards Applications |
$77.00 |
|
76-04 |
|
20/10/2024 - Facebk* - Business Wanneroo - Social Media Campaign To Promote Business Awards Applications |
$8.67 |
|
76-05 |
|
20/10/2024 - Qrstuff - Annual Subscription |
$188.77 |
|
76-06 |
|
23/10/2024 - Arts And Culture Trust - Heritage Tourism Workshop - Caroline Buck |
$75.95 |
|
76-07 |
|
25/10/2024 - Localis.Co - Localis Membership October 2024 |
$163.90 |
|
76-08 |
|
29/10/2024 - Annual Fee - Credit Card Fee - Paid Monthly |
$5.00 |
|
|
|
|
|
|
|
|
Building Maintenance |
|
|
76-09 |
|
03/10/2024 - Bunnings - Alum Angle / Screws - Maintenance Community Buildings |
$38.20 |
|
76-10 |
|
04/10/2024 - Bunnings - Plywood - Maintenance Community Buildings |
$105.18 |
|
76-11 |
|
04/10/2024 - Bunnings - Screws - Maintenance Community Buildings |
$16.79 |
|
76-12 |
|
10/10/2024 - Bunnings - Toolbox / Traps - Maintenance Community Buildings |
$63.42 |
|
76-13 |
|
14/10/2024 - Fielders - Custom Flashing - Maintenance Community Buildings |
$1,295.09 |
|
76-14 |
|
16/10/2024 - Bunnings - Gap Filler / Sleeper Pine / Fastener Drive - Maintenance Community Buildings |
$173.61 |
|
76-15 |
|
24/10/2024 - Barnetts Archite H - Door Furniture - Maintenance Community Buildings |
$85.92 |
|
76-16 |
|
24/10/2024 - Bunnings - Grout / Adhesive Trowel / Tile Wall Cream / Melamine - Maintenance Community Buildings |
$242.93 |
|
76-17 |
|
29/10/2024 - Annual Fee - Credit Card Fee - Paid Monthly |
$5.00 |
|
76-18 |
|
29/10/2024 - Annual Fee - Credit Card Fee - Paid Monthly |
$5.00 |
|
76-19 |
|
29/10/2024 - Annual Fee - Credit Card Fee - Paid Monthly |
$5.00 |
|
76-20 |
|
01/10/2024 - Bunnings - Paint Brushes / Discs / Sandpaper - Maintenance Corporate Buildings |
$88.84 |
|
76-21 |
|
02/10/2024 - Bunnings - Rubbish Bins - Paint Brushes / Discs / Sandpaper - Maintenance Community Buildings |
$41.30 |
|
76-22 |
|
09/10/2024 - Bunnings - Credit For Toilet Seat - Maintenance Community Buildings |
-$28.48 |
|
76-23 |
|
09/10/2024 - Bunnings - Toilet Seat - Maintenance Community Buildings |
$28.48 |
|
76-24 |
|
14/10/2024 - Bunnings - Saw Blades - Maintenance Corporate Buildings |
$89.76 |
|
76-25 |
|
17/10/2024 - Bunnings - Screws / Fastener Drive - Maintenance Community Buildings |
$45.22 |
|
76-26 |
|
22/10/2024 - Carbide Tool Industries P - Saw Sharpening - Maintenance - Equipment |
$145.86 |
|
76-27 |
|
24/10/2024 - Carbide Tool Industries P - Saw Sharpening - Maintenance - Tools |
$34.53 |
|
76-28 |
|
28/10/2024 - Bunnings - Hinges / Bolts & Nuts - Maintenance Community Buildings |
$59.56 |
|
76-29 |
|
29/10/2024 - Annual Fee - Credit Card Fee - Paid Monthly |
$5.00 |
|
76-30 |
|
09/10/2024 - Bunnings - Wire Cutter / Copper Swages / Hooks / D Shackles - Maintenance Community Buildings |
$151.26 |
|
76-31 |
|
22/10/2024 - The Good Guys - Hair Dryer - Maintenance Community Buildings |
$49.00 |
|
76-32 |
|
24/10/2024 - Bunnings - Rubbish Bins - Maintenance Community Buildings |
$26.65 |
|
76-33 |
|
29/10/2024 - Annual Fee - Credit Card Fee - Paid Monthly |
$5.00 |
|
76-34 |
|
29/10/2024 - Barnetts Archite H - Door Furniture - Maintenance Community Buildings |
$230.48 |
|
76-35 |
|
29/10/2024 - Barnetts Archite H - Door Furniture - Maintenance Community Buildings |
$1,248.98 |
|
76-36 |
|
14/10/2024 - Bunnings - Paint / Rollers / Tape - Maintenance Community Buildings |
$154.79 |
|
76-37 |
|
15/10/2024 - Bunnings - Sponges / Wipes / Polish - Maintenance Community Buildings |
$44.00 |
|
76-38 |
|
22/10/2024 - Bunnings - Paint / Masking Tape - Maintenance Community Buildings |
$83.23 |
|
76-39 |
|
24/10/2024 - Valspar Mindarie - Paint - Maintenance Community Buildings |
$187.80 |
|
76-40 |
|
28/10/2024 - Bunnings - Paint Brush / Masking Tape - Maintenance Community Buildings |
$49.71 |
|
76-41 |
|
29/10/2024 - Annual Fee - Credit Card Fee - Paid Monthly |
$5.00 |
|
76-42 |
|
29/10/2024 - Valspar Mindarie - Paint - Maintenance Community Buildings |
$187.80 |
|
76-43 |
|
16/10/2024 - Jaycar Clarkson - USB Plug - Maintenance Equipment |
$28.95 |
|
76-44 |
|
29/10/2024 - Annual Fee - Credit Card Fee - Paid Monthly |
$5.00 |
|
76-45 |
|
25/09/2024 - Bunnings - Paver / Handrail Bracket - Maintenance Community Buildings |
$31.14 |
|
76-46 |
|
25/09/2024 - Bunnings - Flexovit Cut Off Wheel - Maintenance Community Buildings |
$25.44 |
|
76-47 |
|
25/09/2024 - Bunnings - Buckets / Paint Mixer - Maintenance Community Buildings |
$13.63 |
|
76-48 |
|
27/09/2024 - Bunnings - Plug Ramset / Drill Bits - Maintenance Community Buildings |
$32.14 |
|
76-49 |
|
02/10/2024 - Bunnings - Toilet Seat - Maintenance Community Buildings |
$23.87 |
|
76-50 |
|
02/10/2024 - Productive Plastics - Diffuser - Maintenance Community Buildings |
$88.00 |
|
76-51 |
|
08/10/2024 - Bunnings - Shade Sail Accessory - Maintenance Community Buildings |
$14.24 |
|
76-52 |
|
08/10/2024 - Bunnings - Eye Strap / Wall Plugs - Maintenance Community Buildings |
$22.27 |
|
76-53 |
|
11/10/2024 - Bunnings - Plywood - Maintenance Community Buildings |
$39.33 |
|
76-54 |
|
16/10/2024 - Bunnings - Lubricant - Maintenance Community Buildings |
$9.13 |
|
76-55 |
|
17/10/2024 - Bunnings - Makita Drill Combo - Maintenance |
$437.78 |
|
76-56 |
|
21/10/2024 - Bunnings - Liquid Nails - Maintenance Community Buildings |
$18.09 |
|
76-57 |
|
22/10/2024 - Bunnings - Silicone / Solvent / Leaf Basket / PVC - Maintenance Community Buildings |
$42.96 |
|
76-58 |
|
23/10/2024 - Bunnings - PVC / Insect Screen / Roller - Maintenance Community Buildings |
$88.11 |
|
76-59 |
|
24/10/2024 - Bunnings - Safety Tape - Maintenance Community Buildings |
$9.17 |
|
76-60 |
|
29/10/2024 - Annual Fee - Credit Card Fee - Paid Monthly |
$5.00 |
|
76-61 |
|
02/10/2024 - Bunnings - Paint - Graffiti Removal - Maintenance Community Buildings |
$179.27 |
|
76-62 |
|
10/10/2024 - Bunnings - Paint / Rollers - Graffiti Removal - Maintenance Community Buildings |
$105.15 |
|
76-63 |
|
24/10/2024 - Batteryworldjoondalup - 12V Bolt Battery - Replacement - Maintenance Trailer |
$199.00 |
|
76-64 |
|
29/10/2024 - Annual Fee - Credit Card Fee - Paid Monthly |
$5.00 |
|
76-65 |
|
16/10/2024 - Valspar Joondalup - Paint / Poly Fill / Tools - Maintenance Community Buildings |
$279.99 |
|
76-66 |
|
28/10/2024 - Valspar Joondalup - Paint - Maintenance Community Buildings |
$185.82 |
|
76-67 |
|
29/10/2024 - Annual Fee - Credit Card Fee - Paid Monthly |
$5.00 |
|
76-68 |
|
25/09/2024 - Bunnings - Angle Alum RCR / Galabond Sheet - Maintenance Community Centre |
$54.87 |
|
76-69 |
|
27/09/2024 - Bunnings - Locks / Nuts & Bolts - Maintenance Community Centre |
$37.70 |
|
76-70 |
|
27/09/2024 - Bunnings - Silicone / Pipe PVC - Maintenance Community Centre |
$52.99 |
|
76-71 |
|
30/09/2024 - Bunnings - Jigsaw Blades - Maintenance Community Centre |
$37.86 |
|
76-72 |
|
07/10/2024 - Bunnings - Lock / Rivets / Screws / Liquid Nails - Maintenance Community Buildings |
$90.96 |
|
76-73 |
|
08/10/2024 - Bunnings - Paint Brushes - Maintenance Community Buildings |
$793.36 |
|
76-74 |
|
09/10/2024 - Bunnings - Toilet Seats / Lubricant / Sandpaper - Maintenance Community Buildings |
$54.01 |
|
76-75 |
|
14/10/2024 - Westgyp - Tiles - Maintenance Community Buildings |
$117.70 |
|
76-76 |
|
15/10/2024 - Bunnings - Drawer Lock - Maintenance Community Buildings |
$42.67 |
|
76-77 |
|
22/10/2024 - Bunnings - Padbolt - Maintenance Community Buildings |
$9.70 |
|
76-78 |
|
22/10/2024 - Bunnings - Bolts & Nuts / Drill Bits / Disc Cutter - Maintenance Community Buildings |
$61.01 |
|
76-79 |
|
29/10/2024 - Annual Fee - Credit Card Fee - Paid Monthly |
$5.00 |
|
76-80 |
|
23/10/2024 - Workspace Commercial - 18 Vesa Plates - Maintenance Corporate Buildings |
$451.74 |
|
76-81 |
|
29/10/2024 - Annual Fee - Credit Card Fee - Paid Monthly |
$5.00 |
|
76-82 |
|
25/09/2024 - Bunnings - Mouldings / Screws - Maintenance Corporate Buildings |
$38.93 |
|
76-83 |
|
27/09/2024 - Bunnings - MDF - Maintenance Corporate Buildings |
$21.00 |
|
76-84 |
|
27/09/2024 - Bunnings - Screws - Maintenance Corporate Buildings |
$19.60 |
|
76-85 |
|
30/09/2024 - Bunnings - Poly Filler - Maintenance Community Buildings |
$31.75 |
|
76-86 |
|
30/09/2024 - Bunnings - Indicator Bolt - Maintenance Community Buildings |
$50.76 |
|
76-87 |
|
01/10/2024 - Bunnings - Brush & Dustpan / Handle / Rubbish Bags - Maintenance Corporate Buildings |
$24.26 |
|
76-88 |
|
01/10/2024 - Officeworks - Degree Station / Energ Recharge - Maintenance Corporate Buildings |
$77.29 |
|
76-89 |
|
02/10/2024 - Bunnings - Alcohol Cleaner / Poly Filler - Maintenance Corporate Buildings |
$27.39 |
|
76-90 |
|
02/10/2024 - Officeworks - Degree Station Clock / Degree Subway Clock - Maintenance Corporate Buildings |
$55.18 |
|
76-91 |
|
03/10/2024 - Bunnings - Bolts & Nuts / Drill Bits / Washers - Maintenance Community Buildings |
$77.88 |
|
76-92 |
|
03/10/2024 - Bunnings - Chisel Set / Liquid Nails / Tool Sidcrome - Maintenance Corporate Buildings |
$112.22 |
|
76-93 |
|
07/10/2024 - Bunnings - Angle Aluminium - Maintenance Corporate Buildings |
$18.61 |
|
76-94 |
|
07/10/2024 - Commercial Stationer - Wall Ash Tray - Maintenance Corporate Buildings |
$194.52 |
|
76-95 |
|
08/10/2024 - Barnetts Archite H - Door Furniture - Maintenance Corporate Buildings |
$164.35 |
|
76-96 |
|
08/10/2024 - Bunnings - Multi Purpose Cleaner - Maintenance Corporate Buildings |
$18.39 |
|
76-97 |
|
09/10/2024 - Csr Building Product - Gyprock - Maintenance Corporate Buildings |
$148.80 |
|
76-98 |
|
10/10/2024 - Bunnings Ellenbro - Goliath Handle - Maintenance Corporate Buildings |
$44.72 |
|
76-99 |
|
11/10/2024 - Bunnings - Dolly Trolley - Maintenance Corporate Buildings |
$89.96 |
|
76-100 |
|
14/10/2024 - Bunnings - Door Closer - Maintenance Corporate Buildings |
$29.14 |
|
76-101 |
|
14/10/2024 - Bunnings - Cup Hooks / Copper Swage - Maintenance Corporate Buildings |
$113.13 |
|
76-102 |
|
15/10/2024 - Bunnings - Drill Bits / Key Rings/ Copper Swage - Maintenance Corporate Buildings |
$66.47 |
|
76-103 |
|
15/10/2024 - Officeworks - Sign Holders / Clips - Maintenance Corporate Buildings |
$32.30 |
|
76-104 |
|
21/10/2024 - Bunnings - Belt Pack - Maintenance Corporate Buildings |
$13.99 |
|
76-105 |
|
21/10/2024 - Officeworks - Sign Clips - Maintenance Corporate Buildings |
$29.00 |
|
76-106 |
|
21/10/2024 - Officeworks - Sign Clips - Maintenance Corporate Buildings |
$15.00 |
|
76-107 |
|
22/10/2024 - Bunnings - Adhesive Numbers - Maintenance Community Buildings |
$58.65 |
|
76-108 |
|
22/10/2024 - Bunnings - PVA Adhesive / Masking Tape - Maintenance Corporate Buildings |
$36.79 |
|
76-109 |
|
22/10/2024 - Bunnings - Adhesive Numbers - Maintenance Community Buildings |
$12.75 |
|
76-110 |
|
23/10/2024 - Bunnings - Screws - Maintenance Corporate Buildings |
$11.72 |
|
76-111 |
|
24/10/2024 - Barnetts Archite H - Door Furniture - Maintenance Community Buildings |
$143.42 |
|
76-112 |
|
24/10/2024 - Bunnings - Sanding Belt - Maintenance Corporate Buildings |
$17.48 |
|
76-113 |
|
29/10/2024 - Annual Fee - Credit Card Fee - Paid Monthly |
$5.00 |
|
76-114 |
|
30/10/2024 - Stratco Malaga - Flashing - Maintenance Corporate Buildings |
$1,995.90 |
|
|
|
|
|
|
|
|
Chief Bush Fire Control Officer |
|
|
76-115 |
|
04/10/2024 - Coles - Food - Crew Leaders Training |
$114.00 |
|
76-116 |
|
04/10/2024 - Officeworks - Catering Items - Crew Training |
$32.09 |
|
76-117 |
|
04/10/2024 - Super Cheap Auto - 2 Max Trax Recovery Tracks |
$499.98 |
|
76-118 |
|
05/10/2024 - Subway Wanneroo - Catering - Advanced FF Course |
$153.08 |
|
76-119 |
|
11/10/2024 - Kinross Supa Iga - DFES Training Catering |
$61.58 |
|
76-120 |
|
11/10/2024 - Subway Clarkson - Crew Training - Catering |
$206.32 |
|
76-121 |
|
11/10/2024 - Super Cheap Auto - Batteries - Various Sizes |
$54.65 |
|
76-122 |
|
11/10/2024 - Super Cheap Auto - Cleaning Consumables And Sundries |
$198.96 |
|
76-123 |
|
14/10/2024 - BigW - 6 2025 UBD Books |
$210.00 |
|
76-124 |
|
29/10/2024 - Annual Fee - Credit Card Fee - Paid Monthly |
$5.00 |
|
|
|
|
|
|
|
|
Coastal Maintenance |
|
|
76-125 |
|
09/10/2024 - Officeworks - Card Reader - Coastal Monitoring Cameras |
$39.00 |
|
76-126 |
|
09/10/2024 - Bunnings - Materials For Testing Of Sand - Beach Renourishment |
$58.86 |
|
76-127 |
|
25/10/2024 - Bunnings - Batteries - Coastal Monitoring Cameras |
$140.00 |
|
76-128 |
|
25/10/2024 - Bunnings - Silicon - Coastal Monitoring Cameras |
$15.91 |
|
76-129 |
|
25/10/2024 - Enduroby Pty Ltd - Solar Panels - Coastal Monitoring Cameras |
$356.30 |
|
76-130 |
|
29/10/2024 - Annual Fee - Credit Card Fee - Paid Monthly |
$5.00 |
|
|
|
|
|
|
|
|
Community & Place - Events |
|
|
76-131 |
|
04/10/2024 - Alkimos IGA - Flowers And Event Materials - Carco Event |
$128.00 |
|
76-132 |
|
11/10/2024 - Point Parking Pty Ltd - Parking Fees - Citizenship Training |
$7.00 |
|
76-133 |
|
20/10/2024 - Spud Shed - General Event Materials |
$241.81 |
|
76-134 |
|
20/10/2024 - The Reject Shop Clar - General Event Materials |
$20.00 |
|
76-135 |
|
21/10/2024 - Woolworths - Catering - Event |
$20.00 |
|
76-136 |
|
21/10/2024 - Coles - Catering For Event |
$87.70 |
|
76-137 |
|
21/10/2024 - Coles - Catering For Event |
$694.50 |
|
76-138 |
|
21/10/2024 - Coles - Catering For Event |
$22.25 |
|
76-139 |
|
21/10/2024 - BWS - Catering For Event |
$24.00 |
|
76-140 |
|
21/10/2024 - Coles - Catering For Event |
$106.00 |
|
76-141 |
|
21/10/2024 - Smp*Wanneroo Fresh - Catering For Events |
$16.78 |
|
76-142 |
|
17/10/2024 - Officeworks - Certificate Frames - Student Citizenship Awards |
$96.00 |
|
76-143 |
|
20/10/2024 - House In Ocean Keys - General Event Materials |
$203.93 |
|
76-144 |
|
20/10/2024 - Woolworths - Catering For Event |
$293.09 |
|
76-145 |
|
20/10/2024 - Coles - Catering For Event |
$185.20 |
|
76-146 |
|
21/10/2024 - Aldi Stores - Jandakot - General Event Materials |
$11.04 |
|
76-147 |
|
25/10/2024 - Canva* I04315-13568950 - Subscription |
$20.00 |
|
76-148 |
|
29/10/2024 - Annual Fee - Credit Card Fee - Paid Monthly |
$5.00 |
|
76-149 |
|
04/10/2024 - Kmart - Event Materials |
$24.00 |
|
76-150 |
|
21/10/2024 - Barbaro Bros Butcher - Catering - Event |
$599.96 |
|
76-151 |
|
21/10/2024 - Barbaro Bros Butcher - Catering - Event |
$600.00 |
|
76-152 |
|
22/10/2024 - Bunnings Group Ltd - Event Materials |
$226.30 |
|
76-153 |
|
22/10/2024 - Mandurah Pa Hire - Cinema Package - Aquamotion Movie Night |
$1,014.58 |
|
76-154 |
|
25/10/2024 - Kennards Hire Ho WA - Event Materials - Banksia Grove Fun Fest |
$204.00 |
|
76-155 |
|
26/10/2024 - United Petroleum Pty - Event Materials - Banksia Grove Fun Fest |
$41.60 |
|
76-156 |
|
28/10/2024 - Sp JB Hi-Fi Online - Event Materials - Aquamotion Movie Night |
$20.27 |
|
76-157 |
|
29/10/2024 - Annual Fee - Credit Card Fee - Paid Monthly |
$5.00 |
|
|
|
|
|
|
|
|
Community & Place - Place Management |
|
|
76-158 |
|
22/10/2024 - CPP Cultural Centre - Parking Fee Expenses - Yanchep Lagoon Government Agency Workshop |
$18.17 |
|
76-159 |
|
29/10/2024 - Annual Fee - Credit Card Fee - Paid Monthly |
$5.00 |
|
|
|
|
|
|
|
|
Community Development |
|
|
76-160 |
|
03/10/2024 - Taxibox Group Pty Ltd - Onsite Storage Service Reservation Fee |
$398.00 |
|
76-161 |
|
14/10/2024 - Nth Metropolitan Tafe - Training - Community Development Project Management Skill Set - 1 Attendee |
$121.50 |
|
76-162 |
|
23/10/2024 - Local Governement Mana - Live Streaming Registration - LG Professionals - Best Practice Showcase Event |
$60.00 |
|
76-163 |
|
29/10/2024 - Annual Fee - Credit Card Fee - Paid Monthly |
$5.00 |
|
|
|
|
|
|
|
|
Community History |
|
|
76-164 |
|
11/10/2024 - Dymocks Online - Book Acquisition - Community History Centre |
$59.98 |
|
76-165 |
|
17/10/2024 - Australian Society Of - Australian Society Of Archivists Annual Conference Fee - Virtual Registration |
$505.00 |
|
76-166 |
|
29/10/2024 - Annual Fee - Credit Card Fee - Paid Monthly |
$5.00 |
|
|
|
|
|
|
|
|
Community Safety & Emergency Management |
|
|
76-167 |
|
04/10/2024 - Ward Packaging - Paper Carry Bags - Brochures At Wanneroo Show |
$67.38 |
|
76-168 |
|
09/10/2024 - Officeworks - Samsung Smart Tag |
$49.00 |
|
76-169 |
|
19/10/2024 - Bunnings - Bifold Tables - Emergency Preparedness Events |
$134.00 |
|
76-170 |
|
29/10/2024 - Annual Fee - Credit Card Fee - Paid Monthly |
$5.00 |
|
76-171 |
|
26/10/2024 - Reconyx - Covert Sim |
$15.26 |
|
76-172 |
|
28/10/2024 - Casa Levy - Casa Fee - Drone |
$40.00 |
|
76-173 |
|
28/10/2024 - Casa Levy - Casa Fee - Drone |
$40.00 |
|
76-174 |
|
28/10/2024 - Casa Levy - Casa Fee - Drone |
$40.00 |
|
76-175 |
|
29/10/2024 - Annual Fee - Credit Card Fee - Paid Monthly |
$5.00 |
|
|
|
|
|
|
|
|
Construction Team |
|
|
76-176 |
|
15/10/2024 - Bunnings - Cargo Net |
$84.98 |
|
76-177 |
|
23/10/2024 - Bunnings - Cargo Net - Small Tray On 95262 |
$65.00 |
|
76-178 |
|
23/10/2024 - Bunnings - Reciprocating Saw Blades - Pruning Trees |
$33.90 |
|
76-179 |
|
24/10/2024 - Bunnings - 15A Extension Lead Replacing Old One |
$34.56 |
|
76-180 |
|
29/10/2024 - Annual Fee - Credit Card Fee - Paid Monthly |
$5.00 |
|
|
|
|
|
|
|
|
Council & Corporate Support - Hospitality |
|
|
76-181 |
|
01/10/2024 - Coles - In House Hospitality Requests - Childhood & Youth Services Team Meeting And Wanneroo Library Valuable Reward |
$138.75 |
|
76-182 |
|
01/10/2024 - Smp*Wanneroo Fresh - In House Hospitality Requests - Childhood & Youth Services Team Meeting And Wanneroo Library Valuable Reward |
$38.32 |
|
76-183 |
|
21/10/2024 - Coles - In House Hospitality Requests - Forum, Valuable Reward Morning Tea, Corporate Induction, Design Review Panel Meeting And ELM |
$80.43 |
|
76-184 |
|
21/10/2024 - Smp*Wanneroo Fresh - In House Hospitality Requests - Forum, Valuable Reward Morning Tea, Corporate Induction, Design Review Panel Meeting And ELM |
$38.11 |
|
76-185 |
|
22/10/2024 - Coles - In House Hospitality Requests - Forum, Valuable Reward Morning Tea, Corporate Induction, Design Review Panel Meeting And ELM |
$58.34 |
|
76-186 |
|
08/10/2024 - Coles - In House Hospitality Requests - Council Meeting - Supper Platter |
$30.01 |
|
76-187 |
|
22/10/2024 - Basils Fine Foods - In House Hospitality Requests Forum 22 Oct 2024. |
$97.01 |
|
76-188 |
|
22/10/2024 - Basils Fine Foods - In House Hospitality Requests - Forum |
$310.00 |
|
76-189 |
|
22/10/2024 - Smp*Wanneroo Fresh - In House Hospitality Requests - Forum, Valuable Reward Morning Tea, Corporate Induction, Design Review Panel Meeting And ELM |
$30.19 |
|
76-190 |
|
23/10/2024 - Coles - In House Hospitality Requests - Forum, Valuable Reward Morning Tea, Corporate Induction, Design Review Panel Meeting And ELM |
$38.05 |
|
76-191 |
|
23/10/2024 - Smp*Wanneroo Fresh - In House Hospitality Requests - Forum, Valuable Reward Morning Tea, Corporate Induction, Design Review Panel Meeting And ELM |
$17.86 |
|
76-192 |
|
24/10/2024 - Subway Wanneroo - In House Hospitality Requests - ELM |
$61.30 |
|
76-193 |
|
29/10/2024 - Annual Fee - Credit Card Fee - Paid Monthly |
$5.00 |
|
76-194 |
|
07/10/2024 - Coles - Purchases - The Dining Room |
$10.15 |
|
76-195 |
|
09/10/2024 - Smp*Wanneroo Fresh - Purchases - Valuable Reward Morning Tea |
$21.61 |
|
76-196 |
|
09/10/2024 - Subway Wanneroo - Purchases - First Aid Training |
$168.00 |
|
76-197 |
|
09/10/2024 - Coles - Purchases - I-Reward Morning Tea |
$45.15 |
|
76-198 |
|
15/10/2024 - Coles - Purchases - Council Forum And Yanchep Lagoon Workshop Meeting |
$56.39 |
|
76-199 |
|
15/10/2024 - Smp*Wanneroo Fresh - Purchases - Yanchep Community Workshop |
$44.02 |
|
76-200 |
|
15/10/2024 - Sq *Eight Slices Italian - Purchases - Council Forum |
$450.00 |
|
76-201 |
|
24/10/2024 - Tcs Wanneroo - Purchases - Council Forum |
$36.95 |
|
76-202 |
|
28/10/2024 - Coles - Purchases - Strategic Meeting |
$120.42 |
|
76-203 |
|
28/10/2024 - Coles - Purchases - Council Forum |
$23.50 |
|
76-204 |
|
28/10/2024 - Smp*Wanneroo Fresh - Purchases - Strategic Meeting |
$42.38 |
|
76-205 |
|
29/10/2024 - Annual Fee - Credit Card Fee - Paid Monthly |
$5.00 |
|
|
|
|
|
|
|
|
Curatorial Services |
|
|
76-206 |
|
27/09/2024 - Kmart - Halloween Event Supplies |
$22.00 |
|
76-207 |
|
28/09/2024 - Pro Sub Fee - Monthly Subscription - Eventbrite |
$15.00 |
|
76-208 |
|
10/10/2024 - Officeworks - Urn, Ladder, Cash Receipt Books, Storage Bags |
$283.96 |
|
76-209 |
|
10/10/2024 - Absoe Pty Ltd - Shelf Clips - Industrial Shelving |
$37.50 |
|
76-210 |
|
17/10/2024 - Coles - Museum Cleaning Supplies |
$25.60 |
|
76-211 |
|
18/10/2024 - Temple & Webster - 2 2 Seater Outdoor Wooden Storage Benches - Buckingham House |
$436.15 |
|
76-212 |
|
23/10/2024 - Oxlade Art Supplies - Materials - Pastels Workshops |
$31.72 |
|
76-213 |
|
28/10/2024 - Kmart - Halloween Supplies - Boo In Wanneroo |
$30.40 |
|
76-214 |
|
28/10/2024 - Pro Sub Fee - Eventbrite Monthly Membership |
$15.00 |
|
76-215 |
|
29/10/2024 - Woolworths - Halloween Event Supplies - Lights And Decor |
$25.75 |
|
76-216 |
|
29/10/2024 - Annual Fee - Credit Card Fee - Paid Monthly |
$5.00 |
|
|
|
|
|
|
|
|
Customer & Information Services |
|
|
76-217 |
|
27/09/2024 - Post Wanneroo Post Sho - Delivery Of Test Devices To Invia |
$34.30 |
|
76-218 |
|
15/10/2024 - Egline Australia - Smart Cities - Water Quality Buoys Products |
$622.20 |
|
76-219 |
|
21/10/2024 - Sp Rasp-Pi-Aus - Raspberry Pi 5 |
$133.70 |
|
76-220 |
|
22/10/2024 - Altronic Distributor - 6 Solar Panels, 1 Pan Pozi Nickel Bolt, Tapped Nylon Spacers |
$212.46 |
|
76-221 |
|
22/10/2024 - Sp Little Bird - Raspberry Pi 5 Case, Raspberry Pi AI Camera, 6 Sensor Shields V2.0 For Arduino Mega, 6 Arduino Compatible Long Range Lora Shields, 6 Dfrobot Mega 2560 V3.0 (Arduino Mega 2560 R3 Compatible) |
$887.86 |
|
76-222 |
|
16/10/2024 - Sp JB Hi-Fi Online - 5 Belkin Boostup Charge USB-A To USB-C 15cm Braided Cable |
$89.78 |
|
76-223 |
|
16/10/2024 - Sp JB Hi-Fi Online - 5 Belkin Boostup Charge USB-A To USB-C 15cm Braided Cables |
$89.78 |
|
76-224 |
|
17/10/2024 - BigW Online - Lindy 10 Port USB Charging Station Stand Hub Phone Tablet Ipad |
$198.95 |
|
76-225 |
|
22/10/2024 - Bunnings Group Ltd - Hardware Purchases - Smart Cities |
$727.73 |
|
76-226 |
|
22/10/2024 - Bunnings Group Ltd - Jack 45cm Steel Fence Post Survey Stakes |
$93.97 |
|
76-227 |
|
23/10/2024 - Bunnings Group Ltd - Refund - Smart Cities |
-$23.16 |
|
76-228 |
|
29/10/2024 - Annual Fee - Credit Card Fee - Paid Monthly |
$5.00 |
|
76-229 |
|
30/09/2024 - Typeform, S.L. - Subscription |
$86.79 |
|
76-230 |
|
30/09/2024 - Gethomesafe - Get Home Safe Subscription |
$726.00 |
|
76-231 |
|
01/10/2024 - Campaignmonitor - Subscription |
$1,424.26 |
|
76-232 |
|
30/09/2024 - Paypal - Charge Name: Zoom Workplace Business Monthly |
$340.89 |
|
76-233 |
|
02/10/2024 - Google Cloud Ljtzk6 - Google Cloud Search Fee - Monthly Fee |
$123.40 |
|
76-234 |
|
02/10/2024 - Rezdy - Accelerate Plan - Rezdy Booking System Monthly Subscription |
$108.90 |
|
76-235 |
|
07/10/2024 - Gethomesafe - Get Home Safe Subscription |
$1,412.40 |
|
76-236 |
|
21/10/2024 - Paypal - Yumpu Subscription Paypal Adfree New |
$38.85 |
|
76-237 |
|
19/10/2024 - Paypal - Zoom Workplace Promonthly - Quantity 2 |
$49.26 |
|
76-238 |
|
24/10/2024 - Freshworks Inc - Freshworks - Pro Monthly Subscription |
$1,245.00 |
|
76-239 |
|
29/10/2024 - Annual Fee - Credit Card Fee - Paid Monthly |
$5.00 |
|
76-240 |
|
26/10/2024 - PayPal - Sketchup Pro Subscription |
$517.00 |
|
76-241 |
|
30/10/2024 - Typeform, S.L. - Subscription |
$91.07 |
|
76-242 |
|
31/10/2024 - Campaignmonitor - Subscription |
$1,494.57 |
|
|
|
|
|
|
|
|
Engineering Maintenance |
|
|
76-243 |
|
25/09/2024 - Bunnings - Steel Rod - Sign Installation |
$69.24 |
|
76-244 |
|
09/10/2024 - Bunnings - Round Bar - Sign Pole Installation, Socket And Tape - Maintenance 04 |
$54.74 |
|
76-245 |
|
16/10/2024 - Bunnings - Reticulation Fittings - Maintenance 03 |
$17.26 |
|
76-246 |
|
22/10/2024 - Bunnings - Ratchet Strap - Maintenance 04 Truck |
$10.00 |
|
76-247 |
|
24/10/2024 - Totally Workwear - Work Boots |
$233.90 |
|
76-248 |
|
29/10/2024 - Annual Fee - Credit Card Fee - Paid Monthly |
$5.00 |
|
76-249 |
|
26/09/2024 - Lindan Pty Ltd - Muffs - PPE |
$61.60 |
|
76-250 |
|
01/10/2024 - RSEA Pty Ltd - PPE |
$220.49 |
|
76-251 |
|
09/10/2024 - Bunnings - Maint 13 Replacement Tools And New Ones |
$313.38 |
|
76-252 |
|
10/10/2024 - Officeworks - Charges And Counter |
$74.75 |
|
76-253 |
|
10/10/2024 - Jaycar - New Hand Held Two Ways - Bobcat |
$564.20 |
|
76-254 |
|
17/10/2024 - Cwh Ashby - Sun Screen - Maintenance Crews |
$120.10 |
|
76-255 |
|
18/10/2024 - Bunnings - Duct Tape - Work To Hold Comms Wires On A Wall |
$46.76 |
|
76-256 |
|
21/10/2024 - Toolmart Australia P - Cleaners - Water Jets On Sweeper Truck |
$19.45 |
|
76-257 |
|
21/10/2024 - Bunnings - Hose Nozzle For Ashby Yard Hoses Cutting Blades |
$64.22 |
|
76-258 |
|
21/10/2024 - Lindan Pty Ltd - PPE |
$53.90 |
|
76-259 |
|
22/10/2024 - Bunnings - Hard Case / Box - Lifting Gear Temp Fence Supports |
$431.52 |
|
76-260 |
|
24/10/2024 - Sdii Group Pty Ltd - New Cutting Blades - Concrete Cutters And Trowels |
$897.78 |
|
76-261 |
|
24/10/2024 - Bunnings - New Drink Bottles / Concrete Tools |
$508.54 |
|
76-262 |
|
29/10/2024 - Annual Fee - Credit Card Fee - Paid Monthly |
$5.00 |
|
76-263 |
|
29/10/2024 - Lindan Pty Ltd - Safety Glasses |
$342.08 |
|
|
|
|
|
|
|
|
Fleet Maintenance |
|
|
76-264 |
|
07/10/2024 - Hose Right - Hose Assembly - Plant 96086 |
$190.48 |
|
76-265 |
|
07/10/2024 - Hose Right - Vehicle Spare Parts |
$33.02 |
|
76-266 |
|
14/10/2024 - Kmart - Kettle - Ashby Workshop Staff Room |
$24.00 |
|
76-267 |
|
29/10/2024 - Annual Fee - Credit Card Fee - Paid Monthly |
$5.00 |
|
76-268 |
|
02/10/2024 - Afgri Perth - Ag & Turf - Inspect Machine And Test |
$110.00 |
|
76-269 |
|
04/10/2024 - Master Hose Pty Ltd - Ball Vale, Hose Tails, Hose Clamps, Length Of Hose. |
$101.32 |
|
76-270 |
|
09/10/2024 - Toolmart Australia P - Screw Extractor Kit |
$28.95 |
|
76-271 |
|
10/10/2024 - Bunnings - Solar Panel Kit Solar |
$96.00 |
|
76-272 |
|
16/10/2024 - Ajar Enterprises Pty - Strip Neoprene |
$132.35 |
|
76-273 |
|
16/10/2024 - Bunnings - Gas Cylinder, Hose / Regulator, Utensils |
$173.49 |
|
76-274 |
|
17/10/2024 - Midalia Steel Pty Lt - 25 Square Edge Flats |
$17.17 |
|
76-275 |
|
23/10/2024 - Post Wanneroo Post Sho - Express Post Package |
$26.80 |
|
76-276 |
|
24/10/2024 - Sp Sprayer Warehouse - Bertolini Safety Valve, Bertolini Sting 2 Tap Regulator, Arag Suction Filter |
$400.08 |
|
76-277 |
|
29/10/2024 - Annual Fee - Credit Card Fee - Paid Monthly |
$5.00 |
|
76-278 |
|
30/10/2024 - Lukelizo Pty Ltd - Guide Bar |
$87.00 |
|
76-279 |
|
01/10/2024 - Martins Trlr Parts - Parts Only - 2 Slotted Nuts , 2 Flat Washers, 5 Wheel Studs, 5 Wheel Nuts |
$14.98 |
|
76-280 |
|
09/10/2024 - Harvey Norman AV/IT - 4 Belkin PVC USB-C To USB-A |
$72.00 |
|
76-281 |
|
29/10/2024 - Annual Fee - Credit Card Fee - Paid Monthly |
$5.00 |
|
76-282 |
|
02/10/2024 - Martins Trlr Parts - Rim Holden HQ - Plant 98176 |
$119.43 |
|
76-283 |
|
02/10/2024 - Automotive Brands Gr - Lok Nuts - VMS Tailer On Hire |
$69.98 |
|
76-284 |
|
09/10/2024 - Martins Trlr Parts - Rim Holden HQ - Plant 98176 |
$119.43 |
|
76-285 |
|
11/10/2024 - Repco - Eclipse Hyper Foam Cannon - Workshop |
$70.00 |
|
76-286 |
|
17/10/2024 - Total Eden - Driver Adapter Piece - Workshop Stock |
$85.80 |
|
76-287 |
|
24/10/2024 - Martins Trlr Parts - 2 Ford RIS - VMS Trailer On Hire Billy Jones Parks |
$265.94 |
|
76-288 |
|
28/10/2024 - Napa Wangara - LED Combo Lamp - Plant 96204 |
$308.00 |
|
76-289 |
|
29/10/2024 - Annual Fee - Credit Card Fee - Paid Monthly |
$5.00 |
|
76-290 |
|
14/10/2024 - Barbecue Bazaar - Replacement Gasmate 6 Burner Barbeque - Barbeque Trailer |
$1,099.00 |
|
76-291 |
|
14/10/2024 - Bunnings - Can Of Yellow Rustguard Paint - Barbeque Trailer |
$136.90 |
|
76-292 |
|
17/10/2024 - Bunnings - Exchange 8.5Kg Gas Bottle - Barbeque Trailer |
$31.50 |
|
76-293 |
|
29/10/2024 - Annual Fee - Credit Card Fee - Paid Monthly |
$5.00 |
|
|
|
|
|
|
|
|
Health Services |
|
|
76-294 |
|
01/10/2024 - BP Goomalling - Shire Of Koorda Inspections |
$22.97 |
|
76-295 |
|
01/10/2024 - Koorda IGA - Shire Of Koorda - EHO |
$6.49 |
|
76-296 |
|
28/10/2024 - Boc Gas And Gear - Dry Ice Pellets Bulk |
$14.85 |
|
76-297 |
|
29/10/2024 - Annual Fee - Credit Card Fee - Paid Monthly |
$5.00 |
|
76-298 |
|
30/09/2024 - Koorda IGA - Shire Of Koorda Inspections |
$26.58 |
|
76-299 |
|
30/09/2024 - Koorda Sports Club In - Shire Of Koorda Inspection |
$20.00 |
|
|
|
|
|
|
|
|
Heritage Education |
|
|
76-300 |
|
27/09/2024 - Paypal - Marble Games - Heritage House Education Programs |
$89.80 |
|
76-301 |
|
28/09/2024 - Twinkl 6487196 - Education Resources - Heritage Education Team |
$17.99 |
|
76-302 |
|
30/09/2024 - Ebay O*14-12128-75921 - Vintage School Book - Buckingham House Education Program |
$41.25 |
|
76-303 |
|
01/10/2024 - Primaryengl - Training Course - Heritage Education: Primary English Teaching Association Australia |
$250.00 |
|
76-304 |
|
02/10/2024 - Amznprimeau Membership - Amazon Prime Membership - Heritage Education Team |
$9.99 |
|
76-305 |
|
03/10/2024 - Coles - Buckingham House Training Day - Volunteer Morning Tea |
$20.65 |
|
76-306 |
|
03/10/2024 - Kmart - Buckingham House Education Materials And Card Making Supplies - Wanneroo Museum Christmas Community Project |
$98.75 |
|
76-307 |
|
04/10/2024 - Modern Teaching Aids - Wooden Tool Set And Scales - Museum Education Programs |
$255.32 |
|
76-308 |
|
08/10/2024 - Paypal - Vinyl Record - Wanneroo Gallery Warhol Exhibition |
$47.00 |
|
76-309 |
|
08/10/2024 - Paypal - Vinyl Record - Wanneroo Gallery Warhol Exhibition |
$84.98 |
|
76-310 |
|
08/10/2024 - Paypal - Surcharge On Paypal Purchases - Vinyl Records Andy Warhol Exhibition |
$1.52 |
|
76-311 |
|
09/10/2024 - Adobe - Adobe Pdf Writer - Heritage Education Admin Bookings |
$224.27 |
|
76-312 |
|
10/10/2024 - Paypal - Vinyl Record - Wanneroo Gallery Warhol Exhibition |
$49.50 |
|
76-313 |
|
11/10/2024 - Kmart - Storage Tubs And Wooden Trays - Old Wanneroo School House Program |
$124.00 |
|
76-314 |
|
14/10/2024 - Aldi Stores - Jandakot - Buckingham House Volunteer Morning Tea |
$19.74 |
|
76-315 |
|
25/10/2024 - Kmart - Cockman House Education Materials Markers And Storage Tubs |
$26.50 |
|
76-316 |
|
28/10/2024 - Coles - Water And Hydrolyte Drinks - Heritage House Programs |
$65.40 |
|
76-317 |
|
29/10/2024 - Annual Fee - Credit Card Fee - Paid Monthly |
$5.00 |
|
|
|
|
|
|
|
|
Irrigation Maintenance |
|
|
76-318 |
|
02/10/2024 - Master Hose Pty Ltd - Tools Replacement |
$26.69 |
|
76-319 |
|
04/10/2024 - Bunnings - Tools Replacement |
$721.41 |
|
76-320 |
|
07/10/2024 - Autopro Wanneroo - Tools Replacement |
$31.99 |
|
76-321 |
|
07/10/2024 - Bunnings - Tools Replacement |
$27.78 |
|
76-322 |
|
07/10/2024 - Zlr*WA Lifting Equipmen - Tools Replacement |
$150.48 |
|
76-323 |
|
11/10/2024 - Bunnings - Tools Replacement |
$404.70 |
|
76-324 |
|
17/10/2024 - Aaron And Amanda Dwyer Tr - Keys |
$19.80 |
|
76-325 |
|
18/10/2024 - Direct Fasteners - Used For Holding Isolation Valve Plates In Place On Concrete Curbing |
$49.50 |
|
76-326 |
|
21/10/2024 - Officeworks - C-C Cables For Staff Tablet And Phone - Kingsway Sporting Complex Pump Shed Printer |
$288.72 |
|
76-327 |
|
26/09/2024 - Bunnings - Tools Replacement |
$26.98 |
|
76-328 |
|
26/09/2024 - Farmer Jacks Ashby - Matches - Tools Replacement |
$4.39 |
|
76-329 |
|
27/09/2024 - Big W - Tools Replacement |
$7.50 |
|
76-330 |
|
29/10/2024 - Annual Fee - Credit Card Fee - Paid Monthly |
$5.00 |
|
76-331 |
|
30/10/2024 - L And T Venables Pty Ltd - Tools Replacement |
$143.47 |
|
|
|
|
|
|
|
|
Kingsway Indoor Stadium |
|
|
76-332 |
|
01/10/2024 - Facebk* - Advertising - Adult Sports / School Holiday Program / Junior Sport Comp - Kingsway |
$751.03 |
|
76-333 |
|
02/10/2024 - Facebk* - Advertising - Junior Sports Comp / Adult Sports Spring/Summer - Kingsway |
$27.24 |
|
76-334 |
|
03/10/2024 - Officeworks - Art & Craft |
$20.39 |
|
76-335 |
|
29/10/2024 - Annual Fee - Credit Card Fee - Paid Monthly |
$5.00 |
|
76-336 |
|
30/09/2024 - Kmart - Mental Health Week Balloons And Chalk Pens |
$18.50 |
|
76-337 |
|
02/10/2024 - Woolworths - Drinks - End Of Winter Season |
$15.00 |
|
76-338 |
|
02/10/2024 - Darch Pizza House - End Of Season Pizza Order |
$246.95 |
|
76-339 |
|
02/10/2024 - First Choice Variety - Cups - The End Of Season Drinks |
$29.98 |
|
76-340 |
|
03/10/2024 - Darch Supa IGA - Napkins - End Of Season |
$1.60 |
|
76-341 |
|
03/10/2024 - Darch Pizza House - End Of Season Food |
$98.78 |
|
76-342 |
|
03/10/2024 - Bunnings - Laundry Bags |
$32.50 |
|
76-343 |
|
11/10/2024 - Bunnings - Boxes - Programs |
$69.00 |
|
76-344 |
|
14/10/2024 - Bunnings - Laundry Bags - Programs |
$12.50 |
|
76-345 |
|
21/10/2024 - Bunnings - General Stadium Materials |
$143.52 |
|
76-346 |
|
29/10/2024 - Annual Fee - Credit Card Fee - Paid Monthly |
$5.00 |
|
|
|
|
|
|
|
|
Library Services |
|
|
76-347 |
|
29/10/2024 - Annual Fee - Credit Card Fee - Paid Monthly |
$5.00 |
|
76-348 |
|
01/10/2024 - Coles - Milk |
$3.00 |
|
76-349 |
|
10/10/2024 - Two Rocks IGA - Milk |
$3.10 |
|
76-350 |
|
18/10/2024 - Two Rocks IGA - Milk |
$3.10 |
|
76-351 |
|
18/10/2024 - Two Rocks IGA - Playdoh Ingredients - IAAP |
$5.68 |
|
76-352 |
|
25/10/2024 - Two Rocks IGA - Milk |
$3.99 |
|
76-353 |
|
29/10/2024 - Annual Fee - Credit Card Fee - Paid Monthly |
$5.00 |
|
76-354 |
|
30/09/2024 - Pro Sub Fee - Advertising - Event Platform – Eventbrite |
$15.00 |
|
76-355 |
|
30/09/2024 - Spotlight Butler - Materials - Program Delivery - Family Literacy Program - Props - Patrons Use |
$75.50 |
|
76-356 |
|
30/09/2024 - Ikea Pty Ltd - Materials - Summer Reading Quest Program - Patrons Use |
$284.00 |
|
76-357 |
|
03/10/2024 - Sq *Epic Catering Service - Library Programs - Light Refreshments Author Talk - Customer Use |
$297.00 |
|
76-358 |
|
03/10/2024 - Dymocks Joondalup - Library Services - Local Stock - Book Club Kit |
$269.90 |
|
76-359 |
|
04/10/2024 - Coles - Library Programs - Materials - Escape Room - Customer Use |
$24.00 |
|
76-360 |
|
10/10/2024 - Coles - Get Online Week Grant - Materials - Customer Use |
$125.00 |
|
76-361 |
|
10/10/2024 - Coles - Get Online Week Grant - Materials - Customer Use |
$125.00 |
|
76-362 |
|
10/10/2024 - Coles - Get Online Week Grant - Materials - Customer Use |
$50.00 |
|
76-363 |
|
14/10/2024 - Coles - Facilities - Hygiene Supplies - Materials |
$29.55 |
|
76-364 |
|
14/10/2024 - Ebay O*15-12184-34690 - Library Programs - Materials - Robostart Academy - Customer Use |
$79.95 |
|
76-365 |
|
22/10/2024 - Coles - Library Programs - Materials - Boo In Wanneroo - Customer Use |
$76.49 |
|
76-366 |
|
22/10/2024 - Kmart - Library Programs - Materials - Boo In Wanneroo - Customer Use |
$223.50 |
|
76-367 |
|
22/10/2024 - Coles - Library Programs - Light Refreshments - Author Talk - Customer Use |
$29.30 |
|
76-368 |
|
02/10/2024 - Coles Online - Library Programs - Light Refreshments - Author Talk - Customer Use |
$50.30 |
|
76-369 |
|
08/10/2024 - Coles - Library Programs - Light Refreshments - Adult Learners Talk - Customer Use |
$37.80 |
|
76-370 |
|
14/10/2024 - Aldi Stores - Jandakot - Get Online Week Grant - Materials - Customer Use |
$39.51 |
|
76-371 |
|
17/10/2024 - Clever Patch - Library Projects - Literacy Program Materials - Customer Use |
$402.32 |
|
76-372 |
|
19/10/2024 - Coles Online - Library Programs - Light Refreshments - Writing Workshop - Customer Use |
$68.20 |
|
76-373 |
|
19/10/2024 - Coles - Library Programs - Light Refreshments Digital Workshops - Customer Use |
$23.30 |
|
76-374 |
|
22/10/2024 - Dymocks Joondalup - Library Programs - Literacy Project - Summer Reading Quest Materials - Customer Use |
$320.00 |
|
76-375 |
|
23/10/2024 - Sp Iqm Store - Library Programs - Family Literacy - Materials - Customer Use |
$159.76 |
|
76-376 |
|
23/10/2024 - Ed Resources Pty Ltd - Library Programs - Materials - Family Literacy - Customer Use |
$296.77 |
|
76-377 |
|
22/10/2024 - Red Dot Stores - Library Programs - Materials - Boo In Wanneroo - Customer Use |
$46.94 |
|
76-378 |
|
22/10/2024 - Bunnings - Library Programs - Materials For Outreach - Staff Use |
$49.90 |
|
76-379 |
|
25/10/2024 - Spotlight - Art Program Materials - Boo In Wanneroo - Customer Use |
$27.30 |
|
76-380 |
|
25/10/2024 - Spotlight - Art Programs - Materials - Customer Use |
$12.00 |
|
76-381 |
|
25/10/2024 - Red Dot Stores - Art Programs - Materials - Customer Use |
$18.00 |
|
76-382 |
|
25/10/2024 - Kmart - Library Programs - Family Literacy - Materials - Customer Use |
$158.00 |
|
76-383 |
|
25/10/2024 - Kmart - Art Programs - Materials - Customer Use |
$126.00 |
|
76-384 |
|
28/10/2024 - Coles - Library Programs - Universe Of Maths Refreshments - Customer Use |
$9.50 |
|
76-385 |
|
29/10/2024 - Annual Fee - Credit Card Fee - Paid Monthly |
$5.00 |
|
76-386 |
|
29/10/2024 - Pro Sub Fee - Advertising - Event Platform – Eventbrite |
$15.00 |
|
76-387 |
|
15/10/2024 - Coles - Playdough Ingredients |
$16.00 |
|
76-388 |
|
23/10/2024 - Coles - Materials - Halloween Event |
$11.60 |
|
76-389 |
|
29/10/2024 - Annual Fee - Credit Card Fee - Paid Monthly |
$5.00 |
|
76-390 |
|
30/09/2024 - wwc-Communities - Working With Children's Check Renewal |
$87.00 |
|
76-391 |
|
07/10/2024 - Kmart - Prizes For Summer Reading Quest Program - Science Kits - |
$60.00 |
|
76-392 |
|
07/10/2024 - Sp Paperpoint Store - Prizes - Summer Reading Quest Program - Eugy Chameleon Library |
$86.75 |
|
76-393 |
|
07/10/2024 - Red Dot Stores - Supplies - Summer Reading Quest - Bags For Prizes |
$12.00 |
|
76-394 |
|
07/10/2024 - QBD The Bookshop - Supplies - Summer Reading Quest - Prizes |
$43.96 |
|
76-395 |
|
10/10/2024 - Coles - Supplies - Library Program - Plates |
$3.20 |
|
76-396 |
|
10/10/2024 - Coles - Staff Milk Purchase |
$3.00 |
|
76-397 |
|
10/10/2024 - Newsxpress Ocean Keys - Stationary Supplies - Library Program |
$14.04 |
|
76-398 |
|
10/10/2024 - Red Dot Stores - Supplies - Library Program |
$4.00 |
|
76-399 |
|
10/10/2024 - Krazy Kraft Willeton - Supplies - Library Program - Craft Supplies |
$36.93 |
|
76-400 |
|
15/10/2024 - Sq *Andrew?S Succulents - Supplies - Mental Health Week Library Program - Succulents And Potting Mix - Clarkson - Andrews Succulents |
$45.85 |
|
76-401 |
|
16/10/2024 - Coles - Staff Milk |
$4.35 |
|
76-402 |
|
16/10/2024 - Brewed Awakening Enterpri - Catering - Get Online Week Event |
$15.80 |
|
76-403 |
|
16/10/2024 - Temu.Com - Supplies - Christmas Craft Programs - Material And Pipecleaners |
$50.77 |
|
76-404 |
|
23/10/2024 - Coles - Chocolates - Library Program Volunteer |
$16.00 |
|
76-405 |
|
23/10/2024 - Coles - Catering Expense - Library Program - Biscuits |
$13.30 |
|
76-406 |
|
28/10/2024 - Austswim Limited - Austswim Qualification Renewal - 1 Employee |
$5.00 |
|
76-407 |
|
29/10/2024 - Annual Fee - Credit Card Fee - Paid Monthly |
$5.00 |
|
76-408 |
|
29/10/2024 - Annual Fee - Credit Card Fee - Paid Monthly |
$5.00 |
|
76-409 |
|
30/09/2024 - Lams Oriental Superm - Milk For Staff |
$3.29 |
|
76-410 |
|
21/10/2024 - Lams Oriental Superm - Milk For Staff |
$3.29 |
|
76-411 |
|
18/10/2024 - Lams Oriental Superm - Milk For Staff |
$3.35 |
|
76-412 |
|
24/10/2024 - Lams Oriental Superm - Milk For Staff |
$2.99 |
|
76-413 |
|
29/10/2024 - Annual Fee - Credit Card Fee - Paid Monthly |
$5.00 |
|
76-414 |
|
26/09/2024 - TK Maxx Ocean Keys - Play Resources - Junior Program |
$43.99 |
|
76-415 |
|
02/10/2024 - Modern Teaching Aids - Resources For Early Literacy Program. |
$850.95 |
|
76-416 |
|
02/10/2024 - Kmart - Resources - Early Literacy Program |
$61.00 |
|
76-417 |
|
02/10/2024 - TK Maxx Ocean Keys - Resources For Early Literacy Program |
$50.96 |
|
76-418 |
|
07/10/2024 - QBD The Bookshop - Libraries Summer Reading Quest Prizes |
$97.40 |
|
76-419 |
|
17/10/2024 - Coles - Cling Wrap / Play Dough Ingredients |
$19.60 |
|
76-420 |
|
17/10/2024 - Red Dot Stores - Gardening Tools - Workshop At Clarkson Library |
$15.98 |
|
76-421 |
|
29/10/2024 - Annual Fee - Credit Card Fee - Paid Monthly |
$5.00 |
|
76-422 |
|
28/09/2024 - My Post Business/Post - Interlibrary Loans Postage |
$36.11 |
|
76-423 |
|
30/09/2024 - Kmart - Program Consumables |
$22.75 |
|
76-424 |
|
30/09/2024 - My Post Business/Post - Interlibrary Loans Postage |
$9.64 |
|
76-425 |
|
01/10/2024 - My Post Business/Post - Interlibrary Loans Postage |
$10.73 |
|
76-426 |
|
03/10/2024 - Red Dot Stores - Cable Ties - Books On Wheels Bags |
$5.00 |
|
76-427 |
|
03/10/2024 - My Post Business/Post - Interlibrary Loans Postage |
$10.73 |
|
76-428 |
|
03/10/2024 - Coles - Washing Powder And Batteries |
$21.70 |
|
76-429 |
|
04/10/2024 - My Post Business/Post - Interlibrary Loans Postage |
$25.38 |
|
76-430 |
|
07/10/2024 - Modern Teaching Aids - Play Equipment - Outdoor Area |
$100.61 |
|
76-431 |
|
07/10/2024 - Coles - Batteries - Staff Call Bell |
$7.70 |
|
76-432 |
|
09/10/2024 - My Post Business/Post - Interlibrary Loans Postage |
$36.11 |
|
76-433 |
|
14/10/2024 - My Post Business/Post - Interlibrary Loans Postage |
$68.30 |
|
76-434 |
|
17/10/2024 - My Post Business/Post - Interlibrary Loans Postage |
$47.78 |
|
76-435 |
|
18/10/2024 - Bunnings - Leaf Blower - Maintenance Of Children's Garden Area |
$202.49 |
|
76-436 |
|
18/10/2024 - Pay Ecu Edu Au Web - Early Years Literacy Training Course - Community Librarian Wanneroo |
$135.00 |
|
76-437 |
|
21/10/2024 - My Post Business/Post - Interlibrary Loans Postage |
$16.68 |
|
76-438 |
|
23/10/2024 - My Post Business/Post - Interlibrary Loans Postage |
$10.73 |
|
76-439 |
|
23/10/2024 - Kmart - Sundry Items - Pink Morning Tea |
$3.99 |
|
76-440 |
|
23/10/2024 - Wanneroo Central News - Sundry Items - Pink Morning Tea |
$24.20 |
|
76-441 |
|
25/10/2024 - My Post Business/Post - Interlibrary Loans Postage |
$32.19 |
|
76-442 |
|
29/10/2024 - My Post Business/Post - Interlibrary Loans Postage |
$25.38 |
|
76-443 |
|
29/10/2024 - Annual Fee - Credit Card Fee - Paid Monthly |
$5.00 |
|
76-444 |
|
26/09/2024 - Amazon Au - Library Book Club Kits |
$29.19 |
|
76-445 |
|
26/09/2024 - Dymocks Online - Library Book Club Kits |
$703.79 |
|
76-446 |
|
27/09/2024 - News Pty Limited - Australian Newspaper - Wanneroo Library |
$88.00 |
|
76-447 |
|
27/09/2024 - Dymocks Online - Library Book Club Kits |
$285.89 |
|
76-448 |
|
30/09/2024 - Amazon Au - Library Book Club Kits |
$48.97 |
|
76-449 |
|
04/10/2024 - Soul Origin Joondalup - Error Transaction Repaid Receipt No 07476206 |
$46.30 |
|
76-450 |
|
08/10/2024 - Amazon Au - Library Book Stock |
$44.37 |
|
76-451 |
|
10/10/2024 - Amazon Marketplace Au - Library Book Stock |
$28.59 |
|
76-452 |
|
11/10/2024 - Amazon Au - Library Book Stock |
$15.90 |
|
76-453 |
|
15/10/2024 - Amazon Au - Library Book Stock |
$38.47 |
|
76-454 |
|
17/10/2024 - Post Wanneroo Post Sho - Post RFID Tags To James Bennett |
$22.85 |
|
76-455 |
|
18/10/2024 - City Of Joondalup - Parking - Meeting At Joondalup Library |
$4.90 |
|
76-456 |
|
21/10/2024 - Dymocks Online - Library Book Club Kit Replacements |
$91.96 |
|
76-457 |
|
21/10/2024 - Amazon Marketplace Au - Library Book Stock |
$58.87 |
|
76-458 |
|
22/10/2024 - Amazon Au - Library Book Stock |
$156.68 |
|
76-459 |
|
25/10/2024 - News Pty Limited - Australian Newspapers - Wanneroo Library |
$88.00 |
|
76-460 |
|
29/10/2024 - Annual Fee - Credit Card Fee - Paid Monthly |
$5.00 |
|
76-461 |
|
30/10/2024 - Wilson Parking Australia - Parking - Public Library Forum |
$16.20 |
|
76-462 |
|
25/09/2024 - Bunnings - General Materials - Key Tag Holder |
$9.64 |
|
76-463 |
|
27/09/2024 - Coles - Staff Milk |
$4.35 |
|
76-464 |
|
27/09/2024 - JB Hi Fi Ocean Keys - General Materials - USB Cable |
$39.95 |
|
76-465 |
|
30/09/2024 - Save The Children - Material - Craft Program |
$7.00 |
|
76-466 |
|
03/10/2024 - Coles - IAAP Playdough Supplies |
$5.40 |
|
76-467 |
|
03/10/2024 - Post Clarkson Post Sho - Working With Children Check |
$87.00 |
|
76-468 |
|
05/10/2024 - Coles - Staff Milk |
$4.35 |
|
76-469 |
|
10/10/2024 - Bunnings - Anti Fatigue Mats |
$91.80 |
|
76-470 |
|
11/10/2024 - Kmart - IAAP Supplies - Sports Ball Pump |
$5.50 |
|
76-471 |
|
17/10/2024 - Bunnings - Anti Fatigue Mats - Staff |
$137.70 |
|
76-472 |
|
17/10/2024 - Bunnings - Gardening Event Supplies |
$59.68 |
|
76-473 |
|
21/10/2024 - Coles - Event Catering - Milk & Biscuits |
$9.85 |
|
76-474 |
|
21/10/2024 - Kmart - IAAP - Bubble Machine |
$13.00 |
|
76-475 |
|
24/10/2024 - Coles - IAAP - Playdough Supplies |
$4.80 |
|
76-476 |
|
24/10/2024 - Coles - Staff Milk |
$3.00 |
|
76-477 |
|
29/10/2024 - Annual Fee - Credit Card Fee - Paid Monthly |
$5.00 |
|
76-478 |
|
02/10/2024 - CPP State Library - Parking - LOTE Selection. |
$5.05 |
|
76-479 |
|
08/10/2024 - Lams Oriental Superm - Milk |
$4.59 |
|
76-480 |
|
08/10/2024 - Officeworks - Canvases - Art Workshop |
$90.66 |
|
76-481 |
|
08/10/2024 - Officeworks - Canvases - Art Workshop |
$32.90 |
|
76-482 |
|
09/10/2024 - Officeworks - Refund - Incorrect Size Canvases - Art Workshop. |
-$90.66 |
|
76-483 |
|
29/10/2024 - Annual Fee - Credit Card Fee - Paid Monthly |
$5.00 |
|
|
|
|
|
|
|
|
Media & Communications Services |
|
|
76-484 |
|
02/10/2024 - Google Ads1626843768 - Social Media Advertising |
$494.95 |
|
76-485 |
|
13/10/2024 - Facebk *3K3Prcube2 - Social Media Advertising |
$1,250.00 |
|
76-486 |
|
26/10/2024 - Facebk* - Community Safety - Social Media Advertising |
$591.74 |
|
76-487 |
|
29/10/2024 - Annual Fee - Credit Card Fee - Paid Monthly |
$5.00 |
|
|
|
|
|
|
|
|
Parks & Conservation Management |
|
|
76-488 |
|
09/10/2024 - Backyard To Barn - Selective Herbicide - Bindii Clover At Wanneroo Showgrounds |
$35.40 |
|
76-489 |
|
10/10/2024 - Nutrien Ag Solutions - Broadleaf Herbicide Required - Use On Vehicle |
$110.00 |
|
76-490 |
|
25/10/2024 - Work Clobber - Clothing Fitout - Asset Officer Role |
$498.50 |
|
76-491 |
|
29/10/2024 - Annual Fee - Credit Card Fee - Paid Monthly |
$5.00 |
|
76-492 |
|
30/10/2024 - Officeworks - Charger Cable And 2025 Diary |
$48.17 |
|
76-493 |
|
30/10/2024 - Seabreeze Landscape - Landscape Mix - Margaret Cockman Garden Bed At Wanneroo Showgrounds |
$522.00 |
|
|
|
|
|
|
|
|
Parks Maintenance |
|
|
76-494 |
|
27/09/2024 - Bunnings Group Ltd - Toolkits - Allocated To Mowing One Central And Supervisor South Ute |
$138.00 |
|
76-495 |
|
29/10/2024 - Annual Fee - Credit Card Fee - Paid Monthly |
$5.00 |
|
|
|
|
|
|
|
|
People & Culture |
|
|
76-496 |
|
29/10/2024 - Annual Fee - Credit Card Fee - Paid Monthly |
$5.00 |
|
|
|
|
|
|
|
|
Place Management |
|
|
76-497 |
|
25/09/2024 - Red Dot Stores - Supplies For Community Event - Girrawheen Neighbourhood Network |
$28.99 |
|
76-498 |
|
03/10/2024 - Lams Oriental Superm - External Catering Items - Workshop |
$12.26 |
|
76-499 |
|
23/10/2024 - Iap2 Australasia - Payment Receipt - IAP2A WA Local Networking Event |
$35.00 |
|
76-500 |
|
29/10/2024 - Annual Fee - Credit Card Fee - Paid Monthly |
$5.00 |
|
|
|
|
|
|
|
|
Preventative Engineering Maintenance |
|
|
76-501 |
|
08/10/2024 - Lindan Pty Ltd - Safety Vests |
$515.90 |
|
76-502 |
|
22/10/2024 - RSEA Pty Ltd - Various PPE - New Employee |
$494.95 |
|
76-503 |
|
29/10/2024 - Annual Fee - Credit Card Fee - Paid Monthly |
$5.00 |
|
|
|
|
|
|
|
|
Property Services |
|
|
76-504 |
|
03/10/2024 - Corelogic Asia Pacific - RP Data Annual Subscription |
$1,797.91 |
|
76-505 |
|
29/10/2024 - Annual Fee - Credit Card Fee - Paid Monthly |
$5.00 |
|
|
|
|
|
|
|
|
Surveys |
|
|
76-506 |
|
29/10/2024 - Annual Fee - Credit Card Fee - Paid Monthly |
$5.00 |
|
|
|
|
|
|
|
|
Traffic Services |
|
|
76-507 |
|
08/10/2024 - Bunnings - Tie Downs To Tie Bike Month Bike Racks On Roof Rack Of The Traffic Ute |
$16.00 |
|
76-508 |
|
11/10/2024 - Bunnings - Drill Bits / Road Screws -+ Road Counters And Cable Ties - Bike Month Breakfast To Tie Gazebo's Together. |
$102.22 |
|
76-509 |
|
24/10/2024 - Sydney Tools Pty Ltd - Loose Tools To Remove And Install Speed Trailer Wheels Following The Procedure |
$74.00 |
|
76-510 |
|
29/10/2024 - Annual Fee - Credit Card Fee - Paid Monthly |
$5.00 |
|
|
|
|
|
|
|
|
Tree & Conservation Maintenance |
|
|
76-511 |
|
09/10/2024 - Bunnings - Cargo Net / Trimmer Cord / Hose Fittings - Water Truck |
$253.12 |
|
76-512 |
|
10/10/2024 - Work Clobber - Replacement 5 In 1 Rain Jacket Large |
$103.50 |
|
76-513 |
|
10/10/2024 - Bunnings - Additional Supplies - Turtle Tracking Kits |
$317.92 |
|
76-514 |
|
17/10/2024 - Bunnings - Bunnings / Chain - Various Gates, Dust Pan / Brushes - Utes |
$104.00 |
|
76-515 |
|
23/10/2024 - Bunnings - 2 Packs Of AA Lithium Batteries - Conservation Wildlife Cameras |
$39.80 |
|
76-516 |
|
25/10/2024 - Woolworths - 3 Packs Of AA Lithium Batteries - Conservation Wildlife Cameras |
$73.50 |
|
76-517 |
|
25/10/2024 - Woolworths - 3 Packs Of AA Lithium Batteries - Conservation Wildlife Cameras |
$73.50 |
|
76-518 |
|
29/10/2024 - Annual Fee - Credit Card Fee - Paid Monthly |
$5.00 |
|
|
|
|
|
|
|
|
Wanneroo Aquamotion |
|
|
76-519 |
|
27/09/2024 - Facebk *Zx3Xja8Pl2 - Advertising - Aquamotion Challenge |
$114.00 |
|
76-520 |
|
03/10/2024 - Officeworks - AI Watch Chargers |
$162.00 |
|
76-521 |
|
03/10/2024 - Twilio Sengrid - Email Advertising |
$132.18 |
|
76-522 |
|
04/10/2024 - Facebk *57Yuccqnl2 - Advertising - Aquamotion Challenge |
$44.79 |
|
76-523 |
|
04/10/2024 - Kmart - Craft - Creche |
$3.00 |
|
76-524 |
|
04/10/2024 - Coles - Creche - Play Dough Supplies |
$22.70 |
|
76-525 |
|
04/10/2024 - Coles Online - Nappies - Swim |
$78.15 |
|
76-526 |
|
07/10/2024 - Officeworks - Office Supplies |
$37.96 |
|
76-527 |
|
14/10/2024 - Kmart - Labels |
$5.00 |
|
76-528 |
|
11/10/2024 - Kmart - Office Expenses |
$5.00 |
|
76-529 |
|
14/10/2024 - wwc-Communities - Working With Children Check - 1 Employee |
$87.00 |
|
76-530 |
|
08/10/2024 - Officeworks - Office Supplies |
$97.08 |
|
76-531 |
|
18/10/2024 - St John Ambulance Aust - Training - CPR - 1 Attendee |
$69.00 |
|
76-532 |
|
18/10/2024 - Aust Wide First Aid - Training - CPR - 1 Attendee |
$49.00 |
|
76-533 |
|
18/10/2024 - Aust Wide First Aid - Training - CPR - 1 Attendee |
$59.00 |
|
76-534 |
|
29/10/2024 - Annual Fee - Credit Card Fee - Paid Monthly |
$5.00 |
|
76-535 |
|
30/10/2024 - Kmart - Halloween Craft |
$9.00 |
|
76-536 |
|
14/10/2024 - Soundtrack Your Brand - Soundtrack APP Subscription |
$700.11 |
|
76-537 |
|
17/10/2024 - Aust Wide First Aid - Training - CPR - 1 Attendee |
$59.00 |
|
76-538 |
|
18/10/2024 - Post Wanneroo Post Sho - Postage |
$1.75 |
|
76-539 |
|
18/10/2024 - Coles - Antibacterial Wipes |
$8.00 |
|
76-540 |
|
10/10/2024 - Austswim Limited - Austswim Qualification Renewal - 1 Employee |
$275.00 |
|
76-541 |
|
14/10/2024 - RLSSWA - Royal Life Swim Teacher Qualification Renewal - 1 Employee |
$22.00 |
|
76-542 |
|
21/10/2024 - Austswim Limited - Austswim Qualification Renewal - 1 Employee |
$275.00 |
|
76-543 |
|
08/10/2024 - Aust Wide First Aid - First Aid Renewal - 1 Employee |
$59.00 |
|
76-544 |
|
25/10/2024 - Kmart - Halloween Buckets - Preschool Age Swim School Lessons |
$4.00 |
|
76-545 |
|
29/10/2024 - Annual Fee - Credit Card Fee - Paid Monthly |
$5.00 |
|
76-546 |
|
29/10/2024 - Kmart - Pool Noodles - Swim School Program |
$20.00 |
|
76-547 |
|
28/10/2024 - Austswim Limited - Austswim Qualification Renewal - 1 Employee |
$275.00 |
|
|
|
|
|
|
|
|
Waste Services |
|
|
76-548 |
|
17/10/2024 - Bunnings - BBQ For CEO Staff BBQ |
$339.00 |
|
76-549 |
|
29/10/2024 - Annual Fee - Credit Card Fee - Paid Monthly |
$5.00 |
|
76-550 |
|
14/10/2024 - WA Police Check/Post - Police Clearance |
$63.80 |
|
76-551 |
|
24/10/2024 - Bunnings - Key Lock Boxes |
$415.23 |
|
76-552 |
|
29/10/2024 - Annual Fee - Credit Card Fee - Paid Monthly |
$5.00 |
|
76-553 |
|
09/10/2024 - Circum Wash - Car Wash - Education Vehicle For Community Event |
$16.50 |
|
76-554 |
|
18/10/2024 - Bunnings - Event Equipment |
$125.52 |
|
76-555 |
|
21/10/2024 - Outdoor Supacentre - Event Equipment - Hot Weather Mitigation |
$29.90 |
|
76-556 |
|
21/10/2024 - Bunnings - Event Equipment - Outdoor And Night Events |
$97.85 |
|
76-557 |
|
23/10/2024 - Ezi*Tank Management Au - Public Recycling - Cooking Oil Project WGR - IBC Funnel |
$83.35 |
|
76-558 |
|
23/10/2024 - Workpower Incorporated - Event Equipment - Marquee Weights |
$20.00 |
|
76-559 |
|
23/10/2024 - Bunnings - Public Recycling - Cooking Oil Project |
$85.99 |
|
76-560 |
|
23/10/2024 - Sp JB Hi-Fi Online - Waste Services Office Equipment |
$298.00 |
|
76-561 |
|
25/10/2024 - Circum Wash - Event Programs - Car Wash |
$16.50 |
|
76-562 |
|
29/10/2024 - Annual Fee - Credit Card Fee - Paid Monthly |
$5.00 |
|
76-563 |
|
22/10/2024 - Smp*Alexander Houseoff - Flowers - Bereavement - Waste Team Member |
$99.98 |
|
76-564 |
|
29/10/2024 - Annual Fee - Credit Card Fee - Paid Monthly |
$5.00 |
|
|
|
|
|
|
|
|
Youth Services |
|
|
76-565 |
|
26/09/2024 - Red Dot Stores Yanch - Materials - October School Holidays - Yanchep Community Youth Day |
$104.84 |
|
76-566 |
|
27/09/2024 - Coles - Food - October School Holidays - Art And Pizza Making |
$19.00 |
|
76-567 |
|
01/10/2024 - Spud Shed - Food - October School Holidays - Hungry Games |
$163.23 |
|
76-568 |
|
09/10/2024 - Coles - Food - Yanchep Youth Centre - Term 4 |
$14.65 |
|
76-569 |
|
22/10/2024 - Coles - Food - Yanchep Youth Centre - Term 4 |
$35.97 |
|
76-570 |
|
03/10/2024 - Coles Online - Food - Yanchep Youth Centre - Term 4 |
$86.40 |
|
76-571 |
|
15/10/2024 - Coles Online - Food - Yanchep Youth Centre - Term 4 |
$61.30 |
|
76-572 |
|
17/10/2024 - Coles - Food - Outreach |
$3.50 |
|
76-573 |
|
17/10/2024 - Smp*Dominos Jindalee - Food - Outreach - Dominos |
$35.53 |
|
76-574 |
|
18/10/2024 - Kmart - Materials - Yanchep Youth Centre - Term 4 |
$11.00 |
|
76-575 |
|
23/10/2024 - Coles - Food - Yanchep Youth Centre - Term 4 - Drop In |
$12.75 |
|
76-576 |
|
23/10/2024 - Kmart - Materials - Yanchep Youth Centre - Drop In |
$80.00 |
|
76-577 |
|
24/10/2024 - Kmart - Materials - Yanchep Youth Centre - Term 4 - Drop In |
$25.00 |
|
76-578 |
|
24/10/2024 - Kmart - Materials - Yanchep Youth Centre - Term 4 |
$76.00 |
|
76-579 |
|
24/10/2024 - Kmart - Refund - Yanchep Youth Centre - Term 4 |
-$12.00 |
|
76-580 |
|
24/10/2024 - Kmart - Food - School Engagement Event |
$18.00 |
|
76-581 |
|
29/10/2024 - Annual Fee - Credit Card Fee - Paid Monthly |
$5.00 |
|
76-582 |
|
25/10/2024 - Coles Online - Food - Yanchep Youth Centre - Term 4 - Drop In |
$97.75 |
|
76-583 |
|
30/10/2024 - Coles - Food - Yanchep Youth Centre - Term 4 - Drop In |
$10.60 |
|
76-584 |
|
01/10/2024 - Coles - Materials - School Holidays - Hungry Games |
$8.40 |
|
76-585 |
|
03/10/2024 - Officeworks - Materials - School Holidays - Kambarang Art |
$295.53 |
|
76-586 |
|
03/10/2024 - The Reject Shop - Materials - School Holidays - Kambarang Art |
$26.00 |
|
76-587 |
|
04/10/2024 - Coles Online - Food And Materials - October School Holidays - Kambarang Art |
$122.50 |
|
76-588 |
|
08/10/2024 - Coles Online - Food - Wanneroo Youth Centre - Term 4 - Drop In |
$95.30 |
|
76-589 |
|
09/10/2024 - Kmart - Materials - Wanneroo Youth Centre - Term 3 - Drop In |
$75.50 |
|
76-590 |
|
15/10/2024 - Coles - Food - Outreach |
$47.00 |
|
76-591 |
|
15/10/2024 - Coles Online - Food - Wanneroo Youth Centre - Term 4 - Drop In |
$51.75 |
|
76-592 |
|
16/10/2024 - Coles Online - Food - Children's Week Event |
$77.00 |
|
76-593 |
|
16/10/2024 - Rebel - Materials - Wanneroo Youth Centre - Term 4 - Drop In |
$209.92 |
|
76-594 |
|
17/10/2024 - Red Dot Stores - Food - Clarkson Youth Hub - Term 4 - Drop In |
$121.99 |
|
76-595 |
|
23/10/2024 - Coles Online - Food And Materials - Wanneroo Youth Centre - Term 4 - Drop In |
$80.20 |
|
76-596 |
|
24/10/2024 - Kmart - Materials - Clarkson Youth Hub - Term 4 - Drop In |
$5.50 |
|
76-597 |
|
24/10/2024 - Kmart - Materials - Wanneroo Youth Centre - Term 4 - Drop In |
$65.00 |
|
76-598 |
|
25/10/2024 - Woolworths - Food - Wanneroo Youth Centre - Term 4 - Drop In |
$3.20 |
|
76-599 |
|
26/09/2024 - Red Dot Stores - Materials - School Holidays - Abstract Art |
$208.72 |
|
76-600 |
|
27/09/2024 - Coles Online - Food - October School Holiday - Abstract Art And Pizza |
$139.36 |
|
76-601 |
|
29/10/2024 - Annual Fee - Credit Card Fee - Paid Monthly |
$5.00 |
|
76-602 |
|
29/10/2024 - St John Ambulance Aust - First Aid - Akailah Fernando |
$170.00 |
|
76-603 |
|
04/10/2024 - Coles Online - Food - Drop-In - Hainsworth Youth Centre |
$123.48 |
|
76-604 |
|
04/10/2024 - Kmart - Materials - Drop-In - Hainsworth Youth Centre |
$72.50 |
|
76-605 |
|
05/10/2024 - Kmart - Materials - Drop -In - Hainsworth Youth Centre - Refund |
-$20.00 |
|
76-606 |
|
08/10/2024 - Woolworths/Warwick Grove - Food - Drop-In - Hainsworth Youth Centre |
$22.00 |
|
76-607 |
|
11/10/2024 - Morris Supa Foods (W - Food - Drop-In - Hainsworth Youth Centre |
$28.67 |
|
76-608 |
|
14/10/2024 - Coles Online - Food - Drop-In - Hainsworth Youth Centre |
$91.92 |
|
76-609 |
|
17/10/2024 - Officeworks - Materials - School Leadership - Certificate Frame |
$198.00 |
|
76-610 |
|
17/10/2024 - Temu.Com - Materials - School Engagement / Events - Roseworth |
$54.67 |
|
76-611 |
|
18/10/2024 - Coles Online - Food - Drop-In - Hainsworth Youth Centre |
$89.81 |
|
76-612 |
|
18/10/2024 - Morris Supa Foods (W - Food - Drop-In - Hainsworth Youth Centre |
$17.07 |
|
76-613 |
|
24/10/2024 - Coles Online - Food - Drop-In - Hainsworth Youth Centre |
$143.86 |
|
76-614 |
|
29/10/2024 - Annual Fee - Credit Card Fee - Paid Monthly |
$5.00 |
|
76-615 |
|
23/10/2024 - Coles - Food - Outreach |
$28.40 |
|
76-616 |
|
24/10/2024 - Bcf Joondalup - Materials - Outreach - BBQ Stand |
$199.99 |
|
76-617 |
|
25/10/2024 - Kmart - Materials - Outreach - Kmart - Art Supplies |
$165.50 |
|
76-618 |
|
25/10/2024 - Woolworths - Food - Banksia Grove Fun Fest |
$45.00 |
|
76-619 |
|
25/10/2024 - Big W - Food - Banksia Grove Fun Fest |
$30.75 |
|
76-620 |
|
29/10/2024 - Coles - Food - Workshop 1 |
$49.00 |
|
76-621 |
|
29/10/2024 - Coles - Food - Outreach |
$69.90 |
|
76-622 |
|
29/10/2024 - Annual Fee - Credit Card Fee - Paid Monthly |
$5.00 |
|
76-623 |
|
29/10/2024 - Coles - Materials - Outreach - Bags |
$9.00 |
|
76-624 |
|
30/10/2024 - Coles - Food - Wanneroo Youth Centre - Term 4 - Drop In |
$20.30 |
|
76-625 |
|
30/10/2024 - Coles - Food - Workshop 1 |
$74.29 |
|
76-626 |
|
17/10/2024 - Post Wanneroo Post Sho - Working With Children Check |
$87.00 |
|
76-627 |
|
29/10/2024 - Annual Fee - Credit Card Fee - Paid Monthly |
$5.00 |
|
76-628 |
|
02/10/2024 - Coles Online - Food - October School Holidays |
$119.20 |
|
76-629 |
|
03/10/2024 - Woolworths - Materials - October School Holidays |
$5.20 |
|
76-630 |
|
03/10/2024 - Coles - Food - October School Holidays |
$7.80 |
|
76-631 |
|
09/10/2024 - Coles - Food - Clarkson Youth Hub - Drop-In - Term 4 |
$14.65 |
|
76-632 |
|
09/10/2024 - Amazon Marketplace Au - Materials - Event - Badge Makers |
$78.87 |
|
76-633 |
|
09/10/2024 - Amazon Marketplace Au - Materials - Event - Badge Makers |
$64.96 |
|
76-634 |
|
12/10/2024 - Amazon Marketplace Au - Materials - Clarkson Youth Hub |
$100.72 |
|
76-635 |
|
15/10/2024 - BCF Joondalup - Outreach - BBQ |
$539.00 |
|
76-636 |
|
16/10/2024 - Coles Online - Food - CYH - Drop-In - Term 4 |
$227.65 |
|
76-637 |
|
18/10/2024 - Amazon Marketplace Au - Material - Clarkson Youth Hub - Drop In-Term 4 |
$62.01 |
|
76-638 |
|
25/10/2024 - Kmart - Materials - School Holiday |
$166.00 |
|
76-639 |
|
29/10/2024 - Annual Fee - Credit Card Fee - Paid Monthly |
$5.00 |
|
76-640 |
|
30/10/2024 - Party Mix Clarkson - Materials - Party Mix Clarkson - Clarkson Youth Hub - Term 4 - Drop In |
$12.00 |
|
|
|
|
|
|
|
|
Total - NAB |
$75,132.27 |
|
|
|
|
|
|
|
|
Total - Credit Cards |
$88,804.51 |
|
|
|
|
|
|
TOWN PLANNING SCHEME |
|||
|
|
|
Cell 1 |
|
|
|
|
William Buck - Audit Fees |
$350.00 |
|
|
|
Omnicom Media Group - Perth Now - Advertising |
$47.88 |
|
|
|
|
|
|
|
|
Cell 2 |
|
|
|
|
William Buck - Audit Fees |
$518.00 |
|
|
|
Omnicom Media Group - Perth Now - Advertising |
$47.88 |
|
|
|
|
|
|
|
|
Cell 3 |
|
|
|
|
William Buck - Audit Fees |
$350.00 |
|
|
|
Omnicom Media Group - Perth Now - Advertising |
$47.88 |
|
|
|
|
|
|
|
|
Cell 4 |
|
|
|
|
William Buck - Audit Fees |
$518.00 |
|
|
|
Omnicom Media Group - Perth Now - Advertising |
$47.89 |
|
|
|
|
|
|
|
|
Cell 5 |
|
|
|
|
William Buck - Audit Fees |
$350.00 |
|
|
|
Omnicom Media Group - Perth Now - Advertising |
$47.89 |
|
|
|
|
|
|
|
|
Cell 6 |
|
|
|
|
William Buck - Audit Fees |
$462.00 |
|
|
|
Omnicom Media Group - Perth Now - Advertising |
$47.89 |
|
|
|
McGees - Valuations |
$733.34 |
|
|
|
HerronToddWhite - Valuations |
$533.34 |
|
|
|
|
|
|
|
|
Cell 7 |
|
|
|
|
William Buck - Audit Fees |
$420.00 |
|
|
|
Omnicom Media Group - Perth Now - Advertising |
$47.89 |
|
|
|
McGees - Valuations |
$733.33 |
|
|
|
HerronToddWhite - Valuations |
$533.33 |
|
|
|
|
|
|
|
|
Cell 8 |
|
|
|
|
William Buck - Audit Fees |
$462.00 |
|
|
|
Omnicom Media Group - Perth Now - Advertising |
$47.89 |
|
|
|
|
|
|
|
|
Cell 9 |
|
|
|
|
William Buck - Audit Fees |
$490.00 |
|
|
|
Omnicom Media Group - Perth Now - Advertising |
$47.89 |
|
|
|
McGees - Valuations |
$733.33 |
|
|
|
HerronToddWhite - Valuations |
$533.33 |
|
|
|
|
|
|
|
|
Total - TPS |
$8,150.98 |
|
|
|
|
|
|
General Fund Bank Account |
|||
|
|
|
Payroll Payments December 2024 |
|
|
|
|
10/12/2024 |
$17,369.38 |
|
|
|
10/12/2024 |
$2,310,340.99 |
|
|
|
10/12/2024 |
$16,648.22 |
|
|
|
23/12/2024 |
$2,382,179.32 |
|
|
|
23/12/2024 |
$25,012.47 |
|
|
|
23/12/2024 |
$20,113.45 |
|
|
|
23/12/2024 |
$4,014.48 |
|
|
|
23/12/2024 |
$45,267.96 |
|
|
|
|
|
|
|
|
Total - Payroll |
$4,820,946.27 |
|
|
|
|
|
|
|
31/12/2024 |
Municipal Account Bank Fees December 2024 |
|
|
|
|
CBA Pooling Maintenance Fee |
$50.00 |
|
|
|
Merchant fees |
$31,626.92 |
|
|
|
Amex Fee |
$538.62 |
|
|
|
BPAY Rates |
$21,516.38 |
|
|
|
BPAY FAC |
$77.79 |
|
|
|
BPAY Debtors |
$40.68 |
|
|
|
Bpoint Rates |
$484.35 |
|
|
|
Bpoint Debtors |
$1.14 |
|
|
|
Commbiz Transaction Fees |
$281.87 |
|
|
|
|
|
|
|
|
Total - Bank Fees |
$54,617.75 |
|
|
|
|
|
|
|
|
Total - Muni Recoup |
$24,374,995.18 |
|
|
|
|
|
|
|
|
Direct Payments Total (Includes Payroll, Bank Fees & Advance Recoup) |
$29,250,559.20 |
At the close of December 2024 outstanding creditors amounted to $4,121,813.45.
Consultation
Nil
Comment
The list of payment (cheques and electronic transfers) and the end of month total of outstanding creditors for the month of December 2024 is presented to the Council for information and recording in the minutes of the meeting, as required by the Local Government (Financial Management) Regulations 1996.
Statutory Compliance
Regulation 13(1) of the Local Government (Financial Management) Regulations 1996 requires a local government to list the accounts paid each month and total all outstanding creditors at the month end and present such information to the Council at its next Ordinary Meeting after each preparation. A further requirement of this Section is that the prepared list must be recorded in the minutes of the Council meeting.
Strategic Implications
The proposal aligns with the following objective within the Strategic Community Plan 2021 – 2031:
7 ~ A well governed and managed City that makes informed decisions, provides strong community leadership and valued customer focused services
7.2 - Responsibly and ethically managed
Risk Appetite Statement
In pursuit of strategic objective goal 7, we will accept a Medium level of risk as the City balances the capacity of the community to fund services through robust cost-benefit analysis and pursues evidence-based decision making to be effective stewards of the Council and City for future generations.
Risk Management Considerations
There are no existing Strategic or Corporate risks within the City's existing risk registers which relate to the issues contained in this report.
Policy Implications
Nil
Financial Implications
Nil
Changes to Reports arising from Agenda Briefing
Nil
Voting Requirements
Simple Majority
Attachments: Nil
CITY OF WANNEROO Minutes OF Ordinary Council Meeting 25 February, 2025 1
Property Services
CS06-02/25 Proposed Lease to AJS Motorcycle Club of WA Inc. over a portion of Reserve 10866, Wattle Road East, Neerabup
File Ref: 4822V001 – 24/395027
Responsible Officer: Director Corporate Strategy & Performance
Attachments: 1
Previous Items: CP03-06/24 - Wanneroo Raceway Master Plan Update - Ordinary Council - 18 Jun 2024
Issue
To consider a proposed new lease to AJS Motorcycle Club of WA Inc (AJS) over a portion of Reserve 10866 (440) Wattle Avenue, Neerabup (Reserve 10866).
Background
Reserve 10866
Reserve 10866 is situated on 440 (Lot 12748) Wattle Avenue, Neerabup and comprised in Certificate of Crown Land Title Volume LR3013 Folio 118.
The land is under the care and control of the City of Wanneroo (City) via a management order for the purpose of ‘Telecommunications Site, Motor Racing Track & Associated Infrastructure.’ The management order includes a power to lease or licence the land for not more than 21 years, subject to the consent of the Minister for Lands.
There are two City leased sites on Reserve 10866, each occupying their respective areas for long term periods:
· WA Sporting Car Club Inc, which occupies the majority west and southeastern portion under a lease approved by Council in March 2018 (CS11-03/18); and
· AJS, which occupies the northeastern portion.
Together both these entities occupy the whole of Reserve 10866.
Premises
AJS has occupied a 19.39-hectare portion of Reserve 10866 (Attachment 1 refers) since 1979 under lease arrangements, more recently via a ground lease which commenced on 1 July 2002 and expired on 30 June 2023. AJS has been operating from its site since on a month-by-month basis with the lease conditions of the expired lease whilst the condition of the site and terms of the new lease have been confirmed.
AJS uses the site for two disciplines of motorcycling, motor cross and motor trial. The site is in the vicinity of other motorcycling disciplines.
The leased area is made up of the motor cross and motor trial circuit, and multiple supporting infrastructure such as the control tower, clubhouse, pit stop shelter and toilets. The facilities located on the site are purpose built for the operations of AJS.
It is acknowledged by the parties that some of the
supporting infrastructure is aged and requires maintenance (and in some cases,
replacement). At the request of Administration, AJS submitted its business plan
outlining maintenance works planned for the next
12-24 months, with replacement of the toilet block and further decommissioning
of older infrastructure in future years.
Wanneroo Raceway Master Plan
The Wanneroo Raceway Master Plan, which was considered by Council in June 2024 (CP03-06/24), outlines the plan for the future development and enhancement of the area, including Jacks Hill and the AJS site.
While the Master Plan does not propose alterations to the current AJS infrastructure, it emphasizes improving access opportunities and exploring ways to introduce greater diversity in its use.
The continuation of the AJS site (under a longer tenure supporting AJS in improving its site) is consistent with the implementation of the Master Plan.
Detail
AJS has requested a longer-term as it is planning to undertake substantial improvements to its leased area in the coming years. The increased tenure will help AJS to secure the future of the motorsport disciplines it operates from the site.
AJS will be required to undertake its planned works as per its business plan and this will be a condition in the lease.
Proposed lease terms
The following proposed essential terms have been agreed to by the parties, subject to Council approval and consent from the Minister for Lands:
|
Lessee |
AJS Motorcycle Club of WA (Inc)
|
|
Land |
Lot 12748 on Deposited Plan 136619 being the land comprised in Certificate of Title Volume LR3013 Folio 118 (Reserve 10866). |
|
Premises |
Portion of the Land having an area of approximately 1.93 hectares and includes the infrastructure.
(Lease is on a ground lease basis, with Lessee responsible for all maintenance, including for capital and structural items.) |
|
Use of Premises |
Motorcycle Sports Facility |
|
Term |
Five (5) years, with one (1) option for renewal for a further term of five (5) years. |
|
Commencement Date |
The later of:
· the date the lease is executed by all parties; and · the date of the Minister for Lands’ consent to the lease,
provided that the Commencement Date must not be later than the date three (3) months after the date of the Minister for Lands’ consent to the lease.
(This method for determining the Commencement Date reflects DPLH practice as part of confirming the Minister for Lands’ approval under section 18 of the Land Administration Act.) |
|
Rent |
$1 (peppercorn) per annum plus GST, payable on demand. |
|
Rates & Taxes |
All rates and taxes assessed on the Premises are payable by the Lessee. |
|
Outgoings/Services |
All outgoings associated with the Premises, including electricity, water and gas, telephone, etc. shall be payable by the Lessee whether billed directly or otherwise.
|
|
Building Insurance |
Lessee responsibility
|
|
Other Insurance (including contents, public liability, plate glass and the like) |
Lessee responsibility |
|
Maintenance and cleaning of Premises |
Lessee responsibility |
|
Structural Maintenance |
Lessee responsibility |
|
Statutory Compliance |
Lessee responsibility |
Final draft ground lease documentation (based on a City template and reviewed by the City’s internal legal section), incorporating the agreed essential terms as outlined in this report, has been presented to AJS and agreed ‘in principle.’
The lease has received consent from the Minister for Lands, as required under section 18 of the Land Administration Act 1997 (WA).
Consultation
Relevant Administration service units have been consulted during the lease negotiation process.
Administration is supportive of the proposed lease, noting that AJS has occupied the site for many years and continues to be an important part of the Wanneroo motorsport community.
Comment
Administration recommends the proposed lease of portion of Reserve 10866 to AJS as outlined in this report. The site is considered a significant and well-used community facility.
The new lease is consistent with the Wanneroo Raceway Master Plan and will provide long term tenure for AJS.
The lease also formalises additional obligations for AJS to address maintenance and replacement of aging infrastructure at the site.
Statutory Compliance
AJS is a not-for-profit organisation. It generates income from bar and food sales, functions, and annual memberships.
Given AJS’ not-for-profit status, the proposed lease is an exempt disposition of property under regulation 30 of the Local Government (Functions and General) Regulations 1996 (WA), and accordingly a local public notice under section 3.58(3) of the Act does not apply.
Strategic Implications
The proposal aligns with the following objective within the Strategic Community Plan 2021 – 2031:
1 ~ An inclusive and accessible City with places and spaces that embrace all
1.3 - Facilities and activities for all
Risk Appetite Statement
In pursuit of strategic objective goal 1, we will accept a Medium level of risk. The recent pandemic has challenged our previous event delivery, place activation and community connection processes, and the City accepts that meeting community expectations in a more restrictive environment needs flexibility and innovation if community connection is to develop and grow in contrast to social and individual isolation.
Risk Management Considerations
|
Risk Title |
Risk Rating |
|
ST-S23 Stakeholder Relationship |
Medium |
|
Accountability |
Action Planning Option |
|
Chief Executive Officer |
Manage |
The risk relating to the issues contained within this report has been identified and considered in the City’s Strategic risk register. Administration has developed action plans to manage this risk to support existing management systems.
Policy Implications
AJS is classified as a Category 5 organisation under the City’s Leasing Policy.
The proposed new lease has been negotiated in accordance with the City’s Leasing Policy for ground leases.
The area of the Premises (exceeding 2,000m2) means that the lease cannot be executed under any current delegation by Council and instead requires a formal Council approval.
Financial Implications
Lease income
The proposed tenure is a ground lease with a $1 per annum (peppercorn) and the lessee will be responsible for maintenance of the infrastructure including capital works to replace and repair as the lease progresses. AJS is also responsible for operating and utility costs for the site.
No maintenance fee is payable.
Future expenditure
AJS is in the process of upgrading some of the infrastructure at the site. Administration has requested AJS to update the City when infrastructure is upgraded.
Whilst the lease is a ground lease, the City as landlord (in addition to any involvement as a local authority) will have an oversight of what infrastructure is installed and for AJS’ compliance with maintenance obligations.
Changes to Reports arising from Agenda Briefing
Nil
Voting Requirements
Simple Majority
|
1⇩. |
Attachment 1 - AJS Motorcycle Club of WA - Plan of Lease Area |
24/424900 |
|
Cr Huntley declared an impartiality interest in Item CS07-02-25 due to being a member of the Wanneroo RSL.
File Ref: 40213V004 – 25/533
Responsible Officer: Director Corporate Strategy & Performance
Attachments: 2
Previous Items: CS04-11/22 - Proposed Lease to The Returned Services League (WA Branch) Incorporated for Shed and Storage Area at 935-937 Wanneroo Road, Wanneroo Road (Enterprise House) - Ordinary Council - 08 Nov 2022
Issue
To consider a proposed renewal of a lease to The Returned & Services League of Australia (WA Branch) Incorporated (Wanneroo RSL) for a shed and storage area at 935-937 Wanneroo Road, Wanneroo (Enterprise House).
Background
Enterprise House
Enterprise House is situated across two land parcels, Lots 91 (935) and 90 (937) Wanneroo Road, Wanneroo, having a combined area of area of 2,023.27m2 (approximate). The property is owned in freehold by the City of Wanneroo (City).
Office areas in Enterprise House are currently leased to the Wanneroo Business Association and the Northern Suburbs Community Legal Centre. The remainder of the building is used by City staff and by other community members and groups on a hire basis.
Wanneroo RSL Lease
Wanneroo RSL currently occupies a shed and storage area at Enterprise House.
The existing lease, approved by Council in November 2022 (CS04-11/22), has a two year term, expiring on 30 January 2025 and continuing thereafter as a monthly tenancy on holding over under the terms of the existing lease.
The existing lease had required Council approval, given that Wanneroo RSL had requested a peppercorn (nominal) rent, which would not ordinarily be supported for freehold land. The City’s Leasing Policy indicates that a tenant such as Wanneroo RSL (which would be under Category 6 of the Policy, ‘Volunteers and Support Services’) should either be situated on Crown land or pay a commercially-based rent for freehold land.
Wanneroo RSL has requested a new lease over the shed and storage area, which it intends to continue using for the purpose of restoring a 1960s period Australian Army truck (known as ‘Lizzy’). The restoration is progressing well (with progression photos attached – Attachment 1 refers), however, it is taking longer than originally anticipated.
Wanneroo RSL is aiming for completion of the restoration by the end of the 2025 calendar year, but has flagged that the works may run into 2026 and therefore the proposed arrangement as outlined below gives it some room to move in this event.
Wanneroo RSL has not confirmed as yet where it intends to store the truck following the completion of the restoration but is aware its storage will not be able to be accommodated at Enterprise House due to upgrade works that are planned for Enterprise House in the medium term.
In addition to the site at Enterprise House, Wanneroo RSL also currently leases a portion of the ground floor area at the Wanneroo Community Centre (WCC). This lease is also on a peppercorn basis, approved by Council in December 2019 (CS06-12/19). The WCC lease has subsequently been renewed for a five year option term, due to expire on 6 April 2030.
Detail
Following the request by Wanneroo RSL to enter into a new lease over the shed and storage area, the following proposed lease terms have been negotiated, subject to Council approval.
With the exception of the bond (which Wanneroo RSL has agreed to provide), the negotiated terms are consistent with the existing lease approved by Council in November 2022.
|
Lessee: |
The Returned & Services League of Australia (WA Branch Incorporated) |
|
Land:
|
Lot 91 (935) Wanneroo Road, Wanneroo (Lot 91 on Deposited Plan 223193) and Lot 90 (937) Wanneroo Road, Wanneroo (Lot 90 on Deposited Plan 223193) (both comprised in Certificate of Title Volume 1095 Folio 593)
|
|
Premises: |
Portion of 935-937 Wanneroo Road, Wanneroo (approx. 40m² shed, plus approx. 85m² enclosed courtyard) (Attachment 2 refers) |
|
Common Areas: |
Access and parking areas for the Premises (Attachment 2 refers) |
|
Lease Term: |
One (1) year
(Term (and option term below) has been negotiated with regard to Wanneroo RSL’s advised anticipated timeframe of the end of 2025 for completion of the truck restorations.) |
|
Commencement Date: |
31 January 2025 |
|
Lease Rental: |
$1 (plus GST) per annum (peppercorn), payable on demand.
The rental is consistent with the terms approved by Council for Wanneroo RSL’s lease of the Premises (CS04-11/22).
|
|
Option Term: |
One x one (1) year option
|
|
Building Maintenance Fee: |
Nil |
|
Permitted Purpose: |
Storage, maintenance and restoration of 1960s period Australian Army truck. |
|
Utility Outgoings: |
Lessor responsibility, albeit it is noted there is no water or gas associated with the Premises.
This position is consistent with the terms approved by Council for Wanneroo RSL’s lease of the Premises (CS04-11/22).
Based on the existing lease, and the level of electrics in the Premises being a few fluorescent lights and a couple of power points, electricity usage is considered minimal. |
|
HVAC: |
Not applicable – no HVAC exists for the portion of the site comprised in the Premises. |
|
Building Insurance: |
Lessor responsibility |
|
Public Liability Insurance:
|
Lessee responsibility – Minimum $20 million
|
|
Other Insurances: |
Lessee responsibility
|
|
Maintenance: |
Lessee responsibility |
|
Structural Maintenance: |
Lessor responsibility |
|
Guarantee (Bond): |
$5,000
|
|
Cleaning: |
Lessee responsibility |
|
Rates & Taxes: |
Lessee responsibility
|
|
Lessee Services: |
Lessee responsible for the provision of special requirements such as the connection, service and billing of telephone, broadband services and the like.
|
|
Consumables: |
Lessee responsibility
|
Consultation
The essential terms of the proposed lease have been prepared in consultation with Wanneroo RSL.
Administration has determined that the Premises is not required by the City during the proposed short term lease to Wanneroo RSL.
A building maintenance fee (as outlined in the essential terms table earlier in this report) will not apply given there is only one item of compliance that needs to be met and that is the supply and maintenance of a fire extinguisher that is addressed by the City’s overall fire compliance for Enterprise House as a whole.
Comment
Administration recommends the proposed lease of the Premises to Wanneroo RSL as outlined in the current report. The lease will support Wanneroo RSL to complete its renovation project.
Enterprise House will be subject to upgrades in the future, noting it is an aging building and is listed on the City’s Draft Local Heritage Survey 2024. The building is pertinent to the Local Planning Policy 4.12 Heritage Places and therefore any works proposed for the building will need to align with the policy to ensure the heritage significance of the building is not impacted. The scope and timing for upgrades are still to be determined and are not the subject of the current report.
Any upgrades will not occur in the short term and so the term of the proposed lease (with the option) is considered appropriate.
Statutory Compliance
Under regulation 30 of the Local Government (Functions and General) Regulations 1996 (WA), the proposed lease to Wanneroo RSL is an exempt disposition of property to which section 3.58 of the Act does not apply.
Strategic Implications
The proposal aligns with the following objective within the Strategic Community Plan 2021 – 2031:
6 ~ A future focused City that advocates, engages and partners to progress the priorities of the community
6.3 - Build local partnerships and work together with others
Risk Appetite Statement
In pursuit of strategic objective goal 6, we will accept a Medium level of risk extended to High in the areas of Community / Reputation, Financial / Commercial & Management Systems / Operations impacts. This is required to address legacy ways of operating, support investment in the technology changes needed to deliver digital democracy, citizen engagement and involvement and move to more data-driven decision-making which may not align with Community sentiment or expectation.
Risk Management Considerations
|
Risk Title |
Risk Rating |
|
CO-O08 Contract Management |
Low |
|
Accountability |
Action Planning Option |
|
Director Corporate Strategy & Performance |
Manage |
Policy Implications
Wanneroo RSL is a Category 6 tenant (‘Volunteers and Support Services’) under the City’s Leasing Policy. Although the Leasing Policy would ordinarily require a maintenance fee from a tenant in this category, Administration is satisfied that no such fee is relevant to the current tenancy (due to it being limited to a storage and works area).
A Category 6 tenant should also be situated on Crown land, unless the tenant is paying a commercially based rent. Wanneroo RSL has not previously agreed to a rent (other than a peppercorn, nominal rent) and has requested that this position continues under the proposed new lease.
Administration supports the recommended rental position, noting the position is consistent with the existing lease and helps the Wanneroo RSL to provide a benefit to the community. However, the proposed terms being inconsistent with the Leasing Policy means that the lease cannot be executed under any current delegation by Council and instead requires a formal Council approval.
Financial Implications
The costs associated with the area proposed for lease would be very minimal as the only service feeding the shed is electricity and this is considered negligible in the context of Enterprise House as a whole. There is no water or gas associated with the Premises.
In addition to the minimal provision of services to the Premises as described above, there is no heating, ventilation and air conditioning associated with the Premises and therefore costs associated with such are not applicable.
Based on the proposed lease involving a non-commercial use of freehold land (at a peppercorn, nominal rent), the Leasing Policy provides that the opportunity cost of the lease should be acknowledged in the report to Council.
For the proposed Wanneroo RSL lease, Administration assesses that the leased area would have a commercial net rental value in the range of $2,000 to $4,000 plus GST per annum.
Changes to Reports arising from Agenda Briefing
Nil
Voting Requirements
Simple Majority
Attachments:
|
1⇩. |
Attachment 1 - Photos of Lizzy army truck |
25/36342 |
|
|
2⇩. |
Attachment 2 - Wanneroo Returned Services League - Lease and Licence Area Plan |
22/376398 |
|
CITY OF WANNEROO Minutes OF Ordinary Council Meeting 25 February, 2025 1
Chief Executive Office
File Ref: 2286V02 – 24/410982
Responsible Officer: Chief Executive Officer
Attachments: Nil
Issue
To consider the recommendation of the Audit and Risk Committee (the Committee) to endorse the three new strategic risks and the updated City of Wanneroo’s (City) Strategic Risk Profile; noting the two high rated strategic risks ST-S29 Waste Services and ST-S30 Polyphagous shot-hole borer (PSHB).
Background
At the Audit and Risk Committee meeting on 19 November 2024, the Committee reviewed the updated Strategic Risk Profile including the three new Strategic Risks as outlined below:
High Rated Strategic Risk
1. ST-S29 Waste Services - The recent information has indicated that subject to the Mindarie Regional Council’s decisions on its waste management initiatives, Tamala Park Landfill Facility may not be available from late 2026.
2. ST-S30 Tree infection - Polyphagous shot-hole borer (PSHB) - Some suburbs in the Perth Metropolitan Area have seen trees getting infected with PSHB and due a lack of any known treatment, there is a risk that the infection may impact trees within the City.
Medium Rated Strategic Risk
3. ST-S31 Economy – To recognise the risk relating to the current uncertainties in the economy and its impact to the City’s financial sustainability and its strategic objectives.
The Committee recommends Council to endorse the three new strategic risks and the City’s updated Strategic Risk Profile.
Detail
The City’s current Strategic Risk Profile identifies 15 strategic risks that are monitored by the Audit and Risk Committee and with the profile reported to Council for endorsement.
Consultation
A review of the strategic risks was conducted with the Executive Leadership Team (ELT) on 17 September 2024 as part of the six-monthly review.
The Audit and Risk Committee reviews the City’s Strategic Risk Register biannually, as last conducted on 19 November 2024.
Comment
The Audit and Risk Committee has reviewed and considered for Council endorsement the City’s Strategic Risk Profile as set out in the following table. Noting the three new risks in red.
Strategic Risk Profile
|
Risk Description |
Residual Risk Rating |
|
||||
|
ST-G09 Long Term Financial Planning |
Ineffectiveness in long term financial planning leads to poor financial management including efficiency and timing of service and asset provision impacting the City's sustainability |
Low |
|
|||
|
ST-S04 Integrated Infrastructure & Utility Planning |
Infrastructure is not delivered in a timely and coordinated way leading to issues with access and service levels and/or additional expenses |
Low |
|
|||
|
ST-S05 Water Availability |
Ineffective City preparedness for potential reduced water availability impacts business and community service delivery |
Medium |
|
|||
|
ST-S06 Climate Change |
Lack of preparedness to respond and adapt to climate change impacts leading to community and financial implications |
Medium |
|
|||
|
ST-S12 Economic Growth |
Ineffective economic development intervention results in limited opportunity to create local employment opportunities impacting on the City's vision to create sustainable communities |
Medium |
|
|||
|
ST-S20 Strategic Community Plan |
Inadequate strategic community planning results in misaligned strategies between the City and the Community |
Low |
|
|||
|
ST-S23 Stakeholder Relationships |
Ineffective engagement with stakeholders leads to, lost opportunities and negatively impacts on the quality of the relationship and the City’s brand |
Medium |
|
|||
|
ST-S24 Strategic Asset Management |
Inadequate asset management processes and systems impacts on the City's ability to manage assets strategically |
Medium |
|
|||
|
ST-S25 Legislative Reform or changes |
Lack of preparedness to accommodate Legislative reform changes impacts on the City's ability to deliver the CBP, stakeholder commitments and operational effectiveness requires diversion of resources from current priorities and activities |
Low |
|||
|
ST-S26 Resilient and Productive Communities |
Lack of planning to deliver healthy, safe, vibrant and connected communities impacts on the ability of the Community to have productive lives and (respond) recover from adversity. |
Medium |
|||
|
ST-S27 Rising Ground Water |
Ineffective preparedness for managing rising ground water impacts businesses, community and management of City assets. |
Medium |
|||
|
ST-S28 Local Housing Planning |
Lack of planning for fluctuations (booms and bursts) in the housing market has detrimental effect on the community and their quality of life |
Medium |
|||
|
ST-S29 (New) Waste Services |
Disruption to City's waste collection and processing impacts on the community and service delivery |
High |
|||
|
ST-S30 (New) Polyphagous shot-hole borer (PSHB) |
Tree infection spreads within the City impacting on the environment, habitat for wildlife, climate conditions and landscape of the City |
High |
|||
|
ST-S31 (New) Economy |
Changing Economic conditions impacts on the City's sustainability and ability to deliver community outcomes |
Medium |
|||
Statutory Compliance
Implementation of Risk Management at the Strategic and Operational levels will assist the City to embed effective systems and processes for managing risk in line with the requirements of the Local Government (Audit) Regulations 1996.
Strategic Implications
The proposal aligns with the following objective within the Strategic Community Plan 2021 – 2031:
7 ~ A well governed and managed City that makes informed decisions, provides strong community leadership and valued customer focused services
7.1 - Clear direction and decision making
Risk Appetite Statement
In pursuit of strategic objective goal 7, we will accept a Medium level of risk as the City balances the capacity of the community to fund services through robust cost-benefit analysis and pursues evidence-based decision making to be effective stewards of the Council and City for future generations.
Risk Management Considerations
|
Risk Title |
Risk Rating |
|
CO-O16 Risk Management |
Medium |
|
Accountability |
Action Planning Option |
|
Executive Manager Governance & Legal |
Manage |
The above risk relating to the issue contained within this report have been identified and considered within the City’s Corporate risk register. Action plans have been developed to manage this risk to support existing management systems.
Policy Implications
Nil
Financial Implications
Nil
Changes to Reports arising from Agenda Briefing
Confidential memorandum provided to Council Members on the Polyphagous shot-hole borer.
Voting Requirements
Simple Majority
CITY OF WANNEROO Minutes OF Ordinary Council Meeting 25 February, 2025 1
Withdrawn Change to Appointment of Presiding and Deputy Presiding Members of Committees
This report has been removed following legal advice, further investigation is required. It will be resubmitted for consideration at the March 2025 Council Meeting.
File Ref: 7349V02 – 24/420500
Responsible Officer: Chief Executive Officer
Attachments: Nil
Issue
To consider the recommendation of the Audit and Risk Committee (Committee) to note the progress update of the high rated Corporate Risk CO-O10 Workforce Planning.
Background
Corporate risks are managed by Administration and reviewed on a bi-annual basis. The updated Corporate Risk Profile is provided to the Committee for information only and to note any High or Extreme risks in accordance with the Committee’s Terms of Reference (Terms of Reference).
The Committee refers to Council to note any risks rated High or Extreme in accordance with the City of Wanneroo’s (City) Risk Management framework.
At the Audit and Risk Committee meeting on 19 November 2024, the Committee:
· considered the City’s Corporate Risk Profile;
· the CO-O10 Workforce Planning risk rated as High;
· noted the CO-O17 Financial Management risk that has been re-rated from high to medium; and
· recommended to Council to note the high rated Corporate Risk as detailed in this report.
Detail
The City’s Corporate Risk Profile contains key operational risks that are systemic across the City’s Directorates which can potentially impact the City’s operations and may affect the achievement of the Corporate Business Plan (CBP). These risks are monitored and managed by Administration through regular identification, profiling, assessment, action planning and systematic review.
On 9 October 2024 Executive Leadership Team (ELT) undertook its bi-annual review of the Corporate Risk Profile using the Council adopted Risk assessment criteria and the following Corporate Risk remained as rated High whereas CO-O17 Financial Management has been re-rated to Medium:
· CO-O10 Workforce Planning
In summary, there are 21 corporate risks including 1 inactive risk which are captured within the City’s Corporate Risk profile rated as follows:
|
0 Extreme |
1 High |
15 Medium |
5 Low |
The ELT and responsible officers will continue to monitor all corporate risks to ensure actions are progressing to manage and mitigate any potential exposure to avoid or minimise any impact to the City.
Consultation
Administration is responsible for the ongoing review and management of corporate risk.
In accordance with the Terms of Reference, the Committee is to oversee the management of risks rated extreme and high on a quarterly basis and report to Council.
Comment
The review session primarily focused on the detail currently set out within the Corporate risk register in relation to the relevance of the controls and their actions and the evidence to support those controls such as documented processes, policies and framework references. Actions are in place to manage and monitor these risks with regular follow-up and progress updates being provided by respective risk and action owners.
Action plans are in place to manage and monitor these risks with regular follow-up and progress updates being provided by respective risk and action owners. Currently there are no corporate risks rated as extreme and there is one corporate risk rated as High set out in the table below:
|
Risk Title |
Risk Description |
Risk Rating |
|
CO-O10 Workforce Planning |
Workforce Planning inadequacies may lead to negative impacts on service delivery and corporate projects. |
High |
The Corporate Risk CO-O10 Workforce Planning is rated high due to the impacts of external factors such as the current skill shortage. At the time of the review the City’s Workforce Plan was in the next stage of development. Since then, the City’s Workforce Plan was endorsed by Council in December 2024. This risk will be further reviewed at the next Corporate Risks Review schedule for April 2025.
At its meeting on 19 November 2024, the Committee considered the City’s Corporate Risk Profile and the risk rated as High as set out above. The Committee recommends that Council notes the progress update on the above Corporate Risk rated as High.
Statutory Compliance
Implementation of Risk Management at the strategic, corporate and operational levels will assist the City to embed effective systems and processes for risk management in line with the requirements of the Local Government (Audit) Regulations 1996.
Strategic Implications
The proposal aligns with the following objective within the Strategic Community Plan 2021 – 2031:
7 ~ A well governed and managed City that makes informed decisions, provides strong community leadership and valued customer focused services
7.1 - Clear direction and decision making
Risk Appetite Statement
In pursuit of strategic objective goal 7, we will accept a Medium level of risk as the City balances the capacity of the community to fund services through robust cost-benefit analysis and pursues evidence-based decision making to be effective stewards of the Council and City for future generations.
Risk Management Considerations
|
Risk Title |
Risk Rating |
|
CO-O16 Risk Management |
Medium |
|
Accountability |
Action Planning Option |
|
Executive Manager Governance & Legal |
Manage |
The above risk relating to the issue contained within this report has been identified and considered within the City’s Corporate risk register.
Policy Implications
Nil
Financial Implications
Nil
Changes to Reports arising from Agenda Briefing
Nil
Voting Requirements
Simple Majority
Attachments: Nil
CITY OF WANNEROO Minutes OF Ordinary Council Meeting 25 February, 2025 1
CE03-02/25 Ordinary Council Meetings and Forums of Council Policy - Exemption Request
File Ref: 50350 – 24/449104
Responsible Officer: Chief Executive Officer
Attachments: 1
Issue
Consider exemption requests from the Ordinary Council Meetings and Forums of Council Policy (Policy).
Background
Under Section 2.7(2)(b) of the Local Government Act 1995 (the Act), Council is tasked with determining policies for the local government. Additionally, Section 5.41(b) of the Act requires the Chief Executive Officer to provide Council with the necessary advice and information to enable informed decision-making.
On 12 November 2024, Council adopted the Ordinary Council Meetings and Forums of Council Policy (CE01-11/24). Section 6.2 of this policy specifies that Working Group meetings are to be held on the first, third, or fifth Monday of each month at 6:00pm in the Lechenaultia Room at the City of Wanneroo (City). These meetings are confidential and closed to the public. Agenda papers are required to be distributed to Council Members by 5:00pm on the preceding Wednesday.
The Community Safety Working Group (CSWG) Administrator has advised that members of the Working Group are unable to attend meetings as required under the Policy and requested an exemption from the meeting scheduling requirements.
Detail
The CSWG has requested to hold their meetings on Thursdays at 5:30pm. If this exemption is granted, agendas for these meetings would be distributed on the Monday prior to the scheduled meeting date.
This exemption would allow the CSWG to accommodate its members’ availability while maintaining adherence to the principles of confidentiality and effective communication outlined in the Policy.
Consultation
Members of the CSWG were informed of the adoption of the new Policy. Feedback was sought regarding its impact on their ability to participate in meetings, leading to the request for an exemption based on member availability.
Comment
The exemption request by the CSWG reflects a practical need to adapt the City’s governance framework to accommodate the availability of its members. Ensuring member participation is essential to the effective functioning of the CSWG and their ability to meet their objectives.
Approving the requested schedule change from Mondays at 6:00pm to Thursdays at 5:30pm for the CSWG demonstrates a commitment to flexibility and inclusivity, which aligns with the City’s strategic goals of clear direction and decision-making. This adjustment can improve meeting attendance, enhance the quality of discussions, and ultimately lead to better outcomes for the community.
Additionally, the proposed exemption does not compromise statutory obligations or the principles of confidentiality as outlined in the policy. The adjusted timeline for agenda distribution still allows sufficient time for members to prepare for meetings, ensuring that the integrity of the decision-making process is maintained.
Administration recommends that Council approve the proposed exemption and update the Policy to formally include an exemption option. This change will enhance Council’s ability to accommodate the diverse operational needs of its Working Groups and Committees while ensuring adherence to established governance principles and maintaining transparency and accountability in decision-making processes.
Statutory Compliance
Sections 2.7(2) (b) and 5.41(b) of the Local Government Act 1995.
Strategic Implications
The proposal aligns with the following objective within the Strategic Community Plan 2021 – 2031:
7 ~ A well governed and managed City that makes informed decisions, provides strong community leadership and valued customer focused services
7.1 - Clear direction and decision making
Risk Appetite Statement
In pursuit of strategic objective goal 7, we will accept a Medium level of risk as the City balances the capacity of the community to fund services through robust cost-benefit analysis and pursues evidence-based decision making to be effective stewards of the Council and City for future generations.
Risk Management Considerations
There are no existing Strategic or Corporate risks within the City's existing risk registers which relate to the issues contained in this report.
Policy Implications
If approved, the Policy will be updated to reflect the exemption capability, specifying the revised meeting schedule and distribution timeline for agendas.
Financial Implications
Any additional costs would be covered by the operational budget.
Changes to Reports arising from Agenda Briefing
Exemption request for the Bush Fire Advisory Committee has been withdrawn from the report following confirmation that it does not qualify under the Policy as a Council Committee. (“Council Committee - A committee established under section 5.8 of the Act.”).
Voting Requirements
Simple Majority
Attachments:
|
1⇩. |
Attachment 1 - Ordinary Council Meetings and Forums of Council - Council Policy (with tracked changes) |
24/347840[v2] |
|
CE04-02/25 City of Wanneroo Integrity Framework Review
File Ref: 50350 – 25/4993
Responsible Officer: Chief Executive Officer
Attachments: 3
Previous Items: CE08-03/17 - Fraud and Misconduct Control and Resilience Framework - Ordinary Council - 07 Mar 2017
Issue
To consider the renaming and review of the Fraud and Misconduct Control and Resilience Framework (Framework).
Background
At the Ordinary Council Meeting of 7 March 2017 (CE08-03/17), Council adopted the framework (Attachment 1) after an assessment was undertaken of the City of Wanneroo’s (City) susceptibility to fraud and misconduct and the need to integrate the fraud and misconduct risk assessments into the City’s Operational Risk Registers.
In adopting the fraud and misconduct control strategies set out in the Framework, consideration was given to –
· Western Australian Corruption and Crime Commission – Misconduct Resistance Guidelines (CCC Guidelines);
· Western Australian Corruption and Crime Commission and Public Sector Commission (Joint) – Notification of Misconduct in Western Australia Guidelines (Notification Guidelines);
· The Australian Minister for Home Affairs and Minister for Justice – Commonwealth Fraud Control Guidelines (Commonwealth Guidelines);
· Australian National Audit Office – Fraud Control in Australian Government Entities Better Practice Guide (ANAO Better Practice Guide); and
· Standards Australia – AS 8001-2008 Fraud and Corruption Control (the Australian Standard).
Detail
Since the last review, the Australian National Audit Office (ANAO) Guidelines have been withdrawn, the Standards (AS 8001:2008) have been superseded by AS 8001:2021 (the Standards) and several other documents used as a basis for the development of the City’s Framework have been amended.
The AS 8001-2008 was primarily concerned with fraud perpetrated by employees or others closely connected to the entity, but with the increasing sophistication of information technology and internet-based systems, there is escalating incidences of external fraud attacks. The standards now include minimum requirements for controlling external, often technologically driven attacks.
The reviewed draft Framework (Attachment 2 and 3) has been prepared on the basis that AS8001-2021 is recognised as the benchmark guide for managing and mitigating fraud and corruption risks and has been structured using, as the base document, the Fraud and Corruption Control Framework produced by the Department of Energy, Mines, Industry Regulations and Safety (DMIRS) which is deemed to meet the requirements of the updated Standards.
Notwithstanding that the Chief Executive Officer and Executive have the principal roles and accountabilities in managing, on a day-to-day basis, the City’s fraud and corruption risks, it was also identified as part of the review that clearly defined roles and accountabilities of the Council for controlling the City’s fraud and corruption exposures as required by clause 2.1(a) and (e) of the AS8001-2021 were not included in the Framework.
The City’s external legal advisors, McLeods Solicitors reviewed the draft Framework ‘to provide assurance that it meets the requirements of the Standards and the principles of the Public Sector Commission’s Ethics Framework’.
The response received from McLeods Solicitors, in summary stated –
“My overall assessment of the Draft Framework is that, subject to the comments that follow, it substantially meets the requirements of AS8001-2021 and the principles of the PSC Ethical Foundations.”
The comments that followed provided recommendations for minor change to the text of the document.
Consultation
Internal stakeholders, along with the City’s external legal advisors and the Public Sector Commission (PSC) have been consulted in the drafting of the reviewed Framework.
Comment
Fraud, corruption and misconduct prevention is rooted in a culture of fraud awareness, understanding policies and procedures, and continuous communication about the importance of fraud prevention from the top down and the foundation for prevention and detection is a structured risk assessment that addresses the actual risks faced by the City.
As detailed in the Framework, Fraud Risk Assessment reviews are undertaken every two years facilitated by an external consultant and regular internal reviews conducted with risk owners. A dedicated intranet and external web page are available to City officers and the public with information in relation to fraud and misconduct risks, the City’s fraud and misconduct control and resilience strategies and the tools and mechanisms for reporting.
It is considered that the reviewed draft Framework now meets all the requirements of an effective integrity framework. Further, advice from the PSC has suggested that the City may wish to consider re-titling its Framework to the City of Wanneroo Integrity Framework depicting a more proactive terminology and placing the emphasis on integrity culture rather than pure compliance with integrity obligations. The City’s Executive are supportive of this name change.
Statutory Compliance
Corruption, Crime and Misconduct Act 2003
Strategic Implications
The proposal aligns with the following objective within the Strategic Community Plan 2021 – 2031:
7 ~ A well governed and managed City that makes informed decisions, provides strong community leadership and valued customer focused services
7.2 - Responsibly and ethically managed
Risk Appetite Statement
In pursuit of strategic objective goal 7, we will accept a Medium level of risk as the City balances the capacity of the community to fund services through robust cost-benefit analysis and pursues evidence-based decision making to be effective stewards of the Council and City for future generations.
Risk Management Considerations
|
Risk Title |
Risk Rating |
|
CO-012 Fraud and Misconduct |
Medium |
|
Accountability |
Action Planning Option |
|
Executive Manager Governance & Legal |
Manage |
The above risk relating to the issue contained within this report have been identified and considered within the City’s Corporate risk register. Action plans have been developed to manage this risk through the development and implementation of the Framework.
Policy Implications
Policies and procedures were developed to support the Framework and will be reviewed after the adoption of the Framework review to ensure they align with the reviewed Framework.
Financial Implications
Costs associated with ongoing training and development of employees and the maintenance of the Online Training Module.
Changes to Reports arising from Agenda Briefing
Recommendation has been updated to include item 1. Attachment 3 has been updated to amend the document name to Integrity Framework and include the Chief Executive Officer’s name on page two.
Voting Requirements
Simple Majority
|
1⇩. |
Attachment 1 - Fraud and Misconduct Control and Resilience Framework (Current) |
24/269409 |
|
|
2⇩. |
Attachment 2 - Fraud and Misconduct Control and Resilience Framework Review 2024 (Mark Up) |
24/269403 |
|
|
3⇩. |
Attachment 3 - City of Wanneroo Integrity Framework (Clean Version) |
15/600585[v3] |
|
CITY OF WANNEROO Minutes OF Ordinary Council Meeting 25 February, 2025 1
Council Support
File Ref: 14553V017 – 25/15578
Responsible Officer: Chief Executive Officer
Attachments: Nil
Previous Items: CS10-11/24 - Proposal for Minor Change to Ward Boundary - Ordinary Council - 12 Nov 2024
Issue
To provide an update on the progress of the City of Wanneroo’s (City) application to the Local Government Advisory Board (Board) for a change to ward boundaries.
Background
Schedule 2.2 of the Local Government Act 1995 (the Act) requires local governments that implement a system of wards to keep ward boundaries and representation under review to ensure that the ward system remains fit for purpose and appropriately representative.
Analysis of data from the 2023 Ordinary Council Election reveals that, as a result of population growth since the implementation of the current seven-ward arrangement, the Councillor: elector ratio in the City’s North-East Ward and North Ward had come to vary by (respectively) -12.97% and +11.49% from the district average. This variance is greater than the +/-10% maximum recommended by the Board.
Changes to ward boundaries can be made by following one of two processes. Council may:
· (under Schedule 2.2 s.5(a) of the Act) implement a review of wards and representation, which must include a period of public consultation, followed by a submission to the Board; or
· (under Sch. 2.2 s.5(b)) directly propose to the Board the making of an order to implement a change without public consultation if the change is one of a minor nature.
Council at its meeting on 12 November 2024 resolved as follows:
“That Council by ABSOLUTE MAJORITY DIRECTS Administration to propose to the Local Government Advisory Board the making of an order under Section 2.2(1)(c) of the Local Government Act 1995 to change the boundary of the North-East Ward to include the suburb of Jindalee and to change the boundary of the North Ward accordingly.”
The proposed change, being to transfer the suburb of Jindalee from the North Ward to the North-East Ward, is intended to bring the ratio variance in the two wards within the +/-10% recommended by the Board.
Noting the short time available before the 2025 Ordinary Council Elections and the high likelihood that a full review cannot be completed in the available time, Council’s request to the Board is to consider the making of an order without a review. The justification for this rests on the proposal that the number of affected residents in comparison to the number unaffected makes the change ‘minor’.
The Chief Executive Officer forwarded Council’s request, including a range of supporting information, to the Board on 11 December 2024.
Detail
The Department of Local Government, Sport, and Cultural Industries (DLGSC) has conducted an initial review of the City’s request and has provided guidance to inform next steps.
The key point noted by the DLGSC is that the threshold for a boundary alteration to be considered ‘minor’ is very high, typically ruling out changes that affect even small numbers of properties and being reserved for small re-alignments, for example in the event that the course of a locality boundary has had to be adjusted to match a road centreline or topographical feature.
This being clarified, the DLGSC notes that the likelihood of the City’s request being accepted as a ‘minor’ change not requiring a review is very low.
Three candidate courses of action exist. Council may:
1. Request that the Board considers the City’s submission as presented.
2. Withdraw the request for a minor change and undertake a review of the boundary between the North and North-East Wards following Sch. 2.2 s.5(a) of the Act, including community consultation, before submitting a new request to the Board; or
3. Withdraw the request for a minor change and initiate a full review of wards and representation in time for the October 2027 Ordinary Council Election.
These options are addressed below.
Consultation
Guidance in respect of the ward boundary change process has been sourced directly from members of the Local Government Advisory Board via the DLGSC.
Comment
Assessment of the available options is as follows:
1. Pressing the City’s submission as currently presented has a high likelihood of being rejected by the Board, resulting in a full review of wards and representation being required. Noting that the Board’s meeting dates for 2025 are not yet confirmed the timeline for the Board to assess the submission is not able to be determined. What is known is that the up-coming State and Federal elections will reduce access to State Government services, extending timescales for the assessment process.
2. Funding and resources are available to conduct public consultation in respect of the proposed change. Under the Act (Sch. 2.2 s.7(1)(b)), a minimum of six weeks must be allowed for submissions to be made. Taking an example date of Monday 3 March 2025 for the start of the consultation, submissions would be accepted until Monday 14 April 2025, with the results being processed and reported to Council at the May 2025 Ordinary Council Meeting. Pending Council’s decision on the outcome of the public consultation, an updated request could be submitted to the Board at the beginning of June
Option 2 has a very low likelihood of a Board decision being reached and an order made before the 2025 Ordinary Council Election. The Board’s guidance is that a request needs to be submitted no later than 31 January for there to be high confidence of being completed and implemented before the October election date. The limited access to State Government services as a result of the 2025 State and Federal elections will exacerbate this issue.
3. Having completed its latest review of wards and representation in 2021, the City is required to complete its next full review by no later than 2031. However, noting the rapid pace and uneven distribution of population growth within the City of Wanneroo, Council has already considered conducting a full review of wards and representation following the 2025 Election, with the aim being to create a balanced and, as far as practical, future-proof structure of representation for the district.
A full review supported by community consultation and with all options and factors considered has the best chance of being supported when assessed by the Board.
Noting the challenges associated with options 1 and 2, and in particular the low likelihood of achieving an outcome ahead of the 2025 Ordinary Council Election, it is Administration’s recommendation that option 3 is the optimal solution and represents the most efficient use of City resources.
Statutory Compliance
Review and updating of ward boundaries is conducted in compliance with Schedule 2.2 of the Local Government Act 1995 and associated Regulations.
Strategic Implications
The proposal aligns with the following objective within the Strategic Community Plan 2021 – 2031:
7 ~ A well governed and managed City that makes informed decisions, provides strong community leadership and valued customer focused services
7.1 - Clear direction and decision making
Risk Appetite Statement
In pursuit of strategic objective goal 7, we will accept a Medium level of risk as the City balances the capacity of the community to fund services through robust cost-benefit analysis and pursues evidence-based decision making to be effective stewards of the Council and City for future generations.
Risk Management Considerations
There are no existing Strategic or Corporate risks within the City's existing risk registers which relate to the issues contained in this report.
Policy Implications
Nil
Changes to Reports arising from Agenda Briefing
References to feedback being received from the Local Government Advisory Board have been corrected to show that this feedback was received from the Department of Local Government, Sport, and Cultural Industries.
Financial Implications
Funding of $8,000 for a review of wards and representation is allocated in the City’s 2024-2025 operational budget.
Voting Requirements
Absolute Majority
Attachments: Nil
CITY OF WANNEROO Minutes OF Ordinary Council Meeting 25 February, 2025 1
Item 9 Motions on Notice
MN01-02/25 Cr Berry - Quinns Mindarie Surf Life Saving Club increased use of Quinns Mindarie Community Centre
File Ref: 4412V002 – 25/46150
Author: Cr Berry
Action Officer: Director Community & Place
Disclosure of Interest: Nil
Attachments: Nil
Issue
To request investigation into increased usage of the Quinns Mindarie Community Centre by the Quinns Mindarie Surf Life Saving Club (QMSLSC) to support their surf club operations.
Background
The QMSLSC’s facility was constructed in 2005 and is jointly located with the Quinns Mindarie Community Centre (QMCC). The QMSLSC’s tenure arrangements include:
· An exclusive lease on the lower level of the building for their surf club operations;
· An exclusive lease on the office space on the first floor of the building; and
· Hire arrangements for the Training Room and Function Room within the QMCC (first floor).
The surf club facility comprises a first aid room, function and bar area, kiosk, gym, storage space and toilet/change room facilities. The QMSLSC also maintains a sea container on site to assist with storage requirements.
The QMSLSC provides voluntary beach patrol and lifesaving services along the Mindarie and Quinns Rocks beaches across the surf club season which is typically October to April. The club also undertakes volunteer training and community education throughout the year to improve overall the community’s safety and awareness of the beach environment.
Detail
The Quinns Mindarie Surf Life Saving Club is currently sitting at around 1,000 members and has experienced regular membership increases in recent seasons. The continued growth of the club and the services they provide has meant their operational requirements are exceeding the capacity of their surf club facility.
When considering report SCS01-08/23 Project Update – Former Quinns Rocks Caravan Park Site at the Special Council Meeting in August 2023, Council’s resolution included:
“That Council:
c) continues to work with the Quinns-Mindarie Surf Life Saving Club (Inc.) in relation to supporting the Club's current and future needs (including developing a facilities plan); and…”
This decision by Council was over 18 months ago and the club still do not have accommodation that meets their needs. The club has been very patient with Council and seeks to have our assistance to enable some timely decisions to assist them to continue to grow and provide excellent emergency services for our residents and visitors. Their accommodation requirements are urgent and have grown since Council agreed to assist in August 2023.
Consultation
Any future change in use for the Quinns Mindarie Community Centre and future development of the site will require community consultation in accordance with the City’s Community Engagement policy.
Comment
Given the likely time frame for any significant facility redevelopment to accommodate the QMSLSC’s growing operational requirements is at least several years away, it is suggested that greater access to the spaces within the QMCC might assist the QMSLSC with addressing their current space and capacity challenges in the short term.
This report requests the City’s Administration to continue working closely with the QMSLSC to identify what opportunities exist for increased usage of the QMCC by the club and implement these arrangements, including reporting back to Council if required.
Statutory Compliance
Nil
Strategic Implications
The proposal aligns with the following objective within the Strategic Community Plan 2021 – 2031:
1 ~ An inclusive and accessible City with places and spaces that embrace all
1.3 - Facilities and activities for all
Risk Appetite Statement
In pursuit of strategic objective goal 1, we will accept a Medium level of risk. The recent pandemic has challenged our previous event delivery, place activation and community connection processes, and the City accepts that meeting community expectations in a more restrictive environment needs flexibility and innovation if community connection is to develop and grow in contrast to social and individual isolation.
Risk Management Considerations
|
Risk Title |
Risk Rating |
|
ST-S23 Stakeholder Relationships |
Medium |
|
Accountability |
Action Planning Option |
|
Chief Executive Officer |
Manage |
Policy Implications
Financial Implications
Nil
Changes to Reports arising from Agenda Briefing
This Motion on Notice was not presented or discussed at Agenda Briefing.
Voting Requirements
Simple
Administration is committed to continue meeting with the Quinns Mindarie Surf Life Saving Club (QMSLSC) on a regular basis to assist the club to develop solutions to the current and future needs, in accordance with Council’s resolution of August 2023.
The proposed recommendation for the Motion on Notice is a statement of work currently being undertaken by Administration.
The investigations arising from Council’s resolution in August 2023 have two main elements:
1. Establishing data to support QMSLSC’s facility needs, including the breakdown of those needs (such as across identified areas, in a square metre range, for storage, gym, function and other spaces); and
2. Reviewing the current facility and other user requirements to identify spaces that may be better utilised to support QMSLSC, or potential modifications to address QMSLSC’s agreed needs.
Focus to date has been on the first part of the investigations, to establish and agree on QMSLSC’s facility needs. Administration has met with the QMSLSC on four occasions (in addition to telephone calls and written communications) since Council’s decision in August 2023 to advance the development of a facilities plan to support the club’s current and future needs. The most recent of these meetings was on 10 February 2025.
In late 2024 QMSLSC provided Administration with information about the club’s growth and their current and future needs. This information has been reviewed by Administration and will be used to inform an investigation into future development of the surf club facility to support their operations. Administration has requested the listing of funds in the 2024/25 midyear budget review to engage a consultant to undertake an investigation into identifying the constraints of the site and what development is possible to support the club’s growth, noting the information provided by the club. Subject to Council’s approval of the midyear budget, it is expected this investigation will be completed by the end of 2025.
At the meeting on 10 February 2025 QMSLSC was asked to consider how much increased usage of the Quinns Mindarie Community Centre (QMCC) they would need to support their operations and reduce some of the capacity challenges they are currently facing. This could potentially include increased hire arrangements or additional exclusive lease arrangements of the spaces within the QMCC.
As an outcome of the meeting, QMSLSC has agreed to review their additional usage requirements for the QMCC and how this could work in with the existing user groups and then provide this information to Administration.
If it is established that an exclusive lease arrangement is the preferred approach Administration could conduct consultation in accordance with the City’s Community Engagement Policy with the existing user groups as key stakeholders in that process. The results of that consultation could be reported to the next available Council meeting however this is unlikely to be the May 2025 Ordinary Council meeting due to the timelines for finalising the meeting agenda.
Attachments: Nil
CITY OF WANNEROO Minutes OF Ordinary Council Meeting 25 February, 2025 1
MN02-02/25 Cr Berry - Elected Member Superannuation
File Ref: 50350 – 25/47656
Author: Cr Helen Berry
Action Officer: Chief Executive Officer
Disclosure of Interest: Nil
Attachments: 1
Issue
To request Council to approve superannuation payments to
Council Members from
1 February 2025.
Background
New provisions regarding local governments providing superannuation to Council Members commenced on 1 February 2025. These provisions are part of the changes of the Local Government Act 2024.
Previously local governments were not required to provide superannuation coverage to Elected Members as these individuals were not employees for superannuation purposes under subsection 12(9A) of the Superannuation Guarantee (Administration) Act 1992 (Cth) (SGAA). If a local government wanted to offer superannuation to council members, it had to become an “Eligible Governing Body” (EGB) under Division 446 of the Taxation Administration Act 1953 (Cth). This process has now been removed and legislation passed ensure superannuation will be paid to elected members.
Detail
Given the legislated changes under new sections 5.99B to 5.99E of the Local Government Act 1995 which allow local governments to pay superannuation to Council Members, through a decision-making process which will become compulsory in any event from October 2025. I propose this council make this adjustment with immediate effect putting this council in line with other local neighbouring councils such as the City of Stirling.
Payments will be made as per the requirement under the Superannuation Guarantee Act (Administration) Act 1992 and in line with the new legislated changes.
Individual Council Members may still choose to 'opt out' of receiving superannuation even where a local government resolves to pay superannuation by informing the Chief Executive Officer in writing.
How this will work is as published by the Department of Local Government, Sports and Cultural Industries for Elected Members and other interested parties to see.
Consultation
Nil
Comment
Nil
Statutory Compliance
Local Government Act 1995 sections 5.99B to 5.99E
Superannuation Guarantee (Administration) Act 1992 (Cth) subsection 12(9A)
Taxation Administration Act 1953 (Cth) division 446
Strategic Implications
The proposal aligns with the following objective within the Strategic Community Plan 2021 – 2031:
7 ~ A well governed and managed City that makes informed decisions, provides strong community leadership and valued customer focused services
7.1 - Clear direction and decision making
Risk Appetite Statement
In pursuit of strategic objective goal 7, we will accept a Medium level of risk as the City balances the capacity of the community to fund services through robust cost-benefit analysis and pursues evidence-based decision making to be effective stewards of the Council and City for future generations.
Risk Management Considerations
|
Risk Title |
Risk Rating |
|
ST-S23 Stakeholder Relationships |
Medium |
|
Accountability |
Action Planning Option |
|
Chief Executive Officer |
Manage |
The above risk relating to the issue contained within this report has been identified and considered within the City’s Strategic risk register. Action plans have been developed to manage this risk.
Policy Implications
Nil
Financial Implications
Refer to Administration comment.
Changes to Reports arising from Agenda Briefing
This Motion on Notice was not presented or discussed at Agenda Briefing.
Voting Requirements
Absolute Majority
New provisions regarding local governments providing superannuation to Council Members commenced on 1 February 2025.
The changes are part of the implementation of the Local Government Amendment Act 2024 and Local Government (Administration) Regulations 1996.
In accordance with sections 5.99B to 5.99E (Attachment 1) of the Local Government Act 1995 local governments are now able to pay superannuation to Council Members, through a decision-making process which requires an absolute majority decision rather than a unanimous one.
From 19 October 2025, it will become mandatory for class 1 and 2 local governments to make superannuation contributions. Therefore, from 19 October 2025 it will be compulsory for the City to pay superannuation to its Council Members.
Individual Council Members may choose to 'opt out' of receiving superannuation even if Council resolves to pay superannuation by providing a notice in writing to the Chief Executive Officer.
Superannuation contribution payments for Council Members will be made in addition to any other fees and allowances. These will sit outside the threshold for fees and allowances set by the Salaries and Allowances Tribunal. Council Members may receive various types of fees and allowances, in accordance with the Local Government Act 1995 and the relevant determination of the Salaries and Allowance Tribunal (SAT).
The cost of paying superannuation to Council Members will need to be met by the City out of its operating budget. The amount of $30,641 is an unbudgeted expense for the 2024/2025 budget.
The 2025/2026 operating budget will need to include $54,934 to cover October 2025 to June 2026 payments and an extra $23,390 if June 2025 to October 2025 is also to be paid.
If approved, Administration will need to investigate the appropriate method and process to initiate the payment of superannuation to Council Members.
Administration notes that a major review of the Council Members’ Fees, Allowances, Reimbursements and Benefits Policy is underway, including a legal review and peer review across comparable Western Australian Band 1 local governments. Council Members have also provided feedback and comments, and an updated draft policy is due to be presented for discussion at a meeting in mid-2025.
The following is a summary of the fees, expenses and allowances, subject to the 2025 SAT % increase:
|
|
|
25/26 12% |
01/07/25 to 18/10/25 |
19/10/25 to 30/06/25 |
24/25 11.5% |
|
From 01/02/25 to 30/6/25 |
|
Description |
2024/25 Budget $ |
Full Year Super $ |
Period Super $ |
Period Super $ |
Full Year Super $ |
Monthly Super $ |
Remain FY Super $ |
|
Mayor's Allowance |
97,115 |
11,654 |
3,480 |
8,174 |
11,168 |
931 |
4,559 |
|
Mayor's Meeting Fees |
51,412 |
6,169 |
1,842 |
4,327 |
5,912 |
493 |
2,414 |
|
Deputy Mayor's Allowance |
24,279 |
2,913 |
870 |
2,043 |
2,792 |
233 |
1,140 |
|
Deputy Mayor's Meeting Fees |
34,278 |
4,113 |
1,228 |
2,885 |
3,942 |
328 |
1,609 |
|
Other Council Members Meeting Fees (x13) |
445,614 |
53,474 |
15,969 |
37,505 |
51,246 |
4,270 |
20,919 |
|
Council Member Other Expense Reimbursements (x15) |
15,500 |
- |
- |
- |
- |
- |
- |
|
Council Member Information, Communications and Technology Expenses (x15) |
52,500 |
- |
- |
- |
- |
- |
- |
|
|
$720,698 |
78,324 |
23,390 |
54,934 |
$75,060 |
$6,255 |
$30,641 |
Council Members are responsible for obtaining their own independent advice regarding any tax and financial implications. This ensures they are fully informed of their obligations and any potential impacts on their financial affairs.
Attachments:
|
1⇩. |
Attachment 1 - Local Government Act 1995 Section 5.99B to 5.99E |
25/47997 |
|
MN03-02/25 Cr Smith - Fostering Urban Art in Wanneroo
File Ref: 19152V04 – 25/51656
Author: Cr Smith
Action Officer: Director Community & Place
Disclosure of Interest: Nil
Attachments: Nil
Issue
To consider the development of a discussion paper and trial project so that the City of Wanneroo (City) can foster more Murals and Urban Art to beautify our City, reduce graffiti, increase tourism, and provide engaging opportunities for youth to build connection and a sense of belonging in the community.
Background
The City has recently experienced an increase in graffiti and the removal of graffiti can be a lengthy process, expensive and can often seem futile, as places are often vandalised again.

Recent graffiti in Butler. Removed in January and now already re-graffitied.
Many other local government authorities have utilised urban art in the community as a way of addressing graffiti, engaging young people, enhancing public places and attracting tourism.
In January 2025, Tracey Roberts, the Federal Member for Pearce officially unveiled a completed mural at Olympic Kingsway Sports Club that was supported by federal funding. It is a fantastic mural that celebrates the local markets and the history of the soccer club.

Credit: City of Wanneroo
Another example is the City working with Hawaiian Group and Blank Walls to activate a space at Newpark Shopping Centre.

Credit: City of Wanneroo
Murals like these are fantastic examples of how the City can achieve our goals of valuing cultures, history, local creativity and create inviting and safe visitor experiences.
The City of Wanneroo has a Mural guide and has facilitated some projects that engage youth and schools in urban art development, however, more could be done.
What other Cities do:
1. The City of Rockingham worked with local artists, community members and students to create the City’s sPARK interactive urban art trail and adorned the Baldivis Youth Space, Port Kennedy Skate Park and now the Safety Bay foreshore area with murals.
The art trail aims to combat vandalism where graffiti regularly occurred. Instances of vandalism in each location have decreased dramatically since the murals were installed.
The sPARK interactive urban art trail was funded through a $50,000 grant from the WA Police State Graffiti Fund.
The Port Kennedy Skate Park mural by Paul Deej.
Credit: City of Rockingham/Supplied. Credit: City of Melville
2. The City of Melville created a program called PHAZE in 2007, after two young people approached the City of Melville with a petition of 250 signatures to start a legal wall in Leeming. After consideration an alternative was proposed that would give young people the opportunity to paint Leeming Skate Park.
3. Running for over 15 years now, PHAZE allows young people 12 to 25 a safe, engaging and fun place to paint four different skate parks on a rotational basis. This occurs on the last Sunday of each month, for eight months of the year and is facilitated by a professional urban artist and assisting artist. PHAZE is free with lunch, paints and all other materials provided.
4. The City of Fremantle regularly run youth urban art programs, in collaborations with local schools. Canvasses can include bus stops, buildings, sea containers and ping pong tables. These projects provide young people the opportunity to influence and design their community space while contributing high quality public art to the City. Additionally, public spaces and private businesses alike commission murals to beautify the area.
5. The City of Perth has embraced street art with numerous murals spread across its laneways and public spaces, supported by the PUBLIC Street Art Festival launched by FORM in 2014. This initiative has transformed Perth into an internationally recognized hub for street art, with over 180 murals created during its initial run. Locations like Wolf Lane and Hay Street are particularly renowned for their striking works.
6. The Town of Victoria Park created a Mural Arts Plan which focuses on an increase in partnerships between the Town, business and the community that will allow an increased level of local participation and decision making to assist with implementing and monitoring outcomes of murals.
7. The Brisbane City Council provides street art walls to foster its City’s creative talent while helping to reduce graffiti on public and private property. The locations selected are not visible to the average passer-by, whilst also being kept a clean and respectful environment.
Street art or legal graffiti walls provide public spaces that can be used as a canvas for uncommissioned, legal street art, with the aim of providing opportunities for creative expression and artistic development, details can be found at:
Credit: Team Schrinner/Facebook
Detail
It is requested that the City provides a discussion paper that:
· Provides an update on the current extent of graffiti being experienced by the City, the effectiveness of remedies and other proposed remedies
· Explores how the City can support businesses who are experiencing the burden of compliance in removing graffiti, e.g. perhaps with incentives to turn commonly graffitied places into murals.
· Explore diversionary programs that engage youth in urban art projects and reduce graffiti.
· Create a list of frequently graffitied places and a list of areas of high visibility that would be great places to turn into murals for tourism and local placemaking enhancement, as guided by set criteria.
· Consult with the community for their feedback in terms of locations and types of initiatives they would support and how they would like to be able to participate.
· Explores the benefits and costs to community from creating a funded Urban Art program to increase urban art, deter future graffiti, engage youths and encourage tourism.
· Identify any areas that are out of sight, that could be used by street artists for legal artistic expression.
· Explore with Main Roads the possibility of Memorandum of Understanding (MOU) to be able to paint underpasses and walls alongside the freeway.
· Explore additional grants and funding sources like the WA Police State Graffiti Fund.
· Propose three different funded levels/depth of program the Council could choose between to support.
It is requested that the City facilitate the creation of two murals with stakeholders as a trial project within the 2025 calendar year.
Consultation
To assist in preparing this Motion on Notice, conversations occurred with the Director of Corporate Strategy & Performance, Director of Community & Place, Manager Advocacy & Economic Development, Manager Cultural Development and Laura Kennedy, local artist who runs Mindfulness Art workshops.
Comment
The creation of a discussion paper and trial project would allow Council to make an informed decision as to whether they would support (and to what level) the creation of a program that aims to reduce graffiti and increase urban art.
Statutory Compliance
There are no statutory compliance implications associated with this report.
Strategic Implications
The proposal aligns with the following objective within the Strategic Community Plan 2021-2031:
1 ~ An inclusive and accessible City with places and spaces that embrace all
1.1 Value the contribution of all people
1.2 Value public places and spaces
1.3 Facilities and activities for all
1.4 Bringing people together
2 ~ A City that celebrates rich cultural histories where people can visit and enjoy unique experiences
2.1 Valuing cultures and history
2.2 Arts and local creativity
2.3 Tourism opportunities and visitor experiences
5 ~ A well-planned, safe and resilient City that is easy to travel around and provides a connection between people and places
5.5 People feel safe in public place
Risk Appetite Statement
In pursuit of strategic objective goal 1, we will accept a Medium level of risk. The recent pandemic has challenged our previous event delivery, place activation and community connection processes, and the City accepts that meeting community expectations in a more restrictive environment needs flexibility and innovation if community connection is to develop and grow in contrast to social and individual isolation.
Risk Management Considerations
There are no existing Strategic or Corporate risks within the City's existing risk registers which relate to the issues contained in this report.
Policy Implications
This proposal will be assessed under the provisions of the City’s Arts policy.
Financial Implications
There will be financial implications for the introduction of this program as additional funds are currently unbudgeted.
Changes to Reports arising from Agenda Briefing
This Motion on Notice was not presented or discussed at Agenda Briefing.
Voting Requirements
Simple Majority
Administration Comment
Administration supports the development of a discussion paper and implementation of a trial mural project to be delivered by the end of 2025. The implementation of a trial urban art program could have many potential benefits; from the beautification of target streetscapes to strategic fostering of civic engagement and community participation in creative activities, increase feelings of community ownership over public spaces, and contribute to the formation of distinctive place identities. Interventions in public spaces have also, in some instances, been associated with reduced rates of graffiti and other forms of antisocial behaviour. This is further supported by the City’s Strategic Community Plan 2021 – 2031 Strategic Priority 2.2 which states:
Wanneroo will be a City that values the arts and other creative industries, providing opportunities and experiences for local people to be involved in creative programs and activities that help increase community connection, personal wellbeing and economic benefits.
Public and City art collections management, as well as community art program delivery at the City is currently the responsibility of a 1.0 Full-time Equivalent (FTE) Arts Development Officer. Based on current workload and already committed service unit plan deliverables for 2024-25, the scope of the proposed discussion and delivery of a trial project in this financial year will require additional resources.
In preparation to deliver upon this Motion, the City will list for consideration in the annual budget 25/26 the $20,000 to cover the cost of murals, $12,000 in the operating budget to develop the discussion paper, including community consultation, and an additional 0.5 FTE in the Workforce Plan to resource the development of these activities.
Attachments: Nil
Cr Phil Bedworth left the meeting, the time being 8:36pm
Cr Phil Bedworth returned to the meeting, the time being 8:36pm
File Ref: 19152V04 – 25/52467
Author: Cr Coetzee
Action Officer: Director Community & Place
Disclosure of Interest: Nil
Attachments: 1
Issue
To consider investigation into the viability of a mountain bike trail facility in the Alkimos area.
Background
There have been numerous requests from both younger and older community members expressing a strong desire for a dedicated mountain biking area in the northern coastal growth corridor.
This initiative presents an excellent opportunity to provide a venue that encourages physical activity and offers and outlet for youth engagement, particularly during school holidays. A well-designed mountain biking trail with features such as turns, jumps and obstacles would provide an exciting and accessible environment for individuals of all ages to enjoy outdoor exercise.
Detail
Inspired by the success of Joondalup’s recently opened mountain bike facility, which has become a popular destination for local riders, a proposed facility like this in the northern coastal growth corridor would offer a similar experience. These types of recreational spaces have proven to be significant community assets, attracting both locals and visitors while promoting active lifestyles.
Additionally, the proximity to the Yaberoo Budjara Heritage Trail, which runs from Lake Joondalup to Yanchep, provides an opportunity to connect the two trails, further enhancing the biking experience and creating a cohesive trail network that showcases the natural beauty of our region. This connection would make the area more appealing to riders, providing greater diversity and adventure within the trail system.
Investing in this mountain biking facility aligns with the City of Wanneroo’s (City) commitment to creating vibrant, active and healthy communities. By offering a dedicated space for cycling enthusiasts and outdoor activities, the City can foster an inclusive environment for people of all ages to enjoy, engage with nature and stay active. This project would be a valuable addition to the community and a step toward promoting a more active lifestyle for future generations.
Consultation
No consultation has occurred and any consultation regarding a future proposal for a mountain bike track will be in accordance with the City’s Community Engagement Policy.
Comment
The development of a mountain bike trail aligns with the growing demand from younger generations for more outdoor recreational facilities, as well as the City’s broader goals of enhancing public spaces and promoting healthy, active lifestyles. This facility would help meet the diverse needs of the community while supporting tourism and local businesses by attracting visitors to the area. The proposed connections to the Yaberoo Budjara Heritage Trail would create a cohesive and expansive network.
This report requests the City’s Administration to undertake an investigation into the viability of a mountain bike trail facility in the Alkimos area.
Statutory Compliance
Nil
Strategic Implications
The proposal aligns with the following objective within the Strategic Community Plan 2021 – 2031:
1 ~ An inclusive and accessible City with places and spaces that embrace all
1.3 - Facilities and activities for all
Risk Appetite Statement
In pursuit of strategic objective goal 1, we will accept a Medium level of risk. The recent pandemic has challenged our previous event delivery, place activation and community connection processes, and the City accepts that meeting community expectations in a more restrictive environment needs flexibility and innovation if community connection is to develop and grow in contrast to social and individual isolation.
Risk Management Considerations
|
Risk Title |
Risk Rating |
|
ST-S23 Stakeholder Relationships |
Medium |
|
Accountability |
Action Planning Option |
|
Chief Executive Officer |
Manage |
Policy Implications
Nil
Financial Implications
The costs associated with investigating the viability of a mountain bike trail can be proposed in the City’s 2025/26 operating budget.
Changes to Reports arising from Agenda Briefing
This Motion on Notice was not presented or discussed at Agenda Briefing.
Voting Requirements
Simple Majority
Mountain bike trails are valuable recreational assets that promote physical activity, community engagement and outdoor tourism. The development of a dedicated mountain bike trail in Alkimos area, with the potential connections to the Yaberoo Budjara Heritage Trail and future coastal paths, aligns with the City’s commitment to enhancing public spaces.
A preliminary desktop analysis has been undertaken which shows the ownership of the various parcels of land near and adjacent to the Alkimos Train Station:
· The proposed location for the mountain bike trail is Parcel 324534, which is immediately north of the train station land (Parcel 339099). This is owned by the Western Australian Planning Commission (Attachment 1).
· Parcel 329269 which is to the West of Marmion Avenue is owned by the Water Corporation. Water Corporation also owns a parcel of land North-East of parcel 324534 (Parcel 306007).
· Parcel 339099 which contains the train station and the immediate surrounds (bound by Romeo Road & Marmion Ave) is owned by the WA Land Authority (Landcorp).
· It is noted that none of these parcels of land are Crown Land currently.
Whilst this Motion on Notice requests investigation for a mountain bike trail at a site in the Alkimos area, Administration’s suggestion is that a City-wide master planning exercise is undertaken to develop a City of Wanneroo Adventure Trails Plan. This plan could holistically assess potential locations, connectivity to existing and future trails, and overall feasibility of mountain biking infrastructure within the City. Through this process, the City can ensure that future developments, including the potential for a mountain bike trail in Alkimos are strategically integrated into local and regional trail networks to maximise community benefit and long-term sustainability, and to ensure the City’s approach aligns with broader plans from the state’s governing body for cycling, West Cycle, such as the Mountain Bike Strategy 2022 – 2032 and the Perth & Peel Mountain Bike Master Plan.
A master planning exercise to develop an Adventure Trails Plan could commence in 2025/26 subject to sufficient funds being approved in the 2025/26 operating budget.
Attachments:
|
1⇩. |
Attachment 1 - Land Parcel Ownership |
25/56263 |
|
Cr James Rowe left the meeting, the time being 9:00pm
Cr James Rowe returned to the meeting, the time being 9:02pm
File Ref: 14553V017 – 25/58351
Author: Cr Paul Miles
Action Officer: Chief Executive Officer
Disclosure of Interest: Nil
Attachments: 1
Issue
To initiate a review of the City of Wanneroo district boundaries.
Background
Since its 1998 establishment and delineation of boundaries, the former Shire and subsequently City of Wanneroo (the City) has experienced rapid growth resulting in significant demographic, economic and social change. The information used to inform the decisions that established the boundaries of the district has therefore changed.
Detail
At its separation from the City of Joondalup, the City’s population was just over 70,000. In the ten years to 2009 this more than doubled to 146,000 and at the last estimate had reached approximately 230,000. This growth has been accompanied by significant social and economic change, with entire local communities featuring residential, employment, retail and leisure opportunities being born within the district and growing to maturity.
Given the rapid and significant change that the City and its neighbouring local authorities have experienced since the City’s establishment, a review and possible adjustment of the district boundaries is required. This review would provide an opportunity to address the following:
· Whether the current district boundaries support and reflect the economic, social, and leisure realities of its community’s day-to-day activities; and
· Whether there is an opportunity for subdivision of the district to energise and encourage the development of local communities.
Consultation
Population figures are drawn from the Australian Bureau of Statistics Regional Population Growth report.
Comment
The role of Council under the Local Government Act 1995 (the Act) includes “planning strategically for the future of the district”. Ensuring that the district is appropriately formed and resourced to provide the best outcomes for its community addresses this responsibility.
Schedule 2.1 of the Act describes the provisions for creating, changing the boundaries of, and abolishing districts.
Under Schedule. 2.1, one or more affected local governments may separately or jointly make a proposal for a change to district boundaries to the Local Government Advisory Board (Board). If supported, the proposal will then proceed to a formal inquiry and a recommendation to the Minister.
Administration is requested to initiate the process of reviewing the district boundaries and to bring a report to Council outlining the options and considerations no later than August 2025.
Statutory Compliance
Section 2.7, “Role of Council” and Schedule 2.1 provisions about “creating, changing the boundaries of, and abolishing districts” of the Local Government Act 1995.
Strategic Implications
The proposal aligns with the following objective within the Strategic Community Plan 2021 – 2031:
7 ~ A well governed and managed City that makes informed decisions, provides strong community leadership and valued customer focused services
7.1 - Clear direction and decision making
Risk Appetite Statement
In pursuit of strategic objective goal 7, we will accept a Medium level of risk as the City balances the capacity of the community to fund services through robust cost-benefit analysis and pursues evidence-based decision making to be effective stewards of the Council and City for future generations.
Risk Management Considerations
|
Risk Title |
Risk Rating |
|
ST-S12 Economic Growth |
Medium |
|
Accountability |
Action Planning Option |
|
Chief Executive Officer |
Manage |
|
Risk Title |
Risk Rating |
|
ST-S26 Resilient and Productive Communities |
Medium |
|
Accountability |
Action Planning Option |
|
Director Community & Place |
Manage |
Policy Implications
Nil
Financial Implications
Administration is requested to provide an estimate for the costs associated with a review.
Changes to Reports arising from Agenda Briefing
Nil
Voting Requirements
Simple Majority
Administration Comment
A local government district’s boundaries are among its most important attributes, contributing significantly to its character, culture, viability, and identity. Accordingly, the process of proposing, scrutinising and implementing changes to a district’s boundaries is rigorous and transparent.
Among the responsibilities of a local government under the Local
Government Act 1995
(the Act) is to “promote the economic, social and environmental
sustainability of the district”
(S. 3.1(1A)(i)). Ensuring that the district is appropriately constituted to
meet these priorities is therefore a function of local government.
Schedule 2.1 of the Act sets out the process for proposing, assessing, and making a change to a district’s boundaries. In summary, the steps are as follows:
· A proposal is submitted to the Local Government Advisory Board (Board). This may originate with the Minister, one or more affected local governments, or a group of electors.
· The proposal is considered by the Board who will either make a recommendation to the Minister to reject the proposal or initiate a formal enquiry.
· The inquiry will be conducted in compliance with the Act, including notices and the opportunity for public submissions.
· At the conclusion of the inquiry, the Board will make a written report to the Minister recommending either that the proposal be rejected or that an order be made (which may be in accordance with the proposal or may differ from it)
Additional steps can include public hearings, a poll of affected electors, the making of recommendations in respect of naming, wards and representation, assessment of any compensation that may be required, (if the proposal is accepted) the making of transitional arrangements, and other actions arising depending on the specifics of the proposal.
The factors that will be considered in assessing a proposal to change a district’s boundaries will include but are not limited to:
· Community of interests;
· Physical and topographical features;
· Demographic trends;
· Economic factors;
· The history of the area;
· Transport and communication;
· Matters affecting the viability of local governments; and
· The effective delivery of local government services.
The Board provides guidelines (Attachment 1) clarifying each of these factors.
The structure and boundaries of the City of Wanneroo were examined in detail as part of the State Government’s Local Government Reform program in 2011/2012, with a submission being made to the Metropolitan Local Government Review Panel in January 2012. The conclusion of this submission, endorsed by Council, was that the ongoing growth within the district was best addressed by a single integrated local authority having the resources, expertise, and capacity to implement a consistent set of strategies across the district.
Noting the range of factors that apply, as well as the range of stakeholders who will need to be consulted and informed, Administration assesses that planning and undertaking a comprehensive review of the district’s boundaries will require significant resource from every part of the organisation. It is recommended that an assessment of the required resource, along with likely costs and timescales, and the potential impact on other initiatives and operations, be undertaken prior to committing to a review.
A limited review of locality (suburb) boundaries within the City is already in planning, with the recruitment of a Project Officer to progress this work being considered for the 2025/26 Workforce Plan. This limited scope review is proposed to assess the options for addressing those localities that currently or in future projections will exceed the optimal sizing established by the Geographic Names Committee (GNC) Policies and Standards for Geographical Naming in Western Australia (GNC Standard) and could provide input to a district-wide review.
Administration further recommends that any proposal affecting neighbouring local governments should be developed and presented as a joint proposal.
Reports into three previous inquiries taking place within the last ten years are published on the Board’s page within the Department of Local Government, Sport, and Cultural Industries (DLGSC) website: Lower Donnelly River (Shires of Nannup and Manjimup); Cockburn, Fremantle; and Wattle Grove. All three proposals were rejected following inquiry.
Any proposal for a change to the district’s boundaries should, as far as possible, be expected to be enduring. Council should take into account the ongoing active development of major areas of the City and consider whether a district boundary change during this period of development and rapid change is appropriate, or whether the City should be allowed to reach a more stable state before its boundaries, communities, economic and social features and relationships with neighbouring districts are assessed and alterations proposed.
Attachments:
|
1⇩. |
Attachment 1 - Information Sheet - LGAB Guiding Principles - Schedule 2.1 Create, Change or Abolish a Local Government District |
25/57471 |
|
MN06-02/25 Cr Huntley - Advocate to WALGA for the Establishment of a Translocation Centre for Mass Wildlife Displacement
File Ref: 14553V017 – 25/58498
Author: Cr Jacqui Huntley
Action Officer: Chief Executive Officer
Disclosure of Interest: Nil
Attachments: Nil
Issue
To advocate to the Western Australian Local Government Association (WALGA) for urgent support for the establishment of a translocation centre for mass wildlife displacement.
Background
The scale of urban expansion in Wanneroo presents an unprecedented and immediate threat to wildlife. With the expansion of the city to 600,000 people, the sheer destruction of thousands of hectares of pristine to good habitats will without intervention mean that thousands of animals will face injury, starvation, or death.
Detail
Local wildlife charities have developed a proven and humane translocation strategy, but this initiative requires a permanent facility and funding to meet the expected surge in displaced animals in an area of over 3,000 hectares from 2026/27 onwards.
Council’s endorsement is sought for a request to WALGA that it advocates for the required resources and funding to implement mass wildlife translocation.
Consultation
Nil
Comment
While the issue of wildlife displacement is not limited to the City of Wanneroo, its planned development over the next ten to fifteen years makes it a particular concern in the district.
WALGA’s advocacy and support is sought to bring State-level and national attention to the issue and to clarify the limits of current provisions, primarily relying upon the efforts of not-for-profit wildlife charities.
Statutory Compliance
Nil
Strategic Implications
The proposal aligns with the following objective within the Strategic Community Plan 2021 – 2031:
4 ~ A sustainable City that balances the relationship between urban growth and the environment
4.2 - Manage and protect local Biodiversity
Risk Appetite Statement
In pursuit of strategic objective goal 4, we will accept a Medium level of risk. The nature of the City being ‘pro-growth’ means that commercial opportunities will be explored in areas identified for development, potentially challenging perceptions of the City as an environmental steward.
Risk Management Considerations
|
Risk Title |
Risk Rating |
|
CO-O22 Environmental Management |
Medium |
|
Accountability |
Action Planning Option |
|
Director Planning & Sustainability |
Manage |
Policy Implications
Nil
Financial Implications
Nil
Changes to Reports arising from Agenda Briefing
This report was not presented at Agenda Briefing.
Voting Requirements
Simple Majority
The Biodiversity Conservation Act 2016 (Act) is the State legislation that determines who may, and under what conditions, undertake any course of action with respect to native fauna. The City does not have jurisdiction to manage wildlife. The position of the Department of Biodiversity, Conservation and Attractions (DBCA) who is the responsible body under the Act is that it is not the City’s responsibility to take on or advise on the management of native fauna. The legislation requires landowners to protect and do no harm to native fauna occurring on any landowner’s property.
In this regard, Council has adopted Local Planning Policy 3.3: Fauna Management (LPP 3.3). LPP 3.3 seeks to ensure the effective management of fauna, sets out general guidance and confirms that it is the responsibility of landowners and/or developers.
Attachments: Nil
Cr Vinh Nguyen left the meeting at 9:34pm and did not return
File Ref: 4107 – 25/58493
Author: Mayor Aitken
Action Officer: Director Assets
Disclosure of Interest: Nil
Attachments: 1
Issue
To investigate the installation of dog waste bag dispensers in parks of all sizes, should the community consultation identify this as needed.
Background
As noted on the City of Wanneroo’s (City) website, “dog waste can be an unpleasant experience for users of our parks, beaches and other public spaces, and can have detrimental health and environmental impacts.”
On many occasions the City receives feedback from community consultation about what we provide in our parks and there are requests for Dog waste bag dispensers.
In instances where community consultation indicates the need for dog waste bag dispensers, this Motion requests that the City should consider the installation of dog waste bag dispensers on park bins, similar to how this is done at the City of Mandurah (refer photo in Attachment 1).
Detail
To support dog owners to clean up after their dog, the City provides courtesy dog waste bag dispensers at some City locations, a list of which appears on the City’s website. Signage on paths and in parks also reminds dog owners of their responsibility to clean up after their pet. Regardless, dog waste remains a present nuisance and hazard in particular to park users.
As an example, two rounds of community consultation have been conducted in respect of the upgrade of Celebration Park, Clarkson with one of the issues arising in the most recent consultation (25 November to 9 December 2024) being the issue of dog waste. Respondents directly requested a dog waste bag dispenser in their feedback. This request could conveniently and cost-effectively be met by taking advantage of the park upgrade to install a general waste bin that includes a dog waste bag dispenser (as opposed to a separate standalone bag station).
Increasing the availability of courtesy dog waste bags would give dog owners more opportunity to assist in keeping the City clean and safe by cleaning up after their dog.
Dog waste bag dispensers mounted on a standard municipal park bin would be conveniently situated for disposal as the bag once used can be immediately and correctly disposed of in the bin. Bins are also more visible and obvious than a pole-mounted bag dispenser may be.
This Motion on Notice proposes that the City investigate making it standard practice that when a park general waste bin is installed or replaced, the new bin features an integrated dog waste bag dispenser. The investigation will require a review of the Local Planning Policy 4.3: Public Open Space.
Consultation
Nil
Comment
The City places significant emphasis on the quality of its parks and open spaces, encouraging all residents and visitors to use and enjoy them. They are shared community assets that need to be accessible and suitable for use by all. Encouraging the proper disposal of dog waste is an important part of maintaining that accessibility and safety.
Statutory Compliance
Nil
Strategic Implications
The proposal aligns with the following objective within the Strategic Community Plan 2021 – 2031:
7 ~ A well governed and managed City that makes informed decisions, provides strong community leadership and valued customer focused services
7.1 - Clear direction and decision making
Risk Appetite Statement
In pursuit of strategic objective goal 7, we will accept a Medium level of risk as the City balances the capacity of the community to fund services through robust cost-benefit analysis and pursues evidence-based decision making to be effective stewards of the Council and City for future generations.
Risk Management Considerations
|
Risk Title |
Risk Rating |
|
CO-O22 Environmental Management |
Medium |
|
Accountability |
Action Planning Option |
|
Director Planning & Sustainability |
Manage |
|
Risk Title |
Risk Rating |
|
CO-O23 Safety of Community |
Medium |
|
Accountability |
Action Planning Option |
|
Director Community & Place |
Manage |
Policy Implications
Nil
Financial Implications
Administration is requested to provide guidance on the cost implications of purchasing bins featuring integrated dog waste bag dispensers when installing new and replacement park general waste bins, including savings from reducing the requirement for separate dog waste bag stands.
Changes to Reports arising from Agenda Briefing
This Motion on Notice was not presented or discussed at Agenda Briefing.
Voting Requirements
Simple Majority
Specific Park and street infrastructure such as bins, bin enclosures, and dog waste bag dispensers would be addressed in the City’s Waste Operational Guidelines currently being prepared by Administration for discussions at a forthcoming Waste Management Advisory Committee meeting. The proposed Waste Operational Guidelines will allow Administration to proactively and quickly address community concerns and issues.
An update as requested in this Motion on Notice can be made available to Council Members by September 2025.
Attachments:
|
1⇩. |
Attachment 1 - Example Bin-Mounted Dog Waste Bag Dispenser - City of Mandurah |
25/60544 |
|
MN08-02/25 Cr Bedworth - Bookable Bulk Verge Collection
File Ref: 46343 – 25/58136
Author: Cr Bedworth
Action Officer: Director Assets
Disclosure of Interest: Nil
Attachments: Nil
Issue
To consider a request for a review of the Bookable Verge Collection System.
Background
The City of Wanneroo (City) has previously utilised a scheduled verge collection for bulk household disposal, allowing residents to place bulk items on their verges for collection. From 1 July 2024, this system was replaced with the bookable verge collection system to streamline operations and improve efficiency. However, many residents have expressed concerns about the new system, citing difficulties with booking collections, limited availability, and inconvenience for those who may not have access to online booking tools. Concern has been expressed as to the aesthetics of bulk collections out on verges for many more weeks of the year than the previous model.
Detail
Numerous residents have provided feedback indicating a preference for the scheduled verge collection system, highlighting its ease of use and accessibility. The scheduled verge collections allowed for more convenience and certainty, particularly for residents who may have larger items to dispose of or limited ability to schedule specific collection times. The bookable verge collection system has been in place since 1 July 2024 and residents have expressed dissatisfaction. Whilst it is acknowledged that the bookable verge collection was intended to explore potential improvements to waste management that could enhance service delivery while maintaining environmental sustainability. Other waste collection options may need consideration.
Consultation
Community feedback has been received indicating dissatisfaction for the bookable verge collections and supporting a reconsideration.
Comment
A thorough review and consideration of the benefits and challenges associated with each collection option will enable the Council to make an informed decision that best serves the needs of the community. In view of the community feedback, it will be appropriate for Administration to undertake a review of the Bookable Verge Collection and provide an update to Council Members by December 2025. It is expected that the proposed review will cover the performance of the current system, identify changes if any, and make recommendations on the implementation of any identified changes.
Statutory Compliance
The Waste Avoidance and Resource Recovery Act 2007 confers the Minister for the Environment the ability to require any local government to provide waste services to its community, in line with the State Waste Strategy:
· Waste Avoidance and Resource Recovery Strategy 2030; and
· Waste Avoidance and Resource Recovery Act 2007
Strategic Implications
The proposal aligns with the following objective within the Strategic Community Plan 2021 – 2031:
4 ~ A sustainable City that balances the relationship between urban growth and the environment
4.4 - Manage waste and its impacts
Risk Appetite Statement
In pursuit of strategic objective goal 4, we will accept a Medium level of risk. The nature of the City being ‘pro-growth’ means that commercial opportunities will be explored in areas identified for development, potentially challenging perceptions of the City as an environmental steward.
Risk Management Considerations
|
Risk Title |
Risk Rating |
|
ST-S23 Stakeholder Relationships |
Medium |
|
Accountability |
Action Planning Option |
|
Chief Executive Officer |
Manage |
|
Risk Title |
Risk Rating |
|
CO-O22 Environmental Management |
Medium |
|
Accountability |
Action Planning Option |
|
Director Planning & Sustainability |
Manage |
The above risks relating to the issue contained within this report have been identified and considered within the City’s Strategic and Corporate risk registers. Action plans have been developed to manage these risks to support existing management systems.
It is noted that the Audit and Risk Committee at its meeting on 19 November 2024 recommended that Council endorses the inclusion of Waste Management as a Strategic Risk in the City Strategic Risk Profile.
Policy Implications
The City provides its Waste Services as per the City’s Waste Management Services Policy and Waste Plan.
Financial Implications
Subject to the outcome of the proposed review of the Bookable Verge Collection system, the financial implications of any identified changes would need to be determined, noting that all waste services provided by the City are funded through the annual Waste Service Charge collected from the City’s residential properties.
Changes to Reports arising from Agenda Briefing
This Motion on Notice was not presented or discussed at Agenda Briefing.
Voting Requirements
Simple Majority
The Bookable Verge Collection system was implemented from 1 July 2024 in line with the Council decision made at the Ordinary Council Meeting held on 21 February 2023 (refer Item AS01-02/23 Bulk Waste Review – Community Engagement Outcomes).
The report considered by Council advised that “following implementation, Administration will continually review and monitor efficiencies as the service progresses. The data will help advise and measure success of the recommended service model and inform on future changes. Further changes can be considered, should the review indicate any finding contrary to the assumptions made in the Bulk Waste Review.”
In preparing the implementation plan for the Bookable Verge Collection system, it was intended to undertake a review after a period of 12 months from the commencement date. This is to allow sufficient data for analysis and enable the identification of any changes that may be required to the service.
In the meantime, during November 2024, Administration undertook an analysis of the first 4 months of collection data of the Bookable verge collection service which indicated 12,847 waste collections completed and high levels of compliance. It was noted that whilst there was high demand for bulk hard waste collection in the initial implementation of the service, collection wait times have dropped to within 4 weeks for all waste streams in all areas.
Administration will schedule of review of the available data (between 1 July 2024 and 30 June 2025) during July/August 2025. A report will be prepared for discussion at the City’s Waste Management Advisory Committee. An update as requested in this Motion on Notice can be made available to Council Members by December 2025. The review will analyse if the transition to the Bookable verge collection service has providing the following intended benefits and associated challenges:
· Increased customer convenience;
· Increased material recovery;
· More cost effective;
· Improved visual amenity;
· Increased operational efficiency;
· Improved safety;
· Alignment to the State Waste Strategy objectives and targets.
Attachments: Nil
MN09-02/25 Cr Wright - Position Statement on Political Figures and Political Parties
File Ref: 14553V017 – 25/65892
Author: Cr Jordan Wright
Action Officer: Chief Executive Officer
Disclosure of Interest: Nil
Attachments: Nil
Issue
To introduce the Council’s first Policy Statement which seeks to clarify matters involving political figures and political parties.
Background
The City of Wanneroo strives to maintain a politically neutral stance, ensuring fairness and transparency in all its dealings. Currently, there is no formalised position statement guiding interactions with political figures and parties. This lack of a clear framework can lead to inconsistencies and potential misunderstandings, particularly during election periods. A dedicated discussion paper exploring the creation of such a position statement would provide valuable guidance for Administration and Council Members, promoting consistent and equitable practices. This will also assist in mitigating any perceived or real bias in the City’s operations.
Detail
This motion seeks to address the need for a documented position statement concerning the City of Wanneroo's interaction with political figures and political parties. The discussion paper should explore best practices and legal considerations, drawing upon examples from other local governments. It should also consider the potential challenges and opportunities associated with developing and implementing such a position statement.
The paper should further investigate the implications of caretaker conventions for State and Federal politicians, especially in regard to the resourcing of responses to MP enquiries. Current issues that cause confusion include the definition of ‘exhibiting’ at an event, the handling of requests for information during caretaker periods, and the acceptance of funding commitments outside of established planning frameworks.
Consultation
No consultation has occurred with Council Members or Administration but will be presented to the next Concept Forum for immediate discussion due to the upcoming Federal and State elections.
Comment
The timing of such a position statement is critical. Currently, issues are unfolding where candidates are being able to exhibit at City of Wanneroo events; recent examples include the Labor Candidate for Wanneroo being able to exhibit a stall at the Wanneroo Christmas Fiesta in early December 2024 and more recently the Liberal Candidate for Landsdale at the Landsdale Sunset Sounds event in late January 2025.
These exhibits allow candidates and members of parliament to encourage residents to support them in upcoming elections, encourage residents to sign petitions and fill in surveys which allow for data harvesting for political purposes and give away free prizes or branded merchandise promoting their party or self. The City of Wanneroo as a local government authority needs to remain a-political and continue to support the community’s aspirations and needs without involving itself with Members of Parliament or Political Candidates.
Council needs to provide a clear position on what is acceptable and unacceptable during caretaker modes and elections as well as what business as usual looks like.
Statutory Compliance
Nil
Strategic Implications
The proposal aligns with the following objective within the Strategic Community Plan 2021 – 2031:
7 ~ A well governed and managed City that makes informed decisions, provides strong community leadership and valued customer focused services
7.1 - Clear direction and decision making
Risk Appetite Statement
In pursuit of strategic objective goal 7, we will accept a Medium level of risk as the City balances the capacity of the community to fund services through robust cost-benefit analysis and pursues evidence-based decision making to be effective stewards of the Council and City for future generations.
Risk Management Considerations
|
Risk Title |
Risk Rating |
|
ST-S23 Stakeholder Relationships |
Medium |
|
Accountability |
Action Planning Option |
|
Chief Executive Officer |
Manage |
Policy Implications
This Notice of Motion seeks to establish a formal policy position in respect of political figures and political parties.
The Council Members, Committee Members and Candidates Code of Conduct sets out expected standards in respect of representation of the City and interaction with third parties.
Financial Implications
Nil
Changes to Reports arising from Agenda Briefing
This Motion on Notice was not presented or discussed to Agenda Briefing.
Voting Requirements
Simple Majority
Pending Council’s decision on this Motion on Notice, Administration will prepare a discussion paper as requested.
Attachments: Nil
CITY OF WANNEROO Minutes OF Ordinary Council Meeting 25 February, 2025 1
Item 10 Urgent Business
Nil
The meeting was closed to the public at 10:00pm. All members of the public and, Administration staff left the Chamber with the exception of the CEO, General Council, Director Assets, Director Corporate Strategy & Performance, Director Community & Place, Director Planning & Sustainability and Acting Manager Council Services.
Cr Miles declared an impartiality interest in Item CR01-02/25 due being friends of the family related to the property.
File Ref: 43714 – 24/349976
Responsible Officer: Director Corporate Strategy & Performance
This report is to be dealt with in confidential session, under the terms of the Local Government Act 1995 Section 5.23(2), as follows:
(c) a contract entered into, or which may be entered into, by the local government and which relates to a matter to be discussed at the meeting
(e)(ii) a matter that if disclosed, would reveal information that has a commercial value to a person, where the information is held by, or is about, a person other than the local government
(e)(iii) a matter that if disclosed, would reveal information about the business, professional, commercial or financial affairs of a person, where the information is held by, or is about, a person other than the local government
Moved Cr Rowe, Seconded Cr Figg
That Council:-
1. APPROVES the acquisition of a portion of Lot 5 (190) Flynn Drive, Neerabup (as identified in the Administration report) from Alvito Pty Ltd (ACN 008 845 378) at the agreed amount (including ancillary costs), for dedication as road reserve;
2. AUTHORISES:
a) the Chief Executive Officer (or a nominee of the Chief Executive Officer) to negotiate terms, execute all documentation and comply with all applicable legislation in relation to Item 1. above; and
b) the Chief Executive Officer to execute the Contract of Sale and any other associated documentation between the City and Alvito Pty Ltd (ACN 008 845 378) to effect Item 1; and
3. APPROVES by ABSOLUTE MAJORITY the amendment to the 2024/25 Operational Budget for the proposed expenditure described in the Administration report (acquisition price plus ancillary costs), to be funded from Federal Government Grants sourced from PR-4347 Flynn Drive, Neerabup, Upgrade Wanneroo Road to Old Yanchep Road.
CARRIED BY ABSOLUTE MAJORITY
13/0
For the motion: Mayor
Aitken, Cr Bedworth, Cr Berry, Cr Coetzee, Cr Figg,
Cr Herridge, Cr Huntley, Cr Miles, Cr Parker, Cr Rowe, Cr Seif,
Cr Smith and Cr Wright
Against the motion: Nil
Absent: Cr Moore and Cr Nguyen
CITY OF WANNEROO Minutes OF Ordinary Council Meeting 25 February, 2025 1
The CEO, all Directors and Acting Manager Council Services left the Chamber at 10:02pm.
General Council declared an impartiality interest in Item CR02-02/25 due to previous working with one of the candidates.
File Ref: 50350 – 25/60828
Responsible Officer: Chief Executive Officer
This report is to be dealt with in confidential session, under the terms of the Local Government Act 1995 Section 5.23(2), as follows:
(b) the personal affairs of any person
(e)(iii) a matter that if disclosed, would reveal information about the business, professional, commercial or financial affairs of a person, where the information is held by, or is about, a person other than the local government
Moved Cr Rowe, Seconded Cr Huntley
That Council adopts the Audit and Risk Committee recommendation as contained in the confidential report.
Carried Unanimously
13/0
For the motion: Mayor
Aitken, Cr Bedworth, Cr Berry, Cr Coetzee, Cr Figg,
Cr Herridge, Cr Huntley, Cr Miles, Cr Parker, Cr Rowe, Cr Seif,
Cr Smith and Cr Wright
Against the motion: Nil
Absent: Cr Moore and Cr Nguyen
The meeting was reopened to the public at 10:11pm.
Mayor Aitken read aloud the resolution carried on Items:
· CR01-02/25 Acquisition of Land from Lot 5 (190) Flynn Drive, Neerabup as road reserve; and
· CR02-02/25 Independent Members of the Audit and Risk Committee.
The next Agenda Briefing has been scheduled for 6:00pm on Tuesday 11 March 2025, to be held at Council Chamber, Level 1, Civic Drive, 23 Dundebar Road, Wanneroo.
There being no further business, Mayor Aitken closed the meeting at 10:13pm.
In Attendance
LINDA AITKEN, JP Mayor
Councillors:
ALEX FIGG North Ward
SONET COETZEE North Ward
GLYNIS PARKER North-East Ward
BRONWYN SMITH North-East Ward
PAUL MILES Central-East Ward
HELEN BERRY Central-West Ward
PHIL BEDWORTH Central-West Ward
JACQUELINE HUNTLEY Central Ward
JORDAN WRIGHT Central Ward
NATALIE HERRIDGE South-West Ward
JAMES ROWE, JP South Ward
EMAN SEIF, JP South Ward